Portfolio Yana Miatselitsa

Page 1

KATEDRA ARCHITEKTURY MIEJSC PRACY, SPORTU I USŁUG Promotor: prof. Dr hab. Inż. Arch.
Promotor pomocniczy:
Inż.
Recenzent:
Inż. Arch. Piotr
Autor
Miatselitsa Rok akademicki: 2021/2022 STREFA WEJŚCIOWO-SOCJALNO-BIUROWA W LABORATORIUM TESTOWANIA LINII KABLOWYCH W KRAKOWIE ENTRANCE-SOCIAL-OFFICE AREA IN THE CABLE LINE TESTING LABORATORY IN CRACOW
Maciej Złowodzki
mgr
Arch. Wojciech Duliński
dr Hab.
Winskowski
pracy: Yana

ENTRANCE-SOCIAL-OFFICE AREA IN THE CABLE LINE TESTING LABORATORY IN CRACOW

LOKALIZACJA LABORATORIUM SCHEMAT FUNKCJONALNY

PERSPEKTYWA Z LOTU PTAKA

Strefa wejściowasocjalna-biurowa jest budynkiem użyteczności publicznej dwukondygnacyjnym. Główna idea programu funkconalnego laboratorium jest oparta na równowadze i harmonii wszystkich stref załóżenia, gdzie każda część w pełni wykonuje swoją funkcję i jest połączona z pozastałymi strefami w sposób racjonalny. Strefa wejściowa-socjalno-biurowa to część stanowiąca wizytówkę danego obiektu, tym samym reprezentując budynek na tle pozostałych w otoczeniu. Dana część opracowania znajduje się od strony północnej i jest pierwszym punktem orientacyjnym laboratorium. Trzy strefy tworzą budynek dwukondygnacyjny z niedużym wysunięciem na piętrze. W bryle budynku na parterze zostało zaprojektowane wycięcie wejściowe czyli podcień, które jest całkowicie przeszklone. W danym miejscu znajduje się główne wejście do budynku i są zlokalizowane miejsca na rowery.

Wchodząc do budynku pracownicy przechodzą poprzez rezepcję, następnie dostają się do strefy socjalnej poprzez specjalne pomieszczenie, króre jest połączone z pomieszczeniem monitoringu i ochrony, równierz jest możliwość przedostania się do strefy biurowej poprzez klatkę schodową lub windę.

ELEWACJE LABORATORIUM

skala 1:500

KATEDRA ARCHITEKTURY MIEJSC PRACY, SPORTU I USŁUG Promotor: prof. Dr hab. Inż. Arch. Maciej Złowodzki Promotor pomocniczy: mgr Inż. Arch. Wojciech Duliński Recenzent: dr Hab. Inż. Arch. Piotr Winskowski Autor pracy: Yana Miatselitsa Rok akademicki: 2021/2022 STREFA WEJŚCIOWO-SOCJALNO-BIUROWA W LABORATORIUM TESTOWANIA LINII KABLOWYCH W KRAKOWIE
ELEWACJA
ELEWACJA
ELEWACJA POŁUDNIOWA LEGENDA N ELEWACJA ZACHODNIA OBSZAR OPRACOWANIA GRANICA DZIAŁKI POW. BIOLOGICZNIE CZYNNA POW. UTWARDZONA WEJŚCIE DO BUDYNKU
WSCHODNIA
PÓŁNOCNA

WEJŚCIOWO-SOCJALNO-BIUROWA W LABORATORIUM TESTOWANIA LINII KABLOWYCH W KRAKOWIE

ENTRANCE-SOCIAL-OFFICE AREA

IN THE CABLE LINE TESTING LABORATORY IN CRACOW

ZESTAWIENIE POWIERZCHNI

1.1 hol wejściowy 1.2 recepcja

korytarz 1.4 pomieszczenie szatniowe recepcji ocrony

1.5 pomieszczenie gospodarcze

1.6 wc pracowników strefy wejściowej

1.7 pomieszczenie socjalne recepcji ocrony

1.8 korytarz

1.9 pomieszczenie monitoringu ochrony

1.10 pomieszczenie sprawdzające

1.11 łazienka dla osób niepełnosprawnych

1.12 sanitariat ogólnodostępnydamski

1.13 sanitariat ogólnodostępnymęski

1.14 pomieszczenie gospodarcze

1.15 pomieszczenie na odpady

2.1 pokój socjalny

2.2 pomieszczenie gospodarcze

2.3 korytarz

2.4 szatnia damska

2.5 szatnia męska

KATEDRA ARCHITEKTURY MIEJSC PRACY, SPORTU I USŁUG Promotor: prof. Dr hab. Inż. Arch. Maciej Złowodzki Promotor pomocniczy: mgr Inż. Arch. Wojciech Duliński Recenzent: dr Hab. Inż. Arch. Piotr Winskowski Autor pracy: Yana Miatselitsa Rok akademicki: 2021/2022 STREFA
69,62 m2 14,62 m2 20,09 m2 15,63 m2 3,87 m2 4,22 m2 24,30 m2 31,77 m2 20,06 m2 7,62 m2 7,64 m2 6,50 m2 6,50 m2 6,22 m2 15,92 m2 67,68 m2 5,42 m2 35,36 m2 76,00 m2 76,00 m2 ELEWACJA ZACHODNIA skala 1:100 ELEWACJA PÓŁNOCNA skala 1:100 ELEWACJA WSCHODNIA skala 1:100
1.3
RZUT PARTERU skala 1:100 PRZEKRÓJ A-A skala 1:100 B B D D E E F F C C 8.02 8.02 2% 2% 4.20 4.20 4.20 4.00 4.00 4.00 4.00 W1 W1 W4 W2 SP S1 S3 S3 S3 S4 S4 S4 S1 SP W2 0.0 - 0.0- 0.175 -

STREFA WEJŚCIOWO-SOCJALNO-BIUROWA W LABORATORIUM TESTOWANIA LINII KABLOWYCH W KRAKOWIE

ENTRANCE-SOCIAL-OFFICE AREA IN THE CABLE LINE TESTING LABORATORY IN CRACOW

KRAKOWIE CRACOW KATEDRA ARCHITEKTURY MIEJSC PRACY, SPORTU I USŁUG Promotor: prof. Dr hab. Inż. Arch. Maciej Złowodzki Promotor pomocniczy: mgr Inż. Arch. Wojciech Duliński Recenzent: dr Hab. Inż. Arch. Piotr Winskowski Autor pracy: Yana Miatselitsa Rok akademicki: 2021/2022 3.1 pomieszczenie socjalne 3.2 biuro księgowe 3.3 gabinet wicedyrektora 3.4 gabinet dyrektora 3.5 korytarz 3.6 sekretariat 3.7 biuro 3.8 biuro działu jakości 3.9 biuro działu jakości 3.10 łazienka dla osób niepełnosprawnych 3.11 sanitariat damski 3.12 sanitariat męski 3.13 archiwium 3.14 archiwium 3.15 pomieszczenie porządkowe 3.16 serwerownia 3.17 biuro 3.18 biuro działu laboratorium 3.19 biuro działu laboratorium 3.20 korytarz 3.21 biuro 3.22 sala konferencyjna 3.23 gabinet kierownika zmiany 3.24 gabinet kierownika utrzymania ruchu 42,57 m2 29,23 m2 34,46 m2 35,12 m2 130,07 m2 32,72 m2 22,71 m2 42,66 m2 43,16 m2 7,58 m2 6,50 m2 6,50 m2 21,68 m2 19,77 m2 17,06 m2 19,77 m2 20,10 m2 37,09 m2 37,55 m2 50,23 m2 23,25 m2 23,30 m2 21,56 m2 23,62 m2
WIZUALIZACJA OD STRONY WEJŚCIA GŁÓWNEGO WIZUALIZACJA OD STRONY PÓŁNOCNEJ RZUT PIĘTRA skala 1:100 ZESTAWIENIE POWIERZCHNI 1 1 2 2 3 3 4 4 5 5 6 6 0 0 5' 5' 8.53 SP S1 2 2 S3 S3 S3 S3 S3 S3 S3 W3 W2 W1 W1 - -- - - -

ENTRANCE-SOCIAL-OFFICE AREA IN THE CABLE LINE TESTING LABORATORY IN CRACOW

KATEDRA ARCHITEKTURY MIEJSC PRACY, SPORTU I USŁUG Promotor: prof. Dr hab. Inż. Arch. Maciej Złowodzki Promotor pomocniczy: mgr Inż. Arch. Wojciech Duliński Recenzent: dr Hab. Inż. Arch. Piotr Winskowski Autor pracy: Yana Miatselitsa Rok akademicki: 2021/2022 STREFA
WEJŚCIOWO-SOCJALNO-BIUROWA W LABORATORIUM TESTOWANIA LINII KABLOWYCH W KRAKOWIE
FRAGMENT RZUTU PARTERU skala 1:50 FRAGMENT PRZEKROJU PARTERU skala 1:50 WIZUALIZACJA HOL WEJŚCIOWY WIZUALIZACJA POKÓJ SOCJALNY B B D D C C 0.0 0.175+ 2% 1.5% SP S1 W3 6.85 7.60 8.02 8.53 W1 8.53 + 0.5% S3 S3 S3 +4.00 +4.00 +4.00 4.20 + 4.20 + 0.0+ 0.00.175 - 0.1750.5% 0.05

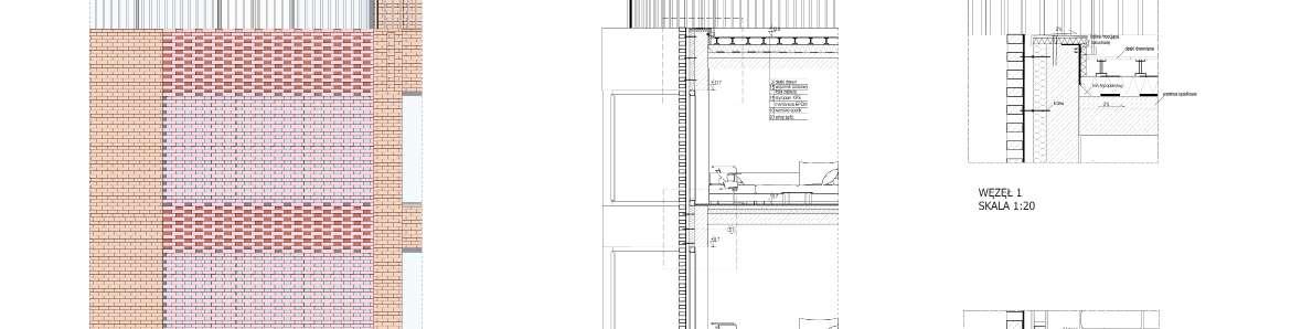
-podłoga na gruncie płytki gresowe 2 cm wylewka betonowa 4 cm warstwa rozdzielajacawełna mineralna 10 cm płyta żelbetowa 15 cm membrana przeciwilgociowabeton chudy 10 cm folia rodzielajacażwir 10 cm piasekW2 -strop międzykond. 1 płytki gresowe 2,0 cm podłoga systemowa 10,0 cm strop żelbetowy 25,0 cm ufit podwieszany 40 cm W3 -strop międzykond. 1 podłoga systemowa 10,0 cm strop żelbetowy 25,0 cm wełna mineralna 15 cm tynk cementowowapienny 1.5 cm

DETAL PRZEKROJU Skala 1:20 DETAL ELEWACJI Skala 1:20 STREFA WEJŚCIOWO-SOCJALNO-BIUROWA W LABORATORIUM
KABLOWYCH W KRAKOWIE ENTRANCE-SOCIAL-OFFICE
IN CRACOW KATEDRA ARCHITEKTURY MIEJSC PRACY, SPORTU I USŁUG Promotor: prof. Dr hab. Inż. Arch. Maciej Złowodzki Promotor pomocniczy: mgr Inż. Arch. Wojciech Duliński Recenzent: dr Hab. Inż. Arch. Piotr Winskowski Autor pracy: Yana Miatselitsa Rok akademicki: 2021/2022 B 1.5% 0.5% B 2% W3 SP S1 W1 W4 W2 0.5% 0.0 0.05 0.175 3.20 4.00 4.20 6.85 7.60 8.02 8.53 + + + + + + ++ 3.95 kurtyna powietrzna kostka brukowa stopka podporowa sufit podwieszny Knauf wieszak noniuszowy podłoga systemowa Rigips łącznik systemowy uchwyt do mocowania blachy trapezowej sufit podwieszny Knauf wieszak noniuszowy uchwyt do mocowania blachy trapezowej S1 - ściana zewnętrzna nr 1 blacha trapezowa 1,0 cm. pustka powietrzna 3,0 cm. wełna mineralna szklana ISOVER 15,0 cm. ściana żelbetowa 30,0 cm. tynk cementowowapienny 1,5 cm. S2 -ściana wewnętrzna tynk cementowowapienny 1.5 cm. ściana żelbetowa 30,0 cm. tynk cementowowapienny 1,5 cm. S3 -ściana działowa nr 1 tynk cementowowapienny 1,5 cm płyta gipsowokartonowa RIGIPS 1,25 cm wełna mineralna szklana ISOVER 10,0 cm płyta gipsowokartonowa RIGIPS 1,25 cm tynk cementowowapienny 1,5 cm S4 -ściana działowa nr 2 płytki ceramiczne 1,5 cm zaprawapłyta gipsowa wodoodporna RIGIPS GLASROCX Ocean 1.25 cm wełna mineralna szklana ISOVER 10,0 cm zaprawapłyta gipsowa wodoodporna RIGIPS GLASROC X Ocean 1, 25 cm płytki ceramiczne 1,5 cm SP -ściana stropodachu warstwa wykończenioważwir 5 cm 2x papa termoogrzewalna cm styropian xps 15 cm warstwa spadkowa betonowa 5 cm strop żelbetowy 25 cm sufit podwieszany 40cm W1
TESTOWANIA LINII
AREA IN THE CABLE LINE TESTING LABORATORY
9 RZUT FRAGMENTU KONCEPCJI OSIEDLA W WOLBROMIU 1:500
ZACHODNIA
ELEWACJA WSCHODNIA
ELEWACJA
1:200
1:200
PRZEKRÓJ A-A 1:200
ELEWACJA POŁUDNIOWA 1:200 ELEWACJA POŁNOCNA 1:200

PAWILON - PANORAMA SIEDMIOGRODZKA przy Al. Solidarności w Tarnowie

inż. arch. Yana Miatselitsa; rok 1, semestr 2, stopień II; 2022/2023; prowadzący przedmiot: dr hab. inż. arch. Piotr Gajewski, prof. PK, prowadzący grupę: dr inż. arch. Wiesław Michałek, Katedra Architektury Miejsc Pracy, Sportu i Usług WA PK

wejście główne

wejście dodatkowe

wjazd do garażu podziemnego

miejsce na rowery i hulajnogi

RZUT ZAGOSPODAROWANIA TERENU SKALA 1:50 0

inż. arch. Yana Miatselitsa; rok 1, semestr 2, stopień II; 2022/2023; prowadzący przedmiot: dr hab. inż. arch. Piotr Gajewski, prof. PK, prowadzący grupę: dr inż. arch. Wiesław Michałek, Katedra Architektury Miejsc Pracy, Sportu i Usług

PK
WA
4.000.00 + 5.00 + 20.00 + 23.00 + PRZEKRÓJ POPRZECZNY SKALA 1:20 0
PAWILON - PANORAMA SIEDMIOGRODZKA przy Al. Solidarności w Tarnowie

PAWILON - PANORAMA SIEDMIOGRODZKA przy Al. Solidarnoś

inż. arch. Yana Miatselitsa; rok 1, semestr 2, stopień II; 2022/2023; prowadzący przedmiot: dr hab. inż. arch. Piotr Gajewski, prof. PK, prowadzący grupę: dr inż. arch. Wiesław Michałek, Katedra Architektury Miejsc Pracy, Sportu i Usług WA PK

ci w Tarnowie
AKSONOMETRIA

S1 - ściana zewnętrzna/ U=0.19[W/(m2K)]

Powłoka malarska / okładzina (wykończenie zgodnie z projektem wnętrz), np. tynk gipsowy - Baumit Ratio

Warstwa gruntująca np. KOSTER Polysil TG 500

Ściana żelbetowa - 40 cm.

Warstwa gruntująca np. KOSTER Polysil TG 500

Wełna mineralna, np. ROCKWOOL TOPROCK PREMIUM-15cm.

Siatka na warstwie zbrojącej (klej)

Tynk cementowo-wapienny zewnętrzny np. Baumit MPA 35

Warstwa gruntująca, np. KOSTER Polysil TG 500

Tynk cienkowarstwowy barwiony w masie, kolor biel

S2 - ściana zewnętrzna

Papa termozgrzewalna na zakład podkładowa Bauder

Warstwa termoizolacyjna, np. wełna mineralna - 10cm.

Paroizolacja

Impregnant asfaltowy

Ściana żelbetowa - 40 cm.

Warstwa gruntująca np. KOSTER Polysil TG 500

Wełna mineralna, np. ROCKWOOL TOPROCK PREMIUM -15cm.

Siatka na warstwie zbrojącej (klej)

Tynk cementowo-wapienny zewnętrzny np. Baumit MPA 35

Warstwa gruntująca, np. KOSTER Polysil TG 500

Tynk cienkowarstwowy barwiony w masie, kolor biel

WO - płyta fundamentowa

Wykończenie podłogi zgodnie z projektem wnętrz

Płyta żelbetowa - 60cm.

Wylewka betonowa zbrojona-10cm.

Folia PE układana na zakład - 20mm np. Bauder

Piasek

W1

Kostka brukowa

Piasek

Styropian XPS z spadkiem 0,5%

Wylewka betonowa zbrojona-10cm.

Membrana przeciwwilgociowa

Płyta żelbetowa - 30cm.

Wykończenie sufitu zgodnie z projektem wnętrz

W2 - strop międzykond.

Podłoga systemowa Rigips -20cm.

Płyta żelbetowa - 30cm.

Warstwa gruntująca np. KOSTER Polysil TG 500

Wełna mineralna, np. ROCKWOOL TOPROCK PREMIUM -15cm.

Siatka na warstwie zbrojącej (klej)

Tynk cementowo-wapienny zewnętrzny np. Baumit MPA 35

Warstwa gruntująca, np. KOSTER Polysil TG 500

Tynk cienkowarstwowy barwiony w masie, kolor biel

D1 - dach

Płyta warstwowa z izolacją z pianki PIR lub z w ełny 20cm.

Stalowa płatewdachowa ocynkowana

Stalowy dźwigar kratowy ocynkowany -300 cm

inż. arch. Yana Miatselitsa; rok 1, semestr 2, stopień II; 2022/2023; prowadzący przedmiot: dr hab. inż. arch. Piotr Gajewski, prof. PK, prowadzący grupę: dr inż. arch. Wiesław Michałek, Katedra Architektury Miejsc Pracy, Sportu

i Usług WA PK
0.5% 0.00 +4.00 4.6S1 W1 W0 S2 W2 D1 1.5% + 5.00 - 0.34 + 4.80 + 20.00 + 23.00
PAWILON - PANORAMA SIEDMIOGRODZKA przy Al. Solidarności w Tarnowie
podłoga systemowa Rigips sufit podwieszany Knauf
kostka brukowa
DETAL SKALA 1:20
dzwigar kratownicowy ściana żelbetowa do mocowania Panoramy

Projekt adaPtacji budynku na ZESPÓŁ BUDYNKÓW BIUROWO-USŁUGOWYCH

ŁYNÓW PROJEKTOWANIE
St ii Sem ii/rok 2022/2023
ARCH.- URB. W OBSZARACH DZIEDZICTWA KULTUROWEGO/ prowadzący przedmiot-dr hab. inż. arch. Jolanta SroczyńSka, prof.pk dr inż arch dominika kinGa dŁUGoSz /prowadzący GrUpę - dr hab. inż. arch. Jolanta SroczyńSka, prof.pk dr inż arch dominika kinGa dŁUGoSz/aUtor rpoJektU inż arch yana miatSelitSa

0.04 – magazyn – 8,69 m2

0.05 – kuchnia – 12,94 m2

0.06 – szatnia dla pracowników – 5,27 m2

0.07 – łazienka dla pracowników – 4,29 m2

0.08 – łazienka damska/łazienka dla osób niepełnosprawnych – 5,03m2

0.09 – łazienka męska – 4,10 m2

0.091 – komunikacja/kawiarnia – 152,28 m2

0.10 – hol wejściowy – 142,27 m2

0.11 – przedsionek –6,50 m2

0.111– łazienka damska-8,01 m2

0.12 – pom. matki z dzieckiem – 4,20 m2

0.13 – łazienka dla os.

niepełnosprawnych – 6,42 m2

0.14– przedsionek – 6,45 m2

0.141– łazienka męska-8,02 m2

0.15– recepcja– 11,90 m2

0.16 – szatnia – 11,27 m2

0.17 – pok. coworkingowy –25,00 m2

0.18 – pok. coworkingowy–22,48 m2

0.19 – pok. do odpoczynku–9,50 m2

0.20 – pok. coworkingowy–30,55 m2

0.21 – pok. coworkingowy–32,14 m2

0.22 – pok. coworkingowy–22,17 m2

0.23 – pok. coworkingowy–11,18 m2

0.24 – pok. coworkingowy–5,23 m2

0.25 – pok. coworkingowy–6,30 m2

0.26 – pok. coworkingowy–5,72 m2

0.27 – pomieszczenie administracji–12,17 m2

0.28– recepcja przestrzeni coworkingowej–11,97 m2

szatnia damska pracownicza–6,66 m2

rzUt parterU Skala 1:200

rzUt piętra Skala 1:200

przestrzeń cooworkingowa przestrzeń

Projekt
ZESPÓŁ BUDYNKÓW
PRZY U l. D O l NYCH M ŁYNÓW W K R a KOWIE PROJEKTOWANIE ARCH.- URB. W OBSZARACH DZIEDZICTWA KULTUROWEGO/ prowadzący przedmiot-dr hab. inż. arch. Jolanta SroczyńSka, prof.pk dr inż arch dominika kinGa dŁUGoSz /prowadzący GrUpę - dr hab. inż. arch. Jolanta SroczyńSka, prof.pk dr inż arch dominika kinGa dŁUGoSz/aUtor rpoJektU inż arch yana miatSelitSa St ii Sem ii/rok 2022/2023 +1.00 +1.01 +1.02 +1.03 +1.04 +1.05 +1.07 +1.11 +1.06 +1.08 +1.09 +1.10 0.01 0.02 0.03 0.04 0.05 0.06 0.07 0.08 0.09 0.10 0.11 0.12 0.13 0.14 0.15 0.16 0.17 0.18 0.19 0.20 0.21 0.22 0.23 0.25 0.24 0.26 0.27 0.28 0.29 0.30 0.31 0.32 0.33 0.34 0.35 0.091 0.112 0.141 0.36 0.37 0.38 0.39
adaPtacji budynku na
BIUROWO-USŁUGOWYCH
cooworkingowa strefa administracji komunikacja komunikacja sanitariaty sanitariaty kawiarnia kawiarnia Schemat fUnkcJonalny parterU Skala 1:400 Schemat fUnkcJonalny piętra Skala 1:400 0.01 – strefa barowa – 16,03m2 0.02 – hol wejściowy – 35,00 m2 0.03 – strefa kawiarni – 15,85 m2
0.29–
0.30–
0.31–
0.32–
0.33–
0.34–
m2 0.35– przestrzeń coworkingowa–19,12 m2 0.36– hol wejściowy–150,40 m2 0.37– komunikacja–73,06 m2 0.38– komunikacja–94,82 m2 0.39– komunikacja–8,54 m2 +1.00 – strefa coworkingowa – 362,45m2 +1.01 – przedsionek – 6,50 m2 +1.02 – łazienka damska– 8,01 m2 +1.03 – pom. gospodarcze– 4,20 m2 +1.04 – łazienka dla os. niepełnosprawnej– 6,42 m2 +1.05 –przedsionek– 6,42 m2 +1.06– łazienka męska– 8,01 m2 +1.07 – przestrzeń coworkingowa– 346,38m2 +1.08 – komunikacja– 8,46 m2 +1.09 – komunikacja– 31,64 m2 +1.10 – komunikacja– 25,47 m2
magazyn–6,50 m2
korytarz–7,74 m2
szatnia męska pracownicza–4,97 m2
łazienka pracownicza–4,09 m2
pokój socjalny–14,32

+2.00 – komunikacja – 237,74 m2

+2.01– przedsionek – 6,50m2

+2.02 – łazienka damska – 8,01 m2

+2.03 – pom. gospodarcze – 4,20 m2

+2.04 – łazienka dla osób niepełnosprawnych – 6,42m2

+2.05 – łazienka męska– 8,01 m2

+2.06 – przedsionek – 6,42 m2

+2.07 – sala konferencyjna – 52,46 m2

+2.08 – sala konferencyjna – 50,55 m2

+2.09 – sala konferencyjna – 52,41 m2

+2.10 – komunikacja – 110,85 m2

+2.11 – biuro – 33,42m2

+2.12 – sala konferencyjna – 24,41 m2

+2.13 – sala konferencyjna – 70,32 m2

+2.14 – sala konferencyjna – 38,71 m2

+2.15 – sala konferencyjna – 56,36 m2

+2.16 – warsztat – 38,97 m2

+2.17 – komunikacja – 9,50 m2

Schemat fUnkcJonalny ii piętra Skala 1:400

+3.00 – komunikacja – 187,19 m2

+3.01 – przedsionek – 6,50 m2

+3.02 – łazienka damska – 8,01 m2

+3.03 – pom. gospodarcze – 4,20 m2

+3.04 – łazienka dla os. niepełnosprawnych –

6,42 m2

+3.05 – łazienka męska – 8,01 m2

+3.06 – przedsionek – 6,42 m2

+3.07 – sala konferencyjna – 52,46 m2

+3.08 – sala konferencyjna – 52,41 m2

+3.09 – komunikacja – 110,85 m2

+3.10 – sala konferencyjna – 33,42 m2

+3.11 – sala konferencyjna – 24,41 m2

+3.12 – sala konferencyjna – 70,32 m2

+3.13 – sala konferencyjna – 38,71 m2

+3.14 – warsztat – 38,97 m2

+3.15 – sala konferencyjna – 56,36 m2

+3.16 – komunikacja – 9,50 m2

+4.00 – komunikacja – 268,17 m2

+4.01 – komunikacja – 10,30 m2

+4.02 – kuchnia – 12,54 m2

+4.03 – łazienka damska – 11,03 m2

+4.04 – łazienka męska – 11,53 m2

+4.05 – przestrzeń odpoczynku – 123,32 m2

+4.06 – przestrzeń do pracy biurowej – 14,35 m2

+4.07 – przestrzeń do pracy biurowej – 14,25 m2

+4.08 – przestrzeń do pracy biurowej – 14,70 m2

+4.09 – przestrzeń do pracy biurowej – 14,63 m2

+4.10 – przestrzeń do pracy biurowej – 12,26 m2

+4.11 – przestrzeń do pracy biurowej – 12,69 m2

+4.12 – przestrzeń do pracy biurowej – 14,54 m2

+4.13 – przestrzeń do pracy biurowej – 14,83 m2

+4.14 – przestrzeń do pracy biurowej – 14,97 m2

+4.15 – przestrzeń do pracy biurowej – 14,74 m2

+4.16 – przestrzeń do pracy biurowej – 14,50 m2

+4.17 – przestrzeń do pracy biurowej – 15,12 m2

+4.18 – przestrzeń do pracy biurowej – 15,18 m2

+4.19 – przestrzeń do pracy biurowej – 13,89 m2

+4.20 – przestrzeń do pracy biurowej – 13,85 m2

+4.21 – przestrzeń do pracy biurowej – 14,02 m2

+4.22 – przestrzeń do pracy biurowej – 14,00 m2

+4.22 – przestrzeń do pracy biurowej – 13,56 m2

+4.23– przestrzeń do pracy biurowej – 11,50 m2

+4.24 – przestrzeń do pracy biurowej – 13,56 m2

+4.25 – przestrzeń do pracy biurowej – 11,50 m2

+4.26 – przestrzeń do pracy biurowej – 11,75 m2

Schemat fUnkcJonalny iii piętra Skala 1:400

biura

Schemat fUnkcJonalny poddaSza Skala 1:400

komunikacja komunikacja

sanitariaty sanitariaty kuchnia

przestrzeń biurowa

do odpoczynku

Projekt
ZESPÓŁ BUDYNKÓW BIUROWO-USŁUGOWYCH PRZY U l. D O l NYCH M ŁYNÓW W K R a KOWIE PROJEKTOWANIE ARCH.- URB. W OBSZARACH DZIEDZICTWA KULTUROWEGO/ prowadzący przedmiot-dr hab. inż. arch. Jolanta SroczyńSka, prof.pk dr inż arch dominika kinGa dŁUGoSz /prowadzący GrUpę - dr hab. inż. arch. Jolanta SroczyńSka, prof.pk dr inż arch dominika kinGa dŁUGoSz/aUtor rpoJektU inż arch yana miatSelitSa St ii Sem ii/rok 2022/2023 +2.00 +2.01 +2.02 +2.03 +2.04 +2.06 +2.07 +2.09 +2.10 +2.11 +2.12 +2.13 +2.14 +2.16 +2.15 +2.08 +2.05 +2.17 +3.00 +3.01 +3.02 +3.03 +3.04 +3.06 +3.07 +3.08 +3.09 +3.10 +3.11 +3.12 +3.13 +3.14 +3.15 +3.05 +3.16 +4.00 +4.02 +4.03 +4.04 +4.05 +4.07 +4.01 +4.06 +4.08 +4.09 +4.10 +4.11 +4.12 +4.13 +4.15 +4.14 +4.16 +4.17 +4.18 +4.19 +4.20 +4.21 +4.22 +4.23 +4.24 +4.25 +4.26 rzUt ii pietra Skala 1:200 rzUt iii pietra Skala 1:200 rzUt poddaSza Skala 1:200 przestrzeń wspólna biura komunikacja sanitariaty przestrzeń
przestrzeń
adaPtacji budynku na
ogólnodostępna
Projekt
ZESPÓŁ BUDYNKÓW BIUROWO-USŁUGOWYCH PRZY U l. D O l NYCH M ŁYNÓW W K R a KOWIE PROJEKTOWANIE ARCH.- URB. W OBSZARACH DZIEDZICTWA KULTUROWEGO/ prowadzący przedmiot-dr hab. inż. arch. Jolanta SroczyńSka, prof.pk dr inż arch dominika kinGa dŁUGoSz /prowadzący GrUpę - dr hab. inż. arch. Jolanta SroczyńSka, prof.pk dr inż arch dominika kinGa dŁUGoSz/aUtor rpoJektU inż arch yana miatSelitSa St ii Sem ii/rok 2022/2023 przekrÓJ podŁUżny Skala 1:200 przekrÓJ poprzeczny Skala 1:200 elewacJa frontowa Skala 1:200 elewacJa boczny Skala 1:200 15.47 14.54 4.15 0.00 0.99 0.81 20.10 0.00
adaPtacji budynku na

Turn static files into dynamic content formats.

Create a flipbook
Issuu converts static files into: digital portfolios, online yearbooks, online catalogs, digital photo albums and more. Sign up and create your flipbook.
Portfolio Yana Miatselitsa by Yana Miatselitsa - Issuu