Skip to main content

室內設計個人作品集_呂學彰

Page 1

室內設計 個人作品集

姓名:呂學彰

案例一:綠捷大躍進

➔設計風格以北歐風為主軸設計,講求平和安詳、強調舒 適性、與便利性,家具與收納櫃偏重實用為主。

➔配色以給人安定感的酪梨綠為主要色彩,再以大面積範

設計說明
圍的灰色牆面,呈現安定舒適的配色。

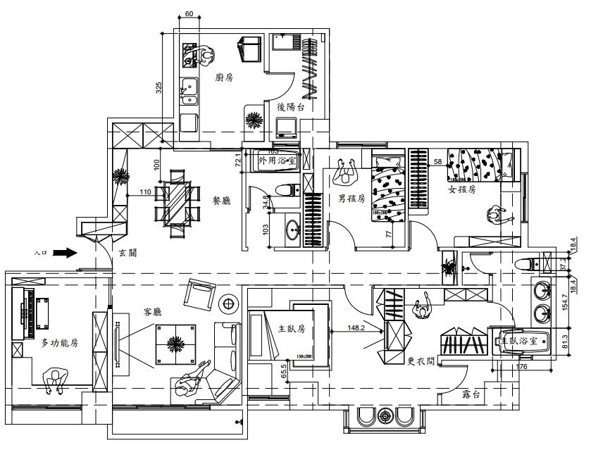
室內配置圖

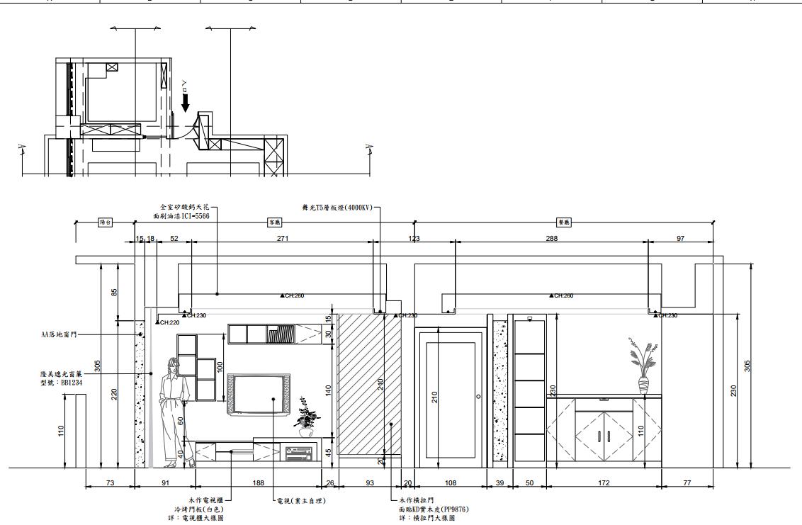
客廳立面

客廳渲染圖

餐廳渲染圖

男孩房平面圖
男孩房立面圖

書房渲染圖

書房渲染圖

室內設計練習作品

臥室練習-1

臥室練習-2

臥室練習-3

臥室練習-4

咖啡廳練習

建模練習作品

物件練習-1

建模練習-2

建模練習-3

CAD國際證書

MAX完課證書

CAD完課證書

Turn static files into dynamic content formats.

Create a flipbook
室內設計個人作品集_呂學彰 by 呂學彰 - Issuu