PORTFOLIO

Page 1

Architectural Portfolio

YAZEED SCHUMANNALKHTIB

TABLE OF CONTENT

• RESUME

• EDUCATIONAL PROJECTS:

1 WATER PURIFICATION & RESEARCH CENTRE

2 THE SHOCK HOTEL & SHOPPING CENTRE

• PERSONAL PROJECTS:

1 3D SHOTS

2 EDUCATIONAL INTERNSHIP WORKS

YAZEED SCHUMANNALKHTIB

RESUME

EDUCATION

• Degree: Bachelor of Architectural Engineering

• Institution: Al-Ahliyya Amman University

• Dates Attended: May 2019March 2024

• GPA: 3.87 (out of 4.00)

• Academic Honors:

• Awarded for Academic Excellence three times.

• Awarded for Community Service participation once.

CAPABILITIES

• Professional:

1 Design.

2 Communication Skills.

3. Attention to Detail.

4. Problem-Solving Skills.

• PERSONAL:

1 Positive Attitude.

2. Friendly Demeanor.

3. Adaptability.

4 Creativity.

5 Time Management.

6 Collaboration.

7. Resilience.

8. AI USER (MIDJOURNY,CHATGPT)

HOBBIES

CAREER OBJECTIVE

As a recent graduate architect, I aim to emphasize my skills in design, 3D rendering, and visualization. My professional goal is continuous improvement and reaching the pinnacle of success in my career. I attained the first place in the Faculty of Architecture at my university with a high GPA of 3.87 out of 4. I am always driven to create designs that are unconventional and seek the extraordinary within them. Alongside my studies, I actively participated in community events and have a keen interest in continuous training and continual improvement.

EXPERIENCE

Educational Intern, Dar Al Omran (July 2023 - October 2023)

1.Prince Hussein Expansion Project, Ain Al Basha:

• Supervised as an architect on-site.

• Worked on shop drawings to resolve any issues.

• Assisted in material selection and approval.

2.Office Work for Two Projects:

a. Narjes Type A & B Villa:

• Created wall sections and two elevations.

• Provided wall notation for each project.

b. Narjes Residential & Commercial Compound:

• Checked ceiling plans and provided necessary notes.

• Drafted sections with detailed drop beam and structural column specifications.

• Added leveling information to plans.

• Improved and corrected plans as needed.

PART-TIME VOICE OVER, DARK WINGZ PRODUCTION (FEB 2018AUG 2018)

Certifications/Licenses:

• 30H Construction Safety and Health: OSHA Academy, February 2018 ,21

• 30H General Industry Safety and Health: OSHA Academy, February 2018 ,21

• LEED: Core Concepts & Strategies: Jordan Green Building Council, March 2024 ,9

LANGUAGES:

• ARABIC - NATIVE

• ENGLISH - INTERMEDIATE

REFERENCES:

• AVAILABLE UPON REQUEST

SOFTWARE SKILLS

MARKA,AMMAN,JORDAN
YAZEED.M 1112 @GMAIL.COM +962772671843
AUTOCAD 3DS MAX SKETCHUP PHOTOSHOP INDESIGN V-RAY
MUSIC DRWING TRAVELING READING

EDUCATIONAL PROJECTS

WATER PURIFICATION AND RESEARCH CENTRE

PROJECT INFO:

The Water Purification and Research Center (WPRC) is a state-of-the-art facility designed to address the pressing need for clean water and innovative water management solutions. The center will focus on water treatment, desalination, and purification technologies while fostering research and development to advance the field of water sciences. Additionally, the project includes a shopping center that aims to enhance the community experience and support the sustainability of the WPRC.

The WPRC will house advanced laboratories, research facilities, and educational spaces dedicated to promoting water purification techniques, fostering collaborations, and generating new knowledge. The center will also serve as a hub for local and international researchers, students, and industry professionals, creating a dynamic and innovative environment for knowledge exchange and technological advancement. The shopping center, integrated into the project, will offer retail, dining, and leisure options, contributing to a vibrant and lively atmosphere.

LOCATION :

the Site is Located in Aqaba, Jordan. Near to Tala Bay Resort . site area : 50,000 m2 some important near locations:

1.

2.

3.

SITE PLAN:

Royal Jordanian Navi Base. Luxotel Aqaba Beach Resort & Spa. Tala Bay Resort which is beside it.

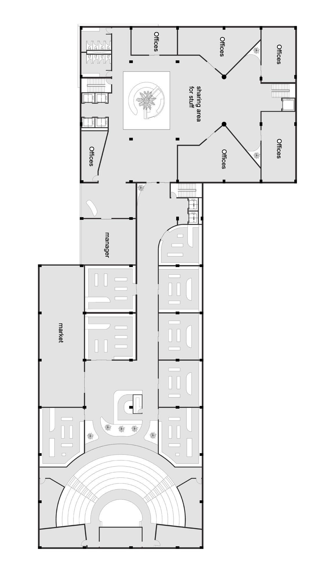
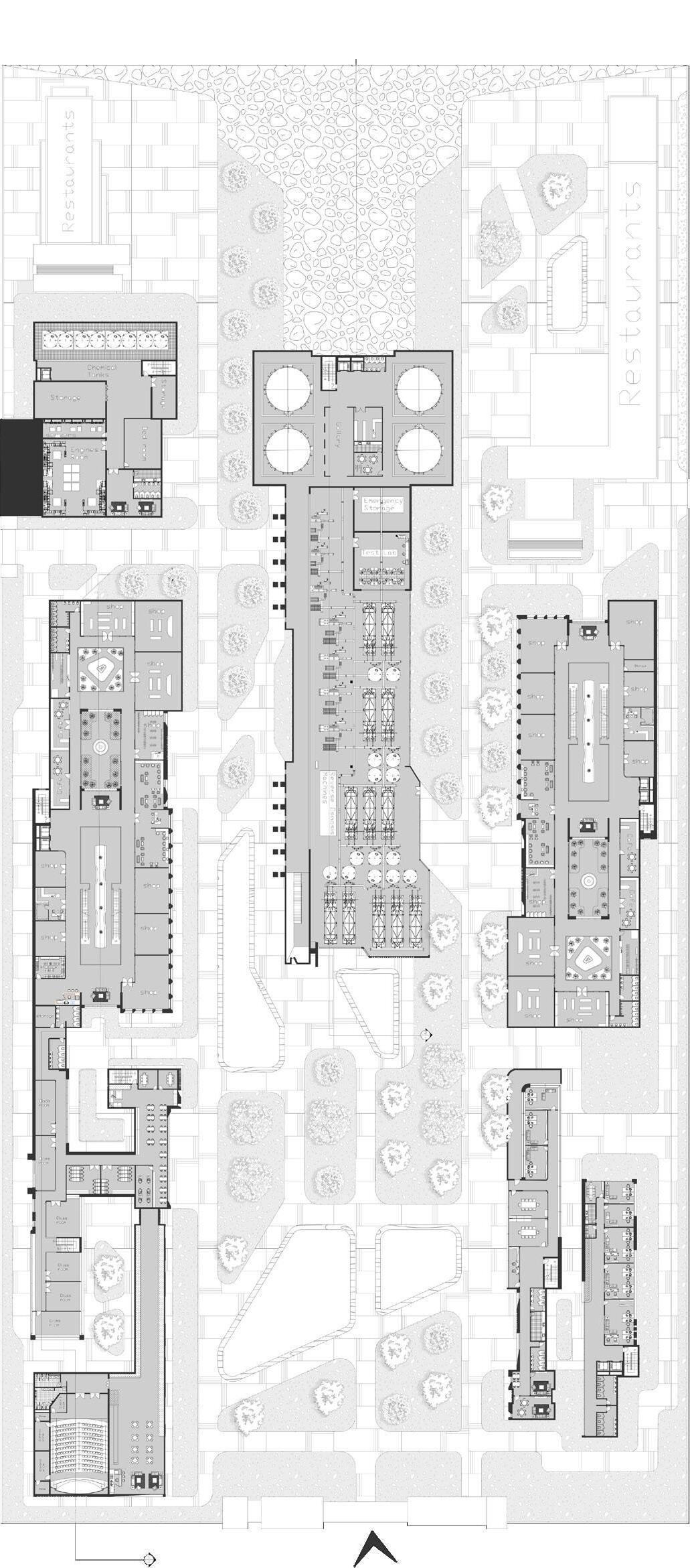
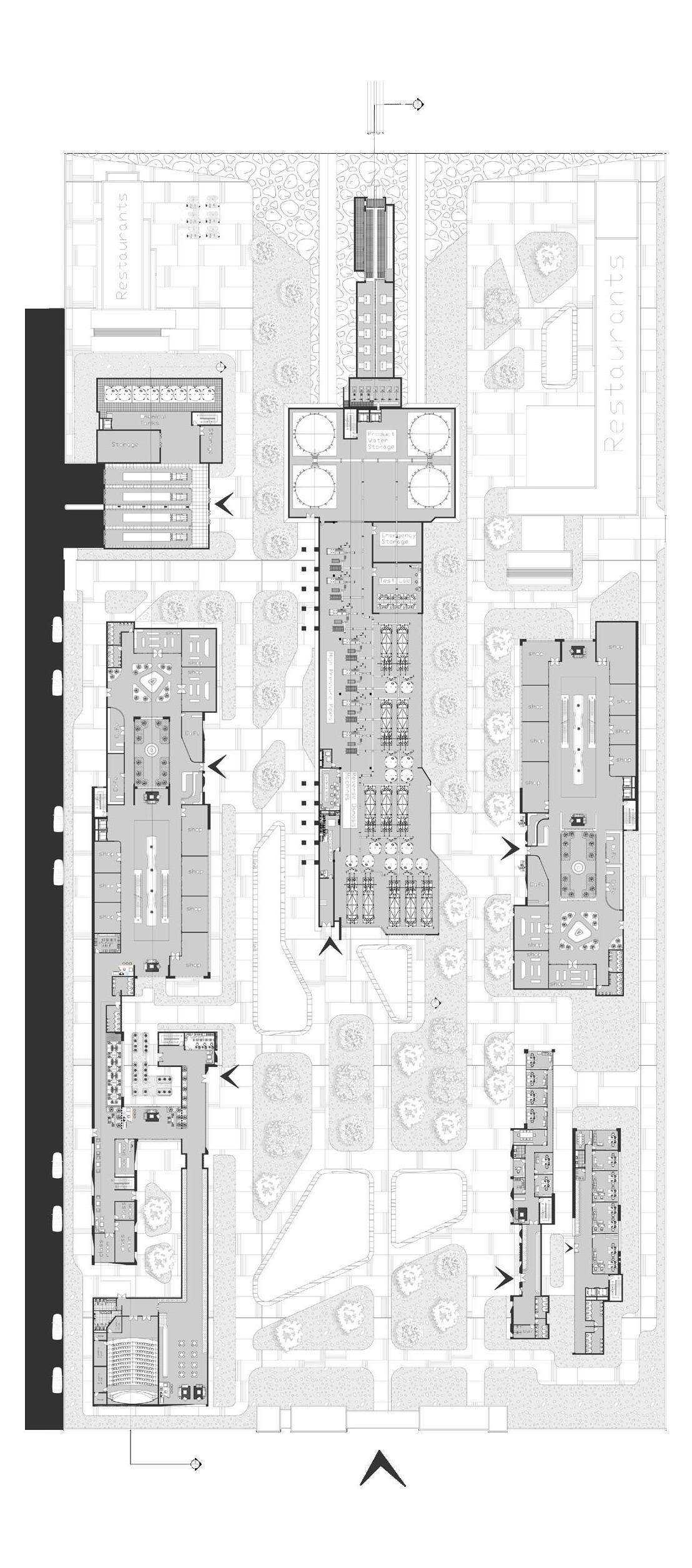
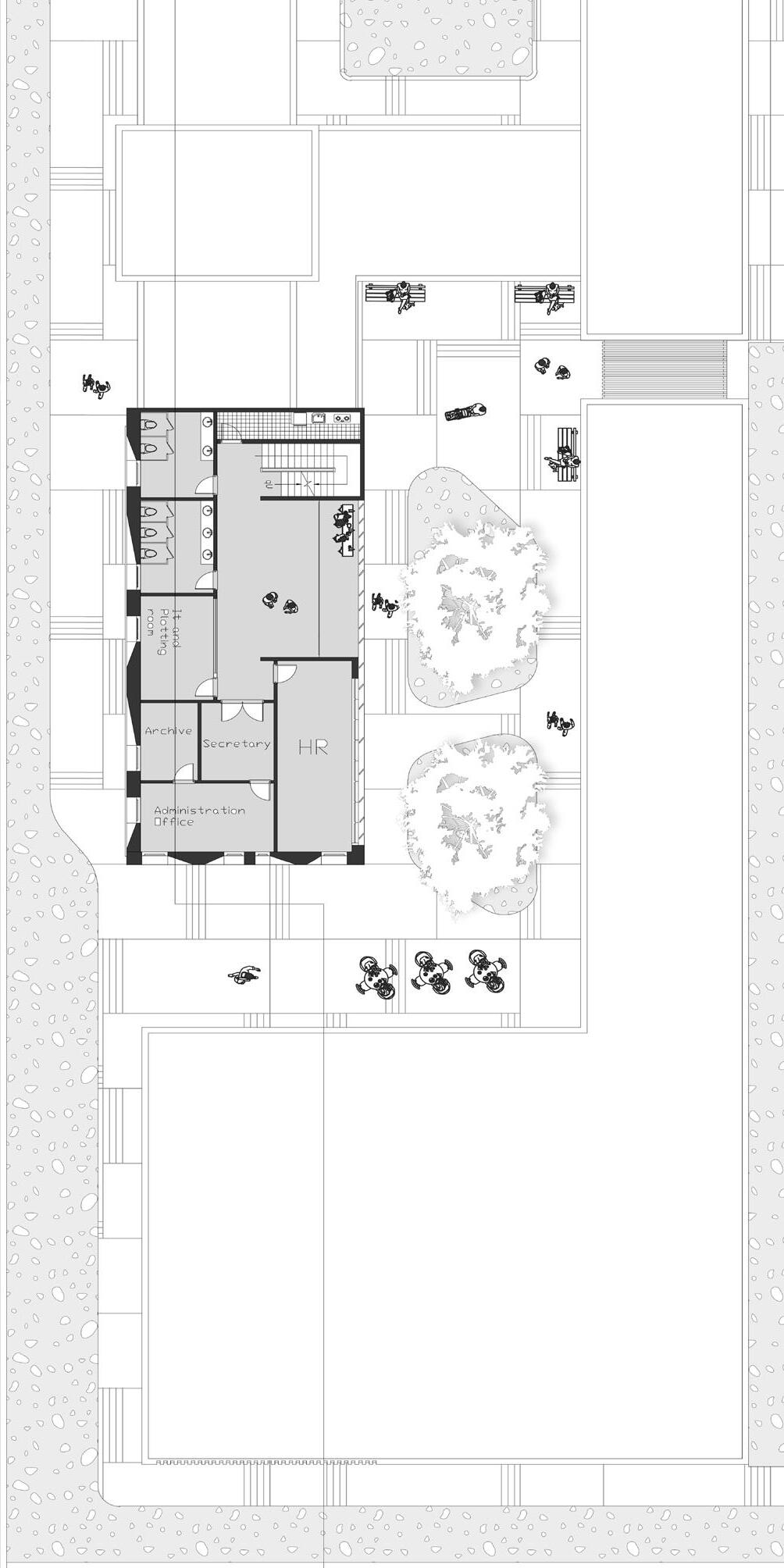
PLANS

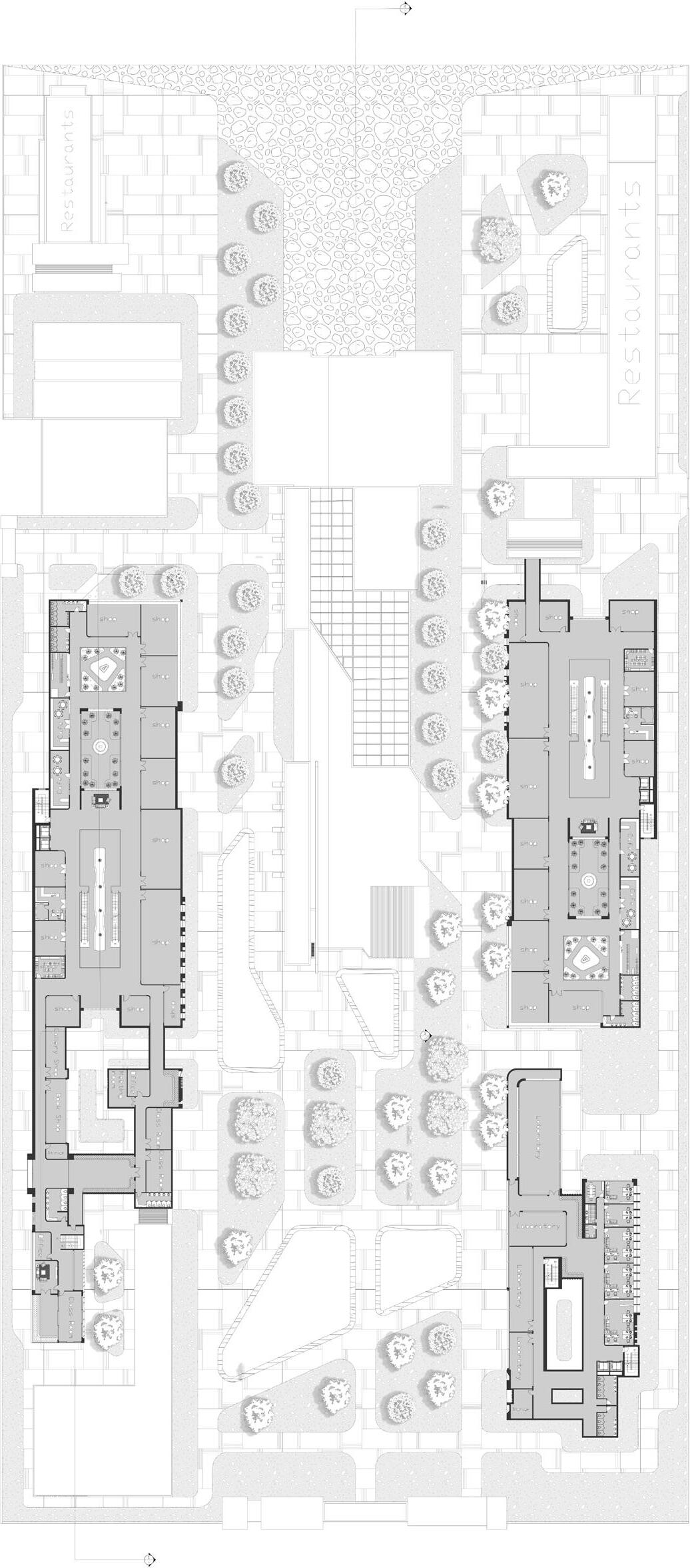
GROUND FLOOR:

FIRST FLOOR:

PLANS

SECOND FLOOR:

THIRD FLOOR:

PLANS

FORTH FLOOR:

FIFTH FLOOR:

SECTIONS

ELEVATIONS

SOUTH ELEVATION:

SOUTH ELEVATION:

SOUTH ELEVATION:

NORTH ELEVATION:

NORTH ELEVATION:

NORTH ELEVATION:

3D SHOTS

3D SHOTS

THE SHOCK HOTEL AND SHOPPING CENTRE

PROJECT INFO:

The Shock Hotel and Shopping Centre project is a pioneering endeavor that merges the rich heritage of traditional Islamic architecture with the cutting-edge sophistication of modern design. This high-rise structure, serving as both a hotel and a shopping center, embodies a unique fusion of cultural legacy and contemporary innovation.

The design concept of the project revolves around the juxtaposition of traditional Islamic patterns adorning the exterior facade with the organic tranquility found within. While the exterior showcases intricate motifs paying homage to centuries-old craftsmanship, the interior spaces are characterized by biophilic design principles, fostering a sense of harmony and rejuvenation amidst lush greenery.

Functionally, the building will offer luxurious hotel accommodations with personalized service and a vibrant shopping center featuring diverse retail options, dining venues, and entertainment facilities. Integration of smart technology and sustainable practices ensures efficient operation and minimal environmental impact.

LOCATION

:

Site is located in South Amman exactly in airport road.

site area : 46,440 m2

some important near locations:

2.

SITE PLAN:

1. IKEA. Al Zaytoonah University. 3. Queen Alia Airport.

PLANS

GROUND FLOOR:

FIRST FLOOR:

PLANS

SECOND FLOOR:

PLANS

12 -3 FLOORS:

16 -13 FLOORS:

PLANS

21 -17 FLOORS:

23 -22 FLOORS:

PLANS

24 FLOORS:

25 FLOORS:

SECTIONS

ELEVATIONS

FRONT ELEVATION:

LEFT ELEVATION:

3D SHOTS

PERSONAL PROJECTS

3D SHOTS

3D SHOTS

I crafted the interior design for a unique apartment complex,seamlessly merging a double volume unite with a studio space. This design embodies a futuristic lifestyle, blending techno elements with modern aesthetics, and accentuating them with vibrant lighting and cohensive furniture choices. Created using 3ds max & V-ray.

3D SHOTS

This project is basically a freelance decour for a podcast the purpose is to combine between the old life style with the modern one as i used the arabian majles and the textures of old life as well as the new generation technologies.

EDUCAITONAL INTERNSHIP

This project comprises a compound featuring six villas, each with distinct types. Type A villas have a total area of 450 m2, while Type B villas cover 536.60 m2. Situated in Riyadh, Saudi Arabia, my role involved creating wall sections and two elevations for the villas.

FIRST FLOOR GROUND FLOOR ROOF FLOOR 3 W.C Bed Room With tiles FIRST FLOOR ROOF FLOOR ELEVATION LEGEND RIYADH STONE YELLOW COLOR PLASTER & PAINT BEIGE COLOR DOUBLE GLAZED WINDOWS GRAYISH BLUE METAL PERGOLA (COPPER PATINA COLOR) DECORATIVE METAL SHEET (COPPER PATINA COLOR) 1 2 3 4 5 1 1 1 1 1 2 5 3 3 A B C D E F G J L M H I K 5

EDUCAITONAL INTERNSHIP

FIRST FLOOR GROUND FLOOR ROOF FLOOR 1 1 1 1 ELEVATION LEGEND RIYADH STONE ( YELLOW COLOR PLASTER & PAINT ( BEIGE COLOR DOUBLE GLAZED WINDOWS ( GRAYISH BLUE ) METAL PERGOLA COPPER PATINA COLOR ) DECORATIVE METAL SHEET ( COPPER PATINA COLOR 1 2 3 4 5 3 1 2 3 4 5 6 7 8 9

YAZEED SCHUMANNALKHTIB

YAZEED.M1112@GMAIL.COM

+962772671843

Turn static files into dynamic content formats.

Create a flipbook
Issuu converts static files into: digital portfolios, online yearbooks, online catalogs, digital photo albums and more. Sign up and create your flipbook.
PORTFOLIO by xiiyaz - Issuu