STUDY OF JANUARY 10TH 2019


![]()
STUDY OF JANUARY 10TH 2019


CLIENT : PT. INTILAND - SURABAYA
COUNTRY : INDONESIA
DESIGNED BY
ART DIRECTOR
SITE INFORMATION
INTRODUCTION
FUEGO & ARTHUR CONCEPT DESIGN
FUEGO - LOBBY
FUEGO - ALCOVE DINING
FUEGO - COCKTAIL LOUNGE & BRASERO KITCHEN
FUEGO - INDOOR BAR
FUEGO - SMOKING AREA
FUEGO - INDOOR RESTROOM
SPEAKEASY
SPEAKEASY - OUTDOOR RESTROOM
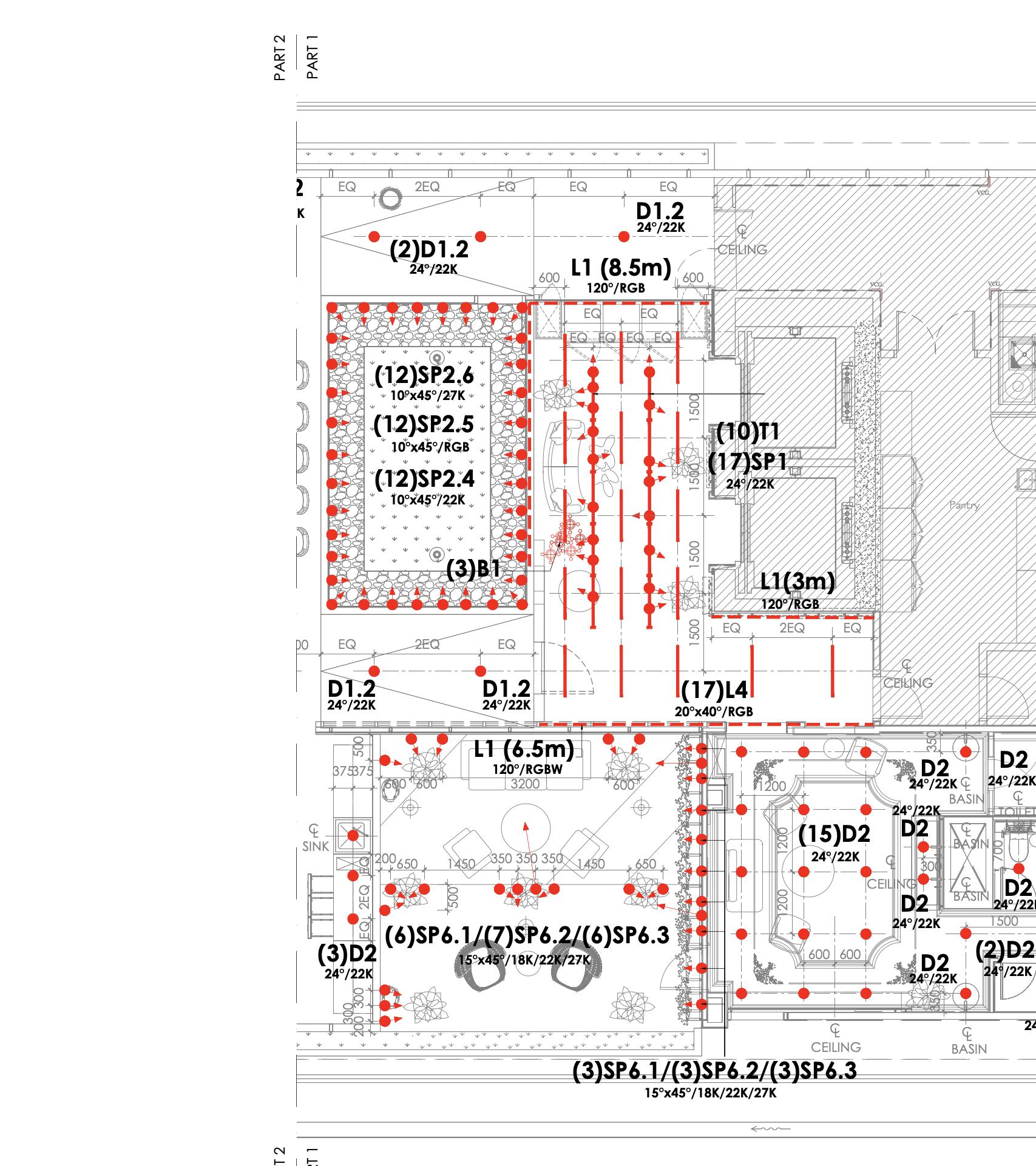
LIGHTING PLAN
PLATE CONCEPT
STUDY OF SOUND
09 11 14 40 56 82 114 124
140 162 190
200 216 234 MAP




S emarang : an Old Harbor Town with a multicultural history. In the 15th century, the envoy of the Chinese Emperor, Zheng He, better known as Admiral Cheng Ho, set foot in Java. From the 17th century onwards, Semarang became a trading center for spices, as well as a busy port for trade and passengers’ activity, when most travels were done by sea. The city of Semarang, the capital city of Central Java, is located right in the middle of the fertile and densely populated northern coast of the island of Java.
Thanks to its, strategic position, Semarang has become a melting pot of Chinese, Indian, Arabic, and European cultures. When touring Chinatown and the Dutch trading district, cultural influences are visible everywhere. On the older side of the city near the harbor called the Old Town, or Oudstadt, the rows of historic old buildings that were once the European commercial district are also interesting to explore.


Sultan Agung No. 86, Semarang, Central Java, INDONESIA
General
Semarang is the capital and largest city of Central Java province in Indonesia. It was a major port during the Dutch colonial era, and is still an important regional center and port today. The city has been named as the cleanest tourist destination in Southeast Asia by the ASEAN Clean Tourist City Standard (ACTCS) for 2020–2022.
The 3 popular landmarks nearby : 1. Simpang Lima, 3.1 km 2. Lawang Sewu , 4.1 km 3. Kota Lama , 7.1 km
Access
10.5 km from Ahmad Yani International Airport 7.3 km from Train Station

Living in Bali, picturing that Indonesia has other ways to manage landscapes, architecture, and construction is somewhat of a challenge. You tend to expect all cities, whatever their size, to be as chaotic as Denpasar or Jakarta. Semarang then comes as a very welcome surprise, with urbanism, city planning, landscaping. You get the distinctive feeling of well-organized modern “Indonesia 2.0”, in terms of development and lifestyle.
Semarang is to us typical of this Javanese nouvelle-vague. With a unique way to inhabit a city, where luxury, arts, culture, and lifestyle hold a special place, especially in Candi Baru.
Padma’s location on the top of Jalan Sultan Agung offers a throve of true outdoors living occasions not limited to what the other high-end hotels are offering: classic “check the box” outdoors features. Padma, thanks to the indoors-outdoors opportunities can realistically become a new landmark destination. Outdoors and lifestyle experiences in Padma will not be mere required accessories to a hotel stay.
Local and international visitors, whether they travel for business or pleasure, rarely spend all their time in their bedrooms or conference rooms. They are always on the lookout for some lifestyle experiences especially in attractive areas like South-East Asia.
Padma brand, strong of its Kuta and Ubud resort experiences and its hillside Bandung site, has the opportunity here to connect its Semarang Hotel to the other locations making Padma-Semarang its flagship establishment with enhanced outdoors features coming as additions to the planned and existing building and landscaped parts.
This new outdoor development will become an essential component providing maximum appeal to the 3 main functions of the Hotel: Padma for Business / Padma Resort / Padma Community. The design mix is an original blend of Asian and Moorish influences, visual and aesthetics.
Because a great hotel is always more than a place to sleep at for a few nights. Padma Semarang will offer 3 unique South-East Asian experiences designed and curated to put Padma Hotel and Semarang in the center of the map.
4 Date :
4 Date :
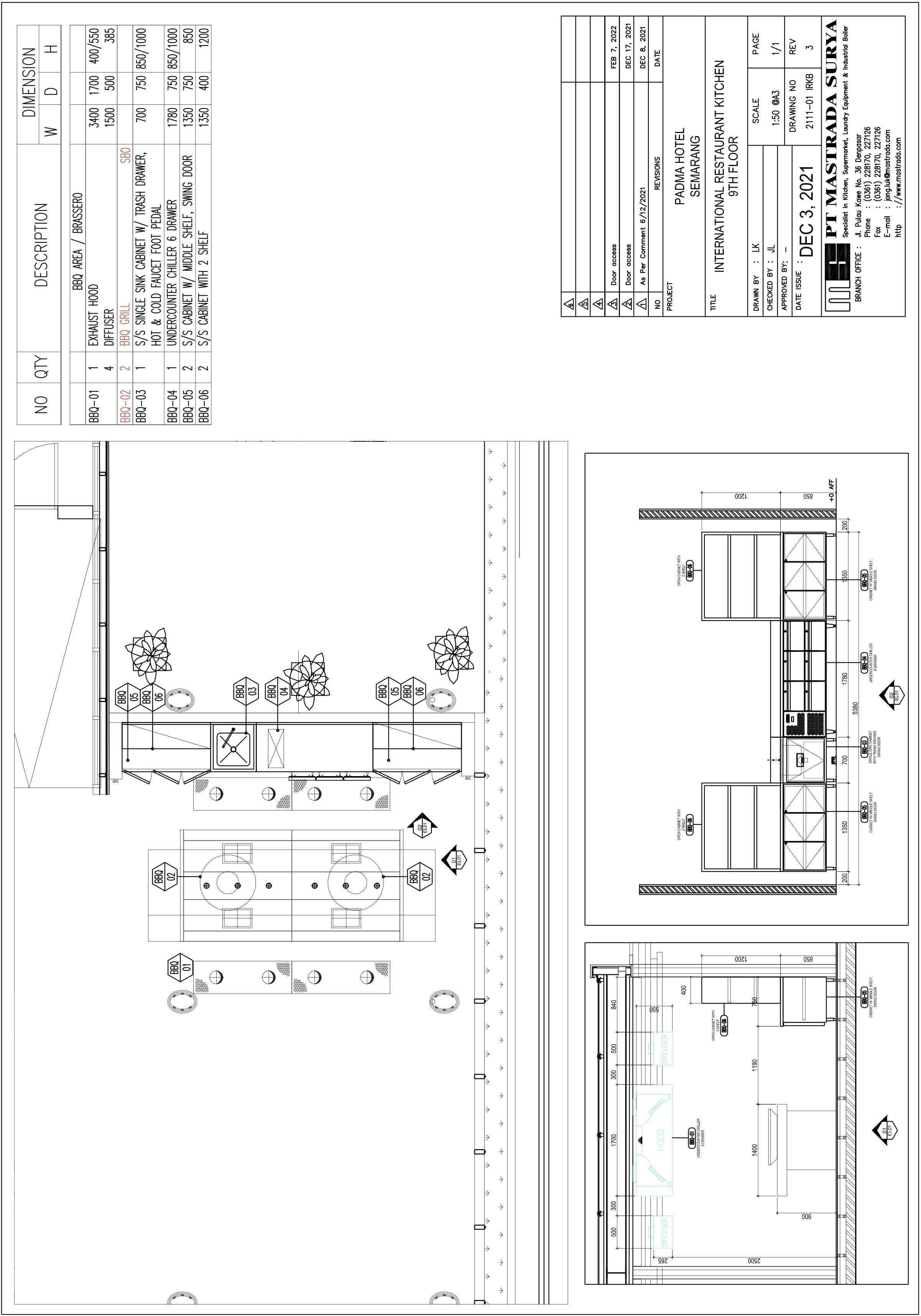
NUMBER OF SEATERS
FUEGO ROOFTOP RESTAURANT : 83 SEATER
RESTAURANT : 43 SEATER
BAR LOUNGE : 30 SEATER
BAR : 10 SEATER
ARTHUR SPEAKEASY : 34 SEATER
LOUNGE : 20 SEATER
HIGH TABLE : 10 SEATER BAR : 4 SEATER
ENTRANCE
BENCH
RESERVATION COUNTER
PEDESTAL + POT
HANGING LAMP
MEAT CHILLER
LIGHTING BOX & DOOR
DINING AREA
ALCOVE TABLE 1
ALCOVE TABLE 2
ALCOVE TABLE 3
COMMUNAL TABLE
ALCOVE SOFA 1
ALCOVE SOFA 2
DINING CHAIR
CASHIER TABLE
COCKTAIL LOUNGE
COCKTAIL LOUNGE COFFEE TABLE
COCKTAIL LOUNGE HIGH TABLE
COCKTAIL LOUNGE ARMCHAIR 1
COCKTAIL LOUNGE ARMCHAIR 2
COCKTAIL LOUNGE SOFA
WINE CELLAR
CIGAR STORAGE
STORAGE CABINET
CASHIER TABLE
DJ BOOTH
INDOOR BAR
BAR STORAGE & CASQUETTE
BAR TABLE
BAR STOOL
BRASSEROOUTDOOR
KITCHEN
BRASERO CABINET
BRASERO
SPEAKEASY
ROOFTOP RESTAURANT
ENTRANCE WALL : WATER RIPPLE PANELS
FUEGO RESTROOM : WALLPAPER SPECIAL PAINTING
FUEGO TOILET : VERDE HULK MARBLE + WALLPAPER SPECIAL PAINTING
ARTHUR CORRIDOR : PALETE BOARD MIDNIGHT BLUE FINISH
ARTHUR RESTROOM : MIDNIGHT BLUE PAINTING FINISH
: VERDE HULK MARBLE






:
RESTAURANT PADMA SEMARANG
FUEGO FLOOR : CONCERE WITH BLUE STONE + BRONZE INLAY (5 MM)
ARTHUR FLOOR : CONCERE WITH BLUE STONE + BRONZE INLAY (5 MM)
ENTRANCE FLOOR : VERDE HULK GREEN MARBLE (POLISH FINISH) + BRONZE INLAY (5 MM)
SMOKING AREA FLOOR : VERDE HULK GREEN MARBLE (LEATHER FINISH) + BRONZE INLAY (5 MM)
ROOFTOP RESTAURANT PADMA SEMARANG
INDOOR RESTROOM FLOOR : VERDE HULK GREEN MARBLE (LEATHER FINISH)
ARTHUR RESTROOM FLOOR : SAINT LAURANT MARBLE (LEATHER FINISH)






ROOFTOP RESTAURANT PADMA SEMARANG
EXPOSE CEILING - MIDNIGHT BLUE PAINTING FINISHING
CLOSED CEILING (WATER RIPPLE)
GLASS ROOF




4




















































COFFEE TABLE
RESERVATION COUNTER
PEDESTAL + POT
HANGING LAMP
MEAT CHILLER
LIGHTING BOX & DOOR


Location
Quantity
Dimension
Material
Supplier Reference
Entrance 1 unit
W (200cm)
L (80cm)
Hh (40cm)
River Stone
Dona Putra Stone


Location Quantity
Dimansion
Material
Supplier Reference : : : : : Entrance 1 ø (60cm) h (110cm) River Stone
Dona Putra Stone

Location Quantity Dimension Material
3
Supplier Reference : : : : : Entrance
ø (60cm)
h (80-100cm) Crystal
XLS

Location Quantity
Dimansion
Material
l (50cm)
h (80cm)
Supplier Reference : : : : : Entrance 6 w (50cm)
Lava Stone
XLS

Location
Quantity
Dimension
3 w (70cm)
l (74cm)
Supplier : : : : Entrance
h (165cm)
LOTUS


ENTRANCE
ALCOVE TABLE 1
ALCOVE TABLE 2
ALCOVE TABLE 3
COMMUNAL TABLE
ALCOVE SOFA 1
ALCOVE SOFA 2
DINING CHAIR
CASHIER TABLE & KONGLIONG
SEMARANG CITY VIEW
CITY VIEW


Location
Quantity
Dimension
Material
Supplier Reference
Dining Area
3
ø (110cm)
H (75cm)
Top table - River Stone
Leg - Solid wood, Midnight Blue Colour Finish
Table Top : Dona Putra Stone
Legs : PT. Gita Laras


Location
Quantity
Dimension
Material
Supplier
Dining Area
9
ø (70cm)
H (75cm)
Top table - River Stone with Bleu Klein painting in the middle and edge
Leg - Midnight Blue Colour Finish
Table Top : Dona Putra Stone
Legs : PT. Gita Laras


Location
Quantity
Dimension
Material
Supplier Reference
9
ø (70cm)
H (75cm)
: Dining Area
Top table - River Stone with Bleu Klein painting in the middle and edge
Leg - Midnight Blue Colour Finish
Table Top : Dona Putra Stone
Legs : PT. Gita Laras



Location
Quantity
Dimension
Material
Supplier Reference : : : : :
Dining Area
1 unit
W (400cm)
L (120cm)
H (75cm)
Top table - River Stone with Bleu Klein painting in the middle and edge
Leg - Polish Brass & Antique Bronze
Table Top : Dona Putra Stone
Legs : MUSE





Location
Quantity
Dimension
Material
Supplier Reference
Dining Area
3
ø (250cm)
H (80cm)
Aclove - Outside : Midnight Blue Painting Finishing
Inside : DeCastelli - Striped DeLabre Copper, Cod : G6
Sofa - Upholstery : BACKBEAT JT013803004
3801/ 04 Lapis
Base Furniture : PT. Gita Laras
Fabric : Jim Thompson





Location
Quantity
Dimension
Material
Supplier Reference : : : : :
Dining Area
7
ø (170cm)
H (80cm)
Aclove - Outside : Midnight Blue Painting Finishing
Inside : DeCastelli - Striped DeLabre Copper, Cod : G6
Sofa - Upholstery : BACKBEAT JT013803004
3801/ 04 Lapis
Base Furniture : PT. Gita Selaras
Fabric : Jim Thompson

SONGMICS DINING CHAIR REFERENCE




Location
Quantity
Dimension
Material
Supplier Reference
Dining Area
29
W (57cm)
L (54cm)
H (79.5cm)
Picture reference - SONGMICS Dining Chair
Upholstery Front - BACKBEAT JT013803004
3801/ 04 Lapis
Upholstery Back - CORDED VELVET JT013698009
3698/ 09 Navy (Vertical Pattern Position)
Base Furniture : PT. Gita Selaras
Fabric : Jim Thompson

Location
Quantity
Dimension
Material
Supplier Reference
Dining Area
1 W (100cm)
L (50cm)
H (100cm)
Legs : Concrete
Facade : Cooper Metal
Drawer : Solid wood, midnight blue finish
PT. Gita Laras


COCKTAIL LOUNGE
COCKTAIL LOUNGE COFFEE TABLE
COCKTAIL LOUNGE HIGH
COCKTAIL LOUNGE ARMCHAIR 1
COCKTAIL LOUNGE ARMCHAIR 2
COCKTAIL LOUNGE SOFA
WINE CELLAR
CIGAR STORAGE
STORAGE CABINET
L9 L10 CASHIER TABLE DJ BOOTH BAR STOOL
PEDESTAL + POT BRASERO KITCHEN BRASERO TABLE BRASERO CABINET BRASERO
SEMARANG CITY VIEW
UNGARAN MOUNTAIN VIEW




Location
Quantity
Dimension
Material
Supplier Reference
Indoor Bar
7
W (50cm)
L (47cm)
H (65cm)
Top table -Bronze Glass
Legs - Polish Brass & Antique Bronze
Top table : PT. Gita Cipta Selaras
Legs : MUSE


Location
Quantity
Dimension
Material
Supplier Reference :
Indoor Bar 4 ø (70cm) H (110cm)
Top table -River Stone
Legs - Polish Brass & Antique Bronze
Top table : Dona Putra Stone
Legs : PT. Gita Laras





Location
Quantity
Dimension
Material
Supplier Reference
Cocktail lounge
6
W (75cm)
L (70cm)
H (70cm)
Picture reference - Bozzolo Armchair
Upholstery - BLUE NOTE (Deep Sea/JT013802005)
Legs - Cooper metal
Base Furniture : PT. Gita Laras
Fabric : Jim Thompson






Location
Quantity
Dimension
Material
Supplier Reference : : : : :
Indoor Bar
8 W (68cm)
L (87cm)
H (75cm)
Picture reference - Poltrona Armchair
Upholstery front - AMBIANCE JT013701006
3701/ 06 Midnight
Upholstery back - BLUE NOTE JT013802005
3802/ 05 Deep Sea
Base Furniture : PT. Gita Laras
Fabric : Jim Thompson


AMBIANCE SYNCOPATION




Location
Quantity
Dimension
Material
4
W (156cm)
L (87cm)
Supplier Reference : : : : : Indoor Bar
H (75cm)
Picture reference - Divano 2 Posti
Upholstery front - AMBIANCE JT013701006
3701/ 06 Midnight
Upholstery back - SYNCOPATION JT013813002
3813/ 02 Cobalt
Base Furniture : PT. Gita Laras
Fabric : Jim Thompson




Location
Quantity
Dimension
Material
Supplier Reference
Cocktail Lounge
1 unit
W (206cm)
L (70cm)
H (300cm)
Frame - Solid Wood
Inside - Alummunium Frame
Door - Solid Wood + Clear Glass
TBC (To Be Confirm)


Location Quantity Dimension
Material
Supplier Reference
Cocktail Lounge
1 unit
W (206cm)
L (70cm)
H (300cm)
Frame - Solid Wood
Door - Solid Wood + Clear Glass
GARBER



PICTURE REFERENCE
Location
Quantity
Dimension
Material
Supplier Reference
Cocktail Lounge
1 unit
W (150cm)
L (70cm)
H (90cm)
Top Table - River Stone
Legs - River Stone
PT. Gita Laras

Location
Quantity
Dimension
Material
Supplier Reference
Dining Area
1
W (100cm)
L (50cm)
H (100cm)
Legs : Concrete
Facade : Cooper Metal
Drawer : Solid wood, midnight blue finish
PT. Gita Laras

Location
Quantity
Dimension
Material
Supplier Reference : : : : : Brasero Kitchen
1 unit
W (400cm)
L (140cm)
H (100cm) River Stone
Top Table : Dona Putra Stone
Legs : Dona Putra Stone


Location
Quantity
Dimension
Material
Supplier Reference : : : : : Brasero Kitchen
1 set
W (400cm)
L (140cm)
H (100cm)
Stainless Steel Herline
MASTRADA


Location
Quantity
Dimension
Material
Supplier Reference : : : : : Brasero Kitchen
2 unit
ø (100cm)
Corten Steel
Multi Flashindo Karisma


CASQUETTE


Location
Quantity
Dimension
Material
Supplier Reference
: : : : :
Indoor Bar
1 unit
W (540cm)
L (383cm)
H (300cm)
Bar Storage - Solid Wood, Clear Glass + Lighting inside
Casquete - Outside : Metal CNC + Lighting Inside Inside : DeCastelli - Striped DeLabre Copper, Cod : G6 (for reference)
Bar Storage : TBC (To Be Confirm)
Bar Casquete : PT. Gita Laras



Location
Quantity
Dimension
Material
Supplier Reference
Indoor Bar
1 unit
W (420cm)
L (85cm)
H (110cm)
Top table - Verde Hulk Green
Facade - Copper inlay
Door Cabinet : Solid Wood
Top table : Dona Putra Stone
Cabinet : PT. Gita Laras





Location
Quantity
Dimension
Material
Supplier Reference
Indoor Bar
5 unit
W (46cm)
L (43cm)
H (96cm)
Picture reference - Clover Dark grey by Danetti
Upholstery - BACKBEAT (Lapis/ JT013803004)
Base Furniture : PT. Gita Laras
Fabric : Jim Thompson
SOFA 3 SEATER - GIRO
ARMCHAIR - GIRO
CENTRE TABLE - GIRO
CLUB ARMCHAIR
CALA SIDE TABLE
PEDESTAL + POT R3 R2 R1



Location
Furniture
Quantity
Dimension
Material
Smoking Area
Giro 3 Seaters Sofa - KETTAL
1 pcs
W (250cm)
L (95cm)
H (52cm)
Mesh - Soga Ivy 465
Seats & Backrest - Cosmos 28L-28T
55x55 Cushion - Nautica 26L-26T






Location
Furniture
Quantity
Dimension
Material
Main Pool & Kids Pool Area
Giro Armchair - KETTAL
2 pcs
W (82cm)
L (74cm)
H (70cm)
Mesh - Soga Ivy 465
Seats & Backrest - Cosmos 28L-28T
55x55 Cushion - Nautica 26L-26T





Location
Furniture
Quantity
Dimension
Material
Main Pool & Kids Pool Area
Giro Center Table - KETTAL
1 pcs
Ø (94,5 cm)
H 20 cm)
Top table - Du Gent Grey
Legs - Teak







Location
Furniture
Quantity
Dimension
Material
Main Pool Area & Kids Pool Area
Cala Armchair Club- KETTAL
2 pcs
w ( 82.5cm)
l ( 105.2cm)
h ( 152.3cm)
Structure - Cobalt 089
Ropes - Blue River 422
Seat Cushion - Caribbean Laminate 298
Back Cushion - Artic Laminate 295


Location
Furniture
Quantity
Dimension
Material

Top Indigo 094

: : : :
Main Pool & Kids Pool Area
Cala Side Table 48
1 pcs
Ø (48cm)
h (49cm)
Table Top (alumunium with terrain paint) - Indigo 094
Legs (alumunium with terrain paint) - Cobalt 089




M1
M2
M3
M4
M5
M6
SOFA
ARMCHAIR
COFFEE TABLE
HANGING DESK + MIRROR
SERVICE CABINET
CHAIR
SIDE TABLE
WASTAFEL + MIRROR 1
WASTAFEL + MIRROR 2 M9

Location
Quantity
Dimension
Material
Supplier Reference
Indor Restroom
1 w (210cm)
l (95cm)
h (80cm)
TBC (To Be Confirm)
Base Furniture : PT. Gita Selaras
Fabric : TBC (To Be Confirm)

Location
Quantity
Dimension
Material
Supplier Reference
Indor Restroom
w (85cm) l (82cm) h (73,25cm)
Picture reference - Catherine Lounge Chair TBC (To Be Confirm)
Base Furniture : PT. Gita Selaras Fabric : TBC (To Be Confirm)

Location
Quantity
Dimension
Material
Supplier Reference : : : : :
Indoor Restroom
1 set
ø (100cm)
h (40cm)
ø (50cm)
h (35cm)
River Stone
Dona Putra Stone





Location Quantity Dimension Material
Supplier Reference
Indoor Restroom
1 set
w (359,5cm)
l (28,5cm)
h (85cm)
Top Table : River Stone
Mirror : Clear Mirror
PT. Gita Selaras
- B





Location Quantity Dimension Material
Supplier Reference : : : : :
Indoor Restroom
1 w (53cm)
l (60cm)
h (75cm)
Picture reference - Ames Chair
Base Furniture : PT. Gita Selaras
Fabric : TBC (To Be Confirm)

Location
Quantity
Dimension Material
Supplier Reference
Indoor Restroom
1 set
w (359,5cm)
l (28,5cm)
h (85cm)
River Stone
Dona Putra Stone




Location Quantity
Dimension
Material
Supplier Reference
: : : : :
Indoor Restroom
1 set
w (185cm)
l (60cm)
h (85cm)
Top Table : River Stone
Mirror : Clear Mirror
PT. Gita Laras



Location
Quantity
Dimension
Material
Supplier Reference
: : : : :
Indoor Restroom
1 set
ø (45cm)
h (85cm)
Wastafel : Verde Hulk Marble
Mirror : Clear Mirror
Wastafel : Bresia
Mirror : PT. Gita Laras
- B






S1 LEGEND
S3 S2
INDOOR BAR
RESERVATION COUNTER
DECORATION
BAR TABLE
BAR CABINET
BAR STOOL
BIBLYOTHEQUE CABINET
COFFEE TABLE
HIGH TABLE SOFA
ARMCHAIR
DJ BOOTH TABLE
PEDESTAL & BUST
SERVICE CABINET

Location Quantity
Dimansion
Material
Supplier Reference : : : : :
Entrance 1
ø (60cm)
h (110cm)
River Stone
Dona Putra Stone


Location
Quantity
Dimension
Material
Supplier Reference


Location
Quantity
Dimension
Material
Supplier Reference :
Speakeasy
1 unit
W (828,5cm)
L (100cm)
H (100cm)
Nero Marquina Marble
PT. Gita Selaras

Location
Quantity
Dimension
Material
Supplier Reference :
Speakeasy
1 set
W (796,5cm)
L (350cm)
H (300cm)
Frame - Solid Wood
Inside - Alummunium Frame
Door - Solid Wood + Clear Glass
PT. Gita Selaras



Location Quantity Dimension
Material
Supplier Reference
: : : : :
Speakeasy 1 set
W (755cm)
L (350cm)
H (300cm)
OSB Board - Midnight Blue Finish
PT. Gita Laras



Location
Quantity
Dimension
Material
Supplier Reference
: : : : :
Speakeasy 1 set
W (1272cm)
L (350cm)
H (300cm)
OSB Board - Midnight Blue Finish
PT. Gita Laras





Location
Quantity
Dimension
Material
Supplier Reference
W (46cm)
L (43cm)
H (96cm)
Leather
Base Furniture : PT. Gita Laras
Fabric : Corde - Velvet & Synthetic Leather



COFFEE TABLE REFERENCE

Location
Quantity
Dimension
Material
Supplier Reference
ø (80cm)
H (65cm)
ø (60cm)
H (55cm)
: : : : : Speakeasy 4 set
Top Table : Nero Marquina Marble
Legs : Wood Trunk, Blue Klein Finish
Top Table : PT. Gita Laras
Legs : PT. Gita Selaras



Location
Quantity
Dimension
Material
Supplier Reference : : : : : Indoor Bar 4 ø (70cm) H (110cm)
Top table -River Stone
Legs - Polish Brass & Antique Bronze
Top table : Dona Putra Stone
Legs : PT. Gita Laras


Location
Quantity Dimension Material
Supplier Reference
Speakeasy
8 W (50cm)
L (50cm)
H (40cm)
Fabric
Base Furniture : PT. Gita Laras Fabric : TBC (To Be Confirm)

Location
Quantity
Dimension
Material
Supplier Reference
Speakeasy 4
W (220cm)
L (100cm)
H (90cm)
Fabric
Base Furniture : PT. Gita Laras
Fabric : TBC (To Be Confirm)



Location Quantity
Dimension
Material
1
W (276cm)
L (140cm)
H (300cm)
Supplier Reference : : : : : Speakeasy
Alcove : Venus tiles
DJ table : Solid wood, midnight blue finish
PT. Gita Laras

Location
Quantity
Dimension Material
Supplier
Speakeasy 1
W (127cm)
L (50cm)
H (300cm)
Solid Wood - Midnight Blue Finish
PT. Gita Selaras




Location
Quantity
Dimension
Material
Supplier
(50cm)
L (50cm)
H (130cm)
Pedestal : Lava Stone
Bust Sclupture : Blue Klein Painting Finish
PT. Gita Laras
ARTHUR - OUTDOOR RESTROOM
HANGING DESK + MIRROR
WASTAFEL + MIRROR

Location
Quantity
Dimension
Material
Supplier Reference : :
Indoor Restroom
1 set
ø (45cm)
h (85cm)
Top Table : Nero Marquina Marble
Mirror : Clear Mirror
PT. Gita Laras







Location Quantity
Dimension
Material
Supplier Reference
: : : : :
Indoor Restroom
1 set w (160cm)
l (84cm)
h (85cm)
Wastafel : River stone
Mirror : Clear Mirror
Wastafel : Dona Putra Stone
Mirror : PT. Gita Laras

OUTDOOR RESTROOM CEILING PLAN OUTDOOR SECTION
OUTDOOR RESTROOM PLAN
OUTDOOR RESTROOM SECTION - A


OUTDOOR RESTROOM
SECTION - C
OUTDOOR RESTROOM SECTION - B
OUTDOOR RESTROOM SECTION - D































Main Plate
Colour: Shiny Ash Celadon with Coconut, Blue dec


Approx. W 16 x L 23 cm




Approx. Diam. 18 x H 7 CM
Colour: Shiny Night Blue










Tray Mod. 2
Approx. W 14 x L 45 CM
Colour: Matte Sandy Black Grey
*tray composition organic - geometric

Organic Tray Mod. 1 - Mod. 3
Approx size :
- W 18 x L 30 (Mod. 1)
- W 18 x L 20 (Mod. 2)
- W 18 x L 18 (Mod. 3)

*Organic Shape
Serving Plate Mod. 1
Approx. Diam. 28 CM
Serving Plate Mod. 2
Approx. Diam. 35 CM

Serving Tray
Approx. W 20 x L 45 CM
Serving Plate Mod. 3
Approx. Diam. 34 CM

*Section View

*Mix light blue + platinum aquoso
Approx. Diam. 9 x H 7 CM
Colour: Shiny Windows Grey, Platinum Aquoso dec.
Approx. Diam. 11 x H 12 CM
Colour: Shiny Windows Grey, Platinum Aquoso dec.
Approx. Diam. 5 x H 6 CM
Colour: Shiny Pigeon Blue, Platinum Aquoso dec.












































PRESENTED BY

ART DIRECTOR STUDIO
XAVIER LOUP STUDIO
OUTDOOR LUXURY PTE . LTD
ADDRESS: 138 CECIL STREET CECIL COURT, 18TH FLOOR
SINGAPORE 069538, UEN NO. 201736576H

IN COLLABORATION WITH X










