
3 minute read
Unité d'habitation
The Unité d'habitation is a modernist residential housing design principle developed by Le Corbusier, with the collaboration of painter-architect Nadir Afonso. The concept formed the basis of several housing developments designed by him throughout Europe with this name. The most famous of these developments is located in the southern part of Marseille.
Le Corbusier believed the tower block was the solution for rehousing the masses that had been displaced during the second world war, and that high rise building could be used to create spacious city homes with the same amenities as a typical street.
Advertisement

Rather than employing the smooth white surfaces that typified many of his buildings, Le Corbusier chose to create the building in bétonbrut concrete, which was textured by the wooden planks that had provided its formwork. This prevented the need for a steel frame, making it the most cost-efficient solution.

Section:
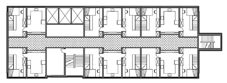
Plan:
1th floor plan
2nd floor plan
3rd floor plan
Inside, wide corridors ("streets in the sky") run along the central long axis of every third floor of the building. Each apartment lies on two levels, such that the room on one side of a corridor belongs to the apartment that is mostly below the corridor floor, while that on the opposite side belongs to the apartment above. On those floors without corridors, the apartments stretch from one side of the building to the other, and each has a balcony on the western side.
The 15-minute city model: neighbourhoods must be designed so that everyone has access to all essential human needs within a 15-mintue walk or bike ride. Under this theory we can envisage two plan strategies, the first is that the functional area surrounds the residential area, with the residential area at the centre so that it is within 15 minutes of all the functional areas, and the second is that the residential area surrounds the functional area, with the functional area at the centre to achieve the same effect, obviously the second strategy is more reasonable because there is more volume to accommodate more residents.

1
Residential Unit 2 Residential Unit 3
In terms of the overall spatial strategy I mainly use a centralized strategy, firstly I use a semi-private space as the centre to connect two or four private spaces to form a living unit, and then a larger and more open public space as the centre to connect all the semi-private spaces, these semi-private spaces can be used as transitional spaces to reduce the impact of the public space on the private space.
In the masterplan I have placed the functional public space at the centre of the building, with the living units distributed around it, so that all residents have approximately equal access to the central area, ensuring that the functions are easily accessible to all and creating more social opportunities for the residents.
The project breaks away from the traditional flat format by having three floors as a unit, with the middle floor of each unit being the main traffic core, and adding social spaces on this floor to facilitate interaction between students and to build friendships quickly, while the private nature of this floor makes for a more relaxed social environment and serves as a transition from private to public space. On the other hand, the corridor space in the upper and lower levels of the original unit is used as an atrium to create a visual connection between each level and the different units, allowing students to be aware of what is happening or what is going on in the public space.



Active Lines Stairs
Two main staircases link all the the public spaces on the ground bathroom is located on the middle and each room has its own staircase bedrooms, with the kitchen located bedrooms for both rooms to share.

Plywood
Mosaic
Corrugated Stainless Steel flats in the building and ground floor. Each room's middle level of the unit, staircase up or down to the located between the two share.
Floor Tiles

The interior is heavily planted with green mosaics and reflective materials to create a simple and relaxed garden-like social environment.
The social space on the middle level is located between the two rooms and has a semi-private attribute with the screening of plants, creating a more secure social atmosphere and reducing social pressure.

The kitchen is located between the two bedrooms and is common to both rooms. The bedrooms are not directly connected to the atrium, ensuring their privacy while reducing the impact of some public activities on the bedrooms. The kitchen is connected to the atrium space, which increases air circulation and daylighting in the atrium space, while creating a visual connection with the atrium and the different levels, creating a semi-open, street level and casual atmosphere.

