Freshman year-2

Page 1

WU PEI HSUAN ‘s Work collection

2020/6/27

semester 02
PORTFOLIO

Question of scale

Study the relationship between the human body scale and space, and grasp the different scale characteristics of objects, human body and building as a whole.

分析宿舍內的家具和人的比例關係,觀 察人和人的對話關係,找出宿舍內的比 例和隱藏規則,我發現宿舍的天花板比 平常建築高,但因為家具擺放位置造成 天花板離床太近,不小心容易撞到頭。 桌子為背對背放置,人和人之間交談不 方便。床都為一個平面,沒有隱私。

調整家具的比例使其符合人 體尺度,並以不同的排列方 式來研究人和人的關係

將家具依比例切割為不同大 小的方塊,並依照對角、鏡 像、轉向等規則來排列。

高低的區隔與人和人的對話 DIGRAM
以此為基礎發展模型
基地圖面
草模
草模

正模照片

在正模設計時我 運 用不同程度的抬 升 與下陷來創造不 同 的空間,抬升與 下 陷的幅度加入人 體 尺度考慮 。

Trai n i ng p ur p os e

1 . Ca n a n alyze t h e c ase spa c e or ext r a c t its u n i q ue

spa c e i n a n ab s t r a c t or si m plifie d w ay Tr aits a nd

ele m e n ts .

2 .A bility t o v isually p r ese n t abst r a c t s p atial

ch a r a c te r isti c s a nd ele m e n ts a nd ap p ly t h e m t o

t h e d esi gn o f spa c e .

3. T hro u gh a se r ies o f proc esses o f r e cord, o bse r v a -

ti on, r e cogn iti on, a nd d is co ve r y t o u nd e r sta nd

spatial s c ale a nd se n se o f s p a c e , a nd lea rn t h e

basi c conc e p ts o f spatial com p o siti on .

4 . Really u nd e r sta nd t h e s c ale o f t h e spa c e a nd t h e

con stitue n t ele m e n ts o f t h e st r u c tu r e , a nd a c tua l -

ly expe r ie nc e t h e r elati on s h ip bet w ee n t h e b od y

a nd it .

5 . Lea rn t h e po ssibility o f cr eati ng n e w spa c es

t hro u gh r e p la c e m e n t , a nd u nd e r sta nd how d i ffe r -

e n t spa c e ele m e n ts , t h e r elati on s h i p bet w ee n t h e

mo vi ng li n e a nd t h e syste m a r e form e d .

LERAING FROM MASTER

proce ss a n d oper a t i o n

T

hro u gh c ase mod el m a k i ng a nd dr a w i ng, lea rn t o app r e c iate w it h 2 D a nd 3D mod els , a n alyze a nd u nd e r -

sta nd t h e buil d i ng spa c e .

第一階 段

與基地關係

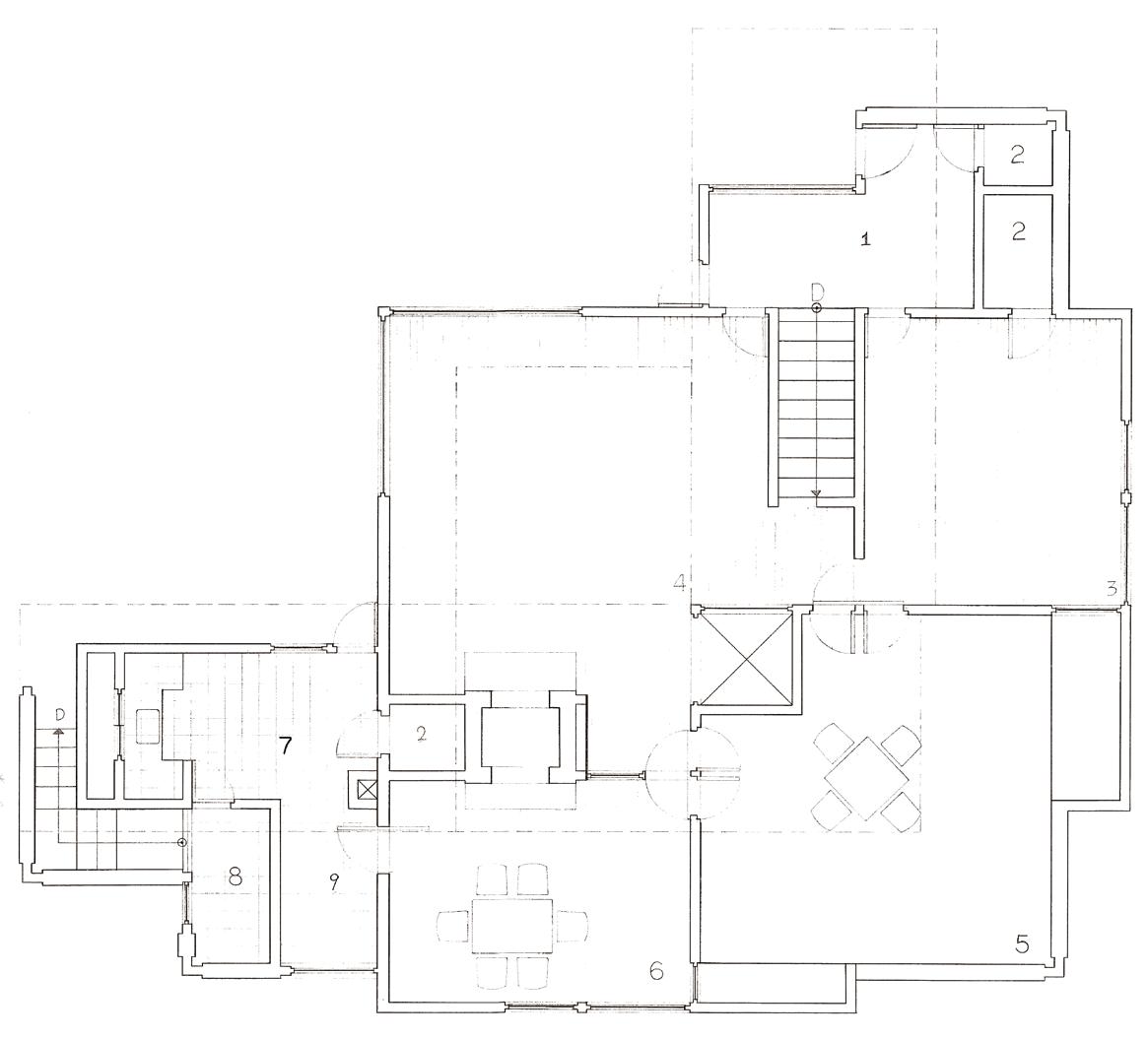
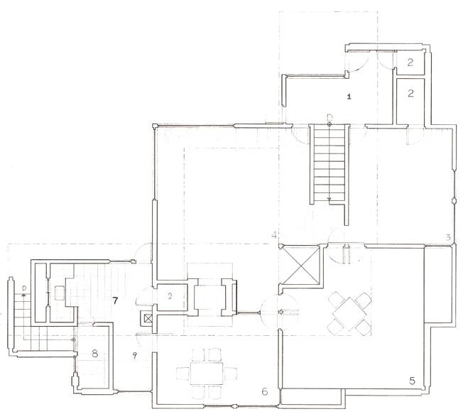
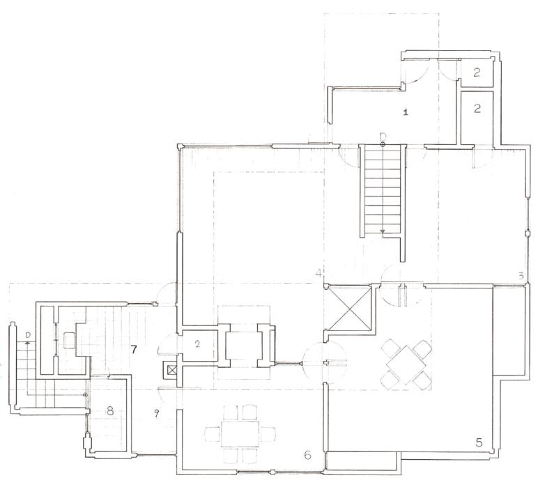
基地位於山坡地,本因有自然的高低差保障隱私,但此基

地向上填高造成高度相同沒有視線差距,所以建築師運用

了相較其餘案例包覆性高的外牆來補足隱私上的問題。

DIGRAM 網格
1 3 3.5 4 1 2.5 4 1 3 0.5 1b 3b 3b 4b 1b 1b 6b 4.5b 2.5b

由多個正方形交疊 而

成,重疊的地方形 成

需空間 。

向外的凸窗需需增加大量結構支撐,無法 做到完全開窗,而窗的高低差配合人體坐 下的高度,使人體感受到的光線並不受窗 戶面積影響。

大面積開窗使木結構需下縮改變承重點,造成 框架上的多樣性。

整體結構為木構造建築 ,結構連續,上層和下 層相連,水泥外牆為復 加物,不影響結構的支 撐效果

建築案例是 純 木框 架建 築, 在分 析結 構時 發現 建築 師運用 不 同大小 的 框互 相 支撐(垂直 、 水平 都有 ), 使最 大的 框的 平面 自由 ,可自 由 延伸與 縮 減,所 以 在做模型時 我 先分 出最 大的 框架 ,並 逐漸 增加 不同 大小的 框 架互相 支 撐, 使 垂直與水平 面 都能 自由 。

單元的聯集、差集

建築案例的平面是由L型互相交卡形 成一個中住,立面也是由許多不同的 L型環繞一個中柱,所以在處理模型

平立面時,我利用原案利的平立面互 換形成我的模型的平立面,使模型平 面為圍繞中柱環繞,而立面為不同大 小的L型穿插,在平面L型環繞上我配 合基地的山坡地型使其逐漸抬升,在 平面重疊時我按照等比例重疊,並將 空間的重疊處拉伸,造成空間的錯曾 ,在中柱空間的處理上為了增加它和 外圍空間的交流和與環境互動,我將 外圍空間連接的部分延伸至中柱,增 加與外圍空間的互動也增加方向性。

1a 1a 1a 1a 1a

發展模 型 2

結構研 究

發展模 型 3

立面轉 換

將平面的L形延伸至立面 並 加 入木框架 。

將平面的L切割,推移,並 使 立面的L發生錯位 。

發展模 型 4 概念融 合

正草 模

正模照片

Turn static files into dynamic content formats.

Create a flipbook
Issuu converts static files into: digital portfolios, online yearbooks, online catalogs, digital photo albums and more. Sign up and create your flipbook.
Freshman year-2 by 吳姵萱 - Issuu