WINNIE LIN
MASTER OF INTERIOR DESIGN, FIRST PROFESSIONAL UNIVERSITY OF TEXAS AT AUSTIN
![]()
MASTER OF INTERIOR DESIGN, FIRST PROFESSIONAL UNIVERSITY OF TEXAS AT AUSTIN
310.567.1136
linwj@utexas.edu www.winnielin.com
UNIVERSITY OF TEXAS AT AUSTIN · Austin, Texas
School of Architecture (UTSOA)
Master of Interior Design, First Professional, Class of 2025
Accredited by Council for Interior Design Accreditation
GPA: 3.96
UNIVERSITY OF CINCINNATI · Cincinnati, Ohio
College of Design, Architecture, Art, and Planning (DAAP)
Bachelor of Science in Graphic Design, Class of 2020
GPA: 3.93 Summa Cum Laude
Participated in the Professional Practice Program with alternating semesters of classroom study with full-time work in the field of graphic design.
SINGAPORE AMERICAN SCHOOL · Singapore, Singapore
Class of 2014
Modeling Tools AutoCAD, Revit, Rhino 3D, and Enscape
Adobe Creative Suite Illustrator, CADtools, Photoshop, InDesign,
After Effects, Premier Pro, Bridge, and Lightroom
Coding Languages · Basic HTML and CSS
Languages Bilingual in English and Mandarin
Fabrication Tools 3D Printing and Laser Cutting
· INVOLVEMENT
ASID Student Portfolio Competition 2024, Winner
UTSOA Design Excellence Spring 2024, Winner
UTSOA Design Excellence Fall 2023, Winner
UTSOA, Textile Design 2023, Winner
Jorge Pardo, Lighting Design Workshop, 2023
Texas Masonry Council, Design Build 2022, 2nd Place
UTSOA Design Excellence Fall 2022, Nominee
International Interior Design Association, Member
American Institute of Graphic Arts, Member
Alpha Lambda Delta Honor Society, Member
Kappa Kappa Gamma Fraternity, Beta Rho Chapter, Member
Salt Lake City, Utah · May 2024 – August 2023 · Full Time
Supported the Venues Interiors team on sports and entertainment projects, focusing on concept development and creating immersive experiences through storytelling. Produced renderings and designed presentation decks and graphics for client presentations.
Salt Lake City, Utah June 2023 – August 2023 Full Time
Collaborated with senior designers on commercial and higher-education projects, engaged in all phases from space planning to construction administration. Developed spec suites, environmental graphics, and Revit models. Assisted in finish schedules, material and furniture selections, submittal reviews, addenda, punch lists, and communicated with clients.
Salt Lake City, Utah May 2021 – June 2022 Full Time
Lead the design, creation, and development of a retail company, Destination Upfitters. Reinforced the Seiner brand to foster brand awareness with print and digital designs. Standardized internal and external brand components and executed them across multiple touch points for all 11 entities under the dealership. Collaborated monthly on campaign messaging and facilitated relationships with vendors.
Singapore, Singapore · August 2020 – May 2021 · Full Time
Designed brand identities, custom stationery, packaging, illustrations, print and digital assets, campaign messaging, and marketing collateral for various clients.
Cincinnati, Ohio · August 2019 – December 2019 · Full Time
Lead designer specialized in developing and implementing immersive branded environments for Verizon, Honeywell, P&G, and more. Collaborated closely with the Creative Director to produce the client’s vision from schematic design through design development, including fabrication. Communicated directly with clients and managed relationships with vendors.
Salt Lake City, Utah January 2019 – May 2019 Full Time
Designed and assisted alongside senior designers in all phases, from schematic design to design development, of brand activations and environmental graphics for sports venues home to teams like Utah Jazz, Cleveland Cavaliers, Las Vegas Aviators, and others. Provided elevations, renderings, and visuals for client presentations.
Cincinnati, Ohio August 2017 – August 2018 Full Time
Created brand identities, packaging, and promotional materials for Proctor & Gamble, consumer packaged goods brands, and nonprofit organizations within a multidisciplinary team.




THRESHOLDS
2024 Design Excellence Award Winner
Spring 2024
Location: Davos, Switzerland
Studio: Academic – Technical Studio
Square Footage: 6,145 FT2
In Collaboration With Karina Thomé
Spring 2024 Design Excellence Award Winner
The Davos Pavilion, a temporary structure designed for a tech company, seamlessly blends modern aesthetics with local architectural vernacular. Rapidly constructed in just 16 days, utilized for six, and dismantled in five, the pavilion serves as a distinctive venue for the World Economic Forum and also as a dynamic marketing tool.
Drawing inspiration from traditional Swiss chalet elements, the pavilion’s design features a screen wall system inspired by shingle patterns that creates dynamic, light-filled interiors. The screen wall not only partitions the space, but also transforms light into a kaleidoscopic interplay, enriching the interior ambiance while balancing transparency and privacy —a reflection of the company’s brand.
Designed to engage with Davos’s unique winter light, the pavilion captures the sun’s low-angle rays through its shingle-inspired screen wall, transforming sunlight into a vibrant play of colors and shadows. The translucent screens diffuse the light, filling the interior with a warm, inviting glow that contrasts with the crisp alpine surroundings. This careful use of natural light enriches the pavilion’s atmosphere, enhancing its role as both a functional space and a memorable experience within the Swiss landscape.



Located on Promenade 86 in Davos Platz, Switzerland, the Davos Pavilion holds a prime position at the entrance of the World Economic Forum, making it one of the first structures to greet attendees. As the forum’s initial point of contact, the pavilion makes a striking visual statement, setting the tone and drawing visitors inside. Constructed from a prefabricated Structural Insulated Panel (SIP) shell, the pavilion is designed for efficient assembly and disassembly.
Working entirely within the shell’s existing structure, the design intervention transforms the interior into an inviting and visually engaging space that aligns with the company’s emphasis on direct client interaction. As a leading data analytics company, it relies on creating a positive, trustworthy environment for private discussions, and the pavilion provides a setting that is both open and discreet, encouraging meaningful interactions.

The ground floor is divided into public and private areas. The public section, at 1,780 SQFT hosts interactive experiences, including panel discussions, aviation simulator, and virtual reality setups. By evening, it transitions into an event space, versatile enough for receptions and social gatherings. In contrast, the private area encompassing 1,482 SQFT, provides a secure environment for invite-only client meetings, round tables, and employee-only access to level one.
From public to private, each space is identified by a color–teal and amber mark the public spaces, while blue marks private areas, and yellow defines executive zones. Functionally, the screen wall reimagines the divisions of space, creating distinct areas without the traditional use of interior walls. Constructed of translucent and mirrored materials, the screen wall is used to diffuse and reflect natural light, enhancing the interior with a play of transparency and light pattern.

RECEPTION

PRIVATE LOUNGE







The lighting design combines ambient and task lighting to create a vibrant, welcoming atmosphere. Brass fixtures cascade from the ceiling in both public and private lounges, reflecting hues from nearby screens and materials to enrich the pavilion’s layered aesthetic. Overhead, custom acoustic wood panels in an expanded shingle pattern
incorporate recessed linear lights, delivering balanced illumination throughout the space. These panels also help mitigate noise, ensuring conversational clarity and reducing sound transfer between areas, creating an inviting and acoustically comfortable environment for guests.

The Davos Pavilion features a dual coffee bar positioned between public and private areas, divided by a shared screen wall to balance accessibility and privacy. Crafted from maple hardwood with polished brass finishes, each bar front is wrapped in color-coordinated FilzFelt— teal for the public and blue for the private—offering a soft touch-point
and acoustic sound control. Placed closely for efficient service, the curved bars are built from pre-assembled modules for quick on-site assembly, with each configured to house essential coffee appliances. Centrally located, the coffee bar serves as a welcoming focal point, inviting guests to pause, connect, and recharge.


Location: Austin, Texas
Studio: Academic – Core Studio III
Square Footage: 173,568 FT2
In Collaboration With Taylor Wordell Fall 2023 Design Excellence Award Winner
Elements of Wellness is an innovative senior living community that not only enrich the lives of residents across the seven dimensions of wellness: physical, social, emotional, educational, intellectual, spiritual, and environmental, but also integrates seamlessly within the vibrant fabric of Austin’s social landscape. Recognizing the importance of communal spaces in this city, the design concept extends beyond conventional boundaries.
The core architectural philosophy is the belief that visual connection transcends mere design; it embodies the human innate desire to belong, observe, and connect. The project aspires to redefine conventional designs by seamlessly embedding assistive technologies into the architectural design harmonizing aesthetics with functionality to foster inclusivity and a shared sense of belonging.
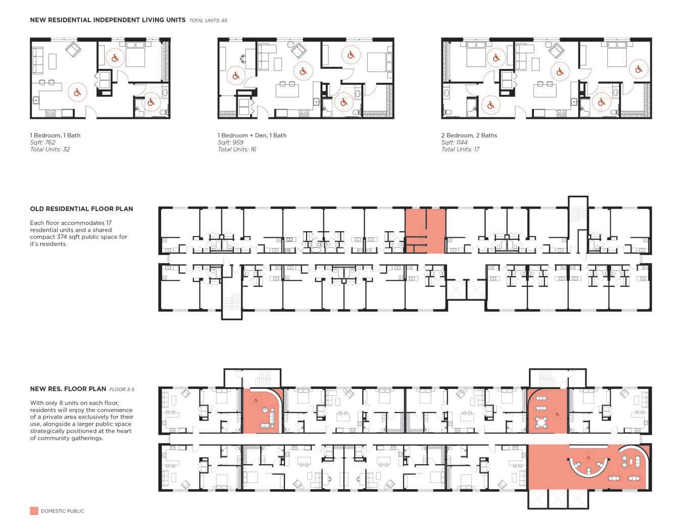
Within the senior community, residents will find a blend of spaces meticulously designed not just to address the needs of seniors but to promote each dimensions of wellness. The design intervention seeks to break down the barriers of physical isolation, fostering a sense of communal living and encouraging meaningful interactions among residents.



The Rebekah Baines Johnson (RBJ) building, located in Austin, Texas, is a 1970s structure originally designed as a 16-story tower to provide low-income senior living in a diverse neighborhood. Austin’s remarkable demographic growth has seen the city’s population increase by a third over the past decade. This growth has resulted in significant gentrification of the surrounding area.
Instead of contributing to the emerging landscape of newly constructed buildings in the neighborhood, this proposal aims to modernize the existing community while preserving the presence of the senior community in the area. The refurbishment intends on creating opportunities for residents to foster connections and reconnect seniors with their communities, ensuring a vibrant and socially enriching environment crucial for an aging population.

COMMUNITY PROGRAM: POOL & SPA floor 13-16
Pools are an important focal point for Austin’s community, as they provide essential relief from the hot climate, offer recreational opportunities and foster community engagement. The program became an essential amenity for the senior community due to the lack of nearby options in this part of the city and it is the only program within the building that is open to the public as well.
At the heart of the design, the pool and spa located on the building’s original top four floors, combining what was the existing 8’ tall ceilings to create a grandeur space, serves dual purpose. For the residents, it offers a place of relaxation, socialization, and physical wellness providing a serene space with stunning views of the city. Externally, its public-facing nature invites the broader Austin community, creating an intergenerational space for shared experiences and connections.








Through innovative assistive technology, the project enhances the elderly experience with unique design features without compromising the visual elegance. “Easeblend”, a multi-functional changing aid, transforms the changing process with a versatile seating sculpture.
“Archscape” is a seating area that combines functionality and artistry,
featuring a piping system as a railing, lighting, and towel-hanging solution. Additionally, the introduction of a purposefully designed pool area transfer bench ensures accessibility, convenience, and inclusivity for all residents and guest. Materials were also carefully considered to help control noise levels, providing high contrast for visibility, and preventing slip within the pool.




WORKSHOP floor 10-12
The cooking workshop is designed to ignite a passion for culinary exploration and communal dining among the residents. The space spans three floors, with the workshop located on the first floor. The second and third floors are designed as open atriums, offering captivating views of the culinary activity below. The 2nd-floor features
comfortable seating areas around the atrium, creating an inviting space for residents to gather, observe, and socialize. The 3rd-floor primarily serves as an elevated vantage point for residents to enjoy the visual spectacle of the culinary activities, providing a multi-level experience that enhances elements of their wellness.


Location: New York City, New York
Studio: Academic – Core Studio II
Square Footage: 33,000 FT2
Thresh-ohld (noun)
A separation, connection, or transitional element located between spaces. Any place or point of entering or beginning.
Nestled within the Lever House on 390 Park Avenue, New York, Thresholds is an artist residency designed for painters, dancers, and chefs. It’s a vibrant hub where creativity knows no bounds. The interior design of the residency was driven by the concept of interiority, emphasizing how people’s perceptions, interactions, and spatial occupation contribute to the built environment.
Thresholds embodies a celebration of the word itself—where architectural elements define boundaries, transitions, and connections within spaces. It’s a place where subtle spatial shifts, interconnected openings across floors, and the choice of material all play a role in the spatial journey through the residency.
Within the residency, each floor houses two to three domestic units, accommodating three residents per unit. The public program of the residency features dedicated studio spaces, each tailored to the specifics needs of the disciplines. In addition, facilities such as a library, communal dining area, and a study room provide a holistic environment.





The Lever House situated in the neighborhood of midtown Manhattan, is a prominent office building. It was originally designed by architects Gordon Bunshaft and Natalie DeBlois, with the interior designed by Raymond Lowey. The mid-20th-century structure is known for being the second skyscraper in New York with a glass curtain wall design.
The artist residency aims to occupy the first three floors of the twentyone-story structure, excluding the ground story courtyard. By adding a new layer of creativity and cultural vibrancy to the historic landmark, within the backdrop of a neighborhood rich in artistic history, it offers an inspiring environment for artistic growth.

With a focus on spatial relationships in interior environments, the study of proxemics was used in understanding how people, objects, and spaces interact in various situations. These insights guided the strategic arrangement of the artist’s domestic units, prioritizing efficient spatial layouts that promote a sense of community and meaningful
cross connections among artists. By incorporating proxemics into the design approach, the domestic units were intentionally designed with the mindset of providing the minimum space needed, encouraging residents to extend their interactions beyond their private spaces of the residency.







RENDERED SECTION



Location: Austin, Texas
Studio: Academic – Core Studio I
Square Footage: 2,652 FT2
Fall 2022 Design Excellence Award Nominee
Du·al·i·ty (noun)
The quality or state of having two different or opposite parts or elements.
Located at the University of Texas at Austin, School of Architecture, Duality is a sculpted monolithic structure designed for the idea of multifunctionality in the Mebane Gallery. The structure is intended to replace the current movable partitions used to create three independent spaces, providing extra flexibility and multiple options for student lounging, collaboration, reviews, and more.
Designed to provide interactive experiences accommodating a range of functions, the structure provides bar heights, tabletops, seating, chair storage, signage, and an overlook.
Duality is a design based on the idea of orthogonal vs non-orthogonal elements. Anything that serves a function is orthogonal, creating a juxtaposition with the sculptural nature of the non-orthogonal surfaces. Flexibility is given to the user as they approach the structure to decide whether they would like to engage or detach with the environment around them. A multitude of chair configurations can be tailored to the diverse needs of each user.



Upon entering Mebane Gallery (West), visitors are greeted by stairs at the front, leading up to an oculus that offers a view over the inner gallery. Moving to the Northeast corner, a versatile set of steps serves as both stairs and seating, seamlessly transitioning into a bar-height area with built-in seating. Alongside this multi-functional space is a
desk-height table area. Beneath the seating arrangement, hidden storage accommodates additional chairs. Towards the gallery’s rear, an opening ushers into a cozier, more intimate space, enclosed by three walls. Exiting out of the smaller gallery, the Southwest corner features a ramp that ascends to elevated seating, complemented by a bar-height section that smoothly converts into a table-height surface.

GALLERY ENTRANCE LOOKING IN












linwj@utexas.edu www.winnielin.com