Wide AR no.83, Design

Page 1

๊น€์žฌ๊ฒฝ์˜PHOTOSSAY23[18]

๊ฑด์ถ•๋ฏธํ•™์ž์˜ํŽธ์ง€03[36]

ํ‚ค๋ƒ๋ฅด์˜ ๋‚˜๋ผ, ๋‚˜์˜ ๋‚˜๋ผ, ์šฐ๋ฆฌ๋‚˜๋ผ ๊น€์›์‹

๊น€์ •๋™์˜๋ ˆ์ฝ”๋“œ์žฌํ‚ท์—์„œ์Œ์•…๊ณผ๊ฑด์ถ•์ฝ๊ธฐ08[38]

RESEARCH[44]

ํ•œ๊ตญ๊ทผ๋Œ€๊ฑด์ถ•์˜ํ˜„์žฅ๊ณผ์ด์Šˆ18 ์ด์—ฐ๊ฒฝ

์ง€์‹ฌ๋„์˜ ์ผ๋ณธ๊ตฐ ์š”์ƒˆ

GAIA TOPIC [34][72]

๋ƒ‰์ „ ํ•ด์ฒด์ž ๊ณ ๋ฅด๋ฐ”์ดˆํ”„ ํƒ€๊ณ„ ํŽธ์ง‘์‹ค

READINGLISTS[50]

๋™์•„์‹œ์•„ ๋„์‹œ ์ด์•ผ๊ธฐ

๋Œ€์„œ์šธ์˜ ๊ธธ

์ผ์ œ์‹œ๊ธฐ ๋ณด๋ฌผ๊ฑด์กฐ๋ฌผ์˜ ๋ณด์กด๊ณผ ์ˆ˜๋ฆฌ

๋ฎค์ง€์—„ ๊ฑด์ถ• ๊ธฐํ–‰

DOCUMENTA04[52]

์‹ ์‚ฌ 507.5 ๊น€ํ˜•์„, ๋ฐ•์ •์šฉ

RISINGARCHITECT13[62] ๊ฑด์ถ•์‚ฌ์‚ฌ๋ฌด์†Œ ๋ด„ ๊ฑด์ถ•์—ฐ๊ตฌ์†Œ ๊น€์œ ํ™ ์ดํƒœํ˜„

SPECIAL FEATURE [73]

๊ฑด์ถ•๊ฐ€ ๋‚˜์ธํ˜œ ยท ์ด์ข…๊ฑด

Jongkeun Lee ยท Inhye Na Architect

PROJECTS[74-111] ๋””์Šคํ—› ๋ชธ-์ง‘ ESSAY[85] ๋””์Šคํ—›_๋‚ด๊ฐ€ ์ง€์€ ๋‚˜์˜ ์ง‘ ์ด์ข…๊ฑด ESSAY[91]

๋ชธ-์ง‘ : ๋„๋‘‘๋งž์€ ์ด์•ผ๊ธฐ ๋‚˜์ธํ˜œ

CRITICISM[112]

์ด์ข…๊ฑด์˜ ๋””์Šคํ—›๊ณผ ๋‚˜์ธํ˜œ์˜ ๋ชธ-์ง‘ ์ •์Šน์ด

CRITICISM[114]

๋””์Šคํ—›, ์ฃฝ์Œ์—์„œ ๋ฐœ์•„ํ•œ ์‚ด๋ฆฌ๋Š” ์ง‘ ์ตœ์šฐ์šฉ

๋ชธ-์ง‘, ๊ธธํ•ญ์˜ ์žฅ๋ ฅ์œผ๋กœ ํŒฝํŒฝํ•œ ์ง‘

CRITICISM[116]

๊ฑด์ถ•๋น„ํ‰๊ฐ€์˜ ์ง‘: ๋‚˜๋ฌด์™€ ์ฒ , ๊ทธ๋ฆฌ๊ณ  ์ด์ƒํ–ฅ์˜ ์ •ํ†  ๊น€์˜์ฒ 

CREDITS[119]

NOTICE WIDE [์˜ํ™”๋กœ ๊ฑด์ถ• ์ฝ๊ธฐ] Academy

1๋…„์ฐจ ์ •๊ทœ๊ณผ์ • ๊ฐœ๊ฐ•

์ œ15ํšŒ ์‹ฌ์›๊ฑด์ถ•ํ•™์ˆ ์ƒ ๊ณต๋ชจ์š”๊ฐ• ๋ฐœํ‘œ 2022 ์™€์ด๋“œAR ๊ฑด์ถ•ํ‰๋ก  ๊ณต๋ชจ ์ถ”์ฒœ์ œ ์‹œํ–‰

์ œ179์ฐจ-์ œ180์ฐจ ๋•…์ง‘์‚ฌํ–ฅ

22 : 09-10, no.83 ํ‘œ์ง€์ด๋ฏธ์ง€์„ค๋ช…: ๋””์Šคํ—›์™ธ๋ถ€์ƒ์„ธ โ’ธ๊น€์žฌ๊ฒฝ

Contents & Flow Map

๊ตฌ๋ถ„์ฝ˜ํ…ํŠธ์ƒ์‚ฐ์ž์ง€๋ฉด

๊น€์œ ํ™๊ฐ•๋ณ‘๊ตญ122 ๋‚˜์ธํ˜œ๊น€๊ธฐํ˜„122 ์ด์ข…๊ฑด๊น€๋ช…๊ทœ14 ๊น€์Šนํ™˜ํ‘œ4 ๊น€์‹œ๋•50 ๊น€์˜๋ฐฐ123 ์žฅ์†Œ

์ธ๋ฌผ

๋””์Šคํ—›๊น€์˜์ฒ 73,116,ํ‘œ2 ๋ชธ-์ง‘๊น€์šฉ๋‚จ8 ์‹ ์‚ฌ507.5๊น€์›์‹36 ๋‹ค์„ฏ,๋œฐ๊น€์žฌ๊ฒฝ18,73 ์–‘๋ช…์ดˆ์ฒด์œก๊ด€+๊ธ‰์‹์‹œ์„ค๊น€์ •๋™38 ํ‰๊ฑฐ๋™931๊น€์ข…์ˆ˜10 ๋ฐฑ์•…๊ด€๊น€ํ˜„์„ญํ‘œ2 ์ง€์‹ฌ๋„๊น€ํ˜•์„52 ๊น€ํฌ์˜ฅ13

Organism2021-1๋…ธ๊ฒฝ62 ๋ฌธ์‹ ๋ฐ•๋ฏผ์ฒ 123 ๋ฐ•์ƒ์ผ17 ์‚ฌ๋ฌด์†Œ ๊ฑด์ถ•์‚ฌ์‚ฌ๋ฌด์†Œ๋ด„๊ฑด์ถ•์—ฐ๊ตฌ์†Œ๋ฐ•์ •์šฉ52 ์›์Šค๊ฑด์ถ•์ง‘๋‹จ๋ฐ•์ง€์ผ123

์˜ˆ์ˆ 

์„œ์ •์ผํ‘œ2 ์‚ฌ๊ฑด

WIDE[์˜ํ™”๋กœ๊ฑด์ถ•์ฝ๊ธฐ]Academy์„œํšจ์›51 ์ œ15ํšŒ์‹ฌ์›๊ฑด์ถ•ํ•™์ˆ ์ƒ๊ณต๋ชจ์š”๊ฐ•๋ฐœํ‘œ์‹ ์ฐฝํ›ˆ16 ๋•…์ง‘์‚ฌํ–ฅ(179์ฐจ-180์ฐจ)์šฐ์˜์ •6 ์™€์ด๋“œAR๊ฑด์ถ•ํ‰๋ก ๊ณต๋ชจ์ถ”์ฒœ์ œ์ด๋ฐฑํ™”5 ์ด๋ณต๊ธฐ123

์ถ”์ฒœ๋„์„œ

2
์— ์—์Šค์˜คํ† ํ…์ตœ๋ฏผ์šฑ123 ์šด์ƒ๋™๊ฑด์ถ•์ตœ์šฐ์šฉ51,73 ์›์Šคํ€˜์–ด๋ฏธํ„ฐ๊ฑด์ถ•์—ฐ๊ตฌ์†Œ์ตœ์šฑ3
๋™์•„์‹œ์•„๋„์‹œ์ด์•ผ๊ธฐ์ด์ˆ˜์—ด1 ๋Œ€์„œ์šธ์˜๊ธธ์ด์—ฐ๊ฒฝ44,50 ์ผ์ œ์‹œ๊ธฐ๋ณด๋ฌผ๊ฑด์กฐ๋ฌผ์˜๋ณด์กด๊ณผ์ˆ˜๋ฆฌ์ด์œค์ •122 ๋ฎค์ง€์—„๊ฑด์ถ•๊ธฐํ–‰์ด์น˜ํ›ˆ9 ์ดํƒœ๊ทœํ‘œ2,ํ‘œ3 ์ดํƒœํ˜„62,62 ํŒŒํŠธ๋„ˆ์‹ญ ๊ฑด์ถ•๊ณต๊ฐ์ž„๊ทผ๋ฐฐ123 ๋งˆ์‹ค์™€์ด๋“œ์ž„์„ฑํ•„11 ๋ฉ”ํƒ€๊ฑด์ถ•์žฅ์œค๊ทœ16,16 ์‚ผํ˜„๋„์‹œ๊ฑด์ถ•์ „์ง„์‚ผ122,123 ์ˆ˜๋ฅ˜์‚ฐ๋ฐฉ์ •์Šน์ด73,112 ์‹œ๊ณต๋ฌธํ™”์‚ฌ์กฐ์„ธ์—ฐ123 ์‹ฌ์›๋ฌธํ™”์‚ฌ์—…ํšŒ์กฐ์ง„์˜16 ์—์Šค์˜ค์—์ด๊ฑด์ถ•์กฐํƒ์—ฐ12 ์—์ดํ…๊ฑด์ถ•์ฃผ์„ฑ์ง„122
์›์˜ค์›์•„ํ‚คํ…์Šค์ตœ์›์˜15 ์œ ์˜ค์Šค์ตœ์ฐฝ์šฐ52 ์ œํšจํ…์Šค์ฒ˜์˜จํ…์Šค์ฒ˜62 ์ง‘ํŒŒํŠธ๋„ˆ์Šค๊ฑด์ถ•ํŽธ์ง‘์‹ค123 ํ† ๋ฌธ๊ฑด์ถ•ํ•œ๋™์ˆ˜ํ‘œ2 ํ“จ์ฆˆ๋žฉํ•œ์ œ์ž„์Šค์ •๋ฏผ7 ํ—Œํ„ฐ๋”๊ธ€๋ผ์Šค์ฝ”๋ฆฌ์•„

: 09-10, no.83

pp.18-33

๊น€์žฌ๊ฒฝ์€ ์ธ๋ฌธํ•™์  ๊ฐ๊ฐ๊ณผ ์ ˆ์ œ๋œ ์‹ฌ๋ฏธ์„ฑ์„ ๋ฐ”ํƒ•์œผ๋กœ ๊ณต๊ฐ„๊ณผ ๊ฑด์ถ•, ์ธ๊ฐ„์˜ ํ’๊ฒฝ์„ ๊ธฐ๋กํ•˜๋Š” ์‚ฌ์ง„๊ฐ€๋‹ค. ๋‹ค์ˆ˜์˜ ๊ฐœ์ธ์ „๊ณผ ๊ทธ๋ฃน์ „์— ์ฐธ์—ฌํ–ˆ์œผ๋ฉฐ ์‚ฌ์ง„์ง‘ ใ€Ž์ž์—ฐ๊ณผ ๊ฑด์ถ•ใ€, ใ€ŽMUTEใ€, ใ€ŽMUTE 2: ๋ด‰์ธ๋œ ์‹œ๊ฐ„ใ€, ใ€Ž์ˆ˜์›ํ™”์„ฑใ€(๊ณต์ €) ๋ฐ ใ€Ž์…ง ํด๋ฝ ๊ฑด์ถ•์„ ํ’ˆ๋‹คใ€, ใ€Ž๊น€์ค‘์—…์˜ ์„œ์‚ฐ๋ถ€์ธ๊ณผ ์˜์›ใ€(๊ณต์ €), ใ€Ž๋ฐ˜ํฌ์„ฑ๋‹น ์ง“๊ธฐ(1๊ถŒ)ใ€(๊ณต์ €)๋“ฑ์˜ ์ฑ…์„ ๋ƒˆ๋‹ค. ํ˜„์žฌ ๋ณธ์ง€ ์‚ฌ์ง„์ด๊ด„ ๋ถ€ํŽธ์ง‘์ธ์ด๋‹ค.

pp.36-37

๊น€์›์‹์€ ํ•„๋ช…์ธ ๊น€๋ฏธ์ƒ์„

์‚ฌ์šฉํ•ด์™”์œผ๋‚˜ ์ตœ๊ทผ ์ถœํŒ์‚ฌ์˜ ๊ถŒ์œ ๋กœ

์›๋ช… ๊น€์›์‹์„ ์‚ฌ์šฉํ•˜๊ณค ํ•œ๋‹ค.

ํ•œ์–‘๋Œ€ํ•™๊ต ๊ฑด์ถ•๊ณตํ•™๊ณผ ํ•™์‚ฌ ๋ฐ

์„์‚ฌ ์กธ์—…ํ–ˆ๋‹ค. ์ดํ›„ ๋ฒจ๊ธฐ์— ๋ฃจ๋ฒต ๊ฐ€ํ†จ๋ฆญ ๋Œ€ํ•™๊ต์—์„œ ์˜ˆ์ˆ ์‚ฌํ•™๊ณผ ์„์‚ฌ ๋ฐ ๋ฐ•์‚ฌํ•™์œ„๋ฅผ ๋ฐ›๊ณ  ๋Œ์•„์™€ ํ•œ์–‘๋Œ€ํ•™๊ต ๊ต์ˆ˜ ๋ฐ ๋‹จ์šฐ ๋„์‹œ ๊ฑด์ถ• ์—ฐ๊ตฌ์†Œ ์†Œ์žฅ์„ ์—ญ์ž„ํ–ˆ๋‹ค. ์˜ˆ์ˆ ์‚ฌํ•™์ž, ๊ฑด์ถ•์—ญ์‚ฌ๊ฐ€๋กœ์„œ ๊ฑด์ถ•, ๋ฏธ์ˆ , ๋ฌด์šฉ ๋“ฑ์˜ ์—ญ์‚ฌ์ด๋ก , ๋น„ํ‰ ํ™œ๋™์„ ํ•˜๊ณ  ์žˆ๋‹ค. pp.38-43 ๊น€์ •๋™์€ 1970๋…„ ํ™์ต๋Œ€ํ•™๊ต ๊ฑด์ถ•ํ•™๊ณผ๋ฅผ ์กธ์—…ํ•˜๊ณ , ๊ฐ™์€ ํ•™๊ต์—์„œ ๊ทผ๋Œ€๊ฑด์ถ•์‚ฌ ์—ฐ๊ตฌ๋กœ ์„ยท๋ฐ•์‚ฌํ•™์œ„๋ฅผ

๋ฐ›์•˜๋‹ค. 2013๋…„ ๋ชฉ์›๋Œ€ํ•™๊ต์—์„œ

์ •๋…„ํ‡ด์งํ–ˆ๋‹ค(๋ช…์˜ˆ๊ต์ˆ˜). ์ดํ›„ ์„ธ์šด์ƒ๊ฐ€ ๋‚ด์— ใ€Œ์šฐ๋ฆฌ๊ทผ๋Œ€๊ฑด์ถ•์—ฐ๊ตฌ์†Œใ€๋ฅผ

์—ด๊ณ , ์šด์˜ํ•ด์˜ค๊ณ  ์žˆ๋‹ค. ๊ฑด์ถ•๋ฌธํ™”์žฌ๋ถ„์•ผ(๊ฑด์ถ•์‹œ๊ณต๊ธฐ์ˆ ์‚ฌ)๋ฅผ

์ „๋ฌธ์œผ๋กœ ์—ฐ๊ตฌํ•˜๊ณ  ์žˆ๋‹ค. ํ† ํƒˆ๋””์ž์ธ

์ „๋ฌธ์ง€ ๊ฒฉ์›”๊ฐ„ ใ€Š๊พธ๋ฐˆใ€‹์˜ ์ฃผ๊ฐ„์„

์—ญ์ž„ํ–ˆ๊ณ , ๋„์ฝ”๋ชจ๋ชจ์ฝ”๋ฆฌ์•„ ์ฐฝ๋ฆฝ

ํšŒ์žฅ์„ ์—ญ์ž„ํ–ˆ๋‹ค. ํ•œ๊ตญ๊ฑด์ถ•์—ญ์‚ฌํ•™ํšŒ

ํšŒ์žฅ, ๋ฌธํ™”์žฌ์ฒญ ๊ทผ๋Œ€๊ฑด์ถ•๋ถ„์•ผ

๋ฌธํ™”์žฌ์œ„์›์žฅ์„ ์—ญ์ž„ํ–ˆ๋‹ค. 10์—ฌ ๊ถŒ์˜

์ €์„œ๊ฐ€ ์žˆ๋‹ค. ํ˜„์žฌ ๋ณธ์ง€ ๋ช…์˜ˆ๊ณ ๋ฌธ์ด๋‹ค.

pp.44-49

์ด์—ฐ๊ฒฝ์€ ์—ฐ์„ธ๋Œ€ํ•™๊ต ๊ฑด์ถ•๊ณตํ•™๊ณผ๋ฅผ

์กธ์—…ํ•˜๊ณ , ๋™๋Œ€ํ•™์›์—์„œ

๊ฑด์ถ•์—ญ์‚ฌ์ด๋ก  ์ „๊ณต์œผ๋กœ ์„ยท๋ฐ•์‚ฌ๋ฅผ

์ทจ๋“ํ–ˆ๋‹ค. ์‹ฌ์›๊ฑด์ถ•ํ•™์ˆ ์ƒ ์ œ6ํšŒ ์ˆ˜์ƒ์ž์ด๋‹ค. ํ˜„์žฌ ์ธ์ฒœ๋Œ€ํ•™๊ต ์ง€์—ญ์ธ๋ฌธ์ •๋ณด์œตํ•ฉ์—ฐ๊ตฌ์†Œ

ํ•™์ˆ ์—ฐ๊ตฌ๊ต์ˆ˜๋กœ ์žฌ์งํ•˜๊ณ  ์žˆ์œผ๋ฉฐ ํ•œ๊ตญ๊ฑด์ถ•์—ญ์‚ฌํ•™ํšŒ ์ด์‚ฌ์ด๋‹ค. ์ €์„œ๋กœ ใ€Žํ•œ์„ฑ๋ถ€์˜ โ€˜์ž‘์€ ์ผ๋ณธโ€™ ์ง„๊ณ ๊ฐœ ํ˜น์€ ๆœฌ็”บใ€ ๋ฐ ใ€Ž์‚ฌ์ง„์œผ๋กœ ๋งŒ๋‚˜๋Š” ๊ฐœํ•ญ์žฅ ์ธ์ฒœ์˜ ๊ฒฝ๊ด€ใ€, ใ€Ž์ธ์ฒœ, 100๋…„์˜ ์‹œ๊ฐ„์„ ๊ฑท๋‹คใ€(๊ณต์ €), ใ€Ž๋„์ฟ„์ œ๊ฐ• ์‚ฌํƒ์— ๋‹ด๊ธด ๋ถ€ํ‰์˜ ์‹œ๊ฐ„ใ€(๊ณต์ €), ใ€Ž์‰ฝ๊ฒŒ ์ฝ๋Š” ์„œ์šธๅฒ(ํ˜„๋Œ€ํŽธ 2)ใ€(๊ณต์ €), ใ€Ž์„œ์„ ์—ญ์‚ฌ ๋‹ต์‚ฌ๊ธฐ 5ใ€(๊ณต์ €), ใ€Ž๋™์•„์‹œ์•„ ๋„์‹œ์ด์•ผ๊ธฐใ€(๊ณต์ €) ๋“ฑ์ด ์žˆ๋‹ค.

pp.52-61 ๊น€ํ˜•์„, ๋ฐ•์ •์šฉ์€ ๋ณธ๋ฌธ์— ํฌํ•จ pp.62-71 ๊น€์œ ํ™์€ ๋ณธ๋ฌธ์— ํฌํ•จ pp.62-71 ์ดํƒœํ˜„์€ THE A LAB(์—์ด๋žฉ ๊ฑด์ถ•์—ฐ๊ตฌ์†Œ)์˜ ๋Œ€ํ‘œ ๊ฑด์ถ•๊ฐ€์ด๋‹ค. ๊ตญ๋ฏผ๋Œ€ํ•™๊ต ๊ฑด์ถ•๋Œ€ํ•™์„ ์กธ์—…ํ•˜๊ณ , ๋ฐ”ํ‹€๋ › ๊ฑด์ถ•๋Œ€ํ•™์›์—์„œ ์„์‚ฌ๊ณผ์ •์„ Distinction์œผ๋กœ ์กธ์—…ํ–ˆ๋‹ค. โ€˜2017๊ตญ์ œ๊ฑด์ถ•๋ฌธํ™”๊ต๋ฅ˜โ€™์—์„œ Best Fellowship์„ ์ˆ˜์ƒํ–ˆ๊ณ , โ€˜2019 ์‚ฌํšŒํ˜์‹  ๋ฆฌ๋น™๋žฉ ํ”„๋กœ์ ํŠธโ€™์— ์„ ์ •๋˜์—ˆ์œผ๋ฉฐ, 2021 ๋ฒ ๋‹ˆ์Šค๋น„์—”๋‚ ๋ ˆ ํ•œ๊ตญ๊ด€ โ€˜๋ฏธ๋ž˜ํ•™๊ตโ€™์˜ ์ฐธ์—ฌ ์ž‘๊ฐ€์ด๋‹ค. ๊ตญ๋ฏผ๋Œ€, ํ•œ์–‘๋Œ€, ์„œ์šธ์‹œ๋ฆฝ๋Œ€์—์„œ ๊ฑด์ถ•์„ค๊ณ„์™€ ๋„์‹œ๊ฑด์ถ•๋””์ž์ธ์„ ๊ฐ•์˜ํ–ˆ๋‹ค. ์ Š์€๊ฑด์ถ•๊ฐ€ํฌ๋Ÿผ์ฝ”๋ฆฌ์•„

์šด์˜์œ„์›์ด๋ฉฐ ์ตœ๊ทผ ๋™์–‘๋Œ€ํ•™๊ต

์˜ˆ์ˆ ๋Œ€ํ•™ ๋””์ž์ธํ•™๋ถ€ ์กฐ๊ต์ˆ˜๋กœ ์ž„์šฉ๋๋‹ค. ํ˜„์žฌ ๋ณธ์ง€ ํŽธ์ง‘์œ„์›์ด๋‹ค.

pp.73-121

์ด์ข…๊ฑด์€ ์—ฌํƒœ ๊ฑด์ถ•๋น„ํ‰๊ฐ€๋กœ ๋ถˆ๋ฆฐ

๊ฐ€๋‚œํ•œ ์ง€์‹์ธ์ด๋‹ค. ๊ฐ€๋‚œํ•˜๊ฒŒ ์„ฑ์žฅํ•œ

ํ–‰์šด์œผ๋กœ ๊ฐ€๋‚œ์˜ ๊ฐ€์น˜๋ฅผ ์ˆ˜์‹œ๋กœ

์ธ์‹ํ•˜๋ฉฐ ๊ฐ€๋‚œํ•˜๊ฒŒ ์‚ด์•˜๋‹ค. ๊ทธ๋ฆฌํ•˜์—ฌ

๊ฒฐ์ฝ” ์ˆœ์กฐ๋กญ์ง€ ์•Š์€, ์•„๋‹ˆ ๋‹ค๋ถ„ํžˆ

์ ๋Œ€์ ์ธ ์‚ฌํšŒ ์‹œ์Šคํ…œ ์•ˆ์—์„œ๋„

๋ถ€๋ชจ๋กœ๋ถ€ํ„ฐ ๋ฌผ๋ ค๋ฐ›์€ ์ž์œ ์ •์‹ ์˜

๊ธฐ์งˆ์„ ์ž์œ ๋กญ๊ณ  ๊ธฐ์œ ์‚ถ์˜ ๋™๋ ฅ์œผ๋กœ

ํฐ ๋ฌธ์ œ์—†์ด ์‚ผ์•˜๋‹ค. ๊ณต๋ถ€์— ๋Œ€ํ•œ

Profile of the Writers and Protagonists

์—ด์ •์„ ์ค‘๋‹จ ์—†์ด ์ด์–ด์˜จ ๊ฒƒ๋„ ๊ทธ๋Ÿฌํ•œ ์ •์‹  ๋•๋ถ„์ด๋‹ค. ๊ฐ€๋‚œํ•˜์ง€๋งŒ ์—์˜ค๋ผ์ง€ ํƒ๊ตฌ์˜ ์‚ถ์— ๋ชฐ์ž…ํ•จ์œผ๋กœ์จ, ์„ธ์ƒ์˜ ๋ฌด์—‡(๋ˆ, ๋ช…์˜ˆ, ๊ถŒ๋ ฅ ๋“ฑ)์—๋„ ์ข…์†๋˜์ง€ ์•Š๊ณ  ํ’์š”๋กœ์šด ์‚ถ์˜ ์‹œ๊ฐ„์„ ํ–ฅ์œ ํ–ˆ๋‹ค. ๋Œ€ํ•™๊ต์ˆ˜๋กœ ์ •๋…„ํ‡ด์งํ•  ์ˆ˜ ์žˆ๊ฒŒ ๋œ ํ–‰์šด์€, ์‚ฌํšŒ์™€ ํ›„ํ•™์„ ์œ„ํ•œ ์ ์ •ํ•œ ๋ด‰์‚ฌ๋ฅผ ํ†ตํ•ด ์ผ์ • ๋ถ€๋ถ„ ๊ฐš์œผ๋ ค ์• ์ผ์ง€๋งŒ, ๋ฏธํกํ•œ ๋‚˜๋จธ์ง€๋Š” ํ•œ ์‚ฌ๋žŒ์˜ ์ž‘๊ฐ€๋กœ์„œ ์ฃฝ์Œ์„ ๋ช…์ƒํ•˜๊ณ  ์ •์ง„ํ•˜๋ฉฐ ๊ฐš์•„๋‚˜๊ฐˆ ์ž‘์ •์ด๋‹ค.

pp.73-121 ๋‚˜์ธํ˜œ๋Š” ๊ณต์ด๋ฆผ ๊ฑด์ถ•์‚ฌ์‚ฌ๋ฌด์†Œ ์†Œ์žฅ์ด์ž ๋…๋ฆฝ์—ฐ๊ตฌ์ž์ด๋ฉฐ, ํ˜„์žฌ ๊ฐ€์ฒœ๋Œ€ํ•™๊ต ๊ฒธ์ž„๊ต์ˆ˜๋กœ ์žฌ์ง ์ค‘์ด๋‹ค. ๊ฑด์ถ• ์‹ค๋ฌด ์ž‘์—…๊ณผ ์—ฐ๊ตฌ ํ™œ๋™์„ ๋ณ‘ํ–‰ํ•˜๋ฉด์„œ ๊ฑด์ถ•๊ฐ€์˜ ์‚ฌํšŒ์  ์—ญํ• ์„ ๋ฐ˜์ถ”ํ•˜๊ณ , ๊ฑด์ถ•์„ ํ†ตํ•œ ๋ฌธํ™”์  ๊ฐœ์ž…์„ ์‹ค์ฒœํ•˜๊ณ ์ž ๋…ธ๋ ฅ ์ค‘์ด๋‹ค. ๊ฑด์ถ•์„ ์‚ถ๊ณผ ์˜ˆ์ˆ  ์‚ฌ์ด๋ฅผ ๊ฑด๋„ˆ๋Š” ๋‹ค๋ฆฌ๋กœ ์ƒ๊ฐํ•˜๋ฉฐ, ๊ฑด์ถ•์„ ๊ตฌ์ถ•ํ•˜๋Š” ๋ฐฉ๋ฒ•์œผ๋กœ์„œ ๊ณต๊ฐ„๊ณผ ์‹œ ๊ทธ๋ฆฌ๊ณ  ๋ชธ๊ณผ ์ด์•ผ๊ธฐ์˜ ๊ด€๊ณ„์— ์ฒœ์ฐฉํ•œ๋‹ค. ์‚ฌ๋ฌด์‹ค ์ด๋ฆ„ ๊ณต์ด๋ฆผ(Empty Forest Architecture)์€ โ€˜ํ—ˆ๊ณต์„ ๊ฑด๋„ˆ๊ฐ€๋Š” ์ด๋ฆ„์—†๋Š” ๊ทธ๋ฆผ์žโ€™๋‹ค. pp.112-113 ์ •์Šน์ด๋Š” ์„œ์šธ์‚ฐ์—…๋Œ€ํ•™๊ต ๊ฑด์ถ•๊ณผ๋ฅผ ์กธ์—…ํ•˜๊ณ  ใˆœ์Œ์šฉ๊ฑด์„ค, ใˆœ๋‚ด์™ธ๊ฑด์ถ•์‚ฌ์‚ฌ๋ฌด์†Œ ๋“ฑ์—์„œ ์‹ค๋ฌด๋ฅผ ์Œ“์•˜๋‹ค. 1999๋…„ ์œ ํ•œ๊ฑด์ถ•์‚ฌ์‚ฌ๋ฌด์†Œ๋ฅผ ์„ค๋ฆฝ, ํ˜„์žฌ U-SPACE ๊ฑด์ถ•์‚ฌ์‚ฌ๋ฌด์†Œ๋ฅผ ์ค‘์‹ฌ์œผ๋กœ U-HAUS ๋ฐ ๋ฉ”๊ฐ€ํŒ๋„ฌ์„ ์šด์˜ํ•˜๊ณ  ์žˆ๋‹ค. ์‚ฌ๋ฌด์†Œ์˜ ์ฃผ์š” ์ž‘์—…์„ ์ฑ…์œผ๋กœ ๋ฌถ์€ ใ€ŽU-HAUS(ํƒ์ง€์ง€๊ตฌ ๋‚ด ๆ–ฐ์ฃผ๊ฑฐ๊ณต๊ฐ„)ใ€, ใ€Ž์Šคํ† ๋ฆฌ๊ฐ€ ์žˆ๋Š” ๋‹จ๋…์ฃผํƒใ€, ใ€Ž์Šคํ† ๋ฆฌ๊ฐ€ ์žˆ๋Š” ์ƒ๊ฐ€์ฃผํƒใ€ ๋“ฑ์„ ํ†ตํ•ด ๋Œ€์ค‘๊ณผ ์ ๊ทน์ ์ธ ์†Œํ†ต์„ ํ•ด์˜ค๊ณ  ์žˆ๋‹ค. ๋งค์ผ๋งค์ผ ๊ฑด์ถ• ํ˜„์žฅ์˜ ์ผ๊ธฐ๋ฅผ ๊ฐœ์ธ ๋ธ”๋กœ๊ทธ์— ๋‹ด์•„๋‚ด๊ณ  ์žˆ๋Š” ๊ทธ๋Š” ์ด์•ผ๊ธฐ๊ฐ€ ์žˆ๋Š” ๊ฑด์ถ•๋ฌผ๋กœ ์ด์•ผ๊ธฐ๊ฐ€ ์žˆ๋Š” ์•„๋ฆ„๋‹ค์šด ๋„์‹œ๋ฅผ ๋งŒ๋“ ๋‹ค๋Š” ๊ธฐ์น˜ํ•˜์— ์ง„์†”ํ•œ ๊ฑด์ถ•์„ ํŽผ์น˜๊ณ  ์žˆ๋‹ค. ๊ฒฝ๊ธฐ๋„๊ฑด์ถ•๋ฌธํ™”์ƒ, ์ธ์ฒœ๊ด‘์—ญ์‹œ๊ฑด์ถ•์ƒ ๋“ฑ์„ ๋‹ค์ˆ˜ ์ˆ˜์ƒํ–ˆ์œผ๋ฉฐ ํ˜„์žฌ ๋ณธ์ง€ ๋ฐœํ–‰์œ„์›์ด๋‹ค.

pp.114-115

์ตœ์šฐ์šฉ์€ 2018๋…„ ์ผ๋ณธ ๊ฑด์ถ•๊ฐ€ ๋‹จ๊ฒŒ ๊ฒ์กฐ์— ๊ด€ํ•œ ๋…ผ๋ฌธ์œผ๋กœ ์„์‚ฌํ•™์œ„๋ฅผ ๋ฐ›์•˜๋‹ค. ๋Œ€ํ•™ ์กธ์—… ์ดํ›„ ์ค„๊ณง ์„ค๊ณ„์‚ฌ๋ฌด์‹ค์—์„œ ๊ทผ๋ฌดํ•˜๋ฉฐ ํ‹ˆํ‹ˆ์ด ๊ธ€์„ ์“ฐ๊ณ  ์žˆ๋‹ค. ใ€Ž์ผ๋ณธ๊ฑด์ถ•์˜ ๋ฐœ๊ฒฌใ€, ใ€Ž๋ฎค์ง€์—„ ๊ฑด์ถ• ๊ธฐํ–‰ใ€ ๋“ฑ ๋ช‡ ๊ถŒ์˜ ์ฑ…์„ ์ถœ๊ฐ„ํ–ˆ๊ณ  ใ€Š์™€์ด๋“œARใ€‹, ใ€Š๊ฑด์ถ•ํ‰๋‹จใ€‹, ใ€Š๊ณต๊ฐ„(SPACE)ใ€‹ ๋“ฑ ๊ฑด์ถ•์ „๋ฌธ์ง€์™€ ํ•œ๊ตญ๊ฐœ๋ฐœ์—ฐ๊ตฌ์›(KDI) ๊ธฐ๊ด€์ง€ ใ€Š๋‚˜๋ผ๊ฒฝ์ œใ€‹๋“ฑ์— ๊ฑด์ถ• ํ‰๋ก ๊ณผ ์นผ๋Ÿผ์„ ์จ์™”๋‹ค. ์šฐ๋ฆฌ ๊ฑด์ถ•์˜ ์ •์ฒด์„ฑ๊ณผ ์ฃผ์ฒด์„ฑ์— ๋Œ€ํ•œ ๋ฌธ์ œ์— ๋Œ€ํ•ด ์Šค์Šค๋กœ ๊ธ€์„ ์“ฐ๋ฉฐ ๊ณต๋ถ€ํ•˜๊ณ  ์žˆ๋‹ค. ์ œ10ํšŒ ์™€์ด๋“œAR ๊ฑด์ถ•๋น„ํ‰์ƒ(2019)์„ ์ˆ˜์ƒํ•˜๋ฉฐ ๊ฑด์ถ•ํ‰๋‹จ์— ๋“ค์–ด์„ฐ๋‹ค. ํ˜„์žฌ ๋ณธ์ง€ ํŽธ์ง‘์œ„์›์ด๋‹ค.

pp.116-119

๊น€์˜์ฒ ์€ ๊ณ ๋ ค๋Œ€ํ•™๊ต ๊ฑด์ถ•ํ•™๊ณผ๋ฅผ ์กธ์—…ํ•˜๊ณ , ๊ฐ™์€ ํ•™๊ต ๋Œ€ํ•™์›์—์„œ ๊ฑด์ถ•์—ญ์‚ฌ์ „๊ณต์œผ๋กœ ์„์‚ฌํ•™์œ„๋ฅผ ๋ฐ›์•˜๋‹ค. 1999๋…„~2008๋…„ ๋ฒ ๋ฅผ๋ฆฐ๊ณต๋Œ€ ๊ฑด์ถ•ํ•™๊ณผ ๊ฑด์ถ•์ด๋ก ์—ฐ๊ตฌ์†Œ์—์„œ ์ˆ˜ํ•™ํ•˜๋ฉฐ ๋ฐ•์‚ฌ๊ณผ์ •์„ ์ˆ˜๋ฃŒํ–ˆ๋‹ค. ๊ท€๊ตญ ํ›„ ๊ฑด์ถ•์ด๋ก ์—ฐ๊ตฌ์†Œ ๊ตฐ์žํ—Œ์„ ๊ฐœ์†Œํ–ˆ๊ณ , ํ˜„์žฌ ๋ฐฐ์žฌ๋Œ€ํ•™๊ต ์ฃผ์‹œ๊ฒฝ๊ต์–‘๋Œ€ํ•™ ์กฐ๊ต์ˆ˜๋กœ ์žฌ์ง ์ค‘์ด๋‹ค. 2012๋…„๋ถ€ํ„ฐ ๋งค์ฃผ โ€˜ํ† ์š”๊ฑด์ถ•๊ฐ•๋…โ€™์„ ์ง„ํ–‰ํ•ด์˜ค๊ณ  ์žˆ์œผ๋ฉฐ, 2016๋…„๋ถ€ํ„ฐ๋Š” ์ƒˆ๋ฌผ๊ฒฐ์•„์นด๋ฐ๋ฏธ์˜ ํ•˜์ด๋ฐ๊ฑฐ ์„ธ๋ฏธ๋‚˜์— ์ฐธ์—ฌํ•˜๊ณ  ์žˆ๋‹ค. ๋ฒ ๋ฅผ๋ฆฐ AEDES GALERIE์—์„œ โ€˜๊ตฌ์ถ•๊ณผ ๊ณต๊ฐ„-๊น€์ข…์„ฑ ๋ฒ ๋ฅผ๋ฆฐ ๊ฑด์ถ•์ „โ€™(2006), โ€˜ํŒŒ์ฃผ์ถœํŒ๋„์‹œ ๋ฒ ๋ฅผ๋ฆฐ ๊ฑด์ถ•์ „โ€™(2005), โ€˜์Šนํšจ์ƒ ๋ฒ ๋ฅผ๋ฆฐ ๊ฑด์ถ•์ „โ€™(2005)์˜ ์ „์‹œ ์ฝ”๋””๋„ค์ดํ„ฐ๋กœ ํ™œ์•ฝํ–ˆ๋‹ค. ํ˜„์žฌ ๊ฑด์ถ•ํ‰๋ก ๋™์šฐํšŒ ํšŒ์›์ด๋ฉฐ, ํ•œ๊ตญ๊ฑด์ถ•์—ญ์‚ฌํ•™ํšŒ ํŽธ์ง‘์œ„์›์žฅ์„ ๋งก๊ณ  ์žˆ์œผ๋ฉฐ, ํ˜„์žฌ ๋ณธ์ง€ ๊ธฐํš์ž๋ฌธ์ด๋‹ค. p.122 ๊ฐ•๋ณ‘๊ตญ์€ ๋ณธ๋ฌธ์— ์•ฝ์‹ ํ‘œ๊ธฐํ•จ p.123 ์กฐ์„ธ์—ฐ, ์ด๋ณต๊ธฐ, ์ตœ๋ฏผ์šฑ, ๊น€์˜๋ฐฐ๋Š” ๋ณธ๋ฌธ์— ์•ฝ์‹ ํ‘œ๊ธฐํ•จ

4
22

soa@soaaos.com

Tel +82-2-6407-0559

Fax +82-2-6404-1559

www.societyofarchitecture.com
[๋„๋ก] ใ€Ž๋ฌธ์‹  ๆ–‡ไฟก : ์šฐ์ฃผ๋ฅผ ํ–ฅํ•˜์—ฌMoon Shin Retrospective : Towards the Uni verse ใ€ ์ผ์‹œ ไธ€ๅง‹Monograph 2022 ๋…„ 8 ์›” 30 ์ผ ์ถœ ๊ฐ„. ๋ฌด์ข… ็„ก็ต‚Commentary 2022 ๋…„ 10 ์›” ์ถœ ๊ฐ„ ์˜ˆ์ •. ๊ตญ๋ฆฝํ˜„๋Œ€๋ฏธ ์ˆ  ๊ด€ [ MMCA ] + ์ˆ˜๋ฅ˜์‚ฐ๋ฐฉ [SuRyuSanBang] | โ— 4ร—6๋ฐฐํŒ ๋ณ€ํ˜•(190ร—245mm) โ— ์ผ์‹œ ไธ€ ๅง‹ : 384์ชฝ , 32 , 000์› โ— ๋ฌด ์ข… ็„ก ็ต‚ : ๋ฏธ ์ • [๊ธฐํš ํŽธ์ง‘ ์‚ฌ์ง„ ๋””์ž์ธ ์ œ์ž‘ ] ์ˆ˜๋ฅ˜ ์‚ฐ๋ฐฉ ๆจนๆตๅฑฑๆˆฟ S uR y uSanBang ยฉ [ S ur y usanbang ] Lee Jhee y eun g SuRyuSanBan g [์ „์‹œ] ๋ฌธ์‹ (ๆ–‡ไฟก) : ์šฐ์ฃผ๋ฅผ ํ–ฅํ•˜์—ฌ 2022.9.1.~2023.1.29. ๊ตญ๋ฆฝํ˜„๋Œ€๋ฏธ์ˆ ๊ด€ ๋•์ˆ˜๊ถ Moon Shin Retrospective : Towards the Universe September 1, 202 2-January 29, 2023 MMCA Deoksugung
18
19 ์„ ์œ ๋„์ •์ˆ˜์žฅ(2001) โ’ธ๊น€์žฌ๊ฒฝ
20
21 ์„ ์œ ๋„์ •์ˆ˜์žฅ(2001) โ’ธ๊น€์žฌ๊ฒฝ

PHOTOSSAY

2001๋…„์˜ ์„ ์œ ๋„์ •์ˆ˜์žฅ

๊ธ€, ์‚ฌ์ง„. ๊น€์žฌ๊ฒฝ ๋ณธ์ง€ ์‚ฌ์ง„์ด๊ด„ ๋ถ€ํŽธ์ง‘์ธ, ๊ฑด์ถ•์‚ฌ์ง„๊ฐ€

๋””์ง€ํ„ธ ์„ธ๊ณ„๋Š” ์–ธ์ œ๋‚˜ ์ƒˆ๊ฒƒ์˜ ์„ธ๊ณ„์ด๋‹ค. ์ด ์„ธ๊ณ„์˜ SNS ์ •๋ณด์™€ ์˜๊ฒฌ์€ ํ˜ธ๊ธฐ์‹ฌ์„ ์ฃผ๋Š” ๋Œ€์ƒ์ด๋‹ค. ์ด๋ฏธ์ง€๋Š” ํ‘œ๋ฉด์—์„œ ๋ฐ˜์ง์ธ ๋‹ค์Œ ์ด๋ฉด์œผ๋กœ ์‚ฌ๋ผ์ง€๊ณ  ์ž์‹ ์„ ๋ถ€๋ฅด๋Š” ์‹ ํ˜ธ๊ฐ€ ์žกํž ๋•Œ๊นŒ์ง€ ๊ธด ์ž ์— ๋น ์ ธ ๋“ ๋‹ค. ๊ฐ„ํ˜น ํ˜ธ์ถœ๋กœ ๊นจ์–ด๋‚˜ ํ˜„์žฌ๋กœ ๋ถˆ๋ ค์˜จ ์ง€๋‚œ ์‹œ๊ณต๊ฐ„ ์†์—์„œ ๊ณผ๊ฑฐ์˜

์‚ฌ์ง„(๋””์ง€ํ„ธ)์€ ๊ธฐ์จ์„ ์ฃผ๊ฑฐ๋‚˜ ์˜๋ฌธ์„ ๋˜์ง€๊ธฐ๋„ ํ•œ๋‹ค. ์‚ฌ์ง„์˜ ํ๋ฆ„์—์„œ ์–‘์ฐจ๋Œ€์ „๊ณผ ๋ƒ‰์ „์‹œ๋Œ€๋ฅผ ํ†ตํ•ด ํ˜•์„ฑ๋œ ํ˜„์‹ค์˜ ๋ˆˆ์€ ์ผ์ƒ์— ๊ฐ€ ๋‹ฟ์•˜๊ณ  ๋˜ ํ˜„๋Œ€์‚ฌ์ง„์˜ ๊ฐ€๊ต๋กœ์„œ

๋„์‹œ์˜ ์ธ๊ณต์  ํ’๊ฒฝ๊ณผ ์ •๊ฒฝ์ด ์‚ฌ์ง„์œผ๋กœ ๋‚จ์•˜๋‹ค. ์‹œ๋Œ€๊ฐ€

์‚ฌ๋žŒ๋“ค ์ธ์‹์— ๋ฏธ์นœ ์˜ํ–ฅ์ด ๋ฐ˜์˜๋˜๊ธฐ ๋•Œ๋ฌธ์ด๋‹ค. ๋ฐ˜๋ฉด์— ์‚ฌ์ง„ ์‚ฌ์กฐ์˜ ๋ฐœ์ „ ์•„๋ž˜ ์ฃผ๋ฅ˜ ๋ฏธ์ˆ ์‹œ์žฅ์—์„œ ํ˜„๋Œ€์‚ฌ์ง„์˜ ์œ„์ƒ์„ ๋ณด๋ฉด ๊ด€์‹ฌ์˜ ํฌ๊ธฐ๋ฅผ ๋ณผ ์ˆ˜ ์žˆ๋Š”๋ฐ ์ฒœ๋ฌธํ•™์  ๊ฑฐ๋ž˜๊ฐ€ ๋ฟ๋งŒ ์•„๋‹ˆ๋ผ ์ด๋ฏธ ์‚ฌ์ง„์ด๋ฏธ์ง€๋Š” ์ƒํ™œ์„ธ๊ณ„์— ์ฐจ๊ณ  ๋„˜์นœ๋‹ค. ๋งค์ˆœ๊ฐ„ ํ•ธ๋“œํฐ ์˜์ƒ์œผ๋กœ ์ฐํžˆ๊ณ  ์†Œ๋น„๋˜๊ณ  ์ถ•์ ๋˜๋Š” ์‚ฌํƒœ๋Š” ํ˜„์‹ค ๊ทธ ์ž์ฒด์˜ ๊ตฌ์„ฑ๋ฌผ๋กœ ์ž๋ฆฌ๋งค๊น€ ํ–ˆ๋‹ค. ๊ทธ ๊ฐ€์šด๋ฐ ํ•„๋ฆ„์˜ ๊ท€ํ™˜์ฒ˜๋Ÿผ ๋ณด์ด๋Š” ํ˜„์ƒ, ์ฆ‰ ํ•„๋ฆ„์„ ์Šค์บ”ํ•ด ๋””์ง€ํ„ธ๋กœ ์†Œํ†ตํ•˜๋Š” ์ƒˆ๋กœ์šด ๊ฐ์„ฑ์„ ๋ณด๋ฉด ์ด๋Ÿฐ ๋””์ง€ํ„ธ ํ•„๋ฆ„์‚ฌ์ง„์ด ์•„๋‚ ๋กœ๊ทธ์— ๋Œ€ํ•œ ํ–ฅ์ˆ˜๋กœ ์ž‘์šฉํ•ด ์ธ์Šคํƒ€๊ทธ๋žจ์ด๋‚˜ ํŠธ์œ—์ด ๋ถ๋น„๋Š” ๊ฒƒ์ผ๊นŒ. ๊ทธ๋„ ์•„๋‹ˆ๋ผ๋ฉด ๋Œ์•„๊ฐˆ ์ˆ˜ ์—†๋Š” ๊ทธ ๋•Œ์˜ ๊ฐ์„ฑ์ด ๋‹ค์‹œ ์˜จ ๊ฒƒ์ธ๊ฐ€ ์ƒ๊ฐํ•ด ๋ณด์•˜๋‹ค. ํ•ธ๋“œํฐ ์นด๋ฉ”๋ผ์™€ ๋”๋ถˆ์–ด ์ด๋ฏธ์ง€ ์ฒ˜๋ฆฌ์„ฑ๋Šฅ์ด ๊ฐ•ํ™”๋˜์ž ๋‹ค์–‘ํ•œ ๋ฉ”๋‰ด ์ค‘ ์„ ํƒํ•  ์ˆ˜ ์žˆ๊ฒŒ ๋˜์—ˆ์–ด๋„ ์ง์ ‘ ํ•„๋ฆ„์— ์ฐ์€ ์‚ฌ์ง„์˜ ๋А๋‚Œ์„ ์„ ํ˜ธํ•˜๋Š” ๋“ฏํ•˜๋‹ค. ๊ทธ๋Ÿฌ๋‚˜ ํ˜„์‹ค์„ ๋– ๋‚ด๋Š” ๋„๊ตฌ๋กœ์จ ๊ธฐ๊ณ„์‹œ๋Œ€์˜ ์‚ฌ์ง„๊ธฐ๋Š” ๊ฐ๊ฐ์˜ ํ™”์„์ด ๋œ๋‹ค ํ•ด๋„ ๋””์ง€ํ„ธ ์œ„์„ธ๋Š” ํญ์ฃผ์˜ ๊ถค๋„ ์œ„๋ฅผ ๋ฉˆ์ถ”๊ธฐ ์–ด๋ ค์šธ ๊ฒƒ์ด๋‹ค. ์ด๋ ‡๊ฒŒ ๋ฌผ์งˆ์ด ์ฝ”๋“œ๋กœ ์ „ํ™˜๋œ ์‚ฌ์ง„์„ธ๊ณ„๋Š” ์˜คํžˆ๋ ค ํ˜„์‹ค๊ณผ ๋น„ํ˜„์‹ค์˜ ๊ฒฝ๊ณ„๋ฅผ ์ดˆ์›”ํ•ด ์ง€๊ฐ์„ ํ”๋“ค์–ด ๊นจ์šฐ๋Š” ๊ฐ์„ฑ์˜ ๊ธฐ์ œ๋กœ ์ž‘์šฉํ•  ์ˆ˜ ์žˆ์œผ๋‚˜ ๊ทธ ๋ ๋ชจ๋ฅผ ๊ฐ€๋Šฅ์„ฑ์ด ์–ด๋””๊นŒ์ง€ ๋˜ ์–ด๋–ป๊ฒŒ ๋ ์ง€๋Š” ์•„๋ฌด๋„ ๋ชจ๋ฅด๊ธฐ ๋•Œ๋ฌธ์ด๋‹ค. ๊ทธ๋Ÿผ์—๋„ ๋ถˆ๊ตฌํ•˜๊ณ  ์ง€๋‚˜๊ฐ„ ์‹œ๋Œ€๊ฐ€ ๋‹ค์‹œ ์˜ฌ ์ˆ˜ ์žˆ๋‹ค๋ฉด ๊ทธ์กฐ์ฐจ ์ฝ”๋“œ์˜ ๋ณ€ํ˜•(์‹ค์ œ์™€ ๊ฐ€์ƒ์ด

๋’ค๋ฐ”๋€ ์„ธ๊ณ„)์ด๋“ , ์•„๋‹ˆ๋ฉด ํ˜„์‹ค์˜ ๊ณต๊ฐ„์ด ํœ˜์–ด์ ธ์•ผ๋งŒํ• 

ํ…๋ฐ ์ง€๋‚œ์‹œ๋Œ€๋Š” ๋‹ค์‹œ ์˜ค์ง€ ์•Š์„ ๊ฒƒ์ด๋ฉฐ ๊ธฐ๊ณ„์˜ ๊ฐ๊ฐ์„

์œ ์ง€ํ•˜๋Š” ๊ฒƒ์กฐ์ฐจ ๋ฏธ๋ง์œผ๋กœ ๋‚จ์„ ๊ฒƒ์ด๋‹ค.

โ€˜์‹ ์„ ์ด ๋…ธ๋‹ˆ๋Š” ๊ณณโ€™์œผ๋กœ ๋ถˆ๋ฆฌ๋˜ ์„ ์œ ๋ด‰์€ ํ•œ๊ฐ•์˜ ์•„๋ฆ„๋‹ค์šด

์ •์ทจ์™€ ์„œ์šธ์˜ ์‚ฐ์ž๋ฝ์„ ๋ฐ”๋ผ๋ณด๋˜ ๊ณณ์ด์—ˆ๋‹ค. ์˜ˆ๋กœ๋ถ€ํ„ฐ

์–‘ํ™”๋‚˜๋ฃจ์™€ ๊ฐ• ๊ฑด๋„ˆ ๋ง์›์ •, ๋งˆํฌ ์ž ๋‘๋ด‰์„ ์ž‡๋Š” ํ•œ๊ฐ•์˜

์ ˆ๊ฒฝ์œผ๋กœ์„œ, ์กฐ์„ ์‹œ๋Œ€ ์ค‘๊ตญ ์‚ฌ์‹ ๋“ค ์‚ฌ์ด์— โ€œ์กฐ์„ ์—

๊ฐ€์„œ ์–‘์ฒœํ˜„์–‘์ฒœ๊ตฌ ์ผ๋Œ€์„ ๋ณด์ง€ ๋ชปํ–ˆ๋‹ค๋ฉด ์กฐ์„ ์„ ๋ณด์•˜๋‹ค๊ณ 

๋งํ•˜์ง€ ๋ง๋ผโ€ ํ–ˆ์„ ๋งŒํผ ํ•œ๊ฐ• ์ผ๋Œ€์˜ ๋นผ์–ด๋‚œ ํ’๊ด‘์„ ์ง€๋‹Œ

๊ณณ์ด์—ˆ๋‹ค. ๊ทธ ๋ด‰์šฐ๋ฆฌ๋ฅผ ํ—ˆ๋ฌผ์–ด ๋ฉ”์šด ์„ ์œ ๋„(1920๋…„๋Œ€)์— ์ˆ˜๋—๋ฌผ ๊ณต๊ธ‰์‹œ์„ค์ธ ์ •์ˆ˜์žฅ(1978)์ด ๋“ค์–ด์„ฐ๋‹ค. ๊ทธ๋ฆฌ๊ณ  ๊ทธ ๊ธฐ๋Šฅ์„ ๋‹คํ•˜์ž ๋„์‹œ๋ฏผ ํœด์‹์„ ์œ„ํ•œ ๊ณต์›์„ ๋งŒ๋“ค๋ ค ๊ณต์‚ฌ ์ค‘(2001)์ด์—ˆ๋‹ค. ์ด๋ฏธ ์‹ ์„ ์ด ๋– ๋‚˜๊ฐ„(?) ์ž๋ฆฌ์—์„œ ๊ทธ

์•„์šฐ๋ผ์˜ ์ž์ทจ๋Š” ํ•˜๋‚˜๋„ ์—†์—ˆ๊ณ  ์˜ค๋กœ์ง€ ๊ฑด๋„ˆํŽธ์— ๋ณด์ด๋Š” ํ’๊ด‘์„ ๋ฐ”๋ผ๋ณด๋ฉฐ ์˜› ์‹œ์ ˆ์„ ๊ฐ€๋Š ํ•˜๋Š” ์ •๋„ ์ด์ƒ์˜ ์ƒ๊ฐ์€

์ ‘์„ ์ˆ˜๋ฐ–์—. ์ด์ƒ๊ณผ ๋™๋–จ์–ด์ง„ ๊ฐ„๊ทน๋งŒํผ์ด๋‚˜ ํ˜„์‹ค์ด

๋ˆˆ์•ž์„ ์ฐจ์ง€ํ–ˆ๊ธฐ ๋•Œ๋ฌธ์ด๋‹ค. ๋‹ค๋งŒ ํ‘๋ฐฑ์‚ฌ์ง„์˜ ํ†ค์œผ๋กœ

์ถ”์ƒ์˜ ์„ธ๊ณ„๋ฅผ ํ˜„์‹œํ•  ์ˆ˜ ์žˆ๋„๋ก ์กฐ์ ˆํ–ˆ๋‹ค. ์ดฌ์˜์—์„œ

์‹œ๊ฐ„(-2)์„ ๋‹น๊ธฐ๊ณ  ํ•„๋ฆ„ ํ˜„์ƒ์—์„œ ๋ฏธ(+3)๋Š” ์ ๊ทน์ ์ธ

์ˆ˜๋‹จ์„ ์ทจํ–ˆ๋‹ค. ๊ณต์‚ฌ ์ค‘์˜ ํ˜„์‹ค๋ณด๋‹ค ํ–ฅํ›„ ์™„์„ฑ๋œ ๊ณต์›์—์„œ

๋– ์˜ฌ๋ฆด ์ˆ˜ ์žˆ์„ ๋ฒ•ํ•œ ์ด์ƒํ–ฅ์„ ๊ทธ๋ ธ๋‹ค ํ•  ์ˆ˜ ์žˆ๊ฒ ์œผ๋‚˜

์ด๋Š” ํ•˜๋‚˜์˜ ๋ชธ์ง“์ผ ๋ฟ์ด๋‹ค.

์‹œ๊ฐ์ž๋ฃŒ ์ค‘์‹ฌ์ธ ๋งค์ฒด ์ธํ„ฐ๋„ท์€ ์„ธ๊ณ„๋ฅผ ์†์— ์žกํž ๋“ฏ์ด

๋ณด์—ฌ ์ค€๋‹ค. ์ฆ‰๊ฐ์ ์ด๊ณ  ๊ฐ„ํŽธํ•ด์„œ ๋งˆ์น˜ ์„ธ๊ณ„๊ฐ€ ์†๊ฐ€๋ฝ ๋์— ๋‹ฌ๋ ค์žˆ๋Š” ์ฐฉ์‹œ๋ฅผ ํ˜•์„ฑํ•œ๋‹ค. ์ธํ„ฐ๋„ท์ด ์ตœ์ ํ™”ํ•œ ์ •๋ณด์˜ ์„ธ๊ณ„์—์„œ

ํ•„์š”ํ•˜๊ณ  ๊ทธ์กฐ์ฐจ ๊ฐ€๋Šฅํ•˜๋ ค๋ฉด ์ƒˆ๊ฐ€ ์•„๋‹Œ ์ด์ƒ ์–ด๋ ค์šด ๊ฒŒ ์‚ฌ์‹ค์ด๋‹ค. ๊ทธ๋ž˜์„œ ์ •์‹ ์˜ ์Šน๋ฆฌ๋ฅผ ์œ„ํ•ด, ๊ฑด๋ฌผ์ด ๋ชธ์ด๊ณ 

์ธ๊ฐ„์€ ์ œ๊ฐ๊ฐ์˜ ์ˆ˜๋‹จ์œผ๋กœ ๋‚ ๊ธฐ๋ฅผ ๋„๋ชจํ•˜๋Š” ๊ฒƒ์ผ ํ…Œ๋‹ค. ํ•˜์ง€๋งŒ ๋ฐ”๋‹ฅ์„ ๋‘๋“œ๋ ค ์ง€๋ถ•์„ ์„ธ์šฐ๊ณ  ๋ณ„์„ ๋ณด๋ ค๋Š” ๊ฑด์ถ•์€ ๋ชธ์„ ๋– ๋‚˜ ์กด์†ํ•  ์ˆ˜ ์—†๋Š” ์ˆ™๋ช… ๋˜ํ•œ ์ง€๋…”๋‹ค. ๊ทธ๋งŒํผ ์˜ํ˜ผ์„ ํ‚ค์šฐ๊ณ  ์ง€ํ‚ค๊ธฐ ์–ด๋ ค์šด ์ˆœ๊ฐ„๋“ค๋กœ ๊ฐ€๋“ ์ฐฌ ํ˜„์‹ค์€ ๋„˜๊ธฐ ์–ด๋ ค์šด ๋ฒฝ์ด ๋œ๋‹ค. ์†Œ์„ค ใ€ŽํŒŒ์šดํ‹ดํ—ค๋“œ(The Fountainhead)ใ€ ๊ตญ๋‚ด์— ์†Œ๊ฐœ๋œ ์˜ํ™”์™€ ์†Œ์„ค์€ ๊ณตํžˆ ใ€Ž๋งˆ์ฒœ๋ฃจใ€๋กœ ๋ฒˆ์—ญ๋˜์—ˆ๋‹ค.๋Š” ๋ฒ•์ •์—์„œ ํ•˜์›Œ๋“œ ๋กœํฌ๊ฐ€ ์ž์‹ ์„ ๋ณ€๋ก ํ•˜๋ฉฐ ๋ฌด์ฃ„๋ฅผ ์ฃผ์žฅํ–ˆ๋‹ค. ์ด๋Š” ํ•™์ƒ์œผ๋กœ์„œ ๋Œ€ํ•™์˜ ํ‡ด๊ต ์กฐ์น˜์— โ€œ๋‚˜๋Š” ๋‚ด ๊ธฐ์ค€์„ ๋‚ด์†์œผ๋กœ ๋งŒ๋“ค๊ฒ ๋‹ค.โ€๋Š” ๊ฒฐ์‹ฌ์— ๋”ฐ๋ฅธ ์ผ์ด์—ˆ๋‹ค. ์ง‘์‚ฐ์ฃผ์˜์— ๋งž์„œ ๊ฐœ์ธ์˜ ๊ณ ๊ฒฐ์„ฑ์„ ์ง€ํ‚ค๋ ค๋˜ ์ผ์ด์—ˆ๊ณ  ์ด๋Š” ๊ฐœ์ธ์ฃผ์˜์  ์œ„ํ—˜ ์š”์†Œ๋ฅผ ๋– ๋‚˜์„œ ๋œปํ•˜๋Š” ๋ฐ”๊ฐ€ ์ž‘์ง€ ์•Š๋‹ค. ์„ธ์šด ๋œป์„ ์œ„ํ•ด ๋Œ์ดํ‚ค๋Š” ์šฉ๊ธฐ. ์ง€๊ธˆ ์—ฌ๊ธฐ์˜ ์‚ถ์€ ์ˆœ๊ฐ„๋งˆ๋‹ค ์„ ํƒ์ ์œผ๋กœ ํ๋ฅด๊ณ , ๋น ๋ฅธ ์†๋„ ์œ„์—์„œ๋Š” ์‹œ๊ฐ„์ด ๋А๋ฆฌ๊ฒŒ ํ๋ฅด๋Š” ๊ฒƒ์ฒ˜๋Ÿผ ์ธํ„ฐ๋„ท์€ ์šฐ๋ฆฌ์˜ ์‹œ๊ฐ„ ๊ฐ๊ฐ์„ ๋งˆ๋น„์‹œํ‚จ๋‹ค. ๊ทธ๋ ‡๊ฒŒ ์šฐ๋ฆฌ ๋ง๋ง‰์— ํ˜ธ์†Œํ•˜๋Š” ์ด๋ฏธ์ง€๋“ค์˜ ํ–ฅ์—ฐ์— ์ทจํ•ด์žˆ๋Š” ๋™์•ˆ ๋ง์—†๋Š” ์‹œ๊ฐ„ ๋˜ํ•œ ํ˜๋Ÿฌ๊ฐ„๋‹ค. ์—๋“œ๋ฌธํŠธ ํ›„์„ค์˜ ๋ง์— ๋”ฐ๋ฅด๋ฉด โ€œ์šฐ๋ฆฌ์˜ ์˜์‹์€ ๋ฐ˜์„ฑ์˜ ์ฃผ์ฒด์™€ ๋Œ€์ƒ ์‚ฌ์ด๋ฅผ ์˜ค๊ฐ€๋ฉฐ ํ๋ฅด๋Š”๋ฐ, ์ด โ€˜์‹œ๊ฐ„์˜ ๊ทผ์›โ€™์„ ์˜์‹ํ•˜์ง€ ์•Š๋Š” ํ•œ ๊ทธ ์กด์žฌ๋ฅผ ๋А๋‚„ ์ˆ˜ ์—†๋‹ค.โ€ ๋ฐ–์„ ๋ณด๋‹ˆ ๊ฝƒ์ด ์ง„๋‹ค.

์ฐธ์กฐ : ใ€Ž์„ ์œ ๋„๊ณต์›ํ™”์‚ฌ์—… 1999~2002ใ€

์กฐ์„ฑ๋ฃกยท์ •์˜์„ , ์„œ์šธํŠน๋ณ„์‹œ ํ•œ๊ฐ•์‚ฌ์—…๊ธฐํš๋‹จ, ใ€Ž๋งˆ์ฒœ๋ฃจ(1.2)ใ€ ์•„์ธ ๋žœ๋“œ ์ง€์Œ, ํ—ˆ์ข…์—ด ์™ธ ์˜ฎ๊น€, ๋„์„œ์ถœํŒ ๊ด‘์žฅ, ใ€Ž20์„ธ๊ธฐ ๊ฑด์ถ•์˜ ๋ชจํ—˜ใ€ ์ด๊ฑด์„ญ ์ง€์Œ, ์ˆ˜๋ฅ˜์‚ฐ๋ฐฉ, ใ€Ž์‚ด์•„ ์žˆ๋Š” ์‹œ๊ฐ„ใ€ ์ด์ข…๊ฑด ์ง€์Œ, ๊ถ๋ฆฌ

23 ๊น€์žฌ๊ฒฝ์˜ ํฌํ† ์„ธ์ด 23
๊ฐ€๋ฒผ์šด ์ด๋ฏธ์ง€๋ฅผ ํƒ“ํ•  ์ˆ˜๋Š” ์—†๋‹ค. ๊ทธ๋Ÿฌ๋‚˜ ๋ฌผ์งˆ์˜ ์„ธ๊ณ„์— ์†ํ•œ ์ธ๊ฐ„์˜ ๋ชธ์œผ๋กœ ๋‚ ๊ณ ์ž ํ•œ๋‹ค๋ฉด ๋‚ ๊ฐœ๊ฐ€
๊ฑด์ถ•์ด ์ƒˆ๋ผ๋ฉด ๋ชจ๋“  ๊ฑด์ถ•๊ฐ€๋Š” ๋‚˜๋Š” ๊ฟˆ์„ ๊นฐ ์ˆ˜ ์—†์„ ๊ฒƒ์ด๋‹ค.
์ข…๊ต์ 
๊ทธ๋ž˜์„œ์ผ๊นŒ
์ดˆ์›”๊ณผ ํ•ดํƒˆ์„ ํ†ตํ•ด์„œ๋ผ๋„
(์˜† ๋ฉด)์„ ์œ ๋„์ •์ˆ˜์žฅ(2001) โ’ธ๊น€์žฌ๊ฒฝ
24
25 ์„ ์œ ๋„์ •์ˆ˜์žฅ(2001) โ’ธ๊น€์žฌ๊ฒฝ
26
27 ์„ ์œ ๋„์ •์ˆ˜์žฅ(2001) โ’ธ๊น€์žฌ๊ฒฝ
28
29 ์„ ์œ ๋„์ •์ˆ˜์žฅ(2001) โ’ธ๊น€์žฌ๊ฒฝ
30
31 ์„ ์œ ๋„์ •์ˆ˜์žฅ(2001) โ’ธ๊น€์žฌ๊ฒฝ
32
33 ์„ ์œ ๋„์ •์ˆ˜์žฅ(2001) โ’ธ๊น€์žฌ๊ฒฝ
34 ํ•ด์—๊ฒŒ์„œ ์†Œ๋…„์—๊ฒŒ1) GAIA Topic ๋™์„œ ๋ƒ‰์ „์˜ ํ•ด์ฒด์ž ๋ฏธํ•˜์ผ ๊ณ ๋ฅด๋ฐ”์ดˆํ”„ 2022๋…„ 8์›” 30์ผ ํ–ฅ๋…„ 91์„ธ๋กœ ํƒ€๊ณ„(1931-2022) 1) ์ด ๊ผญ์ง€์˜ ๋ช…์นญ โ€˜ํ•ด์—๊ฒŒ์„œ ์†Œ๋…„์—๊ฒŒโ€™๋Š” ์ตœ๋‚จ์„  ์„ ์ƒ(1890~1957)์ด 1908๋…„ 11์›”์— ํ•œ๊ตญ ์ตœ์ดˆ์˜ ์ข…ํ•ฉ์žก์ง€ ใ€Š์†Œ๋…„ใ€‹์„ ์ฐฝ๊ฐ„ํ•˜๊ณ  ๋ฐœํ‘œํ–ˆ๋˜ ๊ถŒ๋‘์‹œ ์ œ๋ชฉ์—์„œ ๋”ฐ์™”๋‹ค. ๊ทธ๋กœ๋ถ€ํ„ฐ 100๋…„ ๋’ค 2008๋…„ 1์›”์— ์ฐฝ๊ฐ„ํ•œ ๋ณธ์ง€๋Š” ์„ ์ƒ์˜ ๊ณ„๋ชฝ์ฃผ์˜์  ์ •์‹ ๊ณผ ์‹œ์„ ์œผ๋กœ ํ˜„ ์ธ๋ฅ˜์™€ ๋ฏธ๋ž˜์˜ ์ธ๋ฅ˜๊ฐ€ ํ•จ๊ป˜ ์‚ด์•„๊ฐˆ ์ง€๊ตฌ๋ฅผ ํ–ฅํ•œ ์ƒ๊ฐ์„ ๊ณต์œ ํ•˜๊ธฐ ์œ„ํ•จ์ด๋‹ค.
35 p.72 2) ๋ฏธํ•˜์ผ ๊ณ ๋ฅด๋ฐ”์ดˆํ”„ [Mikhail Sergeyevich Gorbachyev] (๋‘์‚ฐ๋ฐฑ๊ณผ ๋‘ํ”ผ๋””์•„, ๋‘์‚ฐ๋ฐฑ๊ณผ) ๋ฐ ์ค‘์•™์ผ๋ณด 22๋…„ 9์›” 1์ผ์ž(8๋ฉด ๊ธฐ์‚ฌ), Voice of America 22๋…„ 9์›” 1์ผ์ž ๊ธฐ์‚ฌ ๋“ฑ ์ฐธ์กฐ Mikhail Gorbachev died on 30 August 2022, aged 91 1985๋…„ 52์„ธ๋กœ ์—ญ๋Œ€ ์ตœ์—ฐ์†Œ ์†Œ๋ จ ๊ณต์‚ฐ๋‹น ์„œ๊ธฐ์žฅ์— ์˜ค๋ฅธ ๊ณ ๋ฅด๋ฐ”์ดˆํ”„๋Š” ํŽ˜๋ ˆ์ŠคํŠธ๋กœ์ด์นด(Perestroika, ๊ฐœํ˜)์™€ ๊ธ€๋ผ์Šค๋…ธ์ŠคํŠธ(Glasnost, ๊ฐœ๋ฐฉ)๋ฅผ ์ถ”์ง„ํ•˜์—ฌ ์†Œ๋ จ ๊ตญ๋‚ด์˜ ๊ฐœํ˜๊ณผ ๊ฐœ๋ฐฉ๋ฟ ์•„๋‹ˆ๋ผ, ๋™์œ ๋Ÿฝ์˜ ๋ฏผ์ฃผํ™” ๊ฐœํ˜ ๋“ฑ ์„ธ๊ณ„์งˆ์„œ์—๋„ ํฐ ๋ณ€ํ˜์„ ๊ฐ€์ ธ์™”๋‹ค. 1988๋…„ ์„œ์šธ์˜ฌ๋ฆผํ”ฝ์—๋Š” ์†Œ๋ จ ์„ ์ˆ˜๋‹จ์„ ๋ณด๋‚ด ์—ญ์‚ฌ์ ์ธ ๋™์„œ ํ™”ํ•ด์˜ ๋“œ๋ผ๋งˆ๋ฅผ ์“ฐ๊ฒŒ ๋˜๋Š”๋ฐ ์ด๋กœ์จ 1976๋…„ ๋ชฌํŠธ๋ฆฌ์˜ฌ ์˜ฌ๋ฆผํ”ฝ ์ดํ›„ ์ฒ˜์Œ์œผ๋กœ ๋™์„œ ์ง„์˜์ด ๋ชจ๋‘ ํ•จ๊ป˜ํ•˜๋Š” ํ‰ํ™”์˜ ์˜ฌ๋ฆผํ”ฝ์œผ๋กœ ์ž๋ฆฌ๋งค๊น€ํ•˜๊ฒŒ ๋œ๋‹ค. ์„œ์šธ์˜ฌ๋ฆผํ”ฝ ๋‹ค์Œํ•ด 1989๋…„ 11์›” ๋ฒ ๋ฅผ๋ฆฐ์žฅ๋ฒฝ ๋ถ•๊ดด ๋‹น์‹œ์—” ๋ฌด๋ ฅ ๊ฐœ์ž…์„ ์ž์ œํ•ด 1990๋…„ ๋…์ผ ํ†ต์ผ๊ณผ ๋™์œ ๋Ÿฝ ๊ตญ๊ฐ€๋“ค์˜ ์ฒด์ œ์ „ํ™˜์˜ ๊ธธ์„ ํ„ฐ์ฃผ๊ฒŒ ๋œ๋‹ค. ๊ทธ๋ฆฌ๊ณ  ๊ฐ™์€ํ•ด 12์›” ์กฐ์ง€ HW ๋ถ€์‹œ ๋ฏธ ๋Œ€ํ†ต๋ น๊ณผ ๋ชฐํƒ€์—์„œ ๋งŒ๋‚˜ ์ƒํ˜ธ ์ ๋Œ€ํ–‰์œ„ ์ค‘๋‹จ์„ ์„ ์–ธํ•˜๋ฉฐ ์‚ฌ์‹ค์ƒ์˜ ๋ƒ‰์ „์ข…์‹์„ ์ „ ์„ธ๊ณ„์— ์•Œ๋ฆฌ๊ฒŒ ๋œ๋‹ค. ๊ทธ๋Š” ๋ƒ‰์ „์˜ ํ‰ํ™”์  ์ข…์‹๊ณผ ํ‰ํ™”๋ฅผ ์ง„์ž‘์‹œํ‚จ ๊ณต๋กœ๋กœ 1990๋…„ ๋…ธ๋ฒจํ‰ํ™”์ƒ์„ ๋ฐ›์•˜์œผ๋ฉฐ, 1991๋…„ ๊ณต์‚ฐ๋‹น์„ ํ•ด์ฒดํ•˜์—ฌ ์†Œ๋ จ์˜ ๊ณต์‚ฐ ํ†ต์น˜์‚ฌ์— ๋งˆ์นจํ‘œ๋ฅผ ์ฐ์—ˆ๋‹ค. ๊ทธ๋Š” 1990๋…„ ํ•œ๊ตญ๊ณผ ์†Œ๋ จ์˜ ์ˆ˜๊ต๋ฅผ ์ด๋Œ์—ˆ์œผ๋ฉฐ, ๋…ธํƒœ์šฐ ๋Œ€ํ†ต๋ น์˜ ์ดˆ์ฒญ์œผ๋กœ 1991๋…„ 4์›” ํ•œ๊ตญ(์ œ์ฃผ)์„ ๋ฐฉ๋ฌธํ•œ ์ฒซ ๋ฒˆ์งธ ์†Œ๋ จ์˜ ์ง€๋„์ž์˜€๋‹ค. ๊ณ ๋ฅด๋ฐ”์ดˆํ”„๋Š” ๋…ธ๋ฒจ์ƒ ์ˆ˜์ƒ์— ์ž„ํ•˜์—ฌ โ€œํ‰ํ™”๋Š” ์œ ์‚ฌ์„ฑ์˜ ํ†ตํ•ฉ์ด ์•„๋‹ˆ๋ผ ๋‹ค์–‘์„ฑ์˜ ํ†ตํ•ฉโ€์ด๋ผ๊ณ  ๋งํ–ˆ๋‹ค.2)

๊ฑด์ถ•

ํŽธ์ง€ 03

๋ฏธ์ˆ ๊ฐ€, ์กฐ๊ฐ๊ฐ€ ๋ฌธ์‹ ์„ ๋งํ•˜๋‹ค

๊ธ€. ๊น€์›์‹ ์˜ˆ์ˆ ์‚ฌํ•™์ž, ๊ฑด์ถ•์‚ฌ๊ฐ€, ๋น„ํ‰๊ฐ€

I. ํ‚ค๋ƒ๋ฅด์˜ ๋‚˜๋ผ

์šฐ์—ฐํžˆ ๋ˆˆ์— ๋“ค์–ด์˜จ ํŒŒ์Šค์นผ ํ‚ค๋ƒ๋ฅด(Pascal Quignard)์˜ ์ฑ… ํ•˜๋‚˜. ์•„๋ฆ„๋‹ค์šด ์žฅ์ •. ์‹ฌ์ƒ์น˜ ์•Š์€, ํ•œ ์†์— ๋“ค์–ด์˜ค๋Š” ์ž‘์€ ํŒํ˜•. ์ ์€ ์ชฝ ์ˆ˜์˜ ์–‡์€ ์žฅ์ •. ํ•˜์ง€๋งŒ ์‚ฌ๋ž‘์Šค๋Ÿฐ, ๋‚ด๊ฒ ๋ฐ˜๋“œ์‹œ ์‚ฌ๋ž‘์Šค๋Ÿฌ์›Œ์•ผ๋งŒ ํ• , ์Œ์•… ์ด์•ผ๊ธฐ๊ฐ€ ํ•œ ๊ฐ€๋“ ๋“ค์–ด์žˆ๋‹ค. ๊ทธ๊ฐ„ ํ‚ค๋ƒ๋ฅด๋Š” ๋‚ด๊ฐ€ ๋ฏธ์ฒ˜ ์ฝ์ง€ ๋ชปํ•ด โ€˜ํ˜€๋์— ๋งด๋„๋Š” ๋– ๋„๋Š” ์ด๋ฆ„โ€™, โ€˜๋– ๋„๋Š” ๊ทธ๋ฆผ์ž๋“คโ€™ ์ค‘ ํ•˜๋‚˜๊ฐ€ ์•„๋‹ˆ์—ˆ๋˜๊ฐ€. โ– ๊ธฐ์–ต๊ณผ ๋ง๊ฐ, ๊ทธ๊ฒƒ์€ ์•Ž๊ณผ ๋ชจ๋ฆ„์œผ๋กœ ์ธ์‹๋˜๊ณค ํ•œ๋‹ค. โ– ํ˜€๋์— ์˜ฌ๋ ค์ง€๋Š” ์•„๋ฌด๊ฐœ์˜ ์ด๋ฆ„, ๊ทธ๊ฒƒ์€ ์ธ์ •(่ชๅฎš)์˜ ๊ตญ๊ฒฝ์„ ํ†ต๊ณผํ•˜๋Š”(pass-) ๊ด€๋ฌธ(-port), ์‹ ๋ถ„์ฆ(passport)์ด๋‹ค.

๊ตญ๊ฒฝ ๋Œ€๋ฌธ ๋’ค ํ‚ค๋ƒ๋ฅด ๋‚˜๋ผ์˜ ๊ฑด๋ฌผ ํ•˜๋‚˜1)๋Š” ์ด์ƒํ•˜๋‹ค. ๋Œ, ์žฌ๋ฃŒ, ์š”์†Œ์˜ ๋ฐฐ์น˜๋Š” ์„œ์–‘ ๊ฒƒ์ธ๋ฐ ์ฒ˜๋งˆ ๋ฐ‘์—” ํฌ๋‚˜ ํฐ ๊ณตํฌ(ๆ ฑๅŒ…)๊ฐ€ ๋งŒ๋“ค์–ด์ ธ ๊ตฌ๋ฒ•์ด ๊ธฐ๊ดดํ•˜๋‹ค. ๋ฌด์—‡๋ณด๋‹ค ์™ธ์–‘์ด ๋‚ฏ์„ค๊ณ  ๋ถˆํŽธํ•˜๋‹ค. ์„ค๊ณ„์ž ํ‚ค๋ƒ๋ฅด๋ฅผ ์˜์‹ฌ์ผ€ ํ•œ๋‹ค. ๊ณผ์—ฐ ์ด ์ง‘์˜ ์ž‘๊ฐ€, ๊ฑด์ถ•๊ฐ€๋Š” โ€˜์„ธ์ƒ์˜ ๋ชจ๋“  ์•„์นจโ€™์„ ๋…ธ๋ž˜ํ•  ๋งŒํผ ์˜จ ์„ธ์ƒ์— ์ •ํ†ตํ–ˆ๋˜๊ฐ€? ์ •๊ด€ํ—Œ(้œ่ง€่ป’), ๋˜๋Š” ํ๊ฐ€๋“ (Kew Garden) ํƒ€์›Œ์˜ ๊ฑด์ถ•๊ฐ€, ๊ทธ ๋ˆ„๊ตฐ๊ฐ€๊ฐ€ ์—ฌ๊ธฐ ์ด ๊ฑด๋ฌผ์— ๋Œ€ํ•œ ๋„๋ฐœ์ž, ์••์ œ์  ์ฃผ์ธ์ด๋ผ๋„ ๋˜์—ˆ๋‹จ ๋ง์ธ๊ฐ€? ์ด ์ง‘์— ๋Œ€ํ•œ ๋ถˆ๋งŒ์€ โ€˜ํ˜์˜คโ€™๋ฅผ ๋‚ณ๋Š”๋‹ค. ์ง‘์„ ๊ตฌ์ƒํ•œ ์‚ฌ๋žŒ, ์ง€์€ ์‚ฌ๋žŒ์„ ์ง์ ‘ ์ ‘ํ•˜๊ฒŒ ๋งŒ๋“ ๋‹ค. ๋‹ค์‹œ ๋ˆˆ์„ ๋Œ๋ ค ์ฐฌ์ฐฌํžˆ ํ‚ค๋ƒ๋ฅด ๋‚˜๋ผ๋ฅผ ์‚ดํ”ผ๊ณ  ๊ฑด๋ฌผ ํ•˜๋‚˜ํ•˜๋‚˜ ๋ฐฉ๋ฌธํ•œ๋‹ค. ์ƒˆ๋กœ ๋งˆ์ฃผ์น˜๋Š” ํ‚ค๋ƒ๋ฅด์˜ ๊ฑด๋ฌผ๋“ค์€ ํŒ์—…๋ถ์ด๋‹ค. ๋ฌธ์„ ์—ด์ž๋งˆ์ž ์ˆฒ๊ณผ ๋‚˜๋ฌด, ์šฐ๋ฌผ๊ณผ ๊ฐ•์ด ๋‹ฌ๋ฆฌ๋Š” ๊ธธ์ด ๋‚˜ํƒ€๋‚˜๊ณ , ํ•˜๋Š˜์ด ์—ด๋ ค ํ™ฉ๊ธˆ๋งˆ์ฐจ๊ฐ€ ๋‹ฌ๋ฆฐ๋‹ค. ์†์„ ๋Œ€๋ฉด ์‚ฌ๋ฌผ๋งˆ๋‹ค ์••์ถ•๋œ ์ด์•ผ๊ธฐ๊ฐ€ ํŠ€์–ด๋‚˜์™€ ํŒฝ์ฐฝ๋˜์–ด ์ •ํ™•ํ•˜๊ณ  ๊ตฌ์ฒด์ ์ด์ž ์‚ฌ์‹ค์ ์œผ๋กœ ์ „๊ฐœ๋œ๋‹ค. ํ‚ค๋ƒ๋ฅด ๋‚˜๋ผ, ํ‚ค๋ƒ๋ฅด์˜ ๊ฒŒ์ž„์— ์ฐธ์—ฌํ•˜๋ ค๋ฉด ๊ณ ๋Œ€ ์ด์ง‘ํŠธ์˜ ์‹ ๋“ค๊ณผ ํ•˜๋Š˜, ๊ทธ๋ฆฌ์Šค์˜ ํˆฌ๊ตฌ, ๋ฐฉํŒจ, ๊ฒ€, ๋ฐฐ, ๋›, ๋งˆ์ฐจ, ๋ฅ˜ํŠธ์™€ ์ˆ , ๋ช…๋ถ€(ๅ†ฅๅบœ), ์—์šฐ๋ฆฌ๋””์ฒด์™€ ์•„ํ”„๋กœ๋””ํ…Œ... ์ธ๋„, ์ค‘๊ตญ, ์ผ๋ณธ์˜ ์ข…๊ต ๋ฐ ๋…ธ๋ž˜์™€ ์˜ˆ์ˆ , ๋กœ๋งˆ์ œ๊ตญ๊ณผ ์ค‘์„ธ์‹œ๋Œ€ ์ˆ˜๋„์›, ๊ถ์ •, ๊ทธ๋ฆฌ๊ณ  ์ตœ๊ทผ ์ƒˆ๋กœ ๋ถˆ์–ด๋‹ฅ์นœ ๋ฐ”๋กœํฌ ์Œ์•…๊ณผ ๊ณ ์•…๊ธฐ, ๊ทธ ์†Œ๋ฆฌ, ๋ฐ˜ํ–ฅ, ๊ธฐ๋ฒ•, ๋ชจ๋“  ์Œ์•…์˜ ์˜๋ฏธ์— ์ด๋ฏธ ์ •ํ†ตํ•ด ์žˆ๊ณ , ์‹คํ–‰์— ์˜ฎ๊ธธ ์ˆ˜ ์žˆ๋Š” ์—ฐ์ฃผ์ž๊ฐ€ ๋˜์–ด ์žˆ๋„๋ก ์ดˆ๋Œ€ํ•œ๋‹ค. ๋ฌธ์„ ์—ด๋ฉด ์†Œํฌ๋ผํ…Œ์Šค์™€ ํ”Œ๋ผํ†ค, ์•„๋ฆฌ์Šคํ† ํ…”๋ ˆ์Šค, 1) ํ•„์ž๊ฐ€ ์ตœ์ดˆ๋กœ

๋ฐ์นด๋ฅดํŠธ๋Š” ์Šคํƒ€๋””์›€์˜ ์ค‘์•™์— ์•‰์•„, ๋จผ ๊ณณ์˜ ์‹ฌํŒ์ž, ์—ฌ๋Ÿฌ ๋‹ค์ˆ˜๊ฐ€ ์กด์žฌํ•˜๋Š” ํ…Œ์˜ค๋ฆฌ์•„(theoria) ์ค‘ ํ•œ ๊ธฐ์ค€์ ์„ ์ด๋ฃฐ ๋ฟ์ด๋‹ค. ์—ฌ๊ธฐ์„œ๋Š” ์‹ ํ™”๋ฟ๋งŒ ์•„๋‹ˆ๋ผ, ์•ผ์‚ฌ๊นŒ์ง€๋„ ์—„๋ฐ€ ์ •ํ™•ํ•ด์•ผ ํ•˜๋Š” ํ˜„ํ˜„๋œ ๊ณผ๊ฑฐ์˜ ํ˜„์‹ค ํŒ๋‹จ์ด ๊ฐ€์žฅ ์‹œ๊ธ‰ํ•ด์ง„๋‹ค. ํ‚ค๋ƒ๋ฅด ๋‚˜๋ผ๋ฅผ ์ดํ•ดํ•˜๋Š” ๊ฒƒ, ์•„๋Š” ๊ฒƒ, ๊ฑฐ๊ธฐ ์‚ฌ๋Š” ๊ฒƒ์€ ์‹ฌ๊ฐํ•œ ํ˜„์‹ค์—์„œ์˜ ์• ์ฆ, ์ „ํˆฌ, ์ „์Ÿ, ์ค‘์žฌ, ํ•ด๊ฒฐ์„ ์ƒ๊ฐํ•ด์•ผ ํ•œ๋‹ค. ๊ทธ๊ฒƒ์€ ์‹ ํ™”์˜ ์„ธ๊ณ„์ด์ž ์Œ์•…, ์˜ˆ์ˆ , ์ฒ ํ•™, ์‹ ํ•™, ๋ฌธํ•™... ๋ฌด์—‡๋ณด๋‹ค๋„ ํ˜„์‹ค๋ณด๋‹ค ํ›จ์”ฌ ๋” ์ƒ์ƒํ•˜์—ฌ ๋“œ๋ผ๋งˆํ‹ฑํ•œ, ์ƒ์— ๋Œ€ํ•œ ๊ฐ€์ƒํ˜„์‹ค์ด๋‹ค. ๊ทธ์˜ ์„ธ๊ณ„๋ž€ ์น˜๋ฐ€ํžˆ ์—ฎ์ธ ๊ทธ์˜ ์–ธ์–ด๋“ค์ด ๋‹ด๊ณ  ์žˆ๋Š”, ์—”ํŠธ๋กœํ”ผ์™€ ๋‹น๋Ÿ‰(็•ถ้‡)์ด ์ถฉ๋งŒ ๊ทธ๋“ํ•œ ์ด์ฒด์  ๊ทธ ๋ฌด์—‡์˜ ์—ญ๋Ÿ‰, ๋ฌผ์งˆํ™”๋œ ๋ถ„์ž์™€ ์ปจํ…์ŠคํŠธ์˜ ์ฒดํ—˜์ด๋‹ค. ๊ทธ ๊ฑด๋ฌผ์— ๋“ค์–ด์„  ์ด์ƒ ๋ฐฉ๋ฌธ์ž ์ž์‹ ์€ ๊ฑด์ถ•๊ฐ€๋กœ ํ™”(ๅŒ–)ํ•ด ๊ฑด๋ฌผ์„ ๊ตฌ์ถ•ํ•ด์•ผ๋งŒ ํ•œ๋‹ค.

II. ๋‚˜์˜ ๋‚˜๋ผ

36
๋ถˆ๊ตฌํ•˜๊ณ  ๋‚ด์šฉ์ „๋‹ฌ์— ์‹คํŒจํ•˜๊ณ  ์žˆ๋‹ค๊ณ  ๋‹จ์–ธํ•œ๋‹ค. ๋ฌธํ™”์— ๋Œ€ํ•œ ๊ณต๊ฐ๊ณผ ์ดํ•ด์˜ ์—ญ๋Ÿ‰, ๊ทธ๋ฆฌ๊ณ  ์–ธ์–ด๊ฐ€ ์ง€๋‹ˆ๊ณ  ์žˆ๊ฑฐ๋‚˜
์ ‘ํ•œ ํ‚ค๋ƒ๋ฅด ์ €์ˆ ์˜ ๋ฒˆ์—ญ์„œ ์ค‘ ํ•˜๋‚˜๋Š”, ์›์ „์ด ์ง€๋‹Œ ์‹ฌ์˜คํ•˜๊ณ  ํ›Œ๋ฅญํ•œ ๋‚ด์šฉ์—๋„
์ „๋‹ฌ๋˜๋Š” ์˜๋ฏธ๋ก ์˜ ์ฐจ์›์—์„œ ๊ฝค ์‹คํŒจํ•œ ๊ฒƒ์œผ๋กœ ๋ณด์ธ๋‹ค. (๋Œ€๋‹ค์ˆ˜ ํ‚ค๋ƒ๋ฅด ๋ฒˆ์—ญ์„œ๋Š” ํ ์žก์„ ์ผ์ด ๊ฑฐ์˜ ์—†์Œ์„ ๋ฐํžŒ๋‹ค.)
๋‚˜๋Š” ํ‚ค๋ƒ๋ฅด์˜ ๋ฌธํ™”๊ถŒ์— ์†ํ•œ ํ•™๊ต์—์„œ ๋’ค๋Šฆ์€ ๊ณต๋ถ€๋ฅผ ๋ณธ๊ฒฉ์ ์œผ๋กœ ์‹œ์ž‘ํ–ˆ๋‹ค. ์ง€๋„๊ต์ˆ˜์™€ ์ฒซ ๋งŒ๋‚จ ํ›„, ์ •์‹์œผ๋กœ ์ง€๋„๊ต์ˆ˜ ์‹ ์ฒญ ๋ฐ ํ•™์‚ฌํ–‰์ • ์ผ์ฒด๋ฅผ ๋ช…ํ™•ํžˆ ์ •ํ•˜๊ธฐ ์œ„ํ•ด ๋‹ค์‹œ ๋˜ ๋งŒ๋‚จ์„ ์œ„ํ•œ ํŽธ์ง€๋ฅผ ์ž‘์„ฑํ–ˆ๋‹ค. ๊ต์ •์ž๋กœ๋ถ€ํ„ฐ ๋„˜๊ฒจ๋ฐ›์€ ๊ต์ •๋ฌธ์—” โ€˜X ๊ฑด์œผ๋กœ ์–ธ์ œ ๋งŒ๋‚˜ ๋ต™๊ธธ ์ฒญํ•ฉ๋‹ˆ๋‹คโ€™๋ผ๋Š” ๋ณธ๋ฌธ ๋‘ ์ค„๋ฟ์ด์—ˆ๋‹ค. ๊ต์ •์ž์˜ ๋ฐฉ๋ฒ•๋ก , ๋…ผ๋ฆฌ์ „๊ฐœ์˜ ์ฒ ์น™์€, ์“ธ๋ฐ์—†๋Š” ๊ฒƒ, ์ค‘๋ณต๋˜๊ฑฐ๋‚˜ ์ค‘์ฒฉ๋˜๋Š” ๊ฒƒ์€ ์ œ์™ธํ•˜๊ณ  ํ•„์š”ํ•œ ๊ฒƒ, ์—์„ผ์Šค๋งŒ ์–ธ๊ธ‰ํ•ด์•ผํ•œ๋‹ค๋Š” ๊ฒƒ์ด์—ˆ๋‹ค. ๊ทธ๋Š” ๋ฐ์นด๋ฅดํŠธ์ฃผ์˜์‹ ์ƒํ™œ, ๊ทธ๋ฆฌ๊ณ  ์ˆœ์ •(็ด”ๆ™ถ)ํ•จ์œผ๋กœ ์•„๋ฆ„๋‹ต๊ฒŒ ๋น„์ณ์ง€๋Š” ์ถ”์ƒํ™”์˜ ์‹ค์ฒœ์ž์˜€๋‹ค. ํ•™๊ต์—์„œ ๋ณธ๊ฒฉ์ ์ธ ๊ณผ์ •์ด ์‹œ์ž‘๋จ๊ณผ ์•„์šธ๋Ÿฌ ๊ทธ์˜ ์ถฉ๊ณ ๋ฅผ ์กด์ค‘ํ•˜์—ฌ ๋Œ€์ฑ…์„ ๋งˆ๋ จํ•  ์ˆ˜๋ฐ–์— ์—†๋Š”, ํ”ผํ•  ๊ธธ ์—†๋Š” ์ƒํ™ฉ์œผ๋กœ ๋ชฐ๋ฆฌ๊ฒŒ ๋˜์—ˆ๋‹ค. ๋ฐค ์ƒˆ์›Œ ๋งˆ๋ จํ•˜์—ฌ ์ œ์ถœํ•œ ๋ฆฌํฌํŠธ, ๋…ผ๋ฌธ์€ ์—ฌ์ง€์—†์ด ํ•œ์ธต ๋” ์ƒ๋žต์„ ์š”์ฒญํ•˜๋Š” ๋ถ‰์€ ์ค„๊ณผ ๊ต์ฒด๋˜๊ธธ ์ œ์•ˆํ•˜๋Š” ํ•จ์ถ•๋œ ๋‹จ์–ด๋“ค๋กœ ๊ฐ€๋“ ์ฐจ ๋˜๋Œ์•„์™”๋‹ค. ์ƒˆ๋กœ์ด ๋“ฑ์žฅํ•œ ์–ด๋–ค ๊ฒฝํ–ฅ์— ์˜ํ•˜๋ฉด ๊ธ€, ๋…ผ๋ฌธ๋งˆ๋‹ค ๋˜๋ฐ•๋˜๋ฐ• ๊ฒฐ๋ก ์„ ์ž‘์„ฑํ•˜์ง€ ์•Š์•„๋„ ๋˜๋ฆฌ๋ผ๋Š” ์ง€๋„๊ต์ˆ˜๋‹˜์˜ ์กฐ์–ธ๋„ ์–ป์—ˆ๋‹ค. ์ด๋ฏธ ๋ณธ๋ฌธ์—์„œ ์ถฉ๋ถ„ํžˆ ์–˜๊ธฐํ–ˆ์œผ๋‹ˆ ๊ฒฐ๋ก  ๋ถ€๋ถ„์„ ๋”ํ•ด ์ค‘์–ธ๋ถ€์–ธํ•  ํ•„์š”๊ฐ€ ์žˆ๊ฒ ๋ƒ๊ณ  ์˜คํžˆ๋ ค ๋‚ด๊ฒŒ ๋ฌผ์—ˆ๋‹ค. ๊ทธ ์—ญ์‹œ ์ถ”์ƒ์ด ์ผ์ƒํ™”๋˜๊ณ  ๋ฏธ๋‹ˆ๋ฉ€๋ฆฌ์ฆ˜์ด ์ต์ˆ™ํ•œ ๊ณณ์—์„œ์˜ ํ˜•์šฉ ๋ชปํ•  ๋งŒํผ ํ•œ์—†๋Š” ์ถฉ๊ฒฉ์ด์—ˆ๋‹ค. ๋ฏธ์ˆ ์‚ฌ ๊ฐ•์˜ ๋‚ด์šฉ์ด ๊ทผํ˜„๋Œ€, ๋ชจ๋”๋‹ˆ์ฆ˜์œผ๋กœ ์ง„ํ–‰๋˜์–ด ๋‚ด๋ ค์˜ฌ์ˆ˜๋ก ์ถ”์ƒ, ํ™˜์›, ์ƒ๋žต์— ๋Œ€ํ•œ ํ™”๋‘๋Š” ์ ์  ๋” ๊ฐ€์žฅ ๋น„์ค‘์ด ํฐ ์ฃผ์ œ ์ค‘ ํ•˜๋‚˜๊ฐ€ ๋˜์—ˆ๋‹ค. ๋ ˆ์ด๋„ˆ ๋ฐดํ—˜(Reyner Banham)์€ ๋ฐ ์Šคํ‹ธ(De Stijl)์˜ ์ถ”์ƒ์šด๋™์€ ๋น„๊ต์  ์ „ํ™”(ๆˆฐ็ฆ)๋ฅผ ํ”ผํ•  ์ˆ˜ ์žˆ์—ˆ๋˜ ๋„ค๋œ๋ž€๋“œ์—์„œ ์ผ์–ด๋‚œ ๊ฒƒ์ผ ๋ฟ, ์ „ํ™”์˜ ํ”ผํ•ด๊ฐ€ ์—†์—ˆ๋‹ค๋ฉด ์œ ๋Ÿฝ ๊ทธ ์–ด๋А ๊ณณ์—์„œ๋“  ๋ฐ˜๋“œ์‹œ ์ผ์–ด๋‚˜๊ณ ๋„ ๋‚จ์•˜์„ ๊ฒƒ์ด๋ผ๋Š” ๋‚ด์šฉ์„ ์–ธ๊ธ‰ํ•˜์˜€๋‹ค. 20๋Œ€ ์ค‘ํ›„๋ฐ˜ ํ•œ๊ตญ์˜ ๋ฏธํ•™์ž์˜
ํ‚ค๋ƒ๋ฅด์˜ ๋‚˜๋ผ, ๋‚˜์˜ ๋‚˜๋ผ, ์šฐ๋ฆฌ๋‚˜๋ผ

๋ฏธ๊ตญ์˜ ๋ฐฑ์•…๊ด€

๋Œ€ํ†ต๋ น์˜ โ€˜ํŒŒ์›Œโ€™ ๊ณต๊ฐ„

๊ธ€, ์ž๋ฃŒ. ๊น€์ •๋™ ์šฐ๋ฆฌ๊ทผ๋Œ€๊ฑด์ถ•์—ฐ๊ตฌ์†Œ ๋Œ€ํ‘œ, ๊ฑด์ถ•์‚ฌ๊ฐ€

์ด์Šน๋งŒ(1875-1965) ๋Œ€ํ†ต๋ น์€ 1948๋…„

์šฐ๋ฆฌ ์ •๋ถ€ ์ˆ˜๋ฆฝ๊ณผ ํ•จ๊ป˜, ์‚ฌ์ €(็ง้‚ธ) ์ดํ™”์žฅ(ๆขจ่Šฑ่ŽŠ)์„ ๋– ๋‚˜ ๊ฒฝ๋ณต๊ถ(ๆ™ฏ็ฆๅฎฎ) ๊ฒฝ๋‚ด ๊ฒฝ๋ฌด๋Œ€(ๆ™ฏๆญฆๅฐ)๋กœ ๋“ค์–ด๊ฐ”๋‹ค. ๊ทธ๊ณณ์€ ์กฐ์„ ์กฐ์™€ ์ผ์ œ ๊ทธ๋ฆฌ๊ณ  ๋ฏธ๊ตฐ์ •๊ณผ ๊ด€๋ จ๋œ ๊ณณ์ด๋‹ค. ์ด์Šน๋งŒ์€

์–‘๋…•๋Œ€๊ตฐ 16๋Œ€์†์ด๋ผ ํ•˜๋ฉฐ ๊ทธ๋Ÿฐ ๊ฒฐ์ •์„ ๋‚ด๋ฆฐ ๊ฒƒ์ด๋‹ค. ๊ทธ ์ง‘์€ 1939๋…„ ์ง€์–ด์ง„ ์กฐ์„  ์ด๋… ๊ด€์ €์˜€๋‹ค. ๊ฒฝ๋ฌด๋Œ€๋ผ๋Š” ์ด๋ฆ„์€ ๊ทธ ์ž๋ฆฌ์— ์žˆ๋˜ ์—ฐ๋ฌด์žฅ ์œต๋ฌด๋‹น(้š†ๆญฆๅ ‚)์˜ ์ด๋ฆ„์—์„œ ๋”ด ๊ฒƒ์ด๋‹ค. ์–ด์จŒ๋“  ์ด์Šน๋งŒ์˜ ์ž˜๋ชป๋œ ์„ ํƒ์€ ์ดํ›„๋กœ ์˜ค๋ž˜ ๊ฐ”๋‹ค. ๋…ผ๋ž€์€ ์ด์–ด์ง€๊ณ  ์žˆ๋Š” ๊ฒƒ์ด๋‹ค. ์ง€๊ธˆ์˜ ๋Œ€ํ†ต๋ น์€ ๊ทธ๊ณณ์„ ๋– ๋‚ฌ๋‹ค. ๊ตฌ์ค‘๊ถ๊ถ์˜ ์ด๋ฏธ์ง€๊ฐ€ ๋ถ€๋‹ด๋˜์—ˆ๋˜ ๊ฒƒ์ด๋‹ค. ์–ด๋–ค ๋ฉด์—์„œ ์ž˜ ๋‚˜์™”๋‹ค๊ณ  ์ƒ๊ฐ๋œ๋‹ค. ๊ทธ๋Ÿฌ๋‚˜ ๋„ˆ๋ฌด๋‚˜ ๋น ๋ฅธ ์กธ์† ์„ ํƒ์œผ๋กœ ๋…ผ๋ž€์ด ์ด์–ด์ง€๊ณ  ์žˆ๋‹ค. ์šฉ์‚ฐ ๊ตญ๋ฐฉ๋ถ€ ์ฒญ์‚ฌ๋ฅผ ์„ ํƒํ•˜๋‹ค ๋ณด๋‹ˆ ๊ทธ๊ณณ์€ ๋‹น์‚ฌ์ž๋“ค๋„ ํก์กฑํ•œ ๊ณณ์ด ์•„๋‹ˆ์—ˆ๋‹ค. ๊ฐ€์„๋ถ€ํ„ฐ๋Š” ์šฉ์‚ฐ์—์„œ ํ•œ๋‚จ๋™ ์ „ ์™ธ๋ฌด๋ถ€์žฅ๊ด€ ๊ณต๊ด€์œผ๋กœ ์ถœํ‡ด๊ทผํ•˜๋Š” ๋Œ€ํ†ต๋ น์„ ๋ณด๊ฒŒ ๋œ๋‹ค. ์šฉ์‚ฐ ๊ตฐ ์‹œ์„ค, ์™ธ๋ฌด๋ถ€ ๋“ฑ ์—ฌ๋Ÿฌ ์ด๋ฏธ์ง€๊ฐ€ ๊ฒน์ณ ๋“  ๊ฒƒ์ด๋‹ค. ์žฅ์†Œ๋ฟ๋งŒ ์•„๋‹ˆ๋ผ ๊ฑด๋ฌผ๋“ค๋„ ๋ชป ๋ณด๋˜ ๊ฑด๋ฌผ, ๋‚จ์˜ ๊ฑด๋ฌผ๊ฐ™์ด ๋ณด์˜€๋‹ค. ๋‚˜๋ผ์˜ ์ƒ์ง•๊ณต๊ฐ„์ด๊ธฐ๋„ ํ•œ ๊ณณ์ธ๋ฐโ€ฆ. ์‚ฌ์‹ค ๋‹ค๋ฅธ ๋‚˜๋ผ์—์„œ ๋ณผ ๋•Œ, ์šฐ๋ฆฌ ๋Œ€ํ†ต๋ น ๊ด€์ € ์ด๋ฆ„์ด ๊ฒฝ๋ฌด๋Œ€๊ฑด ์ฒญ์™€๋Œ€๊ฑด ์•„๋ฌด ๊ด€๊ณ„๋„ ์—†์„ ๊ฒƒ์ด๋‹ค. ๋ฐœ์Œํ•˜๊ธฐ๋„ ํž˜๋“ค์–ด ๊ทธ๋ƒฅ (Korea)

President House๋ฉด ์ถฉ๋ถ„ํ–ˆ์—ˆ๋‹ค. ์šฐ๋ฆฌ๋Š” ๊ตณ์ด ์™ธ์‹  ๋ณด๋„์šฉ ์˜์–ด๋ช…, Blue House ํ˜น์€ Cheong Wa Dae๋ž€ ์ด๋ฆ„์„ ๋งŒ๋“ค์–ด ๋†“์•˜๋‹ค. ๊ทธ๋Ÿฐ๋ฐ ์ด์ œ โ€˜์šฉ์‚ฐ๋Œ€ํ†ต๋ น์‹คโ€™์ด๋ผ ํ•œ๋‹ค. Yongsan President House์ธ๋ฐ, ์‚ฌ์‹ค ๊ทธ ๊ฑด๋ฌผ์€ ํ•˜์šฐ์Šค๊ฐ€ ์•„๋‹ˆ๋ผ ๋นŒ๋”ฉ์ด๋‹ค. President Building์ด๋‹ค. ๋น„๋ก€๊ฐ€ ์–ด์„คํ”ˆ ๊ทธ ๊ฒฉ์žํ˜• ๊ฑด๋ฌผ์€ ์•„๋ฌด๋ฆฌ ํœ˜์žฅ์œผ๋กœ ๊ฐ€๋ ค๋„ ์—ญ์‹œ๋‹ค. ์™ธ๊ตญ์—์„œ ๋ณผ ๋•Œ ๋‚˜๋ผ๊ฐ€ ๋ฐ”๋€ ๊ฒƒ ๊ฐ™์€ ๊ธฐ๋ถ„์ด ๋“ค ๊ฒƒ์ด๋‹ค.1) 1) ์„œ์šธ ์ข…๋กœ๊ตฌ ์ฒญ์™€๋Œ€๋กœ1, ์ด์ œ ๋™๋„ค ์ฃผ์†Œ๋„ ๋ฐ”๊ฟ”์•ผ ํ•œ๋‹ค.

์ƒˆ ๋Œ€ํ†ต๋ น์˜ ๊ฒฐ์ • ์ดํ›„ ๋ˆ„๊ตฌ๋“ ์ง€ ํ•œ๋งˆ๋””์”ฉ

ํ•œ๋‹ค. ์–ด๋А ์™ธ๊ตญ์ธ ๊ฑด์ถ•๊ฐ€๋„ ํ•œ๋งˆ๋”” ๊ฑฐ๋“ ๋‹ค. ์—‰๋šฑํ•œ ๋ฐ๋‹ค ํ•€ํŠธ๋„ ๋งž์ง€ ์•Š๋Š” ๋ง์„ ํ–ˆ๋‹ค. ๋’ท๋ถ์น˜๋Š” ํ•œ๊ตญ์ธ๋“ค๋„ ๋งˆ์ฐฌ๊ฐ€์ง€์ด๋‹ค. ์ฒญ์™€๋Œ€๊ฐ€

์ค‘๊ตญ โ€˜๊ถ(ๅฎฎ)โ€™์„ ์ž˜๋ชป ๋ชจ๋ฐฉํ•œ ํ˜•ํƒœ๋ผ๊ณ  ํ–ˆ๋‹ค.2)

๋ฏธ๊ตญ์— ์žˆ๋Š” ์ง€์ธ์ด ์ด์ œ ํ•œ๊ตญ ๋‰ด์Šค์˜ ๋กœ๊ณ ์™€ ์‚ฌ์ง„์ด ๋ฐ”๋€Œ์—ˆ๋‹ค๊ณ  ํ–ˆ๋‹ค. ๊ทธ๋Ÿฐ๋ฐ ๊ทธ ๊ฑด๋ฌผ์ด ์ข€ ์–ต์ง€์ธ ๋А๋‚Œ์ด๋ผ๊ณ  ๊ฒฉ์ •์„ ํ† ํ–ˆ๋‹ค. ๊ทธ๋™์•ˆ ๋ฌด์˜์‹ ์ค‘์— ๋ณธ ์ฒญ์™€๋Œ€ ํด๋กœ์ฆˆ์—… ์‚ฌ์ง„์ด

์•„๋“ํ•˜๋‹จ๋‹ค. ๋‹ค๋ฅธ ๋‚˜๋ผ ์‚ฌ๋žŒ๋“ค์€ ํ•œ๊ตญ์˜ ๋Œ€ํ†ต๋ น์ด ์–ด๋””์„œ ๋ญ˜ ํ•˜๋Š”์ง€ ๋ณ„ ๊ด€์‹ฌ ์—†์„ ๊ฒƒ์ด๋‹ค. ๋ช‡ ์‚ฌ๋žŒ ๊ด€๊ณ„์ž ์ด์™ธ์—๋Š”โ€ฆ. ์ง€๊ธˆ ๋‚˜๋„ ๋˜ํ•œ ๊ฑฑ์ •์ด๋‹ค. 5๋…„ ํ›„ ๋‹ค์Œ ๋Œ€ํ†ต๋ น ๋‹น์„ ์ž๊ฐ€ ์šฉ์‚ฐ์—๋Š” ์ ˆ๋Œ€ ์•ˆ ๋“ค์–ด๊ฐ€๊ฒ ๋‹ค๊ณ  ํ•˜๋ฉด?โ€ฆ. ์–ด๋–ป๊ฒŒ ํ•˜๋‚˜โ€ฆ. ๋ฐ€์–ด ๋„ฃ๋Š” ๋ฒ•์„ ๋งŒ๋“ค์–ด์•ผ ํ•˜๋‚˜. ๊ฐํžˆ ๋Œ€ํ†ต๋ น์—๊ฒŒ ์˜๊ฒฌ์„ ๋งํ•  ํ•ต๊ด€(ๆ ธ้—œ)์ด ๋ˆ„๊ตด๊นŒโ€ฆ? ๊ตญ๊ฐ€์—์„œ ๋งŒ๋“  ๊ฑด์ถ•์ •์ฑ…์œ„๋ผ๋Š” ๊ฒƒ๋„ ์žˆ์ง€ ์•Š์€๊ฐ€. ์ž˜ ๋ฆฌ๋“œํ•ด์„œ ์ข€ ๊ฑธ ๋งž๋Š” ๊ฑด๋ฌผ์„ ์ง€์—ˆ์œผ๋ฉด ํ•œ๋‹ค. ์œ„์น˜๋„ ๊ฑด๋ฌผ ์Šคํƒ€์ผ๋„ ์ƒ๊ฐํ•ด ๊ฐ€๋ฉด์„œโ€ฆ. ์ตœ๊ณ ์˜ ์„ค๊ณ„๊ฒฝ๊ธฐ๊ฐ€

๋  ์ˆ˜ ์žˆ์ง€ ์•Š์„๊นŒโ€ฆ.

๋ฏธ๊ตญ์˜ ๋ฐฑ์•…๊ด€์€ ์ข€ ๋‹ค๋ฅด๋‹ค. ์šฐ๋ฆฌ๊ฐ€ ํƒœ์–ด๋‚˜์„œ ๋ณธ ๋ฏธ๊ตญ ๋Œ€ํ†ต๋ น ๊ด€์ € ๊ทธ๋Œ€๋กœ์ด๋‹ค. ๋ฏธ๊ตญ์˜ ํ•ต ๋„์‹œ๋Š” ์›Œ์‹ฑํ„ด์‹œ(Washington, DC)์ด๊ณ  ์—ฌ์ „ํžˆ โ€˜๋ฏธ๊ตญ ๋ถˆํŒจ(ไธ่ฆ‡)โ€™์˜ ์ƒ์ง•์ธ ๊ณณ์ด๋‹ค.(์žฌํ‚ท1)

๋ฏธ๊ตญ ๋Œ€ํ†ต๋ น ๊ด€์ €(๋ฐฑ์•…๊ด€) ๊ฑด๋ฌผ์€ 1792๋…„ ์กฐ์ง€ ์›Œ์‹ฑํ„ด์— ์˜ํ•ด ์„ค๊ณ„๊ฒฝ๊ธฐ์— ๋ถ™์—ฌ์กŒ์—ˆ๋Š”๋ฐ ๊ทธ๋•Œ ํ† ๋จธ์Šค ์ œํผ์Šจ(Thomas Jefferson)๋„ ์ต๋ช…์œผ๋กœ

์‘๋ชจํ–ˆ์—ˆ๋‹ค. ๊ฒฐ๊ณผ๋Š” ๋‚™์„ ์ด์—ˆ๋‹ค. ์ œ์ž„์Šค ํ˜ธ๋ฐ˜(James Hoban)์˜ ์•ˆ์ด ์ฑ„ํƒ๋˜์—ˆ๋‹ค. ๊ทธ๋Š” ์•„์ผ๋žœ๋“œ๊ณ„ ๋ฏธ๊ตญ์ธ ๊ฑด์ถ•๊ฐ€์˜€๋‹ค. ๊ฑด์ถ• ๋‹ด๋‹น์ž๋Š” ํ”„๋ž‘์Šค์ธ ๋ž‘ํŒก์ด ํ•ด์ž„๋œ ์ž๋ฆฌ์— 2) ํ”„๋ž‘์Šค์ธ ๊ธฐ ์†Œ๋ฅด๋ง. 2022๋…„ 8์›” 25์ผ, ํ•œ๊ตญ์ด๋ฏธ์ง€์ปค๋ฎค๋‹ˆ์ผ€์ด์…˜์—ฐ๊ตฌ์›(CICI)์ด ๊ทธ๋žœ๋“œํ•˜์–ํŠธ์„œ์šธ์—์„œ ๊ฐœ์ตœํ•œ '๋ฌธํ™”์†Œํ†ตํฌ๋Ÿผ(CCF)'์—์„œ ๋ฐœํ‘œํ•œ ๋‚ด์šฉ ์ค‘ ๋ณด๋„๋œ ์ž๋ฃŒ์ด๋‹ค.

์ด์ œ ์˜๊ตญ์ธ์ด ์ž„๋ช…๋˜์—ˆ๋‹ค. 1792๋…„ ์˜๊ตญ์ธ ๋ผํŠธ๋กœ๋ธŒ(Benjamin Henry Latrobe)๊ฐ€ ๋ฏธ๊ตญ ๊ณต๊ณต๊ฑด๋ฌผ ๋‹ด๋‹น๊ด€์ด ๋˜์—ˆ๋˜ ๊ฒƒ์ด๋‹ค. ๋ผํŠธ๋กœ๋ธŒ๋Š” ๊ทธ ์ผ๋กœ ์ธํ•ด 1796๋…„ ๋ฏธ๊ตญ์— ์ด๋ฏผ ์™”๋‹ค. ๊ทธ๋Š” ๋ฐฑ์•…๊ด€ ๊ฑด์„ค ์ฑ…์ž„์ž๊ฐ€ ๋˜์—ˆ๋‹ค. 1800๋…„ ๋ฏธ์™„์„ฑ์ธ ์ฑ„๋กœ ์ฒ˜์Œ ์ž…์ฃผํ•œ ๋Œ€ํ†ต๋ น์€ 2๋Œ€ ์กด ์• ๋ค์Šค์˜€๋‹ค. ์›Œ์‹ฑํ„ด์‹œ์˜ ์‹œ์ž‘์€ ๋”ฐ๋ผ์„œ 1800๋…„๋ถ€ํ„ฐ์˜€๋‹ค. 1812๋…„ ๋ฏธ๊ตญ๊ณผ ์˜๊ตญ์˜ ์ „์Ÿ ์ฆ‰, ๋ฏธ์˜์ „์Ÿ์บ๋‚˜๋‹ค์—์„œ๋Š” ๋ฏธ์นด์ „์Ÿ-๋•Œ, ์˜๊ตญ๊ตฐ์€ ์›Œ์‹ฑํ„ด์‹œ๋ฅผ ๊ณต๊ฒฉ, ๊ทธ ๊ฑฐ๋ฆฌ์˜ ๊ฑด๋ฌผ๋“ค์„ ๋ถˆ์‚ด๋ž๋‹ค. 1814๋…„ 8์›” ๋ฐฑ์•…๊ด€๋„ ๋ถˆํƒ”๋‹ค. 4๋Œ€ ๋ฉ”๋””์Šจ ๋Œ€ํ†ต๋ น ์‹œ์ ˆ์ด์—ˆ๋‹ค. ์ดํ›„ ๋Œ์•„์˜จ ๋Œ€ํ†ต๋ น์€ ๋ถˆํƒ„ โ€˜๊ถ์ „โ€™์„ ์ˆ˜๋ฆฌ, ํฐ์ƒ‰์„ ์น ํ–ˆ๋‹ค. ๊ทธ๊ฒƒ๋„ ์ œ์ž„์Šค ํ˜ธ๋ฐ˜์ด ๋งก์•„ ํ–ˆ๋‹ค. ์›ฌ๋งŒํ•˜๋ฉด ์ฒ ๊ฑฐํ•˜๊ณ  ์ƒˆ๋กœ ์ง€์„ ์ˆ˜๋„ ์žˆ์—ˆ๋Š”๋ฐโ€ฆ. ๊ทธ๊ฒƒ๋„ ์—ญ์‚ฌ์ด๊ธฐ ๋•Œ๋ฌธ์—- 1819๋…„๋ถ€ํ„ฐ ์ด ๊ฑด๋ฌผ์€ ์ž์—ฐ์Šค๋Ÿฝ๊ฒŒ โ€˜ํ™”์ดํŠธ ํ•˜์šฐ์Šค(White House)โ€™๋ผ ๋ถˆ๋ ค ์ง€๊ฒŒ ๋˜์—ˆ๋‹ค. ์•„์‹œ์•„์—์„œ๋Š” โ€˜็™ฝๅ Š้คจโ€™์ด๋ผ ์ผ๋‹ค. ํ™”์ดํŠธ ํ•˜์šฐ์Šค๋ž€ ์ด๋ฆ„์€ ์˜๊ตญ ๋Ÿฐ๋˜์˜ ์˜› ๊ถ์ „, ํ™”์ดํŠธํ™€(White Hall)์—์„œ ๋”ฐ์˜จ ๊ฒƒ์ด๋‹ค. ์œ ๊ธธ์ค€์€ ใ€Ž์„œ์œ ๊ฒฌ๋ฌธใ€(1895๋…„)์—์„œ ์ด ๋ฐฑ์•…๊ด€์„ ๋ณด๊ณ , โ€œ๊ฑด์ถ• ์ž์žฌ๋Š” ์ˆœ์ „ํžˆ ํฐ ๋Œ๋งŒ ์‚ฌ์šฉํ•˜์˜€๋‹ค. ๋„ˆ๋น„๋Š” 170์ฒ™์ด๊ณ , ๊ธธ์ด๋Š” 86์ฒ™์ด๋ฉฐ, ๋†’์ด๋Š” 3์ธต์ด๋‹ค. ์žฌ๋ฌด์„ฑ(ๆˆถ้ƒจ)ยท๊ตญ๋ฐฉ์„ฑ(ๅ…ต้ƒจ)ยท๊ตญ๋ฌด์„ฑ(ๅœ‹ๅ‹™้ƒจ)์˜ ์‚ฌ์ด์— ์ž๋ฆฌ ์žก์•˜๋‹ค. ๊ด€์ €์˜ ๋™๋ถ์ชฝ ์–ธ๋•์„ ๋‘˜๋Ÿฌ ๋™์ชฝ๊ณผ ๋‚จ์ชฝ์— ์ฒ ์ฑ…์œผ๋กœ ๋ฌธ์„ ์„ธ์› ๊ณ , ๊ทธ ์„œ์ชฝ์—๋Š” ๋„“์€ ์ •์›์„ ๋งŒ๋“ค์–ด ๊ฝƒ๊ณผ ๋‚˜๋ฌด๋ฅผ ์‹ฌ์—ˆ์œผ๋ฉฐ, ์—ฐ๋ชป์„ ํŒŒ๊ณ  ๋‘˜๋ ˆ์— ์˜์ž๋ฅผ ์„ค์น˜ํ•˜์˜€๋‹ค. ๋Œ€ํ†ต๋ น์˜ ๊ด€์ €๋ผ๊ณ  ํ•˜๋”๋ผ๋„ ๊ฒฝ๋น„ํ•˜๋Š” ์‚ฌ๋žŒ์„ ๋‘์ง€ ์•Š๋Š”๋‹ค.โ€

38
๊น€์ •๋™ ๊ต์ˆ˜์˜ ๋ผ์ด๋ธŒ๋Ÿฌ๋ฆฌ
39 ์žฌํ‚ท1. ํƒ€์ดํ‹€์€ โ€™๋ฏธ๊ตญ์€ ์•„๋ฆ„๋‹ต๋‹คโ€˜์ด๋‹ค, LP ์ œ์ž‘์ž๋Š” ์ƒ์ง•๋ฌผ ์ฐพ๊ธฐ์— ๊ณ ์‹ฌํ–ˆ์„ ๊ฒƒ ๊ฐ™๋‹ค. ์ˆจ์€๊ทธ๋ฆผ์ฐพ๊ธฐ ์ˆ™์ œ ๊ฐ™๋‹ค. ์ œ์ผ ์•„๋ž˜ ๋ฐฑ์•…๊ด€ ๊ฑด๋ฌผ์ด ๋ถˆํƒ€๊ณ  ์žˆ๋‹ค. ๋‚จ์ž๋“ค๋กœ๋งŒ ์ด๋ค„์ง„ ์ €๋‹ˆ ๋งจ ์‹ฑ์–ด์Šค(The Johnny Mann Singers)๊ฐ€ ๋…ธ๋ž˜ํ•˜๊ณ  ์žˆ๋‹ค. ์ด ํŒ์€ ๋‰ด์š• ์—ฌํ–‰ ์ค‘ ๋’ท๊ณจ๋ชฉ ๊ณ ๋ฌผ์ƒ์—์„œ ์‚ฐ ๊ฒƒ์ด๋‹ค. ์ •๋ง ๋ฏธ๊ตญ์ ์ธ ํŒ์ด๋‹ค. 1 ๋ ˆ์ฝ”๋“œ ์žฌํ‚ท์—์„œ ์Œ์•…๊ณผ ๊ฑด์ถ• ์ฝ๊ธฐ 08

๊ณ  ํ•˜์˜€๋‹ค.

์šฐ๋ฆฌ์—๊ฒŒ๋Š” ๋ฐฑ์•…๊ด€์— ๋Œ€ํ•œ ๋˜ ํ•˜๋‚˜์˜

๊ธฐ๋ก์ด ์žˆ๋‹ค. ๋ฏผ์˜์ต์€ ๊ท€๊ตญํ•˜๋Š” ๊ธธ์—

๋Œ€ํ†ต๋ น๊ด€ ์ฆ‰, ๋ฐฑ์•…๊ด€์„ ๋ฐฉ๋ฌธํ•œ๋‹ค. ๋ฏผ์˜์ต์€ ๊ณ ์ข…์—๊ฒŒ ๋ณต๋ช…ํ•˜๋ฉฐ ๋ฐฑ์•…๊ด€์— ๋Œ€ํ•ด

์„ค๋ช…ํ•œ๋‹ค(ใ€Ž์Šน์ •์›์ผ๊ธฐใ€, 1884.5.9.).

โ€œ๊ณ ์ข…; ๋ฏธ๊ตญ์˜ ๊ถ๊ถ ์ œ๋„๊ฐ€ ์–ด๋– ํ•˜๋˜๊ฐ€. ๋ฏผ์˜์ต; ๊ถ๊ถ์€ ๋งค์šฐ ๊ฒ€์†Œํ•˜๊ณ  ๊ทœ๋ชจ๊ฐ€ ์ž‘์œผ๋ฉฐ, ์˜คํžˆ๋ ค ์ƒ๋ฏผ(ๅ•†ๆฐ‘)์˜ ์ง‘๋งŒ๋„ ๋ชปํ•ฉ๋‹ˆ๋‹ค. ๋ฏธ๊ตญ๋ฟ๋งŒ ์•„๋‹ˆ๋ผ, ๊ฐ๊ตญ์ด ๋‹ค ๊ทธ๋ ‡์Šต๋‹ˆ๋‹ค. ๊ถ๊ถ์˜

๊ทœ๋ชจ๊ฐ€ ๊ฒ€์†Œํ•˜๋‹ค๊ณ  ๋งํ•œ ๊ฒƒ์€ ์œ ๋Ÿฝ ๊ฐ๊ตญ์˜ ์žฅ๋ ค(ๅฃฏ้บ—)ํ•œ ๊ฒƒ๊ณผ ๋น„๊ตํ•ด์„œ ์ด๋ฅธ ๋ง์ด๊ณ , ์•„์‹œ์•„ ์ œ๊ตญ๊ณผ ๋น„๊ตํ•ด์„œ ์ด๋ฅธ ๋ง์€ ์•„๋‹™๋‹ˆ๋‹ค.โ€

๋‹น์‹œ ์šฐ๋ฆฌ์˜ ๋ˆˆ์—๋„ ๋ฐฑ์•…๊ด€์€ ๋†€๋ผ์šด ๊ทœ๋ชจ๋กœ

๋ณด์ด์ง€ ์•Š์•˜๋˜ ๋ชจ์–‘์ด๋‹ค.(์žฌํ‚ท2)

1976๋…„ ๋ฏธ๊ตญ์€ ๊ฐœ๊ตญ 200์ฃผ๋…„์„ ๋งž์•„ ๊ตญ๊ฐ€์ 

์ž”์น˜๊ฐ€ ๋Œ€๋‹จํ–ˆ์—ˆ๋‹ค. ๋ฐ”์ด์„ผํ…Œ๋‹ˆ์–ผ(American Revolution Bicentennial 1776-1976)ํ–‰์‚ฌ๋ฅผ ์šฐ๋ฆฌ๋Š” ๋ฉ€๋ฆฌ์„œ ๊ตฌ๊ฒฝ๋งŒ ํ–ˆ๋‹ค. ๊ธฐ๊ป ํ•˜๋Š” ๊ฒƒ์ด

โ€œ200๋…„๋ฐ–์— ์•ˆ ๋์–ดโ€ ๊ทธ ์ •๋„์˜€๋‹ค. ์šฐ๋ฆฌ๋Š” ์„œ์šธ๋งŒ ํ•ด๋„ 1996๋…„ 600๋…„์„ ๋งž์•˜๋Š”๋ฐโ€ฆ. ์ง€๊ธˆ

20๋Œ€ ํ›„๋ฐ˜, 40๋Œ€ ํ›„๋ฐ˜์˜ ์ Š์€์ด๋“ค์€ ๊ทธ๋•Œ ์ดํ›„ ์—ญ์‚ฌ๋ฅผ ์‚ด๊ณ  ์žˆ๋‹ค. ๊ทธ๋“ค์ด ์šฐ๋ฆฌ์˜ ๋ฏธ๋ž˜์ด๊ณ  ๋™๋ ฅ์ด๋‹ค.(์žฌํ‚ท3)

๋‚˜๋Š” ๋ช‡ ๋…„ ์ „ ์›Œ์‹ฑํ„ด ์—ฌํ–‰๊ธธ์— ๋‹ค์‹œ ํŽœ์‹ค๋ฒ ์ด๋‹ˆ์•„ ๊ฐ€(่ก—)๋ฅผ ๊ฑธ์–ด ๋ณด์•˜๋‹ค. ๊ตญํšŒ์˜์‚ฌ๋‹น์—์„œ ๋ฐฑ์•…๊ด€๊นŒ์ง€ ๋ป—์–ด ์žˆ๋Š” ์•ฝ 2.8km ๊ธธ์ด์˜ ์‚ฌ์„  ๊ธธ์ด ํŽœ์‹ค๋ฒ ์ด๋‹ˆ์•„ ๊ฐ€์˜€๋‹ค. ๊ทธ 1600๋ฒˆ์ง€์— ๋ฐฑ์•…๊ด€์ด ์ž๋ฆฌ ์žก๊ณ  ์žˆ์—ˆ๋‹ค.

40 ์žฌํ‚ท2. ๋ฏธ๊ตญ ๊ฑด๊ตญ 200์ฃผ๋…„ ํŒ. ์„œ๋ถ€ ๊ฐœ์ฒ™๋„์‹œ ์ค‘์‹ฌ์ง€ ์‚ด๋กฑ๋ถ€ํ„ฐ ๋‰ด์š•
๊ณ ์ธต๋นŒ๋”ฉ๊นŒ์ง€ 200๋…„(1776-1976)๊ฐ„์˜ ๋ฐœ์ „์‚ฌ๋ฅผ ํ•œ ์žฅ์— ๊ทธ๋ ธ๋‹ค. ์ด์ด ์ค‘์š”ํ•œ ๋‚˜๋ผ์ž„์—๋Š” ํ‹€๋ฆผ์—†๋‹ค. ๋…ธ๋ž˜๋Š” The Mike Jammes Singers. 1976 RoncoํŒ, ์†์ง€๋ฅผ ํŽผ์นœ ๊ฒƒ์ด๋‹ค.
2
41 ๋ ˆ์ฝ”๋“œ ์žฌํ‚ท์—์„œ ์Œ์•…๊ณผ ๊ฑด์ถ• ์ฝ๊ธฐ 08
42 4 ์žฌํ‚ท4. ๋ช‡ ๋…„ ์ „ ํ•œ ์™ธ์‹ (AP. 1996.6.20.)์€ 1953๋…„ ์ผ€๋„ค๋”” ๋Œ€ํ†ต๋ น์€ ์žฌํด๋ฆฐ๊ณผ ๊ฒฐํ˜ผํ•œ ํ›„์—๋„ ์˜ํ™”๋ฐฐ์šฐ ์˜ค๋“œ ๋ฆฌ ํ—ต๋ฒˆ๊ณผ ๋ฐ€ํšŒ๋ฅผ ์ฆ๊ฒผ๋Š”๋ฐ ๊ทธ๊ณณ์€ ์›Œ์‹ฑํ„ด์‹œ ์ฝ”๋„คํ‹ฐ์ปท ๊ฑฐ๋ฆฌ์— ์žˆ๋Š” ๋ฉ”์ดํ”Œ๋ผ์›Œ(Mayflower) ํ˜ธํ…”์ด์—ˆ๋‹ค๊ณ  ํ–ˆ๋‹ค. ๋ฉ”์ดํ”Œ๋ผ์›Œ๋Š” 1620๋…„ ์ˆœ๋ก€์ž(Pilgrims)๋“ค์ด ์‹ ์„ธ๊ณ„ ์ฆ‰, ๋ฏธ๊ตญ ๋Œ€๋ฅ™์„ ์ฐพ์•„ ๋– ๋‚˜๋˜ ๋ฐฐ ์ด๋ฆ„ 3 ์žฌํ‚ท3. ๋ˆ„๊ตฌ๋‚˜ ์ž์‹์„ ๋‚ณ์œผ๋ฉด ๋Œ€ํ†ต๋ น ๊ฟˆ์„ ๊พผ๋‹ค. ํŠนํžˆ ๊ณต๋ถ€๋ฅผ ์ž˜ํ•ด ๋กœ์Šค์ฟจ์— ๋“ค์–ด๊ฐ€๋ฉด ๊ทธ ๊ฟˆ์ด ์‹ฌํ•ด์ง„๋‹ค. ๋ชจ๋‘๊ฐ€ ๋“œ๋ผ๋งˆ ์† ์ฃผ์ธ๊ณต โ€˜์šฐ์˜์šฐโ€™๋ฅผ ๋ถ€๋Ÿฌ์›Œํ•œ๋‹ค. ์•„๋งˆ ์—„๋งˆ(Mom)๋“ค์ด ๋”ํ•œ ๊ฒƒ ๊ฐ™๋‹ค. ์‹คํŒจํ•˜๋ฉด ๋…๋ฐ• ์“ฐ๊ณ  ์‹œ๋Œ์— ์—„์ฒญ ์‹œ๋‹ฌ๋ฆฌ๊ธฐ ๋•Œ๋ฌธโ€ฆ. ์—ฌ๊ธฐ ๋ฏธ๊ตญ๋„ ๋งˆ์ฐฌ๊ฐ€์ง€์ธ๊ฐ€ ๋ณด๋‹ค. ์ด ํŒ์€ ์ผ€๋„ค๋”” ๋Œ€ํ†ต๋ น๊ณผ ์˜๋ถ€์ธ ์žฌํด๋ฆฐ(John F. Kennedy & Jackie)์„ ํ’์ž์ (satire)์œผ๋กœ ๋…ธ๋ž˜ํ•œ ๋ฎค์ง€์ปฌ ํŒ์ด๋‹ค. 1962๋…„ ์ถœ๋ฐ˜. 6 ์žฌํ‚ท6. ์›Œ์‹ฑํ„ด ํž๋นŒ๋ฆฌ์ฆˆ(The Washington Hillbillies)๋Š” 1977๋…„ ๋ฏธ๊ตญ TV์—์„œ ๋ฐฉ์˜๋œ ํ™ˆ ์ฝ”๋ฏธ๋””๋ฌผ์ด์—ˆ๋‹ค. ์›Œ ์‹ฑํ„ด ์ดŒ๋†ˆ๋“ค์ด๋ž€ ๋œป์ธ๋ฐ ๊ฐํžˆ ๋ฐฑ์•…๊ด€์„ ์ฝ”๋ฏธ๋””๋ฌผ๋กœ ๋งŒ๋“  ๊ฒƒ์ด๋‹ค. ์ด ๊ทธ๋ฃน์€ ์ดํ›„ ๋ฒ ๋ฒŒ๋ฆฌ ํž์Šค ํž๋นŒ๋ฆฌ์ฆˆ๋„ ๋งŒ๋“ค์—ˆ ๋‹ค. 1977๋…„ ๋ฏธ๊ตญ ์นด์‚ฌ๋ธ”๋ž‘์นด ํŒ์ด๋‹ค. ์•ž์˜ ํŒ์€ ์บ๋ฆฌ์ปค์ฒ˜ ํŒ์ธ๋ฐ ์ด ํŒ์€ ์‚ฌ์ง„์„ ๋ฐฐ๊ฒฝ์œผ๋กœ ํ–ˆ๋‹ค. ์ฃผ๋‘์™€ ํŽ˜๋””๋จผ ํŠธ๊ฐ€ ์•ฝ๊ฐ„ ๋‹ค๋ฅด๋‹ค. ๋Œ€์กฐํ•ด ๋ณด๋Š” ์žฌ๋ฏธ๋„ ์žˆ๋‹ค. 5 ์žฌํ‚ท5. ํŒ์€ 1968๋…„ ์ฝ”๋ฏธ๋”” ์•จ๋ฒ”(Bob Booker) ๋ฐฑ์•…๊ด€ ๋ถ์ชฝ ๋ฉด ์ž”๋””๋ฐญ์˜ ์—ฌ๋Ÿฌ ๋ฏธ๊ตญ์ธ, ๋ฏธ๊ตญ์„ ์ด๋ˆ ์‚ฌ๋žŒ๋“ค์ด ๋‹ค. ์บ๋ฆฌ์ปค์ฒ˜๋งŒ ๋ณด์•„๋„ ๋ฏธ๊ตญ์˜ ํ˜„๋Œ€์‚ฌ๋ฅผ ์•Œ ์ˆ˜ ์žˆ๋‹ค. ๋Œ€ํ†ต๋ น๋งŒ ์ค‘์š”ํ•œ ๊ฒƒ์ด ์•„๋‹ˆ๋‹ค. ์Œ์•…๊ฐ€, ์˜ํ™”๋ฐฐ์šฐ, ๊ฐ€์ˆ˜ ๋“ฑ ๋Œ€ ์ค‘ ์Šคํƒ€๊ฐ€ ์ฆ๋น„ํ•˜๋‹ค.

์ •๋ฌธ์— ์„œ์„œ, ํŽผ์ณ์ง„ ์ •์›๊ณผ ํ•จ๊ป˜ ๊ทธ

ํ•˜์–€ ์ง‘์„ ๋ณด์•˜๋‹ค. ํ˜„์žฌ์˜ ๊ฒƒ์€ 1948๋…„ ๊ฐœ์ถ•๋œ 4์ธต ๊ฑด๋ฌผ๋กœ ํ‰๋ฉด์€ 25.5mร—51m์งœ๋ฆฌ์ด๋‹ค. ์‹ ๊ณ ์ „์ฃผ์˜ ์–‘์‹์˜ ์ด ๊ฑด์ถ•๋ฌผ์€ ์†์นญ ์˜ค๋ฒŒ ํ•˜์šฐ์Šค(Oval House)๋ผ๊ณ 

๋ถˆ๋ฆฌ๊ณ  ์žˆ๋‹ค. ์ด๋Š” ๊ทธ ์„œ์ชฝ ๋ณ„๊ด€(์„œ๊ด€) 1์ธต์—

์žˆ๋Š” ๋Œ€ํ†ต๋ น ์ง‘๋ฌด์‹ค ํ‰๋ฉด์ด ํƒ€์›ํ˜•(๊ณ„๋ž€ํ˜•)์œผ๋กœ

๋˜์–ด์žˆ๊ธฐ ๋•Œ๋ฌธ์ด๋‹ค. ๊ทธ ์ „๋ฉด ์ค‘์•™ ๋ฆฌ์…‰์…˜ ๋ฃธ์—๋Š” ๋ฐœ์ฝ”๋‹ˆ๊ฐ€ ์žˆ์–ด ๊ตญ๋ฏผ๊ณผ์˜ ์นœํ™”์  ๋ถ„์œ„๊ธฐ๋ฅผ ์—ฐ์ถœํ•  ์ˆ˜ ์žˆ๊ฒŒ ๋˜์–ด์žˆ๋‹ค.(์žฌํ‚ท4, 5, 6, 7)

๋ฏธ๊ตญ์˜ ๋Œ€ํ†ต๋ น์€ ์„ธ๊ณ„์˜ ๋Œ€ํ†ต๋ น ๊ฒฉ์ด๋ผ ์–ด๊นจ๊ฐ€ ๋ฌด๊ฑฐ์šธ ๊ฒƒ์ด๋‹ค. ์ŠคํŠธ๋ ˆ์Šค๋„ ์žฅ๋‚œ์ด ์•„๋‹ ๊ฒƒ์ด๋‹ค. ๋ฐฅ ๋Œ(Bob Dole) ๋ฏธ๊ตญ ์ƒ์›์˜์›์€ 2002๋…„ ๋ฏธ๊ตญ ใ€Ž๋Œ€ํ†ต๋ น์˜ ์œ„ํŠธ(The Presidential Wit)ใ€๋ผ๋Š” ์ฑ…์„ ๋ƒˆ๋‹ค. ์ฑ… ์ค‘์— ์šฐ๋“œ๋กœ ์œŒ์Šจ ํ•ญ๋ชฉ๋„ ์žˆ๋‹ค. ์šฐ๋ฆฌ๋Š” 1919๋…„ ๊ทธ์˜ ๋ฏผ์กฑ์ž๊ฒฐ์ฃผ์˜๋ฅผ ๋ฏฟ๊ณ  3.1์šด๋™์— ๋‚˜์„ฐ๋˜ ๊ฒƒ์ด๋‹ค. ๊ทธ๋Š” ์œ ๋จธ๋ฆฌ์ŠคํŠธ๋กœ ์†Œ๊ฐœ๋˜๊ณ  ์žˆ์–ด ๋†€๋ž๋‹ค. ๊ฐ™์€ ์ฑ…์—์„œ ํ•ด๋ฆฌ ํŠธ๋ฃจ๋จผ์€ ์†”์ง๋‹ด๋ฐฑํ•˜๊ณ  ๋ฌดํ‘œ์ •ํ•œ ์‚ฌ๋žŒ์œผ๋กœ ์ ํ˜€ ์žˆ๋‹ค. ๊ทธ๋Ÿฐ ๊ทธ๊ฐ€ โ€˜์œ ๋จธ ๊ฐ๊ฐ์ด ์—†๋‹ค๋ฉด ๋ˆ„๊ตฌ๋„ ์˜ค๋ž˜ ๋ฒ„ํ‹ฐ์ง€ ๋ชปํ•  ๊ฒƒ์ด๋‹คโ€™๋ผ๊ณ  ํ–ˆ๋‹ค๊ณ  ํ•œ๋‹ค. ๊ทธ๋Š” ์šฐ๋ฆฌ 6.25๋ฅผ ๋งž๋‹ฅ๋œจ๋ฆฐ ๋Œ€ํ†ต๋ น์ด์–ด์„œ ์ •์‹ ์ด ์—†์—ˆ์„ ๊ฒƒ์ด๋‹ค. ํ•œ๊ตญ ๋Œ€ํ†ต๋ น์ด ๋ฏธ๊ตญ ๋ฐฑ์•…๊ด€์— ๊ฐ„ ๊ฒƒ์€ ๋ฐ•์ •ํฌ๊ฐ€ ์ฒ˜์Œ์ด๋‹ค. ๋Œ€ํ†ต๋ น ์ด์ „ ๊ตญ๊ฐ€์žฌ๊ฑด์ตœ๊ณ ํšŒ์˜ ์˜์žฅ ๋•Œ(1961.11.14.)์˜€๋‹ค. ์ƒ๋Œ€๋Š” ์ผ€๋„ค๋””โ€ฆ. ๋ถ์ชฝ ํšŒ๊ฒฌ์‹ค(North Portico)์—์„œ ๋งŒ๋‚˜๋Š” ์žฅ๋ฉด์ด ์ง€๊ธˆ๋„ ๋œฌ๋‹ค. ๊ทธ ์ดํ›„๋กœ๋„ ์šฐ๋ฆฌ ๋Œ€ํ†ต๋ น์€ ๊ทธ๊ณณ์— ๊ฐ„๋‹ค. ์•ž์œผ๋กœ๋„ ๊ณ„์† ๊ฐˆ ๊ฒƒ์ด๋‹ค.(์žฌํ‚ท8)

43
๋ฐฑ์•…๊ด€
8 ์žฌํ‚ท7. 1962๋…„ 2์›” 21์ผ ์ฒผ๋ฆฌ์ŠคํŠธ ํŒŒ๋ธ”๋กœ ์นด์ž˜์Šค(Pablo Casals,
์ผ€๋„ค๋”” ๋ถ€๋ถ€์™€ ๊ท€๋นˆ๋“ค ์•ž์—์„œ ์—ฐ์ฃผ๋ฅผ ํ•˜๊ณ  ์žˆ๋‹ค. ์žฅ์†Œ๋Š” ๋ฐฑ์•…๊ด€ ์Šคํ…Œ์ด๋“œ ๋‹ค์ด๋‹ ๋ฃธ์ด๋‹ค. ์ปฌ๋Ÿผ๋น„์•„ ๋ ˆ์ฝ”๋“œ(CBS)์—์„œ ์ถœ๋ฐ˜ํ•œ ์ด ์Œ๋ฐ˜์˜ ์ œ๋ชฉ์€ โ€œA Concert at the White Houseโ€, ํ”ผ์•„๋‹ˆ์ŠคํŠธ Mieczyslaw Horszowski, ๋ฐ”์ด์˜ฌ๋ฆฌ ๋‹ˆ์ŠคํŠธ Alexander Schneider์˜ ๊ฒƒ๋„ ์‹ค๋ ค ์žˆ๋‹ค. ๋ฐฑ์•…๊ด€ ์‹ค๋‚ด ์—ฐ์ฃผ ์žฅ๋ฉด LP๋Š” ์•„๋งˆ ์ด ํŒ์ด ์œ ์ผํ•œ ๊ฒƒ ๊ฐ™๋‹ค. ๊ธฐ์ž ์ถœ์‹ ์ธ ์˜๋ถ€์ธ ์žฌํด๋ฆฐ์˜ ์ผ€๋„ค๋”” ์—… ์‹œํ‚ค๊ธฐ ์ผํ™˜์ด์—ˆ์„ ๊ฒƒ์ด๋‹ค. ๊ทธ๋…€ ํ˜ผ์ž์„œ LP ํŒ ๋“ฃ๊ธฐ๋Š” ์–ธ์ œ๋‚˜ ๊ฐ€๋Šฅํ–ˆ์—ˆ๋Š”๋ฐ๋„โ€ฆ. ์žฌํ‚ท8. ๋“œ๋ฌผ๊ฒŒ ๋ฐฑ์•…๊ด€ ๋‚จ๋ฉด์„ ๋ณด์—ฌ์ค€๋‹ค. ๋ฏธ๊ตญ์œผ๋กœ ๋ณผ ๋•Œ ์„ธ๊ณ„์ •์„ธ ํŒ๋„๋Š” ํฐ ๊ฒŒ์ž„(Big Game)ํŒ์ผ ๊ฒƒ์ด๋‹ค. ๊ทธ๋ฆผ์˜ ๋™๋ฌผ์€ ๋ผ์ด์–ธ์ด๋‹ค. ์•„๋งˆ ๋ฏธ๊ตญ ์„ ์ง€ํ‚ค๋Š” ๊ฑฐ๊ฒ ์ง€. ๋”๊ตฌ๋‚˜ ๊ฑด๋ฌผ์„ ๋‹ฎ์•„์„œ ํ™”์ดํŠธ ๋ผ์ด์–ธ์ด๋‹ค. ์—ฐ์ฃผ๋Š” ๋‰ด ์š• ์ถœ์‹ ์˜ 4์ธ์กฐ ํ—ค๋น„๋ฉ”ํƒˆ ๊ทธ๋ฃน ํ™”์ดํŠธ ๋ผ์ด์–ธ, 3์ง‘์ธ๋ฐ ์ผ๋ ‰ ๊ธฐํƒ€๊ฐ€ ์ฃผ ์ด๋‹ค(1983-2013). 1989๋…„ ๋‰ด์š• ์•„ํŠธ๋ž€ํ‹ฑ ๋ ˆ์ฝ”๋“œํŒ์„ ๊ตญ๋‚ด ์˜ค์•„์‹œ์Šค ๋ ˆ ์ฝ”๋“œ์™€ ์œ„์•„(WEA)๊ฐ€ ๋ผ์ด์„ ์Šค๋กœ ์˜ฎ๊ฒผ๋‹ค.
7
1876-1973)๊ฐ€

ํ•œ๊ตญ์ธ๋“ค์—๊ฒŒ โ€˜์ „์Ÿโ€™์ด๋ผ ํ•˜๋ฉด ์•„๋งˆ๋„ โ€˜ํ•œ๊ตญ์ „์Ÿโ€™์ด ๊ฐ€์žฅ ๋จผ์ € ๋– ์˜ค๋ฅผ ๊ฒƒ์ด๋‹ค. ์ผ์ œ๋กœ๋ถ€ํ„ฐ ํ•ด๋ฐฉ๋œ ์ง€ ์–ผ๋งˆ ๋˜์ง€ ์•Š์•„ ์ผ์–ด๋‚œ ํ•œ๊ตญ์ „์Ÿ์€ 3๋…„์ด๋‚˜ ์ง€์†๋˜์—ˆ๊ณ , ๋ถ์—์„œ ๋‚จ์œผ๋กœ ๋‚จ์—์„œ ๋ถ์œผ๋กœ ์ด๋™ํ•˜๋˜ ์ „์„ ์€

์ˆ˜๋งŽ์€ ์ „์Ÿ์˜ ์ƒํ”์„ ๋งŒ๋“ค์–ด๋‚ด์—ˆ์œผ๋ฉฐ, ์•„์ง๋„ ๋๋‚˜์ง€ ์•Š์•˜๋‹ค. ํ•˜์ง€๋งŒ 20์„ธ๊ธฐ ํ•œ๋ฐ˜๋„์—์„œ ์ผ์–ด๋‚œ ์ „์Ÿ์€ ์ด๋ฟ์ด ์•„๋‹ˆ์—ˆ๋‹ค. โ€˜์ผ์ œ๊ฐ•์ ๊ธฐโ€™๋ผ๋Š” ์ด๋ฆ„์— ๊ฐ€๋ ค์ ธ ์ž˜ ๋“œ๋Ÿฌ๋‚˜์ง€ ์•Š์ง€๋งŒ ์ผ๋ณธ์ด ์ผ์œผํ‚จ ์ค‘์ผ์ „์Ÿ(1937~1945)๊ณผ

ํƒœํ‰์–‘์ „์Ÿ(1941~1945) ์—ญ์‹œ ํ•œ๋ฐ˜๋„์— ์ˆ˜๋งŽ์€

์ „์Ÿ์˜ ์ƒํ”์„ ๋‚จ๊ฒผ๋‹ค. 1937๋…„ ์ค‘์ผ์ „์Ÿ์˜ ๋ฐœ๋ฐœ๊ณผ ํ•จ๊ป˜ ์ „์‹œ์ฒด์ œ๊ธฐ๋กœ ๋“ค์–ด๊ฐ์— ๋”ฐ๋ผ ์‹๋ฏผ์ง€ ์กฐ์„ ์˜ ๊ณณ๊ณณ์—๋Š” ์ „์Ÿ์„ ์œ„ํ•œ ์‹œ์„ค๋“ค์ด ๋“ค์–ด์„ฐ์œผ๋ฉฐ, ์ˆ˜๋งŽ์€ ์ Š์Œ๋“ค์€ ์ „์Ÿํ„ฐ๋กœ, ๋˜ํ•œ ์ „์Ÿ์„ ์œ„ํ•œ ๋ฌด๊ธฐ๋ฅผ ์ƒ์‚ฐํ•˜๊ธฐ ์œ„ํ•œ ์‹œ์„ค๋กœ ๊ฐ•์ œ๋™์› ๋˜์—ˆ๋‹ค. ๊ทธ๋ฆฌ๊ณ  ์ „์Ÿ์„ ์ค€๋น„ํ•˜๋Š” ๋‹จ๊ณ„์—์„œ ํ•œ๋ฐ˜๋„ ๋‚จ๋‹จ์˜ ์ž‘์€ ์„ฌ, ์ง€์‹ฌ๋„ ์—ญ์‹œ ์ „์Ÿ ์š”์ƒˆ๊ฐ€ ๋˜์—ˆ๋‹ค.

44
1. ์ „๋“ฑ์†Œ์žฅ ๊ด€์‚ฌ์—์„œ ๋ฐ”๋ผ๋ณธ ์ง€์‹ฌ๋„ ์•ž๋ฐ”๋‹ค โ“’์ด์—ฐ๊ฒฝ 2. ์ „๋“ฑ์†Œ์žฅ ๊ด€์‚ฌ ๊ธฐ์™€ โ“’์ด์—ฐ๊ฒฝ ํ•œ๊ตญ๊ทผ๋Œ€๊ฑด์ถ•์˜ ํ˜„์žฅ๊ณผ ์ด์Šˆ 18 ์ง€์‹ฌ๋„์˜ ์ผ๋ณธ๊ตฐ ์š”์ƒˆ ๋™๋ฐฑ๊ฝƒ ํ”ผ๋Š” ์ž‘์€ ์„ฌ์— ๋‚จ์€ ์ „์Ÿ์˜ ์ƒํ” ๊ธ€, ์ž๋ฃŒ. ์ด์—ฐ๊ฒฝ ์ธ์ฒœ๋Œ€ํ•™๊ต ์ง€์—ญ์ธ๋ฌธ์ •๋ณด์œตํ•ฉ์—ฐ๊ตฌ์†Œ ํ•™์ˆ ์—ฐ๊ตฌ๊ต์ˆ˜, ๊ฑด์ถ•์‚ฌ๊ฐ€ 1 2

1936, ๋™๋ฐฑ์„ฌ์— ๋“ค์–ด์„  ์บ๋…ผํฌ์™€ ํ—Œ๋ณ‘๋ถ„์ฃผ์†Œ ๊ฑฐ์ œ๋„ ๋™์ชฝ์— ์œ„์น˜ํ•œ ๋ฉด์  0.356ใŽข์˜ ์ž‘์€ ์„ฌ์ธ ์ง€์‹ฌ๋„๋Š” ์„ฌ ์ „์ฒด ๋‚˜๋ฌด์˜ 70ํผ์„ผํŠธ๊ฐ€ ๋™๋ฐฑ์ผ ์ •๋„๋กœ ๋™๋ฐฑ์ˆฒ์ด ์šธ์ฐฝํ•˜์—ฌ ๋™๋ฐฑ์„ฌ์œผ๋กœ ๋ถˆ๋ฆฌ๋Š” ์„ฌ์ด๋‹ค. ๊ฒจ์šธ๋ถ€ํ„ฐ ๋ด„๊นŒ์ง€ ๋™๋ฐฑ๊ฝƒ์ด ํ”ผ๊ณ  ์ง€๋Š” ๋ชจ์Šต์ด ์žฅ๊ด€์ธ ์ด ์ž‘๊ณ  ์•„๋ฆ„๋‹ค์šด ์„ฌ์€ ์ผ๋ณธ์˜ ๋Œ€๋งˆ๋„์™€ ๋Œ€ํ•œํ•ดํ˜‘์„ ๋‘๊ณ  ๋งˆ์ฃผํ•˜๊ณ  ์žˆ์–ด, ์ง€์ •ํ•™์ ์œผ๋กœ๋„ ์ค‘์š”์„ฑ์„ ๊ฐ€์ง„๋‹ค. ์ค‘์ผ์ „์Ÿ ๋ฐ ๋Ÿฌ์ผ์ „์Ÿ ๋‹น์‹œ๋ถ€ํ„ฐ ํ•œ๋ฐ˜๋„์— ์š”์ƒˆ๋ฅผ ๊ฑด์„คํ•˜๊ธฐ ์‹œ์ž‘ํ•œ ์ผ๋ณธ๊ตฐ์€ 1921๋…„ ์›Œ์‹ฑํ„ด๊ตฐ์ถ•ํšŒ์˜์—์„œ โ€˜๋ฏธ๊ตญ, ์˜๊ตญ, ์ผ๋ณธ ๋“ฑ 3๊ฐœ๊ตญ์€ ํƒœํ‰์–‘์˜ ์„ฌ์— ์š”์ƒˆ๋‚˜ ํ•ด๊ตฐ๊ธฐ์ง€๋ฅผ ์‹ ์„คํ•˜์ง€ ์•Š๊ณ  ํ˜„์ƒ์œ ์ง€๋ฅผ ํ•œ๋‹คโ€™์— ํ•ฉ์˜ํ•˜๊ณ  1933๋…„ โ€˜์š”์ƒˆ์ˆ˜์ •๊ณ„ํš์š”๋ นโ€™์— ๋”ฐ๋ผ ๊ฐ์ข… ์ง„์ง€ ๋ฐ ํฌ๋Œ€๋ฅผ ์ถ•์†Œํ•˜์˜€์œผ๋‚˜ ๋‹ค์Œ ํ•ด์ธ 1934๋…„ 12์›” ํ•ด๊ตฐ๊ตฐ๋น„์ œํ•œ์กฐ์•ฝ์˜ ํŒŒ๊ธฐ๋ฅผ ๊ฒฐ์˜, ํ†ต๋ณดํ•˜์˜€๋‹ค. ์ด์–ด์„œ 1936๋…„ 9์›”์—๋Š” โ€˜์š”์ƒˆ๊ฑด์„ค์žฌ์ˆ˜์ •๊ณ„ํš์š”๋ นโ€™์„ ์ˆ˜๋ฆฝํ•˜๊ณ 

๋ณธ๊ฒฉ์ ์œผ๋กœ ์ œ1์„ ์— ์œ„์น˜ํ•œ ์š”์ƒˆ์˜ ์ •๋น„ ๋ฐ ๊ฑด์„ค์„ ์‹œ์ž‘ํ•˜์˜€๋Š”๋ฐ ์ง€์‹ฌ๋„์˜ ์š”์ƒˆํ™” ์—ญ์‹œ ์ด๋•Œ ์ด๋ฃจ์–ด์กŒ๋‹ค. ์ด๋ณธ๊ตฐ์€ ํƒœํ‰์–‘์ „์Ÿ์„ ๋Œ€๋น„ํ•˜์—ฌ ์ง€์‹ฌ๋„ ๋ฟ ์•„๋‹ˆ๋ผ ๋ถ€์‚ฐ ์žฅ์ž๋“ฑ 2ํฌ๋Œ€, 3ํฌ๋Œ€, ์ ˆ์˜๋„ ํฌ๋Œ€, ๊ธฐ์žฅ ํฌ๋Œ€ ๋“ฑ์„ ๊ฑด์„คํ•˜์˜€์œผ๋ฉฐ, ๋Ÿฌ์ผ์ „์Ÿ ๋‹น์‹œ ์ตœ์ดˆ๋กœ ๊ฑด์„คํ•˜์˜€๋˜ ์™ธ์–‘ํฌ, ์ €๋„ ํฌ๋Œ€์—๋„ ์‹œ์„ค์„ ์ฆ์„คํ•˜๋ฉฐ ๋ถ€์‚ฐยท์ง„ํ•ด๋งŒ ์ผ๋Œ€๋ฅผ ์ „๋žต์ ์œผ๋กœ ์š”์ƒˆํ™”ํ•ด๋‚˜๊ฐ”๋‹ค. ๋‹น์‹œ ์š”์ƒˆ ๊ฑด์„ค์˜ ๋ชฉ์ ์€ ๋Œ€ํ•œํ•ดํ˜‘์— ๋Œ€ํ•œ ํ†ต์ œ ๋ฐ ์ผ๋ณธ, ํ•œ๊ตญ ์–‘์ชฝ์˜ ํ•ด์ƒ์ˆ˜์†ก์„ ์œ ์ง€ํ•˜๋Š” ๊ฒƒ์ด์—ˆ๋‹ค. ์ง€์‹ฌ๋„ ํฌ๋Œ€ ์—ญ์‹œ ์ด๋Ÿฌํ•œ ๋ชฉ์ ์—์„œ ๋งŒ๋“ค์–ด์ง„ ๊ฒƒ์œผ๋กœ, ์ง€์‹ฌ๋„ ํฌ๋Œ€๋Š” ๋งˆ์ฃผํ•˜๊ณ  ์žˆ๋Š” ๋Œ€๋งˆ๋„์˜ ์“ฐ์“ฐ์žํ‚ค(่ฑ†้…ธๅดŽ) ํฌ๋Œ€์™€ ์Œ์„ ์ด๋ฃจ์–ด ๋Œ€ํ•œํ•ดํ˜‘์„ ์ œ์••ํ•˜์˜€๋‹ค.

์ง€์‹ฌ๋„ ํฌ๋Œ€ ๊ฑด์„ค์€ 1936๋…„ 7์›” 10์ผ ์ฐฉ๊ณต์„ ์‹œ์ž‘ํ•˜์—ฌ 18๊ฐœ์›”์ด ์ง€๋‚œ 1938๋…„ 1์›”

27์ผ ์ค€๊ณต๋˜์—ˆ๋‹ค. ๊ฑด์„ค์— ์•ž์„œ ํ† ์ง€๋งค์ž…๊ณผ ํ—Œ๋ณ‘๋ถ„์ฃผ์†Œ ์„ค์น˜๊ฐ€ ๊ฒฐ์ •๋˜์—ˆ์œผ๋ฉฐ ์ง€์‹ฌ๋„์— ๊ฑฐ์ฃผํ•˜๋˜ ๊ธฐ์กด์˜ ์ฃผ๋ฏผ๋“ค์€ ๋ชจ๋‘ ๊ฐ•์ œ๋กœ ์ด์ฃผ ๋‹นํ–ˆ๋‹ค. ์ง€์‹ฌ๋„ ๋‚ด์— ๊ฐ€์žฅ ๋จผ์ € ์„ค์น˜๋œ ํ—Œ๋ณ‘๋ถ„์ฃผ์†Œ๋Š” ์„ ์ฐฉ์žฅ์ด ๋ฐ”๋กœ ๋‚ด๋ ค๋‹ค๋ณด์ด๋Š” ์–ธ๋•์— ์œ„์น˜ํ•˜๊ณ  ์žˆ์—ˆ๋‹ค. ๊ทธ๋ฆฌ๊ณ  ํ—Œ๋ณ‘๋ถ„์ฃผ์†Œ ์ฃผ๋ณ€์œผ๋กœ๋Š” ์ค‘๋Œ€์žฅ ๊ด€์‚ฌ ๋ฐ ์ผ๋ฐ˜์‚ฌ๋ณ‘ ๊ด€์‚ฌ์™€ ์„ธ๋ฉด์žฅ, ์ทจ์‚ฌ์žฅ ๋“ฑ์ด ๋“ค์–ด์„œ 1๊ฐœ ์ค‘๋Œ€, ์ฆ‰ 100์—ฌ๋ช…์˜ ์ผ๋ณธ๊ตฐ์ด ์ƒํ™œํ•˜๋Š” ์žฅ์†Œ๊ฐ€ ๋˜์—ˆ๋‹ค. ํ—Œ๋ณ‘๋ถ„์ฃผ์†Œ๋ฅผ ์ง€๋‚˜ ๋Œ€ํ•œํ•ดํ˜‘์„ ๋ฐ”๋ผ๋ณด๊ณ  ์žˆ๋Š” ์–ธ๋• ์œ„์—๋Š” ์‚ฌ์ •๊ฑฐ๋ฆฌ 20km์— ์ด๋ฅด๋Š” 150mm ์บ๋…ผํฌ 4๋ฌธ๊ณผ ํƒ„์•ฝ์ง„์ง€๊ฐ€ ์„ค์น˜๋˜์—ˆ์œผ๋ฉฐ ํ˜„์žฌ์˜ ๊ตญ๋ฐฉ์—ฐ๊ตฌ์†Œ๊ฐ€ ์žˆ๋Š” ์œ„์น˜์—๋Š” ๊ด€์ธก์†Œ๊ฐ€ ์„ค์น˜๋˜์—ˆ๋‹ค. ๊ทธ๋ฆฌ๊ณ  ์ง€์‹ฌ๋„์˜ ๋ถ์ชฝ ๋์—๋Š” ์ง€์‹ฌ๋„ ๋‚ด ์ „๊ธฐ ๊ณต๊ธ‰์„ ์œ„ํ•œ ์ „๋“ฑ์†Œ, ์ฆ‰ ๋ฐœ์ „์†Œ๊ฐ€ ์„ค์น˜๋˜์—ˆ๋‹ค. ๋ฐœ์ „์†Œ์™€ ์–ผ๋งˆ ๋–จ์–ด์ง€์ง€ ์•Š์€ ๊ณณ์—๋Š” ์ „๋“ฑ์†Œ ์†Œ์žฅ ๊ด€์‚ฌ์™€ ๋Œ€ํ•œํ•ดํ˜‘์˜ ๊ฒฝ๊ณ„ ๋ฐ ํ•จ์„ ์—„ํ˜ธ๋ฅผ ์œ„ํ•œ ์‹œ์„ค๋ฌผ์ธ ์„œ์น˜๋ผ์ดํŠธ

45
3. ์ง€์‹ฌ๋„์˜ ์ง€์ •ํ•™์  ์œ„์น˜ (์ถœ์ฒ˜: ํ•œ๊ตญ๋‚ด์…”๋„ํŠธ๋Ÿฌ์ŠคํŠธ ํ™ˆํŽ˜์ด์ง€ https://nationaltrust.or.kr/bbs/board.php?bo_table=B21&wr_id=736) 4. ์ง€์‹ฌ๋„ ๋‚ด ์‹œ์„ค ๋ฐฐ์น˜๋„ (์ด์ง€์˜ยท์„œ์น˜์ƒ(2013), 42์ชฝ ใ€ˆ๊ทธ๋ฆผ 4ใ€‰ ์ธ์šฉ (์›์ž๋ฃŒ ์ถœ์ฒ˜: ์ง€์‹ฌ๋„ ์ค‘ํฌ๋Œ€ ๋ฐฐ์น˜๋„ ์ œ 340ํ˜ธ,ใ€Œ้™ธ่ปไธ€่ˆฌๅฒๆ–™ใ€ๆœ้ฎฎ,1942.07.)) 4 3
46 5. ์ง€์‹ฌ๋„์— ๋‚จ์€ ์ „์Ÿ์˜ ํ”์  โ“’์ด์—ฐ๊ฒฝ 5 ์„œ์น˜๋ผ์ดํŠธ๋ณด๊ด€์†Œ ์ค‘๋Œ€์žฅ๊ด€์‚ฌํ—Œ๋ณ‘๋ถ„์ฃผ์†Œํƒ„์•ฝ๊ณ  ํฌ์ง„์ง€ ์ „๋“ฑ์†Œ์žฅ๊ด€์‚ฌ์ „๋“ฑ์†Œ(๋ฐœ์ „์†Œ) ๊ด€์ธก์†Œ

์„ค์น˜๋˜์—ˆ๋‹ค.1) ์ด๋กœ์จ ์ง€์‹ฌ๋„๋Š” ์ด๊ณณ์—

ํ„ฐ์ „์„ ์žก๊ณ  ์‚ด๋˜ ์ฃผ๋ฏผ๋“ค ๋Œ€์‹  ๋Œ€ํ•œํ•ดํ˜‘์„

ํ–ฅํ•ด ์„ค์น˜๋œ ์บ๋…ผํฌ์™€ ์ง€์‹ฌ๋„ ์ฃผ๋ณ€์„

์ •์ฐฐํ•˜๊ธฐ ์œ„ํ•œ ์„œ์น˜๋ผ์ดํŠธ, ๊ทธ๋ฆฌ๊ณ  100์—ฌ๋ช…์˜ ์ผ๋ณธ๊ตฐ์œผ๋กœ ๊ฐ€๋“ ์ฐฌ ์ „์Ÿ์š”์ƒˆ๊ฐ€ ๋˜์—ˆ๋‹ค.

์ง€์‹ฌ๋„์— ๋‚จ์€ ์ „์Ÿ์˜ ์ƒํ”, ๊ทธ๋ฆฌ๊ณ  ์ง€์‹ฌ๋„๋ฅผ

๋‘˜๋Ÿฌ์‹ผ ๊ฐˆ๋“ฑ

1945๋…„ 8์›”, ํƒœํ‰์–‘์ „์Ÿ์—์„œ ํŒจ์ „ํ•œ ์ผ๋ณธ๊ตฐ์€

์ง€์‹ฌ๋„์—์„œ ์ฒ ์ˆ˜ํ•˜์˜€๋‹ค. ํ•˜์ง€๋งŒ ์ง€์‹ฌ๋„๋Š”

2016๋…„๊นŒ์ง€ ๊ตญ๋ฐฉ๋ถ€ ์†Œ์œ ์˜ ๋•…์œผ๋กœ ๊ฐœ๋ฐœ์ด ์ œํ•œ๋˜์–ด ์˜› ๋ชจ์Šต์„ ๊ทธ๋Œ€๋กœ ๊ฐ„์งํ•œ ์ฑ„ ๋‚จ์•˜๋‹ค. ํ•ด๋ฐฉ ์ดํ›„ ์ง€์‹ฌ๋„๋กœ ์ด์ฃผํ•ด ์˜จ ์ฃผ๋ฏผ๋“ค์€ ์ผ๋ณธ๊ตฐ์ด ๋– ๋‚œ ์‹œ์„ค๋“ค์— ์‚ด๋ฉด์„œ ๋†์—… ๋ฐ ์–ด์—… ๋“ฑ์— ์ข…์‚ฌํ•˜์˜€์˜€์œผ๋‚˜, ์ฃผ๋ฏผ๋“ค์˜ ํ™œ๋™์€ ๊ตญ๋ฐฉ๋ถ€์—์„œ ์ž„์ฐจํ•œ ๊ฑด๋ฌผ๋“ค์˜ ์‚ฌ์šฉ๊ณผ ๋†์—… ํ™œ๋™์— ๊ตญํ•œ๋˜์—ˆ๋‹ค. ๊ทธ๋งˆ์ €๋„ 1968๋…„ ์ง€์‹ฌ๋„์˜ ํ† ์ง€์†Œ์œ ๊ถŒ์ด ๊ตญ๋ฐฉ๋ถ€๋กœ ์ด์ „๋œ ์ดํ›„์˜ ์ผ๋กœ ์ด์ „๊นŒ์ง€ ์ฃผ๋ฏผ๋“ค์€ ๋ถˆํ•˜๋ฅผ ๋ฐ›๊ฑฐ๋‚˜ ๊ณต์‹์ ์œผ๋กœ ์ž„๋Œ€๋ฅผ ํ•˜๊ธฐ๋„ ๋ถˆ๊ฐ€ํ•œ ์ƒํ™ฉ์ด์—ˆ๋‹ค. ์—ญ์„ค์ ์œผ๋กœ ์ด๋Ÿฌํ•œ ์ƒํ™ฉ์€ ์ง€์‹ฌ๋„๊ฐ€ ๋ฌด๋ถ„๋ณ„ํ•œ ๊ฐœ๋ฐœ์— ์˜ํ•ด ํฌ๊ฒŒ ํ›ผ์†๋˜์ง€ ์•Š์€ ์ฑ„ ๋‚จ์„ ์ˆ˜ ์žˆ๋Š”

๊ฒฐ๊ณผ๋ฅผ ๋งŒ๋“ค์—ˆ๋‹ค. ๊ทธ๋Ÿฌ๋‚˜ 2016๋…„ 6์›” ๊ตญ๋ฐฉ๋ถ€๊ฐ€ ๊ฑฐ์ œ์‹œ์— ์†Œ์œ ๊ถŒ์„ ๋„˜๊ฒจ์ฃผ๊ณ , 2017๋…„ ๊ฑฐ์ œ์‹œ๊ฐ€ ์ง€์‹ฌ๋„ ๊ด€๊ด‘๊ฐœ๋ฐœ๊ณ„ํš์˜ ๋ฐœํ‘œ์™€ ํ•จ๊ป˜ ์ง€์‹ฌ๋„ ์ฃผ๋ฏผ๋“ค์˜ ์ด์ฃผ๋ฅผ ์ถ”์ง„ํ•จ์— ๋”ฐ๋ผ ์ง€์‹ฌ๋„๋Š” ์ƒˆ๋กœ์šด ๋ณ€ํ™”์— ์ง๋ฉดํ•˜๊ฒŒ ๋˜์—ˆ๋‹ค. ์ด์ฃผ๋ฅผ ๋‘˜๋Ÿฌ์‹ผ ์ง€์‹ฌ๋„ ์ฃผ๋ฏผ๊ณผ ๊ฑฐ์ œ์‹œ์˜ ๊ฐˆ๋“ฑ์€ 2021๋…„ ๊ตญ๋ฏผ๊ถŒ์ต์œ„์›ํšŒ์˜ ์กฐ์ •์œผ๋กœ ์ง„์ • ๊ตญ๋ฉด์— ๋“ค์–ด์„œ๊ธด ํ–ˆ์ง€๋งŒ, ์ง€์‹ฌ๋„์˜ ๋ฏธ๋ž˜๊ฐ€ ์–ด๋–ป๊ฒŒ 1) ์ด์ง€์˜ยท์„œ์น˜์ƒ, โ€˜์ง€์‹ฌ๋„(ๅชๅฟƒๅณถ)์˜ ์ผ๋ณธ๊ตฐ์‚ฌ์‹œ์„ค์— ๊ด€ํ•œ ์—ฐ๊ตฌโ€™, ๊ฑด์ถ•์—ญ์‚ฌ์—ฐ๊ตฌ 22(5), 2013 ์ฐธ์กฐ

๋ ์ง€๋Š” ์•„์ง ์•„๋ฌด ๊ฒƒ๋„ ์•Œ ์ˆ˜ ์—†๋Š” ์ƒํ™ฉ์ด๋‹ค.

1936๋…„ ์ดํ›„ ๊ฑด์„ค๋œ ์ง€์‹ฌ๋„์˜ ํ•ต์‹ฌ ๊ตฐ์‚ฌ์‹œ์„ค์ด๋ผ ํ•  ์ˆ˜ ์žˆ๋Š” ํฌ๋Œ€์™€ ํƒ„์•ฝ๊ณ , ๊ด€์ธก์†Œ ๋“ฑ์€ ๊ฑฐ์˜ ์˜จ์ „ํ•œ ๋ชจ์Šต์œผ๋กœ ๊ทธ๋Œ€๋กœ

๋‚จ์•˜๋‹ค. ๊ทธ๋Ÿฌ๋‚˜ ์ง€์‹ฌ๋„ ์ฃผ๋ฏผ๋“ค์˜ ์ƒํ™œ๊ณต๊ฐ„์œผ๋กœ

์‚ฌ์šฉ๋œ ํ—Œ๋ณ‘์ฃผ์žฌ์†Œ๋‚˜ ๊ด€์‚ฌ ๋“ฑ์€ ๋Œ€๋ถ€๋ถ„ ์ƒ๋‹นํžˆ ๋ณ€ํ˜•๋˜์—ˆ๊ณ , ๋ถˆ๋ฒ•์ฆ์ถ•์œผ๋กœ ์ธํ•ด ๊ฑด๋ฌผ์˜ ์›ํ˜• ์—ญ์‹œ ์•Œ์•„๋ณด๊ธฐ ํž˜๋“ค์–ด์ง„ ๊ณต๊ฐ„๋“ค๋„ ์žˆ๋‹ค. ๋ฐœ์ „์†Œ๋กœ ์‚ฌ์šฉ๋œ ๊ฑด๋ฌผ์€ ๋ฒฝ์ฒด๋งŒ ์ œ์™ธํ•˜๊ณ ๋Š”

๋Œ€๋ถ€๋ถ„ ๋ณ€ํ˜•๋˜์–ด ๋ฒ„๋ ธ๊ณ , ๋ชฉ์š•ํƒ•์ด์—ˆ๋˜ ๊ณณ์€ ์ˆ˜ํ’€ ์†์— ๊ฐ€๋ ค์ ธ ๋ณด์ด์ง€๋„ ์•Š๋‹ค๊ฐ€ ์ตœ๊ทผ ๋‹คํ ํƒ์‚ฌํŒ€์— ์˜ํ•ด ๋ฐœ๊ฒฌ๋˜์—ˆ๋‹ค. ์„ฌ ๋ถ์ชฝ์— ์œ„์น˜ํ•œ ์„œ์น˜๋ผ์ดํŠธ ๋ณด๊ด€์†Œ์™€ ์ „๋“ฑ์†Œ์žฅ ๊ด€์‚ฌ ๋“ฑ์€

๋น„๊ต์  ์˜จ์ „ํ•œ ๋ชจ์Šต์œผ๋กœ ๋‚จ์•˜์ง€๋งŒ ์ง€์‹ฌ๋„ ๋‚ด

์ „๊ธฐ ๊ณต๊ธ‰์„ ์ฑ…์ž„์ง€๋˜ ๋ฐœ์ „์†Œ๋Š” ๋ฒฝ์ฒด ์™ธ์—๋Š”

์›ํ˜•์„ ๊ฑฐ์˜ ์ฐพ์•„๋ณผ ์ˆ˜ ์—†๊ฒŒ ํ›ผ์†๋˜์—ˆ๋‹ค.

์‚ฌ๋ณ‘ ๊ด€์‚ฌ๊ฐ€ ์žˆ๋˜ ๊ณณ์œผ๋กœ ์˜ˆ์ƒ๋˜๋˜ ์žฅ์†Œ๋Š”

ํ”์ ๋„ ์—†์ด ์‚ฌ๋ผ์ง€๊ณ  ํ—ฌ๊ธฐ์žฅ์ด ๋˜์–ด ๋ฒ„๋ ธ์ง€๋งŒ

๊ทธ๋Ÿผ์—๋„ ๋ถˆ๊ตฌํ•˜๊ณ  ์ง€์‹ฌ๋„์— ๋‚จ์€ ์ผ๋ณธ๊ตฐ

์‹œ์„ค๋“ค์˜ ์˜๋ฏธ๋Š” ๊ฒฐ์ฝ” ์ž‘์ง€ ์•Š๋‹ค. ์ผ๋ณธ์—์„œ

๊ฐ€๊นŒ์šด ์ง€๋ฆฌ์  ํŠน์ง•์ƒ ์ผ๋ณธ์—์„œ ์ง์ ‘ ์žฌ๋ฃŒ๋ฅผ

๊ณต์ˆ˜ํ•ด์„œ ๋งŒ๋“ค์—ˆ์„ ๊ฒƒ์œผ๋กœ ์ถ”์ •๋˜๋Š” ๊ด€์‚ฌ๋“ค์€

์ฆ์ถ•๋œ ๋ถ€๋ถ„๋“ค์„ ๊ฑท์–ด๋‚ด๋ฉด ์˜› ํ”์ ๋“ค์ด ๊ณ ์Šค๋ž€ํžˆ ๋‚จ์•„ ์žˆ์œผ๋ฉฐ ํฌ์ง„์ง€์™€ ํƒ„์•ฝ๊ณ , ๊ด€์ธก์†Œ์˜ ์œ„์น˜์™€ ํ–ฅํ•ด ์žˆ๋Š” ๋ฐฉํ–ฅ, ์„œ์น˜๋ผ์ดํŠธ๋Š” ์‚ฌ๋ผ์กŒ์ง€๋งŒ ์—ฌ์ „ํžˆ ๋‚จ์•„ ์žˆ๋Š” ์„œ์น˜๋ผ์ดํŠธ

๋ณด๊ด€์†Œ์™€ ์ฃผ๋ณ€์˜ ์ฃผ์š” ์œ„์น˜๋ฅผ ํ‘œ์‹œํ•ด๋‘” ํ‘œ์ง€์„ ๋“ฑ์€ ์ง€์‹ฌ๋„๊ฐ€ 20์„ธ๊ธฐ ์ค‘๋ฐ˜ ์ง€์ •ํ•™์ ์œผ๋กœ ๊ฐ€์กŒ๋˜ ์ค‘์š”์„ฑ์„ ๊ทธ๋Œ€๋กœ ๋ณด์—ฌ์ฃผ๊ณ  ์žˆ๋‹ค. ์ด๋Š” ์ผ๋ณธ๊ตฐ์ด ํ•œ๋ฐ˜๋„๋ฅผ ์š”์ƒˆํ™”ํ•˜๊ณ ์ž ํ•˜์˜€๋˜,

์ „์Ÿ์˜ ์ƒํ”์„ ๊ทธ๋Œ€๋กœ ๋ณด์—ฌ์ฃผ๋Š”

์ฆ๊ฑฐ๋ผ ํ•  ์ˆ˜ ์žˆ๋‹ค.

์ง€์‹ฌ๋„์— ๋‚จ์€ ์ „์Ÿ์˜ ํ”์ ์€ ์ตœ๊ทผ 8ยท15

๊ด‘๋ณต์ ˆ ๊ธฐ๋… ๋‹คํ์™€ ๋‚ด์…”๋„ํŠธ๋Ÿฌ์ŠคํŠธ์˜ ๋ณด์กด

์šด๋™ ๋“ฑ์„ ํ†ตํ•ด ์กฐ๊ธˆ์”ฉ ์•Œ๋ ค์ง€๊ณ  ์žˆ์ง€๋งŒ

์—ฌ์ „ํžˆ ์•ž์œผ๋กœ ์ง€์‹ฌ๋„๊ฐ€ ์–ด๋–ค ์„ฌ์œผ๋กœ ๋‚จ์„์ง€๋Š” ๋ฏธ์ง€์ˆ˜์ด๋‹ค. ์ง€์‹ฌ๋„๋Š” ํ•œ๋ฐ˜๋„๊ฐ€ ๊ฒช์€ ํƒœํ‰์–‘์ „์Ÿ์˜ ์ƒํ”์„ ๊ทธ๋Œ€๋กœ ๊ฐ„์งํ•˜๊ณ  ์žˆ๋Š” ์„ฌ์œผ๋กœ, ๊ฐœ๋ณ„ ์‹œ์„ค ํ•˜๋‚˜ ํ•˜๋‚˜๊ฐ€ ์•„๋‹Œ ์ „์ฒด์ ์ธ ๊ตฐ ์‹œ์„ค๋“ค์ด ์ง‘ํ•ฉ์ ์œผ๋กœ ๋‚จ์•„ ์žˆ์–ด ์„ฌ ์ „์ฒด๊ฐ€ ์ „์Ÿ์œ ์‚ฐ์ด์ž ์šฐ๋ฆฌ์—๊ฒŒ๋Š” ์•„ํ”ˆ ์—ญ์‚ฌ์˜ ๊ธฐ์–ต์„ ๋– ์˜ฌ๋ฆฌ๊ฒŒ ํ•˜๋Š” ๋„ค๊ฑฐํ‹ฐ๋ธŒ ํ—ค๋ฆฌํ‹ฐ์ง€์ด๋‹ค. ๋˜ํ•œ ์ง€์‹ฌ๋„๋ฅผ ๋‘˜๋Ÿฌ์‹ผ ๋‹ค์–‘ํ•œ ๊ฐˆ๋“ฑ์ด ์žˆ๋Š” ๋ถˆํŽธ๋ฌธํ™”์œ ์‚ฐ์ด๋ผ๊ณ ๋„ ํ•  ์ˆ˜ ์žˆ๋‹ค. ํŠนํžˆ ํ•ด๋ฐฉ ์ดํ›„ ์ง€์‹ฌ๋„์— ์Œ“์ธ ์‹œ๊ฐ„๋“ค ์—ญ์‹œ ์•„์ง์€ ๋งŽ์ด ๋ฐํ˜€์ง€์ง€ ์•Š์•˜์ง€๋งŒ, ๊ทธ ์˜๋ฏธ๊ฐ€ ์ž‘์ง€๋Š” ์•Š๋‹ค. 1968๋…„๊นŒ์ง€ ํ† ์ง€๋Œ€์žฅ์ƒ์—์„œ๋Š” ์ผ๋ณธ ์œก๊ตฐ์„ฑ์˜ ์†Œ์œ ์˜€๋˜ ์ง€์‹ฌ๋„์— ๋“ค์–ด์™€์„œ ์‚ด๋˜ ์ด๋“ค์€ ์–ด๋–ค ์‚ฌ๋žŒ๋“ค์ด์—ˆ์„๊นŒ? ๊ทธ๋“ค์€ ์–ด๋–ป๊ฒŒ ์ผ๋ณธ๊ตฐ์ด ๋– ๋‚œ ๋นˆ ์ง‘์—์„œ ์ „์Ÿ์„ ์œ„ํ•ด ๋งŒ๋“ค์–ด์ง„ ์„ฌ์„ ๋‹ค์‹œ ์‚ถ์˜ ํ„ฐ์ „์œผ๋กœ ๊ฐ€๊พธ์—ˆ๋˜ ๊ฒƒ์ผ๊นŒ? ํ•ด๋ฐฉ ์ดํ›„ ์†Œ์œ„ ์ ์‚ฐ(ๆ•ต็”ฃ), ์ฆ‰ ์ผ๋ณธ ์†Œ์œ ์˜ ์žฌ์‚ฐ๋“ค์€ ๊ท€์†์žฌ์‚ฐ์ฒ˜๋ฆฌ๋ฒ•์— ์˜ํ•ด ๋Œ€๋ถ€๋ถ„ ๋ฏผ๊ฐ„์— ๋ถˆํ•˜๋˜์—ˆ์ง€๋งŒ ์ด๊ณณ์˜ ํ† ์ง€์™€ ๊ฐ€์˜ฅ์€ ๊ตญ๋ฐฉ๋ถ€ ์†Œ์œ ์ธ ๋‹น์‹œ์—๋„, ๋˜ํ•œ ๊ฑฐ์ œ์‹œ๋กœ ์†Œ์œ ๊ถŒ์ด ์ด์ „๋œ ํ›„์—๋„ ๋ฏผ๊ฐ„์— ๋ถˆํ•˜๋˜์ง€๋„ ์•Š์•˜๋‹ค. ์ด ๊ฐ™์€ ๊ณผ์ •์—์„œ ์ฃผ๋ฏผ๋“ค์€ ๊ฑฐ์ œ์‹œ ๋˜ํ•œ ๊ตญ๋ฐฉ๋ถ€์™€ ๊ฐˆ๋“ฑ์„ ๊ฒช์–ด ์™”๊ณ , ๊ทธ ๊ณผ์ •์—์„œ ์ง€์‹ฌ๋„์˜ ์ „์Ÿ์‹œ์„ค๋“ค์€ ์‚ฌ์šฉ์ž์˜ ํ•„์š”์— ๋”ฐ๋ผ ๋ณ€ํ˜•๋˜๊ธฐ๋„ ํ•˜๊ณ  ๋ฒ„๋ ค์ง€๊ธฐ๋„ ํ•˜์˜€๋‹ค.

47 ๋ณด๊ด€์†Œ๊ฐ€
์‚ด์•„ ์žˆ๋Š”
6. ํ‘œ์ง€์„ 7. ๊ฑฐ์ œ๋„ ํฌ๋กœ์ˆ˜์šฉ์†Œ ์œ ์  ํ•œ ์ผ ์— ๋‚จ์€ ์ง„์งœ ํฌ๋กœ์ˆ˜์šฉ์†Œ ์œ ์  โ“’์ด์—ฐ๊ฒฝ 7 6

์ „์Ÿ์˜ ์ƒํ”์ด ์œ ํฌ๊ฐ€ ๋˜์–ด๋ฒ„๋ฆฐ ์„ฌ, ๊ฑฐ์ œ๋„๋ฅผ ๋ณด๋ฉฐ ์ง€์‹ฌ๋„์˜ ๋ฏธ๋ž˜๋ฅผ ๊ณ ๋ฏผํ•œ๋‹ค ๊ทธ๋ ‡๋‹ค๋ฉด ์ง€์‹ฌ๋„๋Š” ์–ด๋–ค ๋ฏธ๋ž˜๋ฅผ ์ค€๋น„ํ•ด์•ผํ• ๊นŒ? ์ง€์‹ฌ๋„์— ๋‚จ์€ ์—ญ์‚ฌ์˜ ๋ฌด๊ฒŒ๊ฐ€ ๊ฐ€๋ณ์ง€ ์•Š๊ณ , ์ง€์‹ฌ๋„๋ฅผ ๋‘˜๋Ÿฌ์‹ผ ์ดํ•ด๋‹น์‚ฌ์ž๋“ค ๊ฐ„์˜ ๊ฐˆ๋“ฑ์ด ์žˆ๊ธฐ์— ์ง€์‹ฌ๋„์˜ ๋ฏธ๋ž˜๋ฅผ ๋…ผํ•˜๋Š” ๊ฒƒ์ด ์‰ฝ์ง€ ์•Š์€ ๊ฒƒ๋„ ์‚ฌ์‹ค์ด๋‹ค. ํ•˜์ง€๋งŒ ํ˜„์žฌ์™€ ๊ฐ™์€ ์ƒํƒœ๋กœ ๊ด€๋ฆฌ๋˜์ง€ ์•Š์€ ์ฑ„ ๋ฌด๋ถ„๋ณ„ํ•˜๊ฒŒ ๊ฐœ๋ณ„ ์‚ฌ์šฉ์ž๊ฐ€ ์‹œ์„ค๋ฌผ๋“ค์„ ๋ณ€ํ˜•์‹œ์ผœ๋‚˜๊ฐ€๊ฑฐ๋‚˜, ์ฃผ๋ฏผ๋“ค์ด ๋– ๋‚œ ๋นˆ ์ง‘์œผ๋กœ ๋‚จ์•„์žˆ๋Š”๋‹ค๋ฉด, ์ง€์–ด์ง„ ์ง€ 80๋…„์ด ํ›Œ์ฉ ๋„˜์€ ๊ฑด๋ฌผ๋“ค์€ ๋น ๋ฅธ ์‹œ์ผ ๋‚ด์— ํšŒ๋ณต ๋ถˆ๊ตฌํ•˜๊ฒŒ ํ›ผ์†๋˜์–ด ๋ฌธํ™”์œ ์‚ฐ์œผ๋กœ์„œ์˜ ์ง„์ •์„ฑ์„ ๋‹ค ์žƒ์–ด๋ฒ„๋ฆด์ง€๋„ ๋ชจ๋ฅธ๋‹ค. ํ•œํŽธ ๊ฑฐ์ œ์‹œ๊ฐ€ ์„ธ์šฐ๊ณ  ์žˆ๋Š” ์ง€์‹ฌ๋„ ๊ด€๊ด‘๊ฐœ๋ฐœ๊ณ„ํš ์—ญ์‹œ ๊ฑฐ์ œ๋„์˜ ํฌ๋กœ์ˆ˜์šฉ์†Œ ์œ ์ ๊ณต์›์„ ๋ณด๊ณ  ์žˆ์ž๋ฉด ์‹ฌํžˆ ์—ผ๋ ค์Šค๋Ÿฝ๊ธฐ๋งŒ ํ•˜๋‹ค. ๊ฑฐ์ œ๋„์—๋Š” ํ•œ๊ตญ์ „์Ÿ ๋‹น์‹œ ์กฐ์„ ์ธ๋ฏผ๊ตฐ๊ณผ ์ค‘๊ณต๊ตฐ ํฌ๋กœ๋ฅผ ์ˆ˜์šฉํ•˜๊ธฐ ์œ„ํ•ด ๋งŒ๋“ค์–ด์ง„ ํฌ๋กœ์ˆ˜์šฉ์†Œ๊ฐ€ ์œ„์น˜ํ•˜์˜€๊ณ , ํฌ๋กœ์ˆ˜์šฉ์†Œ์˜ ์ž”์กด์œ ์ ๋“ค์€ ์ดํ›„ 1983๋…„ 12์›” ๊ฒฝ์ƒ๋‚จ๋„ ์ง€๋ฐฉ๋ฌธํ™”์žฌ ์ž๋ฃŒ ์ œ99ํ˜ธ๋กœ ์ง€์ •๋˜์—ˆ๋‹ค. 1999๋…„ 10์›” ํฌ๋กœ์ˆ˜์šฉ์†Œ ์œ ์ ๊ด€ ๊ฐœ๊ด€์— ์ด์–ด 2002๋…„ 11์›”์—๋Š” ํฌ๋กœ์ˆ˜์šฉ์†Œ ์œ ์ ๊ณต์›์ด ๊ฐœ๊ด€ํ•˜์˜€๋Š”๋ฐ, ์‚ฌ์‹ค์ƒ ์ด ์œ ์ ๊ณต์›์—์„œ ์ž”์กด์œ ์ ์€ ๊ณต์› ํ•œ์ชฝ ๊ตฌ์„์— ๋ฉ๊ทธ๋ผ๋‹ˆ ๋†“์—ฌ ์žˆ๊ณ , ๊ณต์› ๋Œ€๋ถ€๋ถ„์€ ์ „์Ÿ ์ฒดํ—˜ ํ…Œ๋งˆํŒŒํฌ์™€ ๋งˆ์ฐฌ๊ฐ€์ง€๋กœ ๋งŒ๋“ค์–ด์กŒ๋‹ค. ๋ชจ๋…ธ๋ ˆ์ผ์— ์งš๋ผ์ธ, ๋†€์ด๊ธฐ๊ตฌ๋“ค๊ณผ ์„œ๋ฐ”์ด๋ฒŒ, VR์ฒดํ—˜์žฅ๊นŒ์ง€ ๊ฐ–์ถ˜

48 8~10. ๊ณต์› ์ „๋ฐ˜์„ ๊ตฌ์„ฑํ•˜๊ณ  ์žˆ๋Š”, ์กฐ์•…ํ•˜๊ฒŒ ์žฌํ˜„๋œ ํฌ๋กœ์ˆ˜์šฉ์†Œ ์œ ์  โ“’์ด์—ฐ๊ฒฝ
8 9

์ด ๊ณต์›์—์„œ ์ „์Ÿ์€ ํ•˜๋‚˜์˜ ์ฒดํ—˜๊บผ๋ฆฌ๋กœ ์ฒ ์ €ํ•˜๊ฒŒ ํƒ€์žํ™” ๋˜๋ฉฐ ๋‚˜์™€๋Š” ์ƒ๊ด€์—†๋Š” ์œ ํฌ๊ฐ€ ๋˜์–ด๋ฒ„๋ ธ๋‹ค. ์ž…๊ตฌ๋ถ€ํ„ฐ ์ฟต์ง์ฟต์ง ํ•˜๋Š” ์Œ์•…์†Œ๋ฆฌ๊ฐ€ ๋“ค๋ฆฌ๊ณ , ๋‚ด๋ถ€์—์„œ๋Š” ์‹ ๋‚˜๊ฒŒ ์งš๋ผ์ธ์„ ํƒ€๊ณ  ์ „์Ÿ๋†€์ดํ•˜๋“ฏ ์ด์„ ์˜๋Š” ์ด๊ณณ์—์„œ ํ•œ๊ตญ์ „์Ÿ์€ ์ „์‹œ๊ด€ ์† ์ผ๋ถ€ ๋””์˜ค๋ผ๋งˆ๋กœ๋งŒ ๋‚จ์•„๋ฒ„๋ ธ๋‹ค. ๋ฏผ์†์ดŒ์ฒ˜๋Ÿผ ์žฌํ˜„๋œ ํฌ๋กœ์ˆ˜์šฉ์†Œ์˜ ๋ชจ์Šต์€ ๊ณต์› ํ•œ ๊ฐ€์šด๋ฐ ์ž๋ฆฌ ์žก๊ณ  ์žˆ์ง€๋งŒ, ์‹ค์ œ ํฌ๋กœ์ˆ˜์šฉ์†Œ ๊ฑด๋ฌผ์ด์—ˆ๋˜ ๋ฌธํ™”์žฌ๋Š” ๋ณดํ˜ธ ๋ชฉ์ ์—์„œ์ธ์ง€ ๊ณต์› ํ•œ์ชฝ ๋์— ์ ‘๊ทผ์ด ๊ธˆ์ง€๋œ ์ฑ„ ์„ฌ์ฒ˜๋Ÿผ ๋‚จ์•„ ์žˆ๋‹ค. ๊ฑฐ์ œ๋„์˜ ์ฃผ์š” ๊ด€๊ด‘์ž์›์ด๊ธฐ์— ์ „์Ÿ์ด๋ผ๋Š” ๋ฌด๊ฑฐ์šด ์ฃผ์ œ ๋Œ€์‹  ์ฒดํ—˜ํ˜• ๋†€์ด๊ณต์›์„ ํƒํ•œ ๊ฑฐ์ œ ํฌ๋กœ์ˆ˜์šฉ์†Œ ์œ ์ ๊ณต์›์„ ๋ณด๊ณ  ์žˆ์ž๋ฉด ์ง€์‹ฌ๋„์˜ ๋ฏธ๋ž˜ ์—ญ์‹œ ๊ฑฑ์ •์ด ๋  ์ˆ˜๋ฐ–์— ์—†๋‹ค. ๋™๋ฐฑ๊ฝƒ์ด ์•„๋ฆ„๋‹ค์šด ์„ฌ, ์ง€์‹ฌ๋„. ๊ทธ๋Ÿฌ๋‚˜ ๊ทธ ์ด์ƒ์˜ ์—ญ์‚ฌ์  ์•„ํ””์ด ์žˆ๋Š” ์„ฌ. ์„ฌ์„ ๋‘˜๋Ÿฌ์‹ผ ์•„๋ฆ„๋‹ค์šด ํ’๊ด‘ ๊ตฌ์„๊ตฌ์„ ๋‚จ์€ ์ „์Ÿ์œ ์‚ฐ๋“ค์€ ์–ด๋–ป๊ฒŒ ์ฒด๊ณ„์ ์œผ๋กœ ๋ณด์กด๋˜๊ณ  ๊ด€๋ฆฌ๋˜์–ด์•ผ ํ• ๊นŒ. ์•„๋‹ˆ ๊ทธ์— ์•ž์„œ ์šฐ๋ฆฌ๋Š” ์–ด๋–ป๊ฒŒ ์ด ์„ฌ์„ ๊ธฐ์–ตํ•ด์•ผํ•˜๋Š” ๊ฒƒ์ผ๊นŒ. ๊ทธ ๊ณ ๋ฏผ์ด ์‹œ๊ธ‰ํ•˜๊ฒŒ ์š”๊ตฌ๋˜๋Š” ์‹œ์ ์ด๋‹ค. ๋‚จ์•„ ์žˆ๋Š” ์ง€์‹ฌ๋„ ์ „์Ÿ ์œ ์‚ฐ๋“ค์— ๋Œ€ํ•œ ์ฒด๊ณ„์ ์ธ ์กฐ์‚ฌ์™€ ๊ด€๊ด‘์ด๋ผ๋Š” ๋‹จ๊ธฐ์  ๋ชฉ์ ์„ ์œ„ํ•œ ์‹œ์„ค ํ™œ์šฉ์ด ์•„๋‹Œ ์ง€์‹ฌ๋„์˜ ์•„ํ”ˆ ์‹œ๊ฐ„์„ ์šฐ๋ฆฌ ๋ชจ๋‘๊ฐ€ ๊ธฐ์–ตํ•˜๊ณ  ์ด๋ฅผ ํ†ตํ•ด ๋ฐฐ์›Œ๋‚˜๊ฐˆ ์ˆ˜ ์žˆ๋Š” ๊ณต๊ณต์  ํ™œ์šฉ์„ ๋” ๋Šฆ๊ธฐ ์ „์— ๋ชจ์ƒ‰ํ•ด์•ผํ•  ๊ฒƒ์ด๋‹ค. ์ฐธ๊ณ ๋ฌธํ—Œ 1. ์ด์ง€์˜ยท์„œ์น˜์ƒ, โ€˜์ง€์‹ฌ๋„(ๅชๅฟƒๅณถ)์˜ ์ผ๋ณธ๊ตฐ์‚ฌ์‹œ์„ค์— ๊ด€ํ•œ ์—ฐ๊ตฌโ€™, ๊ฑด์ถ•์—ญ์‚ฌ์—ฐ๊ตฌ 22(5), 2013 2. MBC ๊ด‘๋ณต์ ˆ ํŠน์ง‘ ๋‹คํ๋ฉ˜ํ„ฐ๋ฆฌ โ€˜๋น„๋ฐ€์˜ ์„ฌ ์ง€์‹ฌ๋„โ€™, 20220815 ๋ฐฉ์˜ 3. ํ•œ๊ตญ๋‚ด์…”๋„ํŠธ๋Ÿฌ์ŠคํŠธ https://nationaltrust.or.kr/

10 11

49
๋ฐ”๋ผ๋ณธ
์„ ์ฐฉ์žฅ๊ณผ ์ค‘๋Œ€์žฅ ๊ด€์‚ฌ ๋“ฑ์ด ๋ณด์ธ๋‹ค.
11. ๋ฐ”๋‹ค์—์„œ
์ง€์‹ฌ๋„.
โ“’์ด์—ฐ๊ฒฝ

์„œํšจ์› ์ง€์Œ ์‹œ๊ณต๋ฌธํ™”์‚ฌ ๋ฐœํ–‰, 2๋งŒ์›

์ด ์ฑ…์€ ์‹ฌ์›๋ฌธํ™”์‚ฌ์—…ํšŒ(์ด์‚ฌ์žฅ ์ดํƒœ๊ทœ)์˜ ์‹ ์ง„์—ฐ๊ตฌ์ž ๋ฐœ๊ตด ๋ฐ ์ €์ˆ ์ง€์› ์‚ฌ์—…์ธ ์ œ12ํšŒ ์‹ฌ์›๊ฑด์ถ•ํ•™์ˆ ์ƒ ์ˆ˜์ƒ์ž‘์„ ๋‹จํ–‰๋ณธ์œผ๋กœ ์—ฎ์€ ๊ฒƒ์ด๋‹ค. ์‹ฌ์›๊ฑด์ถ•ํ•™์ˆ ์ƒ ์ด์„œ 8๊ถŒ. ํ•œ๋ฐ˜๋„์—์„œ ๊ทผ๋Œ€๊ธฐ๋Š” ์šฐ๋ฆฌ ๊ฑด์ถ• ์ „ํ†ต์ด ๋‹จ์ ˆ๋œ ์‹œ๊ธฐ๋กœ ํ‰๊ฐ€๋œ๋‹ค. ์ด๋Š” ํ•œ๋ฐ˜๋„์˜ ๊ทผ๋Œ€๊ฐ€ ์‹๋ฏผ์ง€๋ผ๋Š” ํŠน์ˆ˜ํ•œ ์ƒํ™ฉ ์†์—์„œ ์ „๊ฐœ๋˜์—ˆ๊ณ , ๋ณด์กด๋Œ€์ƒ ์„ ํƒ์˜ ์ฃผ๋„๊ถŒ์ด ํƒ€์˜์— ๋งก๊ฒจ์กŒ๊ธฐ ๋•Œ๋ฌธ์ด๋‹ค. ์‹๋ฏผ์ง€ ๊ทผ๋Œ€๊ฐ€ ์™œ๊ณกํ•œ ์—ญ์‚ฌ๋ฅผ ๋ฐ”๋กœ์žก์œผ๋ ค๋Š” ๋…ธ๋ ฅ์— ๊ธฐ๋ฐ˜์„ ๋‘” โ€˜๋‹จ์ ˆโ€™์ด๋ผ๋Š” ํ•ด์„์€ ๊ทธ ํƒ€๋‹น์„ฑ์—๋„ ๋ถˆ๊ตฌํ•˜๊ณ  ๋•Œ๋•Œ๋กœ ์šฐ๋ฆฌ ๊ฑด์ถ•์ด ๊ทผ๋Œ€๊ธฐ์— ๋งž๋‹ฅ๋œจ๋ฆฐ ํ˜„์‹ค์„ ๊ฐ๊ด€์ ์œผ๋กœ ํ‰๊ฐ€ํ•˜๊ธฐ ์œ„ํ•œ ๊ท ํ˜•๊ฐ๊ฐ์„ ์žƒ๊ฒŒ ๋งŒ๋“ ๋‹ค. ์ด ์ฑ…์—์„œ ใ€Œ๋ณด๋ฌผ๊ฑด์กฐ๋ฌผใ€ ์„ฑ๋ฆฝ ๊ณผ์ •์ด๋‚˜ ๋ณด์กด ์ˆ˜๋ฆฌ์ฒด์ œ ์„ฑ๋ฆฝ ์–‘์ƒ ๋“ฑ๊ณผ ํ•จ๊ป˜ ์ด์— ๋Œ€ํ•œ ์ผ์ œ์˜ ํƒœ๋„์™€ ์ธ์‹์„ ํ•จ๊ป˜ ์‚ดํ”ผ๋Š” ์ด์œ ๋Š” ์ด ์‹œ๊ธฐ ๋ณด์กด ํ™œ๋™์—

์กฐ์„ ์ด๋…๋ถ€๋ผ๋Š” ์‹๋ฏผํ†ต์น˜๊ธฐ๊ตฌ์˜ ์„ ํƒ๊ณผ ๊ฒฐ์ •์ด ์ง€์†์ ์ธ ๋ฐฐ๊ฒฝ์œผ๋กœ ์ž‘์šฉํ•˜์˜€๊ธฐ ๋•Œ๋ฌธ์ด๋‹ค. ์ด๋…๋ถ€์˜ ์˜ํ–ฅ๋ ฅ ์•„๋ž˜ ์šฐ๋ฆฌ ๊ฑด์ถ•๋ฌธํ™”์œ ์‚ฐ ๋ณด์กด๊ณผ ๊ด€๋ จ๋œ

๋ฒ•๋ น, ๊ธฐ๊ตฌ, ์˜ˆ์‚ฐ์ด ์ฒ˜์Œ ๋งŒ๋“ค์–ด์กŒ๊ณ , ๊ฑด์ถ• ๋ณด์กด์„ ์œ„ํ•œ ์ฒซ ์ˆ˜๋ฆฌ๊ณต์‚ฌ๊ฐ€ ์ด๋ฃจ์–ด์กŒ๋‹ค. ๋˜ํ•œ, ์ˆ˜๋ฆฌ๊ณต์‚ฌ ์„ธ๋ถ€์ง€์นจ, ์ˆ˜๋ฆฌ์›์น™, ์ˆ˜๋ฆฌ๊ธฐ์ˆ  ๋“ฑ์ด ๋„์ž…ยท์ •์ฐฉ๋˜์—ˆ๊ณ  ์‹ค์ธก ์กฐ์‚ฌ๊ฐ€ ์‹œํ–‰๋˜์–ด ์šฐ๋ฆฌ ๊ฑด์ถ•์˜ ๊ธฐ๋ฒ•๊ณผ ํŠน์ง•์ด ๋ฐํ˜€์ง€๊ธฐ๋„ ํ•˜์˜€๋‹ค. ํ•˜์ง€๋งŒ ์ด ๋ชจ๋“  ๊ณผ์ •์˜ ์ฃผ๋„๊ถŒ์ด ์ผ์ œ์— ์žˆ์—ˆ์œผ๋ฏ€๋กœ ์ด ์‹œ๊ธฐ ํ™œ๋™์ด ์šฐ๋ฆฌ ๊ฑด์ถ•๋ฌธํ™”๋ฅผ ๊ณ„์Šนํ•˜๊ณ , ๊ตญ๊ฐ€ ์ •์ฒด์„ฑ์„ ํ™•๋ฆฝํ•ด ๋‚˜๊ฐ€๊ธฐ ์œ„ํ•œ ์ˆœ์ˆ˜ํ•œ ๊ทผ๋Œ€์  ๋ณด์กด์˜ ์‹œ์ž‘์ด๋ผ๊ณ  ๋ณด๊ธฐ ํž˜๋“ค๋‹ค. ์šฐ๋ฆฌ ๊ทผ๋Œ€๊ธฐ ๋ณด์กด ํ™œ๋™์— ๋Œ€ํ•œ ๊ฐ€์น˜ํ‰๊ฐ€๊ฐ€ ์‰ฝ์ง€ ์•Š์€ ์ด์œ ๊ฐ€

์—ฌ๊ธฐ์— ์žˆ์œผ๋ฉฐ, ์ผ์ œ๊ฐ•์ ๊ธฐ ๋ณด์กด ํ™œ๋™์„ ์„ธ๋ฐ€ํ•˜๊ณ  ์ฃผ์˜ ๊นŠ๊ฒŒ ์‚ดํŽด์•ผ ํ•˜๋Š” ์ด์œ ๋„ ์—ฌ๊ธฐ์— ์žˆ๋‹ค.

๊น€์‹œ๋• ์ง€์Œ ์—ด๋ฆฐ์ฑ…๋“ค ๋ฐœํ–‰, 2๋งŒ์›

๋„์‹œ ๋ฌธํ—Œํ•™์ด๋ผ๋Š” ๊ณ ์œ ํ•œ ๋ฐฉ๋ฒ•๋ก ์œผ๋กœ ๋„์‹œ ๋‹ต์‚ฌ์˜ ์ƒˆ๋กœ์šด ๋ชจ๋ธ์„ ๋งŒ๋“ค์–ด ๊ฐ€๊ณ  ์žˆ๋Š” ใ€Ž์„œ์šธ ์„ ์–ธใ€ ์‹œ๋ฆฌ์ฆˆ๊ฐ€ ์‹œ์ฆŒ 3์œผ๋กœ ๋Œ์•„์™”๋‹ค. ๊ทœ์žฅ๊ฐ ํ•œ๊ตญํ•™ ์—ฐ๊ตฌ์†Œ ๊น€์‹œ๋• ๊ต์ˆ˜์˜ ์‹ ๊ฐ„ ใ€Ž๋Œ€์„œ์šธ์˜ ๊ธธใ€์€ ์ œ๋ชฉ ๊ทธ๋Œ€๋กœ โ€˜๊ธธโ€™์ด ์ฃผ์ธ๊ณต์ด๋‹ค. ๊ต์™ธ์„ , ์ˆ˜๋ ค์„ , 48๋ฒˆ ๊ตญ๋„ ๋“ฑ ์„œ์šธ ๋‚ด์™ธ๊ณฝ์—์„œ ๋ฒˆ์„ฑํ–ˆ๋˜ ์ฒ ๊ธธ๊ณผ ๋„๋กœ๋ฅผ ๋”ฐ๋ผ ๊ฑธ์œผ๋ฉฐ ์‹œ๋ฏผ์˜ ์žŠํžŒ ์—ญ์‚ฌ์™€ ๋Œ€์„œ์šธ์˜ ๊ตฌ์กฐ๋ฅผ ์ฝ์–ด ๋‚ธ๋‹ค. ใ€Ž์„œ์šธ ์„ ์–ธใ€ ์• ๋…์ž๋ผ๋ฉด ์ถฉ๋ถ„ํžˆ ์˜ˆ์ƒํ•  ์ˆ˜ ์žˆ๋“ฏ, ์ด๋ฒˆ ๋‹ต์‚ฌ์—๋„ โ€˜์ „๊ทผ๋Œ€์˜ ์™•๊ณผ ์–‘๋ฐ˜๊ณผ ์ „์Ÿ ์˜์›…๋“คโ€™์˜ ๊ธฐ๋…๋ฌผ์€ ๋“ฑ์žฅํ•˜์ง€ ์•Š๋Š”๋‹ค. ๊ทธ ๋Œ€์‹  ์ฒ ๊ธธ ๋ณ€ ๋งˆ์„์˜ ์˜› ์ง€๋ช…๊ณผ ๋น„์„, ๊ตญ๋„์˜ ํ‘œ์ง€์„๊ณผ ํ์—ญ์˜ ํ”Œ๋žซํผ ๋“ฑ ๋Œ€์„œ์šธ ์ฃผ๋ณ€์˜ โ€˜๊ธธโ€™๊ณผ ๊ด€๋ จ๋œ โ€˜๋„์‹œ ํ™”์„โ€™์ด ์ง€๋ฉด์„ ์ฑ„์šด๋‹ค.

50
1. ์ผ์ œ์‹œ๊ธฐ ๋ณด๋ฌผ๊ฑด์กฐ๋ฌผ์˜ ๋ณด์กด๊ณผ ์ˆ˜๋ฆฌ 2. ๋Œ€์„œ์šธ์˜ ๊ธธ: ํ™•์žฅํ•˜๋Š” ๋„์‹œ์˜ ํ˜„์žฌ์‚ฌ ์ถ”์ฒœ๋„์„œ ๋ธŒ๋ฆฌํ”„ ๊ฑด์ถ•ํ•™์ˆ ์ด์„œ ใ€Ž์ผ์ œ์‹œ๊ธฐ ๋ณด๋ฌผ๊ฑด์กฐ๋ฌผ์˜ ๋ณด์กด๊ณผ ์ˆ˜๋ฆฌใ€ ์ง€๋ฆฌ๊ธฐํ–‰์„œ ใ€Ž๋Œ€์„œ์šธ์˜ ๊ธธ: ํ™•์žฅํ•˜๋Š” ๋„์‹œ์˜ ํ˜„์žฌ์‚ฌใ€ 1 2

๋„์‹œ์‚ฌํ•™ํšŒ ์—ฐ๊ตฌ๋ชจ์ž„ ๊ณต๊ฐ„๋‹ดํ™” ์ง€์Œ ์„œํ•ด๋ฌธ์ง‘ ๋ฐœํ–‰, 2๋งŒ7000์›

๋„์‹œ๋Š” ๊ฐ์–‘๊ฐ์ƒ‰์˜ ๋‹ค์ธต์ ์ด๊ณ  ์ค‘์ธต์ ์ธ ๊ธฐ์–ต์˜ ์žฅ์†Œ์ด๋‹ค. ๊ณ ๋Œ€๋ถ€ํ„ฐ ์˜ค๋Š˜๋‚ ์— ์ด๋ฅด๊ธฐ๊นŒ์ง€ ์ •์น˜ยท์ข…๊ต ๊ฒฝ์ œ ์—˜๋ฆฌํŠธ ์ง€๋ฐฐ์ธต์ด๋‚˜ ์‹œ๋ฏผ๋“ค์€ ๋„์‹œ ๊ณณ๊ณณ์— ๊ณ„์Šนํ•˜๊ฑฐ๋‚˜ ์ „์Šนํ•˜๊ณ  ์‹ถ์€ ์—ฌ๋Ÿฌ ๊ธฐ์–ต์˜ ๋งค๊ฐœ๋ฌผ๋“ค์„ ๋งŒ๋“ค์–ด ์™”๋‹ค. ์ด ์ฑ…์€ ํ•œยท์ค‘ยท์ผ 3๊ตญ์€ ๋ฌผ๋ก , ๋ฒ ํŠธ๋‚จ๊ณผ ๋ง๋ ˆ์ด๋ฐ˜๋„ ๋“ฑ์˜ ๋™๋‚จ์•„, ๊ทน๋™ ๋Ÿฌ์‹œ์•„ ์ผ๋ถ€ ๋„์‹œ๋„ ํฌํ•จํ•ด ์ฃผ๋กœ ๊ทผํ˜„๋Œ€ ๋™์•„์‹œ์•„ ๋„์‹œ ์ž์ฒด๋‚˜ ๋„์‹œ์˜ ํŠน์ • ๊ตฌ์—ญ์ด ์–ด๋–ป๊ฒŒ ๊ธฐ์–ต์˜

์žฅ์†Œ๋“ค์„ ํ˜•์„ฑํ•ด ๊ฐ”๋Š”์ง€, ์–ด๋–ป๊ฒŒ ๋‹ค์ธต์  ๋„์‹œ ์ •์ฒด์„ฑ์„ ๊ฐ€์กŒ์œผ๋ฉฐ, ์ด ์ •์ฒด์„ฑ์ด ์‹œ๊ฐ„์˜ ํ๋ฆ„ ์†์—์„œ ์–ด๋–ป๊ฒŒ ์œ ์ง€ ๋ณ€ํ™”ยท๋ณ€์šฉ๋˜์–ด ๊ฐ€๋Š”์ง€๋ฅผ ์‚ดํŽด๋ณธ๋‹ค. ์ด๋ฅผ ์œ„ํ•ด ์ฑ…์—์„œ๋Š” ๋™์•„์‹œ์•„ ๋„์‹œ๋“ค์ด ๊ฐ„์งํ•œ ์—ญ์‚ฌ, ๋ฌธํ™”, ๊ธฐ์–ต์„ ๋งค๊ฐœ๋กœ ํ•ด์„œ ๋„์‹œ ์ •์ฒด์„ฑ์„ ํฌ๊ฒŒ 1๋ถ€ โ€˜์‹๋ฏผ๋„์‹œโ€™, 2๋ถ€ โ€˜๋ฌธํ™”์œ ์‚ฐ๋„์‹œโ€™, 3๋ถ€ โ€˜์‚ฐ์—…๊ตฐ์‚ฌ๋„์‹œโ€™๋กœ ๋ฒ”์ฃผํ™”ํ–ˆ๋‹ค.

์ด ์ฑ…์€ ๋™์•„์‹œ์•„ ๋„์‹œ์˜ ๋„๋ฆฌ ์•Œ๋ ค์ง€๊ฑฐ๋‚˜ ์ต์ˆ™ํ•œ ๊ณณ๋งŒ์ด ์•„๋‹ˆ๋ผ ์ƒ๋Œ€์ ์œผ๋กœ ๋œ ์•Œ๋ ค์ง€๊ณ  ์ต์ˆ™ํ•˜์ง€ ์•Š์€ ๋„์‹œ๋“ค๋„ ํฌํ•จํ–ˆ๋‹ค. ๊ทผํ˜„๋Œ€์— ์ง‘์ค‘ํ•ด ๋™์•„์‹œ์•„ ๋„์‹œ๋“ค์˜ ์ฃผ์š”ํ•œ ๊ธฐ๋Šฅ๊ณผ ํ˜•ํƒœ์— ๋”ฐ๋ฅธ ๋ฒ”์ฃผ ๋˜๋Š” ์ •์ฒด์„ฑ์— ํ•ด๋‹นํ•˜๋Š” ์‹๋ฏผ๋„์‹œ, ๋ฌธํ™”์œ ์‚ฐ๋„์‹œ, ์‚ฐ์—…๊ตฐ์‚ฌ๋„์‹œ๋ฅผ ๊ฒ€ํ† ํ•œ ๊ฒƒ์€, ์ด๋“ค ๋„์‹œ ์œ ํ˜•์ด ์˜ค๋Š˜๋‚  ๋™์•„์‹œ์•„์˜ ๋งŽ์€ ๋„์‹œ์— ๊ณ„์†ํ•ด์„œ ์ง๊ฐ„์ ‘์ ์ธ ์˜ํ–ฅ์„ ๋ฏธ์น˜๊ณ  ์žˆ๊ธฐ ๋•Œ๋ฌธ์ด๋‹ค. ํ•œํŽธ, ์ด ์ฑ…์€ 2017๋…„ ใ€Ž๋„์‹œ๋Š” ๊ธฐ์–ต์ด๋‹คใ€๋ฅผ ์ถœ๊ฐ„ํ•ด ์„œ์–‘์˜ ๋„์‹œ๋“ค๊ณผ ์—ญ์‚ฌ์— ๋Œ€ํ•œ ๋…์ž๋“ค์˜ ๊ด€์‹ฌ์„ ๋ถˆ๋Ÿฌ์ผ์œผ์ผฐ๋˜ ๋„์‹œ์‚ฌ ์—ฐ๊ตฌ์ž๋“ค์˜ ๋ชจ์ž„์ธ โ€˜๋„์‹œ์‚ฌํ•™ํšŒโ€™์™€ ๋„์‹œ์‚ฌ๋ฅผ ๋น„๋กฏํ•ด ๋„์‹œ๋ฌธํ™”๋ฅผ ์—ฐ๊ตฌํ•˜๋Š” ์‹ ์ง„ ์—ฐ๊ตฌ์ž๋“ค์˜ โ€˜์—ฐ๊ตฌ๋ชจ์ž„ ๊ณต๊ฐ„๋‹ดํ™”โ€™๊ฐ€ ํž˜์„ ํ•ฉ์ณ ํŽด๋‚ธ ๋œป๊นŠ์€ ๊ฒฐ๊ณผ๋ฌผ์ด๋‹ค. ๋˜ํ•œ ใ€Š๋„์‹œ๋Š” ๊ธฐ์–ต์ด๋‹คใ€‹์—์„œ ๋‹ค๋ฃจ์ง€ ๋ชปํ•œ ์•„์‹œ์•„ ๋„์‹œ์— ๊ด€ํ•œ ์—ฐ๊ตฌ์ž๋“ค์˜ ์—ฐ๊ตฌ ์„ฑ๊ณผ์™€ ๊ณ ๋ฏผ์ด ์˜ค๋กฏ์ด ๋‹ด๊ฒจ ์žˆ๋‹ค.

์ตœ์šฐ์šฉ ์ง€์Œ ๋ฏธ๋ฉ”์‹œ์Šค ๋ฐœํ–‰, 2๋งŒ4000์›

๊ฑด์ถ• ์„ค๊ณ„ ์ผ์„ ํ•˜๋ฉฐ ๊ทธ์™€ ๊ด€๋ จ๋œ ๊ธ€์„ ์“ฐ๋Š” ์ €์ž๋Š” ์ด ๋•… ์œ„์˜ ๋ฎค์ง€์—„์„ ์ฐพ์•„๋‹ค๋‹ˆ๋Š” ์ผ์ด ์Šค์Šค๋กœ ๋ฐฐ์›Œ ์•Œ๊ฒŒ ๋˜๋Š” โ€˜์ž๊ธฐ ๊ต์œกโ€™๊ณผ๋„ ๊ฐ™๋‹ค๊ณ  ๋งํ•œ๋‹ค. ๊ทธ๋Š” โ€˜์•Œ๊ณ  ์‹ถ์–ด์„œโ€™ ๋ฎค์ง€์—„/๋ฐ•๋ฌผ๊ด€์— ๊ฐ„๋‹ค. ๋ฌด์—‡๋ณด๋‹ค ๋ฎค์ง€์—„์ด ํ’ˆ๊ณ  ์žˆ๋Š” ์˜๋ฏธ์™€ ๋”๋ถˆ์–ด ๊ทธ๊ฒƒ์ด ๊ณต๊ฐ„๊ณผ ์–ด๋–ป๊ฒŒ ์–ด์šฐ๋Ÿฌ์ง€๊ณ , ํ˜น์€ ์–ด์šฐ๋Ÿฌ์ง€์ง€ ๋ชปํ•˜๊ณ , ๊ทธ๊ฒƒ๋“ค์ด ์šฐ๋ฆฌ์—๊ฒŒ ์–ด๋–ค ์˜๋ฏธ๊ฐ€ ์žˆ๋Š”์ง€๋ฅผ ๋ฐํžŒ๋‹ค. ์ด ์ฑ…์—์„œ ์ €์ž๋Š” ๋ฐœ๋กœ ๊ฑท๊ณ , ์†์„ ๋†€๋ฆฌ๋ฉฐ, ๋ƒ„์ƒˆ ๋งก๊ณ , ๊ท€๋กœ ๋“ค์œผ๋ฉฐ, ๋ˆˆ์œผ๋กœ ๋ณผ ์ˆ˜ ์žˆ๋Š” ์Šค๋ฌผ์—ฌ์„ฏ ๊ณณ์˜ ๋ฎค์ง€์—„์„ ์†Œ๊ฐœํ•œ๋‹ค. ๊ทธ๋ฆฌ๊ณ  ๋ช…์ƒ ๋‹จ๊ณ„์ฒ˜๋Ÿผ ๋ฎค์ง€์—„์„ ๋‹ค์„ฏ ๊ฐœ์˜ ์ฃผ์ œ๋กœ ๋‚˜๋ˆ ์„œ ๊ฐ ๊ณต๊ฐ„์ด ๋ฌด์—‡์„ ํ’ˆ๊ณ  ์žˆ๋Š”์ง€ ๊ทธ ์˜๋ฏธ๋ฅผ ์ „๋‹ฌํ•˜๊ณ  ์žˆ๋‹ค. ๊ทธ๊ฐ€ ํ•˜๊ณ  ์‹ถ์€ ๋‹จ ํ•œ๋งˆ๋””๋Š” โ€˜์šฐ์„  ๋ฎค์ง€์—„๋ถ€ํ„ฐ ๊ฐ€๋ณด์žโ€™๋Š” ๊ฒƒ์ด๋‹ค. ๋ฌด์—‡์„ ๋ฐฐ์šฐ๊ณ  ๋А๋ผ๊ณ ๋Š” ๋‚˜์ค‘์˜ ๋ฌธ์ œ๋‹ค.

51
๋„์‹œ์‚ฌ์—ฐ๊ตฌ์„œ ใ€Ž๋™์•„์‹œ์•„ ๋„์‹œ ์ด์•ผ๊ธฐใ€ ๊ฑด์ถ•๊ธฐํ–‰์„œ ใ€Ž๋ฎค์ง€์—„ ๊ฑด์ถ• ๊ธฐํ–‰ใ€ 3. ๋™์•„์‹œ์•„ ๋„์‹œ ์ด์•ผ๊ธฐ 4. ๋ฎค์ง€์—„ ๊ฑด์ถ• ๊ธฐํ–‰ 3 4

ํ–ฅํ•œ ๊ฑด์ถ•ํ•ด๋ฒ•

๋„ํ๋ฉ˜ํƒ€ ๋„ค ๋ฒˆ์งธ ์ฝ˜ํ…ํŠธ. ๊ทผ๋ฆฐ์ƒํ™œ์‹œ์„ค์ด๋ผ๋Š” ํ”„๋กœ๊ทธ๋žจ์€

์˜๋ขฐ์ธ์ด ์ž๋ณธ์„ ํˆฌ์ž…ํ•˜์—ฌ ์ด์ต์„ ์‹คํ˜„ํ•˜๋ ค๋Š” ํˆฌ์ž ๋ชฉ์ ์˜ ์†Œ๊ทœ๋ชจ ๊ฑด๋ฌผ์ด๋‹ค. ์ด์ „์—๋Š” ์šฉ์ ๋ฅ ์ด๋ผ๋Š” ์ธก๋ฉด์—์„œ ์ตœ๋Œ€๋ฉด์ ์„ ํ™•๋ณดํ•˜์—ฌ ์ˆ˜์ต์„ ์‹คํ˜„์‹œ์ผฐ๋‹ค๋ฉด ์š”์ฆˆ์Œ์€ ์‚ฌ๋žŒ๋“ค์ด ๊ฑด๋ฌผ์„ ์–ด๋–ป๊ฒŒ

์ธ์ง€ํ•˜๋Š”์ง€, ๋””์ž์ธ์œผ๋กœ์„œ ์–ผ๋งˆ๋‚˜

์‚ฌ๋žŒ๋“ค์„ ๋Œ์–ด๋“ค์ผ ์ˆ˜ ์žˆ๋Š”์ง€๊ฐ€ ๊ฐ€์น˜์— ๋” ํฐ ์˜ํ–ฅ์„ ๋ฏธ์นœ๋‹ค๊ณ 

WORKS(์›์Šค)๊ฑด์ถ•์ง‘๋‹จ์˜ ๊ฑด์ถ•๊ฐ€๋“ค์€ ์ƒ๊ฐํ•œ๋‹ค. ๊ทธ ๊ฐ™์€ ํŒ๋‹จ ์•„๋ž˜ ใ€ˆ์‹ ์‚ฌ 507.5ใ€‰๋Š” ์ ์šฉ๋˜๋Š” ๋ฒ•์  ์ œ์•ฝ์š”์†Œ๋“ค์„ ํ•œ๊ณ„๋กœ ๋ณด์ง€ ์•Š๊ณ  ํ™œ์šฉํ•จ๊ณผ ๋™์‹œ์— ๊ณต๊ฐ„์„ ๋ฉด์ ์ด ์•„๋‹Œ ์ฒด์ ์œผ๋กœ ๋ณด์•„ ๊ณต๊ฐ„์  ํ•ด๋ฒ•์„ ์ฐพ์•„๋‚ธ๋‹ค. ๊ทธ๋กœ์จ ๊ฑด์ถ•์ฃผ์˜ ์ด์œค์ถ”๊ตฌ๋ผ๋Š” ๋ชฉ์ ์„ ํ•ด๊ฒฐํ•˜๊ณ  ๋”ํ•˜์—ฌ ๋„์‹œ์˜ ํ’๊ฒฝ์„ ๋ณ€ํ™”์‹œํ‚ค๊ณ  ํ™˜๊ธฐ์‹œํ‚ค๋Š” ๊ฑด์ถ•์˜ ๋ชฉํ‘œ๋ฅผ ๋‹ฌ์„ฑํ•œ๋‹ค. ์ด๋“ค์€ ๋„์‹œ ๋‚ด ์†Œ๊ทœ๋ชจ ๊ฑด์ถ•๋ฌผ๋“ค์ด ์กฐ๊ธˆ์”ฉ ๋” ๋„์‹œ๋ฅผ ํ–ฅํ•ด ํ‹ˆ์„ ๋ฒŒ๋ฆฌ๊ณ  ๊ธธ์„ ์—ฐ์žฅํ•˜๊ณ  ์ž์—ฐ์„ ๋‹ค์‹œ ์ฑ„์›Œ๋‚˜๊ฐ€๋Š” ์ž‘์€ ๋…ธ๋ ฅ๋“ค์ด ๋ชจ์—ฌ ๋„์‹œํ’๊ฒฝ๊ณผ ๋„์‹œ๊ณต๊ฐ„์˜ ๊ฒฝํ—˜์„ ๋”์šฑ ํ’์š”๋กญ๊ฒŒ ๋งŒ๋“ค ์ˆ˜ ์žˆ๋‹ค๊ณ  ์ œ์•ˆํ•œ๋‹ค.(ํŽธ์ง‘์ž)

์„œ์šธ์ด๋ฉด๋„๋กœ๋ณ€์ฃผ๊ฑฐ์ง€์˜๋„์‹œํ’๊ฒฝ ์„œ์šธ ๋ฉด์ ์˜ ๋Œ€๋ถ€๋ถ„์€ ์ผ๋ฐ˜์ฃผ๊ฑฐ์ง€์—ญ์ธ ์ด๋ฉด ๋„๋กœ๋ณ€์˜ ์†Œ๊ทœ๋ชจ ๊ฑด์ถ•๋ฌผ, ์•„ํŒŒํŠธ๋กœ ๋Œ€๋ณ€๋˜๋Š” ๊ณต๋™์ฃผํƒ ์ง‘ํ•ฉ๋‹จ์ง€ ๊ทธ๋ฆฌ๊ณ  ๋Œ€๊ทœ๋ชจ ์—…๋ฌด ๋ฐ ์ƒ์—…์ง€์—ญ์œผ๋กœ ๊ตฌ์„ฑ๋œ๋‹ค. ์‹ ์‚ฌ๋™ ๊ฐ€๋กœ์ˆ˜๊ธธ ์ด๋ฉด์— ์œ„์น˜ํ•œ ๊ณ„ํš๋Œ€์ง€๋Š” ๊ทธ ์ค‘ ์ผ๋ฐ˜์ฃผ๊ฑฐ์ง€์—ญ์— ์†ํ•˜์—ฌ ์žˆ๋‹ค. ๊ฐ€๋กœ์ˆ˜๊ธธ ์ฃผ๋ณ€์€ 1970~80๋…„๋Œ€์—๋Š” ๋‹จ๋…์ฃผํƒ์ด ์ฃผ๋กœ ์žˆ์—ˆ๊ณ  1990๋…„๋Œ€๋ถ€ํ„ฐ ์ด๊ณณ๋„ ์†Œ๊ทœ๋ชจ ๊ฑด์ถ•๋ฌผ์ธ ๋นŒ๋ผ์™€ ๊ทผ๋ฆฐ์ƒํ™œ์‹œ์„ค๋กœ ๊ฐœ๋ฐœ๋˜๊ธฐ ์‹œ์ž‘ํ–ˆ๋‹ค. 2000๋…„๋Œ€์— ๊ฐ€๋กœ์ˆ˜๊ธธ์ด ํ™œ์„ฑํ™”๋˜๋ฉด์„œ ๊ฑฐ์˜ ๋Œ€๋ถ€๋ถ„์˜ ๊ฑด์ถ•๋ฌผ๋“ค์€
๊ธธ ์ด๋ฉด์€ ์ผ๋ฐ˜์ ์œผ๋กœ ์ƒ๊ฐ๋˜๋Š” ๋นŒ๋ผ์™€ ์ƒ๊ฐ€๊ฑด๋ฌผ์ด ํ˜ผ์žฌํ•˜๊ณ  ์žˆ๋‹ค. DOCUMENTA 1 1. ์ „๊ฒฝ ๊ธ€, ์ž๋ฃŒ. ๊น€ํ˜•์„, ๋ฐ•์ •์šฉ
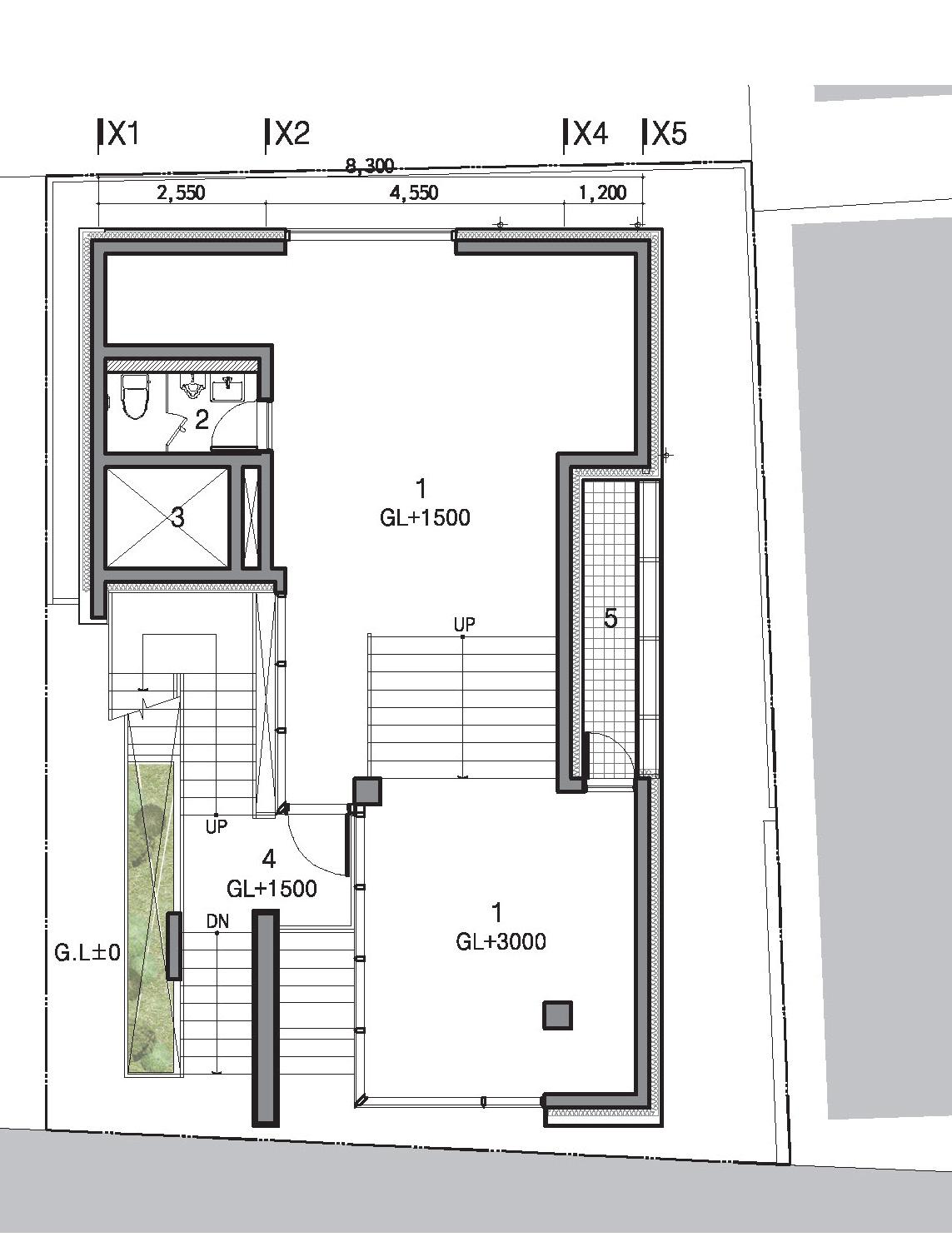
๋„ํ๋ฉ˜ํƒ€ 04 ์‹ ์‚ฌ
์™ธ๋ถ€๋Š” ์œ ์ง€ํ•œ ์ฑ„ ๋‚ด๋ถ€๊ฐ€ ๊ทผ๋ฆฐ์ƒํ™œ์‹œ์„ค๋กœ ์šฉ๋„ ๋ณ€๊ฒฝ๋˜์—ˆ๋‹ค. 2000๋…„๋Œ€๋ถ€ํ„ฐ ์ง€๊ธˆ๊นŒ์ง€ ๊ทผ 20๋…„ ๋™์•ˆ ๊ฐ€๋กœ์ˆ˜
์›์Šค(WORKS)๊ฑด์ถ•์ง‘๋‹จ ๊ณต๋™๋Œ€ํ‘œ, ๊ฑด์ถ•๊ฐ€
507.5 ๊ฑด์ถ•์˜๋ขฐ์ธ๊ณผ ๋„์‹œ ํ’๊ฒฝ์—์˜ ์ผ์กฐ, ๋‘ ๊ฐ€์ง€ ๋ชฉํ‘œ๋ฅผ

์ด๊ณณ์˜ ํ’๊ฒฝ์„ ๋งŒ๋“ค๊ณ  ์žˆ๋Š” ์†Œ๊ทœ๋ชจ ๊ฑด์ถ•๋ฌผ๋“ค(๋นŒ๋ผ์™€ ์ƒ๊ฐ€)์€ ๊ฑด์ถ•์ฃผ์˜ ์ด์ต์„ ์ตœ๋Œ€ํ•œ ํ™•๋ณดํ•˜๊ธฐ ์œ„ํ•ด ๋ฒ•์  ํ•œ๋„ ๋‚ด์—์„œ ์ตœ๋Œ€ํ•œ์˜ ๋ฉ์–ด๋ฆฌ๋ฅผ ๋งŒ๋“ค์–ด ๋‚ด๊ณ  ์žˆ๋‹ค. ์ด๋ ‡๊ฒŒ ๋งŒ๋“ค์–ด์ง„ ๊ฑด์ถ•๋ฌผ๋“ค์€ ๊ฑฐ๋ฆฌ๋ฅผ ํ–ฅํ•ด ๊ฝ‰ ์ฐฌ ์ž…๋ฉด์„ ๊ตฌ์„ฑํ•  ์ˆ˜๋ฐ–์— ์—†๊ณ  ๊ทธ ๊ฒฐ๊ณผ ๋„์‹œ์˜ ๊ธธ๊ณผ ๊ฑด๋ฌผ(์™ธ๋ถ€์™€ ๋‚ด๋ถ€)๊ณผ์˜ ๋‹จ์ ˆ์„ ์ดˆ๋ž˜ํ•ด ๋‹ต๋‹ตํ•œ ํ’๊ฒฝ๋งŒ์„ ๋งŒ๋“ค์–ด ๋‚ด๊ณ  ์žˆ๋‹ค. ์ฃผ๊ฑฐ, ์ƒ์—…, ์—…๋ฌด์‹œ์„ค์ด ์„ž์—ฌ์žˆ์–ด ์‚ด๋ฉฐ, ์ผํ•˜๋ฉฐ, ๋ฌธํ™”๋ฅผ ๋งŒ๋“ค์–ด๊ฐ€๋Š” ์ค‘์ธต๋ฐ€๋„ ์ง€์—ญ์— ๊ทผ๋ฆฐ์ƒํ™œ์‹œ์„ค(์ดํ•˜, ๊ทผ์ƒ)์ด๋ผ๋Š” ์šฉ๋„๊ฐ€ ๊ฑด์ถ•์ฃผ์˜ ์ด์ต์„ ์ตœ๋Œ€ํ•œ ํ™•๋ณดํ•จ๊ณผ ๋”๋ถˆ์–ด ๋„์‹œ๋ฅผ ์ด๋ฃจ๋Š” ํ•˜๋‚˜์˜ ํ‘œ์ •์œผ๋กœ ๊ฐ„์ฃผ๋˜์–ด ๋‹จ์ผ๊ฑด๋ฌผ์ด์ง€๋งŒ ๋„์‹œ์˜ ํ’๊ฒฝ์„ ํ™˜๊ธฐ์‹œํ‚ฌ ์ˆ˜๋Š” ์—†์„๊นŒ? ใ€ˆ์‹ ์‚ฌ 507.5ใ€‰๋Š” ์ด์ƒ์˜ ์˜๋ฌธ์— ๋Œ€ํ•œ ์šฐ๋ฆฌ์˜ ๋Œ€๋‹ต์ด๋‹ค.

๋„์‹œ์˜ํ’๊ฒฝ์„๋ณ€ํ™”์‹œํ‚ค๋Š”3๊ฐœ์˜๋งค์Šค(mass)์™€ 3๊ฐœ์˜๋ ˆ์ด์–ด(layer)

์‹ ์‚ฌ๋™ ์ด๋ฉด๋„๋กœ์˜ ์†Œ๊ทœ๋ชจ ๊ฑด์ถ•๋ฌผ๋“ค ๋˜ํ•œ 1๊ฐœ์˜ ๋งค์Šค์™€ 1๊ฐœ์˜ ๋ ˆ์ด์–ด๋กœ ์ด๋ฃจ์–ด์ ธ ๋‹จ์ง€ ๊ธธ๊ณผ ๊ฑด๋ฌผ์ด๋ผ๋Š” ์ด๋ถ„๋ฒ•์ ์ธ ๊ณต๊ฐ„๋งŒ์„ ๊ตฌ์„ฑํ•˜๊ณ  ์žˆ๋‹ค. ์ด๋Š” ์–ด๋– ํ•œ ๋งค๊ฐœ๊ณต๊ฐ„ ์—†์ด ๋„๋กœ์—์„œ ๋ฐ”๋กœ ๊ฑด๋ฌผ๋กœ ์ถœ์ž…ํ•˜๋Š” ๊ตฌ์กฐ๋กœ ๋„์‹œ์™€ ๊ฑด๋ฌผ์„ ๋‹จ์ ˆ์‹œํ‚จ๋‹ค. ๋ณธ ํ”„๋กœ์ ํŠธ๋„ ์ผ์กฐ์‚ฌ์„ ์ด๋ผ๋Š” ๋ฒ•๊ทœ๋งŒ์„ ์ ์šฉํ•˜๋ฉด 1๊ฐœ์˜ ๋งค์Šค๋กœ ๊ตฌ์„ฑ๋œ๋‹ค. ๋‹ค์ด์–ด๊ทธ๋žจ1-1

์ด๋Ÿฌํ•œ ๋‹จ์ ˆ์„ ๊ทน๋ณตํ•˜๊ธฐ ์œ„ํ•˜์—ฌ ๊ธธ์˜ ์—ฐ์žฅ์ธ ์™ธ๋ถ€๊ณ„๋‹จ๊ณผ ์‚ฝ์ž…๋œ ์ž์—ฐ์œผ๋กœ ๊ฑด๋ฌผ๋กœ ๊ฐ‘์ž๊ธฐ ๋“ค์–ด๊ฐ€์ง€ ์•Š๊ณ  ๋„์‹œ๊ณต๊ฐ„์„ ํ™•์žฅํ•˜๋ฉฐ ๋™์‹œ์— ๋งค๊ฐœ๊ณต๊ฐ„์˜ ์—ญํ• ์„ ํ•˜๋Š” ์ˆ˜์ง๋™์„ ์„ ๊ณ„ํšํ•œ๋‹ค. ๋‹ค์ด์–ด๊ทธ๋žจ1-2 ๋„์‹œ๊ฐ€ ๊ฐ€์ง€๋Š” ๊ณต๊ฐ„์˜ ์ง„ํญ์„ ํ™•์žฅ์‹œํ‚ค๊ณ  ํ’๊ฒฝ์„ ๋ณ€ํ™”์‹œํ‚ฌ ์ˆ˜ ์žˆ๋„๋ก ๋งค์Šค๋ฅผ 3๊ฐœ๋กœ ๋‚˜๋ˆ„๊ณ  ๊ธธ๋กœ๋ถ€ํ„ฐ ์—ฐ์žฅ๋œ 3๊ฐœ์˜ ๋ ˆ์ด์–ด์— ๋”ฐ๋ผ ๋‚˜์—ดํ•˜์˜€๋‹ค. ์ด๋Š” ๊ณ ์ „๊ฑด์ถ•์—์„œ๋„ ํ”ํžˆ ์“ฐ์ด๋Š” 3๋‹จ ๊ตฌ์„ฑ์œผ๋กœ ์ˆ˜์ง์ ์ธ ๋ ˆ์ด์–ด์˜ ๋ถ„์ ˆ์€ ์ž…๋ฉด์ƒ์˜ ํœด๋จผ์Šค์ผ€์ผ์„ ๊ฐ€์ง„๋‹ค. ๋˜ํ•œ ์ด 3๊ฐœ์˜ ๋งค์Šค์™€ ๋ ˆ์ด์–ด๋Š” ๋„๋กœ์—์„œ ์ ์  ์…‹๋ฐฑ(set-back)๋˜๋ฉด์„œ ๋„์‹œ์™€์˜ ํ‹ˆ์„ ๋ฒŒ๋ฆฐ๋‹ค. ๋‹ค์ด์–ด๊ทธ๋žจ1-3

๋ฒ•์ ์ œํ•œ ์š”์†Œ์ธ ์ผ์กฐ์‚ฌ์„ ์„ ํ˜•ํƒœ์ ์œผ๋กœ ์ ์šฉํ•˜์—ฌ 3๊ฐœ์˜ ์‚ผ๊ฐํ˜•๊ณผ 1๊ฐœ์˜ ์‚ฌ๊ฐํ˜•์œผ๋กœ

์ž…๋ฉด์„ ๋ถ„์ ˆ์‹œ์ผฐ์œผ๋ฉฐ ๊ฐ๊ฐ์˜ ์ž…๋ฉด์€ ์„œ๋กœ ๋‹ค๋ฅธ

์žฌ๋ฃŒ๋ฅผ ์‚ฌ์šฉํ•˜์—ฌ ์ƒ์ธต๋ถ€์—์„œ ์ €์ธต๋ถ€๊นŒ์ง€ ์ˆœ์ฐจ์ ์ธ ์œ„๊ณ„๋ฅผ ๊ฐ–๋„๋ก ๊ตฌ์„ฑํ•˜์˜€๋‹ค. ๊ทธ๋ฆฌ๊ณ  ์ผ์กฐ์‚ฌ์„ ์œผ๋กœ ๋งŒ๋“ค์–ด์ง€๋Š” 3์ธต์˜ ๋ฐœ์ฝ”๋‹ˆ์— ๋ฒ•์  ์กฐ๊ฒฝ์˜๋ฌด๋Œ€์ƒ์€ ์•„๋‹ˆ์ง€๋งŒ ์กฐ๊ฒฝ์„ ๊ณ„ํšํ•˜์—ฌ ๋„์‹œ์˜ ํ’๊ฒฝ์„ ํ™˜๊ธฐ์‹œํ‚จ๋‹ค. ๋‹ค์ด์–ด๊ทธ๋žจ1-4

53
๋‹ค์–ด์–ด๊ทธ๋žจ1-3๋‹ค์–ด์–ด๊ทธ๋žจ1-4 ๋‹ค์–ด์–ด๊ทธ๋žจ1-1 ๋‹ค์–ด์–ด๊ทธ๋žจ ๋‹ค์–ด์–ด๊ทธ๋žจ1-2

ASE-1]

์—ฌ ๊ตดํ† ์‹ฌ์˜๊ฐ€

์žˆ์Œ์—๋„ ๋ถˆ๊ตฌํ•˜๊ณ  ์ง€ํ•˜2์ธต๊นŒ์ง€ ๊ตดํ† ํ•˜๊ธฐ๋กœ

๊ฒฐ์ •๋˜์—ˆ๋‹ค.

[PHASE-2]

์กฐ๊ฒฝ์„ ๊ฒฝํ—˜ํ•˜๋ฉฐ ์ถœ์ž…ํ•˜๋Š” ์™ธ๋ถ€๊ณ„๋‹จ์€ ๋„์‹œ๊ณต๊ฐ„์˜

์—ฐ์žฅ์ด๋ผ๋Š” ์˜๋ฏธ์™€ ๋”๋ถˆ์–ด ๋ฒ•๊ทœ๋ฅผ ๊ณ ๋ คํ•œ ๊ณ„ํš์ด๋‹ค.

์™ธ๋ถ€๊ณ„๋‹จ์˜ ๋ฐ”๋‹ฅ๋ฉด์ ์€ ๊ฑด์ถ•๋ฌผ ๋์„ ์—์„œ 1m๋ฅผ

์ดˆ๊ณผํ•œ ๋ฉด์ ๋งŒ์„ ํฌํ•จํ•œ๋‹ค. ์ด๋ฅผ ํ™œ์šฉํ•˜๋ฉด ์—ฐ๋ฉด์ 

๊ณ„์‚ฐ ์‹œ ๊ณ„๋‹จ์˜ ๋ฐ”๋‹ฅ๋ฉด์ ์ด ๊ฐ์†Œํ•˜์—ฌ ์‹ค๋‚ด๋ฉด์ ์„

์ฆ๊ฐ€์‹œํ‚ฌ ์ˆ˜ ์žˆ๋‹ค. ๋˜ํ•œ ์™ธ๋ถ€๊ณ„๋‹จ์€ ์ ๊ฒŒ๋‚˜๋งˆ ์ง€ํ•˜2์ธต๊นŒ์ง€ ์ž์—ฐ๊ด‘์„ ์œ ์ž…์‹œํ‚จ๋‹ค.

[PHASE-3]

์—ฌ

๊ทผ์ƒ์—์„œ ๋Œ€๋ถ€๋ถ„์˜ ์ž„๋Œ€์ˆ˜์ต์€ ์ง€์ƒ1,2์ธต๊ณผ ์ง€ํ•˜1์ธต์ธ ์ €์ธต๋ถ€์—์„œ ๋ฐœ์ƒํ•œ๋‹ค. ํ•˜์ง€๋งŒ ์ง€ํ‘œ๋ฉด์— ์ฃผ์ฐจ๋ฅผ ๊ณ ๋ คํ•˜๋ฉด์„œ ์ง€์ƒ1์ธต์˜ ์ตœ๋Œ€๋ฉด์ ์„ ์ฐพ๊ธฐ๋Š” ์–ด๋ ค์šด ์ƒํ™ฉ์ด๋‹ค. ์ฃผ์ฐจ๋Œ€์ˆ˜๋ฅผ ํ™•๋ณดํ•˜๋ฉด์„œ ์–ด๋–ป๊ฒŒ ํ•˜๋ฉด ์ €์ธต๋ถ€์— ์ตœ๋Œ€ํ•œ์˜ ๋ฉด์ ์„ ํ™•๋ณดํ•  ์ˆ˜ ์žˆ์„๊นŒ๋ผ๋Š” ๊ณ ๋ฏผ์€ ์ž์—ฐ์Šค๋Ÿฝ๊ฒŒ ์ง€ํ•˜ ๊ฐ™์ง€ ์•Š์€ ์ง€ํ•˜๋ฅผ ๊ตฌ์„ฑํ•˜๋Š” ๊ฒƒ์œผ๋กœ ์—ฐ๊ฒฐ๋˜์—ˆ๋‹ค. ๊ฑด์ถ•๋ฒ• ์ค‘ ๊ฑด์ถ•๋ฌผ์˜ ๋ฐ”๋‹ฅ์ด ์ง€ํ‘œ๋ฉด ์•„๋ž˜์— ์žˆ๋Š” ์ธต์œผ๋กœ์„œ ๋ฐ”๋‹ฅ์—์„œ ์ง€ํ‘œ๋ฉด๊นŒ์ง€ ํ‰๊ท ๋†’์ด๊ฐ€ ํ•ด๋‹น ์ธต ๋†’์ด์˜ 1/2์ด์ƒ์€ ์ง€ํ•˜์ธต์ด๋ผ๋Š” ์ •์˜๋ฅผ ์ ์šฉํ•˜์—ฌ ์ง€ํ•˜ ๊ฐ™์ง€ ์•Š์€ ์ง€ํ•˜๋ฅผ ๋งŒ๋“ค์—ˆ๋‹ค. ์ง€ํ•˜์ธต์œผ๋กœ ์ธ์ •๋ฐ›๊ธฐ ์œ„ํ•ด ์ง€ํ•˜1์ธต ๋ฉด์ ์˜ ๋ฐ˜ ์ •๋„(๋ฐ”๋‹ฅ๋ ˆ๋ฒจ GL 3000, ์ธต๊ณ 3m)๋Š” ์™„์ „ํžˆ ์ง€ํ‘œ๋ฉด์— ๋ฌปํ˜€์žˆ์–ด ๊ทธ ์œ„ (GLยฑ0)์— ์ฃผ์ฐจ๋ฅผ ํ™•๋ณดํ•˜๋ฉฐ ๋‚˜๋จธ์ง€ ๋ฉด์ ์˜ ๋ฐ˜ ์ •๋„(๋ฐ”๋‹ฅ๋ ˆ๋ฒจ GL-1500, ์ธต๊ณ 3m)๋Š” ์ธต๊ณ ์˜ ๋ฐ˜ ์ •๋„๊ฐ€ ์ง€ํ‘œ๋ฉด์œผ๋กœ ๋“œ๋Ÿฌ๋‚˜๊ฒŒ ํ•˜๋Š” ์Šคํ‚ตํ”Œ๋กœ์–ด(Skip floor)๋กœ ๊ณ„ํšํ•˜์˜€๋‹ค. ์ง€ํ•˜ ๊ฐ™์ง€ ์•Š์€ ์ง€ํ•˜๋Š” ๋ฐ˜์ธต(1 5m)๋งŒ ๋‚ด๋ ค๊ฐ€๋ฉด ๋˜๋ฏ€๋กœ ์ง€ํ•˜์ธต์œผ๋กœ ์ง„์ž…์˜

54 ๋ฉด์ ์ด์•„๋‹Œ์ฒด์ ์„๊ณ ๋ คํ•œ๊ณต๊ฐ„์  ํ•ด๋ฒ• ์ฐพ๊ธฐ ๊ทผ์ƒ์ด๋ผ๋Š” ํ”„๋กœ๊ทธ๋žจ์˜ ์ฒซ ๋ฒˆ์งธ ๋ชฉ์ ์€ ๊ฑด์ถ•์ฃผ์˜
์„ ์ฐพ๋Š”๋‹ค. [PH
๊ฑด์ถ•๋ฌผ์˜ ์—ฐ๋ฉด์ ์„ ๊ฒฐ์ •ํ•˜๋Š” ๋ฐ๋Š” ํฌ๊ฒŒ ์šฉ์ ๋ฅ , ์ผ์กฐ์‚ฌ์„ ์ œํ•œ ๊ทธ๋ฆฌ๊ณ  ์ฃผ์ฐจ๋Œ€์ˆ˜์˜ ์‚ฐ์ •์ด๋ผ๋Š” ๋ฒ•๊ทœ๊ฐ€ ์ ์šฉ๋œ๋‹ค. ๋Œ€๋ถ€๋ถ„ ์ผ์กฐ์‚ฌ์„ ์ œํ•œ์ด ์ ์šฉ๋˜๋Š” ์ง€์—ญ์—์„œ๋Š” ์ตœ๋Œ€ํ—ˆ์šฉ ์šฉ์ ๋ฅ ์„ ๋งŒ์กฑ์‹œํ‚ค์ง€ ๋ชปํ•œ๋‹ค. ๋˜ํ•œ ์ผ์กฐ์‚ฌ์„ ์ œํ•œ๊ณผ ์šฉ์ ๋ฅ ์„ ๋ชจ๋‘ ์ ์šฉํ•˜์—ฌ๋„ ๋Œ€์ง€๊ฐ€ ๋„“์ง€ ์•Š์€ ์†Œ๊ทœ๋ชจ ๊ฑด์ถ•๋ฌผ์—๋Š” ์ง€ํ•˜์ฃผ์ฐจ์žฅ์„ ๊ณ ๋ คํ•  ์ˆ˜ ์—†์œผ๋ฏ€๋กœ ์ฃผ์ฐจ๋Œ€์ˆ˜๋„ ์—ฐ๋ฉด์  ๊ฒฐ์ •์— ๊ณ ๋ ค์‚ฌํ•ญ ์ค‘ ํ•˜๋‚˜์ด๋‹ค. ๋ณธ ํ”„๋กœ์ ํŠธ ์—ญ์‹œ ์ตœ๋Œ€ ์—ฐ๋ฉด์ ์„ ๊ฒฐ์ •ํ•  ๋•Œ์— ๋งˆ์ง€๋ง‰ ๊ณ ๋ ค์‚ฌํ•ญ์€ ์ฃผ์ฐจ๋Œ€์ˆ˜์˜€๋‹ค. ์ฃผ์ฐจ๋Œ€์ˆ˜๋ฅผ ๊ณ ๋ คํ•œ ์—ฐ๋ฉด์ ์€ ์ž
์Šค๋Ÿฝ๊ฒŒ ์ž„๋Œ€์ˆ˜์ต์„ ๊ณ ๋ คํ•˜
์ž„๋Œ€์ˆ˜์ต์„ ๋ณด์žฅํ•˜๋Š” ๊ฒƒ์ด๋‹ค. ๊ทธ๋Ÿฌ๊ธฐ ์œ„ํ•ด์„œ ๊ฑด์ถ•๊ฐ€๋“ค์€ ์ฃผ์–ด์ง„ ๋•…์— ์ง€์„ ์ˆ˜ ์žˆ๋Š” ์ตœ๋Œ€๋ฉด์ ์„ ๊ณ„์‚ฐํ•œ๋‹ค. ๊ฑด์ถ•์ฃผ๋Š” ๋” ๋„“๊ฒŒ ๋” ๋งŽ์ด ๋” ๋†’์ด ์ง“๊ธฐ๋ฅผ ์›ํ•˜๊ณ  ๋ฒ•๊ทœ๋Š” ๊ทธ ํ•œ๊ณ„๋ฅผ ์ •ํ•ด๋†“๋Š”๋‹ค. ๊ฑด์ถ•๊ฐ€๋“ค์€ ๋‘ ์ƒ์ถฉ๋œ ์ดํ•ด๊ด€๊ณ„์—์„œ ๋ฒ•๊ทœ๋ฅผ ์ œํ•œ์š”์†Œ๋กœ๋งŒ ๋ณด์ง€ ์•Š๊ณ  ํ™œ์šฉ์„ ํ•˜์—ฌ ๊ณต๊ฐ„์  ํ•ด๋ฒ•
์—ฐ
๋А ๊ทผ์ƒ๊ณผ ๋งˆ์ฐฌ๊ฐ€์ง€๋กœ ๊ฑด์ถ•์ฃผ๋Š” ์ง€๊ฐ€(ๅœฐๅƒน)๊ฐ€ ๋†’์€ ๊ฐ•๋‚จ์—์„œ ์ตœ๋Œ€ํ•œ์˜ ์ˆ˜์ต์„ ๋ณด์žฅ๋ฐ›๊ธธ ์›ํ–ˆ๋‹ค.
[PHASE-1] ์ˆ˜์ต์„๊ณ ๋ คํ•œ์ง€ํ•˜2์ธต๊นŒ์ง€ํ„ฐํŒŒ๊ธฐ [PHASE-2] ์กฐ๊ฒฝ์„๊ฒฝํ—˜ํ•˜๋ฉฐ ์ถœ์ž…ํ•˜๋Š”์™ธ๋ถ€๊ณ„๋‹จ๊ณผ ์—˜๋ ˆ๋ฒ ์ดํ„ฐ์‹ค [PHASE-3] ๊ฐ€์ค‘ํ‰๊ท ์„์ ์šฉํ•œSKIP FLOOR์˜์ง€ํ•˜๊ฐ™์ง€ ์•Š์€์ง€ํ•˜ [PHASE-4] ์ฃผ์ฐจ์™€์ง€ํ•˜์˜ํ˜•ํƒœ๋ฅผ ๊ณ ๋ คํ•œ ๋– ์žˆ๋Š”1์ธต์˜SKIP FLOOR [PHASE-5] ์ผ์กฐ์‚ฌ์„ ์œผ๋กœ์ธํ•œ๋ฉด์ ๊ฐ์†Œ๋ฅผ ๊ณ ๋ คํ•œ3,4์ธต์„๋™์‹œ์—์‚ฌ์šฉ [PHASE-6] ์ƒ์ธต๋ถ€์™€ ์ €์ธต๋ถ€๊ฐ€ ๋ณ„๋„์˜ ์œ„๊ณ„๋ฅผ ๊ฐ–๋Š” ์ž…๋ฉด

ASE-4]

๊ตฌ์„ฑ์€

[PH

ASE-5]

์ง€์ƒ2์ธต์€ ๊ฑดํ์œจ์„ ์ถฉ์กฑ์‹œํ‚ค๋Š” ์ตœ๋Œ€ํ•œ์˜

๋ฉด์ ์„ ํ™•๋ณดํ•œ ์ผ๋ฐ˜์ ์ธ ํ˜•ํƒœ์ด๋ฉฐ ์ง€์ƒ3์ธต๋ถ€ํ„ฐ๋Š”

์ผ์กฐ์‚ฌ์„  ์ œํ•œ์˜ ์˜ํ–ฅ์„ ๋ฐ›๋Š”๋‹ค. ์ผ์กฐ์‚ฌ์„ ์œผ๋กœ

์ธํ•ด ์ง€์ƒ3์ธต๋ถ€ํ„ฐ๋Š” ๋ฐ”๋‹ฅ๋ฉด์ ์ด ๊ฐ์†Œํ•  ์ˆ˜๋ฐ–์—

์—†๋‹ค. ์ˆ˜์ง๋™์„ ์ธ ์™ธ๋ถ€๊ณ„๋‹จ๊ณผ ์—˜๋ฆฌ๋ฒ ์ดํ„ฐ๋ฅผ

์ง€์ƒ3์ธต๊นŒ์ง€๋งŒ ์‚ฌ์šฉํ•˜๊ฒŒ ํ•˜๊ณ  ์ง€์ƒ3์ธต๊ณผ 4์ธต์€

์ตœ์†Œํ•œ์˜ ๋ฉด์ ์„ ๊ฐ€์ง„ ๋‚ด๋ถ€๊ณ„๋‹จ์œผ๋กœ ๋™์„ ์„ ๊ณ„ํš.

์ง€์ƒ3,4์ธต์„ ๋ณต์ธต์œผ๋กœ ์‚ฌ์šฉํ•˜๊ฒŒ ํ•˜์—ฌ ์กฐ๊ธˆ์ด๋‚˜๋งˆ

์ง€์ƒ4์ธต์˜

์žˆ์„ ๊ฒƒ์œผ๋กœ ๊ธฐ๋Œ€ํ•œ๋‹ค.

์žฌ๋ฃŒ์˜์‚ฌ์šฉ [PHASE-6] ํœด๋จผ์Šค์ผ€์ผ์„ ๊ณ ๋ คํ•˜์—ฌ ๋ถ„์ ˆ๋œ 3๊ฐœ์˜ ๋งค์Šค

์ค‘ ์ƒ์ธต๋ถ€๋Š” ํ˜ผ์žฌ๋œ ์ฃผ๋ณ€์ƒํ™ฉ๊ณผ๋Š” ๋‹ค๋ฅธ

์ •์ œ๋œ ๋А๋‚Œ์˜ ์„ธ๋ผ๋ฏนํƒ€์ผ์„ ์ ์šฉํ•˜์˜€๋‹ค.

์˜คํ”ˆ์กฐ์ธํŠธ(Open Joint)๋กœ ์‹œ๊ณต๋œ ์„ธ๋ผ๋ฏนํƒ€์ผ์€ ์œ ์ง€๊ด€๋ฆฌ ์ตœ์†Œํ™”๋ผ๋Š” ๊ฑด์ถ•์ฃผ์˜ ์š”๊ตฌ์‚ฌํ•ญ์„ ๋ฐ˜์˜ํ•˜๋ฉด์„œ ์‚ผ๊ฐํ˜• ๋งค์Šค๋ฅผ ๊ตฌ์„ฑํ•˜๊ธฐ ์œ„ํ•œ ๋ ์™€ ์ž…๋ฉด์„ ๋งŒ๋“ ๋‹ค.

์ค‘์ธต๋ถ€์— ํ•ด๋‹น๋˜๋Š” ์‚ฌ๊ฐํ˜•์˜ ๋งค์Šค๋Š” ์ƒ์ธต๋ถ€์˜ ํฐ์ƒ‰ ์„ธ๋ผ๋ฏนํƒ€์ผ๊ณผ ์ €์ธต๋ถ€์˜ ์ง„ํšŒ์ƒ‰์˜

์ข…์„๋ฏธ์žฅ์˜ ์ค‘๊ฐ„์ธ ์—ฐํšŒ์ƒ‰์˜ ๋ฒฝ๋Œํƒ€์ผ์„ ์ ์šฉํ•˜์—ฌ ํ˜•ํƒœ๊ฐ€ ๋“œ๋Ÿฌ๋‚˜์ง€ ์•Š๋„๋ก ํ•˜์˜€๋‹ค.

์ €์ธต๋ถ€๋Š” ์„ธ๋ผ๋ฏนํƒ€์ผ๊ณผ ๋ฐ˜๋Œ€๋˜๋Š” ๊ฑฐ์นœ ๋А๋‚Œ์˜ ์ข…์„๋ฏธ์žฅ์„ ์‚ฌ์šฉํ•จ์œผ๋กœ์จ ๊ฑฐ๋ฆฌ์—์„œ์˜ ์•„์ด๋ดํ‹ฐํ‹ฐ๋ฅผ ํ˜•์„ฑํ•˜๊ณ ์ž ํ•˜์˜€๋‹ค.

์ƒ๊ธฐ ์„œ์ˆ ํ•œ ์žฌ๋ฃŒ๋“ค์€ ์‚ฐ์—…ํ™”๋œ

์žฌ๋ฃŒ(๋ฐ•ํŒ์„ธ๋ผ๋ฏน์˜ ์žฌ๋ฃŒ์ ์ธ ํŠน์„ฑ๊ณผ ์‹œ๊ณต๋ฒ•)์™€ ์ˆ˜๊ณต์˜ˆ์ ์ธ ์žฌ๋ฃŒ(์ข…์„๋ฏธ์žฅ์˜ ์žฌ๋ฃŒ์ ์ธ ํŠน์„ฑ๊ณผ ์‹œ๊ณต๋ฒ•) ๊ทธ๋ฆฌ๊ณ  ๊ทธ ๊ฐ€์šด๋ฐ ์˜์—ญ์— ์žˆ๋Š” ๋ฒฝ๋Œํƒ€์ผ์ด ์ƒ์ธต๋ถ€์—์„œ ์ €์ธต๋ถ€๊นŒ์ง€ ์ˆœ์ฐจ์ ์ธ ์œ„๊ณ„๋ฅผ ๊ฐ–๋„๋ก ์ž…๋ฉด์„ ๊ตฌ์„ฑํ•˜์˜€๋‹ค.

์†Œ๊ทœ๋ชจ๊ฑด์ถ•,์ž‘์€๋…ธ๋ ฅ ๊ทผ์ƒ์ด๋ผ๋Š” ํ”„๋กœ๊ทธ๋žจ์€ ์˜๋ขฐ์ธ์ด ์ž๋ณธ์„ ํˆฌ์ž…ํ•˜์—ฌ ์ด์ต์„ ์‹คํ˜„ํ•˜๋ ค๋Š” ํˆฌ์ž๊ฐ€ ๋ชฉ์ ์ด๋‹ค. ์ด์ „์—๋Š” ์šฉ์ ๋ฅ ์ด๋ผ๋Š” ์ธก๋ฉด์—์„œ ์ตœ๋Œ€๋ฉด์ ์„ ํ™•๋ณดํ•˜์—ฌ ์ˆ˜์ต์„ ์‹คํ˜„์‹œ์ผฐ๋‹ค๋ฉด ์š”์ฆˆ์Œ์€ ์‚ฌ๋žŒ๋“ค์ด ๊ฑด๋ฌผ์„ ์–ด๋–ป๊ฒŒ ์ธ์ง€ํ•˜๋Š”์ง€, ๋””์ž์ธ์œผ๋กœ์„œ ์–ผ๋งˆ๋‚˜ ์‚ฌ๋žŒ๋“ค์„ ๋Œ์–ด๋“ค์ผ ์ˆ˜ ์žˆ๋Š”์ง€๊ฐ€ ๊ฐ€์น˜์— ๋” ํฐ ์˜ํ–ฅ์„ ๋ฏธ์นœ๋‹ค๊ณ  ์ƒ๊ฐํ•œ๋‹ค. ์ด๋Ÿฌํ•œ ์ƒ๊ฐ ์•„๋ž˜ ๋ณธ ํ”„๋กœ์ ํŠธ๋Š” ์ ์šฉ๋˜๋Š” ๋ฒ•์  ์ œ์•ฝ์š”์†Œ๋“ค์„ ํ•œ๊ณ„๋กœ ๋ณด์ง€ ์•Š๊ณ  ํ™œ์šฉํ•จ๊ณผ ๋™์‹œ์— ๊ณต๊ฐ„์„ ๋ฉด์ ์ด ์•„๋‹Œ ์ฒด์ ์œผ๋กœ ๋ณด์•„ ๊ณต๊ฐ„์  ํ•ด๋ฒ•์„ ์ฐพ๊ณ ์ž

55 2. ๋‹จ๋ฉด ๋‹ค์–ด์–ด๊ทธ๋žจ ํŽธ์ด์„ฑ๊ณผ ๋™์‹œ์— ๋„๋กœ์—์„œ ์ผ๋ถ€์ด์ง€๋งŒ ์ง€ํ•˜์ธต์„ ์ธ์‹ํ•  ์ˆ˜ ์žˆ๋Š” ๊ฒฐ๊ณผ ๊ทธ๋ฆฌ๊ณ  ์ง€ํ•˜์ธต์ด๋ฏ€๋กœ ๊ฑดํ์œจ์˜ ์ ์šฉ์„ ๋ฐ›์ง€ ์•Š์•„ ์ตœ๋Œ€ํ•œ์˜ ๋ฉด์ ์„ ํ™•๋ณดํ•  ์ˆ˜ ์žˆ๋Š” ๊ฒฐ๊ณผ๋ฅผ ๊ฐ€์ง„๋‹ค. [PH
์ง€ํ•˜ ๊ฐ™์ง€ ์•Š์€ ์ง€ํ•˜๋ฅผ ๋งŒ๋“ค๊ธฐ ์œ„ํ•œ ์ง€ํ•˜1์ธต์˜ ์Šคํ‚ตํ”Œ๋กœ์–ด ํ˜•์ƒ์€ ์ž์—ฐ์Šค๋Ÿฝ๊ฒŒ ์ง€์ƒ1์ธต์˜ ํ˜•ํƒœ๋ฅผ ๊ฒฐ์ •์ง€์—ˆ๋‹ค. ์ง€์ƒ1์ธต์˜ ํ›„๋ฉด๋ถ€ ๋ฐ”๋‹ฅ๋ ˆ๋ฒจ์€ ์ง€ํ•˜1์ธต์˜ ์ธต๊ณ ์— ๋”ฐ๋ผ GL+1 5m์ด๊ณ  ์ „๋ฉด๋ถ€ ๋ฐ”๋‹ฅ๋ ˆ๋ฒจ์€ ์ฃผ์ฐจ์žฅ์˜ ๋ฒ•์ ํ™•๋ณด ๋†’์ด(2.1m์ด์ƒ)๋ฅผ ํ™•๋ณดํ•œ GL+3 0m๋กœ ๊ณ„ํšํ•˜์—ฌ ์ง€์ƒ1์ธต๋„ ์Šคํ‚ตํ”Œ๋กœ์–ด์˜ ํ˜•ํƒœ๋ฅผ ๊ฐ€์ง„๋‹ค. ๊ฒฐ๊ณผ์ ์œผ๋กœ ๊ฑด๋ฌผ์˜ ์ „๋ฉด๋ถ€๋Š” ๋‹ค๋ฅธ ๊ฑด๋ฌผ๊ณผ ๋น„๊ตํ•˜๋ฉด ์ง€์ƒ2์ธต ๊ฐ™์ง€๋งŒ ํ›„๋ฉด๋ถ€ ๋ฐ”๋‹ฅ๋ ˆ๋ฒจ์ธ ๋ฐ˜์ธต(1.5m)๋งŒ ์˜ฌ๋ผ๊ฐ€์„œ ์ง„์ž…ํ•  ์ˆ˜ ์žˆ๋Š” ๊ตฌ์กฐ๋กœ ์ด ์—ญ์‹œ ์ง„์ž…์˜ ํŽธ์ด์„ฑ๊ณผ ํ›„๋ฉด๋ถ€์˜ ์ธต๊ณ ๋Š” 4 5m๋กœ ๋†’์ž„์œผ๋กœ์จ ๋‚ด๋ถ€ ๋ณผ๋ฅจ์„ ๊ฐ•ํ™”ํ•˜์˜€๋‹ค. ์ง€ํ•˜1์ธต๊ณผ ์ง€์ƒ1์ธต์˜ ์Šคํ‚ตํ”Œ๋กœ์–ด
์„ ์ ๊ทน
์—ฌ
๋ฒ•์ ์ œ์•ฝ
์ ์œผ๋กœ ํ™œ์šฉํ•˜
์‚ฌ์šฉ๊ณต๊ฐ„์„ ํ™•์žฅ์‹œ์ผฐ๋‹ค.
๋ฉด์ ์„ ๋” ํ™•๋ณดํ•  ์ˆ˜ ์žˆ๊ฒŒ ํ•˜๋ฉฐ ์ธต๊ณ ๋ฅผ ๋†’์˜€๋‹ค. ๋ณธ ๊ณ„ํš์€ ๋‹จ์ˆœํžˆ ํ‰๋ฉด์„ ์ธต์ธต์ด ์Œ“๋Š” ๋ฉด์ ์ค‘์‹ฌ์˜ ๊ณ„ํš์ด ์•„๋‹Œ ๊ณต๊ฐ„์˜ ๊ณ ์œ ํ•œ ์„ฑ์งˆ์ธ ์ฒด์ ์„ ์ค‘์‹ฌ์œผ๋กœ ๊ณ„ํšํ•จ์œผ๋กœ์จ ์ž„๋Œ€์ˆ˜์ต ๋ณด์žฅ๊ณผ ๋„์‹œ๊ณต๊ฐ„๊ณผ์˜ ์†Œํ†ต์„ ๋™์‹œ์—
ํ•ด๋ฒ•์ด ๋  ์ˆ˜
๋‹ฌ์„ฑํ•˜๊ธฐ ์œ„ํ•œ ๊ณต๊ฐ„์ 
์•ž
ํ™•
๋‹จ์ผ๊ฑด๋ฌผ์ด์ง€๋งŒ ๋„์‹œ์˜ ํ’๊ฒฝ์„ ๋ณ€ํ™”์‹œํ‚ค๊ณ  ํ™˜๊ธฐํ•˜๊ณ ์ž ํ•˜์˜€๋‹ค. ์ด์ œ๋Š” ๋„์‹œ์™€ ๋„์‹œ๋ฏผ ๋ชจ๋‘๊ฐ€ ๊ณต์กดํ•˜๊ธฐ ์œ„ํ•œ ๋…ธ๋ ฅ๋“ค์„ ์‹œ์ž‘ํ•  ๋•Œ๋ผ๊ณ  ์ƒ๊ฐํ•œ๋‹ค. ์กฐ๊ธˆ ๋” ๋„์‹œ๋ฅผ ํ–ฅํ•ด ํ‹ˆ์„ ๋ฒŒ๋ฆฌ๊ณ  ๊ธธ์„ ์—ฐ์žฅํ•˜๊ณ  ์ž์—ฐ์„ ๋‹ค์‹œ ์ฑ„์›Œ๋‚˜๊ฐ€๋Š” ์ž‘์€ ๋…ธ๋ ฅ๋“ค์ด ๋ชจ์—ฌ ๋„์‹œํ’๊ฒฝ๊ณผ ๋„์‹œ๊ณต๊ฐ„์˜ ๊ฒฝํ—˜์„ ๋”์šฑ ํ’์š”๋กญ๊ฒŒ ๋งŒ๋“ค ์ˆ˜ ์žˆ๊ธธ ๊ธฐ๋Œ€ํ•ด๋ณธ๋‹ค. 2
ํ–ˆ๋‹ค.
์„œ ์–ธ๊ธ‰ํ–ˆ๋“ฏ์ด ์„œ์šธ ์ผ๋ฐ˜์ฃผ๊ฑฐ์ง€์—ญ์€ ์ตœ๋Œ€๋ฉด์ ์„
๋ณดํ•˜๊ธฐ ์œ„ํ•œ ๋ฐ•์Šคํ˜•ํƒœ์˜ ์†Œ๊ทœ๋ชจ ๊ฑด์ถ•๋ฌผ์ด ๋ชจ์—ฌ ๋‹ต๋‹ตํ•˜๊ณ  ํ˜ผ์žฌ๋œ ํ’๊ฒฝ์„ ๋งŒ๋“ค์–ด ๋‚ด๊ณ  ์žˆ๋‹ค. ๋ณธ ํ”„๋กœ์ ํŠธ๋Š” ๊ฑด์ถ•์ฃผ์˜ ์ด์œค์ถ”๊ตฌ๋ผ๋Š” ๋ชฉ์ ๊ณผ ๋”๋ถˆ์–ด
56 3. ์ง€ํ•˜2์ธต ํ‰๋ฉด๋„ 4. ์ง€ํ•˜1์ธต ํ‰๋ฉด๋„ 5. G.L ยฑ0.0m ํ‰๋ฉด๋„ 6. G.L ยฑ1.5m ํ‰๋ฉด๋„ 5 6 3 4 1.๊ทผ๋ฆฐ์ƒํ™œ์‹œ์„ค2.์˜ค์ˆ˜ํŽŒํ”„์‹ค3.ํ™”์žฅ์‹ค4. ์—˜๋ ˆ๋ฒ ์ดํ„ฐ์‹ค5. ๊ณ„๋‹จ์‹ค6. ๋น„์ƒํƒˆ์ถœ๊ตฌ 7.์šฐ์ˆ˜ํŽŒํ”„์‹ค 1.๊ทผ๋ฆฐ์ƒํ™œ์‹œ์„ค2. ๋น„์ƒํƒˆ์ถœ๊ตฌ3.ํ™”์žฅ์‹ค4. ์—˜๋ ˆ๋ฒ ์ดํ„ฐ์‹ค5. ๊ณ„๋‹จ์‹ค6.์ฃผ์ฐจ์žฅ 1.๊ทผ๋ฆฐ์ƒํ™œ์‹œ์„ค2. ๋น„์ƒํƒˆ์ถœ๊ตฌ3.ํ™”์žฅ์‹ค4. ์—˜๋ ˆ๋ฒ ์ดํ„ฐ์‹ค5. ๊ณ„๋‹จ์‹ค6. ๋น„์ƒํƒˆ์ถœ๊ตฌ 7.์กฐ๊ฒฝ8.์ •ํ™”์กฐ 1.๊ทผ๋ฆฐ์ƒํ™œ์‹œ์„ค2.ํ™”์žฅ์‹ค3.ํ™”์žฅ์‹ค4. ๊ณ„๋‹จ์‹ค
57 7. ์ง€์ƒ1์ธต ํ‰๋ฉด๋„ 8. ์ง€์ƒ2์ธต ํ‰๋ฉด๋„ 9. ์ง€์ƒ3์ธต ํ‰๋ฉด๋„ 10. ์ง€์ƒ4์ธต ํ‰๋ฉด๋„ 9 10 7 8 1.๊ทผ๋ฆฐ์ƒํ™œ์‹œ์„ค2.ํ™”์žฅ์‹ค3. ์—˜๋ ˆ๋ฒ ์ดํ„ฐ์‹ค4. ๊ณ„๋‹จ์‹ค5.์‹ค์™ธ๊ธฐ์‹ค 1.๊ทผ๋ฆฐ์ƒํ™œ์‹œ์„ค2.ํ™”์žฅ์‹ค3. ์—˜๋ ˆ๋ฒ ์ดํ„ฐ์‹ค4. ๊ณ„๋‹จ์‹ค5. ํ…Œ๋ผ์Šค 1.๊ทผ๋ฆฐ์ƒํ™œ์‹œ์„ค2.ํ™”์žฅ์‹ค3. ์—˜๋ ˆ๋ฒ ์ดํ„ฐ์‹ค4. ๊ณ„๋‹จ์‹ค5.์‹ค์™ธ๊ธฐ์‹ค 1.๊ทผ๋ฆฐ์ƒํ™œ์‹œ์„ค
58 11~14. ์ž…๋ฉด๋„ 13 11 12 14
59 15. ๋ฐฐ์น˜๋„ 16~17. ๋‹จ๋ฉด๋„ 16 15 17
60 18. ์ •๋ฉด 19. ๋– ์žˆ๋Š” ์„ธ๋ฝ๋ฏนํƒ€์ผ ๋ฒฝ์ฒด์™€ ์™ธ๋ถ€๊ณ„๋‹จ์˜ ๊ฐœ๊ตฌ๋ถ€ 20. ์ฃผ์ฐจ์žฅ์—์„œ ๋ฐ”๋ผ๋ณธ ๋ฃจ๋ฒ„์ฒœ์žฅ๊ณผ ์›ํ˜•ํŒŒ์ดํ”„ ๋‚œ๊ฐ„ 21. ์กฐ๊ฒฝ๊ณผ ์–ด์šฐ๋Ÿฌ์ง€๋Š” ์ˆ˜์ง๋™์„  22. ์ง€์ƒ4์ธต ๋ฐ•๊ณตํ˜•ํƒœ ์ง€๋ถ•์˜ ๋‚ด๋ถ€๊ณต๊ฐ„ 27~32. 3D๋ชจ๋ธ ๋ Œ๋”๋ง 21 22 20 272829 19 18

์‚ฌํšŒํ˜„์ƒ์„๋ณดํŽธ์ ์ด์ง€๋งŒ ์ฐฝ์˜์ ์ธ์ƒ๊ฐ์œผ๋กœ์žฌ๊ณ  ๋ฐ ํƒ๊ตฌํ•˜์—ฌ ํ˜„์‹œ๋Œ€์˜ํ˜„์ƒ๋“ค์„๋„์‹œ ๋ฐ ๊ฑด์ถ•์ ๊ด€์ ์—์„œ ๊ตฌ์„ฑํ•˜๋Š”์„ค๊ณ„๋ฅผ ์ถ”๊ตฌํ•œ๋‹ค. ์ฃผ์š”์ž‘์—…์œผ๋กœ์‹ ์‚ฌ507.5(๊ทผ์ƒ),์‚ฌ๋‹น ์†Œ๊ณ ์›(ํ˜‘์†Œ์ฃผํƒ), ๋‚˜๋ฌด์˜์ง‘(APT๋ฆฌ๋ชจ๋ธ๋ง),์‹ ์‚ฌ652.4(๊ทผ์ƒ),์‹ ๊ณต๋• 139.150(์ƒ๊ฐ€์ฃผํƒ),์‚ฐ๋‚จ86.17(๋‹จ๋…์ฃผํƒ),๋Œ€์น˜ 941.32(๊ทผ์ƒ), ์„ ๋‹จ53.7(๋„์‹œํ˜•์ƒํ™œ์ฃผํƒ), ์—ฌ์ฃผ์‹œ ์ดํฌ์ดˆ๋“ฑํ•™๊ต(๋งˆ์Šคํ„ฐํ”Œ๋žœ),ํ•œ๊ฐ•ํฌ์ฐจ(2017์„œ์šธ๊ฑด์ถ•๋ฌธํ™”์ œ ํ•œ๊ฐ•์ƒ์ƒ์ „์‹œ)๋“ฑ์ด ์žˆ๋‹ค.

61 23. ์กฐ๊ฒฝ์„ ๊ฒฝํ—˜ํ•˜๋ฉฐ ์ถœ์ž…ํ•˜๋Š” ์™ธ๋ถ€๊ณ„๋‹จ 24. ์ง€ํ•˜1์ธต์˜ ๋‚ด๋ถ€์—์„œ ๋ณด์ด๋Š” ์กฐ๊ฒฝ๊ณผ ์—˜๋ฆฌ๋ฒ ์ดํ„ฐ ์ถœ์ž…๋™์„  25. ์Šคํ‚ตํ”Œ๋กœ์–ด์˜ ์ง€ํ•˜1์ธต 26. ์ „๋ฉด์ด ๋“ค๋ ค์žˆ๋Š” ์Šคํ‚ตํ”Œ๋กœ์–ด์˜ ์ง€์ƒ1์ธต 23 25 303132 26 24 ์ž๋ฃŒ ํ˜‘์กฐ ๋ฐ ์‚ฌ์ง„ ํฌ๋ ˆ๋”ง ๋ณธ๋ฌธ์ „์ฒด์‚ฌ์ง„ ๋ฐ ์ž๋ฃŒ์ œ๊ณต:์›์Šค(WORKS)๊ฑด์ถ•์ง‘๋‹จ ๊ฑด์ถ•์‚ฌ์ง„ ํฌ๋ ˆ๋”ง(๋ณ„๋„ํ‘œ๊ธฐ์™ธ):์ตœ์ฐฝ์šฐ ๊ฑด์ถ• ๊ฐœ์š” ์ž‘ํ’ˆ๋ช…:์‹ ์‚ฌ507.5 ์„ค๊ณ„
๋Œ€ํ‘œ๊ฑด์ถ•๊ฐ€
์œ„์น˜:์„œ์šธ์‹œ๊ฐ•๋‚จ๊ตฌ์‹ ์‚ฌ๋™507-5 ์šฉ๋„:๊ทผ๋ฆฐ์ƒํ™œ์‹œ์„ค ๋Œ€์ง€๋ฉด์ :164.60ใŽก ๊ฑด์ถ•๋ฉด์ :98.42ใŽก ์—ฐ๋ฉด์ :434.45ใŽก ๊ทœ๋ชจ:์ง€
์šฉ์ 
๊ตฌ์กฐ:์ฒ ๊ทผ์ฝ˜
์™ธ๋ถ€๋งˆ๊ฐ:13T์„ธ๋ผ
๋ฒฝ๋Œํƒ€์ผ ๋‚ด๋ถ€๋งˆ๊ฐ:(๋ฒฝ์ฒด,์ฒœ์žฅ)๊ฒฌ์ถœ๋งˆ๊ฐ,(๋ฐ”๋‹ฅ)์—ํญ์‹œ์ฝ”ํŒ… ์„ค๊ณ„๊ธฐ๊ฐ„:2020.07.-2021.02. ์‹œ๊ณต๊ธฐ๊ฐ„:2021.04.-2022.04. ๊ฑด์ถ•์ฃผ:๋””์›จ์ด๋ธŒ ์‹œ๊ณต:๋Œ€์›๊ฑด์˜ ์กฐ๊ฒฝ:์กฐ๊ฒฝ์ž‘์—…์žฅ๋ผ๋””์˜ค ๊ตฌ์กฐ์—”์ง€๋‹ˆ์–ด: ํ”„๋ผ์ž„๊ตฌ์กฐ ๊ธฐ๊ณ„์—”์ง€๋‹ˆ์–ด:์ง„๊ฒฝ์ด์•ค์ง€ ์ „๊ธฐ์—”์ง€๋‹ˆ์–ด: ๊ทน๋™์ „๊ธฐ ๊น€ํ˜•์„์€ํ•œ์–‘๋Œ€ํ•™๊ต ์•ˆ์‚ฐ์บ ํผ์Šค๊ฑด์ถ•๊ณตํ•™๊ณผ ์กธ์—… ํ›„ ๊ธฐ์šฉ๊ฑด์ถ•,ํ•œ์šธ๊ฑด์ถ•, ๊ธˆ์„ฑ๊ฑด์ถ•,์ŠคํŠœ๋””์˜ค๋ฉ”ํƒ€์—์„œ์‹ค๋ฌด๋ฅผ ์ตํ˜”๋‹ค.์›์Šค(WORKS)๊ฑด์ถ•์ง‘๋‹จ์˜ ์ฑ…์ž„๊ฑด์ถ•๊ฐ€์ด๋‹ค. ๋ฐ•์ •์šฉ
์กธ
๊ต
์Œ“์•˜๋‹ค.์›์Šค(WOR
์ฑ…
์›์Šค(WORKS)๊ฑด์ถ•์ง‘๋‹จ์€๋‹ค์ˆ˜์˜๊ฑด์ถ•๊ฐ€๊ฐ€ ์„œ๋กœ์˜ ๋‹ค์–‘ํ•œ์ƒ๊ฐ๋“ค์„๊ณต์œ ํ•˜๊ณ ๋ฐœ์ „์‹œ์ผœ ๋” ์ข‹์€ ๊ฒฐ๊ณผ๋ฅผ ๋„์ถœํ•˜๊ธฐ ์œ„ํ•ด ๋ชจ์ธ๊ฑด์ถ•๋””์ž์ธ ํ”Œ๋žซํผ์ด๋‹ค. ํ”„๋กœ์ ํŠธ๋ณ„๋กœ ์ฐธ์—ฌ๋ฅผ ์›ํ•˜๋Š”๊ฑด์ถ•๊ฐ€๊ฐ€ ๋ชจ์—ฌ ๋‹ค์–‘ํ•œ์˜๊ฒฌ์„๊ณต์œ ํ•˜์—ฌ ํ•จ๊ป˜ ์„ค๊ณ„๋ฅผ ์ง„ํ–‰ํ•œ๋‹ค.๋™์‹œ๋Œ€์—์ผ์–ด๋‚˜๊ณ  ์žˆ๋Š”๊ฑด์ถ•ํ˜„์ƒ
:์›์Šค(WORKS)๊ฑด์ถ•์ง‘๋‹จ
:๊น€ํ˜•์„,๋ฐ•์ •์šฉ
ํ•˜2์ธต,์ง€์ƒ4์ธต ๋†’์ด:17.95m ์ฃผ์ฐจ:3๋Œ€ ๊ฑดํ์œจ:59.79%
๋ฅ :158.91%
ํฌ๋ฆฌํŠธ
๋ฏนํƒ€์ผ,์ข…์„๋ฏธ์žฅ,18T
์€๊ฒฝํฌ๋Œ€ํ•™๊ต ๊ฑด์ถ•๊ณตํ•™๊ณผ,๊ฑด์ถ•์ „๋ฌธ๋Œ€ํ•™์›์„
์—…ํ•˜์˜€๊ณ ,๋Œ€ํ•™์› ๋‹น์‹œ์ผ๋ณธ ์™€์„ธ๋‹ค๋Œ€ํ•™์—์„œ
ํ™˜ํ•™์ƒ์„๊ฒฝํ—˜ํ•˜์˜€๋‹ค.์ŠคํŠœ๋””์˜ค์•„ํ‚คํ™€๋ฆญ,ํ•œ์šธ๊ฑด์ถ•, ์กฐ๋ณ‘์ˆ˜๊ฑด์ถ•์—ฐ๊ตฌ์†Œ,O.C.A.๊ฑด์ถ•์‚ฌ์‚ฌ๋ฌด์†Œ์—์„œ์‹ค๋ฌด๋ฅผ
KS)๊ฑด์ถ•์ง‘๋‹จ์˜
์ž„๊ฑด์ถ•๊ฐ€์ด๋‹ค.
๋ฐ
1. ๊น€์œ ํ™ ์ธํ„ฐ๋ทฐ ์ผ์‹œ: 2022๋…„ 8์›” ์ค‘ ์ธํ„ฐ๋ทฐ ์žฅ์†Œ: ๊ฑด์ถ•์‚ฌ์‚ฌ๋ฌด์†Œ ๋ด„ ๊ฑด์ถ•์—ฐ๊ตฌ์†Œ ์‚ฌ๋ฌด์‹ค ์ฐธ์„์ž: ๊น€์œ ํ™(๊ฑด์ถ•์‚ฌ์‚ฌ๋ฌด์†Œ ๋ด„ ๊ฑด์ถ•์—ฐ๊ตฌ์†Œ ๋Œ€ํ‘œ), ์ดํƒœํ˜„(๋ณธ์ง€ ํŽธ์ง‘์œ„์›, ๋™์–‘๋Œ€ ๊ต์ˆ˜, THE A LAB ๋Œ€ํ‘œ) ์ดํƒœํ˜„์˜ ๋– ์˜ค๋ฅด๋Š” ๊ฑด์ถ•๊ฐ€ 13 ๊ฑด์ถ•์‚ฌ์‚ฌ๋ฌด์†Œ ๋ด„ ๊ฑด์ถ•์—ฐ๊ตฌ์†Œ ๊น€์œ ํ™ ์†๋ฐœ์ด ์ž˜ ๋งž๋Š” ํ•˜๋‚˜์˜ ํŒ€์œผ๋กœ ์„ค๊ณ„๋ฅผ ํ•ด ๋‚˜๊ฐ€๋Š” ๊ฑด์ถ•๊ฐ€ RISING ARCHITECT ๊ฑด์ถ•์‚ฌ์‚ฌ๋ฌด์†Œ๋ด„๊ฑด์ถ•์—ฐ๊ตฌ์†Œ์˜๊น€์œ ํ™๋Œ€ํ‘œ๋Š” ใ€ˆํ‰๊ฑฐ๋™931 ๋นŒ๋”ฉใ€‰, ใ€ˆ์–‘๋ช…์ดˆ์ฒด์œก๊ด€+๊ธ‰์‹์‹œ์„คใ€‰, ใ€ˆ์žฅ์ง€๋™๋‹ค์„ฏ,๋œฐใ€‰ ๋“ฑ์˜ ์™„์„ฑ๋„ ๋†’์€ ์—ฌ๋Ÿฌ ์ค€๊ณต์ž‘์„ ํ†ตํ•ด ์ด๋ฏธ ๋‘๊ฐ์„๋‚˜ํƒ€๋‚ด๊ณ  ์žˆ๋Š”๊ฑด์ถ•๊ฐ€์ด๋‹ค.์ด๋ฒˆ ์ธํ„ฐ๋ทฐ๋ฅผ ํ†ตํ•ด ๊ทธ์˜๊ฑด์ถ•์—๋Œ€ํ•œ ์—ฌ๋Ÿฌ ์ƒ๊ฐ์„ ๋“ค์„์ˆ˜ ์žˆ์—ˆ๊ณ , ๊ทธ๋งŒ์˜๊ฑด์ถ•์„๋Œ€ํ•˜๋Š” ์†”์งํ•จ๊ณผ์ •์ง์„ฑ๋„ ๋А๋‚„ ์ˆ˜ ์žˆ์—ˆ๋‹ค. ๊ฑด์ถ•์‚ฌ๋กœ์„œ๊ธฐ๋ณธ์ ์ธ ์ง์—…์œค๋ฆฌ๋ฅผ ๊ฐ–์ถ”์–ด ํด๋ผ์ด์–ธํŠธ์—๊ฒŒ ์งˆ ์ข‹์€์„œ๋น„์Šค๋ฅผ ์ œ๊ณตํ•˜๋ ค๋Š”๋…ธ๋ ฅ๊ณผ๋™์‹œ์—๊ฑด์ถ•๊ฐ€๋กœ์„œ์„ค๊ณ„ ์˜๋„๋“ค์„ ์ž˜ ๋…น์—ฌ ์งˆ ์ข‹์€๊ฑด์ถ•์„ ๋งŒ๋“ค๊ณ ์ž ํ•˜๋Š”์˜์ง€๋ฅผ ๊ทธ์˜์ž‘์—…๊ณผ ์–ธ์–ด๋ฅผ ํ†ตํ•ด ๋ณด๊ณ  ๋“ค์„์ˆ˜ ์žˆ์—ˆ๋‹ค.๋‹ค์–‘ํ•œ ์ธต์œ„ ํ˜น์€์ƒ๊ด€๊ด€๊ณ„์— ๋†“์—ฌ ์žˆ๋Š”ํ•œ๊ตญ๊ฑด์ถ•์˜์ƒํ™ฉ์—์„œ,์ตœ์„ ์˜ ๊ฒฐ๊ณผ๋ฅผ ๋งŒ๋“ค๊ธฐ ์œ„ํ•œ ๊ทธ์˜๋…ธ๋ ฅ๊ณผ์‹œ๊ฐ„์„ ํ†ตํ•ด ๋‚˜์˜จ ์—ฌ๋Ÿฌ ํ”„๋กœ์ ํŠธ๋“ค์—๋Œ€ํ•œ์ด์•ผ๊ธฐ๋Š”๋งค์šฐ ํฅ๋ฏธ๋กœ์› ๋‹ค. ๋˜ํ•œ ๊ทธ๊ฐ€ ๊ฑด์ถ•์„์‹œ์ž‘ํ•˜๊ณ ํ˜„์žฌ๊นŒ์ง€ ๊ฑธ์–ด์˜ค๋ฉฐ ๋ชฉํ‘œํ•œ ๋ฐ”๋“ค์„ ํ•˜๋‚˜์”ฉ ์„ฑ์ทจํ•ด์˜จ์ด์•ผ๊ธฐ๋Š”์‚ฌ๋ฌด์†Œ๋ฅผ ์‹œ์ž‘ํ•˜๋Š” ๋งŽ์€ ์ Š์€๊ฑด์ถ•์ธ๋“ค์—๊ฒŒ ์ข‹์€ ๊ท€๊ฐ์ผ ๋  ๊ฑฐ๋ผ์ƒ๊ฐ๋˜์—ˆ๋‹ค. ๋•Œ๋กœ๋Š”์ƒ์กด์—์„œ, ๋•Œ๋กœ๋Š”๋ณด๋‹ค ์™„๋ฒฝํ•œ ๊ฒฐ๊ณผ๋ฌผ์„ ์œ„ํ•ด,๊ณ ๋ฏผํ•˜๊ณ  ์ตœ์„ ์„๋‹คํ•ด์˜จ ๊ทธ์˜ํ–‰๋ณด๊ฐ€ ์•ž์œผ๋กœ๋” ์ข‹์€๊ฑด์ถ•์„ ๋‚ณ์„ ๊ฒƒ์ด๋ผ์ƒ๊ฐ๋œ๋‹ค.

4

โ“ฆ ์•ˆ๋…•ํ•˜์„ธ์š”. ๋ฐ˜๊ฐ‘์Šต๋‹ˆ๋‹ค. โ€˜๊ฑด์ถ•์‚ฌ์‚ฌ๋ฌด์†Œ ๋ด„ ๊ฑด์ถ•์—ฐ๊ตฌ์†Œโ€™ (์ดํ•˜ ๋ด„ ๊ฑด์ถ•์—ฐ๊ตฌ์†Œ)์— ๋Œ€ํ•œ ์†Œ๊ฐœ๋ฅผ ๋ถ€ํƒํ•ฉ๋‹ˆ๋‹ค. ์ €ํฌ๋Š” ๊ฑด์ถ•์‚ฌ์‚ฌ๋ฌด์†Œ์ž…๋‹ˆ๋‹ค. ๊ฑด์ถ•์‚ฌ์‚ฌ๋ฌด์†Œ๋ผ๋Š”

์ด๋ฆ„์ด ์ฐธ ์žฌ๋ฏธ์—†๊ณ  ๋ณ„๋กœ ์ข‹์•„ํ•˜์ง€๋Š” ์•Š์ง€๋งŒ ์‚ฌ์—…์ž๋“ฑ๋ก์ฆ์—๋Š” ๊ฑด์ถ•์‚ฌ์‚ฌ๋ฌด์†Œ๋ผ๊ณ  ์ ํ˜€

์žˆ์ฃ . ๊ทธ๋ฆฌ๊ณ  ์„œ๋น„์Šค์—…์ด๋ผ๊ณ  ๋‚˜์™€ ์žˆ์–ด์š”. ์ œ๊ฐ€ ์„ธ์ƒ๊ณผ ๋งŒ๋‚˜๋Š” ํ‹€์ด์ฃ . ๊ณ ๊ฐ์—๊ฒŒ ์งˆ ์ข‹์€ ์„ค๊ณ„์™€ ๊ฐ๋ฆฌ ๋“ฑ์˜ ์„œ๋น„์Šค๋ฅผ ์ œ๊ณตํ•˜๋Š” ๊ฒƒ์ด ์ €์˜ ๊ธฐ๋ณธ์ ์ธ ์ง์—… ์œค๋ฆฌ์ž…๋‹ˆ๋‹ค. ์ €์™€ ๋ด„ ๊ฑด์ถ•์—ฐ๊ตฌ์†Œ์˜ ๊ฐœ๋ณ„์ ์ธ ์บ๋ฆญํ„ฐ์™€ ๊ณ ๋ฏผ๋“ค์ด์•ผ ์žˆ๊ฒ ์ง€๋งŒ ์šฐ์„  ์ €ํฌ์—๊ฒŒ ์ผ์„ ๋งก๊ธฐ๋Š” ๊ณ ๊ฐ๋“ค์ด ๋งŒ์กฑํ•ด์•ผ ํ•ฉ๋‹ˆ๋‹ค, ์ œ๊ฐ€ ์•„๋‹ˆ๋ผ. ๊ทธ๋Ÿฌ๊ธฐ ์œ„ํ•ด ์‚ฌ๋ฌด์‹ค์„ ๋งŒ๋“ค์—ˆ๊ณ  ๊ณ ๊ฐ๋“ค์€ ์ €์—๊ฒŒ ๋ˆ์„ ์ง€๋ถˆํ•ฉ๋‹ˆ๋‹ค. ์ตœ์„ ์ด ๋ฌด์—‡์ธ์ง€, ์–ด๋–ป๊ฒŒ ๊ฑด์ถ•์ ์ธ ์ œ์•ˆ์„ ํ•  ๊ฒƒ์ธ์ง€, ๊ฑด์ถ•์€ ๋Œ€์ฒด ์–ด๋””์— ์žˆ๋Š”์ง€, ๋‚˜๋Š” ๋ˆ„๊ตฌ์ธ์ง€ ์ˆ˜๋งŽ์€ ๊ณ ๋ฏผ์ด ์žˆ๊ฒ ์ง€๋งŒ ์ถœ๋ฐœ์€ ๊ทธ๋ ‡์Šต๋‹ˆ๋‹ค.

โ“ฆ ์‚ฌ๋ฌด์†Œ์˜ ์‹œ์ž‘์ด ๊ถ๊ธˆํ•ฉ๋‹ˆ๋‹ค. ์–ด๋–ป๊ฒŒ ๋ด„ ๊ฑด์ถ•์—ฐ๊ตฌ์†Œ๋ฅผ ์„ค๋ฆฝํ•˜์˜€๊ณ  ์‹œ์ž‘ํ•˜์˜€๋‚˜์š”? ๊ฑด์ถ•์„ ์ „๊ณตํ•˜๊ธฐ๋กœ ๋งˆ์Œ๋จน์€ ๋•Œ๋ถ€ํ„ฐ ์ œ ๊ฟˆ์€ ์–ธ์ œ๋‚˜ ์ž‘์€ ์•„ํ‹€๋ฆฌ์—๋ฅผ ์ฐจ๋ฆฌ๋Š” ๊ฒƒ์ด์—ˆ์Šต๋‹ˆ๋‹ค. ๊ฑด์ถ•์ด ์ง€๊ธ‹์ง€๊ธ‹ํ•ด์„œ ๊ฑด์ถ• ์ž์ฒด๋ฅผ ๋•Œ๋ ค ์น˜์ž๋Š” ์ƒ๊ฐ์€ ์ˆ˜์—†์ด ํ–ˆ์–ด๋„, ๊ฑด์ถ•์„ ํ•˜๋Š” ๋™์•ˆ ๊ฑด์ถ•์˜ ๋‹ค๋ฅธ ๋ถ„์•ผ๋ฅผ ๊ณ ๋ฏผํ•ด ๋ณธ ์ ์€ ์—†์—ˆ์–ด์š”. ์ง€๊ธˆ ๋Œ์ด์ผœ๋ณด๋‹ˆ ์–ด๋ ธ๋˜ ์ €์—๊ฒŒ ์žˆ์–ด ๊ฑด์ถ•์ด๋ผ๋Š” ๋ง๊ณผ ์†Œ๊ทœ๋ชจ ์•„ํ‹€๋ฆฌ์—๋Š” ๋™์˜์–ด์˜€๋˜ ๊ฒƒ ๊ฐ™์Šต๋‹ˆ๋‹ค. ์‹œ๊ฐ„์ด ํ˜๋Ÿฌ ๋•Œ๊ฐ€ ๋˜์—ˆ๊ณ , ๋‹ค๋‹ˆ๋˜ ์‚ฌ๋ฌด์‹ค์—์„œ ๋‚˜์™€์„œ ๋…๋ฆฝ์„ ํ–ˆ์ฃ . ์ฒ˜์Œ๋ถ€ํ„ฐ ์–ด๋–ค ํ”„๋กœ์ ํŠธ๋ฅผ ๊ฐ–๊ณ ์„œ ์‹œ์ž‘ํ•œ

๊ฑด ์•„๋‹ˆ์—ˆ๊ธฐ์— ์ผ์ฐจ์ ์ธ ๊ณ ๋ฏผ์€ ๊ทธ์ € ์ƒ์กด์— ๋Œ€ํ•œ ๊ฒƒ์ด์—ˆ์Šต๋‹ˆ๋‹ค. ์ข€ ๋” ๊ฑฐ์ฐฝํ•œ ๊ณ ๋ฏผ์„ ํ–ˆ๋‹ค๊ณ  ๋งํ•˜๊ณ  ์‹ถ์ง€๋งŒ ์‚ฌ์‹ค ์‚ด์•„๋‚จ๊ธฐ๊ฐ€ ์ผ์ฐจ ๋ชฉํ‘œ์˜€์Šต๋‹ˆ๋‹ค. ์ธํ…Œ๋ฆฌ์–ด๋„ ํ•˜๊ณ , ์™ธ์ฃผ ์ผ๋„ ํ•˜๊ณ , ์ž…์ฐฐ๋„ ํ•˜๊ณ โ€ฆ, ๋งํ•˜๊ธฐ ๋ฏผ๋งํ•œ ๋งŽ์€ ํ”„๋กœ์ ํŠธ๋“ค์ด ์•„์ง ํšŒ์‚ฌ ์„œ๋ฒ„์— ๋งŽ์ด ๋‚จ์•„ ์žˆ์–ด์š”. ๊พธ์—ญ๊พธ์—ญ ํ–ˆ๋˜ ๊ฒƒ ๊ฐ™์Šต๋‹ˆ๋‹ค. โ“ฆ ๊ทธ๋™์•ˆ ๋ด„ ๊ฑด์ถ•์—ฐ๊ตฌ์†Œ๊ฐ€ ์ง„ํ–‰ํ•ด์˜จ ํ”„๋กœ์ ํŠธ๋Š” ์–ด๋–ค ๊ฒƒ๋“ค์ด ์žˆ๊ณ , ๋Œ€ํ‘œ ํ”„๋กœ์ ํŠธ๋ผ๊ณ  ์ƒ๊ฐํ•˜๋Š” ๊ฒƒ์€ ์–ด๋–ค ๊ฒƒ๋“ค์ด ์žˆ๋‚˜์š”? ๊ทธ๋Ÿฌ๋˜ ์ค‘์— ใ€ˆํ‰๊ฑฐ๋™ 931ใ€‰ ํ”„๋กœ์ ํŠธ๊ฐ€ ๋“ค์–ด์™”์Šต๋‹ˆ๋‹ค. ์ง„์ฃผ์‹œ ํ‰๊ฑฐ๋™์— ์žˆ๋Š” ์ง€ํ•˜2์ธต, ์ง€์ƒ 5์ธต ๊ทœ๋ชจ์˜ ๊ทผ๋ฆฐ์ƒํ™œ์‹œ์„ค์ด์—ˆ์Šต๋‹ˆ๋‹ค. ๋งํ•˜์ž๋ฉด ํƒœ์–ด๋‚˜์„œ ์ฒ˜์Œ์œผ๋กœ ์ œ ์ด๋ฆ„์œผ๋กœ ๊ณ„์•ฝํ•˜๊ณ , ์ œ ์˜๋„๋Œ€๋กœ ๋””์ž์ธํ•˜๊ณ , ๊ฐ๋ฆฌ๋„ ์Šค์Šค๋กœ ํ•˜๊ณ , ๋งˆ๊ฐ์žฌ๋ฃŒ๋„ ์˜๋ขฐ์ธ๊ณผ ํ•จ๊ป˜ ์‚ฌ์ด์ข‹๊ฒŒ ๋ณด๋Ÿฌ ๋‹ค๋‹ˆ๊ณค ํ–ˆ๋˜ ํ”„๋กœ์ ํŠธ์˜€์Šต๋‹ˆ๋‹ค.

๋‹น์‹œ ์ง„์ฃผ์˜ ๊ทผ๋ฆฐ์ƒํ™œ์‹œ์„ค ๊ฑด๋ฌผ์€ ๋Œ€๋ถ€๋ถ„

๊ฐ€๋กœ์™€ ๋ฉดํ•œ ์ €์ธต๋ถ€๋ผ๊ณ  ํ•ด์„œ ๋”ฑํžˆ ๊ฐœ๋ฐฉ์ ์ธ

๊ณต๊ฐ„์„ ๋‘๋Š” ์‚ฌ๋ก€๊ฐ€ ๋งŽ์ด ์—†์—ˆ์Šต๋‹ˆ๋‹ค. 1์ธต

์ž„๋Œ€๊ณต๊ฐ„์„ ์ค‘์‹ฌ์œผ๋กœ ํ•œ์ชฝ์€ ์ง€ํ•˜์ฃผ์ฐจ์žฅ

์ž…๊ตฌ๊ฐ€ ๋˜์–ด์•ผ ํ–ˆ๊ณ , ๋‹ค๋ฅธ ํ•œ์ชฝ์€ ๊ฑด๋ฌผ ์ „์ฒด์˜

์ž…๊ตฌ๊ฐ€ ์žˆ์–ด์•ผ ํ–ˆ๋Š”๋ฐ ๊ทธ๋ ‡๊ฒŒ ๊ฐ€๋กœ์™€ ๋งŒ๋‚˜๋Š”

๊ฑด๋ฌผ์˜ ์„ธ ์ ‘์†์ ์ด ๊ทธ๋Œ€๋กœ ๊ตฌ์กฐ์˜ ํ˜•ํƒœ๊ฐ€

๋˜์–ด ๋“œ๋Ÿฌ๋‚ฌ์œผ๋ฉด ์ข‹๊ฒ ๋‹ค๋Š” ์•„์ด๋””์–ด๋ฅผ ๋๊นŒ์ง€

๊ด€์ฒ ์‹œ์ผฐ์Šต๋‹ˆ๋‹ค. ๊ทธ๋Ÿฐ ๊ณต๊ฐ„์˜ ๊ฐœ๋…์„ ๋ช…์พŒํ•˜๊ฒŒ

๋“œ๋Ÿฌ๋‚ด๊ธฐ ์œ„ํ•ด ๋ชจ๋“  ์Šฌ๋ผ๋ธŒ๋ฅผ ์ค‘๊ณต์Šฌ๋ผ๋ธŒ๋กœ ๊ณ„ํšํ•˜์—ฌ ๋ผ๋ฉ˜๊ตฌ์กฐ์˜ ํ‰๋ฒ”ํ•จ์„ ๋ฒ—์–ด๋‚˜๋ ค๊ณ  ํ–ˆ์Šต๋‹ˆ๋‹ค. ๊ทธ๋ ‡๊ฒŒ 2์ธต์„ ํฌํ•จํ•œ ์ €์ธต๋ถ€๋Š”

2 1 5 1~5. ๋™ํƒ„์ค‘์•™์ดˆ ๊ต์‚ฌ๋™ ์ฆ์ถ•

3

63
๊ฐœ๋ฐฉ์ ์ด๋˜, ์ƒ์ธต๋ถ€๋Š” ๋ฐ˜๋ณต๋˜๋Š” ๋‹จ์ˆœํ•œ ํ˜•ํƒœ๋ฅผ ๊ฐ–๊ณ  ๊ฐ์ธต๋งˆ๋‹ค ์„œ๋กœ ๋ฐœ์ฝ”๋‹ˆ ๋˜๋Š” ํ…Œ๋ผ์Šค๋ฅผ ๋‘์ž, ์˜ฅ์ƒ์ •์›์„ ๊พธ๋ฉฐ ๊ฐœ๋ฐฉํ•˜์ž ์ •๋„๋กœ ์ƒ๊ฐ์„ ์ •๋ฆฌํ–ˆ์Šต๋‹ˆ๋‹ค. ํ•œํŽธ ใ€ˆํ‰๊ฑฐ๋™ 931ใ€‰์—์„œ์˜ ๊ฐœ๋ฐฉ๊ฐ์€ ์ „๋ฉด ์–‘์ธก ๋ชจ์„œ๋ฆฌ์˜ ๊ธฐ๋‘ฅ์ด ์‚ญ์ œ๋œ 4.2๋ฏธํ„ฐร—8.1๋ฏธํ„ฐ์˜ ์Šฌ๋ผ๋ธŒ๊ฐ€ ์บ”ํ‹ธ๋ ˆ๋ฒ„๋กœ ๋–  ์žˆ๋Š” ๊ตฌ์กฐ๋ฅผ ํ†ตํ•ด ๋“œ๋Ÿฌ๋‚ฉ๋‹ˆ๋‹ค. 2018๋…„์— ใ€ˆ์–‘๋ช…์ดˆ ์ฒด์œก๊ด€ ๋ฐ ๊ธ‰์‹์‹œ์„ค ์„ค๊ณ„๊ณต๋ชจใ€‰์— ํ•˜๋‚˜์˜ ์ œ์•ˆ์„ ํ•˜๊ณ  ์‹ถ์–ด ์ง€์นจ์˜ ์˜๋„์™€๋Š” ์ข€ ๋‹ค๋ฅด๊ฒŒ 1์ธต์•ˆ์„ ๋‚ด์—ˆ๋Š”๋ฐ ์šด ์ข‹๊ฒŒ ๋‹น์„ ์ด ๋˜์—ˆ์Šต๋‹ˆ๋‹ค. ์‚ฌ๋ก€์กฐ์‚ฌ๋ฅผ ํ•˜๋ฉฐ ๋ณด๊ฒŒ ๋˜๋Š” ์™ธ๊ตญ์˜ ์ฒด์œก๊ด€๋“ค์€ 1์ธต์ด๋‚˜ ๋ฐ˜์ง€ํ•˜๋กœ ๋ฌปํžŒ ๊ฒฝ์šฐ๋„ ๋งŽ์•˜์œผ๋‹ˆ ์‚ฌ์‹ค ์ƒˆ๋กœ์šธ ๊ฒƒ์€ ์—†์—ˆ์ง€๋งŒ ๊ตญ๋‚ด ๊ณต๋ฆฝํ•™๊ต์˜ ์ฒด์œก๊ด€์€ ๋ชจ๋‘ ํ•„๋กœํ‹ฐ ๊ตฌ์กฐ์˜ 2์ธต ์ด์ƒ์˜ ์ฒด์œก๊ด€๋“ค์ด์–ด์„œ ๊ทธ๋Ÿฐ ๊ด€์„ฑ์— ์ €ํ•ญํ•˜๊ณ  ์‹ถ์€ ๋งˆ์Œ์ด ์žˆ์—ˆ์Šต๋‹ˆ๋‹ค. ๋งˆ์นจ ๊ฑดํ์œจ์— ์—ฌ์œ ๋„ ์žˆ๊ณ , ์ฒด์œก๊ด€์ด ๋†“์ผ ๋Œ€์ง€์˜ ํ˜•ํƒœ๊ฐ€ 1์ธต์œผ๋กœ๋„ ๊ฐ€๋Šฅํ•˜๋‹ค๋Š” ํŒ๋‹จ์ด ๋“ค์—ˆ์Šต๋‹ˆ๋‹ค. ๋‚˜์ค‘์— ์‹ฌ์‚ฌ์œ„์› ํ‰๊ฐ€์„œ๋ฅผ ๋ณด๋‹ˆ โ€˜1์ธต ๊ณ„ํš์•ˆ์— ๋Œ€ํ•œ ์ƒˆ๋กœ์šด ๊ฐ€๋Šฅ์„ฑโ€™์„ ๋‹น์„  ์ด์œ ๋กœ ๊ผฝ์•˜๋”๋ผ๊ณ ์š”. ๊ฐ์‚ฌํ–ˆ์Šต๋‹ˆ๋‹ค. ์ดํ›„ ๊ธด ์ด์•ผ๊ธฐ์ง€๋งŒ ๊ฒฐ๋ก ์„ ๋งํ•˜์ž๋ฉด ์ง€๊ธˆ์€ 2์ธต์งœ๋ฆฌ ์ฒด์œก๊ด€์ž…๋‹ˆ๋‹ค. ๊ต์ •์„ ์กฐ๊ธˆ์ด๋ผ๋„ ๋” ํšจ์œจ์ ์œผ๋กœ ํ™œ์šฉํ•ด์•ผ ํ•˜๋Š” ํ•™๊ต์˜ ํ˜„์‹ค์„ ๋ฌด์‹œํ•  ์ˆ˜๋Š” ์—†์—ˆ๊ณ , 1์ธต ์ฒด์œก๊ด€์ด ๊ฑด์ถ•๊ฐ€ ๊ฐœ์ธ์˜ ์š•์‹ฌ์ธ์ง€ ์ •๋ง ํ•™๊ต์™€ ์•„์ด๋“ค์—๊ฒŒ ์ข‹์„ ์ง€ ํŒ๋‹จํ•˜๊ธฐ ํž˜๋“ค์—ˆ์Šต๋‹ˆ๋‹ค. ์ ˆ์ฐจ์— ๋Œ€ํ•œ ํ–‰์ •์ ์ธ ์‹ธ์›€์€ ๋๊นŒ์ง€ ๊ฐˆ ์ž์‹ ์ด ์—†์œผ๋ฉด ํ•˜์ง€ ์•Š๊ฒ ๋‹ค๊ณ  ์• ์ดˆ์— ์ƒ๊ฐ์„ ์ •๋ฆฌํ–ˆ์—ˆ๊ณ , ํ•œํŽธ์œผ๋กœ๋Š” ํ•™๊ต์™€ ๊ต์œก์ฒญ์—์„œ ์›ํ•˜๋Š” 2์ธต

๋ถˆ๊ณผํ•˜๋‹ค๊ณ  ๋ฏฟ๋Š”๋‹ค.)์ฒ˜์Œ๋ถ€ํ„ฐ๋‹จ์ˆœํ•œ ๋งค์Šค์™€ ๊ทธ ๋งค์Šค๋ฅผ ์ƒ์‡„์‹œํ‚ฌ ์˜จํ™”ํ•œ ํ†ค์˜๋งˆ๊ฐ์žฌ, ์น˜์žฅ๋ฒฝ๋Œ์˜๊ตฌ์ถ•์„ฑ์„๋“œ๋Ÿฌ๋‚ด๋Š”๋ฐฉ์‹๋ณด๋‹ค๋Š” ์—†์• ๋Š”๋ฐฉ์‹์œผ๋กœ์ค‘์ •์˜๋ณด์ด๋“œ๊ฐ€ ๋„๋“œ๋ผ์ ธ ๋ณด์ด๋Š” ํ•˜๋‚˜์˜ ๋ฉ์–ด๋ฆฌ ๋˜๋Š”๋‹จ์ผํ•œ ๋ฒฝ๋ฉด์ด ๋˜๋Š” ๊ฒƒ์„์˜๋„ํ–ˆ๋‹ค.ํ‰๋ฉด์„ ๋Š˜์ด๋‹ˆ ์ค‘์ •์ด ๋งŒ๋“ค์–ด์ง„๋‹ค. ์ค‘์ •์€ ๊ฐ€๊นŒ์ด ์žˆ๋Š”๋งˆ๋‹น๊ณผ ๋ฉ€๋ฆฌ ์žˆ๋Š”ํ’๊ฒฝ์„

์ง‘์•ˆ์œผ๋กœ ๋Œ์–ด๋“ค์ด๊ณ  ๋‚ด๋ถ€๋Š”์ค‘์ •์„๋งค๊ฐœ๋กœ

์™ธ๋ถ€๊ณต๊ฐ„์œผ๋กœ ํ™•์žฅ๋œ๋‹ค.๋„ˆ๋ฌด๋‚˜๊ณ ์ „์ ์ด์–ด์„œ

์ƒˆ๋กœ์šธ ๊ฒƒ ์—†๋Š”์ˆ˜๋ฒ•์ด์ง€๋งŒ ์‹คํŒจํ•  ๋ฆฌ๋„ ์—†๋Š” โ€˜์น˜ํŠธํ‚ค ๋‹ค.์ค‘์ •์€ํ‰๋ฉด์˜๊ตฌ์„ฑ์„ ๋”ฐ๋ผ๋ฐฐ์น˜๋˜์—ˆ๊ณ 

๋‹ค์„ฏ๊ฐœ๊ฐ€ ๋˜์—ˆ์œผ๋ฉฐ, ๊ฒฐ๊ณผ์ ์œผ๋กœ ๊ฐ๊ฐ์˜ ์—ญํ• ์„ ํ•˜๊ณ  ์žˆ๋‹ค.ํ˜„๊ด€์˜๋ฆฌ์…‰์…˜, ๋ง‰๋‚ด๋”ธ์˜์Œ์•…์ž‘์—…์‹ค์„ ์œ„ํ•œ๊ธฐ๋Šฅ์ ์ธ์ด๊ฒฉ,์ด์ง‘์˜์ค‘์‹ฌ๊ณต๊ฐ„์ด์ž๊ฑฐ์‹ค์˜ ํ™•์žฅ์œผ๋กœ์„œ์˜ ์—ญํ• ,์•„๋‚ด์ด์ž์—„๋งˆ์ธ์ด์ง‘์˜ ์‹ค์งˆ์ ์ธ์ฃผ์ธ๊ณผ ๊ทธ์ด์˜๊ฐœ์ธ์ ์ธ ์†๋‹˜์„ ์œ„ํ•œ ๋’ท๋งˆ๋‹น, ์š•์‹ค์˜ ํ”„๋ผ์ด๋ฒ„์‹œ์™€ ์š•์กฐ์—์„œ ๋ฐ”๋ผ ๋ณด๋Š”ํ’๊ฒฝ์„ ์œ„ํ•œ์žฅ์น˜.๋‹ค์„ฏ๋ช…์ธ ๊ฐ€์กฑ๊ณผ์ผ๋Œ€์ผ ๋Œ€์‘ํ•˜์—ฌ ์ค‘์ •์˜์ด๋ฆ„์„์ง€์œผ๋ ค๊ณ  ๊ฐ€์กฑ ๋ชจ๋‘์˜ ํ•œ์ž์ด๋ฆ„๊นŒ์ง€ ๋ฐ›์•„ ๋†“์•˜์œผ๋‚˜ ๋Šฅ๋ ฅ ๋ฐ–์˜์ผ์ž„์„ ๊นจ๋‹ฌ์•˜๋‹ค. ์ง์›์˜์ œ์•ˆ์œผ๋กœ๊ฑด๋ฌผ์ด๋ฆ„์„ โ€˜๋‹ค์„ฏ, ๋œฐ์ด๋ผ๊ณ ์ง€์—ˆ๊ณ ,์ง‘์ฃผ์ธ์€ ํ”์พŒํžˆ ๋ฐ›์•„์ฃผ์—ˆ๋‹ค.์ง‘ ์ด๋ฆ„๋„,์ง‘์ด๋ฆ„์„ ์ƒˆ๊ธด ๋จธ๋ฆฟ๋Œ๋„.ํ•œํŽธ์ค‘์ • ๋ฒฝ์˜ ์ผ๋ถ€๊ฐ€ ์—ฐ์žฅ๋œ ๋‚ฎ์€ ๋‹ด๊ณผ ๊ฐ€๋ฒฝ๋“ค์€์™ธ๋ถ€๊ณต๊ฐ„์„ ์ฃผ์ฐจ์žฅ๊ณผ ์•ž๋งˆ๋‹น,ํ˜„๊ด€๊ณผ ์•ˆ๋งˆ๋‹น์œผ๋กœ๋‚˜๋ˆ ์ฃผ๋Š” ์žฅ์น˜๊ฐ€ ๋˜๊ณ ๋™์ธก์ด์›ƒ์˜๋ณด๊ฐ•ํ†  ๋ธ”๋ก์„ ๊ฐ€๋ฆฌ๋Š” ์Šคํฌ๋ฆฐ์˜ ์—ญํ• ์„ํ•œ๋‹ค. ์กฐ๊ฒฝ์ด์ž๋ฆฌ ์žก๊ณ ๋‚˜๋‹ˆ ์•ž๋งˆ๋‹น์€ ๊ทธ์ € ์‹œ์›ํ•œ๋ฐ ๋ฐ˜ํ•ด, ๋’ท๋งˆ๋‹น์€์˜ค๋ฐ€์กฐ๋ฐ€ํ•˜๋ฉฐ ํ’์„ฑํ•˜๋‹ค.์€๋ฐ€ํ•œ ๋А๋‚Œ๋„ ๋“ค๊ณ  ์‚ด๋ฆผ์ง‘ ๊ฐ™๋‹ค.์•ฝ๊ฐ„ ๋‚จ์„œํ–ฅ์ด๋ผ ๋ณ•๋„

์ œ๋ฒ• ๋“ค์–ด์˜จ๋‹ค. ๊ทธ๋ ‡๊ฒŒ ์™ธ๋ถ€๊ณต๊ฐ„์ด ์•ž๋’ค๋กœ๋‹ค๋ฅธ

ํˆฌ๋ช…ํ•˜๊ฒŒ ์กฐ์šฐํ•œ๋‹ค.๋‚˜๋จธ์ง€๋Š” ๋น›๊ณผ ๊ทธ๋ฆผ์ž์˜ ์—ญํ• ์ด๋‹ค. ๋ฒฝ๋Œ์€ ๊ทธ ์ž์ฒด๋กœ๋ถ„ํ™์ƒ‰๊ณผ๋…ธ๋ž€์ƒ‰, ๋ฒ ์ด์ง€์ƒ‰ ์žˆ๋Š”๋ฐ ๋‚ ์”จ์™€ ํ–‡๋น›์˜ ์งˆ๊ฐ์— ๋”ฐ๋ผ ๊ฐ๊ฐ์˜ ์ƒ‰์ด ์ฐจ๋ก€๋กœ๋“œ๋Ÿฌ๋‚˜๋Š” ๊ฑธ ๋ณด๋Š”์†Œ์†Œํ•จ๋„์ด์ง‘์—์‚ฌ๋Š” ์‚ฌ๋žŒ์—๊ฒŒ๋งŒ ์ฃผ์–ด์ง„ ์ฆ๊ฑฐ์›€์ผ ๊ฒƒ์ด๋‹ค. 1 2 3

64 1. 1์ธต ํ‰๋ฉด๋„ 2. 2์ธต ํ‰๋ฉด๋„ 3. ํšก๋‹จ๋ฉด๋„ ๋‹ค์„ฏ, ๋œฐ
๋™์ชฝ์—์„œ ๋‹ฌ๋ ค์˜ค๋Š”์ž‘์€๋™์‚ฐ์€๋Œ€์ง€๋ฅผ ์ง€๋‚˜ ์„œ์ชฝ์œผ๋กœ ๊ฐ€๋ฉฐ ๋‚˜์ง์ด ๋‚ด๋ ค์•‰๊ณ  ์žˆ์—ˆ๋‹ค. ๊ทธ๋ ‡๊ฒŒ ๋‚จ์„œํ–ฅ์œผ๋กœ์—ด๋ ค ์žˆ๋Š”๋Œ€์ง€์˜€๋‹ค.๋งˆ์„์˜ ๋ช‡๋ช‡ ํŒŒ๋ž€์ƒ‰ ์ƒŒ๋“œ์œ„์น˜ ํŒจ๋„ ์ง€๋ถ•์€ ๋‹ด์žฅ์„ ๋†’์ด๋ฉด ๊ฐ€๋ ค์งˆ ๊ฒƒ ๊ฐ™์•˜๋‹ค. ๊ทธ๋Ÿฌ๋ฉด ํ‘ธ๋ฅธ ๋งˆ๋‹น, ๋‹ด์žฅ์˜์ˆ˜ํ‰์„ ๊ณผ ๊ทธ ์œ„๋กœ ํ•˜๋Š˜, ๋™์ชฝ ๊ฐ€๊นŒ์šด์ž‘์€๋™์‚ฐ๊ณผ๋‚จ์„œ์ชฝ์œผ๋กœ์—ด๋ฆฐ ์›๊ฒฝ์˜ ์กฐํ™”๊ฐ€ ๊ทผ์‚ฌํ•  ๊ฒƒ ๊ฐ™์•˜๋‹ค.์ง‘์€ ๊ทธ ํ’๊ฒฝ ๋’ค์— ์–Œ์ „ํžˆ ๋†“์—ฌ ์ด๊ฒƒ๋“ค์„ ๋‹ด์•„๋‚ด๋Š”์žฅ์น˜๊ฐ€ ๋˜์–ด์•ผ ํ–ˆ๋‹ค. ์ง‘์„ ๊ฐ€๋กœ๋กœ๊ธธ๊ฒŒ ์•‰ํžˆ๊ณ  ๊ฐ€๋Šฅํ•œ ๋ฒŒ๋ ค ๋‘”๋‹ค. ๋ฒŒ๋ ค์„œ๋Œ€์ง€์™€์ ๊ทน์ ์œผ๋กœ๊ด€๊ณ„๋ฅผ ๋งบ์ง€๋งŒ ์œ„์••์ ์ธ ๋А๋‚Œ์€ ๋“ค์ง€ ์•Š๋„๋ก ํ•œ๋‹ค. ๊ฐ€๋Šฅํ•œ ์˜ค๋ธŒ์ œ๊ฐ€ ์•„๋‹Œ๋ฐฐ๊ฒฝ์œผ๋กœ๋‚จ์œผ๋ ค๋Š” โ€˜์ œ์Šค์ฒ˜โ€™๊ฐ€ ํ•„์š”ํ•˜๋‹ค.(๊ฑด์ถ•์ด๋ฐฐ๊ฒฝ์ด ๋œ๋‹ค๋Š” ๊ฒƒ์€์ˆ˜์‚ฌ์  ํ‘œํ˜„์—
๋ถ„์œ„๊ธฐ๋ฅผ ์ง€๋‹Œ ์ฑ„ ์ค‘์ •๊ณผ์ฐฝ๋“ค์„ ํ†ตํ•ด ์„œ๋กœ ์„์กฐ๊ธˆ์”ฉ ํŽธ์ฐจ๋ฅผ ๋‹ฌ๋ฆฌํ•˜๋ฉฐ ์ง€๋‹ˆ๊ณ 

์•ˆ์œผ๋กœ๋„ ์ข‹์€ ์ฒด์œก๊ด€์„ ๋งŒ๋“ค๋ฉด

ํ•˜๋Š” ๋‚™๊ด€์ ์ธ ์ƒ๊ฐ๋„ ํ–ˆ๋˜ ๊ฒƒ ๊ฐ™์Šต๋‹ˆ๋‹ค. ๊ฒฐ๊ตญ ์„ค๊ณ„๋Š” ์›์ ์—์„œ ๋‹ค์‹œ ์‹œ์ž‘๋˜์—ˆ๊ณ , ๊ณต์‚ฌ๊ฐ€ ์ง„ํ–‰๋˜๋ฉฐ ์ดˆ๋Œ€ ์—†์ด ํ˜„์žฅ์— ์ฐพ์•„๊ฐ€ (๋‹น์‹œ๋Š” ์„ค๊ณ„์˜๋„๊ตฌํ˜„ ์ œ๋„๊ฐ€ ์—†์—ˆ๋˜ ๊ฒƒ์œผ๋กœ ์••๋‹ˆ๋‹ค.) ์ด๊ฒƒ์ €๊ฒƒ ์š”์ฒญํ•ด๋„ ๋งŽ์ด ๋ฐ›์•„์ฃผ์—ˆ๋˜ ํ˜„์žฅ์†Œ์žฅ๋‹˜, ๋งŽ์ด ์ง€์ง€ํ•ด ์ฃผ์…จ๋˜ ๊ต์žฅ์„ ์ƒ๋‹˜, ๊ต๊ฐ์„ ์ƒ๋‹˜, ํ–‰์ •์‹ค์žฅ๋‹˜๋„ ๊ฐ์‚ฌํ•˜๊ณ  ๊ธฐ์–ต์— ๋งŽ์ด ๋‚จ์Šต๋‹ˆ๋‹ค. ์™„๊ณต์ด ๋˜๋ฉด์„œ ์ฝ”๋กœ๋‚˜ ๊ตญ๋ฉด์ด ๋˜์–ด ์•„์ด๋“ค์ด ์‚ฌ์šฉํ•˜๋Š” ๋ชจ์Šต์„ ๋ณด์ง€ ๋ชปํ•ด์„œ ์ข€ ์•„์‰ฌ์› ์Šต๋‹ˆ๋‹ค.

์žฅ์ง€๋™ ์ฃผํƒ ใ€ˆ๋‹ค์„ฏ, ๋œฐใ€‰์€ ๋‹จ๋…์ฃผํƒ์œผ๋กœ, ๊ฐ€์žฅ ๋ฐ€๋„ ์žˆ๊ฒŒ ์ง„ํ–‰ํ•ด ๋ณธ ํ”„๋กœ์ ํŠธ์ž…๋‹ˆ๋‹ค. ์˜ˆ์ „ ๋งˆ๊ณก์— ์žˆ๋Š” โ€˜์ŠคํŽ˜์ด์Šค K ์„œ์šธโ€™ ๋‹ต์‚ฌ๋ฅผ ๊ฐ”์„ ๋•Œ ๋งค์Šค์Šคํ„ฐ๋””์Šค์˜ ์กฐ๋ฏผ์„ ๊ฑด์ถ•๊ฐ€๊ฐ€ ํ˜„์žฅ ์„ค๋ช…์„ ํ•˜๋ฉฐ โ€˜๊ทธ๋ž˜๋„ ์ด ์ •๋„๋ฉด ๊ฝƒ๋ฐฉ์„์— ์•‰์•„์„œ ํ•œ ํ”„๋กœ์ ํŠธ๋ผ๊ณ  ๋งํ•  ์ˆ˜ ์žˆ์ฃ .โ€™๋ผ๋Š” ๋ง์„ ํ•œ ๊ธฐ์–ต์ด ๋‚ฉ๋‹ˆ๋‹ค. ๊ทธ๊ฒƒ์˜ ์‹ญ๋ถ„์˜ ์ผ๋„ ๋˜์ง€ ์•Š๊ฒ ์ง€๋งŒ, ใ€ˆ๋‹ค์„ฏ, ๋œฐใ€‰ ํ”„๋กœ์ ํŠธ๊ฐ€ ์ €์—๊ฒŒ๋Š” ์–ด๋–ค โ€˜๋ฐฉ์„โ€™์— ์•‰์•„ ๋ณธ ํ”„๋กœ์ ํŠธ์˜€์Šต๋‹ˆ๋‹ค. ์˜ˆ์‚ฐ๋„ ์—ฌ์œ ๊ฐ€ ์žˆ์—ˆ๊ณ , ๋ฌด์—‡๋ณด๋‹ค ์˜๋ขฐ์ธ๊ณผ ์‹œ๊ณต์‚ฌ์™€์˜ โ€˜์ผ€๋ฏธโ€™๊ฐ€ ๋„ˆ๋ฌด ์ข‹์•˜์Šต๋‹ˆ๋‹ค. ์ฃฝ์€ ๋„๋ฉด์ด ์•„๋‹ˆ๋ผ ์‚ด์•„ ์žˆ๋Š” ํ˜„์žฅ์— ์–ผ๋งˆ๋‚˜ ๋งŽ์€ ๊ฐ€๋Šฅ์„ฑ์ด ์žˆ๋Š”์ง€ ์ƒˆ์‚ผ ๊นจ๋‹ซ๊ฒŒ ๋œ ๊ฒฝํ—˜์ด์—ˆ์Šต๋‹ˆ๋‹ค. ์กฐ๊ฒฝ์—์„œ ๊ฐ€๊ตฌ๊นŒ์ง€, ์ˆ˜์ „ ์–ด๋Œ‘ํ„ฐ ์บก์˜ ๋งˆ๊ฐ ์žฌ์งˆ๊นŒ์ง€, ์ง‘์˜ ๊ฑฐ์˜ ๋ชจ๋“  ๊ฒƒ์„ ์กฐ์œจํ•˜๊ณ  ๊ฒฐ์ •ํ•˜๊ณ  ๋ธ”๋ผ์ธ๋“œ์™€ ์ปคํŠผ๊นŒ์ง€ ๊ฑด์ถ•์ฃผ์™€ ํ•จ๊ป˜ ๋‹ค๋‹ˆ๋ฉฐ ๊ณจ๋ž์Šต๋‹ˆ๋‹ค. ๋ชจ๋“  ๋งˆ๋ฌด๋ฆฌ๊ฐ€ ๋๋‚˜๊ณ  ํ˜„์žฅ์„ ๋‚˜์˜ค๋Š” ๋‚  ์ €๋…์ด ์ƒ๊ฐ๋‚ฉ๋‹ˆ๋‹ค. ๊ธฐ๋ถ„์ด ๋ฌ˜ํ–ˆ์Šต๋‹ˆ๋‹ค. ์–ด์ œ๊นŒ์ง€๋งŒ ํ•ด๋„ ๋‚ด ์ง‘์ฒ˜๋Ÿผ ๋“ค๋ฝ๊ฑฐ๋ ธ๋Š”๋ฐ ๋‚ด์ผ๋ถ€ํ„ฐ๋Š” ์ดˆ์ธ์ข…์„ ๋ˆ„๋ฅด๊ณ  ๋“ค์–ด๊ฐ€์•ผ ํ•œ๋‹ค๋Š” ์‚ฌ์‹ค์ด ๊ทธ๋ ‡๊ฒŒ ์„œ๋จนํ•  ์ˆ˜๊ฐ€ ์—†๋”๋ผ๊ณ ์š”. ๋ชจ๋ฅด๊ฒ ์Šต๋‹ˆ๋‹ค. ๋‹จ๋…์ฃผํƒ ๋ฟ ์•„๋‹ˆ๋ผ ๋ชจ๋“  ๊ฑด์ถ•์—์„œ ๊ฑด์ถ•๊ฐ€์˜ ๋ฐ˜์€ ๋„๋ฉด ์œ„์— ์žˆ๊ณ , ๋‚˜๋จธ์ง€ ๋ฐ˜์€ ํ˜„์žฅ์— ์žˆ์–ด์•ผ ํ•  ๊ฑฐ ๊ฐ™์€๋ฐ ์ด๊ฑธ ์ œ๋„์ ์œผ๋กœ

๋ชปํ•˜๊ฒŒ ๋ง‰๋Š”๋‹ค๋Š” ๊ฒƒ์€ ๊ทธ ์–ด๋–ค ๋ช…๋ถ„๊ณผ ๋…ผ๋ฆฌ๋ฅผ ๋– ๋‚˜์„œ๋„ ์šฐ์„  ์ •ํ•ฉ์ ์ด์ง€ ๋ชปํ•˜๋‹ค๊ณ  ์ƒ๊ฐ๋ฉ๋‹ˆ๋‹ค.

โ“ฆ ์˜ค๋ž˜์ „ ์ด์•ผ๊ธฐ๊ฐ€ ๋  ๊ฒƒ ๊ฐ™์€๋ฐ, ์ฒ˜์Œ์— ์–ด๋–ป๊ฒŒ ๊ฑด์ถ•์„ ์‹œ์ž‘ํ•˜๊ฒŒ ๋˜์—ˆ๋‚˜์š”?

์ง€๊ทนํžˆ ์‚ฌ์†Œํ•œ ๊ฐœ์ธ์‚ฌ๋ผ ๋ง์”€๋“œ๋ฆฌ๊ธฐ๊ฐ€ ๋ฏผ๋งํ•˜๋„ค์š”. ๊ณ 3 ์ˆ˜๋Šฅ์„ ๋งˆ์น˜๊ณ  ๋‹ด์ž„์„ ์ƒ๋‹˜๊ณผ ์‚ฌ์ •ํ‘œ๋ฅผ ๋†“๊ณ  ์ง„๋กœ ์ƒ๋‹ด์„ ํ•  ๋•Œ ๊ทธ๋žฌ๋˜ ๊ฑฐ ๊ฐ™์•„์š”. โ€˜์–ด๋”” ๊ฐ€๊ณ  ์‹ถ์€์ง€ ๋ชจ๋ฅด๊ฒ ์–ด์š”. ์„ฑ์ ๋Œ€๋กœ ์จ ์ฃผ์‹œ๋ฉด ๊ฐˆ๊ฒŒ์š”.โ€™ ๊ทธ๋Ÿฐ๋ฐ ์„ ์ƒ๋‹˜๋„ ์ฐธ โ€˜์ฟจโ€™ํ•˜์…จ๋˜ ๊ฒŒ, ์‚ฌ์ •ํ‘œ๋ฅผ ํ•œ 5์ดˆ์ฏค ๋ณด์‹œ๋”๋‹ˆ

65 4~11. ๋‹ค์„ฏ, ๋œฐ โ’ธํ…์Šค์ฒ˜ ์˜จ ํ…์Šค์ฒ˜ 12~13. ์ข…๋‹จ๋ฉด๋„
๋˜์ง€ ์•Š๋‚˜
4 6 9 7 10 8 11 5 13 12 ๋Œ€์ง€์œ„์น˜:๊ฒฝ๊ธฐ๋„ํ™”์„ฑ์‹œ์žฅ์ง€๋™768,768-5 ์ง€
์—ญ
์—ญ,์ง€๊ตฌ:์ƒ์‚ฐ๊ด€๋ฆฌ์ง€
,์„ฑ์žฅ๊ด€๋ฆฌ๊ถŒ์—ญ ๋Œ€์ง€๋ฉด์ :969ใŽก ์šฉ๋„:๋‹จ๋…์ฃผํƒ ๊ฑด์ถ•๋ฉด์ :193.77ใŽก ๊ฑด์ถ•๊ฐœ์š” ์—ฐ๋ฉด์ :412.32ใŽก ์šฉ์ ๋ฅ  ์‚ฐ์ •์—ฐ๋ฉด์ :316.29ใŽก ๊ฑดํ์œจ:19.99% ์šฉ์ ๋ฅ :32.64% ์ฃผ์ฐจ๋Œ€์ˆ˜:3๋Œ€ ์กฐ๊ฒฝ: ํ•ด๋‹น ์‚ฌํ•ญ ์—†์Œ(๊ด€๋ฆฌ์ง€์—ญ) ๊ตฌ์กฐ:์ฒ ๊ทผ์ฝ˜ํฌ๋ฆฌํŠธ๊ตฌ์กฐ ๊ทœ๋ชจ:์ง€์ƒ2์ธต ๋†’์ด:7.67m ์ค€๊ณต์—ฐ๋„:2021

๊ณ ,์ง€๊ธˆ

๋ฅด๊ฒŒ ๋ชจ๋“ 

๋ฐฉํ–ฅ์„ ๊ทธ๋Œ€๋กœ ๋ฐ˜์˜ํ•œ๋””์ž์ธ์ด๋‹ค.

์ฒด์œก๊ด€์€ ๋ฒฝ๋Œ ํ•œ ๊ฐ€์ง€์žฌ๋ฃŒ๋งŒ์œผ๋กœ๊ฑด๋ฌผ์˜

๋ณผ๋ฅจ์ด๋”์šฑ ์†”์งํ•˜๊ฒŒ ๋“œ๋Ÿฌ๋‚˜๋Š” ๊ฒƒ์„์˜๋„ํ–ˆ๋‹ค.

๊ทธ๋งŒํผ ๋ฒฝ๋Œ์˜ ์ƒ‰์ƒ๊ณผ ์งˆ๊ฐ์ด์ค‘์š”ํ–ˆ๋Š”๋ฐ,ํ•œ๋‹ฌ

๋ฐ˜ ๊ฐ€๊นŒ์šด์‹œ๊ฐ„์„ ๋“ค์—ฌ ๊ฒฐ๊ตญ์ด ํ”„๋กœ์ ํŠธ๋งŒ์„

์œ„ํ•ด ๋ฒฝ๋Œ์—…์ฒด์—์„œ ๋”ฐ๋กœ์ฃผ๋ฌธ์ƒ์‚ฐ ํ•˜๋Š” ๊ฒƒ์œผ๋กœ

๋งˆ๋ฌด๋ฆฌ๋˜์—ˆ๋‹ค.์„ค๊ณ„์ž์˜์˜๋„๋ฅผ ์ „์ ์œผ๋กœ

์‹ ๋ขฐํ•ด์ค€ ํ•™๊ต์ธก์˜๋ฐฐ๋ ค๊ฐ€ ์•„๋‹ˆ์—ˆ๋‹ค๋ฉด ๋ถˆ๊ฐ€๋Šฅํ•œ

์ผ์ด์—ˆ๋‹ค. ๋น„๋ก 1์ธต ์ฒด์œก๊ด€์˜ ๊ฟˆ์€์‚ฌ๋ผ์กŒ์ง€๋งŒ

์‹๋‹น๋งŒํผ์€์šด๋™์žฅ์—๋ฉดํ•˜์—ฌ ์žฅ๋ฐฉํ˜•์œผ๋กœ

๋ฐฐ์น˜ํ•˜๊ณ  ๊ฐ€๋Šฅํ•œ ํฐ ์ฐฝ์„ ๋‘์—ˆ๋‹ค(๊ธ‰์‹ ์ปจ์„คํŒ… ํšŒ์˜ ๊ณผ์ •์—์„œ๋™์„ ๊ณผํšจ์œจ์„ฑ์˜์ด์œ ๋กœ์ „๋ฉด์žฌ์„ค๊ณ„๊ฐ€ ๋  ๋ป”ํ•˜์˜€๋‹ค).์‹๋‹น๋ณด๋‹ค3๋ฏธํ„ฐ ๊ฐ€๊น๊ฒŒ ๋Œ์ถœ๋œ 2์ธต ์ฒด์œก๊ด€์˜๋งค์Šค๋Š”์‹๋‹น์— ๊ทธ๋Š˜๊ณผ ๋น„๊ฐ€๋ฆผ์˜ ์—ญํ• ์„ ํ•ด์ค„ ๊ฒƒ์ด๋‹ค.์ฝ”๋กœ๋‚˜์‚ฌํƒœ๋กœ๊ฐœํ•™์ด ๋Šฆ์–ด์ ธ ์•„์ง ์•„์ด๋“ค์„ ๋งž์ดํ•˜์ง€ ๋ชปํ–ˆ๋‹ค.์•„์ด๋“ค์€ ์ƒˆ๋กœ ์ƒ๊ธด ์ •๋ฌธ๊ณผ์ด๋‹จ์ˆœํ•œ ๋ฒฝ๋Œ ๋ฉ์–ด๋ฆฌ๋ฅผ ์–ด๋–ป๊ฒŒ ๋ฐ›์•„๋“ค์ผ์ง€, ์ข‹์•„ํ•ด ์ค„๋Ÿฐ์ง€, ํ›—๋‚  ์ดˆ๋“ฑํ•™๊ต ์‹œ์ ˆ์˜ ์ถ”์–ต์—์„œ์–ด๋–ค ๋ฐฐ๊ฒฝ์œผ๋กœ๋‚จ์„์ง€,์„ค๋ ˆ๊ธฐ๋„ ํ•˜์ง€๋งŒ ๋ฌด์—‡๋ณด๋‹ค ๋–จ๋ฆฌ๋Š”๋งˆ์Œ์œผ๋กœ์ง€๋‚ด๋Š”์š”์ฆ˜์ด๋‹ค.

๊ณ„๊ณต๋ชจ์—

๊ทธ๋žจ

1์ธต์œผ๋กœ๋ฐฐ์น˜ํ•œ ์•ˆ์ด์—ˆ๋‹ค. ์™œ ๋ชจ๋“  ์ฒด์œก๊ด€์ด 2์ธต์ด๋‚˜3์ธต์— ์žˆ์–ด์•ผ ํ•˜๋Š”์ง€์˜๋ฌธ์ด์—ˆ๋‹ค. ์ฒด์œก๊ด€์ด์šด๋™์žฅ๊ณผ์†Œํ†ตํ•˜๋ฉฐ 1์ธต์— ์žˆ๊ฑฐ๋‚˜ ๋ฐ˜์ฏค ๋•…์•„๋ž˜ ๋ฌปํ˜€์„œ ๋ณผ๋ฅจ์„ ์ค„์ด๊ณ ์ง€๋ถ•์„์ •์›์ด๋‚˜ ๋†€์ดํ„ฐ๋กœ ํ™œ์šฉํ•  ์ˆ˜๋„ ์žˆ์„ํ…๋ฐ ๊ทธ๋Ÿฐ ๋‹จ์ˆœํ•œ ๋งˆ์Œ์œผ๋กœ1์ธต์œผ๋กœ ๋œ ๊ณ„ํš์•ˆ์„์ œ์ถœํ–ˆ๊ณ ,์šด ์ข‹๊ฒŒ๋„ ๋‹น์„ ์ด ๋˜์—ˆ๋‹ค. ๊ทธ๋ฆฌ๊ณ 1์ธต์งœ๋ฆฌ์ฒด์œก๊ด€์€ ๊ฑฐ๊ธฐ๊นŒ์ง€์˜€๋‹ค.์ง€๊ธˆ ๋‚˜๋Š” ๋‚ด๊ฐ€ (๋‹ค์‹œ)์„ค๊ณ„ํ•œ 2์ธต์งœ๋ฆฌ์ฒด์œก๊ด€ ์•ž์—์„œ ์žˆ๋‹ค. โ€˜ํ•„๋กœํ‹ฐ(๊ธ‰์‹์‹ค) ์œ„ ์ฒด์œก๊ด€โ€™์ด๋ผ๋Š”์ „ํ˜•์„ฑ๋งŒํผ์€ ํ”ผํ•ด๋ณด์ž๊ณ ์‹œ์ž‘ํ•œ ์—ฌ์ •์ด ๊ทธ ์ „ํ˜•์„ฑ์œผ๋กœ ๋๋งบ๊ฒŒ ๋˜์—ˆ๋‹ค. ํ’€์–ด๋‚ด๋ฉด ๊ธด ์ด์•ผ๊ธฐ์ง€๋งŒ ๊ฒฐ๋ก ์„ ๋งํ•˜์ž๋ฉด ๊ต์ •์„์กฐ๊ธˆ์ด๋ผ๋„ ๋” ํ™œ์šฉํ•ด์•ผ ํ•˜๋Š”ํ•™๊ต์˜ํ˜„์‹ค์„๋ฌด์‹œํ•  ์ˆ˜ ์—†์—ˆ๋‹ค. ๋ชจ๋‘๊ฐ€ ๊ฐ์ž์˜ ๋…ผ๋ฆฌ๊ฐ€ ์žˆ์—ˆ์ง€๋งŒ, ๋…ผ๋ฆฌ๋กœ๋Š”์•„๋ฌด๋„ ์Šน์ž๊ฐ€ ๋  ์ˆ˜ ์—†๊ณ ์•„๋ฌด๋„ํ–‰๋ณตํ•ด์ง€์ง€ ์•Š๋Š”๋‹ค. ๊ต์œก์ฒญ๊ณผํ•™๊ต ๊ด€๊ณ„์ž๋“ค๊ณผ์น˜์—ดํ•˜๊ฒŒ ๊ณ ๋ฏผํ–ˆ๊ณ , ํ›„ํšŒ ์—†์„ ๋งŒํผ ๋Œ€์•ˆ์„ ๋งŒ๋“ค์—ˆ๊ณ ,ํ˜„์žฅ์—์„œ ์‹ธ์› ์œผ๋ฉฐ, ๊ทธ ๋ชจ๋“  ๊ณผ์ •์˜ ๊ฒฐ๊ณผ๋ฌผ์ด์ง€๊ธˆ์˜ ์ฒด์œก๊ด€์ด๋‹ค. ๊ต์ •์€๋„๋กœ๋ณด๋‹ค5๋ฏธํ„ฐ๊ฐ€๋Ÿ‰ ๋†’๋‹ค. ๊ต์ •๊ณผ๋„๋กœ

66 ์–‘๋ช…์ดˆ ์ฒด์œก๊ด€+๊ธ‰์‹์‹œ์„ค
๋น„๊ตํ•ด ๋ณด๋Š” ๊ฒƒ๋„์˜๋ฏธ ์žˆ์„ ๋“ฏํ•˜๋‹ค.์„ค๊ณ„๊ณต๋ชจ๋ฅผ ํ†ตํ•œ๋ฐฉ์‹์ด ์–ผ๋งˆ๋‚˜๋‹ค์–‘ํ•œ ๊ฐ€๋Šฅ์„ฑ์„ ๋งŒ๋“ค๊ณ  ์žˆ๋Š”์ง€,์‹ค์ œ๋กœ๋”๋‚˜์€ ๊ฒฐ๊ณผ๋ฌผ๊ณผ ๊ณต๊ฐ„์˜ ์งˆ์„ ๋งŒ๋“ค์–ด ๋‚ด๋Š”์ง€ ๊ทธ๋ ‡์ง€ ์•Š์€์ง€, ๋˜ ํ•œ๊ณ„๋Š”๋ฌด์—‡์ด๊ณ  ๊ทธ๊ฒƒ์„ ๋„˜์–ด์„ค๋ฐฉ
์‚ฌ์ด์— ์žˆ๋Š” ์™„์ถฉ๋…น์ง€๋ฅผ ์ ์šฉํ•˜์—ฌ ์„ค์น˜ํ•œ ๋ชฉ์žฌ๊ณ„๋‹จ์„ ํ†ตํ•ด ์ฃผ๋กœ์•„์ด๋“ค์ด๋“ฑ๊ตํ•˜๊ณ  ์žˆ์—ˆ๋‹ค. ์„ค๊ณ„๊ณต๋ชจ๋‹จ๊ณ„์—์„œ๋Š”์ด ๋ชฉ์žฌ๊ณ„๋‹จ์„์กฐ๊ธˆ ์†๋ณด๋Š” ์ •๋„๋กœ์ƒ๊ฐํ•˜๊ณ  ์žˆ์—ˆ๋Š”๋ฐ ๋ง‰์ƒ์‹ค์‹œ์„ค๊ณ„๋ฅผ ์‹œ์ž‘ํ•˜๊ณ ๋ณด๋‹ˆ,ํ•™๊ต์™€ ๊ต์œก์ฒญ์—์„œ๋Š”๋„๋กœ์—์„œ ์šด๋™์žฅ ์ชฝ์˜ ์˜น๋ฒฝ์—ํ„ฐ๋„์„ ๋šซ์–ด์‹ ์„ค์ •๋ฌธ์œผ๋กœ ๋งŒ๋“œ๋Š” ์•ˆ์„ ๋”ฐ๋กœ์ƒ๊ฐํ•ด๋‘๊ณ  ์žˆ์—ˆ๋‹ค. ๋‚ด๋ฒ„๋ ค๋‘๋ฉด ๋‚ด๊ฐ€ ์„ค๊ณ„ํ•˜๋Š”์ฒด์œก๊ด€๋„ํ•™๊ต๋„ ๋ง๊ฐ€์งˆ ํ„ฐ์˜€๋‹ค. ํ„ฐ๋„ ํ˜•์‹์˜์‹ ์„ค์ •๋ฌธ์„๋‹ค๋“ฌ๊ณ ,์ฒด์œก๊ด€์˜๋งค์Šค์™€ ์—ฐ
์ผฐ
๋กœ๋งŒ ๋‘ฅ๊ธ€๊ฒŒ ๊บพ์—ฌ ๋“ค
์ด๋‹ค๋‹ˆ๋Š”
๊ณต๋ฆฝ ์ดˆ,์ค‘ํ•™๊ต์˜์ฒด์œก๊ด€ ์ฆ์ถ•๊ณต์‚ฌ๊ฐ€ ํ•œ์ฐฝ์ด์—ˆ๋‹ค. ์„œ์šธ์‹œ๋Š”์„ค๊ณ„๊ณต๋ชจ๋ฐฉ์‹์„ํƒํ•˜๊ณ  ์žˆ์—ˆ๊ณ ,๊ฒฝ๊ธฐ๋„ ๋“ฑ๋‹ค๋ฅธ ์ง€์—ญ์€์„ค๊ณ„์šฉ์—ญ ์ž…์ฐฐ์„ ํ†ตํ•ด ์ง€์–ด์ง€๊ณ  ์žˆ์—ˆ๋‹ค(๊ฒฝ๊ธฐ๋„๋Š”์ตœ๊ทผ์„ค๊ณ„๊ณต๋ชจ๋Œ€์ƒ์„์„ค๊ณ„๋น„ 2์–ต ์›์—์„œ1์–ต ์›์ด์ƒ์œผ๋กœ ํ™•๋Œ€ํ•œ๋‹ค๊ณ ํ•œ๋‹ค. ์ฒด์œก๊ด€๋‹จ๋…์ด๋ฉด ์—ฌ์ „ํžˆ ์ž…์ฐฐ๋กœ๋‚˜์˜ฌ ๊ฒƒ์ด๊ณ  ์ฒด์œก๊ด€๊ณผ๊ธ‰์‹์‹œ์„ค์ด ํ•จ๊ป˜ ํฌํ•จ๋œ ๊ฒฝ์šฐ๋ฉด ์„ค๊ณ„๊ณต๋ชจ๋กœ๋‚˜์˜ค๊ฒŒ ๋˜๊ฒ ๋‹ค). ๋‘ ๋ฐฉ์‹์œผ๋กœ์ง€์–ด์ง„ ๊ฒฐ๊ณผ๋ฌผ์ด์ด์ œ๋Š”์ œ๋ฒ• ์Œ“์˜€๊ธฐ ๋•Œ๋ฌธ์— ํ•˜๋‚˜์˜ ์•„์นด์ด๋ธŒ๋กœ์ •๋ฆฌํ•ด์„œ
๋ฒ•์€๋ฌด์—‡์ผ์ง€. ์„œ์šธ์˜์–‘๋ช…์ดˆ์ฒด์œก๊ด€ ๋ฐ ๊ธ‰์‹์‹œ์„ค๋„์„ค
๋‹น์„ ๋˜์—ˆ
๊ณผ๋Š”๋‹ค
ํ”„๋กœ
์„
๊ฒฐ์‹œ
๋‹ค.ํ•œ์ชฝ์œผ
์–ด์˜ค๋Š” ์‹ ์„ค์ •๋ฌธ์€๋“ฑํ•˜๊ต์‹œ๋” ๋งŽ์€์•„์ด๋“ค
1~6. ์–‘๋ช…์ดˆ ์ฒด์œก๊ด€+๊ธ‰์‹์‹œ์„ค โ’ธ๋…ธ๊ฒฝ 7~8. ๋‹จ๋ฉด๋„ 124 3 6 5 ๋Œ€์ง€์œ„์น˜:์„œ์šธํŠน๋ณ„์‹œ์–‘์ฒœ๊ตฌ์ค‘์•™๋กœ 204 ๋Œ€์ง€๋ฉด์ :24,493.7ใŽก ์šฉ๋„: ๊ต์œก์—ฐ๊ตฌ์‹œ์„ค ๊ฑด์ถ•๋ฉด์ :933.39ใŽก ์—ฐ๋ฉด์ :1,616.62ใŽก ์šฉ์ ๋ฅ  ์‚ฐ์ •์—ฐ๋ฉด์ :1,599.57ใŽก ๊ฑดํ์œจ:10.21% ์šฉ์ ๋ฅ :30.45% ๊ตฌ์กฐ:์ฒ ๊ทผ์ฝ˜ํฌ๋ฆฌํŠธ๊ตฌ์กฐ+์ฒ ๊ณจ๊ตฌ์กฐ ๊ทœ๋ชจ:์ง€ํ•˜1์ธต,์ง€์ƒ2์ธต ๋†’์ด:15.10m ์ค€๊ณต์—ฐ๋„:2020 ๊ฑด์ถ•๊ฐœ์š” 8 7

โ€˜๊ทธ๋ž˜? ๊ทธ๋Ÿผ ์ „์ž๊ณตํ•™๊ณผ ๊ฐ€โ€™ ๋ผ๊ณ  ํ•˜์‹œ๋ฉด์„œ

์ƒ๋‹ด์ด ๋งˆ๋ฌด๋ฆฌ๋˜์—ˆ์ฃ . ๊ทธ๋ ‡๊ฒŒ ์ „์ž๊ณตํ•™๊ณผ๋ฅผ

๊ฐ€๊ฒŒ ๋˜์—ˆ๊ณ , ์งง์•˜๋˜ ๊ณ ๋ฏผ์— ๋Œ€ํ•œ ๋Œ€๊ฐ€๋Š” 1๋…„์ด๋ผ๋Š” ํœดํ•™๊ณผ ์žฌ์ˆ˜์˜ ์‹œ๊ฐ„์ด์—ˆ์ฃ . ์žฌ์ˆ˜๋ฅผ ํ•˜๋ฉฐ ๊ฑด์ถ•๊ณตํ•™๊ณผ๋ฅผ ์„ ํƒํ–ˆ์–ด์š”. ๊ธฐ์–ต์˜ ๋‹จํŽธ๋“ค์„ ๋ชจ์•„๋ณด๋ฉด, ์ดˆ๋“ฑํ•™๊ต ๋ฐฉํ•™๊ณผ์ œ๋กœ ์ƒ‰๊น” ๋งˆ๋ถ„์ง€๋กœ ๋‚ด๊ฐ€ ๊ฐ–๊ณ  ์‹ถ์€ ๋ฐฉ์„ ๋ชจํ˜•์œผ๋กœ ๋งŒ๋“ค์–ด ๊ฐ”์—ˆ์–ด์š”. ๊ทธ ๋‹ค์Œ ๋ฐฉํ•™ ๋•Œ์—๋Š” ์ฒ ์‚ฌ๋ฅผ ๋™๊ทธ๋ž—๊ฒŒ ๊ตฌ๋ถ€๋ ค ๋งŒ๋“  ๋†๊ตฌ๋Œ€๊ฐ€ ์žˆ๋Š” ๋†๊ตฌ์žฅ์„ ๋งŒ๋“ค์–ด ๊ฐ”๋˜ ๊ธฐ์–ต์ด ๋‚ฉ๋‹ˆ๋‹ค. ๊ฑด์ถ•์ด๋ผ๋Š” ๋ง ์ž์ฒด๋ฅผ ๋ชจ๋ฅด๋˜ ๋•Œ์˜€๋Š”๋ฐ, ๋‚˜์ด๊ฐ€ ๋“ค์–ด ๊ฑด์ถ•์„ ํ•˜๊ณ  ์žˆ์„ ๋•Œ ๋ฌธ๋“ ๊ทธ ๊ธฐ์–ต์ด ๋‚˜๋”๋ผ๊ณ ์š”. ์žฌ์ˆ˜๋ฅผ ํ•˜๋ฉฐ ๊ฐ€๋” ํ•™์›์„ โ€˜๋•ก๋•ก์ดโ€™ ์น˜๊ณ  ์ง€๊ธˆ์€ ์ด๋ฐ”๊ตฌ๊ธธ๋กœ ์œ ๋ช…ํ•œ ๋ถ€์‚ฐ์˜ ์‚ฐ๋ณต๋„๋กœ๋ฅผ ํ˜ผ์ž ์ •์ฒ˜ ์—†์ด ๊ฑธ์„ ๋•Œ๊ฐ€ ์ข…์ข… ์žˆ์—ˆ์–ด์š”. ๊ผฌ๋ถˆ๊ผฌ๋ถˆํ•œ ๊ธธ๊ณผ ์ˆ˜๋งŽ์€ ๊ณ„๋‹จ๊ธธ์„ ๊ฑท๋‹ค ๋ณด๋ฉด ๊ฐ€๊นŒ์ด ๋ถ€์‚ฐํ•ญ๊ณผ ๊ทธ ๋„ˆ๋จธ๋กœ ์˜๋„์„ฌ์ด ์‹œ์‹œ๊ฐ๊ฐ ์ƒˆ๋กœ์šด ๋ชจ์Šต์œผ๋กœ ๋‚˜ํƒ€๋‚˜๊ณค ํ•˜๋Š”๋ฐ ์—ฌ๊ธฐ๊ฐ€ ๋ถ€์‚ฐ์˜ ์ง„์งœ ๋ชจ์Šต์ด๋‹ค, ์ž˜ ๊ฐ€๊พธ๋ฉด ์ •๋ง ๊ทผ์‚ฌํ•˜๊ฒ ๋‹ค, ๋ˆ„๊ฐ€ ๋‚˜๋”๋Ÿฌ ๋ถ€์‚ฐ์— ๊ฐ€๋ฉด ๋ฌด์—‡์„ ๋ณด์•„์•ผ ํ•˜๋Š”์ง€ ๋ฌผ์–ด๋ณธ๋‹ค๋ฉด ๋‚˜๋Š” ์—ฌ๊ธฐ๋ฅผ ๊ฑธ์–ด๋ณด๋ผ๊ณ  ํ•  ํ…Œ๋‹ค, ์ƒ๊ฐํ–ˆ๋Š”๋ฐ ์ง€๊ธˆ์€ ๊ด€๊ด‘๋ช…์†Œ๊ฐ€ ๋˜์—ˆ์ฃ . ์•„์ง ๊ฑด์ถ•์„ ์ „๊ณตํ•ด์•ผ๊ฒ ๋‹ค ์ƒ๊ฐํ•˜๊ธฐ ์ „์ด์—ˆ์ง€๋งŒ ๋„์‹œ ์กฐ์ง๊ณผ ์ปจํ…์ŠคํŠธ์— ๋Œ€ํ•ด์„œ ์–ด๋ ดํ’‹์ด ๋งค๋ ฅ์„ ๋А๋ผ๊ณ  ์žˆ์ง€ ์•Š์•˜๋‚˜ ์‹ถ๊ณ , ๊ทธ๋Ÿฐ ๋‹จ์ดˆ๋“ค์ด ์ €๋ฅผ ๊ฑด์ถ•์œผ๋กœ ๋ฐ๋ ค์˜ค์ง€ ์•Š์•˜๋‚˜ ์ƒ๊ฐํ•ฉ๋‹ˆ๋‹ค.

โ“ฆ ํ•™์ƒ๋•Œ๋‚˜ ์‹ค๋ฌด์ˆ˜๋ จ์„ ํ•˜๋˜ ์ฃผ๋‹ˆ์–ด ๊ฑด์ถ•๊ฐ€ ์‹œ์ ˆ ์†Œ์žฅ๋‹˜์€ ๊ฑด์ถ•์˜ ์–ด๋–ค ๋ถ€๋ถ„์— ๋งค๋ ฅ์„ ๋А๊ผˆ๋Š”์ง€ ๊ทธ๋ฆฌ๊ณ  ๊ทธ ๊ฟˆ์„ ๊ณ„์† ์ด์–ด๊ฐˆ ์ˆ˜ ์žˆ์—ˆ๋˜ ๊ณ„๊ธฐ๋“ค์ด ์žˆ์—ˆ๋‹ค๋ฉด ๊ทธ๊ฒƒ์€ ๋ฌด์—‡์ธ์ง€ ๊ถ๊ธˆํ•ฉ๋‹ˆ๋‹ค.

์ง€๊ธˆ์€ ๋Œ์•„๊ฐ€์‹  ์žฅ๋ฆผ์ข… ๊ต์ˆ˜๋‹˜์ด ์ €์˜ ์ฒซ ์„ค๊ณ„ ๊ต์ˆ˜๋‹˜์ด์…จ๋Š”๋ฐ, ์ธ์žฅ์ฒ˜๋Ÿผ ๊ธฐ์–ต์— ์ฐํ˜€ ์žˆ๋Š” ์–ด๋–ค ์žฅ๋ฉด์ด ์žˆ์Šต๋‹ˆ๋‹ค. ํ•œ์ฐฝ ๊ฐ์ž์˜ ์ œ๋„ํŒ ์œ„์—์„œ ์„ค๊ณ„๋ฅผ ํ•˜๊ณ  ๋ชจํ˜•์„ ๋งŒ๋“œ๋Š” ์ค‘์ด์—ˆ๊ณ , ๊ต์ˆ˜๋‹˜์€ ํ•œ์ž๋ฆฌ ํ•œ์ž๋ฆฌ ํ•™์ƒ๋“ค์„ ๋Œ์•„๋ณด์‹œ๊ณ  ๊ณ„์…จ์–ด์š”. ์ œ ์ž๋ฆฌ์— ์˜ค์…”์„œ๋Š” ๋น™๊ทธ๋ ˆ ์›ƒ์œผ์‹œ๋ฉฐ โ€œ์–ด ๊ทธ๋ž˜, ์ด๋ ‡๊ฒŒ ํ•˜๋ฉด ์žฌ๋ฐŒ๊ฒ ๋‹คโ€ ํ•˜์‹œ๋ฉด์„œ ์ œ๊ฐ€ ์•„๋ฌด๋ ‡๊ฒŒ๋‚˜ ์˜์‹์˜ ํ๋ฆ„๋Œ€๋กœ ๊ตฌ๋ถˆ๊ตฌ๋ถˆ ๊ทธ๋ ค ๋†“์€ ์„  ์œ„์— ์ง์ ‘ ํŽœ์œผ๋กœ ๋ง๊ทธ๋ฆฌ์‹œ๋ฉด์„œ โ€œ์—ฌ๊ธฐ๊ฐ€ ๋งˆ๋‹น์ด ๋˜๋Š” ๊ฑฐ๊ฒ ๋„คโ€ ๋ผ๊ณ  ํ•˜์…จ์–ด์š”. ์•„, ๊ทธ๋Ÿฐ๋ฐ ์ €๋Š” ๊ฑฐ๊ธฐ๊ฐ€ ๋งˆ๋‹น์ด ์•„๋‹ˆ์—ˆ๊ฑฐ๋“ ์š”. ๊ฑฐ๊ธฐ๊ฐ€ ๋งˆ๋‹น์ด ๋  ์ค„์€ ์ƒ๊ฐ๋„ ๋ชปํ–ˆ๋Š”๋ฐ ๊ฑฐ๊ธฐ๊ฐ€ ๋งˆ๋‹น์ด ๋˜๋Š” ์ˆœ๊ฐ„ ๋ชจ๋“  ๊ฒŒ ๋งˆ๋ฒ•์ฒ˜๋Ÿผ ์ˆ ์ˆ  ํ’€๋ฆฌ๋Š” ๊ฒƒ์ด์—ˆ์ฃ . ๊ทธ๋Ÿฌ๊ณ ๋Š” ๋‹ค๋ฅธ ์ž๋ฆฌ๋กœ ๊ฐ€์…จ์–ด์š”. ๊ทธ ์งง์€ ์ˆœ๊ฐ„์˜ ํ„ฐ์น˜๊ฐ€ ์ €์—๊ฒŒ๋Š” ์žŠ์„ ์ˆ˜ ์—†๋Š” ์ˆœ๊ฐ„์ด์—ˆ์Šต๋‹ˆ๋‹ค. ๊ฑด์ถ•์ ์œผ๋กœ

67 9. ์ง€ํ•˜1์ธต ํ‰๋ฉด๋„ 10. 1์ธต ํ‰๋ฉด๋„ 11. 2์ธต ํ‰๋ฉด๋„
9 10 11

๋“ฏ์ด๋ณด์ธ๋Š” ๊ฒƒ์„์˜๋„ํ–ˆ๋‹ค.์ด๋Ÿฐ ๊ณต๊ฐ„์„ ์œ„ํ•ด ๊ธฐ๋‘ฅ์€์ฒ ๊ทผ์ฝ˜ํฌ๋ฆฌํŠธ๊ตฌ์กฐ

์šฉํ•˜๋Š” ๋ฒ”์œ„ ๋‚ด์—์„œ์ตœ์†Œํ•œ์œผ๋กœ ๊ณ„ํšํ•˜๊ณ , ํ”Œ๋žซ ์Šฌ๋ผ๋ธŒ(flat slab)์˜์ผ์ข…์ธ๋ณด์ด๋“œ ์Šฌ๋ผ๋ธŒ(voidslab)๊ตฌ์กฐ ๋ฐฉ์‹์„ ์„ ํƒํ–ˆ๋‹ค. โ€˜ ์„ฑ๋ฌธ์ด์ผ๊ณฑ ๊ฐœ๋‚˜ ๋˜๋Š” ํ…Œ๋ฒ ๋ฅผ ๋ˆ„๊ฐ€ ๊ฑด์„คํ–ˆ๋˜๊ฐ€โ€™๋กœ

์‹œ์ž‘๋˜๋Š” ๋ธŒ๋ ˆํžˆํŠธ์˜ โ€˜์–ด๋А ์ฑ… ์ฝ๋Š”๋…ธ๋™์ž์˜ ์˜๋ฌธ์ด๋ผ๋Š”์‹œ๊ฐ€ ์žˆ๋‹ค. ์†์ˆ˜ ๋Œ์„์šด๋ฐ˜ํ•˜๊ณ , ๋ฒฝ๋Œ์„๊ตฌ์› ๋˜ ๊ฑด์„ค๋…ธ๋™์ž๋“ค์„ ํ˜ธ๋ช…ํ•˜๋Š”์‹œ. ํ‘๋ฐฑ์‚ฌ์ง„๊ณผ ๋ธŒ๋ ˆํžˆํŠธ์‹œ์˜์˜ํ–ฅ์œผ๋กœ ์–ธ์  ๊ฐ€ ๋จธ๋ฆฟ๋Œ์—๊ฑด์ถ•์ฃผ์™€์„ค๊ณ„์ž,๊ฐ๋ฆฌ์ž,์‹œ๊ณต์ž์˜ ๋Œ€ํ‘œ๋“ค๋งŒ์ด์•„๋‹ˆ๋ผ๊ณต์‚ฌ์— ์ฐธ์—ฌํ•œ โ€˜๋ชจ๋“ โ€™ ์‚ฌ๋žŒ๋“ค์˜ ์ด๋ฆ„์ด ๋“ค์–ด๊ฐ€๋ฉด ์ข‹๊ฒ ๋‹ค์ƒ๊ฐํ•˜๊ณ  ์žˆ์—ˆ๋Š”๋ฐ,์ด๋ฆ„ ์—†๋Š”๋…ธ๋™๊ณผ์ˆ˜๊ณ ์—๋Œ€ํ•œ์กด์ค‘๊ณผ๊ฐ์‚ฌ์˜ ์ทจ์ง€๋ฅผ ๊ฑด์ถ•์ฃผ๊ฐ€ ํ”์พŒํžˆ ๊ณต๊ฐํ•ด ์ฃผ์—ˆ๋‹ค. ํ•˜์ง€๋งŒ ๋ชจ๋‘์˜ ๋™์˜๋ฅผ ์–ป์–ด์ด๋ฆ„์„ ๋ฐ›๋Š” ๊ฒƒ์ด ๋ง‰์ƒ ์‰ฝ์ง€ ์•Š์•˜๊ณ , ๊ฒฐ๊ตญ์€ ๊ฐ ๊ณต์ข…์„๋Œ€ํ‘œํ•˜๋Š”์‚ฌ๋žŒ๋“ค์˜์ด๋ฆ„์ •๋„๋งŒ ์ƒˆ๊ธธ์ˆ˜ ์žˆ์—ˆ๋‹ค.

68 1~3. ํ‰๊ฑฐ๋™ 931 โ’ธ๋…ธ๊ฒฝ 4. 1์ธต ํ‰๋ฉด๋„ 5. 2์ธต ํ‰๋ฉด๋„ 6. ์ž…๋ฉด๋„ ํ‰๊ฑฐ๋™ 931 ๊ฑด๋ฌผ์€
์ ์„
์˜ ๋‚ด๋ถ€๊ณต๊ฐ„์€๊ธฐ๋‘ฅ๊ณผ ๋ณด, ์Šฌ๋ผ๋ธŒ ๊ฐ๊ฐ์˜๋ถ€์žฌ๊ฐ€ ๋ถ„๋ฆฌ๋˜์ง€ ์•Š๊ณ  ์ปค๋‹ค๋ž€ ํ•˜๋‚˜์˜ ๋ฉ์–ด๋ฆฌ์—์„œ๋ถ€ํ„ฐํŒŒ๋‚ด
๊ฐ€๋กœ์™€4๊ฐœ์˜ ์ ‘์†
๊ฐ–๋Š”๋‹ค.๊ฑด๋ฌผ์˜ ์ฃผ์ถœ์ž…๊ตฌ,1์ธต ์ž„๋Œ€๊ณต๊ฐ„์œผ๋กœ์˜์ง„์ž…,์ง€ํ•˜์ฃผ์ฐจ์žฅ, ๊ทธ๋ฆฌ๊ณ ์™ธ๋ถ€๊ณ„๋‹จ์„ ํ†ตํ•œ2์ธต์œผ๋กœ์˜์ง„์ž… ๊ทธ๋Ÿฐ ๊ฑด๋ฌผ์˜ ํ”„๋กœ๊ทธ๋žจ์€ ์†กํŒ๋…ธ์ถœ์ฝ˜ํฌ๋ฆฌํŠธ์˜ ์œก๋ฉด์ฒด์—์„œ ๋ฉ์–ด๋ฆฌ๋ฅผ ๋œ์–ด๋‚ด๋Š”๋ฐฉ์‹์œผ๋กœ ํ‘œํ˜„๋˜๊ณ , ๊ทธ ์ด์™ธ์˜์š”์†Œ๋Š”์ตœ๋Œ€ํ•œ์ƒ๋žตํ•˜์—ฌ ๊ฐ€๋Šฅํ•œ๋ช…์พŒํ•œ๋””์ž์ธ์ด ๋˜์—ˆ์œผ๋ฉด ํ–ˆ๋‹ค. ๋˜ํ•œ ์ „๋ฉด์–‘์ธก์ฝ”๋„ˆ์˜๊ธฐ๋‘ฅ์„ ์—†์•  ๋ฒ„๋ฆผ์œผ๋กœ์จ ๋‹จ์ •ํ•œ ๋ฐ•์Šคํ˜•ํƒœ์˜๊ธฐ์ค€์ธต๊ณผ๋Œ€๋น„ํ•˜์—ฌ ์ €์ธต๋ถ€๋Š” ๊ฐ€๋กœ๋ฅผ ํ–ฅํ•œ๊ฐœ๋ฐฉ๊ฐ๊ณผ๋”๋ถˆ์–ด ์บ”ํ‹ธ๋ ˆ๋ฒ„๊ฐ€ ์ฃผ๋Š”๊ตฌ์กฐ์  ๊ธด์žฅ๊ฐ์„ ๊ฐ–๋Š”๋‹ค. ๋…ธ์ถœ์ฝ˜ํฌ๋ฆฌํŠธ๋กœ๋งˆ๊ฐํ•œ1์ธต
์–ด๊ณต๊ฐ„์„ ๋งŒ๋“ค์–ด๋‚ธ
๊ฐ€ ํ—ˆ
6
2. ํ™€ 3. ์—ฌ์žํ™”์žฅ์‹ค4.๋‚จ์žํ™”์žฅ์‹ค5. ํœด๊ฒŒ๋ฐํฌ 6.์ง„์ž…๋งˆ๋‹น 1.์ž„๋Œ€๊ณต๊ฐ„ 2. ํ™€ 3. ์—ฌ์žํ™”์žฅ์‹ค4.๋‚จ์žํ™”์žฅ์‹ค5. ๋น„์ƒ๊ตฌ์ „์‹ค6.๋ฐœ์ฝ”๋‹ˆ ๋Œ€์ง€์œ„์น˜:๊ฒฝ์ƒ๋‚จ๋„์ง„์ฃผ์‹œํ‰๊ฑฐ๋™931 ์ง€์—ญ,์ง€๊ตฌ:์ผ๋ฐ˜์ƒ์—…์ง€์—ญ,์ œ1์ข…์ง€๊ตฌ๋‹จ์œ„๊ณ„ํš๊ตฌ์—ญ ๋Œ€์ง€๋ฉด์ :500.8ใŽก ๊ฑด์ถ•๊ฐœ์š” ์šฉ๋„:๊ทผ๋ฆฐ์ƒํ™œ์‹œ์„ค ๊ฑด์ถ•๋ฉด์ :344.05ใŽก ์—ฐ๋ฉด์ :1,910.40ใŽก ์šฉ์ ๋ฅ ์‚ฐ์ •์—ฐ๋ฉด์ :1,484.73ใŽก ๊ฑดํ์œจ:68.70% ์šฉ์ ๋ฅ :296.33% ์ฃผ์ฐจ๋Œ€์ˆ˜:10๋Œ€ ๊ตฌ์กฐ:์ฒ ๊ทผ์ฝ˜ํฌ๋ฆฌํŠธ๊ตฌ์กฐ ๊ทœ๋ชจ:์ง€ํ•˜2์ธต,์ง€์ƒ5์ธต ๋†’์ด:23.8m ์ค€๊ณต์—ฐ๋„:2017
1 4 5 2 3 1.์ž„๋Œ€๊ณต๊ฐ„

์ƒ๊ฐํ•˜๋Š” ๋ฐฉ๋ฒ•์˜ ์ฒซ ๋ฒˆ์งธ ๋ฌธ์„ ์—ด์–ด์ฃผ์‹  ๊ฑฐ์ฃ .

์ž…์‚ฌ๋ฅผ ํ•˜๊ณ ์„œ ๋‹จํŽธ์ ์ธ ์ผ๋“ค์„ ํ•˜๋‹ค๊ฐ€

์ฒ˜์Œ์œผ๋กœ ๊ณ„ํš๋ถ€ํ„ฐ ์ธํ—ˆ๊ฐ€, ์‹ค์‹œ์„ค๊ณ„๊นŒ์ง€

์ฒ˜์Œ๋ถ€ํ„ฐ ๋๊นŒ์ง€ ํ˜ผ์ž์„œ ํ•˜๊ณ ์„  ๊ณต์‚ฌ๊ฐ€

์ง„ํ–‰๋˜์–ด ์†Œ์žฅ๋‹˜์„ ๋”ฐ๋ผ ํ˜„์žฅ์„ ๊ฐ”๋Š”๋ฐ ์ฝ˜ํฌ๋ฆฌํŠธ ์›ํ˜•๊ธฐ๋‘ฅ๊ณผ ๋ฒฝ์˜ ๊ฐœ๊ตฌ๋ถ€ ์‚ฌ์ด๋กœ ๋น›์ด ๋–จ์–ด์ง€๊ณ  ์žˆ์—ˆ์–ด์š”. ์„ธ์ƒ์—, ๋‚ด๊ฐ€ ๊ทธ๋ฆฐ ๋„๋ฉด ์œ„์˜ ์„ ๋“ค์ด ํ˜„์žฅ์—์„œ ์ฝ˜ํฌ๋ฆฌํŠธ์˜ ๊ณต๊ฐ„์ด ๋˜์–ด ์žˆ๋Š” ๊ฑฐ์˜ˆ์š”. ๊ทธ๋‚  ์ง‘์— ๋Œ์•„์™€์„œ ๊ฐœ์ธ ๋ธ”๋กœ๊ทธ์— ์ผ๊ธฐ๋ฅผ ์ผ์–ด์š”. โ€˜๋‚˜๋Š” ์–ด๋–ป๊ฒŒ ์ข…์ด ์œ„์˜ ์„ ๋“ค์ด ์ฐจ๊ฐ‘๊ณ  ์ด‰์ด‰ํ•œ ์ฝ˜ํฌ๋ฆฌํŠธ๊ฐ€ ๋˜์—ˆ๋Š”์ง€ ์•„์ง ์ดํ•ดํ•˜์ง€ ๋ชปํ•œ๋‹ค. ์ดํ•ดํ•  ์ˆ˜ ์—†์–ด์„œ ๊ทธ๋ƒฅ ๊ฐ๋™ํ•˜๊ธฐ๋กœ ํ–ˆ๋‹ค.โ€™ ์ข€ ์˜ค๊ทธ๋ผ๋“ค์ง€๋งŒ, ๊ทธ๋ ‡๊ฒŒ ๊ฑด์ถ•์„ ํ•œ๋‹ค๋Š” ๊ฒƒ์˜ ๋งค๋ ฅ์„, ์„  ํ•˜๋‚˜๋ฅผ ๊ธ‹๋Š” ๊ฒƒ์˜ ๋ฌด๊ฒŒ๋ฅผ ๊ทธ๋ ‡๊ฒŒ ๋А๊ปด ๊ฐ”๋˜ ๊ฒƒ ๊ฐ™์•„์š”. โ“ฆ ์‚ฌ๋ฌด์‹ค ์˜คํ”ˆ ์ดํ›„ ์ฃผ๋กœ ์ฃผํƒ, ๊ทผ๋ฆฐ์ƒํ™œ์‹œ์„ค, ์ฒด์œก๊ด€ ์œ„์ฃผ์˜ ํ”„๋กœ์ ํŠธ๋ฅผ ์ง„ํ–‰ํ•œ ๊ฒƒ์œผ๋กœ ์•Œ๊ณ  ์žˆ์Šต๋‹ˆ๋‹ค. ์ผ์ƒ์— ๊ฐ€๊นŒ์šด ๊ฑด์ถ• ํ”„๋กœ๊ทธ๋žจ๊ณผ ์‹œ์„ค๋“ค์„ ์ฃผ๋กœ ๋‹ค๋ฃจ๊ณ  ์žˆ๋‹ค๊ณ  ์ƒ๊ฐ๋ฉ๋‹ˆ๋‹ค. ์ด๋Ÿฌํ•œ ์ข…๋ฅ˜์˜ ํ”„๋กœ์ ํŠธ๋ฅผ ํ•˜๊ฒŒ ๋œ ๊ณ„๊ธฐ๋‚˜ ํ•˜๋ฉด์„œ ๋А๋‚€ ์ ๋“ค์€ ์–ด๋–ค ๊ฒƒ๋“ค์ด ์žˆ์„๊นŒ์š”? ์šฐ์„  ํ”„๋กœ์ ํŠธ๋Š” ๋“ค์–ด์˜ค๋Š” ๋Œ€๋กœ ํ•˜๊ณ  ์žˆ์œผ๋‹ˆ ์ œ๊ฐ€ ์„ ํƒํ•œ ๊ฒƒ์€ ์•„๋‹™๋‹ˆ๋‹ค(์›ƒ์Œ). ์„ค๊ณ„๊ณต๋ชจ๋ฅผ ํ†ตํ•ด ๋‹น์„ ๋œ ์ฒด์œก๊ด€์€ ์˜ˆ์™ธ์ง€๋งŒ์š”. ๋ณดํ†ต ์ƒˆ๋กœ์šด ํ”„๋กœ์ ํŠธ๊ฐ€ ๋“ค์–ด์˜ค๋ฉด ์ฃผ์–ด์ง„ ์กฐ๊ฑด ๋‚ด์—์„œ ์ตœ์„ ์˜ ๊ฒฐ๊ณผ๋ฅผ ๋งŒ๋“ค์ž๋Š” ๋‹ค์ง๊นŒ์ง€๋งŒ ํ•ฉ๋‹ˆ๋‹ค. ๋Œ€์ง€๋‚˜ ํ”„๋กœ๊ทธ๋žจ, ๊ฑด์ถ•์ฃผ์˜ ์š”๊ตฌ์‚ฌํ•ญ์—์„œ ์–ด๋–ค ๋‹จ์„œ๋ฅผ ์ฐพ์œผ๋ ค๊ณ  ์• ์“ฐ๋Š” ์ •๋„์ฃ . ๊ทธ๋Ÿฌ๋ฉด์„œ ์ƒˆ๋กœ์šด ์ ‘๊ทผ๋ฒ•, ๋ฐฉ๋ฒ•๋ก ์— ๋Œ€ํ•œ ํ•œ๊ณ„์™€ ๊ฐˆ๋ง์„ ๋Š˜ ๋А๋ผ๊ณ , ์šฐ๋ฆฌ์˜ ์ƒ๊ฐ์ด ๋‹ซํžŒ ํšŒ๋กœ ์•ˆ์—์„œ ๋งด๋„๋Š” ๊ฒƒ์ด๋ผ๋ฉด ๋ฌด์Šจ ์˜๋ฏธ๊ฐ€ ์žˆ๋‚˜ ์‹ฌ๊ฐํ•˜๊ฒŒ ์œ„์ถ•๋˜๊ธฐ๋„ ํ•˜๋ฉด์„œ ํ”„๋กœ์ ํŠธ๋ฅผ ์ง„ํ–‰ํ•ด ๋‚˜๊ฐ‘๋‹ˆ๋‹ค. ๋Œ€๋ถ€๋ถ„ ๊ทธ๋ ‡์Šต๋‹ˆ๋‹ค. ํ•œ๊ณ„์™€ ๊ฐˆ๋ง๊ณผ ์œ„์ถ•, ์˜ˆ์‚ฐ์˜ ์••๋ฐ•๊ณผ ์„œ๋กœ ๋‹ค๋ฅธ ์ธ์‹์˜ ์ถฉ๋Œ ๋์— ๋ฒฝ์ฒด ํ•˜๋‚˜๊ฐ€ ๋Œ€์ง€ ์œ„์— ์„ญ๋‹ˆ๋‹ค. ๋ฌด์—‡์ด ๋” ๋‚˜์€ ๊ฑด์ถ•์ธ๊ฐ€์— ๋Œ€ํ•œ ์ž…์žฅ์ด ์˜๋ขฐ์ธ๊ณผ ๊ฑด์ถ•๊ฐ€๋Š” ์ฒ˜์Œ๋ถ€ํ„ฐ ๋‹ค๋ฆ…๋‹ˆ๋‹ค. ๊ฒŒ๋‹ค๊ฐ€ ์–ด๋–ค ๊ฑด์ถ•์ ์ธ ์‹คํ˜„์—๋Š” ํ•ญ์ƒ ๋น„์šฉ์ด ๋“ค์–ด๊ฐ‘๋‹ˆ๋‹ค. ๊ทธ๋ ‡๊ธฐ์— ๋งŽ์€ ์‹ค๋ฌผ์ž๋ณธ๊ณผ ๋ฌธํ™”์ž๋ณธ์„ ๊ฐ€์ง„ ์˜๋ขฐ์ธ๊ณผ ๋ฌธํ™”๊ถŒ๋ ฅ์„ ์ง€๋‹Œ ๊ฑด์ถ•๊ฐ€๋Š” ๋” ๋ฉ€๋ฆฌ ๊ฐˆ ์ˆ˜ ์žˆ๊ฒ ์ง€๋งŒ ๊ทธ๋Ÿฐ ๊ฒฝ์šฐ๋Š” ์•„์ง๊นŒ์ง€ ์ œ๊ฐ€ ๋‹ค๋ฃจ๋Š” ํ”„๋กœ์ ํŠธ์™€๋Š” ๋‹ค๋ฅธ ์ข…๋ฅ˜์˜ ๊ฒŒ์ž„์ž…๋‹ˆ๋‹ค. ์ €๋Š” ์˜๋ขฐ์ธ์„ ๋ฐฐ์‹ ํ•˜์ง€ ์•Š์œผ๋ฉด์„œ ๋™์‹œ์— ๊ฑด์ถ•์ ์ธ ์ธ์‹์„ ๋งŒ๋“ค์–ด๋‚ผ ๋งŒํ•œ ์žฅ์น˜๋“ค์„ ๋„ฃ์–ด์•ผ ํ•ฉ๋‹ˆ๋‹ค. ๋‹จ์ˆœํžˆ ์กฐํ˜•์ ์œผ๋กœ ์˜ˆ์˜๊ฒŒ ์ž˜ ๋‹ค๋“ฌ์€ ๊ฑด๋ฌผ์„ ๋„˜์–ด์„œ ๋ง์ด์ฃ . ๊ทธ๊ฒƒ์ด

69 7. 5์ธต ํ‰๋ฉด๋„ 8. ์˜ฅํƒ‘์ธต ํ‰๋ฉด๋„ 9~12. ํ‰๊ฑฐ๋™ 931 โ’ธ๋…ธ๊ฒฝ 13. ์ข…๋‹จ๋ฉด๋„ 14. ํšก๋‹จ๋ฉด๋„
์ œ๊ฐ€ ํ•  ์ผ์ด๋ผ๊ณ  ์ƒ๊ฐํ•ฉ๋‹ˆ๋‹ค. ์•„์ง์€
13 14 7 9 10 8 12 1.์ž„๋Œ€๊ณต๊ฐ„ 2. ํ™€ 3. ์—ฌ์žํ™”์žฅ์‹ค4.๋‚จ์žํ™”์žฅ์‹ค5.์‹ค์™ธ๊ธฐ๋ฐœ์ฝ”๋‹ˆ 6. ํ…Œ๋ผ์Šค 1. ํ™€ 2. ํ•˜๋Š˜์ •์› 1.์ž„๋Œ€๊ณต๊ฐ„ 2.๋ฌผํƒฑํฌ์‹ค3.์ฃผ์ฐจ์žฅ4. ํ•˜๋Š˜์ •์›1.์ž„๋Œ€๊ณต๊ฐ„ 2.์ „๊ธฐ์‹ค3.์ฃผ์ฐจ์žฅ4. ํ•˜๋Š˜์ •์› 5.์ง„์ž…๋งˆ๋‹น 6.๋ฐœ์ฝ”๋‹ˆ 7. ํ…Œ๋ผ์Šค 11
๊ฑฐ๊ธฐ๊นŒ์ง€์ž…๋‹ˆ๋‹ค.

โ“ฆ ๊ทธ๋ ‡๋‹ค๋ฉด ์•ž์œผ๋กœ ์ƒˆ๋กญ๊ฒŒ ๋‹ค๋ค„๋ณด๊ณ  ์‹ถ์€ ํ”„๋กœ๊ทธ๋žจ์ด๋‚˜ ๊ฑด์ถ•์˜ ์ข…๋ฅ˜๊ฐ€ ์žˆ์„๊นŒ์š”? ์ˆฒ์œผ๋กœ ๋‘˜๋Ÿฌ ์Œ“์ธ ๊ณณ์— ์ˆจ์–ด ์žˆ๋Š” ๋“ฏ ์ž‘์€ ์˜ค๋‘๋ง‰ ๊ฐ™์€ ์ฃผํƒ์„ ์ œ ๋งˆ์Œ๋Œ€๋กœ ํ•œ ๋ฒˆ ํ•ด๋ณด๋ฉด ์žฌ๋ฏธ์žˆ์„ ๊ฒƒ ๊ฐ™์Šต๋‹ˆ๋‹ค. ๋˜ ํ•˜๋‚˜๋Š” ์•„์ฃผ โ€˜ํ•ซโ€™ํ•˜๊ฑฐ๋‚˜ โ€˜ํž™โ€™ํ•œ ์‚ฌ์ดํŠธ์—์„œ ํ•œ ๋ฒˆ ํ•ด๋ณด๊ณ  ์‹ถ์–ด์š”. ๊ทธ๋ž˜์„œ ๊ด€์‹ฌ ๋ฐ›์•„๋ณด๊ณ  ์‹ถ์–ด์š”(์›ƒ์Œ). ๋งํ•˜๊ณ  ๋ณด๋‹ˆ ๋‘ ๊ฐœ๊ฐ€ ์ƒ๋ฐ˜๋˜๊ณ  ๊ทน๋‹จ์ ์ธ ์ปจํ…์ŠคํŠธ๋„ค์š”. ๊ฑด์ถ•์€ ์ •๋ง ์–ด๋–ค ์ปจํ…์ŠคํŠธ์— ๋†“์ด๋Š”์ง€๊ฐ€ ์ค‘์š”ํ•œ ๊ฒƒ ๊ฐ™์•„์š”. ๊ณต๊ณตํ”„๋กœ์ ํŠธ์— ๋Œ€ํ•œ ๊ฐˆ๋ง์€ ๊ทธ๋ ‡๊ฒŒ ํฌ์ง€ ์•Š์€ ๊ฑฐ ๊ฐ™์•„์š”. ๊ณต๋ฌด์›๊ณผ ํ˜‘์˜ํ•˜๋Š” ์ง€๋‚œํ•œ ๊ณผ์ •๊ณผ ์ ˆ์ฐจ๋ฅผ ์ฆ๊ธฐ์ง€ ๋ชปํ•˜๋Š” ํŽธ์ด์˜ˆ์š”. ์ข€ ๋” โ€˜๋„ค์ž„๋“œโ€™ ๊ฑด์ถ•๊ฐ€๊ฐ€ ๋œ๋‹ค๋ฉด ๋‹ฌ๋ผ์งˆ ์ˆ˜ ์žˆ๊ฒ ์ฃ . ์•„, 80๋…„๋Œ€ ์ง€์–ด์กŒ๋˜ ์ฃผํƒ๋“ค์„ ์•„์นด์ด๋น™ ํ•˜๊ณ  ๋ณต๊ธฐํ•ด๋ณด๊ณ  ์‹ถ์–ด์š”. ๊ฐœ์ธ์ ์œผ๋กœ 80๋…„๋Œ€ ์ง€์–ด์ง„ 2์ธต์งœ๋ฆฌ ๋‹จ๋…์ฃผํƒ๋“ค์ด ๋„ˆ๋ฌด ์ข‹์•„์š”. ๊ทธ๊ฒƒ๋„ ๋‹น์‹œ์˜ ํšจ์œจ์„ฑ์„ ๋ฐ”ํƒ•์œผ๋กœ ์ง€์–ด์กŒ๊ฒ ์ง€๋งŒ ์ง€๊ธˆ์€ ์—†๋Š” ๋ฌด์–ธ๊ฐ€๊ฐ€ ์žˆ์ฃ .

70
1~4. ์˜์™• ๋‹ค๊ฐ€๊ตฌ์ฃผํƒ+๊ทผ๋ฆฐ์ƒํ™œ์‹œ์„ค 4 3 2 1

โ“ฆ ์‚ฌ๋ฌด์†Œ ์‹œ์ž‘ ์ดํ›„ ๋ด„ ๊ฑด์ถ•์—ฐ๊ตฌ์†Œ๋งŒ์˜

ํŠน๋ณ„ํ•œ ๋ชฉํ‘œ๋Š” ์–ด๋–ค ๊ฒƒ๋“ค์ด ์žˆ์—ˆ๋Š”์ง€

๊ถ๊ธˆํ•˜๊ณ , ์ƒˆ๋กญ๊ฒŒ ๋ชฉํ‘œํ•˜๊ณ  ์žˆ๋Š” ๊ฒƒ๋“ค์ด ์žˆ์„๊นŒ์š”?

ํŠน๋ณ„ํ•œ ๋ชฉํ‘œ๋ผ, ์‹œ์ž‘ํ•˜๋ฉด์„œ ๋”ฑ ํ•˜๋‚˜๋ฅผ

๋‹ค์งํ–ˆ์–ด์š”. 10๋…„์„ ๋ฒ„ํ…จ๋ณด์ž, 10๋…„์„ ์‚ด์•„๋‚จ์ž, 10๋…„์€ ๊ทธ๋ƒฅ ๋ฟŒ๋ฆฌ๋งŒ ๋‚ด๋ฆฌ์ž๊ณ . 10๋…„์„ ์‚ด์•„ ๋‚จ์•„์„œ ๋ฟŒ๋ฆฌ๋ฅผ ๋‚ด๋ฆฌ๋ฉด, ๊ทธ ๋‹ค์Œ

10๋…„์€ ๊ฝƒ์„ ํ”ผ์šฐ๋“  ์—ด๋งค๋ฅผ ๋งบ๋“  ๋ญ๋ผ๋„ ๋˜์ง€ ์•Š๊ฒ ๋Š”๊ฐ€ ์ƒ๊ฐํ–ˆ์–ด์š”. ์ด์ œ ์ œ ์‚ฌ๋ฌด์‹ค ์‹œ์ž‘ํ•œ ์ง€ 8๋…„์งธ ์˜ˆ์š”. ์•„์ง์€ ๋ฟŒ๋ฆฌ๋ฅผ ๋‚ด๋ฆฌ๊ณ  ์žˆ๋Š” ์ค‘์ด๊ณ , 10์ฃผ๋…„๊นŒ์ง€๋Š” ์‚ฌ๋ฌด์‹ค์˜ ์‹œ์Šคํ…œ์„ ์ข€ ๋” ์ฒด๊ณ„ํ™”ํ•ด์„œ 10์ฃผ๋…„์„ ๋งž๊ณ  ์‹ถ์–ด์š”. ์ข€ ๋” ๋ณธ์งˆ์— ์ง‘์ค‘ํ•  ์ˆ˜ ์žˆ๊ฒŒ์š”. ์ข‹์€ ๊ฑด์ถ•์„ ๋งŒ๋“ค์–ด๋‚ด๋Š” ๊ฒƒ๋งŒํผ ๋˜‘๊ฐ™์ด ์ค‘์š”ํ•œ ๊ฒƒ์ด ์ข‹์€ ์‚ฌ๋ฌด์‹ค์„ ๋งŒ๋“œ๋Š” ๊ฑฐ๋ผ๊ณ  ์ƒ๊ฐํ•ฉ๋‹ˆ๋‹ค. ๋‹ค๋ฅธ ๋ง๋กœ ์ข‹์€ ํŒ€์„ ๊ตฌ์„ฑํ•˜๋Š” ๊ฒƒ์ด์ฃ . ์ €์—๊ฒŒ๋„, ํŒ€์› ๋ชจ๋‘์—๊ฒŒ๋„ ์ข‹์€ ์‚ฌ๋ฌด์‹ค์ด์š”.

์ข‹์€ ํŒ€์€ ์–ธ์ œ๋“  ๋˜๋‹ค์‹œ ์ข‹์€ ํ”„๋กœ์ ํŠธ๋ฅผ ํ•ด๋‚ผ ์ˆ˜ ์žˆ๋‹ค๊ณ  ์ƒ๊ฐํ•ฉ๋‹ˆ๋‹ค. ๊ฐ™์ด ๊ณ ๋ฏผํ•˜๊ณ , ์†Œํ†ตํ•˜๋ฉด์„œ ๊ทผ์‚ฌํ•œ ์•„์ด๋””์–ด๋ฅผ ๋งŒ๋“ค์–ด๋‚ด๊ณ  ๋ฌธ์ œ๋ฅผ ํ’€์–ด๋‚˜๊ฐ€๋ฉด์„œ ๋А๋ผ๋Š” ํฌ์—ด์ด ์‚ฌ์‹ค ์ด ์ผ์„ ํ•˜๋Š” ์ด์œ ์ž…๋‹ˆ๋‹ค. โ“ฆ ์†Œ์žฅ๋‹˜์˜ ์ž‘์—…์„ ๋ณด๋ฉด ๋‚ด๋ถ€์™€ ์™ธ๋ถ€์˜ ๊ณต๊ฐ„์„ ์—ฐ๊ฒฐํ•˜๊ณ  ๋งŒ๋“œ๋Š” ๋ฐฉ์‹์ด ๋‹ค์–‘ํ•˜๊ณ  ํฅ๋ฏธ๋กญ๊ฒŒ ๋А๊ปด์ง‘๋‹ˆ๋‹ค. ์ด๋Ÿฌํ•œ ๋‚ด์™ธ๋ถ€ ๊ณต๊ฐ„์„ ๋‹ค์–‘ํ•˜๊ฒŒ ์„ค๊ณ„ํ•˜๋Š” ํŠน๋ณ„ํ•œ ์ด์œ ๋‚˜ ๋ฐฉ๋ฒ•๋“ค์ด ์žˆ๋Š”์ง€ ๊ถ๊ธˆํ•ฉ๋‹ˆ๋‹ค. ๊ทธ๊ฑด ๋ชจ๋“  ๊ฑด์ถ•๊ฐ€๊ฐ€ ๋‹ค ํ•˜๋Š” ์ผ์ด๊ณ  ์ €๋งŒ์˜ ํŠน๋ณ„ํ•œ ๋ฐฉ๋ฒ•์€ ์—†์Šต๋‹ˆ๋‹ค. ๊ทธ๋Ÿฐ ๊ฒƒ๋“ค์„ ์ „๋ณตํ•˜๊ฑฐ๋‚˜ ๋ฌธํ™”์ ์ธ ์ธต์œ„์—์„œ ์žฌํ•ด์„ํ•˜์ง€ ์•Š๋Š” ์ด์ƒ ๋ง์ด์ฃ . ์•„์ง๊นŒ์ง€๋Š” ๊ทธ๋Ÿฐ ๊ฑด์ถ•์  ์žฅ์น˜๋“ค์„ ์•Œ๋œฐํ•˜๊ฒŒ ์ฑ™๊ฒจ ๋„ฃ๊ณ  ๋„ˆ๋ฌด ๊ฑฐ์น ๊ฑฐ๋‚˜ ๋…ธ๊ณจ์ ์ด์ง€ ์•Š๊ฒŒ ์ž˜ ๋‹ค๋“ฌ์–ด๋‚ด๋ ค๊ณ  ๋…ธ๋ ฅํ•  ๋ฟ์ž…๋‹ˆ๋‹ค. ๊ณ„ํšํ•  ๋•Œ ์–ด๋ฆฐ ์‹œ์ ˆ ๊ฐœ์ธ์ ์ธ ๊ธฐ์–ต๊ณผ ์—ฐ๊ฒฐ๋˜๋Š” ๊ณต๊ฐ„์˜ ์›ํ˜•๋“ค, ๊ทธ๋Ÿฐ ๊ณต๊ฐ„์— ๋จธ๋ฌผ๋ €์„ ๋•Œ์˜ ์˜ค๊ฐ๊ณผ ๊ฐ์ •๋“ค์„ ์†Œํ™˜ํ•˜๋Š” ๊ฒƒ ๊ฐ™๊ธด ํ•ฉ๋‹ˆ๋‹ค. ๊ทธ๋ฆฌ๊ณ  ์ถ”์ƒ์ ์ธ ๊ฐœ๋…๋ณด๋‹ค๋Š” ๊ตฌ์ฒด์ ์ธ ๊ณต๊ฐ„์˜ ๋ฐฐ์น˜๋กœ ํ’€์–ด๋‚˜๊ฐ€๋Š” ํŽธ์ž…๋‹ˆ๋‹ค. ์˜ˆ๋ฅผ ๋“ค์–ด ํ๋ฆฟํ•œ ๊ฒฝ๊ณ„, ๊ณต๊ฐ„์˜ ์ค‘์ฒฉ ๊ฐ™์€ ๋ง์„ ์ €๋Š” ๋„๋ฉด์œผ๋กœ ๋ฒˆ์—ญํ•ด ๋‚ผ ์ˆ˜ ์—†์Šต๋‹ˆ๋‹ค. ๊ทธ๋ƒฅ ์ฃผ์–ด์ง„ ํ”„๋กœ๊ทธ๋žจ์„ ์ž˜ ํ‘ธ๋Š” ๋™์•ˆ ์ œ ์•ˆ์— ์žˆ๋Š” ๊ณต๊ฐ„์˜ ์‹ฌ์ƒ๋“ค์ด ์€์—ฐ์ค‘์— ๋“œ๋Ÿฌ๋‚˜๋Š” ๊ณผ์ •์ด๋ผ๊ณ  ์ƒ๊ฐํ•ฉ๋‹ˆ๋‹ค. โ“ฆ ๋ด„ ๊ฑด์ถ•์—ฐ๊ตฌ์†Œ์˜ ์†Œ๊ฐœ์™€ ์†Œ์žฅ๋‹˜์˜ ๊ธ€์„ ๋ณด๋ฉด ๊ฑด์ถ•์„ ๋‘˜๋Ÿฌ์‹ผ ํ’๊ฒฝ, ์ž์—ฐ ํ˜น์€ ๋ณด์ด์ง€ ์•Š๋Š” ๊ฒƒ๋“ค์— ๋Œ€ํ•œ ๋‹ค์–‘ํ•œ ๊ฐ€๋Šฅ์„ฑ์„ ๋งŽ์ด

์–ธ๊ธ‰ํ•œ๋‹ค๊ณ  ์ƒ๊ฐํ•ฉ๋‹ˆ๋‹ค. ๊ฐœ์ธ์ ์œผ๋กœ ์ถ”๊ตฌํ•˜๋Š”

๊ฑด์ถ•์€ ๋ฌด์—‡์ธ๊ฐ€์š”?

๊ฑด์ถ•์€ ํƒœ์ƒ์ ์œผ๋กœ ๋ฐ˜ ์ž์—ฐ์ ์ด๊ธฐ์— ํ’๊ฒฝ๊ณผ

์ž์—ฐ์— ๋Œ€ํ•ด์„œ๋Š” ์–‘๊ฐ€์ ์ธ ์ž…์žฅ์ผ ์ˆ˜๋ฐ–์—

์—†์Šต๋‹ˆ๋‹ค. ๊ฑด์ถ•์ด ์‰ฝ๊ฒŒ ํ’๊ฒฝ๊ณผ ์ž์—ฐ์„ ๋Œ์–ด๋“ค์ผ

๋•Œ ์š”์ฆ˜ ๋ง๋กœ โ€˜2์ฐจ ๊ฐ€ํ•ดโ€™๋ฅผ ํ•˜๊ณ  ์žˆ๋Š” ๊ฒƒ์ด

์•„๋‹Œ์ง€ ์ผ๋‹จ ์˜์‹ฌํ•ด๋ด์•ผ ํ•ฉ๋‹ˆ๋‹ค. ์ œ๊ฐ€ ์“ด

๊ธ€์—์„œ ๊ทธ๋Ÿฐ ํ’๊ฒฝ, ์ž์—ฐ ํ˜น์€ ๋ณด์ด์ง€ ์•Š๋Š”

๊ฒƒ๋“ค์— ๋Œ€ํ•œ ๊ฐ€๋Šฅ์„ฑ์„ ์ฝ์œผ์…จ๋‹ค๋ฉด ๊ทธ ๋˜ํ•œ ๋ฉ‹๋ถ€๋ฆฌ๋ ค๊ณ  ์“ด ๋ฌธํ•™์ ์ธ ์ˆ˜์‚ฌ์ผ ๊ฐ€๋Šฅ์„ฑ์ด

๋†ํ›„ํ•ฉ๋‹ˆ๋‹ค. ๋งž๊ณ  ํ‹€๋ฆผ์˜ ๋ฌธ์ œ๋ผ๊ณ  ๋ณด๋‹ค๋Š”

์ง„์ •์„ฑ์˜ ์ •๋„๋ผ๊ณ  ์ƒ๊ฐํ•ฉ๋‹ˆ๋‹ค. ์ œ๊ฐ€ ์ถ”๊ตฌํ•˜๋Š”

๊ฑด์ถ•์€ ๊ทธ๋Ÿด ๋งˆ์Œ์ด ์žˆ๋Š” ์˜๋ขฐ์ธ์ด๋ผ๋ฉด, ๊ทธ์—๊ฒŒ ์˜ˆ์‚ฐ์˜ ๋งŽ๊ณ  ์ ์Œ์— ๊ด€๊ณ„์—†์ด ์ข‹์€ ๊ฑด์ถ•์„ ๋งŒ๋“ค์–ด์ฃผ๋Š” ๊ฒƒ์ž…๋‹ˆ๋‹ค. ๊ทธ๋ฆฌ๊ณ  ์ข€ ๋‘๋ฆฌ๋ญ‰์‹คํ•œ ์ด์•ผ๊ธฐ์ง€๋งŒ ๊ฑด์ถ•์ฃผ, ์‹œ๊ณต์ž, ์„ค๊ณ„์ž๊ฐ€ ๋ชจ๋‘ ๋งŒ์กฑํ•˜๊ณ  ๋Œ์•„๊ฐˆ ์ˆ˜ ์žˆ๋Š” ๊ฑด์ถ•์ž…๋‹ˆ๋‹ค. โ“ฆ ํ˜„์žฌ ๋ด„ ๊ฑด์ถ•์—ฐ๊ตฌ์†Œ๋Š” ์–ด๋–ค ํ”„๋กœ์ ํŠธ๋“ค์„

์ง„ํ–‰ ์ค‘์ด๊ณ , ์–ด๋–ค ๊ณผ์ •์— ์žˆ๋‚˜์š”? ๋‹จ๋…์ฃผํƒ๋“ค๊ณผ ๋‹ค๊ฐ€๊ตฌ์ฃผํƒ๋“ค, ํฌ์ง€ ์•Š์€ ํšŒ์‚ฌ ์‚ฌ์˜ฅ, ๊ทผ๋ฆฐ์ƒํ™œ์‹œ์„ค ๋ฆฌ๋…ธ๋ฒ ์ด์…˜(๋Œ€์ˆ˜์„ ), ๊ทธ๋ฆฌ๊ณ  ์ •๋ง ์žฌ๋ฏธ์—†๋Š” ์‹ค๋ฌด์ ์ธ ํ”„๋กœ์ ํŠธ๋“ค์ด ์žˆ์Šต๋‹ˆ๋‹ค. ์ด์ œ ๋ง‰ ์‹œ์ž‘๋œ ๊ณ„ํš๋ถ€ํ„ฐ ์‚ฌ์šฉ์Šน์ธ๊นŒ์ง€ ๊ฑฐ์˜ ๋ชจ๋“  ๋‹จ๊ณ„์— ๋‹ค ๊ฑธ์ณ ์žˆ์–ด ์กฐ๊ธˆ ๋ฐ”์˜๊ธด ํ•ฉ๋‹ˆ๋‹ค. โ“ฆ ๊ทธ๋Ÿผ ํ˜„์žฌ ๋ด„ ๊ฑด์ถ•์—ฐ๊ตฌ์†Œ์™€ ์†Œ์žฅ๋‹˜์ด ๊ฐ–๊ณ  ์žˆ๋Š” ๊ณ ๋ฏผ๋“ค์€ ์–ด๋–ค ๊ฒƒ๋“ค์ด ์žˆ๋Š”์ง€์š”. ์‚ฌ๋ฌด์‹ค์˜ ์ฒด๊ณ„๋ฅผ ๋งŒ๋“œ๋Š” ๊ฒƒ์ž…๋‹ˆ๋‹ค. ์žฌ๋ฌด๋‚˜ ๊ฒฝ๋ฆฌ์˜ ์ธก๋ฉด์—์„œ ์‚ฌ๋ฌด์‹ค ์šด์˜์˜ ์ฒด๊ณ„๋„ ํ•„์š”ํ•˜๊ณ  ํ”„๋กœ์ ํŠธ๋ฅผ ์ง„ํ–‰ํ•˜๋ฉด์„œ ์ฐฝ์กฐ์ ์ธ ์ผ์ด ์•„๋‹Œ ๋ฐ˜๋ณต๋˜๋Š” ์ง€๋ฃจํ•œ ์ผ๋“ค์„ ์ข€ ๋” ํšจ์œจ์ ์œผ๋กœ ์ฒ˜๋ฆฌํ•˜๋Š” ์ฒด๊ณ„๋„ ๋‹ค๋“ฌ์–ด์•ผ ํ•ฉ๋‹ˆ๋‹ค. ์ง€๊ธˆ ์ง์›์ด 3๋ช…์ธ๋ฐ ์ด๋ ‡๊ฒŒ ๋งํ•˜๋‹ˆ ์ข€ ์šฐ์Šต๊ฒŒ ๋“ค๋ฆด ์ˆ˜ ์žˆ๊ฒ ์ง€๋งŒ ๋‹น๋ถ„๊ฐ„ ์ด๋ ‡๊ฒŒ ์œ ์ง€๋  ๊ฑฐ ๊ฐ™์œผ๋‹ˆ ์–ด๋–ป๊ฒŒ๋“  ์ผ์˜ ํšจ์œจ์„ฑ์„ ์ฐพ์•„์•ผ ํ•ฉ๋‹ˆ๋‹ค. ์‚ฌ๋ฌด์‹ค๊ณผ ํ˜„์žฅ ๋ชจ๋‘์—์„œ ํ”„๋กœ์ ํŠธ์˜ ํ€„๋ฆฌํ‹ฐ๋ฅผ

์œ ์ง€ํ•˜๋Š” ๊ฒƒ, ๊ณ„ํš๋‹จ๊ณ„์—์„œ ๋” ๊ณ ๋ฏผํ•  ์ˆ˜ ์žˆ๋Š”

์‹œ๊ฐ„์„ ํ™•๋ณดํ•˜๋Š” ๊ฒƒ, ์ง€์†์ ์ธ ์ธํ’‹์„ ์œ„ํ•œ

์‹œ๊ฐ„์„ ํ™•๋ณดํ•˜๋Š” ๊ฒƒ ๋“ฑ๋„ ๋Š˜ ํ•˜๋Š” ๊ณ ๋ฏผ์ž…๋‹ˆ๋‹ค

โ“ฆ ์•ž์œผ๋กœ ๊ฐœ์ธ์ ์ธ ๋ชฉํ‘œ๋“ค์€ ์–ด๋–ค ๊ฒŒ ์žˆ๋Š”์ง€

๊ถ๊ธˆํ•ฉ๋‹ˆ๋‹ค.

์ˆœ์ „ํžˆ ๊ฐœ์ธ์ ์ธ ๋ชฉํ‘œ๋Š” ์–ด๋–ค ํ˜•์‹์ด๋“ 

์ง€์†์ ์œผ๋กœ ๊ธ€์„ ์จ๋ณด๋Š” ๊ฒƒ์ž…๋‹ˆ๋‹ค. ๊ธ€์„ ๋งค์ฒด๋กœ

์‚ผ๋Š” ๊ฒƒ ์—ญ์‹œ ํ•˜๋‚˜์˜ ๋ถ„์•ผ๋ผ ์ƒ๊ฐํ•˜๊ธฐ์— ๊ธ€

์“ฐ๋Š” ์ผ์— ์žฌ๋Šฅ์ด ์—†๊ฑฐ๋‚˜ ํ›ˆ๋ จ์ด ๋˜์ง€ ์•Š์€

์‚ฌ๋žŒ๋“ค์ด ์‰ฝ๊ฒŒ ์“ฐ๋Š” ๊ธ€์— ๋น„ํŒ์ ์ด์ง€๋งŒ,

๊ธ€์€ ์ƒ๊ฐ์„ ์ •๋ฆฌํ•˜๊ณ  ์ œ ๊ด€์ ์„ ์‚ฌ๊ฒฉ์—์„œ

์˜์ ์กฐ์ค€ ํ•˜๋“ฏ ์กฐ์œจํ•ด๋ณด๋Š” ๋ฐ ํ™•์‹คํžˆ ๋งŽ์€

๋„์›€์ด ๋ฉ๋‹ˆ๋‹ค. ์–ด๋–ค ํ•œ ์ฃผ์ œ์— ๋Œ€ํ•ด ๋‚ด์šฉ์„ ์••์ถ•ํ•˜๊ฑฐ๋‚˜ ์†์‹คํ•˜์ง€ ์•Š์œผ๋ฉด์„œ ๋ˆ„๊ตฌ๋‚˜ ์ดํ•ดํ•  ์ˆ˜ ์žˆ๋Š” ๋ช…์พŒํ•˜๊ณ  ํ‰์ดํ•œ ๋ง๋กœ ์„ค๋ช…ํ•˜๋Š” ๊ธ€์ด๋‚˜ ์ฑ…์„ ์ตœ๊ณ ๋กœ ์ƒ๊ฐํ•˜๋Š”๋ฐ, ๊ฑด์ถ•์— ๋Œ€ํ•ด ๊ทธ๋Ÿฐ ์ฑ…์„ ์จ๋ณด๊ณ  ์‹ถ์Šต๋‹ˆ๋‹ค. ๋ชฉํ‘œ๋ผ๊ธฐ๋ณด๋‹ค๋Š” ๊ฟˆ์— ๊ฐ€๊น๋„ค์š”.

โ“ฆ ๋งˆ์ง€๋ง‰์œผ๋กœ ๊ฑด์ถ•๊ฐ€๋กœ์„œ ์•ž์œผ๋กœ ๋˜๊ณ ์ž ํ•˜๋Š” ๊ฑด์ถ•๊ฐ€์˜ ์ƒ์„ ํ•œ ์ค„๋กœ ์ •๋ฆฌํ•œ๋‹ค๋ฉด? ์†๋ฐœ์ด ์ž˜ ๋งž๋Š” ํ•˜๋‚˜์˜ ํŒ€์œผ๋กœ ์„ค๊ณ„๋ฅผ ํ•ด ๋‚˜๊ฐ€๋Š” ๋ชจ์Šต์ด ์ œ๊ฐ€ ๊ทธ๋ฆฌ๋Š” ๋ด„ ๊ฑด์ถ•์—ฐ๊ตฌ์†Œ์˜ ๋ชจ์Šต์ž…๋‹ˆ๋‹ค. ์†Œ์žฅ ๋˜๋Š” ๋Œ€ํ‘œ ๊ฑด์ถ•์‚ฌ๋ผ๋Š” ์งํ•จ๋ณด๋‹ค ํŒ€์˜ ๋ฆฌ๋”๋ผ๋Š” ๋ง์ด ๋” ์™€ ๋‹ฟ์Šต๋‹ˆ๋‹ค. ์•„ํ‹€๋ฆฌ์—๊ฐ€ ํ•˜๋‚˜์˜ ํŒ€์ด ๋œ๋‹ค๋Š” ๊ฒƒ์€ ์ฐธ ์–ด๋ ค์šด ์ผ์ž…๋‹ˆ๋‹ค. ์†Œ์žฅ๊ณผ ์ง์›์€ ๊ฐ์ž์˜ ์ž…์žฅ์ด ๋‹ค๋ฅด๋‹ˆ๊นŒ์š”. ์—ด์ •์„ ์š”๊ตฌํ•˜๋˜ ์‹œ์ ˆ์€ ์ง€๋‚˜๊ฐ”์Šต๋‹ˆ๋‹ค. ๋ช…๋ฐฑํ•œ ๊ณ„์•ฝ๊ด€๊ณ„, ๋‚˜์˜์ง€ ์•Š์€ ๊ณ„์•ฝ์กฐ๊ฑด์€ ์ถœ๋ฐœ์ ์ด๊ธด ํ•˜์ง€๋งŒ ๊ทธ๊ฒƒ๋งŒ์œผ๋กœ๋Š” ํ™”ํ•™์ž‘์šฉ์ด ์ผ์–ด๋‚˜์ง€ ์•Š์Šต๋‹ˆ๋‹ค. ์„œ๋กœ๋ฅผ ์‹ ๋ขฐํ•˜๊ธฐ๊นŒ์ง€ ์‹œ๊ฐ„์ด ๊ฑธ๋ฆฝ๋‹ˆ๋‹ค. ์‹ ๋ขฐ๋ฅผ ๋ฐ”ํƒ•์œผ๋กœ ์„œ๋กœ ์กด์ค‘ํ•˜๋ฉด์„œ ์†Œํ†ต์ด ๋˜๊ธฐ๊นŒ์ง€๋Š” ๋” ๋งŽ์€ ์‹œ๊ฐ„๊ณผ ์—ฐ์Šต์ด ํ•„์š”ํ•ฉ๋‹ˆ๋‹ค. ๊ทธ๋Ÿฐ ํŒ€์˜ ํŒ€์›์ด์ž ๋ฆฌ๋”๋กœ์„œ ์˜๋ฏธ๋ฅผ ๋ถ€์—ฌํ•  ๋งŒํ•œ ๊ณ„ํš์•ˆ์„ ํ•˜๋‚˜์”ฉ ๋งŒ๋“ค์–ด๊ฐ€๋Š” ๊ฒƒ์ด ์ œ๊ฐ€ ๊ทธ๋ฆฌ๋Š” ์•ž์œผ๋กœ์˜ ๋ชจ์Šต์ž…๋‹ˆ๋‹ค.

71
๋Œ€ํ‘œ(๊ฐ€์šด๋ฐ)์™€ ๋ฉค๋ฒ„๋“ค
5. ๊น€์œ ํ™
์ž๋ฃŒ ํ˜‘์กฐ ๋ฐ ์‚ฌ์ง„ ํฌ๋ ˆ๋”ง ๋ณธ๋ฌธ์ „์ฒด์‚ฌ์ง„ ๋ฐ ์ž๋ฃŒ์ œ๊ณต:๊ฑด์ถ•์‚ฌ์‚ฌ๋ฌด์†Œ๋ด„๊ฑด์ถ•์—ฐ๊ตฌ์†Œ ๊ฑด์ถ•์‚ฌ์ง„ ํฌ๋ ˆ๋”ง(๋ณ„๋„ํ‘œ๊ธฐ์™ธ):๊ฑด์ถ•์‚ฌ์‚ฌ๋ฌด์†Œ ๋ด„๊ฑด์ถ•์—ฐ๊ตฌ์†Œ ๊น€์œ ํ™์€๊ฑด์ถ•์‚ฌ์‚ฌ๋ฌด์†Œ๋ด„๊ฑด์ถ•์—ฐ๊ตฌ์†Œ์˜๋Œ€ํ‘œ๊ฑด์ถ•์‚ฌ์ด๋‹ค. ์—ฐ์„ธ๋Œ€ํ•™๊ต ๊ฑด์ถ•๊ณตํ•™๊ณผ๋ฅผ ์กธ์—…ํ•˜์˜€๊ณ , ์”จ์ง€์—์Šค ๊ฑด์ถ•์‚ฌ์‚ฌ๋ฌด์†Œ์—์„œ๋‹ค์–‘ํ•œ์žฅ๋ฅด์˜์‹ค๋ฌด๋ฅผ ๊ฒฝํ—˜ํ•˜๊ณ  2015
์ž‘์—…
5
๋…„๋ถ€ํ„ฐ๊ฑด์ถ•์‚ฌ์‚ฌ๋ฌด์†Œ๋ด„๊ฑด์ถ•์—ฐ๊ตฌ์†Œ๋ฅผ ์„ค๋ฆฝํ•˜์—ฌ
ํ•ด์˜ค๊ณ  ์žˆ๋‹ค.
72 ํ•ด์—๊ฒŒ์„œ ์†Œ๋…„์—๊ฒŒ GAIA Topic p.34 Gorbachev, a strong critic of President Vladimir Putin ์ง€๋‚œ 2์›” ๋ฐœ๋ฐœํ•œ ๋Ÿฌ์‹œ์•„์˜ ์šฐํฌ๋ผ์ด๋‚˜ ์นจ๊ณต ์ดํ›„ ๊ณ ๋ฅด๋ฐ”์ดˆํ”„ ์žฌ๋‹จ์€ โ€œ์ธ๊ฐ„์˜ ์ƒ๋ช…๋ณด๋‹ค ์ค‘์š”ํ•œ ๊ฒƒ์€ ์—†๋‹คโ€๋ฉฐ โ€œ๊ฐ€์žฅ ์ฒจ์˜ˆํ•œ ๋ชจ์ˆœ๊ณผ ๋ฌธ์ œ๋ฅผ ํ•ด๊ฒฐํ•˜๊ธฐ ์œ„ํ•ด์„œ๋Š” ์ƒํ˜ธ ์กด์ค‘๊ณผ ์ด์ต์— ์ž…๊ฐํ•œ ํ˜‘์ƒ๊ณผ ๋Œ€ํ™”๊ฐ€ ์œ ์ผํ•œ ๋ฐฉ๋ฒ•โ€์ด๋ผ๊ณ  ๊ฐ•์กฐํ–ˆ๋‹ค. ์ด์–ด โ€œ์šฐ๋ฆฌ๋Š” (์ „์Ÿ ์ค‘๋‹จ๊ณผ) ํ˜‘์ƒ ๊ณผ์ •์˜ ์žฌ๊ฐœ๋ฅผ ๋ชฉํ‘œ๋กœ ํ•˜๋Š” ๋ชจ๋“  ๋…ธ๋ ฅ์„ ์ง€์ง€ํ•œ๋‹คโ€๊ณ  ๋งํ–ˆ๋‹ค.
83 Special Feature 9771976-741204-09
74 ์ง€ํ˜•๋ฐฐ์น˜๋„_์ „์ฒด ์ด์ข…๊ฑด,
๋””์Šคํ—› ๋‚˜์ธํ˜œ, ๋ชธ-์ง‘
75 ๋†’์€ ๊ฒฝ์‚ฌ์ง€์˜ ๋””์Šคํ—›๊ณผ ๋ชธ-์ง‘ ์ „๊ฒฝ

D's Hut & Mom-House

Jongkeun Lee, Inhye Na Architect

76
77 ์ฃผ๋ณ€ ๋งˆ์„ ์ „๊ฒฝ

๊ฑด์ถ•๊ฐœ์š”

์œ„์น˜:๊ฒฝ๊ธฐ๋„์–‘ํ‰๊ตฐ ๊ฐ•์ƒ๋ฉด ์šฉ๋„:๋‹จ๋…์ฃผํƒ ๋Œ€์ง€๋ฉด์ :409m2

๊ฑดํ์œจ:19.99% ์šฉ์ ๋ฅ :37.44%

๊ฑด์ถ•๋ฉด์ :[๋””์Šคํ—›]42.91m2[๋ชธ-์ง‘]38.88m2

์—ฐ๋ฉด์ :[๋””์Šคํ—›]79.70m2[๋ชธ-์ง‘]73.44m2

๊ทœ๋ชจ:[๋””์Šคํ—›]์ง€์ƒ3์ธต [๋ชธ-์ง‘]์ง€์ƒ2์ธต

๋†’์ด:[๋””์Šคํ—›]9.15m[๋ชธ-์ง‘]9.45m

์ฃผ์ฐจ:2๋Œ€

๊ตฌ์กฐ:๊ฒฝ๋Ÿ‰ ๋ชฉ๊ตฌ์กฐ+์ค‘๋ชฉ ๊ตฌ์กฐ ์™ธ๋ถ€๋งˆ๊ฐ:์Šคํ„ฐ์ฝ”ํ”Œ๋ ‰์Šค

์ฃผ์š”๋‚ด๋ถ€๋งˆ๊ฐ: [๋””์Šคํ—›](๋ฒฝ)T8OSB ์ธํ…Œ๋ฆฌ์–ด ํ•ฉํŒ ์œ„ ์นœํ™˜๊ฒฝ ํŽ˜์ธํŠธ (๋ฐ”๋‹ฅ)T5SPC flooring,์ „ํ†ตํ•œ์ง€์žฅํŒ ์œ„ ์˜ป์น  2ํšŒ๋งˆ๊ฐ (์ฒœ์žฅ)์žฅ์„  ๋…ธ์ถœ,์ž์ž‘๋‚˜๋ฌด ํ•ฉํŒ

[๋ชธ-์ง‘](๋ฒฝ)T8OSB ์ธํ…Œ๋ฆฌ์–ด ํ•ฉํŒ,์„๊ณ ๋ณด๋“œ ์œ„ ์ˆ˜์„ฑํŽ˜์ธํŠธ (๋ฐ”๋‹ฅ)T5SPC flooring,์ „ํ†ตํ•œ์ง€์žฅํŒ ์œ„ ์˜ป์น  2ํšŒ๋งˆ๊ฐ (์ฒœ์žฅ)์žฅ์„  ๋…ธ์ถœ, ๊ณจํ•จ์„ํŒ

์„ค๊ณ„๊ธฐ๊ฐ„:2020.04..2020.12. ์‹œ๊ณต๊ธฐ๊ฐ„:2021.05.~.2022.02.

78 ๋ฐฐ์น˜๋„_์ „์ฒด
79 ๋ชธ-์ง‘๊ณผ ๋””์Šคํ—› ์‚ฌ์ด ๋งˆ๋‹น
80
81 ๋””์Šคํ—›(์ขŒ)๊ณผ ๋ชธ-์ง‘(์šฐ) ์‚ฌ์ด ๋งˆ๋‹น๊ณผ ์ค‘๊ฐ„์˜์—ญ์˜ ๋ฐํฌ์™€ ํ—ˆ์ˆ˜์•„๋น„ ์กฐํ˜•๋ฌผ
82 ์ž…๋ฉด๋„
83 ์ž…๋ฉด๋„
84 ๋””์Šคํ—›์˜ ์ƒ์ง•

๋””์Šคํ—›_๋‚ด๊ฐ€ ์ง€์€ ๋‚˜์˜ ์ง‘

๊ธ€. ์ด์ข…๊ฑด ๊ฑด์ถ•๊ฐ€, ์ž‘๊ฐ€

๊ฒฐ์ฝ” ์–ด์šธ๋ฆด ์ˆ˜ ์—†๊ณ  ์•ˆ์ฐฉํ•  ์ˆ˜

์—†๋Š” ๋‚จ์˜ ๊ณต๊ฐ„์— ๋ชธ๊ณผ ์ •์‹ ์˜ ์ผ์ • ๋ถ€๋ถ„์„ ๊ณต๋ฌผ๋กœ ๋ฐ”์ณ๊ฐ€๋ฉฐ ์ด๋ฆฌ์ €๋ฆฌ โ€˜๋ผ์›Œ ๋งž์ถฐโ€™ ์‚ด๋‹ค๊ฐ€ ๋งˆ์นจ๋‚ด ํ•˜๋Š˜์ด ๋•Œ๋ฅผ ์ฃผ์‹œ๋งค ๋‚˜๋งŒ์˜ ์ง‘์„ ์ง€์—ˆ๋‹ค. ์ฒœ์ƒ์ฒœํ•˜ ์œ ์•„๋…์กด. ๊ณง ๋‚˜(์™€ ๋ชจ๋“  ๊ฐœ๋ณ„์ž)๋Š” ์กด๊ท€ํ•œ ์กด์žฌ์ด๋‹ˆ, ๊ทธ๋ฆฌ๊ณ  โ€˜์ˆ˜์ฒ˜์ž‘์ฃผ ์ž…์ฒ˜๊ฐœ์ง„(้šจ่™•ไฝœไธป ็ซ‹่™•็š†็œž)โ€™์ด๋‹ˆ, ๊ทธ๋ฆฌํ•ด์•ผ ๋‚˜๋งŒ์˜ ์‚ถ์„ ์ œ๋Œ€๋กœ ์‚ด ์ˆ˜ ์žˆ๊ธฐ ๋•Œ๋ฌธ์ด๋‹ค. ์ƒ์‚ฐ๋ถ€ํ„ฐ ์ฒ˜๋ถ„๊นŒ์ง€ ์˜ค์ง ์‹œ์žฅ ๋…ผ๋ฆฌ์— ๋”ฐ๋ฅด๋Š” ์ง‘-์ƒํ’ˆ1)์˜ ์ฃผ์ธ์€ ์ž๋ณธ์ด์ง€ โ€˜๋‚ด(์šฐ๋ฆฌ)โ€™๊ฐ€ ์•„๋‹ˆ๊ธฐ ๋•Œ๋ฌธ์ด๋‹ค.

๋™๋ฌผ์€ ์ œ์ง‘์„ ์Šค์Šค๋กœ ์ง“๋Š”๋‹ค. ์šฐ๋ ์ด๊ฐ€ ๊ทธ๋ ‡๋“ฏ ๋ฏธ๋ฌผ๋„ ์ œ์ง‘์ด ์žˆ๋‹ค. ๊ทธ๋Ÿฐ๋ฐ ์ธ๊ฐ„์€ ์™œ ๊ทธ๋ ‡์ง€ ์•Š์€๊ฐ€? ๋ถˆ๊ณผ ๋ฐ˜๋ฐฑ ๋…„ ์ „๋งŒ ํ•ด๋„ ์ง€๊ธˆ๊ณผ ๋‹ฌ๋ž๋‹ค. ๋•…์ด ์—†์œผ๋‹ˆ ๊ฐœ์ฒœ ์œ„๋ผ๋„, ๋ˆ์ด ์—†์œผ๋‹ˆ ์ฃผ์›Œ ์˜จ ํŒ์ž๋กœ๋„ ์ œ์ง‘์„ ์ œ ์†์œผ๋กœ ์ง€์—ˆ๋‹ค. ๊ทธ๋Ÿฐ๋ฐ ์„ธ์›”์ด ํ๋ฅด๊ณ  ๊ตญ๊ฐ€๊ถŒ๋ ฅ์ด ํ™•์žฅ๋˜๋ฉด์„œ ๋ฌธ๋ช…์ด๋ผ๋Š” ์ด๋ฆ„์œผ๋กœ ์ „๋ฌธ๊ฐ€๋“ค๊ณผ ๋ฒ•๋“ค๊ณผ ์ œ๋„๋“ค๊ณผ ๊ด€๋ฃŒ๋“ค์„ ๋งŒ๋“ค์–ด ์ œ๊ฐ€ ์‚ฌ๋Š” ์ œ์ง‘์ด๊ฑด๋งŒ ํ†ต์ œํ•˜๊ณ  ๊ทœ์ œํ•ด ๊ทธ๋ฆฌํ•  ์ˆ˜ ์—†๊ฒŒ ๋งŒ๋“ ๋‹ค. ์„ฑ์ธ ํ˜ผ์ž ์‚ฌ๋Š” ์ง‘์ด๊ฑด๋งŒ, ์ง‘์˜ ๋‚œ๊ฐ„๊นŒ์ง€ ๊ทœ์ œํ•œ๋‹ค. ๋‚˜์—๊ฒŒ ์ง‘์€ ๋‚ด๋ฐ€์„ฑ(์ธ๊ฐ„์„ ์ธ๊ฐ„๋‹ต๊ฒŒ ๋งŒ๋“œ๋Š” โ€˜์‚ฌ๋ž‘โ€™์ด ๊ฐ€์žฅ

๊ทธ๋ ‡๋‹ค) ํ˜น์€ ํ”„๋ผ์ด๋ฒ„์‹œ์˜

์ตœ์ข… ๋ฒ™์ปค๋‹ค. ๊ทธ๋Ÿฐ ๊นŒ๋‹ญ์— ๋‚ด๊ฐ€

์žˆ๋“  ์—†๋“  ๋‚ฏ์„  ์ด๊ฐ€ ์ฐฝ๋ฌธ์„

๊นจ๋œจ๋ ค ์นจ์ž…ํ•  ํฌ๊ธฐ์˜ ๊ฐœ๊ตฌ๋ถ€๋ฅผ ๊ฐ€์ง„ ์ง‘์€ ๋‚˜์—๊ฒŒ ์ง‘์ด ์•„๋‹ˆ๋‹ค. ๋ชจ๋ฆ„์ง€๊ธฐ ์ง‘์ด๋ž€, ์‹œ์„ ์„ ํฌํ•จํ•ด ๋ˆ„๊ตฌ์˜ ๊ฐ„์„ญ์ด๋‚˜ ์นจ์ž…๋„ ๋ถˆํ—ˆํ•˜๋Š”

1) ์šฐ๋ฆฌ์˜ ์‚ถ์€ ์ƒํ’ˆ ๋ฒ”๋ฒ…์ด๋‹ค. ์˜ท๋„ ๋ฐฅ๋„ ์ง‘๋„ ์ƒํ’ˆ์ด๋ฉฐ, ์ถœ์ƒ๋„ ํ˜ผ๋ก€๋„ ์žฅ๋ก€๋„ ์ƒํ’ˆ ์˜๋ก€๋‹ค. ์š•๋ง๋„ ์ž์œ ๋„, ๋‹ค์†Œ ๊ทน์ ์œผ๋กœ ๋งํ•˜์ž๋ฉด ์ƒ์กด๋งˆ์ € ์ƒํ’ˆ์œผ๋กœ์จ๋งŒ ๊ฐ€๋Šฅํ•˜๋‹ค. ์ƒํ’ˆ ์—†์ด๋Š” ํ•˜๋ฃจ๋„, ์•„๋‹ˆ ๋ฐ˜๋‚˜์ ˆ๋„ ๋ฒ„ํ‹ฐ๊ธฐ ์–ด๋ ต๋‹ค. ํŽธ๋ฆฌ์™€ ํšจ์œจ๊ณผ ๊ฐ๊ฐ์— ์ค‘๋…๋œ ์šฐ๋ฆฌ๋Š” ๊ทธ๋ ‡๊ฒŒ ์†Œ๋น„์ž๋กœ

์ „๋ฝํ•ด, ์šฐ๋ฆฌ ์ž์‹ ๋ฟ ์•„๋‹ˆ๋ผ ์šฐ๋ฆฌ์˜ ์‚ถ์˜ ํ„ฐ์ด์ž ํ™˜๊ฒฝ์ธ ์ง€๊ตฌ์˜ ๊ฑด๊ฐ•๋„ ํ•ด์นœ๋‹ค(์ƒํ’ˆ์ด ๊ฒจ๋ƒฅํ•˜๋Š” ๊ฒƒ์€ ํŒ๋งค์ž์˜ ์ด์œค์ด์ง€ ์†Œ๋น„์ž์˜

๊ฑด๊ฐ•์ด ์•„๋‹ˆ๋‹ค). ๊ทธ๋Ÿด ๋ฟ ์•„๋‹ˆ๋ผ ์‚ถ์˜ ๋ณธ์งˆ๋„

๋†“์นœ๋‹ค. ์˜ท ์ง“๊ณ  ๋ฐฅ ์ง“๊ณ  ์ง‘ ์ง“๋Š” ๋Šฅ๋ ฅ, ๊ทธ๋ฆฌ๊ณ 

๊ทธ๋Ÿฌํ•œ ํ–‰์œ„๊ฐ€ ์ฃผ๋Š” ์˜๋ฏธ์™€ ๊ธฐ์จ์„ ์ƒ์‹คํ•œ๋‹ค.

๋‚œ๊ณต๋ถˆ๋ฝ์˜ ์„ฑ์ฑ„๋ผ์•ผ ๋งˆ๋•…ํ•˜๋‹ค. ๋‚˜์—๊ฒŒ ์ง‘์€ ๋˜ํ•œ ์˜ํ˜ผ์˜ ๊ฑฐ์ฒ˜๋‹ค. ๊ทธ๋Ÿฌ๋ฏ€๋กœ ์ง‘์ง“๊ธฐ๋Š” ๋‚˜์˜ ์˜ํ˜ผ์„ ๋‘๋ฃจ๋‘๋ฃจ ์ฑ™๊ธฐ๋Š” ์ฒœํ˜œ์˜ ๊ธฐํšŒ๋‹ค. ํ˜„์‹ค์— ๋งž์ถฐ ์‚ฌ๋А๋ผ ์˜ค๋ž˜์˜ค๋ž˜ ์žŠ๊ณ  ์žˆ๋˜, ๊นŠ์€ ๋‚ด๋ฉด์— ๋Š˜ ์›…ํฌ๋ฆฌ๊ณ  ์žˆ๋Š” ํƒœ์ดˆ(ํ˜น์€ ์ตœ์ดˆ)์˜ ์ง‘์˜ ๊ธฐ์–ต๊ณผ ์ƒˆ์ง‘์—์„œ ์‚ด์•„๊ฐˆ ์ƒˆ๋กœ์šด ์‚ถ์— ๋Œ€ํ•œ ์ƒ์ƒ์„ ์ง€๊ธˆ์—ฌ๊ธฐ์˜ ํ˜•ํŽธ์— ๋งž์ถฐ ๊ตฌํ˜„ํ•˜๋Š” ์ผ์ธ ๊นŒ๋‹ญ์— ๊ทธ๋ ‡๋‹ค. ์ง‘์ง“๊ธฐ๊ฐ€ ๋‚ด๊ฐ€ ํฌ๋งํ•˜๋Š” ๊ถ๊ทน์˜ ์‚ถ์„ ์ง์กฐํ•˜๋Š” ์ผ์ด๋ผ๋ฉด, ๊ทธ๋ฆฌ๊ณ  ๊ทธ๋กœ์จ ๋‚ด ์˜ํ˜ผ์— ์ •์งํ•˜๊ฒŒ ์‘๋‹ตํ•˜๋Š” ์ผ์ด๋ผ๋ฉด, ๊ทธ๋ ‡๊ฒŒ ์ง“์ง€ ์•Š์€ ์ง‘์€, ์—„๋ฐ€ํžˆ ๋งํ•ด ์ง‘์ด๋ผ๊ณ  ํ•  ์ˆ˜ ์—†๋‹ค. ๊ทธ๋Ÿฐ๋ฐ ๋‚˜๋Š” ์—ฌ์ „ํžˆ ๋‚˜์˜ ์˜ํ˜ผ์ด ํก์กฑํ•  ์ง‘์— ๋Œ€ํ•ด ์ž˜ ๋ชจ๋ฅธ๋‹ค. ์ง‘์„ ๋ง ๊ทธ๋Œ€๋กœ ์‚ถ๊ณผ ์ฃฝ์Œ์˜ ์ฃผ์ œ๋กœ ์‚ผ์•˜๋˜ ์†Œํฌ๋ผํ…Œ์Šค๊ฐ€ ์ž์‹ ์˜ ์ง„์ •ํ•œ ์ง‘์„ ์ฐพ๊ธฐ ์œ„ํ•ด ์ผ์ฐ์ด ๋ฌผ์—ˆ๋˜, ๊ทธ๋ฆฌ๊ณ  ์ง€๊ธˆ๋„ ๋งŽ์€ ์ˆ˜ํ–‰์ž๋“ค์ด ํƒ๋ฌธํ•˜๋Š”, โ€˜๋‚ดโ€™๊ฐ€ ๋ˆ„๊ตฌ์ธ์ง€ ํ˜น์€ ๋ฌด์—‡์ธ์ง€ ๋ชจ๋ฅด๊ธฐ ๋•Œ๋ฌธ์ด๋‹ค. ๊ทธ๋Ÿฐ ์ ์—์„œ ์šฐ๋ฆฌ ๋ชจ๋‘ ์ง€๊ธˆ โ€˜์ง‘์ด ์—†๋Š” ์‚ฌ๋žŒโ€™๋“ค์ด๋‹ค. ๊ทธ๋Ÿฌ๋‹ˆ ๋ฆด์ผ€์˜ ์‹œ์  ๋ช…๋ น์— ๋”ฐ๋ผ โ€˜์ง€๊ธˆโ€™, ๊ทธ๋Ÿฌ๋‹ˆ๊นŒ ์ธ๊ฐ„์ด ๋ฐœ๋ช…ํ•œ ์ง„๋ฆฌ์— ์ ‘๊ทผํ•˜๋Š” ์ตœ์ƒ์˜ ๊ธธ์ธ ๊ณผํ•™์ด ๊ทธ๋ฆฌํ•ด ์™”๋“ฏ, ๋‚˜์ค‘์— ๊ณ ์น˜๊ฑฐ๋‚˜ ํ—ˆ๋ฌผ๊ณ  ๋‹ค์‹œ ์ง“๋”๋ผ๋„, ์ •์‹ ์ด ์‡ ๋ฝํ•ด ์›€๋ง‰๋งˆ์ € ์ง€์„ ํž˜์ด ๋‹ค ๋น ์ ธ๋‚˜๊ฐ€๋Š” ์ธ์ƒ์˜ ๊ฒจ์šธ์ด ์˜ค๊ธฐ

ARCHITECT'S ESSAY

85
์—์„ธ์ด
86 ๋””์Šคํ—› ์Šค์ผ€์น˜ โ’ธ์ด์ข…๊ฑด

์ „์—, ํ˜น์€ ๋” ์ ˆ๋ฐ•ํ•˜๊ฒŒ, ์šฐ๋ฆฌ์ž์‹ ์˜

์ฃฝ์Œ์ด ๋А๋‹ท์—†์ด ๋“ค์ด๋‹ฅ์น˜๊ธฐ ์ „์—

์†ํžˆ ์ž์‹ ์˜ ์ง‘์„ ์ง€์–ด์•ผ ํ•  ๊ฒƒ์ด๋‹ค.

๊ทธ๋ฆฌํ•ด์•ผ๋งŒ ์ง„์งœ ์ค‘์š”ํ•œ ๋ฌด์—‡์„

๋†“์ณค๋Š”์ง€ ๊ทธ ๋•Œ์•ผ ์‹ค๊ฐํ•  ์ˆ˜ ์žˆ์œผ๋ฉฐ, ๊ทธ๋กœ์จ ๋‹ค์Œ์— ์ง€์„ ํ–‰์šด์ด ํ–‰์—ฌ ๋˜

์˜จ๋‹ค๋ฉด ๊ทธ ๋•Œ๋Š” ํ•œ ์น˜๋‚˜๋งˆ ๋” ๋‚ซ๊ฒŒ

์ง€์„ ์ˆ˜ ์žˆ๊ธฐ ๋•Œ๋ฌธ์ด๋‹ค.

๊ทธ๋ ‡๋‹ค๋ฉด ๋‚˜์˜ ์˜ํ˜ผ์˜ ์š”๊ตฌ์—

๋ถ€์‘ํ•˜๋Š” ๊ณต๊ฐ„์˜ ํ˜•์‹์€ ๋ฌด์—‡์ธ๊ฐ€? ๊ทธ๊ฒƒ์€ ์ผ์ƒ์— ์กฐ์ง๊ณผ ๋งž๋ฌผ๋ฆฐ๋‹ค. ์ผ์ƒ์€ ์‚ถ์˜ ๊ทผ๊ฐ„์ด๋‹ค. ์ธ๊ฐ„์ ์œผ๋กœ

์‚ด๊ธฐ ์œ„ํ•ด์„œ๋Š” ์ธ๊ฐ„์ ์ธ ์ผ์ƒ์„, ์‹ ์ ์ธ ์‚ถ์„ ์‚ด๊ธฐ ์œ„ํ•ด์„œ๋Š” ์‹ ์ ์ธ ์ผ์ƒ์„, ์ตœ๊ณ ์˜ ์‚ถ์„ ์‚ด๊ธฐ ์œ„ํ•ด์„œ๋Š” ์ตœ๊ณ ์˜ ์ผ์ƒ์„ ์‚ด์•„์•ผ ํ•œ๋‹ค. ๋ฐ˜๋ณต์€ ์Šต๊ด€์„ ๋‚ณ๊ณ , ์Šต๊ด€์€ ์„ฑ๊ฒฉ์„ ํ˜•์„ฑํ•˜๋ฉฐ, ์„ฑ๊ฒฉ์€ ์šด๋ช…์„ ์ขŒ์šฐํ•œ๋‹ค. ํ›„๋งˆ๋‹ˆํƒ€์Šค๋ž€ ๋ฌผ๋ฆฌ(์ค‘๋ ฅ๊ณผ ํ•„์—ฐ์„ฑ)์— ์ €ํ•ญํ•˜๋Š” ์ •์‹ ์˜ ํ•จ์–‘์ธ๋ฐ, ๊ทธ ํ•œ ๊ฐˆ๋ž˜์ธ ์ผ์ƒ์˜ ์˜๋ก€ํ™”๋Š” ๋ชธ๊ณผ ์‚ฌ๋ฌผ์„ ๋‹ค์Šค๋ ค ์‚ถ์„ ์˜ˆ์ˆ ๋กœ ๋Œ์–ด์˜ฌ๋ฆฌ๋Š” ํ–‰๋™์–‘์‹์ด๋‹ค. ๊ธฐ๊ณ„์  ๋ฐ˜๋ณต์ด ์•„๋‹ˆ๋ผ, ๋งˆ์น˜ ์ตœ๊ณ ์˜ ๊ฒ€๊ฐ์ด ๋˜๊ธฐ ์œ„ํ•ด ์ •์‹ ์„ ์ง‘์ค‘ํ•ด ๊ฑฐ๋“ญ ์—ฐ์Šตํ•˜๋Š” ๋ฌด์‚ฌ์˜ ๋™์ž‘์ฒ˜๋Ÿผ. ํ˜น์€ ๋งˆ์น˜ ๋•Œ์™€ ์žฅ์†Œ์— ์•Œ๋งž์€ ์ตœ์ ์˜ ๋‚˜๋ฌด๋ฅผ ๊ณจ๋ผ ์ง€๊ธˆ๊นŒ์ง€ ๋“ค์–ด ๋ชธ์— ์ƒˆ๊ธด, ๊ทธ๋ฆฌ๊ณ  ์ง€๊ธˆ์˜ ํ–‰๋™์— ๋ฐ˜์‘ํ•˜๋ฉฐ ๋งํ•˜๋Š” ๋‚˜๋ฌด ์ด์•ผ๊ธฐ์— ๊ท€ ๊ธฐ์šธ์—ฌ ๋ฌด์–ธ๊ฐ€๋ฅผ ์ œ์ž‘ํ•˜๋Š” ์žฅ์ธ(ๅŒ ไบบ)์ฒ˜๋Ÿผ. ์ปคํ”ผ๋“  ์ƒ๋Ÿฌ๋“œ๋“  ์ƒค์›Œ๋“ , ๋ณ€ํ™”ํ•˜๋Š” ๋น›๊ณผ ๊ณต๊ธฐ์™€ ํ’๊ฒฝ์— ์กฐ์‘ํ•˜๋Š” ๋ชธ ์ด์•ผ๊ธฐ์— ๊ท€ ๊ธฐ์šธ์—ฌ, ์‚ถ์˜ ๋งˆ์ง€๋ง‰ ์ปคํ”ผ, ๋งˆ์ง€๋ง‰ ์ƒ๋Ÿฌ๋“œ, ๋งˆ์ง€๋ง‰ ์ƒค์›Œ์ธ ๋“ฏ, ๊ทธ๋ ‡๊ฒŒ ์ฃผ๋ณ€์˜ ์˜จ๋‹นํ•œ ์‚ฌ๋ฌผ๋“ค์„ ์ •ํ™•ํžˆ ์กฐ์œจํ•ด ์ผ์ƒ ํ–‰์œ„๊ฐ€ ๋น›๋‚˜๋Š” ์‚ถ์˜ ์ˆœ๊ฐ„์ด ๋˜๋„๋ก ๋งŒ๋“ค์–ด ๋งŒ๋ฌผ๊ณผ ์ž์‹ ์„ ์ฐฌ์–‘ํ•˜๋Š”, ๊ทธ๋Ÿฐ ๋ฐ˜๋ณต. ํ˜น์€ ๊ทธ๋Ÿฐ ์ •์‹ ์˜ ๊ธฐ์˜ˆ โ€œ์‚ถ์ด๋ผ๋Š” ์˜ˆ์ˆ ์˜

๋Œ€๊ฐ€๋Š” ์ผ๊ณผ ๋†€์ด, ๋…ธ๋™๊ณผ ์—ฌ๊ฐ€, ์ •์‹ ๊ณผ ๋ชธ, ๊ต์œก๊ณผ ๋ ˆํฌ๋ฆฌ์—์ด์…˜,

์‚ฌ๋ž‘๊ณผ ์ข…๊ต ๋“ฑ์„ ๊ฑฐ์˜ ๊ตฌ๋ณ„ํ•˜์ง€

์•Š๋Š”๋‹ค. ๊ทธ๋Š” ์–ด๋–ค ๊ฒƒ์ด ์–ด๋–ค

๊ฒƒ์ธ์ง€ ๊ฑฐ์˜ ๋ชจ๋ฅด๋ฉฐ, ์ž์‹ ์ด ์ผํ•˜๊ณ 

์žˆ๋Š”์ง€ ๋†€๊ณ  ์žˆ๋Š”์ง€ ๋‹ค๋ฅธ ์‚ฌ๋žŒ๋“ค์ด ๊ฒฐ์ •ํ•˜๋„๋ก ๋‚ด๋ฒ„๋ ค๋‘” ์ฑ„ ๋ฌด์—‡์„ ํ•˜๋“ 

์ž์‹ ์ด ์ƒ์ƒํ•˜๋Š” ํƒ์›”์„ฑ์„ ์ซ’๋Š”๋‹ค.โ€

์„๊ฐ€๋ชจ๋‹ˆ์˜ ๋ง์”€์ด๋‹ค.

๋ฌด๋ฆ‡ ์ƒ๋ช… ์žˆ๋Š” ๊ฒƒ์€ ๋ชจ๋‘ โ€˜๋”๋ถˆ์–ดโ€™

์‚ฐ๋‹ค. ์„ธํฌ๊ฐ€ ๊ทธ๋ ‡๋“ฏ, ๊ณ ๋ฆฝ๋œ ์ฑ„ ํ™€๋กœ

์‚ด ์ˆ˜ ์žˆ๋Š” ์ƒ๋ช…์€ ์—†๋‹ค. ๊ทธ๋Ÿฌ๋‹ˆ ์‚ถ์€ ์–ด๋–ค ์‹์œผ๋กœ๋“  โ€˜๊ด€๊ณ„โ€™๋กœ ์ง€ํƒฑ๋˜๋Š”๋ฐ, ๋‚˜์˜ ์ผ์ƒ์„ ์ˆ˜ํ–‰ํ•˜๋Š” ๊ฑฐ์ฒ˜๋Š” ์ˆ˜ํ‰๊ณผ ์ˆ˜์ง์˜ ํ˜•์‹์œผ๋กœ ๊ทธ ์—ฌ์ง€๋ฅผ ๋งˆ๋ จํ•œ๋‹ค. ์ˆ˜ํ‰์˜ ํ˜•์‹์œผ๋กœ๋Š” ๋‚˜์™€ ์ด์›ƒ์„, ์ˆ˜์ง์˜ ํ˜•์‹์œผ๋กœ๋Š” ๋‚˜์™€ ๋•…๊ณผ ํ•˜๋Š˜์„ ์ž‡๊ฑฐ๋‚˜ ๋Š๋Š”๋‹ค. ์ „ํ†ต๋งˆ์„์˜ ๋Œ€๋ฉด์‚ฌํšŒ์˜ ์ง‘์ด ๊ณต๋™์ฒด์˜ ํ•œ ๋ถ€๋ถ„์ด๋ผ๋ฉด, ๊ทธ๋ž˜์„œ ๊ฐœ์ธ์ด ์ด์›ƒ๊ณผ ์‹ค์„ ์˜ ๊ด€๊ณ„๋ผ๋ฉด, ํ˜„๋Œ€๋„์‹œ์˜ ์ต๋ช…์‚ฌํšŒ์˜ ์ง‘๊ณผ ๊ฐœ์ธ์€ ์ด์›ƒ๊ณผ ๊ธฐ๊ปํ•ด์•ผ ์ ์„ ์˜ ๊ด€๊ณ„์ด๊ฑฐ๋‚˜ ๋ฌด๊ด€๊ณ„๋‹ค. ๋•…๊ณผ ํ•˜๋Š˜๋„ ๊ทธ๋ ‡๋‹ค. ์ „ํ†ต์‚ฌํšŒ์˜ ์ง‘์˜ ๋งˆ๋‹น์ด ์ž์—ฐ์˜ ์—ฐ์žฅ์ด๋ผ๋ฉด, ๋Œ€๋„์‹œ์˜ ์ง‘์€ ์ฒ ์ €ํžˆ ์ธ๊ณต์ด๋‹ค. ์˜›์ง‘๊ณผ ๊ถ์ด ๋น„์™€ ๋ˆˆ์— ์‘๋Œ€ํ•˜๋Š” ํ˜•ํƒœ์™€ ๋ฒฝ์‚ฌ(้—ข้‚ช)์˜ ์ƒ์ง•์„ ๋ค ์ง€๋ถ•์„ ๊ฐ€์กŒ๋‹ค๋ฉด, ์ฒ˜๋งˆ๊ฐ€ ์—†๋Š” ํ˜„๋Œ€์˜ ์ง‘์€ ์ง€๋ถ•์ด๋ผ๊ธฐ๋ณด๋‹ค ๋šœ๊ป‘์œผ๋กœ ๋ฎ์˜€๋‹ค. ํ˜„๋Œ€์‚ฌํšŒ์™€ ์ „ํ†ต์‚ฌํšŒ๋Š” ์–‘์˜์™€ ํ•œ์˜๊ฐ€ ์„œ๋กœ์˜ ๋นˆ ๊ณณ์„ ๋ณด์ถฉํ•˜๋“ฏ, ์ƒํ˜ธ๊ต์„ญํ•˜๊ฑฐ๋‚˜ ์ง€์–‘ํ•  ์ˆ˜ ์žˆ๋Š” ์—ฌ์ง€๊ฐ€ ์—ฌ์ „ํžˆ ์กด์žฌํ•  ๋ฟ ์•„๋‹ˆ๋ผ ๊ทธ๋ฆฌํ•˜๋Š” ๊ฒƒ์ด ์˜จ๋‹นํ•˜๋‹ค. ์šฐ์„  โ€œ์šฐ๋ฆฌ๋Š” ์ ˆ๋Œ€์ ์œผ๋กœ ํ˜„๋Œ€์ ์ด์–ด์•ผ ํ•œ๋‹ค.โ€๊ณ  ์ฃผ์žฅํ•œ ์ฒœ์žฌ์‹œ์ธ ๋žญ๋ณด(Arthur Rimbaud)์ฒ˜๋Ÿผ ์ฒ ์ €ํžˆ ํ˜„๋Œ€์ ์ด์–ด์•ผ ํ•˜์ง€๋งŒ, ๋…ธ๋ฒจ์ƒ์„ ์ˆ˜์ƒํ•œ ์–‘์ž๋ฌผ๋ฆฌํ•™์ž ๋ณด์•„(Niels Bohr)๊ฐ€ ๋‹น๋Œ€์— ๋ฏธ์‹ ์œผ๋กœ ๊ฐ„์ฃผ๋˜๋˜ ์ „ํ†ต์‚ฌํšŒ์˜ ์ง€ํ˜œ๋ฅผ ์ˆ˜์šฉํ•œ ๊ฒƒ์ฒ˜๋Ÿผ, ๋†’์€ ์ˆ˜์ค€์—์„œ ๊ทธ๋ฆฌํ•ด์•ผ ํ•œ๋‹ค. ๋ณด์•„๋Š” ์ž์‹ ์˜ ์ง‘ ๋Œ€๋ฌธ ์œ„์— ํ–‰์šด์„ ๋ถˆ๋Ÿฌ๋“ค์ด๋Š” ๋งํŽธ์ž๋ฅผ ๊ฑธ์–ด

๋‘ ์œผ๋กœ์จ, ์ด์„ฑ์ด ์ ‘๊ทผํ•  ์ˆ˜ ์—†๋Š”

์˜์—ญ์— ๋Œ€ํ•ด ๊ฐœ๋ฐฉ์ ์ด์—ˆ๋‹ค.

๋Œ€๋ฉด์‚ฌํšŒ๋Š” ๊ณต๋™์ฒด์˜ ์ด๋ฆ„์œผ๋กœ

๊ฐœ์ธ์ด, ์ ์–ด๋„ ๋ฒ•์ด ํ—ˆ๋ฝํ•˜๋Š” ๋ฒ”์œ„

์•ˆ์—์„œ, ์ž์‹ ์˜ ์‚ถ์„ ๋งˆ์Œ๊ป ํŽผ์น˜๊ณ 

์ž์œ ๋กญ๊ฒŒ ์‚ด ์—ฌ์ง€๋ฅผ ๋ฐ•ํƒˆํ•œ๋‹ค.

ํ˜ˆ์กฑ์ธ ๋ถ€๋ชจ๋‚˜ ํ˜•์ œ๋„ ๋•Œ๋•Œ๋กœ

โ€˜์‚ฌ๋ž‘โ€™์ด๋ผ๋Š” ์ด์œ ๋กœ ๊ทธ๋ฆฌํ•œ๋‹ค.

์˜ˆ์ˆ˜๋Š” ์ด๋ ‡๊ฒŒ ์„ ํฌํ•œ๋‹ค. โ€œ๋‚ด๊ฐ€ ๋•…

์œ„์— ํ™”ํ‰์„ ์ฃผ๋Ÿฌ ์˜จ ์ค„ ์ƒ๊ฐํ•˜์ง€

๋ง๋ผ. ๋‚˜๋Š” ํ™”ํ‰์„ ์ฃผ๋Ÿฌ ์˜จ ๊ฒƒ์ด

์•„๋‹ˆ๋ผ ์นผ์„ ์ฃผ๋Ÿฌ ์™”๋…ธ๋ผ. ๋‚ด๊ฐ€ ์˜จ ๊ฒƒ์€ ์‚ฌ๋žŒ์ด ๊ทธ ์•„๋ฒ„์ง€์™€, ๋”ธ์ด ๊ทธ ์–ด๋จธ๋‹ˆ์™€, ๋ฉฐ๋А๋ฆฌ๊ฐ€ ๊ทธ ์‹œ์–ด๋จธ๋‹ˆ์™€ ์„œ๋กœ ๋Œ€์ ํ•˜๊ฒŒ ํ•˜๋ ค ํ•จ์ด๋‹ˆ๋ผ. ์‚ฌ๋žŒ์˜ ์›์ˆ˜๋“ค์€ ๊ทธ์˜ ๊ฐ€์กฑ ์ค‘์— ์žˆ์œผ๋ฆฌ๋ผ.โ€ ๋‚˜๋ฅผ ์กด๊ท€ํ•˜๊ฒŒ ๋Œ€ํ•˜๋Š” ์ž๋Š” ์ฐธ์œผ๋กœ ๋“œ๋ฌผ๊ณ  ๋“œ๋ฌผ๋‹ค. ์šฐ๋ฆฌ ๋ชจ๋‘ ์ง€ํ˜œ๋กญ์ง€ ์•Š์„ ๋ฟ ์•„๋‹ˆ๋ผ ํฌ๋“  ์ ๋“  ์ธ๊ฒฉ์ ์œผ๋กœ ๊ฒฐํ•จ์ด ์žˆ๊ธฐ ๋•Œ๋ฌธ์ด๋‹ค. ๋”ฐ๋ผ์„œ ๋‚˜๋Š” โ€˜๊ฑฐ๋ฆฌโ€™๋ฅผ ํ†ตํ•ด ์ˆ˜ํ‰์˜ ๊ด€๊ณ„๋ฅผ ๋งบ๋Š”๋‹ค. ์ด์›ƒ๊ณผ ๊ฑฐ๋ฆฌ๋ฅผ ๋‘”๋‹ค. ๋‚˜์˜ ์ˆ˜ํ‰์  ๊ด€๊ณ„์˜ ์ „๋žต์˜ ํ•ต์‹ฌ์€ ํ•œ ๋งˆ๋””๋กœ ์ด๊ฒƒ์ด๋‹ค. โ€œ์‚ฌ๋ž‘ํ•  ๋Šฅ๋ ฅ์ด ์žˆ๊ฑฐ๋“  ๋จผ์ € ๋„ˆ ์ž์‹ ์„ ์‚ฌ๋ž‘ํ•˜๋ผ.โ€(์ฐฐ์Šค ๋ถ€์ฝ”์Šคํ‚ค) ์„๊ฐ€๋ชจ๋‹ˆ๋Š” ์ด๋ ‡๊ฒŒ ๋งํ–ˆ๋‹ค. โ€œ๋„ˆ ์ž์‹ ์€ ์ „ ์šฐ์ฃผ์˜ ๋ˆ„๊ตฌ ๋ชป์ง€์•Š๊ฒŒ ๋„ˆ์˜ ์‚ฌ๋ž‘๊ณผ ์• ์ •์„ ๋ฐ›์•„ ๋งˆ๋•…ํ•˜๋‹ค. ๊ทธ๋Ÿฌ๋ฏ€๋กœ ์ง‘์ง“๊ธฐ ์ž‘์—…์€ ์ฒ ์ €ํžˆ ์ง‘์˜ ๊ฑฐ์ฃผ์ž์˜ ์›๋ง(้ก˜ๆœ›)์„ ๋ฌด์—‡๋ณด๋‹ค ์šฐ์„ ํ•œ๋‹ค. ๋ฒ•์ด ๊ทœ์ •ํ•˜๋Š” ์กฐ๊ฑด์— ์œ„๋ฐฐ๋˜์ง€ ์•Š๋Š” ํ•œ, ์ด์›ƒ์ด๋‚˜ ์ฃผ๋ณ€์˜ ์ง‘๋“ค์„ ๋ฐฐ๋ คํ•˜๋Š” ๊ฒƒ์€ ๊ทธ ๋‹ค์Œ ์ผ์ด๋‹ค. ํŠนํžˆ ๊ฑฐ์ฃผ์ž์˜ ์‚ฌ์  ๊ณต๊ฐ„์€ ๋ฌด์กฐ๊ฑด ๋ณดํ˜ธํ•˜๋Š”๋ฐ, ์ด์›ƒ์ด ์–ด๋””์„œ๋„ ๋‚ด๋ถ€๋ฅผ ๋ณผ ์ˆ˜ ์—†๋„๋ก, ๊ทธ๋ฆฌ๊ณ  ๊ทธ ๋ฐ˜๋Œ€๋„ ๊ทธ๋ ‡๋„๋ก ํ•œ๋‹ค. ์ฝ”๋กœ๋‚˜19์˜ ๋ฐœ๋ฐœ์ด ์ธ๊ฐ„๊ณผ ์ž์—ฐ ๊ฐ„์˜ ๋ถˆ์•ˆ์ •ํ•œ ๊ฒฝ๊ณ„, ํ˜น์€ ์ž์—ฐ์— ๋Œ€ํ•œ ์ธ๊ฐ„์˜ ๊ณผ๋„ํ•œ ์นจํƒˆ์ด ํฐ ์›์ธ์ด๋ผ๊ณ  ์ƒ๊ฐํ•˜๋Š” ๋‚˜๋Š”, ์ž์—ฐ๋„ ๋ถ„๋ช…ํ•œ ๊ฒฝ๊ณ„๋กœ ๊ฐ์ž์˜ ๋…๋ฆฝ์„ฑ์„

์œ ์ง€ํ•˜๋„๋ก ํ•œ๋‹ค. ์ธ๊ฐ„์ด ๊ฐœ์ž…ํ•œ ์ž์—ฐ์€, ๋งˆ์น˜ ๊ธธ๋“ค์ธ ๊ฐœ๊ฐ€ ์•ผ์ƒ์ด ์•„๋‹ˆ๋“ฏ, ์ž์—ฐ์ด ์•„๋‹ˆ๋‹ค. ๊ธฐ๊ปํ•ด์•ผ ์ธ๊ฐ„ํ™”๋œ ์ž์—ฐ์ด๋‹ค.

โ€œ์‚ฌ๋žŒ๋“ค์€ ์œ„๋ฅผ ์˜ฌ๋ ค๋‹ค๋ณด๋Š” ๊ฑธ ์žŠ๊ณ  ์‚ด์•˜์–ด. ์ˆ˜ํ‰์ ์œผ๋กœ๋งŒ ์‚ด์ง€. ์šฐ๋ฆฌ ๊ด€๊ณ„ ์†์—์„œ

๋ง์ด์•ผ.โ€ ํ—๊ฐ€๋ฆฌ์˜ ์˜ํ™”๊ฐ๋… ๋ฌธ๋“œ๋Ÿญ์ดˆ(Kornรฉl Mundruczรณ)๊ฐ€ ์ฃผํ”ผํ„ฐ์Šค ๋ฌธ(Jupiter' s Moon, 2017)์˜ ์ธ๋ฌผ์„ ํ†ตํ•ด ๋งํ•˜๋“ฏ,

87
88 ๋””์Šคํ—› ์Šค์ผ€์น˜_๊ท€๋ฉด์กฐ โ’ธ์ด์ข…๊ฑด

์ˆ˜์ง์˜ ๋„์‹œ์— ์‚ด๋“  ์ˆ˜ํ‰์˜ ์‹œ๊ณจ์—

์‚ด๋“ , ํ˜„๋Œ€์ธ์€ ์ˆ˜์ง์„ฑ์ด ์—†๋Š” ์‚ถ์„ ์‚ฐ๋‹ค. ์ธ๊ฐ„๊ด€๊ณ„์˜ ๊ทธ๋ฌผ์— ์–ฝํžˆ๊ณ  ๊ฐ์ข… ์ธ๊ฐ„์‚ฌ๋กœ ๋ถ„์ฃผํ•ด ์šฐ๋ฆฌ ์œ„ ์กด์žฌ๋ฅผ ์žŠ๊ณ  ์‚ฐ๋‹ค. ํ˜น์€ ๋„์™ธ์‹œํ•œ๋‹ค. ์‹œ์ธ ์™€์ผ๋“œ(Oscar Wilde)์˜ ๋ง์ฒ˜๋Ÿผ ๋ณ„ ํ˜น์€ ํ•˜๋Š˜์„ ๋ณด๋Š” ์‚ฌ๋žŒ์€ ๋ช‡ ์—†์œผ๋ฉฐ ๋Œ€๋ถ€๋ถ„

์‹œ๊ถ์ฐฝ์— ์‚ฐ๋‹ค. ๊ทธ๋Ÿฌ๋ฏ€๋กœ ๋‚˜์—๊ฒŒ

์ˆ˜์ง์„ฑ์€ ์ผ์ƒ์˜ ๊ฑฐ์ฒ˜์ธ ์ง‘ ๊ณต๊ฐ„์— ํŠนํžˆ ์ค‘์š”ํ•˜๋‹ค. ์•„๋ฌด๋ฆฌ ๊ฐ•๋„๊ฐ€ ๋†’์€ ๊ฒฝํ—˜์ด๋”๋ผ๋„ ์ผ์ƒ์— ํŽธ์ž…๋˜์ง€

์•Š์œผ๋ฉด ์–ด๋А์ƒˆ ํœ˜๋ฐœ๋˜์–ด ์‚ฌ๋ผ์ ธ

์‰ฌ์ด ๋ง๊ฐ๋˜๊ธฐ ๋•Œ๋ฌธ์ด๋‹ค. ๊ทธ๋Ÿฌ๋ฏ€๋กœ

๊ณ„๋‹จ์„ ๋ฐŸ๊ณ  ์œ„๋กœ ์˜ฌ๋ผ๊ฐˆ ๋•Œ ํŽธํ•˜์ง€

์•Š์€ ๋ฌผ์งˆ์„ฑ๊ณผ ๋น›์˜ ๋ณ€ํ™”์™€ ๋ชจ์ข…์˜

ํ˜•์ƒ์œผ๋กœ ๊ฐ๊ฐ๊ณผ ์ธ์‹์„ ๊นจ์›Œ, ์ž ์‹œ

๋‚˜๋ฅผ ์ดˆ์›”ํ•˜๋Š” ๋ฌด์—‡์„ ํ–ฅํ•  ์ˆ˜

์žˆ๋„๋ก ํ•œ๋‹ค.

๋‚˜๋ฅผ ๋„˜์–ด์„œ๋Š” ๊ฒƒ์€ ๊ณต๊ฐ„์ ์œผ๋กœ

์œ„์— ์žˆ๋Š” ๊ฒƒ๋“ค๋ฟ ์•„๋‹ˆ๋‹ค. ํ˜„์กดํ•˜๋Š”

๊ฒƒ์ด๋“  ๋ถ€์žฌํ•˜๋Š” ๊ฒƒ์ด๋“  ์ง€๊ธˆ์—ฌ๊ธฐ

์žˆ์ง€ ์•Š๋Š” ๊ฒƒ๊ณผ ๋‚ฏ์„  ์กด์žฌ๋Š” ๋ชจ๋‘

๋‚˜๋ฅผ ์ดˆ์›”ํ•œ๋‹ค. ์‹œ์ธ ์ง€๋ธŒ๋ž€(Kahlil

Gibran)์ฒ˜๋Ÿผ ์šฐ๋ฆฌ ๋˜ํ•œ ์ง‘์„, ์šฐ๋ฆฌ๋ฅผ ํ•œ ๊ณณ์— ๋ถ™๋ฐ•์•„ ์‚ด๊ฒŒ ํ•˜๋Š”

๋‹ป์ด ์•„๋‹ˆ๋ผ ๋‹ค๋ฅธ ๊ณณ๋“ค๋กœ ๋– ๋‚˜๊ฒŒ ํ•˜๋Š” ๋›์ด์–ด์•ผ ํ•œ๋‹ค๊ณ  ์ƒ๊ฐํ•œ๋‹ค๋ฉด, ์ง‘์€ ๋‚˜๋ฅผ ๋‹ค๋ฅธ ๊ณณ์œผ๋กœ ๋ฐ๋ ค๊ฐ€๊ธฐ์— ์ ์ ˆํ•œ ๊ณต๊ฐ„์ด์–ด์•ผ ํ•œ๋‹ค. ๋‚ด๊ฐ€ ์–ด๋”” ์žˆ๋“ , ๋‚˜๋ฅผ ๋‹ค๋ฅธ ์„ธ๊ณ„๋กœ ๋ฐ๋ ค๊ฐ€๋Š” ๊ฒƒ์€ ์Œ์•…๊ณผ ์˜ํ™”์™€ ํƒ€์ž์˜ ํ˜„์กด์ธ๋ฐ, ๊ทธ๋Ÿฐ ์ ์—์„œ ํ”ผ์ฒœ๋“ ์„ ์ƒ์˜ ์‹œ <์ด ์ˆœ๊ฐ„>์€ ์šฐ๋ฆฌ์˜ ์ผ์ƒ์— ๋ฐœ์ƒํ•ด์•ผ ๋งˆ๋•…ํ•˜๋‹ค. ์„ ์ƒ์€ ์ด๋ ‡๊ฒŒ ์ผ๋‹ค. โ€œ์ด ์ˆœ๊ฐ„ ๋‚ด๊ฐ€ /๋ณ„๋“ค์„ ์ณ๋‹ค๋ณธ๋‹ค๋Š” ๊ฒƒ์€ /๊ทธ ์–ผ๋งˆ๋‚˜ ํ™”๋ คํ•œ ์‚ฌ์‹ค์ธ๊ฐ€ //์˜ค๋ž˜์ง€ ์•Š์•„ /๋‚ด ๊ท€๊ฐ€ ํ™์ด ๋œ๋‹ค ํ•˜๋”๋ผ๋„ /์ด ์ˆœ๊ฐ„ ๋‚ด๊ฐ€ /์ œ 9๊ตํ–ฅ๊ณก์„ ๋“ฃ๋Š”๋‹ค๋Š” ๊ฒƒ์€ /๊ทธ ์–ผ๋งˆ๋‚˜ ์ฐฌ๋ž€ํ•œ ์‚ฌ์‹ค์ธ๊ฐ€ //๊ทธ๋“ค์ด ๋‚˜๋ฅผ ์žŠ๊ณ  /๋‚ด ๊ธฐ์–ต ์†์—์„œ ๊ทธ๋“ค์ด ์—†์–ด์ง„๋‹ค ํ•˜๋”๋ผ๋„ /์ด ์ˆœ๊ฐ„ ๋‚ด๊ฐ€ /์นœ๊ตฌ๋“ค๊ณผ ์›ƒ๊ณ  ์ด์•ผ๊ธฐํ•œ๋‹ค๋Š” ๊ฒƒ์€ /๊ทธ ์–ผ๋งˆ๋‚˜ ์ฆ๊ฑฐ์šด ์‚ฌ์‹ค์ธ๊ฐ€ //๋‘๋‡Œ๊ฐ€ ๊ธฐ๋Šฅ์„ ๋ฉˆ์ถ”๊ณ  /๋‚ด ์†์ด ์ฉ์–ด๊ฐ€๋Š” ๋•Œ๊ฐ€ ์˜ค๋”๋ผ๋„ /์ด ์ˆœ๊ฐ„ ๋‚ด๊ฐ€ /๋งˆ์Œ ๋‚ดํ‚ค๋Š” ๋Œ€๋กœ ๊ธ€์„ ์“ฐ๊ณ  ์žˆ๋‹ค๋Š” ๊ฒƒ์€ /ํ—ˆ๋ฌด๋„ ์–ด์ฉŒ์ง€ ๋ชปํ•  ์‚ฌ์‹ค์ด๋‹คโ€ ๋‚˜์˜ ์ง‘์€, ์Œ์•…์„ ๋“ฃ๊ณ  ์˜ํ™”๋ฅผ ๋ณด๊ณ  ์นœ๊ตฌ์™€ ๋Œ€ํ™”๋ฅผ ๋‚˜๋ˆ„๊ณ , ๋˜ ๊ทธ๋ฆฌ๊ณ  ๊ธ€์„ ์“ฐ๊ธฐ ์ข‹์€ ํ™˜๊ฒฝ์ด์–ด์•ผ ํ•œ๋‹ค.

์‚ถ์€ ๊ทธ๊ฒƒ์˜ ์ง์ธ ์ฃฝ์Œ๊ณผ ํ•จ๊ป˜ ํ•จ์œผ๋กœ์จ ๋น„๋กœ์†Œ ์ œ๋Œ€๋กœ ๋œ ํ˜•์ƒ์„ ๊ฐ–๋Š”๋‹ค. ์ฃฝ์Œ์ด ์˜๋ฉด(ๆฐธ็œ ) ๊ณง ์˜์›ํžˆ ์ž๋Š” ์ž ์ด๋ผ๋ฉด, ์ž ์„ ์ž๋Š” ๊ณต๊ฐ„์€ ์ฃฝ์Œ์„, ๊ทธ๋ฆฌ๊ณ  ์ •๊ฒฐํ•œ ๋ชธ์œผ๋กœ ๋ฐ˜๋ณตํ•ด ํƒœ์–ด๋‚˜๋Š” ์”ป๋Š” ๊ณต๊ฐ„์€ ์žฌ์ƒ(ๅ†็”Ÿ) ํ˜น์€ ํ™˜์ƒ(้‚„็”Ÿ)์„ ์ธ์‹(recognition)ํ•˜๋Š” ๊ณณ์ด๋ฉด

์ข‹๊ฒ ๋‹ค. ์ฃฝ๋Š” ๊ฒƒ์€ ๋ณ„๋กœ ๋Œ์•„๊ฐ€๋Š”

์‚ฌ๊ฑด์ด๋ฉฐ, ๋‹ค์‹œ ์‚ฌ๋Š” ๊ฒƒ์€ ์ง€์ƒ์œผ๋กœ

๋‚ด๋ ค์˜ค๋Š” ์‚ฌ๊ฑด์ด๋ผ๋ฉด, ์ž๊ธฐ ์œ„ํ•ด

๋ˆ„์šธ ๋•Œ, ๊ทธ๋ฆฌ๊ณ  ์”ป์„ ๋•Œ ์‹œ์•ผ๊ฐ€

ํ•˜๋Š˜์„ ํ–ฅํ•  ์ˆ˜ ์žˆ๋„๋ก ํ•˜๋ฉด ์ข‹๊ฒ ๋‹ค.

๊ทธ๋ฆฌํ•ด์„œ ๋ˆ„์›Œ ์ž๋Š” ๊ณต๊ฐ„๊ณผ ์”ป๋Š”

๊ณต๊ฐ„์€ ์‚ถ๊ณผ ์ฃฝ์Œ์„ โ€˜์ƒˆ์‚ผโ€™ ์ธ์‹ํ•  ์ˆ˜

์žˆ๋„๋ก ํ•˜๋ฉด ์ข‹๊ฒ ๋‹ค.

๋‚˜๋Š” ์ง‘์—์„œ ๋ฌด์—‡๋ณด๋‹ค๋„ ์ž์—ฐ๊ณผ

๋งŒ๋‚˜๊ณ  ์‹ถ๋‹ค. ์ˆ˜์‹œ๋กœ ๋ณ€ํ•˜๋Š”

๋ฐ”๋žŒ๊ณผ ๋น›์˜ ๊ฒฝ(ๆ™ฏ)์— ๋„ˆ๋ˆํžˆ

๋น ์ง€๊ณ  ์‹ถ๋‹ค. ๊ทธ๋Ÿฌ๋ฏ€๋กœ ํ—ˆ๊ณต์—

๋–  ์žˆ๋Š” ๋ฐœ์ฝ”๋‹ˆ์™€ ์˜ฅ์ƒ

ํ…Œ๋ผ์Šค(ํ…Œ๋ผ๋…ธ๋ฐ”)๋Š” ๋‚˜์—๊ฒŒ๋Š”

์ง‘์„ ์ด๋ฃจ๋Š” ํ•„์ˆ˜์š”์†Œ๋‹ค. ๊ฑฐ๊ธฐ์„œ ๋ผ์•ผ ์ž์—ฐ์˜ ์šฐ๋ฐœ์„ฑ์ด ๋ชฐ๊ณ  ์˜ค๋Š” ๋ฌด(็„ก)์‹œ๊ฐ„์„ฑ์„ ์˜จ๋ชธ์œผ๋กœ ๋А๋‚„

์ˆ˜ ์žˆ๊ธฐ ๋•Œ๋ฌธ์ด๋‹ค. ๊ฑฐ๊ธฐ์„œ ๋ผ์•ผ ๋‚˜์˜ ์—๊ณ ๋ฅผ ์ž ์‹œ ๋ฌด๋ฐฉ๋น„๋กœ

๋‚ด๋งก๊ธด ์ฑ„ ์–ด๋””์„ ์ง€ ์ž ๋“ค์–ด ์žˆ๋Š” ๋‚˜์˜ ์˜ํ˜ผ์„ ๊นจ์›Œ ๋ถˆ๋Ÿฌ๋‚ผ ์ˆ˜ ์žˆ๊ธฐ ๋•Œ๋ฌธ์ด๋‹ค. ๊ทธ๋Ÿฌํ•œ ์‚ฌํƒœ๋Š” ์–ธ์ œ ์–ด๋–ป๊ฒŒ ๋ฐœ์ƒํ• ์ง€ ๋ˆ„๊ตฌ๋„ ๋ชจ๋ฅธ๋‹ค. ๊ทธ๋Ÿฐ ๊นŒ๋‹ญ์— ๊ฑด์ถ•๊ฐ€๊ฐ€ ํ•  ์ˆ˜ ์žˆ๋Š” ์ผ์ด๋ž€ ์˜ค์ง, ๊ทธ๋ฆฌ๋  ์ˆ˜ ์žˆ์„ ์กฐ๊ฑด์„ ์„ธ์‹ฌํ•˜๊ฒŒ ๋งˆ๋ จํ•˜๋Š” ๊ฒƒ๋ฟ์ด๋‹ค. ๊ฑฐ์ฃผํ•˜๋Š” ์ž๋Š” ๊ทธ๋Ÿฌํ•œ ์‚ฌํƒœ๊ฐ€ ๋„๋ž˜ํ•  ๋•Œ๊นŒ์ง€ ์ˆ˜์‹œ๋กœ ๋ฌด์ž‘์ • ๊ธฐ๋‹ค๋ฆฌ๋Š” ๊ฒƒ๋ฟ์ด๋‹ค. ๊ทธ๋Ÿฌ๋ฏ€๋กœ ์šฐ๋ฆฌ์—๊ฒŒ๋Š” ์ž์—ฐ์ด ๊ธฐ์Šตํ•  ๋•Œ๋ฅผ ๊ธฐ๋‹ค๋ฆฌ๋Š”, ๊ณง โ€˜๊ธฐ๋‹ค๋ฆด ๋Œ€์ƒ ์—†๋Š” ๊ธฐ๋‹ค๋ฆผโ€™์˜ ๊ณต๊ฐ„์ด ํ•„์š”ํ•˜๋‹ค. ๋‚˜๋Š” ๋˜ํ•œ ๋น›๊ณผ ์–ด๋‘ ์„ ์ƒ์ƒํžˆ ๋Œ€๋ฉดํ•˜๊ณ  ์‹ถ๋‹ค. ์˜จ ์„ธ์ƒ์— ๋งŒ์—ฐํ•œ ๊ทธ๋Ÿฐ ๋น›์ด ์•„๋‹ˆ๋ผ ํ•˜๋‚˜์˜ ํ˜•ํƒœ, ํ•˜๋‚˜์˜ ๋ฉ์–ด๋ฆฌ๋กœ ํ˜„์ƒํ•˜๋Š” ๊ทธ๋Ÿฐ ํƒˆ์†์˜ ๋น›, ๊ทธ๋ฆฌ๊ณ  ๋น›์— ์˜ํ•ด ๋ฌด์กฐ๊ฑด ๋งŒ๋“ค์–ด์ง€๋Š” ์–ด๋‘ ์ด ์•„๋‹ˆ๋ผ, ์Šค์Šค๋กœ ์›€ํ„ฐ ์ƒ๊ฒจ๋‚˜๋Š” ์–ด๋‘ , ๊ณง ๋ฐ์€ ์–ด๋‘ ์ด ์•„๋‹ˆ๋ผ ์–ด๋‘ก๊ณ  ์‹ ๋น„ํ•œ ์–ด๋‘ , ๊ทธ๋Ÿฐ ๊ฒƒ์„ ๋ฌด์‹œ๋กœ ๋“ค์ด๋‹ฅ์น˜๋Š” ์ž์—ฐ์„ ํ†ตํ•ด ๋งŒ๋‚˜๊ณ  ์‹ถ๋‹ค. ํ•˜๋‚˜ ๋” ๋ง๋ถ™์ธ๋‹ค๋ฉด, ๋‚˜๋Š” ํ‰์ƒ ๊ฐ€๋‚œํ–ˆ๊ณ , ๊ฐ€๋‚œํ•˜๋ฉฐ, ์•ž์œผ๋กœ๋„ ๊ฐ€๋‚œํ•  ๊ฒƒ์ด๋ฏ€๋กœ ๊ฐ€๋‚œํ•œ (๊ทธ๋Ÿฌ๋ฉด์„œ๋„ ํ’ˆ๊ฒฉ์„ ์ œ๋ฒ• ๊ฐ–์ถ˜) ์ง‘์ด ๋‚˜์—๊ฒŒ ๋”ฑ ๋งž๋‹ค. ๊ฐ€๋‚œ์˜ ๊ฒฝ๊ณ„๋ฅผ ๋„˜๋Š” ๋ฌผ์งˆ์€ ๋งˆ์น˜ ๋‚จ์˜ ์˜ท ๊ฑธ์นœ ๊ฒƒ์ฒ˜๋Ÿผ ๊ฑฐ๋ถํ•˜๊ณ  ๋ถˆํŽธํ•˜๋‹ค. ๋ญ‰๋šฑ๊ทธ๋ ค ๋‚˜์—๊ฒŒ ์ง‘์ด๋ž€, ๋‚˜์˜ ์˜ํ˜ผ์— ๊ฑฐ๋ฆฌ๋‚Œ ์—†์ด ๋ถ€์‘ํ•˜๋Š” ๊ทธ๋Ÿฐ ์žฅ์†Œ์ด์ž ๊ทธ๋Ÿฐ ๊ณต๊ฐ„์ด๋‹ค. ๋ฐ–์œผ๋กœ๋Š” ๋ˆ„๊ตฌ์˜ ์ง„์ž…๋„ ๋ถˆํ—ˆํ•˜๋Š” ๋‹จ๋‹จํ•œ ์„ฑ์ฑ„์š” ์•ˆ์œผ๋กœ๋Š” ์˜ํ˜ผ์„ ์ง„๋™ํ•˜๋Š” ์ž˜ ์กฐ์œจ๋œ ํ˜„(็ตƒ). ๋‹จ๋‹จํ•œ ๊ป์งˆ๋กœ ๊ฐ์‹ธ์ธ ์‹ ๋น„์˜ ๋ธ”๋ž™ํ™€์ด๋ผ ๋ถ€๋ฅผ ์ˆ˜ ์žˆ์„ ๊ทธ๋Ÿฐ.

89
90 ๋ชธ-์ง‘ Still-life No.1_์ •์ง€๋œ ์ƒ๋ช…๋“ค โ’ธ๋‚˜์ธํ˜œ

๋ชธ-์ง‘ : ๋„๋‘‘๋งž์€ ์ด์•ผ๊ธฐ

๊ธ€. ๋‚˜์ธํ˜œ ๊ฑด์ถ•๊ฐ€

์ž์ „๊ฑฐ๋ฅผ ์ฒ˜์Œ ํƒ„ ์ˆœ๊ฐ„, ํ•™๊ต ๊ฐ€๋˜

์ฒซ๋‚ , ์ฒซ ํ‚ค์Šค, ์ฒซ...

โ€˜์ฒซโ€™ ๊ฒฝํ—˜์˜ ๊ธฐ์–ต์€ ์‹œ๊ฐ„์ด ์ง€๋‚˜๊ณ 

์ง€๋‚˜๋„ ์–ด์ œ ๊ฐ™๋‹ค. ๋ถ„์ฃผํ•œ ์‚ถ์˜

๊ฐˆํ”ผ๋“ค ์‚ฌ์ด ๋•Œ๋•Œ๋กœ ์ƒˆ๋ก์ƒˆ๋ก ํ”ผ์–ด์˜ค๋ฅธ๋‹ค. ํ’‹ํ’‹ํ•˜๊ณ  ๊ฐ๋ฏธ๋กœ์šด

์ฒซ ์ˆœ๊ฐ„๋“ค์˜ ํ–ฅ๊ธฐ์— ์ –์–ด ๋“ค๋‹ค ๋ฌธ๋“, ๊นจ๋ฌธ ์ƒ์‚ด ์ž…์•ˆ ๊ฐ€๋“ ๊ณ ์ธ

ํ”ผ๋น„๋ฆฐ๋‚ด์ฒ˜๋Ÿผ โ€˜์–ด๋–ค ๊ฒƒโ€™๋“ค์ด ์˜ฌ๋ผ์˜จ๋‹ค. ๊ทธ โ€˜์–ด๋–ค ๊ฒƒโ€™ ์ค‘ ๋‚˜๋Š” ๋‚˜์˜ ์ฒซ ๋„๋‘‘์งˆ์„ ์žŠ์ง€ ๋ชปํ•œ๋‹ค. ๊ฐ•๋ ฅํ•œ ํ˜์˜์—๋„ ๋ถˆ๊ตฌํ•˜๊ณ  ์ง€๊ธˆ๊นŒ์ง€ ์™„์ „๋ฒ”์ฃ„๋กœ ๋‚จ์€ ๊ทธ๊ฒƒ. ์ง€๊ธˆ ์—ฌ๊ธฐ ๊ณ ๋ฐฑํ•˜์ž๋ฉด, ๊ทธ๋•Œ ๋‚˜๋Š” ํ›”์ณค๋‹ค. ์ดˆ๋“ฑํ•™๊ต 3ํ•™๋…„, ์˜ค์‹ญ์—ฌ ๋ช…์˜ ๋ฐ˜ ์•„์ด๋“ค ์•ž์— ๋‚˜๋ฅผ ์„ธ์›Œ๋†“๊ณ  ํ–‰ํ•ด์ง„ ๋‹ด์ž„์„ ์ƒ๋‹˜์˜ ์„œ๋Š˜ํ•œ ์ถ”๊ถ์—๋„ ๋ถˆ๊ตฌํ•˜๊ณ  ๋‚˜๋Š” ๋๊นŒ์ง€ ๋ป”๋ป”ํ•˜๊ฒŒ ๊ทธ๊ฒƒ์ด ๋‚ด ๊ฒƒ์ด๋ผ๊ณ  ๊ณ ์ง‘ํ–ˆ๋‹ค. ๋‚จ์˜ ๊ฒƒ์ด ํƒ๋‚˜๋„ ๋ถˆํ˜ธ๋ น์ด ๋ฌด์„œ์›Œ ์–ด๋А ๊ฒƒ ํ•˜๋‚˜ ์†๋Œ€์ง€ ์•Š๋˜, ์ฐจ๊ณ  ๋„˜์นœ

๋ฐ˜ํ•ญ์‹ฌ๋„ ๋Œ€์ฒด๋กœ โ€˜์‹ฌ(ๅฟƒ)โ€™์œผ๋กœ๋งŒ ๊ทธ์นœ

๋‚ด ์œ ๋…„์˜ ์–ต์••๋œ ํ–‰๋™ ์–‘์ƒ์œผ๋กœ ๋ณผ ๋•Œ, ๊ทธ ์ผ์€ ์ˆœ์‹๊ฐ„ ๋นต ํ„ฐ์ ธ๋ฒ„๋ฆฐ ํ’์„ ์ด์—ˆ๋‹ค. ๊ทธ๋•Œ ๋‚ด๊ฐ€ ํ›”์นœ ๊ฑด,

์ธํ˜•๋„ ๋ˆ๋„ ์•„๋‹Œ โ€˜์ด์•ผ๊ธฐโ€™์˜€๋‹ค.

๋‚˜๋Š”, ๋˜๋ž˜์˜ ์–ด๋–ค ์•„์ด๊ฐ€ ๋ฌธ๊ณ ์ง€์— ๊ธฐ๊ณ ํ•œ ๊ธ€ ์ผ๋ถ€๋ฅผ ์นดํ”ผํ•ด ๋‚˜์˜ ๊ธ€์“ฐ๊ธฐ ๊ณผ์ œ๋กœ ์ œ์ถœํ–ˆ๊ณ , ์กฐ์šฉํžˆ

๋„˜์–ด๊ฐˆ ๋ฒ•ํ•œ ์ž‘์€ ๋น„ํ–‰(้ž๏จˆ)์€

์šฐ์—ฐํžˆ ๋‘ ๊ธ€์„ ์ฝ์€ ํ•œ ์นœ๊ตฌ์˜

๊ณ ์ž์งˆ๋กœ ๊ทธ ๋‚ ์˜ ์‚ฌ๊ฑด์ด ๋˜์—ˆ๋‹ค.

๋ฐ˜์ฏค ๋ฏธ์‹ฌ์ฉ์—ˆ์„ ๋‚ด ์—ฐ๊ธฐ๋Š” ๋‘ ๊ธ€์„

๋Œ€์กฐํ•ด ๋ณผ ๋งŒํผ ํˆฌ์ฒ ํ•˜์ง€ ์•Š์•˜๋˜

์„ ์ƒ๋‹˜์˜ ์„ฑํ’ˆ์œผ๋กœ ๋ฌด๋งˆ๋˜์—ˆ๋‹ค. ๊ทธ๋ ‡๊ฒŒ ์‚ฌ๊ฑด์ด ์ผ๋‹จ๋ฝ๋˜์—ˆ๊ณ  ๋ฐ˜ ์•„์ด๋“ค์˜ ์ˆ˜๊ทผ๊ฑฐ๋ฆผ์€ ๊ณง ์ฐพ์•„์˜จ

๋ฐฉํ•™๊ณผ ํ•จ๊ป˜ ์‚ฌ๊ทธ๋ผ์กŒ๋‹ค. ๋ถˆํ–‰ ์ค‘ ๋‹คํ–‰. ๊ทธ ํ›„ ์‚ผ์‚ผํ•œ ์„ธ์›”์ด ํ˜๋ €๊ฑด๋งŒ, ๋‰ด์Šค์— ์•„๋ฌด๊ฐœ์˜ ํ‘œ์ ˆ ์‹œ๋น„๊ฐ€ ๋ถ‰์–ด์งˆ ๋•Œ๋งˆ๋‹ค ๊ทธ๋‚ ์˜ ๊ธฐ์–ต์ด, ๋๊นŒ์ง€ ๋‹น๋‹นํ–ˆ๋˜ ๊ฐ€๋ฉด ๋’ค ์„ธํฌ ํ•˜๋‚˜ํ•˜๋‚˜๊ฐ€ ํ™”๋ˆ๊ฑฐ๋ ธ๋˜ ๊ทธ๋•Œ์˜ ๊ฐ๊ฐ์ด ํ”ผ์–ด์˜ค๋ฅธ๋‹ค. ๊ทธ๋ ‡์ง€๋งŒ ๊ตณ์ด ํ•œ ๋ฒˆ ๋” โ€˜๋‹น๋‹นโ€™ํ•˜์ž๋ฉด, ๋‚˜๋Š” ๊ธ€์“ฐ๊ธฐ๊ฐ€ ์‹ซ์–ด์„œ ๋ฒ ๋‚€ ๊ฒŒ ์•„๋‹ˆ์—ˆ๋‹ค. ๋” ์ž˜ ์“ฐ๊ณ  ์‹ถ์—ˆ๋‹ค. ์ž์‹ ์˜ ์ผํ™”๋ฅผ ๋‹จ์–ด ํ•˜๋‚˜ํ•˜๋‚˜, ์กฐ์‚ฌ ํ•˜๋‚˜ํ•˜๋‚˜์— ์ƒˆ๊ฒจ ๋„ฃ์–ด ์™„์„ฑํ•œ ๋‹จํŽธ์˜ ๋“œ๋ผ๋งˆ์—, ๋‚˜๋Š” ๊ทธ๊ฒƒ์„ ๊ธฐ๊บผ์ด ๋‚˜์˜ ์ผํ™”๋กœ, ๋‚˜์˜ ์ด์•ผ๊ธฐ๋กœ ๋งŒ๋“ค๊ณ  ์‹ถ์„ ๋งŒํผ ๋งค๋ฃŒ๋˜์—ˆ๋‹ค. ๋‚˜๋Š” ๊ทธ๋‚  ๊ฒช์€ ๋ฏผ๋‚ฏ์˜ ๋œจ๊ฑฐ์›€์„ ์ƒ์ƒํžˆ ๊ธฐ์–ตํ•˜์ง€๋งŒ, ๊ทธ๋ฆฌ ๋‘๊ป๊ฒŒ ๋ป”๋ป”ํ•  ๋งŒํผ ๋งค๋ฃŒ๋๋˜ ์ด์•ผ๊ธฐ๋ฅผ ์ •์ž‘ ๊ธฐ์–ต ๋ชป ํ•œ๋‹ค. ํ•œ ๋ฒˆ๋„ ๊ทธ๋ ค์ง„ ์  ์—†๋Š” ์ƒˆํ•˜์–€ ์ข…์ด์ฒ˜๋Ÿผ ์œค๊ณฝ์กฐ์ฐจ ์‚ฌ๋ผ์ ธ ๋ฒ„๋ ธ๋‹ค. ๊ทธ ์ด์•ผ๊ธฐ๋Š” ์ง€๊ธˆ ์–ด๋”” ์žˆ์„๊นŒ? ๋ˆ„๊ตฌ์—๊ฒŒ ์–ธ์ œ ์–ด๋””์„œ, ๊ทธ๊ฒƒ์„ ๋„๋‘‘๋งž์€ ๊ฒƒ์ผ๊นŒ?

โ€˜์ง‘โ€™์„ โ€˜๊ฑด์ถ•โ€™ํ•˜๋Š” ๊ณผ์ œ ์•ž์—์„œ, ๋‚˜๋Š” ๋‚ด๊ฐ€ ํ›”์นœ ๊ทธ๋ฆฌ๊ณ  ๋„๋‘‘๋งž์€ ์ด์•ผ๊ธฐ๋ฅผ ๋”๋“ฌ๊ฑฐ๋ ธ๋‹ค. ์„ฑ์ธ์ด ๋˜์–ด ๋…๋ฆฝํ•œ ํ›„ ๋‚˜๋Š” ์ค„๊ณง ์›๋ฃธ, ์˜คํ”ผ์Šคํ…”, ์•„ํŒŒํŠธ, ๋‹ค์„ธ๋Œ€ ์ฃผํƒ ๋“ฑ ์—ฌ๋Ÿฌ ์ฃผํƒ ์‚ฌ์ด๋ฅผ ๋œ€๋›ฐ๊ธฐ ํ•˜๋“ฏ ์‚ด์•„์™”๋‹ค. ๋ฐ”๋€Œ๋Š” ํ•™๊ต์™€ ์‚ฌ๋ฌด์‹ค, ๊ทธ๋ฆฌ๊ณ  ์ฃผ๋จธ๋‹ˆ ์‚ฌ์ •์— ๋”ฐ๋ผ ์ง‘์ด ๋ฐ”๋€Œ์—ˆ์ง€๋งŒ, ๊ทธ๊ฒƒ๋“ค์€ ๊ทธ๋•Œ๊ทธ๋•Œ ๋‚ด ๊ฑฐ์ฒ˜๋กœ ์†์ƒ‰์ด ์—†์—ˆ๋‹ค. ๊ทธ๋Ÿฐ๋ฐ ์ง‘์„ ์˜ฎ๊ธธ ๋•Œ๋งˆ๋‹ค ์ด์‚ฌ ํ›„ ๊ณง์žฅ, ์˜ˆ์ „ ์ง‘์—์„œ์˜ ๊ธฐ์–ต์ด ์ˆœ์‹๊ฐ„์— ํฌ๋งท๋๋‹ค. ํฌ๋“  ์ž‘๋“ , ์‚ฌ๋Š” ๋‚ด๋‚ด ์• ์ง€์ค‘์ง€

๊พธ๋ฏธ๊ณ  ์“ธ๊ณ  ๋‹ฆ์œผ๋ฉฐ, ์‚ด๋ถ™์ด๊ณ 

๋ฐœ๋ถ™์˜€๋˜ ๊ณต๊ฐ„์—์„œ์˜ ๊ธฐ์–ต๋“ค์ด ํ•˜๋ฃจ ์ดํ‹€์— ์‚ฌ๋ผ์ง„ ๊ฒƒ์ด๋‹ค. ๊ทธ๋ฆฌ์šด

๋ฌด์–ธ๊ฐ€๊ฐ€ ๊ทธ๊ณณ์— ๋‚จ๊ฒจ์ ธ ์žˆ๊ธธ ๋‚ด์‹ฌ ๋ฐ”๋ผ๋ฉฐ ๋งค๋ฒˆ ๋Œ์ด์ผœ ๋ด๋„, ๊ทธ๊ณณ์—์„œ์˜ ๊ฐ๊ฐ์ด๋‚˜ ๊ธฐ์–ต์€ ์‰ฝ์‚ฌ๋ฆฌ ๋– ์˜ค๋ฅด์ง€ ์•Š์•˜๋‹ค. ์ƒˆ์ง‘์€ ํ—Œ ์ง‘์ฒ˜๋Ÿผ ์ž˜ ์ž‘๋™ํ–ˆ๊ณ , ํ—Œ ์ง‘์— ๋งž์ถฐ์ ธ ์žˆ์„ ๋ฒ•ํ•œ ๋ชธ์˜ ๊ฐ๊ฐ์€ ๋ฒ„ํŠผ์„ ๋ˆ„๋ฅธ ๊ฒƒ์ฒ˜๋Ÿผ ์ƒˆ์ง‘์— ๊ณง์žฅ ์ ์‘ํ–ˆ๋‹ค. ๊ตณ์ด ๋– ์˜ฌ๋ ค๋ณด์ž๋ฉด, ๊ฐ„๊ฐ„์ด ํŒŒํŽธ ๊ฐ™์€ ๊ฐ€์กฑ์‚ฌ, ์—ฐ์• ์‚ฌ, ์‚ฌํšŒ์  ์„ฑ์ทจ ๋“ฑ ๋‚˜์˜ ๊ฐœ์ธ์‚ฌ๋Š” ์ƒˆ๋กœ์šด ๋ฒ„์ „์œผ๋กœ ๋ฌดํ•œ ๋ฐ˜๋ณต๋˜๋Š” ์ผ์ƒ์‚ฌ์ด๊ฑฐ๋‚˜ ๋ฌด์šฉ๋‹ด์ผ ๋ฟ, ๊ทธ๋ฆฌ์šธ ๊ฒƒ๋„ ๋‹น๋‹นํ•  ๊ฒƒ๋„ ์—†์–ด, ๋‚ด์–ด๋†“๊ณ  ์ด์•ผ๊ธฐํ•  ์„ฑ์งˆ์˜ ๊ฒƒ์ด ๋ชป๋˜์—ˆ๋‹ค. ๋‚ด๊ฐ€ ์‚ด๋˜ ๊ณณ์—์„œ์˜ ๊ธฐ์–ต์ด ์ดํ† ๋ก ๋นˆ์•ฝํ•˜๋‹ค๋‹ˆ... ๊ทธ๋Ÿผ ๊ทธ ์ง‘(house)๋“ค์€ ๋‚˜์—๊ฒŒ ์ง‘(home)์ด ์•„๋‹ˆ์—ˆ๋‚˜? ๋ถ„๋ช… ์ง‘์ด์—ˆ๋‹ค. ๊ทธ๊ฒƒ๋“ค์€ ๋”ฐ๋œปํ•˜๊ณ  ์พŒ์ ํ•˜๊ณ  ์•ˆ์ „ํ–ˆ์œผ๋ฉฐ, ๊ฐ’์ด ์˜ฌ๋ผ ํ†ต์žฅ์„ ์‚ด์ง ๋ถˆ๋ ค์ฃผ๊ธฐ๋„ ํ–ˆ๋‹ค. ํ–ฅ์ˆ˜๋ณ‘์ด ๋ถˆ๊ฐ€๋Šฅํ•œ ์‹œ๋Œ€์— ์˜›์ง‘์ด ๊ทธ๋ฆฝ๊ธฐ๋ฅผ ๋ฐ”๋ผ๋Š” ๋กœ๋งจํ‹ฐ์ŠคํŠธ๊ฐ€ ์•„๋‹Œ ๋‚˜๋Š”, ์•„๋งˆ๋„, ํ‚ค๋ณด๋“œ ์—”ํ„ฐํ‚ค๋ฅผ ๋ˆ„๋ฅด๋“ฏ ์ง‘์ด ๋ฐ”๋€” ๋•Œ๋งˆ๋‹ค ์‚ถ์ด ํ•œ ๋‹จ๋ฝ ํ•œ ๋‹จ๋ฝ ์ˆ™์„ฑ๋˜์–ด ๊ตณ์ด ๋‚ด ๊ฒƒ์ด๋ผ ์šฐ๊ธฐ์ง€ ์•Š์•„๋„ ๋  ์ด์•ผ๊ธฐ๋กœ ์™„์„ฑ๋˜์–ด์žˆ๊ธธ ๋ฐ”๋ž€ ๊ฒƒ ๊ฐ™๋‹ค. ์ง‘์„ ๋Œ์•„๋ณด๋‹ˆ, ์ด์•ผ๊ธฐ์˜ ์ž๋ฆฌ๋Š” ๋„๋‘‘๋งž์€ ๋“ฏ ํ…… ๋น„์–ด์žˆ์—ˆ๋‹ค. ๋ˆ„๊ฐ€ ๋ฒ”์ธ์ธ๊ฐ€?

๋ฒ”์ธ์€ ์ง‘์ด ์•„๋‹ˆ์—ˆ๋‹ค. ์ง‘์ด ์•Œ์•„์„œ ์‚ถ์„ ์œ„ํ•œ ์ด์•ผ๊ธฐ์˜ ์ž๋ฆฌ๊ฐ€ ๋˜์–ด ์ฃผ๋ฆฌ๋ผ๋Š” ๊ธฐ๋Œ€๋Š” ๋ˆ„๊ตฐ๊ฐ€ ์‚ถ์„ ๋Œ€์‹  ์‚ด์•„์ฃผ๊ฑฐ๋‚˜ ๊ธ€์„ ๋Œ€ํ•„ํ•ด

์ฃผ๋ฆฌ๋ผ๋Š” ํฌ๋ง๋งŒํผ ๋ฌด๋ชจํ–ˆ๋‹ค. 1LDKโ€“2LDKโ€“3LDK๋กœ ๋Œ€๋™์†Œ์ด ๋ณ€ํ•˜๋Š” ์ง‘์˜ ํ˜•์‹ ๊ทธ๋ฆฌ๊ณ  ๊ทธ์— ๋งž์ถฐ ๋ฌด๋‚œํžˆ ์ ์‘ํ•˜๋Š” ์‚ถ์˜

91
์—์„ธ์ด
92 ๋ชธ-์ง‘ Still-life No.2_์ •์ง€๋œ ์ƒ๋ช…๋“ค โ’ธ๋‚˜์ธํ˜œ

ํ˜•์‹์  ๋ณ€ํ™”๋„ ์ž˜๋ชป์ด ์—†์—ˆ๋‹ค.

๋ฌธ์ œ๋Š” ์‚ถ์˜ ํ…… ๋นˆ ๋‚ด์šฉ์ด์—ˆ๋‹ค.

๋‚ด์šฉ์ด ํ˜•์‹์ด ๋˜๊ณ  ํ˜•์‹์ด ๋‚ด์šฉ์ด

๋˜๋Š”, ๊ทธ๋กœ์จ ์ง‘๊ณผ ์‚ถ์ด ์˜จ์ „ํžˆ ์„œ๋กœ

์ฃผ๊ณ ๋ฐ›๋Š” ์ด์ƒ์ ์ธ ๊ด€๊ณ„๋ฅผ ๊ฟˆ๊ฟ€

์—ฌ์ง€๋„ ์—†์ด, ๋‚ด์šฉ ์—†์ด ์ž˜ ํฌ์žฅ๋œ

ํ˜•์‹์ ์ธ ์‚ถ์— ์ฑ„์›Œ์ง„ ๊ฑด ํ–‰๋ณต๊ณผ

์˜ค๋ฝ์„ ์œ„ํ•œ ์†Œ๋น„์˜€๋‹ค. ์ง‘์„ ์˜ฎ๊ธธ

๋•Œ๋งˆ๋‹ค ๋‚˜๋Š” ์ ์  ๋” ๊ฐ€๋ฒผ์›Œ์ง€๋Š”

์†œ๋ฉ์–ด๋ฆฌ๋ฅผ ์ ์  ๋” ๋ฒ„๊ฒ๊ฒŒ ๋ฐ€์–ด

์˜ฌ๋ฆฌ๋Š” ์‹œ์ง€ํ”„์Šค๊ฐ€ ๋œ ๊ฒƒ์ผ๊นŒ? ๋‚ด๊ฐ€

๊ฒฌ๋””๊ณ  ์žˆ๋Š” ๊ฒƒ์€, ๋ฌด์—‡์„ ๊ฒฌ๋””๋Š”

์ค‘์ธ์ง€ ์•Œ ์ˆ˜ ์—†์ด ํ…… ๋นˆ ๋น„๋ฐ€์ด

๋˜์–ด๋ฒ„๋ฆฐ ์‚ถ์ธ๊ฐ€?

์ง‘์ด ์‚ถ์„ ๋‹ด๋Š” ๊ทธ๋ฆ‡์ด๋ผ๋ฉด, ์‚ถ์ด๋ผ๋Š” ๋‹จ์–ด๋งŒํผ ํ…… ๋นˆ ๊ฒƒ์€

์—†๋‹ค. ๋‚˜์˜ ์ฒซ ๋ฒˆ์งธ ์ง‘ ์ž‘์—…์ธ ใ€ˆ๋ชธ-์ง‘ใ€‰์€ ์‚ถ์„ ์œ„ํ•œ ๊ทธ๋ฆ‡์„ ๋นš๋Š” ๊ณผ์ •์ด ์•„๋‹ˆ๋‹ค. ๊ธฐ๋Šฅ๊ณผ ๊ณต๊ฐ„์˜ ํšจ์œจ์„ฑ์€ ์ง€์ƒ๊ณผ์ œ๊ฐ€ ์•„๋‹ˆ์—ˆ๊ณ , ์‚ถ์˜ ํ˜•์‹์— ๋Œ€ํ•œ ๊นŠ์€ ์„ฑ์ฐฐ๊ณผ ๊ทธ์— ๋”ฐ๋ฅธ ์ง‘์˜ ํ˜•์‹์€ ๋จผ ๋ฏธ๋ž˜์˜ ๊ณผ์ œ๋กœ ๋‚จ๊ฒจ๋‘์—ˆ๋‹ค. ๋‹ค๋งŒ ์‚ถ์˜ ๋‚ด์šฉ๊ณผ ํ•จ๊ป˜ ์‚ฌ๋ผ์ง„ ์ด์•ผ๊ธฐ์˜ ๋‹จ์„œ๋ฅผ ์ฐพ๊ณ  ๊ทธ๊ฒƒ์„ ๋‹ค์‹œ ๋ฐœํ™”ํ•˜๊ธฐ ์œ„ํ•ด ์• ์ผ๋‹ค. ์ด์•ผ๊ธฐ๋ฅผ ํ›”์ณค๋˜ ๊ทธ๋•Œ, ์ด์•ผ๊ธฐ ์„ธ๊ณ„์— ๋น ์ ธ๋“ค๋˜ ๊ฒฝ์ด๋กœ์šด ์ˆœ๊ฐ„์— ๋จธ๋ฌผ๋ฉฐ, ์žƒ์–ด๋ฒ„๋ฆฐ ์ฒซ ๋ฌธ์žฅ์„ ๋‹ค์‹œ ์“ฐ๊ณ ์ž ํ–ˆ๋‹ค.

์‚ฌ๋ฌผํ™” ๋œ โ€˜๋ชธ ๋‚˜๋Š” ์ด์•ผ๊ธฐ๊ฐ€ ๋ฐœํ™”ํ•˜๋Š” ๊ฐ€์žฅ ๊ฐ€๊นŒ์šด ๋ฌธ(้–€)์œผ๋กœ โ€˜๋ชธโ€™์„ ์ง€๋ชฉํ•œ๋‹ค. โ€˜๋‚˜โ€™๋ผ๊ณ  ์ฐฉ๊ฐํ•  ์ •๋„๋กœ ์ต์ˆ™ํ•˜์ง€๋งŒ, ๊ฒฐ์ฝ” ๋‚˜์ผ ์ˆ˜ ์—†๋Š” ๊ฒƒ. ๋‚ด ์˜์ง€์™€ ๋ฌด๊ด€ํ•˜๊ฒŒ ํ˜ธํกํ•˜๊ณ  ์žฅ๊ธฐ๋ฅผ

์ž‘๋™์‹œํ‚ค๋ฉฐ ์–ด๋–ค ์ƒ๊ฐ์„ ๋– ์˜ฌ๋ฆฌ๋Š”

๋ชธ์˜ ์ฃผ์ธ์€ ์ƒ๋ช…์ด๋ผ๊ณ ๋ฐ–์— ํ‘œํ˜„ํ•  ๊ธธ์ด ์—†๋‹ค. ์ž์—ฐ์ด๋ผ๋Š” ๋‹จ์–ด๋งŒํผ ํ—ค์•„๋ฆฌ๊ธฐ ์–ด๋ ต๊ณ  ๋ถ™์žก๊ธฐ์— ๋จผ

์ƒ๋ช…์ด๋ผ๋Š” ์กด์žฌ๋Š” โ€˜๋‚˜โ€™๋ผ๋Š” ์ต์ˆ™ํ•œ

๊ฐ€๋ฉด์œผ๋กœ ๋‚ฏ์„  ์ž์‹ ์„ ์€ํํ•œ๋‹ค.

๊ฒ‰๊ณผ ์†, ๊ฐ™์Œ๊ณผ ๋‹ค๋ฆ„, ๋‚ฏ์ต์€ ๋‚ฏ์„ฆ...

๋งˆ์น˜ ์ผ๋ž€์„ฑ ์Œ๋‘ฅ์ด๊ฐ€ ์„œ๋กœ๋ฅผ

๋ฐ”๋ผ๋ณด๋“ฏ, ๋ชธ์—๋Š” ๊ณต์กด ๋ถˆ๊ฐ€๋Šฅํ•œ

๊ฒƒ๋“ค์ด ํ•„์—ฐ๊ณผ ์šฐ์—ฐ์œผ๋กœ ๋™์‹œ์—

๊ฑฐํ•˜๋ฉฐ ์•„์šฐ๋ผ๋ฅผ ํ’ˆ๋Š”๋‹ค. ๋‚ฏ์ต์€ ๊ฐ•๋„๋งŒํผ ๋‚ฏ์„  ํƒ€์ž๋Š”, ํ”„๋กœ์ดํŠธ๊ฐ€

๊ฑฐ์šธ์— ๋น„์นœ ์ž์‹ ์„ ์–ด๋–ค ๋…ธ์ธ์œผ๋กœ

์ฐฉ๊ฐํ•œ ์ˆœ๊ฐ„์ฒ˜๋Ÿผ, ๋ถˆ์‹ ๊ฐ„ ํ˜„์ƒํ•œ๋‹ค. ์ด๋Ÿฌํ•œ ๋ชธ์˜ ์ƒํƒœ๋Š” โ€˜์ •์ง€๋œ ์ƒ๋ช…(still

life)โ€™ ํ˜น์€ โ€˜์‚ฌ๋ฌผํ™” ๋œ ๋ชธโ€™์ด(๋ผ ๋ถˆ๋ฆด

์ˆ˜ ์žˆ๊ฒ )๋‹ค. ์‚ฌ๋ฌผํ™” ๋œ ๋ชธ์„ ๋Œ€๋ฉดํ• 

๋•Œ, โ€˜๋‚˜โ€™๋Š” โ€˜๋‚˜โ€™ ํ˜น์€ โ€˜๋‚ด ๊ฒƒโ€™์ด๋ผ๋Š”

์ต์ˆ™ํ•œ ์„ธ๊ณ„๋กœ๋ถ€ํ„ฐ ์ดํƒˆํ•ด ๋‚ฏ์„ 

๊ณณ์œผ๋กœ ์ถ”๋ฐฉ๋œ๋‹ค. ๋ฏธ์ง€์˜ ์„ธ๊ณ„์—

์„œ์„œ ๋ˆˆ์„ ๊ฐ๊ณ  ๋”๋“ฌ๋“ฏ ๋‚ด๊ฐ€ ์„œ

์žˆ์—ˆ๋˜ ์ต์ˆ™ํ•œ ์ง€์ ๋“ค์— ์ƒ์ƒ์˜

๋ˆ์„ ์—ฐ๊ฒฐํ•˜๋ฉฐ ๋‚ฏ์„  ๊ณณ์„ ๊ฑด๋„ˆ๊ฐ€๊ธฐ ์‹œ์ž‘ํ•œ๋‹ค.

๋‹จ(ๅฃ‡) ใ€ˆ๋ชธ-์ง‘ใ€‰์„ ์ง“๋Š” ๊ณผ์ •์€ โ€˜์ง‘โ€™์„ โ€˜๊ฑด์ถ•โ€™ํ•˜๋Š” ๊ณผ์ •์ด ์•„๋‹ˆ๋ผ ์‚ฌ๋ฌผํ™” ๋œ โ€˜๋ชธโ€™์„ โ€˜๊ฑด์ถ•(์ ์œผ๋กœ ๊ทน)ํ™”โ€™ํ•˜๋Š” ๊ณผ์ •์ด์—ˆ๋‹ค. ๊ฑด์ถ•์˜ ๊ธฐ๋ณธ๋‹จ์œ„์ธ ๋ฒฝ ๊ทธ๋ฆฌ๊ณ  ๋ฐ”๋‹ฅ์œผ๋กœ ๊ณต๊ฐ„์„ ๊ตฌ์„ฑํ•˜๊ธฐ์— ์•ž์„œ, ๋ฒฝ๊ณผ ๋ฐ”๋‹ฅ์œผ๋กœ ์กฐํ•ฉ๋œ ๋†’์€ ๋‹จ(ๅฃ‡)๋“ค์„ ์Œ“์•„ ์˜ฌ๋ ธ๋‹ค. ๋‹จ(ๅฃ‡)๋“ค์€ ๊ทธ๋ฆฌ์Šค ๋น„๊ทน์„ ์—ฌ๋Š” ํ•œ ๋ฌด๋ฆฌ์˜ ์ฝ”๋Ÿฌ์Šค๊ฐ€ ๊ฐ์ž ๊ฑฐ๋ฆฌ๋ฅผ ๋‘๊ณ  ์ •๋ฌผ์ฒ˜๋Ÿผ ๋„์—ดํ•œ ์ฑ„ ํ•œ ๊ณณ์„ ์‘์‹œํ•˜๋ฉฐ ์Œ(้Ÿณ)์„ ๋ฐœํ™”ํ•˜๋Š” ๋ฌด๋Œ€๋‹ค. ๋ฒฝ๋„ ๋ฐ”๋‹ฅ๋„ ์•„๋‹Œ, ์ •์ง€๋œ ์‘์‹œ์˜ ์žฅ์†Œ์ธ ๋‹จ๋“ค์ด ๋งŒ๋“ค์–ด ๋‚ด๋Š” ์œค๊ณฝ์€ ํ•˜๋‚˜์˜ ๋ชธ์„ ๋น„์Šค๋“ฌํžˆ ๊ฐ€๋ฅธ๋‹ค. ๋ชจํ˜ธํ•˜๊ณ ๋„ ๋ช…ํ™•ํ•œ ๊ฒฝ๊ณ„์˜ ์ดํŽธ๊ณผ ์ €ํŽธ์—๋Š”, ๋ฐ์Œ๊ณผ ์–ด๋‘์›€, ํ•˜๋Š˜(์ƒ์Šน)๊ณผ ๋•…(ํ•˜๊ฐ•), ์šฐ์ฃผ์™€ ๋™๊ตด, ์ดˆ์›”๊ณผ ๋‚ด์žฌ๊ฐ€ ์„œ๋กœ ํ•„์—ฐ๊ณผ ์šฐ์—ฐ์œผ๋กœ ์ž ๋ณตํ•œ๋‹ค. ํ•˜๋‚˜์ด์ž ๋‘˜์ธ ์กด์žฌ์˜ ๋น„์Šค๋“ฌํ•œ ๊ณต๊ทน์—๋Š” ์ •์ง€๋œ ์‘์‹œ์˜ ๊ทธ๋ฆผ์ž๊ฐ€ ๊ฑด๋„ˆ๊ฐ„๋‹ค. ์ด๋ฆ„ ์—†๋Š” ๊ทธ๋ฆผ์ž.

์‚ฌ๋ฌผํ™” ๋œ ๋ชธ์„ ๋Œ€๋ฉดํ•˜๋Š” ๊ฒƒ. ๊ทธ๊ฒƒ์€ ์˜์ง€์™€ ๋ฌด๊ด€ํ•œ ์ˆ˜๋™์  ๋ถ€๋”ชํž˜์ด๋‹ค. ใ€ˆ๋ชธ-์ง‘ใ€‰์— ๋“ค์–ด์„ ๋‹ค๊ณ  ํ•ด์„œ ์ด์•ผ๊ธฐ๊ฐ€ ์ˆ ์ˆ  ํ’€๋ฆด ๋ฆฌ๋„

๋งŒ๋ฌดํ•˜๋‹ค. ๋‹ค๋งŒ โ€˜๋ชธโ€™์„ ๊ฑด์ถ•ํ™” ํ•˜๋Š”

์ž‘์—…์„ ํ†ตํ•ด, ๊ธธ ์—†๋Š” ์ฒซ ๋ฌธ์žฅ์ด ๋จธ๋ฌผ

์—ฌ์ง€๊ฐ€ ์ ๊ทน์  ์ˆ˜๋™์˜ ์ƒํƒœ, ์ •์ง€๋œ ์•„์šฐ๋ผ๋กœ ์ž ๋ณตํ•˜๊ธธ ๋ฐ”๋ž„ ๋”ฐ๋ฆ„์ด๋‹ค. ๋‚˜๋Š” ใ€ˆ๋ชธ-์ง‘ใ€‰์„ ํ†ตํ•ด ํฌ๊ทน๊ณผ

๋น„๊ทน์„ ๋น„์Šค๋“ฌํžˆ ์˜ค๊ฐ€๋Š” ์ด์•ผ๊ธฐ๋ฅผ ์ƒ์ƒํ•œ๋‹ค. ๊ทธ๊ฒƒ์€, ๊ณผ๊ฑฐ๋กœ ๋ฒˆ์—ญํ•  ๋•Œ, ์ด์•ผ๊ธฐ๋ฅผ ๋„๋‘‘๋งž์€ ์•„์ด๊ฐ€

1. ๋ชจ๋ฆฌ์Šค ๋“œ๋‹ˆ_๋‹ซํžŒ ์ •์› ์•ˆ์˜ ์—ฌ์ธ, ์˜ค๋ฅด์„ธ ๋ฏธ์ˆ ๊ด€ ์†Œ์žฅ

โ€˜์ž‘๊ฐ€๋ฅผ ์ฐพ๋Š” 6๋ช…์˜ ๋“ฑ์žฅ์ธ๋ฌผโ€™์„

๋งŒ๋‚˜๋Š” ์žฅ๋ฉด์—์„œ ์‹œ์ž‘ํ•œ๋‹ค. ํ˜„์žฌ๋กœ

์ ‘๊ทผํ•  ๋•Œ, ์„ฑ์ง€์ˆœ๋ก€์— ๊ฐ”๋‹ค๊ฐ€

ํ–‰๋ฐฉ๋ถˆ๋ช…๋œ ์–ด๋А ๋ชฉ์‚ฌ์˜ ํŽธ์ง€๊ฐ€

1

๋‹จ๋ง‰๊ทน ์ „๋ฌธ ์—ฐ๊ทน๋ฐฐ์šฐ์—๊ฒŒ ์ž˜๋ชป ์ „๋‹ฌ๋œ ํ•ดํ”„๋‹์—์„œ ์‹œ์ž‘ํ•œ๋‹ค. ๊ทธ๋ฆฌ๊ณ  ๋ฏธ๋ž˜๋กœ ์ƒ์ƒํ•˜๋ฉด, AI๊ฐ€ ์ธ๊ฐ„์ด ๋˜๊ธฐ๋ฅผ ์›ํ•œ๋‹ค๊ณ  ๋ฏฟ๋Š” ์‚ฌ๋žŒ๊ณผ AI๊ฐ€ ๋˜๊ธฐ๋ฅผ ๊ฐˆ๋งํ•˜๋Š” ์ธ๊ฐ„์ด ๋ฒŒ์ด๋Š” ๋Œ€ํ™”๋‹ค. ์ด์•ผ๊ธฐ๊ฐ€ ๊ณ ์ „์œผ๋กœ ํšŒ๊ท€ํ•˜๊ธธ ๋ฐ”๋ž€๋‹ค๋ฉด, ์ž ์— ๋น ์ง„ ์•„๋ฆฌ์•„๋“œ๋„ค๊ฐ€ ๊ฟˆ์†์—์„œ ์ด์นด๋ฃจ์Šค์˜ ๋–จ์–ด์ง„ ๋‚ ๊ฐœ๋ฅผ ๋ฐœ๊ฒฌํ•˜๋Š” ์žฅ๋ฉด์ด๋‹ค. ์‹œ์ž‘๋œ ์ฒซ ๋ฌธ์žฅ์€ ๊ณ„์†๋  ์ด์•ผ๊ธฐ๋ฅผ ๊ธฐ๋‹ค๋ฆฐ๋‹ค. ํ˜ธ๋ชจ์˜ฅํ† ๋ฅด(Homo Auctor) ๋ฐ•์™„์„œ์˜ ใ€Ž๋„๋‘‘๋งž์€ ๊ฐ€๋‚œใ€์—์„œ, ๊ฐ€๋‚œ์กฐ์ฐจ ๋ถˆ๊ฐ€๋Šฅํ•œ ์‹œ๋Œ€๋ฅผ ์‚ด์•„๊ฐ€๋Š” ์ฃผ์ธ๊ณต์ด ๋А๋‚€ ๊นœ๊นœํ•œ ์ ˆ๋ง๋งˆ์ € ์šฐ๋ฆฌ ์‹œ๋Œ€์—๋Š” ๊นœ๊นœํžˆ ๊ฐ€๋ฒผ์›Œ์กŒ๋‹ค. ใ€ˆ๋ชธ-์ง‘ใ€‰์€ ๋ฒ„๊ฒ๋„๋ก ๊ฐ€๋ฒผ์šด ํ‘œ๋ฉด์˜ ์‹œ๋Œ€๋ฅผ ์‚ด์•„๊ฐ€๋Š” ๋‚˜์˜ ์žํ™”์ƒ์ด๋‹ค. ์ด์•ผ๊ธฐ๋ฅผ ๋˜์ฐพ์œผ๋ ค๋Š” ์‹œ๋„๋Š”, ์˜ˆ์ธก ๊ฐ€๋Šฅํ•œ ๋‚ฏ์ต์€ ์„ธ๊ณ„๋กœ๋ถ€ํ„ฐ ๊ฒฝ์ด๋กœ์šด ๋‚ฏ์„  ์„ธ๊ณ„๋กœ ๊ฑด๋„ˆ๊ฐ€๋Š” ํ™ฉ๋ฌด์ง€ ์œ„ ๋‹ค๋ฆฌ๋‹ค. ์ด์•ผ๊ธฐ๋ฅผ ํ†ตํ•ด ์„ธ๊ณ„๋ฅผ ์ง“๋Š” ์‚ฌ๋žŒ์ด ์ž‘๊ฐ€(author)์ด๊ณ , ์ž‘๊ฐ€(ไฝœๅฎถ)๋Š” ๋ง ๊ทธ๋Œ€๋กœ ์ง‘์„ ์ง“๋Š” ์ž๋‹ค. ํ˜ธ๋ชจ ์‚ฌํ”ผ์—”์Šค, ํ˜ธ๋ชจ ํŒŒ๋ฒ ๋ฅด, ํ˜ธ๋ชจ ๋ฃจ๋ด์Šค, ํ˜ธ๋ชจ ์—์ฝ”๋…ธ๋ฏธ์ฟ ์Šค ๊ทธ๋ฆฌ๊ณ  ํ˜ธ๋ชจ ์˜ฅํ† ๋ฅด. ์‚ถ์˜ ๋‚ด์šฉ์„ ๊ฒฐ์ •์ง“๋Š” ์ธ๊ฐ„ ๋ณธ์„ฑ์„ ํƒํ•  ์ˆ˜

์žˆ๋‹ค๋ฉด ๋‚˜๋Š” โ€˜ํ˜ธ๋ชจ ์˜ฅํ† ๋ฅด(Homo Auctor)โ€™๋ฅผ ์ทจํ•ด, ๊ฑด์ถ•๊ณผ ์‚ถ

์‚ฌ์ด๋ฅผ, ์ง‘๊ณผ ๋ฌด๋ค ์‚ฌ์ด๋ฅผ, ๊ธฐ์–ต๊ณผ ์ƒ์ƒ ์‚ฌ์ด๋ฅผ ์ด์•ผ๊ธฐํ•˜๊ฒ ๋‹ค. ๊ทธ๋ฆฌ๊ณ 

์ด๋Ÿฐ ์ƒ๊ฐ๊ณผ ์ƒ์ƒ์€ ๊ฑด์ถ•์œผ๋กœ ๊ตฌ์ถ•๋˜๊ธฐ๋ฅผ ๊ธฐ๋‹ค๋ฆฐ๋‹ค.

93
94 ๋ชธ-์ง‘ Still-life No.3_์ •์ง€๋œ ์ƒ๋ช…๋“ค โ’ธ๋‚˜์ธํ˜œ
95 1. ๋ชจํ˜•์‚ฌ์ง„_๋””์Šคํ—› 2. ๋ชจํ˜•์‚ฌ์ง„_๋ชธ-์ง‘ 2 1
96 1์ธต ํ‰๋ฉด๋„_๋””์Šคํ—› ์ด์ข…๊ฑด, ๋””์Šคํ—›
97 ๋””์Šคํ—› 1์ธต
98 2์ธต ํ‰๋ฉด๋„_๋””์Šคํ—›
99 ๋””์Šคํ—› 2์ธต์˜ ๋ธŒ๋ฆฌ์ง€
๋””์Šคํ—› 2์ธต์˜ ์นจ์‹ค๊ณผ ์š•์‹ค(์œ„), ์ฃฝ์Œ๊ณผ ์žฌ์ƒ ํ˜น์€ ํ™˜์ƒ์˜ ๊ณต๊ฐ„์„ ์—ฐ๊ฒฐํ•˜๋Š” 2์ธต ๋ธŒ๋ฆฌ์ง€(์˜†๋ฉด) 100
101 ๋‹จ๋ฉด๋„_๋””์Šคํ—› 13 5 687 4 2
102 3์ธต ํ‰๋ฉด๋„_๋””์Šคํ—›
103 ๋ชธ-์ง‘๊ณผ ๋งˆ์ฃผํ•˜๋Š” 2์ธต์˜ ๋นŒ์ฝ”๋‹ˆ์™€ 3์ธต ์ด๋ฒคํŠธ๋ฆ„๊ณผ ํ…Œ๋ผ์Šค
104 ์ง„์ž…๊ตฌ์—์„œ์˜ ๋ชธ-์ง‘(์•ž)๊ณผ ๋””์Šคํ—›(๋’ค) ๋‚˜์ธํ˜œ, ๋ชธ-์ง‘
105 ๋ชธ-์ง‘, ๋‘ ๊ฐœ์˜ ์ถœ์ž…๋ฌธ
106 1์ธต ํ‰๋ฉด๋„_๋ชธ-์ง‘
107 ๋ชธ-์ง‘ 1์ธต์˜ ์‚ฌ์  ๊ณต๊ฐ„
2์ธต ํ‰๋ฉด๋„_๋ชธ์ง‘ 108
109 ๋ชธ-์ง‘ 2์ธต์˜ ๊ณต์  ๊ณต๊ฐ„
110 ๋‹จ๋ฉด๋„
111 ๋ชธ-์ง‘ 2์ธต์˜ ๊ณต๊ฐ„๋“ค

๋‚ ์”จ๊ฐ€ ๋ฌด๋”์šด ์—ฌ๋ฆ„ ใ€ˆ๋””์Šคํ—›ใ€‰๊ณผ ใ€ˆ๋ชธ-์ง‘ใ€‰์„ ๋ฐฉ๋ฌธํ•˜๋Š” ์‹œ๊ฐ„์„ ๊ฐ€์กŒ๋‹ค. ์–‘ํ‰์— ์žˆ๋Š” ์ž‘์€ ๋งˆ์„์ด ๋ชจ์—ฌ ์žˆ๋Š” ๊ณณ์ด๋‹ค. ๋งˆ์„ ์ดˆ์ž…์—์„œ ์ข์€ ๊ธธ์„ ์ซ“์•„๊ฐ€๋‹ค ๋ณด๋‹ˆ ๊ฒฝ์‚ฌ์ง€์— ์žˆ๋Š” ํฐ์ƒ‰์˜ ใ€ˆ๋””์Šคํ—›ใ€‰๊ณผ ใ€ˆ๋ชธ-์ง‘ใ€‰์ด ๋ณด์ด๊ธฐ ์‹œ์ž‘ํ–ˆ๋‹ค. ๊ฒฝ์‚ฌ๊ฐ€ ์žˆ๋Š” ์œ„์น˜์— ์žˆ์–ด ์˜ฌ๋ผ๊ฐˆ์ˆ˜๋ก ์ „๋ง์ด ์•„๋ฆ„๋‹ต๊ณ  ์กฐ์šฉํ•˜๊ฒŒ ์‚ด์•„๊ฐˆ ์ˆ˜ ์žˆ๋Š” ์ฃผ๊ฑฐ์ง€์ด๋‹ค. ์•„์‰ฌ์›€์ด ์žˆ๋‹ค๋ฉด ๋„์‹œ์™ธ๊ณฝ ์ „์› ์ฃผ๊ฑฐ์˜ ๋ฌธ์ œ์ ์ธ ์ข์€ ์ง„์ž…๋„๋กœ์™€ ๊ฒฝ์‚ฌ์ง€๋ฅผ ์ด์šฉํ•œ ํš์ผ์ ์ธ ๋Œ€์ง€์˜ ๋ชจ์Šต์ด์—ˆ์œผ๋ฉฐ ๊ฒจ์šธ์ฒ  ๊ฒฐ๋น™์œผ๋กœ ์‚ฌ์šฉํ•˜๊ธฐ ์–ด๋ ค์šด

๋„๋กœ์˜ ํ˜•์ƒ์„ ๊ฐ€์ง€๊ณ  ์žˆ์—ˆ๋‹ค.

๋ฐฉ๋ฌธ์— ์•ž์„œ์„œ ์„ค๊ณ„ ๋„๋ฉด์„ ๋จผ์ € ๋ฐ›์•„ ๋ณด์•˜๋Š”๋ฐ ๋„๋ฉด์ƒ์œผ๋กœ๋Š” ํ‰๋ฒ”ํ•œ

์ „์›์ฃผํƒ์œผ๋กœ๋งŒ ์—ฌ๊ฒจ์ ธ ํŽธ์•ˆํ•œ

๋งˆ์Œ์œผ๋กœ ๋ฐฉ๋ฌธ์„ ํ•˜์˜€๋‹ค. ์ง‘์ฃผ์ธ

์ค‘ ํ•œ ๋ถ„์ด ๊ทธ ์œ ๋ช…ํ•œ ๊ฑด์ถ•๋น„ํ‰๊ฐ€

์ด์ข…๊ฑด ๊ต์ˆ˜๋ผ๋Š” ๋ง์— ์‚ฌ์‹ค์ธ์ฆ‰ ํ˜ธ๊ธฐ์‹ฌ์ด ์ปธ๋‹ค. ์ง‘ ์ฃผ์ธ ๊ฑด์ถ•๊ฐ€์˜ ์นœ์ ˆํ•œ ๋Œ€์ ‘์„ ๋ฐ›์œผ๋ฉฐ ์ง‘์ง“๊ธฐ์— ๋Œ€ํ•œ ์ผํ™”๋ฅผ ๋“ค์„ ์ˆ˜ ์žˆ์—ˆ๋‹ค. ํŽธ์•ˆํ•œ ๋งˆ์Œ์œผ๋กœ ๋ฐฉ๋ฌธํ•œ ์ด๊ณณ์—์„œ ์‰ฝ์ง€ ์•Š์•˜๋˜ ์ง‘์ง“๊ธฐ์— ๋Œ€ํ•œ ์ด์•ผ๊ธฐ๊ฐ€ ์‹œ์ž‘๋˜์—ˆ๋‹ค. ์ฐจ๋ฅผ ๋งˆ์‹œ๋ฉฐ ์ง‘์ง“๊ธฐ์— ๋Œ€ํ•œ ์งง์€ ๋ช‡ ๊ฐ€์ง€์˜ ์ผํ™”๋ฅผ ๋“ฃ๋Š” ๊ฒƒ๋งŒ์œผ๋กœ๋„ ์ง‘์ง“๊ธฐ์— ๋”ฐ๋ฅธ ๊ณ ์ƒ์˜ ์‹œ๊ฐ„๋“ค์ด ๊ณต๊ฐ๋˜์–ด ๋‹ค๊ฐ€์™”๋‹ค. ๋จผ์ € ใ€ˆ๋””์Šคํ—›ใ€‰ ํ”„๋กœ์ ํŠธ๋ฅผ ์ดํ•ดํ•˜๊ธฐ ์œ„ํ•ด์„œ๋Š” ์ด์ข…๊ฑด ๊ต์ˆ˜์— ๋Œ€ํ•ด ์•Œ์•„์•ผ ํ•œ๋‹ค. ์ด ๊ต์ˆ˜๋Š” ๋‚  ์„ธ์šด ํ‰๋ก ์ž‘์—…์„ ํ†ตํ•ด ๊ฑด์ถ•๋น„ํ‰๊ฐ€๋กœ์„œ

์ž๋ฆฌ๋งค๊น€์„ ํ•˜์˜€๊ณ  ๋งŽ์€ ๊ฑด์ถ•๊ณผ

๊ฑด์ถ•๊ฐ€์— ๋Œ€ํ•˜์—ฌ ์ž‘์‹ฌ ๋ฐœ์–ธ์„

ํ•ด์™”๋˜ ๋ถ„์ด๋‹ค. ๊ทธ๋Ÿฌํ•˜๊ธฐ์— ์˜ค๋žœ

์‹œ๊ฐ„ ํƒ€์ž์˜ ๊ฑด์ถ•์„ ์ ‘ํ•˜๋ฉฐ ํ‰์†Œ

๊ฐ€์ง€๊ณ  ์žˆ๋˜ ๊ฑด์ถ•์˜ ์ƒ๊ฐ์„ ๋ณธ์ธ์˜

์ฃผ๊ฑฐ์— ํ‘œํ˜„ํ•œ ๊ฒƒ์œผ๋กœ์„œ ใ€ˆ๋””์Šคํ—›ใ€‰

ํ”„๋กœ์ ํŠธ๊ฐ€ ์‹œ์‚ฌํ•˜๋Š” ๋ฐ”๊ฐ€ ํฌ๋‹ค. ๊ทธ๋ฆฌ๊ณ  ์ด ๊ต์ˆ˜๊ฐ€ ๋“ฑ์žฅ์‹œํ‚จ ํ›„๋ฐฐ ๊ฑด์ถ•๊ฐ€ ๋‚˜์ธํ˜œ ์†Œ์žฅ๊ณผ ๊ทธ๊ฐ€ ์„ค๊ณ„ํ•œ ใ€ˆ๋ชธ-์ง‘ใ€‰์˜ ๊ด€๊ณ„์„ฑ์„ ๋“ค์—ฌ๋‹ค๋ณด๋Š” ๊ฒƒ์ด ํ•ต์‹ฌ์ผ ํ„ฐ๋‹ค.

๋ฌด์—‡๋ณด๋‹ค๋„ ์ด๊ณณ์— ์ด์ข…๊ฑด ๊ต์ˆ˜์™€ ๋‚˜์ธํ˜œ ์†Œ์žฅ์ด ํ•จ๊ป˜ ์ง‘์ง“๊ธฐ๋ฅผ ๊ฒฐ์ •ํ•œ ์ด์œ ๋Š” ๋ฌด์—‡์ด์—ˆ์„๊นŒ?

ใ€ˆ๋””์Šคํ—›ใ€‰์€ ๋จผ์ € ๋น„ํ‰๊ฐ€์ด์ž ๊ฑด์ถ•๊ฐ€๋กœ์„œ ์ด์ข…๊ฑด ๊ต์ˆ˜ ์ž์‹ ์˜ ๊ฑด์ถ•์„ ํ‘œํ˜„ํ•˜๊ณ ์ž ํ•˜๋Š” ๊ฟˆ์ด ์žˆ์—ˆ์„ ๊ฒƒ์ด๊ณ , ๋‘ ๋ฒˆ์งธ๋Š” ์ •๋…„ํ‡ด์ง ํ›„ ๋ณด๋‚ผ ๊ณต๊ฐ„๊ณผ ์‚ถ์— ๋Œ€ํ•œ ๊ณ ๋ฏผ์ด ์žˆ์—ˆ์„ ๊ฒƒ์ด๋‹ค. ใ€ˆ๋ชธ-์ง‘ใ€‰์€ ๊ฑด์ถ•๊ฐ€ ๋‚˜์ธํ˜œ ์†Œ์žฅ์˜ ๊ฐœ์ธ ๊ณต๊ฐ„์œผ๋กœ์„œ ๊ฑด์ถ•์‚ฌ์‚ฌ๋ฌด์†Œ๋ฅผ ์šด์˜ํ•˜๋ฉฐ ๋А๊ผˆ๋˜ ์ž‘์—… ๊ณต๊ฐ„ ๊ทธ๋ฆฌ๊ณ  ๊ต๋‹จ์—์„œ ๊ฐ€๋ฅด์น˜๋Š” ๊ฑด์ถ•์— ๋Œ€ํ•œ ์‹คํ˜„์„ ๋ชฉํ‘œ๋กœ ํ•˜์˜€์„ ๊ฒƒ์ด๋‹ค. ์–‘ํ‰ ๊ฒฝ์‚ฌ์ง€ ๋Œ€์ง€์— ๋‘ ๋ช…์˜ ๊ฑด์ถ•๊ฐ€๊ฐ€ ์‚ด์•„๊ฐˆ ๋‘ ์ฑ„์˜ ์ง‘์ด 1๋…„์˜ ๊ณต์‚ฌ๊ธฐ๊ฐ„์„ ๊ฑฐ์ณ ๊ฐ์ž์˜ ๊ฑด์ถ•๊ณต๊ฐ„์œผ๋กœ ์‹คํ˜„๋๋‹ค. ์ƒ๊ฐํ•œ ๊ฒƒ์„ ์‹œ๋„ํ•œ๋‹ค๋Š” ๊ฒƒ์€ ์ƒ๊ฐ๋ณด๋‹ค ์–ด๋ ต๋‹ค. ๋”๊ตฌ๋‚˜ ์ง‘์„ ์ง“๋Š”๋‹ค๋Š” ๊ฒƒ์€ ๊ธฐ๋Œ€๋˜๋ฉด์„œ๋„ ๋ฒˆ๊ฑฐ๋กœ์šด ์ผ์„

๊ฒƒ์ด๋‹ค. ๋น„์šฉ์„ ์ง€๋ถˆํ•˜์—ฌ์•ผ

๋ถˆํŽธํ•œ ์ธ๊ฐ„๊ด€๊ณ„๊ฐ€ ์ƒ๊ธธ ์ˆ˜

๋งˆ์Œ์„ ์จ์•ผ๋งŒ ํ•˜๋Š” ์›์น˜ ์•Š๋Š”

๊ณผ์ •๋“ค์ด ์ƒ๊ธด๋‹ค. ใ€ˆ๋””์Šคํ—›ใ€‰๊ณผ ใ€ˆ๋ชธ-์ง‘ใ€‰์ด ๋งŒ๋“ค์–ด์ง€๋Š” ๊ณผ์ •๋„ ์ˆœ์กฐ๋กญ์ง€ ์•Š์€ ๊ณต์‚ฌ์˜ ๊ณผ์ •์œผ๋กœ ์ธํ•˜์—ฌ ์ฃผ๋ณ€์—์„œ ํ”ํžˆ ์ ‘ํ•  ์ˆ˜ ์žˆ๋Š” ๊ณต์‚ฌ์˜ ์–ด๋ ค์›€์— ๋Œ€ํ•œ ๋‚ด์šฉ์œผ๋กœ ๊ฑด์ถ•์ด ๋งŒ๋“ค์–ด์กŒ๋‹ค. ์˜ˆ์ˆ ๊ฐ€๋Š”

์ž‘ํ’ˆ์„ ์ฐฝ์กฐํ•˜๋ฉด์„œ ์ž์‹ ์˜ ๊ณ ์œ ํ•œ ์ž์œ ๋ฅผ ๊ฐ๊ด€ํ™”ํ•˜๊ณ  ์‹คํ˜„ํ•จ์œผ๋กœ์จ ์Šค์Šค๋กœ์™€ ๋‹ค๋ฅธ ์‚ฌ๋žŒ์—๊ฒŒ ์š•๊ตฌ๋ฅผ ์ถฉ์กฑ์‹œํ‚ค๊ณ  ๋ฐœํœ˜ํ•˜๋„๋ก ํ•œ๋‹ค๊ณ  ํ•œ๋‹ค. ใ€ˆ๋””์Šคํ—›ใ€‰๊ณผ ใ€ˆ๋ชธ-์ง‘ใ€‰์„ ๋งŒ๋“ค์–ด ๊ฐ€๋Š” ์‹œ๊ฐ„์„ ํ†ตํ•ด ๊ฑด์ถ•๊ฐ€๋Š” ๋”์šฑ๋” ๊ฐ•ํ•œ ์˜ˆ์ˆ ์  ์ž์•„์‹คํ˜„์˜ ๊ฑด์ถ•์ด ๋งŒ๋“ค์–ด์กŒ๊ณ  ์ด๋ก ์˜ ๊ฑด์ถ•์ด ์•„๋‹Œ ๋งŒ๋“ค์–ด ๊ฐ€๋Š” ๊ฑด์ถ•์˜ ์„ธ๊ณ„๋ฅผ ๊นŠ๊ฒŒ ๋“ค์—ฌ๋‹ค๋ณด์•˜์„ ๊ฒƒ์ด๋‹ค. ์˜ˆ์ˆ ์€ ์ธ๊ฐ„์ด ์‹ค์ฒœ์  ํ™œ๋™์œผ๋กœ ์ž๊ธฐ ์ž์‹ ์„ ์•Œ์•„๋ณด๊ณ  ์ž์‹ ์„ ๊ตฌ์„ฑํ•˜๋ ค๋Š” ์š•๊ตฌ๋ฅผ ํ†ตํ•ด ๊ณ„๋ชฝ์˜ ํšจ๊ณผ๋ฅผ ๊ฐ€์ง€๊ฒŒ ํ•œ๋‹ค๊ณ ๋„ ํ•œ๋‹ค. ใ€ˆ๋””์Šคํ—›ใ€‰๊ณผ ใ€ˆ๋ชธ-์ง‘ใ€‰์€ ๊ฑด์ถ•์ด ์ž๋ณธ์˜ ํž˜๋ณด๋‹ค๋Š” ์ฒ ํ•™์˜ ๋ถ€์žฌ์— ๋”ฐ๋ฅธ ํ—ˆํ•จ์— ๋Œ€ํ•œ ์ด์•ผ๊ธฐ๋ฅผ ์ „๋‹ฌํ•จ์œผ๋กœ์จ ์ƒ๊ฐ ์žˆ๋Š” ๊ฑด์ถ•์„ ํ•˜๊ณ ์ž ํ•˜๋Š” ๊ณ„๋ชฝ์  ๊ฑด์ถ•์œผ๋กœ ๋‹ค๊ฐ€์™”๋‹ค. ์˜ค๋ž˜์ „ ์šฐ๋ฆฌ๋Š” ํ™์ง‘ ๋“ฑ ์šฐ๋ฆฌ๊ฐ€ ์‚ด์•„๊ฐˆ ๊ณต๊ฐ„์„ ์Šค์Šค๋กœ ๋งŒ๋“ค์–ด ์™”๊ณ  ์ž…๋Š” ๊ฒƒ, ๋จน๋Š” ๊ฒƒ, ์‚ด์•„๊ฐ€๋Š” ๊ณต๊ฐ„์— ๋Œ€ํ•œ ์ง€ํ˜œ๊ฐ€ ์žˆ์—ˆ๋‹ค. ์‚ฐ์—…ํ™”๊ฐ€ ๋˜๋ฉด์„œ ๋ถ„์—…ํ™”๋œ ๊ฑด์ถ•์—์„œ ์„ค๊ณ„๋Š” ๋ฌธ(ๆ–‡)์˜ ๊ฑด์ถ•์ด ๋˜์—ˆ๊ณ  ํ˜„์žฅ์„ ์œ„์ฃผ๋กœ ํ•˜๋Š” ๊ฑด์ถ•์€ ๋ฌด(ๆญฆ)์˜ ๊ฑด์ถ•์ด ๋˜์—ˆ๋‹ค. ์ตœ์†Œํ•œ ์‚ด์•„๊ฐˆ ์ž‘์€ ์ง‘์€ ๋ฌธ๊ณผ ๋ฌด๋กœ ๋ถ„๋ฆฌํ•˜์ง€ ์•Š๊ณ  ์ธ๊ฐ„์ด ๊ฐ€์ง€๊ณ  ์žˆ๋Š” ์ฐฝ์กฐ์˜ ์—ญํ• ์„ ๋‹ด๋‹นํ•˜๊ฒŒ ํ•˜๋Š” ๊ฒƒ ๋˜ํ•œ ์ค‘์š”ํ•œ ์‹œ์‚ฌ๊ฐ€ ๋  ๊ฒƒ์œผ๋กœ ๋ณด์ธ๋‹ค. ์„ค๊ณ„๋ฅผ ํ‘œํ˜„ํ•ด ๋‚ด๋Š” ๊ฒƒ์€ ๋ชธ์„ ์›€์ง์ด๋Š” ๋•€์˜ ๊ฑด์ถ•์ด ์žˆ์–ด์•ผ๋งŒ

์ด๋ก ์ ์ธ ๊ทผ๊ฑฐ๋ฅผ ๋งˆ๋ จํ•จ๊ณผ ํ•จ๊ป˜ ๋ชธ์„ ์ด์šฉํ•œ ๊ฑด์ถ•์„ ํ†ตํ•ด ๋‚˜๋ฅผ ์ฃผ์ฒด๋กœ์จ ํ–‰๋™ํ•˜๊ฒŒ ํ•˜๋ฉฐ ๊ฑด์ถ•์ด๋ผ๋Š” ์˜ˆ์ˆ ์„ ํ†ตํ•ด ๋ฏธ๋ฃจ์–ด ์™”๋˜ ๊ฐœ์ธ์˜ ํฐ ์ˆ™์ œ๋ฅผ ๋งˆ๋ฌด๋ฆฌํ•จ์œผ๋กœ์จ ์ž์•„์‹คํ˜„์˜ ์š•๊ตฌ๋ฅผ ์ถฉ์กฑํ•˜๋Š” ์‹œ๊ฐ„์ด ๋˜์—ˆ์„ ๊ฒƒ์ด๋‹ค. ์นด๋ฅผ ์œต์€ ์•„ํ”„๋ฆฌ์นด ๊ฐ€๋‚˜๋ฅผ ์—ฌํ–‰ํ•˜๋ฉด์„œ ์›์‹œ ๊ฑด์ถ•์˜ ๊ธฐ์šด์„ ๋ฐ›์•„ ์‚ด์•„๊ฐ€๋ฉฐ ๊ทธ ํ˜•ํƒœ๋ฅผ ๋ณธ๋–  32๋…„ ๋™์•ˆ ๋Œ์ง‘์„ ์ง€์—ˆ๋‹ค. ์ด ์ง‘์—์„œ ์ •์‹ ๋ถ„์„ํ•™ ์—ฐ๊ตฌ์— ์ „๋…ํ•  ์ˆ˜ ์žˆ์—ˆ๋‹ค. ๋ฅด์ฝ”๋ฅด๋ท”์ง€์—์˜ 18ํ‰์˜ ์ž‘์€(์–ด๋จธ๋‹ˆ)์ง‘์€ 1923๋…„์—์„œ 1924๋…„ ๊ฑธ์ณ ๊ฑด์ถ•ํ•˜์˜€๊ณ  2016๋…„ ์œ ๋„ค์Šค์ฝ” ์„ธ๊ณ„๋ฌธํ™”์œ ์‚ฐ์— ๋“ฑ๋ก๋˜์—ˆ๋‹ค. ์ด ์ง‘์€ ๋ชจ๋”๋‹ˆ์ฆ˜ ๊ฑด์ถ•์˜ ์ค‘์š”ํ•œ ์ฆ๊ฑฐ์ด๋ฉฐ ๋ฅด์ฝ”๋ฅด๋ท”์ง€์—์˜ ๋…ธ๋…„์„ ๋ณด๋‚ธ ๋งˆ์ง€๋ง‰ ์ง‘์ธ 4ํ‰ ์˜ค๋‘๋ง‰๋„ ์šฐ๋ฆฌ์˜ ์ฃผ๊ฑฐ์— ์‹œ์‚ฌํ•˜๋Š” ๋ฐ”๊ฐ€ ํฌ๋‹ค. 4ํ‰์ด์•ผ๋ง๋กœ ์ธ๊ฐ„์—๊ฒŒ ์ถฉ๋ถ„ํ•œ ์ตœ์ ์˜ ๊ณต๊ฐ„์ด ๋  ์ˆ˜ ์žˆ๋‹ค๋Š” ๊ฒŒ ๊ทธ์˜ ์ฒ ํ•™์ด๋‹ค. ํ•˜์ด๋ฐ๊ฑฐ๋Š” ๊นŠ์€ ๊ฒจ์šธ๋ฐค ์‚ฌ๋‚˜์šด ๋ˆˆ๋ณด๋ผ๊ฐ€ ์˜ค๋‘๋ง‰ ์ฃผ์œ„์— ํœ˜๋ชฐ์•„์น˜๊ณ  ๋ชจ๋“  ๊ฒƒ์„ ๋’ค๋ฎ์„ ๋•Œ์•ผ๋ง๋กœ ์ฒ ํ•™์„ ํ•  ์‹œ๊ฐ„์ด๋ผ๊ณ  ํ•˜์˜€๋‹ค. ์„ธ์ƒ์˜ ์†Œ๋ฆฌ์— ์ง‘์ฐฉํ•˜๋Š” ๊ฒƒ์ด ์•„๋‹ˆ๋ผ ๊ณต๊ฐ„์— ๋‚˜๋ฅผ ๊ณ ๋ฆฝ์‹œ์ผœ ํž˜์„ ๋‹คํ•ด ํ•œ ๊ฐ€์ง€ ๋งŒ์„ ์ถ”๊ตฌํ•˜๋Š” ์žฅ์†Œ๋กœ ๋งŒ๋“  ๊ฒƒ์ด๋‹ค. ใ€ˆ๋””์Šคํ—›ใ€‰์—์„œ ์ด์ข…๊ฑด ๊ต์ˆ˜๋Š” ๊ณต๊ฐ„์ด ์ƒ๊ธฐ๋‹ˆ ์‚ฌ๋žŒ๋“ค๊ณผ ํ•จ๊ป˜ ํ•จ์— ์žˆ์–ด ํ–‰๋ณตํ•˜๊ณ  ํ˜ผ์ž ์žˆ์Œ์— ํ–‰๋ณตํ•˜๋‹ค๊ณ  ํ•œ๋‹ค. ๊ทธ๋Ÿฌ๊ณ  ๋ณด๋ฉด ๊ฒฝ์‚ฌ์ง€๊ฐ€ ์žˆ๋Š” ์ด๊ณณ์„ ์„ ํƒํ•œ ๊ฒƒ๋„ ๊ฒจ์šธ์ฒ  ์„ธ์ƒ์˜ ์†Œ๋ฆฌ์— ์ง‘์ฐฉํ•˜๋Š” ๊ฒƒ์ด ์•„๋‹ˆ๋ผ ๊ณต๊ฐ„์— ๊ฑด์ถ•๊ฐ€ ์ž์‹ ์„ ๊ณ ๋ฆฝ์‹œ์ผœ ํž˜์„ ๋‹คํ•ด ํ•œ ๊ฐ€์ง€ ๋งŒ์„ ์ถ”๊ตฌํ•˜๋Š”

์‹œ์ž‘ํ•œ
ํ•˜๊ณ 
์žˆ๊ณ 
๊ณ ์ƒ์˜
ํ—›ใ€‰๊ณผ ใ€ˆ๋ชธ-์ง‘ใ€‰์˜ ๊ฑด
๊ฑด
๋น„ํ‰ ์ด์ข…๊ฑด์˜
๋‚˜์ธํ˜œ์˜
๊ธ€.
CRITICISM
๊ฒฐ๊ณผ๋ฌผ๋กœ ๋‚˜ํƒ€๋‚˜๋Š”๋ฐ ์ด๋ก ์  ๊ฑด์ถ•๊ณผ ๋•€์„ ํ˜๋ฆฌ๋Š” ๋…ธ๋™์˜ ๊ฑด์ถ•์ด ๋™๋ฐ˜๋˜์—ˆ๋˜ ใ€ˆ๋””์Šค
์ถ•์—์„œ๋Š”
์ถ•์„ ํ†ตํ•ด ํƒ๊ตฌํ•˜๊ณ 
๋””์Šคํ—›๊ณผ
๋ชธ-์ง‘
์ •์Šน์ด ๊ฑด์ถ•๊ฐ€

๊ณต๊ฐ„์„ ์‹ฌ๋ฆฌ์ ์œผ๋กœ ํ™•๋ณดํ•˜์˜€๊ณ , ์‚ฐ์˜ ๊ฒน์นจ์— ์˜ํ•ด ์ƒ๊ธฐ๋Š” ๋จผ ๊ณณ์— ์žˆ๋Š” ์ž์—ฐ์˜ ์•„๋ฆ„๋‹ค์›€๊นŒ์ง€๋„ ๋‚ด๋ถ€๋กœ ๊ฐ€์ง€๊ณ  ์™”๋‹ค. ๋‚ด๋ถ€์˜ ๋ถ€๋‹ด๋˜์ง€ ์•Š์€ ์ ์ ˆํ•œ ๋น›์˜ ๋†๋„๋Š” ๋‚ด๋ถ€์— ์žˆ๋Š” ์‚ฌ๋žŒ๋“ค์„ ์„œ๋กœ์—๊ฒŒ ์ง‘์ค‘ํ•˜๊ฒŒ ํ•˜์—ฌ ์ฃผ์—ˆ๊ณ  ์‹œ๊ฐ„์˜ ๊ฐ€๋Š ์„ ๋ฉˆ์ถ”๊ฒŒ ํ•˜์˜€๋‹ค. ๋‚ด๋ถ€์—์„œ ๋ณด์ด๋Š” ๋ฐ”๋‹ฅ, ๋ฒฝ, ์ฒœ์ • ๋งˆ๊ฐ์žฌ๋Š” ์ตœ๋Œ€ํ•œ ๋งˆ๊ฐ์„ ์ œ์–ดํ•จ์œผ๋กœ์จ ๊ณต๊ฐ„์„ ์ด์•ผ๊ธฐํ•˜๊ณ ์ž ํ•˜์˜€๋‹ค. ๊ณ ์ €์— ์˜ํ•œ ๋ฐ”๋ผ๋ณด๋Š” ์‹œ์„ , ์ž์—ฐ๊ณผ ์–ด์šฐ๋Ÿฌ์ง€๋Š” ์ƒ‰์ƒ, ๋น›๊ณผ ์–ด์šฐ๋Ÿฌ์ง€๋Š” ๊ฐ€๊ตฌ์™€ ์†Œํ’ˆ์ด ๊ณต๊ฐ„๊ณผ ์–ด์šฐ๋Ÿฌ์ง„๋‹ค. ์ฐฝ์— ์˜ํ•œ ์ˆ˜์ง ์ˆ˜ํ‰์˜ ๋น›๊ณผ ๊ทธ๋ฆผ์ž๋Š” ์กฐํ™”๋กญ๊ฒŒ ์–ด์šฐ๋Ÿฌ์ง„ ์นจ๋ฌต์˜ ๊ณต๊ฐ„์ด ๋˜๊ณ  ๋‹ฌ๋น›์€ ๊ณต๊ฐ„๊ณผ ์–ด์šฐ๋Ÿฌ์ง€๋Š” ์žฅ๋ฉด์ด ๋  ๊ฒƒ์ด๋‹ค. ใ€ˆ๋””์Šคํ—›ใ€‰๊ณผ ใ€ˆ๋ชธ-์ง‘ใ€‰์€ ๊ฑด์ถ•์˜ ๊ณต๊ฐ„์„ ํ†ตํ•ด ์ˆœ์‘ํ•˜๋Š” ๊ฑด์ถ•๊ณผ ๋Œ€์‘ํ•˜๋Š” ๊ฑด์ถ•์œผ๋กœ ๋‹ค๊ฐ€์™”๋‹ค. ใ€ˆ๋””์Šคํ—›ใ€‰์€ ์ˆœ์‘ํ•˜๋Š” ๊ฑด์ถ•์œผ๋กœ ๋‹ค๊ฐ€์˜ค๊ณ , ใ€ˆ๋ชธ-์ง‘ใ€‰์€ ๋Œ€์‘ํ•˜๋Š” ๊ฑด์ถ•์œผ๋กœ ๋‹ค๊ฐ€์˜จ๋‹ค. ใ€ˆ๋””์Šคํ—›ใ€‰์˜ ๊ณต๊ฐ„์€ ์–ด๋А ์ •๋„ ๊ณต๊ฐ„์ด ์ธ์ง€๋˜์–ด ์‚ฐ์ฑ…ํ•˜๋“ฏ์ด ๋“ค์—ฌ๋‹ค๋ณด๋Š” ๊ณต๊ฐ„์ด๊ณ  ์ž์—ฐ์„ ์ˆ˜๊ธํ•˜๋ฉฐ ๋ฐ”๋ผ๋ณด๋Š” ์ž์„ธ๋ฅผ ์ทจํ•˜๊ณ  ์žˆ๋‹ค. ํ•œํŽธ ใ€ˆ๋ชธ-์ง‘ใ€‰์€ ๊ณต๊ฐ„์— ๋Œ€ํ•œ ๊ฐ•์•ฝ์„ ๋ช…ํ™•ํ•˜๊ฒŒ ํ•˜๋ฉฐ ์ž์—ฐ์— ๋Œ€์‘ํ•˜๋ฉฐ ๋ฐ”๋ผ๋ณด๋Š” ๋ฐฉ๋ฒ•์„ ์ทจํ•˜๊ณ  ์žˆ๋‹ค. ๊ฐ์ž์˜ ๊ณต๊ฐ„์ด ๋ช…ํ™•ํ•œ ์ด์•ผ๊ธฐ๋ฅผ ์ „๋‹ฌํ•˜๊ณ  ๋”๋ถˆ์–ด ์ฃผ๊ฑฐ

์˜ˆ์ˆ ์„ ์ด์•ผ๊ธฐํ•˜๊ณ  ์žˆ๋‹ค. ๋ณผ์ˆ˜๋ก ๋‘

์ฑ„๊ฐ€ ๊ฐ€์ง€๊ณ  ์žˆ๋Š” ์„ฑ๊ฒฉ์ด ๋ช…ํ™•ํ•˜๋‹ค.

ํ•œ ์ฑ„๋Š” ์ฃผ๊ฑฐ๊ณต๊ฐ„์œผ๋กœ ํ•œ ์ฑ„๋Š” ์ž‘์—… ๊ณต๊ฐ„์œผ๋กœ ์‚ฌ์šฉํ•˜๊ณ  ์‹ถ์€ ๊ฑด์ถ•์ด๋‹ค.

ํ˜„์žฌ ์•„ํŒŒํŠธ์— ๊ฑฐ์ฃผํ•˜๋Š” ๋น„์œจ์ด

70%๋ฅผ ๋„˜์–ด๊ฐ€๊ณ  ์žˆ๋‹ค๊ณ  ํ•œ๋‹ค.

์•„ํŒŒํŠธ ์ฃผ๊ฑฐ์˜ ๋ฌธ์ œ๋Š” ๊ฐ™์€ ํ˜•ํƒœ

๊ฐ™์€ ๊ณต๊ฐ„์— ๋”ฐ๋ฅธ ๊ฒฐํ•์œผ๋กœ

๋‚˜ํƒ€๋‚˜๊ณ  ์žˆ๊ณ  ๊ณต๊ฐ„์ด ๊ฒฐ์—ฌ๋œ ์ฃผ๊ฑฐ

๋ถ€์กฑ์„ ์–‘์  ๊ณต๊ธ‰์œผ๋กœ๋งŒ ํ™•๋Œ€ํ• 

๋•Œ ์กฐ๋งŒ๊ฐ„ ์ปค๋‹ค๋ž€ ์‚ฌํšŒ์  ๋ฌธ์ œ๋กœ

๋‚˜ํƒ€๋‚  ๊ฒƒ์ด๋‹ค. ๋‚˜๋งŒ์˜ ํŒจ์…˜์ด

์žˆ๊ณ  ๋‚˜๋งŒ์˜ ๋จน๊ฑฐ๋ฆฌ๊ฐ€ ์žˆ๊ณ  ๋‚˜๋งŒ์˜ ์ฃผ๊ฑฐ๊ฐ€ ์žˆ๊ธฐ๋ฅผ ๋ฐ”๋ผ๋Š” ์‹œ๋Œ€์— ๊ณต๊ฐ„์  ๋ถ€์กฑ์„ ํ•ด๊ฒฐํ•˜๊ณ  ์ฃผ๊ฑฐ๋น„

๋ถ€๋‹ด์ด ์ ์€ ์ž‘์ง€๋งŒ ๊ฐ•ํ•œ ๊ฑด์ถ•์„

์›ํ•  ๊ฒƒ์ด๋‹ค. ๋ˆ„๊ตฌ๋ฅผ ์œ„ํ•œ ๊ณต๊ฐ„์ด

์•„๋‹ˆ๋ผ ๋‚˜๋ฅผ ์œ„ํ•œ ๊ณต๊ฐ„, ์ตœ์†Œํ•œ์˜ ๊ฒƒ๋“ค์ด ์ฑ„์›Œ์ง€๋Š” ์ˆœ๊ฐ„ ๋ชจ๋“  ๊ฒƒ๋“ค์ด

์ถฉ์กฑ๋˜์–ด ๊ฒฐํ•์—์„œ ๋ฒ—์–ด๋‚œ๋‹ค๊ณ  ํ•œ๋‹ค.

์ฃผ๊ฑฐ ๊ณต๊ฐ„์— ๋Œ€ํ•œ ๊ด€์‹ฌ์ด ์ปค์ ธ๊ฐ€๋Š”

์˜ค๋Š˜๋‚  ๊ฑฐ์ฃผํ•  ๊ณต๊ฐ„์— ๋Œ€ํ•œ ํ™”๋‘๋ฅผ ์ƒˆ๋กญ๊ฒŒ ๋˜์ง€๋Š” ๋‘ ๊ฑด์ถ•๊ฐ€์˜ ์ฃผ๊ฑฐ๋ฅผ ๋ณด๊ฒŒ ๋˜์–ด ๊ฑด์ถ•์˜ ๋ฏธ๋ž˜๋ฅผ ์ƒ๊ฐํ•˜๊ฒŒ

ํ•˜๊ณ  ๋ฏธ๋ž˜์˜ ์‚ถ์„ ๋“ค์—ฌ๋‹ค๋ณด๋Š” ์‹œ๊ฐ„์„ ๊ฐ€์ง€๊ฒŒ ๋˜์—ˆ๋‹ค. ์ง‘์€ ๋‚˜์˜ ๋งˆ์Œ์„ ์ง€ํ‚ค๋Š” ๊ณต๊ฐ„์ด๊ณ  ํŠผํŠผํ•œ ๋ฐฉ์–ด๋ฒฝ์ด๊ณ  ๋‚˜๋ฅผ ์œ„๋กœํ•˜๊ณ  ์“ฐ๋‹ค๋“ฌ์–ด ์ฃผ๋Š” ๊ณต๊ฐ„์ด๋‹ค. ๊ณ„๋ชฝ์€ ์–ด๋‘์šด ์ƒํƒœ๋ฅผ ๋ฐ๊ฒŒ ํ•ด์ฃผ๊ณ  ์–ด๋‘์šด ๊ณผ๊ฑฐ๋กœ๋ถ€ํ„ฐ ๋ฒ—์–ด๋‚˜๊ฒŒ ํ•œ๋‹ค. ๊ทธ๋ฆฌ๊ณ  ํ•ฉ๋ฆฌ์ ์ธ

113 1. ๋””์Šคํ—›์„ ์ง€ํ‚ค๋Š” ํ—ˆ์ˆ˜์•„๋น„ ์กฐํ˜•๋ฌผ 2. ๋ชธ-์ง‘ ์™ธ๋ฒฝ ์ƒ์„ธ 3. ์ด์›ƒ์ง‘์˜ ๊ฒฝ๊ณ„๋ฅผ ์ง“๋Š” ์กฐํ˜•๋ฌผ. ์‹œ๊ณตํ˜„์žฅ์˜ ์žก๋ฌผ์„ ์žฌํ™œ์šฉํ•œ ์„ค์น˜์ž‘์—… ์žฅ์†Œ๋กœ ๋งŒ๋“  ๊ฒƒ์€ ์•„๋‹Œ์ง€ ๊ถ๊ธˆํ•˜๋‹ค. ใ€ˆ๋””์Šคํ—›ใ€‰๊ณผ ใ€ˆ๋ชธ-์ง‘ใ€‰์€ ๊ณต๊ฐ„์„ ํ’€์–ด๊ฐ์— ์žˆ์–ด ๋Œ€์ง€์™€ ๊ฑด์ถ•์ด ์ˆœ์‘ํ•˜๋Š” ๋ฐฉ๋ฒ•์€ ๋‹จ์ˆœํ•จ์œผ๋กœ ๊ทธ๋ฆฌ๊ณ  ๋‚ด๋ถ€์—์„œ๋Š”
์›€์œผ๋กœ ๊ณต๊ฐ„์„ ํ™•์žฅ์‹œ์ผœ ์ง€
์„ ์ด
ํ•˜
์˜ ์˜
๋‹ค์ฑ„๋กœ
๋ฃจํ•จ
๊ฒจ๋‚ด๊ณ ์ž
์˜€๋‹ค. ๋ฐ”๋ผ๋ด„
์—ญ์œผ๋กœ ์ธํ•˜์—ฌ ์ž‘์€
๋ฐฉ์‹์œผ๋กœ ์‹ ๋ขฐ์„ฑ ์žˆ๋Š” ์ง€์‹์„ ์ถ”๊ตฌํ•˜๊ฒŒ ํ•˜๋ฏ€๋กœ ใ€ˆ๋””์Šคํ—›ใ€‰๊ณผ ใ€ˆ๋ชธ-์ง‘ใ€‰์€ ํ˜„์žฌ์˜ ์ฃผ๊ฑฐ ๊ฑด์ถ•๊ณผ ์‚ถ์— ๋Œ€ํ•˜์—ฌ ๋‹ค์‹œ ์ƒ๊ฐํ•˜๊ฒŒ ํ•ด์ฃผ๋Š” ๊ณ„๋ชฝ์  ์ž‘์—…์˜ ๊ฒฐ์‹ค์ด๋ž€ ๋ฉด์—์„œ ์†Œ์ค‘ํ•˜๊ฒŒ ๋‹ค๊ฐ€์˜จ๋‹ค. 23 1

์ฃฝ์Œ์€ ๋ฌด์ฐจ๋ณ„์  ํ˜„์ƒ์œผ๋กœ, ์ธ๊ฐ„์—๊ฒŒ ์ฃฝ์Œ์€ ์ž๋ช…ํ•œ ์ˆ™๋ช…์ด๋‹ค. ๊ทธ๋ฆฌํ•˜์—ฌ ๋งค์ผ๋งค์ผ ์‚ด์•„๊ฐ„๋‹ค๋Š” ๊ฒƒ์€, ๋˜ํ•œ ํ•˜๋ฃจ๋งŒํผ์”ฉ ์ฃฝ์Œ์„ ํ–ฅํ•ด ๊ฐ„๋‹ค๋Š” ๊ฒƒ๊ณผ ๋ณ„๋ฐ˜ ๋‹ค๋ฅด์ง€ ์•Š๋‹ค. ๊ทธ๋ž˜์„œ ์ฃฝ์Œ์„ ์‚ฌ์œ ํ•˜๋Š” ์ผ์€ ์‚ถ์„

๋ช…์ง•ํ•˜๊ฒŒ ์ธ์‹ํ•˜๋Š” ์ผ์ด๊ธฐ๋„ ํ•˜๋‹ค. ๋น…ํ„ฐ ํ”„๋žญํด์ด ๊ทธ๋Ÿฌํ–ˆ๊ณ , ํ”„๋ ˆ๋ชจ ๋ ˆ๋น„๊ฐ€ ๊ทธ๋Ÿฌํ–ˆ๊ณ , ์žฅ ์•„๋ฉ”๋ฆฌ๊ฐ€ ๊ทธ๋Ÿฌํ–ˆ๋‹ค. ์ด๋“ค ๋ชจ๋‘ ์ฃฝ์Œ์˜ ๋ฌธํ„ฑ์—์„œ ์ƒํ™˜ํ•˜์—ฌ ์ธ๊ฐ„์˜ ์‚ถ์„ ๋น„์ถ”๋Š” ์ž‘์—…์„ ๋‚จ๊ฒผ๋‹ค. ๊ทธ๋“ค์€ ๋‹ค๋งŒ ์ฃฝ์Œ์„ ๋ชจ๋ฉดํ•œ ๊ฒƒ์— ๊ทธ์น˜์ง€ ์•Š๊ณ , ๊ทธ ์ฃฝ์Œ์˜ ์‹ฌ์—ฐ์„ ๋“ค์—ฌ๋‹ค๋ณด๋ฉฐ ์‚ถ์˜ ์˜๋ฏธ์™€ ๊ฐ€์น˜๋ฅผ ์น˜์—ดํ•˜๊ฒŒ ์‚ฌ์œ ํ–ˆ๋‹ค. ์ฃฝ์Œ์€, ๋‹ค๋งŒ ์ƒ๋ฌผํ•™์  ํŒŒ๋ฉธ์ด๋ž€ ๊ณตํฌ์˜ ๋Œ€์ƒ์„ ๋„˜์–ด, ์šฐ๋ฆฌ์˜ ์‚ถ์„

๋ฐ˜์ถ”ํ•˜๊ฒŒ ํ•˜์—ฌ ๊ทธ๋กœ์จ ์šฐ๋ฆฌ๋ฅผ ์ฃผ์ฒด์  ์‚ถ์œผ๋กœ ๊ฒฌ์ธํ•œ๋‹ค. ๊ทธ๋Ÿฐ๋ฐ ์˜ค๋Š˜๋‚  ์ผ์ƒ์˜ ์‚ถ์—์„œ

์ฃฝ์Œ์— ๋Œ€ํ•œ ์ˆ™๊ณ ๋Š” ์–ธ๊ฐ์ƒ์‹ฌ์ด๋‹ค. ์ž๋ณธ์— ์˜ํ•ด ์˜จํ†ต์˜ ์‚ถ์ด ํฌํš๋œ ์šฐ๋ฆฌ์—๊ฒŒ ์ž๊ธฐ์‘์‹œ์™€ ์ฃฝ์Œ์˜ ์ˆ™๊ณ ๋ฅผ ํ†ตํ•œ ์ž์•„์˜ ๋ฐœ๊ฒฌ ๋˜๋Š” ์ž๊ธฐ์†Œ์™ธ ๊ทน๋ณต์€ ๊ฑฐ์˜ ๋ถˆ๊ฐ€๋Šฅํ•œ ์ผ์ฒ˜๋Ÿผ ๋ณด์ธ๋‹ค. ๋นจ๋ฆฌ๋นจ๋ฆฌ๋กœ ์กฑ์ณ๋Œ€๋Š” ์„ธ์ƒ ์†์—์„œ ์šฐ๋ฆฌ๋Š” ๊ด€์„ฑ์œผ๋กœ ํ•˜๋ฃจ๋ฅผ โ€˜์†Œ๋น„โ€™ ํ•  ๋ฟ์ด๋‹ค. ์˜ค๋Š˜ ์šฐ๋ฆฌ์˜ ๊ณต๊ฐ„๊ณผ ์‹œ๊ฐ„์€ ์˜ค์ง ํ˜„์žฌ๋งŒ์„ ๋น ๋ฅด๊ฒŒ ์žฌ์ƒ ๋ฐ˜๋ณต์‹œํ‚จ๋‹ค. ์‚ด๋ฆผ์ง‘์กฐ์ฐจ ํ•ฉ๋ฆฌ์™€ ๊ฒฝ์ œ์„ฑ์— ํฌํš๋œ ์˜ค๋Š˜, ์ฃฝ์Œ์„ ์‚ฌ์œ ํ•˜๋Š” ์ง‘์€ ํฌ์†Œํ•˜๋‹ค. ใ€ˆ๋””์Šคํ—›ใ€‰์€ ํ•œ์ ํ•œ ์‚ฐ์ž๋ฝ, ์†Œ๋กœ๊ฐ€ ๋๋‚˜๋Š” ๋ง‰๋‹ค๋ฅธ ๊ธธ ๋์— ์œ„์น˜ํ•œ๋‹ค. โ€˜ ใ„ทโ€™์ž ์š”์ฒ  ๋์ด ํ•˜๋Š˜๋กœ ํ–ฅํ•ด

์žˆ๋Š” ์ง‘์˜ ์กฐํ˜•์€ ๋‹จ์ˆœํ•˜๋‹ค. ๋‹ค๋งŒ

์ฃผ์ถœ์ž…๊ตฌ์— ์œ„์น˜ํ•œ ์กฐํ˜•๋ฌผ๋งŒ์ด

์ƒ์ง•์œผ๋กœ ์ž๋ฆฌํ•˜๋Š” ๋ฐ”, ๊ธด ์ฐฝ๊ณผ ์ž‘์€

์ฐฝ ๋ช‡ ๊ฐœ๊ฐ€ ์ „๋ถ€์ธ ์ง‘ ์™ธ๋ถ€์˜ ์ƒ‰์ƒ์€

์˜ค์ง ํ•˜์–€์ƒ‰ ํ•˜๋‚˜๋ฟ์ด๋‹ค.

ํ•˜์–€์ƒ‰ ์™ธ๋ฒฝ์˜ ์ง‘์ด๊ฑด๋งŒ ์ง‘์•ˆ์€

๊ฒ€์ •์˜ ๋ฉ”ํƒ€ํฌ๋กœ ๊ฐ€๋“ํ•˜๋‹ค.

๋น›์€ ์„ธ๋กœ๋กœ ๊ธด ์ฐฝ ๋ช‡ ๊ตฐ๋ฐ๋กœ๋งŒ

๋“ค์–ด์˜ค๊ณ , ์ž‘์€ ์ฐฝ ๋ช‡ ๊ฐœ๋Š” ์˜ค์ง ํ™˜๊ธฐ๋ฅผ ๋ชฉ์ ์œผ๋กœ ํ•œ๋‹ค. ํ—›์ง‘์˜ ์ฐฝ์€

์ฑ„๊ด‘์ฐฝ๊ณผ ํ™˜๊ธฐ์ฐฝ ๋ช‡ ๊ฐœ๊ฐ€ ํŒŒ์‚ฌ๋“œ์˜

์ค‘์‹ฌ์„ ์ด๋ฃจ๋Š”๋ฐ, ํ’๊ฒฝ์ฐฝ์€ ์˜ค์ง 3์ธต ๋ฐฉ์— ๋‘ ๊ฐœ๋ฟ์ด๋‹ค. ๊ฑด์ถ•๊ฐ€๋Š” ์ผ์ƒ์˜ ๊ณต๊ฐ„ ์†์œผ๋กœ ๋ฌด์‹œ๋กœ ์นจํˆฌํ•˜๋Š” ํ’๊ฒฝ์„ ๋ฐฐ์ œํ•˜๊ณ , ์˜ค์ง ๋ณด๋ ค๋Š” ์˜์ง€๋ฅผ ํ†ตํ•ด์„œ๋งŒ ์™ธ๋ถ€๋ฅผ ๋ณด๋ ค ํ•œ๋‹ค. ๊ฑด์ถ•๊ฐ€์— ์˜ํ•ด ๊ณ„์‚ฐ๋œ ์ฐฝ์€ ๋น›์„ ๊ธธ๋“ค์—ฌ ๋‚ด๋ถ€๋กœ ๋“ค์ธ๋‹ค. ๊ธธ๋“ค์–ด์ง„ ์ง์‚ฌ๊ด‘์„ ์€ ํ•œ์ •๋œ ๋ฒ”์œ„ ์•ˆ์— ๋จธ๋ฌด๋ฅด๋ฉฐ, ์‚ฐ๋ž€๊ด‘์ด ์ค‘์‹ฌ์ด ๋˜์–ด ํ†ต์ธต ๊ฑฐ์‹ค์„ ๋ฐํžŒ๋‹ค. 1์ธต์˜ ์„œ์žฌ๋„ ๊ทธ๋Ÿฌํ•˜๊ณ  2์ธต์˜ ์นจ์‹ค๋„ ๊ทธ๋Ÿฌํ•˜๋‹ค. ใ€ˆ๋””์Šคํ—›ใ€‰์˜ ๋‚ด๋ถ€๋Š” ์–ด๋‘ก์ง€๋Š” ์•Š์ง€๋งŒ, ๋ฐ์ง€๋„ ์•Š์€ ๊ฒ€์ •์˜ ์€์œ ๋กœ ๋งŒ๋“ค์–ด์กŒ๋Š”๋ฐ, ํ†ต์ธต ๊ฑฐ์‹ค ์ฒœ์žฅ์˜ ๊ฒ€์ •์ƒ‰์€ ์ด๋ฅผ ๋ณด๋‹ค ๋ถ„๋ช…ํžˆ ํ•œ๋‹ค. ์‹ฌ์ง€์–ด 2์ธต ์นจ์‹ค์˜ ๋ฒฝ์€ ์šฐ๋‘˜ํˆฌ๋‘˜ํ•œ ํ‘œ๋ฉด ์œ„ ์ƒˆ์นด๋งŒ ๊ฒ€์ •์œผ๋กœ ์ž ๋“œ๋Š” ๊ณต๊ฐ„์„ ํฌ์œ„ํ•˜๊ณ  ์žˆ๋‹ค. ๊ฑด์ถ•๊ฐ€๋Š” ์ž ๋“œ๋Š” ๊ณต๊ฐ„(์นจ์‹ค)๊ณผ ์ฃฝ์Œ๊ณผ ๊ฒ€์ •์„ ์„œ๋กœ ๋Œ€์‘์‹œ์ผฐ๋‹ค๊ณ  ํ–ˆ๊ณ , ์ž  ๊นจ๋Š” ๊ณต๊ฐ„(ํ™”์žฅ์‹ค)๊ณผ ์„ฑ์Šค๋Ÿฌ์›€๊ณผ ํฐ์ƒ‰(๊ทธ๋ฆฌ๊ณ  ์›ํ˜•์ฐฝ)์„ ์„œ๋กœ ์—ฐ๊ฒฐ์‹œ์ผฐ๋‹ค๊ณ  ํ–ˆ๋‹ค.

์ž์ทจ๋ฅผ ๊ณต๊ฐ„์— ๋น›์œผ๋กœ ์ฐ์–ด๋‚ธ๋‹ค. ๋ฐ์Œ์€ ์–ด๋‘ ์œผ๋กœ ์„œ์„œํžˆ ์ „ํ™˜๋˜๊ณ , ์žฌ์‹ค์ž๋Š” ์ด ๋ณ€ํ™”๋ฅผ ํ†ตํ•ด ์‹œ๊ฐ„์˜ ํ๋ฆ„์„ ์ง€๊ฐํ•œ๋‹ค. ใ€ˆ๋””์Šคํ—›ใ€‰์˜ ์ง‘์ฃผ์ธ์€ ๋‚™์กฐ์™€ ๋”๋ถˆ์–ด ์ข๊ณ  ๊ฐ€ํŒŒ๋ฅธ ๊ณ„๋‹จ์„ ์˜ฌ๋ผ ๊ฒ€์ •๋ฒฝ์˜ ์นจ์‹ค์—์„œ ์ž ์ด ๋“ค๊ณ , ๋‹ค์‹œ ์ผ์กฐ์™€ ๋”๋ถˆ์–ด ์‚ถ์œผ๋กœ ๊ท€ํ™˜ํ•œ๋‹ค. ๊ทธ๋ฆฌ๊ณ  ์ฃฝ์Œ์—์„œ

๋‹ฌ๋ฆฌํ•˜๊ณ , ์‚ฐ๋ž€๊ด‘์€ ๋†๋„์™€ ์ƒ‰์ฑ„๋ฅผ ๋‹ฌ๋ฆฌํ•˜๋ฉฐ ์‹œ๊ฐ„์˜

1. ๋””์Šคํ—›
1
๊ฑด์ถ•๊ฐ€๋Š” ์ฃฝ์Œ์— ๋Œ€ํ•œ ์‚ฌ์œ ๋ฅผ ์™ธ๋ฉดํ•˜์ง€ ์•Š๊ณ , ๊ทธ๊ฒƒ์„ ์ผ์ƒ์˜ ๊ณต๊ฐ„ ์•ˆ์œผ๋กœ ๋Œ์–ด๋“ค์—ฌ ์ž๊ธฐ์‘์‹œ์™€ ์ž์•„๋Œ€๋ฉด์˜
์ผ์กฐ
๋ 
๋”ฐ
๊ณต๊ฐ„์œผ๋กœ ๋งŒ๋“ค๊ณ  ์žˆ๋‹ค.
์ดํ›„ ์ฑ„๊ด‘์ฐฝ์— ์˜ํ•œ ๊ธด
๋ชจ์–‘์˜ ๋น›์ด ํƒœ์–‘์˜ ์ด๋™์—
๋ผ ๊ถค์ ์„
ํ—ˆ๊ณต์—์„œ ๊ด€ํ†ตํ•˜๋Š” ๋ธŒ๋ฆฌ์ง€๋ฅผ ๊ฑด๋„ˆ ํ•˜์–€์ƒ‰ ํ™”์žฅ์‹ค์— ์ด๋ฅด๋Ÿฌ ์ ˆ์ •์— ์ด๋ฅธ๋‹ค. ์ฃฝ์Œ์˜ ๊ณต๊ฐ„๊ณผ ์‚ถ์˜ ๊ณต๊ฐ„์ด ์ผ์ƒ์˜ ์‹œ๊ณต๊ฐ„์—์„œ ๋ฌด์‹œ๋กœ ์—ฎ์ด๋ฉฐ ํ•˜๋‚˜๊ฐ€ ๋˜๊ณ , ์ง‘์ฃผ์ธ์€ ๋Š์ž„์—†๋Š” ์ฃฝ์Œ๊ณผ ๊ณ ๋…์˜ ๋ฐ˜์ถ”๋ฅผ ํ†ตํ•ด ์‚ถ์„ ๊ฒฌ์ธํ•ด ๋‚˜๊ฐ„๋‹ค. ใ€ˆ๋””์Šคํ—›ใ€‰์€ ๊ฑด์ถ•๊ฐ€๊ฐ€ ์ง‘์ฃผ์ธ์ธ ์‚ด๋ฆผ์ง‘์ด๋‹ค. ์‚ด๋ฆผ์˜ ์–ด์› โ€˜์‚ด๋ฆฌ๋‹คโ€™๋Š” ๋ง ๊ทธ๋Œ€๋กœ ์ƒ๋ช…์„ ์ง€๋‹ˆ๊ฒŒ ํ•œ๋‹ค๋Š” ์˜๋ฏธ์ธ๋ฐ, ๊ทธ๋ž˜์„œ ใ€ˆ๋””์Šคํ—›ใ€‰์€ ์ฃฝ์Œ์—์„œ ๋ฐœ์•„ํ•œ ์‚ด๋ฆฌ๋Š” ์ง‘์ธ ๊ฒƒ์ด๋‹ค. ๋น„ํ‰ ๋””์Šคํ—›, ์ฃฝ์Œ์—์„œ ๋ฐœ์•„ํ•œ ์‚ด๋ฆฌ๋Š” ์ง‘ ๊ธ€. ์ตœ์šฐ์šฉ ๊ฑด์ถ•๋น„ํ‰๊ฐ€ CRITICISM
์ƒ์œผ๋กœ์˜ ์ „ํ™˜์€ ๊ฑฐ์‹ค์„

๋งˆ์ฃผํ•˜๋Š” ์‹œ์ธ, ๋ฌด์Œ์˜ ๋Œ€๊ธฐ๋ฅผ ๋งˆ์ฃผํ•˜๋Š” ์Œ์•…๊ฐ€, ๊ฝ‰ ์ฐฌ ๋Œ๋ฉ์–ด๋ฆฌ๋ฅผ ๋งˆ์ฃผํ•˜๋Š” ์กฐ๊ฐ๊ฐ€ ๊ทธ๋ฆฌ๊ณ  ๋นˆ ๋•…์„ ๋Œ€๋ฉดํ•˜๋Š”

์ƒ๊ฐ์„ ๋งน๋ ฌํžˆ ํˆฌ์‚ฌํ•œ๋‹ค. ์ž‘๊ฐ€๋“ค์˜

์ž‘์—…์€ ๋ฐœ์‚ฐํ•˜๋Š” ๊ฒƒ์ด๊ณ  ๋˜

์›์‹ฌ๋ ฅ์— ์˜ํ•ด ๊ตฌ์ฒดํ™” ๋œ๋‹ค. ๊ทธ๋Ÿฌ๋‚˜ ์ผ์ƒ์ด๋ผ๋Š” ๊ฒƒ์€ ๋‚ด๋ฉด์œผ๋กœ ๊ท€ํ™˜์„ ์˜๋ฏธํ•œ๋‹ค. ๊ทธ๊ฒƒ์€ ์™ธ๋ถ€์˜ ์ž๊ทน์„ ์ ˆ์—ฐํ•˜๊ณ  ์ž๊ธฐ ์•ˆ์œผ๋กœ ์นจ์ž ํ•ด ๋“ค์–ด๊ฐ€๋Š” ๊ฒƒ์ด๋‹ค. ๊ทธ๋ž˜์„œ ๊ทธ๋“ค์€ ๋ฌด์‹œ๋กœ ์Ÿ์•„์ง€๋Š” ๋ฐ”๋žŒ๊ณผ ๋น›์„ ์ผ์ƒ์˜ ์ฑ„์— ๊ฑธ๋Ÿฌ ์ˆœ์น˜ํ•˜์—ฌ

๋”๋ถˆ์–ด ํ•จ๊ป˜ ๋จธ๋ฌธ๋‹ค. ์ž‘๊ฐ€์—๊ฒŒ ์ง‘์ด๋ž€ ๋‹ฌํŒฝ์ด์˜ ์ง‘์ฒ˜๋Ÿผ ๊นŠ์ด๊ฐ€ ์žˆ๋Š” ๊ณต๊ฐ„, ์›…ํฌ๋ฆด ์ˆ˜ ์žˆ๋Š” ๊ณต๊ฐ„์œผ๋กœ์จ, ์ž๊ธฐ๋‚ด๋ฉด์œผ๋กœ ์ˆ˜๋ ดํ•ด ๋“ค์–ด๊ฐ€๋Š” ๊ณต๊ฐ„์ด๋ฉฐ ๊ตฌ์‹ฌ๋ ฅ์œผ๋กœ ์ง€ํƒฑ๋˜๋Š” ๊ณต๊ฐ„์ด๋‹ค.

ใ€ˆ๋ชธ-์ง‘ใ€‰์€ ์ฐฝ์ž‘๊ณผ ์ผ์ƒ์ด ํ•œ ๋ชธ์— ๋ถ™์–ด ์žˆ๋‹ค. ใ€ˆ๋ชธ-์ง‘ใ€‰์€ ์‚ด๋ฆผ์‚ด์ด๋งŒ์ด ๋ชฉ์ ์ด ์•„๋‹ˆ๊ณ  ๋˜ํ•œ ์ž‘์—…๋งŒ์ด ๋ชฉ์ ์ด ์•„๋‹Œ, ์ด ์„œ๋กœ ๋‹ค๋ฅธ ๋‘ ํ˜•ํƒœ์˜ ํ–‰์œ„๊ฐ€ ํ•œ ๊ณต๊ฐ„์œผ๋กœ ์–ฝํ˜€ ์žˆ๋‹ค. ์ด์งˆ์˜ ๋‘ ๊ณต๊ฐ„์ด ์ง์œก๋ฉด์ฒด์˜ ์ƒ์ž ์•ˆ์— ์–ฝํ˜€ ์žˆ๋Š”๋ฐ, ์„œ๋กœ์˜ ๊ณต๊ฐ„์€ ์ˆ˜์ง ๋˜๋Š” ์ˆ˜ํ‰์œผ๋กœ ๋‹จ์ˆœ ๋ถ„์ ˆ๋˜์–ด์žˆ์ง€ ์•„๋‹ˆํ•˜๊ณ , ์„œ๋กœ๊ฐ€ ์„œ๋กœ์˜ ๊ณต๊ฐ„์„ ๊ทœ์ •ํ•˜๋ฉฐ 3์ฐจ์›์œผ๋กœ ๋ฌผ๋ ค ์žˆ๋‹ค. ํ•œ ๊ณต๊ฐ„ ์—†์ด ๋‹ค๋ฅธ ํ•œ ๊ณต๊ฐ„์ด ์žˆ์„ ์ˆ˜ ์—†๋Š” ๊ตฌ์กฐ๊ฐ€ ๋ชธ์ง‘์˜ ๋ผˆ๋Œ€๋‹ค. ใ€ˆ๋ชธ-์ง‘ใ€‰์€ ์ถœ์ž…๋ฌธ์ด ๋‘˜์ด๋‹ค. ๊ฐ๊ฐ์˜ ์ถœ์ž…๋ฌธ์œผ๋กœ ์ž‘์—…์‹ค๊ณผ ์‚ด๋ฆผ์ง‘์œผ๋กœ ์ง„์ž…ํ•˜๋Š”๋ฐ, ์ด ๋‘ ์ถœ์ž…๋ฌธ ์‚ฌ์ด์— ๋˜ ๋‹ค๋ฅธ ์ถœ์ž…๋ฌธ์ด ์žˆ์–ด์„œ ์ง‘์ฃผ์ธ์€ ๋‘ ๊ณต๊ฐ„์„ ์™ธ๋ถ€ ๊ฒฝ์œ  ์—†์ด ์˜ค๊ณ  ๊ฐ„๋‹ค. ๋‚ด๋ถ€ ์ถœ์ž…๋ฌธ์œผ๋กœ ์—ฐ๊ฒฐ๋œ ๋‘ ํ˜„๊ด€์€ ์ฐฝ์ž‘๊ณผ ์ผ์ƒ์„ ๊ฐ€๋ฅด๋Š” ์ „์ด์˜ ๊ณต๊ฐ„์œผ๋กœ์จ, ๋ง ๊ทธ๋Œ€๋กœ ์–ด๋‘์šด(็Ž„) ๊ฒฝ๊ณ„๊ณต๊ฐ„(้—œ)์œผ๋กœ ์ฒ˜๋ฆฌ๋˜์–ด ์ „์ด์˜ ๊นŠ์ด๋ฅผ ๋”ํ•œ๋‹ค. ๋‘ ํ˜„๊ด€์€ ๊ณต์  ๊ณต๊ฐ„๊ณผ ์‚ฌ์  ๊ณต๊ฐ„์„ ๊ฐ€๋ฅด๊ณ  ๋˜ ์—ฐ๊ฒฐํ•˜๋Š”, ๊ณ ๋Œ€ ๋กœ๋งˆ ๋„๋ฌด์Šค ์ฃผํƒ์˜ ํƒ€๋ธ”๋ฆฌ๋ˆ”์„ ๋– ์˜ค๋ฅด๊ฒŒ ํ•œ๋‹ค. ใ€ˆ๋ชธ-์ง‘ใ€‰์€ ํƒ€๋ธ”๋ฆฌ๋ˆ”์œผ๋กœ ๋ฐ”๋กœ ์ฐŒ๋ฅด๊ณ  ๋“ค์–ด๊ฐ€ ์ด์ชฝ๊ณผ ์ €์ชฝ์„ ์„ ํƒ์ ์œผ๋กœ ์ ‘๊ทผํ•  ์ˆ˜ ์žˆ์œผ๋ฉฐ, ๋™์‹œ์— ํƒ€๋ธ”๋ฆฌ๋ˆ”์„ ํ†ตํ•ด ์ฐฝ์ž‘๊ณผ ์ผ์ƒ์„ ์—ฐ๊ฒฐํ•œ๋‹ค.

ใ€ˆ๋ชธ-์ง‘ใ€‰์€ 1์ธต์˜ ํŒ” ํ• ์ด ์‚ด๋ฆผ์ง‘์ด๊ณ  ๋‚˜๋จธ์ง€ ์ด ํ• ์€ ์ฐฝ๊ณ ๋ฉฐ 2์ธต ์ „๋ถ€๊ฐ€ ์ž‘์—…์‹ค์ด๋‹ค. ๊ทธ๋Ÿฐ๋ฐ 2์ธต ๋‹จ(ๅฃ‡) ๊ณต๊ฐ„์ด 1์ธต ์นจ์‹ค์˜ ๋†’์ด๋ฅผ ๊ฒฐ์ •ํ•˜๊ณ  ์žˆ๋‹ค. 1์ธต์˜ ์นจ์‹ค์€ 2์ธต ๋‹จ ๊ตฌ์กฐ์— ๋ˆŒ๋ ค ์žˆ๋Š” ๊ณต๊ฐ„์œผ๋กœ ๋‚ฎ๊ณ  ์–ด๋‘ก๋‹ค. 1์ธต์˜ ๋‚˜๋จธ์ง€ ์„œ์žฌ์™€ ํ™”์žฅ์‹ค์˜ ์ž‘์€ ์ฐฝ๋“ค์€ ๋ฐ”๋žŒ๊ณผ ๋น›์„ ์ˆœ์น˜์‹œ์ผœ ๋‚ด๋ถ€๋กœ ๋“ค์ด๋Š”๋ฐ, ๊ทธ๋ฆฌํ•˜์—ฌ 1์ธต์˜ ์‚ด๋ฆผ์ง‘์€ ๋‚ฎ๊ณ  ์–ด๋‘ก๊ณ  ๊นŠ๊ณ  ์›…ํฌ๋ฆฐ ๊ณต๊ฐ„์ด๋‹ค. ์ง‘์ฃผ์ธ์€ ์ด ๊ณต๊ฐ„ ์•ˆ์—์„œ ์ž ์ด ๋“ค๊ณ , ๊นจ์–ด๋‚˜๋ฉด ใ€ˆ๋ชธ-์ง‘ใ€‰ ๋ฒ„์ „์˜ ํƒ€๋ธ”๋ฆฌ๋ˆ”์„ ๊ฑฐ์ณ 2์ธต ์ž‘์—…์‹ค๋กœ ํ–ฅํ•œ๋‹ค. ์–ด๋‘์šด ๊ฒฝ๊ณ„๊ณต๊ฐ„์„ ๊ฑฐ์ณ ์ข์€ ๊ณ„๋‹จ์„ ์˜ค๋ฅด๋ฉด, ๋‹จ์œผ๋กœ๋ถ€ํ„ฐ ์‹œ์ž‘๋˜๋Š” ์ž‘์—…์‹ค ๊ณต๊ฐ„์ด ํญ๋ฐœํ•˜๋“ฏ ํŽผ์ณ์ง„๋‹ค. ์ž‘์—…์‹ค์˜ ์ž…๋ฉด์„ ์ง€๋ฐฐํ•˜๋Š” ์ปค๋‹ค๋ž€ ์ฐฝ์ด ์‚ฐ์ž๋ฝ์˜ ํ’๊ด‘์„ ๊ฑฐ๋Œ€ํ•˜๊ฒŒ ์ฐจ๊ฒฝํ•˜๋ฉด์„œ ๋™์‹œ์— ์ตœ๋Œ€์˜ ์ผ์กฐ๋ฅผ ์ฑ„๊ด‘ํ•˜๋ฉฐ ์ž‘์—…์‹ค ๋‚ด๋ถ€๋ฅผ ๋ฐํžŒ๋‹ค. ์ž‘์—…์‹ค์€ ๋†’๊ณ  ๋ฐ๊ณ  ์™ธ๋ถ€๋ฅผ ์•ˆ์œผ๋กœ ๋“ค์ด๋Š” ๋™์‹œ์— ์™ธ๋ถ€๋ฅผ ํ–ฅํ•ด ๋ฐœ์‚ฐํ•˜๋Š” ๊ณต๊ฐ„์ด๋‹ค. ใ€ˆ๋ชธ-์ง‘ใ€‰์—์„œ ์ฐฝ์ž‘ ๊ณต๊ฐ„์€ ๋ฐœ์‚ฐํ•˜๋Š” ์›์‹ฌ์˜ ๊ณต๊ฐ„์ด๊ณ , ์‚ด๋ฆผ ๊ณต๊ฐ„์€ ์ˆ˜๋ ดํ•˜๋Š” ๊ตฌ์‹ฌ์˜ ๊ณต๊ฐ„์ด๋‹ค. ๋‘ ๊ณต๊ฐ„์€ ๋ชฉ๊ตฌ์กฐ์˜ ์–‡์€ ๋ฐ”๋‹ฅํŒ์„ ๊ฒฝ๊ณ„๋กœ 3์ฐจ์›์œผ๋กœ ๋ฌผ๋ฆฌ๋ฉด์„œ ์„œ๋กœ๋ฅผ ๊ทœ์ •ํ•˜๊ณ  ๋˜ ์ง€ํƒฑํ•˜๊ณ  ์žˆ๋‹ค. ๋‘ ๊ณต๊ฐ„์€ ๊ตฌ์‹ฌ๊ณผ ์›์‹ฌ์ด ์„œ๋กœ ๊ธธํ•ญํ•˜๋ฉฐ, ๊ทธ ์žฅ๋ ฅ์˜ ๊ธด์žฅ์œผ๋กœ ์ฐฝ์ž‘๊ณผ ์ผ์ƒ์„ ํŒฝํŒฝํžˆ ์—ฎ๊ณ  ์žˆ๋‹ค.

115 2. ๋ชธ-์ง‘๊ณผ ๋””์Šคํ—› ์ถœ์ž…๊ตฌ์˜ ๋‹ค๋ฅธ ์–ด๋ฒ• ๋ชธ-์ง‘, ๊ธธํ•ญ์˜ ์žฅ๋ ฅ์œผ๋กœ ํŒฝํŒฝํ•œ ์ง‘ ์ฐฝ์ž‘์€ ์ž‘๊ฐ€์˜ ๋‚ด๋ฉด์„ ์™ธ๋ถ€๋กœ ๋“œ๋Ÿฌ๋‚ด๋Š” ํ–‰์œ„๋‹ค. ์ฐฝ์ž‘์€ ์ž‘๊ฐ€๋ฅผ ์ž‘๊ฐ€๋˜๊ฒŒ ํ•˜๋Š” ๊ทผ๊ฐ„์œผ๋กœ, ๊ทธ๊ฒƒ์€ ์ž‘๊ฐ€์˜ ์น˜์—ดํ•œ ์ž๊ธฐ๋Œ€๋ฉด์˜ ๊ฒฐ๊ณผ๋ฌผ์„ ๋งŒ๋“ค์–ด ๋‚ด๋Š” ์ ๊ทน์  ํ–‰์œ„๋‹ค. ๋นˆ ํ™”ํญ์„ ๋งˆ์ฃผํ•˜๋Š” ํ™”๊ฐ€, ๋นˆ ์ข…์ด๋ฅผ
๊ฑด์ถ•๊ฐ€,
๊ทธ ๋น„์›Œ์ ธ ์žˆ๊ฑฐ๋‚˜
ํƒ€
๋ผ์‚ฌ์—
๊ฐ–๊ณ 
๊ทธ๋“ค์€
ํ˜น์€ ์ธ์œ„๊ฐ€ ๊ฐœ์ž…๋˜๊ธฐ ์ „์˜
๋ธ”๋ผ
๊ทธ๋“ค์ด
์žˆ๋Š”
์ด, ์ˆœํ™”๋œ ์ž๊ทน์€ ์ผ์ƒ์„ ํ–ฅํ•ด ์‚ฌ๋‚ฉ๊ฒŒ ๋‹ฌ๋ ค๋“ค์ง€ ์•Š๊ณ  ์‹œ๊ฐ„๊ณผ
๊ณ์— ๋‘”๋‹ค. ๋งˆ์น˜ ํ—›์ง‘์—์„œ ๋ณธ ๊ฒƒ๊ณผ ๊ฐ™
2

์ง€์–ด์งˆ ์ง‘

์ด์ข…๊ฑด์€ ๊ฑด์ถ•๊ต์œก์ž๋กœ์„œ์˜ ํ™œ๋™

๋งˆ์ง€๋ง‰ ์ฆˆ์Œ์— ์ž์‹ ์ด ๊ฑฐ์ฃผํ•  ์ง‘์„

์ง€์„ ๊ณ„ํš์„ ์„ธ์› ๋‹ค. ์‚ฌ๋žŒ๋“ค๊ณผ์˜

๋Œ€ํ™”์—์„œ๋„ ์ด๋Š” ์ž์ฃผ ์†Œ์žฌ๊ฐ€

๋˜์—ˆ๋‹ค. ๊ทธ๋ฆฌ๊ณ  ๋‹จํ˜ธํ•ด ๋ณด์˜€๋‹ค.

์žฌ๋ฃŒ์™€ ๊ตฌ์กฐ, ๊ธฐ๋Šฅ๋ฟ๋งŒ ์•„๋‹ˆ๋ผ

๋‹ด์•„๋‚ด์•ผ ํ•  ์˜๋ฏธ์˜ ๋‚ด์šฉ๋„ ์‹œ๊ฐ„์ด

์ง€๋‚˜๋ฉด์„œ ์ ์  ๋” ๋ถ„๋ช…ํ•ด์กŒ๋‹ค.

๋ชฉ์ ์€ ๋ณดํ˜ธ๋กœ๋ถ€ํ„ฐ ์‹œ์ž‘ํ•˜๋Š”

์—ฌ๋Ÿฌ ์š•๊ตฌ, ํŠนํžˆ ์ •์‹ ์  ์š•๊ตฌ์˜

์ถฉ์กฑ์ด์—ˆ๋‹ค. ๊ทธ๋Š” ์ด ๋งˆ์ง€๋ง‰์„ โ€œ์ž์‹ ์ด๋ผ๋Š” ์กด์žฌ์˜ ๊ฝƒ์„ ํ”ผ์šฐ๊ณ ์ž ํ•˜๋Š” ์š•๊ตฌโ€(์ด์ข…๊ฑด, ใ€Ž์ง€๊ธˆ์€ ์ง‘์„

์ง€์„ ์‹œ๊ฐ„ใ€, 2020)๋ผ๊ณ  ํ‘œํ˜„ํ–ˆ๋‹ค. ์˜ค๋žœ ์‹œ๊ฐ„ ๊ฑด์ถ•๋น„ํ‰๊ฐ€๋กœ์„œ ํ™œ๋™ํ–ˆ๋˜ ๊ทธ์˜ ์ด๋ ฅ์ด๋‚˜ ์„ฑ๊ณผ๋ฅผ ๋ณด๋ฉด ์ด

๋ง์€ ๋‹จ์ง€ ๋„๊ตฌ์— ๋จธ๋ฌผ ๋ฏธ์‚ฌ์—ฌ๊ตฌ๋Š”

์•„๋‹Œ ๊ฒƒ ๊ฐ™์•˜๋‹ค. ๋„๊ตฌ๊ฐ€ ์•„๋‹ˆ๋ผ๋ฉด ๋ชฉ์ ์ด์–ด์•ผ ํ•  ํ„ฐ์ธ๋ฐ ์–ด๋–ป๊ฒŒ

โ€˜์กด์žฌโ€™๊ฐ€ ๊ทธ ์ž๋ฆฌ๋ฅผ ์ฐจ์ง€ํ•˜๊ฒŒ ๋ ๊นŒ? ์ž์‹ ์€ ์–ด๋–ป๊ฒŒ ๋˜ ๋ˆ„๊ฐ€ ์ •์˜ํ•˜๊ฒŒ ๋˜๋Š”์ง€? ๊ทธ๋ฆฌ๊ณ  ๊ทธ๋Š” ์ง‘์ด ์žˆ๋Š” ๊นŒ๋‹ญ์— ๋ˆ„๊ตฌ๋‚˜ ๋ถˆ์•ˆ๊ณผ ์†Œ๋ž€์—์„œ ๋ฒ—์–ด๋‚˜ ์•ž์œผ๋กœ ๋„๋ž˜ํ•  ๋ฌด์—‡์„ ๊ธฐ๋‹ค๋ฆฌ๋Š” ์‹œ๊ฐ„์˜ ์กด์žฌ๊ฐ€ ๋œ๋‹ค๊ณ  ํ–ˆ๋‹ค. ๊ทธ ์˜๋ฏธ๋ฅผ ๋˜์ƒˆ๊ธฐ๋ฉด, ์‹œ๊ฐ„์˜ ์กด์žฌ๊ฐ€ ๋˜๋ ค๋ฉด ๋ฐ˜๋“œ์‹œ ์ง‘์ด ์žˆ์–ด์•ผ ํ•œ๋‹ค๋Š” ๋ง์ด๋ฉฐ ์ผ๋ฐ˜ํ™” ์„ฑ๊ฒฉ์˜ ๋ช…์ œ์ด๊ธฐ๋„ ํ•˜๋‹ค. ๊ทธ๋Ÿฐ๋ฐ ๊ณผ์—ฐ ์šฐ๋ฆฌ๋Š” ๊ทธ ๋‘˜์˜ ์ธ๊ณผ ๊ด€๊ณ„๋ฅผ ์˜๊ตฌ์‹ฌ ์—†์ด

๋ฐ›์•„๋“ค์˜€๋Š”์ง€, ๋˜ ๊ฐ€์น˜๋กœ ์ธ์ •ํ•ด

์™”๋Š”์ง€ ์—ฌ๋Ÿฌ๋ชจ๋กœ ๋˜๋Œ์•„๋ด๋„

๊ธ์ •ํ•˜๊ธฐ๊ฐ€ ์‰ฝ์ง€ ์•Š๋‹ค. ์ง‘ ์ด์•ผ๊ธฐ๋ฅผ ํ•˜๋Š” ๊ณณ๋งˆ๋‹ค ๋“ค๋ฆฌ๋Š” ์†Œ๋ฆฌ๋Š” ๋„๊ตฌ์ 

๊ธฐ๋Šฅ์ด๊ฑฐ๋‚˜ ๊ฒฝ์ œ์„ฑ์˜ ๋…ผ๋ฆฌ๋ฅผ ์œ„ํ•œ

๊ฒƒ๋ฟ์ด์—ˆ๊ธฐ ๋•Œ๋ฌธ์ด๋‹ค. ์ง‘์˜ ๋ชจ์–‘์„ ์ด์•ผ๊ธฐํ•œ๋‹ค๊ณ  ํ•ด๋„ ๋Œ€๊ฐœ ์‹œ๊ฐ„ ๊ฐœ๋…์ด ๋“ค์–ด์„ค ์ž๋ฆฌ๋Š” ์—†์—ˆ๋‹ค.

์ง‘์ฃผ์ธ์ธ ๋น„ํ‰๊ฐ€๊ฐ€ ๋˜์ง„ ๋ง์˜

์˜๋„๋ฅผ ๋˜์ƒˆ๊ฒจ ๋ณด๋ฉด ํ™•์‹คํžˆ 20์„ธ๊ธฐ

์ง€์„ฑ์‚ฌ์˜ ์ค‘์š”ํ•œ ๋‹จ๋ฉด๊ณผ ์ฃผ์ œ๊ฐ€

์—ฟ๋ณด์ธ๋‹ค. ๊ทธ๋ž˜์„œ ๊ทธ๊ฐ€ ์„ค๊ณ„ํ•œ ๊ฑด์ถ•๋ฌผ์— ๋Œ€ํ•œ ๊ธฐ๋Œ€๋Š” ๋Œ€ํ™”์˜ ๊ณ„๊ธฐ๋งˆ๋‹ค ์†Œ์žฌ๊ฐ€ ๋˜์—ˆ๋‹ค.

์ง€์–ด ๊ฐ€๋Š”๊ณผ์ •๊ณผ๊ฑด์ถ•์ ์ผ์ƒ

๋Œ€์ง€๋Š” ์–‘ํ‰์˜ ๊นŠ์ˆ™ํ•œ ๊ณณ, ๋‚˜์ง€๋ง‰ํ•œ

์‚ฐ ์ค‘ํ„ฑ์— ์ž๋ฆฌํ•˜๊ณ  ์žˆ์—ˆ๋‹ค. ๋‘

์ฑ„๋ฅผ ์ง€์„ ๊ทœ๋ชจ์˜ ํฌ๊ธฐ์˜€๋‹ค. ์ด๋ฏธ

์ง‘ํ„ฐ ์•„๋ž˜์™€ ์œ„์—๋Š” ์ง‘๋“ค์ด ๋“ค์–ด์„ 

์ƒํƒœ์˜€๊ณ , ์ƒˆ๋กœ ์ง€์–ด์งˆ ์ง‘์€ ์˜ค๋žœ

์ž์—ฐ์˜ ๊ฒฝ๊ด€์— ํฐ ๋ณ€ํ™”๋ฅผ ์˜ˆ๊ณ ํ•˜๊ณ 

์žˆ์—ˆ๋‹ค. ์ ˆํ† , ์ถ•๋Œ€, ์ง‘๋“ค ์‚ฌ์ด๋กœ ๋‚ธ ์ฐจ๋Ÿ‰ ์ง„์ž…์˜ ๊ฒฝ์‚ฌ์ง„ ๋„๋กœ. ๊ธฐ๋‹จ ์œ„์— ์„  ์ฒ ์žฌ ๋น„๊ณ„ ์‚ฌ์ด๋กœ ๊ตฌ์กฐ์ฒด ๋ชฉ์žฌ๋“ค์ด ์ง‘์˜ ๊ทœ๋ชจ๋ฅผ ๊ฐ€๋Š ํ•˜๊ฒŒ ํ–ˆ๋‹ค. ๋‘ ์ฑ„์˜ ์ง‘. ๋„๋กœ์—์„œ ๊ฐ€๊นŒ์šด ํ„ฐ์—๋Š” ๊ฑด์ถ•๊ฐ€ ๋‚˜์ธํ˜œ๊ฐ€ ์ž์‹ ์˜ ์ฒซ ์ฃผํƒ์„ ์‹คํ˜„ํ•˜๊ณ  ์žˆ์—ˆ๋‹ค. ์ด์— ์ด์–ด ๋‹ค๋ฅธ ์ƒˆ๋กœ์šด ์ง‘์€ ๋Œ€์ง€ ๊นŠ์€ ๊ณณ์— ์œ„์น˜ํ–ˆ๋‹ค. ์ด ์ง‘์„ ์œ„ํ•ด ๊ณต์‚ฌ ๊ธฐ๊ฐ„ ํ–‡๋น›์— ์˜ค๋žœ ์‹œ๊ฐ„ ๋…ธ์ถœ๋˜์–ด ๊ฑด๊ฐ•ํ•œ ์ธ์ƒ์˜ ๊ฑด์ถ•๊ฐ€๋Š” ์ธ๋ถ€๋“ค๊ณผ ํ•จ๊ป˜ ์—ฌ์ „ํžˆ ๋Œ€ํ™”๋ฅผ ๋‚˜๋ˆ„๊ณ  ์žˆ์—ˆ๋‹ค.

์žฌ๋ฃŒ์˜ ์„ ์€ ์ž์‹ ์ด ํฌ์ƒํ•ด ์ด๋ค„๋‚ผ ๋ชจ์–‘์„ ํ–ฅํ•ด ๊ธฐ๊ณ„ ์†Œ๋ฆฌ์™€ ํ•จ๊ป˜ ์กฐ์œจ๋˜๊ณ  ์žˆ๋Š” ๊ฒƒ์ฒ˜๋Ÿผ ๋ณด์˜€๋‹ค. ํ•˜๋ฃจ ๋…ธ๋™์˜ ๋งˆ๋ฌด๋ฆฌ. ์ถ”์ž„์ƒˆ์ฒ˜๋Ÿผ ๋“ค๋ฆฌ๋Š” ์ˆ˜๊ณ ์˜ ์†Œ๋ฆฌ๊ฐ€ ํŠธ๋Ÿญ์˜ ์‹œ๋™๊ณผ ํ•จ๊ป˜ ๋„์‹œ์˜ ๋ฒˆ์žก์„ ์ด๊ณณ์—์„œ ๋‹ค์‹œ ์—ฐ์ƒ์‹œ์ผฐ์ง€๋งŒ, ์ด๋‚ด ๊ณ ์š”๊ฐ€ ๋„“์€ ์ž์—ฐ์œผ๋กœ ๋˜๋Œ์•„์™”๋‹ค. ์ดˆ๋Œ€๋œ ๋น„ํ‰๊ฐ€๋“ค ๋ช‡ ์‚ฌ๋žŒ๊ณผ ๊ฑด์ถ•๊ฐ€๋Š” ๊ฑด๋ฌผ์ด ๋‚ด๋ ค๋‹ค๋ณด์ด๋Š” ๊ณณ์— ์žˆ๋˜ ํƒ์ž์— ๊ฑธํ„ฐ์•‰์•„ ์‹œ๊ณต ๊ณผ์ •๊ณผ ์žฌ๋ฃŒ ์ˆ˜๊ธ‰, ๊ตฌ์กฐ์˜ ํŠน์ง•, ๋น›๊ณผ ๊ณต๊ฐ„์˜ ์ฃผ์ œ๋„ ๋Œ€ํ™”์˜ ์†Œ์žฌ๋กœ ์‚ผ์•˜๋‹ค. ๊ตฌ์กฐ์ฒด๋งŒ ๋ง‰ ์™„์„ฑ๋œ ์ง‘์•ˆ์œผ๋กœ ์ž๋ฆฌ๋ฅผ ์˜ฎ๊ฒจ ๋Œ€ํ™”๋ฅผ ์ด์–ด๊ฐ”๋‹ค. ๊ฑด์ถ•๊ฐ€๋Š” ์ž์‹ ์˜ ์ง‘์ด ์–ด๋–ค์ง€, ๋ฌด์—‡์ธ์ง€ ๋งํ–ˆ๋‹ค. ์œก์‹ ์ด ๋จธ๋ฌผ๊ธฐ ์œ„ํ•ด์„œ๋Š” ์ต์ˆ™ํ•œ ์žฅ์†Œ, ์ •์‹ ์ด ๋ชจํ—˜ํ•˜๊ธฐ ์œ„ํ•ด์„œ๋Š” ๋‚ฏ์„  ๊ณต๊ฐ„์ด ๋˜์–ด์•ผ ํ•œ๋‹ค๊ณ  ํ–ˆ๋‹ค. ๊ทธ๊ฐ€ ์ง‘์„ ์ง“๊ธฐ ์ „ ์ง‘์˜ ์›ํ˜•์€ ํ”ํžˆ ๋งํ•˜๋Š” โ€˜์˜ค๋‘๋ง‰์ง‘โ€™์ด์—ˆ๋‹ค. ํ”ผ์•„๋…ธ์˜ ๋‘ ํ‰ ๋‚จ์ง“ ํฌ๊ธฐ ๋””์˜ค๊ฒŒ๋„ค์Šค๋กœ ์ด๋ฆ„ ๋ถ™์ธ ์ง‘, ์†Œ๋กœ์˜ ์›”๋“  ์˜ค๋‘๋ง‰, ๋ฒ•์ •

1. ๊ณต์‚ฌ๊ฐ€๋ฆผ๋ง‰ ์†์˜ ๋‘ ์ง‘ โ’ธ๊น€์˜์ฒ 

๋น„ํ‰ ๊ฑด์ถ•๋น„ํ‰๊ฐ€์˜ ์ง‘ : ๋‚˜๋ฌด์™€ ์ฒ , ๊ทธ๋ฆฌ๊ณ  ์ด์ƒํ–ฅ์˜ ์ •ํ†  ๊ธ€. ๊น€์˜์ฒ  ๊ฑด์ถ•๋น„ํ‰ ๋ฐ ์ด๋ก ๊ฐ€ CRITICISM 1
117 2 2. ๋ชธ-์ง‘๊ณผ ๋””์Šคํ—› 3. ๊ณต์‚ฌ ์ค‘์ธ ๋ชธ-์ง‘ 2์ธต์— ํŽผ์ณ์ง„ ์™ธ๋ถ€ ์กฐ๋ง โ’ธ๊น€์˜์ฒ  4. ๊ณต์‚ฌ ์ค‘์ธ ๋””์Šคํ—› ๋‚ด๋ถ€ ๊ณต๊ฐ„์˜ ๋ชฉ๊ตฌ์กฐ์ฒด๊ณ„ โ’ธ๊น€์˜์ฒ  3 4

์ง‘๋“ค์ด๋‹ค. ๊ทธ๋Ÿฌ๋‚˜ ๊ฐ€์น˜๋ฅผ ๋„์™ธ์‹œํ•˜๊ณ  ๋‹จ์ง€ ๊ฒฝ์ œ ๊ทœ๋ชจ๊ฐ€ ํ—ˆ์šฉํ•  ์ง‘์ด๋ผ๊ณ  ํ•˜๋ฉด

๋ˆ„๊ตฌ๋ผ๋„ ์ˆ˜๊ธํ•  ๊ฒƒ์ด๋‹ค.

๊ทธ๋Ÿผ์—๋„ ๊ทธ๊ฐ€ ์ง€์„ ์ง‘์˜ ๊ด€์‹ฌ์‚ฌ๋Š”

๋ชจ์–‘์ด๋‚˜ ํฌ๊ธฐ๋งŒ์€ ์•„๋‹ˆ์—ˆ๋‹ค.

๊ทธ๊ฐ€ ์ง‘์„ ๋งํ•  ๋•Œ ๋“ฑ์žฅํ–ˆ๋˜

๋‹ค๋ฅธ ์ด๋ฆ„๋“ค์ด ์žˆ๋‹ค. ํ‚ค๋ฆฌ์ฝ”, ๋งˆ๊ทธ๋ฆฌํŠธ, ์—˜๋ฆฌ์•„๋ฐ, ๋ฐ”ํƒ€์ด์œ  ๋“ฑ์ด๋‹ค. ๊ฑด์ถ•๊ฐ€๊ฐ€ ์ด๋“ค๊ณผ ์ƒ๊ฐ์„ ๋‚˜๋ˆ„์—ˆ๋˜ ์ด์œ ๋Š” ๊ฑด์ถ•์˜ ๋˜ ๋‹ค๋ฅธ ํ•ต์‹ฌ, ์กฐ์‹ฌ์Šค๋Ÿฝ๊ฒŒ ํ‘œํ˜„ํ•˜์ž๋ฉด ์„ธ๊ณ„๋ฅผ ์ •์˜ํ•  ์ฃผ์ œ ๋•Œ๋ฌธ์ด์—ˆ๋‹ค. ๊ฑด์ถ•๊ฐ€๋Š” ์ด๋ฅผ โ€œ์ง„์ •ํ•œ ์„ธ๊ณ„์˜ ํ•ต์‹ฌ์€ ์‹ ๋น„๋‹คโ€๋ผ๊ณ  ํ–ˆ๋‹ค. ๋ฌด๊ธฐ๋ ฅ, ๊ฐˆ๋“ฑ๊ณผ ๊ณ ํ†ต, ์ „์Ÿ๊ณผ ํŒŒ๊ดด ๋“ฑ ์šฐ๋ฆฌ๊ฐ€ ์—ฌ๋Ÿฌ ๊ฐ€์ง€๋กœ ์ด๋ฆ„ํ•  ์ˆ˜ ์žˆ๋Š” ์‚ถ์˜ ์กฐ๊ฑด์„ ๋„˜์–ด์„ค ๊ฐ€๋Šฅ์„ฑ์€ ๋ฐ”๋กœ ์‹ ๋น„์— ์žˆ์—ˆ๋‹ค. ์ด๊ฒƒ์˜ ํ˜•์‹์€ โ€˜์‹œ์ ์ธ ๊ฒƒโ€™์ด์—ˆ๊ณ , ๊ทธ ์„ฑ์ทจ์˜ ์‹ฌ๊ธ‰์ด๊ธฐ๋„ ํ–ˆ๋‹ค. ๊ทธ๋Ÿฌ๋‚˜ ์šฐ๋ฆฌ๊ฐ€ ๋ถ™์žก์„ ์ˆ˜๋„ ์—†๊ณ  ๋”ฐ๋ผ์„œ ๋Œ€์ƒ์œผ๋กœ ์žฌ์ƒ์‚ฐํ•ด ๋‚ผ ์ˆ˜๋„ ์—†๋Š” ๊ฒƒ์— ๋Œ€ํ•ด์„œ ๊ฑด์ถ•๊ฐ€๋ผ๋ฉด ๋„๋Œ€์ฒด ์–ด๋–ป๊ฒŒ ๊ด€๊ณ„ํ•  ์ˆ˜ ์žˆ์„๊นŒ? ๋ถˆ๊ฐ€๋Šฅ ์•„๋‹Œ๊ฐ€? ๊ธฐ๊ปํ•ด์•ผ ์นจ๋ฌตํ•˜๊ฑฐ๋‚˜ ํ˜น์€ ์ ๊ทน์ ์œผ๋กœ ๋ถ€์ •ํ•˜๋Š” ๊ฒƒ์ด ๋Œ€์•ˆ์ผ ๊ฒƒ์ด๋‹ค. ๊ฑด์ถ•์—์„œ ์‹ ๋น„๋Š” ๋“ค์–ด์„ค ์ž๋ฆฌ๊ฐ€ ์—†๋‹ค๊ณ  ํ•˜๋ฉด ๋  ๊ฒƒ์ด๋‹ค. ์ด๋ฅผ ๋‹ค์‹œ ๋ถ€์ •ํ•˜๋ ค๋ฉด ์šฐ๋ฆฌ๋Š” ์šฐ๋ฆฌ๊ฐ€ ๊ฟˆ๊พธ๊ณ  ์žˆ๋‹ค๋Š”

์‚ฌ์‹ค์„ ๊ฟˆ๊พธ๋ฉด์„œ ์•„๋Š” ์ˆ˜๋ฐ–์— ์—†๋Š”

๊ฒƒ์ฒ˜๋Ÿผ ๋ณด์ธ๋‹ค. ๊ทธ๋Ÿฐ๋ฐ ๊ฑด์ถ•๊ฐ€๋Š” ์ด

๋ฌธ์ œ์—์„œ ์ „ํ˜€ ํ›„ํ‡ดํ•˜์ง€ ์•Š๊ณ  ์žˆ๋‹ค. โ€œ์‹ ๋น„๋Š” ์„ฑ์Šค๋Ÿฌ์›€์˜ ์‚ฌํƒœ๋‹คโ€๋ผ๊ณ 

6 5

ํ–ˆ๋‹ค. ์„ฑ์Šค๋Ÿฌ์›€์˜ ๊ฐœ์ธ์  ๊ฒฝํ—˜์€ ์ „์œ„, ๊ณง ๋‘ ์žฅ์†Œ์— ๋™์‹œ์— ์žˆ์œผ๋ฉฐ ๋™์‹œ์— ์–ด๋–ค ์žฅ์†Œ์—๋„ ์žˆ์ง€ ์•Š์Œ์˜ ๊ฒฝํ—˜์— ์ง€๋ฐฐ๋œ๋‹ค๋Š” ๊ฒƒ์ด๋‹ค. ์„ธ๊ณ„์— ์‚ด๋ฉด์„œ๋„ ์„ธ๊ณ„ ๋ฐ”๊นฅ์— ์žˆ๋‹ค๊ณ  ํ•ด์•ผ ํ•˜๋Š” ๋ง, ๋ชจ์ˆœ์ฒ˜๋Ÿผ ๋“ค๋ฆฌ๋Š” ๋ง์ด๋‹ค. ๊ทธ๋ฆฌ๊ณ  ์—ฌ๊ธฐ์— ์žˆ์ง€๋งŒ, ์—ฌ๊ธฐ๊ฐ€ ์•„๋‹Œ ๊ณณ์— ์žˆ๋‹ค๋Š” ๊ธฐ๋ถ„์„ ์‚ฌ์‹ค๋กœ ์—ฌ๊ฒจ์•ผ ํ•˜๋Š” ์ƒํ™ฉ์— ์ฒ˜ํ•  ์ˆ˜๋ฐ–์— ์—†๋‹ค. ๊ทธ๋Ÿฌ๋‚˜ ์—ฌ์ „ํžˆ ๋ชจ๋˜์˜ ์ด๋…์„ ์œ„ํ•ด์„œ ํ‚ค๋ฆฌ์ฝ”๋‚˜ ๋งˆ๊ทธ๋ฆฌํŠธ์™€ ๊ฐ™์€ ์˜ˆ์ˆ ๊ฐ€๋“ค์ด ๋ณด์—ฌ์ฃผ๋ ค๊ณ  ํ–ˆ๋˜ ์„ธ๊ณ„์ด๋ฉฐ ์–‘ํ‰์ง‘์˜ ๊ฑด์ถ•๊ฐ€๋„ ๋ณด๊ณ  ์žˆ๋˜ ์„ธ๊ณ„๋‹ค.

๋น„ํ‰๊ฐ€์˜์ง‘ ์–‘ํ‰ ์ฃผํƒ(์ดํ•˜, ๋””์Šคํ—›)์˜ ๋‚ด๋ถ€๋Š” ํ™•์—ฐํžˆ ๊ธฐํ•˜ํ•™์˜ ์งˆ์„œ์˜€๋‹ค. ์ง๊ต ์ขŒํ‘œ ์ฒด๊ณ„์˜ ๋…ผ๋ฆฌ๊ฐ€ ์ฃผ๋„์ ์ด์—ˆ๋‹ค. ๊ตฌ์กฐ์žฌ ์‚ฌ์šฉ์—์„œ๋„ ๊ทธ๋žฌ๊ณ , ๊ณต๊ฐ„๋“ค์„ ์ •์˜ํ•˜๋Š” ๋ฐฉ์‹๋„ ๊ทธ๋žฌ๋‹ค. ์ค‘๋ชฉ๊ตฌ์กฐ์žฌ์˜ ํŠน์ง•์— ๋จธ๋ฌผ๋ €๊ธฐ ๋•Œ๋ฌธ์ด์—ˆ์„๊นŒ? ๊ตฌ์กฐ์žฌ์˜ ๋ชจ์–‘์„ ๊ฐ€๊ฐ ์—†์ด ๋“œ๋Ÿฌ๋‚ด์„œ ์กฐํ˜•์— ์ด๋ฅด๋„๋ก ํ–ˆ๋‹ค๋ฉด ์˜คํžˆ๋ ค ํ˜•์ƒ์— ๋Œ€ํ•œ ์˜์ง€๋Š” ๋’ค๋กœ ๋ฌผ๋Ÿฌ๋‚˜ ์žˆ๋‹ค๊ณ  ํ•ด์•ผ ํ•  ๊ฒƒ์ด๋‹ค. ๊ทธ๋Ÿฐ๋ฐ ๊ฑด์ถ•๊ฐ€์™€

๋‚˜๋ˆˆ ๋Œ€ํ™”์˜ ๋‚ด์šฉ์ด๋‚˜ ๊ทธ๊ฐ€ ๋‚จ๊ธด ๊ธ€๋“ค์„ ๋˜์ƒˆ๊ธฐ๋ฉด ์˜คํžˆ๋ ค ์ด ์ง‘์€ ์กฐํ˜•์˜ ์˜์ง€๊ฐ€ ๋”์—†์ด ์ถฉ๋งŒํ•œ ์ง‘์ด๋‹ค. ์–ด๋–ค ์˜์ง€? ๊ทธ๋ฆฌ๊ณ  ๊ทธ ์˜์ง€๋Š” ์–ด๋–ป๊ฒŒ ํ‘œํ˜„๋˜๊ณ  ์žˆ๋Š”๊ฐ€? ๋‚˜๋Š” ๊ฑด์ถ•๊ฐ€๋ฅผ ๋ณด๋ฉด ๊ฐ€๋” ๋‘ ๊ฐ€์ง€ ์งˆ๋ฌธ์„ ๋˜์ง„๋‹ค. โ€˜๋‹น์‹ ์ด ํ•˜๋Š” ์ผ์ด ์–ด๋–ป๊ฒŒ ๋‹ค๋ฅธ ์˜์—ญ์˜ ์ผ๊ณผ ๋‹ค๋ฅด๊ฒŒ ๋ณด์ด๊ธธ๋ž˜ ๊ฑด์ถ•๊ฐ€๋ผ๋Š” ์ด๋ฆ„์„ ์–ป๋Š”๊ฐ€?โ€™๊ฐ€ ๊ทธ ํ•˜๋‚˜์ด๊ณ , ๋‹ค๋ฅธ ํ•˜๋‚˜๋Š” โ€˜๋‹น์‹ ์ด ๊ฑด์ถ•ํ•  ๋•Œ ๊ทธ ์‹œ์ž‘์˜ ์ด๋ฆ„์€ ๋ฌด์—‡์ธ๊ฐ€?โ€™๋‹ค. ์ด ์งˆ๋ฌธ์ด ๊ฐ€์น˜๊ฐ€ ์—†๋Š” ๊ฒƒ์€ ์•„๋‹ ํ…๋ฐ, ์˜์—ญ์˜ ๊ตฌ๋ถ„์ด ์™œ ํ•„์š”ํ•œ๊ฐ€๋ผ๋Š” ๋ฐ˜๋ฌธ์„ ๋“ฃ๊ธฐ ์ผ์‘ค์ด๋‹ค. ๊ทธ๋ฆฌ๊ณ  ์‹œ์ž‘์€ ๋Œ€๊ฐœ ๊ฒฝํ—˜์ด๊ฑฐ๋‚˜ ์•Œ๋ ค์ง„ ์ƒ์ด๋ผ๊ณ  ์ œ์‹œํ•œ๋‹ค. ์ด์™€ ๋‹ฌ๋ฆฌ ใ€ˆ๋””์Šคํ—›ใ€‰์€ ๋‹ต์ด ๋ถ„๋ช…ํ•ด ๋ณด์˜€๋‹ค. ๊ฑด์ถ•๊ฐ€์—์„œ ์ง์ ‘ ์˜จ ๊ฒƒ์€ ์•„๋‹ˆ์ง€๋งŒ, ์ด๋ก ๊ฐ€, ๋น„ํ‰๊ฐ€๋กœ์„œ์˜ ๋‚ด๊ฐ€ ์š”์•ฝํ•œ ๋‹ต์ด๋‹ค. ์ฒซ ๋ฒˆ์งธ๋Š” โ€˜๋‚˜๋Š” ๊ณต๊ฐ„์„ ์‹ค์งˆ์ ์œผ๋กœ ๋‹ค๋ฃจ๊ธฐ ๋•Œ๋ฌธ์— ๊ฑด์ถ•๊ฐ€๋ผ๊ณ  ์—ฌ๊ธด๋‹คโ€™์˜€๋‹ค. ์ถ”์ƒ์ ์œผ๋กœ ๋‹ค๋ฃจ์ง€ ์•Š๊ณ  ์‹ค์งˆ์ ์œผ๋กœ ๋‹ค๋ฃฌ๋‹ค๊ณ  ํ•œ ์ด์œ ๋Š” ์—ฌ๋Ÿฌ ๊ธฐ๋Šฅ์˜ ์˜์—ญ์„ ์ •์˜ํ•  ๋•Œ, ๊ฐ ์˜์—ญ์˜ ์„ธ ์ถ•์˜ ์„ ๋“ค์ด ๋ช…๋ฃŒํ•˜๊ฒŒ ์ œ์‹œ๋˜์–ด ์žˆ๊ณ , ์ด๋“ค์€

๊ฐ๊ฐ์˜ ์ฐจ์›์— ๊ณ ์œ ํ•˜๊ฒŒ ๋จธ๋ฌผ๋Ÿฌ ์žˆ๊ธฐ ๋•Œ๋ฌธ์ด๋‹ค. ๊ฑด์ถ•์„ ๊ทธ๋ฆผ์ฒ˜๋Ÿผ ๋ณด๋Š” ์‚ฌ๋žŒ๋“ค์—๊ฒŒ์„œ ๋ฐœ๊ฒฌํ•˜๋Š” ํŠน์ง•์€ 3์ฐจ์›๊ณผ 2์ฐจ์› ์ง€๊ฐ์„ ๋™์ผ์‹œ ํ•œ๋‹ค๋Š” ์‚ฌ์‹ค์ด๋‹ค. 3์ฐจ์›์€ ๋™์‹œ ์ง€๊ฐ์ด ๋˜์ง€ ์•Š์„ ๋ฟ๋งŒ ์•„๋‹ˆ๋ผ, ๊ฒฐ์ •์ ์œผ๋กœ๋Š” ๊ฑด์ถ•์—๊ฒŒ๋งŒ ๊ณ ์œ ํ•œ ์˜์—ญ์ด๋‹ค. ๊ทธ๋ฆฌ๊ณ  ๋‘ ๋ฒˆ์งธ์— ๋Œ€ํ•œ ๋‹ต์ด ํ•˜๋‚˜๋Š” โ€˜์‹œ์ž‘์˜ ์ด๋ฆ„์€ ๊ธฐ์›(origin/arche)์ด๋ผโ€™๊ณ  ํ–ˆ๋‹ค. ๊ธฐํ•˜ํ•™์˜ ๋…ผ๋ฆฌ๋Œ€๋กœ๋ผ๋ฉด ์˜์ (zero point)์ด๋ผ๊ณ  ํ•ด์•ผ ํ•  ๊ฒƒ์ด๋‹ค. ๊ทธ๋Ÿฐ๋ฐ ๊ทธ๋Š” ์ด๋ฅผ ์ ๊ทน์ ์œผ๋กœ ๊ฑด์ถ•์ ์œผ๋กœ ํ•ด์„ํ•ด์„œ ๋ณด๊ณ  ์žˆ์—ˆ๋‹ค. ์ด ์˜์ ์— ํ•ด๋‹นํ–ˆ๋˜ ์ด๋ฆ„, ๊ณง ์‹ , ํ˜น์€ ์ ˆ๋Œ€์ž์•„(๋ฐ์นด๋ฅดํŠธ)๋ฅผ ใ€ˆ๋””์Šคํ—›ใ€‰์˜ ๊ฑด์ถ•๊ฐ€๋Š” โ€˜์‹ ๋น„โ€™๋ผ๋Š” ์ด๋ฆ„์œผ๋กœ ๋ถ€๋ฅด๊ธฐ๋„ ํ•˜๊ณ , ๋˜ โ€˜์‹ค์ฒด์  ๋ฌผ์งˆ ๊ทธ ์ž์ฒด๊ฐ€ ์ •์‹ ์˜ ์ฐฝ์กฐ์™€ ํ˜„์‹œ๋กœ ํ•ด๊ฒฐํ•˜๋Š”โ€™ ์šฐ์ฃผ(H. Jeans, Physics and Philosophy, 1943, 1981)๋ผ๊ณ  ๊ณผ์ •์— ๋Œ€ํ•œ ์‹œ์„ ๋„ ํ•จ๊ป˜ ๋ช…์‹œํ–ˆ๋‹ค. ์ด์ œ ์ง‘์˜ ์ฃผ์ธ์ธ ๋œ ๊ฑด์ถ•๊ฐ€๋Š” ์ด ใ€ˆ๋””์Šคํ—›ใ€‰์˜ ์˜์—ญ(์žฅ์†Œ)๋งˆ๋‹ค ์‹œ์ž‘์ด์ž ๊ธฐ์›์œผ๋กœ์„œ ์ž์‹ ์˜ ์ง€ํ–ฅ์„ ๋Š˜ ํ•จ๊ป˜ ํ’ˆ๊ฒŒ ๋˜์—ˆ๋‹ค. ๊ทธ๋Š” ์ด ์ „์ฒด ๊ตฌ๋„์˜ ์ฃผ์ธ์ด ๋˜๋ ค๊ณ  ํ•œ๋‹ค. ๋‹จ์ง€ ์˜์ง€์š”, ํฌ๋ง ์‚ฌํ•ญ์ผ ๋ฟ์ผ๊นŒ? ใ€ˆ๋””์Šคํ—›ใ€‰์—์„œ ์ฃผ์ธ(์ฃผ์ฒด)๊ณผ ํ˜„์‹ค(์ง„๋ฆฌ) ๊ฑฐ๋ฆฌ๋Š” ํ•˜๋‚˜์˜ ์‚ฌ์‹ค์ด ์•„๋‹ˆ๋ผ, ์•„์ง ์ฑ„์›Œ์•ผ ํ•  ๊ฐ„๊ทน์ด ์žˆ๋Š” ๊ฒƒ์€ ์•„๋‹Œ๊ฐ€ํ•˜๋Š” ์˜๋ฌธ์ด ๋‚จ์•„ ์žˆ๋‹ค. ๊ทธ๋ž˜์„œ ์ฃผ์ธ์ด ๋˜๋ ค๊ณ  ํ•œ๋‹ค๊ณ  ํ–ˆ๋‹ค. ๊ทธ๋Ÿฐ๋ฐ ์–ด์ฉŒ๋ฉด ๋‚˜๋Š” ์—ฌ์ „ํžˆ ๊ณต๊ฐ„์„ ์ง€๋ฐฐํ•˜๋Š” ์ž๋กœ์„œ์˜ ์ฃผ์ธ์— ์ง‘์ค‘ํ•œ ๋‚˜๋จธ์ง€, ๋Œ€์ƒ์— ์ž์‹ ์„ ํˆฌ์‚ฌํ•˜๋Š” ์ผ์„ ๊ฑฐ๋ถ€ํ•˜๊ณ  ์žˆ๋˜ ๊ฒƒ์€ ์•„๋‹Œ์ง€๋„ ๋ชจ๋ฅด๊ฒ ๋‹ค. ์™„๊ณต๋œ ํ›„์˜ ใ€ˆ๋””์Šคํ—›ใ€‰์—๋Š” ๊ธฐ์–ต์„ ๋˜์‚ด๋ฆฐ ์†Œํ’ˆ๋“ค์ด ์žˆ์—ˆ๋‹ค. ๋ฒฝ๋ฉด์—๋„ ๊ณต๊ฐ„ ์ด๋™์˜ ๊ฒฐ์ ˆ์ ์—๋„ ์žˆ์—ˆ๋‹ค. ๋‚˜๋Š” ์ด๋“ค์— ๋Œ€ํ•ด ๊ฑด์ถ•์ 

118 5. ๋ชธ-์ง‘ 2์ธต์˜ ๋– ์žˆ๋Š” ์˜์ž 6. ๋””์Šคํ—›์˜ ์ฃผ์ถœ์ž…๊ตฌ ์Šค๋‹˜์˜ ์ง‘, ๋ฅด์ฝ”๋ฅด๋ท”์ง€์—์˜ ์นด๋ฐ”๋† ๊ทธ๋ฆฌ๊ณ  ํ•˜์ด๋ฐ๊ฑฐ์˜ ํ† ํŠธ๋‚˜์šฐ๋ฒ ๋ฅดํฌ ์˜ค๋‘๋ง‰์ง‘. ๋ชจ๋‘ ๋‹ค ์ž‘์€ ๊ทœ๋ชจ๋‹ค. ๊ฑฐ์ฃผ์ž์˜ ์ด๋ฆ„์„ ์ง€์›Œ๋‚ด๊ณ  ์ผ๋ฐ˜์ธ์˜ ๋‹จ์ˆœํ•œ ๋ˆˆ์œผ๋กœ ๋ณธ๋‹ค๋ฉด ๊ธฐ์ˆ ์  ์—ญ๋Ÿ‰์ด๋‚˜ ํ”ํžˆ ๋งํ•˜๋Š” ๊ฑด์ถ•์  ๊ฐ€์น˜๋ฅผ ์ฐพ๊ธฐ๋Š” ์–ด๋ ค์šด

ํ•ด์„์„ ๊บผ๋ ธ์ง€๋งŒ, ๊ฑด์ถ•๊ฐ€๋Š” ๊ฑด์ถ•์  ์˜๋„๋ฅผ ๋ถ€์—ฌํ–ˆ๋‹ค. ๊ทธ ์˜๋„๋Š” ๊ทธ์˜ ์ƒ๊ฐ์˜ ๊ตฌ๋„์—์„œ๋„ ๋ถ„๋ช…ํ•˜๊ฒŒ ์ž๋ฆฌ๋ฅผ ์ฐจ์ง€ํ•˜๊ณ  ์žˆ์—ˆ๋‹ค. ๊ฑด๋ฌผ ์™ธ๋ถ€์—์„œ ์‹œ๊ฐ์ ์œผ๋กœ ๋‘๋“œ๋Ÿฌ์ง€๊ณ , ๊ฑด์ถ•๋ฌผ ์ „์ฒด๋ฅผ ๋ณผ ๋•Œ๋งˆ๋‹ค ์‹œ์„ ์„ ์‚ฌ๋กœ์žก๋Š” ๊ฒƒ์ด ์žˆ์—ˆ๋‹ค. ๊ฑด์ถ•๊ฐ€๋Š” ์ด๋“ค๊ณผ ๋Š˜ ๋Œ€ํ™”ํ•œ๋‹ค๊ณ  ํ–ˆ๋‹ค. ๊ทธ๋Š” ๋Š˜ ์กด์žฌ ์ž์ฒด์˜ ์˜์—ญ์— ๋จธ๋ฌผ๊ณ ์ž ํ–ˆ์œผ๋ฉฐ, ๊ทธ ์˜์—ญ์€ ์˜์‹(์ด์„ฑ)์ด ์ง€๋ฐฐํ•˜๊ณ  ์žˆ์—ˆ๋‹ค. ์ด ์˜์—ญ์œผ๋กœ ์œก์‹ ์˜ ํ•œ๊ณ„๋„ ๋”›๊ณ  ์˜ฎ๊ฒจ๊ฐˆ ๊ทธ๋Š” ์ดˆ์›”์ด๋ผ๊ณ  ํ–ˆ๋‹ค ๋งค๊ฐœ๊ฐ€ ๋Š˜ ํ•„์š”ํ–ˆ๋‹ค. ๊ทธ๊ฐ€ ๋Œ€์ƒ์„ ์†์œผ๋กœ ๊ฐ€๋ฆฌํ‚ฌ ๋•Œ, ๋‚˜๋Š” ์ƒ์ง•์„ ์ƒ๊ฐํ–ˆ๋‹ค. ใ€ˆ๋””์Šคํ—›ใ€‰์˜์ฃผ์ธ ์ด ์ง‘์€ ํŠนํžˆ ๋ชจ๋˜์˜ ์‚ฌ์œ ๊ฐ€์™€ ์˜ˆ์ˆ ๊ฐ€๋“ค์ด ์ฐฝ์กฐ์  ์ˆœ๊ฐ„์— ์‚ด๋˜ ์ง‘๋“ค๊ณผ ๋น„์Šทํ•œ ๋ฐ๊ฐ€ ์žˆ๋‹ค. ์žฅ์†Œ๋กœ์„œ์˜ ๊ฐ€์น˜๊ฐ€ ๊ทธ๋ ‡๋‹ค. ๋น„ํŠธ๊ฒ์Šˆํƒ€์ธ์˜ ๋…ธ๋ฅด์›จ์ด ์ง‘, ํ•˜์ด๋ฐ๊ฑฐ์˜ ํ† ํŠธ๋‚˜์šฐ๋ฒ ๋ฅดํฌ์˜ ์˜ค๋‘๋ง‰, ๋‹ˆ์ฒด์˜ ์ฐจ๋ผํˆฌ์ŠคํŠธ๋ผ์˜ ํƒ„์ƒ์ง€ ํŽ™์Šคํƒˆ, ๋ง๋Ÿฌ์˜ ์˜ค์ŠคํŠธ๋ฆฌ์•„ ์•„ํ„ฐ์ œ ์˜ค๋‘๋ง‰ ๋“ฑ์ด ๊ทธ๋ ‡๋‹ค. ์ด๋“ค์€ ์ž‘์€ ๊ทœ๋ชจ์˜€๊ณ , ๊ทธ ๋Œ€์ง€๋Š” ๊ณผ๊ฑฐ์˜ ์„ฑ์ทจ๋‚˜ ์—ฐ์ƒ๊ณผ ๊ฑฐ๋ฆฌ๊ฐ€ ๋จผ, ์˜คํžˆ๋ ค ์ƒˆ๋กœ์šด ๋ฏธ์ง€์˜ ์„ธ๊ณ„๋งŒ์„ ์•”์‹œํ•  ๊ณณ์ด์—ˆ๋‹ค. ์ตœ์†Œ์˜ ๊ธฐ๋Šฅ, ๊ทธ๋ฆฌ๊ณ  ์œก์‹ ์˜ ๋ณดํ˜ธ๋งŒ์ด ๋ˆˆ์— ๋„๋Š” ์™ธ์  ํ˜•์‹์ด์—ˆ๋‹ค. ๊ทธ๋Ÿฌ๋‚˜ ์ด๊ณณ์—์„œ ๋ˆˆ์— ๋ณด์ด์ง€ ์•Š๋Š” ๊ฐ€๋Šฅ์„ฑ์˜ ์กฐ๊ฑด์€ ๋’ค๋กœ ๋ฌผ๋Ÿฌ๋‚จ(reducere/reductum)์˜ ๋ชจ์–‘์ด์—ˆ๋‹ค. ์ค„์ด๊ณ  ์ค„์—ฌ์„œ ๋„๋‹ฌํ•  ๊ณณ, ๊ทธ ๊ณณ์€ ์ฒ˜์Œ ์‹œ์ž‘์„ ๊ฐ€๋Šฅํ•˜๊ฒŒ ํ•˜๋Š” ๊ณณ์ด๋‹ค. ์ด๋“ค ์ง‘์˜ ์ฃผ์ธ๊ณต์€ ๋ชจ๋˜์ด๋ผ๋Š” ์ด๋ฆ„์œผ๋กœ ๊ท€๊ฒฐ๋  ์ด์ƒ(Ideal)๊ณผ ํ•œ ๋ชธ์ด์—ˆ๋‹ค. ์›๋ฆฌ๋กœ์„œ์˜ ๋ถ„์„์˜ ๋ช…๋ฃŒํ•จ, ์‚ฌ์œ  ์ฃผ์ œ์ธ ์กด์žฌ, ์œ„๋ฒ„๋ฉ˜์‰ฌ์˜ ๊ณ ํ–ฅ,

7

์ „์Šน์„ ๋„˜์–ด ์‹œ์„ ์„ ์šฐ์ฃผ๋กœ ํ–ฅํ–ˆ์ง€๋งŒ ๋‹ค์‹œ ์šฐ๋ฆฌ์˜ ์žฅ์†Œ๋กœ ๋ถ€๋ฅด๋Š” ๋Œ€์ง€์˜ ๋…ธ๋ž˜ ๋“ฑ ใ€ˆ๋””์Šคํ—›ใ€‰์€ ๊ธฐํ•˜ํ•™์˜ ์งˆ์„œ๊ฐ€ ๋ถ„๋ช…ํ–ˆ๋‹ค. ๊ทธ๋ฆฌ๊ณ  ์ง€ํ˜•์˜ ์†์„ฑ์ด๋‚˜ ์ง€๋‚œ ๋ฌธ๋ช…์˜ ์„ฑ๊ณผ๋“ค๊ณผ ๊ฑฐ๋ฆฌ๊ฐ€ ๋ฉ€๋‹ค. ๊ฑด์ถ•๊ฐ€๋Š” ์˜คํžˆ๋ ค ์‹ ๋น„๋ผ๋Š” ์ด๋ฆ„์˜ ์ฃผ์ธ๊ณผ ํ•จ๊ป˜ ์„ธ์ƒ๊ณผ ์ƒˆ๋กญ๊ฒŒ ๋Œ€ํ™”ํ•  ์žฅ์†Œ๋ฅผ ๋งŒ๋“ค์–ด ์กฐ๊ฑด์„ ๋ฐ”๊พธ์–ด ๋†“์•˜๋‹ค. ์ง„์ž…๊ตฌ, ์ž‘์—…์˜ ๊ณต๊ฐ„, ์ด๋™ ํ†ต๋กœ, ๋Œ€ํ™”์˜ ์žฅ์†Œ, ๋‚ฏ์„  ์ด๋“ค๋„ ๋จธ๋ฌผ ๋ฏธ์ง€์˜ ๊ณต๊ฐ„, ๊ทธ๋ฆฌ๊ณ  ๋ฌด์—‡๋ณด๋‹ค๋„ ํ•˜๋Š˜๊ณผ ์ž์—ฐ์œผ๋กœ ์‹œ์„ ์„ ์—ด์–ด๊ฐ€๋„๋ก

์žฅ์น˜๊ฐ€ ๋˜์–ด ์žˆ๋Š” ๊ณณ๋“ค. ๊ทธ๋Ÿฌ๋‚˜ ์ฃผ์ธ์ด ์–ธ์ œ๋‚˜ ๋จธ๋ฌผ๊ณ  ์œก์‹ ์„ ๋ณด์กฐํ•  ๊ณณ์€ ๋ณดํ†ต์˜ ์ง‘๋“ค๊ณผ๋Š” ๋‹ค๋ฅธ ์–ธ์–ด๋กœ ๋งํ•˜๊ณ  ์žˆ์—ˆ๋‹ค.

Image Credits & Contributors

๋ชจ๋“  ๋„๋ฉด ๋„๋ฉด(๋ณ„๋„ ํ‘œ๊ธฐ ์™ธ) โ’ธ๊ณต์ด๋ฆผ ๊ฑด์ถ•์‚ฌ์‚ฌ๋ฌด์†Œ

์Šค์ผ€์น˜ โ’ธ์ด์ข…๊ฑด: p.86, p.88 โ’ธ๋‚˜์ธํ˜œ: p.90, p.92, p.94 ์ธ๋ฌผ ์‚ฌ์ง„ โ’ธ๊น€์žฌ๊ฒฝ: p.73, pp.120-121

๋ชจํ˜• ์‚ฌ์ง„ โ’ธ๊ณต์ด๋ฆผ ๊ฑด์ถ•์‚ฌ์‚ฌ๋ฌด์†Œ: p.95

๊ฑด์ถ• ์‚ฌ์ง„ โ’ธ๊น€์žฌ๊ฒฝ: p.75, pp.76-77, p.79, pp.80-81, p.84, p.97, p.99, pp.100-101, p.103, pp.104-105, p.107, p.109, p.111, p.113, pp.114-115, p.117, p.118

ํ˜„์žฅ ์‚ฌ์ง„ โ’ธ๊น€์˜์ฒ : pp.116-117, p.119

์ž๋ฃŒ ํ˜‘์กฐ

๋ณธ๋ฌธ ์ „์ฒด ์ž๋ฃŒ ์ œ๊ณต: ์ด์ข…๊ฑด, ๋‚˜์ธํ˜œ & ๊ณต์ด๋ฆผ ๊ฑด์ถ•์‚ฌ์‚ฌ๋ฌด์†Œ

ํ˜„์žฅ ์ดฌ์˜ ๋ฐ ๋‹ต์‚ฌ ์ง€์› ์ด์ข…๊ฑด ๊ฑด์ถ•๊ฐ€, ์ž‘๊ฐ€ ๋‚˜์ธํ˜œ ๊ฑด์ถ•๊ฐ€, ๊ณต์ด๋ฆผ ๊ฑด์ถ•์‚ฌ์‚ฌ๋ฌด์†Œ ๋Œ€ํ‘œ

119 7. ๋””์Šคํ—›์˜ ์ƒ์ง•์  ์ œ์Šค์ฒ˜ โ’ธ๊น€์˜์ฒ 
120 ์ด์ข…๊ฑด(์ขŒ), ๋‚˜์ธํ˜œ(์šฐ)
121

โ€œ๋ฒŒ๋ ˆ๋ฅผ ๋””์ž์ธํ•œ ๋ฐฉ๋ฒ•โ€ ๊ทธ๋ฆฌ๊ณ  โ€œ๋น”์ด๋ž€ ์กด์žฌ์˜ ์ž‡์ โ€ ๋“ฑ์˜ ๋ถ€๋ถ„์—์„œ ์ธ๊ฐ„๊ณผ ์ž์—ฐ์˜ ์ฐฝ์กฐ๋ฌผ์— ๋Œ€ํ•œ ์œ ๋จธ๋Ÿฌ์Šคํ•œ ํ†ต์ฐฐ๋ ฅ์„ ๋ณด์—ฌ์ฃผ์—ˆ๋‹ค. ๊ฑด์ถ•๊ฐ€์™€ ์—”์ง€๋‹ˆ์–ด๋Š” ์‘๋ ฅ, ์ „๋‹จ๋ ฅ, ๋น„ํ‹€๋ฆผ, ํŒŒ๊ดด, ๊ณจ์ ˆ, ๊ทธ๋ฆฌ๊ณ  ์••์ถ•๋ ฅ ๋“ฑ๋“ฑ์˜ ๊ฐœ๋…์— ๋Œ€ํ•œ ๋ช…ํ™•ํ•˜๊ณ  ์„ค๋“๋ ฅ ์žˆ๋Š” ์„ค๋ช…์— ๊ฐ์‚ฌํ•ด์•ผ ํ•  ๊ฒƒ์ด๋‹ค. ์—ฌ๋Ÿฌ๋ถ„์ด ์ง‘์„ ์ง“๊ฑฐ๋‚˜ ๋ณดํŠธ์™€ ๋ฐœ์‚ฌ์ด์„ ๋งŒ๋“  ๋‹ค๋ฉด, ๊ทธ ์—ฐ๊ฒฐ๋ถ€์™€ ๋ฐ”๋‹ฅ, ์ฒœ์ •, ๋ชธ์ฒด, ๋›๋Œ€, ํ”Œ๋ผ์ž‰ ๋ฒ„ํŠธ๋ ˆ์Šค ๋“ฑ์˜ ๊ณตํ•™์ ์ธ ๋ฉด์„ ์‰ฝ๊ฒŒ ์ดํ•ดํ•  ์ˆ˜ ์žˆ๋Š” ๋„๊ตฌ๊ฐ€ ์—ฌ๊ธฐ์— ์žˆ๋‹ค. ์–ด๋ ค์šด ๋ง์ด๋‚˜ ์ง€๋‚˜์น˜๊ฒŒ ๋‹จ์ˆœํ•œ ๊ฒƒ์ด ์—†์ด, ๊ตฌ์กฐ๋ฌผ์€ ๊ฐ€์žฅ ์†”์งํ•œ ์งˆ๋ฌธ์— ๋Œ€ํ•œ ์ƒ์„ธํ•œ ๋‹ต์„

์•ˆ๋…•ํ•˜์„ธ์š”. ๋“œ๋””์–ด W/A ์ •๊ทœ ํ”„๋กœ๊ทธ๋žจ์ด ์ถœ๋ฐœํ•ฉ๋‹ˆ๋‹ค. [์ผ์‹œ] 2022๋…„ 9์›” 26์ผ(์›”)7:00pm [์žฅ์†Œ] ์ธ์ฒœ๊ด‘์—ญ์‹œ์—ฐ์ˆ˜๊ตฌ์ธ๊ถŒ๋กœ27(๋…ธ์•„๋นŒ๋”ฉ,์„ฑํ•™๊ฑด์ถ•์‚ฌ์‚ฌ๋ฌด์†Œ)3์ธต ํ™€ [ํ”„๋กœ๊ทธ๋žจ] ์ธ์ƒ ํ›„๋ฅด์ธ (LifeIs Fruity)โ”‚90minโ”‚2017โ”‚๊ฐ๋…_ํ›„์ง€ํ•˜๋ผ ๊ฒ์‹œโ”‚์ผ๋ณธโ”‚๋“œ๋ผ๋งˆ โ€œ๋ฐ”๋žŒ์ด ๋ถˆ๋ฉด ๋‚™์—ฝ์ด ๋–จ์–ด์ง„๋‹ค. ๋‚™์—ฝ์ด ๋–จ์–ด์ง€๋ฉด๋•…์ด ๋น„์˜ฅํ•ด์ง„๋‹ค. ๋•…์ด ๋น„์˜ฅํ•ด์ง€๋ฉด์—ด๋งค๊ฐ€ ์—ฌ๋ฌธ๋‹ค. ์ฐจ๊ทผ์ฐจ๊ทผ...์ฒœ์ฒœํžˆ ์ธ์ƒ์˜ ๊ถ๊ทน์ ์ธํ–‰๋ณต์ด๋ฌด์—‡์ธ์ง€, ํ˜น์€๊ฑด์ถ•์˜ ๊ถ๊ทน์ ์ธ ๋ชฉ์ ์ด๋ฌด์—‡์ธ์ง€๋ฅผ ๋˜๋Œ์•„๋ณด๊ฒŒ ํ•˜๋Š”์˜ํ™”์ž…๋‹ˆ๋‹ค. ์ฃผ์ธ๊ณต์€๊ฑด์ถ•๊ฐ€์ธ90์„ธ์˜

ํ• ์•„
์ธ ๋ฐ”ํƒ€ ํžˆ๋ฐ
ํ• 
์ Š์€์‹œ์ ˆ ๋‚˜๊ณ ์•ผ์ง€์—ญ์˜๊ณ ์กฐ์ง€โ€˜๋ผ๋Š”์‹ ๋„์‹œ ์กฐ์„ฑ๊ณ„ํš์— ์ฐธ์—ฌํ•œ ๊ณ„๊ธฐ๋กœ์ด๊ณณ์—์„œ ํžˆ๋ฐ์ฝ” ํ• ๋จธ๋‹ˆ์™€ ํ•จ๊ป˜ ๋А๋ฆฐ ์‚ถ์„ ์‚ด๊ณ  ์žˆ์Šต๋‹ˆ๋‹ค.์ˆ˜์‹ญ ๊ฐ€์ง€ ์ฑ„์†Œ์™€๊ณผ์ผ์„์žฌ๋ฐฐํ•˜๋ฉฐ ์ž์—ฐ๊ณผ ํ•จ๊ป˜ ์†Œ์†Œํ•œ์ผ์ƒ์„ ๋ˆ„๋ฆฌ๋Š” ๊ฒƒ์„์†Œํ™•ํ–‰ ์ด๋ผ๊ณ  ํ–ˆ๋˜๊ฐ€์š”...? ์ด๋ถ€๋ถ€๋Š”์†Œํ™•ํ–‰์„ ๋ˆ„๋ฆฌ๋ฉฐ ์‚ถ์—๋Œ€ํ•œ ๋งŽ์€์ด์•ผ๊ธฐ๋ฅผ ์ „ํ•ฉ๋‹ˆ๋‹ค. ์˜›๋‚ ์—ํ•œ๊ฑด์ถ•๊ฐ€๊ฐ€ ๋งํ–ˆ์Šต๋‹ˆ๋‹ค. โ€œ์ง‘์€ ์‚ถ์˜๋ณด์„์ƒ์ž์—ฌ์•ผํ•œ๋‹คโ€๊ณ  ๋ง์ด์ฃ  ๋Œ€์ง€๋Š”300ํ‰,์ง‘์€15ํ‰,๋ฐฉ์€ ํ•˜๋‚˜,๋งˆ๋‹น์—” ์ฑ„์†Œ70์ข…,๊ณผ์ผ๋‚˜๋ฌด50์ข…์ด์ž๋ž๋‹ˆ๋‹ค. ๋‚™์—ฝ์„๋ชจ์œผ๊ณ , ๋ฌตํžˆ๊ณ  ์ฉํ˜€ ํ‡ด๋น„๋กœ ๋งŒ๋“ค๊ณ ,๋•…์— ๋ฟŒ๋ฆฝ๋‹ˆ๋‹ค. ๋น„๊ฐ€ ๋‚ด๋ฆฌ๋ฉด๊ณผ์ผ๊ณผ ์ฑ„์†Œ๊ฐ€ ์ž๋ž๋‹ˆ๋‹ค. ๊ทธ ๋•…์— ํ• ๋จธ๋‹ˆ์™€ ํ• ์•„๋ฒ„์ง€์˜์ •์„ฑ์ด๋”ํ•ด์ง€์ฃ  ์ƒˆ์‚ผ์‚ผ๋ผ๋งŒ์ƒ์˜๋ณ€ํ™”๊ฐ€ ๊ฐ€์ ธ๋‹ค์ฃผ๋Š”์ž์—ฐ์˜์ด์น˜์™€ ๊ทธ์— ์ˆœ์‘ํ•˜๋Š” ์‚ถ์˜ ๊ฐ€์น˜๋ฅผ ๋ฐœ๊ฒฌ์ผ€ ํ•˜๋Š”๋“œ๋ผ๋งˆ์ž…๋‹ˆ๋‹ค.๊ฑด์ถ•์ด๋„๋‹ฌํ•ด์•ผํ•  ๊ฒฝ์ง€๊ฐ€ ์žˆ๋‹ค๋ฉด...๋‚˜๋ฅผ ๋Œ์•„๋ณด๋Š”์‹œ๊ฐ„์ด ๋˜์—ˆ์œผ๋ฉด ํ•ฉ๋‹ˆ๋‹ค.(๊ธ€. ๊ฐ•๋ณ‘๊ตญ ๊ฑด์ถ•๊ฐ€) ์ œ์ž„์Šค ์—๋“œ์›Œ๋“œ ๊ณ ๋“ (JamesEdwardGordon) ์ง€์Œ, ๋ฐ˜์ƒ์ฒ  ์˜ฎ๊น€, 1๋งŒ 9์ฒœ์› 5๋ฐฑ์› โ€œ๊ตฌ์กฐ ์„ค๊ณ„์— ๋Œ€ํ•œ ์ž…๋ฌธ์„œ๋ฅผ ์›ํ•˜์‹ ๋‹ค๋ฉด ์ •๋ง ์ •๋ง ์ข‹์Šต๋‹ˆ๋‹ค.โ€ ์ผ๋ก  ๋จธ์Šคํฌ โ€œํ’๋ถ€ํ•˜๊ณ  ์ฝ๊ธฐ ์‰ฝ๋‹ค... ๊ฐœ์ธ์ ์ด๊ณ , ์žฌ์น˜ ์žˆ๊ณ , ์•„์ด๋Ÿฌ๋‹ˆํ•˜๋‹ค.โ€ ์‚ฌ์ด์–ธํ‹ฐํ”ฝ ์•„๋ฉ”๋ฆฌ์นธ โ€œ์—ฌ๊ธฐ์—์„œ ์šฐ๋ฆฌ๋Š” ๊ทธ์˜ ์˜ˆ์ˆ , ๊ทธ๋Ÿฌํ•œ ์—ญ์‚ฌ, ๊ทธ ๋ฒ”์ฃผ์™€ ํ•จ๊ป˜ ๋ฐœ์ƒ๋˜์—ˆ๋˜ ์–ด์ด์—†๋Š” ์ผ๋“ค ๋“ฑ์— ๋Œ€ํ•ด ๋„“์€ ๊ณต๊ฐ์„ ๊ฐ–๊ณ  ์ˆ™๋ จ๋œ ์—”์ง€๋‹ˆ์–ด์™€ ์ž์œ ๋กญ๊ณ  ํŽธ์•ˆํ•œ ๋ถ„์œ„๊ธฐ์—์„œ ๋Œ€ํ™”๋ฅผ ๊ฐ–๊ฒŒ ๋œ๋‹ค. ์ด ์ฑ…์€ ์‰ฝ๊ฒŒ ์ฝํžˆ๊ณ  ๋”ฐ๋ผ์„œ ๋ฌดํ•œํ•œ ๋งค๋ ฅ์„ ๊ฐ€์ง€๊ฒŒ ํ•œ๋‹ค.โ€ ARCHITECTโ€™S JOURNAL ์ด ์„ธ๊ณ„์˜ ์›์ดˆ์ ์ด๊ณ  ๊ทผ๋ณธ์ ์ธ ๊ณผ์ œ๋“ค์ด ํ•จ๊ป˜ ๋ฌถ์—ฌ์ง„ ๊ธฐ๋ณธ์ ์ธ ํž˜๋“ค์— ๋Œ€ํ•œ ์ •๋ณด๋“ค์„ ์„ค๋ช…ํ•ด์ค€๋‹ค. ๊ฑด์ถ•๋ฌผ๊ณผ ์ธ์ฒด์—์„œ๋ถ€ํ„ฐ ํ•ญ๊ณต๊ธฐ์™€ ๊ณ„๋ž€๊ป์งˆ ๊นŒ์ง€๋ฅผ ๋ง๋ผํ•ด์„œ.... ์ง€๋ ฅ๊ณผ ๊ทธ๊ฐ€ ๊ฐ€์ง„ ๊ณผ์ œ์— ๋Œ€ํ•œ ๋Šฅ์ˆ™ํ•œ ์ฒ˜๋ฆฌ๋ฐฉ์‹, ๊ทธ๋ฆฌ๊ณ  ๋ฐฑ๊ณผ์‚ฌ์ „ ๊ธ‰์˜ ํ•ด์„ค ๋“ฑ์ด ๊ฒฐํ•ฉ๋˜์–ด ํ•˜๋‚˜์˜ ์–‘์‹์ด ๋˜์—ˆ๋‹ค. ์ €์ž๋Š” ํญ๋„“๊ณ  ๋‹ค์–‘ํ•œ ์žฌ๋ฃŒ๋ฅผ ๋ฐ”ํƒ•์œผ๋กœ ๊ธฐ์ˆ ์ ์ธ ๋ฐ์ดํ„ฐํ™”์™€ ๋ฐ”ํƒ•์ด ๋˜๋Š” ์ด๋ก ๊ณผ์˜ ๊ต๋ฅ˜๋ฅผ ํ†ตํ•ด ์—”์ง€๋‹ˆ์–ด๋ง์„ ํ•ด์„ํ•ด๋ƒˆ๋‹ค.
์ œ๊ณตํ•ด ์ค€๋‹ค. ์šฐ๋ฆฌ์˜ ์ผ์ƒ์ ์ธ ์‚ถ์—์„œ ๊ธฐ์ดˆ๊ฐ€ ๋˜์–ด์ฃผ๋Š” ๊ฒƒ์— ํฅ๋ฏธ๋ฅผ ๊ฐ€์ง€๊ณ  ์žˆ๋Š” ์‚ฌ๋žŒ์—๊ฒŒ ๊ธฐ์ˆ ๋ ฅ์˜ ๊ฒฝ์ด๋กœ์›€์„ ์—ด์–ด์ค€๋‹ค. ใ€Ž๊ตฌ์กฐใ€ ๊ตฌ์กฐ๋ฌผ์€ ์™œ ๋ฌด๋„ˆ์ง€์ง€ ์•Š๋Š”๊ฐ€? ์‹œ๊ณต๋ฌธํ™”์‚ฌ http://www.spacetime.co.kr spacetime@korea.com T : 02) 3147 1212, 2323 / F : 02) 3147 2626 WIDE [์˜ํ™”๋กœ ๊ฑด์ถ• ์ฝ๊ธฐ] Academy 9์›” ๊ฐœ๊ฐ• ํ”„๋กœ๊ทธ๋žจ
์ธ ๋ฐ”ํƒ€์Šˆ์ด์น˜
๋ฒ„์ง€์™€87์„ธ์˜
์ฝ” ํ• ๋จธ๋‹ˆ์ž…๋‹ˆ๋‹ค. ์ธ ๋ฐ”ํƒ€์Šˆ์ด์น˜
์•„๋ฒ„์ง€๋Š”

๊ทธ๋™์•ˆ 3ํšŒ(๋ฐ•์ •ํ˜„), 5ํšŒ(์ด๊ฒฝ์ฐฝ), 6ํšŒ(์†ก์ข…์—ด), 10ํšŒ(์ตœ์šฐ์šฉ)์— ๊ฑธ์ณ ํ˜„ ๋‹จ๊ณ„ ํ•œ๊ตญ ๊ฑด์ถ•ํ‰๋‹จ์˜ ์ƒˆ์–ผ๊ตด์„ ๋ฐฐ์ถœํ•œ ํ†ต๋กœ๋กœ ์ž๋ฆฌ๋งค๊น€ํ•˜์˜€์Šต๋‹ˆ๋‹ค.

๊ทธ๋Ÿฌ๋‚˜ ์žฌ์ž‘๋…„ ์ œ11ํšŒ(2020๋…„)์— ์ˆ˜์ƒ์ž๋ฅผ ๋‚ด์ง€ ๋ชปํ•œ ์ฑ„ ์ง€๋‚˜์˜จ ๊ฒƒ์— ์ด์–ด์„œ ์ž‘๋…„์— ๊ณต๋ชจํ•œ ์ œ12ํšŒ(2021๋…„)์—๋Š” ์‘๋ชจ์ž๊ฐ€ ํ•œ ์‚ฌ๋žŒ๋„ ์—†๋Š” ์ดˆ์œ ์˜ ์‚ฌํƒœ์— ์ง๋ฉดํ–ˆ์Šต๋‹ˆ๋‹ค. ์—ฌ๋Ÿฌ ๊ฐ€์ง€ ์ด์œ ๋ฅผ ์ƒ๊ฐํ•ด ๋ณผ ์ˆ˜ ์žˆ์ง€๋งŒ ์ข…์ „๊นŒ์ง€์˜ ๊ฑด์ถ•๋น„ํ‰์ƒ ๊ณต๋ชจ์ œ ์‹œ์Šคํ…œ์ด ๋‚ ๋กœ ๋ฌดํ•œ ํ™•์žฅ๋˜๋Š” ๊ฐœ์ธ ๋ฏธ๋””์–ด ์„ธ

๊ฒฝ์Ÿ๋ ฅ์„ ์žƒ์—ˆ๊ณ , โ€˜๋น„ํ‰์ƒโ€™์ด๋ž€

๋ฆฐ ์–‘ ํ•ฉ๋‹ˆ๋‹ค. ์ด ๊ฐ™์€ ์‹œ๋Œ€์  ํ๋ฆ„์— ๋ถ€์‘ํ•˜์—ฌ ์˜ฌํ•ด๋ถ€ํ„ฐ ๋ณธ์ง€๋Š” ๊ฑด์ถ•๋น„ํ‰์ƒ ์ œ๋„์—์„œ ํƒˆํ”ผํ•˜์—ฌ โ€˜๊ฑด์ถ• ํ‰๋ก  ๊ณต๋ชจ ์ถ”์ฒœ์ œโ€™๋กœ ์„ ํšŒํ•˜๋ ค ํ•ฉ๋‹ˆ๋‹ค. ๊ฑด์ถ•ํ‰๋‹จ์— ๊ด€์‹ฌ ์žˆ๋Š” ๊ฑด์ถ•์ธ๋“ค์—๊ฒŒ ํ™œ์ง ๋ฌธ์„ ์—ด๊ณ , ์ผ๋ จ์˜ ๋‹จ๊ณ„๋ฅผ ๊ฑฐ์ณ ๋“ฑ๋‹จ์ด ๊ฐ€๋Šฅํ•œ ๊ณต๋ชจ ์ถ”์ฒœ์ œ๋ฅผ ์‹œํ–‰ํ•ฉ๋‹ˆ๋‹ค. ์‘๋ชจ์ž๊ฒฉ์—๋„ ๋‚˜์ด ์ œํ•œ์„ ์—†์•ฑ๋‹ˆ๋‹ค. ๊ฑด์ถ• ํ‰๋ก  ๊ณต๋ชจ ์ถ”์ฒœ 3ํšŒ(์ž‘๊ฐ€๋ก , ์ž‘ํ’ˆ๋น„ํ‰, ์‹œ๋ก  ๊ฐ 1ํšŒ)๋ฅผ ํ†ต๊ณผํ•œ ์‘๋ชจ์ž(์ œ์ถœ ์ˆœ์„œ๋Š” ์ž์œ )์—๊ฒŒ๋Š” ๋ณธ์ง€๊ฐ€ ๋ฐœํ–‰ํ•˜๋Š” ๋“ฑ๋‹จ ์ฆ์„œ์™€ ํ•จ๊ป˜ ใ€Š์™€์ด๋“œARใ€‹ ํ•„์ž๋กœ ๋Œ€์šฐํ•˜์—ฌ, ์ง€์†์ ์œผ๋กœ ์ง‘ํ•„ ๊ธฐํšŒ๋ฅผ ์ œ๊ณตํ•ฉ๋‹ˆ๋‹ค. ๋งค๋ฒˆ ์ถ”์ฒœ๋œ ์‘๋ชจ์ž‘์€ ๋ณธ์ง€์— ๊ฒŒ์žฌํ•˜๊ณ , ์†Œ์ •์˜ ์›๊ณ ๋ฃŒ๋ฅผ ๋“œ๋ฆฝ๋‹ˆ๋‹ค. [์ ‘์ˆ˜]

widear@naver.com

-์‘๋ชจ์ž‘ ์ œ๋ชฉ ์•ž์— โ€˜[๊ฑด์ถ• ํ‰๋ก  ์‘๋ชจ]โ€™๋ผ๊ณ  ๊ธฐ์ž… ๋ฐ”๋žŒ

-์‘๋ชจ์ž‘์€ โ€˜ํ•œ๊ธ€/์›Œ๋“œโ€™ ํŒŒ์ผ๊ณผ โ€˜pdfโ€™ ํŒŒ์ผ์„ ๋™์‹œ์— ์ œ์ถœ ๋ฐ”๋žŒ [์ ‘์ˆ˜ ๋งˆ๊ฐ] ํ™€์ˆ˜ ๋‹ฌ 25์ผ [์‘๋ชจ ๋ถ€๋ฌธ ๋ฐ ๋ถ„๋Ÿ‰]

1) ์ž‘๊ฐ€๋ก  ๋˜๋Š” ์ž‘ํ’ˆ๋น„ํ‰(200์ž ์›๊ณ ์ง€ 50~60๋งค ๋ถ„๋Ÿ‰์œผ๋กœ, ๋ณธ๋ฌธ 10ํฐํŠธ ์‚ฌ์šฉ A4์šฉ์ง€ ์ถœ๋ ฅ ์‹œ 6~7๋งค ๋ถ„๋Ÿ‰)

์‹œ๋ก 

์ง‘๊ณผ ์‚ฌ๋žŒ์˜ ํ–ฅ๊ธฐ

โ€˜๊ฑด์ถ•๊ฐ€ ์ดˆ์ฒญ๊ฐ•์˜โ€™ ใ€ˆ์‹œ์ฆŒ6ใ€‰ Architects in Koreaยท โ…ฅ

2๋ผ์šด๋“œ; Emerging Power

์ฃผ๊ด€ ์™€์ด๋“œAR ์ฃผ์ตœ ๊ทธ๋ฆผ๊ฑด์ถ•, ๊ฐ„ํ–ฅํด๋Ÿฝ ํ˜‘์ฐฌ ์‹œ๊ณต๋ฌธํ™”์‚ฌSpacetime, ์ˆ˜๋ฅ˜์‚ฐ๋ฐฉ, Knollkorea ํ›„์› ๊ฐ„ํ–ฅ๊ฑด์ถ• ๋ฌธ์˜ 02-2231-3370, 02-2235-1960

*<๋•…์ง‘์‚ฌํ–ฅ>์˜ ์ง€๋‚œ ๊ธฐ๋ก๊ณผ ํ–‰์‚ฌ์ฐธ์—ฌ ๊ด€๋ จํ•œ ์ž์„ธํ•œ ๋‚ด์šฉ์€ ๋„ค์ด๋ฒ„์นดํŽ˜(์นดํŽ˜๋ช…: ์™€์ด๋“œAR, ์นดํŽ˜์ฃผ์†Œ: https://cafe.naver.com/aqlab ์—์„œ ํ™•์ธํ•  ์ˆ˜ ์žˆ์Šต๋‹ˆ๋‹ค.

> 2022๋…„ 9์›”(์ œ179์ฐจ) Architects in Korea 15

> 2022๋…„ 10์›”(์ œ180์ฐจ) Architects in Korea 16

์™€์ด๋“œAR ๊ฑด์ถ•
;
1์›”๋ถ€ํ„ฐ
ํ–‰ ๋ณธ์ง€๋Š” 2010๋…„ ์ด๋ž˜ โ€˜๊พธ๋ฐˆ ๊ฑด์ถ• ํ‰๋ก ์ƒโ€™๊ณผ โ€˜๊ณต๊ฐ„ ๊ฑด์ถ• ํ‰๋ก  ์‹ ์ธ์ƒโ€™ ์ˆ˜์ƒ์ž๋“ค์˜ ๋ชจ์ž„์ธ
ํ‰๋ก  ๊ณต๋ชจ ์ถ”์ฒœ์ œ
2022๋…„
์‹œ
๊ฑด์ถ•ํ‰๋ก ๋™์šฐํšŒ์™€ ์†์žก๊ณ  ใ€ˆ์™€์ด๋“œAR ๊ฑด์ถ•๋น„ํ‰์ƒใ€‰์„ ์ œ์ •ํ•˜์—ฌ ํ•œ๊ตญ ๊ฑด์ถ•ํ‰๋‹จ์˜ ๋ฏธ๋ž˜๋ฅผ ์งŠ์–ด์ง€๊ณ  ๊ฐˆ ์‹ ์ง„ ๋น„ํ‰๊ฐ€์˜ ๋ฐœ๊ตด์„ ๋ชจ์ƒ‰ํ•ด์™”์Šต๋‹ˆ๋‹ค.
๊ณ„์—์„œ๋Š” 1๋…„ ์ฃผ๊ธฐ์˜ ์‹œ๊ฐ„์„ฑ์ด
๊ตฌ์‹œ๋Œ€์  ๋ฐœ์ƒ์˜ ์ œ๋„ ์ž์ฒด๋„ ์ด๋ฏธ ๋‚ก์•„๋ฒ„
] -์›๊ณ  ๋ง๋ฏธ์—๋Š” โ€˜ํœด๋Œ€์ „ํ™”๋ฒˆํ˜ธโ€™์™€ โ€˜์„ฑ๋ช…โ€™์„ ๊ธฐ์ž…ํ•˜๊ธฐ ๋ฐ”๋žŒ -์ถ”์ฒœ ํ†ต๊ณผ ์—ฌ๋ถ€๋Š” ์ ‘์ˆ˜ ์‹œ์  ๊ธฐ์ค€์œผ๋กœ 1๊ฐœ์›” ๋‚ด์— ๊ฐœ์ธ e๋ฉ”์ผ ๋˜๋Š”
2)
(200์ž ์›๊ณ ์ง€ 25๋งค ๋‚ด์™ธ ๋ถ„๋Ÿ‰์œผ๋กœ, ๋ณธ๋ฌธ 10ํฐํŠธ ์‚ฌ์šฉ A4์šฉ์ง€ ์ถœ๋ ฅ ์‹œ 3๋งค ๋ถ„๋Ÿ‰) -์ฐธ๊ณ  ๋„ํŒ ๋ฐ ์‚ฌ์ง„์€ ๋ถ„๋Ÿ‰์—์„œ ์ œ์™ธํ•˜๋ฉฐ ๋ณ„๋„๋กœ ์ œ๊ณต ๋ฐ”๋žŒ -๊ฐ ๋ถ€๋ฌธ ์›๊ณ ์˜ ๋ถ„๋Ÿ‰ ์ดˆ๊ณผ ์ œ์ถœ์€ ๊ฐ€๋Šฅํ•˜๋ฉฐ, ์ด ๊ฒฝ์šฐ ์›๊ณ ๋ฃŒ ์‚ฐ์ •์—์„œ๋Š” ์ œ์™ธํ•จ [๊ธฐํƒ€
๋ฌธ์ž๋ฉ”์‹œ์ง€๋กœ ํ†ต๋ณดํ•จ ๋•…๊ณผ
์ด์•ผ๊ธฐ์†๋‹˜ : ๊น€์˜๋ฐฐ(DRAWING WORKS ๋Œ€ํ‘œ) ์ฃผ์ œ : ์ž์—ฐ์Šค๋Ÿฌ์šด ๊ฑด์ถ• ์ผ์‹œ : 10์›” 19์ผ(์ˆ˜) 7:30pm | ์žฅ์†Œ : Lighthouse(์„œ์šธ์‹œ ์ค‘๊ตฌ ์„์ง€๋กœ 146-1, 5์ธต) ์ด์•ผ๊ธฐ์†๋‹˜ : ์กฐ์„ธ์—ฐ, ์ด๋ณต๊ธฐ, ์ตœ๋ฏผ์šฑ(NOMAL ๊ฑด์ถ•์‚ฌ์‚ฌ๋ฌด์†Œ ๊ณต๋™๋Œ€ํ‘œ) ์ฃผ์ œ : nomalance(nomal+balance) ์ผ์‹œ : 9์›” 14์ผ(์ˆ˜) 7:30pm | ์žฅ์†Œ : Lighthouse(์„œ์šธ์‹œ ์ค‘๊ตฌ ์„์ง€๋กœ 146-1, 5์ธต)

๋ฏธ๋””์–ด๋žฉ & ์ปค๋ฎค๋‹ˆํ‹ฐ

GANYANG CLUB, Media Lab. & Community

์šฐ๋ฆฌ๋Š”

๊ฑด์ถ•๊ฐ€์™€ ๋น„ํ‰๊ฐ€ ๋ฐ ๋‹ค๋ฐฉ๋ฉด ๊ฑด์ถ•์˜ ํŒŒํŠธ๋„ˆ๋“ค๊ณผ ํ•จ๊ป˜ ๋„คํŠธ์›Œํฌ๋ฅผ ๊ตฌ์ถ•ํ•˜์—ฌ ๊ฑด์ถ•ํ•œ๋‹ค๋Š” ๊ฒƒ๋งŒ์œผ๋กœ ๋ฐ˜๊ฐ‘๊ณ  ํ–‰๋ณตํ•œ ์„ธ์ƒ์„ ์ง“๋Š”๋ฐ ํž˜์„ ๋ณดํƒœ๊ฒ ์Šต๋‹ˆ๋‹ค.

์šฐ๋ฆฌ๋Š”

๊ฑด์ถ•๊ณ„ ์•ˆํŒŽ์˜ ํ˜„์•ˆ์„ ์ฃผ์‹œํ•˜๋ฉฐ ์ด์Šˆ๋ฅผ ๋ฐœ๊ตด๊ณต๋ก ํ™”ํ•˜๊ณ , ๋‚˜์•„๊ฐ€ ๊ฑด์ถ•๋™๋„ค์˜ ๊ณ„์ธต, ์„ธ๋Œ€, ์—…์—ญ ๊ฐ„์˜ ๊ณจ ๊นŠ์€ ๊ฐˆ๋“ฑ ๊ตฌ์กฐ๋ฅผ ์ค‘์žฌํ•˜๋Š” ๋งค๊ฐœ์ž ์—ญํ• ์„ ํ†ตํ•ด ์šฐ๋ฆฌ ๊ฑด์ถ•์˜ ํ˜„์žฌ์™€ ๋ฏธ๋ž˜๋ฅผ ๊ฒฌ์ธํ•˜๋Š” ํ†ตํ•ฉ์˜ ์ง€๋ ›๋Œ€๊ฐ€ ๋˜๊ฒ ์Šต๋‹ˆ๋‹ค.

์šฐ๋ฆฌ๋Š”

์ด ๋•…์— ํ•„์š”ํ•œ ๊ฑด๊ฐ•ํ•œ ๊ฑด์ถ• ์ €๋„๋ฆฌ์ฆ˜์„ ๊ตฌํ˜„ํ•จ์€

๋ฌผ๋ก  ๊ฑด์ถ•๊ณผ ๋Œ€์ค‘ ์‚ฌํšŒ๋ฅผ ์—ฐ๊ฒฐํ•˜๋Š” ๋ฏธ๋””์–ด ์ปค๋ฎค๋‹ˆํ‹ฐ๊ฐ€ ๋˜๊ฒ ์Šต๋‹ˆ๋‹ค.

์šฐ๋ฆฌ๋Š”

๊ฒฉ์›”๊ฐ„ ใ€Š๊ฑด์ถ•๋ฆฌํฌํŠธ ์™€์ด๋“œ(์™€์ด๋“œAR)ใ€‹

์›”๋ก€ ์ €๋… ๊ฐ•์˜ ใ€Š๋•…๊ณผ ์ง‘๊ณผ ์‚ฌ๋žŒ์˜ ํ–ฅ๊ธฐ(๋•…์ง‘์‚ฌํ–ฅ)ใ€‹

๊ฑด์ถ•๊ฐ€๋“ค์˜ ์ด์Šˆ๊ฐ€ ์žˆ๋Š” ํŒŒํ‹ฐ ใ€ŠABCD Partyใ€‹

์ง€์—ญ ๊ฑด์ถ•์˜ ์ฝ˜ํ…์ธ ๋ฅผ ๋ฐœ๊ตดํ•˜๊ณ  ์‘์›ํ•˜๋Š” ใ€ŠICON Partyใ€‹

์ธ์ฒœ๊ฑด์ถ•์˜ ๋””์ž์ธ ๋ฆฌ๋”ฉ ๊ทธ๋ฃน์„ ์„ ์ •ํ•˜๋Š” ใ€ŠIncheon Architect 5(I.A.5)ใ€‹

๊ฑด์ถ•์—ญ์‚ฌ์ด๋ก ๋น„ํ‰์˜ ์—ฐ๊ตฌ์ž ๋ฐ ์˜ˆ๋น„ ์ €์ž๋ฅผ ์ง€์›ํ•˜๋Š” ใ€Š์‹ฌ์›๊ฑด์ถ•ํ•™์ˆ ์ƒใ€‹

์‹ ์˜ˆ ๋น„ํ‰๊ฐ€์˜ ์ถœํ˜„์„ ์‘์›ํ•˜๋Š” ใ€Š์™€์ด๋“œAR ๊ฑด์ถ•ํ‰๋ก  ๊ณต๋ชจ ์ถ”์ฒœ์ œใ€‹

๋‚ด์ผ์˜ ๊ฑด์ถ•์—๋””ํ„ฐ&์ €๋„๋ฆฌ์ŠคํŠธ๋ฅผ ์œ„ํ•œ ใ€Š์™€์ด๋“œAR ๊ฑด์ถ•์ €๋„๋ฆฌ์ฆ˜์›Œํฌ์ˆใ€‹

๊ฑด์ถ• ๋น„ํ‰๋„์„œ ์ถœํŒ ใ€Š๊ฐ„ํ–ฅ criticaใ€‹

๊ฑด์ถ•๊ฐ€(์ง‘๋‹จ)์˜ ๋ชจ๋…ธ๊ทธ๋ž˜ํ”„ ์ถœํŒ ใ€Šwide documentใ€‹

๊ตญ๋‚ด์™ธ ๊ฑด์ถ•๊ณผ ๋„์‹œ๋ฅผ ์ฐพ์•„ ๋– ๋‚˜๋Š” ํ˜„์žฅ ์ €๋„

ใ€ŠWIDE ์•„ํ‚ค๋ฒ„์Šคใ€‹

์ธ๊ฐ„ยท์‹œ๊ฐ„ยท๊ณต๊ฐ„์˜ ์ด์Šˆ๋ฅผ ์˜์ƒ์œผ๋กœ ๋”ฐ๋ผ์žก๋Š”

ใ€ŠWIDE[์˜ํ™”๋กœ ๊ฑด์ถ• ์ฝ๊ธฐ]Academy(W/A)ใ€‹

์‹ค์‹œ๊ฐ„ ZOOM์œผ๋กœ ์ง„ํ–‰ํ•˜๋Š” ๊ฑด์ถ• ๋Œ€ํ™”์˜ ์ฐฝ

ใ€Š์™€์ด๋“œAR [LIVE ํ‹ฐ๋ฐฑ]ใ€‹

๊ฑด์ถ• ์žก์ง€&์ €๋„๋ฆฌ์ฆ˜์„ ์•„์นด์ด๋น™ํ•˜๊ณ  ์—ฐ๊ตฌํ•˜๋Š”

ใ€Šํ•œ๊ตญ๊ฑด์ถ•์ €๋„๋ฆฌ์ฆ˜์—ฐ๊ตฌํšŒใ€‹

์ธ์ฒœ๋„์‹œ๊ฑด์ถ•์˜ ๊ฑด๊ฐ•ํ•œ ์ƒํƒœ๊ณ„๋ฅผ ์ค€๋น„ํ•˜๋Š”

ใ€Š์ธ์ฒœ๊ฑด์ถ•๋ฐœ์ „์—ฐ๊ตฌ์†Œใ€‹

๋“ฑ ์ผ๋ จ์˜ ํ”„๋กœ์ ํŠธ๋ฅผ ๋…์ž์ ์œผ๋กœ ๋˜๋Š” ํŒŒํŠธ๋„ˆ๋“ค๊ณผ

ํ•จ๊ป˜ ์ˆ˜ํ–‰ํ•ด์˜ค๊ณ  ์žˆ์Šต๋‹ˆ๋‹ค.

mc 1 ํ”„๋กœ๋“€์„œ ์ „์ง„์‚ผ ์‚ฌ์ง„์ด๊ด„ ๊น€์žฌ๊ฒฝ ์„น์…˜ ํŽธ์ง‘์žฅ ๋ฐ•์ง€์ผ ํŽธ์ง‘์œ„์› ๊น€ํƒœํ˜•, ๋ฐฑ์Šนํ•œ, ์ดํƒœํ˜„, ์ตœ์šฐ์šฉ ๋””์ž์ด๋„ˆ ์‹ฌํ˜„์ผ, ๋””์ž์ธยทํ˜„

mc 2 ์‚ฌ์ง„์œ„์› ๋‚จ๊ถ์„ , ๋…ธ๊ฒฝ, ์ง„ํšจ์ˆ™ ๋น„ํ‰์œ„์› ๊น€ํ˜„์„ญ, ๋ฐ•์„ฑ์šฉ, ๋ฐ•์ •ํ˜„, ์†ก์ข…์—ด, ์ด๊ฒฝ์ฐฝ, ์ด์ข…์šฐ, ํ˜„๋ช…์„

mc 3 ์ œ์ž‘์ž๋ฌธ ๊น€๊ธฐํ˜„, ์‹œ๊ณต๋ฌธํ™”์‚ฌspacetime ์ข…์ด๊ณต๊ธ‰ ๋ฐ•ํฌ์ง„, ์‹ ์•ˆ์ง€๋ฅ˜์œ ํ†ต ์ธ์‡„์ฒ˜ ์„œ์šธ๋ฌธํ™”์ธ์‡„ ์ธ์‡„์ธ ๊ฐ•์˜์ˆ™ ์ œ์ž‘๊ตญ์žฅ ๊น€์€ํƒœ ๊ด€๋ฆฌ๋ถ€์žฅ ์†์šด์ผ

mc 4 ๋…์ž์ง€์› ๋ฐ ๋งˆ์ผ€ํŒ… ๋ฐ•๋ฏธ๋‹ด ๊ณผ์›”ํ˜ธ ๊ณต๊ธ‰ ์‹ฌ์ƒํ•˜, ์„ ์ธ์žฅ ์„œ์ ๊ด€๋ฆฌ ์‹ฌ์ƒํ˜ธ, ์ •๊ด‘๋„์„œ ์งํŒ๊ด€๋ฆฌ ๋ฐ•์ƒ์˜, ์‚ผ์šฐ๋ฌธํ™”์‚ฌ

mc 5 ๊ธฐํš์ž๋ฌธ ๊ฐ•๋ณ‘๊ตญ, ๊ณ ์˜์ง, ๊ณ ์ถฉํ™˜, ๊น€์˜์ฒ , ๊น€์ •ํ›„, ๋ฐ•๋ณ‘์ƒ, ๋ฐ•์ง„ํ˜ธ, ์†์žฅ์›, ์‹ ์šฉ๋•, ์‹ ์ฐฝํ›ˆ, ์•ˆ์ฒ ํฅ, ์šฐ์ข…ํ›ˆ, ์ด์ค‘์šฉ, ์ด์ •๋ฒ”, ์ „์ง„์„ฑ, ํ—ˆ์€๊ด‘ ๊ณ ๋ฌธ ๊น€์ข…ํ—Œ, ๋ฐ•๋ฏผ์ฒ , ๋ฐ•์˜์ฑ„, ๋ฐ•์œ ์ง„, ์ด์ถฉ๊ธฐ, ์ •๊ท€์›, ํ•จ์„ฑํ˜ธ, ํ™ฉ์ˆœ์šฐ ๋ช…์˜ˆ๊ณ ๋ฌธ ๊ณฝ์žฌํ™˜, ๊ตฌ์˜๋ฏผ, ๊น€์—ฐํฅ, ๊น€์ •๋™, ๋ฐ•๊ธธ๋ฃก, ๋ฐ•์Šนํ™, ์šฐ๊ฒฝ๊ตญ, ์ด๋ฐฑํ™”, ์ด์ƒํ•ด, ์ด์ข…๊ฑด, ์ž„์ฐฝ๋ณต, ์ตœ๋™๊ทœ ๋Œ€ํ‘œ๊ณ ๋ฌธ ์ž„๊ทผ๋ฐฐ

mc 6 ์šด์˜์ž๋ฌธ ๊น€์ข…์ˆ˜, ๊น€์ฐฝ๊ท , ์ด์œค์ •, ์ตœ์›์˜ ์šด์˜์œ„์› ๊ฐ•์Šนํฌ, ์†๋„๋ฌธ, ์ด์ˆ˜์—ด, ์ด์น˜ํ›ˆ, ์ž„์„ฑํ•„, ์ฃผ์„ฑ์ง„ ๋ฐœํ–‰์œ„์› ๊น€๊ธฐ์ค‘, ๊น€ํƒœ๋งŒ, ์šฐ์˜์ •, ์ด์Šน์šฉ, ์ž„์žฌ์šฉ, ์กฐ๋‚จํ˜ธ, ์กฐํƒ์—ฐ, ํ•˜๊ด‘์ˆ˜ ํŒจํŠธ๋กฑ ๊น€์šฉ๋‚จ, ์˜ค์„ฌํ›ˆ, ์ดํƒœ๊ทœ, ์žฅ์œค๊ทœ, ์ •์Šน์ด, ์ตœ์šฑ, ํ•œ์Šน์œค mc 7 ๋ถ€ํŽธ์ง‘์ธ ๊น€์žฌ๊ฒฝ ๋ถ€๋ฐœํ–‰์ธ ์ด์ฃผ์—ฐ ๋ฐœํ–‰์ธ ๊ฒธ ํŽธ์ง‘์ธ ์ „์ง„์‚ผ mc 8 ์‹ฌ์›๊ฑด์ถ•ํ•™์ˆ ์ƒ ์ˆ˜์ƒ์ž ๋ฐ•์„ฑํ˜•, ์„œ์ •์ผ, ์ด๊ฐ•๋ฏผ, ์ด์—ฐ๊ฒฝ, ์ด๊ธธํ›ˆ, ๊ฐ•๋‚œํ˜•, ๋„์—ฐ์ •, ์„œํšจ์›, ์ด์ƒ๋ช… ์‹ฌ์›๊ฑด์ถ•ํ•™์ˆ ์ƒ ์‹ฌ์‚ฌ์œ„์›ํšŒ ๊น€์˜์ฒ , ๊น€ํ˜„์„ญ, ์„œ์ •์ผ, ํ•œ๋™์ˆ˜ ์‹ฌ์›๋ฌธํ™”์‚ฌ์—…ํšŒ ์‚ฌ๋ฌด์žฅ ์‹ ์ •ํ™˜ mc 9 ๋งˆ์‹ค์™€์ด๋“œ ๋Œ€ํ‘œ ๊น€๋ช…๊ทœ ํŒ€์› ์ตœ์ง€ํฌ, ๊ณ ํ˜„๊ฒฝ, ๊น€ํ˜„๊ฒฝ, ๊น€์ •์•„, ๊น€์ฐฌ์–‘, ์œค์€์ง€

124 ๊ฐ„ํ–ฅํด๋Ÿฝ,
๊ฐ„ํ–ฅํด๋Ÿฝ ์‚ฌ๋žŒ๋“ค

์ž„์„ฑํ•„, ใˆœ์ง‘ํŒŒํŠธ๋„ˆ์Šค๊ฑด์ถ•์‚ฌ์‚ฌ๋ฌด์†Œ ํ™๋งŒ์‹, ใˆœ๋ฆฌ์Šˆ๊ฑด์ถ•

ESSAYS & WORKS

๋‚ด ๊ฑด์ถ•์˜ ์ฃผ ์ข…๋ชฉ ์†”๊ธฐ์˜ ์ƒ์ƒ ๊ตฌ์Šน๋ฏผ; ๊ฐค๋Ÿฌ๋ฆฌ, ์ฃผํƒ, ํŽœ์…˜ ๋ฌด์‹ฌํ•œ ์•„๋ฆ„๋‹ค์›€ ๊น€์ข…์ˆ˜; ๋Œ€์‚ฌ๊ด€, ๊ณจํ”„ ํด๋Ÿฝํ•˜์šฐ์Šค, ๋ชฉ์กฐ์ฃผํƒ ์ธ๊ฐ„ ์‹œ๊ฐ„ ๊ณต๊ฐ„ ๊น€ํƒœ์„ฑ;

125 ใ€Š์™€์ด๋“œARใ€‹ 2021๋…„ 3-4์›”ํ˜ธ, Special Edition Vol.05 PARTNERS ARCHITECTS IN KOREA . โ…ค EDITORIAL ํ•œ๊ตญ ๊ฑด์ถ•์˜ ๋ฏธ๋ž˜๋ฅผ ์ค€๋น„ํ•˜๋Š” ์ Š์€ ๋ฆฌ๋”๋“ค์—๊ฒŒ ๋ฌป๋‹ค PROLOGUE ์ด์ œ๋Š” ๊ฑด์ถ•๊ฐ€์˜ ํ˜ธ์นญ์—์„œ โ€˜์ Š์€โ€™ ์ˆ˜์‹์–ด๋ฅผ ๋นผ์ž! ESSAYS ๊ฑด์ถ•์ด๋ž€ ๋ฌด์—‡์ธ๊ฐ€? & INTERVIEW ๊น€๋‚จ๊ฑด์ถ•(๊น€์ง„ํœด, ๋‚จํ˜ธ์ง„) OA-LAB(๋‚จ์ •๋ฏผ) ์•„์ด๋””์•Œ๊ฑด์ถ•(์ด์Šนํ™˜, ์ „๋ณด๋ฆผ) ์ค€ ์•„ํ‚คํ…์ธ (๊น€ํ˜„์„) ์ด์šฉ์ฃผ๊ฑด์ถ•์ŠคํŠœ๋””์˜ค(์ด์šฉ์ฃผ) ์ฐฉ์ฐฉ ์ŠคํŠœ๋””์˜ค(๊น€๋Œ€๊ท ) ํฌ๋จธํ‹ฐ๋ธŒ๊ฑด์ถ•(๊ณ ์˜์„ฑ, ์ด์„ฑ๋ฒ”) ๋น„์œ ์—์Šค๊ฑด์ถ•(๋ฐ•์ง€ํ˜„, ์กฐ์„ฑํ•™) vs. ๋ฐ•์ง€์ผ NOTICE ์ œ13ํšŒ ์‹ฌ์›๊ฑด์ถ•ํ•™์ˆ ์ƒ 2์ฐจ ๋ณธ์„  ์‹ฌ์‚ฌ ์•ˆ๋‚ด ์ œ30ํšŒ ๊น€ํƒœ์ˆ˜ ํ•ด์™ธ๊ฑด์ถ•์—ฌํ–‰ ์žฅํ•™์ œ ๊ณต๋ชจ ์ œ12ํšŒ ์™€์ด๋“œAR ๊ฑด์ถ•๋น„ํ‰์ƒ ๊ณต๋ชจ PARTNERS ARCHITECTS IN KOREA . โ…ฅ EDITORIAL ๊ฐ•ํ˜ธ์˜ ๊ณ ์ˆ˜๋“ค ARCHITECTS ๊ตฌ์Šน๋ฏผ, ์ŠคํŠœ๋””์˜ค ๊พธ์‹œ๋…ธ ๊น€์ข…์ˆ˜, ์›์Šคํ€˜์–ด๋ฏธํ„ฐ ๊ฑด์ถ•์—ฐ๊ตฌ์†Œ ๊น€ํƒœ์„ฑ, ใˆœ๊ฐ„์‚ผ๊ฑด์ถ• ์ด์ˆ˜์—ด, ใˆœํ† ๋ฌธ๊ฑด์ถ• ์ด์žฌํ˜, ใˆœ์—์ด๋””๋ชจ๋ฒ ๊ฑด์ถ•์‚ฌ์‚ฌ๋ฌด์†Œ
์˜คํ”ผ์Šค, ์—ฐ์ˆ˜์›, ์—ฐ๊ตฌ์†Œ, ํ•™๊ต, ์ƒ์—…์‹œ์„ค ์œ ํ˜•์˜ ๊ฑด์ถ• ์ด์ˆ˜์—ด; ๊ด€๊ณต์„œ, ์บ ํผ์Šค์‹œ์„ค, ๊ฐ€ํ†จ๋ฆญ๊ตํšŒ ๋†€์ดํ„ฐ
๊ณต๊ณต๋„์„œ๊ด€, ๊ต์œก์‹œ์„ค ์ขŒํ–ฅ ์—ฌ๋ฐฑ ํ‘œ์ธต ํ™๋งŒ์‹; ์ฃผ๊ฑฐ, ๊ทผ๋ฆฐ ๋ณตํ•ฉ์‹œ์„ค, ์ผ์ƒ๊ฑด์ถ• NOTICE ์ œ14ํšŒ ์‹ฌ์›๊ฑด์ถ•ํ•™์ˆ ์ƒ 2์ฐจ ๋ณธ์„  ์‹ฌ์‚ฌ ์•ˆ๋‚ด ์ œ31ํšŒ ๊น€ํƒœ์ˆ˜ ํ•ด์™ธ๊ฑด์ถ•์—ฌํ–‰ ์žฅํ•™์ œ ๊ณต๋ชจ ์ œ173์ฐจ-์ œ174์ฐจ ๋•…์ง‘์‚ฌํ–ฅ ใ€Š์™€์ด๋“œARใ€‹ 2022๋…„ 3-4์›”ํ˜ธ, Special Edition Vol.06
๊ฐ™์€ ์ตœ์†Œํ•œ์˜ ์ง‘์ง“๊ธฐ ์ด์žฌํ˜; ํ˜‘์†Œ์ฃผํƒ, ์ƒ๊ฐ€์ฃผํƒ ์ปค๋ฎค๋‹ˆํ‹ฐ ๊ณต๊ฐ„์œผ๋กœ์„œ์˜ ์ข…๊ต๊ฑด์ถ• ์ž„์„ฑํ•„; ๊ตํšŒ๊ฑด์ถ•,

PARTNERS ARCHITECTS IN KOREA โ…ฃ

EDITORIAL ๋‚˜์˜ ๊ฑด์ถ• ์ธ์ƒ์ž‘Masterwork

ESSAYS

๊ฐ•๋ณ‘๊ตญ Kang Byungkuk_๊ด‘์–‘์žฅ๋„๋ฐ•๋ฌผ๊ด€

์ตœ๋ฌธ๊ทœ Choi Moongyu_KIST ์ˆฒ์† ์–ด๋ฆฐ์ด์ง‘ ์ •์žฌํ—Œ Jeong Jaeheon_์–‘ํ‰ ํŽผ์นœ์ง‘

์ด๊ด€์ง Lee Kwanjic_์˜๋‚จ๋Œ€60์ฃผ๋…„๊ธฐ๋… ์ฒœ๋งˆ์•„ํŠธ์„ผํ„ฐ

์ดํ•œ์ข… Lee Hanjong_๊ฐ€๋ฅด๋ฉœ์˜ ๋ชจํ›„ ์ˆ˜๋„์›

์†์ง„ Son Jean_์•„์ด๋œฐ์œ ์น˜์›

์ž„ํ˜•๋‚จ, ๋…ธ์€์ฃผ Lim Hyoungnam, Roh Eunjoo_์ œ๋”ฐ์™€๋‚˜ ์„ ์›

๊น€๊ด‘์ˆ˜ Kim Kwangsoo_๋ถ€์ฒœ์•„ํŠธ๋ฒ™์ปค B39

๊น€์žฌ๊ด€ Kim Jaegwan_์œ ์ง„์ด๋„ค์ง‘

์ด์€์„ Lee Eunseok_์ƒˆ๋ฌธ์•ˆ๊ตํšŒ

๊ฐ•์Šนํฌ Kang Seunghee_์—ฌ๋ชฉํ—Œ

๊น€๋™์› Kim Dongwon_๋ถ„๋‹น๋ฉ”๋ชจ๋ฆฌ์–ผํŒŒํฌ ์‚ฌ์˜ฅ

NOTICE

์ œ12ํšŒ ์‹ฌ์›๊ฑด์ถ•ํ•™์ˆ ์ƒ ์ถ”์ฒœ์ž‘ ๋ฐœํ‘œ

์ œ29ํšŒ ๊น€ํƒœ์ˆ˜ ํ•ด์™ธ๊ฑด์ถ•์—ฌํ–‰

PARTNERS ARCHITECTS IN KOREA โ…ข EDITORIAL X์„ธ๋Œ€ ๊ฑด์ถ•๊ฐ€๋“ค์˜ ์ž์„œ์ „Architectโ€™s Autobiography

ESSAYS

๊น€์ฃผ๊ฒฝ OUJAE Architects : ๋‚˜์˜ ๊ฑด์ถ• ์ธ์ƒ ์—ฐ๋Œ€๊ธฐ ํ˜น์€ ๊ธฐ์–ต์กฐ์ž‘ ๊น€๋ฒ”์ค€ TOPOS Architectural Firm : ์˜ค๋ฆฌ์ง€๋‚ผ๋Ÿฌํ‹ฐ ํƒ๋ฌธ์˜ ๊ฑด์ถ•์—ฌ์ • ๊น€ํƒœ๋งŒ HAEAHN ARCHITECTURE : ์‹คํŒจ์˜ ์—ญ์‚ฌ (to be) unbuilt ์ด์ƒ๋Œ€ spaceyeon architects : ์–ด๋А ๊ฑด์ถ• ๋งˆ๋ผํ† ๋„ˆ์˜ ๋ฐฉ๋ฐฑๅ‚็™ฝ ์ž„์˜ํ™˜ DยทLIM architects : โ€˜์ง€์†๊ฐ€๋Šฅํ•œโ€™ ์•„๋งˆ์ถ”์–ด ๊ฑด์ถ• ๊น€์„ ํ˜„ DยทLIM architects : ๊ฟˆ๊พธ๋Š” ์ž์˜ ํ–‰๋ณตํ•œ ๊ฑด์ถ• ์กฐ์„ฑ์ต TRU Architects : ๋ƒ…ํ‚จ ๋“œ๋กœ์ž‰

๋ฐ•์ฐฝํ˜„ a round architects : ๋ช‡ ๊ฐ€์ง€ ๋‹จ์„œ๋“ค

๊น€์„ธ๊ฒฝ MMKM : ๊ฑด์ถ•์ด๋ผ๋Š” ์˜ฌ๊ฐ€๋ฏธ

๋ฏผ์„œํ™ MMKM : ๊ฑด์ถ• ์ง“๋Š” ๋†์‚ฌ๊พผ์˜ ๊ธธ

์กฐ์ง„๋งŒ JO JINMAN ARCHITECTS : ์–ด๋А ์ Š์€ ๊ฑด์ถ•๊ฐ€์˜ ํšŒ์ƒ ํ™์žฌ์Šน, ์ตœ์ˆ˜์—ฐ, ์ด๊ฐ•ํฌ PLAT/FORM : ํ’๊ฒฝ้ขจๆ™ฏ, ๋ฐ˜ ํ’๊ฒฝ ๊ทธ๋Ÿฌ๋‚˜ ์•Œ๋ ˆ๊ณ ๋ฆฌ

NOTICE

์ œ12ํšŒ ์‹ฌ์›๊ฑด์ถ•ํ•™์ˆ ์ƒ ๊ณต๋ชจ ์ œ28ํšŒ ๊น€ํƒœ์ˆ˜ ํ•ด์™ธ๊ฑด์ถ•์—ฌํ–‰์žฅํ•™์ œ ๊ณต๋ชจ

ใ€Š์™€์ด๋“œARใ€‹ 2019๋…„ 3-4์›”ํ˜ธ, Special Edition Vol.03 ใ€Š์™€์ด๋“œARใ€‹ 2020๋…„ 3-4์›”ํ˜ธ, Special Edition Vol.04
์žฅํ•™์ œ ๊ณต๋ชจ ์ œ11ํšŒ ์™€์ด๋“œAR ๊ฑด์ถ•๋น„ํ‰์ƒ ๊ณต๋ชจ SE 03 ํ•œ๊ตญ์˜ ๊ฑด์ถ•๊ฐ€๋“ค SE 04 ๊ฐ•๋ณ‘๊ตญ Kang Byungkuk ์ตœ๋ฌธ๊ทœ Choi Moongyu ์ •์žฌํ—Œ Jeong Jaeheon ์ด๊ด€์ง Lee Kwanjic ์ดํ•œ์ข… Lee Hanjong ์†์ง„ Son Jean ์ž„ํ˜•๋‚จ, ๋…ธ์€์ฃผ Lim Hyoungnam, Roh Eunjoo ๊น€๊ด‘์ˆ˜ Kim Kwangsoo ๊น€์žฌ๊ด€ Kim Jaegwan ์ด์€์„ Lee Eunseok ๊ฐ•์Šนํฌ Kang Seunghee ๊น€๋™์› Kim Dongwon
127 ใ€Š์™€์ด๋“œARใ€‹ 2017๋…„ 3-4์›”ํ˜ธ, Special Edition Vol.01 ใ€Š์™€์ด๋“œARใ€‹ 2018๋…„ 3-4์›”ํ˜ธ, Special Edition Vol.02 PUBLISHERโ€™S COLUMN โ€“ ABCDํŒŒํ‹ฐโ€“์˜ฌํ•ด์˜ ๋ฐœ๊ฒฌ ARCHITECTS IN KOREA โ…ก EDITORIAL ํ•œ๊ตญ ๊ฑด์ถ•์˜ ์ƒˆ ํŒ์„ ์—ฌ๋Š” ์ Š์€ ๋ฆฌ๋”๋“ค์˜ 12๊ฐ€์ง€ ํ™”๋ฒ• ESSAYS ๊ฑด์ถ•์˜ ์—„๋ฐ€์„ฑ๊ณผ ๋†๋‹ด, ํ˜น์€ ์‚ฌ๋ž‘๊ณผ ์ฒด๋… : aoa architects ๊ฑด์ถ•์ด ๋‚จ๊ธด ์ด์•ผ๊ธฐ๋“ค : CHAEโ€“PEREIRA architects ์ƒˆ๋กœ์šด ํ”„๋กœ์„ธ์Šค์™€ ์‹œ์Šคํ…œ : EMERโ€“SYS ๊ฒฝ๊ณ„์—์„œ์˜ ์ ์ง„์„ฑ : EUS๏ผ‹ architects ์ƒˆ๋กœ์šด ์ฃผ๊ฑฐ ํŠธ๋ Œ๋“œ๋ฅผ ๋ฆฌ๋“œํ•˜๋Š” ๊ฑด์ถ•, ๊ฑด์ถ•๊ฐ€ : johsungwook architects ์—˜๋ฆฌ์Šค์˜ ๋น„๋ˆ—๋ฐฉ์šธ ๋†€์ด, ๊ทธ๋ฆฌ๊ณ  ์ผ์ƒ ์† ์ด์•ผ๊ธฐ ์ƒ์„ฑ : Lโ€™EAU Design ์Šคํƒ€์ผ์˜ ์ „๋žตโ€“์ž‘์—…์˜ ๋ฐฉ๋ฒ•์— ๋Œ€ํ•œ ๊ทผ๋ณธ์  ์ดํ•ด : Min Workshop ๊ทผ๋Œ€ ๊ฑด์ถ•, ์ˆ˜์šฉ๊ณผ ๋ณ€์šฉ์˜ ๋ฏธ : OFFICE ARCHITEKTON ๋“ค๋„์šฐ๊ธฐ์™€ ํฐ์ƒ‰ ๊ทธ๋ฆฌ๊ณ  ๋ถ€์‚ฐ : RAUM architects ์ƒˆ๋กœ์šด ๋ˆˆ์„ ๊ฐ–๊ธฐ ์œ„ํ•œ ๋ฐœ๊ฒฌ์˜ ๋ฐฉ์‹, ์งˆ๋ฌธ : Samhyun Urban & Architecture ๊ธธ, ์—์›€๊ธธ, ์ƒ›๊ธธ : SUPA schweitzer song ๋”ฐ๋œปํ•œ ๊ฑด์ถ• ๊ทธ๋ฆฌ๊ณ  10๏ผ‹ : UTAA NOTICE ์ œ10ํšŒ ์‹ฌ์›๊ฑด์ถ•ํ•™์ˆ ์ƒ ์‹ฌ์‚ฌ๊ฒฐ๊ณผ ๋ฐœํ‘œ ๋‹น์„ ์ž‘ : ํ•ด๋‹น์ž‘ ์—†์Œ ์‹ฌ์‚ฌ์œ„์› ๊น€์ข…ํ—Œ, ๋ฐ•์ง„ํ˜ธ, ์šฐ๋™์„ , ํ•จ์„ฑํ˜ธ PUBLISHERโ€™S COLUMN โ€“ ์นœ๊ตฌ ARCHITECTS IN KOREA . โ…  EDITORIAL ์ Š์€, ๋‚ด์ผ์˜ ๊ฑด์ถ• ๋ฆฌ๋”๋“ค์ด ๋งํ•˜๋Š” ์šฐ๋ฆฌ ๊ฑด์ถ• ์žฅๅ ด์˜ ๋‹จ๋ฉด #1. ๊ฑด์ถ•์˜ ๋ฟŒ๋ฆฌ ํ˜น์€ ๊ณต๋ถ€์˜ ๋ฐฐ๊ฒฝ์— ๋Œ€ํ•˜์—ฌ #2. ํ•œ๊ตญ ๊ฑด์ถ• ๋น„ํ‰(๊ณ„)์— ๋Œ€ํ•œ ๋ฐ”๋žŒ #3. ๊ท€ ์‚ฌ๋ฌด์†Œ(ํŒ€)์˜ ์ž‘์—… ํ™”๋‘๋Š”? #4. ํ˜„๋Œ€๊ฑด์ถ•์„ ์ˆ˜ํ–‰ํ•จ์— ์žˆ์–ด์„œ โ€˜์ „ํ†ตโ€™์„ ์–ด๋–ป๊ฒŒ ๋ฐ”๋ผ๋ณด๋Š”๊ฐ€? #5. ๊ท€ํ•˜(๋˜๋Š” ์‚ฌ๋ฌด์†Œ, ํŒ€)๊ฐ€ ์ดํ•ดํ•˜๊ณ  ์žˆ๋Š” โ€˜๊ฐœ๋…โ€™์ด๋ž€ ๋ฌด์—‡์ธ๊ฐ€? #6. ํ˜„ ๋‹จ๊ณ„ ํ•œ๊ตญ ๊ฑด์ถ•๊ณ„, ๋ฌด์—‡์ด ๋ฌธ์ œ์ธ๊ฐ€? PROJECTS : OFFICE INFORMATION a.co.lab : ํœด๋จผ ๋„คํŠธ์›Œํฌ์˜ ์ˆ˜ํ–‰์ž BOUNDLESS : ๊ด€๊ณ„์˜ ์ง„ํ™”๋ฅผ ์—ฎ๋Š” ์ „์ˆ ๊ฐ€๋“ค designband YOAP : 3์ธ 3์ƒ‰์˜ ํ”ผ๋ณด๋‚˜์น˜ ์ˆ˜์—ด๋กœ ๊ฑด์ถ•ํ•˜๋Š” ์ง‘๋‹จ FHHH Friends : ์ขŒ์ถฉ์šฐ๋Œ ํ™”๋ คํ•œ ํŒ€ํ”Œ๋ ˆ์ด ์ง‘๋‹จ HGโ€“Architecture : ๋””์ง€๋กœ๊ทธ์˜ ์„ธ๊ณ„๋ฅผ ์‹ค์ฒœํ•˜๋Š” ์ŠคํŠœ๋””์˜ค JYAโ€“rchitects : ํ•จ๊ป˜ ํ˜๋ฆฌ๋Š” ๋•€์˜ ๊ฐ€์น˜๋กœ ๋ฌด์žฅํ•œ ํŒ€์›Œํฌ mmk๏ผ‹ : ํ•œ ๋ฐฉ์˜ ์žฅ์™ธํ™ˆ๋Ÿฐ ๋‹ค์Œ์„ ์ค€๋น„ํ•˜๋Š” ํžˆ์–ด๋กœ OBBA : ๊ฑด์ถ•, ๋‚ด๋Ÿฌํ‹ฐ๋ธŒ์˜ ์†Œ์ค‘ํ•จ์œผ๋กœ ์Šน๋ถ€ํ•˜๋Š” ์‚ฌ๋ฌด์†Œ stpmj : ์•„ํŠธ์™€ ๊ฑด์ถ•์˜ ๊ฒฝ๊ณ„๋ฅผ ๋„˜๋‚˜๋“œ๋Š” ํŒŒ์ด์–ด๋‹ˆ์–ด Zโ€“Lab : A to Z, ์ฝœ๋ผ๋ณด&์ปค๋ฎค๋‹ˆ์ผ€์ด์…˜์Šค ์ปดํผ๋‹ˆ NOTICE ์ œ9ํšŒ ์‹ฌ์›๊ฑด์ถ•ํ•™์ˆ ์ƒ ๋‹น์„ ์ž‘ ๋ฐœํ‘œ ๊ฒฝ๋ณต๊ถ ๊ถ์—ญ์˜ ๋ชจ๋˜ ํ”„๋กœ์ ํŠธ โ€” ๋ฐœ์ „๊ตญ๊ฐ€์‹œ๊ธฐ ๊ด‘ํ™”๋ฌธ๊ณผ ๊ตญ๋ฆฝ์ข…ํ•ฉ๋ฐ•๋ฌผ๊ด€์„ ์ค‘์‹ฌ์œผ๋กœ(1962~1973) ์ˆ˜์ƒ์ž : ๊ฐ•๋‚œํ˜•

๊ฑด์ถ•๋ฆฌํฌํŠธ ์™€์ด๋“œ(์™€์ด๋“œAR)

WIDE Architecture Report, Bimonthly

ํ†ต๊ถŒ 83ํ˜ธ, 2022๋…„ 9-10์›”ํ˜ธ, ๊ฒฉ์›”๊ฐ„ 2022๋…„ 9์›” 15์ผ ๋ฐœํ–‰, ISSN 1976-7412

์žก์ง€์ฐฝ๊ฐ„ ๋“ฑ๋ก์ผ๏ฝœ2008๋…„ 1์›” 2์ผ

์ฐฝ๊ฐ„ํ˜ธ ๋ฐœํ–‰์ผ๏ฝœ2008๋…„ 1์›” 15์ผ

์žก์ง€์‚ฌ์—… ๋ณ€๊ฒฝ ๋“ฑ๋ก์ผ๏ฝœ2021๋…„ 1์›” 7์ผ

๋“ฑ๋ก ๋ฒˆํ˜ธ๏ฝœ์„œ๋Œ€๋ฌธ, ๋งˆ00029

๋ฐœํ–‰์ธ ๊ฒธ ํŽธ์ง‘์ธ๏ฝœ์ „์ง„์‚ผ

๋ฐœํ–‰์†Œ๏ฝœ๊ฐ„ํ–ฅ ๋ฏธ๋””์–ด๋žฉ GANYANG Media Lab.

์ฃผ์†Œ๏ฝœ03733 ์„œ์šธํŠน๋ณ„์‹œ ์„œ๋Œ€๋ฌธ๊ตฌ ๋…๋ฆฝ๋ฌธ๊ณต์›๊ธธ 13, 5์ธต (ํ˜„์ €๋™, ๊ทน๋™ํ”„๋ผ์ž) Spacetime ์ „ํ™”๏ฝœ02-2235-1960

ํ™ˆํŽ˜์ด์ง€๏ฝœ๊ฐ„ํ–ฅํด๋Ÿฝ ganyangclub.com ; ใ€Š์™€์ด๋“œARใ€‹ ์ฐฝ๊ฐ„ํ˜ธ๋ถ€ํ„ฐ ์ตœ๊ทผํ˜ธ๊นŒ์ง€ PDF์ง€๋ฉด ์ฝ๊ธฐ Free ์ด์šฉ ์„œ๋น„์Šค

๋„ค์ด๋ฒ„ ์นดํŽ˜๏ฝœ์™€์ด๋“œAR cafe.naver.com/aqlab ; ใ€Š์™€์ด๋“œARใ€‹์˜ ์˜คํ”„๋ผ์ธ ํ™œ๋™ ์†Œ์‹ ๋“ฑ ๊ฑด์ถ• ๊ด€๋ จ ๋‹ค์–‘ํ•œ ์ฝ˜ํ…์ธ  ์ด์šฉ ๊ฐ€๋Šฅ ์ปค๋ฎค๋‹ˆํ‹ฐ

๋„ค์ด๋ฒ„ ๋ฐด๋“œ๏ฝœ์™€์ด๋“œAR ํ”„๋ Œ์ฆˆ band.us/@widearfriends ; ใ€Š์™€์ด๋“œARใ€‹ ๊ตฌ๋…์ž, ํ›„์›์ž, ๊ฑด์ถ• ํŒฌ๋ค ๋Œ€์ƒ ๊ฑด์ถ•๊ณ„ ์ •๋ณด ์ง๋ฐฐ์†ก ์ปค๋ฎค๋‹ˆํ‹ฐ

๋ณธ์ง€๋Š” ํ•œ๊ตญ ๊ฐ„ํ–‰๋ฌผ ์œค๋ฆฌ ์œ„์›ํšŒ์˜ ์œค๋ฆฌ๊ฐ•๋ น ๋ฐ ์‹ค์ฒœ์š”๊ฐ•์„ ์ค€์ˆ˜ํ•ฉ๋‹ˆ๋‹ค.

๋ณธ์ง€์— ๊ฒŒ์žฌ๋œ ๊ธฐ์‚ฌ๋‚˜ ์‚ฌ์ง„์˜ ๋ฌด๋‹จ ์ „์žฌ ๋ฐ ๋ณต์‚ฌ, ์œ ํฌ๋ฅผ ๊ธˆํ•ฉ๋‹ˆ๋‹ค.

1๊ถŒ ๊ฐ€๊ฒฉ : 15,000์›

์—ฐ๊ฐ„๊ตฌ๋…๋ฃŒ

1๋…„ ๊ตฌ๋… : 80,000์›

2๋…„ ๊ตฌ๋… : 150,000์›

์ •๊ธฐ๊ตฌ๋…(๊ตญ๋‚ด ์ „์šฉ) ์‹ ์ฒญ๋ฐฉ๋ฒ• ์•ˆ๋‚ด ใ€ˆ๊ตฌ๋…์ž๋ช…(๊ธฐ์ฆํ•˜์‹ค ๊ฒฝ์šฐ ๊ธฐ์ฆ์ž๋ช… ํฌํ•จ)ใ€‰, ใ€ˆ๋ฐฐ์†ก์ง€ ์ฃผ์†Œใ€‰, ใ€ˆ๊ตฌ๋…ํฌ๋ง ์‹œ์ž‘์›”ํ˜ธ ๋ฐ ๊ตฌ๋…๊ธฐ๊ฐ„ใ€‰, ใ€ˆํ•ธ๋“œํฐ๋ฒˆํ˜ธใ€‰, ใ€ˆ์ž…๊ธˆ์˜ˆ์ •์ผใ€‰์„

๋ณธ์ง€ ์ด๋ฉ”์ผ๏ฝœwidear@naver.com

์œผ๋กœ ๋ณด๋‚ด์ฃผ์‹œ๋ฉด ๋ฉ๋‹ˆ๋‹ค.

์ฑ…์€ ์ž…๊ธˆ ํ™•์ธ ํ›„ ๋ณด๋‚ด๋“œ๋ฆฌ๊ฒŒ ๋ฉ๋‹ˆ๋‹ค.

๋ฌดํ†ต์žฅ์ž…๊ธˆ๋ฐฉ๋ฒ•

์ž…๊ธˆ๊ณ„์ขŒ๏ฝœ๊ตญ๋ฏผ์€ํ–‰, 491001-01-156370

์˜ˆ๊ธˆ์ฃผ๏ฝœ์ „์ง„์‚ผ(๊ฐ„ํ–ฅ ๋ฏธ๋””์–ด๋žฉ)

โ€˜๊ตฌ๋…์žโ€™์™€ โ€˜์ž…๊ธˆ์žโ€™์˜ ์ด๋ฆ„์ด ๋‹ค๋ฅผ ๊ฒฝ์šฐ, ๊ผญ

์ƒ๊ธฐ โ€˜์ „ํ™”โ€™, โ€˜ํŒฉ์Šคโ€™, โ€˜์ด๋ฉ”์ผโ€™์ค‘ ํ•˜๋‚˜๋กœ ์•Œ๋ ค์ฃผ์‹ญ์‹œ์˜ค.

๊ตฌ๋…๋ฃŒ์˜ ์˜์ˆ˜์ฆ

* ํ˜„๊ธˆ์˜์ˆ˜์ฆ(๊ฐœ์ธ ํ•ธ๋“œํฐ๋ฒˆํ˜ธ๋กœ ๊ตญ์„ธ์ฒญ ํ™ˆํƒ์Šค ํ†ตํ•ด ๋ฐœ๊ธ‰, ์—ฐ๋ง์ •์‚ฐ์‹œ ์ž๋™ ๋ฐ˜์˜),

* ์ „์ž๊ณ„์‚ฐ์„œ(์‚ฌ์—…์ž๋“ฑ๋ก์„ ๊ฐ–๊ณ  ์žˆ๋Š” ๋ถ„ ๋˜๋Š” ๊ธฐ์—…/๊ธฐ๊ด€ ๋Œ€์ƒ ๋ฐœ๊ธ‰, ๊ตฌ๋…์‹ ์ฒญ์‹œ ์ „์ž๊ณ„์‚ฐ์„œ

๋ฐœ๊ธ‰ ์‹ ์ฒญ๋ฐ”๋ผ๋ฉฐ, ์ด ๊ฒฝ์šฐ ์ƒ๊ธฐ ๋ณธ์ง€ ์ด๋ฉ”์ผ๋กœ ์‚ฌ์—…์ž๋“ฑ๋ก์ฆ ์‚ฌ๋ณธ-์ „์ž๊ณ„์‚ฐ์„œ ์ˆ˜์ทจ์šฉ ์ด๋ฉ”์ผ์ฃผ์†Œ ํฌํ•จ- ์ „์†ก ํ•„์ˆ˜) ๋‘ ๊ฐ€์ง€ ์œ ํ˜• ์ค‘ ํ•˜๋‚˜๋กœ ๋ฐœ๊ธ‰๋ฉ๋‹ˆ๋‹ค. ๊ด‘๊ณ ๋ฌธ์˜๏ฝœ02-2235-1960 ใ€Š์™€์ด๋“œARใ€‹์˜ ๊ด‘๊ณ ๋Š” ๋ณธ ์žก์ง€๋ฅผ ํ•จ๊ป˜ ๋งŒ๋“œ๋Š” ๊ฑด์ถ•(๊ฐ€)๋„คํŠธ์›Œํฌ์™€์˜ ์—ฐ๊ณ„๋ฅผ ์ง€์›ํ•ฉ๋‹ˆ๋‹ค. ์ง€๋ฉด

์œ„์—์„œ์˜ 1์ฐจ์  ํ™๋ณด ํšจ๊ณผ๋ฅผ ๋„˜์–ด, ์‹ค์งˆ์  ์ˆ˜์ต ํšจ๊ณผ์˜

์ฐฝ์ถœ์„ ์œ„ํ•ด ๋ฐ์Šคํฌ๊ฐ€ ํ•จ๊ป˜ ๊ณ ๋ฏผํ•ด ๋“œ๋ฆฝ๋‹ˆ๋‹ค.

์ œ์ž‘์‚ฌ์–‘

ํ‘œ์ง€ ์ง€์งˆ: ์•„ํŠธ์ง€ 300g ํšก๋ชฉ

๋‚ด์ง€ ์ง€์งˆ: ๋ฏธ์Šคํ‹ฑ 105g ํšก๋ชฉ

์ฃผ ํ™œ์šฉ์„œ์ฒด ๋ฐ ๋ผ์ธ์„ ์Šค

ํ‘œ์ง€ ๋ฐ ๋ณธ๋ฌธ: SM/์ง์ง€ํฐํŠธ

๋ผ์ด์„ ์Šค ๋ช…: ํ”„๋ฆฌ ๋ผ์ด์„ ์Šค

์‚ฌ์šฉ๊ธฐ๊ฐ„: 2022.04.27.~2023.04.27.

์ธ์ฆ์ฝ”๋“œ: RW20220427BXXXXX

ใ€Š์™€์ด๋“œARใ€‹ ์ฃผ์š” ๋ฐฐ๋ณธ์ฒ˜ ์˜จ๋ผ์ธ ์„œ์  ยท์˜ˆ์Šค24 ยท์ธํ„ฐํŒŒํฌ ยท์•Œ๋ผ๋”˜ 11๋ฒˆ๊ฐ€ ยท์ธํ„ฐ๋„ท ๊ต๋ณด๋ฌธ๊ณ 

์˜คํ”„๋ผ์ธ ์„œ์  ๊ต๋ณด๋ฌธ๊ณ  ยท์˜ํ’๋ฌธ๊ณ  ยท์ข…๋กœ์„œ์ 

ใ€Š์™€์ด๋“œARใ€‹ ๊ณผ์›”ํ˜ธ ๊ตฌ์ž…์ฒ˜ ์ดํŒ ์ •๊ด‘๋„์„œ ๋งค๋Œ€๋ช…: ์„ ์ธ์žฅ ยท๋‹ด๋‹น์ž: ์‹ฌ์ƒํ•˜ ๋ฐฉ์žฅ(๋ฌธ์˜: 02-725-9470) ยท์†Œ์žฌ์ง€: ์„œ์šธํŠน๋ณ„์‹œ ์ข…๋กœ๊ตฌ ํ•„์šด๋Œ€๋กœ 56 (ํ†ต์ธ๋™) 1์ธต

* 2008๋…„~2010๋…„ ๋ฐœํ–‰๋ณธ: ํ˜„์žฌ 1ํ˜ธ~18ํ˜ธ๊นŒ์ง€ ํ’ˆ์ ˆ๋˜์–ด ๊ตฌ์ž… ๋ถˆ๊ฐ€ํ•ฉ๋‹ˆ๋‹ค.

* ๊ทธ ์™ธ ๊ณผ์›”ํ˜ธ ๊ตฌ์ž…: 2011๋…„~2021๋…„์— ๋ฐœํ–‰๋œ ใ€Š์™€์ด๋“œARใ€‹์„ ํ• ์ธ๊ฐ€๋กœ ๊ตฌ์ž… ๊ฐ€๋Šฅํ•ฉ๋‹ˆ๋‹ค.

* ๋ณธ์ง€์˜ ์˜คํ”„๋ผ์ธ ๋งค๋Œ€์ธ ใ€ˆ์„ ์ธ์žฅใ€‰์—์„œ ๋ˆ„๊ตฌ๋‚˜ ์ž์œ ๋กญ๊ฒŒ ๋ณธ์ง€๋ฅผ ์—ด๋žŒํ•  ์ˆ˜ ์žˆ์Šต๋‹ˆ๋‹ค.

* ํŠน์ • ๋ฐœํ–‰ํ˜ธ์˜ ๋‹ค๋Ÿ‰ ๊ตฌ์ž…์ด ํ•„์š”ํ•œ ๊ฒฝ์šฐ ์œ„ ๋งค๋Œ€ ๋‹ด๋‹น์ž์—๊ฒŒ ๋ฌธ์˜ ๋ฐ”๋ž๋‹ˆ๋‹ค.

128

Turn static files into dynamic content formats.

Createย aย flipbook
Issuu converts static files into: digital portfolios, online yearbooks, online catalogs, digital photo albums and more. Sign up and create your flipbook.