21-23 NEW BAI'S ARCHI PORTFOLIO

Page 1

P
2021-2023 YU XUAN,BAI PCCU A+UD A8206239 ARCHITECTURAL
O R T F O L I O

PRERSONAL PROFILE

2019-PRESENT

AUTOCAD REVIT SKETCHUP

RHINO LUMION

VRAY

ENSCAPE ILLUSTRATOR

PHOTOSHOP INDESIGN

2021-2022

2022-PRESENT

2001/06/27

TEL/0916662399

MAIL/chanel.p381@mail.com

2021/07-08

2022/01-02

2022/03,05

2022/06-12

2023-PRESENT

XUAN,BAI
YU
EDUCATION SOFTWARE EXPERIENCE WORK EXPERIENCE
中國文化大學 建築及都市設計學系 系女籃 隊長 仲間設計˙劉秉鑫建築師事務所 拓維建築師事務所/模型製作 向度聯合建築師事務所 建築系系學會 資訊長 童健程建築師事務所
白 育 瑄
CONTENTS COMMUNITY CHURCH SOCIAL HOUSING YANGMING SHUN HUTIAN EXPERTMENTAL SCHOOL HUAGUANG START UP CLUSTER page/01~04 Third grade page/05~08 page/09~14 page/15~20 01 02 03 04

Fourth

grade REGENERATION OF KEELUNG HARBOR KEELUNG MALL SENEGAL PRIMARY SCHOOL page/21~22 page/23~26 page/27~30 05 06 07

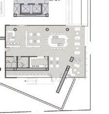
COMMUNITY CHURCH 01

01

COMMUNITY CHURCH CONCEPT PROCESS

SITE ANALYSIS

LOCATION/ No.50,Sec.2,Xinsheng S.Rd., Da’an Dist.,Taipei City,Taiwan.

CONTEXT SUN RIVER WIND TAIPEI DAAN 02 NATURE FLOW ROAD
01 4M 4M 4M 4M RIVER WIND ENTRY ENTRY SUN

RFL SITE PLAN

03
COMMUNITY CHURCH 01
SECTION

NORTH ELEVATION

SOUTH ELEVATION

EAST ELEVATION

WEST ELEVATION

04
2FL PLAN 1FL PLAN 3FL PLAN

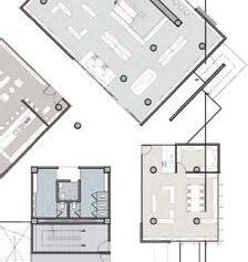
SOCIAL HOUSING 02

05

SOCIAL HOUSING CONCEPT

LOCATION/ No.212,Sec.3,Chengde Rd.,Datong

Dist.,Taipei City,Taiwan.

SITE ANALYSIS

NATURE

SECTION PROCESS

FLOW ROAD

ROOFTOP GARDEN HANGING GARDEN PLATFORM&STAIRS LATFORM&STA S HOUSINGHOUSING PLATFORM PLATFORM PUBLIC SPACE PUBLIC SPACE PLATFORM PLATFORM PUBLIC SPACE PUBLIC SPACE CARE CENTER ACTIVITY LOBBY CARE CENTER LOBBY GREENPLACE
06
SEPARATION ROTATION 90° CONNECTION CIRCULATION BALCONYLANDSCAPE
02

SOCIAL HOUSING

TYPE 1TYPE 2TYPE 3 +

07
02
2FL PLAN 3FL PLAN
UNIT
1FL SITE PLAN
08 4/6/8FL PLAN5/7/9FL PLAN10FL PLAN 11FL PLANRFL PLAN NORTH ELEVATIONSOUTH ELEVATION WEST ELEVATION

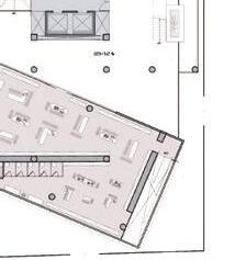
YANGMING SHUN HUTIAN EXPERTMENTAL SCHOOL

& RESOURCE AND ENERGY REGENERATION EDUCATION AREA

09
03

YANGMING SHUN HUTIAN EXPERTMENTAL SCHOOL

LOCATION/ No.17-2,Zhuzihu Rd.,BeitouDist., Taipei City,Taiwan.

CONCEPT ARTIST/DOESDURG

PROCESS

FIGURE /GOUND ROAD FLOW NATURE
PLATFORM SUNSHINE ROOF WIND ACTIVITY SPACE 10
SUN/WIND
EDUCATION CLASSROOM LIBRARY ACTIVITY HILL PLAYGOUND SUSTAINABLE GREEN ROOF SUN PANELS/WIND TURBINE TAIPEI BEITOU ZHUZIHU
SITE ANALYSIS
03
RING-ROAD SITE MAIN VOLUMES PLLATE/PLATFORM BUILGING

YANGMING SHUN HUTIAN EXPERTMENTAL SCHOOL

A B B’ A’ 11
03
SECTION
RFL SITE PLAN

15ACTIVITYCENTER

1. SECURITY ROOM 2. HEAITH CENTER 3. KITCHEN 4. CHANGING ROOM 5. TABLE TENNIS ROOM 6. STORAGE 7. KINDERGARTEN 8. SCIENCE CLASSROOM 9. OUTDOOR CLASSROOM 10. CULINARY ARTS CLASSROOM 11. ART CLASSROOM 12. CLASSROOM 13. RESTROOM
1. 2. 3. 4. 5. 6. 7. 8.9. 10. 11. 12. 13. 14. 14. 14. 13. 13. 13.
14. STAIRCASE 1. LIBRARY 2. CONFERENCE ROOM 3. PRINCIPAL’s OFFICE 4. OFFICE OF STUDENT AFFAIRS 5. OFFICE OF ACADEMIC AFFAIRS 6. PERSONNEL OFFICE/ ACCOUNTING OFFICE 7. OFFICE OF GENERAL AFFAIRS 8. LIVING TECHNOLOGY CLASSROOM 9. CHEMISTRY LAB 10. COUNSELORs’ OFFICE 11. TEACHERs’ OFFICE 12. CLASSROOM 13. RESTROOM 14. STAIRCASE
1. 2. 3.4. 6. 5. 7. 8. 15. 10. 11. 9. 12. 13. 14. 14. 13. 14. 12 2FL PLAN 1FL PLAN
1. LIBRARY 2. ACTIVITY CENTER 3. RESTROOM 4. STAIRCASE 1. 3. 4. 4. 4. 3. 2.
13
SOLAR PANEL GREEN ROOF
UNIT DETAIL 3FL PLAN
TYPE 1TYPE 2TYPE 3

NORTH ELEVATIONEAST ELEVATION

SOUTH ELEVATIONWEST ELEVATION

14

HUAGUANG START UP CLUSTER 04

15

LOCATION/ Jinhua St.,Da’an Dist.,Taipei

City,Taiwan.

HUAGUANG START UP CLUSTER CONCEPT SITE ANALYSIS

16
04
A A’ B B’ C C’ E’ D’ D E 17
RFL SITE PLAN
HUAGUANG START UP CLUSTER 04
18
1FL PLAN
SECTION AA' SECTION BB'
19
2FL PLAN
NORTH ELEVATION SECTION CC' SOUTH ELEVATION SECTION DD'

EAST ELEVATIONWEST ELEVATION

SECTION EE'

20
3FL PLAN
"COMING & STAYING" 05
REGENERATION OF KEELUNG HARBOR
22 SITE ANALYSIS ISSUE History Culture Perception Feeling Originally Main Flow Change Main Flow Add Stop Path Add Pedestrian Path Site Sinking Flows Walking Distance CONCEPT PROGRAM USE DISTRICTS BUBBLE CONCEPT DISTRICTS BUBBLE USER PARTITION BUBBLE cean ity o 1F SITE PLAN 2F SITE PLAN B1 SITE PLAN FLOW PLAN FULL PPTINTRO. YT3D YT
KEELUNG
TEAM WORK:
DESIGN

KEELUNG MALL "IMAGE OF KEELUNG."

23
06

KEELUNG MALL

LOCATION/ No.1,Zhongzheng Rd.,Zhongzheng Dist.,Keelung City,Taiwan.

24 ELEVATION IMAGE FRAMEARCADE STAIR HANGING OBJECT CROSSHIGH & LOW SPLIT LEVEL PATH
06 RFL SITE PLAN
USE
BUSINESS THEATER HARBOR GREEN
CONCEPT
DISTRICTS
25 RESTAURANT BAR CAFE CREATIVE STORE BOOK STORE SPORTING STORE CONVENIENCE STORE CLOTHING STORE FOOD COURT PARKING LOT HYPERMARKET CLOTHING STORE 1FL PLAN S:1/300 EAST ELEVATION S:1/200NORTH ELEVATION S:1/200
PLAN S:1/300 3FL PLAN S:1/300 1. 2. 3. 4. 5. 1. 2. 3. 4. 5. 6. MAIN VOLUMES MAIN BUILDING FORM ROTATE SEA ENTRY STRUCTURE & CIRCULATION 1.CLOTHING STORE 2.CONVENIENCE STORE 3.SPORTING STORE 4.STAIRCASE 5.TOILET 1.CLOTHING STORE 2.CREATIVE STORE 3.BOOK STORE 4.CAFE 5.STAIRCASE 6.TOILET 1.BAR 2.RESTAURANT 3.BOOKSTORE 4.STAIRCASE 5.TOILET
2FL
26 FOOD COURT PARKING LOT PARKING LOT HYPERMARKET SQUARE GREEN RIVER
WAST ELEVATION S:1/200 SOUTH ELEVATION S:1/200 SECTION S:1/200 B2F PLAN S:1/500
1. 2. 3. 4. 5. 6. 1.FOOD COURT 2.STORAGE 3.SQUARE 4.STAIRCASE 5.TOILET 6.PARKING LOT 1.HYPERMARKET 2.STORAGE 3.STAIRCASE 4.TOILET 5.PARKING LOT 1. 2. 3. 4. 5.
B1F PLAN S:1/500

/ 以塞內加爾當地的生態、永續及人文為理念,並融 入自然生態特質、人文特色、當地氣候特性及考量 附近建築景觀協調性,並搭配使用永續建材,營造 無障礙環境,設計一處位於南部農村地區的小學。/

27 SENEGAL
SCHOOL GREEN │ SUSTAINABLE │ EXPERIMENTAL 07
PRIMARY

STUDENT:YU-XUAN,BAI TEACHER:CHUNG-HSUAN,YEH

STUDENT:YU-XUAN,BAI TEACHER:CHUNG-HSUAN,YEH

SENEGAL PRIMARY SCHOOL

LOCATION/ The village in Bamakli,Sedhiou city,Senegal.

28 AFRICA SENEGAL CASAMANCE BAMAKLI SEDHIOU 0.5 km CORRUGATED METAL SHEET AFRICA SENEGAL CASAMANCE BAMAKLI SEDHIOU 0.5 km 1 km 1~2 GRADE 3~4 GRADE 5~6 GRADE HEALTH ROOM TOILET KITCHEN OFFICE CANTEEN 40 48 160 160 CLASSROOMS CLASSROOMS CLASSROOMS EXPERIMENT CLASSROOM LIBRARY SUNSHINE WOODEN 1~2 GRADE 3~4 GRADE 5~6 GRADE HEALTH ROOM TOILET KITCHEN OFFICE CANTEEN 40 48 160 160 CLASSROOMS CLASSROOMS CLASSROOMS EXPERIMENT CLASSROOM LIBRARY SENEGAL PRIMARY SCHOOL
SEDHIOU 0.5km 1km SUNSHINE RAIN WIND WOODEN BRICKS SENEGAL PRIMARY SCHOOL
BAMAKLI SEDHIOU 0.5km 1km SUNSHINE RAIN WIND WOODEN BED BRICKS METAL SHEET
07
29
HEALTH ROOM
OFFICE
MEETING ROOM
TOILET
EXPERIMENT CLASSROOM
KITCHEN
STORAGE 8. CANTEEN 9. LIBRARY 10. 1~2 GRADE CLASSROOMS 11. 3~4 GRADE CLASSROOMS 12. 5~6 GRADE CLASSROOMS
A TYPE C
1FL PLAN SCALE:1/200 1.
2.
3.
4.
5.
6.
7.
RF SITE PLAN TYPE
1. 2. 3. 4. 5.
ENTRY GREEN SPACE MIDDLE OUTSIDE ALL ENTRY GREEN SPACE MIDDLE OUTSIDE ALL 1FL PLAN SCALE:1/200 1. HEALTH ROOM 2. OFFICE 3. MEETING ROOM 4. TOILET 5. EXPERIMENT CLASSROOM 6. KITCHEN 7. STORAGE 8. CANTEEN 9. LIBRARY 10. 1~2 GRADE CLASSROOMS 11. 3~4 GRADE CLASSROOMS 12. 5~6 GRADE CLASSROOMS RF SITE PLAN TYPE TYPE TYPE 1. 2. 3. 4. 4. 5. 6. 8. 7. 7. 9. 11. 12. 10. ENTRY GREEN SPACE MIDDLE OUTSIDE ALL SENEGAL CASAMANCE BAMAKLI 0.5 km 1 km 1~2 GRADE WOODEN BED BRICKS METAL SHEET CORRUGATED METAL SHEET
9. 12. 3.
30
HEALTH
4.
5.
6.
7.
8.
9. LIBRARY 10. 1~2 GRADE CLASSROOMS 11. 3~4 GRADE CLASSROOMS 12. 5~6 GRADE CLASSROOMS RF SITE PLAN TYPE TYPE
1.
ROOM 2. OFFICE 3. MEETING ROOM
TOILET
EXPERIMENT CLASSROOM
KITCHEN
STORAGE
CANTEEN
2.
8. 7. 9. 10. ENTRY GREEN SPACE MIDDLE OUTSIDE ALL 1FL PLAN SCALE:1/200
HEALTH ROOM
OFFICE 3. MEETING ROOM 4. TOILET 5. EXPERIMENT CLASSROOM 6. KITCHEN 7. STORAGE 8. CANTEEN 9. LIBRARY 10. 1~2
CLASSROOMS 11. 3~4
CLASSROOMS 12. 5~6
CLASSROOMS RF SITE PLAN TYPE A TYPE B TYPE C ENTRY GREEN SPACE MIDDLE OUTSIDE ALL 1FL PLAN SCALE:1/200
HEALTH ROOM 2. OFFICE
MEETING ROOM 4.
5. EXPERIMENT CLASSROOM 6. KITCHEN 7. STORAGE 8. CANTEEN 9. LIBRARY 10. 1~2
CLASSROOMS 11. 3~4
12. 5~6
CLASSROOMS RF SITE PLAN TYPE A TYPE B TYPE C
2. 3. 4. 4. 5. 6. 8. 7. 7. 9. 11. 12. 10. ENTRY GREEN SPACE MIDDLE OUTSIDE ALL TYPE A TYPE B TYPE C 1. ALL AFRICA SENEGAL CASAMANCE BAMAKLI SEDHIOU 0.5 km 1 km SUNSHINE RAIN WIND WOODEN BED BRICKS METAL SHEET CORRUGATED METAL SHEET
3. 4.
1.
2.
GRADE
GRADE
GRADE
1.
3.
TOILET
GRADE
GRADE CLASSROOMS
GRADE
1.
2021-2023 ARCHITECTURAL YU XUAN,BAI PCCU A+UD A8206239

Turn static files into dynamic content formats.

Create a flipbook
Issuu converts static files into: digital portfolios, online yearbooks, online catalogs, digital photo albums and more. Sign up and create your flipbook.