WKA Capital Campaign Support

Page 1

Capital Campaign Support

The best designs are worthless without the resources to realize them.

Wheeler Kearns Architects has long cultivated relationships with nonprofit organizations who, by necessity, need to maximize the impact of each dollar they receive. In these projects, the demand for the services provided always outstrips what the project can provide, and this forces our clients to be creative and tireless in pursuit of the funds needed for a successful project. We have been willing partners in these efforts and have the tools, resources, and experience to support all stages of fundraising and capital campaigns.

From illustrated drawings, renderings, and narratives for grant applications to personalized presentations, videos, or walkthroughs for specific donors, we can support your project every step of the way.

2
3
4
5
Medium: Enscape rendering software (in-house)
6 Project: North Lawndale Employment Network Medium: In-house rendering software (Enscape)
7 Project: North Lawndale Employment Network Medium: Professional photography
8 Project: North Lawndale Employment Network Medium: In-house rendering software (Enscape)
9
Employment Network Medium: Professional photography
Project: North Lawndale
10 Project: North Lawndale Employment Network Medium: In-house rendering software (Enscape)
11 Project: North Lawndale Employment Network Medium: Professional photography
12 Project: Broadway Youth Center Medium: In-house rendering software (Enscape)
13
Professional
Project: Broadway Youth Center Medium:
photography
14
Broadway Youth Center
In-house rendering software (Enscape)
Project:
Medium:
15 Project: Broadway Youth Center Medium: Professional photography
16
Broadway Youth Center
In-house rendering software (Enscape)
Project:
Medium:
17
Project: Broadway Youth Center Medium: Professional photography
18
Broadway Youth Center
In-house rendering software (Enscape)
Project:
Medium:
19 Project: Broadway Youth Center Medium: Professional photography
20
Nourishing
HQ Medium: In-house rendering software (Enscape)
Project:
Hope
21 Project: Nourishing Hope HQ Medium: Professional photography
22 Project: Nourishing Hope HQ Medium: In-house rendering software (Enscape)
23
Nourishing
HQ Medium: Professional photography
Project:
Hope
24 Project: Nourishing Hope HQ Medium: In-house rendering software (Enscape)
25
Professional photography
Project: Nourishing Hope HQ Medium:
26 Project: Common Pantry Medium: In-house rendering software (Enscape)
27
Common Pantry
In-house rendering software (Enscape)
Project:
Medium:
28 Project: Common Pantry Medium: In-house rendering software (Enscape)
29
Common Pantry Medium: In-house rendering software (Enscape)
Project:
30

Medium: Watercolor (in-house)

31
32
In-house watercolor
Project: Nourishing Hope - Sheridan Market
Medium:
33
Project: Nourishing Hope - Sheridan Market Medium: Professional photography
34
Marwen Expansion Medium: In-house watercolor
Project:
35
Marwen Expansion
Professional photography
Project:
Medium:
36
Marwen Expansion Medium: In-house watercolor
Project:
37
Project: Marwen Expansion Medium: Professional photography
38 38 Project: Marwen Expansion Medium: In-house watercolor
39
Marwen Expansion
Professional photography
Project:
Medium:
40
In-house watercolor
Project: Marwen Expansion Medium:
4141
Project: Marwen Expansion Medium: Professional photography
42 Project: Care for Real Food Pantry Medium: In-house watercolor
43 Project: Care for Real Food Pantry Medium: Professional photography
44 Project: Care for Real Food Pantry Medium: In-house watercolor
45 Project: Care for Real Food Pantry Medium: Professional photography
46
Project: The Alice at Goodman Theatre Medium: In-house watercolor
47
Project: The Alice at Goodman Theatre Medium: Professional photography
48
Project: The Alice at Goodman Theatre Medium:
In-house watercolor

Medium: Professional photography

49
Project: The Alice at Goodman Theatre
50
Project: The Alice at Goodman Theatre Medium: In-house watercolor

Medium: Professional photography

51
Project: The Alice at Goodman Theatre
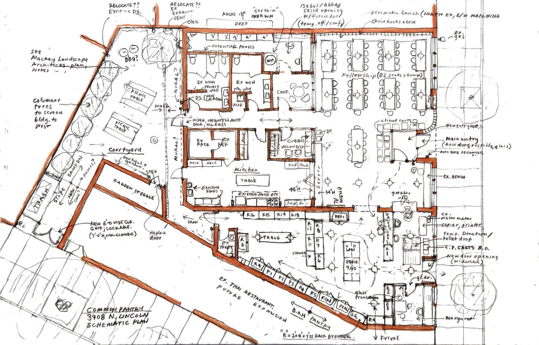
52
Project: The Alice at Goodman Theatre
Medium: In-house watercolor
53
Project: The Alice at Goodman Theatre Medium: Professional photography
54 Project: Our Saviour’s
Renovation Medium: In-house watercolor
Lutheran Church
55
Project: Our Saviour’s Lutheran Church Renovation Medium: Professional photography
56 Project: Our Saviour’s
Church Renovation Medium: In-house watercolor
Lutheran
57
Our
Professional
Project:
Saviour’s Lutheran Church Renovation Medium:
photography
58 Project: Go Green Community Fresh Market Medium: In-house watercolor
59
Project: Go Green Community Fresh Market Medium: Professional photography
60
Go
Fresh Market
In-house watercolor
Project:
Green Community
Medium:
61
Project: Go Green Community Fresh Market Medium: Professional photography
62
Go Green Community Fresh Market Medium: In-house watercolor
Project:
63 Project: Go Green Community Fresh Market Medium: In-house watercolor
64
In-house watercolor
Project: Sybil Shearer Dance Studio - Ragdale Medium:
65
Project: Sybil Shearer Dance Studio - Ragdale
Medium: In-house watercolor
66
In-house watercolor
Project: Sybil Shearer Dance Studio - Ragdale
Medium:
67
In-house watercolor
Project: Sybil Shearer Dance Studio - Ragdale Medium:
68

Medium: Photo-realistic (outsourced)

69
70 Project: Bernard Zell Anshe Emet Day School Expansion Medium: Outsourced photo-realistic
71
Project: Bernard Zell Anshe Emet Day School Expansion Medium: Professional photography
72
Outsourced photo-realistic
Project: Bernard Zell Anshe Emet Day School Expansion Medium:
73
Project: Bernard Zell Anshe Emet Day School Expansion Medium: Professional photography

Project: Chapel of St. Joseph

Medium: Outsourced photo-realistic

74

Project: Chapel of St. Joseph

Medium: Professional photography

75
76
Project: Chapel of St. Joseph Medium: Outsourced photo-realistic

Medium: Professional photography

77
Project: Chapel of St. Joseph
78
Great Lakes Academy Expansion
Outsourced photo-realistic
Project:
Medium:
79
Project: Great Lakes Academy Expansion Medium: Professional photography
80 Project: Great Lakes Academy Expansion Medium: Outsourced photo-realistic
81 Project: Great Lakes Academy Expansion Medium: Professional photography
82
Outsourced
Project: Great Lakes Academy Expansion Medium:
photo-realistic
83
Expansion
Professional
Project: Great Lakes Academy
Medium:
photography
84
Outsourced photo-realistic
Project: The Momentary Medium:
85
Project: The Momentary Medium: Professional photography

Project: The Momentary

Medium: Outsourced photo-realistic

86
87
Professional photography
Project: The Momentary Medium:
88
Project: The Momentary Medium: Outsourced photo-realistic
89
Project: The Momentary Medium: Professional photography

Project: The Momentary

90
Medium: Outsourced photo-realistic
91
Project: The Momentary Medium: Professional photography
92
Outsourced
Project: Scientific Research Charter School Mississippi Medium:
photo-realistic
93
Project: Scientific Research Charter School Mississippi Medium: Outsourced photo-realistic
94
Outsourced photo-realistic
Project: Scientific Research Charter School Mississippi Medium:
95
Scientific Research Charter School Mississippi Medium: Outsourced photo-realistic
Project:
96
Project: Art in Motion Charter School Medium: Outsourced photo-realistic
97
Art in Motion Charter School
Outsourced photo-realistic
Project:
Medium:
98

Medium: Hand Sketch (in-house)

99
100
Project: Mylayne Pavilion Millennium Park Medium: In-house hand sketch
101
Project: Mylayne Pavilion Millennium Park Medium: Professional photography
102
Project: Mylayne Pavilion Millennium Park Medium: In-house hand sketch
103
Project: Mylayne Pavilion Millennium Park Medium: Professional photography

Project: The Momentary

Medium: In-house hand sketch

104
105
Project: The Momentary Medium: In-house hand sketch

Project: The Momentary

Medium: In-house hand sketch

106

Project: The Momentary

Medium: In-house hand sketch

107

Project: The Momentary

Medium: In-house hand sketch

108

Project: The Momentary

Medium: In-house hand sketch

109

Project: The Momentary Medium: In-house hand sketch

110

Project: The Momentary

Medium: In-house hand sketch

111

Project: The Momentary Medium: In-house hand sketch

112

Project: The Momentary

Medium: In-house hand sketch

113

Project: Midewin National Tallgrass Prairie Competition Medium: In-house hand sketch

114

Project: Midewin National Tallgrass Prairie Competition

Medium: In-house hand sketch

115

Project: Midewin National Tallgrass Prairie Competition Medium: In-house hand sketch

116

Project: Midewin National Tallgrass Prairie Competition Medium: In-house hand sketch

117
118
Project: Midewin National Tallgrass Prairie Competition Medium: In-house hand sketch

Project: Midewin National Tallgrass Prairie Competition Medium: In-house hand sketch

119
120

Plans + Diagrams Medium: Various

121

Project: Common Pantry

Medium: In-house hand sketch

122

Project: Nourishing Hope Sheridan Market

Medium: In-house hand sketch

123

Project: Bernard Zell Anshe Emet Day School Expansion

Medium: In-house hand sketch

124

Project: Bernard Zell Anshe Emet Day School Expansoin

Medium: In-house hand sketch

125

Project: Bernard Zell Anshe Emet Day School Expansion

Medium: In-house hand sketch

126

Project: Bernard Zell Anshe Emet Day School Expansoin

Medium: In-house hand sketch

127

Turn static files into dynamic content formats.

Create a flipbook
Issuu converts static files into: digital portfolios, online yearbooks, online catalogs, digital photo albums and more. Sign up and create your flipbook.
WKA Capital Campaign Support by Wheeler Kearns Architects - Issuu