Village Free Press 080923

Page 1

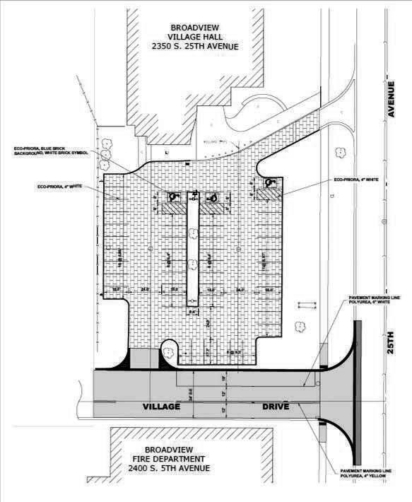
Permeable parking lot at village hall part of Broadview’s green agenda

Permeable pavers will prevent stormwater from going to sewer system

Construction is underway on a project at the Broadview Village Hall that will replace an asphalt parking lot with a per meable paver surface. The pavers are designed to allow water to drain into the soil beneath the lot instead of going into the sewer system. With the re placement of a 2,000-square-feet surface, the village expects approximately 60,000 gallons of stormwater will be diverted from the village’s combined sewer system during rain events.

“The project to alleviate storm water collection in the principal parking lot of Village Hall represents a piece of Broadview’s broader ‘green agenda,’” Mayor Katrina Thompson told Village Free Press in an email. “Broadview aims to invest in infrastructure projects that address the impact of climate change, such as more powerful storms, that affect the

Maywood candidate asks recount fees be waived by county

Next hearing on trustee candidate Montgomery’s request is Aug. 25

The future of a full recount for a contested Maywood village trustee seat is now in the Cook County Clerk’s hands.

As reported last week, Rachel Montgomery, the candidate who contested the election results, has to pay a bond and fees for the recount to proceed.

At the end of last week, Montgomery

filed a notice of inability to pay the fees, bond and potential election costs. With this recourse, Montgomery is asking the Cook County Clerk to waive the costs of the recount and allow it to proceed, she said. On July 18, the Cook County Clerk’s office posted the estimated costs of a full recount in each of the 14 precincts in Maywood. In total, 1,548 ballots cast in the April 4 election would be recounted, a process the county clerk’s office estimates would take five working days. The Maywood recount would cost around $32,000, costs that Montgomery could be responsible for paying if she is not the true winner of the election after the recount is completed.

In addition, she needs to pay the bond, equivalent to 10% of the recount’s estimated costs, for the process to continue. Cook County Clerk records show the next hearing on the status of the recount is scheduled for Aug. 25, yet it is unclear what the Cook County Clerk could rule then.

If not waived, Montgomery may not be in a position to proceed with the recount and is likely to end the case, leaving contender and current village trustee Rahmaan “Ray” Williams in office. For now, Montgomery awaits the court’s decision, she told Village Free Press on Wednesday.

AUGUST 9, 2023 Vol. VII No. 32 vfpress.news
See PAVERS on pa ge 4
Sara Janz Rachel Montgomery, e People’s Choice Party contender for a Maywood trustee seat, at the party’s headquarters on April 4, 2023.

Hatchery, Grubhub team up to expand opportunities for local entrepreneurs

Par tnership includes grant funding, training, pitch contest

Grubhub, an online food delive form, is teaming up with East Garfield Park’s The Hatchery food incubator to provide business grants, run a pitch tion that would let a winner use one of Hatchery’s private kitchens for help teach the burgeoning entrep the business skills they need to succeed.

The Hatchery, 135 N. Kedzie Av business incubator geared toward restaurateurs, caterers, bakers and other foodrelated businesses. Members get to take advantage of coaching services, kitchens and food storage. The partnership is pa of Chicago-based Grubhub’s ef for ts to give back to their home city. While they have worked with organizations and initiatives that have a West Side presence, this is the first time they teamed up with a West Sidebased organization.

The Hatchery was established by the Industrial Council of Nearwest Chicago (ICNC) because its long-running business incubator at 320 N. Damen Ave. wasn’t bestequipped to support food businesses. It wanted to put the new incubator in an area that needed development, physically closer to West Side entrepreneurs who would benefit from its services.

Since opening in December 2018, it has of fered workshops and classes to the general public. Members get wraparound supportive services, including classes to teach them the ins and outs of starting, marketing and managing a food business, as well as how to navigate the city licensing process. Members can use shared kitchens and, after using them for 34 hours, they are eligible to rent out one of 56 private kitchens that they can customize as they see fit. Members also benefit from on-site food storage facilities, meeting rooms and event spaces

According to Natalie Shmulik, chief strategy officer at ICNC and The Hatchery, entrepreneurs from Austin, East Garfield Park, North Lawndale, West Garfield Park

and West Humboldt Park “qualify for free memberships and free shared kitchen use time.”

When The Hatchery was still being built, one of the concerns residents and community activists raised was how much it would benefit West Siders. Shmulik said The Hatchery has 3 to 4 cohorts a year, and West Siders make up 34% of the current cohort. She said that the majority of the members live in Chicago. 66% of the cohort are women, and 62% are classified as Black, Indigenous, People of Color (BIPOC).

As part of the partnership, Grubhub will be holding a pitch contest, with the winner getting to use one of The Hatchery’s private kitchens for free and get a stipend to buy kitchen equipment to suit their needs – which Shmulik described as a $50,000 value.

Liz Bosone, Grubhub’s vice president of restaurant success, said they were still developing the contest rules, but that they aim to have the rules set by mid-September, with the goal of holding the contest in early November.

Grubhub is also “developing new edu-

ing a long-term relationship with the Hatchery as they focus on creating opportunities for people in the hospitality indus, especially on Chicago’s West Side,” she

Bosone said Grubhub’s community investments aim to support independent restaurants, reducing hunger and increasing opportunities to get people into the hospitality industry. What The Hatchery does women and BIPOC entrepreneurs, she said, fits into those goals.

“Our partnership with The Hatchery Chicago is especially exciting because their mission to help local entrepreneurs and grow successful businesses is what we do at Grubhub every day with our own restaurant partners,” Bosone said. “Not only are we offering financial support, but teams across Grubhub are ing with The Hatchery Chicago to eper, meaningful engagement that can help put their entrepreneurs on a path to sustained growth and success.” Provided

cational materials to guide The Hatchery Chicago’s entrepreneurs interested in utilizing third-party delivery to grow their businesses.” That would include help with promotions and marketing, as well how to get the most out of the meal delivery platfor ms and ensure “efficiency and timeliness.”

“Everybody who goes through our Sprouts incubation program is going to have access to insight and experience from Grubhub,” Shmulik said.

Finally, Grubhub will finance member scholarships and grants to members looking to buy kitchen equipment. Shmulik said that this will go a long way toward expanding the membership pool and reducing the financial strain.

“Finance is a number one challenge [for new businesses],” she said. “Anything that we do to reduce those will help our members focus on growth.”

According to Grubhub spokesperson Sabina Nura, all of this comes down to $300,000 worth of investments over the next 12 months – but the company is into this partnership for the long haul.

“[Grubhub] looks forward to maintain-

2 Village Free Press, August 9, 2023
Growing Community Media newsroom YOU covered.
e Hatcher y Chicago

Maywood and country music – who knew?

This summer, the University of Chicago Press published a book I wrote with “country music” in the title. Inevitably that led to people asking me at book events how I got into country music, especially since I gr up in Oak Park, a place where people speak with no discernable twang.

The answer is within the pages of my book. Chicago played a significant role in the pioneering days of country music, even before the music had the designation. In the 1920s, music played with stringed instruments was sometimes classified as just that: “With guitar accompaniment.” Otherwise, performers who sang old songs that had been passed through generations for longer than they can remember, were categorized as simply “folk.”

It turns out Chicago became a primary destination of early performers due to the emergence of the WLS Barn Dance, a Saturday night variety show that started in 1924. A migration of white Southerners was already streaming into Chicago for jobs, so it was inevitable that many ended up realizing they had raw talent. The Barn Dance gave them careers and they became the genre’s earliest stars. The migration continued for decades and soon most of the city’s North Side was teeming with people from the country, as were the collar communities like nearby Maywood. That’s where Empson Scobie Prine settled in 1924 from his native Kentucky; as an adult, his son Bill later found work as a tool and die maker at American Can Company. Empson’s grandson, John would be the one to translate his family’s stories into songs.

“...Communities like nearby Maywood. That’s where Empson Scobie Prine settled in 1924 from his native Kentucky; as an adult, his son Bill later found work as a tool and die maker at American Can Company. Empson’s grandson, John would be the one to translate his family ’s stories into songs.”

genre and subsequently, he and other pioneers like Flatt and Scruggs and the Carter Family traveled to downtown Chicago for recording sessions; when bluegrass was enjoying a revival in the 1970s, Special Consensus would expand the music by becoming the first touring bluegrass band from Chicago.

Research for Country and Midwester n: Chica go in the History of Country Music and the Folk Re vival took more than 10 years because I discovered a story so rich and deep and untold. You could fill a library with the books about Chicago blues, jazz, gospel, and so on, but not even one on this story. Part of the reason is because the city itself has done such a poor job in commemorating the long history that took place here, but a more prevailing reason is because, starting in the 1950s Nashville branded the music as exclusively a Southern thing when, in reality, its origin was rural — at a time when most of the country, including the Midwest, was dominated by far mland and ranches.

the music; those conversations — in living rooms, coffee shops, nursing homes, etc. — were sometimes the first those people had with a journalist. Why? Because up to that point, no one really cared to ask.

What I discovered was how the music had profoundly altered the lives of the people who chose to make it their life. Stardom was not Chicago’s story; it was more about the sweat equity of music-making in the clubs and recording studios.

I entered the picture in the 1990s, a decade when Chicago was once again ahead of the curve. It was the height of “alternative country” — another subgenre that was catching fire because of a fertile independent music scene that rewarded experimentation and collaboration. Suddenly you had rock bands and auteurs like the Handsome Family, the Texas Rubies, and Robbie Fulks connecting to the themes and styles from an earlier era but reinvent-ing it as their own.

The genre couldn’t happen in Nashville because it required detouring from patented for mulas in everything: songwriting, sound, fashion, and attitude. As a journalist I spent years covering this scene and watched it move from an underground thing to, a decade later, a genre at the forefront of the music industry, but christened with a new, more palatable name: Americana.

Senior Editor Bob Uphues

Sta Reporters

Francia Garcia Hernandez, Amaris Rodriguez

Digital Manager

Stacy Coleman

Design/Production Manager Andrew Mead

Editorial Design Manager Javier Govea

Designer Susan McKelvey

Sales Representative and Community Engagement

Kamil Brady

Sales Representatives

Lourdes Nicholls, Ben Stumpe

Business & Development Manager

Mary Ellen Nelligan

Circulation Manager Jill Wagner | Email: jill@oakpark.com

Special Projects Manager

Susan Walker

Publisher

Dan Haley

BOARD

Chair Judy Gre n

Treasurer Nile Wendorf

Deb Abrahamson, Gary Collins, Steve Edwards, Darnell Shields, Sheila Solomon, Eric Weinheimer

HOW TO REACH US

Country music, it turns out, was very much entwined in this area. For example, the “father of bluegrass music,” Bill Monroe, worked at Sinclair Oil in Whiting before he decided to invent the offshoot

In writing the book, I was driven to correct that record and give reco gnition to a century of musicians who created and contributed to an art form here that, until recently, went unrecognized. Besides research that took me to Tennessee, Kentucky, and special collections around Chicago, I spent hundreds of hours interviewing performers and club owners and record label employees and audience members whose lives were dominated by

Cultural amnesia and indifference combined to sweep this rich history to the margins over nearly a century. That is changing, of course, at a time when people are dusting of f histories hidden for years under the rug so others can hear them for the first time. For Chicago and country music, it’s a brand new day.

“Country and Midwestern: Chica go in the History of Country Music and the Folk Re vival is published by the University of Chica go Press.” Visit countryandmidwestern.com to learn about book ev ents or to subscribe to the book’s newsletter.

Village Free Press, August 9, 2023 3 A UTHOR Beat
OF
DIREC TORS
Village Free Press 141 S. Oak Park Ave., Oak Park, IL 60302 PHONE: 773-626-6332 ■ FA X: 708-467-9066 VFPress.news
WITTER: @village_free FACEBOOK : @may woodnews The Village Free Press is published digitally and in print by Growing Community Media, NFP. The print edition is distributed across Proviso Township at no charge each Wednesday. © 2023 Growing Community Media NFP.
T
o f e e I h k o t h c su in fe ex ab ad teu am ect style

PAVERS Construction underway

from page 1

daily lives of Broadview residents.”

The parking lot replacement comes after the village applied to be a recipient of the Metropolitan Water Reclamation District’s green infrastructure program. The project was approved by the Broadview village board in a re gular board meeting at the end of June.

The total cost of this project is $450,000, with a large portion of the costs being picked up outside of local taxpayers. Through the green infrastructure program, the MWRD will pay $300,000 of the price. Local food manufacturer Mullins Foods Products will cover $100,000. The remainder will be paid by the village. Construction is scheduled to finish by September.

The pavers that will be used for the parking lot look like any other brick paver. When installed, they will create a gap between pavers where rainwater flows, to later be absorbed by the ground underneath. With this, stor mwater recharges

the natural water system, instead of going to the sewage system. At its maximum capacity, the parking lot will prevent 60,000 gallons of water from going to the sewer in case of heavy rain. In lighter rain events, it will absorb less water. When heavy rain falls, water that can’t be absorbed by the ground will flow to the sewage system, preventing the parking lot from flooding.

The ecological and practical benefits from using this type of pavers are worth the investment, said Chris Baker, vicepresident of the village’s engineering firm Edwin Hancock Engineering. Permeable pavers assist in relieving the sewage system, decreasing the likelihood of flooding residents’ homes. While it has not been studied, in the long run, the widespread use of per meable pavers could lead to less basement and road flooding.

Permeable pavers are also aesthetic, Baker said. In the village’s parking lot, different color pavers will re place traditional materials like paint or thermoplastic used to signal lanes and parking spaces.

With various government grant programs, green infrastructure projects, which can be more costly, are becoming more common, said Baker.

“The village of Broadview did an out-

standing job of looking at working with the MWRD in finding an opportunity where they could assist with the funding,” Baker said.

It is the third time Broadview partnered with the agency to bring permeable pavers to the village, Baker said. In years past, the village invested in creating half a dozen green alleys, where permeable pavers were installed.

The parking lot re placement is an example of Thompson’s green agenda. Other projects include the expansion of pedestrian and bike pathways, solar energy investments and food waste reduction through a federally funded compost initiative. These projects “also have the aim to revitalize the local economy by creating new jobs and to create sustainable neighborhoods by attracting new residents,” Thompson said via email.

will be replaced with permeable pavers as part of the village’s green agenda

“Broadview’s ‘g reen agenda’ is bold because the moment demands boldness,” she added.

4 Village Free Press, August 9, 2023

Understanding domestic nexus violence a root of community violence

Police, local orgs identify how domestic violence correlates with trends in community violence

Over the summer, the Austin area has seen a slight increase in shootings when compared to last year’s historic downtrend. But differing from common assumptions, this trend is not caused by gang-related violence. This summer, the 15th Chicago Police District has identified at least a dozen incidents, including shooting incidents and homicides, rooted in domestic conflicts, what they call domestic-nexus incidents.

“In a district, you always have to know and understand the why [behind crime statistics], said Andre Parham, 15th district commander.

“A domestic nexus [incident], is very hard to predict,” Parham said, adding that unlike some domestic violence cases, there is not always a precedent of an abusive relationship that could help the police department intervene before violence further escalates.

Domestic nexus incidents are different from domestic violence in the way they’re categorized, but they also require a different response from the police department, he said. The Chicago Police Department classifies incidents following internal and FBI crime reporting criteria. When it comes to domestic violence, the police department follows the Illinois Domestic Violence Act, which provides special protection under the law for victims of domestic violence. Under that act, domestic violence is defined as abuse, which can take the form of physical abuse, harassment, intimidation and interference with personal liberty.

Who is the victim of such abuse determines what cases are categorized as domestic violence. Under the state act, domestic violence victims can be spouses or for mer spouses, parents, children or stepchildren, other persons related by blood or mar riage, persons who share or for merly

shared a common dwelling, persons who have or had a dating or engagement relationship and persons with disabilities and their caregivers.

Such a broad definition covers many scenarios, but there are still instances of incidents that don’t classify as domestic violence but have a domestic nexus. For example, there was a local shooting incident where a woman’s ex-boyfriend, also the fa ther of her child, shot her new boyfriend.

“That kind of categorization is more like community violence, but really the emphasis of that is the underlying domestic violence issue, rooted in manipulation, powe and control,” said Carol Gall, executive director of nonprofit Sarah’s Inn which is based in Forest Park.

This is a common thread between domestic nexus cases and domestic violence cases. And, domestic nexus violence also contributes to overall community violenc including gun violence.

“There is an uptick in domestic violence where guns are used in,” said Tara Dabney, director of development and communications at the Institute for Nonviolence Chicago.

Identifying domestic violence or domestic-nexus cases comes with challenges. They may require additional investigation, intelligence or cooperation from victims who refuse to share more information out of fear or stigma.

Yet, it is important to understand what is happening in order to provide timely services to victims. In the case described earlier, the woman was not hurt in the shooting incident but is still at risk, even if the crime was not classified as domestic violence.

Understanding how domestic violence correlates to community violence is also key for the police department to create effective policing strategies. It is also fundamental for organizations working to prevent gun violence in Chicago’s communities, a “symptom of a greater problem” caused by systemic racism, poverty and disinvestment in communities.

“But domestic violence is also a root, it has a power and control dynamics…” Dabney said. “It’s important to understand the root causes when violence occurs so we can really address and mitigate the trauma

Some of these responses include wellness programs of fered by the Institute of Nonviolence Chicago.

“We’ve really increased our behavioral health and wellness work and using a social emotional learning model and cognitive behavioral interventions to help those who have experienced incredibly high levels of trauma,” Dabney said. “We believe that is a key form of prevention … with community violence, often what we see is that those who are perpetrating violence have very often experienced violence or extreme trauma throughout their life cycle.”

In the Austin area, numerous community organizations, including faith leaders, grassroot organizations and the police department partner to provide services to victims of domestic violence and domestic-nexus incidents. A police officer is the domestic violence liaison who follows up with victims to ensure they are safe and refer them to service providers. Each case is different, but overall, victims in both of these categories may need a wide number of services that range from a 24/7 service line to counseling, legal counseling, financial support, housing, childcare, family services and job placement. When needed, the police department also helps victims get legal protections, like court protection orders.

Through an ongoing partnership, the

ah’s Inn staf f work collaboratively to intervene and support victims of domestic or domestic-nexus violence. If victims ag ree, they can be referred to Sarah’s Inn to create a safety plan, get counseling, access financial support services and if needed, relocate.

“We’ve done a lot of cross-training, so we’ve trained their staf f in nonviolence and they trained our staf f in domestic violence, Dabney said. “So we can see if there is an undercurrent of domestic violence that might be the root cause of what’s seen as community violence.”

Other prevention ef for ts include outreach ef for ts and events, distributing information, visiting schools and other strategies to help community members identify violence and how to escape it. As community organization leaders know, to address community violence, it is key to understand it can overlap with domestic and domestic-related violence and provide resources to prevent it.

“What we know is that folks are more likely to seek help and stay engaged in services, the sooner they are reached,” Dabney said.

If you or a loved one need help, call the National Domestic Violence helpline at 800-7999-723 or text START to 88788. You can also call Sarah’s Inn 24-hour crisis line at 708-386-4224 or text 708-669-6149.

Village Free Press, August 9, 2023 5
Provided, Institute for Nonviolence Chicago 40% of Institute for Nonviolence Chicago sta completed training in cognitive behavioral inter vention to enhance nonviolence prevention programs in Chicago.

Comedy club set to open in ark next summer

Studio 8 to remain open through end of the year

Actor-turned-comedian Emily Ramire z is poised to get the zoning approvals she will need to buy the building at 7316 Madison St., Forest Park, and open a comedy club on its first-floor storefront.

BABS (short for Bad-Ass Bitches – a reference to a Saturday Night Live sketch) comedy club will offer comedy classes, host comedy shows and provide a space for comedy writers to hone their skills. It will only offer alcoholic drinks during the late evening comedy shows. Ramire z felt that, while drinks are an important part of watching a show, serving them all day would only lead to trouble. BABS will host family-friendly comedy shows on Sunday afternoons and raunchier acts on weekdays and Saturday evenings.

The storefront is currently home to the Studio 8 vintage décor and refurbished furniture store. Ramire z said the store has been operating on a month-to-month lease and, if the sales goes through, she will give them four months to transition. The sale is contingent on the village council approving a zoning change that will allow a comedy club to operate on Madison Street in the first place – something that the council is expected to take up on Aug. 14.

Ramirez launched BABS as a comedy event company that puts on shows and private events. She wanted to give comedians a professional environment with some protections she took for granted when she was an actress. Ramire z previously told this newspaper that she wanted to nur ture the

building with apar tments on a top floor and a storefront at the bottom. That way, she could live where she worked. Ramire z said the Studio 8 building would allow her to do that. If the sale goes through, she would eventually plan to move into one of the three second-story units and continue to rent out the remaining two. But the first-floor commercial space would need to be cleared to make way for the comedy club – something that, Ramire z said, she wasn’t particularly happy about. She said that she looked for other buildings that would suit her needs and, when noth-

them out.

“Even though we have a lot of work to do, I’m giving them four whole months, [until after] the Christmas holidays, to slowly be able to reduce their inventory and give them as many sales as possible, just so they don’t have to rush out the building,” she said.

While ne gotiating the sale, Ramire z discovered that, technically speaking, comedy clubs weren’ t a permitted use on Madison Street. On July 17, Forest Park Planning & Zoning Commission recommended changing the zoning code to make it a conditional

use and accepting Ramirez’s application for said conditional use. The sale is contingent on the village council approving both items.

If those items clear the council, Ramire z said she expects the sale to be completed in September. She is also in the process of applying for a liquor license.

The conditional use application states that, while BABS would open at noon, alcohol wouldn’t be served until after 7 p.m. Ramirez said that not only did she want to allay the possible concerns of neighbors, but she felt that serving alcohol all day just wasn’t a good idea – citing Forest Park Tap Room, which used to be located almost directly across the street from the Studio 8 building, as an example of what she wanted to avoid.

“The longer you’re imbibing alcohol, the more likely you are to have some rowdiness,” she said.

BABS will be open Wednesdays through Sundays. On most afternoons, the club will serve as an Open Writer’s Room, where comedians can come and work on their material. The club will host comedy classes – which, Ramire z said, would be based on what she and her friends learned in the classroom and through trial and error -- on Wednesdays and Thursdays from 6 p.m. to 8 p.m., with shows taking place later in the evening. Sunday would be an all-ages day, with family-friendly comedy shows taking place during the afternoons, and teen open mics in the evenings.

“Our goal is to have a soft opening in the late summer of next year and have a grand opening in the fall of 2024,” Ramire z said. “[Fall] is typically the beginning of the comedy season, when people start going back indoors.”

6 Village Free Press, August 9, 2023
LinkedIn
Growing Community Media a non-profit newsroom We’ve
covered.
Emily Ramirez
got YOU

Food Aid Festival bene ts Proviso hunger agencies

Food, music and a serving of help

It is rare for an event to bridge Forest Park and Oak Park and take place over a two- day span. The Food Aid Festival 2023: A Musical Festival to Combat Food Insecurity will take place at Exit Strategy Brewing Company in Forest Park and Scoville Park in Oak Park. The festival kicks of f at Exit Strategy on Aug. 26 from noon to 9 p.m. It will feature live music and food from a variety of vendors. Tickets are $20 for adults, kids under 12 are free.

Katherine Valleau of Exit Strategy has been passionate about helping the hungry since she was in high school. Members of her marching band conducted food drives and supplied food to shelters. “I saw the impact hunger has on people.” For Food Aid, Valleau is partnering with Donnie Biggins, who books bands to play at the brewery.

Biggins is hosting the second half of Food Aid on Aug. 27 from 3 p.m. to 9 p.m. at Scoville Park, Lake Street at Oak Park Avenue. It will feature a line-up of local musicians and a panel discussion about food insecurity conducted by WBEZ personality, Taylor Nazon. Fred Hampton, Jr. is among the panelists. Festival-goers are encouraged to make a $20 donation and to purchase food from nearby restaurants.

This is the second year Biggins has hosted a Food Aid Festival. Last year, they held a two-day event at the Kehrein Center for the Arts in Austin. Oak Park activist Anthony Clark was on hand and proceeds went to Community Bridges. The cause was serious but the event was fun, “Like a high school reunion.”

Valleau is also promising fun at the brewery. “We’re going to do a beer release that day. It will be a golden ale with cit-

rus characteristics.” Besides quaffing beer, customers can sample brisket sandwiches from Umamicue, pizza from Dark Horse Grill and empanadas from Papa’s Chicago. These vendors are donating 10% of their profits to Food Aid, while the brewery donates 20%. Proceeds from Food Aid will benefit Unity Fridges, the Austin Eats Initiative and the Westchester Food Pantry. Besides enjoying a variety of food and brews, patrons will be treated to “music from stem to stern.” Oak Park’s School of Rock will kick of f the outdoor concert, followed by Biggins’ band, The Shams Band, The Heavy Sounds and Cheryl Tomblin. The School of Rock will also play at Scoville Park. They will be joined by Fury, a hip-hop artist from Austin, Michelle McGuire and a Fleetwood Mac tribute group called Second Hand News.

“There’s no point in having a business if

you can’t do good,” Valleau said. Biggins is also benefiting others with his business, Harmonica Dunn. Several of his musician friends are forgoing their fee or accepting a lesser amount.

Biggins first became concerned about food insecurity during the pandemic. He found it shocking that 50% of Austin residents lack access to fresh fruits and ve getables. His goal this year is to raise $10,000 and hopes to make Food Aid a yearly event. Festival goers can visit foodaidfestival. com to purchase tickets or make donations.

■ John Rice is a columnist/private detecti ve, who has seen his business and family thri ve in Forest Park. He thoroughly enjoys life in the village and still gets a thrill smelling Red Hots, watching softball and strolling through cemeteries. Jrice1038@ aol.com

Village Free Press, August 9, 2023 7
B.B.Q. RIBS & CHICKEN BURGERS & HOT DOGS Italian Beef Sandwich w/ Fries $9.89 3 Vienna Hot Dogs w/ Fries $9.99 Wednesday Gyros Plate Dinner 1 lb meat, 2 pita breads, fries & 3 cups sauce $13.99 Every day Special! Gyros with fries $9.69 1/4 Lb Double Cheeseburger Big Mickey! $3.69 525 N Harlem Ave, Oak Park (708) 848-3333 11am - 9pm Daily includes fries or baked potato, coleslaw and garlic bread 1/2 Slab Dinner $14.49 Full Slab Dinner $21.79 Mickey’s is the place! Mickey’s Rib Special RibFest Every Day! ALPHA OMEGA APARTMENTS 708-415-3897 MAYWOOD APARTMENTS LARGE & SPACIOUS 2 & 3 BEDROOM PLAY AREAS & FREE PARKING NEAR PUBLIC TRANSPORTATION SOME UTILITIES INCLUDED SECURITY DOORS BEAUTIFUL FLOWERS AND LANDSCAPING SECTION 8 WELCOME ALPHA OMEGA APARTMENTS 708-415-3897

PUBLIC NOTICE

FOR

FOR NAME CHANGE STATE OF ILLINOIS, CIRCUIT COURT COOK COUNTY.

Request of ANNIE MAE BELL 20234003902

There will be a court date on my Request to change my name from: ANNIE MAE BELL to the new name of: ANNIE MAE CRUDUP

The court date will be held:

On 9/12/2023 at 11:00 AM at1500 Maybrook Drive, Maywood, Cook County in Courtroom # 0111

Published in Village Free Press August 2, 9, 16, 2023

PUBLIC NOTICE

LEGAL NOTICE

NOTICE OF PUBLIC HEARING on Annual Budget and Appropriation Ordinance of Maywood Public Library District for the 2023-2024 Fiscal Year (FY24)

Notice is hereby given to the Public that, pursuant to Section 30-85 of the Illinois Public Library District Act of 1991 (75 ILCS 16/30-85), on Wednesday, September 13, 2023, at the hour of 6:30 P.M. the Maywood Public Library District will hold a public hearing on the annual Budget and Appropriations Ordinance for the Maywood Public Library District, Cook County, Illinois, for the fiscal year beginning July 1, 2023 and ending June 30, 2024, at 121 S. 5th Avenue, Maywood, IL 60153.

Members of the Public will be allowed to comment and give testimony on the proposed Ordinance at the Public Hearing. This annual Budget and Appropriations Ordinance may be considered by the Board of Trustees of the Maywood Public Library District at a meeting to be held immediately after the Hearing.

Notice is further given that the tentative budget is now on file with the Secretary of the Board of Trustees, Maywood Public Library District, at the Library office, located at 121 S. 5th Avenue, Maywood, IL 60153, and will be available for at least thirty (30) days, and may be reviewed or inspected upon request prior to said hearing by the Public.

The Library Board of Trustees

Maywood Public Library District

Published in Village Free Press

August 9, 2023

PUBLIC NOTICE

PUBLIC NOTICE

LEGAL NOTICE

WEST40 INTERMEDIATE SER-

VICE CENTER

PROJ. NO. 23037A

ST. JOSEPH HIGH SCHOOLPHASE I - INTERIOR RENOVATIONS

SECTION 001113 -ADVERTISE-

MENT FOR BIDS

Sealed bids for the Phase I - Interior Renovations will be received by West40 Intermediate Service Center at the St. Joseph High School, 10900 W Cermak Rd., Westchester, IL 60154 until 2:00 pm, prevailing time on Tuesday, August 22, 2023.

Lump Sum bid proposals will be received for this project at the scheduled time of receipt of bids and will be publicly opened and read aloud at the above-stated time and place.

Each bid must be accompanied by a Bid Guarantee in the form of a Bid Bond, Certified Check, or Bank Draft in an amount equal to and not less than ten percent (10%) of the bid and made payable to “West40 Intermediate Service Center”. No bid shall be withdrawn for a period of sixty (60) days after the bid opening date without the consent of the Owner. Checks or drafts of unsuccessful Bidders will be returned as soon as practical, after opening and checking the bids.

Bids shall be submitted in an opaque sealed envelope clearly marked as SEALED BID and addressed to:

West40 Intermediate Service Center

ATTN: Director of Operations 10900 W Cermak Rd. (St. Joseph High School) Westchester, IL 60154

If mailing the bid prior to the bid opening, please send it to West40 Intermediate Service Center, 4413 W. Roosevelt Rd, Suite 104, Hillside, IL 60162 to arrive prior to 1:30 pm, prevailing time on Tuesday, August 22, 2023. West40 ISC is not responsible for late or lost bids that are mailed.

The Board of Education reserves the right to reject any or all bids or parts thereof or waive any irregularities or informalities in bidding.

This Contract is subject to the Illinois Prevailing Wage Act (820 ILCS 130/1 et seq.).

Bidding documents consist of drawings, project manuals, plus all addenda issued prior to bids; and may be obtained on July 28, 2023, electronically and reproduced at the Bidder’s expense from Cross Rhodes Reprographics, 30 Eisenhower Lane North, Lombard, IL 60148, (630) 963-4700, www.x-rhodesplanroom.com or contact them at orders@x-rhodes.com.

A mandatory pre-bid meeting walkthrough for prime contractors will be held at 10:00 AM., prevailing time, on Thursday August 10, 2023 at St. Joseph High School located at 10900 W. Cermak Road, Westchester, Illinois 60154. Subcontractors arc encouraged, but not required to attend.

After the pre-bid meeting, everyone shall visit the site to view the area of work, gather additional information, and ask specific questions. There

PUBLIC NOTICE

shall be only one scheduled walkthrough of the site. Attendance shall be taken at the site to ensure that all contractors have visited the site. Non-attendance can be grounds for rejection of bid.

Board of Education

West40 Intermediate Service Center Hillside, Cook County, Illinois

END OF SECTION 001113

ADVERTISEMENT FOR BIDS 001113 - 1 JULY 27, 2023

Published in Village Free Press August 9, 2023

REAL ESTATE FOR SALE

IN THE CIRCUIT COURT OF COOK COUNTY, ILLINOIS COUNTY DEPARTMENT - CHANCERY DIVISION

U.S. BANK NATIONAL ASSOCIATION, AS TRUSTEE FOR ABFC

2002-NC1 TRUST, ABFC ASSETBACKED CERTIFICATES, SERIES

2002-NC1

Plaintiff,

-v.-

REAL ESTATE FOR SALE

the purchaser of the unit at the foreclosure sale, other than a mortgagee, shall pay the assessments and the legal fees required by The Condominium Property Act, 765 ILCS 605/9(g)(1) and (g)(4). If this property is a condominium unit which is part of a common interest community, the purchaser of the unit at the foreclosure sale other than a mortgagee shall pay the assessments required by The Condominium Property Act, 765 ILCS 605/18.5(g-1).

IF YOU ARE THE MORTGAGOR (HOMEOWNER), YOU HAVE THE RIGHT TO REMAIN IN POSSESSION FOR 30 DAYS AFTER ENTRY OF AN ORDER OF POSSESSION, IN ACCORDANCE WITH SECTION 15-1701(C) OF THE ILLINOIS MORTGAGE FORECLOSURE LAW.

REAL ESTATE FOR SALE

Foreclosure and Sale entered in the above cause on June 6, 2023, an agent for The Judicial Sales Corporation, will at 10:30 AM on September 8, 2023, at The Judicial Sales Corporation, One South Wacker, 1st Floor Suite 35R, Chicago, IL, 60606, sell at a public sale to the highest bidder, as set forth below, the following described real estate:

Commonly known as 2925 S 12TH AVE, BROADVIEW, IL 60155

Property Index No. 15-22-417-0070000

The real estate is improved with a single family residence.

REAL ESTATE FOR SALE

CODILIS & ASSOCIATES, P.C.

15W030 NORTH FRONTAGE ROAD, SUITE 100 BURR RIDGE IL, 60527 630-794-5300

E-Mail: pleadings@il.cslegal.com

Attorney File No. 14-22-07029

Attorney ARDC No. 00468002

Attorney Code. 21762

Case Number: 2022 CH 09785

TJSC#: 43-2375

NOTE: Pursuant to the Fair Debt

Collection Practices Act, you are advised that Plaintiff’s attorney is deemed to be a debt collector attempting to collect a debt and any information obtained will be used for that purpose.

Case # 2022 CH 09785 I3225958

IN THE CIRCUIT COURT OF COOK COUNTY, ILLINOIS COUNTY DEPARTMENT - CHANCERY DIVISION

REAL ESTATE FOR SALE

admonished to check the court file to verify all information.

If this property is a condominium unit, the purchaser of the unit at the foreclosure sale, other than a mortgagee, shall pay the assessments and the legal fees required by The Condominium Property Act, 765 ILCS 605/9(g)(1) and (g)(4). If this property is a condominium unit which is part of a common interest community, the purchaser of the unit at the foreclosure sale other than a mortgagee shall pay the assessments required by The Condominium Property Act, 765 ILCS 605/18.5(g-1).

IF YOU ARE THE MORTGAGOR (HOMEOWNER), YOU HAVE THE RIGHT TO REMAIN IN POSSESSION FOR 30 DAYS AFTER ENTRY OF AN ORDER OF POSSESSION, IN ACCORDANCE WITH SECTION 15-1701(C) OF THE ILLINOIS MORTGAGE FORECLOSURE LAW.

BRENDA J. CROCKETT, DAVID CROCKETT

Defendants

2018 CH 06761

2345 SOUTH 20TH AVENUE BROADVIEW, IL 60155

NOTICE OF SALE

PUBLIC NOTICE IS HEREBY GIV-

EN that pursuant to a Judgment of Foreclosure and Sale entered in the above cause on May 20, 2019, an agent for The Judicial Sales Corporation, will at 10:30 AM on August 30, 2023, at The Judicial Sales Corporation, One South Wacker, 1st Floor Suite 35R, Chicago, IL, 60606, sell at a public sale to the highest bidder, as set forth below, the following described real estate:

Commonly known as 2345 SOUTH 20TH AVENUE, BROADVIEW, IL 60155

Property Index No. 15-22-113-0280000

The real estate is improved with a single family residence.

Sale terms: 25% down of the highest bid by certified funds at the close of the sale payable to The Judicial Sales Corporation. No third party checks will be accepted. The balance, in certified funds/or wire transfer, is due within twenty-four (24) hours. The subject property is subject to general real estate taxes, special assessments, or special taxes levied against said real estate and is offered for sale without any representation as to quality or quantity of title and without recourse to Plaintiff and in “AS IS” condition. The sale is further subject to confirmation by the court.

Upon payment in full of the amount bid, the purchaser will receive a Certificate of Sale that will entitle the purchaser to a deed to the real estate after confirmation of the sale.

The property will NOT be open for inspection and plaintiff makes no representation as to the condition of the property. Prospective bidders are admonished to check the court file to verify all information.

If this property is a condominium unit,

You will need a photo identification issued by a government agency (driver’s license, passport, etc.) in order to gain entry into our building and the foreclosure sale room in Cook County and the same identification for sales held at other county venues where The Judicial Sales Corporation conducts foreclosure sales. For information, examine the court file, CODILIS & ASSOCIATES, P.C. Plaintiff’s Attorneys, 15W030 NORTH FRONTAGE ROAD, SUITE 100, BURR RIDGE, IL, 60527 (630) 794-9876

THE JUDICIAL SALES CORPORATION

One South Wacker Drive, 24th Floor, Chicago, IL 60606-4650 (312) 236SALE

You can also visit The Judicial Sales Corporation at www.tjsc.com for a 7 day status report of pending sales.

CODILIS & ASSOCIATES, P.C.

15W030 NORTH FRONTAGE ROAD, SUITE 100 BURR RIDGE IL, 60527 630-794-5300

E-Mail: pleadings@il.cslegal.com

Attorney File No. 14-18-04157

Attorney ARDC No. 00468002

Attorney Code. 21762

Case Number: 2018 CH 06761

TJSC#: 43-2908

NOTE: Pursuant to the Fair Debt Collection Practices Act, you are advised that Plaintiff’s attorney is deemed to be a debt collector attempting to collect a debt and any information obtained will be used for that purpose.

Case # 2018 CH 06761

I3225797

IN THE CIRCUIT COURT OF COOK COUNTY, ILLINOIS COUNTY DEPARTMENT - CHANCERY DIVISION JPMORGAN CHASE BANK, NATIONAL ASSOCIATION

Plaintiff, -v.-

FREDDIE ADAMS, JOHN ADAMS, MICHAEL ADAMS, STEVEN ADAMS, JOSEPH ADAMS, UNKNOWN HEIRS AND LEGATEES OF ALBERT ADAMS, UNKNOWN OWNERS AND NONRECORD CLAIMANTS, WILLIAM P. BUTCHER, AS SPECIAL REPRESENTATIVE FOR ALBERT ADAMS (DECEASED)

Defendants 2022 CH 09785

2925 S 12TH AVE

BROADVIEW, IL 60155

NOTICE OF SALE

PUBLIC NOTICE IS HEREBY GIVEN that pursuant to a Judgment of

Sale terms: 25% down of the highest bid by certified funds at the close of the sale payable to The Judicial Sales Corporation. No third party checks will be accepted. The balance, in certified funds/or wire transfer, is due within twenty-four (24) hours. The subject property is subject to general real estate taxes, special assessments, or special taxes levied against said real estate and is offered for sale without any representation as to quality or quantity of title and without recourse to Plaintiff and in “AS IS” condition. The sale is further subject to confirmation by the court.

Upon payment in full of the amount bid, the purchaser will receive a Certificate of Sale that will entitle the purchaser to a deed to the real estate after confirmation of the sale. The property will NOT be open for inspection and plaintiff makes no representation as to the condition of the property. Prospective bidders are admonished to check the court file to verify all information. If this property is a condominium unit, the purchaser of the unit at the foreclosure sale, other than a mortgagee, shall pay the assessments and the legal fees required by The Condominium Property Act, 765 ILCS 605/9(g)(1) and (g)(4). If this property is a condominium unit which is part of a common interest community, the purchaser of the unit at the foreclosure sale other than a mortgagee shall pay the assessments required by The Condominium Property Act, 765 ILCS 605/18.5(g-1).

IF YOU ARE THE MORTGAGOR (HOMEOWNER), YOU HAVE THE RIGHT TO REMAIN IN POSSESSION FOR 30 DAYS AFTER ENTRY OF AN ORDER OF POSSESSION, IN ACCORDANCE WITH SECTION 15-1701(C) OF THE ILLINOIS MORTGAGE FORECLOSURE LAW.

You will need a photo identification issued by a government agency (driver’s license, passport, etc.) in order to gain entry into our building and the foreclosure sale room in Cook County and the same identification for sales held at other county venues where The Judicial Sales Corporation conducts foreclosure sales. For information, examine the court file, CODILIS & ASSOCIATES, P.C. Plaintiff’s Attorneys, 15W030 NORTH FRONTAGE ROAD, SUITE 100, BURR RIDGE, IL, 60527 (630) 794-9876

THE JUDICIAL SALES CORPORATION

One South Wacker Drive, 24th Floor, Chicago, IL 60606-4650 (312) 236SALE

You can also visit The Judicial Sales Corporation at www.tjsc.com for a 7 day status report of pending sales.

U.S. BANK NATIONAL ASSOCIATION Plaintiff, -v.LINDA L GREEN, UNITED STATES OF AMERICA ACTING BY AND THROUGH ITS AGENCY THE INTERNAL REVENUE DEPARTMENT, AARON GREEN, ILLINOIS DEPARTMENT OF REVENUE

Defendants 2023 CH 00957

240 LINDEN AVE BELLWOOD, IL 60104

NOTICE OF SALE

PUBLIC NOTICE IS HEREBY GIVEN that pursuant to a Judgment of Foreclosure and Sale entered in the above cause on June 8, 2023, an agent for The Judicial Sales Corporation, will at 10:30 AM on September 7, 2023, at The Judicial Sales Corporation, One South Wacker, 1st Floor Suite 35R, Chicago, IL, 60606, sell at a public sale to the highest bidder, as set forth below, the following described real estate:

Commonly known as 240 LINDEN AVE, BELLWOOD, IL 60104

Property Index No. 15-09-113-0220000

The real estate is improved with a single family residence. The judgment amount was $137,347.38.

Sale terms: 25% down of the highest bid by certified funds at the close of the sale payable to The Judicial Sales Corporation. No third party checks will be accepted. The balance, in certified funds/or wire transfer, is due within twenty-four (24) hours. The subject property is subject to general real estate taxes, special assessments, or special taxes levied against said real estate and is offered for sale without any representation as to quality or quantity of title and without recourse to Plaintiff and in “AS IS” condition. The sale is further subject to confirmation by the court.

Upon payment in full of the amount bid, the purchaser will receive a Certificate of Sale that will entitle the purchaser to a deed to the real estate after confirmation of the sale.

Where a sale of real estate is made to satisfy a lien prior to that of the United States, the United States shall have one year from the date of sale within which to redeem, except that with respect to a lien arising under the internal revenue laws the period shall be 120 days or the period allowable for redemption under State law, whichever is longer, and in any case in which, under the provisions of section 505 of the Housing Act of 1950, as amended (12 U.S.C. 1701k), and subsection (d) of section 3720 of title 38 of the United States Code, the right to redeem does not arise, there shall be no right of redemption.

The property will NOT be open for inspection and plaintiff makes no representation as to the condition of the property. Prospective bidders are

You will need a photo identification issued by a government agency (driver’s license, passport, etc.) in order to gain entry into our building and the foreclosure sale room in Cook County and the same identification for sales held at other county venues where The Judicial Sales Corporation conducts foreclosure sales. For information, contact CHAD LEWIS, ROBERTSON ANSCHUTZ SCHNEID CRANE & PARTNERS, PLLC Plaintiff’s Attorneys, 205 N. MICHIGAN SUITE 810, CHICAGO, IL, 60601 (561) 241-6901. Please refer to file number 22-089813.

THE JUDICIAL SALES CORPORATION

One South Wacker Drive, 24th Floor, Chicago, IL 60606-4650 (312) 236SALE

You can also visit The Judicial Sales Corporation at www.tjsc.com for a 7 day status report of pending sales. CHAD LEWIS ROBERTSON ANSCHUTZ

SCHNEID CRANE & PARTNERS, PLLC 205 N. MICHIGAN SUITE 810 CHICAGO IL, 60601 561-241-6901

E-Mail: ILMAIL@RASLG.COM

Attorney File No. 22-089813

Attorney ARDC No. 6306439 Attorney Code. 65582

Case Number: 2023 CH 00957

TJSC#: 43-2476

NOTE: Pursuant to the Fair Debt Collection Practices Act, you are advised that Plaintiff’s attorney is deemed to be a debt collector attempting to collect a debt and any information obtained will be used for that purpose.

Case # 2023 CH 00957

I3226182

IN THE CIRCUIT COURT OF COOK COUNTY, ILLINOIS COUNTY DEPARTMENT - CHANCERY DIVISION

WILMINGTON SAVINGS FUND SOCIETY, FSB NOT IN ITS INDIVIDUAL CAPACITY BUT SOLELY AS OWNER TRUSTEE ON BEHALF OF ANTLER MORTGAGE LOAN TRUST 2021-RTL1 Plaintiff, -v.ROGUE ELEPHANT COMPANY, ROBERT JAMES KENDALL WHEATFALL, AS GUARANTOR

Defendants 2022 CH 05839 614 S. 7TH AVENUE MAYWOOD, IL 60153

NOTICE OF SALE

PUBLIC NOTICE IS HEREBY GIV-

EN that pursuant to a Judgment of Foreclosure and Sale entered in the above cause on July 17, 2023, an agent for The Judicial Sales Corporation, will at 10:30 AM on September 13, 2023, at The Judicial Sales Corporation, One South Wacker, 1st Floor Suite 35R, Chicago, IL, 60606, sell at a public sale to the highest bidder, as set forth below, the following described real estate: Commonly known as 614 S. 7TH AV-

8 Village Free Press, August 9, 2023 vfpress.news
DATE
PUBLIC NOTICE PUBLIC NOTICE OF COURT
REQUEST

REAL ESTATE FOR SALE REAL ESTATE FOR SALE REAL ESTATE FOR SALE REAL ESTATE FOR SALE

ENUE, MAYWOOD, IL 60153

Property Index No. 15-11-333-009-

0000

The real estate is improved with a single family residence.

The judgment amount was $209,068.80.

Sale terms: 100% of the bid amount shall be paid in certified funds immediately by the highest and best bidder at the conclusion of the sale. The certified check must be made payable to The Judicial Sales Corporation. The subject property is subject to general real estate taxes, special assessments, or special taxes levied against said real estate and is offered for sale without any representation as to quality or quantity of title and without recourse to Plaintiff and in “AS IS” condition. The sale is further subject to confirmation by the court.

Upon payment in full of the amount bid, the purchaser will receive a Certificate of Sale that will entitle the purchaser to a deed to the real estate after confirmation of the sale.

The property will NOT be open for inspection and plaintiff makes no representation as to the condition of the property. Prospective bidders are admonished to check the court file to verify all information.

If this property is a condominium unit, the purchaser of the unit at the foreclosure sale, other than a mortgagee, shall pay the assessments and the legal fees required by The Condominium Property Act, 765 ILCS 605/9(g)(1) and (g)(4). If this property is a condominium unit which is part of a common interest community, the purchaser of the unit at the foreclosure sale other than a mortgagee shall pay the assessments required by The Condominium Property Act, 765 ILCS 605/18.5(g-1).

IF YOU ARE THE MORTGAGOR (HOMEOWNER), YOU HAVE THE RIGHT TO REMAIN IN POSSESSION FOR 30 DAYS AFTER ENTRY OF AN ORDER OF POSSESSION, IN ACCORDANCE WITH SECTION 15-1701(C) OF THE ILLINOIS MORTGAGE FORECLOSURE LAW.

You will need a photo identification issued by a government agency (driver’s license, passport, etc.) in order to gain entry into our building and the foreclosure sale room in Cook County and the same identification for sales held at other county venues where The Judicial Sales Corporation conducts foreclosure sales.

For information, contact Kelley, Kronenberg, P.A. Plaintiff’s Attorneys, 20 N. Clark St., Suite 1150, Chicago, IL, 60602 (312) 216-8828. Please refer to file number 02200348.

THE JUDICIAL SALES CORPORATION

One South Wacker Drive, 24th Floor, Chicago, IL 60606-4650 (312) 236-

SALE

You can also visit The Judicial Sales Corporation at www.tjsc.com for a 7 day status report of pending sales.

Kelley, Kronenberg, P.A. 20 N. Clark St., Suite 1150 Chicago IL, 60602 312-216-8828

E-Mail: ileservice@kelleykronenberg.com

Attorney File No. 02200348

Attorney Code. 49848

Case Number: 2022 CH 05839

TJSC#: 43-3078

NOTE: Pursuant to the Fair Debt Collection Practices Act, you are advised that Plaintiff’s attorney is deemed to be a debt collector attempting to collect a debt and any information obtained will be used for that purpose.

Case # 2022 CH 05839

I3226701

IN THE CIRCUIT COURT OF COOK COUNTY, ILLINOIS COUNTY DEPARTMENT - CHANCERY DIVISION

WILMINGTON TRUST, NATIONAL ASSOCIATION, NOT IN ITS INDIVIDUAL CAPACITY BUT SOLELY AS TRUSTEE OF MFRA TRUST

2015-2

Plaintiff,

-v.SONYA CAMPBELL Defendants

21 CH 00299

1914 SOUTH 16TH AVENUE BROADVIEW, IL 60155

NOTICE OF SALE

PUBLIC NOTICE IS HEREBY GIVEN that pursuant to a Judgment of Foreclosure and Sale entered in the above cause on June 13, 2023, an agent for The Judicial Sales Corporation, will at 10:30 AM on September 15, 2023, at The Judicial Sales Corporation, One South Wacker, 1st Floor Suite 35R, Chicago, IL, 60606, sell at a public sale to the highest bidder, as set forth below, the following described real estate:

Commonly known as 1914 SOUTH 16TH AVENUE, BROADVIEW, IL 60155

Property Index No. 15-15-408-0490000

The real estate is improved with a two to four apartment building with no garage.

Sale terms: 25% down of the highest bid by certified funds at the close of the sale payable to The Judicial Sales Corporation. No third party checks will be accepted. The balance, in certified funds/or wire transfer, is due within twenty-four (24) hours. The subject property is subject to general real estate taxes, special assessments, or special taxes levied against said real estate and is offered for sale without any representation as to quality or quantity of title and without recourse to Plaintiff and in “AS IS” condition. The sale is further subject to confirmation by the court.

Upon payment in full of the amount bid, the purchaser will receive a Certificate of Sale that will entitle the purchaser to a deed to the real estate after confirmation of the sale.

The property will NOT be open for inspection and plaintiff makes no representation as to the condition of the property. Prospective bidders are admonished to check the court file to verify all information.

If this property is a condominium unit, the purchaser of the unit at the foreclosure sale, other than a mortgagee, shall pay the assessments and the legal fees required by The Condominium Property Act, 765 ILCS 605/9(g)(1) and (g)(4). If this property is a condominium unit which is part of a common interest community, the purchaser of the unit at the foreclosure sale other than a mortgagee shall pay the assessments required by The Condominium Property Act, 765 ILCS 605/18.5(g-1).

IF YOU ARE THE MORTGAGOR (HOMEOWNER), YOU HAVE THE RIGHT TO REMAIN IN POSSESSION FOR 30 DAYS AFTER ENTRY OF AN ORDER OF POSSESSION, IN ACCORDANCE WITH SECTION 15-1701(C) OF THE ILLINOIS MORTGAGE FORECLOSURE LAW.

You will need a photo identification issued by a government agency (driver’s license, passport, etc.) in order to gain entry into our building and the foreclosure sale room in Cook County and the same identification for sales held at other county venues where The Judicial Sales Corporation conducts foreclosure sales.

MCCALLA RAYMER LEIBERT PIERCE, LLC Plaintiff’s Attorneys, One North Dearborn Street, Suite 1200, Chicago, IL, 60602. Tel No. (312) 346-9088. THE JUDICIAL SALES CORPORATION

One South Wacker Drive, 24th Floor, Chicago, IL 60606-4650 (312) 236-

SALE

You can also visit The Judicial Sales Corporation at www.tjsc.com for a 7 day status report of pending sales.

MCCALLA RAYMER LEIBERT

PIERCE, LLC

One North Dearborn Street, Suite 1200 Chicago IL, 60602 312-346-9088

E-Mail: pleadings@mccalla.com

Attorney File No. 20-06852IL_633123

Attorney Code. 61256

Case Number: 21 CH 00299

TJSC#: 43-2806

NOTE: Pursuant to the Fair Debt Collection Practices Act, you are advised that Plaintiff’s attorney is deemed to be a debt collector attempting to collect a debt and any information obtained will be used for that purpose.

Case # 21 CH 00299

I3226757

IN THE CIRCUIT COURT OF COOK COUNTY, ILLINOIS COUNTY DEPARTMENT - CHANCERY DIVISION LAKEVIEW LOAN SERVICING LLC

Plaintiff, -v.CARY ROSENTHAL, SPECIAL REPRESENTATIVE OF MARY R SPIGHT, DECEASED, UNKNOWN OWNERS AND NON-RECORD CLAIMANTS, UNKNOWN HEIRS AND LEGATEES OF MARY R SPIGHT, BIANCA PHILLIPS

Defendants

22 CH 07827

426 SOUTH 21ST AVENUE MAYWOOD, IL 60153

NOTICE OF SALE

PUBLIC NOTICE IS HEREBY GIVEN that pursuant to a Judgment of Foreclosure and Sale entered in the above cause on July 17, 2023, an agent for The Judicial Sales Corporation, will at 10:30 AM on September 11, 2023, at The Judicial Sales Corporation, One South Wacker, 1st Floor Suite 35R, Chicago, IL, 60606, sell at a public sale to the highest bidder, as set forth below, the following described real estate:

Commonly known as 426 SOUTH 21ST AVENUE, MAYWOOD, IL 60153

Property Index No. 15-10-311-0220000

The real estate is improved with a single family residence with no garage.

Sale terms: 25% down of the highest bid by certified funds at the close of the sale payable to The Judicial Sales Corporation. No third party checks will be accepted. The balance, in certified funds/or wire transfer, is due within twenty-four (24) hours. The subject property is subject to general real estate taxes, special assessments, or special taxes levied against said real estate and is offered for sale without any representation as to quality or quantity of title and without recourse to Plaintiff and in “AS IS” condition. The sale is further subject to confirmation by the court.

Upon payment in full of the amount bid, the purchaser will receive a Certificate of Sale that will entitle the purchaser to a deed to the real estate after confirmation of the sale.

The property will NOT be open for inspection and plaintiff makes no representation as to the condition of the property. Prospective bidders are admonished to check the court file to verify all information.

If this property is a condominium unit, the purchaser of the unit at the foreclosure sale, other than a mortgagee, shall pay the assessments and the legal fees required by The Condominium Property Act, 765 ILCS 605/9(g)(1) and (g)(4). If this property is a condominium unit which is part of a common interest community, the purchaser of the unit at the fore-

closure sale other than a mortgagee shall pay the assessments required by The Condominium Property Act, 765 ILCS 605/18.5(g-1).

IF YOU ARE THE MORTGAGOR (HOMEOWNER), YOU HAVE THE RIGHT TO REMAIN IN POSSESSION FOR 30 DAYS AFTER ENTRY OF AN ORDER OF POSSESSION, IN ACCORDANCE WITH SECTION 15-1701(C) OF THE ILLINOIS MORTGAGE FORECLOSURE LAW.

You will need a photo identification issued by a government agency (driver’s license, passport, etc.) in order to gain entry into our building and the foreclosure sale room in Cook County and the same identification for sales held at other county venues where The Judicial Sales Corporation conducts foreclosure sales.

MCCALLA RAYMER LEIBERT

PIERCE, LLC Plaintiff’s Attorneys, One North Dearborn Street, Suite 1200, Chicago, IL, 60602. Tel No. (312) 346-9088. THE JUDICIAL SALES CORPORATION

One South Wacker Drive, 24th Floor, Chicago, IL 60606-4650 (312) 236SALE

You can also visit The Judicial Sales Corporation at www.tjsc.com for a 7 day status report of pending sales.

MCCALLA RAYMER LEIBERT PIERCE, LLC

One North Dearborn Street, Suite 1200 Chicago IL, 60602

312-346-9088

E-Mail: pleadings@mccalla.com

Attorney File No. 22-10868IL

Attorney Code. 61256

Case Number: 22 CH 07827

TJSC#: 43-2987

NOTE: Pursuant to the Fair Debt Collection Practices Act, you are advised that Plaintiff’s attorney is deemed to be a debt collector attempting to collect a debt and any information obtained will be used for that purpose.

Case # 22 CH 07827

I3226270

IN THE CIRCUIT COURT OF COOK COUNTY, ILLINOIS COUNTY DEPARTMENT - CHANCERY DIVISION US BANK NATIONAL ASSOCIATION AS TRUSTEE FOR THE HOLDERS OF THE ASSET BACKED PASS THROUGH CERTIFICATES SERIES 2002-HE1; Plaintiff, vs. VICTOR WALKER; GAYLA W. WALKER AKA GAYLA WALKER; WELLS FARGO BANK NATIONAL ASSOCIATION STATE OF ILLINOIS; US BANK NATIONAL ASSOCIATION, AS TRUSTEE FOR THE HOLDERS OF OF THE ASSET BACKED PASS THROUGH CERTIFICATES SERIES 2002-HE1; Defendants, 19 CH 6192 NOTICE OF SALE

PUBLIC NOTICE IS HEREBY GIVEN that pursuant to a Judgment of Foreclosure and Sale entered in the above entitled cause Intercounty Judicial Sales Corporation will on Monday, September 11, 2023 at the hour of 11 a.m. in their office at 120 West Madison Street, Suite 718A, Chicago, Illinois, sell at public auction to the highest bidder for cash, as set forth below, the following described mortgaged real estate: P.I.N. 15-11-120-009-0000, 15-11120-010-0000.

Commonly known as 416 North 4th Avenue, Maywood, IL 60153. The mortgaged real estate is improved with a single family residence. If the subject mortgaged real estate is a unit of a common interest community, the purchaser of the unit other than a mortgagee shall pay the assessments required by subsection

REAL ESTATE FOR SALE

(g-1) of Section 18.5 of the Condominium Property Act. Sale terms: 10% down by certified funds, balance, by certified funds, within 24 hours. No refunds. The property will NOT be open for inspection.

For information call Sales Department at Plaintiff’s Attorney, Manley Deas Kochalski, LLC, One East Wacker Drive, Chicago, Illinois 60601. (614) 220-5611. 19-009204

ADC F2

INTERCOUNTY JUDICIAL SALES CORPORATION intercountyjudicialsales.com

I3226308

IN THE CIRCUIT COURT OF COOK COUNTY, ILLINOIS COUNTY DEPARTMENT - CHANCERY DIVISION SPECIALIZED LOAN SERVICING, LLC; Plaintiff, vs. ANNIE D. HROBOWSKI; UNKNOWN OWNERS AND NON RECORD CLAIMANTS; Defendants, 23 CH 636

NOTICE OF SALE

PUBLIC NOTICE IS HEREBY GIV-

EN that pursuant to a Judgment of Foreclosure and Sale entered in the above entitled cause Intercounty Judicial Sales Corporation will on Monday, September 11, 2023 at the hour of 11 a.m. in their office at 120 West Madison Street, Suite 718A, Chicago, Illinois, sell at public auction to the highest bidder for cash, as set forth below, the following described mortgaged real estate: P.I.N. 15-10-232-027-0000.

Commonly known as 110 South 12th Avenue, Maywood, IL 60153. The mortgaged real estate is improved with a single family residence. If the subject mortgaged real estate is a unit of a common interest community, the purchaser of the unit other than a mortgagee shall pay the assessments required by subsection (g-1) of Section 18.5 of the Condominium Property Act. Sale terms: 10% down by certified funds, balance, by certified funds, within 24 hours. No refunds. The property will NOT be open for inspection.

For information call The Sales Department at Plaintiff’s Attorney, Diaz Anselmo & Associates, P.A., 1771 West Diehl Road, Naperville, Illinois 60563. (630) 453-6925. 1396189580 ADC INTERCOUNTY JUDICIAL SALES CORPORATION intercountyjudicialsales.com I3226322

IN THE CIRCUIT COURT OF COOK COUNTY, ILLINOIS COUNTY DEPARTMENT - CHANCERY DIVISION WILMINGTON SAVINGS FUND SOCIETY FSB DBA CHRISTIANA TRUST AS TRUSTEE FOR PNPMS TRUST III; Plaintiff, vs. DARRYL L. CHRISTY; FELICIA A. CHRISTY AKA FELICIA CHRISTY; UNKNOWN OWNERS AND NONRECORD CLAIMANTS; Defendants, 22 CH 2454

NOTICE OF SALE

PUBLIC NOTICE IS HEREBY GIVEN that pursuant to a Judgment of Foreclosure and Sale entered in the above entitled cause Intercounty Judicial Sales Corporation will on Tuesday, September 12, 2023 at the hour of 11 a.m. in their office at 120 West Madison Street, Suite 718A, Chicago, Illinois, sell at public auction to the highest bidder for cash, as set forth below, the following described mortgaged real estate:

REAL ESTATE FOR SALE REAL ESTATE FOR SALE

P.I.N. 15-09-307-039-0000; 15-09307-040-0000.

Commonly known as 534 BELLWOOD AVE., BELLWOOD, IL 60104.

The mortgaged real estate is improved with a single family residence. If the subject mortgaged real estate is a unit of a common interest community, the purchaser of the unit other than a mortgagee shall pay the assessments required by subsection (g-1) of Section 18.5 of the Condominium Property Act. THE SALE SHALL BE SUBJECT TO GENERAL TAXES, SPECIAL ASSESSMENTS AND TO PRIOR RECORDED FIRST AND SECOND MORTGAGES

Sale terms: 10% down by certified funds, balance, by certified funds, within 24 hours. No refunds. The property will NOT be open for inspection.

For information call The Sales Department at Plaintiff’s Attorney, Diaz Anselmo & Associates, P.A., 1771 West Diehl Road, Naperville, Illinois 60563. (630) 453-6925. 6758181027

INTERCOUNTY JUDICIAL SALES CORPORATION intercountyjudicialsales.com

I3226331

IN THE CIRCUIT COURT OF COOK COUNTY, ILLINOIS COUNTY DEPARTMENT - CHANCERY DIVISION BANK OF NEW YORK MELLON TRUST COMPANY, N.A. AS TRUSTEE FOR MORTGAGE ASSETS MANAGEMENT SERIES I TRUST Plaintiff, -v.-

VESSIE MAE WHITE, UNKNOWN HEIRS AND LEGATEES OF JAMES WHITE, PARK NATIONAL BANK, UNITED STATES OF AMERICASECRETARY OF HOUSING AND URBAN DEVELOPMENT, UNKNOWN OWNERS AND NONRECORD CLAIMANTS, DAMON RITENHOUSE, AS SPECIAL REPRESENTATIVE FOR SPECIAL REPRESENTATIVE FOR JAMES WHITE (DECEASED)

Defendants 2022 CH 11529 638 S 22ND AVE

BELLWOOD, IL 60104

NOTICE OF SALE

PUBLIC NOTICE IS HEREBY GIVEN that pursuant to a Judgment of Foreclosure and Sale entered in the above cause on March 28, 2023, an agent for The Judicial Sales Corporation, will at 10:30 AM on September 14, 2023, at The Judicial Sales Corporation, One South Wacker, 1st Floor Suite 35R, Chicago, IL, 60606, sell at a public sale to the highest bidder, as set forth below, the following described real estate:

Commonly known as 638 S 22ND AVE, BELLWOOD, IL 60104

Property Index No. 15-10-318-0210000

The real estate is improved with a single family residence.

Sale terms: 25% down of the highest bid by certified funds at the close of the sale payable to The Judicial Sales Corporation. No third party checks will be accepted. The balance, in certified funds/or wire transfer, is due within twenty-four (24) hours. The subject property is subject to general real estate taxes, special assessments, or special taxes levied against said real estate and is offered for sale without any representation as to quality or quantity of title and without recourse to Plaintiff and in “AS IS” condition. The sale is further subject to confirmation by the court.

Upon payment in full of the amount bid, the purchaser will receive a Certificate of Sale that will entitle the purchaser to a deed to the real estate after confirmation of the sale.

Where a sale of real estate is made to satisfy a lien prior to that of the

United States, the United States shall have one year from the date of sale within which to redeem, except that with respect to a lien arising under the internal revenue laws the period shall be 120 days or the period allowable for redemption under State law, whichever is longer, and in any case in which, under the provisions of section 505 of the Housing Act of 1950, as amended (12 U.S.C. 1701k), and subsection (d) of section 3720 of title 38 of the United States Code, the right to redeem does not arise, there shall be no right of redemption.

The property will NOT be open for inspection and plaintiff makes no representation as to the condition of the property. Prospective bidders are admonished to check the court file to verify all information.

If this property is a condominium unit, the purchaser of the unit at the foreclosure sale, other than a mortgagee, shall pay the assessments and the legal fees required by The Condominium Property Act, 765 ILCS 605/9(g)(1) and (g)(4). If this property is a condominium unit which is part of a common interest community, the purchaser of the unit at the foreclosure sale other than a mortgagee shall pay the assessments required by The Condominium Property Act, 765 ILCS 605/18.5(g-1).

IF YOU ARE THE MORTGAGOR (HOMEOWNER), YOU HAVE THE RIGHT TO REMAIN IN POSSESSION FOR 30 DAYS AFTER ENTRY OF AN ORDER OF POSSESSION, IN ACCORDANCE WITH SECTION 15-1701(C) OF THE ILLINOIS MORTGAGE FORECLOSURE LAW.

You will need a photo identification issued by a government agency (driver’s license, passport, etc.) in order to gain entry into our building and the foreclosure sale room in Cook County and the same identification for sales held at other county venues where The Judicial Sales Corporation conducts foreclosure sales. For information, examine the court file, CODILIS & ASSOCIATES, P.C. Plaintiff’s Attorneys, 15W030 NORTH FRONTAGE ROAD, SUITE 100, BURR RIDGE, IL, 60527 (630) 794-9876

THE JUDICIAL SALES CORPORA-

TION

One South Wacker Drive, 24th Floor, Chicago, IL 60606-4650 (312) 236-

SALE

You can also visit The Judicial Sales Corporation at www.tjsc.com for a 7 day status report of pending sales. CODILIS & ASSOCIATES, P.C. 15W030 NORTH FRONTAGE ROAD, SUITE 100 BURR RIDGE IL, 60527 630-794-5300

E-Mail: pleadings@il.cslegal.com

Attorney File No. 14-22-07557

Attorney ARDC No. 00468002

Attorney Code. 21762

Case Number: 2022 CH 11529

TJSC#: 43-2895

NOTE: Pursuant to the Fair Debt Collection Practices Act, you are advised that Plaintiff’s attorney is deemed to be a debt collector attempting to collect a debt and any information obtained will be used for that purpose.

Case # 2022 CH 11529

I3226508

Village Free Press, August 9, 2023 9 vfpress.news

REAL ESTATE FOR SALE REAL ESTATE FOR SALE REAL ESTATE FOR SALE REAL ESTATE FOR SALE REAL ESTATE FOR SALE REAL ESTATE FOR SALE REAL ESTATE FOR SALE

IN THE CIRCUIT COURT OF COOK COUNTY, ILLINOIS COUNTY DEPARTMENT - CHANCERY DIVISION CITIZENS BANK, N.A. Plaintiff,

-v.-

REKIETHA BLASH VANZANT, BRENDAN FINANCIAL, INC., CREDIT UNION 1

Defendants

2022 CH 04608

2011 S 12TH AVENUE MAYWOOD, IL 60153

NOTICE OF SALE

PUBLIC NOTICE IS HEREBY GIV-

EN that pursuant to a Judgment of Foreclosure and Sale entered in the above cause on June 13, 2023, an agent for The Judicial Sales Corporation, will at 10:30 AM on September 15, 2023, at The Judicial Sales Corporation, One South Wacker, 1st Floor Suite 35R, Chicago, IL, 60606, sell at a public sale to the highest bidder, as set forth below, the following described real estate:

Commonly known as 2011 S 12TH AVENUE, MAYWOOD, IL 60153

Property Index No. 15-15-421-005-

0000

The real estate is improved with a residence.

Sale terms: 25% down of the highest bid by certified funds at the close of the sale payable to The Judicial Sales Corporation. No third party checks will be accepted. The balance, in certified funds/or wire transfer, is due within twenty-four (24) hours. The subject property is subject to general real estate taxes, special assessments, or special taxes levied against said real estate and is offered for sale without any representation as to quality or quantity of title and without recourse to Plaintiff and in “AS IS” condition. The sale is further subject to confirmation by the court.

Upon payment in full of the amount bid, the purchaser will receive a Certificate of Sale that will entitle the purchaser to a deed to the real estate after confirmation of the sale.

The property will NOT be open for inspection and plaintiff makes no representation as to the condition of the property. Prospective bidders are admonished to check the court file to verify all information.

If this property is a condominium unit, the purchaser of the unit at the foreclosure sale, other than a mortgagee, shall pay the assessments and the legal fees required by The Condominium Property Act, 765 ILCS 605/9(g)(1) and (g)(4). If this property is a condominium unit which is part of a common interest community, the purchaser of the unit at the foreclosure sale other than a mortgagee shall pay the assessments required by The Condominium Property Act, 765 ILCS 605/18.5(g-1).

IF YOU ARE THE MORTGAGOR (HOMEOWNER), YOU HAVE THE RIGHT TO REMAIN IN POSSESSION FOR 30 DAYS AFTER ENTRY OF AN ORDER OF POSSESSION, IN ACCORDANCE WITH SECTION 15-1701(C) OF THE ILLINOIS MORTGAGE FORECLOSURE LAW.

You will need a photo identification issued by a government agency (driver’s license, passport, etc.) in order to gain entry into our building and the foreclosure sale room in Cook County and the same identification for sales held at other county venues where The Judicial Sales Corporation conducts foreclosure sales.

For information, examine the court file, CODILIS & ASSOCIATES, P.C. Plaintiff’s Attorneys, 15W030 NORTH FRONTAGE ROAD, SUITE 100, BURR RIDGE, IL, 60527 (630) 794-9876

THE JUDICIAL SALES CORPORATION

One South Wacker Drive, 24th Floor, Chicago, IL 60606-4650 (312) 236-

SALE

You can also visit The Judicial Sales Corporation at www.tjsc.com for a 7 day status report of pending sales.

CODILIS & ASSOCIATES, P.C.

15W030 NORTH FRONTAGE ROAD, SUITE 100

BURR RIDGE IL, 60527

630-794-5300

E-Mail: pleadings@il.cslegal.com

Attorney File No. 14-22-03705

Attorney ARDC No. 00468002

Attorney Code. 21762

Case Number: 2022 CH 04608

TJSC#: 43-2494

NOTE: Pursuant to the Fair Debt Collection Practices Act, you are advised that Plaintiff’s attorney is deemed to be a debt collector attempting to collect a debt and any information obtained will be used for that purpose.

Case # 2022 CH 04608

I3226511

IN THE CIRCUIT COURT OF COOK COUNTY, ILLINOIS COUNTY DEPARTMENT - CHANCERY DIVISION

PHH MORTGAGE CORPORATION

Plaintiff,

-v.-

DEBBY MCCLINTON A/K/A DEBBY

C. MCCLINTON, UNITED STATES OF AMERICA - DEPARTMENT OF HOUSING AND URBAN DEVELOPMENT, OCWEN LOAN SERVICING, LLC

Defendants

2020 CH 03113

549 48TH AVE

BELLWOOD, IL 60104

NOTICE OF SALE

PUBLIC NOTICE IS HEREBY GIV-

EN that pursuant to a Judgment of Foreclosure and Sale entered in the above cause on June 13, 2023, an agent for The Judicial Sales Corporation, will at 10:30 AM on September 15, 2023, at The Judicial Sales Corporation, One South Wacker, 1st Floor Suite 35R, Chicago, IL, 60606, sell at a public sale to the highest bidder, as set forth below, the following described real estate:

Commonly known as 549 48TH AVE, BELLWOOD, IL 60104

Property Index No. 15-08-409-073-

0000

The real estate is improved with a single family residence.

Sale terms: 25% down of the highest bid by certified funds at the close of the sale payable to The Judicial Sales Corporation. No third party checks will be accepted. The balance, in certified funds/or wire transfer, is due within twenty-four (24) hours. The subject property is subject to general real estate taxes, special assessments, or special taxes levied against said real estate and is offered for sale without any representation as to quality or quantity of title and without recourse to Plaintiff and in “AS IS” condition. The sale is further subject to confirmation by the court.

Upon payment in full of the amount bid, the purchaser will receive a Certificate of Sale that will entitle the purchaser to a deed to the real estate after confirmation of the sale.

Where a sale of real estate is made to satisfy a lien prior to that of the United States, the United States shall have one year from the date of sale within which to redeem, except that with respect to a lien arising under the internal revenue laws the period shall be 120 days or the period allowable for redemption under State law, whichever is longer, and in any case in which, under the provisions of section 505 of the Housing Act of 1950, as amended (12 U.S.C. 1701k), and subsection (d) of section 3720 of title 38 of the United States Code, the right to redeem does not arise, there shall be no right of redemption.

The property will NOT be open for inspection and plaintiff makes no

representation as to the condition of the property. Prospective bidders are admonished to check the court file to verify all information.

If this property is a condominium unit, the purchaser of the unit at the foreclosure sale, other than a mortgagee, shall pay the assessments and the legal fees required by The Condominium Property Act, 765 ILCS 605/9(g)(1) and (g)(4). If this property is a condominium unit which is part of a common interest community, the purchaser of the unit at the foreclosure sale other than a mortgagee shall pay the assessments required by The Condominium Property Act, 765 ILCS 605/18.5(g-1).

IF YOU ARE THE MORTGAGOR (HOMEOWNER), YOU HAVE THE RIGHT TO REMAIN IN POSSESSION FOR 30 DAYS AFTER ENTRY OF AN ORDER OF POSSESSION, IN ACCORDANCE WITH SECTION 15-1701(C) OF THE ILLINOIS MORTGAGE FORECLOSURE LAW.

You will need a photo identification issued by a government agency (driver’s license, passport, etc.) in order to gain entry into our building and the foreclosure sale room in Cook County and the same identification for sales held at other county venues where The Judicial Sales Corporation conducts foreclosure sales.

For information, examine the court file, CODILIS & ASSOCIATES, P.C. Plaintiff’s Attorneys, 15W030 NORTH FRONTAGE ROAD, SUITE 100, BURR RIDGE, IL, 60527 (630)

794-9876

THE JUDICIAL SALES CORPORATION

One South Wacker Drive, 24th Floor, Chicago, IL 60606-4650 (312) 236SALE

You can also visit The Judicial Sales Corporation at www.tjsc.com for a 7 day status report of pending sales.

CODILIS & ASSOCIATES, P.C.

15W030 NORTH FRONTAGE ROAD, SUITE 100 BURR RIDGE IL, 60527 630-794-5300

E-Mail: pleadings@il.cslegal.com

Attorney File No. 14-20-01819

Attorney ARDC No. 00468002

Attorney Code. 21762

Case Number: 2020 CH 03113

TJSC#: 43-2552

NOTE: Pursuant to the Fair Debt Collection Practices Act, you are advised that Plaintiff’s attorney is deemed to be a debt collector attempting to collect a debt and any information obtained will be used for that purpose.

Case # 2020 CH 03113

I3226566

IN THE CIRCUIT COURT OF COOK COUNTY, ILLINOIS COUNTY DEPARTMENT - CHANCERY DIVISION FOREST PARK NATIONAL BANK & TRUST COMPANY

Plaintiff, -v.LISA A. HAEGER, CARL M. MONTINO, UNITED STATES OF AMERICA, UNKNOWN OWNERS AND NON-RECORD CLAIMANTS

Defendants 16 CH 12350

533 Marengo FOREST PARK, IL 60130

NOTICE OF SALE

PUBLIC NOTICE IS HEREBY GIV-

EN that pursuant to a Judgment of Foreclosure and Sale entered in the above cause on February 24, 2022 and amended on March 2, 2023, an agent for The Judicial Sales Corporation, will at 10:30 AM on September 5, 2023, at The Judicial Sales Corporation, One South Wacker, 1st Floor Suite 35R, Chicago, IL, 60606, sell at a public sale to the highest bidder, as set forth below, the following described real estate:

Commonly known as 533 Marengo, FOREST PARK, IL 60130

Property Index No. 15-13-213-0230000

The real estate is improved with a residence.

The judgment amount was $319,544.72.

Sale terms: 25% down of the highest bid by certified funds at the close of the sale payable to The Judicial Sales Corporation. No third party checks will be accepted. The balance, including the Judicial Sale fee for the Abandoned Residential Property Municipality Relief Fund, which is calculated on residential real estate at the rate of $1 for each $1,000 or fraction thereof of the amount paid by the purchaser not to exceed $300, in certified funds/or wire transfer, is due within twenty-four (24) hours. No fee shall be paid by the mortgagee acquiring the residential real estate pursuant to its credit bid at the sale or by any mortgagee, judgment creditor, or other lienor acquiring the residential real estate whose rights in and to the residential real estate arose prior to the sale. The subject property is subject to general real estate taxes, special assessments, or special taxes levied against said real estate and is offered for sale without any representation as to quality or quantity of title and without recourse to Plaintiff and in “AS IS” condition. The sale is further subject to confirmation by the court. Upon payment in full of the amount bid, the purchaser will receive a Certificate of Sale that will entitle the purchaser to a deed to the real estate after confirmation of the sale. Where a sale of real estate is made to satisfy a lien prior to that of the United States, the United States shall have one year from the date of sale within which to redeem, except that with respect to a lien arising under the internal revenue laws the period shall be 120 days or the period allowable for redemption under State law, whichever is longer, and in any case in which, under the provisions of section 505 of the Housing Act of 1950, as amended (12 U.S.C. 1701k), and subsection (d) of section 3720 of title 38 of the United States Code, the right to redeem does not arise, there shall be no right of redemption. The property will NOT be open for inspection and plaintiff makes no representation as to the condition of the property. Prospective bidders are admonished to check the court file to verify all information. If this property is a condominium unit, the purchaser of the unit at the foreclosure sale, other than a mortgagee, shall pay the assessments and the legal fees required by The Condominium Property Act, 765 ILCS 605/9(g)(1) and (g) (4). If this property is a condominium unit which is part of a common interest community, the purchaser of the unit at the foreclosure sale other than a mortgagee shall pay the assessments required by The Condominium Property Act, 765 ILCS 605/18.5(g1).IF YOU ARE THE MORTGAGOR (HOMEOWNER), YOU HAVE THE RIGHT TO REMAIN IN POSSESSION FOR 30 DAYS AFTER ENTRY OF AN ORDER OF POSSESSION, IN ACCORDANCE WITH SECTION 15-1701(C) OF THE ILLINOIS MORTGAGE FORECLOSURE LAW.

You will need a photo identification issued by a government agency (driver’s license, passport, etc.) in order to gain entry into our building and the foreclosure sale room in Cook County and the same identification for sales held at other county venues where The Judicial Sales Corporation conducts foreclosure sales. For information, contact Amanda E. Losquadro, CHUHAK & TECSON, P.C. Plaintiff’s Attorneys, 120 S. Riverside Plaza, Suite 1700, CHICAGO, IL, 60606 (312) 444-9300. Please refer to file number 21168.72643.

THE JUDICIAL SALES CORPORATION

One South Wacker Drive, 24th Floor, Chicago, IL 60606-4650 (312) 236-

SALE

You can also visit The Judicial Sales Corporation at www.tjsc.com for a 7 day status report of pending sales.

Amanda E. Losquadro CHUHAK & TECSON, P.C.

120 S. Riverside Plaza, Suite 1700 CHICAGO IL, 60606 312-444-9300

E-Mail: alosquadro@chuhak.com

Attorney File No. 21168.72643

Attorney Code. 70693 Case Number: 16 CH 12350

TJSC#: 43-1089

NOTE: Pursuant to the Fair Debt Collection Practices Act, you are advised that Plaintiff’s attorney is deemed to be a debt collector attempting to collect a debt and any information obtained will be used for that purpose.

I3225564

IN THE CIRCUIT COURT OF COOK COUNTY, ILLINOIS COUNTY DEPARTMENT - CHANCERY DIVISION

JPMORGAN CHASE BANK, NATIONAL ASSOCIATION

Plaintiff, -v.VERNITA LOVE, UNKNOWN OWNERS AND NON­RECORD CLAIMANTS, UNKNOWN HEIRS AND LEGATEES OF CATHERINE ROBINSON, DECEASED, PHARON LOVE, DAMON RITENHOUSE, AS SPECIAL REPRESENTATIVE TO CATHERINE ROBINSON, DECEASED

Defendants

2022 CH 01483 1022 EASTERN AVENUE BELLWOOD, IL 60104

NOTICE OF SALE

PUBLIC NOTICE IS HEREBY GIVEN that pursuant to a Judgment of Foreclosure and Sale entered in the above cause on March 9, 2023, an agent for The Judicial Sales Corporation, will at 10:30 AM on August 24, 2023, at The Judicial Sales Corporation, One South Wacker, 1st Floor Suite 35R, Chicago, IL, 60606, sell at a public sale to the highest bidder, as set forth below, the following described real estate:

Commonly known as 1022 EASTERN AVENUE, BELLWOOD, IL 60104

Property Index No. 15-16-120-0470000

The real estate is improved with a single family residence. The judgment amount was $170,549.57.

Sale terms: 25% down of the highest bid by certified funds at the close of the sale payable to The Judicial Sales Corporation. No third party checks will be accepted. The balance, in certified funds/or wire transfer, is due within twenty-four (24) hours. The subject property is subject to general real estate taxes, special assessments, or special taxes levied against said real estate and is offered for sale without any representation as to quality or quantity of title and without recourse to Plaintiff and in “AS IS” condition. The sale is further subject to confirmation by the court.

Upon payment in full of the amount bid, the purchaser will receive a Certificate of Sale that will entitle the purchaser to a deed to the real estate after confirmation of the sale. The property will NOT be open for inspection and plaintiff makes no representation as to the condition of the property. Prospective bidders are admonished to check the court file to verify all information.

If this property is a condominium unit, the purchaser of the unit at the foreclosure sale, other than a mortgagee, shall pay the assessments and the legal fees required by The Condominium Property Act, 765 ILCS 605/9(g)(1) and (g)(4). If this property

is a condominium unit which is part of a common interest community, the purchaser of the unit at the foreclosure sale other than a mortgagee shall pay the assessments required by The Condominium Property Act, 765 ILCS 605/18.5(g-1).

IF YOU ARE THE MORTGAGOR (HOMEOWNER), YOU HAVE THE RIGHT TO REMAIN IN POSSESSION FOR 30 DAYS AFTER ENTRY OF AN ORDER OF POSSESSION, IN ACCORDANCE WITH SECTION 15-1701(C) OF THE ILLINOIS MORTGAGE FORECLOSURE LAW.

You will need a photo identification issued by a government agency (driver’s license, passport, etc.) in order to gain entry into our building and the foreclosure sale room in Cook County and the same identification for sales held at other county venues where The Judicial Sales Corporation conducts foreclosure sales.

For information, contact MANLEY DEAS KOCHALSKI LLC Plaintiff’s Attorneys, ONE EAST WACKER, SUITE 1250, Chicago, IL, 60601 (312) 651-6700. Please refer to file number 22-000192.

THE JUDICIAL SALES CORPORATION

One South Wacker Drive, 24th Floor, Chicago, IL 60606-4650 (312) 236SALE

You can also visit The Judicial Sales Corporation at www.tjsc.com for a 7 day status report of pending sales. MANLEY DEAS KOCHALSKI LLC

ONE EAST WACKER, SUITE 1250 Chicago IL, 60601 312-651-6700

E-Mail: AMPS@manleydeas.com

Attorney File No. 22-000192

Attorney Code. 48928

Case Number: 2022 CH 01483

TJSC#: 43-2845

NOTE: Pursuant to the Fair Debt Collection Practices Act, you are advised that Plaintiff’s attorney is deemed to be a debt collector attempting to collect a debt and any information obtained will be used for that purpose.

Case # 2022 CH 01483 I3225387

IN THE CIRCUIT COURT OF COOK COUNTY, ILLINOIS COUNTY DEPARTMENT - CHANCERY DIVISION CITIMORTGAGE, INC.

Plaintiff, -v.-

FELICIA DEGRAFFENREID, NEIGHBORHOOD ASSISTANCE CORPORATION OF AMERICA, ILLINOIS HOUSING DEVELOPMENT

AUTHORITY

Defendants 20 CH 01174 1540 N. ROHDE AVE. BERKELEY, IL 60163

NOTICE OF SALE

PUBLIC NOTICE IS HEREBY GIVEN that pursuant to a Judgment of Foreclosure and Sale entered in the above cause on January 6, 2023, an agent for The Judicial Sales Corporation, will at 10:30 AM on September 1, 2023, at The Judicial Sales Corporation, One South Wacker, 1st Floor Suite 35R, Chicago, IL, 60606, sell at a public sale to the highest bidder, as set forth below, the following described real estate:

Commonly known as 1540 N. ROHDE AVE., BERKELEY, IL 60163

Property Index No. 15-08-113-0500000

The real estate is improved with a single family residence.

The judgment amount was $130,373.67.

Sale terms: 25% down of the highest bid by certified funds at the close of the sale payable to The Judicial Sales Corporation. No third party checks will be accepted. The balance, in certified funds/or wire transfer, is due within twenty-four (24) hours. The subject property is sub-

ject to general real estate taxes, special assessments, or special taxes levied against said real estate and is offered for sale without any representation as to quality or quantity of title and without recourse to Plaintiff and in “AS IS” condition. The sale is further subject to confirmation by the court.

Upon payment in full of the amount bid, the purchaser will receive a Certificate of Sale that will entitle the purchaser to a deed to the real estate after confirmation of the sale. The property will NOT be open for inspection and plaintiff makes no representation as to the condition of the property. Prospective bidders are admonished to check the court file to verify all information.

If this property is a condominium unit, the purchaser of the unit at the foreclosure sale, other than a mortgagee, shall pay the assessments and the legal fees required by The Condominium Property Act, 765 ILCS 605/9(g)(1) and (g)(4). If this property is a condominium unit which is part of a common interest community, the purchaser of the unit at the foreclosure sale other than a mortgagee shall pay the assessments required by The Condominium Property Act, 765 ILCS 605/18.5(g-1).

IF YOU ARE THE MORTGAGOR (HOMEOWNER), YOU HAVE THE RIGHT TO REMAIN IN POSSESSION FOR 30 DAYS AFTER ENTRY OF AN ORDER OF POSSESSION, IN ACCORDANCE WITH SECTION 15-1701(C) OF THE ILLINOIS MORTGAGE FORECLOSURE LAW.

You will need a photo identification issued by a government agency (driver’s license, passport, etc.) in order to gain entry into our building and the foreclosure sale room in Cook County and the same identification for sales held at other county venues where The Judicial Sales Corporation conducts foreclosure sales. For information, contact HEAVNER, BEYERS & MIHLAR, LLC Plaintiff’s Attorneys, 601 E. William St., DECATUR, IL, 62523 (217) 422-1719.

Please refer to file number 403024. THE JUDICIAL SALES CORPORATION

One South Wacker Drive, 24th Floor, Chicago, IL 60606-4650 (312) 236-

SALE

You can also visit The Judicial Sales Corporation at www.tjsc.com for a 7 day status report of pending sales.

HEAVNER, BEYERS & MIHLAR, LLC

601 E. William St. DECATUR IL, 62523

217-422-1719

Fax #: 217-422-1754

E-Mail: CookPleadings@hsbattys. com

Attorney File No. 403024

Attorney Code. 40387

Case Number: 20 CH 01174

TJSC#: 43-401

NOTE: Pursuant to the Fair Debt Collection Practices Act, you are advised that Plaintiff’s attorney is deemed to be a debt collector attempting to collect a debt and any information obtained will be used for that purpose.

Case # 20 CH 01174

I3224449

10 Village Free Press, August 9, 2023 vfpress.news

below, the following described real estate:

Commonly known as 222 46TH AVENUE, BELLWOOD, IL 60104

Property Index No. 15-08-222-029-

0000

The real estate is improved with a single family residence.

The judgment amount was $101,816.50.

Sale terms: 25% down of the highest bid by certified funds at the close of the sale payable to The Judicial Sales Corporation. No third party checks will be accepted. The balance, in certified funds/or wire transfer, is due within twenty-four (24) hours. The subject property is subject to general real estate taxes, special assessments, or special taxes levied against said real estate and is offered for sale without any repre-

sentation as to quality or quantity of title and without recourse to Plaintiff and in “AS IS” condition. The sale is further subject to confirmation by the court.

Upon payment in full of the amount bid, the purchaser will receive a Certificate of Sale that will entitle the purchaser to a deed to the real estate after confirmation of the sale.

The property will NOT be open for inspection and plaintiff makes no representation as to the condition of the property. Prospective bidders are admonished to check the court file to verify all information.

If this property is a condominium unit, the purchaser of the unit at the foreclosure sale, other than a mortgagee, shall pay the assessments and the legal fees required by The Condominium Property Act, 765 ILCS 605/9(g)(1) and (g)(4).

If this property is a condominium unit which is part of a common interest community, the purchaser of the unit at the foreclosure sale other than a mortgagee shall pay the assessments required by The Condominium Property Act, 765 ILCS 605/18.5(g-1).

IF YOU ARE THE MORTGAGOR (HOMEOWNER), YOU HAVE THE RIGHT TO REMAIN IN POSSESSION FOR 30 DAYS AFTER ENTRY OF AN ORDER OF POSSESSION, IN ACCORDANCE WITH SECTION 15-1701(C) OF THE ILLINOIS MORTGAGE FORECLOSURE LAW.

You will need a photo identification issued by a government agency (driver’s license, passport, etc.) in order to gain entry into our building and the foreclosure sale room in Cook County and the same identification for sales held at other county venues where The Judicial Sales Corporation conducts foreclosure sales. For information, contact The sales

clerk, LOGS Legal Group LLP Plaintiff’s Attorneys, 2121 WAUKEGAN RD., SUITE 301, Bannockburn, IL, 60015 (847) 291-1717 For information call between the hours of 1pm - 3pm.. Please refer to file number 22-097797.

THE JUDICIAL SALES CORPORA-

TION

One South Wacker Drive, 24th Floor, Chicago, IL 60606-4650 (312) 236-

SALE

You can also visit The Judicial Sales Corporation at www.tjsc.com for a 7 day status report of pending sales.

LOGS Legal Group LLP

2121 WAUKEGAN RD., SUITE 301 Bannockburn IL, 60015 847-291-1717

E-Mail: ILNotices@logs.com

Attorney File No. 22-097797

Attorney Code. 42168

Case Number: 23 CH 209

TJSC#: 43-2323

NOTE: Pursuant to the Fair Debt Collection Practices Act, you are advised that Plaintiff’s attorney is deemed to be a debt collector attempting to collect a debt and any information obtained will be used for that purpose.

Case # 23 CH 209

I3225647

IN THE CIRCUIT COURT OF COOK COUNTY, ILLINOIS COUNTY DEPARTMENT - CHANCERY DIVISION NATIONSTAR MORTGAGE LLC; Plaintiff,

vs. UNKNOWN HEIRS AND LEGATEES OF JOHN COLIN TOLINE AKA JOHN C. TOLINE; ILLINOIS DEPARTMENT OF REVENUE; UNITED STATE OF AMERICA; CAROL JEAN ANTHONY; JOHN ANDREW

TOLINE; GERALD NORDGREN AS SPECIAL REPRESENTATIVE FOR JOHN COLIN TOLINE AKA JOHN C. TOLINE; UNKNOWN OWNERS AND NONRECORD CLAIMANTS;

Defendants, 22 CH 3311

NOTICE OF SALE

PUBLIC NOTICE IS HEREBY GIV-

EN that pursuant to a Judgment of Foreclosure and Sale entered in the above entitled cause Intercounty Judicial Sales Corporation will on Monday, August 28, 2023 at the hour of 11 a.m. in their office at 120 West Madison Street, Suite 718A, Chicago, Illinois, sell at public auction to the highest bidder for cash, as set forth below, the following described mortgaged real estate: P.I.N. 15-13-410-008-0000.

Commonly known as 920 Beloit Avenue, Forest Park, IL 60130.

The mortgaged real estate is improved with a single family residence. If the subject mortgaged real estate is a unit of a common interest community, the purchaser of the unit other than a mortgagee shall pay the assessments required by subsection (g-1) of Section 18.5 of the Condominium Property Act. Sale terms: 10% down by certified funds, balance, by certified funds, within 24 hours. No refunds. The property will NOT be open for inspection.

For information call Law Clerk at Plaintiff’s Attorney, The Wirbicki Law Group, 33 West Monroe Street, Chicago, Illinois 60603. (312) 360-9455. W21-0269 ADC INTERCOUNTY JUDICIAL SALES CORPORATION intercountyjudicialsales.com

I3225202

IN THE CIRCUIT COURT OF COOK COUNTY, ILLINOIS COUNTY DEPARTMENT - CHANCERY DIVISION

Wilmington Savings Fund Society, FSB, d/b/a

Christiana Trust, not in its individual capacity but solely in its capacity as Certificate Trustee for NRP Mortgage Trust 1

Plaintiff, vs. Absolute Management & Consulting, Inc.; Ron Tahoe; Unknown Owners and NonRecord Claimants

Defendants, 21 CH 4407

NOTICE OF SALE

PUBLIC NOTICE IS HEREBY GIVEN that pursuant to a Judgment of Foreclosure and Sale entered in the above entitled cause Intercounty Judicial Sales Corporation will on Tuesday, August 29, 2023 at the hour of 11 a.m. in their office at 120 West Madison Street, Suite 718A, Chicago, Illinois, sell at public auction to the highest bidder for cash, as set forth below, the following described mortgaged real estate: P.I.N. 15-10-403-014-0000 and 1510-403-015-0000. Commonly known as 233 SOUTH 14TH AVENUE, MAYWOOD, IL 60153.

The mortgaged real estate is improved with a single family residence. If the subject mortgaged real estate is a unit of a common interest community, the purchaser of the unit other than a mortgagee shall pay the assessments required by subsection (g-1) of Section 18.5 of the Condominium Property Act. Sale terms: 10% down by certified funds, balance, by certified funds, within 24 hours. No refunds. The

property will NOT be open for inspection.

For information call Sales Department at Plaintiff’s Attorney, Manley Deas Kochalski, LLC, One East Wacker Drive, Chicago, Illinois 60601. (614) 220-5611. 21-015760

F2

INTERCOUNTY JUDICIAL SALES CORPORATION intercountyjudicialsales.com I3225210

IN THE CIRCUIT COURT OF COOK COUNTY, ILLINOIS COUNTY DEPARTMENT - CHANCERY DIVISION MCLP ASSET COMPANY, INC.

Plaintiff, -v.SUSIE LOWRY A/K/A SUSIE M LOWRY, UNKNOWN OWNERS AND NON-RECORD CLAIMANTS

Defendants 22 CH 04738 439 MORRIS AVENUE BELLWOOD, IL 60104

NOTICE OF SALE

PUBLIC NOTICE IS HEREBY GIV-

EN that pursuant to a Judgment of Foreclosure and Sale entered in the above cause on June 26, 2023, an agent for The Judicial Sales Corporation, will at 10:30 AM on August 30, 2023, at The Judicial Sales Corporation, One South Wacker, 1st Floor Suite 35R, Chicago, IL, 60606, sell at a public sale to the highest bidder, as set forth below, the following described real estate:

Commonly known as 439 MORRIS AVENUE, BELLWOOD, IL 60104

Property Index No. 15-09-302-025-

0000

The real estate is improved with a single family residence.

Sale terms: 25% down of the highest bid by certified funds at the close of the sale payable to The Judicial

Sales Corporation. No third party checks will be accepted. The balance, in certified funds/or wire transfer, is due within twenty-four (24) hours. The subject property is subject to general real estate taxes, special assessments, or special taxes levied against said real estate and is offered for sale without any representation as to quality or quantity of title and without recourse to Plaintiff and in “AS IS” condition. The sale is further subject to confirmation by the court.

Upon payment in full of the amount bid, the purchaser will receive a Certificate of Sale that will entitle the purchaser to a deed to the real estate after confirmation of the sale.

The property will NOT be open for inspection and plaintiff makes no representation as to the condition of the property. Prospective bidders are admonished to check the court file to verify all information.

If this property is a condominium unit, the purchaser of the unit at the foreclosure sale, other than a mortgagee, shall pay the assessments and the legal fees required by The Condominium Property Act, 765 ILCS 605/9(g)(1) and (g)(4). If this property is a condominium unit which is part of a common interest community, the purchaser of the unit at the foreclosure sale other than a mortgagee shall pay the assessments required by The Condominium Property Act, 765 ILCS 605/18.5(g-1).

IF YOU ARE THE MORTGAGOR (HOMEOWNER), YOU HAVE THE RIGHT TO REMAIN IN POSSESSION FOR 30 DAYS AFTER ENTRY OF AN ORDER OF POSSESSION, IN ACCORDANCE WITH SECTION 15-1701(C) OF THE ILLINOIS MORTGAGE FORECLOSURE LAW.

You will need a photo identification issued by a government agency (driver’s license, passport, etc.) in order to gain entry into our building and the foreclosure sale room in Cook County and the same identification for sales held at other county venues where The Judicial Sales Corporation conducts foreclosure sales.

MCCALLA RAYMER LEIBERT PIERCE, LLC Plaintiff’s Attorneys, One North Dearborn Street, Suite 1200, Chicago, IL, 60602. Tel No. (312) 346-9088.

THE JUDICIAL SALES CORPORATION

One South Wacker Drive, 24th Floor, Chicago, IL 60606-4650 (312) 236SALE

You can also visit The Judicial Sales Corporation at www.tjsc.com for a 7 day status report of pending sales.

MCCALLA RAYMER LEIBERT PIERCE, LLC

One North Dearborn Street, Suite 1200 Chicago IL, 60602 312-346-9088

E-Mail: pleadings@mccalla.com

Attorney File No. 20-02921IL_601222

Attorney Code. 61256

Case Number: 22 CH 04738

TJSC#: 43-2803

NOTE: Pursuant to the Fair Debt Collection Practices Act, you are advised that Plaintiff’s attorney is deemed to be a debt collector attempting to collect a debt and any information obtained will be used for that purpose.

Case # 22 CH 04738

I3225640

Village Free Press, August 9, 2023 11 vfpress.news Let the sun shine in...Public Notice: Your right to know In print • Online Available to you 24 hours a day, 7 days a week, every day of the year •VFPress.news•PublicNoticeIllinois.com REAL ESTATE FOR SALE REAL ESTATE FOR SALE REAL ESTATE FOR SALE REAL ESTATE FOR SALE REAL ESTATE FOR SALE REAL ESTATE FOR SALE REAL ESTATE FOR SALE IN THE CIRCUIT COURT OF COOK COUNTY, ILLINOIS COUNTY DEPARTMENT - CHANCERY DIVISION NATIONSTAR MORTGAGE LLC Plaintiff, -v.GREGORY E. WHITE, LETICHA A. SMITH A/K/A LETICHA A. WHITE, STATE OF ILLINOIS, UNKNOWN OWNERS AND NON-RECORD CLAIMANTS, UNKNOWN OCCUPANTS Defendants 23 CH 209 222 46TH AVENUE BELLWOOD, IL 60104 NOTICE OF SALE PUBLIC NOTICE IS HEREBY GIVEN that pursuant to a Judgment of Foreclosure and Sale entered in the above cause on May 31, 2023, an agent for The Judicial Sales Corporation, will at 10:30 AM on September 1, 2023, at The Judicial Sales Corporation, One South Wacker, 1st Floor Suite 35R, Chicago, IL, 60606, sell at a public sale to the highest bidder, as set forth

Please join House Speaker and State Representative Emanuel “Chris” Welch for a SHRED

Saturday, August 26, 2023 10:00 AM to 1:00 PM

LaGrange Park Community Park District 1501 Barnsdale Road | LaGrange Park, IL 60526

• Limit two boxes per car.

• Cardboard boxes cannot be left at the event.

• Residential shredding only (no commercial shredding).

• Shredding accepted until shred trucks reach capacity.

Please remember to remove all paper clips, staples, and other bindings.

Help protect yourself from identity theft! Bring documents that contain your personally identifiable information – such as old bank statements, tax returns, bills, receipts, credit card applications and outdated medical records –to be safely shredded.

Emanuel “Chris”

SPEAKER OF THE HOUSE 7th District STATE REPRESENTATIVE

For more information, please contact Rep. Welch’s constituent service office at 708-450-1000 or RepWelch@EmanuelChrisWelch.com

THIS EVENT IS FREE TO THE PUBLIC!

12 Village Free Press, August 9, 2023
EVENT
WELCH

Turn static files into dynamic content formats.

Create a flipbook
Issuu converts static files into: digital portfolios, online yearbooks, online catalogs, digital photo albums and more. Sign up and create your flipbook.