Lakes of Jacaranda is a centrally located residential community in Plantation, Florida, offering a vibrant blend of comfort, convenience, and resort-style living. The complex sits just minutes from key destinations: including Ft. Lauderdale, Hollywood International Airport, Las Olas, nearby beaches, restaurants, shopping, and major entertainment venues such as the Hard Rock. Its access to major highways including 595, 75, I-95, and the Florida Turnpike makes commuting easy, whether traveling north toward West Palm Beach or south toward Miami.
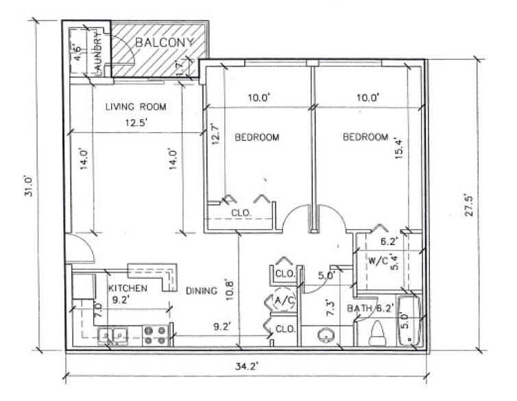
The community features spacious 1, 2, and 3 bedroom condominium residences, each designed for modern Florida living. Standard in-unit conveniences include kitchens with dishwashers, ceiling fans, central A/C, laundry with washer/dryer, large private patios or terraces, and bright interiors with expansive windows, many offering peaceful lakeside views.