VU ARCHITECT

Page 1

LE DINH NGUYEN VU PORTFOLIO

LUX HO TE L

HAS ARCHITECTURE

LOCATION

DA NANG CITY

WORKS PERFORMED ARCHITECTURAL DESIGN

INTERIOR DESIGN

LUX HOTEL is a design that not only seeks a new architectural approach in hotel architecture, which currently has a lot of boredom, but also wants to convey an urban space, an architectural highlight. rich in symbols not only in Da Nang, but also at the international level.

Architecture and space organization in the hope of breaking through the rigidity of the old plan but not affecting much.

SECTION
PARKING RECEPTION RESTAURANT BALLROOM CLUB
SWIMMING POOL GUEST ROOM

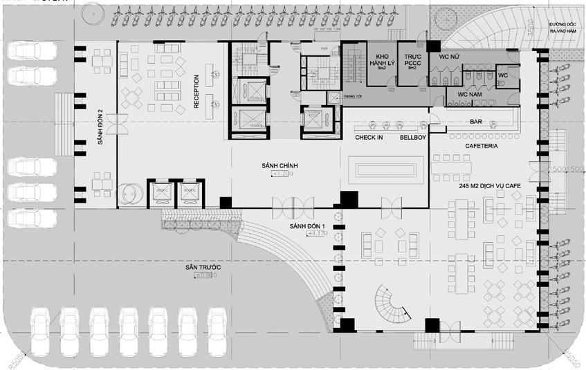
GROUND FLOOR PLAN

• RECEPTION

• CAFE

• STORAGE

• OFFICE

• RESTROOM

• OUTDOOR TERRACE

2nd FLOOR PLAN

• KITCHEN

• DINING ROOM

• RESTROOM

25 LUXHOTEL | ARCHITECTURE | REVISION 9

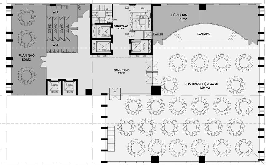
3rd FLOOR PLAN

BALLROOM
• RESTROOM

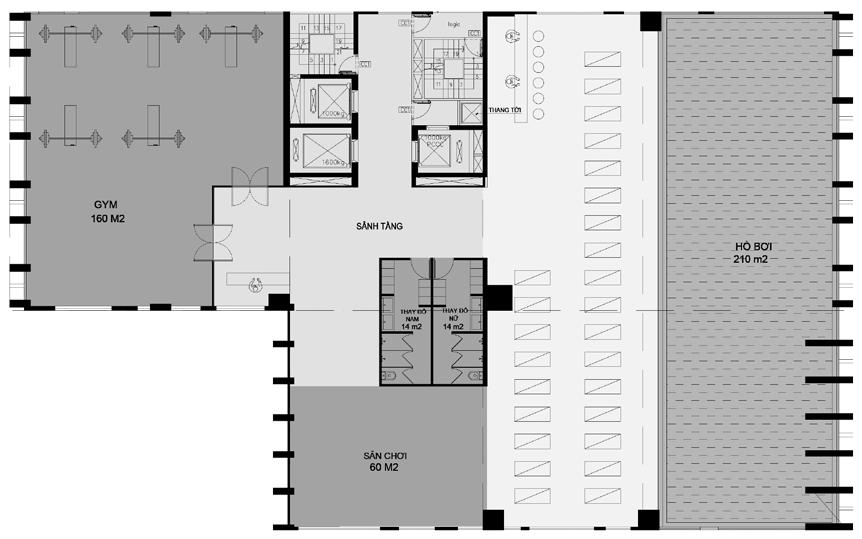
4th FLOOR PLAN

• SWIMMING POOL

• GYM

• RESTROOM

ROOM BLOCK PLAN

LUXHOTEL | ARCHITECTURE REVISION 9

SKY VILLA

HAS ARCHITECTURE

LOCATION

DA NANG CITY

COMPLETED 2020

WORKS PERFORMED ARCHITECTURAL DESIGN

MIDDLETON KINDERGARTEN

HAS ARCHITECTURE

LOCATION

HO CHI MINH CITY

COMPLETED 2020

WORKS PERFORMED

INTERIOR DESIGN

IMPLEMENTATION OF TECHNICAL DOCUMENTS

HOA SEN HO TE L

PS ELV ELV ES KHÔNG TẤT TKPreDesign Ýtưởng TKDevDesign Kỹthuật TKConsDesign Thi TÊNDỰÁN KHÁCHSẠNYÊNBÁI CHỦĐẦUTƯ GIÁMĐỐC GIÁMĐỐC PrincipalArchitect Chủtrìthiếtkế ArchitectKTS.NGUYỄNQUANGHIỀN Thiếtkế DrawKTS.HÀHỒNGLĨNH -Triểnkhai DRAWINGTITLE TÊNBẢNVẼ KTS.NGUYỄNVĨNHHOÀNG Scale Tỷlệ Date DrawingNgày NoBảnvẽsố ProjectStatusGiaiđoạnthiếtkế KEYPLAN-HỌAĐỒVỊTRÍ Ref.REVISIONS-NỘIDUNGCHITIẾT NoGhichú MôDescription tả NgàyDate ĐƠNVỊTƯVẤNTHIẾTKẾ NGUYỄNQUANGHIỀN KTS.TRẦNNGỌCMINHĐỨC KTS.LÊĐÌNHNGUYÊNVŨ 3rd FLOOR PLAN
RECEPTION HALL
BALLROOM
BAI CITY
2021
PERFORMED
OF TECHNICAL DOCUMENTS
INFINITIVE ARCHITECTURE LOCATION YEN
COMPLETED
WORKS
INTERIOR DESIGN IMPLEMENTATION

• RESTAURANT • SKY GARDEN

ELV ES ±0.000 -0.950 -0.350 -0.000+0.450 -0.200±0.000 -0.050±0.000 FHC ±0.000±0.000 ELV -0.000+0.450 ±0.000 -0.200±0.000 VS4-1(M) VS4-1(F) -0.020 -0.020 -0.020 +0.430
4th FLOOR PLAN

MUONG THANH HO TE L

INFINITIVE ARCHITECTURE LOCATION

XUAN THANH, HA TINH PROVINCE COMPLETED 2021

WORKS PERFORMED

INTERIOR DESIGN

IMPLEMENTATION OF TECHNICAL DOCUMENTS

1st FLOOR PLAN

• RECEPTION HALL

• BALLROOM

RECEPTION HALL

RECEPTION HALL
RECEPTION
HALL
BALL ROOM
BALL ROOM RECEPTION HALL RECEPTION HALL RECEPTION HALL
RESTAURANT RESTAURANT
RESTAURANT

THE VIBES CO-SPACE

OFFICE OF INFINITIVE ARCHITECTURE

INFINITIVE ARCHITECTURE

LOCATION

HO CHI MINH CITY

COMPLETED 2022

WORKS PERFORMED

PARTICIPATE IN ARCHITECTURE DESIGN IMPLEMENTATION OF TECHNICAL DOCUMENTS

GOLF CLUB HOUSE

INFINITIVE ARCHITECTURE

LOCATION

LAO CAI PROVINCE

COMPLETED 2023

WORKS PERFORMED

PARTICIPATE IN ARCHITECTURE DESIGN IMPLEMENTATION OF TECHNICAL DOCUMENTS

CLUBHOUSE
CLUBHOUSE
CLUBHOUSE CLUBHOUSE
GOLF STATION GOLF STATION GOLF STATION GOLF STATION
GOLF STATION
GOLF STATION

GOLF STATION

THANK YOU

Turn static files into dynamic content formats.

Create a flipbook
Issuu converts static files into: digital portfolios, online yearbooks, online catalogs, digital photo albums and more. Sign up and create your flipbook.
VU ARCHITECT by Vu Le - Issuu