Sanger HS_UserManual-FINAL

Page 1


SANGER ISD SANGER HIGH SCHOOL

USER MANUAL

TABLE OF CONTENTS

Introduction

Design Process

Site Plan/Floor Plans

Pedagogical Foundations

Classroom Wings

Collaboration

Media Center/Makerspace

CTE

Fine Arts Suite

Design Lab

Outdoor Learning

Athletics

Safety & Security

Brand Identity

SANGER HS | USER MANUAL

INTRODUCTION

Welcome to Sanger High School in Sanger Independent School District, a school collaboratively designed to support district growth and provide equitable learning opportunities for students. The focus on authentic collaboration, for both students and staff, athletic and fine arts opportunities, meaningful learning experiences, as well as upholding the modernization expectations of the Hutto community, will allow students to succeed and meet their potential.

This User Manual will benefit the campus leadership and staff who educate children in this high school environment. This manual includes a description of the design process, building design, and suggestions as to the use of the innovative spaces that have been purposefully designed into the building for instructional purposes.

DESIGN PROCESS

As Sanger ISD began with concepts for facility planning a Curation Team was established to provide current teaching and learning information as it relates to instructional practices, reflects district goals, and speaks to the future of academic endeavors. The Sanger ISD Curation Team met on Tuesday, June 8, 2021. The purpose was to ensure understanding of the district philosophy to approach the design needs of long-range facility planning. VLK used this meeting to gain clarity on instructional goals, leadership vision, and recent research impacting teaching and learning.

The district committed to a Student Learning Styles exercise during the 2021–2022 school year, involving teacher observations of their own students. Additionally, an elementary student focus group was held to incorporate student voice into the planning process. These students offered valuable perspectives on what makes learning environments engaging and meaningful.

Sanger ISD emphasized a vision for modern, flexible learning spaces that align with instructional strategies and foster collaboration, real-world application, and purposeful design. This partnership between the district and VLK aimed to set a new standard for future-ready learning environments grounded in Sanger ISD’s commitment to inspiring all students through innovative learning experiences.

SITE PLAN

FLOOR PLAN

ADMINISTRATION

ACADEMICS

SCIENCE

CTE

SPED

FINE ARTS

ATHLETICS

CAFETORIUM

COLLABORATION

SERVICE

MAIN ENTRY

LEVEL ONE

FLOOR PLAN

ADMINISTRATION

ACADEMICS

SCIENCE

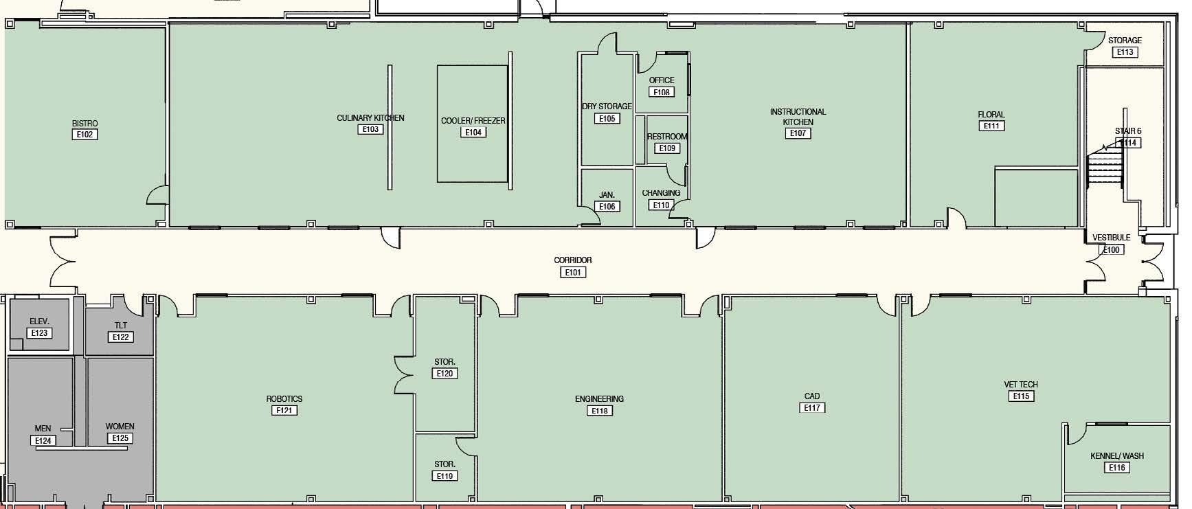
CTE

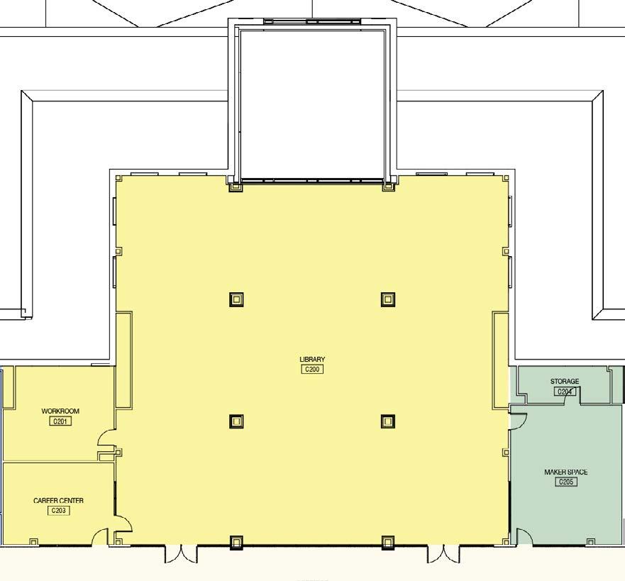
MEDIA CENTER/ COLLABORATION

LEVEL TWO

PEDAGOGICAL FOUNDATIONS

The learning process is dependent on student engagement (Schlechty, 2002). When students experience a sense of belonging and support, they are more likely to engage authentically, make positive behavioral choices, and achieve deeper levels of learning (Osterman, 2000). Creating emotionally and physically safe environments is essential to fostering this growth. Purposefully designed with the adolescent learner in mind, collaboration spaces within each classroom wing provide flexible environments that promote peer interaction, inquiry-based learning, and student choice in how they engage. Collaboration spaces enhance learning by offering students opportunities to participate in hands-on, collaborative activities that support active knowledge construction (Piaget, 1952). Research shows that these environments not only improve focus, motivation, and productivity but also contribute to emotional well-being, positive socialization, and a sense of autonomy (Oliveras-Ortiz et al., 2021). When students learn in intentionally designed spaces that foster ownership, connection, and belonging, they experience higher levels of engagement and academic achievement (Oliveras-Ortiz, Bouillion, & Koprowski, 2023).

Schlechty, P.C. (2002). Working on the work: An action plan for teachers, principals and superintendents. San Francisco: JosseyBass.

Osterman, K. F. (2000). Students’ need for belonging in the school community. Review of Educational Research, 70(3), 323–367.

National Research Council. (2004). Engaging schools: Fostering high school students’ motivation to learn. Washington, DC: The National Academies Press.

Piaget, J. (1952). The origins of intelligence in children (M. Cook, Trans.). New York, NY: International Universities Press.

Oliveras-Ortiz, Y., Bouillion, D. E., & Asbury, L. (2021). Learning spaces matter: Student engagement in new learning environments. Journal of Education, 201(3), 174–182.

Oliveras, Y., Bouillion, D., & Koprowski, S. (2023). Social Emotional Learning Practices and Learning Spaces (p. 31). University of Texas at Tyler.

CLASSROOM WINGS

DESIGN FOR INCREASED STUDENT ENGAGEMENT

Each academic wing of the building includes classrooms, small (Think) and large (Exchange) collaboration areas, and teacher workrooms (Design Lab)

CLASSROOM WINGS

CREATE SPACES

The Create space redefines the traditional classroom by offering a more flexible learning environment. Create spaces may include both wet and dry project areas, adaptable furniture, various writing surfaces (including mobile options), advanced technology, and ample natural light. Within a classroom wing, Create spaces may connect directly to collaboration areas to extend the learning environment.

COLLABORATION

COLLABORATION SPACES - THINK

Within each classroom wing are small Think spaces, that facilitate learner-directed group work for about 2-4 students. Think spaces are a part of a family of shared spaces intended to be utilized by multiple groups. This area contains flexible seating, white boards, digital displays, and power for charging devices. Think spaces can be used to provide for group independent time, pull-out space for specialized curriculum, or an area where extensions of the lesson can be accomplished.

COLLABORATION SPACES - EXCHANGE

Exchange Spaces are the largest of the collaborationspace types. These flexible and multipurpose areas are designed to support a variety of learning experiences, including presentations and largegroup activities. They can also serve as an alternative to the traditional classroom setting, offering a dynamic environment for cross-curricular projects such as art or science explorations.

MEDIA CENTER & MAKERSPACE

MEDIA CENTER

The media center is located on the daily path for students to have easy access. It is a flexible, inviting space designed to encourage collaboration and exploration. Incorporating adaptable furniture, this technology rich space prepares students for a digital future.

MAKERSPACE

A makerspace functions as a dynamic, studentcentered fabrication lab that encourages active, hands-on learning and creativity. In this flexible environment, students engage in meaningful exploration, set and work toward individual learning goals, and develop problem-solving skills as they acquire and apply new knowledge. Teachers also have access to a variety of materials to model lessons and facilitate learning experiences, empowering students to innovate, take risks, and pursue long-term goals through real-world, collaborative projects.

2ND FLOOR

Media Center
Makerspace

CTE

The CTE wing is a flexible, technology-rich environment designed to support hands-on, active learning. Purposefully designed to ignite curiosity and foster collaboration, the CTE wing empowers students to pursue their passions through engaging, real-world experiences. Supporting key components of career and technology education pathways, the wing offers opportunities to design, build, and test innovative solutions. Students engage in authentic, future-ready learning that prepares them for success beyond the classroom.

FINE ARTS SUITE

A dedicated Fine Arts wing provides an environment for specialized instruction dedicated to content and craft that inspires others. Creative expression, academic connections, and active learning will be experienced within the Fine Arts area. Band, Choir, and Theater spaces are acoustically isolated from the academic wings. The Art studios are located adjacent to the central courtyard, providing natural light in the space. The central courtyard also serves an an alternative to the traditional classroom setting.

Visual
Performing

DESIGN LAB

Located within each classroom wing, the Workroom/ Design Lab serves as a professional hub for instructional teams, designed as a space to support effective teaching and continuous improvement. This dedicated space empowers educators to engage in lesson planning, instructional collaboration, student progress monitoring, data analysis, and the sharing of best practices. The environment fosters a growth mindset and ongoing professional learning, ensuring that teams are equipped to meet the ever evolving needs of their students.

Design Lab

OUTDOOR LEARNING

COURTYARD

The enclosed central courtyard, functions as a secure, multipurpose outdoor environment designed to support a wide range of academic and creative learning experiences. Outfitted with seating and landscape, the space is ideal for performances, presentations, collaborative projects, and group instruction. Adjacent to the courtyard are the Cafeteria, CTE wing, and Art Studios, offering versatile opportunities such as outdoor dining, testing CTE projects, and engaging in outdoor art projects. The integration of nature into the school environment supports the well-being and developmental needs of adolescent learners by encouraging movement, connection, and reflection. Its flexible design allows teachers to schedule time as needed, making it a valuable and adaptable resource throughout the day.

ATHLETICS

ATHLETICS

The athletics program is intentionally designed to promote pride, sportsmanship, and perseverance while supporting intellectual, physical, and emotional balance. It encourages students to take healthy risks in pursuit of long-term goals, fostering discipline and resilience. The gymnasium also serves as a storm shelter for the building.

SAFETY & SECURITY

SAFETY & SECURITY

VLK’s mission is to deliver tailored safety and security solutions that support and enhance the built environment. The team is committed to proactively identifying and managing risk through comprehensive planning, expert insight, and ongoing education. By empowering clients with knowledge and collaborating closely with local first responders, VLK helps create strategies that prioritize protection, resilience, and improved quality of life, ultimately contributing to a safer, stronger community.

During the design of this campus, safety and security were foundational priorities. Specific features include:

• Clear line of sight from the administration area to the parking lot

• Sliding marker boards over classroom windows to enhance safety while maintaining instructional flexibility

• Balanced use of natural light with integrated blinds to support visibility and well-being

• Security gates to compartmentalize the building

• Intentional separation of public and private zones within the building

• After-hours zoning to limit access to specific areas

• A secure, controlled entry vestibule for visitors

• Strategic interior layouts to maintain line-of-sight and visibility across common areas

• Enclosed courtyard

• Storm shelter

BRAND IDENTITY

C: 38%

M: 87%

Y: 0%

K: 56%

R: 69

G: 14

B: 112

#450E70

C: 0%

M: 22%

Y: 84%

K: 4%

R: 245

G: 191

B: 39

#F5BF27

PURPLE
YELLOW

Turn static files into dynamic content formats.

Create a flipbook
Issuu converts static files into: digital portfolios, online yearbooks, online catalogs, digital photo albums and more. Sign up and create your flipbook.