

INTRODUCTION
This project reimagines the historic Eugene Steam Plant as a vibrant, mixed-use innovation hub through adaptive reuse and mass timber expansion. The design integrates fabrication labs, maker spaces, offices, and recreational facilities across three levels, supporting a new ecosystem for research, design, and community engagement. Central to the project is the introduction of a dual-directional, fully encapsulated mass timber structural system. This system not only enhances structural performance and fire safety but also demonstrates sustainable construction practices by reducing embodied carbon and enabling prefabricated, modular construction methods. By preserving the existing building’s character and layering in renewable timber technologies, the project contributes to Eugene’s goals for environmental leadership, historic preservation, and economic revitalization along the riverfront.
SYSTEM RESEARCH

STRUCTURAL SYSTEM NARRATIVE

SYSTEM FABRICATION

SYSTEM CHUNK - “ENDLESS SLAB”

SYSTEM CHUNK DETAIL

SYSTEM CHUNK ASSEMBLY


EXISTING CONDITIONS




SITE PLAN AND ZONING
ADAPTIVE REUSE CONCEPT


REMOVE PHASE 3 AND WORN BUILDIING ELEMENTS

REINFORCE EXISTING STRUCTURE WITH CORES AND COLUMNS
ADD IN SLABS

REUSE P-I TRUSSES AND INSTALL P -III NEW CONSTRUCTION




Existing Phase I Steel Trusses: Reused

FLOOR
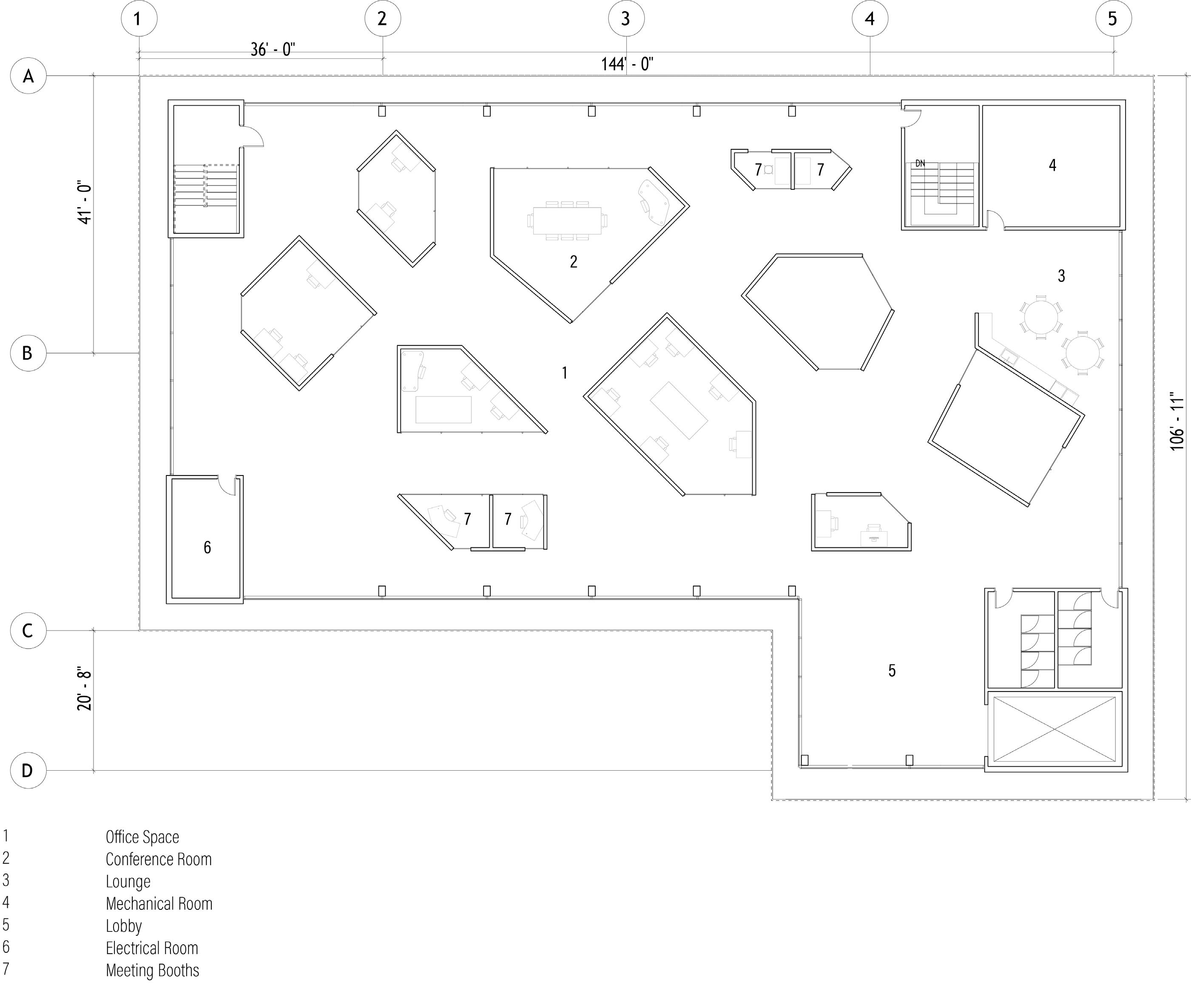
GROUND FLOOR
GROUND FLOOR
GROUND FLOOR
GROUND FLOOR
VARIES
MEZZANINE
MEZZANINE VARIES
TOP FLOOR VARIES
SPACE
FABRICATION HALL
LABS
LOBBY
RECREATION HALL
MECHANICAL
MAKER SPACE
FAB DECK
BATHROOMS
OFFICES
ELECTRICAL
CROSS SECTION


LONGITUDINAL SECTION

GROUND FLOOR


MEZZANINE


TOP FLOOR


ROBOTIC FABRICATION DECK

RECREATION HALL

FABRICATION HALL

TOP FLOOR BALCONY


CIRCULATION - GROUND FLOOR

CIRCULATION - MEZZANINE
CIRCULATION - TOP FLOOR


INGRESS & EGRESS - GROUND FLOOR

INGRESS & EGRESS - MEZZANINE
INGRESS & EGRESS - TOP FLOOR

ACCESSIBILTY AND LIFE SAFETY
SPACE
Fabrication Hall
Labs
Lobby Recreation Hall
Mechanical
Maker Space
Fab Deck
Bathrooms
Offices
Electrical
CONSTRUCTION TYPE:
EXISTING BUILDING: TYPE IV - C
NEW CONSTRUCTION: TYPE IV - A (FULLY PROTETCED MASS TIMBER)
PROPERTY LINE SETBACK: 10’
SPRINKERLED: YES
FIRE RATING:
CONSTRUCTION TYPE: ALL
FIRE ALARM SYSTEMS: YES
AUTO SPRINKLERS: YES
SINKS WITH KNEE SPACE
HVAC & FIRE SPRINKLERS



BUILDING ENVELOPE
SHEET METAL COPING
3 X 2"
PANELS
COVERBOARD 9" RIGID INSULATION
PANEL CONNECTORS
Countersunk Screws 5.5"
6" (3 x 2") MPP Timber System
Perforated Steel Knife Plate
MPP Panel Connectors
3/8" Corrugated Zinc Siding Insect Screen
4" Rigid Insulation
INTERIOR CONCRETE FLOOR TOPPING
MPP PANEL CONNECTORS - SCREWED IN KAWNEER CURTAIN WALL
5/8" GWB
EXISTING WALL ASSEMBLY
3" EXTERIOR RIGID INSULATION TO THERMALLY REINFORCE WALL
PHYSICAL CHUNK MODEL



PROTO CHUNKS


