Bachelor of Architecture, University of Oregon, 2020-2025

Page 1


ARCHITECTURE PORTFOLIO

B.ARCH - UNIVERSITY OF OREGON

VIKRAM BARRETTO

TABLE OF CONTENTS

HEXA TIMBER WALL 4. GALATA SARAY
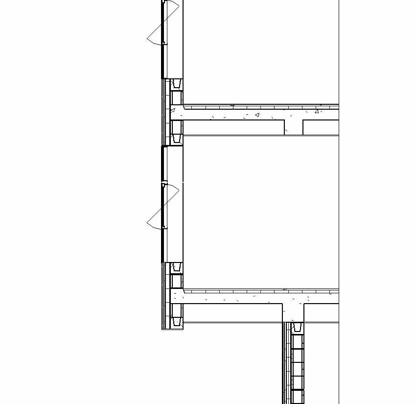
TRUSS TO TRUSS

UNDULATING WAVES

COMPUTATIONAL DESIGN BENCH

Instructor: Philip Speranza

Course: ARCH 222 Intro to Comp. Design

Year: Spring 2021

Software: Rhino 3D, Grasshopper, Enscape, Adobe Photoshop

PROJECT DESCRIPTION : This project was an experiment in computational design and possible fabrication methods via laser cut models.

Using Rhino to create the form of the bench we then were tasked to work in grasshopper to develop a concept of how to fabricate it and assemble it. I used a waffling method that interlocked slats within a set of parameters defined by the curved form of the bench to create the overall shape of it.

COMMUNITY HALL

TRUSS DESIGN AND ANALYSIS

Instructor: Norm Faris

Course: ARCH 462 Structural Design II

Project Team: Vikram Barretto, Eryk Sysmans

Year: Winter 2023

Software: Rhino 3D, Dlubal RFEM, Enscape, Photoshop

PROJECT DESCRIPTION :

The Portland Community Hall is a timberstructured gathering space designed to foster community engagement while showcasing the strength and sustainability of engineered wood. The project focused on designing and structurally analyzing a custom timber truss as a key component of the structural system.

Comprehensive structural analysis was conducted to evaluate shear, moment, and axial stresses, ensuring optimal load distribution and stability. Connection details were designed based on calculated forces, balancing efficiency and durability. Deflection analysis informed refinements to enhance performance and longevity. Using Rhino 3D for modeling and Dlubal RFEM for structural simulation, the project integrated digital tools to refine the truss design, optimizing both form and function for a resilient and sustainable community space.

BEDSIDE TABLE

DESIGN WITH A RITUAL

Instructor: Cory Olsen

Course: IARC 486 Furniture Studio

Year: Winter 2023

Software: Rhino 3D, Grasshopper.

Fabrication Tools: Jointer, Planer, CNC

Router, Miter saw, Vacuum press, Table saw, Band saw.

PROJECT DESCRIPTION :

The design of this Bedside Table is meant to highlight and is inspired by daily activity. The form of the piece is inspired by the juxtapostion of organic waves within a rigid frame. At the vertex of each wave (the custom bent lamination - vacuum pressed shelves) is meant to perfectly nestle a soccer ball while the asymmertical, offset nature of the shelves themselves allow for a more funcational and practial use of the straight ede side shelves on either side.

Using Red Alder for the frame and enclosing it with Figured Maple panels, the form and structure of the piece is simplistic in nature while emphasizing the rigid and organic elements. Overall this piece not only serves its purpose as equipment storage for my daily activity but furthermore enhances that experience of daily routine in every element of it

HEXA WALL

MODULAR TIMBER WALL

Instructor: Dylan Wood

Course: ARCH 410 Adv Tech - Wood Fab

Project Team: Vikram Barretto, Zhiyuan Zhang, Jin-Wei Chu

Year: Spring 2023

Software: Rhino 3D, Grasshopper, KUKA prc (Grasshopper plugin), Enscape, Photoshop

PROJECT DESCRIPTION :

The goal of this project was to design and manufacture a modular wall concept that could be made out of reused mass timber parts.

The manufacturing would be done via Robotic machining, that we were tasked to develop the logic for. Our team developed a concept based on the parameters of hexagons and curved surfaces cut from 7’x10’x8” MPP that would further 1.75’x 2.5’ panels.

In terms of architectural qualities, the bulge of the wall performs acoustically well, providing a better sound-reflective surface in the room its in.

MACHINING:

STRUCTURE:

1. Run tool path 1 along the outline of the Hexagon shape at angle of approximately 126°

2. Secondary tool path to mill edges and remove material

3. Further removal of material from the edge

4. Removal of material on the underside of the block to form the joinery

5. Finishing of sharp edged surfaces

6. Tool Path for Surface finishing.

Three types of planar panels with different sizes

Stack designated pieces from bottom to top

Create reachable surface/ edge to allow router to pass through

Bottom panel inserted to knife plate to connect to the floor

Carve out edges to create near perfect fit

GALATA SARAY

ISTANBUL INFILL HOUSING

Instructor: Mark Gillem

Course: ARCH 484 - Vertical Studio

Project Team: Vikram Barretto

Year: Fall 2023

Software: Revit, TwinMotion, Illustrator, Photoshop PROJECT

DESCRIPTION :

Galata Saray is an infill mixed-use housing project focused on reclaiming and renewing a historic piece of land for dwelling and urban vitality. This project is centered in the historic district of Galata in Istanbul, Turkey, filled with narrow and crowded streets.

the project’s vision was to create a sustainable building with light-filled apartments that contribute to the urban fabric while implementing contemporary and historic elements.

The project utilizes effective Turkish historic building strategies such as jalis and bay windows and features a public ground floor filled with shops and restaurants, a courtyard creating a path between two adjacent streets, plenty of outdoor seating, and four stories of residential occupancy with a private entrance on the ground floor.

Total Area / Toplam alanı
1. Kitchen + Living / Mutfak + Salon = 500 SF / 46.5 m2
2. Bedroom 1 / Yatak odası 1 = 181 SF / 16.8 m2
3. Bedroom 1 Bathroom / Yatak odası 1 Banyo = 67 SF / 6.2 m2
4. Bedroom 2 / Yatak
5.

ADHERED

TRUSS TO TRUSS

MASS TIMBER FACTORY

Instructor: Judith Sheine

Course: ARCH 484 - Vertical Studio

Project Team: Vikram Barretto, Alan Lai, Cosi Restagno

Year: Fall 2024

Software: Rhino 3D, Revit, Grasshopper, TwinMotion, Photoshop, Illustrator

PROJECT DESCRIPTION :

The Mass Timber Housing Factory is a high-performance manufacturing facility designed for the Port of Portland as part of the new Mass Timber Housing Innovation Campus. This factory streamlines prefabrication and modular construction, supporting the assembly of mass timber housing while promoting sustainable building practices. The vision was to create a low-carbon, energyefficient facility that integrates precisionengineered glulam trusses, passive ventilation strategies, and renewable energy systems. Locally sourced timber from Oregon and Washington minimizes the carbon footprint, while extensive daylight studies enhance interior comfort and performance. Designed to optimize workflow and minimize waste, the factory enables large-scale production of prefabricated modular housing, advancing innovation in mass timber construction.

SPATIAL DAYLIGHT AUTONOMY

THANK YOU FOR YOUR TIME

Turn static files into dynamic content formats.

Create a flipbook
Issuu converts static files into: digital portfolios, online yearbooks, online catalogs, digital photo albums and more. Sign up and create your flipbook.