SERVING THOSE WHO SERVED US

![]()


We can’t wait to fix St. Louis-area Veteran homelessness and transform our community. We need your help to get us over the finish line!
Your support changes Veterans’ lives. We have a proven solution to fix Veteran homelessness, build stronger communities, and strengthen critical infrastructure throughout the region—but we can’t wait, and neither can they.
You can be part of real, lasting change. Join us today—here’s how.
Home is more than four walls—it’s stability, dignity, and belonging.
Home means having comfort, stability, support, pets, and personal belongings. Home provides safety, security, and dignity.
Our mission is to provide every Veteran with the dignity of home. We can’t wait to provide St. Louis-area Veterans with stable housing, critical support services, and a chance to rebuild their lives with renewed hope.
You can help us fix Veteran homelessness and solve a critical infrastructure issue in St. Louis and across America. Here’s how we do it.
Dignity starts with a home, so we build Villages of tiny homes, giving every Veteran “240 square feet of dignity.”
Dignity grows with a community, so we surround our Veterans with wraparound services and skills-training.
Dignity sustains in society, so we prepare our Veterans for reintegration and generations of change with a network of support.
VCP of St. Louis brings key elements together that create a big impact for Veterans
VCP prioritizes collaboration by bringing together community partners across a variety of industries. Veterans are connected to resources through partnerships with other agencies, nonprofits, and civic organizations. Our ability to provide solution-forward support to the Veteran population directly reduces the number of individuals in crisis, alleviating strain on our social services network.

50 residential homes providing the dignity, security, and safety of home to St. Louis-area Veterans.
1 Outreach Center creating a low-barrier, walk-in-friendly space offering essential services like a food pantry, hygiene kits, emergency aid, donation receiving, offices, meeting rooms, and classrooms—ensuring Veterans get support when they need it.
1 Village Center fostering connection, eduction, and training. It will also feature a pet washing station, a multi-use kitchen space, wellness spaces, as well as private residential mailboxes for Veterans.
3 ample parking lots providing space and accessibility for Veterans, volunteers, and the community to on-site services.
1 mile from the John Cochran VA Medical Center.
Ideally located on the busiest city bus line making it easier to connect Veterans to resources.
Green space and landscaped areas for pets and Veterans to enjoy on the property.


How your support enables our team to overcome the evolving challenges Veterans face.
14-16
85%
Residents who positively transition from VCP Village to achieve their own sustainable permanent housing.
128
Number of community partner connections made since 2023 to support Veterans with housing, health and wellness, career readiness, and more.
429
Number of Veterans served in St. Louis since opening our doors in 2023.
Average number of months a Veteran lives in a VCP Village before transitioning to their own permanent housing.
1,600
Pantry boxes, hygiene kits, snack bags, clothing and blankets distributed to Veterans and their families since 2023.
23-95
Age range of Veterans who have utilized VCP services.
$1,118
Average amount of emergency funds shared with a Veteran in crisis.
We can’t wait! With your support, we are building more than a Village.
VCP’s nearly 4-acre campus is nestled in the heart of St. Louis’ Jeff-Vander-Lou neighborhood. The Village is a thoughtfully designed, people-centered community featuring an Outreach Center, 50 transitional tiny homes for Veterans, and a Village Center—providing the dignity of home and essential support services to St. Louis-area Veterans in need.
Beyond serving Veterans, our St. Louis campus also:
• Unites the community in support of Veterans, fostering civic pride.
• Transforms a once-blighted area, boosting property and business values.
• Adds a sense of visible safety for the neighborhood with onsite overnight security.
• Strengthens St. Louis’ social services sector by expanding and connecting agencies.
• Creates ongoing opportunities for community volunteer involvement.
• Connects to the Great Rivers Greenway path, a future connector of 14 neighborhoods.

In August 2023, VCP opened its doors on the most active metro bus line in the city, providing walkin services that offer immediate support. From emergency assistance and VA navigation to food, hygiene kits, and employment support, VCP is here to help. This office also serves as home base for our dedicated VCP case managers and staff, ensuring Veterans get the resources they need to thrive.


Our community of 50 homes is built for strength, stability, and a fresh start for each Veteran. Each home sits on a solid foundation, connects to city utilities, and meets all modern building codes.
Our 40 240-square-foot single-occupancy homes and ten 320-square-foot family homes offer fully furnished kitchens, bathrooms, and living spaces for individuals and families.

The Village Center is the heart of our community—a hub where Veterans connect, find support, and build strong networks. Serving as a base camp for residents, it offers private offices for case management, classroom spaces, and a fellowship hall for events. Designed to promote both physical and mental well-being, it fosters a true sense of belonging for our Veterans.

VCP Village offers Veterans a safe, private home, empowering them to secure jobs, pursue education, access benefits, reconnect with family and their community as well as transition to their own permanent housing.
• Homes are built on concrete foundations.
• Homes connect to city utilities, and meet all code requirements for new construction.
• Each home features a fully-functional kitchen, bathroom, and living space.
• Every house detail is designed for Veterans, including doors and windows placed to enhance a sense of security for those affected by PTSD or other trauma.
• Residents live free of charge in the Village while working closely with their case managers to resolve the issues that led to their homelessness, which can be varied.


40 individual homes consisting of 240 square feet that feature a full kitchen and bathroom, with one fully ADA compliant unit.
10 family homes consisting of 320 square feet that can accommodate a family of five, with two fully ADA compliant units.

The Outreach Center is a walk-in facility offering hands-on support for any Veteran— no matter their challenge—including VA navigation, benefits, health referrals, emergency aid, employment services, and case management. Veterans can also access free, low-barrier support through our stocked pantry, offering food, hygiene kits, seasonal clothing, and essentials—all thanks to our generous community.
Since opening in August 2023, the Outreach Center has provided critical support to 429 Veterans, ensuring individualized care and connection to the resources they deserve.
1. Lobby and Welcome Center
2. Donation Intake Area
3. Boardroom
4. Reception/Veteran Intake
5. Case Manager/Admin offices (8)
6. Pantry
7. Ready room (Flex space)


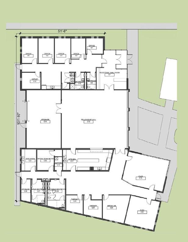
The VCP Village Center, located on the west side of the property, will serve as the central hub where residents build connections and access essential support on their journey to stability. It is here where Veterans will meet with case managers, attend classes and wellness workshops, wash their pets, utilize the multi-use kitchen space, and retrieve their mail from their personal mailbox.
Space will be purposed to best meet the needs of the residents and could include:
1. A Great Hall 2. Comms Center 3. Flex Space #1 4. Multi-use Kitchen Space 5. Ready Room Flex Space 6. Healthcare Suite 7. Pet Center 8. Reception/Village Mail Center 9. Wellness Room 10. Flex Space #2 11. Case Manager Offices






VCP is changing lives through meaningful connection, empowering Veterans and the community well beyond the St. Louis metro, but throughout the entirety of the bi-state region. We are excited to push forward and serve with purpose, strengthening our services and growing alongside the community to meet its evolving needs—fostering belonging, stability, and pride for the Veterans we serve and the community that stands with us.
We can’t wait! Won’t you join us?

Scan to read our Veteran stories on our blog.


Founded in Kansas City, Missouri, in 2016 by a group of combat Veterans shaped by their military service, Veterans Community Project began with a determination to do better for Veterans in need. Today, VCP is growing nationwide, in places like St. Louis, so we can serve more Veterans, ensuring no one is left behind.
The Founders’ solution was simple: provide Veterans experiencing homelessness with a home of their own and wraparound case management services that leverage the support of the community to not only get them back on their feet, but ensure they continue standing.
VCP serves everyone who raised their hand and took the oath to protect this country with dignity, humility, and honesty, regardless of length or type of service, or discharge status.
1515 N. Grand Blvd. St. Louis, MO 63106
infostl@vcp.org
(314) 501-2810 VCP IS ST. LOUIS’ COMMUNITY PROJECT
MISSION Veterans housing Veterans, armed with the strength and support of the community.
THE MISSION