Skip to main content

Stephenville - Cage House - FF&A Package

Page 1


STEPHENVILLE – FF&A

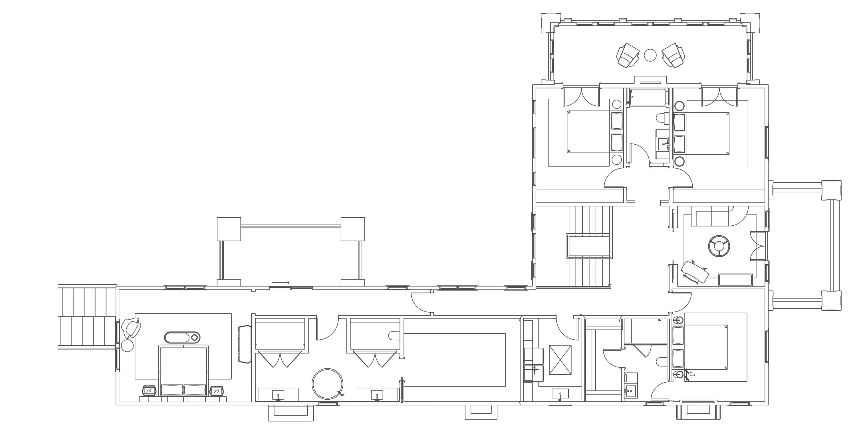
FLOOR PLAN ( PER SPACE )

CONCEPT BOARD

FURNITURE LAYOUT

RENDERING SELECTIONS

First Floor

REFINISH/PAINT STAIRCASE IN WHITE

CHARTWELL

STEPHENVILLE – CAGE HOUSE
CJ CLOCK – THE
S TEPHENVILLE – CAGE HOUSE
CJ CLOCK GALLERIES – THE CHARTELL

APPARATUS – MEDIAN

TYLER SHIELDS – MORNING LIGHT PHOTOGRAPH (24X30)

Living Area

PINK

GIORGETTI – NEREIDE 3-SEATER SOFA

STEPHENVILLE - CAGE HOUSE

APPARATUS – SEQUENCE 8 AREA RUG

GIORGETTI – LIGEA NESTING TABLES

– OTTO POUFS WITH TABLE

– MAGICA SIDE TABLE

GIORGETTI – TIE XL HIGH BACK CHAIR

GIORGETTI – AMAZONIA ACCESSORIES

APPARATUS – PARS COCKTAIL TABLE

PIANO STEINWAY – BABY
GIORGETTI
GIORGETTI
STEPHENVILLE – CAGE HOUSE

Living Room

S TEPHENVILLE – CAGE HOUSE

GIORGETTI – MAGICA TABLE (QTY 2)

Living Area SELECTIONS

GIORGETTI – NEREIDE 3-SEATER SOFA

GIORGETTI – LIGEA NESTING TABLES

APPARATUS – SEQUENCE 8 AREA RUG

APPARATUS – PARS COCKTAIL TABLE

– CAGE HOUSE

GIORGETTI – NEREIDE 3-SEATER SOFA

– TIE XL HIGH BACK CHAIR (QTY 2)

STEPHENVILLE
GIORGETTI – OTTO POUF W/TABLE (QTY 2)
GIORGETTI

Living Area

GIORGETTI – AMAZONIA ACCESSORIES

STEPHENVILLE – CAGE HOUSE
PIANO STEINWAY – BABY PINK

Dining Area

GIORGETTI – PLUME DINING CHAIRS
APPARATUS – TALISMAN CHANDLIER (48”)
HESSENTIA – MERAKI LARGE DINING TABLE
GIORGETTI – NYN CORNER CABINET

Dining Room

GIORGETTI – NYN CORNER STORAGE

Dining Area

GIORGETTI – PLUME DINING CHAIR (QTY 8)

HESSENTIA – MERAKI DINING TABLE

STEPHENVILLE – CAGE HOUSE
S TEPHENVILLE – CAGE HOUSE

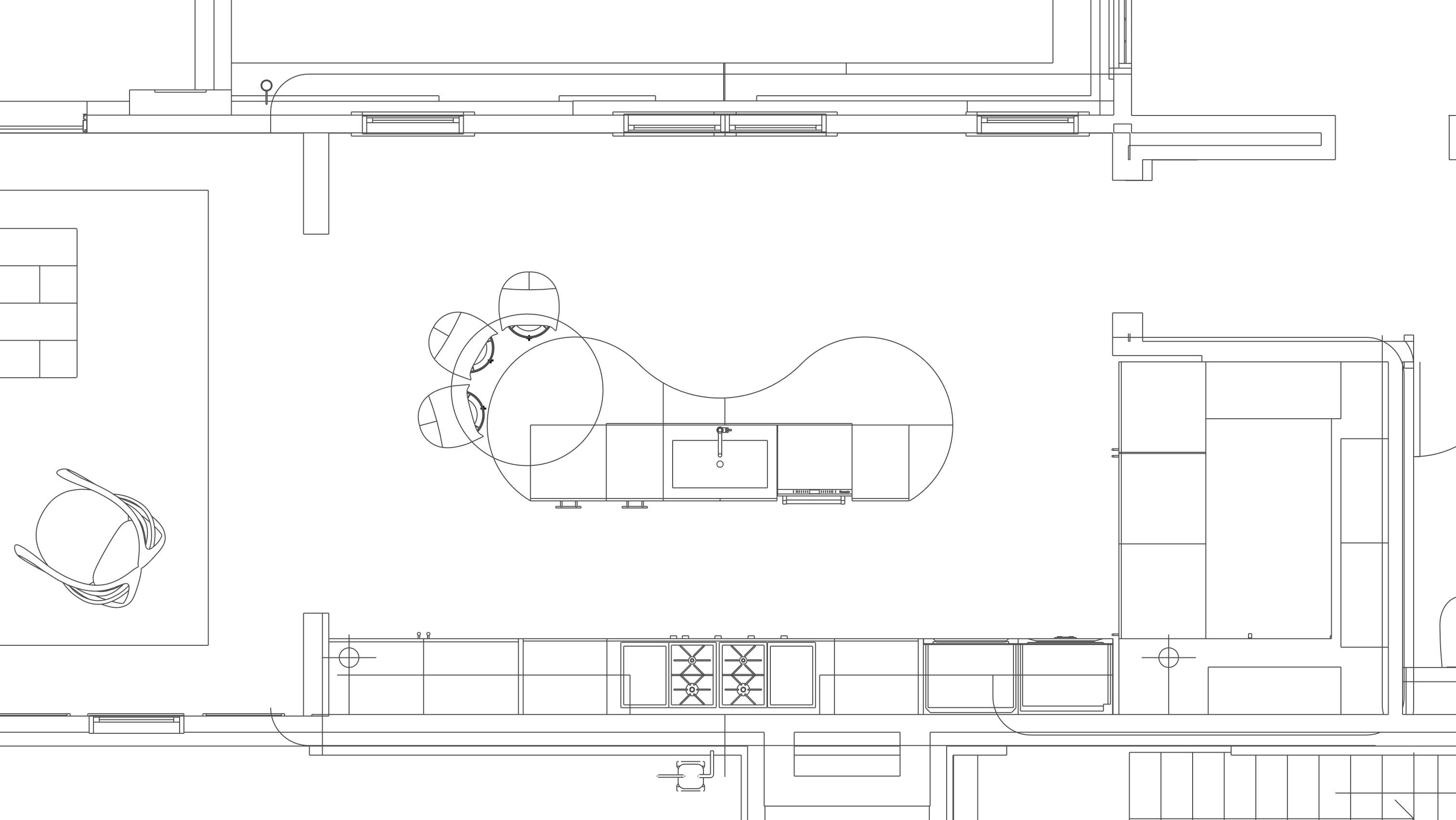
Kitchen

Kitchen SELECTIONS

S TEPHENVILLE – CAGE HOUSE
GIORGETTI – SKIRT STOOLS (QTY 3)

Family Room

STEPHENVILLE – CAGE HOUSE
GIORGETTI – SKYLINE SECTIONAL
RIMADESIO – PLANET NESTING TABLES
NOMON – PENDULO CLOCK
GIORGETTI – MOVE ROCKING CHAIR
GIORGETTI – CHISEL AREA RUG
VIABIZZUNO – DA MA FLOOR LAMP
S TEPHENVILLE – CAGE HOUSE

Family Room

GIORGETTI – CHISEL AREA RUG

Family Room SELECTIONS

GIORGETTI ROCKING CHAIR

VIABIZZUNO – DA MA FLOOR LAMP

S TEPHENVILLE – CAGE HOUSE
DOUBLE SIDED SECTIONAL
NOMON – PENDULO CLOCK

Second Floor

ARFLEX – 9000 MODULAR SOFA
TACCHINI – 500 SERIE STORAGE UNIT
RIMADESIO – KITA AREA RUG
HESSENTIA – ICONIQUE SCULPTURE CHAIR
HESSENTIA – MOMO 42” ROUND COFFEE TABLE

Sitting Room

ARFLEX – 9000 MODULAR SOFA

Sitting Room

HESSENTIA – MOMO ROUND COFFEE TABLE

HESSENTIA – ICONIQUE SCULPTURE CHAIR

GIORGETTI – LIZ BENCH
GIORGETTI – KARPHI NAP KING SIZE BED (HIGH BACK)
GIORGETTI – DELPHI NIGHTSTAND
GIORGETTI – LIGHT AREA RUG
GIORGETTI – DELPHI STORAGE UNIT
GIORGETTI – TILT READING CHAIR
GIORGETTI – MAGICA SIDE TABLE
S TEPHENVILLE – CAGE HOUSE

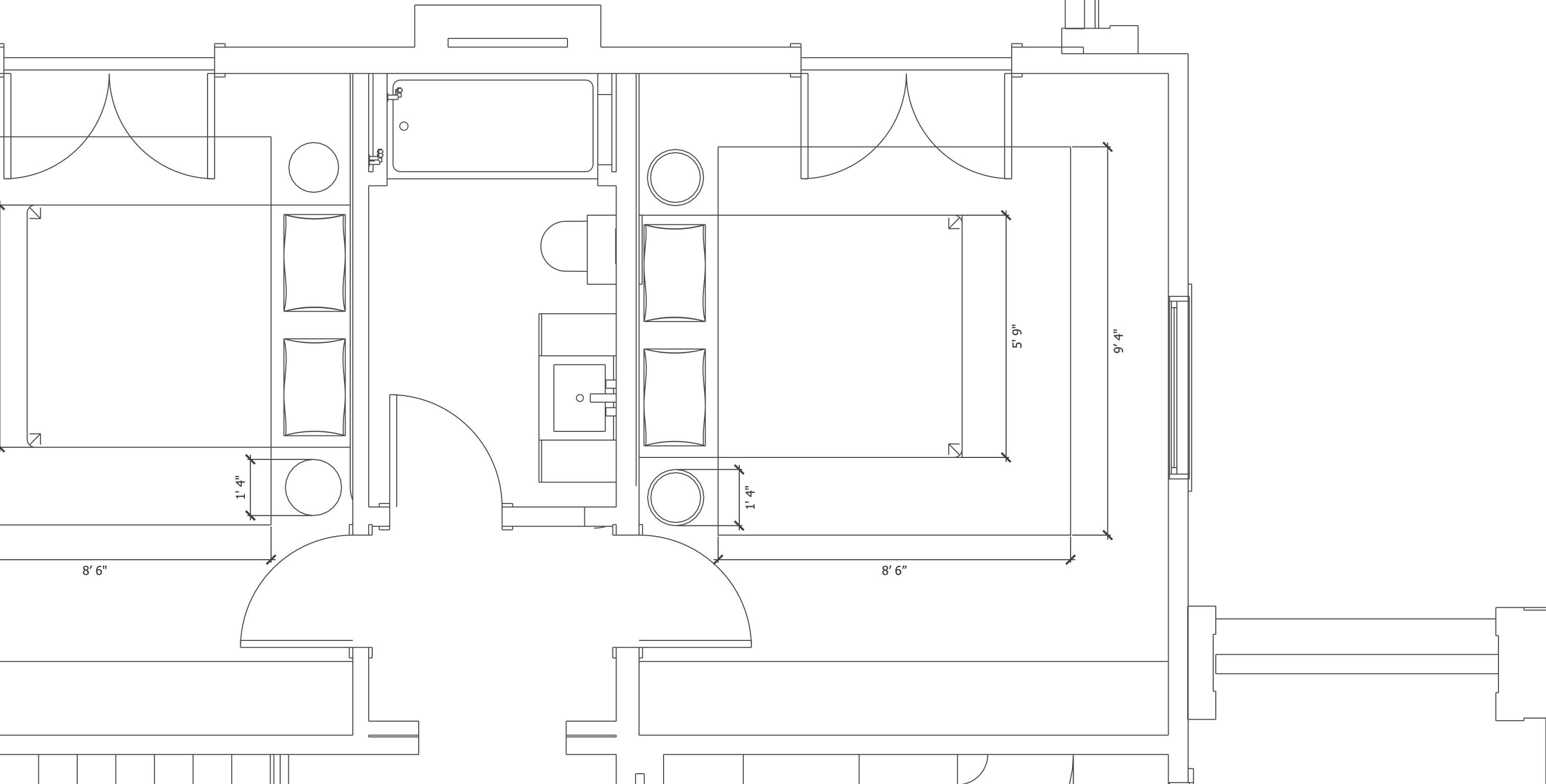
Primary Bedroom

Primary Bedroom SELECTIONS

S TEPHENVILLE – CAGE HOUSE
GIORGETTI – DELPHI NIGHTSTAND (QTY 2)
GIORGETTI – DELPHI STORAGE UNIT
GIORGETTI – RIFT ROUND MIRROR
GIORGETTI – LIZ BENCH
GIORGETTI – LIGHT
GIORGETTI – KARPHI NAP
VIABIZZUNO – ROY TABLE LAMP (QTY 2)

Primary Bedroom SELECTIONS

S TEPHENVILLE – CAGE HOUSE
GIORGETTI – MAGICA
GIORGETTI – RIFT ROUND MIRROR
VIABIZZUNO – ROY FLOOR LAMP
STEPHENVILLE – CAGE HOUSE
SANTA COLE – TMD TABLE LAMP

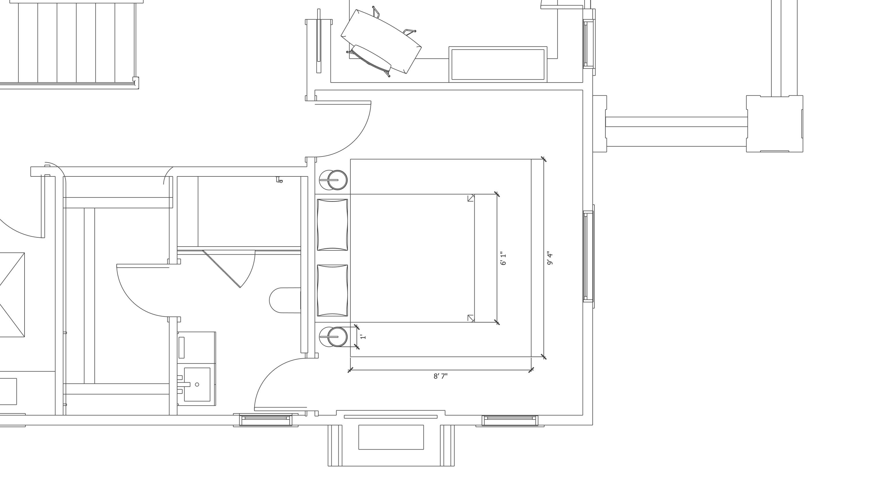
Bedroom

DITRE ITALIA – ALAR QUEEN SIZE BED
PENTA LIGHT – ELISABETH TABLE LAMP
VIBIEFFE – XENIA NIGHTSTAND
LINIE DESIGN – LUCENS ROSE AREA RUG
BM SWISS COFFEE WALLS AND CEILING PAINT

Bedroom

SELECTIONS

S TEPHENVILLE – CAGE HOUSE
LINIE DESIGN – LUCENS ROSE AREA RUG
PENTA LIGHT
DITRE ITALIA – ALAR QUEEN SIZE BED
VIBIEFFE – XENIA NIGHTSTAND
LINIE DESIGN – COVER STONE AREA RUG
PENTA LIGHT – ELISABETH TABLE LAMP

Bedroom

SELECTIONS

S TEPHENVILLE – CAGE HOUSE
LINIE DESIGN – COVER STONE AREA RUG
PENTA LIGHT

Sun Room

STEPHENVILLE – CAGE HOUSE
GIORGETTI – CLORI SWIVEL CHAIR
GIORGETTI – OTI SIDE TABLE

Sun Room

S TEPHENVILLE

Sun Room

S TEPHENVILLE – CAGE HOUSE
BONALDO – AVANT GARDE GUEST CHAIR
GIORGETTI – OTI SIDE TABLE

Turn static files into dynamic content formats.

Create a flipbook