Vanlim Ma's Work Sample

Page 1

VANLIM MA 2023
Professional
wake forest university tribble hall facade study 20 16 13 3 22 24 26 yale new Haven HosPital inpatient bed reallocation leHigH university north plinth feasibility study joHns HoPkins university hopkins student center overview (hsc) hsc | roofs and envelope hsc | visual Mockup (vMu) hsc | technical drawing risk strategies office buildout leonard dental grouP clinic buildout joHns HoPkins university krieger breezewall study 2
Projects

joHns HoPkins university baltimore, md

Revit

Design Architect: BIG

Architect of Record: Shepley Bulfinch

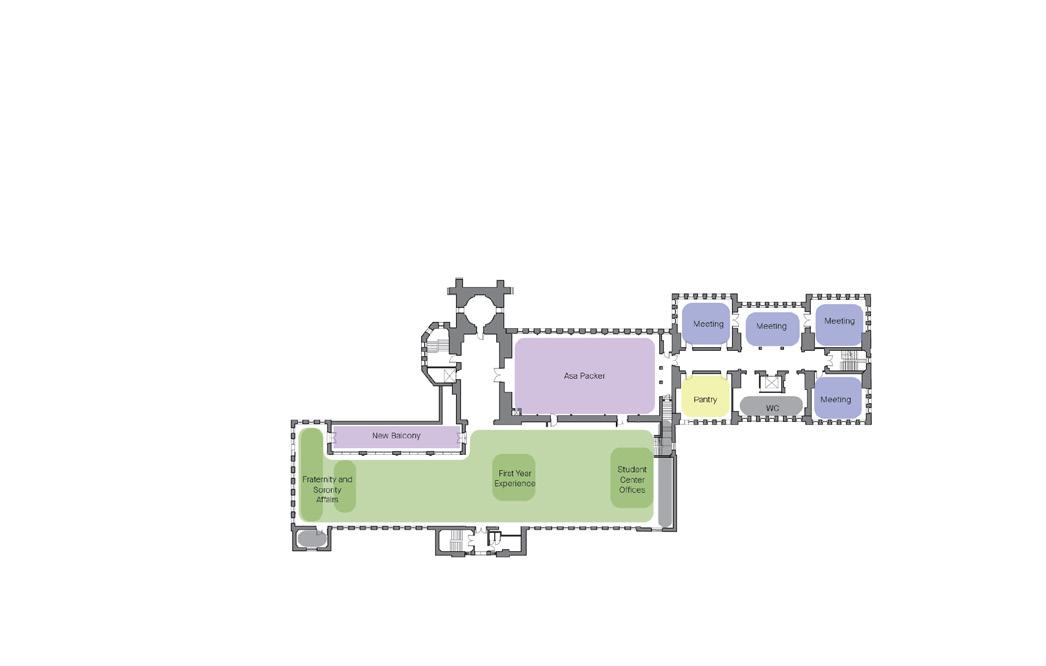
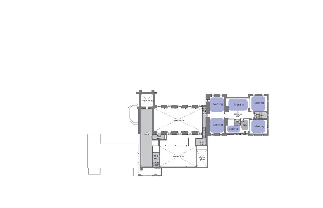
HoPkins student center

The Hopkins Student Center is a $250 million LEED Platinum Mass Timber project. With 150,000 sq. ft. and 29 roofs, the building is a social hub consisting of non-academic programs such as a large central campus living room, a variety of social spaces, community lounges, art and enrichment spaces, and dining options.

3
rendering by big
LEVEL 1 T.O.F.F. 0" (196'-6" BCVD) LEVEL 2 T.O.F.F. 16'-0" (212'-6" BCVD) LEVEL 3 T.O.F.F. 31'-0" (227'-6" BCVD) LEVEL 4 T.O.F.F. 45'-0" (241'-6" BCVD) 1 2 4 6 7 8 9 10 11 12 16 17 18 TOP OF ROOF T.O.F.F. 78'-0" (274'-6" BCVD) 2 A321 3 A321 A520 3 LEVEL 4 MECH T.O.F.F. 55'-0" (251'-6" BCVD) LEVEL 1 LOWER T.O.F.F. -4'-0" (192'-6" BCVD) 14'-0" 14'-0" 14'-0" 14'-0" 14'-0" 14'-0" 14'-0" 14'-0" 14'-0" 14'-0" 14'-0" 14'-0" 14'-0" 14'-0" 14'-0" 14'-0" 14'-0" 238'-0" A511 2 DOWNSPOUT COVER A516 A522 A412 A413 4 A413 1 A414 A414 13 14 15 3 5 THE ORIGINAL OF THIS DRAWING IS 36" 48". IF THIS COPY IS ANY OTHER SIZE, HAS EITHER BEEN REDUCED OR ENLARGED. TAKE APPROPRIATE PRECAUTIONS ACCORDINGLY. DRAWING INFORMATION KEY PROJECT INFORMATION ISSUANCES NO. Autodesk Docs://5190 JHU Student Ctr/5190_JHUHSC_AR SB_MAIN_R22.rvt A311 EW ELEVATIONS JOHNS HOPKINS STUDENT CENTER 08/26/2022 JOHNS STUDENT 3200 BALTIMORE, JOB SCALE 3/32" = 1'-0" 1EAST ELEVATION LEVEL T.O.F.F. 0" (196'-6" BCVD) LEVEL T.O.F.F. 16'-0" (212'-6" BCVD) LEVEL T.O.F.F. 31'-0" (227'-6" BCVD) LEVEL T.O.F.F. 45'-0" (241'-6" BCVD) A B C E F G H J K L M N P Q U TOP OF ROOF T.O.F.F. 78'-0" (274'-6" BCVD) A322 A322 14'-0" 14'-0" 14'-0" 14'-0" 14'-0" 14'-0" 14'-0" 14'-0" 14'-0" 14'-0" 14'-0" 14'-0" 14'-0" 14'-0" 14'-0" 14'-0" 14'-0" 14'-0" LEVEL MECH T.O.F.F. 55'-0" (251'-6" BCVD) LEVEL LOWER T.O.F.F. -4'-0" (192'-6" BCVD) 62'-0" 12 A515 2 A411 A411 4 A412 2 A413 A416 R S T D LEVEL T.O.F.F. 0" (196'-6" BCVD) LEVEL T.O.F.F. 16'-0" (212'-6" BCVD) LEVEL T.O.F.F. 31'-0" (227'-6" BCVD) LEVEL T.O.F.F. 45'-0" (241'-6" BCVD) A B C E F G H J K L M N P Q U TOP OF ROOF T.O.F.F. 78'-0" (274'-6" BCVD) A322 2 A322 14'-0" 14'-0" 14'-0" 14'-0" 14'-0" 14'-0" 14'-0" 14'-0" 14'-0" 14'-0" 14'-0" 14'-0" 14'-0" 14'-0" 14'-0" 14'-0" 14'-0" 14'-0" LEVEL MECH T.O.F.F. 55'-0" (251'-6" BCVD) LEVEL LOWER T.O.F.F. -4'-0" (192'-6" BCVD) A517 A515 10 A517 FREE STANDING FIRE DEPARTMENT SIAMESE CONNECTION A522 3 A521 11 A413 A414 1 A415 2 A416 3 A416 A417 R S T D 4 A543 THE ORIGINAL OF THIS DRAWING IS 36" X 48". IF THIS COPY IS ANY OTHER SIZE, IT HAS EITHER BEEN REDUCED OR ENLARGED. TAKE APPROPRIATE PRECAUTIONS ACCORDINGLY. DRAWING INFORMATION 99 Chauncy Boston, T:617.423.1700 shepleybulfinch.com 3910 KESWICK BALTIMORE, EXECUTIVE ARCHITECT OWNER CONSULTANT STAMP KEY PROJECT INFORMATION ISSUANCES NO. DATEDESCRIPTION DESIGN ARCHITECT 45 Main Brooklyn, big.dk 9/12/2022 12:14:24 AM Autodesk Docs://5190 JHU Student Ctr/5190_JHUHSC_AR SB_MAIN_R22.rvt A312 NS ELEVATIONS JOHNS HOPKINS STUDENT CENTER Checker Approver 08/26/2022 JOHNS STUDENT 3200 NORTH BALTIMORE, JOB NO: SCALE 3/32" = 1'-0" 1NORTH ELEVATION SCALE 3/32" = 1'-0" 2SOUTH ELEVATION
elevation
elevation 4
east
south

hsc | Roofs and EnvElopE

The project consists of 29 Dowel Laminated Timber roofs with glazing and metal panel envelope. Each roof comprised of outrigger steel beams, water and thermal proofing layers, drainage penetration, mechanical penetration, mechanical well, roof ladder, and more.

My responsibility is to study the roofs and envelope, identify, and coordinate with internal and external consultants to solve unique detail conditions while preserving the design intent.

One of the many challenges we face on the project is maintaining water and thermal proofing with the height of the outrigger beams required by the roof type and size. The trick is to meet the design intent of specified roof fascia height and clerestory curb clearance. Any new variable in roof structure requires rigorous study and problem-solving on the roof to ensure that the roof functions properly while meeting code requirement and design intent.

Revit
5
Roof BUIldUp and oUTRIGGER BEaM sTUdY

WATER/THERMAL PROOFING LAYERS

MECHANICAL WELL ROOF SYSTEM

EWS 03A/B - BASE CONDITION @ SCUPPER DRAIN 9

3. R-30 MIN INSULATION (FOAM GLASS AND XPS COMBINED)

4. ELECTRONIC LEAK DETECTION (ELD) SYSTEM WITH CONDUCTIVE MEDIUM BELOW MEMBRANE AS RECOMMENDED BY MEMBRANE AND ELD SYSTEM MANUFACTURERS.

5. SEE ROOF PLANS FOR EXTENT AND LOCATIONS OF FALL ARREST SYSTEM, AND LIGHTENING PROTECTION SYSTEM.

TYPICAL ROOF SYSTEM AND ROOF DRAIN (1/8" PER FOOT SLOPE)

5

F.O.P. SCALE 1-1/2" = 1'-0"
04
HEAD
F.O.P. MTL.04 F.O.P. SO-01 VARIES EWS-04 ASSEMBLY COLUMN BEYOND DEFLECTION TRACK EXT. MTL.01 SEE INT. SCOPE FOR FINISHES ALUMINUM PLATE RAINSCREEN ON THERMALLY BROKEN GIRT SYSTEM EXTERIOR GRADE SHEATHING ON CFS STUD WALL AIR WATER BARRIER SEMI-RIGID MINERAL WOOL INSULATION FAS-01 3 5/8" MTL.02 DRIP EDGE FAS-01 W.P. MEMBRANE SCALE 1-1/2" = 1'-0"
6 MTL.04 PV PANEL AND BALLAST RACK SYSTEM PAV.01 VARIES EXT. METAL PANEL RAINSCREEN AT MECH. WELL (EWS-05) MFAB-01 CL STRUCTURE F.O.P. VARIES MTL.01 PERFORATED ALUMINUM SHEET LVR.01 1/2" SCALE 1-1/2" = 1'-0"
EWS
- TYP.
DETAIL @ TYP. ROOF
EWS 04 - TYP. MECHANICAL LOUVRE
8 SLOPE PER FT FIBER REINFORCED HOT FLUID APPLIED MEMBRANE WITH PROTECTION BOARD AIR BARRIER VAPOR RETARDER FULLY ADHERED TO SHEATHING PAV-01 CEMENTITIOUS COVER BOARD DRAINAGE MAT TAPERED XPS INSULATION CL WPS-01 ACOUSTIC TREATMENT, SEE INTERIOR SCOPE ABS-01
SLOPE PER FT ALUMINUM PAN FLASHING MFAB-01 ROOF DRAIN, SEE PLUMBING LINE OF OVERFLOW DRAIN, SEE PLUMBING 3" FOAM GLASS INSULATION NOTES: 1. OVERBURDEN CONSISTS OF PAVERS OR METAL BAR GRATE ON PEDESTAL SYSTEM, OR PV PANELS ON BALLASTED RACK SYSTEM - SEE ROOF PLANS FOR EXTENT 2. ALL SUBSTRATE BOARD JOINTS TO BE PRE-STRIPPED IN WITH NEOPRENE PRIOR TO MEMBRANE INSTALLATION AS RECOMMENDED BY MANUFACTURER.
4'-0" SUMP AREA GROUTED SUMP PMMA PUMA FLASHING FILTER FABRIC SLOPE PER FT NOTE: SEE 8 A-560 FOR FASCIA ASSEMBLY AT 2X6, 2X10 AND 2X12 DLT ROOF DECKS CONTINUOUS SEALANT LINE AT SHEATHING TOP & BOTTOM WITH 2-LAYER AIR & VAPOR SEAL BETWEEN DLT LAMINATIONS WHERE DLT SPANS PERPENDICULAR TO FACADE LINE LINE OF DLT ACOUSTIC PROFILE T.O.FASCIA VARIES VARIES 5" MAX EXT. INT. 3/4" U.O.SOFFIT SCALE 1-1/2" = 1'-0"
CL JT. VARIES SEE INT. SCOPE FOR FINISHES PAVERS ON ADJUSTABLE LEVELING PEDESTALS SLOPE PER FT. ROOF SCUPPER DRAIN GROUTED INTO SHEETMETAL SLEEVE, SEE PLUMBING PMR ROOF SYSTEM AIR BARRIER VAPOR RETARDER FULLY ADHERED XPS INSULATION KERF EDGE DLT WITHOUT ACOUSTIC ROUTING AT SOFFIT DLT ROOF DECK WITH PLYWOOD SHEATHING VERTICAL BLADE LOUVER SUPPORT ANGLE FOR PERFORATED PANEL SHEET MEMBRANE TIE-IN FROM DADO LINE TO AIR/WATER BARRIER
22 AXON DIAGRAM
ROOF
DIAGRAM 1 DIGRAM 2 DIAGRAM 3 2x12 DLT ROOF DECK C 2x12 DLT ROOF DECK C PMR ROOF SYSTEM SCALE 1-1/2" = 1'-0" EWS 03A/B - TYP. BASE 1 SLOPE "1 PER AVERAGE SECTION AT FASCIA SECTION ROOF BUILDUP SECTION DIAGRAM C D E B A 2x12 DLT ROOF DECK C PMR ROOF SYSTEM SCALE 1-1/2" = 1'-0" EWS 03A/B - TYP. BASE CONDITION @ TYP. ROOF ASSEMBLY 1 SLOPE 1 8 PER FT. DIRECTION VARIES AVERAGE 8" T.O.FASCIA PMR ROOF SYSTEM SCALE 1-1/2" = 1'-0" EWS 03A/B - TYP. BASE CONDITION @ TYP. ROOF ASSEMBLY 1 SLOPE PER FT. DIRECTION VARIES AVERAGE 8" T.O.FASCIA SECTION AT FASCIA SECTION AT CLERESTORY CURB SECTION DIAGRAM C D E B A T.O.F H G F TIMBER W/ SHEATING 4” INSULATION BUILD UP 1/8 IN SLOPE W/ CEMENT BOARD DRAIN BOARD AND INSULATION FASCIA CLEARANCE 2x12 DLT ROOF DECK C PMR ROOF SYSTEM SCALE 1-1/2" = 1'-0" EWS 03A/B - TYP. BASE CONDITION 1 SLOPE PER FT. DIRECTION VARIES AVERAGE 2x12 DLT ROOF DECK C PMR ROOF SYSTEM SCALE 1-1/2" = 1'-0" EWS 03A/B - TYP. BASE CONDITION @ TYP. ROOF ASSEMBLY 1 SLOPE PER FT. DIRECTION VARIES AVERAGE 8" SECTION AT FASCIA SECTION AT CLERESTORY CURB ROOF BUILDUP SECTION DIAGRAM C D E B A T.O.F H G F TOP OF WP TO T.O.F TOP OF INSULATION TO T.O.F FASCIA CLEARANCE OUTRIGGER STEEL BEAM DRAIN A A 1 3 2 6
SECTION DIAGRAM A

On such a large-scale and complex project like this one, it is essential to build a Visual Mockup (VMU). Portions of roofs 27 and 28 were designated to be built on site. Visually, the design team and client can assess and confirm glazing and roof detail, finishes, MEP routing, and many other unresolved

Hsc | visual mockuP (vmu)
ermit documentation scoPe
7
rendering by big

vMu enclosure scope

A501A

4SCALEVMU EXTERIOR -DETAILS 2SCALE 3D -VMU (PARTIAL)

vMu interior scope

A-560 3 A-560 A-561 3 SIM A-550 6 A-561 2 SIM A-560 7 A-903 SIM & PER ROCKWELL A-551 5 A-550 A-560 1 A-561 4 A-560 A-551 A-560 2 TYP A-945 7 PER ROCKWELL A-551 A-551 A-945
FAS-01 EWS-03 PV PANELS OVERFLOW ROOF PENETRATION DRAIN LEADER TO ALIGN TO MULLION PAV-01 PV PANELS, ASSEMBLY, FRAME DIMENSION, ALIGNMENT, AND PANEL MATERIAL TO MATCH PROJECT INTENT SPRINKLER BRANCH, PAINTED. COLOR TBD DLT SPRINKLER MAIN, PAINTED. COLOR TBD TIMBER STRUCTURE, FULL BAY AESS MULLIONS, PT 16 *LOW ROOM* TO SHOW PVDF OPTION 1, TBD *HIGH ROOM* TO SHOW PVDF OPTION 2,TBD CABLE BRACING INTERIOR FINISH MATERIAL #1, PER JHU GRL-01 REMOVABLE CABLE BRACING VIEW WINDOW OPENING THROUGH PARTITION AND CLT INTERIOR FINISH MATERIAL #2, PER JHU MLT-17 MEZZANINE LEVEL SLAB TYP. HOLLOW METAL DOOR. AS REQUIRED. OPENING IN INTERIOR PARTITION BETWEEN ROOMS. WHITE PAINTED GYP FINISH, OR ALT FINISH PER JHU ROLLER SHADES NON-STRUCTURAL CLT WALL MTL-15 INTERIOR SOFFIT COVER REMOVABLE LINEAR LIGHT FIXTURE DROPPED CEILING ROLLER SHADES CONDUIT ROUTING FROM INTERIOR SOFFIT TO DLT TRENCH A560 1 KEY PLAN NO. DATE DESCRIPTION
ENCLOSURE VMU 08/26/2022 JOHNS HOPKINS STUDENT CENTER 3200 NORTH CHARLES STREET BALTIMORE, MD, 21218 JOB NO: 5190.000 CONSTRUCTION DOCUMENTS
3D -VMU
1SCALE
SIDE) FAS-01 EWS-03 EWS-04 PV PANELS INTERMEDIATE SLAB (BEYOND) AESS MULLIONS/TRANSOMS PT-16 EWS-02 EWS-01 BASE AS NEEDED CONCRETE COLUMN (BEYOND) TYP. HOLLOW METAL DOOR, AS NECESSARY, EDGE OF FRAME 6' MIN FROM EDGE OF WALL MFAB-01 (ALIGNED TO CLEARSTORY MULLION) PAV-01 TYP. EXTERIOR SOFFIT LIGHT, POWER AND ROUTING AS NECESSARY, PER L'OBSERVATOIRE OVERFLOW ROOF PENETRATION DRAIN LEADER TO ALIGN TO MULLION INTERIOR FINISH MATERIAL #1, PER JHU GRL-01 DOWNSPOUT TO ELBOW OUT AWAY FROM GLAZING AT BASE WALL CONSTRUCTION: -6" CFMF -5/8" SHEATHING (BOTH SIDES) -AIR BARRIER -EXTERIOR METAL FLASHING, PTD BLACK WALL CONSTRUCTION: -6" CFMF -5/8" SHEATHING (BOTH SIDES) -AIR BARRIER -EXTERIOR METAL FLASHING, PTD BLACK L TRENCH PANEL JT TO ALIGN W/ CENTERLINE OF EWS-01 REMOVABLE CABLE BRACING INTERIOR FINISH MATERIAL #2, PER JHU MLT-03 PATH CONDITION (SEE L-SERIES) PER MVVA TRENCH DRAIN. SEE 1/A560 LANDSCAPE CONDITION (SEE L-SERIES) PER MVVA HARDSCAPE CONDITION (SEE L-SERIES) PER MVVA EWS-04 WITH LOUVER 103/08/2022BULLETIN 03 204/13/2022BULLETIN 04 305/12/2022RFI 0068_R1 407/29/2022BULLETIN 05
2SCALE
(PARTIAL)
3D -VMU (GLAZING
8
ALIGN 32'-6 1/4" 39'-10 5/8" TYP COLUMN SIZES: 13.5"x13.5". SEE SHEET S602 FOR TYP CONC COLUMN DETAILS TENSION RODS, REF. STRUCTURE DRAWING A501B REMOVABLE CABLE BRACING A550 SIM A551 SIM A550 7 TYP A551 TYP B.1 B.2 B.3 A.1 A.2 14'-0" 14'-0" 14'-0" ROOF DRAIN RUNNING IN WALL, W/ COW'S TONGUE EXIT ABOVE GRADE GWB PARTITION 3 A572 2'-6" 2'-6" 9'-6" 7'-0" C 2'-6" CONCRETE WALL. REFERENCE STRUCTURE DWG ± 1'-6" ± 4'-0" 2'-6" 11'-6" 2" EXTERIOR TRENCH DRAINS 2" EXTERIOR TRENCH DRAINS ALIGN NON STRUCTURAL CLT WALL WALL OPENING BETWEEN ROOMS A572 SIM ALIGN LADDER TO LOWER ROOF ALIGN ALIGN 33'-3 1/4" 17'-0 3/8" TENSION RODS ROOF DRAIN RUNNING IN WALL, W/ COW'S TONGUE EXIT ABOVE GRADE REFERENCE UPPER ROOF RCP VIEW THIS SHEET FOR SCOPE B.1 B.2 B.3 14'-0" 14'-0" A.1 A.2 14'-0" DLT WITHOUT ACOUSTIC PROFILE. PROVIDE KERF JOINT BTWN EACH BOARD MEZZANINE LEVEL SLAB EXTERIOR RECESSED SOFFIT LIGHT FIXTURE REFER. VIEW 10 THIS SHEET OVERFLOW DRAIN OPENING SOFFIT 8'-0" EQ EQ LEVEL T.O.F.F. 0" LOWER ROOF T.O.BEAM 20'-6 1/2" UPPER ROOF T.O.BEAM 28'-6 1/2" MEZZANINE LEVEL T.O.F.F. 15'-1 1/4" 31'-0" B O D R O P C E N G 11 4 4 A501B OPENING IN GWB PARTITION AND NONSTRUCTRUAL CLT WALL BETWEEN LARGE ROOM TO MEZZANINE LEVEL. CLT TO TERMINATE AT LOWER ROOF. A572 SIM 26 21 2 B.1 B.2 B.3 A572 A562 TYP DLT TRENCH, SEE RCP SPRINKLER, SEE RCP A562 TYP LINEAR LIGHT FIXTURE, SEE RCP 16 26 5'-0" 3'-6"W WINDOW. DRAIN OUTLET AND SPLASH BLOCK ROOF DRAIN RUNNING IN WALL, W/ COW'S TONGUE EXIT 1' ABOVE GRADEA572 TYP GWB PARTITION NON STRUCTURAL CLT WALL ALIGN 101 4 ALIGN OPENING IN GWB PARTITION AND NONSTRUCTRUAL CLT WALL BEYOND. LADDER BEYOND, REF PLAN ALIGN BEYOND LOWER ROOF T.O.BEAM 20'-6 1/2" UPPER ROOF T.O.BEAM 28'-6 1/2" A501B A-551 11 A-551 11 A-551 SIM A-550 10 A-551 A-562 A-562 & A-562 A-562 A-562 COORDINATE WITH TIMBER DA STRUCTURECRAFT WITH LENGTH OF DECK TO ACCOMMODATE REVISED FASCIA ATTACHMENT. A.1 A.2 LINE OF FACADE BELOW EDGE OF PAVER EDGE OF PAVER TILE START POINT 3 A561 TYP 24" 24" PAV-01 TILE FORMAT W/ EQ 1/8" JOINTS BTWN TILES, ALL SIDES. CUT END TILES OPP TILE START POINT AS NECESSARY PV LAYOUT ORIENTATION TBC SLOPE SLOPE SLOPE O E STORM DRAIN LEADER TO ALIGN WITH CENTER OF MULLION BELOW 1/8"/FT SLOPED INSULATION BELOW PAVERS, TYP B.1 B.2 A.1 A.2 EDGE OF PAVER EDGE OF PAVER 4 E Q P V P A N E L W D T H S 34 A562 TYP 14'-0" 11 0 2 1'-6" 2'-11 3/8" OVERFLOW PV SLOPE PV SLOPE PV SLOPE SLOPE SLOPE SLOPE SLOPE OVERFLOW DRAIN OUTLET PIPE TO MERGE WITH STORM DRAIN PIPE BELOW 1/8"/FT SLOPED INSULATION BELOW PAVERS, TYP B.2 B.3 A.1 A.2 MTL-15. REMOVABLE INTERIOR SOFFIT COVER PV PANEL ABOVE METAL GRATE ABOVE LINE OF FACADE BELOW A562 TYP 5'-6" 1'-6" 4 14'-0" 40 1'-6" 3'-6" ROOF DRAIN ALIGN CONDUIT CUTOUT A551 12 SIM ALIGN SPLICE JOINTS OF FASCIA WITH CENTERLINE OF MULLION BELOW AT CORNERS, TYP B.2 B.3 A.1 A.2 PV LAYOUT ORIENTATION TBC 1'-0" DEEP MFAB-01 LEADER W/ SPLASH BLOCK BELOW METAL GRATE 24" x 24" PAV-01 TILE FORMAT W/ EQ 1/8" JOINTS BTWN TILES, ALL SIDES. CUT END TILES OPP TILE START POINT AS NECESSARY GRATE OVER DRAINS MFAB-01 MTl-02 FASCIA A550 10 TYP TILE START POINT EDGE OF PAVER EDGE OF PAVER EDGE OF PAVER EDGE OF PAVER A562 8 TYP 14'-0" 1 40 CUT ROOF PAVERS AS REQ'D AT GRATE AND PV PANELS. MAINTAIN 1/8" JOINT BTWN GRATE AND PAVERS PV SLOPE PV SLOPE PV SLOPE C -3" F.F SLAB DEPRESSION FOR FLOORING FINISH BUILD -UP VMU WALL. REFER. STRUCTURE DWG LINE OF VMU PAD TIMBER COLUMNS. REFER. STRUCTURE DWG -8.5" F.F SLAB DEPRESSION, TYP. B.1 B.2 B.3 A.1 A.2 O 3 91 OVERALL PAD 32'-6" 14'-0" 40 1+3" -3" -8.5" -3" F.F SLAB DEPRESSION, TYP. +3" F.F CURB -8.5" F.F SLAB DEPRESSION, TYP. 10'-0" 8'-6" ± 51 5 8 ± 51 1 3 3 A572 23 4 14 2'-3 3/4" 1'-4" 7" 5" 7 5 1 23 4 1'-4" 2'-3 3/4" CONCRETE WALL. REFERENCE STRUCTURE DWG 2" EXTERIOR TRENCH DRAINS LADDER, PROVIDE ANCHORING AND BLOCKING AS REQUIRED 4'-8 1/4" 7'-0" 132'-1" 07 4 COLUMNS AND BEAMS. REFERENCE STRUCTURECRAFT'S DRAWING SPRINKLER PIPE MAIN. 6" DIA CLR. BEAM PENETRATION. REF STRUCTURE DWG C EQ EQ SUSPENDED LINEAR LIGHT FIXTURE. FIXTURE TO BE REMOVABLE. PROVIDE NECESSARY ANCHORING, ELECTRICAL, AND SWITCH AT LOCATION DLT WITHOUT ACOUSTIC PROFILE. RECESSED CONDUIT TRENCH W/ REMOVABLE COVER PANEL. REF TYP TRENCH DETAIL ROLLER SHADE CONDITION TO MATCH RFI-0037-01 DSK-012 DESIGN INTENT. UPDATED DETAIL TO BE INCLUDED IN DRAWING SET AT FUTURE DATE. B.1 B.2 A.1 A.2 14'-0" 13'-6" 3'-6" 3'-6" 3'-0" 3'-0" EWS-04 EWS-04 MECH LOUVER EWS-03 EWS-03 EWS-03 T.O.BEAM 28'-6 1/2" ROOF DRAIN DLT PANEL OPEN JOINT WITH RECESSED GENERIC BLACK FOAM. A551 12 SIM SPRINKLER PIPE BRANCH. 4" DIA CLR. BEAM PENETRATION. REF STRUCTURE DWG 1 1/4" 1 1 E Q E Q EQ 2'-11 3/8"1 0 2 GLASS WINDOW 6 1/2" EQ 12'-0" MECHANICAL LOUVER E Q E Q EQ EQ CONDUIT ROUTING FROM INTERIOR SOFFIT TO DLT TRENCH. B.2 B.3 A.1 A.2 B.2 B.3 A.1 A.2 EXTERIOR RECESSED SOFFIT LIGHT FIXTURE. ROOF DRAIN RUNNING IN WALL, W/ COW'S TONGUE EXIT ABOVE GRADE T.O.BEAM 20'-6 1/2" C EQ DLT WITHOUT ACOUSTIC PROFILE. TIMBER FRAMING, REF STRUCTURE DRAWING CONCRETE WALL, REF STRUCTURE DRAWING TIMBER FRAMING, REF STRUCTURE DRAWING 1 4 1 1/4" ALIGN LADDER TO LOWER ROOF OVERFLOW DRAIN OUTLET PIPE TO MERGE WITH STORM DRAIN PIPE BELOW DLT PANEL OPEN JOINT WITH RECESSED GENERIC BLACK FOAM. NON-STRUCTRUAL CLT WALL BELOW OPENING BELOW 14'-0" EQ E Q E Q E Q E Q THE ORIGINAL OF THIS DRAWING IS 36" 48". IF THIS COPY IS ANY OTHER SIZE, IT HAS EITHER BEEN REDUCED OR ENLARGED. TAKE APPROPRIATE PRECAUTIONS ACCORDINGLY. 99 Chauncy Street 4th Floor Boston, MA 02111 T:617.423.1700 F:800.934.9691 shepleybulfinch.com 3910 KESWICK ROAD, NORTH BUILDING, SUITE BALTIMORE, MD 21211 KEY PLAN NO. DATEDESCRIPTION 45 Main Street, 9th Floor Brooklyn, NY 11201 big.dk A501B ENCLOSURE VMU JOHNS HOPKINS STUDENT CENTER Approver 08/26/2022 JOHNS HOPKINS STUDENT CENTER 3200 NORTH CHARLES STREET BALTIMORE, MD, 21218 JOB NO: 5190.000 CONSTRUCTION DOCUMENTS SCALE 1/4" = 1'-0" 1FLOOR PLAN -VMU SCALE 1/4" = 1'-0" 2REFLECTED CEILING PLAN -VMU SCALE 1/4" = 1'-0" 3VMU SECTION SCALE 1/4" = 1'-0" 4ELEVATION -VMU -CLEARSTORY SCALE 1/4" = 1'-0" 7ROOF PLAN -VMU -UPPER ROOF SCALE 1/4" = 1'-0" 6ROOF PLAN -VMU -LOWER ROOF DRAIN SCALE 1/4" = 1'-0" 5FLOOR PLAN -VMU CLERESTORY SCALE 1/4" = 1'-0" 8SLAB PLAN -VMU SCALE 1/4" = 1'-0" 9REFLECTED CEILING PLAN -VMU -UPPER ROOF SCALE 1/4" = 1'-0" 10REFLECTED CEILING PLAN -LOWER ROOF VMU ALIGN 103/08/2022BULLETIN 03 204/13/2022BULLETIN 04 306/08/2022RFI 0089 407/29/2022BULLETIN 05 508/29/2022BULLETIN 06 CLERESTORY 9

section details

These section details are some examples of the unique conditions we have on the project. Each detail is the result of an enormous amount of effort, design study, and coordination between the design team, MEP, Structure, Timber, and Envelope Consultants. The details establish typical and a-typical standard condition for the entire project.

ACCESS LADDER

FALL PROTECTION

LIGHTNING PROTECTION

DRAINAGE

DRAINAGE UNDER OVERHANG

DRAINAGE TO LOWER ROOF

Revit Hsc | tecHnical drawing
PV PANEL
10

section detail | shadow box fascia

section detail | shadow box interMediate slab

ALIGN ALIGN MTL-16 ALUMINUM PLATE RAINSCREEN ON THERMALLY BROKEN GIRT SYSTEM [07 21 00] 4" MINERAL WOOL INSULATION [07 00 00] AIR BARRIER 5/8" EXTERIOR GRADE GYP SHEATHING ON CFMF 6" STUDS W/ 2" BATT INSULATION [07 00 00] PRECAST CONCRETE PAVER ON PEDESTALS [07 00 00] 3" TYP FOAMGLAS INSULATION/IGNITION BARRIER. REF ROOF PLAN [07 00 00] TAPERED HIGH DENSITY RIGID FOAM INSULATION. THICKNESS AS DEFINED BY 1/8" TO THE FOOT SLOPE FROM DRAIN ELEVATION PER ROOF PLAN DRAIN ELELVATION CHART [07 00 00] 1/2" DRAINAGE BOARD [07 00 00] FIBER REINFORCED HRA WATERPROOFING MEMBRANE ADHERED TO ROOF COVER BOARD [07 00 00] 1/2" ROOF COVER BOARD SUBSTRATE ADHERED TO HIGH DENSITY TAPERED RIGID INSULATION WITH ALL BOARD JOINTS PRE-STRIPPED WITH NEOPRENE/HRA [07 00 00] VAPOR BARRIER MFAB-01 TERMINATION BAR ROOF MEMBRANE LAPPING OVER AB [07 00 00] VAPOR BARRIER [06 00 00] PLYWOOD SHEATHING OVER DLT. REFERENCE STRUCTURE WIND LOAD BRACKET, SPIGOT STYLE ADJUST DIMENSION AS REQUIRED BY LINDNER THERMAL STUDY [07 00 00] CEMENTITIOUS BOARD B LEVEL 4 MECH T.O.F.F. 55'-0" (251'-6" BCVD) EXTERIOR INTERIOR 1 1/2" INTUMESCENT, FIRE PROOFED, AND GALVANIZED STEEL FRAMING. SEE STRUCT. DWG [07 00 00] FIBER REINFORCED HRA WATERPROOFING MEMBRANE ADHERED TO ROOF COVER BOARD [07 00 00] 2" FOAMGLAS INSULATION/IGNITION BARRIER. REF ROOF PLAN [07 00 00] 1/2" DRAINAGE BOARD MTL-04 [07 00 00] 1/2" ROOF COVER BOARD SUBSTRATE ADHERED TO HIGH DENSITY TAPERED RIGID INSULATION WITH ALL BOARD JOINTS PRE-STRIPPED WITH NEOPRENE/HRA [07 00 00] TAPERED HIGH DENSITY RIGID FOAM INSULATION. THICKNESS AS DEFINED BY 1/8" TO THE FOOT SLOPE FROM DRAIN ELEVATION PER ROOF PLAN DRAIN ELELVATION CHART MTL-04 GL-01 AESS MULLION PT-16 EXTERIOR WOOD SOFFIT TO MATCH SC IN TYPE, DIM., COATING, AND FINISH, TYP. WOOD OVER AB OVER 5/8" GYP SHEATING AND CFMF STUDS. KERF SAW CUT JOINT BETWEEN BOARDS TYP WIND LOAD BRACKET, SPIGOT STYLE REMOVABLE WALL PANEL EWS-05A ON SS Z CLIPS ON GALV STEEL 3"X5"X5/8" STEEL ANGLES SECURED W/ SS BOLTS STEEL ANGLES REMOVABLE INTUMESCENT, FIRE PROOFED, AND GALVANIZED STEEL FRAMING. SEE STRUCT. DWG 2 1/2" X 3/16" GALV STEEL GRATE W/ STEEL STRUCTURE SUPPORT. SEE STRUCT. DWG AND ACCESS HATCH AT LADDER [07 62 00] SS FLASHING EWS-01 CW CONNECT TOP OF MULLION TO DECK ABOVE W/ DEFLECT CONNECT CONT, SECTURE SHEET SILICONE AB TRANSITION TO DECK. BOTH SIDES PT SOLID BLOCKING CURB ANCHOR BOLT TO DECK WRAP ROOF MEMBRANE OVER CURB, LAP AB @ WALL, TERM, WITH TERM BAR. RUN CONTINUOUS. HEMMED EDGES. FLASHING OVER TOP OF CURB SECURE SHEET SILICONE TRANSITION TO CW, AND CONNECT TO AB ABOVE. PROVIDE SHEET SILICONE AMOUNT TO ALLOW FOR MOVEMENT TYP. AB UP BEHIND FASCIA, LAP UNDER ROOF MEMBRANE ON BACK OF FASCIA 8" MIN 1/8" SLOPE 2 7/8" [07 00 00] PRECAST CONCRETE PAVER ON PADS STEEL FRAMING. LAP MEMBRANE FLASHING OVER AB AT ALL SIDES OF PENETRATION. SEAL AT PERIMETER TYP. WRAP GALV. STEEL SUPPORT W/ MEMBRANE FLASHING. TERM. W/ SS CLAMP AND SEAL AT EDGES TYP. T.O.F CL.JT. 2 5/8" ALUMINUM PLATE RAINSCREEN ON THERMALLY BROKEN GIRT SYSTEM 1'-7 1/4" 5/8" EXTERIOR GRADE GYP SHEATHING ON CFMF 6" STUDS W/ 2" BATT INSULATION [07 21 00] 4" MINERAL WOOL INSULATION INTUMESCENT, FIRE PROOFED, AND GALVANIZED STEEL FRAMING. SEE STRUCT. DWG 2'-6" WRAP HRA AND VB UP AND OVER CURB UNDER SS FLASHING. WARP AB UP VERTICAL FASCIA TERMINATE AB LAPPING UNDER HRA MEBRANE WITH TERM. BAR COL SEPARATING STEEL TYP. 1" HIGH WALL VENTS [07 00 00] AIR BARRIER CONTINUOUS AB BELOW SHEATHING. LAP TRANSITION SILICONE AT PARTITION HEAD TYP. MTL-02 THERMAL SHIM REF A560 FOR TYP FASCIA LEVEL 4 T.O.F.F. 45'-0" (241'-6" BCVD) B MIN WOOL TYP. 1'-6" MIN 4" 3" 12" MIN MTL-16 MTL-04 [07 21 00] 4" MINERAL WOOL INSULATION [07 00 00] AIR BARRIER [07 00 00] 2" FOAMGLAS INSULATION/IGNITION BARRIER. REF ROOF PLAN [07 00 00] 1/2" DRAINAGE BOARD [07 00 00] FIBER REINFORCED HRA WATERPROOFING MEMBRANE ADHERED TO ROOF COVER BOARD [07 00 00] TAPERED HIGH DENSITY RIGID FOAM INSULATION. THICKNESS AS DEFINED BY 1/8" TO THE FOOT SLOPE FROM DRAIN ELEVATION PER ROOF PLAN DRAIN ELELVATION CHART CAST-IN-PLACE CONCRETE SLAB - REF. STRUCTURAL DRAWINGS MTL-16 INTUMESCENT, FIRE PROOFED, AND GALVANIZED STEEL FRAMING. SEE STRUCT. DWG WTR-01 REMOVABLE WALL PANEL EWS-05A ON SS Z CLIPS ON GALV STEEL 3"X5"X5/8" STEEL ANGLES SECURED W/ SS BOLTS STEEL ANGLES REMOVABLE MTL-17 FIRE SAFING AND SMOKE SEAL GALVINIZED STEEL PLATE COVER REMOVABLE ALUMINUM CEILING PANEL GALVANIZED STEEL BACKPAN MTL 17 VARIES 12" MIN [07 00 00] VAPOR BARRIER [07 00 00] CEMENTITIOUS BOARD 5/8" EXTERIOR GRADE GYP SHEATHING ON CFMF 6" STUDS W/ 2" BATT INSULATION CL.JT. REMOVABLE PANEL COODINATE CONSEALED WIRING IN STEEL PROFILES REFERENCE RCP FOR FINISHES 3/4" STEEL THICKNESS AT TRANSOM FOR FIRE RATING 3" CONCRETE SLAB W/ SNOW MELT. SEE MECH. DWGS. TYP SILL OF HM DOOR W/ HM JAMB RETURNS BEYOND RUN ROOF MEMBRANE FLASHING UP WALL. MIN 8". LAP AB OVER AND TERMINATE W/ TERM. BAR 2'-6" 1'-7 1/4" MAX 4" 1/8" SLOPE [07 21 00] 2" MINERAL WOOL INSULATION [07 21 00] 4" MINERAL WOOL INSULATION COL 8/26/2022 3:51:13 PM Autodesk Docs://5190 JHU Student Ctr/5190_JHUHSC_ARSB_MAIN_R22. rvt JOHNS HOPKINS STUDENT CENTER SCALE 1 1/2" = 1'-0" 1SECTION DETAIL_MTL 3SCALESECTION SCALE 3" = 2
SCALE 1 1/2" = 1'-0"
SECTION
SCALE 1 1/2" = 1'-0" 7SECTION DETAIL_WEST MECHANICAL WELL @ SHADOW BOX SILL NOTE: ALL EXPOSED STRUCTURAL STEEL TO RECEIVE INTUMESCENT COATING TYP. SCALE 1 1/2" = 1'-0" 9SECTION DETAIL_ FIN TUBE @ SCALE 1 1/2" = 1'-0" 6SECTION DETAIL_ FIN TUBE @ INTERM. SLAB MIN CONDITION ALIGN ALIGN MTL-16 ALUMINUM PLATE RAINSCREEN ON THERMALLY BROKEN GIRT SYSTEM [07 21 00] 4" MINERAL WOOL INSULATION [07 00 00] AIR BARRIER 5/8" EXTERIOR GRADE GYP SHEATHING ON CFMF 6" STUDS W/ 2" BATT INSULATION [07 00 00] PRECAST CONCRETE PAVER ON PEDESTALS [07 00 00] 3" TYP FOAMGLAS INSULATION/IGNITION BARRIER. REF ROOF PLAN [07 00 00] TAPERED HIGH DENSITY RIGID FOAM INSULATION. THICKNESS AS DEFINED BY 1/8" TO THE FOOT SLOPE FROM DRAIN ELEVATION PER ROOF PLAN DRAIN ELELVATION CHART [07 00 00] 1/2" DRAINAGE BOARD [07 00 00] FIBER REINFORCED HRA WATERPROOFING MEMBRANE ADHERED TO ROOF COVER BOARD [07 00 00] 1/2" ROOF COVER BOARD SUBSTRATE ADHERED TO HIGH DENSITY TAPERED RIGID INSULATION WITH ALL BOARD JOINTS PRE-STRIPPED WITH NEOPRENE/HRA [07 00 00] VAPOR BARRIER MFAB-01 TERMINATION BAR ROOF MEMBRANE LAPPING OVER AB [07 00 00] VAPOR BARRIER [06 00 00] PLYWOOD SHEATHING OVER DLT. REFERENCE STRUCTURE WIND LOAD BRACKET, SPIGOT STYLE ADJUST DIMENSION AS REQUIRED BY LINDNER THERMAL STUDY [07 00 00] CEMENTITIOUS BOARD B LEVEL 4 MECH T.O.F.F. 55'-0" (251'-6" BCVD) EXTERIOR INTERIOR 1 1/2" INTUMESCENT, FIRE PROOFED, AND GALVANIZED STEEL FRAMING. SEE STRUCT. DWG [07 00 00] FIBER REINFORCED HRA WATERPROOFING MEMBRANE ADHERED TO ROOF COVER BOARD [07 00 00] 2" FOAMGLAS INSULATION/IGNITION BARRIER. REF ROOF PLAN [07 00 00] 1/2" DRAINAGE BOARD MTL-04 [07 00 00] 1/2" ROOF COVER BOARD SUBSTRATE ADHERED TO HIGH DENSITY TAPERED RIGID INSULATION WITH ALL BOARD JOINTS PRE-STRIPPED WITH NEOPRENE/HRA [07 00 00] TAPERED HIGH DENSITY RIGID FOAM INSULATION. THICKNESS AS DEFINED BY 1/8" TO THE FOOT SLOPE FROM DRAIN ELEVATION PER ROOF PLAN DRAIN ELELVATION CHART MTL-04 GL-01 AESS MULLION PT-16 EXTERIOR WOOD SOFFIT TO MATCH SC IN TYPE, DIM., COATING, AND FINISH, TYP. WOOD OVER AB OVER 5/8" GYP SHEATING AND CFMF STUDS. KERF SAW CUT JOINT BETWEEN BOARDS TYP WIND LOAD BRACKET, SPIGOT STYLE REMOVABLE WALL PANEL EWS-05A ON SS Z CLIPS ON GALV STEEL 3"X5"X5/8" STEEL ANGLES SECURED W/ SS BOLTS STEEL ANGLES REMOVABLE INTUMESCENT, FIRE PROOFED, AND GALVANIZED STEEL FRAMING. SEE STRUCT. DWG 2 1/2" X 3/16" GALV STEEL GRATE W/ STEEL STRUCTURE SUPPORT. SEE STRUCT. DWG AND ACCESS HATCH AT LADDER [07 62 00] SS FLASHING EWS-01 CW CONNECT TOP OF MULLION TO DECK ABOVE W/ DEFLECT CONNECT CONT, SECTURE SHEET SILICONE AB TRANSITION TO DECK. BOTH SIDES PT SOLID BLOCKING CURB ANCHOR BOLT TO DECK WRAP ROOF MEMBRANE OVER CURB, LAP AB @ WALL, TERM, WITH TERM BAR. RUN CONTINUOUS. HEMMED EDGES. FLASHING OVER TOP OF CURB SECURE SHEET SILICONE TRANSITION TO CW, AND CONNECT TO AB ABOVE. PROVIDE SHEET SILICONE AMOUNT TO ALLOW FOR MOVEMENT TYP. AB UP BEHIND FASCIA, LAP UNDER ROOF MEMBRANE ON BACK OF FASCIA 8" MIN 1/8" SLOPE 2 7/8" [07 00 00] PRECAST CONCRETE PAVER ON PADS STEEL FRAMING. LAP MEMBRANE FLASHING OVER AB AT ALL SIDES OF PENETRATION. SEAL AT PERIMETER TYP. WRAP GALV. STEEL SUPPORT W/ MEMBRANE FLASHING. TERM. W/ SS CLAMP AND SEAL AT EDGES TYP. T.O.F CL.JT. 2 5/8" ALUMINUM PLATE RAINSCREEN ON THERMALLY BROKEN GIRT SYSTEM 1'-7 1/4" 5/8" EXTERIOR GRADE GYP SHEATHING ON CFMF 6" STUDS W/ 2" BATT INSULATION [07 21 00] 4" MINERAL WOOL INSULATION INTUMESCENT, FIRE PROOFED, AND GALVANIZED STEEL FRAMING. SEE STRUCT. DWG 2'-6" WRAP HRA AND VB UP AND OVER CURB UNDER SS FLASHING. WARP AB UP VERTICAL FASCIA TERMINATE AB LAPPING UNDER HRA MEBRANE WITH TERM. BAR COL SEPARATING STEEL TYP. 1" HIGH WALL VENTS [07 00 00] AIR BARRIER CONTINUOUS AB BELOW SHEATHING. LAP TRANSITION SILICONE AT PARTITION HEAD TYP. MTL-02 THERMAL SHIM REF A560 FOR TYP FASCIA LEVEL 4 T.O.F.F. 45'-0" (241'-6" BCVD) B MIN WOOL TYP. 1'-6" MIN 4" 3" 12" MIN MTL-16 MTL-04 [07 21 00] 4" MINERAL WOOL INSULATION [07 00 00] AIR BARRIER [07 00 00] 2" FOAMGLAS INSULATION/IGNITION BARRIER. REF ROOF PLAN [07 00 00] 1/2" DRAINAGE BOARD [07 00 00] FIBER REINFORCED HRA WATERPROOFING MEMBRANE ADHERED TO ROOF COVER BOARD [07 00 00] TAPERED HIGH DENSITY RIGID FOAM INSULATION. THICKNESS AS DEFINED BY 1/8" TO THE FOOT SLOPE FROM DRAIN ELEVATION PER ROOF PLAN DRAIN ELELVATION CHART CAST-IN-PLACE CONCRETE SLAB - REF. STRUCTURAL DRAWINGS MTL-16 INTUMESCENT, FIRE PROOFED, AND GALVANIZED STEEL FRAMING. SEE STRUCT. DWG WTR-01 REMOVABLE WALL PANEL EWS-05A ON SS Z CLIPS ON GALV STEEL 3"X5"X5/8" STEEL ANGLES SECURED W/ SS BOLTS STEEL ANGLES REMOVABLE MTL-17 FIRE SAFING AND SMOKE SEAL GALVINIZED STEEL PLATE COVER REMOVABLE ALUMINUM CEILING PANEL GALVANIZED STEEL BACKPAN MTL 17 VARIES 12" MIN [07 00 00] VAPOR BARRIER [07 00 00] CEMENTITIOUS BOARD 5/8" EXTERIOR GRADE GYP SHEATHING ON CFMF 6" STUDS W/ 2" BATT INSULATION CL.JT. REMOVABLE PANEL COODINATE CONSEALED WIRING IN STEEL PROFILES REFERENCE RCP FOR FINISHES 3/4" STEEL THICKNESS AT TRANSOM FOR FIRE RATING 3" CONCRETE SLAB W/ SNOW MELT. SEE MECH. DWGS. TYP SILL OF HM DOOR W/ HM JAMB RETURNS BEYOND RUN ROOF MEMBRANE FLASHING UP WALL. MIN 8". LAP AB OVER AND TERMINATE W/ TERM. BAR 2'-6" 1'-7 1/4" MAX 4" 1/8" SLOPE [07 21 00] 2" MINERAL WOOL INSULATION [07 21 00] 4" MINERAL WOOL INSULATION COL 8/26/2022 3:51:13 PM Autodesk Docs://5190 JHU Student Ctr/5190_JHUHSC_ARSB_MAIN_R22. rvt JOHNS HOPKINS STUDENT CENTER SCALE 1 1/2" = 1'-0" 1SECTION DETAIL_MTL 3SCALESECTION SCALE 3" = 2SECTION SCALE 1 1/2" = 1'-0" 8
MECHANICAL WELL @ FASCIA SCALE 1 1/2" = 1'-0" 7SECTION DETAIL_WEST MECHANICAL WELL @ SHADOW BOX SILL NOTE: ALL EXPOSED STRUCTURAL STEEL TO RECEIVE INTUMESCENT COATING TYP. SCALE 1 1/2" = 1'-0" 9SECTION DETAIL_ FIN TUBE @ SCALE 1 1/2" = 1'-0" 6SECTION DETAIL_ FIN TUBE @ INTERM. SLAB MIN CONDITION 12
8SECTION DETAIL_WEST MECHANICAL WELL @ FASCIA
SECTION DETAIL_WEST

leHigH university betHleHem, Pa

university center nortH PlintH feasibility study

Lehigh University’s campus sits on the north slope of a hill overlooking the town of Bethlehem, Pennsylvania. The 19th century University Center building that sits on top of a 50 ft. slope has become a legacy image and symbol of the university over the years. The client seeks to expand the building’s program while making the new addition unobtrusive. Using the site to our advantage, the design concept is to embed the addition into the landscape with the roof to function as green space. The expanded program would be dining/event space which would be accessible from the old building and visually connected to exterior green space. My responsibility is to assist the senior Architect with design charrette and prepare the graphics for client presentations.

Rhino | AutoCAD | Illustrator
rendering by design distill 13

LEVEL 2

LEVEL 3

LEVEL 4

PLINTH DINING LEVEL

LOWER LEVEL + CONNECTION TO PLINTH DINING

LEVEL 1 (PLINTH ROOF)

14
a section b section c a c c a b b 15
EXISTING UNIVERSITY CENTER TREMBLEY DR. UNIVERSITY DR. GREAT LAWN AYCE DINING WALK (REVISED) NORTH LAWN section

yale new Haven HosPital greenwicH, ct

inPatient bed reallocation

The bed reallocation project is the secondto-last piece of the puzzle in a large-scale plan to increase single room capacity for YNHH Greenwich Hospital. This suite acts as a catalyst for the renovation of single rooms for that entire floor. I was involved from the Design Development to Construction Document phase. I assisted in designing the reception desk area, layout of treatment rooms per code, and creating details for the drawings.

Revit | Photoshop
16
17
view upon entry
XC XD XE XF X1 PAT RM 1 2-2201 PAT RM 2 2-2202 PAT RM 3 2-2203 PAT TLT 3 2-2203A PAT RM 4 2-2204 PAT TLT 2 2-2202A PAT RM 5 2-2205 PAT TLT 4 2-2204A PAT RM 6 2-2206 ADA PATIENT RM 7 2-2207 PAT RM 8 2-2208 PAT TLT 8 2-2208A PAT TLT 9 2-2209A PAT RM 9 2-2209 PAT RM 10 2-2210 PAT TLT 11 2-2211A PAT RM 11 2-2211 ADA PATIENT TLT 7 2-2207A EQ STOR 2-2228 OFFICE 2-2237 STAFF TLT 2-2235 SOILED WKRM 2-2254 STAFF LOUNGE 2-2241 LCKRS DBL TIER (40) 2-2239 STAFF TLT 2-2234 OFFICE 2-2238 EQ ALC 2-2227 MEDS RM 2-2249 EQ ALC 2-2248 WKSTN 2-2253 WKSTN 2-2257 WKSTN 2-2226 EQ ALC EMG 2-2229 1' - 2" ALCOVE 2-2231 HAND WASH SINK 2-2247 A807 6' 0" EQ ALC 2-2256 MEDITATION/ CONSULT 2-2262 PATIENT/FAMILY LOUNGE 2-2263 NOUR 2-2260 OFFICE 2-2242 (P.I.C) PATIENT INFORMATION CENTER 2-2245 A700 A700 8 9 10 11 A700 1 EQ ALC 2-2244 OFFICE 2-2243 OFFICE 2-2236 CLN SPLY LINEN 2-2252 P.TUBE 2-2246 WKSTN 2-2258 PAT TLT 1 2-2201A A707 CORR 2-2255 STOR 2-2259 6 A805 14 11 12 13 A806 A806 8 A804 1 A806 11 A805 A805 5 STOR 2-2251 STOR 2-2250 STOR 2-2225 A801 3 2A3-0P 2A3-0 2A3-0 2A3-0P 9A6-0 2-2200 HM N/N 22.0 11 9A3-0 9A2-0 1A3-1 9A3-0 1A3-0P 1A3-1 1A6-1 1A3-0P 1A3-0P 1A3-0P 3A6-0P 1A3-0P CLR 4'7" 1' 0" 1A3-1 9A3-0 ALIGN ALIGN HOLD 8' 0" PASSAGE 2-2240 1A3-0P 9A2-0 A801 2 HAND WASH SINK 2-2200C HAND WASH SINK 2-2200A HAND WASH SINK 2-2200B HAND WASH SINK 2-2200D HAND WASH SINK 2-2200E A806 10 13 H 1 A102-B PAT TLT 5 2-2205A A801 A806 14 A803 A803 A804 13 12 11 14 A801 10 11 A804 10 7 8 9 A804 17 18 15 16 A802 4 2 3 A702 11 10 A702 5 4 3 6 A803 14 16 15 A803 PAT TLT 10 2-2210A CORR 2-2215 PASSAGE 2-2230 PASSAGE 2-2233 A701 6 A701 10 5 4 7 11 A701 1 A801 12 A706 1 A702 1 A700 14 13 12 A701 13 14 15 A805 2 3A6-0P 2A6-0 11A3-0 3A6-0P 1A6-0P 2A6-0 11A3-0 9A3-0 9A3-0 9A3-0 11A3-0 1A6-0 9A3-0 9A3-0 3A6-0P 3A6-0P 3A3-0P 3A6-0P 3A6-0P 9A3-0 2A6-0 9A3-0 9A3-0 11A3-0 2A6-0 1A6-0 1A6-0 11A3-0 1A6-0 1A6-0 2A6-0 11A3-0 1A6-0 9A3-0 9A2-0 9A3-0 3A6-0P 3A6-0P 9A3-0 9A3-0 9A3-0 9A3-0 9A3-0 1A3-0P 1A6-0 1A6-0 1A3-1 9A6-0 9A3-1 9A3-0 1A3-1 6A4-1 2A3-B 9A3-0 1A3-B A805 8 9 2-2201 PL 20.1 AL/GL 2-2201A FG 21.0 AL/GL 2-2202A FG 21.0 2-2202 PL 20.1 2-2203 PL 20.1 AL/GL 2-2203A FG 21.0 AL/GL 2-2204A FG 21.0 2-2204 PL 20.1 2-2205 PL 20.1 AL/GL 2-2205A FG 21.0 AL/GL 2-2206A FG 21.0 2-2206 PL 20.1 2-2207 PL 20.1 2-2207A 2-2208 PL 20.1 AL/GL 2-2208A FG 21.0 1 2-2209 PL 20.1 AL/GL 2-2209A FG 21.0 2-2210 PL F 20.1 AL/GL 2-2210A FG 21.0 2-2211 PL 20.1 AL/GL 2-2211A FG 21.0 1 2-2228A PL 12.0 2-2230 HM 12.0 2-2235 PL 9.1 2-2236 PL 4.0 2-2237 PL 4.0 2-2238 PL 4.0 2-2241 PL N 2.0 2-2242 PL 4.0 1 2-2243 PL N 4.0 2-2262 2-2260 PL 12.1 2-2254 2-2255 HM F/F 12.2 11-U 2-2252 PL 12.0 2-2252A PL 12.0 2-2249 PL G 12.1 2-2249A PL G 12.1 15 1' 3"1'3" ALIGN 10'0 1/2" H O L D 80 1A3-1 1A3-0P 1A6-0 1A6-0 1A6-0 1A6-0 1A6-0 1A6-0 1A6-0 1A3-0P 1A3-0P PAT TLT 6 2-2206A 12' 0" 8' - 5" 7' - 11" 14' 8" 6' - 0 1/2" 1A3-0P 1A3-0P 1A3-0P 1A3-0P 1A3-0P 1A3-0P 1A3-0P 1A3-0P 1A3-0P 9A2-0 9A3-0 1A3-0P 1A3-0P 1A3-0P 1A3-0P 9A3-0 9A3-0 9A3-0 9A3-0 9A3-0 9A3-0 1A3-0P 1A3-0P 9A3-0 9A3-0 1A3-0P 1A6-0 9A3-0 9A3-0 1A6-1 1A6-0 1 34 ALIGN 9A3-0 1A3-B 1A3-0P 9A3-0 9A3-0 9A3-0 9A3-0 9A3-0 9A3-0 1A3-B 9A3-0 9A3-0 A953 5 TYP 9A3-0 9A3-0 9A3-0 9A3-0 9A3-0 A702 12 2-2239 1A6-0P H O L D 60 4' 5" A805 10 A953 3 TYP A806 12 11 71 1 2 12 EQUIP STOR 2-2261 2-2261 PL 12.0 2-2234 PL 9.1 1 A702 7 7A2-2 40 1A6-0 30' 0" 30' - 0" 30' 0" 27' 6" 3 00 3 00 1 24 A802 1 24 50 1 30 16 1 43 1 30 16 1 30 13 13 62 34 5' - 4" 13' 11 1/2" 3' 8" 1' 0 1/2" 1A3-0P H O L D 60 96 HOLD 3' 6" 4' - 4" 3' 6" 78 21 2' 2" 2' 9" 6' 0" 6' 0" 10' 4" 6' 0" 4' 1 1/2" 1' 4" 3' 11 1/2" 5' 10" 2' - 4 1/2" 2' 4 1/2" 12' 11" 1' 6" 13' - 0" 1' 3" 1' - 3" 13' 0" 1' 6" 13' 0" 1' - 3" 1' 3" 13' 0" 1' 6" 14' 3" 9' 2" 10' 4" 9' 3 1/2" 4" 6' 0 1/2" 7" 10' - 0 1/2" 6' 5" 3' 8 1/2" 3' 8" HOLD 6' - 0" 6" 2' 10" 1' 10" 7" VW-1 FEC FEC FEC FEC R 69 - 11 5 8" R 11 - 9 3/4" 94 96 ALIGN ALIGN ALIGN FEC 18' 4" WORK POINT 9A3-0 A102-A 2 71' 11 1/2" 9A3-0 A805 A953 2 1 A954 2 A954 X4 XD 1' 2" 1' 4 1/2" 12 12 24 12 4" C SHEPLEY BULFINCH Approver SCALE 1/4" = 1'-0" SECOND FLOOR PART PLAN - EAST 1 18
X2 X3 X4 X5
CUB C AND CTRK, TYP P SLIDING GLASS DOOR FILM BY OWNER NIGHT LIGHTING ALIGN CUB C AND CTRK, TYP 4 A953 TYP 12 A952 TYP 42" TV EQ EQ 4 A923 WP-5 PL-1 SSM-2 BACK PAINTED GLASS PL-1 13 A952 TYP PL-1 8 A952 TYP 11 A952 TYP 11 A952 TYP 6 A952 U P 6"10" CLR 11" PATIENT BULLETIN BOARD 6 E Q E Q 42" TV EXISTING EXTERIOR WINDOW EXISTING EXTERIOR WINDOW P P EQ EQ EQ LS1 E E 5 A952 TYP 4 A952 TYP 9 A952 TYP 3 A952 TYP 2 A952 TYP 1 A952 TYP PL-1 3FORM U TD TH 46 31 0 32 16 PE U TD 37P P NC SA OV A E CLR 3" CLR 3" 3" 8" 10" 10 AI101 TYP TL-5 CUT AT CEILING WHEREVER IT ENDS TL-2 TL-5 TL-B2 TL-5 TL-2 6 A953 GRAB BAR NURSE CALL WITH PULL STRING SHAD SHOWER CURTAIN TL-5 CUT AT CEILING WHEREVER IT ENDS TL-2 TL-5 TL-B2 TL-5 TL-2 TOWEL BAR COAT HOOK EQEQ 50 6 SA LS1 PTD TL-5 CUT AT CEILING WHEREVER IT ENDS TL-2 TL-5 TL-B2 TL-5 TL-2 TL-5 CUT AT CEILING WHEREVER IT ENDS TL-2 TL-5 TL-B2 TL-5 TL-2 6 A953 7 A953 SD GFI 31 0 X3 XE XF A701 6 A701 10 4 7 8 11 51 0 15' 0 3/4" ALIGN ALIGN A701 13 14 15 ALIGN PAT RM 5 2-2205 PAT TLT 5 2-2205A PAT RM 5 2-2205 26 11 1 1 / 2 1' 1" 4' 0 1/2" 1' 10 1/2" 13 A953 5 TYP A953 3 TYP 12 1 1 1' 3" 1' - 0 1/2" 4' 0" 8" 6' 10 1/2" 1' - 2" 27 1 2 H O L D 26 17 1 / 2 11 1 00 13 16 16 71 H O L D X3 XE XF PAT TLT 5 2-2205A PAT RM 5 2-2205 CENTER OF BED AND HEADWALL O N T O I L E T C E N T E R 40 ACT 9' 0" GWB 7' 10" GWB 7' 10" E Q E Q 3' 0" 4 A951 GWB 9' 0" 8 A951 TYP 1' 2" GWB 11' 5/8" RADIANT PANEL 2 A951 TYP 21 1 SHOWER CURTAIN 1' 6" 1' - 6" 3" CLG MTD SECURITY CAMERA CUB C AND CTRK, TYP 24 14 108 3 A922 TRASH, 23 GAL 1' 4" 2' 2" ANY OTHER SIZE, IT HAS EITHER BEEN REDUCED OR ENLARGED. TAKE APPROPRIATE PRECAUTIONS ACCORDINGLY. DRAWING INFORMATION OWNER CONSULTANT STAMP PROJECT INFORMATION ISSUANCES NO.DATEDESCRIPTION A701 TYP ROOM 11/01/19 5 Perryridge Greenwich, JOB NO: INPATIENT REALLOCATION SCALE 3/8" = 1'-0" TYP EAST ORTHO PAT RM ELEV A 4 SCALE 3/8" = 1'-0" TYP EAST ORTHO PAT RM ELEV B 5 SCALE 3/8" = 1'-0" TYP EAST ORTHO PAT RM ELEV C 6 3/8" = 1'-0" EAST ORTHO PAT RM ELEV D SCALE 3/8" = 1'-0" TYP EAST ORTHO PAT TLT ELEV A 8 SCALE 3/8" = 1'-0" TYP EAST ORTHO PAT TLT ELEV B 9 SCALE 3/8" = 1'-0" TYP EAST ORTHO PAT TLT ELEV C 10 3/8" = 1'-0" EAST ORTHO PAT TLT ELEV D SCALE 1/2" = 1'-0" TYP EAST ORTHO PAT RM PLAN 1 SCALE 1/2" = 1'-0" TYP EAST ORTHO PAT RM RCP 2 EAST ONC PAT RM AXON SCALE 3/8" = 1'-0" TYP EAST ORTHO PAT RM VEST ELEV B 13 SCALE 3/8" = 1'-0" TYP EAST ORTHO PAT RM VEST ELEV C 14 SCALE 3/8" = 1'-0" TYP EAST ORTHO PAT RM VEST ELEV D 15 SCALE 3/8" = 1'-0" TYP EAST ORTHO PAT RM VEST ELEV A 12 EXISTING EXTERIOR WINDOW P EQ EQ WALL-MOUNTED LIGHT LS1 E E 5 A952 TYP 4 A952 TYP 9 A952 TYP 3 A952 TYP 2 A952 TYP 1 A952 TYP PL-1 3FORM U TD TH 46 31 0 32 16 PE U TD 37P P NC SA CHAIR ALARM BLOOD PRESSURE OV A E CLR 3" CLR 3" 3" 8" 10" 10 AI101 TYP LS1 TL-5 CUT AT CEILING WHEREVER IT ENDS TL-2 TL-5 TL-B2 TL-5 TL-2 6 A953 7 A953 SD SST SHELF MIRROR WALL SCONCE TRASH CAN (SLIM JIM) GFI 31 0 XE XF 1' 4" 2' - 2" THE ORIGINAL OF THIS DRAWING IS 30" X 42". IF THIS COPY IS ANY OTHER SIZE, IT HAS EITHER BEEN REDUCED OR ENLARGED. TAKE APPROPRIATE PRECAUTIONS ACCORDINGLY. 11/4/2019 7:12:31 PM C:\Users\Egray\Documents\4995.000 GHC INPATIENT BED STUDY_BP 5_ Inpatient_EGray.rvt INPATIENT BED REALLOCATION Author Checker Approver SCALE 3/8" = 1'-0" TYP EAST ORTHO 6 SCALE 3/8" = 1'-0" TYP EAST ORTHO PAT RM ELEV D 7 SCALE 3/8" = 1'-0" TYP EAST ORTHO 10 SCALE 3/8" = 1'-0" TYP EAST ORTHO PAT TLT ELEV D 11 SCALE TYP EAST ONC PAT RM AXON 3 SCALE 3/8" = 1'-0" TYP EAST 14 SCALE 3/8" = 1'-0" TYP EAST ORTHO PAT RM VEST ELEV D 15 footer view header view CUB C AND CTRK, TYP P SLIDING GLASS DOOR FILM BY OWNER NIGHT LIGHTING ALIGN 42" TV WP-5 PATIENT BULLETIN BOARD 6 TL-5 CUT AT CEILING WHEREVER IT ENDS TL-2 TL-5 TL-B2 TL-5 TL-2 6 A953 GRAB BAR NURSE CALL WITH PULL STRING SHAD CURTAIN CEILING ENDS X3 XE XF A701 6 A701 10 4 7 8 11 51 0 15' 0 3/4" ALIGN ALIGN A701 13 14 15 ALIGN PAT RM 5 2-2205 PAT TLT 5 2-2205A PAT RM 5 2-2205 26 11 1 1 / 2 1' 1" 4' 0 1/2" 1' - 10 1/2" 13 A953 5 TYP A953 3 TYP 12 1 1 1' - 3" 1' - 0 1/2" 4' 0" 8" 6' 10 1/2" 1' 2" 27 1 2 H O L D 26 17 1 / 2 11 1 00 13 16 16 71 H O L D 24 14 108 TRASH, 23 GAL DRAWING INFORMATION OWNER CONSULTANT STAMP N PROJECT INFORMATION ISSUANCES NO.DATEDESCRIPTION A701 TYP EAST PATIENT ROOM BID PACK 5 11/01/19 5 Perryridge Road Greenwich, CT 06830 JOB NO: 4995.007 INPATIENT BED REALLOCATION SCALE 3/8" = 1'-0" TYP EAST ORTHO PAT RM ELEV A 4 ELEV B SCALE 3/8" = 1'-0" TYP EAST ORTHO PAT TLT ELEV A 8 B SCALE 1/2" = 1'-0" TYP EAST ORTHO PAT RM PLAN 1 RM VEST ELEV B SCALE 3/8" = 1'-0" TYP EAST ORTHO PAT RM VEST ELEV A 12 19

wake forest university winston-salem, nc

The façade study was done as part of a larger campus plan to expand dining, engage students, and foster connectivity between academic and student life. Tribble Hall was chosen for its location – in between student life buildings and academic buildings. It is currently an academic building for classrooms and offices, but it is inaccessible for all and inefficient for its program.

The Tribble Hall dining study investigated three options with program adjacency diagrams and façade designs. The façade study resulted in two new schemes and one renovation scheme. The new schemes offer visual and physical connectivity to the quad using large windows with an entrance on the ground level and a balcony on the upper level. The renovation scheme keeps the two wings as an homage to the campus architecture but places a new core to face the north plaza. All the proposed façade designs consist of a modern look, but still respect the campus architecture. I was actively involved in the program relocation, façade design, visual representation, and client presentation.

tribble Hall facade study
new scheMe Modern approach 20
Sketch Up | Photoshop | Hand Sketch
new scheMe respecting exisiting architecture on caMpus
21
renovation scheMe preserving existing two wings

risk strategies cHicago, il

office buildout

Risk Strategies Company, Inc is an insurance company that went through the process of rebranding their logo and workspace image. The tenant acquired 10,500 sq. ft. of buildout space in the heart of downtown Chicago. As part of the team chosen to work on the project, I assisted with the space plan, construction document set, permit application, finishes scheme, and client presentation. We were able to meet the client’s goal of designing a modern office, creating a unique work environment, and increasing employee’s interaction. Additionally, we set a workplace standard to be used in future buildouts.

reception area
AutoCAD pantry 22
reception area
office
23
pantry
conference rooM

leonard dental grouP cHicago, il

Revit

clinic buildout

Ashland Dental consisted of two offices in Teamsters City, Chicago. In the process of expanding, the client rebranded to Leonard Dental Group and obtained a new office buildout of 5,600 sq. ft. In this project, I was involved from the schematic design phase to construction administration phase. I drafted space plans, construction documents set, picked finishes and furniture, created the client presentation, attended construction meetings, and acted as a liaison between vendors and the client. We were able to exceed the client expectations and stayed under budget at $1 million while offering a unique modern look.

UP FD FD FD FD Crown Lab 01-115 Treatment Room 01-110 Treatment Room 01-109 Toilet Room 01-114 Equipment Room 01-136 Treatment Room 01-131 Fitness Center 01-133 Lounge 01-135 10' - 2 3/8" Treatment Room 01-128 Treatment Room 01-129 Treatment Room 01-130 Open Office 01-132 Toilet Room 01-134 Utility/ Supply Room 01-111 Adjustment Lab 01-117 Laundry 01-113 Pantry 01-112 SLIDING DOOR SLIDING DOOR ± 10' 3 1/4" ± 6'-7" OPEN SHELVES E
A Reception from Entry 24
reception desk
CHICAGO DESIGN NETWORK 850 West Jackson Blvd. Suite 850 Chicago, Illinois 60607 3D.1 Rendering Views 17 2120.01 01/12/2018 Leonard Dental Group Leonard Dental Group 325 South Paulina Street Chicago, IL 60612 A Reception from Entry 2 Reception Area 01-101 - Reception Desk Millwork consultation area treatMent rooM 25

The purpose of the study was to address the pedestrian/vehicular circulation, visibility, and accessibility of the existing breezeway. I led the design effort and the design team in developing four scenarios to present to the university. The red scheme creates a two story opening through the middle section of Krieger Hall. It is the most expensive scheme but addresses the major underlying conditions of visibility, accessibility, and overall experience. It consists of moving the loading dock up north to create a loading zone with the Brody Learning Commons, thus separating the zone from pedestrians. The scheme is the least intrusive in terms of program – affecting minor program that can be easily relocated. Looking holistically on all four schemes, the outcomes outweighed the cost of this scheme compared to the others which made it the most favorable.

Rhino | Sketchup | Enscape | Photoshop
26
27
view froM quad
pedestrian vehicular
28
view froM broady view froM quad

displaced prograM axon proposed prograM axon

office:

level g: 508 sf

level 1: 721 sf

study services:

level 1: 1,762 sf

research lab:

level g: 960 sf

level 2: 801 sf

level 3: 691 sf

flat floor rooM:

level 1: 989 sf

vertical circulation:

elevator: lg - l3

convenience stair: b - l1

loading dock:

level g

Mechanical:

level 1: 64 sf

total displaced

prograM: 6,432 sf

re-planned prograM area:

level g: 866 sf

level 1: 2,637 sf

level 2: 801 sf

level 3: 691 sf

existing convenience stair reMoved. new stair connects the baseMent to existing egress stair at l1. relocated loading dock to exisitng breezeway

total re-planned prograM: 4,995 sf

study services

office research lab

flat floor rooM new elevator

vertical circulation

loading dock

Mechanical existing breezeway existing entry

loading dock

vertical circulation new intervention re-planned prograM existing krieger entry new entry

prograM assessMent
29
VANLIM MA vanlimma26@gmail.com | (978)-319-7744

Turn static files into dynamic content formats.

Create a flipbook
Issuu converts static files into: digital portfolios, online yearbooks, online catalogs, digital photo albums and more. Sign up and create your flipbook.