Vanlim Ma's Portfolio

Page 1

VANLIM
2023
MA

16

20

professionAl projects wAke forest university tribble hall facade study 24

4 26 28 30

34 38

lehigh university north plinth feasibility study

yAle new hAven hospitAl inpatient bed reallocation

johns hopkins university hopkins student center overview (hsc) hsc | roofs and envelope hsc | visual Mockup (vMu) hsc | technical drawing risk strAtegies office buildout leonArd dentAl group clinic buildout johns hopkins university krieger breezewall study

ABX Architecture Boston eXpo designing and building the pavilions technicAl drAwing section details and elevation

2

40 50

hArold wAshington liBrAry designing the new public library greAt lAkes educAtion center universal architecture

AcAdemic projects 3

johns hopkins university BAltimore, md

Revit

Design Architect: BIG Architect of Record: Shepley

hopkins student center

The Hopkins Student Center is a $250 million LEED Platinum Mass Timber project. With 150,000 sq. ft. and 29 roofs, the building is a social hub consisting of non-academic programs such as a large central campus living room, a variety of social spaces, community lounges, art and enrichment spaces, and dining options.

4
rendering By Big rendering By Big
5
NORTH / SOUTH SECTION EAST / WEST SECTION LEVEL T.O.F.F. 0" (196'-6" BCVD) LEVEL T.O.F.F. 16'-0" (212'-6" BCVD) LEVEL T.O.F.F. 31'-0" (227'-6" BCVD) LEVEL T.O.F.F. 45'-0" (241'-6" BCVD) 17 TOP OF ROOF T.O.F.F. 78'-0" (274'-6" BCVD) A321 A321 14'-0" LEVEL MECH T.O.F.F. 55'-0" (251'-6" BCVD) LEVEL LOWER T.O.F.F. -4'-0" (192'-6" BCVD) OPEN SEATING 200G PERF. COILING MTL DOOR 1/4" SLOPE PUB/CAFE STAIR 8 LEVEL T.O.F.F. 0" (196'-6" BCVD) LEVEL T.O.F.F. 16'-0" (212'-6" BCVD) LEVEL T.O.F.F. 31'-0" (227'-6" BCVD) LEVEL T.O.F.F. 45'-0" (241'-6" BCVD) 1 2 4 6 7 8 9 10 11 12 16 17 18 TOP OF ROOF T.O.F.F. 78'-0" (274'-6" BCVD) A321 3 A321 14'-0" 14'-0" 14'-0" 14'-0" 14'-0" 14'-0" 14'-0" 14'-0" 14'-0" 14'-0" 14'-0" 14'-0" 14'-0" 14'-0" 14'-0" 14'-0" 14'-0" MEP 135MR6 PLATFORM 125KT2 SCENERY MAINTENANCE SHOP 111 OPEN SEATING 400A GAMING LOUNGE 303 GENERAL DINING SEATING 100 LEVEL MECH T.O.F.F. 55'-0" (251'-6" BCVD) OPEN SEATING 3 200 TENSION GRID CATWALK LEVEL LOWER T.O.F.F. -4'-0" (192'-6" BCVD) LARGE DIVISIBLE MULTIPURPOSE ROOM 8 210A 23'-0" 10'-0" 14'-0" 15'-0" 16'-0" 4'-0" HSC IT TECH SUPPORT 123 A513 2 STUDIO PERFORMANCE SPACE 105 5 A412 1 A413 13 14 15 A540 5 A540 3 5 CAMPUS LIVING ROOM 300 CORRIDOR 100L KITCHEN 125KT1 CORRIDOR 200E ELEV. 3/4 CONTROL ROOM 300CR CORRIDOR 200A LIVING ROOM 400 ACOUSTIC ISOLATION JOINT SEE NOTES ON A730 A540 4 1N/S SECTION A N/S SECTION B LEVEL 1 T.O.F.F. 0" (196'-6" BCVD) LEVEL 2 T.O.F.F. 16'-0" (212'-6" BCVD) LEVEL 3 T.O.F.F. 31'-0" (227'-6" BCVD) LEVEL 4 T.O.F.F. 45'-0" (241'-6" BCVD) A B C E F G H J K L M N P Q U TOP OF ROOF T.O.F.F. 78'-0" (274'-6" BCVD) 1 A322 2 A322 14'-0" 14'-0" 14'-0" 14'-0" 14'-0" 14'-0" 14'-0" 14'-0" 14'-0" 14'-0" 14'-0" 14'-0" 14'-0" 14'-0" 14'-0" 14'-0" 14'-0" 14'-0" MEP 135MR6 LEVEL 4 MECH T.O.F.F. 55'-0" (251'-6" BCVD) STUDENT ENGAGEMENT HUB 405 MULTIPURPOSE ROOM 15 (CREATIVE) 403 HSC PROGRAM & EVENT CENTRAL STORAGE 207 LARGE DIVISIBLE MULTIPURPOSE ROOM 7 210B PUB/CATERING KITCHEN 212KT2 LEVEL 1 LOWER T.O.F.F. -4'-0" (192'-6" BCVD) 23'-0" 10'-0" 14'-0" 15'-0" 16'-0" 4'-0" HUDDLE RM 407 1/4" SLOPE 1/4" SLOPE TECH STORE OFFICE 306 SOUND STUDIO 311 WC 314RR1 PUB/CAFE 315 CORRIDOR 314 CIRCULATION 212 LARGE DIVISIBLE MULTIPURPOSE ROOM 8 210A 2 A411 A411 A412 A413 1 A416 R S T A542 5 A542 6 A542 9 D SCALE 3/32" = 1'-0" 2E/W SECTION B 6

LEVEL T.O.F.F. 31'-0" (227'-6"

LEVEL T.O.F.F. 16'-0" (212'-6" BCVD)

LEVEL T.O.F.F. 0" (196'-6" BCVD)

TOP OF ROOF T.O.F.F. 78'-0" (274'-6" BCVD)

LEVEL T.O.F.F. 45'-0" (241'-6" BCVD)

LEVEL T.O.F.F. 31'-0" (227'-6" BCVD)

LEVEL T.O.F.F. 16'-0" (212'-6" BCVD)

LEVEL T.O.F.F. 0" (196'-6" BCVD)

LEVEL MECH T.O.F.F. 55'-0" (251'-6" BCVD) LEVEL

14'-0" S A571
A B C E F G H J K L M N P Q U
A322 2 A322 14'-0" 14'-0" 14'-0" 14'-0" 14'-0" 14'-0" 14'-0" 14'-0" 14'-0" 14'-0" 14'-0" 14'-0" 14'-0" 14'-0" 14'-0" 14'-0" 14'-0" 14'-0"
LOWER T.O.F.F.
BCVD) A517 2 A515 10 A517 FREE STANDING FIRE DEPARTMENT SIAMESE CONNECTION A522 A521 11 A413 3 A414 A415 2 A416 3 A416 1 A417 R S T D 5 A571 33'-8" 28'-0" 18'-11" 16'-0" 4 A543 SCALE 3/32" = 1'-0" NORTH ELEVATION SCALE 3/32" = 1'-0" SOUTH ELEVATION EAST ELEVATION SOUTH ELEVATION LEVEL T.O.F.F. 0" (196'-6" BCVD) LEVEL T.O.F.F. 16'-0" (212'-6" BCVD) LEVEL T.O.F.F. 31'-0" (227'-6" BCVD) LEVEL T.O.F.F. 45'-0" (241'-6" BCVD) 1 2 4 6 7 8 9 10 11 12 16 17 18 TOP OF ROOF T.O.F.F. 78'-0" (274'-6" BCVD) 2 A321 A321 A520 3 LEVEL MECH T.O.F.F. 55'-0" (251'-6" BCVD) LEVEL LOWER T.O.F.F. -4'-0" (192'-6" BCVD) 14'-0" 14'-0" 14'-0" 14'-0" 14'-0" 14'-0" 14'-0" 14'-0" 14'-0" 14'-0" 14'-0" 14'-0" 14'-0" 14'-0" 14'-0" 14'-0" 14'-0" 238'-0" A511 DOWNSPOUT COVER A516 A522 6 A412 A413 4 A413 A414 A414 13 14 15 3 5 5 A710
-4'-0" (192'-6"
BCVD) LEVEL T.O.F.F. 45'-0" (241'-6" BCVD) 1 2 4 6 7 8 9 10 11 12 16 17 18 TOP OF ROOF T.O.F.F. 78'-0" (274'-6" BCVD) A321 3 A321 14'-0" 14'-0" 14'-0" 14'-0" 14'-0" 14'-0" 14'-0" 14'-0" 14'-0" 14'-0" 14'-0" 14'-0" 14'-0" 14'-0" 14'-0" 14'-0" 14'-0" A510 LEVEL MECH T.O.F.F. 55'-0" (251'-6" BCVD) LEVEL LOWER T.O.F.F. -4'-0" (192'-6" BCVD) 238'-0" A512 12 A516 A521 7 A411 1 A412 13 2 A415 A417 14 15 3 5 78'-0" A710 SCALE 3/32" = 1'-0" 1EAST ELEVATION SCALE 3/32" = 1'-0" WEST ELEVATION N 99 Chauncy Street 4th Floor Boston, MA 02111 T:617.423.1700 F:800.934.9691 shepleybulfinch.com 3910 KESWICK ROAD, NORTH BUILDING, SUITE 3100 BALTIMORE, MD 21211 EXECUTIVE ARCHITECT OWNER CONSULTANT STAMP PROJECT INFORMATION DESCRIPTION DESIGN ARCHITECT 45 Main Street, 9th Floor Brooklyn, NY 11201 big.dk NORTHCHARLESST JOHNS HOPKINS STUDENT CENTER 3200 NORTH CHARLES STREET BALTIMORE, MD, 21218 JOB NO: 5190.000 99 Chauncy Street 4th Floor Boston, MA 02111 T:617.423.1700 F:800.934.9691 shepleybulfinch.com 3910 KESWICK ROAD, NORTH BUILDING, SUITE 3100 BALTIMORE, MD 21211 EXECUTIVE ARCHITECT OWNER CONSULTANT STAMP DESIGN ARCHITECT 45 Main Street, 9th Floor Brooklyn, NY 11201 big.dk 7

hsc | Roofs and EnvElopE

JOHNS HOPKINS STUDENT CENTER

Roof BUIldUp and oUTRIGGER BEaM sTUdY

The project consists of 29 Dowel Laminated Timber roofs with glazing and metal panel envelope. Each roof comprised of outrigger steel beams, water and thermal proofing layers, drainage penetration, mechanical penetration, mechanical well, roof ladder, and more.

My responsibility is to study the roofs and envelope, identify, and coordinate with internal and external consultants to solve unique detail conditions while preserving the design intent.

One of the many challenges we face on the project is maintaining water and thermal proofing with the height of the outrigger beams required by the roof type and size. The trick is to meet the design intent of specified roof fascia height and clerestory curb clearance. Any new variable in roof structure requires rigorous study and problem-solving on the roof to ensure that the roof functions properly while meeting code requirement and design intent.

Revit
ROOF 1 ROOF 3 ROOF 2 ROOF 4 ROOF 5 ROOF 7 ROOF 6 ROOF 11 ROOF 14 ROOF 8 ROOF 12 ROOF ROOF 13 ROOF 16 ROOF 19 ROOF 22 ROOF 24 ROOF 18 ROOF 26 ROOF 21 ROOF 28 ROOF 27 ROOF 15 ROOF 17 ROOF 20 ROOF 25 ROOF 29 ROOF 23 ROOF 10
SK01 ROOF AXON WITH HSS STEEL BEAM 1 8
1.4 16 17 18 15 8.1 P Q R S T 1.4 SK02E 1/8" = 1'-0" ROOF SECTION_R22 @ CURB 3 SK02E 1/8" = 1'-0" ROOF SECTION_R22 4 LEVEL 3 T.O.F.F. 31'-0" (227'-6" BCVD) 16 17 18 15 8.1 P Q R S T 1.4 SK02E 1/8" = 1'-0" ROOF SECTION_R22 @ CURB 3 SK02E 1/8" = 1'-0" ROOF SECTION_R22 4 F.O.P. SCALE 1-1/2" = 1'-0" EWS 04 - TYP. HEAD DETAIL @ TYP. ROOF 5 F.O.P. MTL.04 F.O.P. SO-01 VARIES EWS-04 ASSEMBLY COLUMN BEYOND DEFLECTION TRACK EXT. MTL.01 SEE INT. SCOPE FOR FINISHES ALUMINUM PLATE RAINSCREEN ON THERMALLY BROKEN GIRT SYSTEM EXTERIOR GRADE SHEATHING ON CFS STUD WALL AIR WATER BARRIER SEMI-RIGID MINERAL WOOL INSULATION FAS-01 3 5/8" MTL.02 DRIP EDGE FAS-01 W.P. MEMBRANE SCALE 1-1/2" = 1'-0" EWS 04 - TYP. MECHANICAL LOUVRE 6 MTL.04 PV PANEL AND BALLAST RACK SYSTEM PAV.01 VARIES EXT. METAL PANEL RAINSCREEN AT MECH. WELL (EWS-05) MFAB-01 MTL.04 CL STRUCTURE F.O.P. VARIES MTL.01 PERFORATED ALUMINUM SHEET LVR.01 1/2" SCALE 1-1/2" = 1'-0" TYPICAL ROOF SYSTEM AND ROOF DRAIN (1/8" PER FOOT SLOPE) 8 SLOPE PER FT FIBER REINFORCED HOT FLUID APPLIED MEMBRANE WITH PROTECTION BOARD AIR BARRIER VAPOR RETARDER FULLY ADHERED TO SHEATHING PAV-01 CEMENTITIOUS COVER BOARD DRAINAGE MAT TAPERED XPS INSULATION CL WPS-01 ACOUSTIC TREATMENT, SEE INTERIOR SCOPE ABS-01 SCALE 1-1/2" = 1'-0" MECHANICAL WELL ROOF SYSTEM 10 SLOPE PER FT CONCRETE SLAB ALUMINUM PAN FLASHING MFAB-01 ROOF DRAIN, SEE PLUMBING LINE OF OVERFLOW DRAIN, SEE PLUMBING 3" FOAM GLASS INSULATION NOTES: 1. OVERBURDEN CONSISTS OF PAVERS OR METAL BAR GRATE ON PEDESTAL SYSTEM, OR PV PANELS ON BALLASTED RACK SYSTEM - SEE ROOF PLANS FOR EXTENT 2. ALL SUBSTRATE BOARD JOINTS TO BE PRE-STRIPPED IN WITH NEOPRENE PRIOR TO MEMBRANE INSTALLATION AS RECOMMENDED BY MANUFACTURER. 3. R-30 MIN INSULATION (FOAM GLASS AND XPS COMBINED) 4. ELECTRONIC LEAK DETECTION (ELD) SYSTEM WITH CONDUCTIVE MEDIUM BELOW MEMBRANE AS RECOMMENDED BY MEMBRANE AND ELD SYSTEM MANUFACTURERS. 5. SEE ROOF PLANS FOR EXTENT AND LOCATIONS OF FALL ARREST SYSTEM,
4'-0" SUMP AREA GROUTED SUMP PMMA PUMA FLASHING FILTER FABRIC SLOPE PER FT NOTE: SEE 8 A-560 FOR FASCIA ASSEMBLY AT 2X6, 2X10 AND 2X12 DLT ROOF DECKS CONTINUOUS SEALANT LINE AT SHEATHING TOP & BOTTOM WITH 2-LAYER AIR & VAPOR SEAL BETWEEN DLT LAMINATIONS WHERE DLT SPANS PERPENDICULAR TO FACADE LINE LINE OF DLT ACOUSTIC PROFILE T.O.FASCIA F.O.G. 2'-6" B.O.M. VARIES VARIES 5" MAX EXT. INT. CL STRUCTURE 3/4" U.O.SOFFIT SCALE 1-1/2" = 1'-0" EWS 03A/B - BASE CONDITION @ SCUPPER DRAIN 9 CL JT. VARIES SEE INT. SCOPE FOR FINISHES PAVERS ON ADJUSTABLE LEVELING PEDESTALS SLOPE PER FT. ROOF SCUPPER DRAIN GROUTED INTO SHEETMETAL SLEEVE, SEE PLUMBING PMR ROOF SYSTEM 3" GLASS FOAM INSULATION AIR BARRIER VAPOR RETARDER FULLY ADHERED W.P. MEMBRANE XPS INSULATION MFAB-01 Author Checker Approver KERF EDGE DLT WITHOUT ACOUSTIC ROUTING AT SOFFIT DLT ROOF DECK WITH PLYWOOD SHEATHING VERTICAL BLADE LOUVER 8" MIN. SLOPE PER FT. DIRECTION VARIES SUPPORT ANGLE FOR PERFORATED PANEL TAPERED XPS INSULATION COVER BOARD AIR BARRIER VAPOR RETARDER FULLY ADHERED TO SHEATHING SHEET MEMBRANE TIE-IN FROM DADO LINE TO AIR/WATER BARRIER LEVEL T.O.F.F. 45'-0" (241'-6" BCVD) 1.4 7.3 LEVEL T.O.F.F. 31'-0" (227'-6" BCVD) 16 17 18 15 8.1 P Q R S T 1.4 99 Chauncy Street 4th Floor Boston, MA 02111 T:617.423.1700 F:800.934.9691 shepleybulfinch.com 3910 KESWICK ROAD, NORTH BUILDING, SUITE 3100 BALTIMORE, MD 21211 EXECUTIVE ARCHITECT OWNER CONSULTANT PROGRESSPRINT NotforConstruction orRecording STAMP DESIGN ARCHITECT 45 Main Street, 9th Floor Brooklyn, NY 11201 big.dk 3/17/2022 11:02:42PM SK02E ROOF AXON_R22 2 SK02E ROOF AXON_R26 SK02E 1/8" = 1'-0" ROOF SECTION_R22 @ CURB 3 SK02E 1/8" 1'-0" ROOF SECTION_R26_CLEARANCE 7 SK02E 1/8" = 1'-0" ROOF SECTION_R22 4 roof 22 axon diagraM water/therMal proofing layers section diagraM a diagraM 1 digraM 2 diagraM 3 2x12 DLT ROOF DECK C 2x12 DLT ROOF DECK C PMR ROOF SYSTEM SCALE 1-1/2" = 1'-0" EWS 03A/B - TYP. BASE 1 SLOPE "1 PER AVERAGE SECTION AT FASCIA SECTION ROOF BUILDUP SECTION DIAGRAM C D E B A 2x12 DLT ROOF DECK C PMR ROOF SYSTEM SCALE 1-1/2" = 1'-0" EWS 03A/B - TYP. BASE CONDITION @ TYP. ROOF ASSEMBLY 1 SLOPE 1 8 PER FT. DIRECTION VARIES AVERAGE 8" T.O.FASCIA PMR ROOF SYSTEM SCALE 1-1/2" = 1'-0" EWS 03A/B - TYP. BASE CONDITION @ TYP. ROOF ASSEMBLY 1 SLOPE PER FT. DIRECTION VARIES AVERAGE 8" T.O.FASCIA SECTION AT FASCIA SECTION AT CLERESTORY CURB SECTION DIAGRAM C D E B A T.O.F H G F tiMber w/ sheating 4” insulation build up 1/8 in slope w/ ceMent board drain board and insulation fascia clearance 2x12 DLT ROOF DECK C PMR ROOF SYSTEM SCALE 1-1/2" = 1'-0" EWS 03A/B - TYP. BASE CONDITION 1 SLOPE PER FT. DIRECTION VARIES AVERAGE 2x12 DLT ROOF DECK C PMR ROOF SYSTEM SCALE 1-1/2" = 1'-0" EWS 03A/B - TYP. BASE CONDITION @ TYP. ROOF ASSEMBLY 1 SLOPE PER FT. DIRECTION VARIES AVERAGE 8" SECTION AT FASCIA SECTION AT CLERESTORY CURB ROOF BUILDUP SECTION DIAGRAM C D E B A T.O.F H G F top of wp to t.o.f top of insulation to t.o.f fascia clearance outrigger steel beaM drain a a 1 3 2 9
AND LIGHTENING PROTECTION SYSTEM.

hsc

visuAl mockup (vmu)

A-560 A-561

4

permit documentAtion scope design intent rendering By Big

9/11/2022 11:35:11 PM Autodesk Docs://5190 JHU Student Ctr/5190_JHUHSC_AR SB_MAIN_R22.rvt JOHNS HOPKINS STUDENT CENTER

LADDER TO ACCESS LOWER ROOF

PAINTED PANEL ENCLOSURE NECESSARY TO CLOSE OFF ROOF. COLOR: BLACK SUPPORT STRUCTURE AND FRAMING AS NECESSARY FOR FULL ENCLOSURE

WINDOW FOR VIEWING INTERIOR CLERESTORY CONDITION. SEE SECTION FOR DIM. LADDER VIEW WIINDOW TYP. HOLLOW METAL DOOR. AS REQUIRED.

REMOVABLE CABLE BRACING

A-560 A560 1 THE ORIGINAL OF THIS DRAWING IS 36" 48". IF THIS COPY IS ANY OTHER SIZE, IT HAS EITHER BEEN REDUCED OR ENLARGED. TAKE APPROPRIATE PRECAUTIONS ACCORDINGLY.

CIP CONC WALL PER STRUCTURE WALL CONSTRUCTION: -6" CFMF -5/8" SHEATHING (BOTH SIDES) -AIR BARRIER -EXTERIOR METAL FLASHING, PTD BLACK C TRENCH PANEL JT TO ALIGN W/ CENTERLINE OF EWS-01

FAS-01 EXTERIOR FASCIA MLT-03 PATH CONDITION (SEE L-SERIES) PER MVVA

TRENCH DRAIN. SEE 1/A560 LANDSCAPE CONDITION (SEE L-SERIES) PER MVVA

4SCALEVMU EXTERIOR -DETAILS 2SCALE 3D -VMU (PARTIAL) 1SCALE 3D -VMU (GLAZING SIDE) 3SCALE 3D -VMU -BACK

HARDSCAPE CONDITION (SEE L-SERIES) PER MVVA vM 10

Revit | Rhino
|
On such a large-scale and complex project like this one, it is essential to build a Visual Mockup (VMU). Portions of roofs 27 and 28 were designated to be built on site. Visually, the design team and client can assess and confirm glazing and roof detail, finishes, MEP routing, and many other unresolved DIAGRAM

ROLLER SHADES

REMOVABLE LINEAR LIGHT FIXTURE

CLT WALL

A-561 3 SIM A-550 A-561 2 SIM A-551 5 A-560 1 A-561 4 A-560 1 A-551 6 A-560 2 TYP A-945 7 & PER ROCKWELL A-551 1 A-551 A-945 3 -DETAILS 2SCALE 3D -VMU (PARTIAL) PAV-01 PV PANELS, ASSEMBLY, FRAME DIMENSION, ALIGNMENT, AND PANEL MATERIAL TO MATCH PROJECT INTENT SPRINKLER BRANCH, PAINTED. COLOR TBD DLT SPRINKLER MAIN, PAINTED. COLOR TBD TIMBER STRUCTURE, 1 FULL BAY AESS MULLIONS, PT 16 *LOW ROOM* TO SHOW PVDF OPTION 1, TBD *HIGH ROOM* TO SHOW PVDF OPTION 2,TBD CABLE BRACING INTERIOR FINISH MATERIAL #1, PER JHU GRL-01 REMOVABLE CABLE BRACING VIEW WINDOW OPENING THROUGH PARTITION AND CLT INTERIOR FINISH MATERIAL #2, PER JHU MLT-17 MEZZANINE LEVEL SLAB TYP. HOLLOW METAL DOOR. AS REQUIRED. OPENING IN INTERIOR PARTITION BETWEEN ROOMS. WHITE PAINTED GYP FINISH, OR ALT FINISH PER JHU ROLLER SHADES NON-STRUCTURAL
MTL-15 INTERIOR SOFFIT COVER
DROPPED CEILING
CONDUIT ROUTING FROM INTERIOR SOFFIT TO DLT TRENCH DRAWING INFORMATION KEY PLAN PROJECT INFORMATION ISSUANCES NO. DATE DESCRIPTION A501A ENCLOSURE VMU 08/26/2022 JOHNS HOPKINS STUDENT CENTER 3200 NORTH CHARLES STREET BALTIMORE, MD, 21218 JOB NO: 5190.000 CONSTRUCTION DOCUMENTS FAS-01 EWS-03 EWS-04 PV PANELS INTERMEDIATE SLAB (BEYOND) AESS MULLIONS/TRANSOMS PT-16 EWS-02 EWS-01 BASE AS NEEDED CONCRETE COLUMN (BEYOND) TYP. HOLLOW METAL DOOR, AS NECESSARY, EDGE OF FRAME 6' MIN FROM EDGE OF WALL MFAB-01 (ALIGNED TO CLEARSTORY MULLION) PAV-01 TYP. EXTERIOR SOFFIT LIGHT, POWER AND ROUTING AS NECESSARY, PER L'OBSERVATOIRE OVERFLOW ROOF PENETRATION DRAIN LEADER TO ALIGN TO MULLION DOWNSPOUT TO ELBOW OUT AWAY FROM GLAZING AT BASE WALL CONSTRUCTION: -6" CFMF -5/8" SHEATHING (BOTH SIDES) -AIR BARRIER -EXTERIOR METAL FLASHING, PTD BLACK EWS-04 WITH LOUVER 103/08/2022BULLETIN 03 204/13/2022BULLETIN 04 305/12/2022RFI 0068_R1 407/29/2022BULLETIN 05 Mu enclosure scope vMu interior scope 11
ALIGN 32'-6 1/4" 39'-10 5/8" TYP COLUMN SIZES: 13.5"x13.5". SEE SHEET S602 FOR TYP CONC COLUMN DETAILS TENSION RODS, REF. STRUCTURE DRAWING A501B REMOVABLE CABLE BRACING A550 SIM A551 5 SIM A550 7 TYP A551 TYP B.1 B.2 B.3 A.1 A.2 14'-0" 14'-0" 14'-0" ROOF DRAIN RUNNING IN WALL, W/ COW'S TONGUE EXIT ABOVE GRADE GWB PARTITION 3 A572 2'-6" 2'-6" 9'-6" 7'-0" C 2'-6" CONCRETE WALL. REFERENCE STRUCTURE DWG ± 1'-6" ± 4'-0" 2'-6" 11'-6" 2" EXTERIOR TRENCH DRAINS 2" EXTERIOR TRENCH DRAINS ALIGN NON STRUCTURAL CLT WALL WALL OPENING BETWEEN ROOMS 3 A572 SIM ALIGN LADDER TO LOWER ROOF ALIGN ALIGN ALIGN 33'-3 1/4" 17'-0 3/8" TENSION RODS ROOF DRAIN RUNNING IN WALL, W/ COW'S TONGUE EXIT ABOVE GRADE REFERENCE UPPER ROOF RCP VIEW THIS SHEET FOR SCOPE B.1 B.2 B.3 14'-0" 14'-0" A.1 A.2 14'-0" DLT WITHOUT ACOUSTIC PROFILE. PROVIDE KERF JOINT BTWN EACH BOARD MEZZANINE LEVEL SLAB EXTERIOR RECESSED SOFFIT LIGHT FIXTURE REFER. VIEW 10 THIS SHEET OVERFLOW DRAIN OPENING SOFFIT 8'-0" EQ EQ LEVEL T.O.F.F. 0" LOWER ROOF T.O.BEAM 20'-6 1/2" UPPER ROOF T.O.BEAM 28'-6 1/2" MEZZANINE LEVEL T.O.F.F. 15'-1 1/4" 31'-0" B O D R O P C E N G 11 4 4 A501B OPENING IN GWB PARTITION AND NONSTRUCTRUAL CLT WALL BETWEEN LARGE ROOM TO MEZZANINE LEVEL. CLT TO TERMINATE AT LOWER ROOF. A572 SIM 26 21 2 B.1 B.2 B.3 3 A572 A562 TYP DLT TRENCH, SEE RCP SPRINKLER, SEE RCP A562 TYP LINEAR LIGHT FIXTURE, SEE RCP 16 26 5'-0" 3'-6"W WINDOW. DRAIN OUTLET AND SPLASH BLOCK ROOF DRAIN RUNNING IN WALL, W/ COW'S TONGUE EXIT 1' ABOVE GRADEA572 TYP GWB PARTITION NON STRUCTURAL CLT WALL ALIGN 101 4 ALIGN OPENING IN GWB PARTITION AND NONSTRUCTRUAL CLT WALL BEYOND. LADDER BEYOND, REF PLAN ALIGN BEYOND LOWER ROOF T.O.BEAM 20'-6 1/2" UPPER ROOF T.O.BEAM 28'-6 1/2" 3 A501B A-551 11 A-551 11 A-551 SIM A-550 10 A-551 A-562 A-562 & A-562 4 A-562 A-562 COORDINATE WITH TIMBER DA STRUCTURECRAFT WITH LENGTH OF DECK TO ACCOMMODATE REVISED FASCIA ATTACHMENT. A.1 A.2 LINE OF FACADE BELOW TILE START POINT 3 A561 TYP 24" 24" PAV-01 TILE FORMAT W/ EQ 1/8" JOINTS BTWN TILES, ALL SIDES. CUT END TILES OPP TILE START POINT AS NECESSARY PV LAYOUT ORIENTATION TBC SLOPE SLOPE SLOPE O STORM DRAIN LEADER TO ALIGN WITH CENTER OF MULLION BELOW 1/8"/FT SLOPED INSULATION BELOW PAVERS, TYP B.1 B.2 A.1 A.2 EDGE OF PAVER EDGE OF PAVER 4 E Q P V P A N E L W D T H S 34 A562 TYP 14'-0" 11 0 2 1'-6" 2'-11 3/8" OVERFLOW PV SLOPE PV SLOPE PV SLOPE SLOPE SLOPE SLOPE SOPE OVERFLOW DRAIN OUTLET PIPE TO MERGE WITH STORM DRAIN PIPE BELOW 1/8"/FT SLOPED INSULATION BELOW PAVERS, TYP B.2 B.3 A.1 A.2 MTL-15. REMOVABLE INTERIOR SOFFIT COVER PV PANEL ABOVE METAL GRATE ABOVE LINE OF FACADE BELOW A562 TYP 5'-6" 1'-6" 4 14'-0" 40 1'-6" 3'-6" ROOF DRAIN ALIGN CONDUIT CUTOUT A551 12 SIM ALIGN SPLICE JOINTS OF FASCIA WITH CENTERLINE OF MULLION BELOW AT CORNERS, TYP B.2 B.3 A.1 A.2 PV LAYOUT ORIENTATION TBC 1'-0" DEEP MFAB-01 LEADER W/ SPLASH BLOCK BELOW METAL GRATE 24" 24" PAV-01 TILE FORMAT W/ EQ 1/8" JOINTS BTWN TILES, ALL SIDES. CUT END TILES OPP TILE START POINT AS NECESSARY GRATE OVER DRAINS MFAB-01 MTl-02 FASCIA A550 10 TYP TILE START POINT EDGE OF PAVER EDGE OF PAVER EDGE OF PAVER EDGE OF PAVER A562 TYP 14'-0" 1 40 CUT ROOF PAVERS AS REQ'D AT GRATE AND PV PANELS. MAINTAIN 1/8" JOINT BTWN GRATE AND PAVERS PV SLOPE PV SLOPE PV SLOPE C -3" F.F SLAB DEPRESSION FOR FLOORING FINISH BUILD -UP VMU WALL. REFER. STRUCTURE DWG LINE OF VMU PAD TIMBER COLUMNS. REFER. STRUCTURE DWG -8.5" F.F SLAB DEPRESSION, TYP. B.1 B.2 B.3 A.1 A.2 O V E R A L P A D 3 91 OVERALL PAD 32'-6" 14'-0" 40 1+3" -3" -8.5" -3" F.F SLAB DEPRESSION, TYP. +3" F.F CURB -8.5" F.F SLAB DEPRESSION, TYP. 10'-0" 8'-6" ± 51 5 8 ± 51 1 3 3 A572 23 4 14 2'-3 3/4" 1'-4" 7" 5" 7 5 1 23 4 1'-4" 2'-3 3/4" CONCRETE WALL. REFERENCE STRUCTURE DWG 2" EXTERIOR TRENCH DRAINS LADDER, PROVIDE ANCHORING AND BLOCKING AS REQUIRED 4'-8 1/4" 7'-0" 132'-1" 07 4 COLUMNS AND BEAMS. REFERENCE STRUCTURECRAFT'S DRAWING SPRINKLER PIPE MAIN. 6" DIA CLR. BEAM PENETRATION. REF STRUCTURE DWG EQ EQ SUSPENDED LINEAR LIGHT FIXTURE. FIXTURE TO BE REMOVABLE. PROVIDE NECESSARY ANCHORING, ELECTRICAL, AND SWITCH AT LOCATION DLT WITHOUT ACOUSTIC PROFILE. RECESSED CONDUIT TRENCH W/ REMOVABLE COVER PANEL. REF TYP TRENCH DETAIL ROLLER SHADE CONDITION TO MATCH RFI-0037-01 DSK-012 DESIGN INTENT. UPDATED DETAIL TO BE INCLUDED IN DRAWING SET AT FUTURE DATE. B.1 B.2 A.1 A.2 14'-0" 13'-6" 3'-6" 3'-6" 3'-0" 3'-0" EWS-04 EWS-04 MECH LOUVER EWS-03 EWS-03 EWS-03 T.O.BEAM 28'-6 1/2" ROOF DRAIN DLT PANEL OPEN JOINT WITH RECESSED GENERIC BLACK FOAM. A551 12 SIM SPRINKLER PIPE BRANCH. 4" DIA CLR. BEAM PENETRATION. REF STRUCTURE DWG 1 1/4" 1 1 E Q E Q EQ 2'-11 3/8"1 0 2 GLASS WINDOW 6 1/2" EQ 12'-0" MECHANICAL LOUVER E Q E Q EQ EQ CONDUIT ROUTING FROM INTERIOR SOFFIT TO DLT TRENCH. B.2 B.3 A.1 A.2 B.2 B.3 A.1 A.2 EXTERIOR RECESSED SOFFIT LIGHT FIXTURE. ROOF DRAIN RUNNING IN WALL, W/ COW'S TONGUE EXIT ABOVE GRADE T.O.BEAM 20'-6 1/2" EQ DLT WITHOUT ACOUSTIC PROFILE. TIMBER FRAMING, REF STRUCTURE DRAWING CONCRETE WALL, REF STRUCTURE DRAWING TIMBER FRAMING, REF STRUCTURE DRAWING 1 4 1/4" ALIGN LADDER TO LOWER ROOF OVERFLOW DRAIN OUTLET PIPE TO MERGE WITH STORM DRAIN PIPE BELOW DLT PANEL OPEN JOINT WITH RECESSED GENERIC BLACK FOAM. NON-STRUCTRUAL CLT WALL BELOW OPENING BELOW 14'-0" EQ E Q E Q E Q E Q THE ORIGINAL OF THIS DRAWING IS 36" 48". IF THIS COPY ANY OTHER SIZE, IT HAS EITHER BEEN REDUCED OR ENLARGED. TAKE APPROPRIATE PRECAUTIONS ACCORDINGLY. 99 Chauncy Street 4th Floor Boston, MA 02111 T:617.423.1700 F:800.934.9691 shepleybulfinch.com 3910 KESWICK ROAD, NORTH BUILDING, SUITE BALTIMORE, MD 21211 KEY PLAN NO. DATEDESCRIPTION 45 Main Street, 9th Floor Brooklyn, NY 11201 big.dk 9/11/2022 11:36:32 PM A501B ENCLOSURE VMU JOHNS HOPKINS STUDENT CENTER Approver 08/26/2022 JOHNS HOPKINS STUDENT CENTER 3200 NORTH CHARLES STREET BALTIMORE, MD, 21218 JOB NO: 5190.000 CONSTRUCTION DOCUMENTS SCALE 1/4" = 1'-0" 1FLOOR PLAN -VMU SCALE 1/4" = 1'-0" 2REFLECTED CEILING PLAN -VMU SCALE 1/4" = 1'-0" 3VMU SECTION SCALE 1/4" = 1'-0" 4ELEVATION -VMU -CLEARSTORY SCALE 1/4" = 1'-0" 7ROOF PLAN -VMU -UPPER ROOF SCALE 1/4" = 1'-0" 6ROOF PLAN -VMU -LOWER ROOF DRAIN SCALE 1/4" = 1'-0" 5FLOOR PLAN -VMU CLERESTORY SCALE 1/4" = 1'-0" 8SLAB PLAN -VMU SCALE 1/4" = 1'-0" 9REFLECTED CEILING PLAN -VMU -UPPER ROOF SCALE 1/4" = 1'-0" 10REFLECTED CEILING PLAN -LOWER ROOF VMU ALIGN 103/08/2022BULLETIN 03 204/13/2022BULLETIN 04 306/08/2022RFI 0089 407/29/2022BULLETIN 05 508/29/2022BULLETIN 06 CLERESTORY 12

These section details are some examples of the unique conditions we have on the project. Each detail is the result of an enormous amount of effort, design study, and coordination between the design team, MEP, Structure, Timber, and Envelope Consultants. The details establish typical and a-typical standard condition for the entire project.

Revit hsc | technicAl
drAwing
PV PANEL ACCESS LADDER FALL PROTECTION LIGHTNING PROTECTION DRAINAGE DRAINAGE UNDER OVERHANG DRAINAGE TO LOWER ROOF
WEST MECHANICAL WELL ROOF 1 78'-0" TOFF ROOF 4 66'-3" TOFF ROOF 7 ROOF 3 ROOF 5 ROOF 2 ROOF 11 ROOF 23 ROOF 14 ROOF 8 ROOF 12 ROOF 17 ROOF 15 ROOF 20 ROOF 25 ROOF 29 ROOF 28 ROOF 21 ROOF 18 ROOF 27 ROOF 26 ROOF 22 ROOF 16 ROOF 19 ROOF 24 ROOF 13 ROOF 9 ROOF 6 72'-0" TOFF 63'-7" TOFF 60'-8" TOFF 66'-0" TOFF 63'-4" TOFF 57'-9" TOFF 45'-0" TOFF 53'-6" TOFF 39'-4" TOFF 34'-2" TOFF 16'-0" TOFF 18'-11" TOFF 40'-6" TOFF 28'-0" TOFF 60'-8" TOFF 48'-0" TOFF 39'-4" TOFF 31'-0" TOFF 60'-2" TOFF 60'-8" TOFF 63'-4" TOFF 45'-0" TOFF 53'-6" TOFF 33'-2" TOFF ACCESS DOOR ROOF ACCESS POINT ACCESS DOOR ACCESS DOOR ACCESS DOOR MECH WELL ACCESS POINT MECH WELL ACCESS POINT 33'-8" TOFF ROOF 10 MECH WELL ACCESS POINT ACCESS DOOR MECH WELL ACCESS POINT DRAINAGE DRAINAGE DRAIN/SCUPPER ANOTHER 72'-0" TOFF 66'-0" TOFF Autodesk Docs://5190 JHU Student Ctr/5190_JHUHSC_ARSB_MAIN_R22. rvt JOHNS HOPKINS STUDENT CENTER Author Approver SCALE 3/32" = 1'-0" 1ROOF PLAN -REFERENCE PLAN Copy 4 PV ACCESS FALL LIGHTNING DRAINAGE DRAINAGE DRAINAGE ROOF PLAN b b 14
section detAils
section detail b | shadow box fascia section detail b | shadow box interMediate slab ALIGN ALIGN MTL-16 ALUMINUM PLATE RAINSCREEN ON THERMALLY BROKEN GIRT SYSTEM [07 21 00] 4" MINERAL WOOL INSULATION [07 00 00] AIR BARRIER 5/8" EXTERIOR GRADE GYP SHEATHING ON CFMF 6" STUDS W/ 2" BATT INSULATION [07 00 00] PRECAST CONCRETE PAVER ON PEDESTALS [07 00 00] 3" TYP FOAMGLAS INSULATION/IGNITION BARRIER. REF ROOF PLAN [07 00 00] TAPERED HIGH DENSITY RIGID FOAM INSULATION. THICKNESS AS DEFINED BY 1/8" TO THE FOOT SLOPE FROM DRAIN ELEVATION PER ROOF PLAN DRAIN ELELVATION CHART [07 00 00] 1/2" DRAINAGE BOARD [07 00 00] FIBER REINFORCED HRA WATERPROOFING MEMBRANE ADHERED TO ROOF COVER BOARD [07 00 00] 1/2" ROOF COVER BOARD SUBSTRATE ADHERED TO HIGH DENSITY TAPERED RIGID INSULATION WITH ALL BOARD JOINTS PRE-STRIPPED WITH NEOPRENE/HRA [07 00 00] VAPOR BARRIER MFAB-01 TERMINATION BAR ROOF MEMBRANE LAPPING OVER AB [07 00 00] VAPOR BARRIER [06 00 00] PLYWOOD SHEATHING OVER DLT. REFERENCE STRUCTURE WIND LOAD BRACKET, SPIGOT STYLE ADJUST DIMENSION AS REQUIRED BY LINDNER THERMAL STUDY [07 00 00] CEMENTITIOUS BOARD B LEVEL 4 MECH T.O.F.F. 55'-0" (251'-6" BCVD) EXTERIOR INTERIOR 1 1/2" INTUMESCENT, FIRE PROOFED, AND GALVANIZED STEEL FRAMING. SEE STRUCT. DWG [07 00 00] FIBER REINFORCED HRA WATERPROOFING MEMBRANE ADHERED TO ROOF COVER BOARD [07 00 00] 2" FOAMGLAS INSULATION/IGNITION BARRIER. REF ROOF PLAN [07 00 00] 1/2" DRAINAGE BOARD MTL-04 [07 00 00] 1/2" ROOF COVER BOARD SUBSTRATE ADHERED TO HIGH DENSITY TAPERED RIGID INSULATION WITH ALL BOARD JOINTS PRE-STRIPPED WITH NEOPRENE/HRA [07 00 00] TAPERED HIGH DENSITY RIGID FOAM INSULATION. THICKNESS AS DEFINED BY 1/8" TO THE FOOT SLOPE FROM DRAIN ELEVATION PER ROOF PLAN DRAIN ELELVATION CHART MTL-04 GL-01 AESS MULLION PT-16 EXTERIOR WOOD SOFFIT TO MATCH SC IN TYPE, DIM., COATING, AND FINISH, TYP. WOOD OVER AB OVER 5/8" GYP SHEATING AND CFMF STUDS. KERF SAW CUT JOINT BETWEEN BOARDS TYP WIND LOAD BRACKET, SPIGOT STYLE REMOVABLE WALL PANEL EWS-05A ON SS Z CLIPS ON GALV STEEL 3"X5"X5/8" STEEL ANGLES SECURED W/ SS BOLTS STEEL ANGLES REMOVABLE INTUMESCENT, FIRE PROOFED, AND GALVANIZED STEEL FRAMING. SEE STRUCT. DWG 2 1/2" X 3/16" GALV STEEL GRATE W/ STEEL STRUCTURE SUPPORT. SEE STRUCT. DWG AND ACCESS HATCH AT LADDER [07 62 00] SS FLASHING EWS-01 CW CONNECT TOP OF MULLION TO DECK ABOVE W/ DEFLECT CONNECT CONT, SECTURE SHEET SILICONE AB TRANSITION TO DECK. BOTH SIDES PT SOLID BLOCKING CURB ANCHOR BOLT TO DECK WRAP ROOF MEMBRANE OVER CURB, LAP AB @ WALL, TERM, WITH TERM BAR. RUN CONTINUOUS. HEMMED EDGES. FLASHING OVER TOP OF CURB SECURE SHEET SILICONE TRANSITION TO CW, AND CONNECT TO AB ABOVE. PROVIDE SHEET SILICONE AMOUNT TO ALLOW FOR MOVEMENT TYP. AB UP BEHIND FASCIA, LAP UNDER ROOF MEMBRANE ON BACK OF FASCIA 8" MIN 1/8" SLOPE 2 7/8" [07 00 00] PRECAST CONCRETE PAVER ON PADS STEEL FRAMING. LAP MEMBRANE FLASHING OVER AB AT ALL SIDES OF PENETRATION. SEAL AT PERIMETER TYP. WRAP GALV. STEEL SUPPORT W/ MEMBRANE FLASHING. TERM. W/ SS CLAMP AND SEAL AT EDGES TYP. T.O.F CL.JT. 2 5/8" ALUMINUM PLATE RAINSCREEN ON THERMALLY BROKEN GIRT SYSTEM 1'-7 1/4" 5/8" EXTERIOR GRADE GYP SHEATHING ON CFMF 6" STUDS W/ 2" BATT INSULATION [07 21 00] 4" MINERAL WOOL INSULATION INTUMESCENT, FIRE PROOFED, AND GALVANIZED STEEL FRAMING. SEE STRUCT. DWG 2'-6" WRAP HRA AND VB UP AND OVER CURB UNDER SS FLASHING. WARP AB UP VERTICAL FASCIA TERMINATE AB LAPPING UNDER HRA MEBRANE WITH TERM. BAR COL SEPARATING STEEL TYP. 1" HIGH WALL VENTS [07 00 00] AIR BARRIER CONTINUOUS AB BELOW SHEATHING. LAP TRANSITION SILICONE AT PARTITION HEAD TYP. MTL-02 THERMAL SHIM REF A560 FOR TYP FASCIA LEVEL 4 T.O.F.F. 45'-0" (241'-6" BCVD) B MIN WOOL TYP. 1'-6" MIN 4" 3" 12" MIN MTL-16 MTL-04 [07 21 00] 4" MINERAL WOOL INSULATION [07 00 00] AIR BARRIER [07 00 00] 2" FOAMGLAS INSULATION/IGNITION BARRIER. REF ROOF PLAN [07 00 00] 1/2" DRAINAGE BOARD [07 00 00] FIBER REINFORCED HRA WATERPROOFING MEMBRANE ADHERED TO ROOF COVER BOARD [07 00 00] TAPERED HIGH DENSITY RIGID FOAM INSULATION. THICKNESS AS DEFINED BY 1/8" TO THE FOOT SLOPE FROM DRAIN ELEVATION PER ROOF PLAN DRAIN ELELVATION CHART CAST-IN-PLACE CONCRETE SLAB - REF. STRUCTURAL DRAWINGS MTL-16 INTUMESCENT, FIRE PROOFED, AND GALVANIZED STEEL FRAMING. SEE STRUCT. DWG WTR-01 REMOVABLE WALL PANEL EWS-05A ON SS Z CLIPS ON GALV STEEL 3"X5"X5/8" STEEL ANGLES SECURED W/ SS BOLTS STEEL ANGLES REMOVABLE MTL-17 FIRE SAFING AND SMOKE SEAL GALVINIZED STEEL PLATE COVER REMOVABLE ALUMINUM CEILING PANEL GALVANIZED STEEL BACKPAN MTL 17 VARIES 12" MIN [07 00 00] VAPOR BARRIER [07 00 00] CEMENTITIOUS BOARD 5/8" EXTERIOR GRADE GYP SHEATHING ON CFMF 6" STUDS W/ 2" BATT INSULATION CL.JT. REMOVABLE PANEL COODINATE CONSEALED WIRING IN STEEL PROFILES REFERENCE RCP FOR FINISHES 3/4" STEEL THICKNESS AT TRANSOM FOR FIRE RATING 3" CONCRETE SLAB W/ SNOW MELT. SEE MECH. DWGS. TYP SILL OF HM DOOR W/ HM JAMB RETURNS BEYOND RUN ROOF MEMBRANE FLASHING UP WALL. MIN 8". LAP AB OVER AND TERMINATE W/ TERM. BAR 2'-6" 1'-7 1/4" MAX 4" 1/8" SLOPE [07 21 00] 2" MINERAL WOOL INSULATION [07 21 00] 4" MINERAL WOOL INSULATION COL 8/26/2022 3:51:13 PM Autodesk Docs://5190 JHU Student Ctr/5190_JHUHSC_ARSB_MAIN_R22. rvt JOHNS HOPKINS STUDENT CENTER SCALE 1 1/2" = 1'-0" 1SECTION DETAIL_MTL 3SCALESECTION SCALE 3" = 2SECTION SCALE 1 1/2" = 1'-0" 8SECTION DETAIL_WEST MECHANICAL WELL @ FASCIA SCALE 1 1/2" = 1'-0" 7SECTION DETAIL_WEST MECHANICAL WELL @ SHADOW BOX SILL NOTE: ALL EXPOSED STRUCTURAL STEEL TO RECEIVE INTUMESCENT COATING TYP. SCALE 1 1/2" = 1'-0" 9SECTION DETAIL_ FIN TUBE @ SCALE 1 1/2" = 1'-0" 6SECTION DETAIL_ FIN TUBE @ INTERM. SLAB MIN CONDITION ALIGN ALIGN MTL-16 ALUMINUM PLATE RAINSCREEN ON THERMALLY BROKEN GIRT SYSTEM [07 21 00] 4" MINERAL WOOL INSULATION [07 00 00] AIR BARRIER 5/8" EXTERIOR GRADE GYP SHEATHING ON CFMF 6" STUDS W/ 2" BATT INSULATION [07 00 00] PRECAST CONCRETE PAVER ON PEDESTALS [07 00 00] 3" TYP FOAMGLAS INSULATION/IGNITION BARRIER. REF ROOF PLAN [07 00 00] TAPERED HIGH DENSITY RIGID FOAM INSULATION. THICKNESS AS DEFINED BY 1/8" TO THE FOOT SLOPE FROM DRAIN ELEVATION PER ROOF PLAN DRAIN ELELVATION CHART [07 00 00] 1/2" DRAINAGE BOARD [07 00 00] FIBER REINFORCED HRA WATERPROOFING MEMBRANE ADHERED TO ROOF COVER BOARD [07 00 00] 1/2" ROOF COVER BOARD SUBSTRATE ADHERED TO HIGH DENSITY TAPERED RIGID INSULATION WITH ALL BOARD JOINTS PRE-STRIPPED WITH NEOPRENE/HRA [07 00 00] VAPOR BARRIER MFAB-01 TERMINATION BAR ROOF MEMBRANE LAPPING OVER AB [07 00 00] VAPOR BARRIER [06 00 00] PLYWOOD SHEATHING OVER DLT. REFERENCE STRUCTURE WIND LOAD BRACKET, SPIGOT STYLE ADJUST DIMENSION AS REQUIRED BY LINDNER THERMAL STUDY [07 00 00] CEMENTITIOUS BOARD B LEVEL 4 MECH T.O.F.F. 55'-0" (251'-6" BCVD) EXTERIOR INTERIOR 1 1/2" INTUMESCENT, FIRE PROOFED, AND GALVANIZED STEEL FRAMING. SEE STRUCT. DWG [07 00 00] FIBER REINFORCED HRA WATERPROOFING MEMBRANE ADHERED TO ROOF COVER BOARD [07 00 00] 2" FOAMGLAS INSULATION/IGNITION BARRIER. REF ROOF PLAN [07 00 00] 1/2" DRAINAGE BOARD MTL-04 [07 00 00] 1/2" ROOF COVER BOARD SUBSTRATE ADHERED TO HIGH DENSITY TAPERED RIGID INSULATION WITH ALL BOARD JOINTS PRE-STRIPPED WITH NEOPRENE/HRA [07 00 00] TAPERED HIGH DENSITY RIGID FOAM INSULATION. THICKNESS AS DEFINED BY 1/8" TO THE FOOT SLOPE FROM DRAIN ELEVATION PER ROOF PLAN DRAIN ELELVATION CHART MTL-04 GL-01 AESS MULLION PT-16 EXTERIOR WOOD SOFFIT TO MATCH SC IN TYPE, DIM., COATING, AND FINISH, TYP. WOOD OVER AB OVER 5/8" GYP SHEATING AND CFMF STUDS. KERF SAW CUT JOINT BETWEEN BOARDS TYP WIND LOAD BRACKET, SPIGOT STYLE REMOVABLE WALL PANEL EWS-05A ON SS Z CLIPS ON GALV STEEL 3"X5"X5/8" STEEL ANGLES SECURED W/ SS BOLTS STEEL ANGLES REMOVABLE INTUMESCENT, FIRE PROOFED, AND GALVANIZED STEEL FRAMING. SEE STRUCT. DWG 2 1/2" X 3/16" GALV STEEL GRATE W/ STEEL STRUCTURE SUPPORT. SEE STRUCT. DWG AND ACCESS HATCH AT LADDER [07 62 00] SS FLASHING EWS-01 CW CONNECT TOP OF MULLION TO DECK ABOVE W/ DEFLECT CONNECT CONT, SECTURE SHEET SILICONE AB TRANSITION TO DECK. BOTH SIDES PT SOLID BLOCKING CURB ANCHOR BOLT TO DECK WRAP ROOF MEMBRANE OVER CURB, LAP AB @ WALL, TERM, WITH TERM BAR. RUN CONTINUOUS. HEMMED EDGES. FLASHING OVER TOP OF CURB SECURE SHEET SILICONE TRANSITION TO CW, AND CONNECT TO AB ABOVE. PROVIDE SHEET SILICONE AMOUNT TO ALLOW FOR MOVEMENT TYP. AB UP BEHIND FASCIA, LAP UNDER ROOF MEMBRANE ON BACK OF FASCIA 8" MIN 1/8" SLOPE 2 7/8" [07 00 00] PRECAST CONCRETE PAVER ON PADS STEEL FRAMING. LAP MEMBRANE FLASHING OVER AB AT ALL SIDES OF PENETRATION. SEAL AT PERIMETER TYP. WRAP GALV. STEEL SUPPORT W/ MEMBRANE FLASHING. TERM. W/ SS CLAMP AND SEAL AT EDGES TYP. T.O.F CL.JT. 2 5/8" ALUMINUM PLATE RAINSCREEN ON THERMALLY BROKEN GIRT SYSTEM 1'-7 1/4" 5/8" EXTERIOR GRADE GYP SHEATHING ON CFMF 6" STUDS W/ 2" BATT INSULATION [07 21 00] 4" MINERAL WOOL INSULATION INTUMESCENT, FIRE PROOFED, AND GALVANIZED STEEL FRAMING. SEE STRUCT. DWG 2'-6" WRAP HRA AND VB UP AND OVER CURB UNDER SS FLASHING. WARP AB UP VERTICAL FASCIA TERMINATE AB LAPPING UNDER HRA MEBRANE WITH TERM. BAR COL SEPARATING STEEL TYP. 1" HIGH WALL VENTS [07 00 00] AIR BARRIER CONTINUOUS AB BELOW SHEATHING. LAP TRANSITION SILICONE AT PARTITION HEAD TYP. MTL-02 THERMAL SHIM REF A560 FOR TYP FASCIA LEVEL 4 T.O.F.F. 45'-0" (241'-6" BCVD) B MIN WOOL TYP. 1'-6" MIN 4" 3" 12" MIN MTL-16 MTL-04 [07 21 00] 4" MINERAL WOOL INSULATION [07 00 00] AIR BARRIER [07 00 00] 2" FOAMGLAS INSULATION/IGNITION BARRIER. REF ROOF PLAN [07 00 00] 1/2" DRAINAGE BOARD [07 00 00] FIBER REINFORCED HRA WATERPROOFING MEMBRANE ADHERED TO ROOF COVER BOARD [07 00 00] TAPERED HIGH DENSITY RIGID FOAM INSULATION. THICKNESS AS DEFINED BY 1/8" TO THE FOOT SLOPE FROM DRAIN ELEVATION PER ROOF PLAN DRAIN ELELVATION CHART CAST-IN-PLACE CONCRETE SLAB - REF. STRUCTURAL DRAWINGS MTL-16 INTUMESCENT, FIRE PROOFED, AND GALVANIZED STEEL FRAMING. SEE STRUCT. DWG WTR-01 REMOVABLE WALL PANEL EWS-05A ON SS Z CLIPS ON GALV STEEL 3"X5"X5/8" STEEL ANGLES SECURED W/ SS BOLTS STEEL ANGLES REMOVABLE MTL-17 FIRE SAFING AND SMOKE SEAL GALVINIZED STEEL PLATE COVER REMOVABLE ALUMINUM CEILING PANEL GALVANIZED STEEL BACKPAN MTL 17 VARIES 12" MIN [07 00 00] VAPOR BARRIER [07 00 00] CEMENTITIOUS BOARD 5/8" EXTERIOR GRADE GYP SHEATHING ON CFMF 6" STUDS W/ 2" BATT INSULATION CL.JT. REMOVABLE PANEL COODINATE CONSEALED WIRING IN STEEL PROFILES REFERENCE RCP FOR FINISHES 3/4" STEEL THICKNESS AT TRANSOM FOR FIRE RATING 3" CONCRETE SLAB W/ SNOW MELT. SEE MECH. DWGS. TYP SILL OF HM DOOR W/ HM JAMB RETURNS BEYOND RUN ROOF MEMBRANE FLASHING UP WALL. MIN 8". LAP AB OVER AND TERMINATE W/ TERM. BAR 2'-6" 1'-7 1/4" MAX 4" 1/8" SLOPE [07 21 00] 2" MINERAL WOOL INSULATION [07 21 00] 4" MINERAL WOOL INSULATION COL 8/26/2022 3:51:13 PM Autodesk Docs://5190 JHU Student Ctr/5190_JHUHSC_ARSB_MAIN_R22. rvt JOHNS HOPKINS STUDENT CENTER SCALE 1 1/2" = 1'-0" 1SECTION DETAIL_MTL 3SCALESECTION SCALE 3" = 2SECTION SCALE 1 1/2" = 1'-0" 8SECTION DETAIL_WEST MECHANICAL WELL @ FASCIA SCALE 1 1/2" = 1'-0" 7SECTION DETAIL_WEST MECHANICAL WELL @ SHADOW BOX SILL NOTE: ALL EXPOSED STRUCTURAL STEEL TO RECEIVE INTUMESCENT COATING TYP. SCALE 1 1/2" = 1'-0" 9SECTION DETAIL_ FIN TUBE @ SCALE 1 1/2" = 1'-0" 6SECTION DETAIL_ FIN TUBE @ INTERM. SLAB MIN CONDITION 15

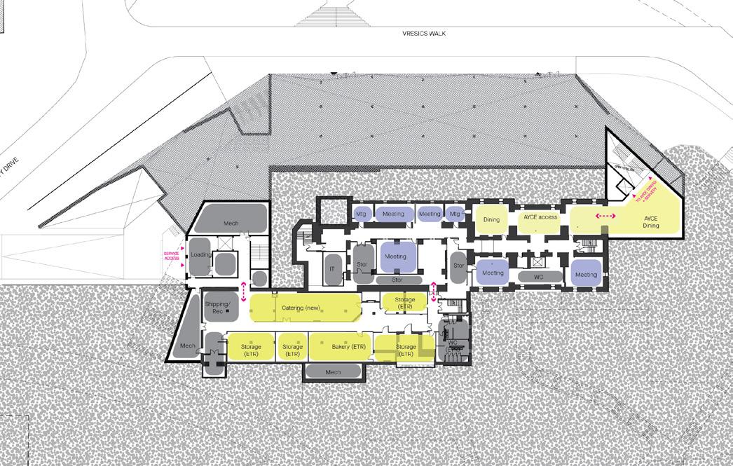
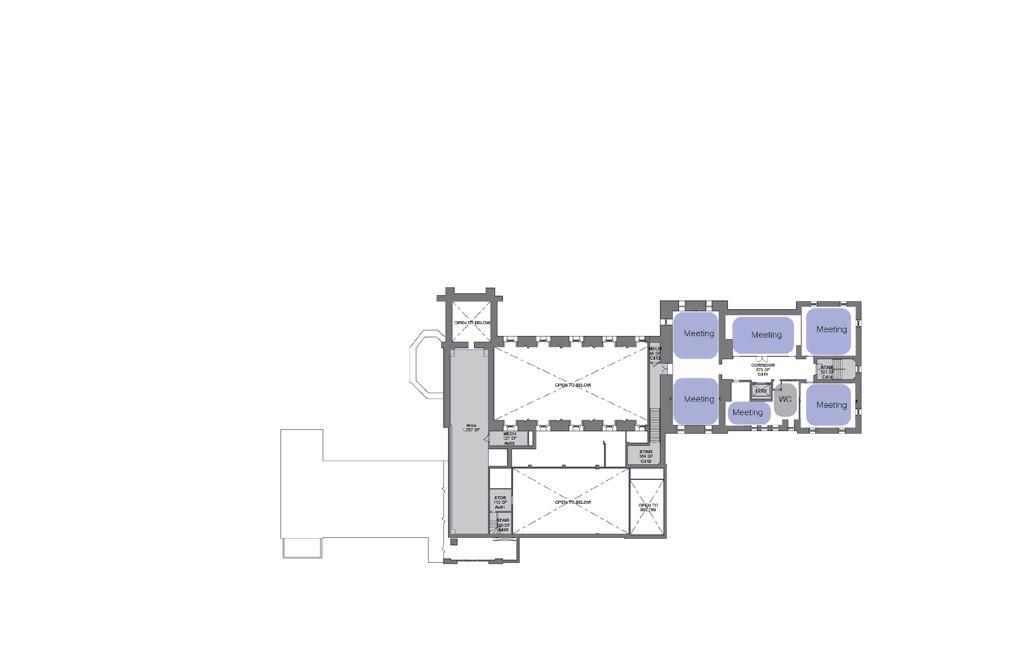
lehigh university Bethlehem, pA

university center north plinth feAsiBility study

Lehigh University’s campus sits on the north slope of a hill overlooking the town of Bethlehem, Pennsylvania. The 19th century University Center building that sits on top of a 50 ft. slope has become a legacy image and symbol of the university over the years. The client seeks to expand the building’s program while making the new addition unobtrusive. Using the site to our advantage, the design concept is to embed the addition into the landscape with the roof to function as green space. The expanded program would be dining/event space which would be accessible from the old building and visually connected to exterior green space. My responsibility is to assist the senior Architect with design charrette and prepare the graphics for client presentations.

16
rendering By design distill
17

LEVEL 2

PLINTH DINING LEVEL

LEVEL 3 LOWER LEVEL + CONNECTION TO PLINTH DINING

LEVEL 4 LEVEL 1 (PLINTH ROOF)

18
SECTION B SECTION C A C C
B B 19
EXISTING UNIVERSITY CENTER TREMBLEY DR. UNIVERSITY DR. GREAT LAWN AYCE DINING WALK (REVISED) NORTH LAWN
SECTION A
A

yAle new hAven hospitAl greenwich, ct

Revit

inpAtient Bed reAllocAtion

The bed reallocation project is the second to last piece of the puzzle in a large-scale plan to increase single room capacity for YNHH Greenwich Hospital. This suite acts as a catalyst to the renovation of single rooms for that entire floor. I was involved from the Design Development to Construction Document phase. I assisted in designing the reception desk area, layout of treatment rooms per code, and creating details for the drawings.

20
view upon entry 21
X2 X3 X4 X5 XC XD XE XF X1 PAT RM 1 2-2201 PAT RM 2 2-2202 PAT RM 3 2-2203 PAT TLT 3 2-2203A PAT RM 4 2-2204 PAT TLT 2 2-2202A PAT RM 5 2-2205 PAT TLT 4 2-2204A PAT RM 6 2-2206 ADA PATIENT RM 7 2-2207 PAT RM 8 2-2208 PAT TLT 8 2-2208A PAT TLT 9 2-2209A PAT RM 9 2-2209 PAT RM 10 2-2210 PAT TLT 11 2-2211A PAT RM 11 2-2211 ADA PATIENT TLT 7 2-2207A EQ STOR 2-2228 OFFICE 2-2237 STAFF TLT 2-2235 SOILED WKRM 2-2254 STAFF LOUNGE 2-2241 LCKRS DBL TIER (40) 2-2239 STAFF TLT 2-2234 OFFICE 2-2238 EQ ALC 2-2227 MEDS RM 2-2249 EQ ALC 2-2248 WKSTN 2-2253 WKSTN 2-2257 WKSTN 2-2226 EQ ALC EMG 2-2229 1' - 2" ALCOVE 2-2231 HAND WASH SINK 2-2247 A807 6' 0" EQ ALC 2-2256 MEDITATION/ CONSULT 2-2262 PATIENT/FAMILY LOUNGE 2-2263 NOUR 2-2260 OFFICE 2-2242 (P.I.C) PATIENT INFORMATION CENTER 2-2245 A700 A700 8 9 10 11 A700 1 EQ ALC 2-2244 OFFICE 2-2243 OFFICE 2-2236 CLN SPLY LINEN 2-2252 P.TUBE 2-2246 WKSTN 2-2258 PAT TLT 1 2-2201A A707 CORR 2-2255 STOR 2-2259 6 A805 14 11 12 13 A806 A806 8 A804 1 A806 11 A805 A805 5 STOR 2-2251 STOR 2-2250 STOR 2-2225 A801 3 2A3-0P 2A3-0 2A3-0 2A3-0P 9A6-0 2-2200 HM N/N 22.0 11 9A3-0 9A2-0 1A3-1 9A3-0 1A3-0P 1A3-1 1A6-1 1A3-0P 1A3-0P 1A3-0P 3A6-0P 1A3-0P CLR 4'7" 1' 0" 1A3-1 9A3-0 ALIGN ALIGN HOLD 8' 0" PASSAGE 2-2240 1A3-0P 9A2-0 A801 2 HAND WASH SINK 2-2200C HAND WASH SINK 2-2200A HAND WASH SINK 2-2200B HAND WASH SINK 2-2200D HAND WASH SINK 2-2200E A806 10 13 H 1 A102-B PAT TLT 5 2-2205A A801 A806 14 A803 A803 A804 13 12 11 14 A801 10 11 A804 10 7 8 9 A804 17 18 15 16 A802 4 2 3 A702 11 10 A702 5 4 3 6 A803 14 16 15 A803 PAT TLT 10 2-2210A CORR 2-2215 PASSAGE 2-2230 PASSAGE 2-2233 A701 6 A701 10 5 4 7 11 A701 1 A801 12 A706 1 A702 1 A700 14 13 12 A701 13 14 15 A805 2 3A6-0P 2A6-0 11A3-0 3A6-0P 1A6-0P 2A6-0 11A3-0 9A3-0 9A3-0 9A3-0 11A3-0 1A6-0 9A3-0 9A3-0 3A6-0P 3A6-0P 3A3-0P 3A6-0P 3A6-0P 9A3-0 2A6-0 9A3-0 9A3-0 11A3-0 2A6-0 1A6-0 1A6-0 11A3-0 1A6-0 1A6-0 2A6-0 11A3-0 1A6-0 9A3-0 9A2-0 9A3-0 3A6-0P 3A6-0P 9A3-0 9A3-0 9A3-0 9A3-0 9A3-0 1A3-0P 1A6-0 1A6-0 1A3-1 9A6-0 9A3-1 9A3-0 1A3-1 6A4-1 2A3-B 9A3-0 1A3-B A805 8 9 2-2201 PL 20.1 AL/GL 2-2201A FG 21.0 AL/GL 2-2202A FG 21.0 2-2202 PL 20.1 2-2203 PL 20.1 AL/GL 2-2203A FG 21.0 AL/GL 2-2204A FG 21.0 2-2204 PL 20.1 2-2205 PL 20.1 AL/GL 2-2205A FG 21.0 AL/GL 2-2206A FG 21.0 2-2206 PL 20.1 2-2207 PL 20.1 2-2207A 2-2208 PL 20.1 AL/GL 2-2208A FG 21.0 1 2-2209 PL 20.1 AL/GL 2-2209A FG 21.0 2-2210 PL F 20.1 AL/GL 2-2210A FG 21.0 2-2211 PL 20.1 AL/GL 2-2211A FG 21.0 1 2-2228A PL 12.0 2-2230 HM 12.0 2-2235 PL 9.1 2-2236 PL 4.0 2-2237 PL 4.0 2-2238 PL 4.0 2-2241 PL N 2.0 2-2242 PL 4.0 1 2-2243 PL N 4.0 2-2262 2-2260 PL 12.1 2-2254 2-2255 HM F/F 12.2 11-U 2-2252 PL 12.0 2-2252A PL 12.0 2-2249 PL G 12.1 2-2249A PL G 12.1 15 1' 3"1'3" ALIGN 10'0 1/2" H O L D 80 1A3-1 1A3-0P 1A6-0 1A6-0 1A6-0 1A6-0 1A6-0 1A6-0 1A6-0 1A3-0P 1A3-0P PAT TLT 6 2-2206A 12' 0" 8' - 5" 7' - 11" 14' 8" 6' - 0 1/2" 1A3-0P 1A3-0P 1A3-0P 1A3-0P 1A3-0P 1A3-0P 1A3-0P 1A3-0P 1A3-0P 9A2-0 9A3-0 1A3-0P 1A3-0P 1A3-0P 1A3-0P 9A3-0 9A3-0 9A3-0 9A3-0 9A3-0 9A3-0 1A3-0P 1A3-0P 9A3-0 9A3-0 1A3-0P 1A6-0 9A3-0 9A3-0 1A6-1 1A6-0 1 34 ALIGN 9A3-0 1A3-B 1A3-0P 9A3-0 9A3-0 9A3-0 9A3-0 9A3-0 9A3-0 1A3-B 9A3-0 9A3-0 A953 5 TYP 9A3-0 9A3-0 9A3-0 9A3-0 9A3-0 A702 12 2-2239 1A6-0P H O L D 60 4' 5" A805 10 A953 3 TYP A806 12 11 71 1 2 12 EQUIP STOR 2-2261 2-2261 PL 12.0 2-2234 PL 9.1 1 A702 7 7A2-2 40 1A6-0 30' 0" 30' - 0" 30' 0" 27' 6" 3 00 3 00 1 24 A802 1 24 50 1 30 16 1 43 1 30 16 1 30 13 13 62 34 5' - 4" 13' 11 1/2" 3' 8" 1' 0 1/2" 1A3-0P H O L D 60 96 HOLD 3' 6" 4' - 4" 3' 6" 78 21 2' 2" 2' 9" 6' 0" 6' 0" 10' 4" 6' 0" 4' 1 1/2" 1' 4" 3' 11 1/2" 5' 10" 2' - 4 1/2" 2' 4 1/2" 12' 11" 1' 6" 13' - 0" 1' 3" 1' - 3" 13' 0" 1' 6" 13' 0" 1' - 3" 1' 3" 13' 0" 1' 6" 14' 3" 9' 2" 10' 4" 9' 3 1/2" 4" 6' 0 1/2" 7" 10' - 0 1/2" 6' 5" 3' 8 1/2" 3' 8" HOLD 6' - 0" 6" 2' 10" 1' 10" 7" VW-1 FEC FEC FEC FEC R 69 - 11 5 8" R 11 - 9 3/4" 94 96 ALIGN ALIGN ALIGN FEC 18' 4" WORK POINT 9A3-0 A102-A 2 71' 11 1/2" 9A3-0 A805 A953 2 1 A954 2 A954 X4 XD 1' 2" 1' 4 1/2" 12 12 24 12 4" C SHEPLEY BULFINCH Approver SCALE 1/4" = 1'-0" SECOND FLOOR PART PLAN - EAST 1 22
CUB C AND CTRK, TYP P SLIDING GLASS DOOR FILM BY OWNER NIGHT LIGHTING ALIGN CUB C AND CTRK, TYP 4 A953 TYP 12 A952 TYP 42" TV EQ EQ 4 A923 WP-5 PL-1 SSM-2 BACK PAINTED GLASS PL-1 13 A952 TYP PL-1 8 A952 TYP 11 A952 TYP 11 A952 TYP 6 A952 U P 6"10" CLR 11" PATIENT BULLETIN BOARD 6 E Q E Q 42" TV EXISTING EXTERIOR WINDOW EXISTING EXTERIOR WINDOW P P EQ EQ EQ LS1 E E 5 A952 TYP 4 A952 TYP 9 A952 TYP 3 A952 TYP 2 A952 TYP 1 A952 TYP PL-1 3FORM U TD TH 46 31 0 32 16 PE U TD 37P P NC SA OV A E CLR 3" CLR 3" 3" 8" 10" 10 AI101 TYP TL-5 CUT AT CEILING WHEREVER IT ENDS TL-2 TL-5 TL-B2 TL-5 TL-2 6 A953 GRAB BAR NURSE CALL WITH PULL STRING SHAD SHOWER CURTAIN TL-5 CUT AT CEILING WHEREVER IT ENDS TL-2 TL-5 TL-B2 TL-5 TL-2 TOWEL BAR COAT HOOK EQEQ 50 6 SA LS1 PTD TL-5 CUT AT CEILING WHEREVER IT ENDS TL-2 TL-5 TL-B2 TL-5 TL-2 TL-5 CUT AT CEILING WHEREVER IT ENDS TL-2 TL-5 TL-B2 TL-5 TL-2 6 A953 7 A953 SD GFI 31 0 X3 XE XF A701 A701 10 11 51 0 15' - 0 3/4" ALIGN ALIGN A701 13 14 15 ALIGN PAT RM 5 2-2205 PAT TLT 5 2-2205A PAT RM 5 2-2205 26 11 1 1 / 2 1' 1" 4' - 0 1/2" 1' 10 1/2" 13 A953 5 TYP A953 3 TYP 12 1 1 1' 3" 1' 0 1/2" 4' 0" 8" 6' - 10 1/2" 1' 2" 27 1 2 H O L D 26 17 1 / 2 11 1 00 13 16 16 71 H O L D X3 XE XF PAT TLT 5 2-2205A PAT RM 5 2-2205 CENTER OF BED AND HEADWALL O N T O I L E T C E N T E R 40 ACT 9' 0" GWB 7' 10" GWB 7' 10" E Q E Q 3' 0" 4 A951 GWB 9' 0" 8 A951 TYP 1' 2" GWB 11' 3 5/8" RADIANT PANEL 2 A951 TYP 21 1 SHOWER CURTAIN 1' - 6" 1' 6" 3" CLG MTD SECURITY CAMERA CUB C AND CTRK, TYP 24 14 108 3 A922 TRASH, 23 GAL 1' 4" 2' - 2" ANY OTHER SIZE, IT HAS EITHER BEEN REDUCED OR ENLARGED. TAKE APPROPRIATE PRECAUTIONS ACCORDINGLY. DRAWING INFORMATION OWNER CONSULTANT STAMP PROJECT INFORMATION ISSUANCES NO.DATEDESCRIPTION A701 TYP ROOM 11/01/19 5 Perryridge Greenwich, JOB NO: 4995.007 INPATIENT REALLOCATION SCALE 3/8" = 1'-0" TYP EAST ORTHO PAT RM ELEV A 4 SCALE 3/8" = 1'-0" TYP EAST ORTHO PAT RM ELEV B 5 SCALE 3/8" = 1'-0" TYP EAST ORTHO PAT RM ELEV C 6 3/8" = 1'-0" EAST ORTHO PAT RM ELEV D SCALE 3/8" = 1'-0" TYP EAST ORTHO PAT TLT ELEV A 8 SCALE 3/8" = 1'-0" TYP EAST ORTHO PAT TLT ELEV B 9 SCALE 3/8" = 1'-0" TYP EAST ORTHO PAT TLT ELEV C 10 3/8" = 1'-0" EAST ORTHO PAT TLT ELEV D SCALE 1/2" = 1'-0" TYP EAST ORTHO PAT RM PLAN 1 SCALE 1/2" = 1'-0" TYP EAST ORTHO PAT RM RCP 2 EAST ONC PAT RM AXON SCALE 3/8" = 1'-0" TYP EAST ORTHO PAT RM VEST ELEV B 13 SCALE 3/8" = 1'-0" TYP EAST ORTHO PAT RM VEST ELEV C 14 SCALE 3/8" = 1'-0" TYP EAST ORTHO PAT RM VEST ELEV D 15 SCALE 3/8" = 1'-0" TYP EAST ORTHO PAT RM VEST ELEV A 12 EXISTING EXTERIOR WINDOW P EQ EQ WALL-MOUNTED LIGHT LS1 E E 5 A952 TYP 4 A952 TYP 9 A952 TYP 3 A952 TYP 2 A952 TYP 1 A952 TYP PL-1 3FORM U TD TH 46 31 0 32 16 PE U TD 37P P NC SA CHAIR ALARM BLOOD PRESSURE OV A E CLR 3" CLR 3" 3" 8" 10" 10 AI101 TYP LS1 TL-5 CUT AT CEILING WHEREVER IT ENDS TL-2 TL-5 TL-B2 TL-5 TL-2 6 A953 7 A953 SD SST SHELF MIRROR WALL SCONCE TRASH CAN (SLIM JIM) GFI 31 0 XE XF 1' 4" 2' - 2" THE ORIGINAL OF THIS DRAWING IS 30" X 42". IF THIS COPY IS ANY OTHER SIZE, IT HAS EITHER BEEN REDUCED OR ENLARGED. TAKE APPROPRIATE PRECAUTIONS ACCORDINGLY. 11/4/2019 7:12:31 PM C:\Users\Egray\Documents\4995.000 GHC INPATIENT BED STUDY_BP 5_ Inpatient_EGray.rvt INPATIENT BED REALLOCATION Author Checker Approver SCALE 3/8" = 1'-0" TYP EAST ORTHO 6 SCALE 3/8" = 1'-0" TYP EAST ORTHO PAT RM ELEV D 7 SCALE 3/8" = 1'-0" TYP EAST ORTHO 10 SCALE 3/8" = 1'-0" TYP EAST ORTHO PAT TLT ELEV D 11 SCALE TYP EAST ONC PAT RM AXON 3 SCALE 3/8" = 1'-0" TYP EAST 14 SCALE 3/8" = 1'-0" TYP EAST ORTHO PAT RM VEST ELEV D 15 footer view header view CUB C AND CTRK, TYP P SLIDING GLASS DOOR FILM BY OWNER NIGHT LIGHTING ALIGN 42" TV WP-5 PATIENT BULLETIN BOARD 6 TL-5 CUT AT CEILING WHEREVER IT ENDS TL-2 TL-5 TL-B2 TL-5 TL-2 6 A953 GRAB BAR NURSE CALL WITH PULL STRING SHAD CURTAIN CEILING ENDS X3 XE XF A701 A701 10 5 9 11 51 0 15' - 0 3/4" ALIGN ALIGN A701 13 14 15 ALIGN PAT RM 5 2-2205 PAT TLT 5 2-2205A PAT RM 5 2-2205 26 11 1 1 / 2 1' 1" 4' - 0 1/2" 1' 10 1/2" 13 A953 5 TYP A953 3 TYP 12 1 1 " 1' 3" 1' 0 1/2" 4' 0" 8" 6' 10 1/2" 1' 2" 27 1 2 H O L D 26 17 1 / 2 11 1 00 13 16 16 71 H O L D 24 14 108 TRASH, 23 GAL DRAWING INFORMATION OWNER CONSULTANT STAMP N PROJECT INFORMATION ISSUANCES NO.DATEDESCRIPTION A701 TYP EAST PATIENT ROOM BID PACK 5 11/01/19 5 Perryridge Road Greenwich, CT 06830 JOB NO: 4995.007 INPATIENT BED REALLOCATION SCALE 3/8" = 1'-0" TYP EAST ORTHO PAT RM ELEV A 4 ELEV B SCALE 3/8" = 1'-0" TYP EAST ORTHO PAT TLT ELEV A 8 B SCALE 1/2" = 1'-0" TYP EAST ORTHO PAT RM PLAN 1 RM VEST ELEV B SCALE 3/8" = 1'-0" TYP EAST ORTHO PAT RM VEST ELEV A 12 23

wAke forest university winston-sAlem, nc Sketch Up | Photoshop | Hand Sketch

triBBle hAll fAcAde study

The façade study was done as part of a larger campus plan to expand dining, engage students, and foster connectivity between academic and student life. Tribble Hall was chosen for its location – in between student life buildings and academic buildings. It is currently an academic building for classrooms and offices, but it is inaccessible for all and inefficient for its program. The Tribble Hall as dining study investigated three options with program adjacency diagrams and façade designs. The façade study resulted in two new schemes and one renovation scheme. The new schemes offer visual and physical connectivity to the quad using large windows with an entrance on the ground level and a balcony on the upper level. The renovation scheme keep the two wings as an homage to the campus architecture but places a new core to face the north plaza. All the proposed façade designs consist of a modern look, but still respect the campus architecture. I was actively involved in the program relocation, façade design, visual representation, and client presentation.

24
new scheMe Modern approach

new scheMe respecting exisiting architecture on caMpus

renovation scheMe preserving existing two wings

25

risk strAtegies chicAgo,

il

office Buildout

Risk Strategies Company, Inc is an insurance company that went through the process of rebranding their logo and workspace image. The tenant acquired 10,500 Sq. ft. of buildout space in the heart of downtown Chicago. As part of the team chosen to work on the project, I assisted with the space plan, construction document set, permit application, finishes scheme, and client presentation. We were able to meet the client’s goal of designing a modern office, creating a unique work environment, and increasing employee’s interaction. Additionally, we set a workplace standard to be used in future buildouts.

pantry

reception area
AutoCAD 26
reception area pantry
27
office conference rooM

Room 01-110

leonArd dentAl group chicAgo, il

clinic Buildout

Ashland Dental consisted of two offices in Teamsters City, Chicago. In the process of expanding, the client rebranded to Leonard Dental Group and obtained a new office buildout of 5,600 sq. ft. In this project, I was involved from the schematic design phase to construction administration phase. I drafted space plans, construction documents set, picked finishes and furniture, created the client presentation, attended construction meetings, and acted as a liaison between vendors and the client. We were able to exceed the client expectations and stayed under budget at $1 million while offering a unique modern look.

UP FD FD FD FD Crown Lab 01-115 Treatment
Treatment Toilet
Treatment Room 01-131 Fitness Center 01-133
10' - 2 3/8" Treatment Room 01-128 Treatment Room 01-129 Treatment Room
Open
Toilet
Utility/
SLIDING DOOR SLIDING DOOR ± 10' - 3 1/4" ± 6'-7" OPEN SHELVES E A
Entry reception
Revit 28
Room 01-114 Equipment Room 01-136
Lounge 01-135
01-130
Office 01-132
Room 01-134
Supply Room 01-111 Adjustment Lab 01-117 Laundry 01-113 Pantry 01-112
Reception from
desk
TREATMENT ROOM CHICAGO DESIGN NETWORK 850 West Jackson Blvd. Suite 850 Chicago, Illinois 60607 3D.1 Rendering Views 17 2120.01 01/12/2018 Leonard Dental Group Leonard Dental Group 325 South Paulina Street Chicago, IL 60612 A Reception from Entry 2 Reception Area 01-101 - Reception Desk Millwork consultation area treatMent rooM 29

johns hopkins university BAltimore, md

Rhino | Sketchup | Enscape | Photoshop

The purpose of the study was to address the pedestrian/vehicular circulation, visibility, and accessibility of the existing breezeway. I led the design effort and the design team in developing four scenarios to present to the university. The red scheme creates a two story opening through the middle section of Krieger Hall. It is the most expensive scheme but addresses the major underlying conditions of visibility, accessibility, and overall experience. It consists of moving the loading dock up north to create a loading zone with the Brody Learning Commons, thus separating the zone from pedestrians. The scheme is the least intrusive in terms of program –affecting minor program that can be easily relocated. Looking holistically on all four schemes, the outcome outweigh the cost of this scheme compared to the others which made it the most favorable.

krieger BreezewAy study
30
31
pedestrian vehicular view froM broady view froM quad

displaced prograM axon proposed prograM axon

office: level g: 508 sf level 1: 721 sf

study services: level 1: 1,762 sf research lab: level g: 960 sf level 2: 801 sf level 3: 691 sf

flat floor rooM: level 1: 989 sf

vertical circulation: elevator: lg - l3 convenience stair: b - l1

loading dock: level g

Mechanical: level 1: 64 sf

re-planned prograM area: level g: 866 sf level 1: 2,637 sf level 2: 801 sf level 3: 691 sf

existing convenience stair reMoved. new stair connects the baseMent to existing egress stair at l1. relocated loading dock to exisitng breezeway

study services

office research lab flat floor rooM new elevator

vertical circulation loading dock Mechanical existing breezeway existing entry

loading dock vertical circulation new intervention re-planned prograM existing krieger entry new entry

prograM assessMent
total displaced prograM: 6,432 sf total re-planned prograM: 4,995 sf 33

ArchitecturAl Boston eXpo Boston, mA

Rhino | Photoshop

designing And Building the pAvilions

My firm was offered the chance to contribute to the design of two pavilions for ABX at the Boston Convention and Exhibition Center. We started the process by organizing an internal design competition. Among the many ideas that surfaced, the most resonant was that of a house – an inviting hub that would host people and spark conversation. We refined that concept – through researching, testing, and prototyping. We chose to work with translucent fabric, which suggests an in-between state –both fluid and solid. Fabric gives that concreteness and shape of structure while also conveying malleability and movement. The layering and the buoyancy of the fabric recalls interiors, creating a space where all are welcome to convene and connect.

34
35
the design and
36
production process
installation at abx showcase 37

TRANSACTION TOP: SSM

OVER 3/4" PLYWD SUBSTRATE. EASED ALL EDGES

PLYWOOD RIBS 24" O.C. WITH CUTOUTS FOR POWER AND DATA

PLASTIC LAMINATE (PL-1) OVER 3/4" SUBSTRATE AS SPECIFIED.

SUBSTRATE.

3/4" PLYWD

HARDWOOD

TYPE AS SCHEDULE. COLUMN WITH FIRE

LAMINATE PL-2 ON 2 3/4" SUBSTRATE WITH SHEET OF PLASTIC

COUNTER BRACKET ORIGINAL GRANITE SPACE AND PER MANUFACTURERS RECOMMENDATIONS.

FLOOR 2 14' - 8"

FWP-2

TILE

4 T Y P

2" GROMMET HOLES. LOCATE OVER CHASE AND BETWEEN BRACKET SPACING.

PLASTIC LAMINATE PL-2 ON 2 LAYERS OF 3/4" SUBSTRATE WITH BACKER SHEET OF PLASTIC LAMINATE. EASED ALL

HARDWOOD

HIDDEN COUNTER BRACKET BY "THE ORIGINAL GRANITE BRACKET". SPACE AND MOUNT PER MANUFACTURERS RECOMMENDATIONS.

METAL STUD BRACING SPACED AT 48" O.C. MAX., TYP.

3 5/8" X 20GA METAL STUDS @ 24" OC FASTEN TO STRUCTURE ABOVE

BLOCKING SPANNING BETWEEN RIBS FOR PANEL FASTENING, TYP

ACOUSTICAL CEILING TILE GRID SYSTEM

1/8"

HANGER WIRES

WALL

1' 11"

ELECTRICAL AND DATA OUTLET BOXES MOUNTED ON SIDE OF PLYWOOD RIBS. SEE ELEC & TEL/DATA DRAWINGS

FIN CEILING SEE RCP

OWNER SUPPLIED UPS HARDWOOD BASE

LEAVE OPEN FOR ADEQUATE AIR FLOW

1' - 0" 4 1/4" 2" 7" 1 1/2"

GWB SOFFIT 8'- 7"

14 " OVER EASED

REMOVABLE PANEL. PLASTIC LAMINATE (PL-1) ON 3/4" SUBSTRATE WITH PVC EDGES, MOUNTED ON HORIZONTAL BLOCKING WITH Z-CLIPS

FLOOR 2 14' - 8"

PROVIDE INTERMEDIATE BLOCKING AS REQUIRED TO SUPPORT OWNER SUPPLIED UPS.

EXPANSION BOLT TO SLAB 24" O.C. AND 12" IN FROM EACH CORNER

ACOUSTICAL CEILING TILE GRID SYSTEM

RAILING. REFERENCE WALL FINISH PLAN. PROVIDE BLOCKING AS REQUIRED.

1 OWNER SUPPLIED UPS HARDWOOD BASE

3 5/8" METAL STUD FRAMING FOR SOFFIT

ACOUSTICAL CEILING TILE GRID SYSTEM

EDGE BEYOND

LIGHT FIXTURE. SEE MEP DWGS

GLASS xxx - CK SPEC PROVIDE BLOCKING AS REQUIRED 26

10 21 0

6" CEILING 8'-6" 8 "

5/8" GWB OVER 1X WOOD BLOCKING 2 1/2" METAL STUD FRAMING FOR SOFFIT

FWP-2 1 3/4" 5"

PLASTIC LAMINATE PL-2 ON 2 LAYERS OF 3/4" SUBSTRATE WITH BACKER SHEET OF PLASTIC LAMINATE.

GWB SOFFIT 7'-10"

1" BLOCKING SPANNING BETWEEN RIBS FOR PANEL FASTENING, TYP ELECTRICAL AND DATA OUTLET BOXES MOUNTED ON SIDE OF PLYWOOD RIBS. SEE ELEC & TEL/DATA DRAWINGS

GWB

HIDDEN COUNTER BRACKET BY "THE ORIGINAL GRANITE BRACKET". SPACE AND MOUNT PER MANUFACTURERS RECOMMENDATIONS.

TRANSACTION TOP: SSM OVER 3/4" PLYWD SUBSTRATE. EASED ALL EDGES UPS

FIN CEILING SEE RCP VAIRES PLYWOOD RIBS 24" O.C. WITH CUTOUTS FOR POWER AND DATA LEAVE OPEN FOR ADEQUATE AIR FLOW

CEILING 9'- 6" PVC DRAIN BODY

TILE AND GROUT AS SPECIFIED, SET IN THINSET. EXISTING FLOOR

WATER PROOF STRIP SET IN THINSET OVER DRAIN FLANGE

ALIGN TO TOP OF DOOR FRAME EXTERIOR INTERIOR EXISTING EXTERIOR GLAZING PARTITION AS SCHEDULED GORDON END CAP 911-EC-487 GORDON MULLION MATE ADJUSTABLE PARTITION CLOSURE #9 EXISTING MULLION LINE OF SILL LINE OF WALL BELOW WOOD BLOCKING BELOW SILL. PROVIDE DRYWALL ABOVE SILL DRAWING INFORMATION N PROJECT INFORMATION A953 MISCELLANEOUS DETAILS BID PACK 5 11/01/19 5 Perryridge Road Greenwich, CT 06830 JOB NO: 4995.007 INPATIENT BED REALLOCATION SCALE 1" = 1'-0" TYP CORR SIGNAGE AT PATIENT ROOM 1 SCALE 3" = 1'-0" PLAN DETAIL AT WINDOW MULLION 5 MIRROR SCALE 1 1/2" = 1'-0" COLUMN ENCLOSURE DETAIL 2
CEILING SEE RCP METAL STUD BRACING SPACED AT 48"
MAX., TYP. 4 T Y P FIN CEILING SEE RCP
PLAM PATIENT ROOM SIGNAGE. COORDINATE WITH OWNER 42
FIN
O.C.
RADIANT PANEL. SEE MECH DWGS GWB SOFFIT 11'- 7" HANGER WIRES
WALL CHANNEL MOULDING SUSPENDED STEEL CHANNEL GWB CEILING PERIMETER WALL 2 1/2" METAL STUD FRAMING ROLLER SHADE LINE OF FACE OF COLUMN BEYOND CEILING 9'- 6" 14
RADIANT PANEL. SEE MECH DWGS
CHANNEL MOULDING SUSPENDED STEEL CHANNEL GWB CEILING PERIMETER WALL 2 1/2" METAL STUD FRAMING ROLLER SHADE LINE OF FACE OF COLUMN BEYOND
DOOR PORCELAIN TILE CARPET (CPT)
/ 2
1 / 4 EQEQ MARBLE TRANSITION STRIP DOOR RUBBER FUSION STRIP LATEX FLOORING CEMENT SLOPED MIN 1:20 AS REQUIRED TO ALIGN TOP OF FINISHED FLOOR- REFER TO SPEC FOR SUBFLOOR LEVELING TRANSITION PRODUCT EQEQ SHEET OR TILE RESILIENT FLOORING (SV, LVT
AND GROUT AS SPECIFIED. SET IN THINSET. BASE TILE WATER PROOFING TRANSITION STRIP PER REQUIREMENTS WATER PROOFING MEMBRANE, CONT. TO CEILING, TYP. AS SCHEDULE AND GROUT OWNER CONSULTANT STAMP ISSUANCES NO.DATEDESCRIPTION INPATIENT SCALE 1 1/2" = 1'-0" ORTHO RADIANT CEILING PANEL 2 SCALE 1 1/2" = 1'-0" ONC RADIANT CEILING PANEL 3 SCALE 1 1/2" = 1'-0" CEILING HEADER ACT TO GWB 8 SCALE 1 1/2" = 1'-0" TYP LIGHT COVE 6 SCALE 1 1/2" = 1'-0" TYP CEILING HEADER 7 1'-0" CARPET WITH MARBLE THRESHOLD FLOOR TO TILE TRANSITION FLOOR 2 14' - 8" X2 1 1/2" 1' - 0" 1' 11" TRANSACTION TOP: SSM OVER 3/4" PLYWD SUBSTRATE. EASED ALL EDGES SSM
5/8" GYP BD OVER METAL STUD FRAMING (MATCH ADJACENT PARTITION THICKNESS) PLASTIC LAMINATE (PL-1) OVER 3/4" SUBSTRATE AS SPECIFIED.
REMOVABLE PANEL. PLASTIC LAMINATE (PL-1) ON 3/4" SUBSTRATE WITH PVC EDGES, MOUNTED ON HORIZONTAL BLOCKING WITH Z-CLIPS
PROVIDE INTERMEDIATE BLOCKING AS REQUIRED TO SUPPORT OWNER SUPPLIED UPS. EXPANSION BOLT TO SLAB 24" O.C. AND 12" IN FROM EACH CORNER
HARDWOOD
2" GROMMET HOLES. LOCATE OVER CHASE AND BETWEEN BRACKET SPACING.
EDGES UPS
PROVIDE BLOCKING AS REQUIRED
SSM EDGE BEYOND
26 10
ARCHITECT OWNER CONSULTANT STAMP ISSUANCES NO.DATEDESCRIPTION SCALE 1 1/2" = 1'-0" CHECK IN DESK GLAZING MEETS TRANSACTION TOP DETAIL 2 SCALE 1 1/2" = 1'-0" CHECK IN DESK TRANSACTION TOP DETAIL 3 NEW SSM SILLS, TYP. EXISTING WINDOW ASSEMBLY TO REMAIN 1 " NEW WALL BASE AS SCHEDULED EXISTING PARTITION ASSEMBLY TO REMAIN 3/4" V I F E X I S T I N G H E I G H T LINE OF SILL BEYOND WALL PROTECTION. SEE WALL FINISH PLAN, TYP. PROVIDE BLOCKING AS REQUIRED PLYWD SUBSTRATE 1 1 / 4 " 1 / 2 " MIRROR LAMINATED TO 1/4" MDF SUBSTRATE, MOUNTED ON Z-CLIPS 1/2" GWB SOFFIT SCALE 1 1/2" = 1'-0" SECTION AT WINDOW SILL 8 1'-0" DETAIL PHYSICAL THERAPY BAR LEFT EDGE section detail at glazing and transaction top plan detail at window Mullion section detail at radiant ceiling panel section detail at windowsill 39
2 Seaport Lane Boston, MA 02210 T:617.423.1700 F:800.934.9691 shepleybulfinch.com

Harold WasHington

CHiCago, il

Rhino | Photoshop

library

designing the new puBlic liBrAry

The architecture of the central public library creates unique and diverse atmospheres to accommodate all types of users. The material of brick was chosen to pay homage to the fabric of Chicago and making a statement to the people that the public library is accessible to all. The library therefore alters the aesthetic of historic Chicago materiality by incorporating common brick in an innovative façade. The enclosure of the exterior brick façade structure creates two types of enclosed zones. The loud zone - a public garden located between the library program and exterior brick enclosure. The quiet zone - the enclosed specific library programs. The box-within-a-box concept places the loud zone visible to the street thus attracting foot traffic and encourage engagement. The loud zone is accessible as users move through the quiet library zone by activating terraces. The quiet zone creates a controlled and private atmosphere more specifically suited to the programmatic uses of a library. By shifting floor elevations and ceiling height, unique and different spaces are created to accommodate diverse program uses and specific users.

40
state street elevation 41
state street perspective 42

congress parkway site plan

s tate s treet

forM study 43
state street section perspective 44

tertiary structure: Mullions and glass

priMary structure: steel trusses

secondary structure: steel clip

facade: brick veneer

structural coMposition 45
d1 d2 d7 d5
section 46
d4 d3 d6

building

assembly

specifications

14. 8” extruded steel tube welded trusses, 20” wide x 12’-0” deep 22. HSS8x8x1/2 horizontal lateral bracing between trusses 23. 1/2” steel rod with turn buckles 24. two (2) L2x2x1/4 brackets with welded and bolted connection 25. standard module chicago common bricks 26. mechanical brick tie with adjustable length 27. curved L10x10x3/8 to support brick, welded to truss 28. custom finish brickn to mimic appearance of chicago common, 8” x 8” x 2” 29. 5” structural normal weight concrete slab 32. #5 reinforcing steel rebar cage placed in concrete cap 38. 20” concrete columns, 20’-0” on center 40. 1/2” terrazo finish floor 41. 1/2” diameter radiant flooring tube 44. 2 1/2” finish concrete slab with radiant flooring 45. ceiling grid hanger 48. hanging aluminum ceiling grid 49. 3/8” gypsum board 54. double pane triple glazed, low-e glazing, 4’-6” x 4’-6” panels 55. Focal Point led downlight, recessed, id 4.5” placed 6’-0” on center

section details
d1
d5
23 25 22 26 24 27 28 14 40 44 43 41 29 32 45 48 49 55 54 53 49 38
d6 d7
d3 d2 d4
47
unique experiences
48
ground level
level 6: social science and business level g: active zone level 8: reading / exhibition open terrace reading area
Model
the library 49
of
50
view froM n lincoln MeMorial dr. 51

2 Main cores to bridge across guiding people by changing landscape twin space: enclosed space above and open sheltered space below

concept diagraM 52

aMphitheater froM parking lot great lakes theMe gardens 53

exhibition / events prograMMing diagraM circulation diagraM

classrooM library restaurant auditoriuM Meeting rooM entry lobby open sheltered space seMinar

nlincolnMeMorialdr.

nlincolnMeMorialdr.

aMphitheater

great lake theMe garden

54

a b

Heated

roof corner detail section detail plan floor corner detail section wall section a wall section b

the
mAteriAl And form DETAIL SECTION 2nd FLOOR
study process of space
Plan 55
top bottom
section a 56

elevation a

section b
57
a a b b elevation b

view of restaurant

58
59
view of entry core
60
view of exhibition / event space
61
view of great lake garden

VANLIM MA

vanlimma26@gmail.com | (978)-319-7744

64
65

Turn static files into dynamic content formats.

Create a flipbook
Issuu converts static files into: digital portfolios, online yearbooks, online catalogs, digital photo albums and more. Sign up and create your flipbook.