
Building
a Better Medical Engineering Department



![]()

Building



Proposed Multi-Phased BME Lab Build-out

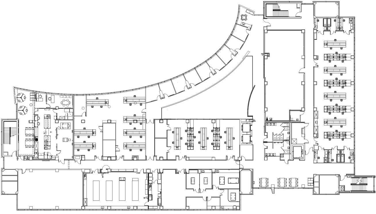
Interdisciplinary Sciences (ISA) Building
7th Floor Strategic Use Plan
Proposed Multi-Phased BME Lab Build-out
The Medical Engineering Department needs to acquire sufficient laboratory space to recruit highly accomplished Biomedical Engineering (BME) faculty and establish a focused presence and identity for the Department of Medical Engineering in the location of the departmental office center on the 7th floor of the ISA Building.
Overview of Proposed Project Scope:
• Seven (7) Large Labs (A-G)
• Seven (7) Large Labs (A-G
• Nine (9) Offices
• Nine (9) Offices
• Student Engagement Area
• Student Engagement Area
• Maker Space (H)
• Maker Space (H)
Overview of Proposed Project Scope: Legend:
• Phase 1
• Phase 2
• Phase 3
• Phase 4 COMPLETE
Student meeting and interaction areas, i.e., state-of-the-art interactive/study space for STEM students and common/fundraising space for the Department are key parts of the renovation, along with additional faculty research labs and the new BME student lab.


The renovation will capitalize on the allocation of faculty positions to recruit national and international leaders and the best of junior scientists to increase the impact of research conducted in the Department of Medical Engineering, and hence the reputation of the Colleges of Engineering and Medicine, and the University.
The additional space will also provide more opportunities for undergraduate and graduate BME students to carry out state-ofthe-art biomedical research. The renovation will be a tremendous positive impact on BME student education and enrollment.
Without this renovation/expansion, student lab facilities are not available for enough hours/week to handle lab courses and Capstone projects at the same time, limiting student success in these 2 areas.

Additionally, the expansion of Department offices will allow for the addition of new faculty of instruction and administrative positions as the biomedical engineering student population grows.


Research laboratories resulting from the renovation will create a critical threshold for scientific interaction and acceleration for BME education and research at USF. As a result, more external, multi-year federal research grants will come into our College and USF.
Also, the increase in Department core facilities for shared equipment will allow for significant increases in research and education efficiencies.
