
5 minute read
STAGE 3 Architecture
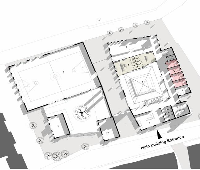
The third year of the BA programme offered our students the opportunity to experiment with a wide range of urban and architectural tools, while working on ‘live’ projects. This year’s two design studio modules, ‘Sustainable Urban Intervention’ and ‘Architectural Design’ drew inspiration from the current collaboration between our School and Medway council and focused on the fascinating area of ‘Chatham Intra’. Lined with high-quality historic buildings, the high street of Chatham Intra has lost much of its original frontage, while redundant industrial structures and large-scale modern buildings cut it from the riverfront. In the autumn term, the students analysed this area, and developed new masterplans that seek to infuse new life into the declining high street, reconnecting it with the river and the adjacent areas of Chatham, Rochester, and the Royal Dockyard. Focusing on the design of new urban spaces that enhance the coherence and continuity of the city, this project paved the way for the detailed design of new buildings during the ‘Architectural Design’ module in the spring term.
‘Architectural Design’ gave the students the opportunity to develop new models of community-led service provision and design a building that can support such models. Starting from the identification of innovative services related with the themes of ‘Education’, ‘Wellbeing’, ‘Culture’ and ‘Work’, the students analysed how these services are delivered and demonstrated their benefits for local social groups. This set the basis for the detailed design of new buildings and urban spaces which, according to the module’s brief, needed to be innovative, experimental, affordable, inclusive, user-centred, and sustainable.
Advertisement
Alongside the above design studio modules, our third-year students had the opportunity to develop skills in the fields of architectural history, professional practice, and research. The ‘architectural practice’ module analysed this year’s architectural design project from the perspectives of professional ethics, planning and building law, practice management, and building information modelling. The twentieth-century architecture module explored architectural developments from the 1890s onwards providing the students with the theoretical background and knowledge necessary to understand recent architectural and urban design challenges. Finally, the dissertation module offered students the opportunity to explore thoroughly an aspect of architecture of their choice. Helping to develop new research skills, this module seeks to inspire our students as they are preparing to continue their architectural journey following the completion of the BA programme.
The modules below provided a multifaceted understanding of architecture, which was further enhanced by two field trips. In the autumn term, a group of students joined Ron Yee and Michael Richards on an exciting journey around the Swale area. In the Spring Term, another group led by Nikolaos Karydis explored the cities of Bath and Bristol, which offered a unique opportunity to observe closely some of the UK’s most interesting buildings and urban spaces.
‘Sustainable Urban Intervention’ (ARCH5570)
Tutors: Nikolaos Karydis (module convenor), Manolo Guerci, Michael Richards, Silvio Caputo, Peter Wislocki, Rebecca Muirhead, Shaun Huddlestone, Ronald Yee, Faye Tamsett, Andrew Reader
‘Architectural Design (ARCH5580)
Silvio Caputo (module convenor), Michael Richards, Ivan Del Renzio, Rebecca Muirhead, Shaun Huddlestone, Chloe Young, Lee Jasson, Andy MacFee, Ron Yee, Andrew Reader, Faye Tamsett
‘Architectural Practice’ (ARCH5550)
Tutors: Peter Wislocki (module convenor), Tara de Linde
‘Twentieth Century Architecture’ (ARCH5560)
Tutors: Alan Powers (module convenor), Victoria Lourenço, Gordana Fontana-Giusti , Gerald Adler
‘Dissertation’ (ARCH5970) convened by Silvio Caputo – students supervised by KSAP tutors.
Nikolaos Karydis
Stage 3 Co-ordinator









































SCARLET ALLNATT
Stage 3 scarletallnatt@gmail.com

The Wellness Centre is a social and wellbeing hub that centrally conglomerates the activities of the local council, charities, health services, and churches which aid the struggling public. The project is designed to aid with the well-being deprivation seen in Chatham Intra, providing homelessness faciltites, technology hubs and a crisis cafe.








LinkedIn - Scarlet Allnatt www.linkedin.com/in/ scarlet-allnatt/





Blue Thoughts Well-being Centre
The BT Well-Being Centre is a safe place for clients to go to. Encouraging their relationship with nature, the building is designed in harmony with the environment. The use of planting and green spaces encourages growth as an individual and encourages physical activity. Providing safe spaces throughout, clients are given the opportunity to take part in planting. All as part of the scheme to “Grow Your Blue Thoughts” they learn to grow as an individual.


Erica Beale ericabeale14@gmail.com



EPHRAIM BELEKE Stage 3

The Xapá Building
The proposed architectural project aims to provide a safe haven for troubled teenagers and young adults in Chatham, England. The envisioned center will offer a multifaceted approach to rehabilitation and a change of behaviour, focusing on three primary activities: Boxing, Music and Art. These three activities have demonstrated their efficacy in helping individuals cope with antisocial and violent behavior.




The overarching goal of this project is to create a nurturing environment where troubled individuals can receive essential support, mentoring, and therapy, ultimately empowering them to embrace personal growth and become positive contributors to society. To make this design more inclusive, the addition of a multipurposed sports hall, restaurant, cafe and shop have been added to my project.
Ephraim008@icloud.com bburtenshaw01@icloud. com





Architectural Design focuses on the Chatham Intra area. The aim of the project was provide an intervention that helped accomodate and improve ‘well-being’ in the local area. I chose to design a Well Being Centre that was focussed on providing a service to better both the mental and physical health of the local community post pandemic.





Within my Well Being Centre I aimed to create a space which was uninstitutional in its appearance both internally and externally, whilst successfully providing an effective service.

In addition, my palette of materials was comprised of as many locally sourced materials as well as repurposed elements from the B&M supermarket which was initially on the site.




CAITLAIN CAINE Stage 3

My project is about three different ideas: Planetarium, Library and Chitin Research facility, each idea linked by education.



The Planetarium a place to view the stars and planets in a cinematic way. It’s a great fun activity whilst being able to learn about outer space for all age groups.
The Library a big space for socialising and meeting new people, whilst having a place to study and learn.
The Chitin research facility is a space to learn about chitin and make your own biodegradable tools out of chitin through the workshop space. Chitin that comes from crab shells which are usually wasted can be converted into bioplastic that can be used to make bioplastic tools. Once you have no use for that tool it can be converted into a liquid fertiliser for plants, meaning you’re not wasting anything.
caitlaincaine@hotmail. co.uk
Instagram: @caitlain_ caine_arch
INTERIOR PERSPECTIVE OF COMMUNAL RAMPED WORKSPACE




EXPLODED AXONOMETRIC
PERSPECTIVES OF EXTERIOR SPACES

MARCUS CHIK Stage 3

The objective of the project is to create an information exchange hub where people are able to come to work freely and learn skills from one another. The main concept of this design is to force interactions amongst visitors. This is done by the creation of ramps with workspaces aligning them, with the hope that people working at one point can learn from another working close to them.
With people preferring to work within different environments, the building is split into different sectors with the floors above designated for quieter spaces and the top floor allocated for teaching spaces.



The design is built by using the existing walls of the old building as a skin. With a new building constructed within extruding upwards with the materiality of timber and glass.


chik.marcus@gmail.com
LinkedIn: linkedin.com/in/marcuschik








