Portfolio Umme-Hani

Page 1

Umme-Hani Mebobaly

M

B O B A L Y

0749412391

umme.meb@gmail.com

Sept- Fev 2022 (6 mois)

Langues

Anglais (B2)

Hindi - langue maternelle

Ou�ls informa�que

Autocad

Revit

Sketchup Rhino Suite Adobe

Qualités

- Facilité d’adapta�on

- Autonome

- Curieuse

- Rigoureuse

- Organisée

Centres d’intérêt

- Par�cipa�on aux chan�ers d’éco-construc�on au sein du réseau TWIZA (organisme rassemblant une diversité d’acteurs de l’habitat écologique)

- Conférences, MOOC, Expos sur l’architecture en terre cru et fibre végétales - Amaco

- Membre ac�f du Lions Club associa�on humanitaire à Madagascar

- J’apprécie appréhender de nouvelles cultures (Road trip Inde, Japon)

Juil/Août 2019 (2 mois)

Stage de fin d’études - Assistant Chef de Projet Junior Wilmotte et Associés Paris

- Suivis de chantier du projet de Réhabilitation du Nouveau Campus de Sciences Po dans le 7ème à Paris

- Elaboration de VISA (étape de contrôle des plans d’exécution)

- Rédaction des fiches de non conformité

- Superviser les OPR (Opérations Préalables à la Réception)

- Mise à jour des pièces graphiques du DOE (dossier des ouvrages exécutés)

- Elaboration de documents graphiques sur Autocad à l’échelle 1/50 et 1/20 d’un projet de réhabilitation d’mmeuble d’habitations en bureaux à Avenue de l’Opéra - phase Etudes de projet PRO

- Modélisation 3D sur Revit d’un centre hospitalier en hôtel phase esquisse

Stage de Première pratiqueTerreneuve Architectes/Urbanistes Paris

- Réalisation de documents graphique sur Autocad et Sketchup et maquette à l’échelle 1/100 ème d’un projet de réhabilitation de la Banque de France de Tulles en Cité de l’accordéon - phase APD

Août 2018 (1 mois)

ACADE Madagascar

Travail sur les documents graphiques de deux maisons indi viduelles autosuffisante intégrant des principes construc tifs bioclimatiques et l’utilisation des ressources dispo nibles localement - phase esquisse

Juillet 2017 (3 semaines)

Stage Ouvrier: Restauration d’une bâtisse du XVIIè siècle en Occitanie dans un site médiéval

- Réalisation d’une cloison en pan de bois avec remplissage en brique de terre cuite (assemblage en bois traditionnel sans vis ni clous) en collaboration avec un charpentier - Mise en oeuvre d’un mur de soutènement en pierres

Obtention du diplôme d’Etat d’Architecte avec mention bien PFe- Relance de la filière Terre crue à Mayotte Création d’une unité de fabrication de briques de terre compressées et d’adobes fibrées ainsi que d’un lieu de formation et d’expérimentation

ENSA Paris La Villette

Master 1 en échange universitaire

Kyushu University Japon

Diplôme de Licence - ENSA Paris La Villette Workshop au Sénégal en partenariat avec les étudiants d’architecture de Dakar Visites d’habitats traditionnels en terre crue, échange avec les élus de l’aménagement du territoire pour comprendre les besoins des habitants

Classes Préparatoire - Section Architecture

Ateliers Beaux Arts de Paris Année préparatoire en Art-appliquée Ecole supérieure des Arts Moderne de Paris Baccalauréat Scientifique Lycée Français Madagascar

U M M E - H A N I
E
2019-2020 2016-2019 2018 2022
2015-2016 2014-2015 2014

Réhabilitation

Living

Projet de fin d’étude Relance de la filière Terre crue à Mayotte encadré par Julien Beller p.6-8
Village - Licence 3 Projet de logements collectifs Nussaume et Saubot p.9 Plug-in City - Master 1 Echange Japon p.10
d’une faculté d’architec ture en musée et bibliothèque - Master 1 Echange Japon p. 11 Maison à patio, Entre intérieur et extérieur Licence 2 p.12 Stage - Wilmotte et Associés p.13 Stage - TERRENEUVE Architectes Stage Ouvrier - Restauration/ Chantiers Participatifs Terre cru p.14 p.15 Carnet de voyages p.16

maisons

Fa - brique - Mayotte

Par quels moyens sensibiliser la population locale afin de relancer la filière terre crue à Mayotte ?

Implanté dans le village de Kawéni, au nord de la capitale, le terrain choisi se situe entre deux zones, une zone d’activité industrielle et une zone de logements insalubres.

La zone de logements précaires et le terrain choisis seront dans les 10 prochaines années réamé nagés et requalifiés dans le cadre du Nouveau Programme National de Renouvellement urbain (ANRU). Ce projet d’usine, entre autres, apportera les savoir-faire nécessaires pour permettre aux acteurs de la construction de réaliser des logements à bas coût avec des matériaux disponible à proximité et une volonté d’impact minimal grâce à l’ingéniosité des principes bio-climatique.

Le choix s’est porté naturellement sur ce terrain étant donné qu’une briqueterie artisanale y existe actuellement. L’idée principale est de restructurer la totalité de la parcelle et de revoir toutes les étapes de production de la brique de terre compressée (BTC) pour améliorer le rendement. Au-delà de créer une unité de production de briques de terre compressées et d’adobes fibrées, j’en visage de concevoir un lieu d’expérimentation pour permettre aux apprentis et à leurs encadrants d’être partis prenant du projet, penser comme outil pédagogique tant pendant les formations que la construction de celui-ci.

Plan de

Axes routier (goudronnés)

Route en terre

Tissu industriel et commercial Zone scolaire

Tissu urbain spontanée

Bâtiments administratifs

Zone de stockage (hangar)

Maisons individuelle (en parpaing)

Mangrove

Zone agricole

4
PFe (S 10) Architecture des milieux, territoires, paysages. Suivi par Julien Beller
insalubres à proximité de la parcelle
Briqueterie artisanale existante photo prise lors du voyage d’étude en Février 2022 Site du projet COUPE TRANSVERSALE AA’DU LIEU
L’espace de transformation de la matière
masse de l’existant Les deux bâtiments de production L’espace de transformation de la matière Le laboratoire et le deuxième bâtiment acceuillant les vestiaires et les bureaux L’entrée de la Fabrique Nord Vents dominants Eté austral Récupération des eaux de pluie pour arrosage sanitaire

-

-

-

-

-

Recherche de dispositifs de toiture audacieux

-

5 COUPE BB’DU LIEU D’EXPERIMENTATION - 1/50 L’entrée de la Fabrique L’entrée du Lieu d’expérimentation Plan RDC Coupe longitudinale BB’ du lieu de formation L’entrée du Lieu d’expérimentation L’intérieur de la Bibliothèque recouverte par un système de voûtes
Jardin partagé à l’arrière du centre de formation
BB’DU LIEU D’EXPERIMENTATION - 1/50 ème COUPE LONGITUDINALE CC’ - 1/50 ème La cour en contrebas menant aux différents volumes L’intérieur de la Bibliothèque recouverte par un système de voutes Plan RDC - 1/500 et détails constructifs au 1/20 Principes bio-climatique:
Orientation des bâtiments en tenant compte des vents dominants du Sud-Est et du Nord-Ouest,
Protection contre la pluie et le soleil : Toitures débordantes, surrélevés et ventilées à la manière de l’architecte Francis Kéré / Brise-soleil et casquette
Espace traversant pour une ventilation naturelle
Rafraichissement de l’air ambiant grâce à la végétation
:
Bibliothèque recouverte de voûtes en brique de terre compressée et d’une surtoiture en tôle pour résister en cas de cyclone.
Toiture en shed de la Fabrique pour apporter une lumière naturelle indirecte. Vue de l’entrée du lieu d’expériementation Vue sur la cour en contre-bas Une entrée secondaire au lieu de formation On aperçoit le réfectoire et l’internat Vents dominants Hiver austral Sud Infiltration des eaux de pluie

Programmation

1- Unité de production de briques de terre compressées

2- Zone de production des briques d’adobe fibrées

3- Laboratoire - analyse d’échantillons de matière première

Point de vente

5- Zone d’approvisionnement des matières premières

6- Laboratoire - Analyses et test de résistance des ouvrages en ma çonnerie et produits finis

-Vestiaires et Bureaux

8- Résidence principale du directeur de la briqueterie

9- Local de stockage d’éléments métalliques

10- Bâtiment en double hauteur composé de local de stockage, laboratoire d’analyses sensorielles et d’espace d’expérimentation de techniques de remplissage de terre et de fibres et de pose d’enduit.

11- Deuxième bâtiment en double hauteur composé d’espace d’expérimentation pour murs en maçonnerie terre et prototypes à l’échelle 1 de briques d’adobes fibrées et de terre compressées

- Bibliothèque

Salle de conférence

Réfectoire

- Internat pour les apprentis maçons

4-
7
12
13-
14-
15
7 6 3 4 8 9 11 10 14 12 13 15 5 2 1 PLAN DU LIEU D’EXPERIMENTATION PLAN DU LIEU DE PRODUCTION ACCES PRINCIPAL ACCES PARKING ACCES SECONDAIRE

Choix des matériaux et principes constructifs

Je me suis appuyée aux normes prescrites dans l’Atex pour concevoir et adapter le principe constructif à la hauteur et à la portée de l’ouvrage.

Bureaux : Mur en BTC porteur

Laboratoire: Mur apparent en BTC, ossature en bois

Bibliothèque et salle de conférence: Mur BTC de 29.5 cm avec chainage vertical BA

Réfectoire: Ossature en Béton armé et remplissage BTC 22

Atelier: Ossature en bois et remplissage BTC 22

Fabrique: Ossature métallique et remplissage BTC 22

Plan RDC et détails constructifs

Maquette de l’ensemble du projet

7 La fabrique: l’unité de production Le lieu de formation joint mastic élastomère poteau d'ossature bois attache attache de liaison poteau d'ossature bois blocs spéciaux avec chainage vertical BA chainage vertical BA BTC 22 fixation vissée menuiserie fixée dans le BTC poteau profilé métallique vide profilé métallique en U ou cornières raidisseur BA raidisseur en BA ou précadre de fenêtre poteau en bois chainage vertical BA dans maçonnerie BTC en contrefort attache de maintien mécanique dans joint de mortier horizontal pièce de maintien formant étrier joint mastic élastomère

L. 3 S. 1. Projet de logements collectif encadré par Yann Nussaume et Antoine Saubot

Complexe d’immeubles de 100 appartements sur un terrain en forte pente (3 m de la rue jusqu’au centre de la parcelle) dans le 16ème arrondissement de Paris.

Objectif: Faire cohabiter des familles, étudiants et personnes âgées.

Selon le contexte immédiat dans lequel elle s’inscrit, la composition des façades se fragmente pour ouvrir les vues vers le jardin, le soleil et l’horizon.

Le projet propose plusieurs types d’espaces paysagers : un jardin planté à l’Ouest ouvert sur le quartier, un cheminement et des espaces verts résidentiel, un pas sage Est-Ouest assurant la connexion piétonne avec l’ensemble des habitants de l’ilot, des loggias, terrasses et balcons pour les habitants. Ils sont autant d’atouts pour le confort de cette nouvelle résidence.

Ce village Sénégalais est composé de chemine ments ombragés et de petites cours. C’est en s’inspirant de cette disposition de plein/vides que nous avons voulu placer nos six bâtiments

Un des bâtiments acceuille des T3 en duplex. Ces logements sur deux niveaux permettent à un jeune ou vieux couple de vivre en colocation avec un étudiant.

Cette manière de vivre incite, à mon avis, les personnes à se croiser, à échanger et ainsi avoir des relations plus conviviales.

Plan du premier niveau

Vue du séjour traverssant

Cet immeuble est une association de trois barres qui se décale pour créer des séjours traversants.

Les séjours donnent ainsi une vue impre nable sur la place principale du côté Nord et sur le bois de Boulogne du côté Sud.

Plan d’étage courant

Plan du deuxième niveau

8 Living Village
Vue depuis la cour Plan du RDC

Plug-in City

M. 1 S. 1 - Echange au Japon / Projet Urbain et Architectural

Ce projet part d’une idée toute simple de réaliser des espaces flexibles pour un usage temporaire.

Ce projet tente de rendre plus vivante et dynamique cette zone aussi bien en jour née qu’en soirée. L’idée a été donc de réaliser des unités faciles à transporter, assembler et démonter.

Ces unités peuvent être placées dans l’espace public (trottoirs, routes piétonnes) ou peuvent servir d’extension à un bâtiment existant (image A). Elles peuvent être utilisées comme lieu pour un concert en plein air, des boutiques, bars éphémères.

Deux unités différentes pour les boxes privatifs s’insérant dans la structure porteuse du bâtiment

Espace pour mangerCuisine Trois lits

Ces unités sont dimensionnés selon les mesures d’un tatami 1 lit - 1 tatami - 91/182 cm

Trois bâtiments composés de structures en acier, d’éléments fixe (cuisine, sanitaire) et d’éléments amovibles (lit, bureau, espace pour manger) viennent compléter ce projet. La nuit, lorsque les unités ne sont pas utilisées par les clients dans l’espace public, elles sont transposées dans un des trois bâtiments pour servir de chambre et d’espaces de vie. L’ensemble d’immeubles composés de volumes démontables devient donc un hô tel pour loger des voyageurs, des personnes nomade venus pour le travail. Le parking est situé au rez-de-chaussée. Le premier niveau est un espace ponctué de boutiques et d’espaces de restauration et les trois niveaux supérieurs sont composés d’appartements modulables.

Conception des bâtiments sur une parcelle où il y avait uniquement des places de parking

C-Boutiques, galerie d’exposition

Réhabilitation d’une faculté d’architecture en musée et bibliothèque

Objectif: Rendre cet espace attractif aussi bien à la nouvelle génération, futurs usagers du quartier, qu’aux personnes âgées vivant depuis longtemps à proximité de ce lieu.

Travail d’aménagement paysager: Espaces de promenade, de détente et de jeu (skate parc)

Réhabilitation du bâtiment B en un centre culturel

Intentions: Rendre l’espace le plus fluide possible Seules quelques cloisons et poteaux suivant un trame régulière viennent reprendre les charges verticales. Structure composée essentiellement d’éléments métalliques avec des ouvertures en toiture pour faire ren trer la lumière naturelle.

Plan de masse Vue de l’escalier à partir de la salle principale - RDC
Bibliothèque - R+1
M. 1 S. 2 - Echange au Japon - Réhabilitation/Traitement Paysager

Maison à patio - Entre intérieur et extérieur

L. 2 S. 1-

de maison

entre la Rue et

Encadré Lucas Meister et Olivier De Boismenu

Objectif:

Bois

La parcelle étroite (Longueur: 8 m et profondeur 24 m) nécessite une bonne réflexion sur l’entrée de lumière naturelle.

Cette maison est constituée de trois patios, un marquant l’entrée (autrement dit la cour avant), le deuxième, le plus grand, au centre de la maison appor tant de la lumière naturelle aux 3 pièces de vie (séjour, cuisine et chambre), et le dernier marquant la sortie (dit l’arrière-cour).

cinq

Proposition

11
Projet
individuelle
le
Coupe longitudinale AA’ Coupe longitudinale BB’ Plan RDC Plan R+1
finale : escalier à proximité du patio
Travailler sur la question de la maison en série et mitoyenne pendant
semaines.

S

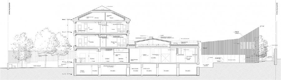
TAGE - Wilmotte et Associés - Octobre - Décembre 2022 (3 mois)

Réhabilitation de l’hôtel de l’Artillerie en Campus de Science Po

L’ensemble est composé de quatre bâtiments et de trois cours. L’ équipe de Wilmotte & Associés a pris le parti-pris de doubler la surface existante, en créant des espaces au sous-sol. Elle y a aménagé une bibliothèque de 1000 m², de nouveaux plateaux de travail, des espaces de convivialité et des lieux de professionnalisation (incubateur, fab lab, studio audiovisuel et salle de rédaction de l’école de journalisme).

Le bâtiment 5 est destiné à la démolition. Un nouveau bâtiment sera édifié au centre de la cour. Il acceuillera une cafétéria et des open space au niveau supérieur.

- Cour Sébastopol : Jardin à la fois contemporain et respectueux du cloître historique

Les travaux ont révélé des traces du passé… Dans la continuité des travaux, des pans de bois datant du bâtiment d’origine (le cloître) ont été découverts. Les cloisons de bois étaient remplies de cailloux, de morceaux de briques et de plâtre. Afin de conserver ces vestiges intacts, un lattis a été cloué sur les montants du pan de bois et s’est vu appliquer une couche de plâtre de finition.

- Cour Gribeauval : Cette grande cour constitue le coeur du projet.

- Cour Treuil de Beaulieu : Cette cour est consti tuée de bacs plantés d’herbes aromatique.

Dans les combles, de remarquables fermes laisse penser que la charpente a pu être remaniée au fil de la longue histoire des lieux. Ces éléments historiques vont être répertoriés puis coffrés, afin de les protéger et de les conserver dans le temps.

Mission:

- Assister le chef de projet durant la dernière phase, deux mois avant la réception provisoire du chantier.

- Vérification de la conformité des ouvrages avec les études techniques d’exécu tion préalablement réalisés par les maîtres d’œuvre particuliers.

- Elaboration de fiches de non-conformité et de fiches croquis afin d’expliquer à chaque entreprise pour quelle raison leurs ouvrages ou équipements ne ré pondent pas aux attentes de l’architecte.

- Assister l’équipe Corelo (entreprise de maîtrise d’œuvre d’exécution) à relever toutes les réserves sur un logiciel précis de gestion de projet, lors des Opérations Préalables à la Réception (OPR).

Modèle de fiche

Réaliser la peinture du soffite et poser la grille de ventilation

Réserve attribué à l’entreprise qui s’occupe de la pose du radiateur et à l’électricien.

Lefort: Finition des fourreaux et ajout de tête thermostatique

SDEL: Poser les terminaux et combler le trou par une prise

12
Plan du Sous-sol -1 du Bâtiment 3-4
de non-conformité
Modèle de fiche croquis Cour Treuil de Beaulieu

Projet de réhabilitation et d’extension - Tulles

Mission:

- Réalisation d’une maquette de l’ancien bâtiment de la Banque de France à l’échelle 1/100 ème Cette maquette a permis de rendre compte du dénivelé du site, de l’échelle du projet et de son im plantation au sein d’un quartier résidentiel. Par ailleurs, elle a constitué une base de réflexion pour l’aménagement intérieur du musée qui accueillera des collections diverses de la Cité de l’accordéon et des Patrimoines.

- Elaboration de documents graphiques 2D et 3D sur Autocad et Sketchup

Vue de l’arrière de la parcelle

13 STAGE - TERRENEUVE Architectes - Juillet 2020
14 Le charpentier et le menuisier appliquent toujours le même processus pour toute création d’ouvrages : le tracé, la mise sur ligne, le piquage, le façonnage des tenons ainsi que des mortaises et à la dernière étape l’assemblage et la mise en oeuvre des éléments. Mission : Réalisation d’une cloison en pan de bois, Assistance à la mise en place d’une structure pour soutenir la vigne (image 1) Fabrication des ouvrages de menuiserie comme un garde de corps ou encore un escalier avec l’aide d’un menuisier professionnel Réhabilitation d’une bâtisse datant du 17ème siècle STAGE OUVRIER - Juillet 2018 1 - Structure en bois - type pergola 2
- Cloison en pan de bois
3
- Façonnage des tenons et mortaises
J’accorde une grande importance au travail à la main associé à une attention sensible aux matériaux naturels qui vieillissent magnifiquement et sont réparables et recyclables à l’infini. Enduit Terre Chantiers Participatifs Le Hangar 0 (Havre), Frédéric Denise - Architecte/Responsable Adobes fibrées Formation - Construire en Terre crue : Anatomie d’Architectes (Marseille) Chantiers participatifs Découverte de diverses pratiques et mises en oeuvre contemporaines de la terre fibrée, façonnée, empilée et moulée Juillet-Août 2022 Mur en pisé - Terre/Liège Terre allégé
:
Paille mélangé
à
la barbotine

Carnet de voyages

Dessiner c’est avant tout observer, décortiquer, analyser du regard l’espace, même succinctement, savoir capturer un instant.

Le dessin est le meilleur moyen de se souvenir d’une architecture, d’un lieu, d’un bâtiment, d’une ville ou d’une atmosphère

Anvers: Tour de 62 m de haut, inspirée des entrepôts du 19ème siècle, typique de la ville. Les vides sont ceints d’un verre ondulé alors que les volumes pleins sont recou verts d’une pierre rouge-orangé.

Maison insalubre avec les deux premiers niveaux constitués de blocs de béton et le dernier de tôles

Venise: Architecture vernaculaire Briques de terre cuite au niveau des murs de clôture et en toiture

Mayotte: Balade urbaine

Banga: maison traditionnelle

15
Kanazawa et ses ruelles piétonnes (Japon)

pour votre attention!

Umme-Hani Mebobaly

16
14 bis rue Olier 75015 Paris 0749412391 Email: umme.meb@gmail.com Merci

Turn static files into dynamic content formats.

Create a flipbook
Issuu converts static files into: digital portfolios, online yearbooks, online catalogs, digital photo albums and more. Sign up and create your flipbook.
Portfolio Umme-Hani by Umme-Hani - Issuu