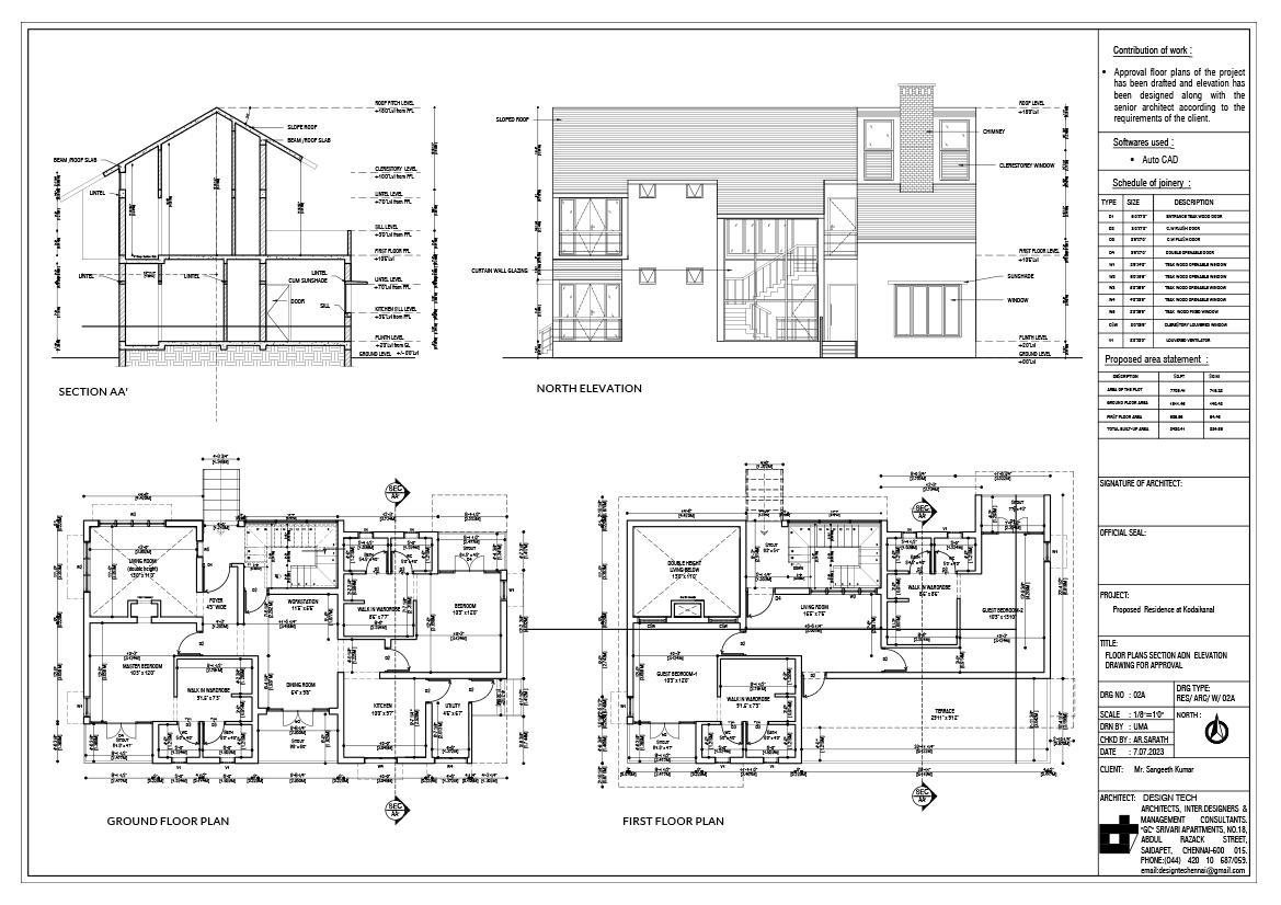
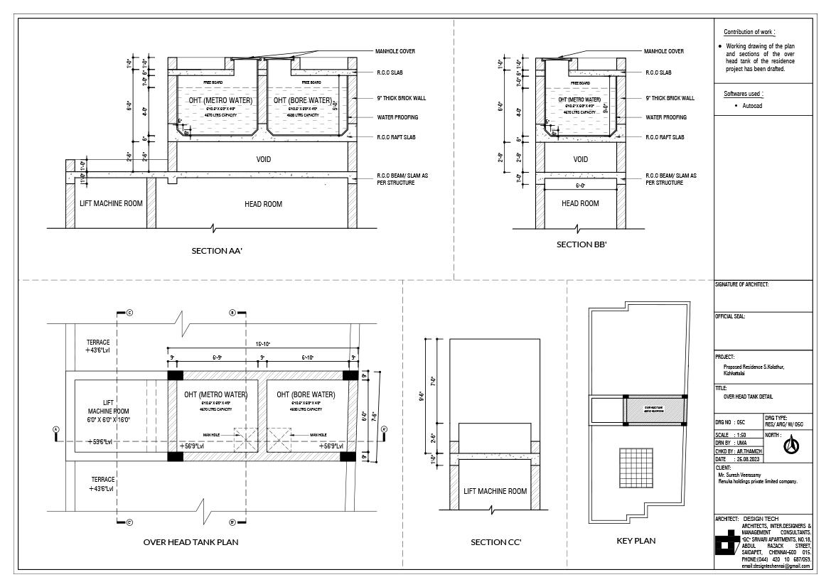
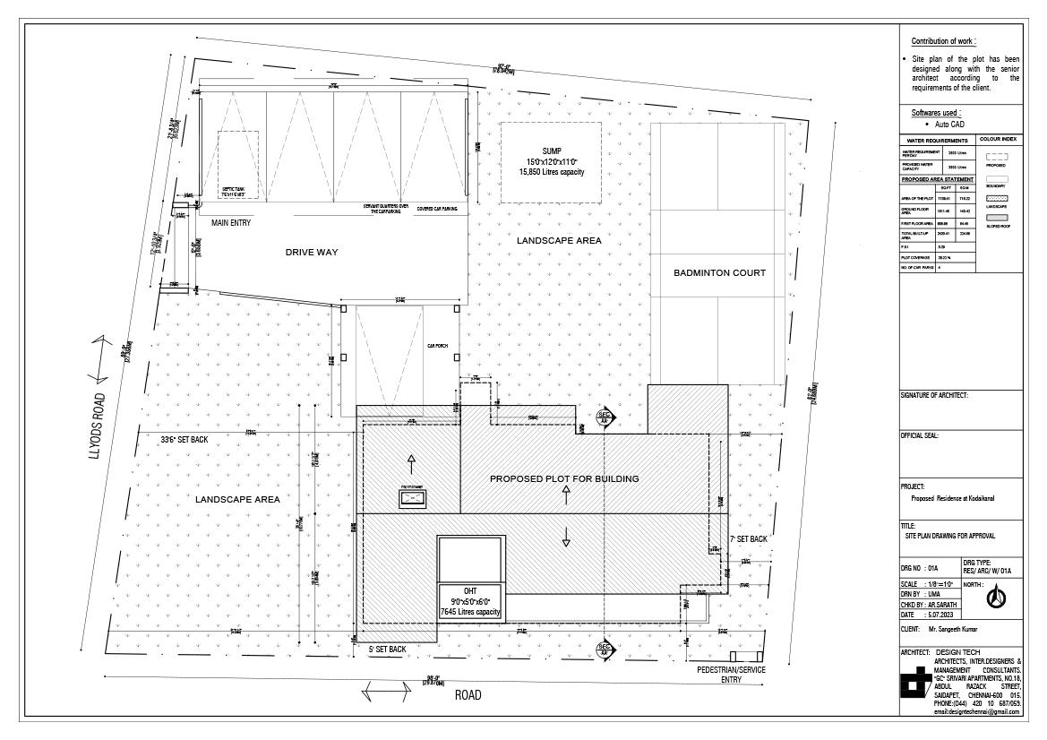
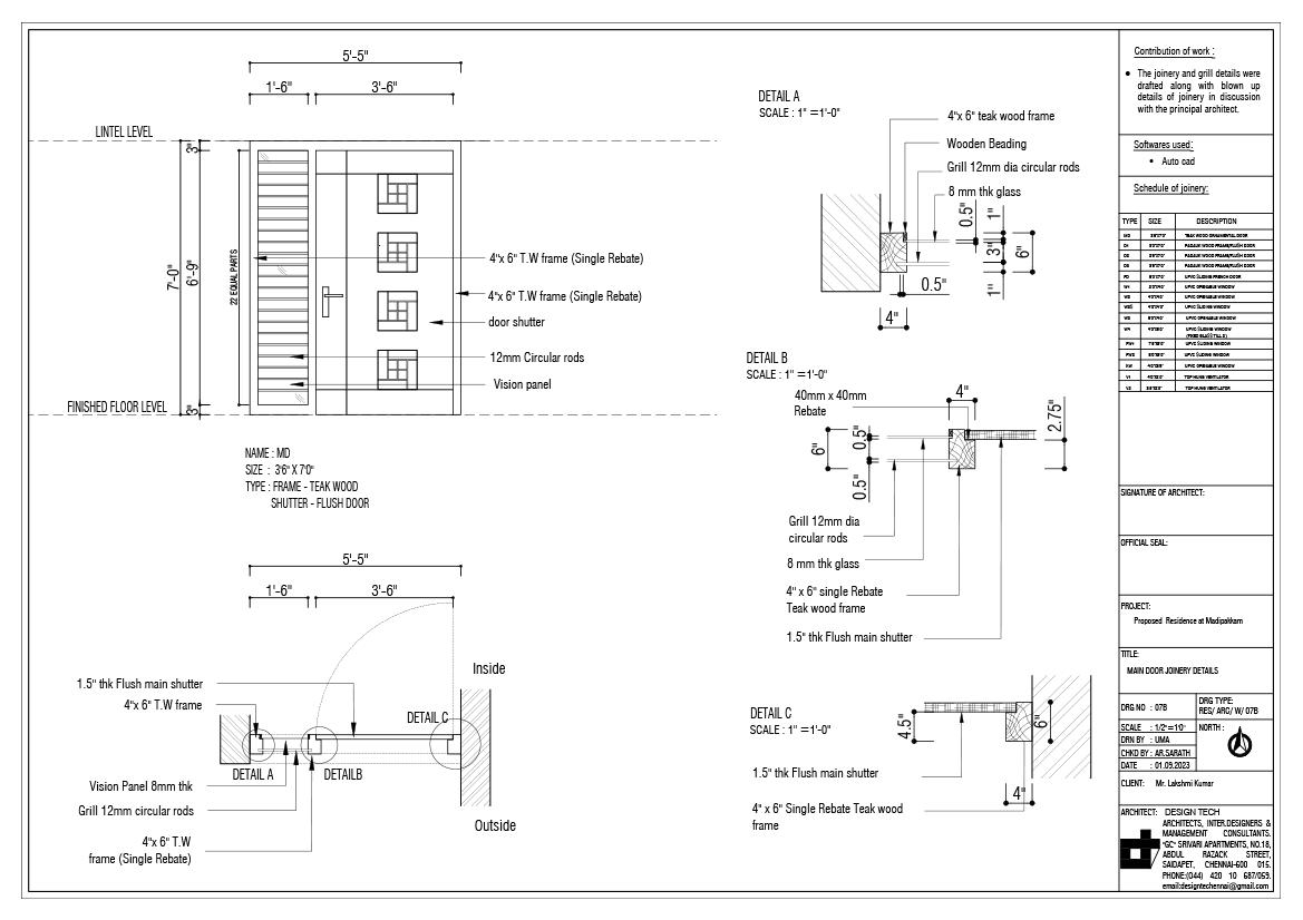
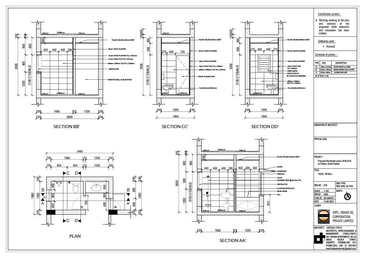
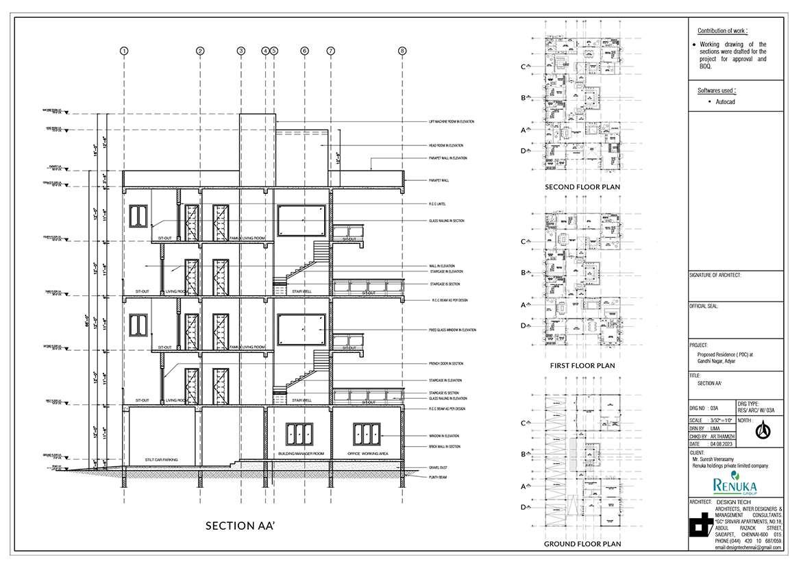
This internship provided me a robust foundation in architectural drawings, construction methodologies, and the seamless integration of design with structural elements. The real-world application of these skills not only expanded my technical expertise but also deepened my appreciation for the collaborative and dynamic nature of the architecture field.
Grateful to work under Ar. Sarath chandra Kanth sir & Ar. yalini mam, Principal Architects who generously shares a wealth of knowledge and insights, enriching my understanding of the field.
From the corridors of learning to hands-on projects, this portfolio encapsulates my growth, challenges conquered, and invaluable lessons learned. Dive into the pages and witness the fusion of theory and practice, as I navigated through real-world scenarios, honed my skills, and embraced the ethos of professional excellence.