

Innehållsförteckning
SLUSSVENTILER 7-29
Aquosus 7-11
Mjuktätande 12-17
Spindelförlängare 18-21
Tillbehör 22-29
SERVISVENTILER
30-46
2190 & Monteringsanvisning 30-31
2150/2152 & Monteringsanvisning 32-33 2186 & Monteringsanvisning 34-35 2170/2170-1/2172 & Monteringsanvisning 36-37
Avtappningsventil 2155 38-39
Spindelförlängare 1850/1850-4 40-41
Spindelförlängningsförlängare 1855 42
Tillbehör 43-46
MONTAGEBOX 47-48
VRIDSPJÄLLSSVENTILER 50-51
GATUGODS 54-117
SEGJÄRN 60-95
Fasta betäckningar 60-61
Flytande betäckningar 62-72
Teleskopiska betäckningar 73-79
Kupolsilar 80-81
Fjärrvärmebetäckningar 82-86
Kabelbrunnsbetäckningar 87-88
Kombibetäckningar-flygplatsbelysning 89
Ventil- & brandpostbetäckningar 90
Täta betäckningar Densus 91-93
Betäckningar F 900 94-95
GRÅJÄRN 96-110
Fasta betäckningar 96-97
Flytande betäckningar 98-100
Teleskopiska betäckningar 101-102
Kupolsilar 103
Fjärrvärmebetäckningar 104-107
Ventil- & brandpostbetäckningar 108
Lätta betäckningar 109-110
TILLBEHÖR 111-117
Öppningsverktyg 111-112
Passramar/ Underhållslock 113-116
Tillbehör 117
LINJEAVVATTNING 118-145
Filcoten installationsvägledning 120-122
Filcoten linjeavvattning Self/Light 123-125
Filcoten Slot-Top 126
Filcoten linjeavvattning Tec 127-131
Filcoten linjeavvattning Pro 132-138
Filcoten linjeavvattning Parkline 139-140
Filcoten linjeavvattning One 141-142
Filcoten tillbehör 143-144
RÖRKOPPLINGAR 146-185
Ulefos Serie 1 147-153
Ulefos Serie 7 154-167
Uniflex 168-173
Ulefos Grip 174-175
Ulefos Ultragrip 176-177
Stödhylsor för PE-rör 178
Övergångskopplingar Aband 180-185 REPARATIONSMUFFAR
192 Easiclamp 193 Två- och tredelad, gjuten 194 EasiTap & EasiTee 195 Enkel- och dubbelbandsmuff, anborrning 196
ANBORRNINGSBYGLAR
Skarvmuff/Förminskning/Ändhuv/T-rör
Vinkel 22,5°, 45°, 90° 244-245 PE-RT skarvmuff, T-rör, 90° & 45° vinkel 246-247 Svetsboja & Anborrningsbygel 248 Toploading & Grenbygel & MT-fläns 249-252 Övergångskoppling 253 Skrapverktyg & Tillbehör
FLÄNSRÖRDELAR
&
Ulefos reserverar sig för eventuella sortimentförändringar samt tryckfel
Så jobbar vi med hållbarhet på Ulefos
SÄKER DRIFT

Myndigheter runt om in Norden ställer höga krav på hälsa, miljö och säkerhet. Vi följer de lagar och regler som sätts. Alla ska komma hem säkert från jobbet varje dag.
LÅNG LIVSLÄNGD
NÄRPRODUCERAT NORDISK PRODUKT NÄRPRODUCERAT

OMÅLAT GATUGODS

Målning av gatugods har en negativ miljöpåverkan, och har heller ingen annan funktion än att vara ett estetiskt verktyg. Genom åtgärden med omålat gatugods minskade vi vår miljöpåverkan med 14 ton i restavfall på våra segjärnsprodukter.
Vårt sortiment håller högsta kvalitet och vi strävar efter att alla våra produkter ska ha så lång livslängd som möjligt. De är utvecklade och anpassade speciellt för ett nordiskt klimat. Lång livslängd minskar våra produkters miljöpåverkan.
PLAST REDUKTION

Varje år hamnar 6,4 miljoner ton skräp i havet. Mellan 70 och 80 % av detta är plast. Plast i naturen har en livslängd på upp till flera hundra år. På Ulefos fokuserar vi på att minska, sortera och återvinna plast. År 2021 minskade vi vår plastanvändning med minst 20 ton.
Med lokala fabriker säkerställer vi en hållbar produktion med en kort transportväg från produktionsplats till kund som minskar CO2-utsläppen.
RINGAR PÅ VATTNET
Lokal produktion och verksamhet ger kedjereaktion i samhället bla genom skatter, lokal köpkraft och lokala arbetstillfällen på andra företag.
CIRKULÄR LIVSCYKEL

Nordisk industri är den grönaste i världen och vi får bla vår energi från en förnybar energikälla – vattenkraft. Närproducerad el från vårt eget kraftverk i Ulefoss.
UTVECKLING & INNOVATION
Vi producerar med minsta möjliga spill, produkterna har hög kvalitet och lång livslängd. På så sätt behöver vi inte nyttja resurser mer än nödvändigt. Vi använder så mycket som möjligt av det vi redan har, om och om igen.
FN s HÅLLBARHETSMÅL





Genom att utveckla och producera i Norden säkerställer vi rätt och nödvändig kompetens för att upprätthålla leveranser till samhällskritisk infrastruktur.
Utvecklingen i Norden ger också närhet till marknaden och möjlighet till närmare samarbete för ett kundanpassat nordiskt klimat.
Områdena speglar var vi har störst möjlighet att bidra till hållbar utveckling i vår verksamhet. Med målen som vägledning och våra interna värdegrunder – laganda, ansvar och framtidsorienterad kommer vi att arbeta tillsammans för att bygga en bättre framtid för alla. #7 #8 #9 #11 och #12
KLIMAT BERÄKNING

I över 10 år har vi fört klimaträkenskaper för vår gatugods enligt Greenhouse Gas Protocol tredje parts leverantör. Allt vårt gatugods i segjärn är också EPDdeklarerat.
THINK GLOBAL ACT LOCAL
Som en del i utvecklingen till en mer hållbar verksamhet har vi lokala målsättningar. I allra möjligaste mån väljer vi alternativ som ger en betydande minskning av CO2-utsläpp, som är närproducerat och vi stödjer lokala leverantörer.
ULEFOS SVERIGE SÄLJAVDELNING

MARCUS JOHANSSON SÄLJ NORR
marcus.johansson@ulefos.com
+46 709 229 808

PER SAMUELSSON SÄLJ VÄST
per.samuelsson@ulefos.com
+46 709 229 203

PATRIK GULLBRAND SÄLJ MELLAN
patrik.gullbrand@ulefos.com
+46 709 229 242

ALEX SWERIN INNESÄLJ
alex.swerin@ulefos.com
+46 709 229 205

JOHAN LUNDVALL SÄLJ STOCKHOLM
johan.lundvall@ulefos.com
+46 709 229 202

SUSANNE JAGEBÄCK INNESÄLJ
susanne.jageback@ulefos.com +46 302 229 20

LARS GUSTAVSSON S ÄLJ SYD
lars.gustavsson@ulefos.com
+46 708-849 733

PEDER SVENSSON FÖRSÄLJNINGSCHEF
peder.svensson@ulefos.com
+46 763 249 666
AB Gjutarevägen 7
SE-443 61 Stenkullen
Telefon 0302 229 20 order@ulefos.se www.ulefos.se
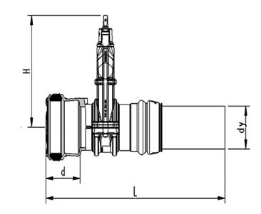
Ulefos Slussventiler AQUOSUS® SLUSSVENTIL MED PE-RÖR


AQ-713 Slussventil
med PE-rör
PE100 SDR 17, PN10
AQ-714 Slussventil
med PE-rör
PE100 SDR 11, PN16
Ulefos Slussventiler AQUOSUS® ULEFOS GRIP & MED FLÄNSAR
AQ 719
Ulefos Grip dragfasta muffar för PE och PVC rör Vid tryckklass Pn6,3 ska stödhylsa användas


425
AQ 701
Med flänsar PN10/16 kort bygglängd F4




Ulefos Slussventiler AQUOSUS® MULTIFIX MUFF & DUBBELVENTIL





Ulefos Slussventiler
AQUOSUS® AQ-700 BASVENTIL DN 80-200 (300)
TEKNISK SPECIFIKATION
Användning och speciella egenkaper
• Användningsområde: Dricksvatten och avloppsvatten
• Designtryck 48 bar
• Spindel i rostfritt stål
• Sluss i syrafast stål
• Fiberarmerad tätningsinsats (TPR)
• Dubbla o-ringer i packningshållare
• Ytbehandlad med epoxi enl. GSK-standard, RAL-GZ 662 (DIN 30677-2)

Teknisk beskrivning
• Tryckklass: PN16, flänsar standardborrning PN 10
• Provtryck: Öppen sluss 24 bar, stängd sluss 21 bar
• Undertrykk: - 0,8 bar
• Design- och teststandard: EN1074- 2, DIN3840, EN545 / ISO2531
• Max arbetstemperatur: 50ºC
• Överdel: Monterad med torxskruv som är skyddade med värmetåligt vax
• Bygglängd: se tabell
• Spindel: Inte stigande med konisk fyrkant DIN 87303. Material AISI 420 (alt. AISI 316) beroende på media.
• Typgodkännande: DVGW
• Ytbehandling: Epoxi min 250 μm enl. GSK-standard, RAL-GZ 662 (DIN 30677-2)
• Färg: Blå, RAL 5017
Fysiska mått ventilhus

Mått spindeltopp


DN 250, DN 300 kommer inom kort
Ulefos Slussventiler
AQUOSUS® AQ-700
BASVENTIL
DN 80-200 (300)
Materialspecifikation
1 Ventilhus EN1563-EN-GJS 500-7
2 Spindelmutter CW511L
3 Sluss AISI 316 ( alt. EN-GJS 500-7 )
4 Glidbrickor slussport POM C9021
5 Tätningsinsats TPR- termoplastiskt gummi - PP
6 Fläns EN1563-EN-GJS 500-7
7 Underdel EN1563-EN-GJS 500-7
8 Bultar St 8.8 DIN912
9 Nedre glidlager POM C9021
10 Övre glidlager POM C9021
11 Spindel AISI 420 (alt. AISI 316)
12 O-ringar Gummi EPDM
13 O-ringar Gummi EPDM
14 Packningshållare CW511L
15 Plasttopp PP
16 Dekal Blå - högerstängande Röd - vänstergängade
17 O-ring Gummi EPDM
Karaktäristik
DN 250, DN 300 kommer inom kort
EN 1171: 2002 4.3, tabell 6, kategori 3
Om ventilen inte stänger vid max moment kolla möjliga hinder eller fel med ventilen. Se FDV dokumentation
Montering


Öppen/stängd moment





Ulefos Slussventiler
MJUKTÄTANDE SLUSSVENTIL 2844 & 2840
MED PE-RÖR DY 75-355
Slussventil 2844


* Flänsad ventil 1140 DN400 PN10 med HP respektive SP fläns med PE-ändar anpassade i längd för elektrosvetsning
• PE-rör: SDR 11* och SDR 17**
2844 *PE80 PN 10, Dy75
2844-4 **PE100 PN 10, Dy90 - 355
2844-9 *PE100 PN 16, Dy90 - 355
FÖR PVC-RÖR OCH PE-RÖR
Slussventil 2840
PVC-muff
Kan kompletteras med förankringsring 2850 till PE-rör, Dy 75 - 315 Med fri spindeltapp PN 16


* med förankringsringar 2850 inmonterade
Ulefos Slussventiler
MJUKTÄTANDE SLUSSVENTIL 2965 & 2960
MED SLÄTÄNDAR. DN 80-300. F5 EXTRA LÅNG/LÅNG BYGGLÄNGD
Slussventil 2965
Med slätändar och lång bygglängd. Med fri spindeltapp

Ulefos Slussventiler
MJUKTÄTANDE
SLUSSVENTIL
1140 & 1240 DN


Slussventil 1140/1240
Med fri spindeltapp, PN 16
Flänsar dim 40-400/40-500
Normalborrning PN 10


Slussventiler
MJUKTÄTANDE SLUSSVENTIL 1140 & 1240 & 1161 Ulefos
DN 400-600. DIN F4 KORT BYGGLÄNGD / DIN F5 LÅNG BYGGLÄNGD
Slussventil 1140/1240
Med fri spindeltapp, PN 16 Flänsar dim
PN 10/PN 16

DN 80-300
Slussventil 1161
Med fäste för aktuator, PN 16
Flänsar dim 40 - 400
Normalborrning PN 10


Ulefos Slussventiler
TEKNISK SPECIFIKATION - MJUKTÄTANDE
SLUSSVENTIL
Användning och speciella egenskaper
• Användningsområden: Vatten
• Lämpad för markförläggning
• Spindel i rostfritt stål
• Enkel låsbar bajonettkoppling för spindelförlängare
• Ytbehandlad in- och utvändigt med epoxi
• Helgummerad sluss
• Dubbla o-ringar ligger skyddade i egna spår
• Inbyggd överdelspackning
• Skyddspackning vid spindeltopp
Materialspecifikation
1 Bajonettfattning CW511L
2 Hus Segjärn EN 1563 EN-GJS-500-7
3 Insexskruv Stål 8.8
4 Vax
5 Överdel Segjärn EN1563 EN-GJS-500-7
6 Överdelspackning Gummi (EPDM)
7 Låsring POM-C
8 Packning Gummi (EPDM) Forsheda
9 Märkning (Stängriktning)
10 Nedre lager POM-C
11 O-ring spindel Gummi (EPDM)
12 O-ring bajonett Gummi (EPDM)
13 PE-rör PE
14 Spindel Rostfritt stål EN 10088-3 1.4021
15 Spindelmutter CW511L
16 Plastkåpa POM-C
17 Övre lager POM-C
18 Sluss Segjärn EN1563 ENGJS 500-7 (EPDM)
Mått spindeltopp
*Hylsa monterad på spindeltopp från fabrik (demontera hylsan på spindelförlängaren före montering för att passa mot monterad hylsa på ventil).
Teknisk beskrivning
• Standard: EN 1171, EN12516-3, EN1984, ISO 7259, EN 1074, EN 12842
• Tryckklass: PN 16, undertryck 0,8 bar, högerstängande
• Max arbetstemperatur: 50 ° C
• Provtryck: Öppen ventil 24 bar, stängd ventil 17,6 bar
• Ytbehandlad med epoxi min 250 μm
• Färg: Blå, RAL 5017
• Överdel: Monterad med insexskruvar som är skyddade med värmetåligt vax
• Spindel: Icke stigande med konisk fyrkant DIN 87303 (se tabell, mått spindeltopp)
Typ 1161
• Ventiltopp: Bajonettspår för spindelförängare 1880 & 87303



*Hylsa monterad på spindeltopp från fabrik (demontera hylsan på spindelförlängaren före montering för att passa mot monterad hylsa på ventil)
Typ 1161
Ulefos Slussventiler
TEKNISK
SPECIFIKATION - MJUKTÄTANDE SLUSSVENTIL
Manövermoment
Om ventilen inte stänger vid max moment kolla möjliga hinder eller fel med ventilen.
Tilläggsutrustning och andra varianter
Tilläggsutrustning
1880 Spindelförlängare
1830/1835/1840 Betäckning 2815 Förankringsboja 2856 Förankringsring 1110 Ratt
Andra varianter
Förberedd för aktuator
Med elektrisk aktuator
Med indikator
Med NBR-gummi i sluss och O-ringar 2845 Vänsterstängande
Med A4 syrafast spindel 1141/1241: F4/F5, vänsterstängande 1155/1255: F4/F5, med indikator 1160/1260: F4/F5, med AUMA elektrisk aktuator 1161/1261, förberedd för aktuator
Monteringsmöjligheter
Rekommenderad
Ulefos Slussventiler
SPINDELFÖRLÄNGARE 1880 & 1880-4
Användning och speciella egenskaper
• Användningsområden: För Ulefos markförlagda slussventiler DN65-400
• Lämpad för markförläggning
• Teleskopiskt utförande som förenklar justering till önskad längd
• Monteras enkelt på ventilen med bajonettkoppling
• 1880-4 rekommenderas där aggressivt markförhållande råder
Spindelförlängare 1880, teleskopisk
DN 65 - 400
Standardhylsa DN 80 - 150
För ventil 1140, 1240, 2255, 2355, 2840/42/44, 2955, 2965 och Aquosys
* Kontrollera ventilens höjd
Spindelförlängare 1880-4, teleskopisk
DN 65 - 400
Standardhylsa DN 80 - 150
För ventil 1140, 1240, 2255, 2355, 2840/42/44, 2955, 2965 och Aquosys
* Kontrollera ventilens höjd


Ulefos Slussventiler
SPINDELFÖRLÄNGARE 1880/1880-4 & 1885
Materialspecifikation
Pos Detalj Material
1 Spindeltopp Segjärn EN 1563 EN-GJS-400-15
2 Fästöron PP-plast
3 Övre skyddsrör PP-plast 44 x 50 mm
4 Övre spindelrör Förzinkat stål/ syrafast stål EN1088-3/1.4404
5 Nedre spindelstång Förzinkat stål/ syrafast stål EN1088-3/1.4404
6 Nedre skyddsrör PP-plast 50x66mm
7 Ventilfäste PP-plast
8 Sprint Syrafast stål EN 10088-3 1.4404
9 Spindelhylsa Segjärn EN 1563 EN-GJS-400-15/syrafst stål EN10088-3/1.44404
10 Låsöron PP-plast
Montering
• En extra låsning kan utföras mellan spindeltopp och hylsa via medsänd sprint
• Sprint används alltid i samband med Kongsberg Esco´s slussventiler
• Skjut ner ventilfästet (7) över ventilhalsen, så att låsöronen (10) går in i ventilhalsens spår
Mått spindeltopp

Spindelförlängningsförlängare 1885
Användning och speciella egenskaper
• Används där den nergrävda spindelförlängaren har blivit för kort
• Spindelförlängningsförlängaren fästes på befintlig spindelförlängare, genom att borra hål i befintlig spindeltopp och montera saxssprint/sprint. Därefter trycks skyddsrörsfästet ner över befintliga fästöron
• Betäckningarna 1830/1835/1840 kan monteras direkt på spindelförlängningsförlängaren.
Spindelförlängningsförlängare 1885 teleskopisk
Reprör (överdel) 1892 och 1892-4


Teknisk beskrivning
Spindelförlängningsförlängare till teleskopisk spindelförlängare 1880

Ulefos Slussventiler
SPINDELFÖRLÄNGARE 1887 & 1887-4
Användning och speciella egenskaper
• Användningsområden:
• För Ulefos markförlagda slussventiler DN65-400
• Lämpad för markförläggning
• Teleskopiskt utförande som förenklar justering till önskad längd
• Med extra skyddsrör
• Monteras enkelt på ventilen med bajonettkoppling
• 1887-4 rekommenderas där aggressivt markförhållande råder
Spindelförlängare 1887, teleskopisk med extra skyddsrör
DN 65 - 400
Standardhylsa DN 80 - 150
Gul standardtopp 1893 med brottgräns 400 Nm
För ventil 1140, 1240, 2255, 2355, 2840/42/44, 2955, 2965 och Aquosus
* Kontrollera ventilens höjd
Spindelförlängare 1887-4, teleskopisk med extra skyddsrör
DN 65 - 400
Standardhylsa DN 80 - 150
Gul standardtopp 1893 med brottgräns 400 Nm
För ventil 1140, 1240, 2255, 2355, 2840/42/44, 2955, 2965 och Aquosus
* Kontrollera ventilens höjd

Ny tillkoppling mellan Ulefos Slussventiler och spindelförlängare 1880




Monteringen görs enkelt genom att först fästa hylsan med sprinten på ventilspindeln. Pressa sedan ned spindelförlängaren på ventilhalsen. Spindelförlängaren låser automatiskt när den kommer i rätt position.



Vid demontering, vrid den gula låsringen åt sidan och lyft upp röret.
Ulefos Slussventiler TILLBEHÖR
MED TILLBEHÖR FÖR TELESKOPISKA SPINDELFÖRLÄNGARE







1889

1. Avlägsna betäckning, skyddsrör, kåpa (garnityr), spindelstång och SMS-hylsa.
2 Mät ventilspindels “fyrkant” och välj ut rätt utbyteshylsa.
3 Borra hål i befintlig ventilspindel, använd utbyteshylsan som mall och borra hål (borr ø 6 mm.)
4. Avlägsna spindelförlängarens standard hylsa och montera vald utbyteshylsa på den samma.
5. Skjut ihop plastadapter 1889 eller 1888 med spindelförlängarens ventilinnerfäste, som tillsammans skjuts upp ca.1 m på skyddsröret.
6. Montera spindelförlängaren på befintlig ventil
7. Sprinta fast hylsan
8. Dra ner plastadaptern över ventilhalsen.
9. Placera den blå märkesbrickan på spindelförlängarens topp. (för att markera ompackad ventil)
10. Montera på betäckning 1830, 1835 eller 1840.
B1
B2 h
Ulefos Slussventiler ROTVÄSKA 1886 & TILLBEHÖR
MED TILLBEHÖR FÖR TELESKOPISKA SPINDELFÖRLÄNGARE
Användning och speciella egenskaper
• Används i samband med reparationer av packboxar och spindelförlängare till befintliga markventiler oavsett fabrikat.
• Lådans innehåll passar till teleskopiska spindelförlängare 1880
Rotväska 1886
Adapter 1889-1
Hylsa 1890 & 1891, galvade
426
426 19 60
426 19 61
426 19 63
426 19 65
Data
Hylsor S-1890,S-1891, S-1895
Konsprint
Segjärn SS 0727
Syrafast stål SS 2343
Blå märkbricka Plast




Storlek
Storlek



Blå märkbricka, markerar reparerad ventil
Servicesats med brickor och sprint
Ulefos Slussventiler
BETÄCKNING 1830 & 1833 & 1835 & 1840
• Användningsområden:
Betäckning över teleskopisk spindelförlängare 1850 och 1880
• Fästas med bajonettkoppling till spindelförlängaren
• Avvinklingsbar 3o
• Den helgjutna enheten har fin design och noggrannhet
• Lock med gummipackning
• Levereras med vit låskopp av plast (ligger i betäckningen)




Betäckning För teleskopiska spindelförlängare 1850/1880
Lock
Användning och speciella egenskaper Teknisk

BETÄCKNING 1830
Rund, segjärn, anpassad för sp.förl. 1850 och 1880
Montering

BETÄCKNING 1833
Rund,segjärn, anpassad för sp.förl. 1850 och 1880

BETÄCKNING 1835
Fyrkantig, segjärn, a npassad för sp.förl. 1850 och 1880
Ansluts till spindelförlängaren genom att man vrider 45 o medsols.
Betäckningens höjd justeras enkelt exempelvis med ett spett.

BETÄCKNING 1840
Rund, segjärn, anpassad för sp.förl. 1850 och 1880
För att erhålla en vibrationsfri betäckning skall kompakt fyllning runt halsen på betäckningen utföras.
Vid montering trycker man ner betäckningen över spindelförlängningens öron, så att locket lyfter.
Vrid sedan 45 o medsols, varvid låskoppen intar sitt läge och betäckningslocket går ner.
Vid eventuell demontering lyftes plastlåskoppen ur betäckningen, som sedan vrids 45 o motsols.
Plombringslock kan användas då man vill “låsa” ventilen i ett önskat läge.

BETÄCKNINGLOCK 1836 OCH 1836-1 Till betäckningar 1830,1833,1835,1840
Segjärn, märkt V, A eller FK
1835
RSK-nr
Ulefos Slussventiler
BETÄCKNING 1830 & 1833 & 1835 & 1840
1842-1: Plomberingslock för 1850/1880

Materialspecifikation
Märkbrickor till 1880


Ulefos Slussventiler
TILLBEHÖR
Dubbelbetäckning 1832
Fyrkantig, segjärn. Anpassad för sp.förl. 1850 och 1880
Lock V (vatten) Lock A (avlopp)

Handratt 1110
Till mjuktätande slussventiler
• Gjutjärn EN 1563 EN-GJS-500-7
• Ytbehandlad med epoxi min. 250 μm
• Färg: Blå, RAL 5017

Rattförlängare till slussventiler 1112
Rostfritt stål


Ulefos Slussventiler
Flänspackning med stålinlägg
EPDM-gummi
Dricksvattengodkända enligt DVGW W270
SS-EN 681-1, SS-EN 1514-1


Till och med DN 200 = PN16
Från DN 250 = PN10
PN16 finns på förfrågan
Flänspackning-Solid. Lång livslängd
Endast för gjutna-/stålflänsar enligt SS-EN 1092-1
Av laminerad glasfiberpolyester med inbyggd tätningsring av silikon Dricksvattengodkända enligt DVGW W270
Tack vare solid kostruktion överbelastas inte tätningen som ligger väl skyddad i spår. Se princip enligt skisser. Lång livslängd



För flänsborrning PN10. PN16 finns på förfrågan Kan kompletteras med isolerade bultar/muttrar/brickor mot galvanisk spänning
Ulefos Slussventiler
TILLBEHÖR
Utbyteshylsa 1895
Segjärn, för ventil 1140 & 1240
Förankringsboja 2816 för 2840. För PVC-rör, PN 10
222
222
Förankringsring 2850 till PEH-rör i slussventil S-2840 (system 3000)
242
242
242
242
242
Nyckeltopp 1893 med brottgräns
Lösa utbytestoppar till slussgarnityr med samma typ av system
Gul och Blå sätts fast med 6 mm insexnyckel
Röd har ingen genomborrning och ska alltid tas loss efter användning
ANVÄND RÖD ENDAST I UNDANTAGSFALL !!!
Gul är standard och räcker i de allra flesta fall utmärkt för slussventiler.
Vid montering dra endast insexskruven till stopp, så att skruven ej sträcks.





Ulefos Slussventiler TILLBEHÖR
Nyckelhylsa 1122
SMS Stand
Nyckeltopp 1852
Segjärn

Nyckeltopp 1852-1
Segjärn, topp utan hylsa är anpassad till alla våra hylsor

Bultset 0110
För PN 10 flänsar
Komplett med bult, bricka och mutter FZV
Visarverk
För Ulefos spindelförlängare typ 1880 och motsvarande
Anpassad för Ulefos betäckningar 1830/1833/1835/1840
60 varv motsvarar helt varv (pil). Röd markering sätts vid
stängd ventil och grön vid fullt öppen
Gul topp med brottgräns 400 Nm
Kan enkelt monteras i efterhand på redan installerad spindelförlängare/betäckning



Ulefos Servisventiler
SERVISVENTIL 2190
Användning och speciella egenskaper
• Användningsområde: Dricksvatten
• Lämpad för markförläggning
• Enkel låsbar bajonettkoppling för spindelförlängare
• Helgummerad sluss EPDM
• O-ringar för spindeltätning
• Inbyggd O-ring som överdelstätning
• Spindel av syrafast stål
• Mycket lågt stängningsmoment
• Saknar fickor och styrspår vilket motverkar igensättning
Servisventil 2190
Med Plasson serie 1 dragfasta kopplingar för vattenledningar av PE (Polyeten)


* Kommer inom kort
Teknisk beskrivning
• Tryckklass: PN 16
• Max arbetstemperatur: +70 oC för ventil eller motsvarande rörtypen
• För dricksvatten +20 oC
• Provtryckta fabrik: Öppen ventil 24 bar. Stängd ventil 17,6 bar
• Undertryck: -0,8 bar
• Spindel: Ej stigande med konisk fyrkant
• Anslutning Plasson Serie 1 instickskopplingar
Karaktäristik
DN/Dy Antal varv öppen/ stängd Ventilens innerdiameter
Materialspecifikation
stängmoment Nm
1 Hus Avzinkningshärdig mässing
2 Överdel Avzinkningshärdig mässing
3 Spindel Syrafast stål. SS142382 EN 10088-3.1.4523
4 Sluss Avzinkningshärdig mässing/EPDM
5 O-ring Gummi EPDM
6 O-ringar 3st Gummi EPDM
7 Lagring Avzinkningshärdig mässing
8 Packning Gummi EPDM
9 Stödring POM
10 Greppring POM
11 Greppring POM
12 Mutter Polypropylene


Ulefos Servisventiler
SERVISVENTIL 2190 - MONTERINGSANVISNING
Monteringsmöjligheter
Rekommenderad
Tilläggsutrustning
2110 Ratt
1850 Spindelförlängare 1830/1835/1840 Betäckning
Montering

1.
Kapa PE-röret rakt och avgrada rörändan. Kontrollera rören (SS-EN 12201) så de är fria från repor och rengör noga. Markera insticksdjupet på rören. Insticksdjupet är också markerad på själva ventilen.
Möjlig
Möjlig

2.
Vrid och tryck in PE-röret i kopplingen, förbi greppringen och gummitätningen, till rörstoppet. Efter korrekt montering ska märket då vara synligt precis utanför muttern.
Rekommenderas ej
Demontering

1. Använd verktyg typ 1099( RSK 250 63 96) för demontering, fäst verktyget runt yttermuttern och rotera moturs tills muttern lossnar. Avlägsna sedan greppring och packning (se bild).


3. Klart
2. Klart
Ulefos Servisventiler
SERVISVENTIL 2150 & 2152
Användning och speciella egenskaper
• Helgummerad sluss
• O-ringar för spindeltätning
• Inbyggd o-ring som överdelstätning
• Saknar fickor och styrspår vilket motverkar igensättning
Servisventil
2150
Med PRK tryckskruvar PN 16. Med EPDM-gummi för vatten

Servisventil 2152
Med PRK tryckskruvar
PN 16. Med NBR-gummi för avloppsvatten
Teknisk beskrivning
• Tryckklass: PN 16
• Max arbetstemperatur: 20 o C
• Provtryck: Öppen ventil 24 bar, stängd ventil 17,6 bar
• Undertryck: -0,8 bar
• Spindel: ej stigande med konisk fyrkant
• Anslutning: Invändig rörgänga, med PRK tryckskruvar för montering av PEL,PEH- och PEM-rör
• Lämpad för markförläggning
• Enkel låsbar bajonettkoppling för spindelförlängare
• Spindel i syrafast stål
Materialspecifikation
Mått spindeltopp

Karaktäristik
7 22 20 25/32 8 28 20
32/40 8 28 20 40/50 10 38 25 50/63 13 50 30
Ulefos Servisventiler
SERVISVENTIL 2150 & 2152 - MONTERINGSANVISNING
Monteringsmöjligheter
Rekommenderad
Tilläggsutrustning och varianter
Tilläggsutrustning 2110 Ratt 1850 Spindelförlängare 1830-1835-1840 Betäckning
DN/Dy Antal varv öppen/ stängd
Varianter 2151 utan PRK 2160 med PRK/utvändig gänga 2170/2172 med PE-rör 2186 med Esco-sit kopplingar
20/25 7 22 20
25/32 8 28 20
32/40 8 28 20
40/50 10 38 25
50/63* 13 50 30

Teknisk beskrivning
• Användingsområde: Vatten 2150. Avloppsvatten 2152.
• Tryckklass: PN 16
• Max arbetstemperatur: 20 0 C för ventil

1
Kapa röret vinkelrätt, ögonmått räcker. Skär bort eventuella “fransar” på röränden. OBS! Det skall alltid användas stödhylsor i PE-rör enligt producentens IMI Hydronic föreskrifter för PRK

Rekommenderas ej
* Dy 63: Tryckskruv av AMETAL® med kona av Acetalplast. Vid montering; kontrollera att tryckskruven är insmord med fett. Montera rör, skruva tryckskruven helt in mot ventilen. Annars samma montering som andra storlekar

Dy 63

2. Se till att tryckskruven ligger lätt an mot nippelns kona. För in röret till stoppet i nippeln. Se till att röret blir kvar mot stoppet när åtdragningen börjar. Vid behov märk röret med märkkrita eller dylikt.
3. Håll fast nippeln med ett lämpligt verktyg och dra sedan åt tryckskruven med rörtång eller PRK-nyckel tills den ligger helt an mot nippeln.

4. Så här ser det ut inuti PRKkopplingen när den är rätt monterad. Observera att röret ligger an mot stoppet och att tryckskruven är dragen ända in mot nippeln.
Ulefos Servisventiler
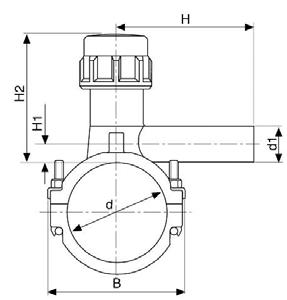
SERVISVENTIL 2186
Användning och speciella egenskaper
• Användningsområden: Dricksvatten
• Lämpad för markförläggning
• Enkel låsbar bajonettkoppling för spindelförlängare
• Spindel i syrafast stål
• Helgummerad sluss
• O-ringar för spindeltätning
• Inbyggd o-ring som överdelstätning
• Saknar fickor och styrspår vilket motverkar igensättning
Servisventil 2186
Med Esco-sit Klämringskopplingar anpassade för PE/PVC


Teknisk beskrivning
• Tryckklass: Ventil PN 16, koppling PN 10
• Max arbetstemperatur: 20 o C
• Provtryck: Öppen ventil 24 bar, stängd ventil 17,6 bar
• Undertryck: -0,8 bar
• Spindel: ej stigande med konisk fyrkant
• Anslutning: Invändig rörgänga, med Esco-sit dragfast koppling för montering av PE och PVC-rör
Mått spindeltopp
Materialspecifikation
1 Hus Avzinkningshärdig mässing
2 Överdel Avzinkningshärdig mässing
3 Spindel Syrafast stål. SS142382 EN 10088-3.1.4523
4 Sluss Avzinkningshärdig mässing/EPDM
5 O-ring NBR
6 O-ringar, 3 st. NBR
7 Låsring Avzinkningshärdig mässing
8 Packning Gummi EPDM/avzinkningshärdig mässing
9 Klämring Avzinkningshärdig mässing
10 Låsmutter Avzinkningshärdig mässing
Karaktäristik


Ulefos Servisventiler
SERVISVENTIL 2186 - MONTERINGSANVISNING
Monteringsmöjligheter
Rekommenderad
Tilläggsutrustning och varianter
Tilläggsutrustning
2110 Ratt
1850 Spindelförlängare 1830/1835/1840 Betäckning
Specifikationer
Varianter
2150/2152 Med PRK tryckmutter
2151 Med standard rörgänga
2160 Med PRK/utvändig rörgänga
2170/2172 Med PE-rör
1. Kapa röret rakt och rengör. Fasa rörändan
2. Lossa muttern för att undvika tryck på klämring/tätningsring
3. Markera insticksdjupet (på röret)
4. För in röret i ventilen till det stoppar
5. Mutter dras till låst läge

OBS!
Är det kallt vid monteringstillfället rekommenderas att röret värms upp innan montering, för att låsringen skall få ett bättre fäste.
Rekommenderas ej
Ulefos Servisventiler
SERVISVENTIL 2170 & 2170-1 & 2172
Användning och speciella egenskaper
• Lämpad för markförläggning
• Enkel låsbar bajonettkoppling för spindelförlängare
• Spindel i syrafast stål
• Helgummerad sluss
• O-ringar för spindeltätning
• Inbyggd o-ring som överdelstätning
• Saknar fickor och styrspår vilket motverkar igensättning
• PE-rör inmonterade vid fabrik
• Testad för havsvatten av: Det Norske Veritas, nr R794135/R795019

Servisventil 2170
PN
för vatten
*Med PE-övergång 63/75. Ventilen är av typ 2186
Servisventil 2170-1
Med PE-rör för svetsning
PN 16/6,3. Med EPDM-gummi för vatten
Servisventil 2172
Servisventil med PE-rör för svetsning PN 16/10. Med NBR-gummi för avloppsvatten
Ulefos Servisventiler
SERVISVENTIL 2170 & 2170-1 & 2172
Teknisk beskrivning
• Tryckklass: 2170/PN 16-10,2170-1/PN 16-6,3/2172 PN 16-10
• Max arbetstemperatur: 20 o C
• Provtryck: Öppen ventil 24 bar, stängd ventil 17,6 bar
• Undertryck: -0,8 bar
• Spindel: ej stigande med konisk fyrkant
• Anslutning: PE-rör är monterade och klara för svetsning
Mått spindeltopp
Materialspecifikation
1 Hus Avzinkningshärdig mässing
2 Överdel Avzinkningshärdig mässing
3 Spindel Syrafast stål. SS142382 EN 10088-3.1.4523
4 Sluss Avzinkningshärdig mässing/EPDM/NBR
5 O-ring Gummi NBR
6 O-ringar, 3 st. Gummi NBR
7 Lagring Avzinkningshärdig mässing
8 Tryckskruv Dy 25-50: Acetalplast/Dy 63: Avzinkningshärdig mässing
9 PE-rör PE
10 Krympslang PE
Karaktäristik
Monteringsmöjligheter
Tilläggsutrustning och varianter
Tilläggsutrustning 2110 Ratt 1850 Spindelförlängare 1830/1835/1840 Betäckning
Varianter 2150/2152 med PRK tryckskruv 2151 med invändig rörgänga 2160 med PRK/utvändig rörgänga 2186 med Esco-sit kopplingar

Ulefos Servisventiler
AVTAPPNINGSVENTIL 2155
Användning och speciella egenskaper
• Användningsområde: Vatten
• Lämpad för markförläggning
• Används när man vill tömma utgående anslutningar Stänger och öppnar effektivt genom en 9 0 o vridning
• När ventilen är stängd, tömmer den uppströms liggande anslutningar via ett dräneringshål i ventilhusets undersida och ett borrat hål i ventilens kula
• Kula i syrafast stål, SS2343, A4
• Enkel låsbar bajonettkoppling för spindelförlängare
• Spindel i rostfritt stål, SS2333, A2
Avtappningsventil 2155
Typ XCD
Kulventil med dräneringshål och PRK tryckskruvar

* PRK x utv. gga 1 1/2”
Teknisk beskrivning
• Tryckklass: PN 10
• Max arbetstemperatur: 60 o C
• Kontrolltryck: 0,2- 21 bar
• Spindel: ej stigande med rak fyrkant
• Kula med dränering
• Dräneringshålet: RG 1/8tum(RG6)
• Anslutning: Invändig rörgänga, med PRK tryckskruv för montering av PEL, PEH- och PEM-rör
Mått spindeltopp
*med PRK förminskningsinlägg


Ulefos Servisventiler AVTAPPNINGSVENTIL 2155
Materialspecifikation
1 Hus Avzinkningshärdig mässing
2 Överdel Avzinkningshärdig mässing
3 Spindel Rostfritt stål, SS 2333,A2
4 Spindeltätning PTFE teflon/NBR
5 Kula Syrafast stål, SS 2343, A4
6 Täting kula/hus PTFE teflon
Karaktäristik

Montering och flödesbeskrivning
Ventilen är högerstängande
Öppna ventilen med 1/4 varv vänster (motsols)
Stäng ventilen med 1/4 varv höger (medsols)
Ventil som markförläggs skall placeras på vattengenomsläppligt material med min 10 mm´s kornstorlek och fiberduk
Dräneringshål = RG1/8” inv.
Bricka 1858
Monteras på spindelförlängarens topp
Tilläggsutrustning
2110 Ratt
1850,1850-4 Teleskopiskt spindelförlängare 1854,Spindelförlängare (kapbar)
1830/1835/1840 Betäckning

Flödesriktning
Ulefos Servisventiler
SPINDELFÖRLÄNGARE 1850 & 1850-4
Användning och speciella egenskaper
• Användningsområden: För Ulefos markförlagda servisventiler Dy25-63, 2170 Dy75, 2155(XCD) Dy32 och slussventiler DN40-50
• Lämpad för markförläggning
• Teleskopiskt utförande som förenklar justering till önskad längd, via en lätt vridning i sidled av det övre teleskopsröret
• Monteras enkelt på ventilen med bajonettkoppling
• 1850-4 rekommenderas där aggressivt markförhållande råder
• Passar även AVK och Isiflo med norsk topp
Spindelförlängning
1850 teleskopisk - Galvaniserat stål
För ventil 2150/2152, 2160, 2170/2172, 2155, 2186
Spindelförlängning
1850-4 teleskopisk - Syrafast stål A4
För ventil 2150/2152, 2160, 2170/2172, 2155, 2186
Teknisk beskrivning
• 1850: Galvaniserat stål
• 1850-4: Syrafast stål, A4



Ulefos Servisventiler
SPINDELFÖRLÄNGARE 1850 & 1850-4
Materialspecifikation
1 Spindeltopp Segjärn EN 1563 EN-GJS -400-15
2 Fästöron PP-plast
3 Övre skyddsrör PP-plast 44 x 50 mm
4 Övre spindelstång Förzinkat/syrafast stål EN 10088-3/1.4404
5 Styrhylsa Förzinkat/syrafast stål EN 10088-3/1.4404
6 Nedre skyddsrör PP-plast 50 x 56 mm
7 Nedre spindelstång Förzinkat stål/syrafast stål EN 10088-3/1.4404
8 Saxsprint Syrafast stål EN 10088-3/1.4404
9 Spindelhylsa Segjärn EN 1563 EN-GJS-400-15/syrafast stål EN 10088-3/1.4404
10 Bajonettfäste PP-plast
11 Låshake PP-plast
Montering
• Demontera transportlocket
• En extra låsning kan utföras mellan spindeltopp och hylsa via medsänd saxsprint
• Saxsprint används alltid i samband med 2150/2152, 2151, 2160, 2170/2172, 2186 (Dy25-63) 2155 XCD (Dy32), 1140 och 1240 (DN40-50)
Vrid det nedre skyddsröret 45 medsols över ventilens hals
Demontering
• Bryt ut låshaken (11) och vrid det nedre skyddsröret 45 ˚ motsols
Demontera saxsprinten
Tilläggsutrustning
1850-0 Avstängningsnyckel
1855 Spindelförlängningsförlängare 1851 Reprör 1851-28 Reptopp

Ulefos Servisventiler
SPINDELFÖRLÄNGNINGSFÖRLÄNGARE
1855
Användning och speciella egenskaper
• Används där den nergrävda spindelförlängaren har blivit för kort
• Spindelförlängningsförlängaren fästes på befintlig spindelförlängare, genom att borra hål i befintlig spindeltopp och montera saxssprint/sprint. Därefter trycks skyddsrörsfästet ner över befintliga fästöron
• Betäckningarna 1830/1835/1840 kan monteras direkt på spindelförlängningsförlängaren.
Spindelförlängningsförlängare 1855 teleskopisk
Teknisk beskrivning
Spindelförlängningsförlängare till teleskopisk spindelförlängare 1850
Materialspecifikation
6 Skyddsrörfäste PP-plast
7 Sprint Syrafast stål EN 10088-3.4404


Ulefos Servisventiler TILLBEHÖR
Spindelförlängning
1857 teleskopisk - Galvaniserat stål, och extra skyddsrör
För ventil 2150/2152, 2160, 2170/2172, 2155, 2186
Spindelförlängning
1857-4 teleskopisk - Syrafast stål, A4 och extra skyddsrör
För ventil 2150/2152, 2160, 2170/2172, 2155, 2186
Reptopp 1851 och 1851-4
För 1850 och 1850-4 m/syrafast stål, A4
Reprör (överdel) 1851 och 1851-4
För 1850 och 1850-4 m/syrafast stål, A4
Spindelförlängning
1854 fast längd, kapbar
För ventil 2150, 2160, 2170/71, 2155, 2186



Ulefos Servisventiler
TILLBEHÖR & BETÄCKNING 1830 & 1833 & 1835 & 1840




Ulefos Servisventiler
BETÄCKNING 1830 & 1833 & 1835 & 1840
Användning och speciella egenskaper
• Användningsområden:
Betäckning över teleskopisk spindelförlängare 1850 och 1880
• Fästas med bajonettkoppling till spindelförlängaren
• Avvinklingsbar 3o
• Den helgjutna enheten har fin design och noggrannhet
• Lock med gummipackning
• Levereras med vit låskopp av plast (ligger i betäckningen)




Betäckning För teleskopiska spindelförlängare 1850/1880
Lock

BETÄCKNING 1830 Rund, segjärn, anpassad för sp.förl. 1850 och 1880
Montering

BETÄCKNING 1833 Rund,segjärn, anpassad för sp.förl. 1850 och 1880

BETÄCKNING 1835 Fyrkantig, segjärn, a npassad för sp.förl. 1850 och 1880
Ansluts till spindelförlängaren genom att man vrider 45 o medsols.
Betäckningens höjd justeras enkelt exempelvis med ett spett.

BETÄCKNING 1840 Rund, segjärn, anpassad för sp.förl. 1850 och 1880
För att erhålla en vibrationsfri betäckning skall kompakt fyllning runt halsen på betäckningen utföras.
Vid montering trycker man ner betäckningen över spindelförlängningens öron, så att locket lyfter.
Vrid sedan 45 o medsols, varvid låskoppen intar sitt läge och betäckningslocket går ner.
Vid eventuell demontering lyftes plastlåskoppen ur betäckningen, som sedan vrids 45 o motsols.
Plombringslock kan användas då man vill “låsa” ventilen i ett önskat läge.

BETÄCKNINGLOCK 1836 OCH 1836-1 Till betäckningar 1830,1833,1835,1840
Segjärn, märkt V, A eller FK
1835
RSK-nr
Ulefos Servisventiler TILLBEHÖR
Avstängningsnyckel 1850-0
För servisventiler och spindelförlängare
Med spets för att öppna lock i betäckning.

Stag 1846
Aluminium
Dubbelbetäckning 1832
Fyrkantig, segjärn. Anpassad för sp.förl. 1850 och 1880
Lock V (vatten) Lock A (avlopp)
Rotbetäckning 1845-2
Teleskopisk,fyrkantig, segjärn/PP-plast med lock, dim 113 mm


Lägesindikeringsbricka-1858
Till 2155 XCD
Handratt 2110
Till servisventiler
• Stål
• Ytbehandlad med elektroniskt påfört polyester-epoxi
• Färg: Svart



Ulefos Montagebox
Ulefos Montagebox är konstruerad för att förenkla montering och demontering av t.ex. ventiler och pumpar vid utbyten, inspektion eller underhåll av delar i ett rörsystem.
• PN10 eller PN16
• Dimensioner från DN40 till DN1800 (PN16 upp till DN1400)
• Som standard är den justerbara bygglängden +/- 25 mm
• Tillverkade av segjärn med utvändig och invändig epoxy-beläggning min 250 my enligt GSK. Finns även som alternativ av rostfritt stål SS2333 eller syrafast stål SS2343
• Gängstänger samt muttrar och brickor är tillverkade av rostfritt stål. Finns även som alternativ av varmgalvaniserat stål
• Packning av EPDM-gummi

Ulefos Montagebox Typ PZ PN10


Andra dimensioner på förfrågan
Ulefos VJ Montagebox
LÄTTMONTERAD TYP
nyhet
Ulefos VJ Montagebox, lättmonterad typ
Dragfast
Flänsborrning PN10
Rostfria syrafasta bultar A4
Packning EPDM dricksvattengodkänd
Färre gängstänger än flänshål
Packningen komprimeras oberoende av gängstängerna

Kontakta oss angående större dimensioner alternativt flänsborrning PN16

Alla våra segjärnsprodukter tillverkas på Ulefos Jernværk i Norge.
Segjärn är mycket slitstarkt och tål hög belastning. Segjärnsbetäckningar är godkända och tredjepartscertifierade enligt EN124-2 och levereras omålade, för minskat utsläpp.
Ulefos Vridspjällventiler
DUBBELEXCENTRISKA
• Mjuktätande vridspjällventiler enligt DIN 593
• DVGW märkning: NW-6201AT2574
• Media vatten och dricksvatten upp till +50°C
• Epoxy ytbeläggning certifiering enligt GSK
• Finns även som alternativ med invändig emalj
• Flänsar enligt EN 1092-2, PN10/16
• Bygglängd GR 14 enligt EN 558
• Fläns för montering av don och växel enligt DIN ISO 5211
• Kombinationsmöjlighet för olika manövreringar som handratt, elektriskt don och rostfri spindelförlängning med och utan visarverk
• Dubbelexcentriskt spjäll
• Lager till spjäll i stål belagt med bronsgrafit och PTFE, som inte kommer i kontakt med media. Mycket goda glidegenskaper gör att spjället kan manövreras med ett lågt moment
• Spjällskiveaxel är försedd med flera O-ringar och stödda av bussningar, vilket säkerställer att spjället hålls stadigt på plats utan galvaniska spänningar
• Spjället har en profilerad tätningsring och justerbar pressring. Tack vare optimal geometri blir tätningen utsatt för minimal nötning
• Kan monteras i mark
• Andra dimensioner finns på förfrågan


Ulefos Vridspjällventiler
SPINDELFÖRLÄNGARE
Spindelförlängare med visarverk, teleskopisk
För Ulefos Vridspjällventiler DN250-1200
Anpassat för Ulefos betäckningar 1830/1833/1835/1840
Inkl flänsförband 4st M10
Fläns
Spindelförlängare med visarverk, teleskopisk med extra skyddsrör
För Ulefos Vridspjällventiler DN250-1200
Anpassat för Ulefos betäckningar 1830/1833/1835/1840
Inkl flänsförband 4st M10
Fläns och spindelhylsa anpassad för ISO-topp Ø20mm
Gul standardtopp 1893 med brottgräns 400 Nm


Ulefos Jernværk AS – Norge
Holden Jernværk grundades 1657 och bytte namn till Ulefos Jernværk efter att Diderik Cappelen köpte gjuteriet 1835. Ulefos Jernværk är en av Norges äldsta och mest traditionsrika företag och har genom tiderna producerat olika kvalitetsprodukter, bl. a de kända järnkaminerna. Produktion av gatugods startade 1952 och är idag det viktigaste produktområdet. Ulefos Jernværk AS finns i orten Ulefoss och tillverkar gatugods i segjärn.

Ulefos Niemisen Valimo OY Finlands enda gatugodsgjuteri etablerades 1928 och blev en del av Cappelen Gruppen 1999. Gjuterier producerar gatugodsprodukter i gråjärn. Niemisen Valimo OY finns i Harjavalta.

Ulefos gjuteri i Norge
Ulefos gjuteri i Finland
Carbon footprint

Utsläpp av växthusgaser har varit ett omdebatterat ämne under ett antal år. Det mesta tyder på att vårt utnyttjande av fossila bränslen har en negativ påverkan på jordens klimat och att vi i framtiden behöver se över hur vi producerar och använder vår energi.
Från och med 2012 har Ulefos Järnverk valt att redovisa ett antal brunnsbetäckningar som i minsta möjligaste mån påverkar utsläpp av växthusgaser.
Du som kund som vill vara klimatsmart, och lämna ett så litet fotavtryck som möjligt beträffande klimatpåverkan, ber vi att titta efter betäckningar i vår katalog med en ”Carbon footprint”-etikett.
Ulefos Järnverk har unika förutsättningar att hålla nere utsläppen av växthusgaser.
Utsläpp av CO2 från förbrukning av energi är 0 eftersom fabriken har ett eget vattenkraftverk som förser produktionen. Det sammanlagda utsläppet av CO2 från produktionen är så liten som 48 gram per kilo smält järn. Transporten från fabrik till Göteborg medför ett utsläpp av CO2 på 95 gram per kilo järn. Alla värden är framtagna i samarbete med oberoende institut.
Exempel:
CO2 utsläpp för flytande BETÄCKNING A6/600, med vikt 102 kg från Ulefos Järnverk
Produktion
4,90 kg CO2 (*48 kg CO2 per ton järn)
Transport 9,63 kg CO2 (till Göteborg)
Samlad dokumenterad miljöbelastning 14,53 kg CO2
*Beräkningar från gjuteriföreningen i Sverige visar att ett genomsnitt av de tio bästa gjuterierna i Europa, med kupolugnsdrift, har ett utsläpp i produktionen på 330 kg CO2 per ton smält järn, d. v. s. drygt 6 ggr högre utsläpp än Ulefos Järnverk.

ODIN A6 EXTRA



• För de tuffaste gatorna

• Extra lång livslängd
• Extra slitstarkt halkskydd
• Omslutande packning
• Kompatibel med underhållslock
• Tre låsaramar, öppnas lätt med KK-15 öppningsverktyg
Typer och belastningsklasser
Fast
Monteras på brunnen, justeras i rätt höjd med passdel

Flytande
Monteras i brunnen och justeras sedan i rätt höjd genom att lyfta ramen

Teleskopisk
Monteras på brunnen och justeras sedan i rätt höjd genom att lyfta den övre ramen

BELASTNINGSKLASSER ENLIGT EUROPEISK, TILLIKA SVENSK STANDARD SS-EN124: 2015
GRUPP 1 - 15 KN
Trafikområden som enbart kan användas av fotgängare och cyklister.
GRUPP 2 - 125 KN
Gångvägar, gångtrafikområden och därmed jämförbara områden, bilparkeringar eller parkeringsdäck.
GRUPP 4 - 400 KN
Körbanor (inkl. gågata), hårdgjord vägren och parkeringsområden, för alla typer av vägfordon.
GRUPP 5 - 600 KN
Trafikområde som utsätts för högt hjultryck, såsom hamnar och flygfält.
GRUPP 3 - 250 KN
För betäckningar till dagvattenbrunnar placerade i rännstensområdet, vilket område mätt från kanstenskanten sträcker sig 0,5 m ut i körbanan och 0,2 m in mot gångbanan.
P
GRUPP 6 - 900 KN
Trafikområde som utsätts för särskilt högt hjultryck, såsom trafikflygplatser.
F900
Monteringsanvisningar för Ulefos Fasta betäckningar

Grundregler vid montering
• Den fasta betäckningen placeras direkt på betongkonan eller på passdelar.
• Rengör först utrymmet runt om ramen. Överbeläggningen skall ha full kontakt runt hela betäckningen.
• Fasta betäckningar skall enligt Anläggnings-AMA placeras 5-10 mm under färdig överbeläggning.
Goda råd
Eftersom brunn med fast betäckning är en konstruktion som inte kan ta upp sättningar rekommenderas fasta betäckningar endast på områden med låg trafikintensitet och låga hastigheter, t ex gågator, kullerstensgator, parkeringar, trottoarer etc.
Kontroll
I anläggningar med uttalat kvalitetskrav skall installationen alltid kontrolleras innan arbetet godkänns.
Följande punkter bör särskilt beaktas:
• att överbeläggningen har full kontakt runt hela betäckningen
• att allt ovidkommande material har tagits bort mellan ram och lock (galler)
Monteringsanvisningar för Ulefos Flytande betäckningar


Grundregler vid montering
• Flytande betäckningar skall ”flyta” i min. 10 cm. asfalt.
• Rengör först utrymmet under ramens fläns och in mot halsen. Asfalten skall ha full kontakt runt hela betäckningen.
• Flytande betäckningar skall vältas ned i den varma asfaltmassan och packas enligt de föreskrifter som gäller för beläggningen i övrigt.
• Flytande betäckningar skall alltid flyta jämnt med beläggningens överkant.
Nödvändiga förberedelser
Brunnen bör byggas så det blir möjligt att utnyttja lika mycket av justeringsmånen såväl uppåt som nedåt.
Goda råd
Använd skrapringar (dessa finns till betäckningar med hals Ø 640, 600 och 400 mm) ! Skrapringen hindrar grus och asfalt från att tränga ned mellan brunnens innerkant och betäckningens hals under anläggningstiden.
Kontroll
I anläggningar med uttalat kvalitetskrav skall installationen alltid kontrolleras innan arbetet godkänns.
Följande punkter bör särskilt beaktas:
• att ramen ej kan vicka i beläggningen
• att ramen flyter väl i beläggningen
• att allt ovidkommande material har tagits bort mellan ram och lock (galler)
Monteringsanvisningar för Ulefos Teleskopiska betäckningar


Grundregler vid montering
• Överramen skall ”flyta” i min. 10 cm. asfalt.
• Rengör först utrymmet under överramens fläns och in mot halsen.
Asfalten skall ha full kontakt runt hela betäckningen.
• Teleskopiska betäckningar skall vältas ned i den varma asfaltmassan och packas enligt de föreskrifter som gäller för beläggningen i övrigt.
• Teleskopiska betäckningar skall alltid flyta jämnt med beläggningens överkant.
Nödvändiga förberedelser
Brunnen bör byggas så det blir möjligt att utnyttja lika mycket av justeringsmånen såväl uppåt som nedåt.
Viktigt att tänka på
Överramen får efter installation EJ vila mot underramen. Överramen bör höjas över underramen så att halva justeringsmånen utnyttjas.
Kontroll
I anläggningar med uttalat kvalitetskrav skall installationen alltid kontrolleras innan arbetet godkänns.
Följande punkter bör särskilt beaktas:
• att överramen ej kan vicka i beläggningen
• att överramen flyter väl i beläggningen
• att allt ovidkommande material har tagits bort mellan ram och lock (galler)

ULEFOS LOGO LOCK




• Skräddarsydda logo lock
• När du verkligen vill synas
• Logo med 3D effekt och djup
• Marknadsföring som varar länge
• För kommuner, företag och organisationer
• Kontakta oss så tar vi fram ett snyggt förslag
Ulefos Gatugods FASTA BETÄCKNINGAR
Fast fyrkantig betäckning för brunn med dagöppning 1000 mm
• Dolda gångjärn
• 4 st låsbultar som enkelt går att byta ut
• 2 st dämpare för smidig öppning och stängning av lock.
• Packning i anliggningsytan mellan ram och lock samt i bulthålen gör betäckningen vattentät
• Körbar, klass D400 enligt SS-EN 124:2015
• Tillverkat av varmgalvat stål

Dämpare


Fast fyrkantig betäckning komplett med lock
För brunn med dagöppning 1000 Varmgalvat stål
Andra dimensioner på förfrågan
Ulefos Gatugods
NEDSTIGNINGSBRUNNAR NB
Fast rund betäckning komplett med lock För brunn med dagöppning 800






Fast kvadratisk betäckning komplett med lock För brunn med dagöppning 640/600



* Observera vid anläggning! Eftersom ramen har ihåligheter krävs det att hela ramen ligger mot ett fast underlag, typ betong, eller att ihåligheterna som inte ligger an mot fast underlag fylls med betong/cement innan montering. I övrigt gäller monteringsanvisningar för Ulefos fasta betäckningar.
Flytande kvadratisk betäckning komplett med lock
För brunn med dagöppning 800



Ulefos Gatugods
FLYTANDE
BETÄCKNINGAR - SEGJÄRN
Flytande rund betäckning komplett med lock För brunn med dagöppning 800







Ergo Odin flytande rund betäckning komplett med lock, omslutande packning För brunn med




Ulefos Gatugods FLYTANDE BETÄCKNINGAR - SEGJÄRN
NEDSTIGNINGSBRUNNAR NB
Odin Extra flytande rund betäckning komplett med lock, omslutande




Flytande rund betäckning komplett med



Flytande kvadratisk betäckning komplett med lock För brunn



Ulefos Gatugods
FLYTANDE BETÄCKNINGAR - SEGJÄRN
NEDSTIGNINGSBRUNNAR NB
Ergoline flytande rund betäckning komplett med lock, pågjuten packning För




Ergo Odin flytande rund betäckning komplett med lock, omslutande packning För brunn med dagöppning 625




Flytande rund betäckning komplett med lock För brunn med dagöppning 600



Ulefos Gatugods FLYTANDE BETÄCKNINGAR - SEGJÄRN
NEDSTIGNINGSBRUNNAR NB
Ergoline flytande rund betäckning komplett med lock För brunn med dagöppning 600




Odin Extra flytande rund betäckning komplett med lock, omslutande packning








Ulefos Gatugods
FLYTANDE
BETÄCKNINGAR - SEGJÄRN
TILLSYNSBRUNNAR TB
Flytande rund betäckning komplett med lock
För brunn med dagöppning 500



Flytande
Flytande kvadratisk betäckning komplett med lock
För brunn med dagöppning 400






Ulefos Gatugods
FLYTANDE BETÄCKNINGAR - SEGJÄRN
TILLSYNSBRUNNAR TB
Flytande rund betäckning komplett med lock För plastbrunn di 315



RENSBRUNNAR RB
Flytande rund betäckning komplett med lock För brunn med dagöppning 300



Flytande kvadratisk betäckning komplett med lock För brunn med dagöppning 300



Ulefos Gatugods
FLYTANDE BETÄCKNINGAR - SEGJÄRN
RENSBRUNNAR RB
Flytande rund betäckning komplett med lock För brunn med dagöppning 225



DAGVATTENBRUNNAR DRB
Fast fyrkantig betäckning komplett med galler För PVC-rör dy 200 muffända



Flytande rund betäckning komplett med galler För brunn med dagöppning 800




Ulefos Gatugods
FLYTANDE BETÄCKNINGAR - SEGJÄRN
DAGVATTENBRUNNAR DRB
Flytande rund betäckning komplett med galler För brunn med dagöppning 640



Flytande rund betäckning komplett med galler För brunn med dagöppning 600



Flytande rund betäckning komplett med galler För brunn med dagöppning 600



Ulefos Gatugods
FLYTANDE
BETÄCKNINGAR - SEGJÄRN
DAGVATTENBRUNNAR DRB
Flytande fyrkantig betäckning komplett med galler För brunn med dagöppning 500



Flytande fyrkantig betäckning komplett med galler För brunn med dagöppning 400



Flytande rund betäckning komplett med galler För brunn med dagöppning 400



Ulefos Gatugods
FLYTANDE BETÄCKNINGAR - SEGJÄRN
DAGVATTENBRUNNAR DRB
Flytande rund betäckning komplett med galler
För brunn med dagöppning 300



Flytande rund betäckning komplett med galler
För plastbrunn di 315



Flytande fyrkantig betäckning komplett med galler
För plastbrunn di 315
Monteras på teleskoprör typ Wavin



Ulefos Gatugods
FLYTANDE BETÄCKNINGAR - SEGJÄRN
DAGVATTENBRUNNAR DRB
Flytande fyrkantig betäckning komplett med galler
För brunn med dagöppning 300



Flytande fyrkantig betäckning komplett med galler
För brunn med dagöppning 200



Flytande fyrkantig betäckning komplett med galler
För brunn med dagöppning 150



Ulefos Gatugods
TELESKOPISKA BETÄCKNINGAR - SEGJÄRN
NEDSTIGNINGSBRUNNAR
Ergoline teleskopisk rund betäckning komplett med lock För brunn med dagöppning 640/600




Ergo Odin teleskopisk rund betäckning komplett med lock, omslutande packning För brunn med dagöppning 640/600




Ulefos Gatugods TELESKOPISKA BETÄCKNINGAR - SEGJÄRN
NEDSTIGNINGSBRUNNAR NB
Odin Extra teleskopisk rund betäckning komplett med lock, omslutande packning För brunn med dagöppning 640/600




Teleskopisk rund betäckning komplett med lock, omslutande packning För brunn med dagöppning 400



Ulefos Gatugods
TELESKOPISKA BETÄCKNINGAR - SEGJÄRN
TILLSYNSBRUNNAR TB
Teleskopisk rund betäckning komplett med lock
För brunn med dagöppning 400



RENSBRUNNAR TB
Teleskopisk rund betäckning komplett med lock
För brunn med dagöppning 300



Ulefos Gatugods
TELESKOPISKA
BETÄCKNINGAR - SEGJÄRN
DAGVATTENBRUNNAR DRB
Teleskopisk kantstensbetäckning
För brunn med dagöppning 640



Teleskopisk rund betäckning komplett med galler För brunn med dagöppning 640/600



705
Teleskopisk fyrkantig betäckning komplett med galler
För brunn med dagöppning 500



Ulefos Gatugods
TELESKOPISKA
BETÄCKNINGAR - SEGJÄRN
Teleskopisk fyrkantig betäckning komplett med galler För brunn med dagöppning 500



* Passar även standard teleskopisk A2 underram
Teleskopisk fyrkantig betäckning komplett med galler För brunn med dagöppning 400



* Passar även standard teleskopisk A1 underram
Ulefos Gatugods
TELESKOPISKA
BETÄCKNINGAR - SEGJÄRN
DAGVATTENBRUNNAR DRB

Teleskopisk fyrkantig kantstensbetäckning För brunn med dagöppning 400



Teleskopisk fyrkantig kantstensbetäckning För brunn med dagöppning 400


Teleskopisk fyrkantig kantstensbetäckning För brunn med dagöppning 300



Ulefos Gatugods
TELESKOPISKA
BETÄCKNINGAR - SEGJÄRN
DAGVATTENBRUNNAR DRB

Teleskopisk fyrkantig kantstensbetäckning

För betongrör 150 eller plaströr 160



Flytande fyrkantig kantstensbetäckning
För brunn med dagöppning 300




*Lokalt Omhändertagande av Dagvatten
Ulefos Gatugods
KUPOLSILAR FÖR DIKESBRUNNARR - SEGJÄRN
Kupolsil För betongkona 640



Kupolsil För betongkona 640



Kupolsil
För betongrör 600 och DV-rör Di 600



Kupolsil
För betongrör 500 och DV-rör Di 500



Ulefos Gatugods
KUPOLSILAR FÖR DIKESBRUNNAR - SEGJÄRN
Kupolsil
För betongrör 500 och muffända på betongrör 400



Kupolsil
För betongrör 500 och muffända på betongrör 400



Kupolsil
För betongrör 400 och DV-rör Di 400



Kupolsil
För betongrör 300



Ulefos Gatugods
FJÄRRVÄRMEBETÄCKNINGAR
- SEGJÄRN
Fast rund betäckning komplett med









Ulefos Gatugods
FJÄRRVÄRMEBETÄCKNINGAR -
SEGJÄRN
FASTA BETÄCKNINGAR - FJÄRRVÄRMEBRUNNAR
Fast rund betäckning komplett med lock märkt FV För brunn med dagöppning 300



Flytande rund betäckning komplett med lock märkt FV För brunn med dagöppning 800




Flytande rund betäckning komplett
För brunn



Ulefos Gatugods
FJÄRRVÄRMEBETÄCKNINGAR
- SEGJÄRN









Ulefos Gatugods
FJÄRRVÄRMEBETÄCKNINGAR
- SEGJÄRN
FLYTANDE BETÄCKNINGAR - FJÄRRVÄRMEBRUNNAR
Flytande rund betäckning komplett med lock märkt FV För brunn med dagöppning 600









Ulefos Gatugods
FJÄRRVÄRMEBETÄCKNINGAR - SEGJÄRN
FLYTANDE BETÄCKNINGAR - FJÄRRVÄRMEBRUNNAR
Flytande rund betäckning komplett med lock märkt FV För brunn med dagöppning 225



TELESKOPISKA
Teleskopisk rund betäckning komplett med lock märkt FV För brunn med dagöppning 640/600



Teleskopisk rund betäckning komplett med lock märkt FV För brunn med dagöppning 400



Ulefos Gatugods
KABELBRUNNSBETÄCKNINGAR
- SEGJÄRN
Betäckning för kabelbrunn
Med en sektion/fyrkantlock
För dagöppning 700x730 mm RSK-nr



Betäckning för kabelbrunn
Med två sektioner/fyrkantlock (2 st)
För dagöppning 700x1400 mm




Betäckning för kabelbrunn
Med tre sektioner/fyrkantlock (3 st)
För dagöppning 700x2100 mm


Ulefos Gatugods
KABELBRUNNSBETÄCKNINGAR - SEGJÄRN
Betäckning för kabelbrunn
Med en sektion/trekantlock (2 st)
För dagöppning 700x730 mm



Betäckning för kabelbrunn
Med två sektioner/trekantlock (4 st)
För dagöppning 700x1400 mm




Betäckning för kabelbrunn
Med tre sektioner/trekantlock (6 st)
För dagöppning 700x2100 mm


Låsbart trekantlock
Förberett för



Ulefos Gatugods
KOMBIBETÄCKINGAR - FLYGPLATSBELYSNING
- SEGJÄRN
Kombibetäckningar för kabelbrunn
Med 1,2,3 sektioner/trekantlock (2,4,6 st)

För dagöppning 700x730, 700x1400, 700x2100 mm
Flytande kombibetäckning komplett med belysningsfäste För brunn med dagöppning 400



RSK-nr
Ulefos Gatugods
Flytande betäckning komplett med lock För avstängningsventil



Teleskopisk betäckning komplett med lock För brandpost RSK-nr


Flytande betäckning komplett med lock För servisventil



Flytande betäckning komplett med lock För servisventil



Ulefos Gatugods
TÄTA BETÄCKNINGAR
DENSUS - SEGJÄRN
Täta betäckningar Densus
Densus-betäckningarna är täta mot inläckande vatten, oljor m.m, och besvärande lukt. Locket är gummipackat och försett med täta spetthål och nyckelhål. Levereras med oljebeständig packning. Använd tätningsmassa mellan underram och brunnskona. På teleskopiska betäckningar utan O-ringspackade innerlock får man vid ev. behov täta spalten mellan underram och överram.
Densus fast rund betäckning komplett med lock För brunn med dagöppning 640/600



Densus teleskopisk rund betäckning komplett med lock För brunn med dagöppning 640/600



Ulefos Gatugods
TÄTA BETÄCKNINGAR DENSUS - SEGJÄRN
Täta betäckningar Densus
Densus-betäckningarna är täta mot inläckande vatten, oljor m.m, och besvärande lukt. Locket är gummipackat och försett med täta spetthål och nyckelhål. Levereras med oljebeständig packning. Använd tätningsmassa mellan underram och brunnskona. På teleskopiska betäckningar utan O-ringspackade innerlock får man vid ev. behov täta spalten mellan underram och överram.
Densus 2 teleskopisk rund betäckning komplett med lock För
640/600



Densus 3 teleskopisk rund betäckning komplett med lock För brunn med dagöppning 800



Ulefos Gatugods
TÄTA BETÄCKNINGAR
DENSUS - SEGJÄRN

Densus A6 teleskopisk rund betäckning komplett med lock För brunn med dagöppning 640/600 Med gummipackning mellan överram och underram



Ulefos Denus A6 är en komplett teleskopisk betäckning med pågjuten packning och o-ring i locket. Dessutom har Densus A6 en robust oljebeständig gummipackning mellan över och underram.
• Komplett Densus A6 betäckning - RSK 702 54 31
• Komplett Densus A6 betäckning märkt FV - RSK 702 54 32
• Smidig och enkel öppning av locket med Ulefos KK-15
• Öppningsverktyg - RSK 705 99 92
Ulefos Gatugods
BETÄCKNINGAR F 900 - SEGJÄRN
Flytande rund betäckning komplett med lock
För brunn med dagöppning 800




Flytande rund betäckning komplett med lock
För brunn med dagöppning 640




Flytande rund betäckning komplett med galler
För brunn med dagöppning 640




Flytande rund betäckning komplett med lock
För brunn med dagöppning 600



Finns även med galler (50301141)
Ulefos Gatugods
BETÄCKNINGAR
F 900 - SEGJÄRN
Teleskopisk fyrkantig betäckning komplett med galler För brunn med dagöppning 400



Betäckning för kabelbrunn
Med en sektion/trekantlock (2 st)
För betongöppning 700x730 mm



Betäckning för kabelbrunn
Med två sektioner/trekantlock (4 st)
För betongöppning 700x1400 mm



Betäckning för kabelbrunn
Med tre sektioner/trekantlock (6 st)
För betongöppning 700x2100 mm



Ulefos Gatugods
FASTA BETÄCKNINGAR - GRÅJÄRN








Ulefos Gatugods
FASTA BETÄCKNINGAR - GRÅJÄRN
DAGVATTENBRUNNAR DRB
Fast rund betäckning komplett med galler
För brunn med dagöppning 640/600


Fast fyrkantig betäckning komplett med galler För brunn med dagöppning 500


Fast fyrkantig betäckning komplett med galler För brunn med dagöppning 400


Ulefos Gatugods
FLYTANDE
BETÄCKNINGAR - GRÅJÄRN
NEDSTIGNINGSBRUNNAR NB
Flytande rund betäckning komplett med lock För brunn med dagöppning 640


Flytande rund betäckning komplett med lock För
600


TILLSYNSBRUNNAR TB
Flytande rund betäckning komplett med lock För
600



Ulefos Gatugods
FLYTANDE BETÄCKNINGAR - GRÅJÄRN
TILLSYNSBRUNNAR TB
Flytande rund betäckning komplett med lock För brunn med dagöppning 400


RENSBRUNNAR RB
Flytande rund betäckning komplett med lock För brunn med dagöppning 225


Ulefos Gatugods
FLYTANDE BETÄCKNINGAR - GRÅJÄRN
DAGVATTENBRUNNAR DRB
Flytande rund betäckning komplett med galler
För brunn med dagöppning 640


Flytande rund betäckning komplett med galler
För brunn med dagöppning 600


Flytande fyrkantig betäckning komplett med galler
För brunn med dagöppning 400


Flytande fyrkantig betäckning komplett med galler
För brunn med dagöppning 400


Ulefos Gatugods
TELESKOPISKA
BETÄCKNINGAR - GRÅJÄRN
NEDSTIGNINGSBRUNNAR NB


TILLSYNSBRUNNAR
TB


RENSBRUNNAR
RB
Teleskopisk rund betäckning komplett med lock För brunn med dagöppning 300


Teleskopisk rund betäckning komplett med lock För brunn med dagöppning 225


Ulefos Gatugods
TELESKOPISKA
BETÄCKNINGAR - GRÅJÄRN
DAGVATTENBRUNNAR DRB
Teleskopisk rund betäckning komplett med galler För brunn med dagöppning 640/600


Teleskopisk fyrkantig betäckning komplett med galler För


Teleskopisk fyrkantig betäckning komplett med galler För brunn med dagöppning 400


Ulefos Gatugods
KUPOLSILAR
FÖR DIKESBRUNNAR - GRÅJÄRN






Kupolsil


Ulefos Gatugods
FJÄRRVÄRMEBETÄCKNINGAR
- GRÅJÄRN
FASTA BETÄCKNINGAR - FJÄRRVÄRMEBRUNNAR
Fast rund betäckning
komplett med lock märkt FV
För brunn med dagöppning 640/600


Fast rund betäckning
komplett
FV För


Fast


Ulefos Gatugods
FJÄRRVÄRMEBETÄCKNINGAR
- GRÅJÄRN
FASTA BETÄCKNINGAR - FJÄRRVÄRMEBRUNNAR
Fast rund betäckning komplett med lock märkt FV För brunn med dagöppning 225


FLYTANDE BETÄCKNINGAR - FJÄRRVÄRMEBRUNNAR




Ulefos Gatugods
FJÄRRVÄRMEBETÄCKNINGAR
- GRÅJÄRN
FLYTANDE BETÄCKNINGAR - FJÄRRVÄRMEBRUNNAR
Flytande rund betäckning
komplett med lock märkt FV
För brunn med dagöppning 400


Flytande rund betäckning komplett med lock märkt FV För brunn med dagöppning 225

TELESKOPISKA BETÄCKNINGAR - FJÄRRVÄRMEBRUNNAR

Teleskopisk rund betäckning komplett med lock märkt FV För brunn med dagöppning 640/600


Ulefos Gatugods
FJÄRRVÄRMEBETÄCKNINGAR
- GRÅJÄRN
TELESKOPISKA BETÄCKNINGAR - FJÄRRVÄRMEBRUNNAR
Teleskopisk rund betäckning komplett med lock märkt FV För brunn med dagöppning 400


Teleskopisk rund betäckning komplett med lock märkt FV För brunn med dagöppning 225


Ulefos Gatugods
VENTIL- & BRANDPOSTBETÄCKNINGAR
- GRÅJÄRN
Flytande betäckning komplett med lock För avstängningsventil


Flytande betäckning komplett med lock För servisventil


Fast betäckning komplett med lock För brandpost


Ulefos Lätta betäckningar
Lätt-betäckningar, som de kallas i folkmun, är en av de mest klassiska betäckningarna på den svenska marknaden. Faktum är att det är en unik produkt som bara finns i Sverige. Den har genom åren blivit så populär att det är svårt att hitta en fastighetsägare som inte har minst en lätt-betäckning på tomten eller på garageuppfarten. Varför de kallas lätta är att de inte bör läggas på ytor med nämnvärd biltrafik.
Lätt-betäckningar är en enkel produkt med en fast ram och ett lock som skruvas mot ramen. Men under locket döljer sig ofta viktiga detaljer som till exempel tillsynsrör och spolbrunnar till husdränering, dagvatten eller avlopp.
Trots sin enkla konstruktion är det viktigt att den lätta betäckningen fungerar som det är tänkt under många år. Locket skall vara enkelt att öppna den dag det behövs och betäckningen skall också klara de belastningar den utsätts för på till exempel en garageuppfart. När du köper en lätt betäckning från Ulefos kan du känna dig trygg med att du får en produkt av bästa kvalitet. Och har du frågor eller funderingar kan du räkna med snabb och kunnig service från oss.
Ulefos eget varumärke NV står för kvalitet, service och långsiktigt engagemang.
Ursparning för skruvmejsel ger extra hjälp vid locköppning.
8 mm ursparning i ramens fals möjliggör bultförankring mot underlaget.

Belastningsklass B125 för ökad trygghet.
Kraftigt mönster för att förhindra halkolyckor vid halt väglag.
Kraftiga stjärnskruvar gör det smidigt att öppna locket.
Passar i betongrörsmuff. Dim 150 och 225 passar
även till plaströr Dy 110 och 160 mm











Ulefos Gatugods TILLBEHÖR
KK-15 Öppningsverktyg
UN-07 Öppningsnyckel


KN1600 magnetlyftverktyg
För olåsta lock till gjutjärnsbetäckningar


Tillbehör till magnetlyftverktyg
Ulefos Gatugods TILLBEHÖR
AC Kombinationsnyckel

Densus Lyftverktyg
TK Öppningsnyckel typ C ABCD Servicenyckel




Ulefos Gatugods TILLBEHÖR
Passram för A1-betäckningar
Kan ej monteras med kantringssäkert galler
Gråjärn
Passram för A3-betäckningar
Gråjärn
Passram för A4-betäckningar
Gråjärn



Ulefos Gatugods TILLBEHÖR
Passram för A5-betäckningar
Gråjärn
Passram för A6-betäckningar
Gråjärn
Passram för brandpostbetäckningar typ 2931/2932
Gråjärn
Passram för SV*-betäckningar typ 2934/2935
Gråjärn




*Servisventil
Underhållslock ODIN A6


• Passar alla A6 ramar
• Omslutande packning
• Ersätter slitna betäckningar
• Går att få med egen logoplatta
• Öppnas lätt med KK-15 öppningsverktyg
• Underhållslock Odin A6: RSK-nr 705 96 04
Ulefos Gatugods
TILLBEHÖR
Passram för AV*-betäckningar typ 2933
Gråjärn

*Avstängningsventil
Underhållslock Odin A6 för alla A6 ramar
Segjärn
Observera att passformen varierar



Ulefos Gatugods TILLBEHÖR



...någonsin.
Vi har utvecklat en produktionsprocess för avvattningsrännor som kombinerar många fördelar: lättare, starkare och mer slagtåliga rännor tillverkade av fiberförstärkt betong!
standard och certifiering
godkänd enligt SS-EN 1433 CE-märkt


lägre vikt
smidig hantering och installation
miljövänlig
naturliga komponenter materialet är återvinningsbart
knäck- och slagtålig på grund av hög fiberkoncentration
slät insida, grov utsida två fördelar i ett
Modern – Hållbar
Av hänsyn till miljön och framtida generationer.
Den innovativa Filcoten ® betongrännan är mycket resurseffektiv och miljövänlig under hela sin livscykel tack vare
- de råvaror som används
- produktionsprocessen
- återvinningsbarheten
modern – hållbar
sparar på naturresurser tack vare 70% viktreduktion
med eller utan kantförstärkning kantförstärkning i elförzinkat/varmgalvat stål, segjärn eller rostfritt stål
Filcoten ® - det moderna avvattningssystemet!
Filcoten ® rännor för linjeavvattning är speciellt värdefulla ur ett ekologiskt och ekonomiskt perspektiv, tack vare de naturliga råvarorna och produktens långa hållbarhet!
Tack vare den kraftiga reduceringen av vikt jämfört med konventionella betongrännor (upp till 70% beroende på typ av ränna), gör Filcoten ® en stor insats för att bevara råvaruresurser.
Denna reducering av vikt minskar signifikant CO2-utsläppen under transport. Viktreduceringen gör också hanteringen i lagret och under installation avsevärt smidigare och enklare.
Vad är Filcoten ® ?
Produktionsteknik för morgondagens betongprodukter. Ett högkvalitativt fiberförstärkt kompositmaterial som tillverkas i en innovativ produktionsprocess genom blandning och bearbetning av fiber, cement och bindmedel. Den höga andelen fiber i kombination med högpresterande betong öppnar upp helt nya perspektiv jämfört med det klassiska byggmaterialet betong.
I korthet: Filcoten® är den världsledande avvattningsrännan i lågviktsbetong.
Fördelar för användaren
• Lägre vikt - lägre transportkostnader och snabbare installation
• Urtag och grova yttersidor säkerställer en god kontakt med den omkringliggande betongen
• Mycket hög slagtålighet för säker hantering och installation
• Hög tryckhållfasthet och draghållfasthet tack vare den innovativa fiberförstärkta kompositen
• Släta inre ytor garanterar bästa flödesegenskaper
• Enkelt att kapa och borra på plats
Filcoten ® Användningsområden
Filcoten® avvattningsrännor kan installeras överallt där en maximal last på 900 kN (klass F900) krävs.


Filcoten ® Egenskaper
Den viktigaste skillnaden mellan Filcoten ® light och tec/pro är kantförstärkningen.
Filcoten ® light (utan kantförstärkning)
• idealisk för läggning med gatstenar eller trottoarstenar
• gallren vilar på rännans ovansida
• enkel och kostnadseffektiv ränna för många användningsområden
• maximal last 250 kN (klass C250)
Filcoten ® tec (med galvaniserad eller rostfri kantförstärkning)
• optimal bearbetning av intilliggande beläggning av invid kantförstärkningen
• gallren fixeras i rännan med ett innovativt clipssystem
• ytterligare förankring förhindrar avlägsnande av galler (skydd mot skadegörelse och stöld)
• maximal last 250 kN (klass C250)
Filcoten ® pro (med galvaniserad kantförstärkning eller i segjärn)
• samma goda egenskaper som Filcoten tec
• galler som går att låsa med bultförband
• maximal last 900 kN (klass F900)
Filcoten ® self (utan kantförstärkning)
• Lätt och smidig gör det själv ränna
• idealisk för terraser, balkonger och garage
• maximal last 15kN (klass A15)


Allmän installationsvägledning
Installations- och monteringsexemplen är baserade på vanligt förekommande installationer.
Specialinstallationer bör planeras och utföras av erfarna yrkesmän.
Riktlinjer för installation av Filcoten self, light, tec och pro
1. Kontrollera belastningsklassen (enligt EN 1433) se tabell ”Belastningsklass”.
2. Filcoten avvattningsrännor skall installeras i en jordfuktig betongbädd under och på sidan av rännan (dimensioner – se tabell). Lutningen på rännan bör planeras redan vid utgrävningen (min. lutning rekommendation 0,5 %). En jordfuktig betongsula med höjd 2 cm är ett minimum mått under varje ränna. Kontrollera att bottenlagret är hårdgjord för undvikande av sättningar.
3. Använd vid behov extra stöd för att hålla rännorna uppe i rätt position tills den jordfuktiga betongen på sidan av rännan och under rännan härdat tillräckligt.
4. Kontrollera om det är olika rännhöjder och börja lägga rännan vid övergången till utloppet (lågpunkten). Riktningen för flödet är märkt med en pil på varje ränna.
5. OBS! Galler måste installeras innan man fyller på med fyllningsmassor (för att stadga upp rännan tillräckligt)
6. Vid installation i krävande användningsområden, t ex trafikutsatta rännor, rekommenderas att gallren låses extra. Se sortiment / Tillbehör
7. Lägg helst in en expansionsfog vid 30-200 cm avstånd från avvattningsrännan.
8. Alla intilliggande ytor och plattor bör vara ca 3-5 mm högre än gallren.
Belastningsklass A 15 kN B 125 kN C 250 kN D 400 kN E 600* kN
Fundament - Betong min. kvalitet (DIN EN 1433)
Betongarmering
C16/20 C20/25 C20/25 C25/30 C25/30
Light min. ränna höjd -3 cm
Tec och Pro min. ränna höjd -5 cm
Behövs ej
(* Finns även för F900, kontakta Ulefos för mer information)
Pro= rännans bygghöjd
min. 8 mm var 20 cm

Allmän installationsvägledning
Riktlinjer för installation av Filcoten Parkline

Riktlinjer för installation av Filcoten One


1. Bitumenband
2. Asfalt-slitlager
3. Asfalt-bindlager
4. Asfalt-bärlager
5. Belastningsklass E600 (kontakta Ulefos)
6. Hålrumsfri fogmassa
7. Större kanststen
8. Bottenlager
9. Betongsula baserad på belastningskalkyl (F900)
10. Konstruktionsfog
11. Körbar betong
12. Expansionsfog
13. Armering/förstärkning baserat på belastningskalkyl (F900)
För F900, kontakta Ulefos för mer information
Allmän installationsvägledning forts.
Filcoten light mini
Permanently elastic jointing
10 mm fogmassa
Bitumenband
Sten/plattbeläggning
Sandbädd
Betongsula Bottenlager
Elastisk fogmassa Fogmassa
Impeccable sealant joint 3-5 mm

Plattor
Jordfuktig betong Bottenlager
Plattor
Bärlager
Jordfuktig betong
Tiles Mor tar bed
Stoneware coating
Industrial screed Gravel bed
Stenytbeläggning Sandbädd
Bottenlager
Reinforced concrete slab
Filcoten tec exempel 1
Impeccable sealant joint
Sten/plattbeläggning
Paving stones
Gravel bed
Sandbädd
Concrete foundation
Betongsula
Bottenlager
Gravel course layer 3-5 mm X Z Y X Fogmassa
Bitumenband
Bituminous joint tape
Filcoten pro D400
Sten/plattbeläggning
Sandbädd
Betongsula
Bottenlager 3-5 mm X Z Y X
Bitumenband Fogmassa
Top course
Filcoten light
Impeccable sealant joint
Bituminous joint tape
Sten/plattbeläggning Sandbädd
Asfalt-slitlager
Bituminous compound
Paving stones
Asfalt-bindlager
Bituminous course layer
Filcoten self (* Finns även för F900, kontakta Ulefos för mer information)
Asfalt-bärlager
Fine coating Gravel bed
Asfalt-slitlager
Bituminous compound
Concrete foundation
Betongsula
Gravel course layer
Bottenlager
Bituminous course layer Y Z X 3-5 mm X Fogmassa Bitumenband
Filcoten tec exempel 2
Asfalt-bindlager
Asfalt-bärlager
Expansionsfog Elastisk fogmassa
Industrial floor
Reinforced concrete slab
Industrigolv Förstärkt betongplatta
Concrete foundation
Betongsula
Bottenlager
Gravel course layer
Expansion joint X Z Y X 3-5 mm 30-200 cm
Asfalt-slitlager
Asfalt-bindlager
Asfalt-bärlager
Bottenlager
Permanently elastic jointing
Filcoten pro E600*
Körbar betong
Betongsula
Bottenlager
Flagstones/ tiles
Trottoarsten/plattor
Jordfuktig betong bärlager
Mor tar bed/ Screed
Ulefos Linjeavvattning
FILCOTEN SELF & LIGHT
Filcoten Self gör-det-själv avvattningsränna komplett med slitsgaller till belastningsklass A15.


Ulefos Linjeavvattning


Filcoten light



Ulefos Linjeavvattning FILCOTEN LIGHT






Slitsgaller
Spaltgaller av segjärn Rutgaller
Ulefos Linjeavvattning
FILCOTEN SLOT TOP
SLOT TOP är särskilt lämpade för arkitektoniskt krävande områden där dränering och utseende spelar en lika viktig roll. Tack vare smala fack med en bredd på endast 18 mm, är de idealiska för separering av olika områden. Slot top assymetriska slits är idealisk för anläggning mot trappa, kantsten, murverk etc.
Filcoten slot top För light-ränna NB100
Art-nr

*Trädistanser eller galler måste vara monterade under läggning av toppskikt.
Filcoten slot top För light-ränna NB150
RSK-nr Art-nr Slot top NB100 inklusive tillbehör galvaniserad (V)

Filcoten slot top V underhållsenhet
*Trädistanser eller galler måste vara monterade under läggning av toppskikt.

Ulefos Linjeavvattning
FILCOTEN TEC
Filcoten avvattningsränna med varmgalvad eller rostfri kantförstärkning. Trots den lätta vikten klarar rännan utan problem laster upp till klass C250.
Ett antal olika varianter av galler såsom spalt-/slitsgaller, segjärnsgaller, hålgaller eller designade galler gör produkten väldigt mångsidig och därmed anpassad för nästan alla användningsområden.
Användningsområde Idealisk för installation på gågator, sport- och fritidskomplex, torg, parker, parkeringar osv.
Filcoten tec/tec mini NB 100 mm

RSK-nr Art-nr Avvattningsränna mini med galvaniserad (V) kantförstärkning. Utan fall


Ulefos Linjeavvattning FILCOTEN TEC


Ulefos Linjeavvattning






244

Hålgaller
Tec Combee plast
Ulefos Linjeavvattning




Spaltgaller av segjärn
Rutgaller
Ulefos Linjeavvattning




Spaltgaller
Rutgaller
Ulefos Linjeavvattning




Ulefos Linjeavvattning FILCOTEN PRO






Ulefos Linjeavvattning FILCOTEN PRO




Ulefos Linjeavvattning
FILCOTEN PRO






Ulefos Linjeavvattning FILCOTEN PRO


Går även att få i NB


Ulefos Linjeavvattning






För övrigt går även Filcoten tec galler att använda till Filcoten pro rännor. Tänk då på belastningsklassen som är lägre för tec galler! (*Se tillbehör RSK 244
Ulefos Linjeavvattning






Ulefos Linjeavvattning
FILCOTEN
PARKLINE NB150











Tillbehör
Ulefos Linjeavvattning
FILCOTEN PARKLINE NB300







Ulefos Linjeavvattning FILCOTEN ONE

One NB150/0




Filcoten

Filcoten
Filcoten
Ulefos Linjeavvattning







Ulefos Linjeavvattning
FILCOTEN TILLBEHÖR
Självlåsande klickfunktion för låsning av galler
Den innovativa självlåsande klickfunktionen möjliggör snabb öppning och stängning av Filcoten® tec och pro galler
Fäst gallret på ena sidan av rännan och fäll sedan över gallret mot den andra sidan och tryck till. Observera öppningarna i kantförstärkningen när gallret skall fästas (se A). Dessa ger utrymme för tappar i gallret som låser mot rännan och förhindrar längsgående förskjutning av gallret. Systemet med klickfunktion (se B) låser gallret mot kantförstärkningen på rännan. Ett bestämt drag och gallret lossar från rännan igen. Som tillägg finns en gallerförankring för att skydda galler och ränna från skadegörelse och stöld.

Tillbehör Filcoten
Light, tec och pro
1. Bottenuttag av PVC installerad på plats (se figur 2a)
2. a) DN 100 prefabricerad håltagning för bottenuttag. Anslutning 110mm PVC
2. b) Vattenlås för bottenuttag bestående av 3 delar
2. c) Munstycket för vattenlås placeras i håltagning för bottenuttag underifrån 2. d) Vattenlås kompletteras med övriga två delar - klart!
3. Sandfångsenhet L = 500 mm, tec och pro har kantförstärkning och light har ingen kantförstärkning
4. Vattenlås av PVC-avloppsrör - för sandfångsenhet
5. Slamfångare i plast för sandfångsenhet
6. Front-/ändgavel och ändgavel med utlopp Filcoten
7. Front-/ändgavel Filcoten mini















Ulefos Linjeavvattning FILCOTEN TILLBEHÖR
TILLBEHÖR FILCOTEN FORTS.
Light
8. Patenterat gallerlås Filcoten light
8. a) För spaltgaller av segjärn
8. b) För rutgaller av varmgalvat stål
9. Skruvlås för spaltgaller av segjärn
10. Låsning av rutgaller med patenterat gallerlås 8.b)


Tec och pro 11. Gallerförankring för skydd mot skadegörelse och stöld



8. a) b) 9 10


ULEFOS Serie1 kopplingar för PE-rör
PLASSON HAR I DRYGT 40 ÅR varit en världsledande tillverkare av högkvalitativa plastrördelar.
Tillverkaren är certifierad enligt kvalitetssäkringssystemet ISO 9001.
Serie 1 är inte bara vackert formgiven. Den är också liten, smidig och enkel att montera. Dessutom har Serie 1 egenskaper som gör att den med marginal tillgodoser alla de högt ställda krav som ställs på dagens moderna trycksatta vatten- och avloppssystem av polyeten (PE).
• Användningsområdet är vattenledningar av PE, dimension 20-63 mm, samt övergångskoppling till koppar, PB- och PEX-rör.
• Klarar upp till 16 bars arbetstryck (max 20°C).
• Kopplingarna är dragfasta. Serie 1 har en ny patenterad konstruktion, med dubbla greppringar, för ökad säkerhet. En direktverkande greppring samt en konisk, progressiv greppring som ökar greppet på ledningen ju större dragkraften blir.
• Monteringen är extremt enkel. Ingen åtdragning behövs. Avgrada röret och för in det i kopplingen. När röret når rörstoppet är kopplingen helt tät och dragfast!
• Serie 1 har inga lösa delar som gör monteringen osäker.
• Den estetiska och kompakta utformningen gör Serie 1 utmärkt att använda även i synliga installationer samt i begränsade utrymmen.
• Serie 1 är helt korrosionsfri.
• Varje koppling ligger i en skyddande plastpåse med monteringsanvisning.
• Kopplingarna är konstruerade för minst 50 års livslängd.
TEKNISK DATA
Material
Hus: Polypropen (PP)
Mutter: PP
Greppring: Polyacetal (POM)
Packning: Nitrilgummi (NBR)
Gängor
Alla gängor enligt ISO-7/1. Utvändiga gängor är koniska.
Standarder
Rördelssortimentet är konstruerat, testat och kontrollerat enligt Plassons interna normer. Dessa normer uppfyller de internationella standarderna ISO 14236, 3458, 3459 och 3501.

Ulefos Rörkopplingar
SERIE 1 PN16 FÖR PE-RÖR
Rak koppling
Typ
Rak koppling, förminskning
Typ
Rak






Ulefos Rörkopplingar
SERIE 1 PN16 FÖR PE-RÖR
Rak koppling
Typ 1072
PE - utvändig gänga av mässing

Rak koppling
Typ 1003
PE - invändig gänga

Rak övergångskoppling
Typ 1001C
PE - kopparrör


Ulefos Rörkopplingar
SERIE 1 PN16 FÖR PE-RÖR
Rak koppling
Typ
1073
PE - invändig gänga av mässing

250




Ulefos Rörkopplingar
SERIE 1 PN16 FÖR PE-RÖR
Vinkel 90˚
Typ 1085
PE - utvändig gänga


Vinkel 90˚
Typ 1015
PE - invändig gänga


250
Ulefos Rörkopplingar
SERIE 1 PN16 FÖR PE-RÖR
T-rör
Typ 1014
PE - invändigt gängat avstick - PE


T-rör
Typ 1004
PE - PE - PE


T-rör
Typ 1034
Förminskat avstick
PE - PE - PE


Ulefos Rörkopplingar
SERIE 1 PN16 FÖR PE-RÖR




Verktyg för demontage
Typ 1099
Endast till Serie 1





ULEFOS SERIE 1
DRAGFASTA KOPPLINGAR FÖR PE-RÖR


Ulefos Serie 1 är inte bara vackert formgiven. Den är också liten, smidig och enkel att montera. Dessutom har Serie 1 egenskaper som gör att den med marginal tillgodoser alla de högt ställda krav som ställs på dagens moderna trycksatta vatten- och avloppssystem av polyeten (PE).
• Brett sortiment, dimension 20-63 mm
• En direktverkande greppring, samt en konisk, progressiv, som ökar greppet på ledningen ju större dragkraften blir
• Klarar upp till 16 bars arbetstryck, minst 50 års livslängd



Ulefos Serie 7 kopplingar för PE-rör
Plasson har i drygt 40 år varit en världsledande tillverkare av högkvalitativa plastrördelar. Plassons mekaniska rörkopplingar är tillverkade för att tillgodose alla de högt ställda krav som ställs på dagens moderna trycksatta vatten- och avloppssystem.
• Användningsområdet är vattenledningar av PE, dimension 16-125 mm, samt övergångskoppling till koppar, PB- och PEX-rör.
• Klarar upp till 16 bars arbetstryck.
• Kopplingarna är dragfasta.
TEKNISK DATA
Material
Hus: Polypropen (PP)
Mutter: PP
Greppring: Polyacetal (POM)
Packning: Nitrilgummi NBR (dim 75-110 EPDM)
Förstärkningsring: Rostfritt stål A2 Övergångsdel mässing
Användning
För vattenledningar av polyeten enligt standard SS-EN 12201, samt övergång från PE-rör till kopparrör och stålrör. Med monterad greppring av stål kan kompressionskopplingarna även användas för rör av PVC och PP. Gängade rördelar kan även användas till andra rörtyper.
Max arbetstryck (vid +20°C): Vatten PN 10. Vid högre tryck/temperatur kontakta Ulefos.
Gängor
Alla gängor enligt ISO-7/1, BS 21 - 1973, DIN 2999, NEN 3258, AS 17222 Part 1 - 1975. Utvändiga gängor är koniska. Invändiga gängor är cylindriska.
Standarder
Kompressionskopplingarna är konstruerade, testade och kontrollerade enligt Plassons interna normer. Dessa normer uppfyller de internationella standarderna ISO 14236, 3458, 3459 och 3501.
Kvalitet
Plasson är certifierad enligt kvalitetssäkringssystemet ISO 9001. Arbetsrutinerna enligt ISO 9001 ålägger företaget sträng kontroll genom hela tillverkningsprocessen.

Ulefos Rörkopplingar
SERIE 7 FÖR PE-RÖR


Ulefos Rörkopplingar
SERIE
7 FÖR PE-RÖR
Rak koppling, förminskning
Typ

250
Ulefos Rörkopplingar
SERIE 7 FÖR PE-RÖR
Rak koppling
Typ 7020
PE - utvändig gänga

250
250
250
Ulefos Rörkopplingar
SERIE 7 FÖR PE-RÖR
Rak koppling
Typ 7720
PE - utvändig gänga av mässing

Rak koppling
Typ 7030
PE - invändig gänga med förstärkningsring

250
Ulefos Rörkopplingar
SERIE 7 FÖR PE-RÖR
Ändhuv

Vinkel

Ulefos Rörkopplingar
SERIE 7 FÖR PE-RÖR
Vinkel 90º

Vinkel 90º
Typ
7770
PE - utvändig gänga av mässing

Ulefos Rörkopplingar
SERIE 7 FÖR PE-RÖR
Vinkel 90º
Typ 7150
PE - invändig gänga
Med förstärkningsring

* Utan förstärkningsring

Ulefos Rörkopplingar
SERIE 7 FÖR PE-RÖR

T-rör
Typ 7340
Förminskat avstick
PE - PE - PE
T-rör
Typ 7840
PE - utvändigt gängat avstick - PE


250
250
Ulefos Rörkopplingar
SERIE 7 FÖR PE-RÖR
T-rör
Typ 7140
PE - invändigt gängat avstick - PE
Med förstärkningsring

250
250
* Utan förstärkningsring

Ulefos Rörkopplingar
SERIE 7 FÖR PE-RÖR
Rak övergångskoppling universal
Typ 77010
PE - kopparrör, stålrör
Förminskningssats




Ulefos Rörkopplingar
SERIE 7 FÖR PE-RÖR
Moduladapter
Typ 7940
Hus - Hus
Propp
Typ 7129
För montering i koppling


Greppring av stål
Typ 7970
För PVC- och PP-rör

Ulefos Rörkopplingar
SERIE 7 FÖR PE-RÖR
Greppring av POM
Typ
För








* Packning av EPDM
Stödhylsa av POM


Ulefos Rörkopplingar
SERIE 7 TILLBEHÖR - VERKTYG
Typ
För








Ulefos Uniflex Rörkopplingar för stålrör
ULEFOS UNIFLEX är en serie rörkopplingar för stålrör samt övergång mellan stålrör och PE-rör, till både vatten och gasledningar. De finns i flera olika utföranden. Kopplingarna introducerades i Sverige i slutet av 80-talet och har sedan dess hjälpt många rörmontörer i besvärliga situationer. Kopplingarna är tillverkade enligt kvalitetssäkringssystemet ISO 9001.
• Kopplingarna är dragfasta.
• Finns för rördimension 1/2”-4”, Dy 21-114 mm.
• Hus av aducerjärn, varmgalvat före och efter bearbetning.
• Kraftig gummipackning av NBR-gummi för vatten, gas och olja. Fungerar även på utvändigt lätt korroderade rör.
• Långt insticksdjup förenklar montage i befintliga installationer.
• Inspänningsfritt montage. För 1/2”-2”, Dy 21,3-60,3 mm, även med möjlighet att välja montering med eller utan avvinkling.
• Monteringsanvisning – medföljer koppling eller besök www.ulefos.se
TEKNISK DATA
Material
Hus och kompressionsmutter: Aducerjärn EN-JM1130 enligt EN-GJMB350-10 Klämring och glidring: Stål EN10025, galvaniserat. För PE-rör är klämringen av avzinkningshärdig mässing.
Packning: Nitrilgummi (NBR)
Tryckklass
Vatten PN 10. Gas och tryckluft PN 4 upp till 2” (60,3 mm), PN 1 på större dimensioner.
Temperatur
Max driftstemperatur kontinuerligt +80°C. Kortvarigt upp till +120°C.
Gängor
Alla gängor enligt ISO-7/1. Utvändiga gängor är koniska.
Standard
Ulefos Uniflex är konstruerade, testade och kontrollerade för dricksvatten enligt DVGW W 534 samt KTW och för gas enligt DVGW-VP600.


Monteringsanvisning dragfasta Ulefos Uniflex Rörkopplingar
RÖRTYPER: stålrör enligt DIN 2440, 2441, 2442, 2448 och 2458 samt PE rör PN 10
STÅLRÖR, DIMENSIONER: 1/2” 3/4” 1” 1 1/4” 1 1/2” 2”
YD/MM:
PE-RÖR YD: 20 25 32 40 50 63
TRYCKKLASS: Gas PN 4, Vatten PN 10
MEDIA: Gas enligt DVGW blad G 260/l, vatten, olja och luft
TEMPERATUR: -20° C till + 60° C för Gas, + 80° C för vatten
ANVÄNDNINGSOMRÅDE: Vatten/Gas
Klämringen är utformad så att man kan välja mellan en rak eller en avvinklingsbar anslutning. Om man vill ha en rak anslutning så skall markeringsspåret på klämringen vändas mot muttern. Vill man ha en avvinklingsbar anslutning så skall den vändas mot huset.
Glidring

1. Innan monteringen skall rörändarna kapas vinkelrätt. De får inte vara deformerade eller försedda med gängor. Eventuella grader tas bort.
2. Skjut in mutter, kläm-, glid och tätningsring på röret som skissen visar.
3. För in röret i kopplingshuset (insticksdjup 10 mm mellan tätningsringen till rörändan).
4. Passa in tätningsringen i kopplingen och för fram glid- och klämringen mot kopplingshuset.
5. Drag fast muttern på kopplingshuset. Kontrollera att röret inte vrids vid åtdragningen.
6. Åtdragningsmoment 1/2-1”= 150 Nm, 1 1/4”-2” = 200 Nm, 2 1/2”-4 = 50 Nm
7. Vid användning av PE-rör skall stödhylsa användas (mutter märkt PE).
8. Om kopplingen används vid flera tillfällen skall tätningsringen bytas mellan varje gång.
TILLVERKARE: Gebo - Armaturen GmbH, Tyskland

Ulefos Rörkopplingar
UNIFLEX - PN 10 FÖR STÅLRÖR
Uniflex
Typ 6604 Stål - PE Dragfast, inkl. stödhylsa


*) Med kompressionsfläns istället för kompressionsmutter. Kontakta Ulefos för ritning
Stödhylsa av POM
Typ 7950
För PE-rör SDR 11
PE80 PN10/PE100 PN16
För större dimensioner - kontakta Ulefos.



Ulefos Rörkopplingar UNIFLEX - PN 10 FÖR STÅLRÖR
Uniflex
Typ 6603 Stål – stål Dragfast


*) Med kompressionsfläns istället för kompressionsmutter. Kontakta Ulefos för ritning
Uniflex
Typ 6623 Stål - stål Lång, dragfast


Uniflex
Typ 6653 utv. gga – stål Dragfast


*) Med kompressionsfläns istället för kompressionsmutter. Kontakta Ulefos för ritning

Ulefos Rörkopplingar
UNIFLEX - PN 10 FÖR STÅLRÖR
Uniflex
Typ 6663 invändig gänga – stål Dragfast


*) Med kompressionsfläns istället för kompressionsmutter. Kontakta Ulefos för ritning
Uniflex
Typ 6664 Huv - stål Dragfast


Uniflex
Typ 6673 inv. gga – stål Dragfast


*) Med kompressionsfläns istället för kompressionsmutter. Kontakta Ulefos för ritning

Ulefos Rörkopplingar
UNIFLEX - PN 10 FÖR STÅLRÖR
Uniflex
Typ 6675 vinkel, stål – stål Dragfast


Uniflex
Typ 6676 vinkel, stål – utvändig gänga, Dragfast



Ulefos Grip Rörkopplingar för
PE- och PVC-rör
ULEFOS GRIP är en serie dragfasta kopplingar för PE- och PVC-rör. Certifierad enligt kvalitetssäkringssystemet ISO 9001.
• Användningsområdet är vattenledningar
• Klarar upp till 16 bars arbetstryck vid max +20°C
• Stödhylsa behövs endast i PE-rör med tryckklass lägre än SDR17. Ej krav på stödhylsa för SDR11/SDR17
• Finns rak och som flänsmuff i dimensioner 63-315 mm
• GSK certifierad epoxy min 250 my
• Kopplingarna är konstruerade för minst 50 års livslängd
• Monteringsanvisning – medföljer koppling eller besök www.ulefos.se
TEKNISK DATA
Material
Hus och kompressionsglander: Segjärn EN 1563, EN-GJS-500-7
Fläns: Standardborrning PN 10
Låsring: Avzinkningshärdig mässing
Plastdistanser: PP
Bultar och brickor: Rostfritt stål A2
Ytbeläggning: Epoxy certifierad enligt GSK. Blå RAL –GZ 662, DIN 3476 och DIN 30677-2
Packning: EPDM
Tryckklass
PN 16
Temperatur
Max +20°C för tryckklass PN16. Kopplingen i sig klarar temperatur upp till +50°C men rören har begränsningar

Ulefos Rörkopplingar
ULEFOS GRIP
– TRYCKKLASS PN16
Ulefos Grip 8160-1
Rak skjutmuff, dragfast


Ulefos Grip 8160
Fläns PN10, dragfast
Inklusive EPDM flänspackning


Ulefos Rörkopplingar
nyhet
UltraGrip rak koppling
Dragfast
Rostfria bultar och brickor A2, muttrar A4
Packning EPDM dricksvattengodkänd
Upp
Använd
nyhet
UltraGrip förminskad koppling
Dragfast
Rostfria bultar och brickor A2, muttrar A4
Packning EPDM dricksvattengodkänd
Upp till 8° avvinkling
Använd alltid anpassad stödhylsa i PE-rör och tunnväggiga PVC-rör


Ulefos Rörkopplingar
ULTRAGRIP
UltraGrip flänskoppling
Dragfast
Flänsborrning PN10-16 på samtliga dimensioner
Rostfria bultar och brickor A2, muttrar A4 Packning EPDM dricksvattengodkänd Upp till 4° avvinkling
Använd alltid anpassad stödhylsa i PE-rör och tunnväggiga PVC-rör

Ulefos Rörkopplingar
STÖDHYLSOR FÖR PE-RÖR
Använd alltid Ulefos stödhylsa i PE-rör tillsammans med våra rörkopplingar. Stödhylsan hjälper till att ge stadga åt PE-röret samt motverkar eventuell ovalitet. Stödhylsan säkerställer att framtida läckage ej uppstår
Stödhylsa rostfri för PE-rör PE80-PN6,3, PE100-PN10, SDR17

Stödhylsa rostfri för PE-rör
PE80-PN10, PE100-PN16, SDR11

För större dimensioner - kontakta oss.
Stödhylsa av POM
Typ 7950
För PE-rör SDR11
PE80 PN10 / PE100 PN16


Ulefos AB - Sverige
Våra produkter kommer främst från våra egna fabriker i Norge och Finland, och ett urval kommer från välkända tillverkare i Europa. Genom tillgänglighet, utveckling och innovation arbetar vi med att alltid erbjuda det bästa sortimentet för våra kunder, med målsättningen att ha marknadens mest hållbara lösningar.

Ulefos Esco AS – Norge
Ulefos, avdelning Kongsberg består av administration och Ulefos Esco ventilfabrik. Ventilfabriken är Norges enda tillverkare av VA-ventiler med rötter från 1877. Fabriken i Kongsberg öppnades 1964.

Ulefos Övergångskopplingar Aband
ULEFOS ÖVERGÅNGSKOPPLINGAR ABAND är en serie fleixibla övergångskopplingar för olika typer av markförlagda avloppsrör och inomhusavlopp. De finns i flera olika utföranden. Raka (NSC), förminskade (NAC) samt excentriskt utförande (NSC EXC och NAC EXC).
De är tillverkade enligt kvalitetssäkringssytemet ISO 9002.
• Kopplar olika typer av avloppsrör.
• Kopplar olika dimensioner, Dy 32-2000 mm.
• EPDM gummi samt spännband av rostfritt stål som standard.
• Raka kopplingar (NSC) med stödplåt av rostfritt stål som standard.
För att klara fler dimensioner av avloppsrör kompletteras kopplingarna med övergångsband (ÖB). Övergångsbanden levereras av Ulefos efter behov.
TEKNISK DATA
Material
Hus: EPDM gummi (NBR för oljebeständighet kan levereras)
Spännband: Rostfritt stål. Hylsnyckel 8. Upp till Dy 290 mm 6 Nm. Dy över 290 mm 13 Nm. Övergångsband: EPDM gummi
Tryckklass
Max 1,2 bar upp till och med dimension 600 mm, 0,6 bar över dimension 600 mm.
Standard SS-EN 681-1
Ulefos Aband rörkopplingar är tillverkade efter den svenska standarden SS-EN 681-1, ”Materialkrav för tätningsringar till vatten och avloppsinstallationer”. SS-EN 681-1 fastställdes redan 1996 och ställer en rad olika krav på materialet i alla tätningar som används vid vatten och avloppsinstallationer. Kraven enligt SS-EN 681-1 säkerställer bland annat att materialet i tätningarna inte innehåller substanser som påverkar miljö eller vattnet som rinner i ledningen. Det ställs också flera krav som påverkar tätningens livslängd och hållbarhet ur flertalet olika perspektiv. Bland annat för att säkerställa att tätningen är och förblir tät och får en lång livslängd.
Ulefos rekommenderar starkt att välja övergångskopplingar som följer SS-EN 681-1.
Fråga därför alltid din leverantör om kopplingarna uppfyller kraven enligt SS-EN 681-1, eller välj Ulefos Aband rörkopplingar så är du säker.

TYPGODKÄNNANDE 0966 ENLIGT BOVERKETS BYGGREGLER
Ulefos Aband är certifierade av Kiwa Swedcert med tester gjorda av SP med typgodkännande 0966 enligt Boverkets Byggregler.
Ulefos Övergångskopplingar ABAND
NSC & NPC
Ulefos Aband-NSC övergångskoppling, rak, av EPDM-gummi, rostfritt stål, med stödplåt

B=betong, BG=betong gammal, BS= betong stor, L=lerrör, LG=lerrör gammal, S=segjärn, G=gjutjärn, GL=glasfiber, RF=rostfritt, N=gjutna normalavloppsrör, M=MA
Ulefos Aband-NPC
övergångskoppling, rak, av EPDM-gummi, spännband av rostfritt stål, utan stödplåt

Ulefos Övergångskopplingar
ABAND NAC
Max 1,2 bar upp t.o.m 600 mm, 0,6 bar över 600 mm. Drifttemperatur -50° till +130° C
B=betong, BG=betong gammal, BS= betong stor, L=lerrör, LG=lerrör gammal, S=segjärn, G=gjutjärn, GL=glasfiber, RF=rostfritt, N=gjutna normalavloppsrör, M=MA
Ulefos Aband-NAC
övergångskoppling, förminskad, av EPDM-gummi, spännband av rostfritt stål, utan stödplåt

310
310
310 86 02 NAC1102 110-125x100-115
310 86 03 NAC1211 121-136x80-95 120
125PE,110PVC,100G x 100N,110PVC
x 75N,90PVC
310 86 04 NAC1212 121-137x110-121 102 100L,125PE x 110PVC
310 86 05 NAC1213 121-136x100-115 102 100L,125PE x 100N,110PVC
310 86 07 NAC1302 130-145x110-125 100 125G,140PE x 125PE,110PVC,100G
310 86 09 NAC1371 137-152x100-115 100 100B,125G,140PE x 100N,110PVC
310 86 11 NAC1442 144-160x110-122 120 100B,160PVC,160M x 110PVC
310 86 12 NAC1443 144-160x121-136 120 100B,160PVC,160M x 100L
310 86 16 NAC1553 155-170x130-145 120 150N,160PVC,150G x 125G,140PE
310 86 17 NAC1552 155-176x110-125 120 125B,150N,160PVC,150G x 125PE,110PVC,100G
310 86 20 NAC1704 170-192x110-122 120 150L x 110PVC
310 86 21 NAC1705 170-192x121-136 120 150L x 100L,125PE
310 86 22 NAC1706 170-192x144-160 120 150L x 100B,160PVC,160M
310 86 24 NAC1800 180-200x130-145 150 150BG,200PVC x 125G,140PE
310 86 27 NAC1803 180-200x155-170 150 150BG,200PVC x 150N,160PVC,150G
310 86 29 NAC1804 180-200x160-180 150 150BG,200PVC x 150N,160PVC,150G
310 86 31 NAC1851 185-216x160-180 150 150B,200PVC x 150N,160PVC,150G
310 86 32 EXCNAC1852
185-210x100-115 150
310 86 37 NAC195EXC 195-215x100-115 150
310 86 38 NAC1904 190-215x150-165 150
310 86 40 NAC2001 200-225x160-175 150
310 86 42 NAC2102 210-235x110-122 150
310 86 45 NAC2104 210-235x144-160 150
310 86 47 NAC2106 210-235x190-215 150
150B,200PVC x 100N,110PVC
150B,200PVC x 100N,110PVC
150B,200PVC x 150N,160PVC
150BS,225PVC,200PVC,200S, 200G x 150N,160PVC,150G
150BS,200G x 110PVC
150BS,200G x 100B,160PVC,160M
150BS,200G x 150B,200PVC
310 86 52 NAC2404 240-265x144-160 150 250PVC,225G x 100B,160PVC,160M
Ulefos Övergångskopplingar
ABAND NAC & Y-SADEL
Max 1,2 bar upp t.o.m 600 mm, 0,6 bar över 600 mm. Drifttemperatur -50° till +130° C
Ulefos Aband-NAC
övergångskoppling, förminskad, av EPDM-gummi, spännband av rostfritt stål, utan stödplåt
RSK-nr

B=betong, BG=betong gammal, BS= betong stor, L=lerrör, LG=lerrör gammal, S=segjärn, G=gjutjärn, GL=glasfiber, RF=rostfritt, N=gjutna normalavloppsrör, M=MA
310 86 54 NAC2406 240-265x190-215 150 250PVC,225G x 150B,200PVC
310 86 58 NAC2601 260-285x180-205 150 225L x 150BG,200PVC
310 86 59 NAC2602 260-285x240-265 150 225L x 250PVC,225G
310 86 60 NAC2658 265-290x144-160 150 225BG,250S,250G,225L x 100B 160PVC,160M
310 86 62 NAC270EXC 270-295x185-210 150 225BG,225L x 150B,200PVC
310 86 63 NAC2954 295-320x144-160 150 225B,315PVC x 100B,160PVC,160M
310 86 66 NAC2958 295-320x240-265 150 225B,315PVC x 250PVC,225G
310 86 67 NAC2959 295-320x265-290 150 225B,315PVC x 250S,250G,225L, 225BG
310 86 71 NAC310EXC 310-335x180-205 150 225B,315PVC,300G,300S x 150BG,200PVC
310 86 73 NAC3359 335-360x265-290 150 300L,315G,355PE x 225BG,250S,250G,225L
310 86 74 NAC3350 335-360x295-320 150 300L,315G,355PE x 225B,315PVC
310 86 76 NAC3601 360-385x240-265 150 300BG x 250PVC,225G
310 86 80 NAC3603 360-388x300-325 150 300BG x 225B,315PVC
310 86 81 NAC385ÖB 385-410x300-319 190 300B,400PVC x 315PVC
310 86 87 NAC520ÖB 520-550x390-400 190 400B x 400PVC
Ulefos Aband Y-sadel av EPDM-gummi
Max 0,5 bar
Ulefos Aband T-sadel av EPDM-gummi
Max 0,5 bar


Ulefos Övergångskopplingar ABAND ÖVERGÅNGSBAND
För att klara fler dimensioner av avloppsrör kompletteras kopplingarna med övergångsband, tjocklek 8, 16, 24 och 32 mm.
Ulefos Aband-ÖB
övergångsband t=8 mm
RSK-nr

Andra dimensioner kan beställas - kontakta oss. Ange rör Dy-mått mm.
Ulefos Aband-ÖB
övergångsband t=16 mm

Andra dimensioner kan beställas - kontakta oss. Ange rör Dy-mått mm.
Ulefos Övergångskopplingar ABAND ÖVERGÅNGSBAND
För att klara fler dimensioner av avloppsrör kompletteras kopplingarna med övergångsband, tjocklek 8, 16, 24 och 32 mm.
Ulefos Aband-ÖB
övergångsband t=24 mm
RSK-nr

Andra dimensioner kan beställas - kontakta oss. Ange rör Dy-mått mm.
Ulefos Aband-ÖB
övergångsband t=32 mm
RSK-nr

Andra dimensioner kan beställas - kontakta oss. Ange rör Dy-mått mm.

Vi producerar högkvalitativa produkter till VA-branschen på vår fabrik Ulefos Esco i Kongsberg, Norge sedan 1877. Ulefos Esco är den näst äldsta industrin i Norge, efter Ulefos Jernværk.
Ulefos Rep-muffar
REP-MUFF SC
Rep-muff SC
Längd 150 mm
(Längd 75 mm har 1 st bult/mutter)

Andra spännvidder och längder kan beställas
Ulefos Rep-muffar
Enkelbandsmuff RS 1 rostfri
Andra spännvidder och längder kan beställas

Ulefos Rep-muffar DUBBELBANDSMUFF
Dubbelbandsmuff RS 2 rostfri
Andra spännvidder och längder kan beställas

Ulefos Rep-muffar DUBBELBANDSMUFF
Dubbelbandsmuff RS 2 rostfri
Andra spännvidder och längder kan beställas

Ulefos Rep-muffar DUBBELBANDSMUFF
Dubbelbandsmuff RS2 Extra förstärkt Av syrafast stål AISI 316 / EPDM för aggressiva miljöer PN16. Temperaturområde -40°C till +85°C

Andra spännvidder och längder kan beställas
Ulefos Rep-muffar TREBANDSMUFF
Trebandsmuff RS 3 rostfri
Andra spännvidder och längder kan beställas

Ulefos Rep-muffar EASICLAMP
EasiClamp gjuten repmuff med gångjärn
PN16
Sheraplex 2-bultad
Packning EPDM dricksvattengodkänd

EasiClamp gjuten repmuff
PN16
Sheraplex 4-bultad
Packning EPDM dricksvattengodkänd

Ulefos Rep-muffar TVÅ- OCH TREDELAD
Tvådelad RDS12, gjuten, segjärn, med rostfri bult och mutter Max 70° C

Tredelad RDS31, gjuten, segjärn, med rostfri bult och mutter Max 70° C

Ulefos Rep-muffar FÖR ANBORRNING
Dubbelband RT 2 rostfri. Spännvidd 10 mm Vid beställning ange önskad spännvidd

Enkelband RG 1
Dubbelband RG 2
Treband RG 3
rostfri

Ulefos gjutna Anborrningsbyglar
EASITAP & EASITEE
Sheraplex


Ulefos Anborrningsbyglar FÖR PE- OCH PVC-RÖR
Anborrningsbygel, typ 6079, för PE- och PVC-rör, invändig gänga, med förstärkningsring Rostfri bult och mutter


250
Ulefos Anborrningsbyglar
FÖR PE- OCH PVC-RÖR
Anborrningsbygel, typ 6540, för PE/PVC-rör, för anborrning under tryck, med inbyggt borr, vridbart utlopp 360˚


Nyckel av automatstål till skär i anborrningsbygel typ 6540


PN12
PNK12
Ulefos Brandpost TRYCKKLASS PN10 VATTEN
Brandpost DN80
exklusive utloppskoppling inklusive packning/bult för utloppskoppling inkl. automatisk dränventil

exkl. automatisk dränventil
Komplett brandpost, exkl. utloppskoppling, inkl. aut. dränventil. Flytande betäckning med teleskoprör

Komplett brandpost, exkl. utloppskoppling, inkl. aut. dränventil. Flytande betäckning med lång hals
Ulefos Brandpost TRYCKKLASS PN10 VATTEN
Flytande betäckning komplett med lock För korrugerad brandposttrumma di 425 Segjärn


Flytande betäckning komplett med lock För korrugerad brandposttrumma di 425 Segjärn


* Används med teleskoprör RSK 235 82 49
Teleskoprör dim 425 inklusive tätningsring

Korrugerad bottendel dim 425

Bottenplatta , betong
Teleskopisk betäckning komplett med lock För brandpost


Ulefos Brandpost TRYCKKLASS PN10 VATTEN
Tillbehör
RSK-nr
421 15 04
421 10 09
421 10 17
421 10 25
421 10 85
421 12 88
IBP23
BPA
Beskrivning
Packning till utkoppskoppling
Utkoppskoppling Typ A, brandpostmutter
BPB Utkoppskoppling Typ B, bajonettkoppling inkl lock med vajer
BPC Utkoppskoppling Typ C, Billman
BPCLOCK Lock med vajer till Typ C
BPBLOCK Lock med vajer till Typ B
BPBLOCK-PU Lock inklusive O-ring och vajer till Typ B
BPALOCK Lock med lina till Typ A
420 83 40 BPCB Centreringsbult M10, sats till 1 st brandpost
311 51 69 VSILICON Siliconsmörjmedel, tub 50 gram
235 82 59 VP425 Tätningsring ø 425
Ulefos typ 97F, PN16
Som standard med monterad utloppskoppling typ A
Separat kan levereras lös utloppskoppling typ B och C
Automatisk dränering i stängt läge
Med PE-rör 110mm SDR11


Modellen har dubbelavstängning
Finns även som alternativ med Multifix fotknärör för alla typer av rör

Ulefos Spolpost TRYCKKLASS PN10 VATTEN

Ulefos Spolpost, komplett med teleskopisk trumma och betäckning. PE-anslutning dim 40 mm Automatisk dräneringsventil
Betäckning
Ulefos körbara spolpostbetäckning är tillverkad av segjärn och målad med svart aquaprimer.
Den är fastskruvad på teleskopröret. Betäckningen har dubbla spetthål för enkel öppning.
Kanten är fasad 45° för att undvika hyvelskador. Locket är märkt SP.
SP-trumma
Ulefos spolposttrumma är tillverkad av PP och har goda egenskaper i samband med trafiklaster och tjällyftning. Den är montagevänlig tack vare sin låga vikt och är lätt att kapa ner till önskad höjd vid behov.
Spolposten levereras i en enhet för enkelt montage. Betäckningen är fastsatt i teleskopröret med 3 st bultar/muttrar av rostfritt stål. Anslutning av vattenledning och dagvatten i trummans nedre del.
• Betäckning tillverkad av segjärn
• Teleskoprör av PVC, Dy 200 mm
• Korrugerad trumma av PP, Dy 250 mm
• Bottendel av PE med tätningsring
• PE-anslutning, dimension 40 mm
• Dagvattenanslutning, dimension 110 mm
Ulefos Rörstöd

ULEFOS RÖRSTÖD ELLER GLIDSKOR som de också kallas är tillverkade helt av PE.
Rörstöden, som finns för mediarör Dy 25-3414 mm, används huvudsakligen för att ge ett mekaniskt skydd för mediaröret vid införingen i skyddsröret och under drift men ger även bra centrering av mediaröret i skyddsröret. Utan rörstöd kan t ex ett mediarör av PE åla sig inne i skyddsröret under drift vilket kan ge rörskador.
Rörstöden kan även anpassas i höjd så muffhöjd byggs förbi då det förekommer.
I vissa fall kan rörstöden även användas för att skapa evakueringsmöjlighet av media.
Ulefos Rörstöd fungerar erfarenhetsmässigt mycket bra och är enkla att montera tack vare smart snäpplåsning och proffsiga spännverktyg (kan lånas mot en depositionsavgift).
Vi har även en typ av rörstöd med kilar som kan monteras utan verktyg om så önskas.
Vi hjälper gärna till med beräkningen och då behöver vi få reda på:
• Längd på genomföringen m
• Rörtyp och Dy mått mm mediarör
• Rörtyp och Di mått mm skyddsrör
Ulefos Rörstöd
DIMENSIONERINGSTABELL
Dimensioneringstabell

Dimensioneringstabell

Dimensioneringstabell

Dimensioneringstabell

Dimensioneringstabell

Dimensioneringstabell

(levereras alltid som komplett ring inkl bultar/muttrar)
(levereras alltid som komplett ring inkl bultar/muttrar)
Inget specialverktyg behövs för typ A och B
Ulefos Rörstöd
TILLBEHÖR
Rörstöd typ P
Kompletta rörstöd av PE som fäster i varandra med bult/mutter.
Rek. avstånd mellan stöd = 2m
Max belastning 85 kg/ring. Dubbla rörstöd vid varje ända
Rörstöd typ I C D
Segment av PE som fäster i varandra utan bult/mutter.
Rek. avstånd mellan stöd = 1m.
Max belastning 100 kg/ring Max 80°C. Dubbla rörstöd vid varje ända
Rörstöd typ A och B
Segment av PE som fäster i varandra utan bult/mutter.
Rek. avstånd mellan stöd = 1,5m
Max belastning 180 kg/ring. Max 80°C. Dubbla rörstöd vid varje ända. Monteras med polygrip
Rörstöd typ F och G
Segment av PE som fäster i varandra utan bult/mutter. Rek. avstånd mellan stöd = 2m.
Max belastning 500 kg/ring. Max 80°C. Dubbla rörstöd vid varje ända
Ulefos Rörstöd TILLBEHÖR
Rörstöd typ M och N
Segment av PE som fäster i varandra utan bult/mutter. Rek. avstånd mellan stöd = 2m för mediarör Dy 143-505 mm. 506-759 mm = 1,5m. Max belastning 1000 kg/ring. Max 80°C. Dubbla rörstöd vid varje ända
RSTÖD-N18
RSTÖD-N36
RSTÖD-N50
RSTÖD-N75
Rörstöd typ E och H
Segment av PE som fäster i varandra utan bult/mutter. Rek. avstånd mellan stöd = 2m för mediarör Dy 221-1159 mm. 1160-3414 mm kontakta Ulefos. Max belastning 2750 kg/ring. Max 80°C. Dubbla rörstöd vid varje ända
Verktyg för fastspänning av rörstöd (kan hyras)
Verktyg för fastspänning av P använd insexnyckel 3 mm
RFAST-ST Verktyg för fastspänning av I, C och D
Verktyg för fastspänning av A och B använd polygrip
RFAST-FG Verktyg för fastspänning av F och G
RFAST-MN Verktyg för fastspänning av M och N
RFAST-EH130 Verktyg för fastspänning av E och H, h 25-130
Specialtape till PE och PVC-rör (längd = 10m/rulle tjocklek = 0,5 mm, monteras med 30% överlapp)
Ulefos ändförslutningar typ KT
Av EPDM gummi
Inklusive rostfria spännband

Ulefos Automatiska avluftningsventiler
VI HAR SPECIALISERAT OSS PÅ automatiska avluftningsventiler, anordningar och avluftningspaket för trycksatta VA-ledningar för dricksvatten, råvatten och avloppsvatten. Vi hjälper till att beräkna var, vilken dimension och typ av avluftningsventiler som passar för varje individuellt projekt. Produktprogrammet består av dubbelverkande avluftningsventiler (utluftning vid fyllning av ledning, under drift och tilluftning vid undertryck) samt enkelverkande avluftningsventiler (endast utluftning med återströmningsskydd). De automatiska avluftningsventilerna levereras allt oftare som del i Ulefos avluftningspaket enligt princip i anläggnings-AMA eller som kompakta anordningar som enkelt kan underhållas från marknivån.
Hoppar man över att sätta en automatisk avluftningsventil på en tydlig högpunkt på en rörledning, har tester visat att pumpenergin ökar med ca +20% för att få fram samma mängd vatten som med en automatisk avluftningsventil.
Pumptillverkarna brukar prata om att deras pump är 0,5-1% bättre än konkurrentens och detta kan vara intressant att ha som jämförelse.
Att beräkna hur ett VA-rörsystem ska dimensioneras rätt med avluftningsventiler och vilken typ av avluftningsventil eller paket som bör användas kräver kunskaper om hur vatten och luft fungerar i rörsystemet. Ulefos hjälper gärna till med detta och har mångårig erfarenhet, både teoretisk och praktisk.
Du är välkommen att höra av Dig till oss!


Ulefos Avluftningsventiler AUTOMATISKA
För rent vatten, PN 16
Typ 1410 Triovent
Dubbelverkande (utluftning och tilluftning)
Hus av fiberarmerad nylon
För rent vatten, PN 16
Typ 1420 Triovent
Dubbelverkande (utluftning och tilluftning)
Inkl säkerhetssnorkel som återströmningsskydd
Hus av fiberarmerad nylon




Ulefos Avluftningsventiler AUTOMATISKA
För rent vatten, PN 16
Hus av glasfiberförstärkt nylon
Dubbelverkande (utluftning och tilluftning)
Inkl säkerhetssnorkel som återströmningsskydd
Inkl kulventil G50 inv.gga
För rent vatten , PN 16
Ulefos automatiskt avluftningspaket enligt AMA
För rent vatten, PN 16
Korrosionsfritt
Dubbelverkande (utluftning och tilluftning)
Inkl säkerhetssnorkel som återströmningsskydd
För huvudledning av PE
För rent vatten, PN 16
Ulefos automatisk avluftningsanordning
Kan enkelt underhållas från marknivån
Spolpost integrerad rostfri syrafast AISI 316
Dubbelverkande (utluftning och tilluftning)
Inkl säkerhetssnorkel som återströmningsskydd
Med rostfri syrafast avstängningsventil AISI 316



Lämplig betäckning är 640 (dagöppning
Ulefos Avluftningsventiler
AUTOMATISKA PN 10 & PN 16
Typ 1407 för avloppsvatten, PN 16
Dubbelverkande (utluftning och tilluftning)
Hus av syrafast stål AISI 316


För avloppsvatten, PN 16
Ulefos automatisk avluftningsanordning
Kan enkelt underhållas från marknivån
Dubbelverkande (utluftning och tilluftning)
Med rostfri syrafast avstängningsventil A1S1316

Lämplig betäckning är 640 (dagöppning 600mm)
Ulefos Klaffluckor
KLAFFLUCKA PTK-G & PTK-A
Klafflucka typ PTK-G för anslutning mot plan vägg
Levereras med förankringsbultar
Användning
För att styra vattenflödet i en riktning
För användning över vattenytan
Kortvarigt (ca 1 dygn) kan 5 MVP accepteras
Fritt genomlopp
Utföranden/ material PE / Syrafast stål 2343, AISI 316

Klafflucka typ PTK-A för
anslutning mot plan vägg
Levereras med förankringsbultar
Användning
För att styra vattenflödet i en riktning
För användning i/under vattenytan
Kortvarigt (ca 1 dygn) kan 5 MVP accepteras
Fritt genomlopp
Utföranden/ material
PE / Syrafast stål 2343, AISI 316

Ulefos Klaffluckor
KLAFFLUCKA PTK-P & PTK-BS
Klafflucka typ PTK-P för
montering i PVC-muff
Klaff snedställd för optimal täthet
Användning
För att styra vattenflödet i en riktning
För användning i / under vattenytan
Kortvarigt (ca 1 dygn) kan 5 MVP accepteras
Fritt genomlopp
Utföranden/ material
PE / Syrafast stål 2343, AISI 316

Andra dimensioner på förfrågan
Klafflucka typ PTK-BS för montering i betong- eller stålrör. Inkl. packning
Klaff snedställd för optimal täthet
Användning
För att styra vattenflödet i en riktning
För användning i / under vattenytan
Kortvarigt (ca 1 dygn) kan 5 MVP accepteras
Fritt genomlopp
Utföranden/ material
PE / Syrafast stål 2343, AISI 316

Andra dimensioner på förfrågan
Ulefos Klaffluckor
KLAFFLUCKA PTK-F
Klafflucka typ PTK-F fläns PN 10
Klaff snedställd för optimal täthet
Användning
För att styra vattenflödet i en riktning För användning i / under vattenytan Kortvarigt (ca 1 dygn) kan 5 MVP accepteras
Fritt genomlopp
Utföranden/ material
PE / Syrafast stål 2343, AISI 316

Ulefos klaffluckor kan även fås med fyrkantigt genomlopp eller i andra dimensioner.
Klaffluckorna kan även levereras med baksida med radie för att t.ex. monteras i brunn


Ulefos Handlucka
HANDLUCKA PHA
Ulefos Handlucka typ PHA av PE för montage mot betongvägg med runt genomlopp. Levereras med förankringsbultar
Utföranden/material
PE/ Syrafast stål SS 2343, AISI 316 Packning runt genomlopp av EPDM gummi Tätning mellan lucka och vägg av neoprene


Ulefos Slussluckor

Ulefos slussluckor typ PRA för montage mot betongvägg med runt genomlopp Levereras med förankringsbultar
Utföranden/ material
PE / Syrafast stål SS 2343, AISI 316 Packning runt genomlopp av EPDM gummi Tätning mellan lucka och vägg av neoprene

Andra dimensioner på förfrågan OBS! Väggen som hela slussluckan sitter mot skall vara kontrollerad rak och jämn före montering. Max 2 mm ojämnhet per 2 m.
Ulefos Slussluckor
Ulefos slussluckor typ PRA för montage mot vägg med fyrkantigt genomlopp. Levereras med fästankare
Utföranden/ material
PE / Syrafast stål SS 2343, AISI 316
Packning runt genomlopp av EPDM gummi Tätning mellan lucka och vägg av neoprene

Tillbehör Ulefos Slussluckor
PRAOC20
PRAVL25-CON
PRASL25
PRAOHW315
PRAOHW400
Nyckelhylsa för direktmontage på lucka
Spindeltapp för eldon direktmontage
Spindelförlängning med nyckelhylsa 1 meter 150-1000
Spindel förlängning med spindeltapp för eldon 1 meter 150-1000
Spindelförlängning tillkommande meter 150-1000
Spindelförlängning tillkommande meter inkl handratt 315 mm 150-1000
Väggfäste för spindelförlängning 150-1000
Handratt diam 315 mm för direkt montage på lucka 150-800
Handratt diam 400 mm för direkt montage på lucka 900-1000
Nyckelhylsa för direktmontage på lucka 1100-1500
Spindeltapp för eldon direktmontage 1100-1500
Spindelförlängning med nyckelhylsa 1 meter 1100-1500
Spindelförlänging med spindeltapp för eldon 1 meter 1100-1500
Spindelförlängning tillkommande meter 1100-1500
Spindelförlängning 1 meter med ratt 500mm 1100-1500
Väggfäste för spindelförlängning 1100-1500
Handratt diam 315 mm 1100-1500
Spindeltapp för eldon direktmontage 1600-2000
Spindelförlängning med spindeltapp för eldon 1 meter 1600-2000
Spindelförlängning tillkommande meter 1600-2000
Väggfäste för spindelförlängning 1600-2000
OBS! Väggen som hela slussluckan sitter mot skall vara kontrollerad rak och jämn före montering. Max 2 mm ojämnhet per 2 m.
Ulefos Genomföringstätningar för proffs! Link-Seal ®
ULEFOS GENOMFÖRINGSTÄTNINGAR Link-Seal® är en högkvalitativ produkt för permanent tätning av alla typer av rör som skall föras genom väggar, golv och tak. Ulefos genomföringstätning Link-Seal® är enkel att anpassa till olika rördimensioner och storlekar på genomföringshål. Olika materialkvaliteter säkrar ett brett användningsområde.
Ulefos genomföringstätning Link-Seal® är uppbyggd av länkar. Varje länk består av en rostfri syrafast bult med mutter, två tryckplattor samt ett gummisegment. Länkarna finns i olika storlekar beroende på hur stort ringspalten är mellan genomföringshål och mediarör.
Mediarörets och genomföringshålets diameter bestämmer också antalet länkar som behövs för en komplett tätning. Genom en enkel beräkning kan man fastställa länkstorlek och antal länkar som behövs för varje given kombination av genomföringshål och mediarör.
Ulefos Link-Seal® är korrisionsbeständig och är vatten- och gastät upp till 5 bar.

Certifiering

Ulefos genomföringstätning Link-Seal® är typgodkänd av DNV. För mer information – vänligen kontakta Ulefos.
Sortiment
Ulefos Link-Seal® länkar säljs styckvis. Beroende på användningsområde och mediarör finns det fem olika gummikvaliteter att välja mellan, se vidare i tekniska data.
Den radiella expansionen av gummit säkerställer en läckagefri installation
TEKNISK DATA
Typ
BS316 Standard Plaströr EPDM Blå Förstärkt nylonpolymer Rostfritt syrafast stål A4
S316 Standard Exkl plaströr EPDM svart
Förstärkt nylonpolymer
till 3 bar
OS316 Oljeresistent NBR Grön Förstärkt nylonpolymer Rostfritt syrafast stål A4 Från -40° C till +80° C För alla typer av rör, tät upp till 5 bar
KTW/W270 Dricksvatten & radongodkänd EPDM svart
Förstärkt nylonpolymer blå
Rostfritt syrafast stål A4 -40˚ C till +80˚ C För alla typer av rör, tät upp till 5 bar
T * * För extrema temperaturer Silikongummi grå Stål *** elförzinkat Stål *** elförzinkat -55˚ C till +230˚ C För alla typer av rör, tät upp till 5 bar
* Kan även användas till övriga typer av rör ** För mer information kontakta Ulefos *** Finns även i rostfritt syrafast stål A4



BS316 S316 OS316


KTW/W270
Beräkning av länkstorlek och antal länkar På vår hemsida finns anvisningar om hur man manuellt beräknar länkstorlek och antal länkar. Det enklaste sättet är dock att ringa in till oss på Ulefos så tar vi fram uppgifterna. Om vi får uppgift om mediarörets ytterdiameter, kan vi med hjälp av ett beräkningsprogram snabbt räkna fram det genomföringshål som ger den bästa och den mest ekonomiska tätningslösningen samt länkstorlek och antal länkar.
Monteringsanvisning Ulefos Genomföringstätning Link-Seal ®

Centrera mediaröret helt i genomföringshålet. Staga upp mediaröret. Ulefos genomföringstätning Link-Seal® är inte gjord för att orka lyfta upp mediaröret själva!
Sätt samman rätt antal länkar för genomföringstätningen enligt beställningen. För eventuell kontrollberäkning av antal länkar se vidare information på baksidan av denna monteringsanvisning. Kontakta beställaren i första hand vid ev. tveksamheter. Kontrollera att bultarna inte är åtdragna och att länkarna är okomprimerade.
Kontrollera att bultskallarna är vända mot dig. Ringen kan nu se slak ut vilket är helt normalt. På små mediarör kan man dock behöva sträcka lite på länkarna.

Dra åt första bulten kl 12 med max 4 varv. Fortsätt därefter med bulten närmast till höger med max 4 varv o.s.v. Använd endast handkraft.

Dra åt bultarna max 4 varv per gång. Fortsätt att dra åt bultarna klockvis tills korrekt moment uppnåtts, se tabell.
Efterdra bultarna klockvis efter ca 2 timmar tills korrekt moment uppnåtts, se tabell. För typ LS 500 upp till LS 650 behövs ofta fler efterdragningar beroende på ring-spalt, temperatur etc.
Ulefos genomföringstätning Link-Seal® - Rätt
• Kontrollera att mediaröret är centrerat genomföringshålet före montering.
• Montera ihop rätt antal länkar.
• Kontrollera att länkarna och samtliga rörytor är rena från smuts.
• Montera länkarna jämnt fördelade runt mediaröret före åtdragning av bultar.
• Se till att mediaröret är ordentligt uppstagat under återfyllnad.
Ulefos genomföringstätning Link-Seal® - Fel
För in Ulefos genomföringstätning Link-Seal® i ringspalten mellan mediaröret och genomföringshålet. På större mediarör - börja med att föra in länkarna från position kl 6 och arbeta in ringen upp till position kl 12.
Maximalt åtdragningsmome nt för typ S316, KTW/W270 svart och OS316 grön, Shore 50
Maximalt åtdragningsmoment för typ BS316 blå, Shore 35
Länkstorlek
2,3 Nm 2 Nm LS 200 upp till LS 275
8 Nm 6 Nm LS 300 upp till LS 360
27 Nm 20 Nm LS 400 upp till LS 475
65 Nm 50 Nm LS 500 upp till LS 575
110 Nm 65 Nm LS 615
65 Nm 50 Nm LS 625 och LS 650
• Montera inte genomföringstätningen med tryckplattorna riktade skevt.
• Montera inte genomföringstätningen på ojämna mediarör, t ex spiralsvetsade rör.
• Drag inte åt bultarna maximalt före ni går vidare till nästa bult.
• Använd inte höghastighetsverktyg.
• Ulefos genomföringstätning Link-Seal® är inte dragfast.
Ulefos Genomföringstätning
KONTROLLBERÄKNING LÄNKAR - LINK-SEAL®
Kontrollberäkning antal länkar
Kontrollberäkna hur många länkar som behövs för att täta utrymmet mellan mediarör och genomföringshål.
Använd följande beräkningsformel för att beräkna antal länkar:
Genomföringshålets diameter D Mediarörets ytterdiameter Dy Längd länk + x 3,14 / = (avrunda till närmaste heltal)
Antal länkar

Använd markerad* tabell för att bestämma länkens längd. Länkstorlek står på sidan på varje länk.
LS 500 99,8 mm från
Ulefos Genomföringstätning
LINK-SEAL® BS316 & S316
Ulefos Link-Seal ® länk typ BS316
För mediarör av plast, tät upp till 3 bar, blått gummi av EPDM, bult och mutter av rostfritt syrafast stål A4

Ulefos Link-Seal ® länk typ S316
För alla typer av mediarör exkl plaströr, tät upp till 5 bar, svart gummi av EPDM, bult och mutter av rostfritt syrafast stål A4

Art-nr
BS316
PS4-200
PS4-265
PS4-275
PS4-300
200
265
275
300
PS4-310 LS 310
PS4-315 LS 315
PS4-325 LS 325
PS4-340 LS 340
PS4-360 LS 360
PS4-400 LS 400
PS4-410 LS 410
PS4-425 LS 425
440
PS4-475 LS 475
PS4-500 LS 500
PS4-525 LS 525
PS4-575
PS4-625
575
615
625
650
PS5-200
PS5-265
200
265
PS5-275 LS 275
PS5-300 LS 300
PS5-310 LS 310
PS5-315 LS 315
PS5-325 LS 325
PS5-340 LS 340
PS5-360 LS 360
PS5-400 LS 400
PS5-410 LS 410
PS5-425 LS 425
PS5-440 LS 440
PS5-475 LS 475
PS5-500 LS 500
PS5-525 LS 525
PS5-575 LS 575
PS5-615 LS 615
LS 625
PS5-650 LS 650
Kontakta Ulefos så hjälper vi till att dimensionera rätt.
Ulefos Genomföringstätning
LINK-SEAL® OS316 & KTW/W270
Ulefos Link-Sea l® länk typ OS316
Oljeresistent
För alla typer av mediarör, tät upp till 5 bar, Grönt gummi av NBR, bult och mutter av rostfritt syrafast stål A4

Ulefos Link-Seal ® länk typ KTW/W270
Dricksvattengodkänd och radongodkänd
För alla typer av mediarör, tät upp till 5 bar, svart gummi av EPDM bult och mutter av rostfritt syrafast stål A4

Art-nr OS316 Länkstorlek
PS6-200 LS 200
LS 265
PS6-275 LS 275
PS6-300 LS 300 - LS 310
PS6-315 LS 315
PS6-325 LS 325
PS6-340 LS 340
PS6-360 LS 360
PS6-400 LS 400
PS6-410 LS 410
PS6-425 LS 425
PS6-440 LS 440
PS6-475 LS 475
PS6-500 LS 500
PS6-525 LS 525
PS6-575 LS 575
PS6-615 LS 615
LS 625
PS6-650 LS 650
Art-nr KTW/W270 Länkstorlek
PS7-200 LS 200
PS7-275 LS 275
PS7-300 LS 300
PS7-315 LS 315
PS7-325 LS 325
PS7-340 LS 340
PS7-360 LS 360
PS7-400 LS 400
PS7-410 LS 410
PS7-425 LS 425
PS7-440 LS 440
PS7-475 LS 475
PS7-500 LS 500
PS7-525 LS 525
PS7-575 LS 575
PS7-625 LS 625
PS7-650 LS 650
Kontakta Ulefos så hjälper vi till att dimensionera rätt.
Ulefos G enomföringstätningar för proffs! Compakt
ULEFOS GENOMFÖRINGSTÄTNINGAR COMPAKT är en serie högkvalitativa genomföringstätningar för permanent tätning av vatten-, gas- och avloppsledningar samt kablar som skall föras genom golv, väggar och tak. Ulefos genomföringstätningar Compakt är ett perfekt komplement till Ulefos genomföringstätning Link-Seal® och finns i två utföranden. Båda utförandena är tillverkade av gummi i hög kvalitet samt tryckplattor, bultar och muttrar av rostfritt stål.
Compakt Standard är en genomföringstätning för genomföringshål 50-400 mm och täcker steglöst alla dimensioner på mediarör från 6-330 mm. Gummit är tillverkat av EPDM och klarar temperaturer från -30˚C upp till +120˚C. Tätningen kan användas till alla typer av mediarör, oavsett material. Compakt Standard är vatten- och gastät upp till 3 bar, och är även radongodkända.
Compakt Varia är en flexibel genomföringstätning och finns i 3 olika storlekar; för genomföringshål 100, 150 och 200 mm. De två senare storlekarna är anpassade för plaströrsdimensioner. Den speciella ”lökrings-principen” gör att varje tätning klarar ett mycket brett dimensionsspann på mediaröret. Gummit är tillverkat av NBR och klarar temperaturer från -30˚C upp till +70˚C. Ulefos Compakt Varia är vatten- och gastät upp till 1,5 bar, och är även radongodkända.



Ulefos Compakt Standard
Ulefos Compakt Varia
Ulefos Compakt Split
Monteringsanvisning Ulefos Genomföringstätningar Compakt och Compakt Varia





Varje genomföringstätning består av en gummidel, två tryckplattor samt bultar och muttrar.
Rengör ingjutningshylsan/borrhålet och kontrollera att ytan är helt slät och fri från håligheter. Vid ojämn yta rekommenderas ett täckande skikt av epoxy.
(Compakt Varia - följ instruktionen på bladets baksida innan du går vidare till nedanstående steg)
För in genomföringtätningen i genomföringshålet med muttrarna vända mot dig och för därefter mediaröret genom genomföringstätningen.
Drag åt muttrarna klockvis med momentnyckel.
Åtdragningsmoment:
M6 5 Nm*
M8 10 Nm*
M10 15 Nm*
M12 20 Nm*
*Efterdra efter 2 timmar.
Ulefos Genomföringstätning Compakt Varia





Tryck ut centrumpluggen.

Tryck ut en tätningsring i taget. Använd en skruvmejsel eller liknande.
Tryck ut tätningsringarna från muttersidan.....
....mot bultskallesidan på genomföringstätningen.
Gör ett litet snitt med en vass kniv i kanten på den tät ningsring som ska avlägsnas.
Drag av tätningsringen för hand. Ta bort tillräckligt många tätningsringar
så att mediaröret precis går att föra in genom genomföringstätningen.
Ulefos Genomföringstätning
COMPAKT SPLIT
Ulefos Compakt Split Radongodkänd
För alla typer av mediarör tät upp till 3 bar, delbar svart gummi av EPDM, bult, mutter och tryckplatta av rostfritt stål A2

Andra dimensioner eller drickvattengodkänt gummi. Kontakta Ulefos
Ulefos Genomföringstätning
COMPAKT STANDARD & VARIA
Ulefos Compakt Standard
Radongodkänd
För alla typer av mediarör
tät upp till 3 bar, svart gummi av EPDM, bult, mutter och tryckplatta av rostfritt stål A2

Andra dimensioner, fråga Ulefos
Ulefos Compakt Varia
Radongodkänd
För mediarör av plast, tät upp till 1,5 bar, svart gummi av NBR, bult, mutter och tryckplatta av rostfritt stål A2

Ulefos Genomföringstätning
INGJUTNINGSHYLSA FC & PVC & PE
Ulefos Ingjutningshylsa FC av fiberarmerad cement, asbestfri, godkänd för upp till 5 bar

även
PS30-800400
Ulefos Ingjutningshylsa PVC av ruggat PVC-rör

Ulefos Ändpropp PE till ingjutningshylsa

Ulefos Genomföringstätning
KOMPENSATIONSTÄTNING

Ulefos Kompensationstätning för väggenomföring, klarar axiell/radiella förskjutningar på upp till 25 mm, Tät upp till 5 mvp
Material tätning: Rottolin
Material tryckplatta: Rostfritt stål A2


PS50-400315
PS50-450355
Ulefos Radontätning
FÖR INGJUTNING




Radontätning
För ingjutning i betong
Testade enligt EU direktiv 2013/59/Euratom
För alla typer av mediarör
Ulefos Rörproppar för alla typer av rör
Ulefos RÖRPROPPAR är en serie högkvalitativa proppar som kan användas på alla typer av rör, för att stoppa eller kontrollera vattenflöden. De kan också användas som ändpluggar vid trycktester. Alla proppar är tillverkade av naturligt eller syntetiskt gummi med utmärkta kompressionsegenskaper och med halkfri yta.


Ulefos Rörpropp SA1 och SA2 är framtagen framförallt för VVS-rör med en innerdiameter från 20-305 mm. Gummit är inte förstärkt, detta för att maximera sträckegenskaperna. Proppar upp t o m 200 mm är utrustade med vanlig däcksventil som är vulkad mot gummit. En kedja, monterad på ventilfästet, med ett päronformat handtag i andra änden, gör att risken för att proppen följer med in i röret minimeras. Proppar över 200 mm är försedda med ventil som enkelt kan bytas ut till en snabbkoppling. Dragögla ingår för att kunna lyfta och sänka ned proppen med hjälp av draglina.
Rörpropp SA1 och SA2 finns även som oljebeständig variant.
Rörpropp SA1 är en blockeringspropp för rör med innerdiameter 20-305 mm.
Rörpropp SA2 är en propp med genomföring för rör med innerdiameter 46-305 mm.


ULEFOS Rörpropp SB1 och SB2 är framtagen för att tåla tuffa tag och används med fördel vid proppning av markförlagda ledningar med en innerdiameter från 40-1800 mm. Propparna är tillverkade av högkvalitativt gummi med kevlarförstärkt kord och designade för maximal friktion mot rörväggen.
Varje propp täcker flera rördimensioner vilket underlättar lagerhållningen.
Alla ventiler är av typ snabbkoppling. På större dimensioner har propparna två ventiler för snabbare luftfyllning. Proppar upp till 500 mm är flexibla för att även passa i vinklar upp t o m 90°.
En eller två dragöglor, beroende på storlek, är placerade på propparna för att kunna fästa draglina. Rörpropp SB1 och SB2 finns även som oljebeständig variant.
Rörpropp SB1 är en blockeringspropp för rör med innerdiameter 40-1800 mm.
Rörpropp SB2 är en propp med genomföring för rör med innerdiameter 70-1800 mm.
Ulefos Rörproppar för alla typer av rör


Ulefos Rörpropp SC1 är en lång propp för att täta anslutning och huvudledning på samma gång. Propparna klarar innerdiametrar från 50-150 mm. Propparna är försedda med en 100 cm lång tryckslang. En kedja, monterad på ventilfästet, med ett päronformat handtag i andra änden, gör att risken att proppen följer med in i röret minimeras. Propparna är tillverkade av hökvalitativt gummi med kevlarförstärkt kord.
Ulefos Rörpropp SD2 är en genomföringspropp med vilken man kan utföra förbipumpning av stora vattenflöden under reparationer och andra ingrepp i ett rörsystem under fortsatt kontinuerlig drift. Propparna SD2 klarar ledningar med innerdiameter från 98-1800 mm. Propparna är tillverkade av högkvalitativt gummi med kevlarförstärkt kord. Gummit är utbytbart. Genomföringen är tillverkad av aluminium med en flänsat gängavstick i fronten, som enkelt kan ersättas med olika storlekar. Propparna är utrustade med snabbkopplingar och med en eller två dragöglor beroende på storlek på proppen.


VIKTIGT ATT TÄNKA PÅ:
Ulefos Rörpropp SE1 är en propp för stora ledningar med en innerdiameter från 600-2200 mm som standard. Propparna är tillverkade av högkvalitativt gummi med kevlarförstärkt kord, och är utrustade med två ventiler samt två dragöglor. Finns även med bypass med invändig gänga G50.
Ulefos Rörpropp SF1 är en propp för gas- och VA-ledningar, med en innerdiameter från 50-500 mm, där proppen bara kan föras in i ledningen via ett mycket begränsat utrymme, t ex ett avstick. Propparna är utrustade med snabbkopplingsventil.
• Läs alltid medföljande bruksanvisning.
• Var noga med att rengöra ledningen före montering av proppen. Detta är avgörande för friktionen mellan rör och propp.
• Proppen skall alltid säkras med mekanisk förankring för att förhindra utglidning.
• Använd alltid säkerhetsventil med manometer vid fyllning av proppen.
• Töm proppen på luft innan demontering
• Var uppmärksam på baktrycket vid tömning av proppen.
• Upprätta alltid säkerhetsavstånd vid fyllning och tömning av proppen.
• Rengör aldrig gummit med lösningsmedel eller andra aggressiva medel.
• Skyddas mot UV-strålning.
Ulefos Rörproppar
RÖRPROPPAR VVS
Rörpropp VVS
Typ SA1
Blockeringspropp med dragögla
Dimensionsområde 20-305 mm
Arbetsområde
Rörpropp VVS
Typ SA2
Med genomföring för bl a provtryckning
Gängad anslutning och dragögla
Dimensionsområde 46-305 mm
Finns även som oljebeständig
Högsta tillåtna mottryck (mvp)
För rörpropp typ SA1 och SA2


Ulefos Rörproppar
RÖRPROPPAR VA
& TILLBEHÖR
Tillbehör
Till rörpropp typ SA1 och SA2


Rörpropp VA
Typ SB1
Blockeringspropp med dragögla
Dimensionsområde 40-1800 mm

tryck
Finns även som oljebeständig
Rörpropp VA
Typ SB2
Med genomföring för bl a provtryckning
Gängad anslutning och dragögla
Dimensionsområde 70-1800 mm
Arbetsområde propp

Mått tömd propp Max tryck
Finns även som oljebeständig
Max
Ulefos Rörproppar
RÖRPROPPAR
VA & TILLBEHÖR
Högsta tillåtna mottryck (mvp)
För rörpropp typ SB1 och SB2
Högsta tillåtna mottryck (mvp)
För rörpropp typ SB1 och SB2
Tillbehör
Till rörpropp typ SB1 och SB2



Rörpropp VVS
Typ SC1
Blockeringspropp med dragögla
Inkl 1 m tryckslang
Dimensionsområde 50-1150 mm

Ulefos Rörproppar
Rörpropp VA
Typ SD2
Med stor genomföring för bl a provtryckning
Gängad anslutning och dragögla
Dimensionsområde 98-1800 mm


* Finns även med genomföring G150
Högsta tillåtna mottryck (mvp)
För rörpropp typ SD2
Högsta tillåtna mottryck (mvp)
För rörpropp typ SD2
Arbetsområde propp
Mått tömd propp
Max tryck
Ulefos Rörproppar
RÖRPROPPAR VA & GAS
Rörpropp VA
Typ SE1
Blockeringspropp
Dimensionsområde

Arbetsområde
Rörpropp VA & GAS
Typ SF1
Blockeringspropp
Dimensionsområde 50-500 mm RSK-nr

Ulefos Gängade rördelar
Muff


T-rör
Typ 5047
Invändig gänga

Ulefos Gängade rördelar
SERIE 5 MUFF, BUSSNING & T-RÖR AV PP
Vinkel
Nippel
Nippel förminskning
Typ 5065
Utvändig gänga



Ulefos Gängade rördelar
SERIE 5 HUV, PROPP AV PP & KULVENTIL
Huv
Typ 5077
Invändig gänga
Propp
Typ 5177
Utvändig gänga
Kulventil
Typ 3703
Invändig gänga




Ulefos Elektrosvetsrördelar samt Svetsautomater och Skrapverktyg
PLASSON HAR I DRYGT 40 ÅR varit en världsledande tillverkare av högkvalitativa plastrördelar. Plassons elektrosvetsrördelar är tillverkade för att tillgodose alla de högt ställda krav som ställs på dagens moderna trycksatta vatten- och avloppsledningssystem. Kvaliteten på produkterna, tillsammans med det högteknologiska SmartFuse-systemet, gör att Plasson kan erbjuda marknadens mest ekonomiska och säkerhetsanpassade sortiment för elektrosvetsning.
S martFuse
Elektrosvetsrördelarna tillsammans med Plassons svetsmaskiner bildar SmartFuse-systemet vilket innebär att svetsprocessen utförs helt automatiskt upp till 400 mm. Hela svetsprocessen är datorkontrollerad vilket minimerar felkällorna under svetsning och säkerställer täta svetsfogar med lång livslängd.
TEKNISK DATA
Tryckklass
Elektrosvetsrördelarna är tillverkade i tryckklass PN16 för vatten och PN10 för gas (ej skarvmuff light eller om annat anges).
Svetsbara rör - PE80, PE100 Rördelar upp t o m dim 75 mm är svetsbara med rör SDR 7-11 om inte annat anges. Rördelar från 90 mm och uppåt är svetsbara med rör SDR 7-17 om inte annan anges.
Material
Alla elektrosvetsrördelar är tillverkade av materialet PE100 vilket överensstämmer med internationella standarder för dricksvatten och gas. Metallförstärkningar är tillverkade av rostfritt stål A2. Förstärkningar, bultar och muttrar till elektrosvetsbyglar är tillverkade av galvaniserat stål (elförzinkning).
Standarder
Rördelssortimentet är konstruerat, testat och kontrollerat enligt Plassons interna normer.
Dessa normer uppfyller kraven enligt SS-EN 1555, SS-EN 12201.
Kvalitet
Plasson är certifierad enligt kvalitetssäkringssystemet ISO 9001. Arbetsrutinerna enligt ISO 9001 ålägger företaget sträng kontroll genom hela tillverkningsprocessen.
Svetsning
Plassons rördelssortiment kan användas med Plassons helautomatiserade svetsmaskiner eller med alla på marknaden förekommande svetsmaskiner med streckkodläsare. Varje rördel levereras komplett med streckkod, för inläsning av värden på svetsparametrar och kod för spårbarhet. Rördelarna har smältindikatorer för optisk kontroll efter genomförd svetsning.
Plassons unika svetsrördelar har ALLTID samma svetstid oavsett omgivande temperatur.
Rördelarnas anslutningsstift har dimension 4,0 mm. Rördelarna kan svetsas i temperaturer från -10°C till +45°C. Vid lägre temperaturer - kontakta Ulefos.


Ulefos Elektrosvetsning
SKARVMUFF
PN16 vatten, PN10 gas om inte annat anges
Skarvmuff,
typ 9014, PE100, med centrumstopp* som kan avlägsnas, stift 4,0 mm
upp t.o.m 400 mm
*Upp tom dim. 400 mm
Skarvmuff Light,
typ 6014, PE100
Med centrumstopp som kan avlägsnas, stift 4,0 mm
PN10 vatten, PN4 gas SmartFuse upp t.o.m 400 mm
242 79 59 P6014-800




Ulefos Elektrosvetsning
& ÄNDHUV
PN16 vatten, PN10 gas om inte annat anges
Förminskning
Typ 9114, PE100 stift 4,0 mm


Ändhuv
Typ


Ulefos Elektrosvetsning
T-RÖR
PN16 vatten, PN10 gas om inte annat anges
T-rör
Typ 9044, PE100 stift 4,0 mm


T-rör
Typ 9144, förminskat avstick, PE100, stift 4,0 mm


Ulefos Elektrosvetsning 90° &
45° VINKEL
PN16 vatten, PN10 gas om inte annat anges




Ulefos Elektrosvetsning
JUSTERBAR- & 22,5° VINKEL
PN16 vatten, PN10 gas om inte annat anges
Vinkel 22,5°
Typ 9024, PE100 stift 4,0 mm


Justerbar vinkel
typ 9474, dubbelsidig, max 24°, PE100, stift 4,0 mm


Justerbar vinkel
typ 9475, enkelsidig,


Ulefos Elektrosvetsning
PE-RT SKARVMUFF, T-RÖR, 90°
Kontakta Ulefos för aktuell tryckklass
Skarvmuff PE-RT
PE
T-rör PE-RT
PE 100, med centrumstopp som kan avlägsnas, stift 4,0 mm
SmartFuse upp t.o.m. 400 mm


Vinkel 90° PE-RT
PE 100, med centrumstopp som kan avlägsnas, stift 4,0 mm
SmartFuse upp t.o.m. 400 mm




252
Ulefos Elektrosvetsning
45° VINKEL
Kontakta Ulefos för aktuell tryckklass
Vinkel 45° PE-RT
PE 100, med centrumstopp som kan avlägsnas, stift 4,0 mm
SmartFuse upp t.o.m. 400 mm


Ulefos Elektrosvetsning
SVETSBOJA & ANBORRNINGSBYGEL
PN16 vatten, PN10 gas om inte annat anges
Svetsboja
typ 9099, PE 100
För PE-rör dim. 160-1600 mm
Förankringsverktyg Svetsboja
För att uppnå rätt anliggningstryck innan svetsning
Anborrningsbygel
typ 9384, invändigt gängat avstick med metallförstärkt utlopp, PE100, stift 4,0 mm
* Med bandunderdel. Endast anborrning efter svetsning






Anborrningsbygel Toploading
typ 9384, PE100, stift 4,0 mm Inv. gänga av mässing


Ulefos Elektrosvetsning
PN16 vatten, PN10 gas om inte annat anges
Toploadingverktyg
För att uppnå rätt anliggningstryck innan svetsning

RSK-nr Art-nr
PCTS280710


Transportlåda med spännband, spärrhandtag samt rundningshuvud
PCT110 Tryckplatta till anslutning 110 mm
PCT110S Tryckplatta till anslutning 110 mm, delbar
PCT160 Tryckplatta till anslutning 160 mm
PCT160S Tryckplatta till anslutning 160 mm, delbar
PCTS4701009 Transportlåda med spännband, spärrhandtag, för toploading utl ≥ 180mm 21.5
PCT225S Tryckplatta till anslutning 225 mm, delbar samt rundningsring
PCT250S Tryckplatta till anslutning 250 mm, delbar samt rundningsring
PCT400S Tryckplatta till anslutning 400 mm, delbar
Skrapverktyg Toploading eldriven, inklusive transportväska


Hålsåg Toploading
inkl SDS-max adapter, centrumborr och transportlåda
Grenbygel Light Toploading
typ 7584, PE 100 SDR 17, PN10 vatten stift 4,0 mm




*Svetsbar med PE-rör SDR 17-33
PCT160
PCTS280710
PCTS4701009
Ulefos Elektrosvetsning
GRENBYGEL
PN16 vatten, PN10 gas om inte annat anges
Grenbygel, typ 9584, PE100, stift 4,0 mm



* Med bandunderdel. Endast anborrning efter svetsning
** Med vajerunderdel och 16 mm stos för provtryckning innan anborrning. Endast anborrning efter svetsning
Grenbygel Toploading typ 9584T, PE100, stift 4,0 mm, med 16 mm stos för provtryckning innan anborrning



* Kommer inom kort. OBS! Se även sida med Toploadingverktyg
Ulefos Elektrosvetsning
GREN- & ANBORRNINGSBYGEL
PN16 vatten, PN10 gas om inte annat anges
Grenbygel Toploading Fläns
typ 9594T, PE100, stift 4,0 mm
Rep Toploading
typ 9524, PE100 stift 4,0 mm
Anborrningsbygel
typ 9634, för anborrning under tryck, PE100, med inbyggt borr, stift 4,0 mm







* Med bandunderdel. Endast anborrning efter svetsning
Ulefos Elektrosvetsning ANBORRNINGSBYGEL & MT-FLÄNS
Anborrningsbygel
typ 9535, för anborrning under tryck, parallellt utlopp, PE100, med inbyggt borr, stift 4,0 mm



* Med bandunderdel. Endast anborrning efter svetsning
Nyckel av automatstål till skär i anborrningsbyglar
typ 9634, 9535 och 9536 (P4)


MT-fläns
typ 9774, Elektrosvetsmuff PE100Flänsanslutning av epoxybehandlat segjärn GGG-50, flänsborrad PN10/16


Ulefos Elektrosvetsning
PN16 vatten, PN10 gas om inte annat anges
Övergångskoppling typ 9214, elektrosvetsmuff PE100utvändig gänga, gänga av mässing, stift 4,0 mm Adapter för elsvets typ 9217, elektrosvetsmuff PE100utvändig gänga, gänga av avzinkningshärdig mässing


Övergångskoppling typ 9314, elektrosvetsmuff PE100invändig gänga, gänga av avzinkningshärdig mässing, stift 4,0 mm




Adapter för elsvets typ 9217, elektrosvetsmuff PE100invändig gänga, gänga av avzinkningshärdig mässing


Ulefos Elektrosvetsning
SKRAPVERKTYG
Handskrapa med 4 skär, vändbart, för borttagning av oxidskikt på PE-rör innan elektrosvetsning
Rekommenderas enbart vid anborrning

Rotationsskrapa Atlas
för PE-rör
Inkl transportväska och manual, för borttagning av oxidskikt på PE-rör innan elektrosvetning

Rotationsskrapa Hermes
Tillbehör till borrmaskin, för PE-rör dim 25-63 mm, inkl transportlåda, för borttagning av oxidskikt på PE-rör innan elektrosvetsning


Ulefos Elektrosvetsning
SKRAPVERKTYG & TILLBEHÖR
Rotationsskrapa Safir
för PE-rör
Inkl transportväska, extra skärblad, insexnyckel och manual, för borttagning av oxidskikt på PE-rör innan elektrosvetsning


242 07 83 PRS50160
242 07 72 PRS75315 Rotationsskrapa
242 06 99 PRD150
* Finns även för uthyrning
Rotationsskrapa Titan II
för PE-rör
Inkl transportväska, insexnyckel och manual, för borttagning av oxidskikt på PE-rör innan elektrosvetsning
242
242 07 00 PRD156
TILLBEHÖR
Fixeringsverktyg Masterfix
För fixering av PE-rör vid elektrosvetsning
Rotationsskrapa Onyx
för PE-rör
Inkl transportväska, extra skärblad, insexnyckel och manual, för borttagning av oxidskikt på PE-rör innan elektrosvetsning
Skärblad Safir


Skärblad Titan II



Ulefos Elektrosvetsning
Ulefos rundningsverktyg
för PE-rör
dimension 63-75 mm
RSK-nr
Ulefos rundningsverktyg
för PE-rör dimension 90-160 mm
RSK-nr
Ulefos rundningsverktyg
för PE-rör dimension 180 mm
Ulefos rundningsverktyg
för PE-rör dimension 200-250 mm
RSK-nr
Ulefos rundningsverktyg
för PE-rör dimension 280-400 mm
RSK-nr
Ulefos Plasson hydrauliska
rundningsverktyg för PE-rör dimension 450-800 mm (Finns även för uthyrning)

PPRC063
PPRC075
Ulefos Rundningsverktyg 63 mm
Ulefos Rundningsverktyg 75 mm

PPRC090 Ulefos Rundningsverktyg 90 mm
PPRC110 Ulefos Rundningsverktyg 110 mm
PPRC125 Ulefos Rundningsverktyg 125 mm
PPRC140
PPRC160
Ulefos Rundningsverktyg 140 mm
Ulefos Rundningsverktyg 160 mm

PPRC180 Ulefos Rundningsverktyg 180 mm

PPRC200
Ulefos Rundningsverktyg 200 mm
PPRC225 Ulefos Rundningsverktyg 225 mm
PPRC250 Ulefos Rundningsverktyg 250 mm

PPRC280
Ulefos Rundningsverktyg 280 mm
PPRC315 Ulefos Rundningsverktyg 315 mm
PPRC355 Ulefos Rundningsverktyg 355 mm
PPRC400 Ulefos Rundningsverktyg 400 mm

Ulefos Elektrosvetsning TILLBEHÖR
Rörhållare
För rör upp t o m 225 mm
Kapsax
Typ 2919
För PE-rör
Röravskärare
för PE-rör dim 50-140 mm, inkl transportväska och insexnycklar





Rengöringsmedel
för PE-rör/delar vid elektrosvetsning


Märkpenna
för markering av insticksdjup på PE-rör/delar
Ulefos Elektrosvetsning
ELEKTROSVETSMASKINER
Elekstrosvetsmaskin Polycode inkl transportlåda, 20-160 mm, 48V

Elektrosvetsmaskin Tiny DATA
inkl transportlåda, 20-355 mm utan begränsning, 48V

Läs
om Ulefos svetsmaskin
Polycode på vår hemsida www.ulefos.se
Elektrosvetsmaskin Polymatic Plus
inkl transportlåda, 20-630 mm utan begränsning, 48V automatisk minnesfunktion (1000 svetsar) för dokumentation av svetsdata samt spårbarhetskoder för rör och rördelar

Läs
om Ulefos svetsmaskin Tiny
Elektrosvetsmaskin PolyControl Plus
inkl transportlåda, , 20-1600 mm, 48V automatisk minnesfunktion (1000 svetsar) för dokumentation av svetsdata

Läs mer om Ulefos svetsmaskin
Polymatic Plus på vår hemsida www.ulefos.se
Läs mer om Ulefos svetsmaskin
PolyControl Plus på vår hemsida www.ulefos.se
ULEFOS TOPLOADING Kanprovtryckasföreborrning!



Ulefos
Monteringsfilmer


Komplett lösning för elektrosvetsning av toploading grenbyglar för PE huvudledningsdimension 250-800mm. Ulefos toploading grenbyglar kan provtryckas före borrning via en 16mm PE-stos inuti bygeln för att säkerställa att svetsningen är korrekt utförd och tät!
• Kan provtryckas före borrning
• SmartFuse - helt automatiserad och datorkontrollerad elektrosvetsning
• Spännband med tryckindikator
• Svensk manual & monteringsfilm
• Beställ gärna vår uthyrningspall
www.ulefos.se
Ulefos Formsprutade PE-rördelar och Lösflänsar
ULEFOS FORMSPRUTADE RÖRDELAR är tillverkade med förlängda spetsändar, vilket gör att rördelarna både kan användas till elektrosvetsning och stumsvetsning (äldre stumsvetsningsmaskiner kan behöva längre PE-ändar).
Tillverkningsprocessen är kontrollerad enligt kvalitetssäkringssystemet ISO 9001:2000.
TEKNISK DATA
Tryckklass och mått Ytterdiameter och godstjocklek på Ulefos formsprutade rördelar uppfyller kraven enligt SS-EN 1555 och SS-EN 12201.
Nominella tryckklasser och SDR-värden:
Material
Ulefos formsprutade PE-rördelar är tillverkade av polyeten PE100 som uppfyller kraven enligt SS-EN 1555 och SS-EN 12201. Ulefos lösflänsar är tillverkade av polypropen (PP) med inlägg av stål enligt SS-EN 10025-2-S235JR. Flänsborrning enligt SS335, ISO 7005-2.
Godkännande
Ulefos formsprutade rördelar är tredjepartscertifierade av DVGW enligt certfikat VP 607.
Ulefos Sömlösa PE-böjar
DEN SVENSKA STANDARDEN SS-ISO 4427-3:2007 specificerar generella metoder för tillverkning av PE-rördelar till rörsystem för vattendistribution. Standarder föreskriver att stumsvetsade PE-rördelar under normala omständigheter bör tryckreduceras.
En vanlig metod för att ändå få rördelar som håller samma tryckklass som rören är att tillverka rördelarna med ett tjockare gods. Det för dock med sig problem vid stumsvetsning mot rör av annan godstjocklek samt den invändiga ”klack” som bildas mellan rör och rördel vilken försämrar flödesegenskaperna. En annan metod är att stumsvetsa böjar med ett tillräckligt antal skarvbitar, att gradantalet vid kapningen av skarvarna inte överstiger 7,5°.
Då behöver, enligt SS-ISO 4427-3:2007, rörböjen inte tryckreduceras. Nackdelen med denna metod är att varje extra skarv som svetsas är en potentiell felkälla. Ett betydligt bättre sätt är att använda sig av sömlösa PE-böjar, som är tillverkade av rör som böjts till rätt gradantal. Standarden SS-ISO 4427-3:2007 fastställer att sömlösa PE-böjar inte behöver tryckreduceras utan håller samma tryckklass som de rör de är tillverkade av.
TEKNISK DATA
Material
Ulefos sömlösa PE-böjar är tillverkade av polyeten PE100 som uppfyller kraven enligt SS-EN 1555 och SS-EN 12201.
Tryckklass
Ulefos sömlösa PE-böjar håller samma nominella tryckklass som de rör de är tillverkade av. Standardsortimentet består av sömlösa böjar i PN10 och PN16.
Standard

Enligt svensk standard SS-ISO 4427-3:2007 behöver Ulefos sömlösa böjar inte tryckreduceras.
Ulefos PE-rördelar
Vinkel 90°, formsprutad

Vinkel 90°, formsprutad

Ulefos PE-rördelar
VINKEL 45°
Vinkel 45°, formsprutad

Vinkel 45°, formsprutad
PN10 PE100

Ulefos PE-rördelar
VINKEL 30° & 15°
Vinkel 30°, formsprutad
PN16
PE100 SDR 11
Vinkel 30°, formsprutad
PN10
PE100 SDR 17


Ulefos PE-rördelar
GRENRÖR 45°
Grenrör 45°, formsprutad
PN16
PE100 SDR 11


Grenrör 45°, formsprutad
PN10
PE100 SDR 17


Ulefos PE-rördelar
T-RÖR
T-rör, formsprutad

T-rör, formsprutad
PN10
PE100 SDR 17

Ulefos PE-rördelar
T-RÖR FÖRMINSKNING
T-rör, förminskning, formsprutad
PN16
PE100 SDR 11

Ulefos PE-rördelar
T-RÖR FÖRMINSKNING
T-rör, förminskning, formsprutad
PN10
PE100 SDR 17

Ulefos PE-rördelar FÖRMINSKNING
Förminskning, koncentrisk formsprutad
PN16
PE100 SDR 11

Ulefos PE-rördelar FÖRMINSKNING
Förminskning, koncentrisk formsprutad
PN10
PE100 SDR 17
Förminskning, koncentrisk fabricerad
Långa skänklar för stum- och elektrosvetsning
PN10
PE100 SDR 17


Ulefos PE-rördelar
Huv, formsprutad
PN16
PE100 SDR 11


Ulefos PE-rördelar
BORDRING
Bordring, formsprutad
PE100 SDR 11

Bordring, formsprutad

Ulefos PE-rördelar
LÖSFLÄNS & BLINDFLÄNS
Lösfläns av PP-stål

Till och med DN150 = borrad PN10/16
Från DN 200 = borrad PN10
För önskemål om andra dimensioner - kontakta oss
Blindfläns av PP-stål


Till och med DN 150 = borrad PN10/PN16
Från DN 200 = borrad PN10
Ulefos PE-rördelar
Flänspackning med stålinlägg
EPDM-gummi
Dricksvattengodkända enligt DVGW W270
SS-EN 681-1, SS-EN 1514-1


Till och med DN 200 = PN16
Från DN 250 = PN10 PN16 finns på förfrågan
Flänspackning avvinklingsbar 0-8° 2-delad, EPDM-gummi

Till och med DN 200 = PN16
Från DN 250 = PN10
Ulefos PE-rördelar
FLÄNSPACKNING & HP-FLÄNS
HP-Fläns
Långa skänkel för stum- och elektrosvetsning PN10
PE100 SDR 11
HP-Fläns
Långa skänkel för stum- och elektrosvetsning PN10
PE100 SDR 17




Ulefos PE-rördelar
BORDRING & BÖJ 90°
SP-fläns*
Bordring, fabricerad
Med O-ring EPDM och stålfläns
Långa skänkel för stum- och elektrosvetsning
PN10
PE100 SDR 11
* Specialfläns
SP-fläns*
Bordring, fabricerad
Med O-ring EPDM och stålfläns
Långa skänkel för stum- och elektrosvetsning
PN10
PE100 SDR 17




* Specialfläns
Böj 90°, sömlös
PE100 PN16 SDR 11
PE100 PN10 SDR 17
Normalt ej lagerlagda.
Offereras vid önskemål: - r ~ 2,0d - 2,5d - Andra skänkellängder - Andra dimensioner


Ulefos PE-rördelar
BÖJ 60° & 45°
Böj 60°, sömlös
PE100 PN16 SDR 11
PE100 PN10 SDR 17
Normalt ej lagerlagda.
Offereras vid önskemål: - r ~ 2,0d - 2,5d - Andra skänkellängder - Andra dimensioner


Böj 45°, sömlös
PE100 PN16 SDR 11
PE100 PN10 SDR 17
Offereras vid önskemål: - r ~ 2,0d - 2,5d - Andra skänkellängder - Andra dimensioner


Ulefos PE-rördelar
BÖJ 30° & 22°
Böj 30°, sömlös
PE100 PN16 SDR 11
PE100 PN10 SDR 17
Normalt ej lagerlagda.
Offereras vid önskemål: - r ~ 2,0d - 2,5d - Andra skänkellängder - Andra dimensioner


Böj 22°, sömlös
PE100 PN16 SDR 11
PE100 PN10 SDR 17
Normalt ej lagerlagda.
Offereras vid önskemål: - r ~ 2,0d - 2,5d - Andra skänkellängder - Andra dimensioner


Ulefos PE-rördelar BÖJ 15°
Böj 15°, sömlös
PE100 PN16 SDR 11
PE100 PN10 SDR 17
Normalt ej lagerlagda.
Offereras vid önskemål: - r ~ 2,0d - 2,5d - Andra skänkellängder - Andra dimensioner


Ulefos PE-rördelar BÖJ
11° & MT-FLÄNS
Böj 11°, sömlös
PE100 PN16 SDR 11
PE100 PN10 SDR 17
Offereras vid önskemål: - r ~ 2,0d - 2,5d - Andra skänkellängder - Andra dimensioner


P125-315
Normalt ej lagerlagda.
MT-Fläns med PE-ända
PE100 PN16 SDR 11 Fläns, lös, PN10 av segjärn, epoxybehandlad

GDL050-1
GDL100-2 125 x 100 10/16
GDL125-1
GDL150-1
GDL300-1
Normalt ej lagerlagda.
ULEFOS Flänsrördelar av segjärn
• Användningsområdet är rörledningar för vatten och avlopp
• GSK epoxy tredjepartscertifierade
TEKNISK DATA
Material
Hus: Hus av segjärn EN 1563 EN-GJS-500-7
Ytbeläggning: av epoxy enligt DIN 3476 och DIN 30677-2, GSK RAL-GZ 662
Färg: Färg blå RAL 5017
Tryckklass PN16
Flänsar enligt EN1092-2 med hålborrning PN10. Hålborrning PN16 på förfrågan
Temperatur
Max driftstemperatur +50°C
Standarder
ISO 2531, EN 545

Ulefos Flänsrördelar
AV SEGJÄRN MED GSK EPOXY
Blindfläns 9660
PN10, segjärn Utan gängor
Andra dimensioner finns på förfrågan
Blindfläns 9660-50
PN10, med gängat uttag Segjärn
Andra dimensioner finns på förfrågan



Ulefos Flänsrördelar
AV SEGJÄRN MED GSK EPOXY
Flänsända 9661
Segjärn


Andra dimensioner finns på förfrågan
Flänsända 9683 För

Andra dimensioner finns på förfrågan
Ulefos Flänsrördelar AV SEGJÄRN MED GSK EPOXY
Korsrör 9662
Segjärn
Andra dimensioner finns på förfrågan

Korsrör 9663
Andra dimensioner finns på förfrågan

Ulefos Flänsrördelar AV SEGJÄRN MED GSK EPOXY
T-rör 9664
Segjärn
Andra dimensioner finns på förfrågan
Flänsat T-rör 9665
Andra dimensioner finns på förfrågan


Ulefos Flänsrördelar
AV SEGJÄRN MED GSK EPOXY
Flänsövergång
9666
Segjärn
Andra dimensioner finns på förfrågan
Reduktionsfläns 9667
Andra dimensioner finns på förfrågan



Ulefos Flänsrördelar
AV SEGJÄRN MED GSK EPOXY


Andra dimensioner finns på förfrågan


Andra dimensioner finns på förfrågan
Ulefos Flänsrördelar
AV SEGJÄRN MED GSK EPOXY
Flänsad rörböj 9668 45°
Andra dimensioner finns på förfrågan
Flänsad rörböj 9668 90°
Andra dimensioner finns på förfrågan
Flänsrör 9669
L=200 mm
Segjärn
Andra dimensioner finns på förfrågan





Ulefos Flänsrördelar
AV SEGJÄRN MED GSK EPOXY
Flänsrör 9669
L=250 mm
Segjärn
Andra dimensioner finns på förfrågan
Flänsrör 9669
L=300 mm
Segjärn
Andra dimensioner finns på förfrågan
Flänsrör 9669
L=400 mm
Segjärn
Andra dimensioner finns på förfrågan
Flänsrör 9669
L=500 mm
Segjärn




Andra dimensioner finns på förfrågan
Ulefos Flänsrördelar
AV SEGJÄRN MED GSK EPOXY
Flänsrör 9669
L=1000 mm
Segjärn
Andra dimensioner finns på förfrågan
Flänsrör 9669
L=2000 mm
Segjärn


Andra dimensioner finns på förfrågan
Flänsrör 9669-2
L=500 mm
Ingjutningsfläns. Segjärn
Andra dimensioner finns på förfrågan

Ingjutningsfläns
Ulefos Vattensäkring
VATTENSÄKRING & TILLBEHÖR
Vattensäkring

Återställningsknapp
Bultsatser
Rostfri bultsats till flänsförband PN10, kvalitet A2, std bult upp till längd 110 mm
Flänspackning , 3 mm gummiduk, med dubbla vävinlägg
Nyckelhylsor till spärrnyckel, förlängda RSK-nr

Ulefos Rördelar
Blindfläns av PP-stål


Till och med DN 150 = borrad PN10/PN16
Från DN 200 = borrad PN10

Ulefos Spindeltätning
Spindeltätning
• Tätningens platta översida innebär effektiv tätning mellan gland och tätningskammare.
• Tack vare den optimala dimensioneringen av tätningsläppen erbjuds en effektiv tätning för alla spindelstorlekar; tätningseffekten blir större med ökande tryck. Användbar upp till 60 bar.
• De korrugerade smörjkanalerna fördelar smörjmedlet jämnt runt spindelns totala kontaktyta och därmed garanteras en smidig funktion.
• Den unika kombinationen av tätningsläppar och smörjkanaler ger en labyrint-tätning, som motstår ett kontinuerligt tryck.
• Tätningsytan är ej fixerad vilket medför att tätningen fungerar även på krokiga spindlar.
• Tillverkad av PU


Spindeldiam.
Sökregister RSK-nr
RSK-nr Sid
103 08 60 194
103 08 61 194
103 08 62 194
103 08 67 194
103 08 68 194
103 08 69 194
103 08 70 194
103 08 71 194
103 08 72 194
103 08 74 194
103 08 75 193
103 08 76 193
103 08 77 193
103 09 11 194
103 09 12 194
103 09 13 194
103 09 14 194
103 09 16 194
103 09 17 194
103 09 18 194
103 09 19 194
103 09 20 194
103 09 21 194
103 09 22 194
103 09 23 194
103 09 24 194
103 33 01 281
103 33 03 281
103 33 05 281
103 33 07 281
103 33 09 281
103 33 11 281
103 33 13 281
103 33 14 281
103 33 15 281
103 45 22 196
103 45 23 196
103 45 24 196
103 45 25 196
103 86 61 176
103 86 62 176
103 86 63 176
103 86 64 176
103 86 65 176
103 86 66 176
103 86 67 176
103 86 68 176
103 86 69 176
103 86 70 176
RSK-nr Sid
103 86 71 176
103 86 72 176
103 86 73 176
103 86 74 176
103 86 75 176
103 86 76 176
103 86 77 176
103 86 78 176
103 86 79 176
103 86 80 176
103 86 89 177
103 86 91 177 103 86 92 177 103 86 93 177
103 86 94 177 103 86 95 177 103 86 96 177 103 86 97 177 103 86 98 177 103 86 99 177 103 87 00 177
103 87 01 177
103 87 42 176
103 87 49 176 103 87 50 176
103 87 52 176
103 87 53 176 103 87 54 176 103 87 55 176
103 87 56 176
103 87 58 177
103 87 59 177
103 87 60 177
103 87 61 177
103 87 62 177
109 01 09 287
109 01 17 287
109 01 25 287
109 01 33 287 109 01 41 287 109 01 58 287 109 01 66 287 109 04 06 287 109 04 14 287 109 04 22 287 109 04 30 287 109 04 48 287 109 04 55 287 109 04 63 287
RSK-nr Sid
109 07 03 286 109 07 11 286 109 07 29 286 109 07 37 286
07 45 286
07 52 286
08 13 286
08 22 286
08 25 286
08 31 286
08 34 286
10 08 284
10 16 284
10 24 284
10 28 284
10 32 284
10 57 284
10 65 284
10 81 284
10 99 284
11 07 284
11 23 284
11 31 284
11 49 284
11 56 284
11 72 284
11 80 284
11 98 284
12 55 284
12 06 284
12 14 284
12 48 284
12 63 284
12 89 284
12 97 284
13 05 284
13 13 284
15 03 283
15 11 283
15 21 283
15 21 283
15 37 283 109 15 52 283 109 15 52 283
RSK-nr Sid 109 15 60 283
15 86 283
15 86 283
15 94 283
16 02 283
16 28 283
16 36 283
16 44 283
16 51 283
16 77 283
16 85 283
16 93 283 109 16 93 283 109 17 01 283 109 24 01 285
24 02 285 109 24 18 285
24 28 285 109 24 36 285
24 44 285
24 51 285
24 77 285
24 85 285
24 91 285 109 24 93 285 109 25 01 285 109 25 15 285 109 25 27 285 109 29 03 285 109 29 06 285
29 09 285 109 29 12 285
29 15 285
29 18 285
29 21 285
31 03 281
31 11 281
31 29 281
31 37 281
31 45 281
31 52 281 109 31 60 281
31 78 281 109 31 86 281 109 37 15 288 109 37 31 288
38 24 289
38 51 289
38 54 289
38 57 289
38 60 289
38 63 289
73 44 282
73 51 282
73 69 282
73
Sökregister RSK-nr
RSK-nr Sid
114 05 43 187
114 05 44 187
114 05 45 187
114 05 46 187
114 05 47 187
114 05 48 187
114 05 49 187
114 05 50 188
114 05 51 188
114 05 52 188
114 05 53 188
114 05 54 188
114 05 55 188
114 05 56 188
114 05 57 188
114 05 58 188
114 05 59 188
114 05 60 188
114 05 61 188
114 05 62 188
114 05 63 188
114 05 64 188
114 05 65 188
114 05 66 188
114 05 67 188
114 05 68 188
114 05 69 188
114 05 70 188
114 05 71 188
114 05 72 188
114 05 73 188
114 05 74 188
114 05 75 188
114 05 76 188
114 05 77 188
114 05 78 188
114 05 79 188
114 05 80 188
114 05 81 188
114 05 82 188
114 05 83 188
114 05 84 188
114 05 85 188
114 05 86 188
114 05 87 188
114 05 88 188
114 05 89 188
114 05 95 195
114 05 96 195
RSK-nr Sid
114 05 97 195
114 05 98 195
114 05 99 195
114 06 00 189
114 06 01 189
114 06 02 189
114 06 03 189
114 06 04 189
114 06 05 189
114 06 06 189
114 06 07 189
114 06 08 189
114 06 09 189
114 06 10 189
114 06 11 189
114 06 12 189
114 06 13 189
114 06 14 189
114 06 15 189
114 06 16 189
114 06 17 189
114 06 18 189
114 06 19 189
114 06 20 189
114 06 21 189
114 06 23 189
114 06 24 189
114 06 25 189
114 06 26 190
114 06 27 190
114 06 28 190
114 06 29 190
114 06 30 190
114 06 31 190
114 06 32 190
114 06 33 190
114 06 34 190
114 06 35 190
114 06 36 190
114 06 37 190
114 06 38 190
114 06 39 190
114 06 40 190
114 06 41 190
114 06 42 190
114 06 44 190
114 06 45 190
114 06 46 190
114 06 47 190
RSK-nr Sid
114 06 48 190
114 06 49 190
114 06 50 190
114 06 51 190 114 06 52 190 114 06 53 190 114 06 54 190 114 06 55 190 114 06 56 190 114 06 57 190 114 06 59 190
06 60 187 114 06 61 187 114 06 62 187
114 06 63 187 114 06 64 187 114 06 65 187 114 06 66 187
114 06 67 187 114 06 68 187 114 06 69 187 114 06 70 187 114 06 71 187
114 16 58 206
114 16 59 206
114 16 60 206
114 16 61 206
114 16 62 206
115 05 14 175
115 05 34 175
115 05 35 175
115 05 36 175
115 05 37 175
115 05 38 175
115 05 39 175
115 05 40 175
115 05 41 175
115 05 42 175
115 05 43 175
115 05 44 175
115 05 45 175
115 05 46 175
115 05 47 175
115 05 48 175
115 05 49 175
115 05 50 175
115 05 51 175
115 05 52 175
115 05 53 175
RSK-nr Sid
115 05 54 175
115 05 55 175 115 05 56 175 115 06 68 48 115 06 69 48 115 06 70 48 115 06 71 48 115 06 72 48 115 06 73 48 115 06 74 48 115 06 75 48
06 76 48 115 06 77 48 115 06 78 48 115 06 79 48 115 06 80 48
150 50 60 27
150 50 61 27
150 50 62 27
150 50 63 27
150 50 64 27
150 50 65 27
150 50 66 27
150 50 67 27
150 50 68 27
150 50 69 27
150 50 70 27
150 50 71 27
150 50 72 27
150 50 72 273
150 81 00 290
150 81 18 290
150 81 26 290
150 81 26 290
150 81 34 290
150 81 34 290
150 81 42 290
150 81 42 290
150 81 59 290
150 81 59 290
150 81 67 290
150 81 92 27
150 81 92 273
150 81 93 27
150 81 94 27
150 81 97 201
150 82 11 273
150 82 12 273
150 82 13 273
RSK-nr Sid
150 82 14 273
150 82 15 273
150 82 16 273
150 82 17 273
150 82 18 273
150 82 19 273
150 82 20 273
150 82 21 273
150 82 22 273
150 82 23 273
154 12 60 171
154 12 61 171
154 12 62 171
154 12 63 171
154 12 64 171
154 12 65 171
154 12 66 171
154 12 67 170
154 12 68 170
154 12 69 170
154 12 70 170
154 12 71 170
154 12 72 170
154 12 73 170
154 12 74 170
154 12 75 170
154 12 76 170
154 12 77 170
154 12 78 170
154 12 79 171
154 12 80 171
154 12 81 171
154 12 82 171
154 12 83 171
154 12 84 171
154 12 85 171
154 12 86 172
154 12 87 172
154 12 88 172
154 12 89 172
154 12 90 172
154 12 98 171
154 12 99 171 154 13 00 171
154 13 01 171
154 13 02 171
154 13 03 171
154 13 04 171
154 13 05 171
13 08 170 154 13 09 170
154 13 10 170
154 13 11 171 154 13 12 171 154 13 13 171
154 13 14 171
154 13 15 171
154 13 16 171
154 13 19 171
154 13 20 171
154 13 21 172
154 13 22 172
154 13 23 172
154 13 24 172
154 13 25 172
154 13 26 172 154 13 27 172 154 13 28 172 154 13 29 172 154 13 30 172 154 13 31 172
13 32 172
154 13 33 172
154 13 34 173 154 13 35 173 154 13 36 173 154 13 37 173
154 13 38 173
154 13 39 173
154 13 40 173
154 13 41 173
154 13 42 173
154 13 43 172
154 13 44 172
154 13 45 172
154 13 46 172
154 13 47 172
154 13 48 172
186 62 45 178
186 62 46 178 186 62 47 178 186 62 48 178 186 62 49 178 186 62 50 178
186 62 51 178 186 62 52 178
Sökregister RSK-nr
RSK-nr Sid
186 62 53 178
186 62 54 178
186 62 55 178
186 62 56 178
186 62 58 178
186 62 59 178
186 62 60 178
186 62 61 178
186 62 62 178
186 62 63 178
186 62 64 178
186 62 65 178
186 62 66 178
186 62 67 178
186 62 68 178
186 62 69 178
198 88 91 291
198 88 92 291
198 88 93 291
198 88 94 291
198 88 95 291
206 46 61 117
206 46 63 117
206 46 92 117
206 46 93 117
206 46 94 117
211 31 76 255
211 31 77 255
211 31 78 255
222 25 05 28
222 25 06 28
222 25 07 28
222 25 08 28
235 82 46 200
235 82 47 200
235 82 49 200
235 82 59 201
238 44 44 123
24 090 13 261
24 090 14 261
240 90 05 261
240 90 06 261
240 90 07 261
240 90 08 261
240 90 09 261
240 90 10 261
240 90 11 261
240 90 12 261
240 90 15 261
RSK-nr Sid
240 90 16 261
240 90 19 261
240 90 20 261
240 90 21 261
240 90 22 261
240 90 23 261
240 90 24 261
240 90 25 261
240 90 26 261
240 90 27 261
240 90 28 261
240 90 29 261
240 90 30 261
240 90 31 261
240 90 32 261
240 90 33 261
240 90 34 261
240 90 35 261
240 90 43 262
240 90 44 262
240 90 45 262
240 90 46 262
240 90 47 262
240 90 48 262
240 90 49 262
240 90 50 262
240 90 51 262
240 90 52 262
240 90 53 262
240 90 54 262
240 90 57 262
240 90 58 262
240 90 59 262
240 90 60 262
240 90 61 262
240 90 62 262
240 90 63 262
240 90 64 262
240 90 65 262
240 90 66 262
240 90 67 262
240 90 68 262
240 90 69 262
240 90 70 262
240 90 71 262
240 90 72 262
240 90 73 262
240 90 77 263
240 90 78 263
RSK-nr Sid
240 90 79 263
240 90 80 263
240 90 81 263
240 90 82 263
240 90 83 263
240 90 84 263
240 90 85 263
240 90 92 263
240 90 93 263
240 90 94 263
240 90 95 263
240 90 96 263
240 90 97 263
240 90 98 263
240 90 99 263
240 91 00 263
240 91 11 265
240 91 12 265
240 91 13 265
240 91 14 265
240 91 15 265
240 91 16 265
240 91 17 265
240 91 18 265
240 91 19 265
240 91 20 265
240 91 21 265
240 91 22 265
240 91 23 265
240 91 24 265
240 91 27 265
240 91 28 265
240 91 29 265
240 91 30 265
240 91 31 265
240 91 32 265
240 91 33 265
240 91 34 265
240 91 35 265
240 91 36 265
240 91 37 265
240 91 38 265
240 91 39 265
240 91 40 265
240 91 41 265
240 91 42 265
240 91 43 265
240 91 44 265
240 91 45 265
RSK-nr Sid
240 91 55 267
240 91 57 267
240 91 62 267
240 91 63 267
240 91 64 267
240 91 65 267
240 91 67 267
240 91 68 267
240 91 69 267
240 91 70 267
240 91 73 267
240 91 74 267
240 91 75 267
240 91 76 267
240 91 77 267
240 91 78 267
240 91 85 267
240 91 86 267
240 91 87 267
240 91 88 267
240 91 89 267
240 92 19 266
240 92 27 266
240 92 29 266
240 92 34 266
240 92 35 266
240 92 36 266
240 92 37 266
240 92 39 266
240 92 40 266
240 92 41 266
240 92 42 266
240 92 45 266
240 92 46 266
240 92 47 266
240 92 48 266
240 92 49 266
240 92 50 266
240 92 61 266
240 92 62 266
240 92 63 266
240 92 64 266
240 92 65 266
240 92 66 266
240 92 67 266
240 93 13 269
240 93 14 269
240 93 15 269
240 93 16 269
RSK-nr Sid
240 93 17 269
240 93 18 269
240 93 19 269
240 93 20 269
240 93 21 269
240 93 22 269
240 93 23 269 240 93 25 269
240 93 26 269 240 93 27 269 240 93 28 269
93 29 269 240 93 30 269 240 93 31 269 240 93 33 269 240 93 35 269 240 93 36 269 240 93 38 269 240 93 39 269
93 42 269
93 43 269
240 93 44 269
93 45 269
93 46 269
93 47 269
93 48 269
93 49 269
93 50 269
93 51 269
93 52 269
93 53 269
93 54 269
93 55 269
93 56 269
93 57 269
93 58 269
93 59 269 240
Sökregister RSK-nr
RSK-nr Sid
240 94 31 270
240 94 32 270
240 94 33 270
240 94 34 270
240 94 35 270
240 94 36 270
240 94 37 270
240 94 38 270
240 94 39 270
240 94 40 270
240 94 41 270
240 94 42 270
240 94 43 270
240 94 44 270
240 94 45 270
240 94 46 270
240 94 47 270
240 94 48 270
240 94 49 270
240 94 50 270
240 94 51 270
240 94 52 270
240 94 53 270
240 94 54 270
240 94 55 270
240 94 56 270
240 94 58 271
240 94 59 271
240 94 60 271
240 94 61 271
240 94 62 271
240 94 63 271
240 94 64 271
240 94 65 271
240 94 66 271
240 94 67 271
240 94 68 271
240 94 69 271
240 94 70 271
240 94 71 271
240 94 72 271
240 94 73 271
240 94 74 271
240 94 75 271
240 94 76 271
240 94 77 271
240 94 78 271
240 94 79 271
240 94 80 271
RSK-nr Sid
240 94 81 271
240 94 82 271
240 94 83 271
240 94 84 271
240 94 85 271
240 94 86 271
240 94 87 271
240 94 88 271
240 94 89 271
240 94 90 271
240 94 91 264
240 94 92 264
240 94 93 264
240 94 94 264
240 94 95 264
240 94 96 264
240 94 97 264
240 94 98 264
240 94 99 264
240 95 00 264
240 95 01 264
240 95 02 264
240 95 03 264
240 95 04 269
240 95 05 269
240 95 06 269
240 95 07 269
240 95 08 269
240 95 09 271
240 95 10 271
240 95 11 271
240 95 12 271
240 95 13 275
240 97 28 265
240 97 29 265
241 15 78 244
241 15 79 244
241 15 81 244
241 15 82 244
241 15 83 244
241 15 84 244
241 15 85 244
241 15 86 244
241 15 87 244
241 15 88 244
241 15 89 244
241 15 90 244
241 15 91 244
241 15 92 244
RSK-nr Sid
241 15 93 244
241 15 94 244
241 15 95 244
241 15 96 244
241 15 97 244
241 15 98 244
241 15 99 244
241 16 00 244
241 16 01 244
241 16 02 244
241 16 03 244
241 16 04 244
241 16 05 244
241 16 06 244
241 16 07 244
241 16 08 245
241 16 09 245
241 16 10 245
241 16 11 245
241 16 12 245
241 16 13 245
241 16 14 245
241 16 15 245
241 16 16 245
241 16 17 245
241 16 18 245
241 16 19 245
241 16 20 245
241 16 22 243
241 16 23 243
241 16 24 243
241 16 25 243
241 16 26 243
241 16 27 243
241 16 28 243
241 16 29 243
241 16 30 243
241 16 31 243
241 16 32 243
241 16 35 242
241 16 36 242
241 16 37 242
241 16 38 242
241 16 39 242
241 16 40 242
241 16 41 242
241 16 42 242
241 16 43 242
241 16 44 242
RSK-nr Sid
241 16 45 242
241 16 46 242
241 16 47 242
241 16 48 242
241 16 49 242
241 16 50 242
241 16 51 242
241 16 52 242
241 16 54 242
241 16 55 242
241 16 56 242
241 16 57 242
241 16 58 242
241 16 59 242
241 16 60 242
241 16 61 242
241 16 62 242
241 16 63 242
241 16 64 242
241 16 65 242
241 16 66 242
241 16 67 242
241 16 68 242
241 16 72 248
241 16 73 248
241 16 74 248
241 16 75 248
241 16 76 248
241 16 77 248
241 16 78 248
241 16 79 248
241 16 80 248
241 16 81 248
241 16 82 248
241 16 83 248
241 16 84 248
241 16 85 248
241 16 86 248
241 16 87 248
241 16 88 248
241 16 90 251
241 16 91 251
241 16 92 251
241 16 93 251
241 16 94 251
241 16 95 251
241 16 96 251
241 16 97 251
241 16 98 251
RSK-nr Sid
241 16 99 251
241 17 00 251
241 17 01 251
241 17 02 251
241 17 03 251
241 17 04 251
241 17 05 251
241 17 06 251
241 17 07 251
241 17 08 251
241 17 09 251
241 17 10 251
241 17 11 251
241 17 12 251
241 17 13 252
241 17 14 252
241 17 15 252
241 17 16 252
241 17 17 252
241 17 19 252
241 17 20 252
241 17 21 252
241 17 22 252
241 17 23 252 241 17 24 252 241 17 25 252 241 17 27 252 241 17 28 252
17 29 252
17 30 252 241 17 31 252 241 17 32 250
17 33 250 241 17 35 250
241 17 36 250
241 17 37 250
241 17 38 250
241 17 39
Sökregister RSK-nr
RSK-nr Sid
242 04 77 254
242 04 78 254
242 06 13 258
242 06 14 258
242 06 99 255
242 07 00 255
242 07 00 255
242 07 42 254
242 07 44 167
242 07 45 167
242 07 45 257
242 07 61 254
242 07 62 254
242 07 63 257
242 07 66 198
242 07 67 198
242 07 67 252
242 07 72 255
242 07 74 257
242 07 83 255
242 07 83 255
242 07 89 257
242 07 90 257
242 07 91 255
242 07 99 255
242 07 99 255
242 25 50 28
242 25 51 28
242 25 52 28
242 25 53 28
242 25 54 28
242 25 55 28
242 25 57 28
242 25 58 28
242 25 59 28
242 25 60 28
242 25 61 28
242 50 59 28
242 78 12 241
242 78 13 241
242 78 14 241
242 78 15 241
242 78 16 241
242 78 17 241
242 78 18 241
242 78 19 241
242 78 20 241
242 78 21 241
RSK-nr Sid
242 78 23 241
242 78 24 241
242 78 31 241
242 78 32 241
242 78 33 241
242 78 34 241
242 78 35 241
242 78 36 241
242 78 37 241
242 78 38 241
242 78 39 241
242 78 40 241
242 78 41 241
242 78 42 241
242 78 43 241
242 78 44 241
242 78 45 241
242 78 46 241
242 78 47 241
242 78 48 241
242 78 49 241
242 78 50 241
242 78 51 241
242 78 52 241
242 78 53 241
242 78 54 241
242 78 56 241
242 78 57 241
242 78 58 241
242 78 59 241
242 78 99 241
242 79 59 241
242 89 70 253
242 89 71 253
242 89 72 253
242 89 74 253
242 89 75 253
242 89 76 253
242 89 79 253
242 89 80 253
242 89 83 253
242 89 84 253
242 89 85 253
242 89 89 253
242 89 92 253
242 89 93 253
242 89 94 253
RSK-nr Sid
243 00 50 241 243 00 52 241
38 12 128
38 13 128
38 14 128
244 38 15 128
38 16 128
38 17 128
38 18 128 244 38 19 128
38 20 128
38 21 128 244 38 22 128
38 23 128 244 38 24 128
38 25 128
244 38 26 128
244 38 27 128
244 38 28 128 244 38 31 130
244 38 32
RSK-nr Sid
244 38 56 124
244 38 57 124
244 38 58 124
244 38 59 124
244 38 60 124
244 38 61 124
244 38 62 124
244 38 63 124
244 38 64 125
244 38 65 125
244 38 66 125
244 38 67 125
244 38 68 125
244 38 69 125
244 38 70 125
244 38 71 125
244 38 72 125
244 38 73 125
244 38 74 125
244 38 75 125
244 38 76 129
244 38 77 129
244 38 80 129
244 38 81 129
244 38 82 129
244 38 83 129
244 38 86 129
244 38 87 129
244 38 88 129
244 38 91 129
244 38 93 129
244 38 93 133
244 38 94 130
244 38 95 130
244 38 96 130
244 38 97 130
244 39 00 130
244 39 01 130
244 39 03 130
244 39 03 135
244 39 04 131
244 39 05 131
RSK-nr Sid
244 39 14 142
244 39 15 131
244 39 15 137
244 39 16 131
244 39 19 131
244 39 19 137
244 39 34 124
244 39 34 125
244 39 37 132
244 39 38 132
244 39 39 132
244 39 40 132
244 39 47 132
244 39 48 132
244 39 49 132
244 39 50 132
244 39 51 132
244 39 52 132
244 39 53 132
244 39 54 132
244 39 55 132
244 39 56 132
244 39 57 132
244 39 58 132
244 39 59 132
244 39 60 132
244 39 61 132 244 39 62 132 244 39 63 132
244 39 66 133
244 39 67 133
244 39 68 133
244 39 69 133
244 39 70 133
244 39 72 133
244 39 73 133
244 39 83 133
244 39 84 133 244 39 85 132 244 39 86 132 244 41 20 133
41 21 133
244 41 47 135 244 41 48 135 244 41 49 135 244 41 50 135
41 51 135
41 52 135
41 53 135
41 72 134 244 41 73 134 244 41 74 134
244 41 75 134 244 41 76 134
244 38 51 124
244 38 52 124
244 38 53 124
244 38 54 124
244 38 55 124
242 89 95 253
242 78 22 241
242 89 97 253
244 38 55 129
244 38 55 133
244 39 06 131
244 39 07 131
244 39 10 131
244 39 11 131
244 39 13 131
244 39 13 137
244 39 14 131
41 22 133
41 23 133
41 24 133
41 25 133
41 26 133
41 27 133
41 28 133
244 41 77 134
244 41 78 134
244 41 79 134
244 41 80 134
244 41 81 134
244 41 82 134
244 41 83 134
Sökregister RSK-nr
RSK-nr Sid
244 41 84 134
244 41 85 134
244 41 86 134
244 41 87 134
244 41 88 134
244 41 91 135
244 41 92 135
244 41 93 135
244 41 94 135
244 41 95 135
244 41 96 135
244 41 97 135
244 42 00 134
244 42 01 135
244 42 02 135
244 42 05 136
244 42 06 136
244 42 07 137
244 42 08 137
244 42 09 137
244 42 10 137
244 42 11 137
244 42 12 137
244 42 13 137
244 42 14 137
244 42 15 137
244 42 16 137
244 42 17 137
244 42 18 137
244 42 19 137
244 42 20 137
244 42 21 137
244 42 22 137
244 42 23 137
244 42 24 137
244 42 25 137
244 42 26 136
244 42 27 136
244 42 28 136
244 42 29 136
244 42 30 136
244 42 31 136
244 42 32 136
244 42 33 136
244 42 34 136
244 42 35 136
244 42 36 136
244 42 37 136
244 42 38 136
RSK-nr Sid
244 42 39 136
244 42 40 136
244 42 41 136
244 42 42 136
244 42 43 136
244 42 44 136
244 42 45 136
244 42 46 136
244 42 47 136
244 42 48 136
244 42 51 137
244 42 52 137
244 42 53 137
244 42 54 137
244 42 55 137
244 42 56 137
244 42 57 137
244 42 59 136
244 42 61 137
244 42 72 123
244 42 73 123
244 42 74 123
244 42 75 123
244 42 76 123
244 42 77 138
244 42 78 138
244 42 79 138
244 42 80 138
244 42 81 138
244 42 82 138
244 42 83 138
244 42 85 138
244 42 86 138
244 42 88 138
244 42 89 134
244 42 90 134
244 42 91 129
244 42 92 132
244 42 93 132
244 42 94 138
244 42 95 138
244 42 96 124
244 42 97 124
244 42 98 124
244 42 99 124
244 43 00 124
244 43 01 124
244 43 02 124
244 43 03 124
RSK-nr Sid
244 43 04 124
244 43 05 124
244 43 06 124
244 43 07 124
244 43 08 124
244 43 09 124
244 43 10 124
244 43 11 124
244 43 12 124
245 05 28 258
245 08 03 152
245 08 03 164
245 08 04 152
245 08 05 152
245 08 06 152
245 08 06 164
245 08 08 152
245 10 81 152
245 11 26 152
245 11 27 152
245 11 29 152
249 14 23 152
249 14 24 152
249 14 25 152
249 14 26 152
249 14 27 152
249 35 01 151
250 39 02 160
250 39 44 160
250 39 50 160
250 39 51 160
250 39 54 160
250 39 69 160
250 39 72 160
250 39 77 160
250 39 83 160
250 39 84 160
250 39 85 160
250 39 86 160
250 39 90 160
250 39 91 160
250 39 92 160
250 39 93 160
250 40 09 160
250 41 40 160
250 41 54 156
250 41 57 160
250 43 06 155
250 43 14 155
RSK-nr Sid
250 43 22 155
250 43 30 155
250 43 48 155
250 43 55 155
250 43 63 155
250 43 71 155
250 43 89 155
250 43 97 155
250 44 05 155
250 44 55 161
250 44 56 161
250 44 57 161
250 44 58 161
250 44 59 161
250 44 61 161
250 44 63 155
250 44 64 155
250 44 65 155
250 44 66 155
250 44 67 155
250 44 68 155
250 44 71 164
250 44 72 164
250 44 73 164
250 44 74 164
250 44 75 164
250 44 76 164
250 44 77 164
250 44 78 164
250 44 79 164
250 44 80 164
250 44 81 164
250 44 83 152
250 44 83 167
250 44 85 165
250 44 86 165
250 44 87 165
250 44 88 165
250 44 89 165
250 44 90 165
250 44 91 155
250 44 92 155
250 44 93 155
250 44 94 155
250 44 95 164
250 44 96 164
250 44 97 164
250 44 98 164
250 44 99 167
RSK-nr Sid
250 45 00 167
250 45 01 167
250 45 04 162
250 45 12 162
250 45 20 162
250 45 38 162
250 48 76 157
250 48 84 157
250 48 92 157
250 49 91 156
250 50 06 162
250 50 07 162
250 50 08 162
250 50 09 162
250 50 10 162
250 50 11 162
250 50 14 162
250 50 22 162
250 50 30 158
250 50 48 158
250 50 72 164
250 50 73 164
250 50 74 164
250 50 75 164
250 50 76 164
250 50 87 164
250 50 89 158
250 50 97 158
250 50 98 157
250 50 99 158
250 51 00 158
250 51 05 156
250 51 13 156
250 51 21 156
250 51 39 156
250 51 47 156
250 51 62 156
250 51 70 156
250 51 88 156
250 51 96 158
250 52 04 156
250 52 12 156
250 52 20 156
250 52 38 156
250 52 46 156
250 52 53 156
250 52 61 156
250 52 78 156
250 52 79 156
250 52 87 158
250 52 95 158
250 53 03 158
250 53 11 158
250 53 29 158
250 53 37 158
250 53 45 158
250 54 02 157
250 54 10 157
250 54 27 157
250 54 28 157
250 54 35 157
250 54 36 157
250 54 50 157
250 54 51 157
250 54 69 157
250 54 77 157
250 54 78 157
250 54 85 157
250 54 93 157
250 54 94 157
250 55 01 157
250 55 19 157
250 55 27 157
250 55 35 157
250 55 43 157
250 55 50 157
250 55 67 157
250 55 68 157
250 55 76 157
250 55 84 157
250 55 92 157
250 56 00 158
250 56 18 158
250 56 26 158
250 56 33 158
250 56 34 158
250 56 42 158
250 56 58 158
250 56 59 158
250 56 67 158
250 56 75 158
250 56 83 158
250 56 91 157
250 56 94 157
250 57 09 159
250 57 17 159
250 57 25 159
250 57 33 159
Sökregister RSK-nr
RSK-nr Sid
250 57 41 159
250 57 58 159
250 57 66 159
250 57 74 159
250 57 82 159
250 57 90 159
250 58 08 161
250 58 09 161
250 58 16 161
250 58 23 161
250 58 24 161
250 58 32 161
250 58 40 161
250 58 51 161
250 58 54 161
250 58 57 161
250 58 65 161
250 58 66 161
250 58 67 161
250 59 07 162
250 59 19 162
250 59 23 162
250 59 31 162
250 59 49 162
250 59 56 162
250 59 64 162
250 59 72 162
250 59 80 162
250 59 98 162
250 60 04 162
250 60 05 162
250 60 06 162
250 60 12 162
250 60 20 162
250 60 32 162
250 60 35 162
250 60 38 162
250 60 40 162
250 60 43 162
250 60 46 162
250 60 53 162
250 60 61 163
250 60 79 163
250 60 95 163
250 61 03 163
250 61 11 163
250 61 29 163
250 61 37 163
250 61 45 163
RSK-nr Sid
250 61 52 163
250 61 54 163
250 61 57 163
250 61 60 163
250 61 77 163
250 61 78 163
250 61 79 163
250 62 93 158
250 63 43 157
250 63 92 167
250 63 93 167
250 63 96 152
250 63 97 152
250 63 98 256
250 66 73 157
250 66 81 157
250 66 99 157
250 69 05 161
250 69 07 161
250 69 13 161
250 69 21 161
250 69 39 161
250 69 47 161
250 69 54 161
250 69 58 161
250 69 60 161
250 69 62 161
250 70 10 163
250 70 28 163
250 70 36 163
250 70 44 163
250 70 51 163
250 70 69 163
250 70 77 163
250 70 85 163
250 70 93 163
250 71 01 163
250 71 19 163
250 71 42 159
250 71 43 159
250 71 44 159
250 71 45 149
250 71 46 149
250 71 47 149
250 71 48 149
250 71 49 149
250 71 50 159
250 71 51 149
250 71 52 147
RSK-nr Sid
250 71 53 147
250 71 54 147
250 71 55 147
250 71 56 147
250 71 57 147
250 71 58 147
250 71 59 147
250 71 60 147
250 71 61 147
250 71 62 147
250 71 63 147
250 71 64 147
250 71 65 147
250 71 66 147
250 71 67 147
250 71 69 147
250 71 70 147
250 71 71 147
250 71 72 147
250 71 73 147
250 71 74 147
250 71 75 147
250 71 77 147
250 71 78 151
250 71 79 151
250 71 80 151
250 71 81 151
250 71 82 151
250 71 83 151
250 71 85 148
250 71 86 148
250 71 87 148
250 71 88 148
250 71 89 147
250 71 90 148
250 71 91 148
250 71 93 147
250 71 94 147
250 71 95 147
250 71 96 147
250 71 97 147
250 71 98 147
250 71 99 147
250 72 01 149
250 72 02 149
250 72 03 149
250 72 04 149
250 72 05 149
250 72 06 149
RSK-nr Sid
250 72 07 150
250 72 08 150
250 72 09 150
250 72 10 150
250 72 11 150
250 72 12 150
250 72 13 150
250 72 14 150
250 72 15 151
250 72 16 151
250 72 17 151
250 72 18 151
250 72 19 151
250 72 20 151
250 72 21 151
250 72 22 151
250 72 23 147
250 72 24 147
250 72 27 148
250 72 28 148
250 72 29 148
250 72 30 148
250 72 31 148
250 72 32 148
250 72 33 148
250 72 34 148
250 72 35 148
250 72 36 148
250 72 37 148
250 72 38 148
250 72 39 148
250 72 40 148
250 72 41 148
250 72 43 148
250 72 44 148
250 72 45 148
250 72 46 148
250 72 47 148
250 72 48 148
250 72 49 148
250 72 50 148
250 72 51 148
250 72 52 148
250 72 53 148
250 72 54 148
250 72 55 148
250 72 56 148
250 72 57 148
250 72 58 148
RSK-nr Sid
250 72 59 151
250 72 60 151
250 72 61 151
250 72 83 159
250 72 91 159
250 72 92 159
250 72 93 159
250 72 94 159
250 73 42 149
250 73 43 149
250 73 44 149
250 73 45 149
250 73 46 149
250 73 47 149
250 73 48 149
250 73 49 149
250 73 50 149
250 73 51 149
250 73 52 149
250 73 53 149
250 73 54 149
250 73 55 149
250 73 56 149
250 73 83 150
250 73 84 150
250 73 85 150
250 73 86 150
250 73 88 150
250 73 89 150
250 73 91 150
250 73 92 150
250 73 93 150
250 73 94 150
250 73 95 150
250 73 96 150
250 73 97 150
250 73 98 150
250 73 99 150 250 74 00 150 250 74 01 150 250 74 02 150
74 03 150 250 74 05 150
74 09 150
93 55 166
93 56 166
93 57 166
93 58 166
93 59 166
250 93 75 166
250 93 76 166
250 94 04 238 250 94 05 237 250 94 06
250 94 50 170
250 94 51 166
250 94 52 166
250 94 53 238
250 94 55 197
250 94 56 197
250 94 57 197
250 94 58 197
Sökregister RSK-nr
RSK-nr Sid
250 94 59 197
250 94 60 197
250 94 62 197
250 94 63 197
250 94 64 197
250 94 65 197
250 94 66 197
250 94 67 197
250 94 68 197
250 94 69 197
250 94 70 197
250 94 71 238
250 94 72 238
250 94 73 238
250 94 74 238
250 94 75 238
250 94 76 238
250 94 77 238
250 94 78 238
250 94 79 238
250 94 80 238
250 94 81 238
250 94 82 238
250 94 83 238
250 94 84 238
250 94 85 238
250 94 98 165
250 94 99 165
250 95 00 165
250 95 01 165
250 95 02 165
250 95 03 239
250 95 04 163
250 95 05 163
250 95 06 163
250 95 07 163
250 95 08 165
250 95 11 239
250 95 12 197
250 95 13 197
250 95 14 197
250 95 15 197
250 95 16 197
250 95 17 197
250 95 18 197
250 95 19 197
250 95 20 197
250 95 21 197
250 95 22 197
RSK-nr Sid
250 95 23 197
250 95 24 197
250 95 25 197
250 95 26 197
250 95 27 197
250 95 28 197
250 95 29 239
250 95 30 197
250 95 31 197
250 95 32 197
250 95 33 197
250 95 34 197
250 95 35 197
250 95 36 197
250 95 37 239
250 95 38 197
250 95 39 197
250 95 40 197
250 95 41 197
250 95 42 197
250 95 43 197
250 95 44 197
250 95 45 239
250 95 46 197
250 95 47 197
250 95 48 197
250 95 49 197
250 95 50 197
250 95 51 197
250 95 52 239
250 95 60 239
250 95 61 198
250 95 61 198
250 95 62 198
250 95 62 198
250 95 63 198
250 95 63 198
250 95 64 198
250 95 64 198
250 95 65 198
250 95 65 198
250 95 66 198
250 95 67 198
250 95 68 198
250 95 78 239
250 95 86 239
250 95 94 239
250 96 02 239
250 96 10 239
RSK-nr Sid
250 96 39 237
250 96 40 237
250 96 41 237
250 96 42 237
250 96 43 237
250 96 44 237
250 96 45 237
250 96 46 237
250 96 47 237
250 96 48 237
250 96 51 237
250 96 52 237
250 96 53 237
250 96 54 237
250 96 55 237
250 96 56 237
250 96 57 237
250 96 58 237
250 96 66 166
250 96 67 166
250 96 68 166
250 96 69 237
250 96 73 237
250 96 74 237
250 96 77 237
250 96 85 237
250 99 43 165
250 99 44 165
250 99 45 165
250 99 46 165
250 99 47 165
250 99 48 165
251 02 80 158
251 02 81 158
251 02 82 158
251 02 83 158
251 02 84 158
251 02 85 158
251 02 86 158
251 02 87 158
251 02 88 158
251 02 89 158
251 02 90 158
251 02 91 158
251 02 92 160
251 02 93 160
251 02 94 160
251 02 95 160
251 02 96 160
RSK-nr Sid
251 02 97 160
251 02 98 160
251 02 99 160
251 03 01 160
251 03 00 160
251 03 02 160
251 03 03 160
252 65 57 245
252 65 58 245
252 65 59 245
252 65 60 245
252 65 61 245
252 65 62 245
252 66 23 246
252 66 24 246
252 66 25 246
252 66 26 247
252 66 27 247
253 19 53 246
253 55 93 250
253 55 94 250
253 55 95 250
255 58 34 241
255 59 78 246
255 59 79 246
255 59 80 246
255 59 81 246
255 59 82 246
255 59 83 246
255 59 84 246
255 59 85 246
281 83 43 272
281 83 44 272
281 83 45 272
281 83 46 272
281 83 47 272
281 83 48 272
281 83 49 272
281 83 50 272
281 83 51 272
281 83 52 272
281 83 53 272
281 83 54 272
281 83 55 272
281 83 56 272
281 83 57 272
281 83 58 272
281 83 59 272
281 83 60 272
RSK-nr Sid
281 83 61 272
281 83 62 272
281 83 64 272
281 83 65 272
281 84 42 272
281 84 43 272
281 84 44 272
281 84 45 272
281 84 46 272
281 84 47 272
281 84 48 272
281 84 49 272
281 84 50 272
281 84 51 272
281 84 52 272
281 84 53 272
281 84 54 272
281 84 55 272
281 84 56 272
291 95 02 139
291 95 03 139
291 95 04 139
291 95 05 139
291 95 06 139
291 95 07 139
291 95 08 139
291 95 09 139
291 95 10 139
291 95 11 139
291 95 11 139
291 95 12 139
291 95 13 139
291 95 14 139
291 95 15 139
291 95 17 139
291 95 18 140
291 95 19 140
291 95 20 140
95 21 140
95 22 140
95 23 140
95 24 140
95 31 141
95 32 141
95 34 142
95 35 141
95 37 141
95 52 142
310 85 71 181 310 85 72 181
310 85 73 181
Sökregister RSK-nr
RSK-nr Sid
310 85 76 181
310 85 77 181
310 85 78 181
310 85 79 181
310 85 80 181
310 85 81 181
310 85 82 181
310 85 83 181
310 85 84 181
310 85 85 181
310 85 86 181
310 85 87 181
310 85 88 181
310 85 89 181
310 85 90 181
310 85 91 181
310 85 92 181
310 85 93 181
310 85 94 181
310 85 95 182
310 85 96 182
310 85 97 182
310 85 98 182
310 85 99 182
310 86 00 182
310 86 01 182
310 86 02 182
310 86 03 182
310 86 04 182
310 86 05 182
310 86 06 182
310 86 07 182
310 86 09 182
310 86 11 182
310 86 12 182
310 86 16 182
310 86 17 182
310 86 18 182
310 86 19 182
310 86 20 182
310 86 21 182
310 86 22 182
310 86 24 182
310 86 25 182
310 86 26 182
310 86 27 182
310 86 29 182
310 86 30 182
310 86 31 182
RSK-nr Sid
310 86 32 182
310 86 35 182
310 86 37 182
310 86 38 182
310 86 40 182
310 86 41 182
310 86 42 182
310 86 43 182
310 86 45 182
310 86 46 182
310 86 47 182
310 86 52 182
310 86 54 183
310 86 55 183
310 86 57 183
310 86 58 183
310 86 59 183
310 86 60 183
310 86 61 183
310 86 62 183
310 86 63 183
310 86 64 183
310 86 65 183
310 86 66 183
310 86 67 183
310 86 68 183
310 86 71 183
310 86 72 183
310 86 73 183
310 86 74 183
310 86 76 183
310 86 78 183
310 86 80 183
310 86 81 183
310 86 83 183
310 86 84 183
310 86 87 183
310 86 88 181
310 86 90 181
310 86 94 183
310 86 95 183
310 86 98 182
310 87 13 183
310 87 14 183
310 87 15 183
311 51 69 201
348 17 19 51
348 17 20 51
348 17 21 51
RSK-nr Sid
17 22 51
17 23 51
17 24 51
17 25 51
17 26 51
17 27 51
17 28 51
17 29 51
17 30 51
17 31 51
17 32 29
57 98 201
57 99 201
58 00 201 399 58 01 201 399 58 02 201
420 83 15 199
420 83 16 199
420 83 17 199
420 83 18 199
420 83 19 199
420 83 20 199
420 83 29 199
420 83 30 199
420 83 31 199
420 83 32 199
420 83 33 199
420 83 34 199
420 83 40 201
420 83 41 199
83 42 199
83 43 199
83 44 199
83 45 199
83 46 199
83 47 199
83 48 199
10 09 201
10 17 201
10 25 201
10 85 201
12 88 201 421 15 04 201 421 19 93 202 421 19 94 202 421 19 95 202
45 04 14
45 12 14
45 13 14
RSK-nr Sid 425 45 20 14
45 23 14
45 24 14
45 26 14
45 27 14
45 28 14
45 29 14
45 31 15
45 38 14
45 46 14
45 53 14
45 56 15
45 78 12
46 02 12
46 03 12
46 04 12
46 11 12
46 29 12
46 30 12 425 46 32 15
425 46 33 15
425 46 34 15
425 46 35 15
425 46 36 15
425 46 37 15
425 46 38 15
425 46 59 12
425 46 61 12
425 46 62 12
425 46 63 12
425 46 64 12
425 46 65 12
425 46 66 12
425 46 67 12
425 46 68 12
425 46 69 12
47 66 9
47 67 9
47 68 9 425 47 70 9
47 71 9
47 72 9
47 73 9
47 74 9
47 75 9
47 76 9
47 78 7
47 79 7
47 80 7
47 81 7
47 82 7
47 83 7
47 84 7
47 86 8
47 87 8
Sökregister RSK-nr
RSK-nr Sid
425 57 94 292
425 57 95 292
425 57 96 292
426 19 00 42
426 19 01 43
426 19 02 43
426 19 03 43
426 19 04 43
426 19 05 40
426 19 06 42
426 19 09 40
426 19 13 40
426 19 21 40
426 19 25 40
426 19 26 40
426 19 39 40
426 19 40 23
426 19 41 19
426 19 42 43
426 19 43 18
426 19 44 18
426 19 45 18
426 19 46 18
426 19 47 18
426 19 48 18
426 19 49 19
426 19 50 23
426 19 53 19
426 19 56 18
426 19 58 23
426 19 59 23
426 19 60 23
426 19 61 23
426 19 63 23
426 19 65 23
426 19 66 23
426 19 67 28
426 19 69 19
426 19 70 43
426 19 82 40
426 19 83 40
426 19 84 40
426 19 85 40
426 19 86 40
426 19 87 40
426 19 88 40
426 19 89 18
426 19 90 18
426 19 91 18
RSK-nr Sid
426 19 92 18
426 19 93 18
426 19 94 18
426 20 01 20
426 20 02 43
426 20 03 20
426 20 04 20
426 20 05 20
426 20 06 20
426 20 07 20
426 20 08 20
426 20 09 20
426 20 11 18
426 20 12 18
426 20 13 43
426 20 14 43
426 20 15 43
426 20 16 43
426 20 17 43
426 20 18 43
426 20 19 43
426 20 20 43
426 20 21 43
426 20 52 20
426 20 53 20
426 65 38 46
427 05 81 26
427 05 82 26
427 05 83 26
427 05 84 26
427 05 85 26
427 05 86 26
427 05 88 46
427 07 82 29
427 07 84 29
427 07 87 23
427 07 87 28
427 07 88 28
427 07 89 28
428 76 30 208
428 76 31 208
428 77 19 209
428 77 21 209
428 77 22 209
428 77 23 209
428 77 24 209
428 77 25 209
428 77 26 209
428 77 27 209
RSK-nr Sid
428 77 28 209
428 77 29 209 428 77 30 209 428 77 45 210 429 49 40 210
49 82 209 429 64 82 7
64 83 7 429 64 84 7 429 64 85 7 429 64 86 7 429 64 87 7 429 64 90 12 429 64 91 12
432 85 03 30
432 85 04 30 432 85 05 30 432 85 06 30 432 85 07 30
50 01 91
50 19 110 701 50 21 86
50 22 91
50 23 92
50 24 92 701 50 27 110 701 50 35 110 701 50 50 110 701 51 18 110
701 51 19 110 701 51 26 110
701 51 34
62 67 81
62 80 81
54 31 93
54 32 93
RSK-nr Sid
RSK-nr Sid
703 06 72 113
703 06 74 114
703 06 75 114
703 06 76 114
703 07 10 96
703 07 29 96
703 07 29 101
703 09 18 96
703 09 33 104
703 09 35 96
703 09 35 104
54 43 73
703 11 24 88
703 11 25 88
703 11 26 88
703 11 27 87
703 11 28 87
703 11 29 87
703 19 18 63
703 19 22 61
703 19 42 114
54 72 74
55 45 65
55 45 65
55 46 62
55 48 73
55 48 74
55 64 63
55 65 63 702 55 66 63 702 55 67 63 702 55 68 65 702 55 69 65
55 70 74
55 71 74 702 56 49 64 702 56 50 64 702 56 51 64
56 52 64 702 56 53 68 702 56 86 73 702 56 91 95 703 06 11 96
703 06 20 96
703 06 66 113
703 06 67 113
703 06 68 113
703 06 69 113
703 06 70 113
703 06 71 113
703 19 43 114
703 19 44 114
703 19 45 114
703 21 09 96
703 21 10 97
703 21 52 97
703 21 54 96
703 21 70 96
703 21 70 97
703 32 45 114
703 32 46 114
703 32 47 114
703 32 48 114
703 40 45 116
703 40 46 116
703 40 47 116
703 40 48 116
703 42 19 108
703 42 21 90
703 42 26 108
703 42 37 200
703 42 38 200
703 42 40 200
703 42 42 114
703 42 60 114
703 42 61 114
703 42 62 114
703 56 10 97
703 56 29 97
59 00
703 59 01 79 703 59 40 78 703 69 16 101
70 39 101 703 70 47 101 703 71 16 75 703 72 00 101 703 72 01 98 703 72 02 98
703 72 12 106
703 72 19 102
703 72 36 101
703 72 45 101
703 72 68 98
703 72 81 98
703 72 82 98
703 72 83 100
703 72 84 105
YD SökregisterVattenledningsrör RSK-nr
RSK-nr Sid
703 72 85 100
703 72 86 105
703 72 88 104
703 72 91 107
703 72 92 104
703 72 94 104
703 72 95 106
703 72 97 105
703 72 99 100
703 73 03 103
703 73 04 103
703 73 16 108
703 73 17 108
703 73 26 104
703 73 30 105
703 73 31 105
703 74 79 98
703 74 82 98
703 74 83 98
703 75 16 101
703 75 18 90
703 75 26 90
703 76 17 90
703 77 16 90
703 77 24 90
703 77 24 90
703 78 57 91
703 78 57 112
703 78 62 89
703 78 62 112
703 79 25 24
703 79 26 24
703 79 26 45
703 79 27 24
703 79 30 24
703 79 30 45
703 79 34 24
703 79 35 24
703 79 35 45
703 79 36 24
703 79 37 26
703 79 38 26
703 79 38 46
703 79 39 25
703 79 41 46
703 79 42 46
703 79 43 44
703 79 44 44
703 79 45 44
RSK-nr Sid
703 79 46 44
703 79 47 46
703 79 48 24
703 79 49 24
703 79 49 45
703 79 50 24
703 79 54 24
703 79 54 45
703 80 11 102
703 80 16 102
703 81 10 76
703 81 17 77
703 81 18 76
703 81 19 77
703 81 20 77
703 81 20 102
703 82 01 67
703 82 19 71
703 82 28 71
703 82 32 71
703 83 15 91
703 83 15 92
703 83 16 91
703 83 17 91
703 83 18 91
703 83 19 91
703 83 20 91
703 83 34 91
703 83 35 92
703 83 36 92
703 83 59 91
703 83 67 91
703 83 68 92
703 83 69 92
703 83 70 92
703 83 72 92
703 83 73 92
703 83 74 92
703 83 82 91
703 83 82 117
703 83 83 91
703 83 84 92
703 83 84 117
703 92 68 100
705 10 16 117
705 10 17 117
705 10 18 117
705 10 19 117
705 10 20 117
RSK-nr Sid
705 94 72 70
705 94 89 81
705 95 01 61
705 95 03 61
705 95 09 82
705 95 09 83
705 95 18 82
705 95 22 82
705 95 44 83
705 95 75 71
705 95 81 80
705 95 82 80
705 95 83 80
705 95 87 68
705 95 88 86
705 95 90 80
705 95 99 61
705 96 00 62
705 96 01 82
705 96 02 82
705 96 04 116
705 96 05 85
705 96 07 85
705 96 11 67
705 96 14 82
705 96 17 82
705 96 18 116
705 96 25 85
705 96 31 62
705 96 32 62
705 96 44 200
705 96 45 66
705 96 52 66
705 96 53 83
705 96 59 70
705 96 61 82
705 96 62 82
705 96 72 72
705 96 73 72
705 96 74 72
705 96 76 85
705 96 77 83
705 96 78 66
705 96 79 83
705 96 81 84
705 96 82 84
705 96 91 67
705 96 95 66
705 96 97 82
RSK-nr Sid
705 97 04 67
705 97 07 64
705 97 14 69
705 97 16 61
705 97 40 200
705 97 41 61
705 97 51 82
705 97 55 94
705 97 56 94
705 97 57 94
705 97 66 61
705 97 67 82
705 97 68 61
705 97 76 86
705 97 80 63
705 97 89 84
705 97 91 84
705 97 96 69
705 97 98 94
705 98 00 62
705 98 00 69
705 98 06 63
705 98 07 69
705 98 09 65
705 98 10 73
705 98 11 73
705 98 35 82
705 98 41 76
705 98 44 61
705 98 45 62
705 98 46 65
705 98 47 73
705 98 50 85
705 98 77 83
705 98 92 83
705 99 00 70
705 99 26 70
705 99 27 71
705 99 28 70
705 99 29 77
705 99 30 77
705 99 31 69
705 99 32 69
705 99 59 117
705 99 60 98
705 99 67 112
705 99 69 117
705 99 70 117
705 99 75 112
RSK-nr Sid
705 99 84 111
705 99 90 111
705 99 92 61
705 99 98 68
853 18 81 290
YD Vattenledningsrör
25 mm Polyetenrör
26,9 mm Stålrör DN 20
27 mm Polyetenrör
28 mm Polyetenrör
32 mm Polyetenrör
33,7 mm Stålrör DN 25
34 mm Polyetenrör
40 mm Polyetenrör
40 mm PVC-Rör
42 mm Polyetenrör
42,4 mm Stålrör DN 32
48,3 mm Stålrör DN 40
49 mm Polyetenrör
50 mm Polyetenrör
54 mm Polyetenrör
55 mm Gråjärn DN 40
57 mm Stålrör
57 mm Gråjärn DN 40
60 mm Polyetenrör
60,3 mm Stålrör DN 50
62 mm Stålrör
63 mm Polyetenrör
63 mm PVC-Rör
66 mm Segjärn DN 50
68 mm Gråjärn DN 50
70 mm Polyetenrör
75 mm PVC-Rör
75 mm Polyetenrör
76,1 mm Stålrör DN 65
77 mm Gråjärn DN 65
80 mm Polyetenrör
82 mm AC-Rör
82 mm Segjärn DN 65
88,9 mm Stålrör DN 80
90 mm Polyetenrör
90 mm PVC-Rör
95 mm Gråjärn DN 80
98 mm Segjärn DN 80
101 mm AC-Rör
101 mm Stålrör
108 mm Stålrör
110 mm PVC-Rör
110 mm Polyetenrör
114,3 mm Stålrör DN 100
118 mm Segjärn DN 100
122 mm Gråjärn DN 100
122 mm AC-Rör/svarvad
123-127 mm AC-Rör
125 mm Polyetenrör
126 mm AC-Rör/svarvad PN 12,5
132 mm AC-Rör/svarvad PN 15
133 mm Stålrör
139,7 mm Stålrör DN 125
140 mm Stålrör
140 mm Polyetenrör
140 mm PVC-Rör
144 mm Segjärn DN 125
148 mm Gråjärn DN 125
159 mm Stålrör DN 150
160 mm PVC-Rör
160 mm Polyetenrör
165,1 mm Stålrör DN 150
168,3 mm Stålrör DN150
170 mm Segjärn DN 150
172 mm AC-Rör PN 7,5/svarvad
174 mm Gråjärn DN 150
178 mm AC-Rör PN 10/svarvad
180 mm Polyetenrör
180-186 mm AC-Rör
184 mm AC-Rör PN 12,5/svarvad
186 mm Stålrör DN 175
190 mm AC-Rör PN 15/svarvad
193,7 mm Stålrör DN 175
196 mm Gråjärn DN 175
200 mm Polyetenrör
200 mm PVC-Rör
202 mm Gråjärn DN 175
211 mm Stålrör DN 200
215 mm Polyetenrör
216 mm Stålrör DN 200
219,1 mm Stålrör DN 200
222 mm Segjärn DN 200
225 mm PVC-Rör
225 mm Polyetenrör
226 mm AC-Rör PN 7,5/svarvad
228 mm Gråjärn DN 200
236 mm AC-Rör PN 10/svarvad
238-243 mm AC-Rör
244 mm AC-Rör PN 12,5/svarvad
248 mm Gråjärn DN 225
250 mm PVC-Rör
250 mm Polyetenrör
254 mm AC-Rör PN 15/svarvad
257 mm Gråjärn DN 225
266 mm Polyetenrör
267 mm Stålrör DN 250
273 mm Stålrör DN 250
274 mm Segjärn DN 250
280 mm PVC-Rör
280 mm Polyetenrör
280 mm AC-Rör PN 7,5/svarvad
282-284 mm AC-Rör
284 mm Gråjärn DN 250
288 mm AC-Rör PN 10/svarvad
296 mm AC-Rör PN 12,5/svarvad
306 mm AC-Rör PN 15/svarvad
310 mm Gråjärn DN 300
315 mm PVC-Rör
315 mm Polyetenrör
318 mm Stålrör DN 300
323,9 mm Stålrör DN 300
326 mm Segjärn DN 300
334 mm AC-Rör PN 7,5/svarvad
336-337 mm AC-Rör
337 mm Gråjärn DN 300
337-342 mm AC-Rör
346 mm AC-Rör PN 10/svarvad
348-354 mm AC-Rör
355 mm Polyetenrör
355,6 mm Stålrör DN 350
356 mm AC-Rör PN 12,5/svarvad
364 mm Gråjärn DN 350
365 mm Stålrör DN 350
368 mm AC-Rör PN 15/svarvad
370 mm Polyetenrör
378 mm Segjärn DN 350 mm
388 mm AC-Rör PN 7,5/svarvad
390-396 mm AC-Rör
391 mm Gråjärn DN 350
400 mm PVC-Rör
400 mm Polyetenrör
404 mm AC-Rör PN 10/svarvad
406,4 mm Stålrör DN 400
406-412 mm AC-Rör
414 mm AC-Rör PN 12,5/svarvad
416 mm Stålrör DN 400
419,1 mm Stålrör DN 400
420 mm Polyetenrör
428 mm AC-Rör PN 15/svarvad
429 mm Segjärn DN 400
442 mm AC-Rör PN 7,5/svarvad
444 mm Gråjärn DN 400
444-450 mm AC-Rör
450 mm PVC-Rör
450 mm Polyetenrör
460 mm AC-Rör PN 10/svarvad
462-468 mm AC-Rör
471 mm Gråjärn DN 450
474 mm AC-Rör PN 12,5/svarvad
475 mm Polyetenrör
479 mm Segjärn DN 450
490 mm AC-Rör PN 15/svarvad
496 mm AC-Rör PN 10/svarvad
498-504 mm AC-Rör
499 mm Gråjärn DN 500
500 mm PVC-Rör
500 mm Polyetenrör
506 mm Stålrör DN 500
508 mm Stålrör DN 500
516 mm AC-Rör PN 10/svarvad
518-524 mm AC-Rör
525 mm Gråjärn DN 500
532 mm Segjärn DN 500
548 mm Gråjärn DN 500
550 mm AC-Rör PN 7,5/svarvad
552 mm Gråjärn DN 500
552-558 mm AC-Rör
560 mm PVC-Rör
560 mm Polyetenrör
570 mm AC-Rör PN 10/svarvad
572-580 mm AC-Rör
580 mm Gråjärn DN 500
606 mm Stålrör DN 600
607 mm Gråjärn DN 600
609,6 mm Stålrör DN 600
630 mm PVC-Rör
630 mm Polyetenrör
632 mm Gråjärn DN 600
635 mm Segjärn DN 600
658 mm Gråjärn DN 600
660 mm AC Rör PN 7,5/svarvad
684 mm AC-Rör PN 10/svarvad
Anteckningar
