The Beck Group | Proposed Product Solutions

Page 1

D1 High Option

Quantity: 74 @ One Alliance, 74 @ Monarch

• Typical Desk - Haworth Upside+ 90degree L Table, 70”x70” 23/29”d

• Task Chair - Haworth Fern with Knit Back, Grade D Fabric Seat, 4D Arm, Lumbar, Pneumatic with Back Stop, Adjustable Seat, Aluminum Base and Hard Caster

• Task Light - Humanscale Nova

• Dual Monitor Arm - Humanscale M/Flex with M2.1

• Power - Byrne Trippel Monument Mount with 2 Power, 1 USB A + C, Qi Wireless Charging; 108" Cord

• Storage - Haworth BeHold Be Mobile Box/File Pedestal 18”d x 15”w

• Panel - Haworth Compose 6’x 6’ station, 42”h Spine Panels with Base Power Infeeds, 2+2 power, 1 Triplex Receptacle per Station, 42”h Gallery Panels

• Other - N/A

instruments of turnerboone’s service
the property of turnerboone, llc We require that this information not be reproduced, distributed or utilized for any purpose beyond the evaluation of this pro posal without authorization from turnerboone, llc
The specifications and drawings contained herein are provided at your request but are
and remain
The Beck Group | RFP

D1 Low Option

Quantity: 74 @ One Alliance, 74 @ Monarch

• Typical Desk - Haworth Upside Height Adjustable Table, 70”w x 29”d

• Task Chair - 9 to 5 Seating Neo Task with Mesh Back and Grade D Fabric Seat, 6 Way Height Adjustable Arm, Seat Slider, Nylon Base and Hard Casters

• Task Light - HAT Collective Senko

• Dual Monitor Arm - HAT Collective E2 Dual

• Power - Byrne Miki Edge Mount with 2 Power and 1 USB A + C, 108" Cord

• Storage - Haworth BeHold Be Mobile

Credenza Unit 18”d x 48”w

• Panel - Haworth Compose 6’x 6’ station, 42”h Spine Panels with Base Power Infeeds, 2+2 power, 1 Triplex Receptacle per Station, 42”h Gallery Panels

• Other - N/A

of turnerboone’s service
the property of turnerboone, llc We require that this information not be reproduced, distributed or utilized for any purpose beyond the evaluation of this pro posal without authorization from turnerboone, llc
The specifications and drawings contained herein are provided at your request but are instruments
and remain
The Beck Group | RFP

D2 High Option

Quantity: 1 @ One Alliance, 1 @ Monarch

• Task Chair - Haworth Fern with Knit Back, Grade D Fabric Seat, 4D Arm, Lumbar, Pneumatic with Back Stop, Adjustable Seat, Aluminum Base and Hard Caster

• Desk - Halcon Helm 36x72 Ellipse Height Adjustable Table with Silestone Top

• Power - Byrne Trippel Monument Mount with 2 Power, 1 USB A + C, Qi Wireless Charging; 108" Cord

• Storage - Haworth Masters Veneer Low Credenza, Wardrobe, and Open Shelf

• Task Lighting - Humanscale Nova

• Pin Board - Haworth Masters

• Guest Chair - Encore Melina Guest, Wood Swivel Base, Grade 4 Fabric

• Other - Dual Monitor Arm - Humanscale M/Flex with M2.1

The specifications
drawings contained herein
request
instruments of turnerboone’s service
remain the property of turnerboone, llc We require that this information not be reproduced, distributed or utilized for any purpose beyond the evaluation of this pro posal without authorization from turnerboone, llc
and
are provided at your
but are
and
The Beck Group | RFP

D2 Low Option

Quantity: 1 @ One Alliance, 1 @ Monarch

• Task Chair - 9 to 5 Seating Neo Task with Mesh Back and Grade D Fabric Seat, 6 Way

Height Adjustable Arm, Seat Slider, Nylon Base and Hard Casters

• Desk - JSI Flux 32x60 Laminate Rectangular

Height Adjustable Table Desk

• Power - Byrne Miki Edge Mount with 2 Power and 1 USB A + C, 108" Cord

• Storage - JSI Vision Laminate Low Credenza, Wardrobe, and Open Shelf

• Task Lighting - HAT Collective Senko

• Pin Board - JSI Vision

• Guest Chair - Rouillard Ely 4 -Star Base Chair, Glides, Grade 4 Fabric

• Other - Dual Monitor Arm - HAT Collective E2

Dual

The
of turnerboone’s service
property of turnerboone, llc We require that this information not be reproduced, distributed or utilized for any purpose beyond the evaluation of this pro posal without authorization from turnerboone, llc
specifications and drawings contained herein are provided at your request but are instruments
and remain the
The Beck Group | RFP

M1 High Option

Quantity: 2 @ One Alliance

• Table - JSI Native View Table, 36 -48”d x 72”w, Open Loop Base

• Power - JSI Oasis Mini Power Unit with Four Power Receptacles, One Dual USB, (2) Data Openings HDMI, 108” Cord

• Chair - Encore Melina with Single Upholstery Grade 4 and Standard Metal Base

• Other - N/A

The
We
that this information not be reproduced, distributed or utilized for any purpose beyond the evaluation of this pro turnerboone, llc
specifications and drawings contained herein are provided at your request but are instruments of llc
require
The Beck Group | RFP

M1 Low Option

Quantity: 2 @ One Alliance

• Table - JSI Vision D Table, 36”d x 72”w

• Power - JSI Oasis Mini Power Unit with Four Power Receptacles, One Dual USB, (2) Data Openings HDMI, 108” Cord

• Chair - Rouillard Ely Conference Chair, Single Upholstery, Grade 4

• Other - N/A

The Beck Group | RFP

The specifications and drawings contained herein are provided at your request but are instruments of

information
be
distributed or
for any purpose beyond the evaluation of this pro posal without authorization from
llc
turnerboone’s service and remain the property of turnerboone, llc We require that this
not
reproduced,
utilized
turnerboone,

M2 High Option

Quantity: 3 @ One Alliance, 5 @ Monarch

• Table - JSI Native Rectangular Table, 48”d x 120”w, Open Loop Base

• Power - JSI Oasis Mini Power Unit with Four Power Receptacles, One Dual USB, (2) Data Openings HDMI, 108” Cord

• Chair - Encore Melina with Single Upholstery Grade 4 and Standard Metal Base

• Other - N/A

turnerboone,
this information
for any purpose beyond the evaluation of this pro posal without authorization from
llc
The specifications and drawings contained herein are provided at your request but are instruments of service and remain the property of
llc We require that
not be reproduced, distributed or utilized
turnerboone,
The Beck Group | RFP

M2 Low Option

Quantity: 3 @ One Alliance, 5 @ Monarch

• Table 120”w, Open Loop Base

• Power Power Receptacles, One Dual USB, (2) Data Openings HDMI, 108” Cord

• Chair Upholstery, Grade 4

• Other

the evaluation of this pro posal without authorization from
The specifications and drawings contained herein are provided at your request but are instruments of service and remain the property of turnerboone, llc We require that this information not be reproduced, distributed or utilized for any purpose beyond
turnerboone, llc The Beck Group | RFP

M3 High Option

Quantity: 1 @ One Alliance, 1 @ Monarch

• Table - JSI Native Rectangular Table, 48”d x 168”w, Open Loop Base

• Power - Two JSI Oasis Mini Power Unit with Four Power Receptacles, One Dual USB, HDMI, 108” Cord

• Chair - Encore Melina with Single Upholstery Grade 4 and Standard Metal Base

• Other - N/A

information
beyond the evaluation of this pro posal without authorization from
llc
The specifications and drawings contained herein are provided at your request but are instruments of service and remain the property of turnerboone, llc We require that this
not be reproduced, distributed or utilized for any purpose
turnerboone,
The Beck Group | RFP

M3 Low Option

Quantity: 1 @ One Alliance, 1 @ Monarch

• Table - JSI Native Rectangular Table, 48”d x 168”w, Open Loop Base

• Power - Two JSI Oasis Mini Power Unit with Four Power Receptacles, One Dual USB, HDMI, 108” Cord

• Chair - Rouillard Ely Conference Chair, Single Upholstery, Grade 4

• Other - N/A

posal
from
The specifications and drawings contained herein are provided at your request but are instruments of service and remain the property of turnerboone, llc We require that this information not be reproduced, distributed or utilized for any purpose beyond the evaluation of this pro
without authorization
turnerboone, llc The Beck Group | RFP

M4 One Alliance High Option

Quantity: 1 @ One Alliance

• Table - Nucraft 48" x 354“ Custom Ascari Table with Stone Top, Painted Bases and (12) Power Drawers

• Power - Included in Table

• Chair - Andreu World Flex Executive High Back with Polished Aluminum Base/Frame, and Parallel Stitching in Grade 4 Fabric

• Bench - Bernhardt Elevation Three Seat Oak with Black Fin Base and Grade 4 Fabric

• Other - N/A

The specifications and drawings contained herein are provided at your request but are instruments of turnerboone’s service and remain the property of turnerboone, llc We require that this information not be reproduced, distributed or utilized for any purpose beyond the evaluation of this pro posal without authorization from turnerboone, llc
The Beck Group | RFP

M4 One Alliance Low Option

Quantity: 1 @ One Alliance

• Table - Nucraft 48" x 354“ Custom Two4Six Table with Glass Top and Painted Bases

• Power - Nucraft Perimeter Rail Power

• Chair - Rouillard Classic High Back with Polished Aluminum Arm and Base, Grade 4 Fabric

• Bench - JSI Oxley Double Seat Bench - 20.75" x 78.5" x 17" - Grade D Fabric

• Other - N/A

The specifications
drawings contained herein are provided at your request but are instruments of llc We require that this information not be reproduced, distributed or utilized for any purpose beyond the evaluation of this pro posal without authorization from turnerboone, llc The Beck Group | RFP
and

M4 Monarch High Option

Quantity: 1 @ Monarch

• Table - Nucraft 48" x 294“ Custom Ascari Table with Stone Top, Painted Bases and (12) Power Drawers

• Power - Included in Table

• Chair - Andreu World Flex Executive High Back with Polished Aluminum Base/Frame, and Parallel Stitching in Grade 4 Fabric

• Other - N/A

The Beck Group | RFP

specifications
drawings
herein
at
request
instruments of turnerboone’s service
the
of turnerboone, llc We require that this information not be reproduced, distributed or utilized for any purpose beyond the evaluation of this pro posal without authorization from turnerboone, llc
The
and
contained
are provided
your
but are
and remain
property

M4 Monarch Low Option

Quantity: 1 @ Monarch

• Table - Nucraft 48" x 294“ Custom Two4Six Table with Glass Top and Painted Bases

• Power - Nucraft Perimeter Rail Power

• Chair - Rouillard Classic High Back with Polished Aluminum Arm and Base, Grade 4 Fabric

• Bench - JSI Oxley Double Seat Bench - 20.75" x 78.5" x 17" - Grade D Fabric

• Other - N/A

this information not be
any purpose beyond the evaluation of this pro posal without authorization from turnerboone, llc
RFP
The specifications and drawings contained herein are provided at your request but are instruments of service and remain the property of turnerboone, llc We require that
reproduced, distributed or utilized for
The Beck Group |

M5 High Option

Quantity: 2 @ Monarch

• Table - Arcadia WorkSmith Table (36"W x 120"L x 42"H) - Veneer or Laminate NonPlanked Top with Exposed Edge and Metal Legs

• Power - Arcadia WorkSmith Power Matrix 2 with (2) Power Outlets and (1) USB -A + C, 120" Electrical Cord

• Chair - Grand Rapids Chair Alfred Barstool Grade 40 Fabric

• Mobile Dry Erase - Arcadia Worksmith Vertical Easel (53"W x 25.5"D x 80"H) Whiteboard both Sides

• Option w Av Integration in Table - Boss Portal Mobile Media Unit (51.25"W x 28"D x 67"H) with Whiteboard and Grade 4 FabricSupports 40" - 48" Monitors, Optional Shelf Available

• Other - Arcadia WorkSmith Vertical Wire Manager

turnerboone’s service
of turnerboone,
that this information not be reproduced, distributed or utilized for any purpose beyond the evaluation of this pro posal without authorization from turnerboone, llc
The specifications and drawings contained herein are provided at your request but are instruments of
and remain the property
llc We require
The Beck Group | RFP

M5 Low Option

Quantity: 2 @ Monarch

• Table - Haworth Cultivate Table, 36"W x 120"L x 42"H

• Power - Byrne Dean In -Surface Power - 3 Simplex, 120" Electrical Cord

• Chair - Grand Rapids Chair Alfred Barstool Grade 40 Fabric

• Mobile Dry Erase - Haworth Planes Easel 45"W x 28"D x 75"H

• Option w Av Integration in Table - Boss

Portal Mobile Media Unit (51.25"W x 28"D x 67"H) with Whiteboard and Grade 4 FabricSupports 40" - 48" Monitors, Optional Shelf Available

• Other - N/A

The Beck Group | RFP

of turnerboone’s service
turnerboone,
We require that this information not be reproduced, distributed or utilized for any purpose beyond the evaluation of this pro posal without authorization from turnerboone, llc
The specifications and drawings contained herein are provided at your request but are instruments
and remain the property of
llc

P1 High Option

Quantity: 5 @ One Alliance, 8 @ Monarch

• Desk - Haworth Upside Height Adjustable Table, 58”w x 23”d

• Power - Byrne Trippel Monument Mount with 2 Power, 1 USB A + C, Qi Wireless Charging; 108" Cord

ALT: w/o Height Adj - Haworth Jive Fixed Height Table, 60”w x 24”d

• Chair - Encore Melina Mid -Back Conference with Single Upholstery Grade 4 and Standard Metal Base Grade 40 Fabric

Alternate Table

The specifications and drawings contained herein are provided at your request but are instruments of turnerboone’s service and remain the property of turnerboone, llc We require that this information not be reproduced, distributed or utilized for any purpose beyond the evaluation of this pro posal without authorization from turnerboone, llc
The Beck Group | RFP

P1 Low Option

Quantity: 5 @ One Alliance, 8 @ Monarch

• Desk - Haworth Upside Height Adjustable Table, 58”w x 23”d

• Power - Byrne Miki Edge Mount with 2 Power and 1 USB A + C, 108" Cord

• ALT: w/o Height Adj - Haworth Jive Fixed Height Table, 60”w x 24”d

• Chair - Rouillard Ely Conference Chair, Single Upholstery, Grade 4

Alternate Table

The specifications and drawings contained herein are provided at your request but are instruments of turnerboone’s service and remain the property of turnerboone, llc We require that this information not be reproduced, distributed or utilized for any purpose beyond the evaluation of this pro posal without authorization from turnerboone, llc
The Beck Group | RFP

P2 High Option

Quantity: 1 @ One Alliance, 1 @ Monarch

• Laptop Table - Davis Lift Adjustable Height with Laminate Top and Powder Coat Base

• ALT: w/o Height Adj - Haworth Pip Table, 26"H with Painted Grade A MDF Painted Top and Powdercoat Metal Base

• Chair - Davis Ginkgo Lounge with Oak Base and Grade D Fabric

Alternate Table

of turnerboone’s service
the
of turnerboone, llc We require that this information not be reproduced, distributed or utilized for any purpose beyond the evaluation of this pro posal without authorization from turnerboone, llc
The specifications and drawings contained herein are provided at your request but are instruments
and remain
property
The Beck Group | RFP

P2 Low Option

Quantity: 1 @ One Alliance, 1 @ Monarch

• Laptop Table - Hightower Kona Adjustable Height with Laminate Top and Powdercoat Base

• ALT: w/o Height Adj - Haworth Pip Table, 26"H with Painted Grade A MDF Painted Top and Powdercoat Metal Base

• Chair - ERG Maxwell with Wood Post Legs and Grade 4 Fabric

The Beck Group | RFP

Alternate Table

require that this information not be reproduced, distributed or utilized for any purpose beyond the evaluation of this pro posal without authorization from
llc
The specifications and drawings contained herein are provided at your request but are instruments of turnerboone’s service and remain the property of turnerboone, llc We
turnerboone,

C1 High & Low Option

Quantity: 54 @ One Alliance, 40 @ Monarch

• Bookcase - Haworth BeHold Be Three Shelf Bookcase, 42”h x 16”d x 36”w

The Beck Group | RFP

The specifications and drawings contained herein are provided at your request but are instruments of turnerboone’s service and remain the property of turnerboone, llc We require that this information not be reproduced, distributed or utilized for any purpose beyond the evaluation of this

turnerboone, llc

pro posal without authorization from

C2 One Alliance High & Low Option

Quantity: 3 @ One Alliance

• Table – Symphony Losa Table, Custom Size 15”d x 300”l x 36”h, Four Sections

The specifications and drawings contained herein are provided at your request but are instruments of turnerboone’s service and remain the property of turnerboone, llc We require that this

pro posal
from
information not be reproduced, distributed or utilized for any purpose beyond the evaluation of this
without authorization
turnerboone, llc The Beck Group | RFP

C2 Monarch High & Low Option

Quantity: 4 @ Monarch

• Table – Symphony Losa Table, Custom Size 15”d x 264”l x 36”h, Three Sections

The Beck Group | RFP

that this information not be reproduced, distributed
utilized for any purpose beyond the evaluation of this pro posal without authorization from
llc
The specifications and drawings contained herein are provided at your request but are instruments of turnerboone’s service and remain the property of turnerboone, llc We require
or
turnerboone,

R1 One Alliance High Option

Quantity: 1 @ One Alliance

• Sofa - Bernhardt B.1 Modular Sofa -1 Corner Unit, 1 Two Seat and 1 Three Seat each with Single Arm, High Back Pillow, Saddle Stitch, Ganging brackets - Grade 4 Fabric

• Coffee Table - Bernhardt Linc 48" x 26" x 15'5" - Maple Veneer

• Task Chair - Haworth Fern with Knit Back, Grade D Fabric Seat, 4D Arm, Lumbar, Pneumatic with Back Stop, Adjustable Seat, Aluminum Base and Hard Caster

• Pillows - 14” x 14” Pillows

• Other - N/A

The specifications and drawings contained herein are provided at your request but are instruments of turnerboone’s service and remain the property of turnerboone, llc We require that this information not be reproduced, distributed or utilized for any purpose beyond the evaluation of this pro posal without authorization from turnerboone, llc
| RFP
The Beck Group

R1 One Alliance Low Option

Quantity: 1 @ One Alliance

• Sofa - JSI Poet Modular Sofa (2) Two Seat with Arm and (1) 2 Seat Without Arm, (1) Corner Unit, Linking Brackets - Grade D Fabric

• Coffee Table - Bernhardt Area 52" x 29" x 14.5" - Walnut Veneer

• Task Chair - 9 to 5 Seating Neo Task with Mesh Back and Grade D Fabric Seat, 6 Way Height Adjustable Arm, Seat Slider, Nylon Base and Hard Casters

• Pillows - 14” x 14” Pillows

• Other - N/A

The specifications and drawings contained herein are provided at your request but are instruments of turnerboone, llc We require that this information not be reproduced, distributed or utilized for any purpose beyond the evaluation of this pro posal without authorization from turnerboone, llc
Beck Group | RFP
The

R1 Monarch High Option

Quantity: 1 @ Monarch

• Sofa - Bernhardt B.1 Modular Sofa - 1 Two Seat and 1 Three Seat each with Single Arm, High Back Pillow, Saddle Stitch, Ganging brackets - Grade 4 Fabric

• Laptop Table - Davis Lift Adjustable Height with Laminate Top and Powder Coat Base

• Task Chair - Haworth Fern with Knit Back, Grade D Fabric Seat, 4D Arm, Lumbar, Pneumatic with Back Stop, Adjustable Seat, Aluminum Base and Hard Caster

• Pillows - 14” x 14” Pillows

• Other - N/A

The specifications and drawings contained herein are provided at your request but are instruments of turnerboone’s service and remain the property of turnerboone, llc We require that this information not be reproduced, distributed or utilized for any purpose beyond the evaluation of this pro posal without authorization from turnerboone, llc
The Beck Group | RFP

R1 Monarch Low Option

Quantity: 1 @ Monarch

• Sofa - JSI Poet Modular Sofa (1) Two Seat with Arm and (1) 3 Seat With Arm, Linking Brackets - Grade D Fabric

• Laptop Table - Hightower Kona Adjustable Height with Laminate Top and Powdercoat Base

• Task Chair - 9 to 5 Seating Neo Task with Mesh Back and Grade D Fabric Seat, 6 Way Height Adjustable Arm, Seat Slider, Nylon Base and Hard Casters

• Pillows - 14” x 14” Pillows

• Other - N/A

The specifications and drawings contained herein are provided at your request but are instruments of turnerboone, llc We require that this information not be reproduced, distributed or utilized for any purpose beyond the evaluation of this pro posal without authorization from turnerboone, llc
| RFP
The Beck Group

B1 Monarch High Option

Quantity: 1 @ Monarch

• Chair 1 - Grand Rapids Chair Alfred ChairGrade 40 Fabric

• Table 1 - Encore Skyline 36" Square x 29" H with Square Base - Laminate Top and Powdercoat Base

• Chair 2 - Davis Reed Armless with Plastic Back/Seat and Oak Frame

• Table 2 - Davis Q6-310 36" Diameter x 29"HFenix Top and Standard Powdercoat Base

• Banquette - Jamie Stern Banquette - 15’ w

• Power - Jamie Stern Power Unit

• Laptop Table - Davis Lift Adjustable Height with Laminate Top and Powder Coat Base

• Barstool (Chair 3) - Grand Rapids Chair Alfred Counter Height Barstool Grade 40 Fabric

The specifications and drawings contained herein are provided at your request but are instruments of turnerboone’s service and remain the property of turnerboone, llc We require that this information not be reproduced, distributed or utilized for any purpose beyond the evaluation of this pro posal without authorization from turnerboone, llc
The Beck Group | RFP

B1 Monarch Low Option

Quantity: 1 @ Monarch

• Chair 1 - Grand Rapids Chair Alfred ChairGrade 40 Fabric

• Table 1 - JSI 36 x 36 Nosh Square Table with Round Disc Base

• Chair 2 - Source Everwood Chair with Felt Glides and Standard Poly Back/Seat and Wood Legs

• Table 2 - JSI 36" Round Nosh with Round Disc Base

• Banquette - National Swift Plinth Base Lounge with Vertical Stitching, End Tables with Power – 15’-3” w

• Power - National G23 2 Simplexes with 1 Dual USB

• Laptop Table - Hightower Kona Adjustable Height with Laminate Top and Standard Powdercoat Base

• Barstool (Chair 3) - Grand Rapids Chair Alfred Counter Height Barstool Grade 40 Fabric

The specifications and drawings contained herein are provided at your request but are instruments of turnerboone’s service and remain the property of turnerboone, llc We require that this information not be reproduced, distributed or utilized for any purpose beyond the evaluation of this pro posal without authorization from turnerboone, llc
| RFP
The Beck Group

B1 One Alliance High Option

Quantity: 1 @ One Alliance

• Chair 1 - Grand Rapids Chair Alfred ChairGrade 40 Fabric

• Table 1 - Encore Skyline 36" Square x 29" H with Square Base - Laminate Top and Powdercoat Base

• Banquette - Jamie Stern Banquette - 3’ w

• Power - Jamie Stern Power Unit

• Barstool (Chair 3) - Grand Rapids Chair Alfred Counter Height Barstool Grade 40 Fabric

turnerboone’s
turnerboone,
We
that this information not be reproduced, distributed or utilized for any purpose beyond the evaluation of this pro posal without authorization from turnerboone, llc
The specifications and drawings contained herein are provided at your request but are instruments of
service and remain the property of
llc
require
The Beck Group | RFP

B1 One Alliance Low Option

Quantity: 1 @ One Alliance

• Chair 1 - Grand Rapids Chair Alfred ChairGrade 40 Fabric

• Table 1 - JSI 36 x 36 Nosh Square Table with Square Disc Base

• Banquette - National Swift Plinth Base Lounge with Vertical Stitching – 2’-2” w

• Power - Byrne Miki Edge Mount with 2 Power and 1 USB A + C, 108" Cord

• Barstool (Chair 3) - Grand Rapids Chair Alfred Counter Height Barstool Grade 40 Fabric

The specifications and drawings contained herein are provided at your request but are instruments of turnerboone’s service and remain the property of turnerboone, llc We require that this information not be reproduced, distributed or utilized for any purpose beyond the evaluation of this pro posal without authorization from turnerboone, llc
The Beck Group | RFP

B2 High Option

Quantity: 1 @ One Alliance

• Sofa - Bernhardt B.1 Three Seat with High Back Pillow, Saddle Stitch in Grade 4 Fabric

• Lounge Chair - Davis Sachet High Back Lounge with Wood Base in Oak or WalnutGrade D Fabric

• Coffee Table - Hightower Bello Coffee Table 28.5“d x 55“w x 15.5“h

• Floor Lamp - Lightology Nuevo Raku Floor Lamp in Black

• Accent Table - Kimball Etc Cohen 201 in Black Metal - 20"Diameter x 22.5" High

• Pillows - 14” x 14” Pillows

The specifications and drawings contained herein are provided at your request but are instruments of turnerboone’s service and remain the property of turnerboone, llc We require that this information not be reproduced, distributed or utilized for any purpose beyond the evaluation of this pro posal without authorization from turnerboone, llc
The Beck Group | RFP

B2 Low Option

Quantity: 1 @ One Alliance

• Sofa - JSI Poet Peb Three Seat with Metal Base in Grade D Fabric

• Lounge Chair - 9 to 5 Seating Jax Wing Back with Wood Legs - Grade D Fabric

• Coffee Table - Davis Inform IF -1848 24" x 48" x 18" with Oak Veneer Top and Painted Metal Leg

• Floor Lamp - Lightology Nuevo Evan Floor Lamp in Black

• Accent Table - Bernhardt Dymen Side Table in Solid Suar Wood - 13" diameter x 18" H

• Pillows - 14” x 14” Pillows

The
of turnerboone,
require that this information not be
distributed or utilized for any purpose beyond the evaluation of this pro posal without authorization from turnerboone, llc
RFP
specifications and drawings contained herein are provided at your request but are instruments
llc We
reproduced,
The Beck Group |

B3 High Option

Quantity: 1 @ One Alliance, 1 @ Monarch

• Chair 1 - Grand Rapids Chair Alfred ChairGrade 40 Fabric

• Banquette - Jamie Stern Banquette - 30’ w

• Power - Jamie Stern Power Unit

• Pillows - 14” x 14” Pillows

• Table 1 - Encore Skyline 36" Square x 29" H with Square Base - Laminate Top and Powdercoat Base

turnerboone’s turnerboone,
this information not be
for any purpose beyond the evaluation of this pro posal without authorization from
llc
The specifications and drawings contained herein are provided at your request but are instruments of
llc We require that
reproduced, distributed or utilized
turnerboone,
The Beck Group | RFP

B3 Low Option

Quantity: 1 @ One Alliance, 1 @ Monarch

• Chair 1 - Grand Rapids Chair Alfred ChairGrade 40 Fabric

• Banquette - National Swift Plinth Base Lounge with Vertical Stitching, End Tables with Power – 32’-2” w

• Power - National G23 2 Simplexes with 1 Dual USB

• Pillows - 14” x 14” Pillows

• Table 1 - JSI 36 x 36 Nosh with Square Disc Base

The Beck Group | RFP

turnerboone’s service
turnerboone,
We require that this information not be reproduced, distributed or utilized for any purpose beyond the evaluation of this pro posal without authorization from turnerboone, llc
The specifications and drawings contained herein are provided at your request but are instruments of
and remain the property of
llc

L1 One Alliance High & Low Option

Quantity: 1 @ One Alliance

• Barstool - Grand Rapids Chair Alfred Counter Stool - Grade 40 Fabric

• Table - Symphony Custom Losa 48“d x 150“w x 36“h

• Storage - Container Store Elfa System with 24 Total 22 -7/8“w x 16 -7/8“d x 7 -1/4" h Drawers

**INSTALLING DRAWERS WILL VOID WARRANTY ON TABLE

• Power - Symphony Ocho with 2 Power and 1

Dual USB

• Table 2 (No Storage) - Symphony Custom Losa 48“d x 126“w x 36“h

The specifications and drawings contained herein are provided at your request but are instruments of turnerboone’s service
remain the property of turnerboone, llc We require that this information not be reproduced, distributed or utilized for any purpose beyond the evaluation of this pro posal without authorization from turnerboone, llc
RFP
and
The Beck Group |

L1 Monarch High & Low Option

Quantity: 1 @ One Alliance

• Barstool - Grand Rapids Chair Alfred Counter Stool - Grade 40 Fabric

• Table - Symphony Custom Losa 48“d x 102“w x 36“h

• Storage - Container Store Elfa System with 32

Total 22-7/8“w x 16-7/8“d x 7-1/4" h Drawers

**INSTALLING DRAWERS WILL VOID WARRANTY ON TABLE

• Power - Symphony Ocho with 2 Power and 1

Dual USB

• Table 2 (No Storage) - Symphony Standard Losa 48“d x 96“w x 36“h

The specifications and drawings contained herein are provided at your request but are instruments of turnerboone’s service and remain the property of turnerboone, llc We require that this information not be reproduced, distributed or utilized for any purpose beyond the evaluation of this pro posal without authorization from turnerboone, llc
The Beck Group | RFP

T1 High Option

Quantity: 1 @ One Alliance, 1 @ Monarch

• Chair - Sit on It Qwiz Nesting Chair with Mesh Back , Upholstered Seat, Fixed Arms, Hard Casters - Black Shell and Frame and Grade 4 Fabric

• Tables - Haworth Jive C Leg Flip Top on Casters 30" x 60" with Standard Laminate and Paint

• Other - N/A

turnerboone,
that this information not be reproduced, distributed or utilized for any purpose beyond the evaluation of this pro posal without authorization from turnerboone, llc
The specifications and drawings contained herein are provided at your request but are instruments of turnerboone’s service and remain the property of
llc We require
The Beck Group | RFP

T1 Low Option

Quantity: 1 @ One Alliance, 1 @ Monarch

• Chair - Sit on It Qwiz Nesting Chair with Mesh Back , Upholstered Seat, Fixed Arms, Hard Casters - Black Shell and Frame and Grade 4 Fabric

• Tables - AIS Day To Day Flip Top Table on Casters 30" x 60" with Standard Laminate and Paint

• Other - N/A

turnerboone’s service
turnerboone,
We require that this information not be reproduced, distributed or utilized for any purpose beyond the evaluation of this pro posal without authorization from turnerboone, llc
The specifications and drawings contained herein are provided at your request but are instruments of
and remain the property of
llc
The Beck Group | RFP

S1 High Option

Quantity: 8 @ One Alliance

• Chair - ERG Amelia Metal Leg Chair with Grade 4 Fabric

• Table - JSI Moto 42" Diameter x 26 HighLaminate Base and Top

The
provided at
request but are instruments of turnerboone’s service and remain the property of turnerboone, llc We require that this information not be reproduced, distributed or utilized for any purpose beyond the evaluation of this pro posal without authorization from turnerboone, llc
specifications and drawings contained herein are
your

S1 Low Option

Quantity: 8 @ One Alliance

• Chair - Boss Paloma PLL/1 Lounge Chair with Steel Four Leg Painted Frame - Grade 4 Fabric

• Table - JSI Moto 42" Diameter x 26 HighLaminate Base and Top

The Beck Group | RFP

this information not be reproduced, distributed
utilized for any purpose beyond the evaluation of this pro posal without authorization from
llc
The specifications and drawings contained herein are provided at your request but are instruments of turnerboone’s service and remain the property of turnerboone, llc We require that
or
turnerboone,

S2 High Option

Quantity: 1 @ One Alliance, 2 @ Monarch

• Chair - Openest Chick Pouf with Hard Glide and Grade D Fabric

• Laptop Table - Davis Lift Adjustable Height with Laminate Top and Powder Coat Base

The Beck Group | RFP

The specifications and drawings contained herein are provided at your request but are instruments of turnerboone’s service and remain the property of turnerboone, llc We require

information not be
distributed
utilized for any purpose beyond the evaluation of this pro posal without authorization from
llc
that this
reproduced,
or
turnerboone,

S2 Low Option

Quantity: 1 @ One Alliance, 2 @ Monarch

• Chair - Encore Gogo Lounge Armless with Casters and Leather Pull - Single Grade 4 Fabric

• Laptop Table - Hightower Kona Adjustable Height with Laminate Top and Standard Powdercoat Base

The Beck Group | RFP

that this information not be reproduced, distributed or utilized for any purpose beyond the evaluation of this pro posal without authorization from
llc
The specifications and drawings contained herein are provided at your request but are instruments of turnerboone’s service and remain the property of turnerboone, llc We require
turnerboone,

S3 One Alliance High & Low Option

Quantity: 1 @ One Alliance

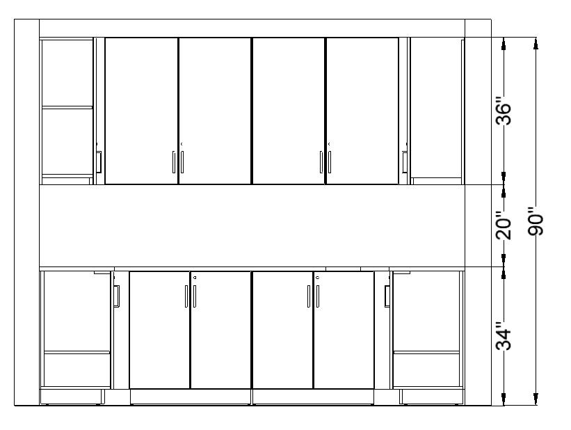
• Upper Cabinets - Carolina Mile Marker 33”h x 14”d Non-Locking Upper Cabinets with Fillers, Width to Match CAD Provided

• Lower Cabinets - Carolina Mile Marker 33”h x 24.5”d Non-Locking Lower Cabinets with Laminate Worksurface with Fillers, Width to Match CAD Provided

The specifications and drawings contained herein are provided at your request but are instruments of turnerboone’s service and remain the property of turnerboone, llc We require that

turnerboone,

information
be
or
beyond the evaluation of this pro posal
from
llc
this
not
reproduced, distributed
utilized for any purpose
without authorization
The Beck Group | RFP

S3 Monarch High & Low Option

Quantity: 1 @ Monarch

• Upper Cabinets - Carolina Mile Marker 33”h x 14”d Non-Locking Upper Cabinets with Fillers, Width to Match CAD Provided

• Lower Cabinets - Carolina Mile Marker 33”h x 24.5”d Non-Locking Lower Cabinets with Laminate Worksurface with Fillers, Width to Match CAD Provided

The specifications and drawings contained herein are provided at your request but are instruments of turnerboone’s service and remain the property of turnerboone, llc We require that

turnerboone,

this information not be
distributed or
for any
beyond the evaluation of this pro posal without authorization from
llc
reproduced,
utilized
purpose
The Beck Group | RFP

S4 High Option

Quantity: 2 @ Monarch

• Chair - Keilhauer Talk High Back Tub Chair, Lounge Height in Grade d Fabric

• Side Table - OFS Denro 16"H in White Oak

The Beck Group | RFP

The specifications and drawings contained herein are provided at your request but are instruments of turnerboone’s service and remain the property of turnerboone, llc We require that this information not be reproduced, distributed or utilized for any purpose

turnerboone, llc

pro
beyond the evaluation of this
posal without authorization from

S4 Low Option

Quantity: 2 @ Monarch

• Chair - Encore Visor Private Lounge with Swivel Base - Grade 4 Fabric

• Side Table - Darran Grove Round 17" H Acacia

The Beck Group | RFP

that this information not be reproduced, distributed or utilized for any purpose beyond the evaluation of this pro posal without authorization from
llc
The specifications and drawings contained herein are provided at your request but are instruments of turnerboone’s service and remain the property of turnerboone, llc We require
turnerboone,

S5 High Option

Quantity: 1 @ One Alliance, 2 @ Monarch

• Desk - Haworth Upside Height Adjustable Table, 58”w x 23”d

• Box Box File - Haworth BeHold Be Mobile Box/File Pedestal 18”d x 15”w

• ALT: w/o Height Adj - Haworth Jive Fixed Height Table, 60”w x 24”d

• Chair - Haworth Fern with Knit Back, Grade D Fabric Seat, 4D Arm, Lumbar, Pneumatic with Back Stop, Adjustable Seat, Aluminum Base and Hard Caster

• Storage - Safco Commercial Wire Shelving, 48" x 18" x 3H

• Monitor Arm - Humanscale M/Flex with M2.1

• Power - Byrne Trippel Monument Mount with 2 Power, 1 USB A + C, Qi Wireless Charging; 108" Cord

Alternate Table

specifications
drawings contained herein
instruments of turnerboone’s service
the property of turnerboone, llc We require that this information not be reproduced, distributed or utilized for any purpose beyond the evaluation of this pro posal without authorization from turnerboone, llc
The
and
are provided at your request but are
and remain
The Beck Group | RFP

S5 Low Option

Quantity: 1 @ One Alliance, 2 @ Monarch

• Desk - Haworth Upside Height Adjustable Table, 58”w x 23”d

• Box Box File - Haworth BeHold Be Mobile

Box/File Pedestal 18”d x 15”w

• ALT: w/o Height Adj - Haworth Jive Fixed Height Table, 60”w x 24”d

• Chair - 9 to 5 Seating Neo Task with Mesh

Back and Grade D Fabric Seat, 6 Way Height

Adjustable Arm, Seat Slider, Nylon Base and Hard Casters

• Storage - Safco Commercial Wire Shelving, 48" x 18" x 3H

• Monitor Arm - HAT Collective E2 Dual

• Power - Byrne Miki Edge Mount with 2 Power and 1 USB A + C, 108" Cord

Alternate Table

specifications and drawings contained herein
provided at
request
instruments of turnerboone’s service
the property of turnerboone, llc We require that this information not be reproduced, distributed or utilized for any purpose beyond the evaluation of this pro posal without authorization from turnerboone, llc
The
are
your
but are
and remain
The Beck Group | RFP

S6 One Alliance High & Low Option

Quantity: 1 @ One Alliance

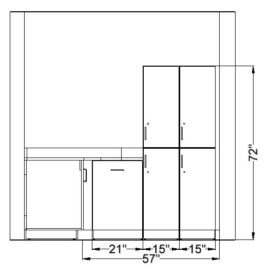
• Upper Cabinets - Carolina Mile Marker 33”h x 14”d Non-Locking Upper Cabinets with Fillers, L Shape, Width to Match CAD Provided

• Lower Cabinets - Carolina Mile Marker 33”h x 24.5”d Non-Locking Lower Cabinets with Laminate Worksurface with Fillers, L Shape, Width to Match CAD Provided

The specifications and drawings contained herein are provided at your request but are instruments of turnerboone’s service and remain the property of turnerboone, llc We require that

turnerboone,

this information not be
distributed or
for any
beyond the evaluation of this pro posal without authorization from
llc
reproduced,
utilized
purpose
The Beck Group | RFP

S6 Part 1 Monarch High & Low Option

Quantity: 1 @ Monarch

• Upper Cabinets - Carolina Mile Marker 33”h x 14”d Non-Locking Upper Cabinets with Fillers, Width to Match CAD Provided

• Lower Cabinets - Carolina Mile Marker 33”h x 24.5”d Non-Locking Lower Cabinets with Laminate Worksurface with Fillers, Width to Match CAD Provided

The specifications and drawings contained herein are provided at your request but are instruments of turnerboone’s service and remain the property of turnerboone, llc We require

this information not be reproduced, distributed or utilized for any purpose beyond the evaluation of this pro posal without authorization from
llc
that
turnerboone,
The Beck Group | RFP

S6 Part 2 Monarch High & Low Option

Quantity: 1 @ Monarch

• Upper Cabinets - Carolina Mile Marker 33”h x 14”d Non-Locking Upper Cabinets with Fillers, U Shape, Width to Match CAD Provided

• Lower Cabinets - Carolina Mile Marker 33”h x 24.5”d Non-Locking Lower Cabinets with Laminate Worksurface with Fillers, U Shape, Width to Match CAD Provided

The specifications and drawings contained herein are provided at your request but are instruments of turnerboone’s service and remain the property of turnerboone, llc We require

this information not be
distributed or utilized for any purpose beyond the evaluation of this pro posal without authorization from
llc
that
reproduced,
turnerboone,
The Beck Group | RFP

W1 One Alliance High Option

Quantity: 1 @ One Alliance

• Chair - Davis Gingko High Back Lounge with Oak Base and Grade D Fabric

• Ottoman - Davis Gingko Ottoman with Oak Base and Grade D Fabric

• Lower Cabinets - Carolina Mile Marker 33”h x 24.5”d Non-Locking Lower Cabinets with Solid Surface, Sink, 24”w Opening for Refrigerator, Trash Pull-Out, Width to Match CAD Provided

• Lockers - (2) Carolina Mile Marker 72”h x 15”w 24.5”d Double Height Locking Lockers

• Laptop Table - Davis Lift Adjustable Height with Laminate Top and Powder Coat Base

The specifications and drawings contained herein are provided at your request but are instruments of turnerboone’s service and remain the property of turnerboone, llc We require that this information not be reproduced, distributed or utilized for any purpose beyond the evaluation of this pro posal without authorization from turnerboone, llc The Beck Group | RFP

W1 One Alliance Low Option

Quantity: 1 @ One Alliance

• Chair - OFS Skara with Return to Center Swivel and Grade 4 Fabric

• Ottoman - OFS Skara with Swivel with Grade 4 Fabric

• Lower Cabinets - Carolina Mile Marker 33”h x 24.5”d Non-Locking Lower Cabinets with Solid Surface, Sink, 24”w Opening for Refrigerator, Trash Pull-Out, Width to Match CAD Provided

• Lockers - (2) Carolina Mile Marker 72”h x 15”w

24.5”d Double Height Locking Lockers

• Laptop Table - Hightower Kona Adjustable

Height with Laminate Top and Standard Powdercoat Base

The specifications and drawings contained herein are provided at your request but are instruments of turnerboone’s service and remain the property of turnerboone, llc We require that this information not be reproduced, distributed or utilized for any purpose beyond the evaluation of this pro posal without authorization from turnerboone, llc
Beck Group | RFP
The

W1 Monarch High Option

Quantity: 1 @ Monarch

• Chair - Davis Gingko High Back Lounge with Oak Base and Grade D Fabric

• Ottoman - Davis Gingko Ottoman with Oak Base and Grade D Fabric

• Lower Cabinets - Carolina Mile Marker 33”h x 24.5”d Non-Locking Lower Cabinets with Solid Surface, Sink, 24”w Opening for Refrigerator, Trash Pull-Out, Width to Match CAD Provided

• Lockers - (2) Carolina Mile Marker 72”h x 15”w 24.5”d Double Height Locking Lockers

• Laptop Table - Davis Lift Adjustable Height with Laminate Top and Powder Coat Base

request
instruments of turnerboone’s service
the property of turnerboone, llc We require that this information not be reproduced, distributed or utilized for any purpose beyond the evaluation of this pro posal without authorization from turnerboone, llc
The specifications and drawings contained herein are provided at your
but are
and remain
The Beck Group | RFP

W1 Monarch Low Option

Quantity: 1 @ Monarch

• OFS Skara with Return to Center Swivel and Grade 4 Fabric

• Ottoman - OFS Skara with Swivel with Grade 4 Fabric

• Lower Cabinets - Carolina Mile Marker 33”h x 24.5”d Non-Locking Lower Cabinets with Solid Surface, Sink, 24”w Opening for Refrigerator, Trash Pull-Out, Width to Match CAD Provided

• Lockers - (2) Carolina Mile Marker 72”h x 15”w

24.5”d Double Height Locking Lockers

• Laptop Table - Hightower Kona Adjustable

Height with Laminate Top and Standard Powdercoat Base

The specifications and drawings contained herein are provided at your request but are instruments of turnerboone’s service and remain the property of turnerboone, llc We require that this information not be reproduced, distributed or utilized for any purpose beyond the evaluation of this pro posal without authorization from turnerboone, llc
The Beck Group | RFP

Turn static files into dynamic content formats.

Create a flipbook
Issuu converts static files into: digital portfolios, online yearbooks, online catalogs, digital photo albums and more. Sign up and create your flipbook.