Tulika Kaushik

Page 1

INTERIOR DESIGN

P O R T F O L I O

TULIKA KAUSHIK

DESIGN |ART |ARCHITECTURE

Personal Profile

Education

Name Tulika Kaushik

DOB 13/03/1996

Profession Interior Designer

Nationality Indian

Languages English Hindi Gujarati

Email tulika1330@yahoo.com Mob no. 8758969311

Address Marine lines, Mumbai

Interests

Sketching (Charcoal, pencil, pencil colors), Painting, Reading, Reseach and Analysis, Mandala art, Content Writing (article writing, social media accounts ) Dancing, Photography, Travelling

B.A degree in classical dancing (dance form : Bharatnatyam)

Bachelor of Design 2014 - 2018

School of Environmental Design and Architecture (SEDA)

Navrachana University, Vadodara, Gujarat

Higher Secondary school

Delhi Public School Vadodara (DPS) Science - Physics, Chemistry, Mathematics and English

Work Experience

Malik Architecture (Mumbai) 2021-2024

Studio Saransh (Ahmedabad) 2019-2020

Residential and commercial projects with an experience in working drawings, design process and 3D modelling

Internship - Art and Architecture associates, Vadodara

Academic Exposure

2014 -2015

Cube transformation, Space vocabulary, Planes and solids, architectonics, Drawing and Painting, Building construction and materials, Technical drawing and drafting, History of architecture

Publication

Analytical and research thesis(2018) in interior landscape design

“The intersections in interior and landscape design”

Auxillary Experience

2015-2016

Abstraction, Matrix, Residential Design, Environmental Studies, Furniture Design (Woodwork and Metallic Joineries), History (Study of Schroder house)

2016-2017

Retail store design (olympus cameras), corporate office design, working drawing (washrooms, kitchens) furniture design, professional practice

2017-2018

Theatre Design, Furniture Design, Thesis

2014 - 2018

Linocut, Painting, Charcoal and dry pastel sketching, Script writing, Social innovation (khoj)

Related Study Program

December 2014

Dadar and Nagar Haveli (Dudhani)

Documentation of the houses of the people residing in Dudhani

May 2015

Himachal Pradesh (Spiti Valley)

Architectural documentation of the houses of the village of Kibber.

Software Skills

Autocad

Photoshop

Indesign

Sketchup

Keyshot

Microsoft Office

Microsoft Word

Manual Skills

Sketching

Rendering

Drafting

Model Making

References

Available on request

Curriculum Vitae
Architecture

Office Work

Malik Architecture (Mumbai) 2021-2024

Topics

- Turnkey residential architectural interior projects (Mumbai and Pune)

- Architectural residential second home project (Karjat)

- Residential lobby design in Mumbai

- Terrace hotel bar and restaurant design in Lonavala

- Boutique hotel in Mumbai

(Copyrights of all the drawings are owned by Malik Architecture)

Residential Interior project 1

Concept Note ..

This was a 12000 sq ft sea facing residential architectural interior projects located in the Worli. Being a part of the project from the very beginning till the end gave me a huge learning opportunity.

From designing spaces to preparing the working drawings set to being on site permanantly for three whole months taught me alot about how much it takes to see a project through.

The space revolves around a curved brick wall and open ventilated spaces which is a rare sight to see within an apartment. The materials used were all natural such as brick, wood and natural stones which spruced the apartment with warmth and light. The selection of the furniture and lights were a mixture of both indian and italian brands which gave the space a distinct vibe.

1' 6" 1' 10" 500 X 350 500 X 350 500 350 1' 10" 1' 10" 1' 10" 1' 10" 1' 10" 1' 1' 10" 1' 1' 10" 1' x 1' 10" 1' 10" 1' 1' 10" 1' 1' 10" 1' 1' 10" 1' x 1' 10" 1' x 1' 10" 1' 1' 10" 1' x 1' 10" 1' x 1' 10" 1' x 1' 10" 1' 1' 10" 1' 1' 10" 1' 1' 10" 1' 1' 10" 1' 1' 10" 1' x 1' 10" 1' x 1' 10" 1' 1' 10" 1' 4"x 2' 4" 2' 6"x 4' 1' x 2' 4" 1' x 1' 10" 1' x 2' 1" 1' 10" 8"x 4" 6"x 4" 6"x 4" 6"x 2' 4" 2' 4" 1' x 2' 1" 1' 6"x 1' 6"x 1' 6"x 1' x 2' 1" 1' 2' 1" 1' 10" 1' 10" 1' 10" 1' 10" 1' 10" 8"x 4" 1' 8"x FOYER METER ROOM DINING CONSOLE DECK AREA LIBRARY UNIT (Bought out) STORAGE UNIT DRESSING MDB PIANO DINING CONSOLE FULL HT MIRROR ON WALL 4'-2 21'-31 21'-31 20'-3" 15'-10" 14'-7" 20'-10 13'-10 25'-5 1 17'-1 1 2 5'-9" 12'-3 7'-9 22'-11" 14'-4" 23'-4" 14'-10 1 17'-3 1 2 8'-8" 16'-7" 22'-2 10'-7" 8'-10 2 4'-0 15'-4 21'-6" 15'-5" 6'-5" 20'-3" 14'-11 14'-4" 5'-3 1 20'-10" 8'-5" 13'-2" 12'-11" 7'-0" 24'-1 1 19'-4 1 2 8'-1" 18'-1" PIN BALL 8'-4" 8'-4" 21'-9 1 MANDIR 9'-9" 7'-2" 4'-10 5'-0"--150mmRUCHITA'S BEDROOM 5'-5" 4'-0" 17'-2 1 2 16'-11" 5'-3" STORE ROOM 7'-4 8'-7 1 2 11'-4 2 5'-61 2 14'-4 1 D2 D2 D2 D2 D2 D2 D2 D2 D3 D3 D3 D3 D4 D7 D8 D8 D8 D7 D8 Vinyl Player 17" 24" nos. Wine Mini Fridge BAR UNIT 21'-3" 12'-3 3'-3" 4'-11" BOOK SHELF 18" FOR DETAIL REFER DRG NO. [MA/RA/INT/GB -01] ART BATHROOM FOR DETAIL REFER DRG NO. [MA/RA/INT/ART/BATH -01] ART STUDIO FOR DETAIL REFER DRG NO. [MA/RA/INT/ART -01] DEN AREA FOR DETAIL REFER DRG NO. [MA/RA/INT/DEN -02] KITCHEN FOR DETAIL REFER DRG NO. [MA/RA/INT/KIT -01] DAILY DINING FOR DETAIL REFER DRG NO. [MA/RA/INT/DIN -02] ANANYA'S BEDROOM FOR DETAIL REFER DRG NO. [MA/RA/INT/DB -01] ANANYA'S WALK IN WARDROBE FOR DETAIL REFER DRG NO. [MA/RA/INT/DB -01] ANANYA'S BATHROOM FOR DETAIL REFER DRG NO. [MA/RA/INT/D BATH -01] RICHA'S WALK IN WARDROBE FOR DETAIL REFER DRG NO. [MA/RA/INT/MB/WIW -02] RICHA'S BEDROOM FOR DETAIL REFER DRG NO. [MA/RA/INT/MB -01] RICHA'S BATHROOM FOR DETAIL REFER DRG NO. [MA/RA/INT/M BATH -01] RICHA'S WALK IN WARDROBE FOR DETAIL REFER DRG NO. [MA/RA/INT/MB/WIW -01] DINING AREA FOR DETAIL REFER DRG NO. [MA/RA/INT/DIN -01] INFORMAL LIVING AREA FOR DETAIL REFER DRG NO. [MA/RA/INT/IN LIV -01] LIVING AREA FOR DETAIL REFER DRG NO. [MA/RA/INT/LIV -01] ANAV'S BEDROOOM FOR DETAIL REFER DRG NO. [MA/RA/INT/SB -01] ANAV'S BEDROOOM FOR DETAIL REFER DRG NO. [MA/RA/INT/S BATH -01] FATHER'S BEDROOM FOR DETAIL REFER DRG NO. [MA/RA/INT/FB -01] AMAN'S WALK IN WARDROBE FOR DETAIL REFER DRG NO. [MA/RA/INT/SB/WIW -01] FATHER'S BATHROOOM FOR DETAIL REFER DRG NO. [MA/RA/INT/F BATH -01] FATHER'S WALK IN WARDROBE FOR DETAIL REFER DRG NO. [MA/RA/INT/FB/WIW -01] DEN AREA FOR DETAIL REFER DRG NO. [MA/RA/INT/DEN -01] GYM FOR DETAIL REFER DRG NO. [MA/RA/INT/CO -01] POWDER TOILET FOR DETAIL REFER DRG NO. [MA/RA/INT/PWD -01] 24'-3" 14'-0" 7'-8 11'-1 10'-5" 5'-7" D1 STORAGE D6 D4 W1 W2 W2 W2 W2 W2 W2 D2 W7 W8 W3 W3 W1 W4D2 D2 D3 D8 20'-0 10'-4 1 2 8'-11" 7'-0"D3 D8 14'-11 WASH AREA UTILITY 2'-10" FULL HT STORAGE D3 9'-0 8'-10 D3 STORE ROOM LOW HT STORAGE D3 D3 14'-0 14'-1" 4'-1" 19'-3" 6'-0 1 2 4'-5" 6'-12 7'-1" 10'-2 WM/ 7'-2" 7'-4" 12'-2" 20'-91 2 15'-10 1 2 FULL HT STORAGE D8 8'-2" 14'-5" 3'-1" 8'-3" 8'-0" CANDLE STORAGE 6'-0" 4'-11 2 W5 8'-1" 9'-0 1 12'-0" 7'-6" 5'-5 7'-10" 6'-6" Storage 11'-3" 1'-9" 1'-0" 3'-3" 8'-10" 1'-4" BOUGAINVILLAE CREEPERS BOUGAINVILLAE CREEPERS BAMBOO PLANTS HERB GARDEN 19'-7 1 2 2'-8" 3'-0 15'-5" 6'-0 24'-3 THIS DRAWING IS COPYRIGHTED. IT IS PROPERTY OF MALIK ARCHITECTURE AND IS NOT TO BE REPRODUCED, SUPPLIED, HANDED OVER TO A THIRD PARTY OR USED FOR PURPOSE OTHER THAN FOR WHICH IT HAS BEEN INTENDED. DRAWING No. DRAWN BY CHECKED BY DATE SCALE NORTH SHEET TITLE APPROVAL STAMP ARCHITECT MALIKARCHITECTURE 2nd Floor,Kaiser-Hind Building, 1/6th Currhimboy Road, Ballard Estate, Mumbai 400 001 Ph. No.022-22642170 PROJECT TITLE GENERAL NOTES ALL THE DIMENSIONS INDICATED ARE IN METERS UNLESS OTHERWISE SPECIFIED AND ARE UNFINISHED DIMENSIONS. THIS DRAWING IS NOT TO BE SCALED ONLY WRITTEN DIMENSIONS ARE TO BE FOLLOWED. ALL THE DIMENSIONS INDICATED IN THIS DRAWING ARE TO BE CHECKED AND VERIFIED AT SITE PRIOR TO THE COMMENCEMENT OF WORK BY THE CONTRACTOR. ANY DISCREPANCY FOUND IN THIS DRAWING SHOULD BE IMMEDIATELY NOTIFIED TO THE ARCHITECT'S OFFICE READ THIS DRAWING IN CONJUNCTION WITH ALL OTHER STRUCTURAL, MEP, SHOP DRAWINGS. WINDOW CLADDING AND ZINC PROFILE DETAILS TO BE FOLLOWED AS PER FACADE CONSULTANT'S DRAWINGS. DATE REVISION NO. INTERIOR LAYOUT JIGNESH 07/09/2021 MR. RAVI AGARWAL - RAHEJA ARTESIA MA/ RA/ INT/ PLN -01 Daughter's Bedroom 17/08/21 01 Bar Area 07/09/21 02 Revised Servant's area 07/09/21 03 JIGNESH WOODEN FLOORING WHITE TERRAZZO FLOORING 4' x 2' WITH 19 6MM BRASS PATTI FLOORING PIETRA DI SAVOIA AVORIO TILE (1x3 M Tiles) MICROTOPPING FALSE CEILING GYPSUM PAINT OAK WOOD/ WHITE STAIN SLATTED CEILING F1F2F3F4FC1FC2F5F6BASIC CONCRETE 1200X1200(RAK) F7SKIRTING 3" HT TERRAZZO SKIRTING S13" HT WOODEN SKIRTING (12MM THK) S2BLEND GRIGIO (1x3 M Tiles) GYPSUM P.O.P VAULT FC3EXPOSED CONCRETE FC4PIETRA DI SAVOIA GRIGIA (1x3 M Tiles) F8GREY PAINT FC5PIETRA GREY (1x3 M Tiles) F9WALL FINISHES WHITE PAINT BISON EXPOSED DESIGNER BRICK WHITE STAIN VENEER EXPOSED CONCRETE WA1WA2WA3WA4WA5MINTSTONE MINTSTONE BRICK WA6WA7MICROTOPPING WA8GOLDEN LIMESTONE WA9WA10WA11- SLATTED BISON WA12- SLATTED WHITE OAKWOOD WA13- SLATTED OAKWOOD WA14- HONED BLACK GRANITE WA15- PIETRA DI SAVOIA GRIGIA (1x3 M Tiles) WA16- VIVALDI RIVERWASH WA17- BLEND GRIGIO (1x3 M Tiles) WA18- CONCRETE FINISH PAINT WA19PIETRA GREY (1x3 M Tiles) WA20- FOKOS TERRA (1x3 M Tiles) FOKOS TERRA (1x3 M Tiles) WHITE LIMOCOAT F10- KANDALA GREY (5' x 2') F11- KOTA STONE (5'x2') F12- BROWN LIMESTONE (5'x2') F13- RUBBER FLOOR FINISHES Revised Guestroom 04 24/02/22

Residential Interior project 2 Concept Note ..

A 3 storey residential project located in the heart of Pune city comprised of a double height living room, a gym, a spa, two bar areas, double height terrace as well as an infinity pool.

The material pallet comprised of natural rough mintstone, a mass of corten steel, 12 feet height wooden screens as well as natural brick vaults.

The learning curve on this project was immense. The working and the concept of each space including the bathrooms were distinct yet the material pallet brought the entire space together as one.

The play of screens, lights, sculptures, artwork as well as the rugs were crucialto the space because of it’s massive heights.

Residential Housing project Concept Note ..

This high end residential housing project is owned by a famous builder in Mumbai. The common spaces within the project like the lobbies, gym area, multifunctional spaces fell into our scope of interior design in such a way that it marks a clear distinction from other residential housing spaces.

The materiality of the project revolved around exposed concrete throughout and the interior was made to respond to the strong architectural language of the project.

The pallet involved terrazzo, natural wood, mintstone, black granite, clear glass and brass strips with clean minimal lighting and furniture.

Boutique Hotel Design Concept Note ..

A concept was designed for small cozy boutique hotel in the heart of South Bombay, overlooking the Taj hotel. The exisitng site had some interesting features as it was within one of the old buildings in South Bombay; like arched windows, sloping wooden roofs, natural exposed brick structures, old flooring tiles, stained glasses.

Keeping the character of the site intact, three rooms and two suites along with a common recreational space were designed with a unique feature in each space. The varying sizes and heights of each room gave each one a distinct character.

The material pallet revolved around natural wooden flooring, exposed brick, old vintage sanitary fixtures, furniture in wood and rattan work, chhatai rugs and blinds, stained glass and handpainted ceramic tiles.

Office Work

Studio Saransh (Ahmedabad)

2019-2020

Topics

- Electrical layouts

- False Ceiling layouts

- Toilet Layout

- Furniture layouts and details

The following residential sites were located in the city of Ahmedabad and Vapi

(Copyrights of all the drawings are owned by Studio Saransh)

1 2 3 4 5 6 7 20R x 171 19G x 275
GUEST
MASTER
18'10"X16'2" BATH ROOM
DRESSING 10'10"X10'2" BATHROOM 9'5"X10'3" BALCONY 17'2"X7'10" PANTRY 4'6"X9' LIFT 1710X1800 FAMILY ROOM 15'2"X14'10" PASSAGE 15'2"X6'2" SHOWER AREA 8'3"X4' -4
4' 4' 3' 3' 4' -4
-6
-10
BEAM
-6 FROM BEAM BOTTOM
-10 (WOOD) -12
BEAM
THIS DRAWING IS THE PROPERTY OF SARANSH (AHMEDABAD) AND SHOULD NOT BE COPIED OR USED WITHOUT THEIR PERMISSION. ALL DIMENSIONS ARE IN millimeter feet & Inches DEALT : CHK : M.D. SCALE : DATE REVISIONS REV. DATE : ALT. NO. : SOURCE PROJECT TYPE TITLE DRG NO. 079-26742374, +919227931416 design@saransharchitects.com F-615, Shabri Apartments, Opp. Nirman School, Vastrapur, Ahmedabad - 380015. HERMITAGE BUNGALOW AT AHMEDABAD Layout TF ELECTRICAL A.4.1 TULIKA 191223 1903/191205 electrical 1 CEILING POINT 4' FAN POINT BRACKET POINT (HEIGHT - 7'-6") SWITCH BOARD A - 13" B - 21" C - 42" HANGING LIGHT POINT LEGEND : FOOT LIGHT (HEIGHT - 3") PROFILE LIGHT CEILING LIGHT (PANEL POINT) 3' 2'-9" SHOWER AREA 8'6"X4' EQ 2'-9" FL FL FL FL FL FL FL EQ EQ EQ EQ EQ EQ EQ EQ EQ EQ 3' 3' EQ EQ EQ 5'-2" 2' 2' EQ EQ EQ EQ EQ EQ 3' SB 21" EQ EQ EQ EQ EQ EQ EQ EQ 3' EQ EQ EQ EQ 3'-9" 2'-9" EQ EQ EQ EQ EQ 4'-11" EQ EQ 4'-7" EQ 3' SB 42" SB 42" 40'-1" 24'-6" 5' EQ EQ 2'-1" 4'-3" 4'-3" 8'-6" 1'-8" 1' 2' 1' 1' 5'-8" 4'-3" SB 42" SB 42" SB 21" SB 21" SB 21" SB 21" SB (A,B,C) SB (A,B,C) SB (A,B,C) 2'-6" 2'-3" 9'-6" 10'-11" SB 42" SB 42" SB 42" SB 42" SB 42" SB 42" SB 42" SB 42" SB 42" SB 42" SB 42" 15'-6" 1' 1' 1' 1' 1' 2'-10" 1' SB 42" 5'-10" 1' 8'-5" 6'-4" 1' 2' 7'-9" 1' EQ EQ 7'-9" 2'-5" UP 2'-2" 2'-2" 2'-10" 2'-10" 2'-10" 5'-6" 5'-6" 2'-10" 2'-10" 2'-10" 6'-8" 6'-8" 6'-8" 13'-4" 3' 2'-10" 5'-5" 2'-3" 6'-8" 2'-10" 4'-9" 4'-9" 3'-6" 5'-5" 5'-5" 6' 3'-10" 3'-10" 7'-9" 6" 6" 3'-10" 3'-10" 3' 2'-2" 3'-3" 7'-5" 6'-1" 3'-10" 3'-10" 1' 2'-2" 5'-8" 6'-1" 2'-11" 2'-11" 3'-2" 3'-2" 1'-9" 4'-2" 4'-2" 2'-1" 4'-2" 4'-2"
THIRD FLOOR LAYOUT
BEDROOM 13'6"X17'11"
BEDROOM
8'3"X10'2"
FROM BEAM BOTTOM (WOOD)
FROM BEAM BOTTOM (POP)
FROM BEAM BOTTOM (POP)
FROM
BOTTOM (WOOD)
(POP)
FROM
BOTTOM (POP)

Thesis

Both research and Analytical based Semester 8 (2018)

“ The intersections in Interior Design & Landscape Design ”

Aim

Interior spaces make a great deal of a difference in a person’s physical and mental well being.

Including plants or landscape design within these spaces enhances one’s experience for the better.

The aim of this thesis is to understand the concepts of landscape design, its benefits and the ways it can be introduced within interior spaces.

Objective

• The objective is to study the various benefits achieved through plants within interior spaces and later to analyze landscaped spaces and infer these benefits.

• Also, the objective is to observe the newer concepts of design and detail out the intersections within these landscaped areas and the interior spaces.

List of Chapters in the Thesis Book

Chapter 1 - The Existence Of Landscape

Chapter 2 - Elements Of Landscape Design

Chapter 3 - Benefits Of Plants

Chapter 4 - Challenging Situations In Plant Growth

Chapter 5 - Climatic Design

Chapter 6 - Residential Case Studies

V1 residence - VIETNAM

The Walls and Vaults House - KERALA

Binh house - VIETNAM

The courtyard house - BANGALORE

33rd street Colombo - SRI LANKA

House on Pali Hill - MUMBAI

Chapter 7 - Office Case Studies

Office in Mexico

A hidden garden behind concrete walls

VDGA office - PUNE

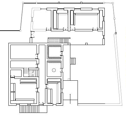
Residential Project - 01

Project V1 house

Location Vinh, Vietnam Asia

Architect TNT Architect

Area 140.0 m2

Climate Warm humid climate

The stairway on the other side leads to the roof which has a garden, a huge terrace and three open to sky voids.

On the third floor is a storage space with a huge terrace and an attached garden.

The same stairway leads to the second floor which has two childrens bedrooms with a common washroom.

The stairway leads to the first floor which has a the master bedroom with connecting washroom, closet and a study.

The entry to the space is through the ground floor. The floor comprises of the basic public spaces such as the living room, kitchen dining and a common toilet.

A’ Ground floor Plan First floor Plan Second floor Plan Third floor Plan Roof Plan Garage Lobby Living Room Kitchen Toilet Garden Garden Garden A A’ B B’ Dining Garden Void Bathroom Closet Bedroom Terrace Terrace A B B’ Garden Void A B A’ B’ Bedroom Bedroom Void Void Terrace Terrace Void Bathroom A’ B’ A B A’ B’ A B Void Void Void Terrace Garden Garden Storage Void Void Void Terrace
Section BB’ Section AA’

Residential Project - 02

Project - House no. 11, 33rd lane

Location - Colombo, Sri Lanka

Architect - Geoffrey Bawa

Climate - Tropical, hot and humid

The first floor consists of a private bedroom space with an attached toilet and an open living room.

The entry leads to a garage followed by an open study with attached kitchen and dining. The public zone leads to the guest bedroom and washroom.

Further the passageway leads to the master bedroom and washroom with private seating spaces, kitchen and dining rooms.

The section has been cut through the main passageway of the residence. The first and second floor form a small chunk above the ground.

Overall the residence consistsof just one main floor. The roof is a hipped roof and various landscaped spaces have been incorporated within the interiors of the space.

A Entry Garage Bedroom Living Bedroom Kitchen Dining Toilet Dining Kitchen Sitting Water body Passageway Stairway Garage Entry Sitting Ground floor Plan Section AA’ A’ Second floor Plan Living Bedroom Toilet Roof Garden First floor Plan

Aim

The aim of this project was to create a set inspired from an art movement or based on a painter’s paintings from the Constructivism or the Suprematist movement.

There was a warm up exercise introduced which revolved around understanding a suprematist painting and actually constructing it’s existence in the form of analysis and model making.

This understanding had to be further used in creating an installation in from of the Kamatibaugh planetarium in Vadodara in the form of a stage for the performance of the artists.

““The artist constructs a new symbol with his brush. This symbol is not a recognizable form of anything which is already finished, already made, already existing in the world - it is a symbol of a new world, which is being built upon and whichexists by way of people.””

- El Lissitzky

Theatre Design Semester 7 (2017)

The Painting of the “Eight Red Rectangles”

(Preliminary Exercise)

The painting by Malevich include 8 rectangles in different sizes. The aim was to understand the painting and further analyze it. The rectangles were moved further away in space and it was concluded somewhere in infinity they would intersect at a distant point.

Further, keeping the heavist mass static; all the other rectangles were placed at varying heights assuming they are in space. The smallest rectangle was placed at the bottom most quadrant.

The cube was dismantled by taking each face and removing each plane out of it. Each side out of the six faces was treated differently.

One by one, each side was distorted in a different way.

The planes removed from the sides were scattered in a glass box. Thus the black cube is slowly shattering and slowly the red cube comes closer to it from infinity.

This process continues till a point where the black cube is no longer in it’s original form. It has completely been broken into fragments and scattered in the glass box.

Finally, the one thing remaining is the red cube which comes closer to the black cube and takes its place. This shows the empowerment of positive over negative.

Concept 1

Since there is an overpowerment of the red cube over the black one, the initial idea was to distort or explode the black cube and slowly converting it into a red cube.

The cube could have been dismantled by removing its faces or by removing chunks of masses altogether.

Each face has red coloured on its front and black on its back Each facade can be accessed physically as well as visually.

People can view the change of colour from black to red in a dramatic way from the outside.

Later, the installation can also be used to access the space from inside.

The
Of Two Squares -El
Concept 2
Story
Lissitzky Scene 1 Scene 2 Scene 3 Scene 4

Corporate Office Semester 6 (2017)

Aim

The aim is to design a corporate office for the IT department of the multi national company WIPRO in Vadodara.

The site was a historic one called as the Shiv Mahal Palace located in Old Padra Road, Vadodara.

Design Concepts

The IT department offers a Hierarchial order of the work status within the employees.

Spaces need to flow into each other as well as be completely disconnected as well.

The historic site offers rigidity which needs to be broken with limited number of planes.

The site of Shiv Mahal has structural importance and defined boundaries

The concept is to break the boundaries without disturbing the structure. Thus, a curve was used as a visual and space dividing element

Solids, planes and transitional spaces are the ideal aspects of the design

The inspiration of expression using minimalist design was taken from the study of Bauhaus.

The planes may procure through the curve, merging it with the design the planes and curves are not treated as two separate entities.

Curves within the space -

A curve was used as a space dividing element and experimented with in different ways and forms to break the rigidity of the site.

The curve can be broken down into smaller fragments and can still be seen as one.

The vertical and horizontal planes penetrate the curve at different levels.

The height of the curve is played with, it does not remain constant throughout. Instead it starts at the eye level and gradually decreases.

Sliding and folding -

The partitions facilitate sliding and folding doors which provide the necessary privacy at times and also provide enclosures used for private meetings.

The spaces flow into each other and also can be completely restricted.

The Shiv Mahal Palace has an old structure and is culturally rich. This well defines the long standing company Wipro. However, for the younger generation that participates in the field, newer and trendy spaces are of importance. Therefore, a glass box was added for the newer and young employees. The pavement of the Shiv Mahal Palace leads upto this space. The TRANSPARENCY and the FLUID spaces allow recreational activities, dining and communication easier for the freshers.

The departments are separated through different floors but yet the spaces flow into each other providing fluidity in the circulation of the space.

Division through planes and solids (furniture and partitions)

Circulation within the glass box

The IT department consists of freshers and young trainees. The glass box provides transparency and the spaces facilitate connection and communication amongst the employees. Free flowing spaces allow more user interaction and recreational activities.

washroom washroom common area workspace workspace workspace workspace connecting space connecting space common area workspace workspace

Working Drawing Semester 5 & 6 (2016)

Topics

- The first set are the working drawings for a commercial kitchen of a restaraunt in Vadodara called Cibos.

- The second set are the workings of a residential kitchen.

- The third set are the workings of a residential bathroom.

(Working drawings of a commercial washroom have also been done, a mall in the city of Vadodara was chosen)

Schroder House by Gerrit Rietveld continues to impress architects and interior designers with its innovative solutions to prominent design questions of its time.

The flexibility of the interior spaces and the obviously planar quality of the house both give it an edge that makes it distinguishable and unique on every level.

The Schroder House is the only building that was designed in complete accordance with the De Stijl style, which was marked by primary colors and pure ideas.

The two-story house contains a transformable kitchen/dining/ living area, studio space and reading room on the bottom, and the second floor contained bedrooms and storage space, only separated by portable partitions.

“sought for the universal, as the individual was losing its significance... abstraction, precision, geometry, striving towards artistic purity and austerity.”

- Piet Mondrian

The Schroder House

History Semester 4 (2016)

- Open play, Non standard size of openings

- Intersection of two windows

Sense of floating space above the first floor

- No strict walls

- Elimination of corner

Open corner

- Interiors Moving walls Fixed pieces of furniture

- Sliding and folding structures, interlocking planes allow spaces to open and close permutable combinations

- Dutch brick and wood construction

- Elevations Blur interior and exterior Color, placement and separation

- X,Y,Z axis between all linear elements and planes

- Components of facades detachable and glide past one another

“ Structure creates spaces”

RSP 1

Location - Umbermata village, Dudhani, Dadra and Nagar haveli

The houses were self made using bamboo and mud. People engaged in cattle rearing and farming.

The people earned their living in the form daily wages. Indoors included a common room, sleeping area, kitchen and storage, cattle shed, small attached garden, service area. Floor Plan

Elevation Section Section
Roof Plan

RSP 2

Location - Spiti Valley, Kibber Village ; Himachal Pradesh

Kibber village lies on the highest peak of the himalayas.

People stay indoors for 6 months during the winters.

People build their own houses using mud, wood and bamboo.

Other places visited during the trip were Shimla, Chitkul, Kaza, Kalga and Nazo.

Floor Plan

Monastry Kibber Street Elevation Monastry Elevation Monastry Section
Sketches and Paintings

Mandala Art

Turn static files into dynamic content formats.

Create a flipbook
Issuu converts static files into: digital portfolios, online yearbooks, online catalogs, digital photo albums and more. Sign up and create your flipbook.