Architectural Portfolio

Page 1

ARCHITECTURAL PORTFOLIO

E-MAIL: tszkit22@gmail.com tel: (852) 6423 8848 BY ANDY LEUNG YEAR 2017YEAR 2024

ANDY LEUNG

23-24

RESIDENTIAL DEVELOPMENT PROJECT @ A+T DESIGN

Checking Statutory requirements

Prepare full tender package Attend project meeting

22-23 drawing updating using revit full set drawing production layout & elevation drawing

LANEWAY HOUSE RENNOVATION @ GUIDO DESIGN STUDIO

22-23 drawing updating using revit attending cilent meeting rendering production full set drawing production

14-15 cilent brief meeting site visit - site measurement & meeting layout & elevation drawing rendering production

DESIGN PRESENTATION

BAKERY SHOP INTERIOR RENNOVATION @ GUIDO DESIGN STUDIO

KOWLOON BAY VILLA INTERIOR DESIGN @ IMPRESSION DESIGN WORKSHOP

14-15 layout & elevation drawing detail drawing site inspection

JAPANESE RESTAURANT AT CENTRAL INTERIOR DESIGN @ IMPRESSION DESIGN

SELECTED INTERIOR / ARCHITECTURE DESIGN WORK TOOL USED

REVIT, AUTOCAD, PHOTOSHOP, RHINO, SKETCHUP INDESIGN, MICROSOFT OFFICE

E-MAIL: tszkit22@gmail.com tel: (852) 6423 8848 BY ANDY LEUNG YEAR 2017YEAR 2024
INTERIOR + EXTERIOR RENDERING - BAKERY SHOP AT BLOOR STREET
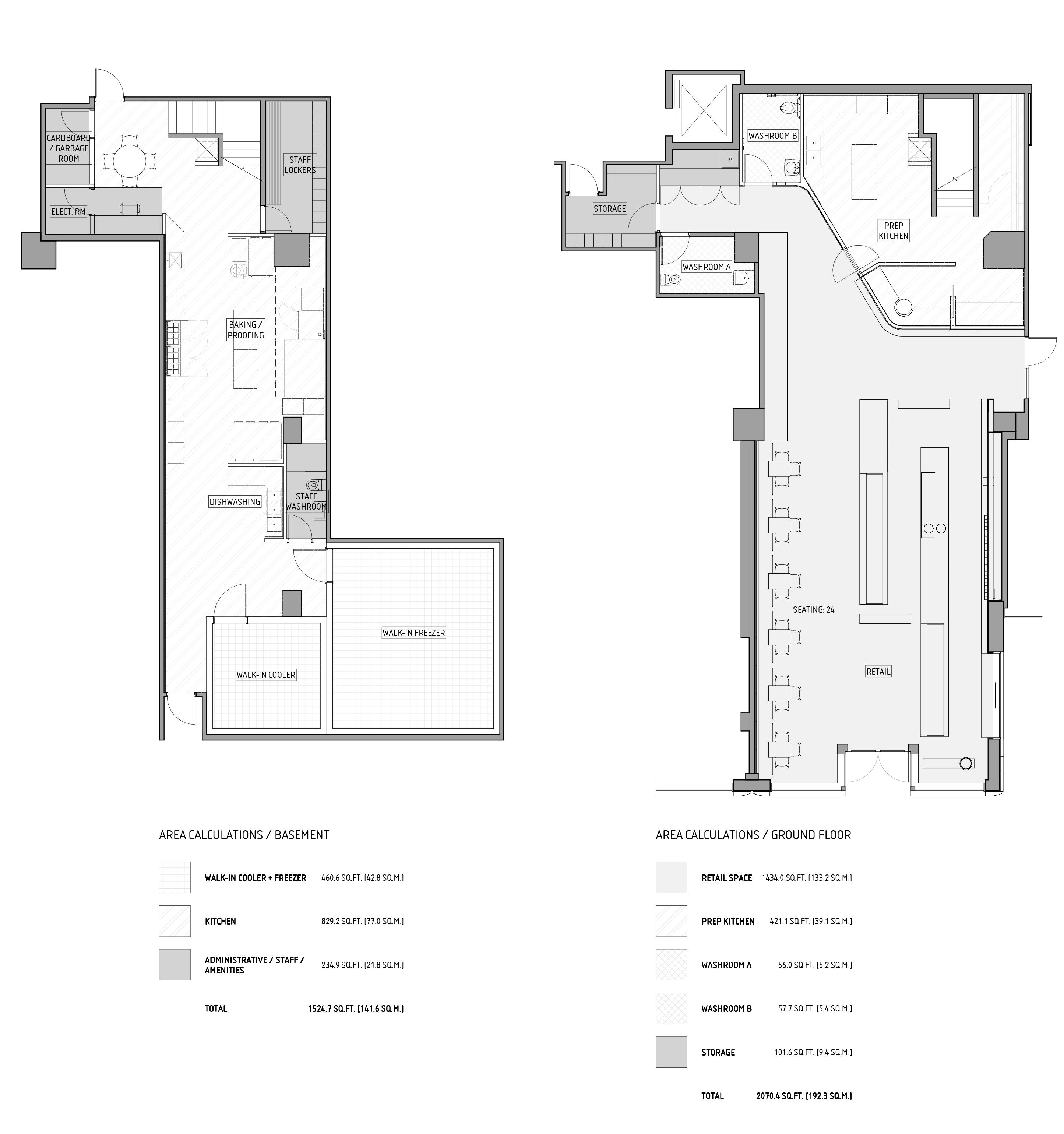
LOCATION PLAN + PROGRAM PLAN - BAKERY SHOP AT BLOOR STREET
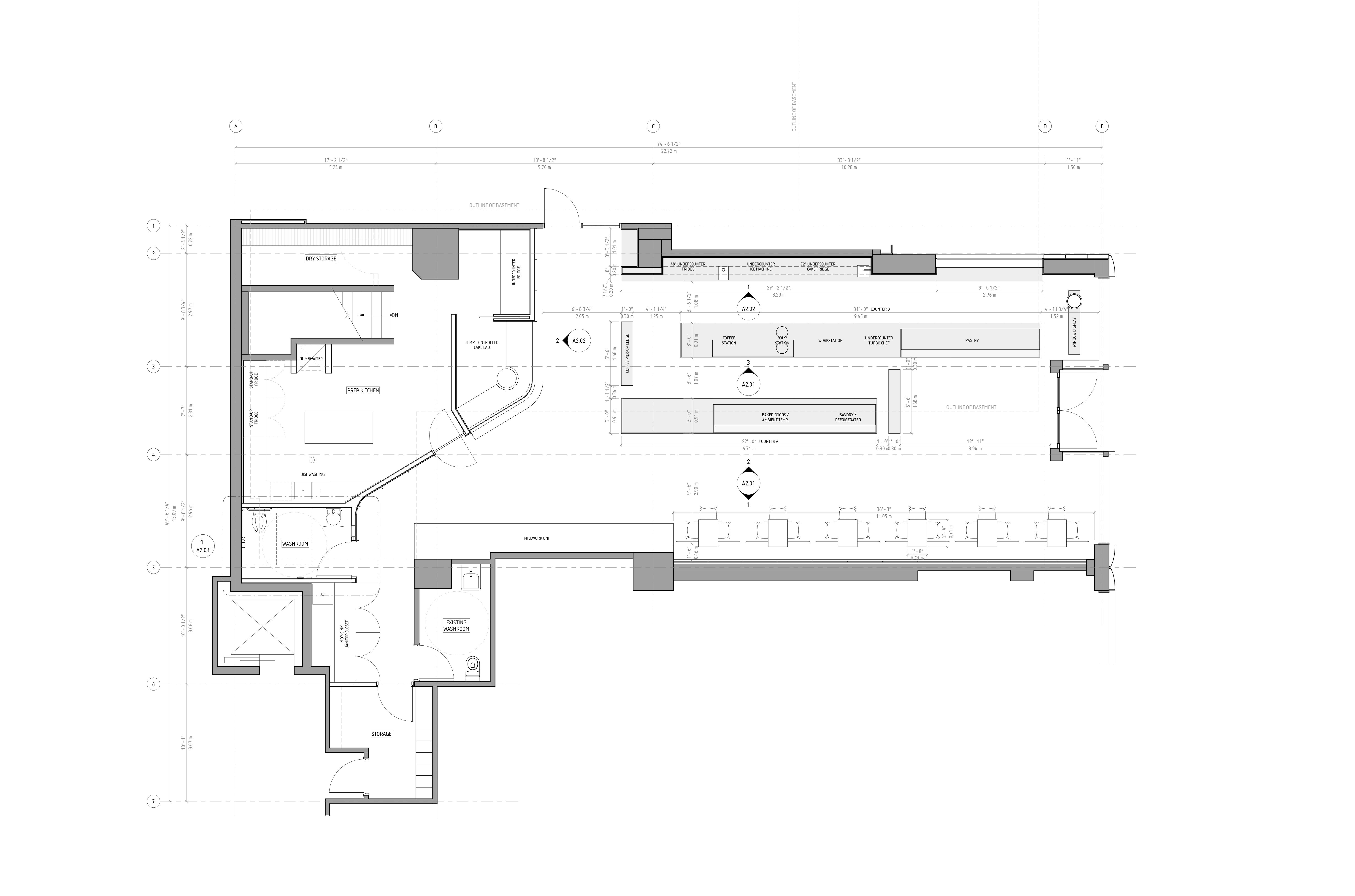
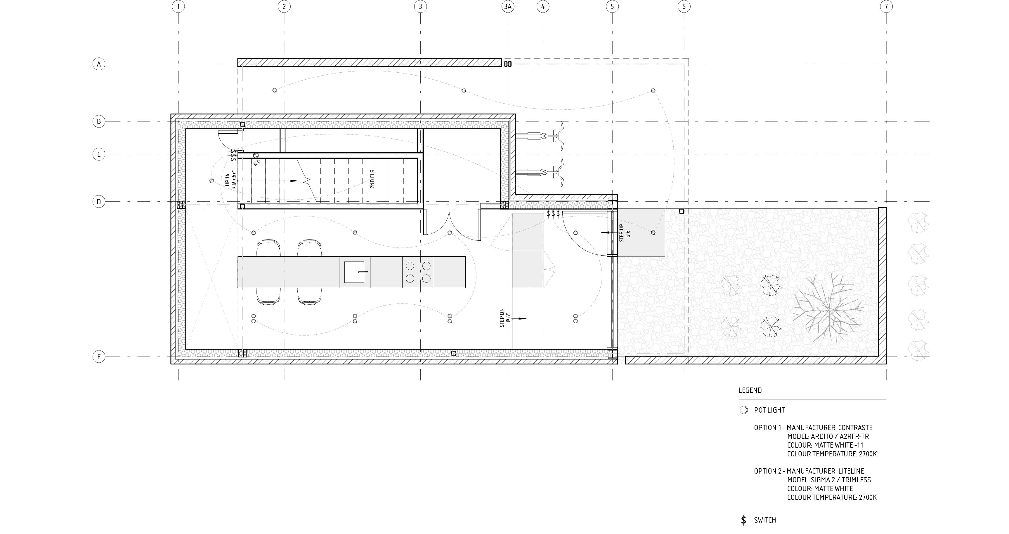
FURNITURE FLOOR PLAN - BAKERY SHOP AT BLOOR STREET
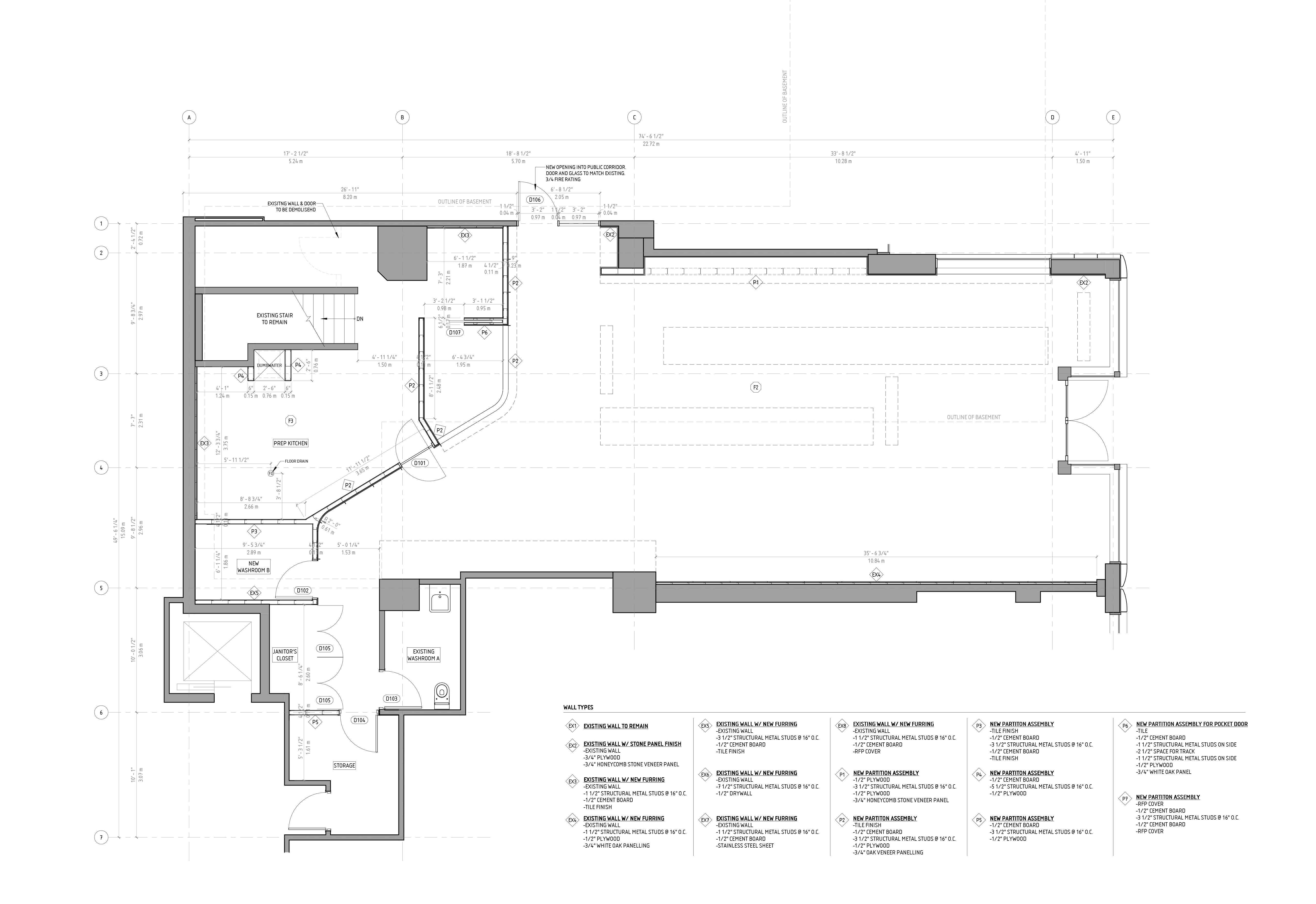
PARTITION PLAN - BAKERY SHOP AT BLOOR STREET
ELEVATION DRAWINGS - BAKERY SHOP AT BLOOR STREET
ISLAND COUNTER DESIGN PROPOSAL - BAKERY SHOP AT BLOOR STREET
EXTERIOR PERSPECTIVE - LANEWAY HOUSE RENNOVATION
FACADE COMPARISON DIAGRAM - LANEWAY HOUSE RENNOVATION
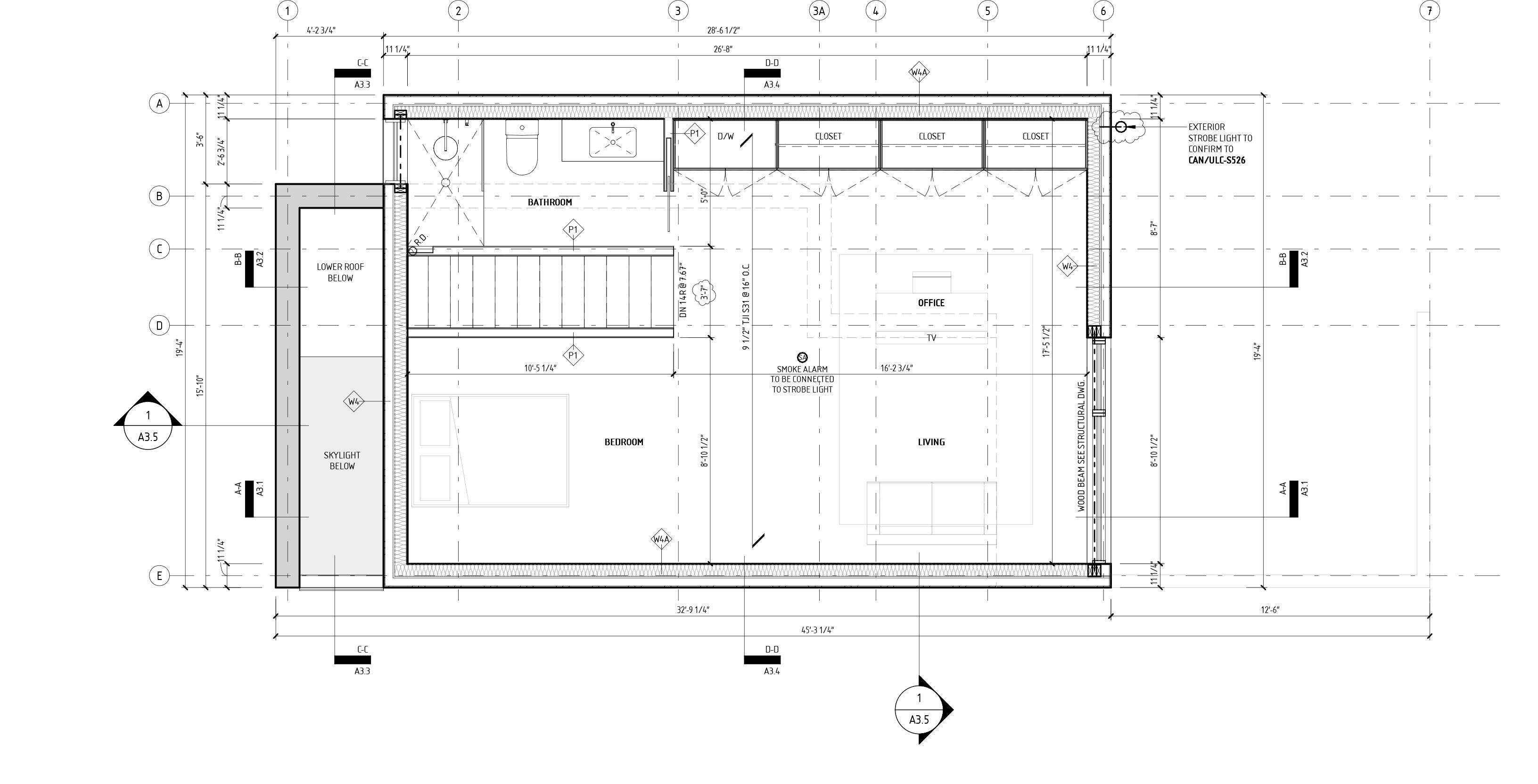
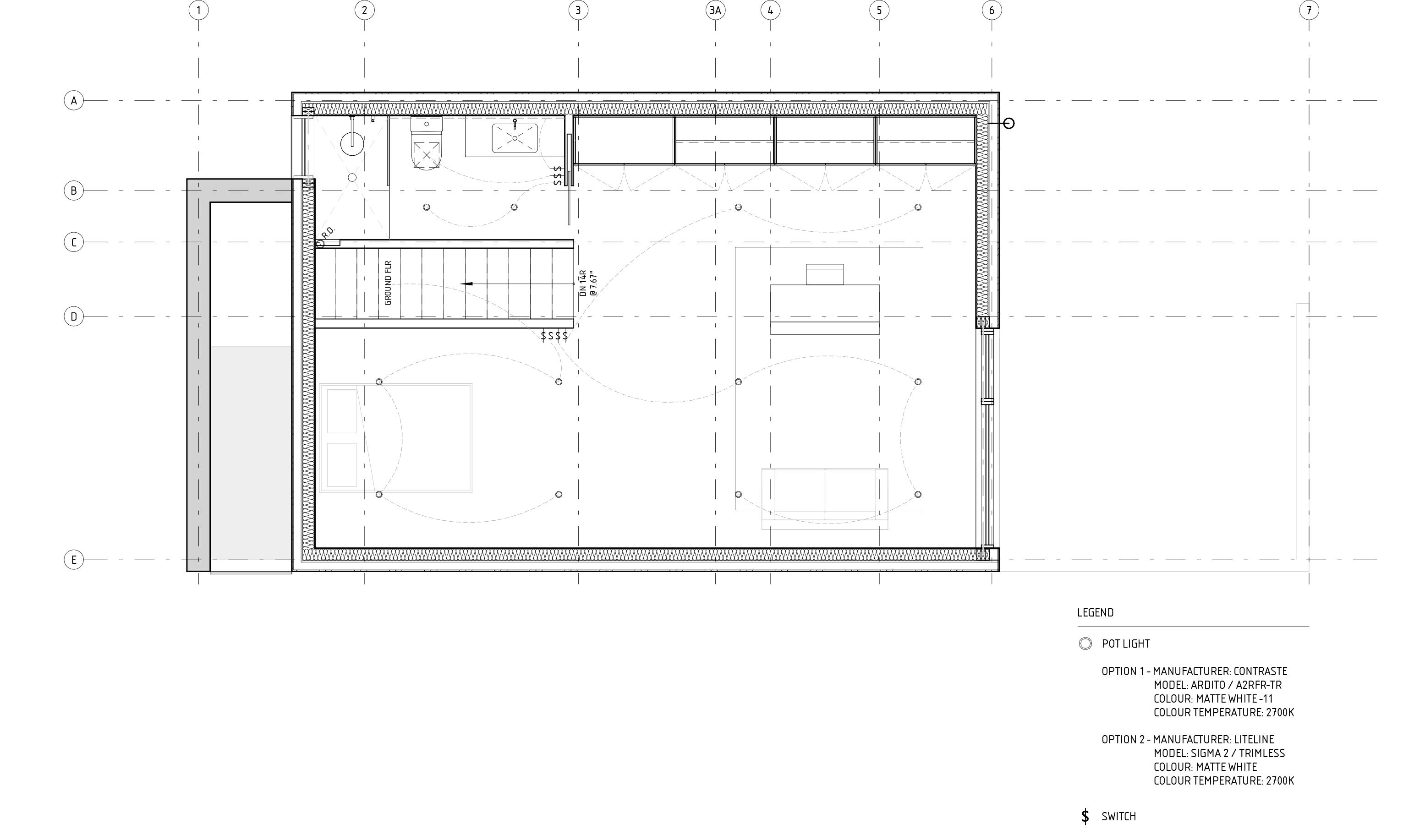
UPPER FLOOR PLAN - LANEWAY HOUSE RENNOVATION
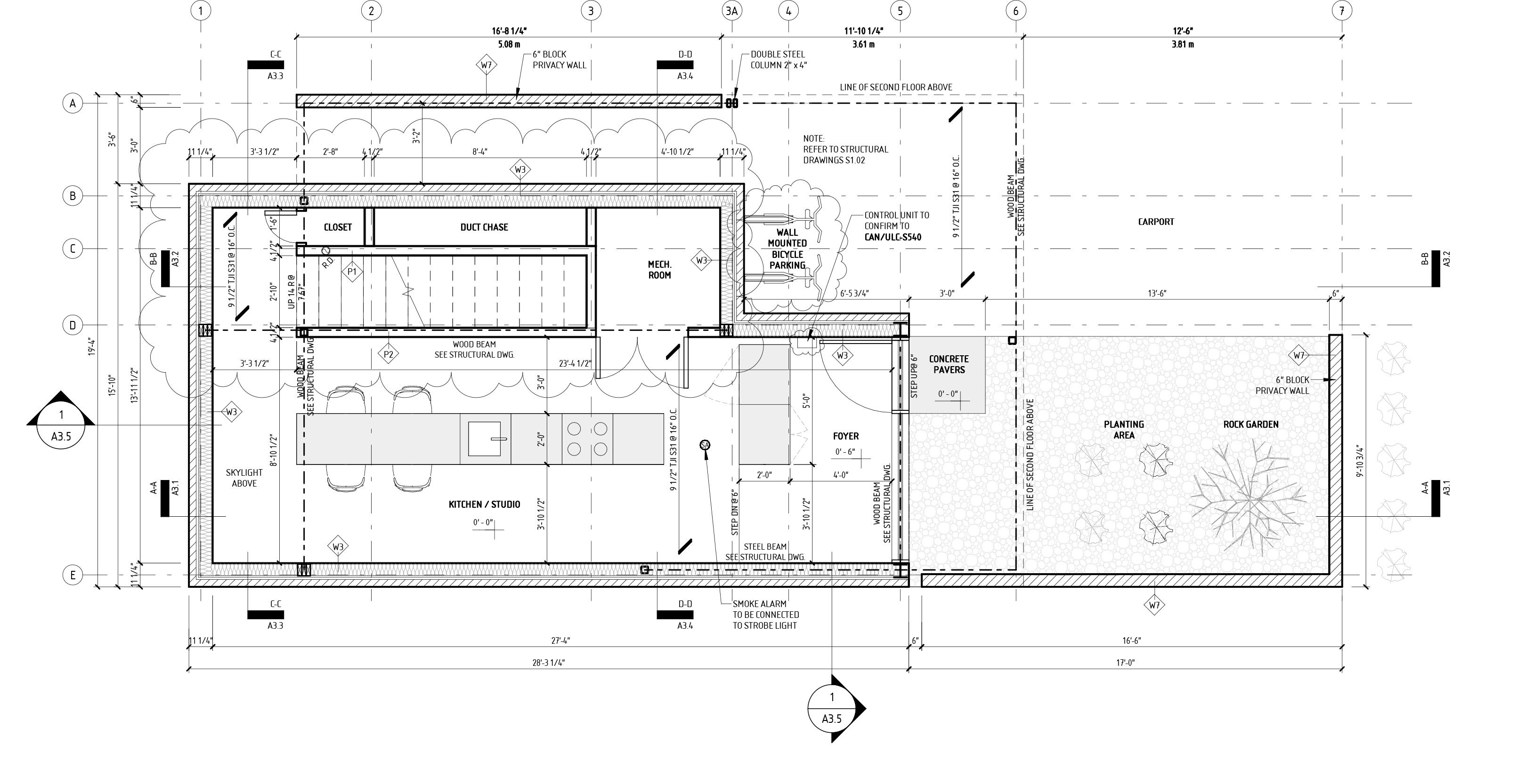
LOWER FLOOR PLAN - LANEWAY HOUSE RENNOVATION
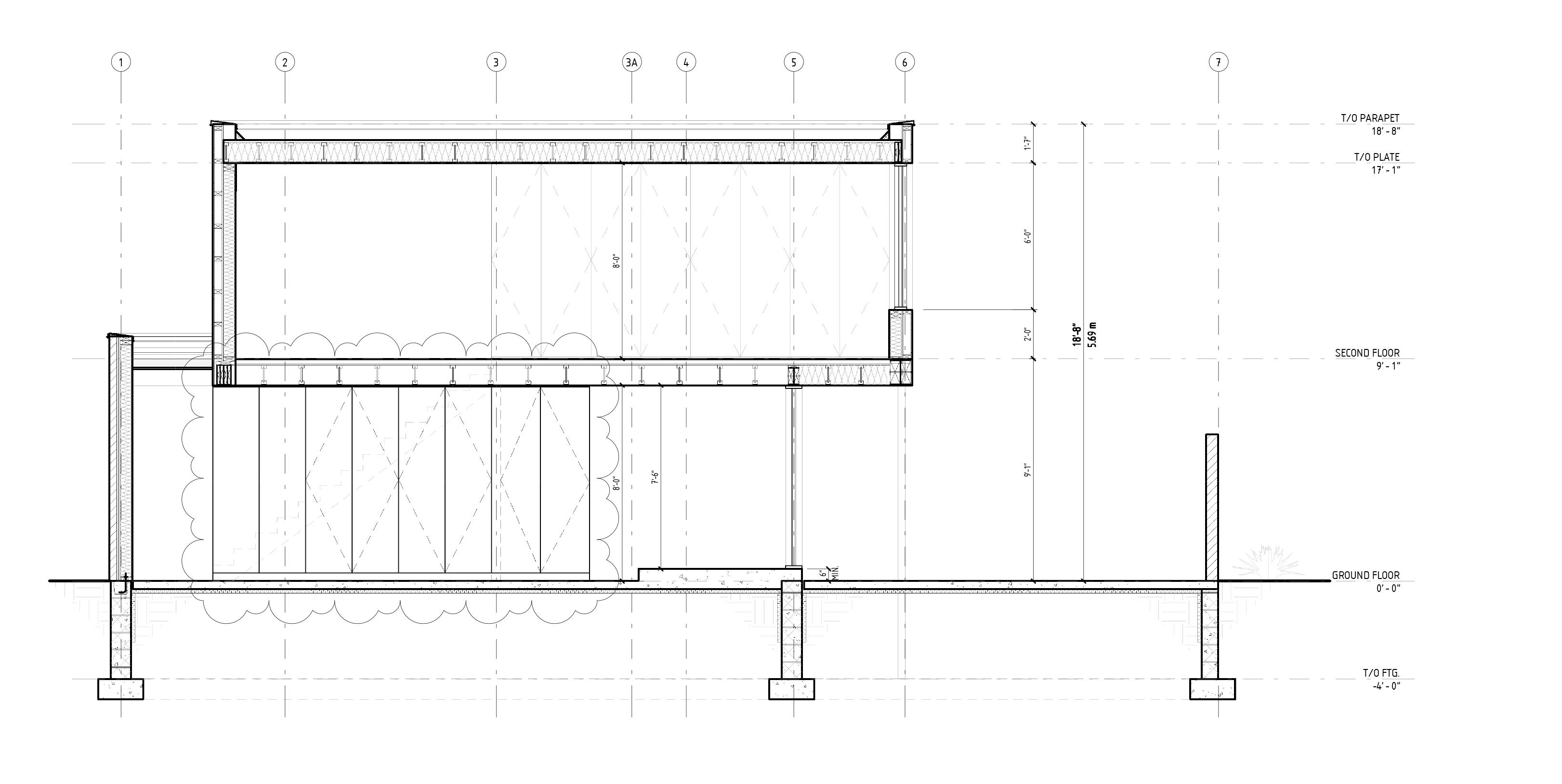
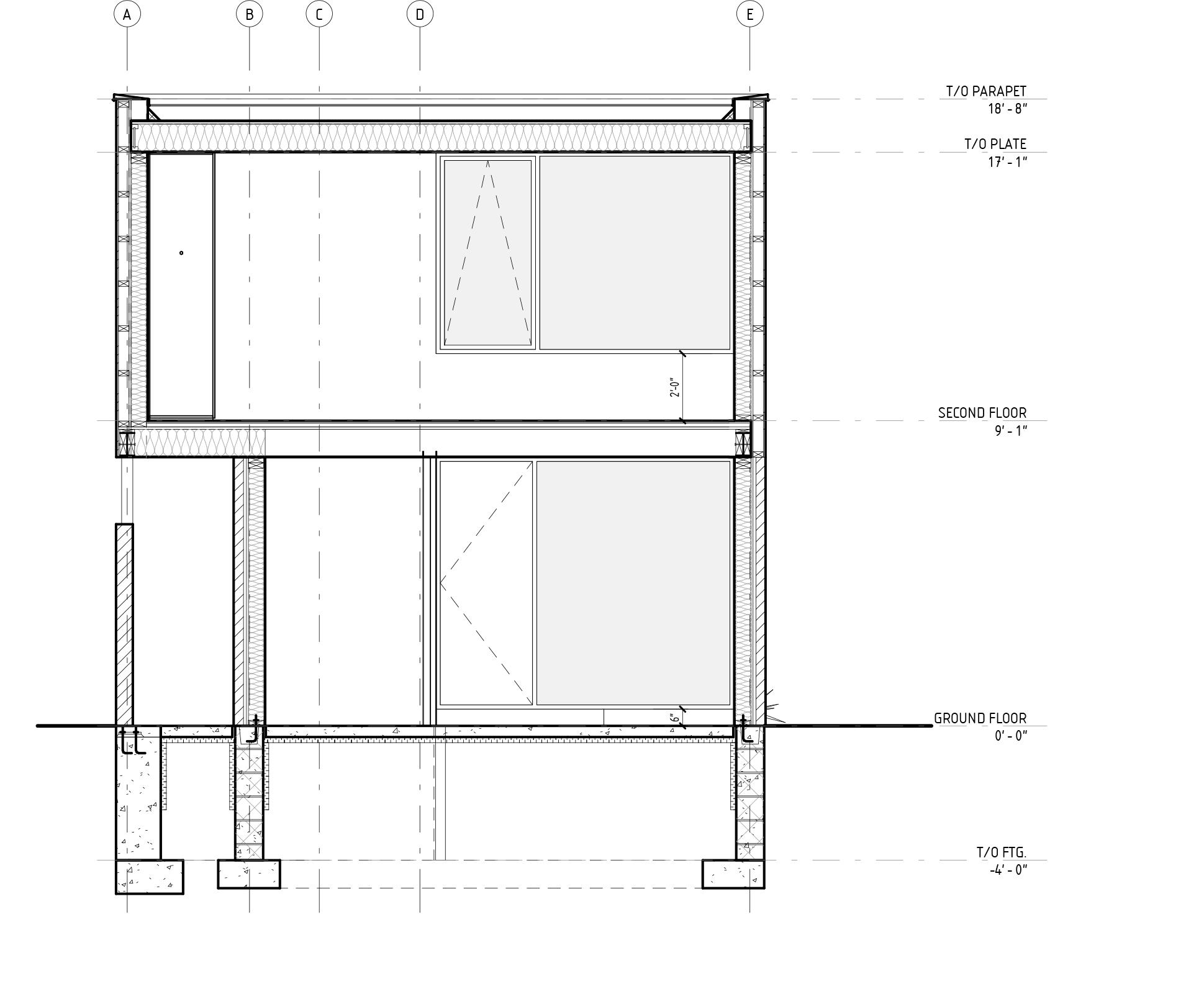
SECTION - LANEWAY HOUSE RENNOVATION
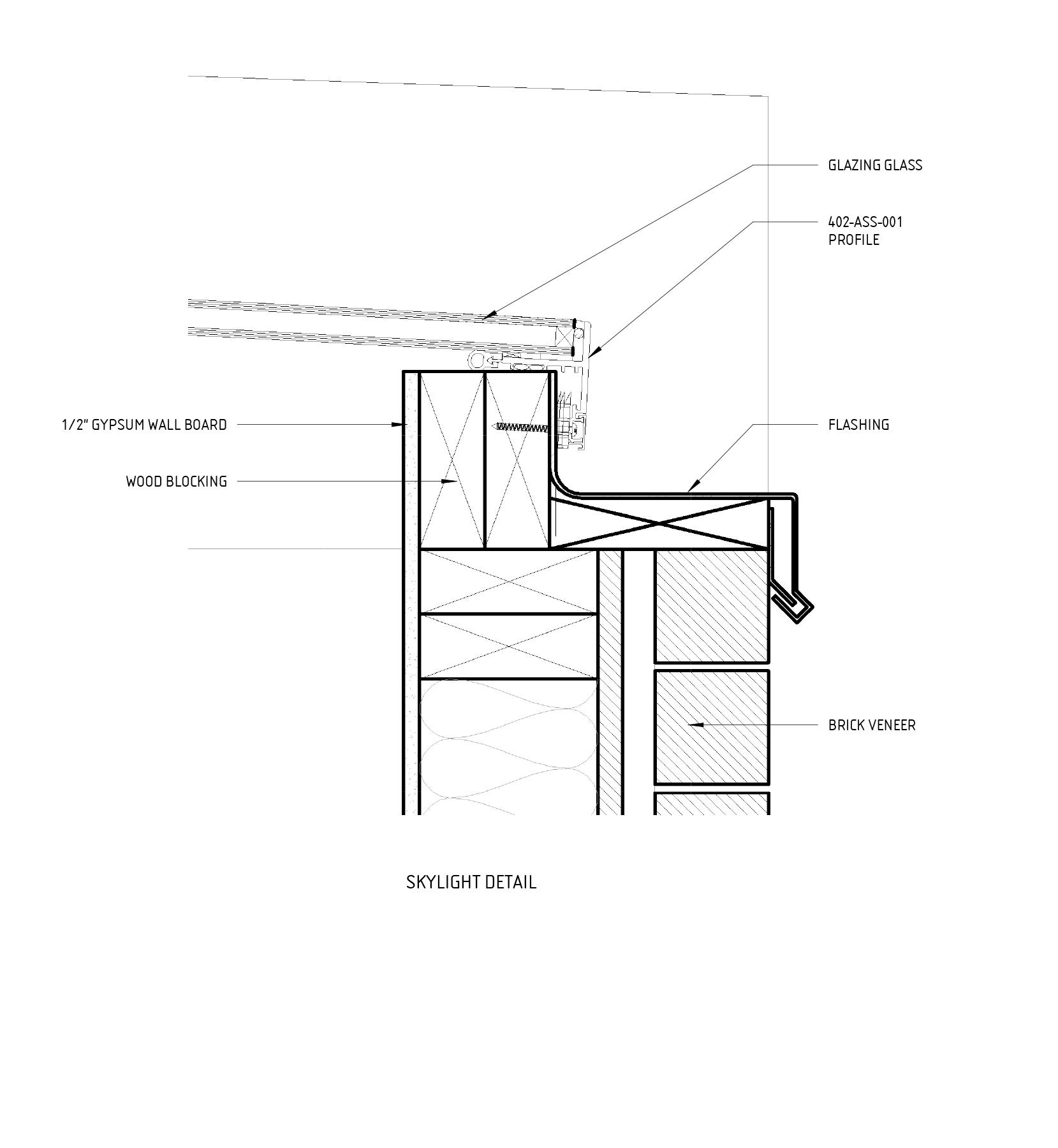
SKYLIGHT & PARAPET DETAIL - LANEWAY HOUSE RENNOVATION
RESIDENTIAL DEVELOPMENT PROJECT - REFERENCE IMAGES
ENTRANCE PERSPECTIVE RENDERING
CLUBHOUSE PERSPECTIVE RENDERING
ENTRANCE ELEVATION TENDER DRAWING
ENTRANCE SECTION DRAWING
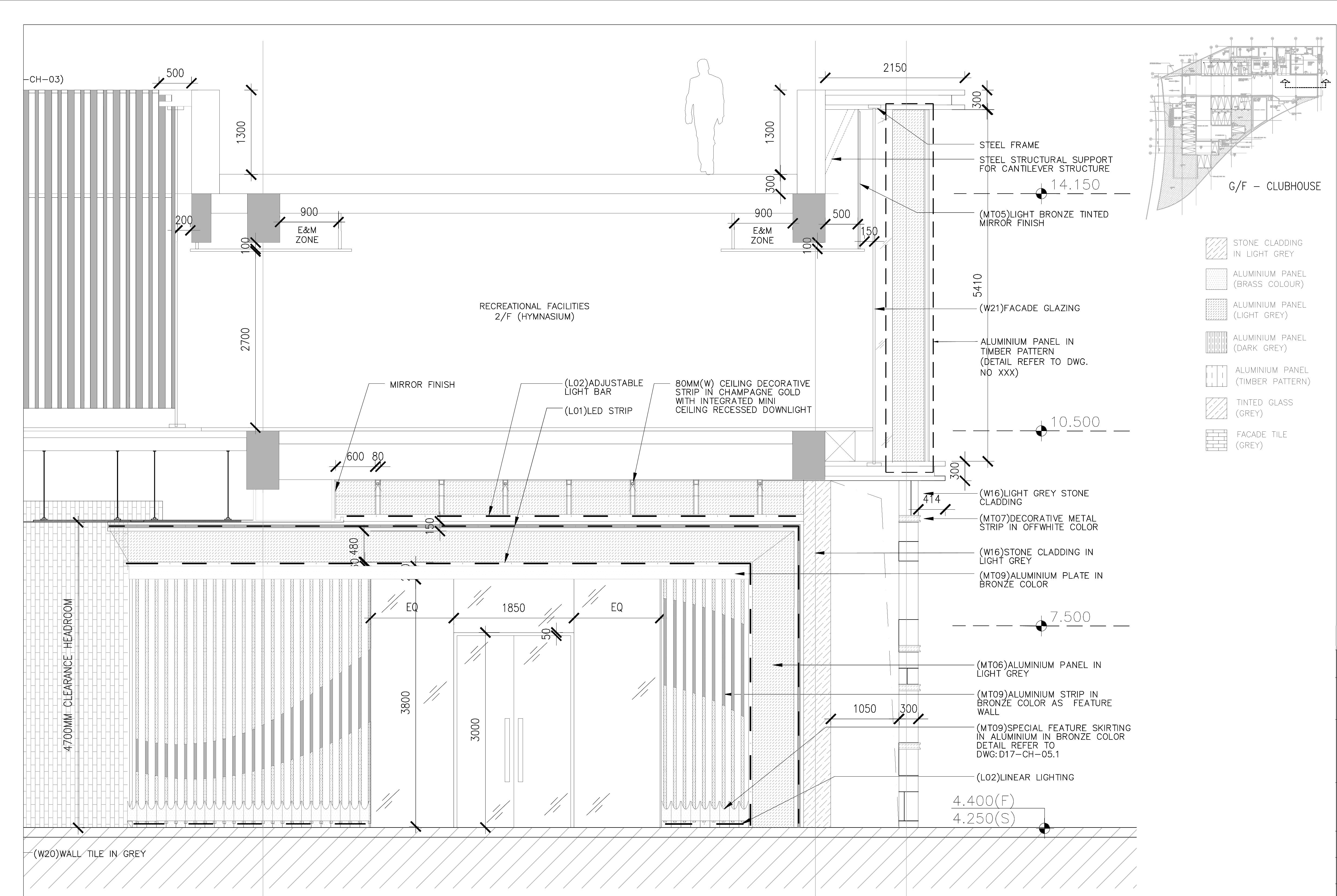
CLUBHOUSE ENTRANCE ELEVATION DRAWING
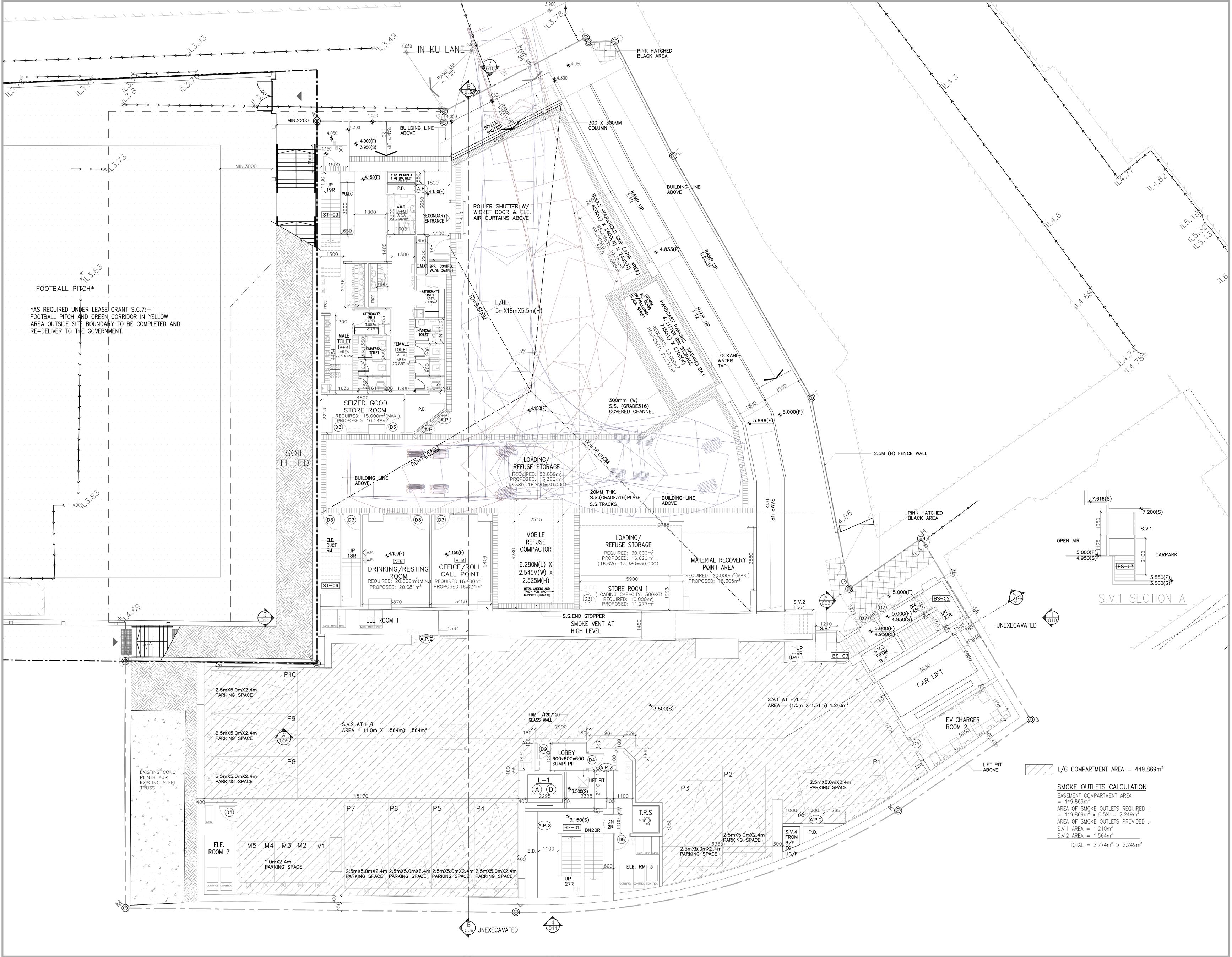
FACADE ELEVATION AND GROUND FLOOR PLAN DRAWING
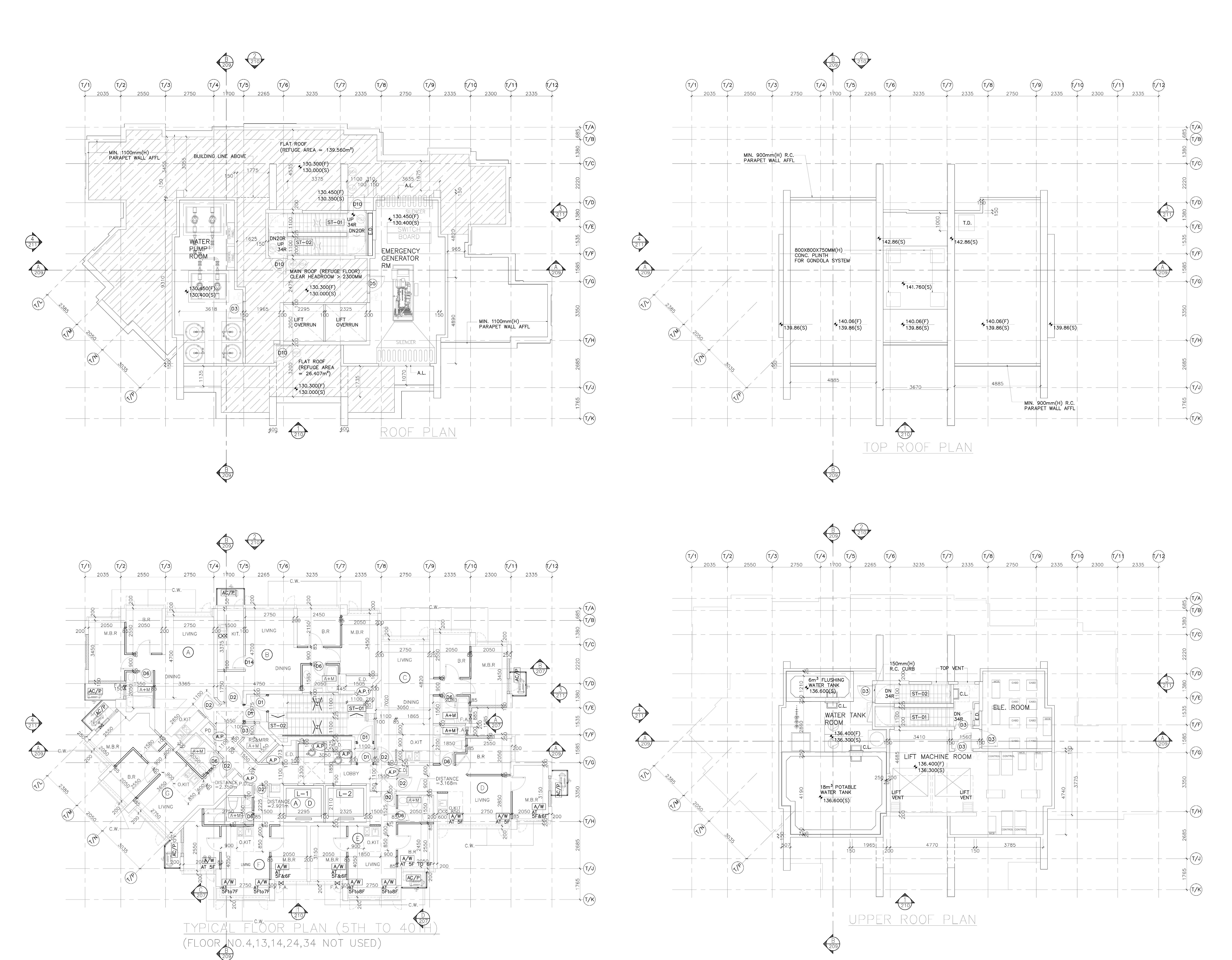
TYPICAL RESIDENTIAL FLOOR DRAWING
tszkit22@gmail.com (852) 6423 8848

Turn static files into dynamic content formats.

Create a flipbook
Issuu converts static files into: digital portfolios, online yearbooks, online catalogs, digital photo albums and more. Sign up and create your flipbook.