


![]()



CALLE LOS ÁNGELES
Se diseñó desde cero cada ambiente del primer piso de la vivienda, abarcando baños, cocina, dormitorios y lavandería. Cada espacio fue planificado y creado para optimizar la funcionalidad y estética, proporcionando un ambiente moderno y eficiente.


ESTADO ACTUAL DE LOS AMBIENTES VIVIENDA CAÑETE


RECIBO Y BAÑO DE VISITAS SALA

DORMTIORIO PRINCIPAL
ESTADO ACTUAL DE LOS AMBIENTES VIVIENDA CAÑETE











VISTAS DEL DISEÑO VIVIENDA CAÑETE




VISTAS DEL DISEÑO VIVIENDA CAÑETE






LIMA -- PER Ú
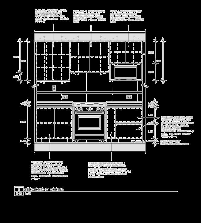
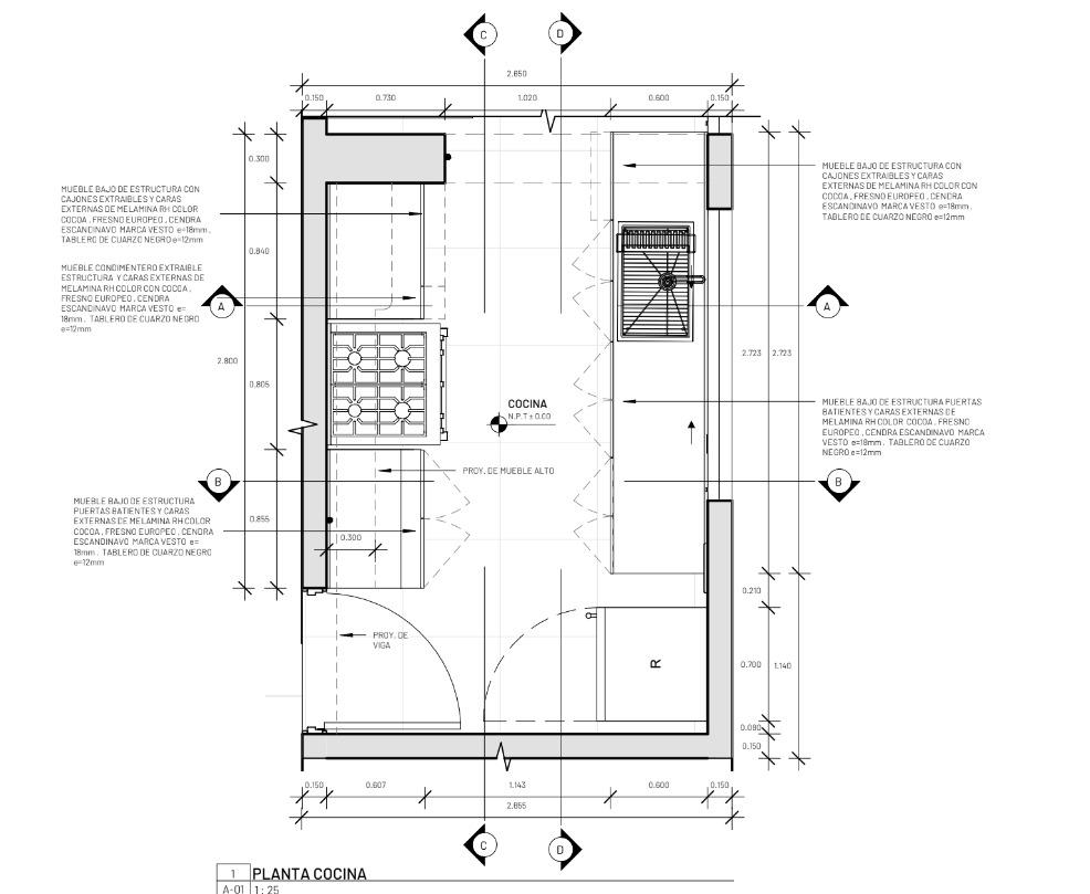
Se realizó una remodelación integral del departamento Los Ángeles, abarcando dormitorios, sala y baños. El proyecto incluyó el diseño de closets en todos los dormitorios, muebles a medida en la cocina, un mueble para el baño principal y un tocador personalizado. Estas mejoras incrementaron significativamente la funcionalidad y estética del espacio.



DL AMBIENTE (DORMITORIO PRINCIPAL)




(DEPARTAMENTO - LOS ÁNGELES)

CLÓSET DE DORMITORIO SECUNDARIO

CLOSET 1 DE DORMITORIO PRINCIPAL

CLOSET 2 DE DORMITORIO PRINCIPAL






































