Property Appraisal – 99 Brookvale Road

Page 1

Brookvale99Road Property Appraisal

Our aim is for you to enjoy the best of service and to that end we are always available to discuss any aspect of your marketing and selling process. To be successful we need to get results.

For you, that means getting your ‘For Sale’ sign changed to a ‘SOLD’ sign for the best possible price, in the shortest time frame. I stand behind the entire Tremains team and I take pride in personally endorsing their efforts. When you choose to work with us you tap into a wealth of experience and brands that will help you achieve the best possible price for your property in the shortest possible time. We work as a team. As such, we bring an extensive database of buyers to our vendors.

Simon Tremain Managing Partner

If at any time you would like to discuss your real estate questions or concerns, you can email me directly at simon.tremain@tremains.co.nz. I am available to speak with any vendor or buyer.

Why Tremains?

2 | 99 BROOKVALE ROAD PROPERTY APPRAISAL

Jarrod Lowe Jarrod Lowe +64 27 442 2677 jarrod.lowe@tremains.co.nz

“Over the years I’ve dealt with people from pretty much every walk of life, both when running my businesses and now in real estate. I pride myself on the ability to build relationships and ask the right questions to get a deep understanding of what it is a person wants. Jarrod has always been active in the local community and is a major supporter of Waimarama Surf Lifesaving. Working in partnership with Susie Sturt, Jarrod and Susie’s combined strengths are exactly what you need when selling your property.

Jarrod’s strong local knowledge and his impressive network of contacts built up over the past 25 years reflect his innate understanding of people and their goals. His affable communication style and service mentality built up during his time as a business owner are attributes that benefit all Jarrod’s buyers and sellers.

99 BROOKVALE ROAD PROPERTY APPRAISAL | 3

Local, well-connected and bringing a fresh approach to real estate, Jarrod has achieved exceptional results to his clients since joining Tremains over two years ago. Born and bred in Hawke’s Bay, Jarrod has lived here all his life and owned several high-profile businesses in the region.

Susie Sturt +64 21 894 770 susie.sturt@tremains.co.nz

An accomplished salesperson with nearly two decades of residential sales behind her, Susie is renowned for possessing the ability to consistently deliver successful results to her clients. Susie’s amicable personality, devotion and unparalleled customer service has resulted in a continuously expanding network of loyal clients and referrals. With a natural talent for interior design and landscaping, Susie’s creativity is a competitive asset when marketing your home for sale. Previously, Susie worked for over 20 years with her landscaping business in Auckland and Hawke’s Bay and will happily help enhance the presentation of your home when you’re ready to sell.

Susie has the perfect formula for success – an approachable personality combined with honesty, an exceptional wealth of market knowledge and ability to tell it like it is. During her down time Susie can be found working hard in her garden or enjoying the fabulous food and wine Hawkes Bay has to offer. Susie works in partnership with Jarrod Lowe, giving you a wealth of combined strengths that are exactly what you need when selling your property.

Susie Sturt

4 99 BROOKVALE ROAD PROPERTY APPRAISAL

- J & R Jones

99 BROOKVALE ROAD PROPERTY APPRAISAL 5

What our clients are saying

" We initially had considerable trepidation about selling our home but were filled with confidence from our first meeting with the team. They had a warm and friendly manner with a positive attitude towards the selling of our home. They were both very knowledgeable about the market and the real estate process giving us the reassurance that we needed, answered our many questions willingly and with intelligence. The team were friendly and very respectful towards us, always punctual and communicated regularly with updates to keep us fully involved. We appreciated their attentiveness during the whole process and were impressed by their professionalism."

- Lin & Phil

- C & B Hastie

" We invited the team to give us an appraisal on our property which we were hoping to sell. We had been to some of their open homes and were impressed with their professional approach and obvious experience. We employed them after meeting them and accepted their appraisal which was spot on. Before each open home Susie came in to help set up and advise on anything needing attention. She also gave us great advice on staging. Working with the team was great, a fun experience as they have great humour, the price achieved was in the range they predicted and sale time very rapid. We have no hesitation in recommending them to anyone wishing a good real estate experience. Thanks guys."

" We wish to compliment the team for the sale of our home. Their enthusiasm and knowledge of the real estate market is outstanding. They kept us regularly informed by their colourful brochures and phone calls, also calling personally to discuss progress. Both are trustworthy and honest in all their dealings, their guidance and the warmth they have was very much appreciated,  it was a pleasure to be in their company. We were very satisfied and thank them both. If you are looking for someone to market your home you could do no better than to contact them."

6 | 99 BROOKVALE ROAD PROPERTY APPRAISAL It's our job to help you understand what your property is worth. In the following pages we will: • Give an overview of the current market • Understand your property details • Look at where your property sits in the market by comparing it to similar properties that have recently sold, or are currently for sale in your area • Give you a clear understanding of the sales process • Suggest a marketing strategy aimed at attracting the right buyers • Define your buyers' market *This quarter when compared to the same quarter last year. Sales data sourced from REINZ. Sales data included were not all sold by Tremains. Havelock North July 2022 Our market update 12.7% $1,000,000 $1,145,500 Median sale price has decreased Median sale price May – July 2022 Median sale price May – July 2021 this quarter comparedwhento May – July 2021 45 41 vs. 31 Days - July 2021Hawke's Bay wide Total Tremains Sales July 2022 Median days to sell July 2022

Property Features: • Located

Our

emotional

your

• Right

• Resource

99 BROOKVALE ROAD PROPERTY APPRAISAL 7 Your property

• Sunny

Original 1930's home now being subdivided into 5 sections. Located on the ever popular Brookvale Road these 5 sites are in a secluded enclave with a private drive to 3 of the sections Lot 3, Lot 4 and Lot 5. in the desirable Brookvale area Close to the local schools, reserves and the village sites with elevated position Consent HDC – conditions to be satisfied of way to rear sites goal is to get you the maximum price for property by identifying key details and features. Land Area: Lot 1 – 500 sqm Lot 2 – 526 sqm Lot 3 – 522 sqm Lot 4 – 524 sqm Lot 5 – 532 sqm Rateable Value: TBA Land Value: N/A Improvements: N/A Hastings District Council Rates: TBA Hawke's Bay Regional Council Rates: TBA Legal Description: Subject to Title Title: HB138/148 Lot 1 500 sqm Lot 2 526 sqm Lot 3 522 sqm Lot 4 524 sqm Lot 5 532 sqm

• This property has settled

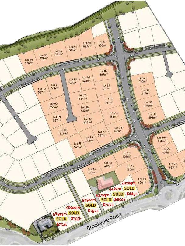
• Larger site • Street frontage 89 Brookvale Road, Havelock North Sale price: $685,000 Sale date: 23 May 2022 Section size: 482 sqm • Trio of properties with this being the largest of the three

• This property has settled • Elevated sunny site 87 Brookvale Road, Havelock North Sale price: $650,000 Sale date: 21 Jan 2022 Section size: 442 sqm • Located in the same vicinity • Settlement date is 19 Jan 2024 for this site • Smaller site. Sold by negotiation • Inferior site size, street frontage 81 Brookvale Road, Havelock North Sale price: $700,000 Sale date: 23 May 2022 Section size: 549 sqm

• This property has settled • Sold by negotiation • Elevated site Below is a snapshot of some of the most comparable sales of properties in your area

All care has been taken in preparing this appraisal, Tremain Real Estate (2012) Limited MREINZ REAA its directors, or employees accept no responsibility for the accuracy of the information at any time including liability in negligence to any other person. This information was obtained from the REINZ, RPNZ & Property Guru statistics. Whilst we believe this information is accurate, no liability can be accepted by Tremain Real Estate (2012) Limited, its directors or employees for copy error or omission.

8 | 99 BROOKVALE ROAD PROPERTY APPRAISAL

• This property has settled

• Larger site similar to above • Street frontage 85 Brookvale Road, Havelock North Sale price: $650,000 Sale date: 19 Jan 2022 Section size: 437 sqm • Same as above • Street frontage • Settlement date is noted as 19 January 2024 Sold by negotiation 79 Brookvale Road, Havelock North Sale price: $755,000 Sale date: 23 May 2022 Section size: 569 sqm • Sold at auction in December 2021

77 Brookvale Road, Havelock North Sale price: $725,000 Sale date: 23 May 2022 Section size: 569 sqm • Sold at auction in December 2021

Sold comparative market analysis

• Sold at auction in December 2021

Lot 14 Brookvale Road, Havelock North Advertised sale price: By Negotiation Section size: 447 sqm Valuation date: 1 Aug 2019

All care has been taken in preparing this appraisal, Tremain Real Estate (2012) Limited MREINZ REAA its directors, or employees accept no responsibility for the accuracy of the information at any time including liability in negligence to any other person. This information was obtained from the REINZ, RPNZ & Property Guru statistics. Whilst we believe this information is accurate, no liability can be accepted by Tremain Real Estate (2012) Limited, its directors or employees for copy error or omission.

99 BROOKVALE ROAD PROPERTY APPRAISAL | 9

Comparative sales on the market

Lot 15 Brookvale Road, Havelock North Advertised sale price: By Negotiation Section size: 472 sqm Valuation date: 1 Aug 2019

Lot 18 Brookvale Road, Havelock North Advertised sale price: By Negotiation Section size: 664 sqm Valuation date: 1 Aug 2019

Lot 28 Brookvale Road, Havelock North Advertised sale price: By Negotiation Section size: 606 sqm Valuation date: 1 Aug 2019

Below is a snapshot of some of the most comparable properties for sale in your area

Lot 27 Brookvale Road, Havelock North Advertised sale price: By Negotiation Section size: 633 sqm Valuation date: 1 Aug 2019

10 | 99 BROOKVALE ROAD PROPERTY APPRAISAL

Builders Are looking for a building with potential. Likely front of mind are options for extension, subdivision, or cosmetic enhancement, where they can utilise their skills to add value.

Families Are looking for a property which fits the needs of their family. Whether it be a good-sized backyard for the kids, a location close to schools and child care facilities, or to fit their expanding needs. Professionals Are looking for a solid investment which is likely low maintenance allowing them to enjoy the property in their spare time, without requiring a large amount of maintenance.

The results of our research indicate your property is likely to sell between:

Target Market: Our appraisal estimate: Lot 1 – 500 sqm $630,000 - $680,000 Lot 2 – 526 sqm $630,000 - $680,000 Lot 3 – 522 sqm $600,000 - $660,000 Lot 4 – 524 sqm $600,000 - $660,000 Lot 5 – 532 sqm $600,000 - $660,000

What does this mean for your property?

By identifying the right target market for your property, we can use the right marketing channels and pricing strategy to effectively reach buyers, for example:

12 | 99 BROOKVALE ROAD PROPERTY APPRAISAL Our recommended method of sale

How does a Tender work?

So, rather than deter buyer inquiry, listing with a no-price marketing method, alongside powerful advertising is a strategy designed to ensure a property gets the widest possible reach, creating more buyer interest, opportunity for multiple offers ensuring the best possible price.

Tender

A tender is a method where buyers submit confidential written offers for your property by a set date and creates a sense of urgency amongst potential customers. Offers can be accepted prior to the advertised close date, but this must be made clear in advertising. There is no reserve price but there may be a price guide. You have a five working day irrevocable period in which to decide which offer to accept. Benefits of selling by Tender: • Creates urgency as there is a fixed marketing period Competition is heightened which can lead to a premium price You have time to consider offers before you make a decision There is no ceiling on the price

Looking at all of the unique factors of your property we recommend going with a:

You can accept an offer before the tender date, if advertised The benefit of no priced marketing: No price marketing is a very effective way of attracting buyers - It is undeniable that ‘the market’ and ‘the buyers’ determine what a property is worth therefore listing without a price is better than listing at an over inflated listing price or selling for less than what a property is worth. Over pricing a property means your property will not attract buyers, therefore “no price” will attract buyers to the property for what the property offers enabling buyers to make an offer that they believe is fair market value.

availablefollowingmethodsalternativeofsale,theoptionsareforyou.

If you would like to explore

Auction Selling a property at Auction is an open process where buyers bid against each other. You set a reserve price before the auction and once this price is reached, the property is sold to the highest bidder.

By Negotiation

Fixed Price Properties can be advertised with a price. This method of sale still allows the buyer to negotiate with you on the price.

99 BROOKVALE ROAD PROPERTY APPRAISAL | 13

Deadline Sale A deadline sale is very similar to a tender process but is less formal and allows buyers to submit confidential written offers by a set date. Offers can be accepted prior to the advertised close date, but this must be made clear in advertising. There is no reserve price but there may be a price guide. Offers are made on a standard sale and purchase agreement rather than on specific tender documents.

Every method of sale explained

This strategy sees a buyer make an offer based on what they think your property is worth. Buyers have to do their own research to make this judgement then you can negotiate with them on price through a sales consultant.

Active Buyers Passive Buyers

Trade

14 | 99 BROOKVALE ROAD PROPERTY APPRAISAL

Active buyers are prospects that are already on the buyer's journey, they are committed to buying a property. They’re out there every Saturday or Sunday attending open homes and they’re online looking for new listings. If you advertise only online, these are the buyers you’ll reach utilising the traditional property portals. Active buyers are prime targets for our current vendors as they make up a largest proportion of the current buyer pool. These days, advertising your property online is a non-negotiable. Not only does it reach active buyers, it also casts a wide net to reach local and out-ofarea purchasers. We target active buyers using the following methods:

List

Passive buyers are people that are not actively looking to buy property, in fact, they might not have even considered moving at all. It might be that they’ve driven or walked past your home and always admired it. It might be a curious neighbour having a quick look. Or it might be that there is some aspect of your home that so suits them and that they fall in love with that it entices them to move. Whatever it is, you want a marketing strategy that also targets passive buyers. Our passive marketing approach includes tremains.co.nz, Me Property, Globally, Realestate.co.nz, Homes.co.nz, Oneroof.co.nz, Stuff.co.nz

2. Digital Marketing (Google Display Ads) 3. Social Media (Facebook and Instagram) 4. Open Homes 5. Print Media 1. Digital Marketing (Google Display Ads) 2. Social Media (Facebook and Instagram) 3. Open Homes 4. Print Media

the following: 1. Online portals:

151 DURHAM DRIVE PROPERTY APPRAISAL | 15 Wk01 Wk02 Wk03 Wk04 Wk05 Wk06 Wk07 Wk08 Wk09 Wk10 Buyer interest over listing period When marketing your property the first 30 days are crucial to reaching the right buyers

High quality real estate publications, produced by our own in-house marketing team. REAL Property Magazine is distributed online fortnightly to our sales consultants databases and on our Tremains Facebook page. Taupō Property Press Magazine runs fortnightly and is distributed into print bins throughout Taupō. Advertising in these publications is proven to cut through the clutter and provide highly effective and targeted marketing to both active and passive buyers.

Marketing your property Property Cover Property Latham Street Napier Feature Property 20 Boulevard Street Havelock North 16 Feb, 2021 MacBook Pro

Real

Tremains offers an extensive range of options with great prices

Online

The internet is an essential tool when marketing your property as many of buyers do their research online. When you list with Tremains, your property will be listed on our own highly visible Tremains website as well as three other national property websites frequently visited by active buyers: • realestate.co.nz • trademe.co.nz • oneroof.co.nz Print Our in-house marketing department will produce a full colour brochure and window display to be used as a marketing tool in our sales offices, at open homes and given out to prospective buyers. We will also hand deliver free ‘just listed’ cards into your local neighbourhood to create awareness.

102 Beach Road, Haumoana A Slice of Paradise youwanttoknowmore? Contactmetoday. Bringingpeopleand propertytogether Fixedfloorcoverings,Lightfittings,Blinds,Curtains, Rangehood,Dishwasher,Aircon/HeatPump, Aircon/pumpremotesGardenShed,GasBottle Hired,HeatedTowelRail,HobbGas,OvenUnder Bench,WashingMachineTaps. ExcludedChattels Lightfittingfrontoflounge tremains.co.nz SimonTremain simon.tremain@tremains.co.nz

Do

Real Property and Taupō Property Press

Chattels

16 | 99 BROOKVALE ROAD PROPERTY APPRAISAL

Social Media In this day and age, social media is an essential part of any marketing strategy. Tremains has a strong Facebook presence in Hawke’s Bay and profiling your property on social media means more exposure to potential buyers. Signage Our customer service team will ensure that a high quality Tremains For Sale sign is on your property within 24 hours of listing. This 24-7 sales tool is an important component of your marketing, helping to generate potential leads.

videographyphotography,Professionaland home styling/staging

21 Lopdell Lane, Bayview 4 2 2 Tender closes on 10 March, 2021 at 2:00pm at Tremains, Taradale (no offers prior) For Sale Louise Addis 027 672 2099

We strongly recommend investing in professional photography and videography to be used in all marketing materials to portray your property in the best light possible to potential buyers. Photography and video is usually the first impression people get of your property so you want to make sure it’s a good one. To accompany your professional photography is home styling and staging, which allows you to present your home in the best possible way to potential buyers by decluttering, re-organizing and re- designing space. This service will again, help to showcase your home at its absolute best. Simon Tremain 021 234 5678 For Sale

OneRoof listing Package A Boost: 3 week Super Feature, 4 weekly refreshes, Feature Listing until sold, 1 week on NZ Herald and OneRoof homepage carousels, ads on GDN, Facebook and Instagram AIM Digital Reach package: Display ads property website average duration 14 days full page ads in our digital REAL magazine half page ad – Hawke's Bay Property Guide Listed' property DL cards impact illuminated property window card 10x open home photo booklets photo signboard 1800mm x 1200mm Professional photography to the value of $230 Hastings District Council LIM report (split 50/50 with agent and client Access to our company’s extensive local database & team

2x

• Google

High

Total Vendor Cost $1,732 Market Value $2,038

Suggested marketing package TradeMe Gold Listing: 6 month Premium listing, 1 week Super Feature, 5x weekly boosts

• Facebook/Instagram image ads • Unique

'Just

• Campaign

1x

Bespoke marketing package

Large

18 | 99 BROOKVALE ROAD PROPERTY APPRAISAL 99 Brookvale Road, Havelock North

99 BROOKVALE ROAD PROPERTY APPRAISAL | 19 September 2022 October 2022 Draft marketing calendar Monday Tuesday Wednesday Thursday Friday Saturday Sunday 1 2 3 4 5 6 7 8 9 10 11 List12 week of 12 (clientSeptemberto specify date) 13 Photography14 (aerial images) Vendor15 surveydocuments,tendercovenants,approvetopegs vendorapprovedscriptMarketing16tobeby 17 18 19 20 Launch to market Live Tremainsonline,team to view, signboard goes up 21 22 23 Hawke's Bay Property Guide 24 25 Open home – on site or by private viewing Time TBC 26 Sales27 Meeting – full Vendormeetingteamreport 28 29 magazineDigitalTremains30REAL Monday Tuesday Wednesday Thursday Friday Saturday Sunday 31 1 2 Open home – on site or by private viewing Time TBC 3 4Sales Meeting – full Vendormeetingteamreport 5 6 7 8 9 Open home – on site or by private viewing Time TBC 10 11Sales Meeting – full review–Vendormeetingteammeetingcampaign 12 Tender closes – all 5 12.00pmsectionsnoon 13 14 15 16 17 18 19 20 21 22 23 24 25 26 27 28 29 30

20 99 BROOKVALE ROAD PROPERTY APPRAISAL Who you choose to sell your most valuable asset can have a huge impact on the outcome. Don’t leave it to chance. Call Jarrod and Susie today.SoldSold SoldSold

A

Our promise to you

99 BROOKVALE ROAD PROPERTY APPRAISAL | 21

The fee is payable only on completion of an unconditional sale

Provide a calendar of the marketing in place

The use of social media marketing Quality marketing thatyourshowcasesproperty

All offers presented in writing and call backs to all interested parties Weekly inspection and written market report Quality signage and flyers distributed in the area Our full sales team will view propertyyour Certificate of title search

Commission Tremains seeks an appointment on a 90 day sole agency with a fee based on the following scale of charges: • 3.95% up to $500,000 plus • 2.50% on the balance of the sale price • $500 base fee (all charges are plus GST)

A complete and marketcomparativeanalysisonyourhomeTenderorAuctionTermsofSaleifrequired marketing plan that suits weeklyonyourPlacementneedsyourofpropertywebsitesandopenhomeplanning

As an exclusive client, we will assure full confidence in the whole process of marketing your property and give our absolute guarantee that you will receive the very best service. We will work closely with you and communicate the following:

22 99 BROOKVALE ROAD PROPERTY APPRAISAL tremains.co.nz Jarrod Lowe 027 442 2677 jarrod.lowe@tremains.co.nz Susie Sturt 021 894 770 susie.sturt@tremains.co.nz

Turn static files into dynamic content formats.

Create a flipbook
Issuu converts static files into: digital portfolios, online yearbooks, online catalogs, digital photo albums and more. Sign up and create your flipbook.