

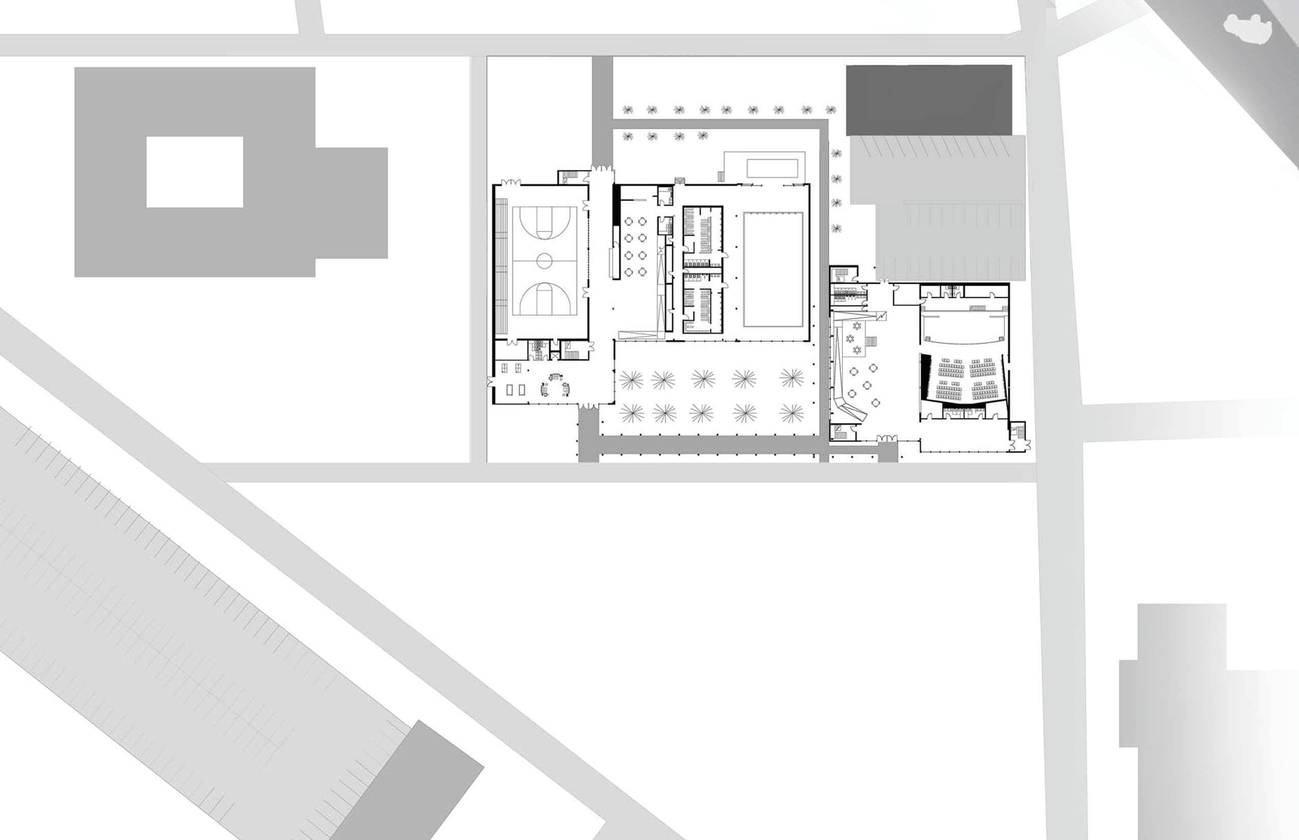
Tucson Unity Center
council st. & grossetta ave. - tucson, az

The mission of the Tucson Unity Center was to develop a stronger & active community in downtown Tucson. This is achieved by promoting distinctiveness, variety & diversity amongst all ages, youth, gender & ethnicities. One of the main goals of this program was to provide the best quality service for individuals with physical and mental disabilities & providing equal comfortable for a normal healthy human beings. The vision of this program was to interconnect the surrounding downtown districts and offer a new way to develop growth, unity and independent living. Designing this facility between Stone Ave. & Toole Ave. is an important site because it will create the opportunity to ressurect the old demolished streets of Council Ave. and Grosseta Ave. By reconstructing these two intersections, this will create an accessible pedestrian path and vehicular drop-off.












