Skip to main content

Τοπικά Νέα (Νο 822)

Page 1

ΜΟΡΦΩΤΙΚΟΣ ΕΞΩΡΑΪΣΤΙΚΟΣ ΟΜΙΛΟΣ 6ΜΕΛΗΣ ΟΡΧΗΣΤΡΑ Την εκδήλωση πλαισιώνει με το χορευτικό του συγκρότημα ΠΑΡΑΔΟΣΙΑΚΟΙ ΧΟΡΟΙ αρχίσουν οι χο ί ΑΠΟ ΤΗΝ ΘΡΑΚΗ ΩΣ ΤΗΝ ΚΡΗΤΗ ΕΦΗΜΕΡΙΔΑ ΔΗΜΟΥ ΦΙΛΟΘΕΗΣ - ΨΥΧΙΚΟΥ | Α΄ ΔΕΚΑΠΕΝΘΗΜΕΡΟ ΙΟΥΝΙΟΥ 2024 | ΕΤΟΣ: 25o - ΑΡ. ΦΥΛΛΟΥ: 822 ›ΣΕΛ. 6-8 Η ΕΙΚΌΝΑ ΤΗΣ ΚΑΘΑΡΙΌΤΗΤΑΣ ΣΗΜΕΡΑ ΣΤΌΝ ΔΗΜΌ ΜΑΣ Νευραλγικός, σημαντικός, καθρέφτης της εκάστοτε Δημοτική Αρχής -κάπως έτσι περιγράφεται και χαρακτηρίζεται η Υπηρεσία Καθαριότητας ενός Δήμου, καθώς αφορά ένα θέμα που επηρεάζει την καθημερινότητα και την ποιότητα ζωής των πολιτών. Ο Βασίλης Λιάπης, ο νεαρός σε ηλικία και νεόκοπος στα δημοτικά δρώμενα Αντιδήμαρχος Καθαριότητας, Ανακύκλωσης και Πολιτικής Προστασίας, απαντάει σε ερωτήσεις που έχουμε συλλέξει από αναγνώστες, λύνει απορίες, διαπιστώνει, περιγράφει και μας δίνει την δική του πλευρά για την αντιμετώπιση και την διόρθωση των κακώς κειμένων που συμβαίνουν στην πόλη μας. ΔΗΜΌΤΙΚΑ ΣΧΌΛΙΑ ›ΣΕΛ. 12 ›ΣΕΛ. 16-17 ›ΣΕΛ. 4 ›ΣΕΛ. 5 Ό ΔΗΜΌΤΙΚΌΣ ΠΑΙΔΙΚΌΣ ΣΤΑΘΜΌΣ ΨΥΧΙΚΌΥ ΑΠΌΚΤΑ ΤΌ ΔΙΚΌ ΤΌΥ ΚΤΗΡΙΌ! ΚΑΤΑΣΚΕΥΑ ΖΕΤΑΙ ΤΌ ΠΡΏΤΌ ΒΙΌΚΛΙΜΑΤΙΚΌ ΚΤΗΡΙΌ ΤΌΥ ΔΗΜΌΥ ΦΙΛΌΘΕΗΣ - ΨΥΧΙΚΌΥ ΑΣ ΑΡΧΙΣΌΥΝ ΌΙ ΧΌΡΌΙ! ΣΥΝΕΝΤΕΥΞΗ ΜΕ ΤΟΝ ΑΝΤΙΔ ΗΜΑΡΧΟ ΚΑΘΑΡΙΟΤΗΤΑΣ ΚΑΙ ΑΝΑΚ Υ ΚΛΩΣΗΣ ΒΑΣΙ ΛΗ ΛΙ Α ΠΗ › ΠΑΡΑΔΟΣΙΑΚΟΙ ΧΟΡΟΙΑΠΟ ΤΗΝ ΘΡΑ ΚΗ ΈΩΣ ΤΗΝ ΚΡΗΤΗ ›ΣΕΛ. 11 ΕΥΡΏΕΚΛΌΓΕΣ ΣΤΌΝ ΔΗΜΌ ΦΙΛΌΘΕΗΣ-ΨΥΧΙΚΌΥ › ΤΙ ΨΗΦΙΣΑΝ ΣΈΦΙΛΟΘΈΗ, ΝΈΟ ΨΥΧΙΚΟΚΑΙ ΨΥΧΙΚΟ Εξαιρετική ποιότητα κρεάτων δικής μας εκτροφής στις φάρμες της οικογένειας «ΛΙΤΣΑ» ΦΙΛΟΘΕΗ: ΛΕΩΦ. ΚΑΠΟΔΙΣΤΡΙΟΥ 64 / ΚΑΛΑΜΟΣ: ΚΡΕΟΠΩΛΕΙΟ-ΣΦΑΓΕΙΟ-ΚΤΗΝΟΤΡΟΦΙΚΗ ΜΟΝΑΔΑ facebook: litsas meat-delicatessen / www.litsasmeat.gr ΚΡΕΟΠΩΛΕΙΟ-DELICATESSEN
delivery yreviled › ΣΤΟΧΟΙ ΚΑΙ ΠΡΑ ΞΈΙΣ ΤΗΣ ΝΈΑΣ ΔΗΜΟΤΙΚ ΗΣ ΑΡΧ ΗΣ › ΠΟΙΈ Σ ΚΙΝΗΣΈΙΣ ΘΑ ΓΙΝΟΥΝ ΤΟΈΠΟΜΈΝΟ ΔΙ Α ΣΤΗΜΑ
2106811000

ΤΗΛ.: 210 6436 644, 697 00 98 605 | e-mail: kostas.antikes@gmail.com www.palaiopoleio-kabouris.gr

3 Α΄ ΔΕΚΑΠΕΝΘΗΜΕΡΟ ΙΟΥΝΙΟΥ 2024 ΤΟΠΙΚΑ ΝΕΑ Κέντρο Φυσιοθεραπείας και Αποκατάστασης Αδριανείου 42, 1ος όροφος, Νέο Ψυχικό - Κιν.: 693 6921058 e-mail: physio.foot@gmail.com Συμβεβλημένος με ΕΟΠΠΥ Πάνος Β. Παγώνης Φυσικοθεραπευτής PT, DΝ, MT Πιστοποιημένο Κέντρο Human Tecar (μέθοδος ταχείας αποκατάστασης) Πελματογράφημα – Κατασκευή Ορθωτικών Πελμάτων Dry Needling (Μέθοδος Στεγνής Βελόνας) Cupping (Βεντούζες) (με κρατική άδεια) ΠΑΝΟΣ & ΚΩΣΤΑΣ ΚΑΜΠΟΥΡΗΣ Νέα Διεύθυνση: Λ. Μεσογείων 33, Αμπελόκηποι
(κοντά στα ΕΛΤΑ)
ΑΓΟΡΑΖΟΥΜΕ ΑΜΕΣΑ ΜΕΤΡΗΤΟΙΣ ΠΑΛΑΙΟΠΩΛΕΙΟ εκτιμήσεις παλαιών αντικειμένων στο χώρο σας Από το 1950, 3 γενιές στην εκτίμηση, την αγορά και την πώληση παλαιών αντικειμένων και αντικών ΑΝΤΙΚΕΣ, ΠΑΛΙΑ ΕΠΙΠΛΑ, ΜΠΟΥΦΕΔΕΣ, ΤΡΑΠΕΖΑΡΙΕΣ, ΝΤΟΥΛΑΠΕΣ, ΓΡΑΦΕΙΑ, ΚΟΜΟΙ, ΒΙΒΛΙΑ, ΚΟΜΙΞ, ΜΙΚΥ ΜΑΟΥΣ, ΠΑΡΑΣΗΜΑ, ΣΠΑΘΙΑ, ΣΤΟΛΕΣ, ΧΑΛΙΑ, ΔΙΑΦ. ΠΑΛΑΙΑ ΣΤΡΑΤΙΩΤΙΚΑ ΕΙΔΗ, ΣΤΕΡΕΟΦΩΝΙΚΑ,
ΣΥΛΛΟΓΕΣ, ΔΙΣΚΟΙ, ΜΠΙΜΠΕΛΟ, ΔΙΑΚΟΣΜΗΤΙΚΑ,
ΡΟΛΟΓΙΑ, ΚΟΜΠΟΛΟΓΙΑ,
ΚΕΝΤΗΜΑΤΑ, ΠΙΝΑΚΕΣ ΚΟΣΜΗΜΑΤΑ, ΠΙΝΑΚΕΣ, ΚΟΣΜΗΜΑΤΑ, ΑΣΗΜΙΚΑ, ΧΡΥΣΑΦΙΚΑ ΚΑΘΑΡΙΖΟΥΜΕ ΑΔΕΙΑΖΟΥΜΕ ΥΠΟΓΕΙΑ, ΑΠΟΘΗΚΕΣ, ΠΑΛΑΙΑ ΣΠΙΤΙΑ, ΚΑΤΑΣΤΗΜΑΤΑ ΚΑΘΑΡΙΣΜΟΙ ΑΠΟΘΗΚΩΝ ΣΕ ΟΛΗ ΤΗΝ ΑΤΤΙΚΗ κατόπιν συνεννόησης
ΔΙΑΦΟΡΕΣ
ΔΙΑΦΟΡΑ ΜΙΚΡΟΑΝΤΙΚΕΙΜΕΝΑ,
ΦΩ ΜΠΙΖΟΥ, ΥΑΛΙΚΑ,
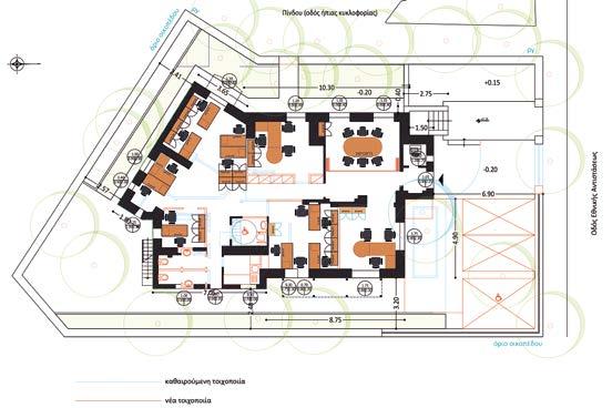
ΚΑΤΑΣΚΕΥΑ ΖΕΤΑΙ ΤΌ ΠΡΏΤΌ ΒΙΌΚΛΙΜΑΤΙΚΌ ΚΤΗΡΙΌ ΤΌΥ ΔΗΜΌΥ ΦΙΛΌΘΕΗΣ - ΨΥΧΙΚΌΥ Της Όλγας Μενεμενόγλου Ηεγκαταλελειμμένη μονοκατοικία ιδιοκτησίας του Δήμου Φιλοθέης – Ψυχικού, που βρίσκεται απέναντι από το εκκλησάκι της Αγίας Βαρβάρας, στην συμβολή των οδών Εθνικής Αντιστάσεως και Πίνδου στο Νέο Ψυχικό, παίρνει επιτέλους τον δρόμο της ολοκληρωτικής ανακατασκευής. Πρόκειται για την μονοκατοικία που στέγαζε κάποτε τον Παιδικό Σταθμό Αγίας Βαρβάρας και που το 2009 έκλεισε, καθώς στον τότε Δήμο Νέου Ψυχικού λειτουργούσαν τρεις ακόμα Δημοτικοί Παιδικοί Σταθμοί που κάλυπταν τις ανάγκες των δημοτών. Μετά την δημιουργία του ενοποιημένου Καλλικρατικού Δήμου Φιλοθέης – Ψυχικού, η παλιά μονοκατοικία έμεινε εγκαταλελειμμένη και αφύλακτη και, όπως ήταν αναμενόμενο, παραβιάστηκε και αποτέλεσε στέγη διαφόρων κατά καιρούς περιπλανώμενων. Η προηγούμενη Διοίκηση προχώρησε σε μια προμελέτη, που την ολοκληρώνει αυτόν τον καιρό η Τεχνική Υπηρεσία του Δήμου μας. Η αρχική σκέψη, η οποία όμως τότε δεν υλοποιήθηκε, ήταν να στεγαστούν εκεί τα δύο Νομικά Πρόσωπα του Δήμου (που πλέον έχουν καταργηθεί). Στην τελευταία Ειδική Συνεδρίαση Λογοδοσίας, ο Δήμαρχος Χαράλαμπος Μπονάτσος, απαντώντας σε ερώτηση που του τέθηκε περί των νέων χρηματοδοτικών προγραμμάτων, ανακοίνωσε ότι έχει πετύχει χρηματοδότηση μέχρι 1.500.000 ευρώ για το εν λόγω κτήριο, από το Υπουργείο Εσωτερικών. «Σεβόμενοι την φυσιογνωμία των προαστίων μας, διατηρούμε την μονοκατοικία ως έχει, ενώ παράλληλα την μετατρέπουμε σε βιοκλιματικό κτήριο υψηλής ενεργειακής απόδοσης και πλήρως προσβάσιμο σε ΑμεΑ. Τον Φεβρουάριο αναθέσαμε την στατική και ηλεκτρομηχανική μελέτη, που αναμένουμε να μας παραδοθεί τον Ιούλιο. Η αρχική μελέτη της Υπηρεσίας μας έχει ήδη σταλεί στο Υπουργείο και οι διαδικασίες προχωρούν με γρήγορους ρυθμούς» μας δηλώνει ο Δήμαρχος. Η μονοκατοικία που είναι γνωστή και ως «Παιδικός Σταθμός Αγίας Βαρβάρας» χτίστηκε το 1956. Αποτελείται από δύο ορόφους συνολικού εμβαδού 310 τ.μ. -180τ.μ. το ισόγειο και 130τ.μ. ο πρώτος όροφος. Στην μελέτη της Τεχνικής Υπηρεσίας προβλέπεται η διατήρηση του κελύφους του κτηρίου και της πέτρινης περίφραξης, ούτως ώστε να παραμείνει αναλλοίωτη η φυσιογνωμία της αρχικής κατασκευής. Στο εσωτερικό θα δημιουργηθούν χώροι γραφείων για εικοσιπέντε εργαζόμενους, βοηθητικοί χώροι και αίθουσα συνεδριάσεων. Θα κατασκευαστεί επίσης ασανσέρ για ΑμεΑ και θέσεις παρκαρίσματος για επισκέπτες, εργαζόμενους και ΑμεΑ, ώστε να μην επιβαρύνονται οι ήδη φορτωμένοι κοντινοί δρόμοι. Όλο το κτήριο θα λειτουργεί με ηλιακή ενέργεια, θα τοποθετηθούν φωτοβολταϊκά, θερμοπρόσοψη, ενώ στον αύλειο χώρο θα φυτευτούν δέντρα για σκίαση και πράσινο.. Σύμφωνα με τους αρμοδίους της Τεχνικής Υπηρεσίας, για την υλοποίηση της μελέτης θα προκηρυχθεί αρχιτεκτονικός διαγωνισμός και το Έργο προβλέπεται να ξεκινήσει μέσα στο 2025. Στο κτήριο θα στεγαστούν Υπηρεσίες του Δήμου μας, με κατά ώρας επικρατέστερη την Διεύθυνση Κοινωνικής Πολιτικής, Παιδείας, Αθλητισμού και Πολιτισμού, κάτι που θα δώσει πολύτιμη «ανάσα» το Δημοτικό Κτήριο της οδού Τερτσέτη, στο οποίο θα δημιουργηθούν καλύτερες συνθήκες εργασίας για την Τεχνική Υπηρεσία και την Πολεοδομία (όταν στελεχωθεί). 4 ΦΙΛΟΘΕΗ-ΨΥΧΙΚΟ Α΄ ΔΕΚΑΠΕΝΘΗΜΕΡΟ ΙΟΥΝΙΟΥ 2024 › Ο π . ΠΑΙΔΙΚΟΣ ΣΤΑΘΜΟΣ ΑΓΙ ΑΣ ΒΑΡΒ Α ΡΑΣ ΣΤΟΝ ΔΡΟΜΟ ΤΗΣ ΠΛ ΗΡΟΥΣ ΑΝΑΚΑΤΑΣΚ Έ Υ ΗΣ
Ό ΔΗΜΌΤΙΚΌΣ ΠΑΙΔΙΚΌΣ ΣΤΑΘΜΌΣ ΨΥΧΙΚΌΥ ΑΠΌΚΤΑ
ΔΙΚΌ ΤΌΥ ΚΤΗΡΙΌ! Το όραμα του Δημάρχου Χαράλαμπου Μπονάτσου για την στέγαση του Δημοτικού Βρεφονηπιακού Σταθμού στο Ψυχικό φαίνεται ότι θα αποκτήσει σάρκα και οστά. Το πρώτο και βασικό βήμα για την υλοποίηση έγινε την προηγούμενη εβδομάδα, με την λήψη της απαραίτητης έγκρισης από το Υπουργείο Περιβάλλοντος και Ενέργειας (ΥΠΕΝ), που αφορούσε στις επιτρεπόμενες χρήσεις γης για το οικόπεδο της οδού Κισσάβου 7, στο Ψυχικό, επιφάνειας 900τμ και ιδιοκτησίας του Δήμου Φιλοθέης - Ψυχικού. Οι διαδικασίες για την λήψη της πολυπόθητης άδειας είχαν ξεκινήσει από τον Φεβρουάριο, με αίτηση του Διευθυντή της Πολεοδομίας προς την Αποκεντρωμένη Διοίκηση. Παρά το ότι η απάντηση ήταν αρνητική, οι αρμόδιοι δεν το έβαλαν κάτω και απευθύνθηκαν πλέον στο ΥΠΕΝ, που τελικά ενέκρινε την χρήση του οικοπέδου για την ανέγερση του κτηρίου που θα στεγάσει τον Παιδικό Σταθμό. Σήμερα ο Δημοτικός Παιδικός Σταθμός στεγάζεται σε κτήριο ιδιοκτησίας του Σισμανογλείου Νοσοκομείου, επί της οδού Διαμαντίδου, ενώ για την συνέχιση της λειτουργίας του απαιτείται κάθε χρόνο Απόφαση του Διοικητικού Συμβουλίου του Νοσοκομείου. Η χωρητικότητα του κτηρίου είναι όμως μικρή και η συνεχής αύξηση των αιτήσεων των κατοίκων του Ψυχικού καθιστά ολοένα και πιο επιτακτική την μεταστέγαση του Παιδικού Σταθμού σε κτήριο μεγαλύτερο, που θα καλύπτει τις ανάγκες του αυξανόμενου αριθμού παιδιών. Επιπλέον, το υφιστάμενο κτήριο του Παιδικού Σταθμού δεν πληροί τις προϋποθέσεις για να λειτουργήσει και ως Βρεφονηπιακός Σταθμός, καλύπτοντας τις ανάγκες όχι μόνον των νηπίων αλλά και των βρεφών. Είναι αξιοσημείωτο δε ότι σήμερα, τόσο στο Ψυχικό όσο και στην Φιλοθέη, δεν υπάρχει άλλος Δημοτικός Σταθμός που να καλύπτει και τα βρέφη. Επικοινωνήσαμε με τον Δήμαρχο, που μας είπε: «Το κτήριο της οδού Διαμαντίδου αφ’ ενός δεν μας ανήκει αφ’ ετέρου είναι παλιό. Το ιδιοκτησιακό καθεστώς δεν μας επιτρέπει να κάνουμε μεγάλες ανακαινίσεις, με αποτέλεσμα οι δυνατότητες παρεμβάσεων για τα διάφορα προβλήματα που κατά καιρούς προκύπτουν, να είναι περιορισμένες. Το νέο κτήριο που θα φτιάξουμε, θα είναι σύγχρονο κατασκευαστικά και ενεργειακά, ενώ θα πληροί όλες τις προϋποθέσεις και τις προδιαγραφές για να στεγάσει έναν πρότυπο Παιδικό Σταθμό, άρτιο και ασφαλή, που θα καλύπτει απόλυτα τις ανάγκες των παιδιών των εργαζόμενων κατοίκων του Ψυχικού». Μέσα σε λίγες μόλις ημέρες από την λήψη της Άδειας για τις χρήσεις γης από το ΥΠΕΝ, η Τεχνική Υπηρεσία του Δήμου προχώρησε στην ανάθεση της κατάρτισης του σχετικού τοπογραφικού διαγράμματος, ενώ το επόμενο βήμα είναι η προκήρυξη του αρχιτεκτονικού διαγωνισμού και η χρηματοδότηση του Έργου. Το οικόπεδο που πρόκειται να ανεγερθεί ο βρεφονηπιακός σταθμός 5 Α΄ ΔΕΚΑΠΕΝΘΗΜΕΡΟ ΙΟΥΝΙΟΥ 2024 ΨΥΧΙΚΟ Ιδιωτικό Πολυϊατρείο Φάρος Ψυχικού ΤΜΗΜΑΤΑ ΠΟΛΥΙΑΤΡΕΙΟΥ Βιοπαθολογία - Μικροβιολογικό Μοριακή Βιολογία - Γενετική Υπέρηχοι σώματος-Triplex αγγείων Doppler καρδιάς Holter ρυθμού πίεσης Υπερηχογράφημα καρδιάς Check-up (ειδικές τιμές) Υψηλή ποιότητα ιατρικών υπηρεσιών Αξιοπιστία διαγνωστικών εξετάσεων Σύγχρονος τεχνολογικός εξοπλισμός Άμεση και φιλική εξυπηρέτηση Κατ’ οίκον αιμοληψίες Σύμβαση με ΕΟΠΥΥ - Ασφάλειες Ημέρες και ώρες λειτουργίας Καθημερινά: 7:00 π.μ.-9:00 μ.μ. | Σάββατο 8:00 π.μ.-1:00 μ.μ. Δημ. Βασιλείου 1 & Ψυχάρη, Ν. Ψυχικό (έναντι ΑΒ Βασιλόπουλος) Τηλ.: 210 6775360-3, Fax: 210 6775367 www.farosmedical.gr
ΤΌ
Της Όλγας Μενεμενόγλου Νευραλγικός, σημαντικός, καθρέφτης της εκάστοτε Δημοτική Αρχής -κάπως έτσι περιγράφεται και χαρακτηρίζεται η Υπηρεσία Καθαριότητας ενός Δήμου, καθώς αφορά ένα θέμα που επηρεάζει την καθημερινότητα και την ποιότητα ζωής των πολιτών. Ο Βασίλης Λιάπης, ο νεαρός σε ηλικία και νεόκοπος στα δημοτικά δρώμενα Αντιδήμαρχος Καθαριότητας, Ανακύκλωσης και Πολιτικής Προστασίας, απαντάει σε ερωτή σεις που έχουμε συλλέξει από ανα γνώστες, λύνει απορίες, διαπιστώ νει, περιγράφει και μας δίνει την δική του πλευρά για την αντιμετώ πιση και την διόρθωση των κακώς κειμένων που συμβαίνουν στην πόλη μας. Η συνέντευξη γίνεται διά ζώσης και επί τόπου. Ο Βασίλης Λιάπης είναι χείμαρρος στα λόγια και άμα θος σε πολιτικές φράσεις και κλισέ και τα λέει όπως τα ζει καθημερινά και όπως τα βλέπει. ΠΟΙΑ ΕΙΝΑΙ ΤΑ ΠΡΟΒΛ ΗΜΑΤΑ ΠΟΥ Ε ΧΕΤΕ ΑΝΤΙΜΕΤΩΠΙΣΕΙ ΣΤΗΝ ΤΕΤΡΑ ΜΗΝΗ ΘΗΤΕΙ Α ΣΑΣ; Τα κύρια προβλήματα είναι η έλλειψη προσωπικού και η ανε πάρκεια οικονομικών πόρων και εξοπλισμού (εργαλείων και μηχα νημάτων). Και αυτά είναι και τα απαραίτητα όπλα που χρειάζεται να έχει κάποιος στην διάθεσή του, για να “πολεμήσει” βαρέα αντι κείμενα, οικοδομές, φύλλα, νε ράντζια, σκουπίδια πεταμένα, κάδους σπασμένους, οχήμα τα παλιά που μία μέρα δου λεύουν και δέκα κάθονται στα συνεργεία. ΠΕΡΙΓΡΑΦΕΤΕ ΜΙΑ ΚΑΤΑ ΣΤΑΣΗ Μ Α ΛΛΟΝ ΖΟΦΕΡΗ. ΘΑ ΘΕ ΛΑΤΕ ΝΑ ΓΙΝΕΤΕ ΠΙΟ ΣΑΦΗΣ ΓΙΑ ΝΑ ΚΑΤΑΛ Α ΒΟΥΝ ΚΑΙ ΟΙ ΑΝΑΓΝΩ ΣΤΕΣ ΜΑΣ; ΑΣ ΞΕΚΙΝΗΣΟΥΜΕ ΜΕ ΤΟ ΠΙΟ ΣΟΒΑΡΟ ΠΟΥ ΕΙΝΑΙ ΤΑ ΟΙΚΟΝΟΜΙΚ Α . Αρχικά θα μου επιτρέψετε να εξηγήσω το τι ισχύει, για να γίνω κατανοητός. Ο τομέας της Καθαριότητας είναι οικονομικά αυτόνομος. Εισπράττει τα τέλη που πληρώνουν οι πολίτες μέσω του λογαριασμού ρεύματος και με αυτά πληρώνει τα πάντα που αφορούν την λει υλικών και εξοπλισμού, αλλά και ο δημοτικός ηλεκτροφωτισμός των δρόμων και των πλατειών. Από τότε που ο Δήμος έγινε Καλλικρατικός, στα δημοτικά τέλη όμως έχουν γίνει μειώσεις, που σχεδόν αγγίζουν το 50%. Από αυτό και μόνο μπορεί ο καθένας να καταλάβει ότι δεν μπορούμε να απαιτούμε να έχουμε την Φιλοθέη, το Ψυχικό και το Νέο Ψυχικό του 2008. Η Διοίκηση Ξυριδάκη «έφυγε» το 2019 έχοντας κάνει μειώσεις 32% για τη Φιλοθέη και 27% για Νέο Ψυχικό και Ψυχικό. Η Διοίκηση Γαλάνη προχώρησε σε περαιτέρω μειώσεις 13% σε μια εποχή που η ενέργεια και ο πληθωρισμός έπιαναν ταβάνι, ενώ παράλληλα είχαμε κάποιες αυξήσεις στους μισθούς, μικρές ζόμενο, που όμως ναι ένα υπολογίσιμο ποσό. Μειωμένα έσοδα και αυξημένα έξοδα αδειάζουν το ταμείο της Καθαριότητας. ΠΟΙΑ ΕΙΝΑΙ ΛΟΙΠΟΝ Η ΛΥ ΣΗ; Θεωρώ ότι για τα προσεχή δύο τρία χρόνια η κατάσταση μπορεί να εξισορροπηθεί μόνον με αύξηση των τελών. Και το λέω ξεκάθαρα. Δεν κάνουμε πολιτική, προσπαθούμε να λειτουργήσουμε τον Δήμο, να αφήσουμε το λιθαράκι μας και όχι να πιάνουμε καρέκλες χρησιμοποιώντας ωραία λόγια. Ο Δήμος Φιλοθέης – Ψυχικού είναι ένας από τους ελάχιστους Πανελλαδικά που δεν έχει προχωρήσει σε αντικατάσταση των παλαιών και ενεργοβόρων λαμπτήρων με νέου τύπου, ενεργειακά πιο αποδοτικούς, που θα μας προσφέρουν μεγάλη οικονομία. Επιπλέον, ο στόλος των οχημάτων μας είναι παλιός και δεν έχουμε ακόμα ούτε ένα αυτοκίνητο με ηλεκτροκίνηση. Όλα τα λάθη ή οι παραλείψεις δυστυχώς θα πληρωθούν από την τσέπη μας. Η απόφαση αυτή προφανώς ούτε εμένα μου είναι ευχάριστη, αλλά εδώ που φθάσαμε, είναι μονόδρομος. Η ΟΠΟΙΑ ΑΥ ΞΗΣΗ ΤΩΝ ΔΗΜΟΤΙΚ ΩΝ ΤΕΛ ΩΝ ΘΑ ΛΥ ΣΕΙ ΔΗΛΑΔΗ ΤΟ ΠΡΟΒΛΗΜΑ; Όχι. Γι’ αυτό άλλωστε και δεν θα περιοριστούμε όμως σε αυτό. Από την δική μας πλευρά έχουμε κάνει ορισμένες κινήσεις για να ελαφρύνουμε το κόστος της ενέργειας, που σήμερα την πληρώνουμε τόσο ακριβά. Για να γίνω πιο συγκεκριμένος, έχουμε αναθεωρήσει τον προϋπολογισμό της Υπηρεσίας μας, ώστε να χρηματοδοτήσουμε μία μελέτη στην οποία θα καταγραφούν τα φωτιστικά σώματα του Δήμου, ενώ παράλληλα εξετάζουμε Η ΕΙΚΌΝΑ ΤΗΣ ΚΑΘΑΡΙΌΤΗΤΑΣ ΣΗΜΕΡΑ ΣΤΌΝ ΔΗΜΌ ΜΑΣ ΣΥΝΕΝΤΕΥΞΗ ΜΕ ΤΟΝ ΑΝΤΙΔ ΗΜΑΡΧΟ ΚΑΘΑΡΙΟΤΗΤΑΣ ΚΑΙ ΑΝΑΚ Υ ΚΛΩΣΗΣ ΒΑΣΙ ΛΗ ΛΙ Α ΠΗ 6 Α΄ ΔΕΚΑΠΕΝΘΗΜΕΡΟ ΙΟΥΝΙΟΥ 2024 ΣΥΝΕΝΤΕΥΞΗ › ΣΤΟΧΟΙ ΚΑΙ ΠΡΑ ΞΈΙΣ ΤΗΣ ΝΈΑΣ ΔΗΜΟΤΙΚ ΗΣ ΑΡΧ ΗΣ › ΠΟΙΈΣ ΚΙΝΗΣΈΙΣ ΘΑ ΓΙΝΟΥΝ ΤΟΈΠΟΜΈΝΟ ΔΙ Α ΣΤΗΜΑ

στην Φιλοθέη, όπου είχαν γίνει προσλήψεις μόνιμου

το κατά πόσον εξακολουθεί να είναι εφαρμόσιμη και βιώσιμη η μελέτη που έχουμε βρει από την Διοίκηση Ξυριδάκη. Μέχρι τέλη Ιουνίου θα έχουμε καταλήξει και αναλόγως των συμπερασμάτων, θα προχωρήσουμε σε ανάθεση ή επικαιροποίηση. Οι κινήσεις μας θα είναι αποτέλεσμα συνεργασίας και με όλους τους εμπλεκόμενους στο έργο της καθαριότητας, με στόχο την ορθή διαχείριση των χρημάτων που μας εμπιστεύεται ο πολίτης. Δεν παίρνουμε αποφάσεις στο πόδι και γι’ αυτό ίσως σε κάποιους δίνει την εντύπωση ότι καθυστερούμε. Δεν είναι όμως έτσι. Το επόμενο βήμα θα είναι η διεκδίκηση χρηματοδότησης για να αποκτήσουμε έναν σύγχρονο και οικονομικό φωτισμό, με περισσότερα πια πλεονεκτήματα Επιπλέον, ο εξοπλισμός των οδοκαθαριστών μας είναι απαρχαιωμένος, Η πόλη μας δεν μπορεί να καθαριστεί με σκούπα και το φαράσι, χρειάζεται μηχανικά μέσα. Έτσι, όπως έχει ήδη ανακοινώσει ο Δήμαρχος μας, έχουμε πάρει προέγκριση για χρηματοδότηση από το Υπουργείο Εσωτερικών για οχήματα και μηχανήματα για την Υπηρεσία Πρασίνου, τα οποία χρησιμοποιούνται από κοινού με την Υπηρεσία Καθαριότητας. Και βέβαια, σκοπεύουμε να αξιοποιήσουμε και άλλα χρηματοδοτικά προγράμματα, ενώ στο εγγύς μέλλον θα προμηθευτούμε και σκούπες ηλεκτροκίνητες για τον οδοκαθαρισμό, που τις έχουν ήδη πολλοί Δήμοι και τους έχουν λύσει τα χέρια, καθώς καθα-
καλύτερα και γρηγορότερα. Από την επίδειξη που μας έγινε και τις δοκιμές που παρακολουθήσαμε, πραγματικά ενθουσιαστήκαμε. Φανταστείτε μια μεγάλη ηλεκτρική σκούπα που ρουφάει τα πάντα μέχρι μπουκάλια, νεράντζια, κουτιά. Αξιοποιώντας την νέα τεχνολογία, θα πετύχουμε οικονομία, θα εξασφαλίσουμε καλύτερες συνθήκες εργασίας για τους εργάτες μας και θα παρέχουμε ποιοτικότερες υπηρεσίες στους πολίτες. Σε κάθε τομέα αρμοδιότητάς μου εργάζομαι με το τρίπτυχο “διαβάζω, μελετάω, εφαρμόζω”. Σε όποιους τομείς έχω τελειώσει με τα δύο πρώτα προχωράω πια στην εφαρμογή. ΤΟ ΝΕΑΡΟ ΤΗΣ ΗΛΙΚ Ι ΑΣ ΣΑΣ ΚΑΙ ΤΟ ΓΕΓΟΝΟΣ ΟΤΙ ΠΡΟΕΡΧΕΣΤΕ ΑΠΟ ΤΟΝ ΙΔΙΩΤΙΚΟ ΤΟΜΕ Α ΣΑΣ Ε ΧΟΥΝ ΔΗΜΙΟΥΡΓΗΣΕΙ ΔΥΣΚΟΛ ΙΕΣ ΣΤΗΝ ΕΠΙΚΟΙΝΩΝΙ Α ΜΕ ΤΗΝ ΚΑΤΕΣΤΗΜΕΝΗ ΝΟΟΤΡΟΠΙ Α ΤΟΥ ΔΗΜΟΣΙΟΥ; Δεν έχω εντοπίσει κάποια δυσκολία. Αντιθέτως θα έλεγα ότι η σχετικά νέα ηλικία, μου δίνει το κέφι και την ορμή να αλλάξω πράγματα και να εμφυσήσω αυτήν την διάθεση αλλαγής και στους συνεργάτες μου. Η πλειονότητα του προσωπικού μας είναι ένα βήμα πριν την σύνταξη. Λίγο διαφορετική είναι η εικόνα
προσωπικού πριν γίνει ο Καλλικράτης. Σαφώς στα εκατόν επτά άτομα που εργάζονται σήμερα στον δρόμο υπάρχουν διαφορετικές ταχύτητες και διαφορετική αποτελεσματικότητα. Έχω κατανόηση, ευήκοα ώτα, υπομονή και επιμονή. Η δική μας επιτυχία θα είναι το να αγκαλιάσουν οι συνεργάτες μας τον δικό μας σχεδιασμό, σε πνεύμα συνεργασίας και ομαδικότητας. Ήδη και σε αυτόν τον τομέα έχουμε μπει σε θετικό βηματισμό. ΠΩ Σ ΘΑ ΑΝΤΙΜΕΤΩΠΙΣΕΤΕ ΤΗΝ Ε ΛΛΕΙΨΗ ΠΡΟΣΩΠΙΚΟΥ; Η έλλειψη προσωπικού είναι μια ανοικτή πληγή για όλους τους Δήμους. Στο δικό μας χαρακτηριστικά αξίζει να αναφέρω ότι τους τελευταίους οκτώ μήνες έχουν συνταξιοδοτηθεί ένας οδηγός, δύο εργάτες και ένας επόπτης, που θα αντικατασταθούν σε τρία και βάλε χρόνια. Επιπλέον το διάστημα Νοέμβριο με Ιανουάριο έληξαν οι συμβάσεις οκτώ ακόμα ατόμων. Είμαστε πραγματικά αποδεκατισμένοι. Η έλλειψη προσωπικού θα αντιμετωπιστεί με τους τρόπους που μας επιτρέπει η Κεντρική Διοίκηση και το ταμείο μας. Προς το παρόν για τους καλοκαιρινούς μήνες, για να ανταπεξέλθουμε και στις άδειες του προσωπικού, θα προσλάβουμε είκοσι ανθρώπους με δίμηνες συμβάσεις, ενώ στο τέλος του χρόνου θα προσλάβουμε τριάντα άτομα με οκτάμηνη σύμβαση. Οι τελευταίοι είναι μέσω ΑΣΕΠ και καθυστερούν οι διαδικασίες. Καθαρισμός κάδων και κάδων απορριμμάτων που τους καλοκαιρινούς μήνες γίνονται κάθε 15 ημέρες ΑΞΙΟΠΟΙΏΝΤΑΣ ΤΗΝ ΝΕΑ ΤΕΧΝΟΛΟΓΙΑ, ΘΑ ΠΕΤΥΧΟΥΜΕ ΟΙΚΟΝΟΜΙΑ, ΘΑ ΕΞΑΣΦΑΛΙΣΟΥΜΕ ΚΑΛΥΤΕΡΕΣ ΣΥΝΘΗΚΕΣ ΕΡΓΑΣΙΑΣ ΓΙΑ ΤΟΥΣ ΕΡΓΑΤΕΣ ΜΑΣ ΚΑΙ ΘΑ ΠΑΡΕΧΟΥΜΕ ΠΟΙΟΤΙΚΟΤΕΡΕΣ ΥΠΗΡΕΣΙΕΣ ΣΤΟΥΣ ΠΟΛΙΤΕΣ. ΣΕ ΚΑΘΕ ΤΟΜΕΑ ΑΡΜΟΔΙΟΤΗΤΑΣ ΜΟΥ ΕΡΓΑΖΟΜΑΙ ΜΕ ΤΟ ΤΡΙΠΤΥΧΟ “ΔΙΑΒΑΖΏ, ΜΕΛΕΤΑΏ, ΕΦΑΡΜΟΖΏ”. ΣΕ ΟΠΟΙΟΥΣ ΤΟΜΕΙΣ ΕΧΏ ΤΕΛΕΙΏΣΕΙ ΜΕ ΤΑ ΔΥΟ ΠΡΏΤΑ ΠΡΟΧΏΡΑΏ ΠΙΑ ΣΤΗΝ ΕΦΑΡΜΟΓΗ. 7 Α΄ ΔΕΚΑΠΕΝΘΗΜΕΡΟ ΙΟΥΝΙΟΥ 2024 ΣΥΝΕΝΤΕΥΞΗ  ΣΟΛΩΜΟΎ 1, ΦΆΡΟΣ ΨΎΧΙΚΟΎ – 15451 T. 210 6752760 ΜΟΝΑΔΙΚΑ ΚΟΜΜΑΤΙΑ ΥΨΗΛΗΣ ΤΈΧΝΗΣ, ΜΈ ΚΥΡΙΑΡΧΟ ΣΤΟΙΧΈΙΟ ΤΟΝ ΧΡΥΣΟ 18ΚΑΡΑΤΙΩΝ ΔΙΑΝΘΙΣΜΈΝΑ ΜΈ ΠΟΛΥΤΙΜΟΥΣ ΛΙΘΟΥΣΣΈ ΥΠΈΡΟΧΑ ΣΧΗΜΑΤΑ ΚΑΙ ΧΡΩΜΑΤΑ
ρίζουν

σκακιστές. Οι μαθητές, οι οποίοι

συμμετείχαν ενεργά και με

περίσσια συγκέντρωση και

υπομονή, έδειξαν εξαιρε-

τικές δεξιότητες και αγω -

νιστικό πνεύμα, αποτελέ-

σματα

ΔΙΕΘΝΗΣ ΗΜΕΡΑ ΑΡΧΕΙΏΝ 14ος ΑΓΏΝΑΣ ΣΚΑΚΙ ΣΙΜΌΥΛΤΑΝΕ ΣΤΌ ΔΗΜΌ ΦΙΛΌΘΕΗΣ - ΨΥΧΙΚΌΥ Με την ευκαιρία του εορτασμού της Διεθνούς Ημέρας Αρχείων στις 9 Ιουνίου, τα Γενικά Αρχεία του Κράτους (ΓΑΚ), τα οποία στεγάζονται στον Δήμο μας, στο Ψυχικό επί της οδού Δάφνης 61, ανοίγουν τις πόρτες τους και προσκαλούν το κοινό σε ποικίλες εκδηλώσεις για όλες τις ηλικίες, την Κυριακή 16 Ιουνίου, από τις 10 το πρωί μέχρι τις 3 το μεσημέρι. Με στόχο να γνωρίσει το κοινό το έργο και τις δράσεις των ΓΑΚ, όσοι συμμετάσχουν θα έχουν την ευκαιρία να ξεναγηθούν στους χώρους, να έρθουν σε επαφή με το υλικό των αρχείων ενώ τα παιδιά θα λάβουν μέρος σε ένα ειδικά σχεδιασμένο εκπαιδευτικό πρόγραμμα για να γνωρίσουν μέσω του παιχνιδιού της αξία των αρχειακών τεκμηρίων. Το αναλυτικό πρόγραμμα διαμορφώνεται ως εξής: • Ξεναγήσεις στο κτίριο της Κεντρικής υπηρεσίας των ΓΑΚ και στην έκθεση «Ανεγείρονται οι κλεινοί Αθήναι»: η γένεση μια πρωτεύουσας. • Εκπαιδευτικό πρόγραμμα για μαθητές πρωτοβάθμιας εκπαίδευσης των τάξεων της Γ’, Δ’, Ε’ και ΣΤ’ Δημοτικού. Απαραίτητη είναι η δήλωση συμμετοχής στο link: https://shorturl.at/oZcrZ • Εργαστήριο διάρκειας 90 λεπτών, για ενήλικες αλλά και για φοιτητές το οποίο έχει σαν θέμα την λογοκρισία κατά την περίοδο της δικτατορίας των Συνταγματαρχών. Δήλωση συμμετοχής στο link: https://shorturl.at/Nn61m Ο αριθμός συμμετεχόντων στην κάθε δράση είναι μέχρι είκοσι (20) άτομα και θα τηρηθεί σειρά προτεραιότητας. Η είσοδος είναι ελεύθερη. Για περισσότερες πληροφορίες μπορείτε να επικοινωνείτε στο τηλέφωνο: 210 6782270 και στο e-mail: publicrelations@ gak.gr › ΑΣ ΓΝΩΡΙΣΟΥΜΈΤΑ ΓΈΝΙΚ ΑΑΡΧ ΈΙ Α ΤΟΥ ΚΡΑΤΟΥΣ! Δ Ω ΣΤΕ ΜΑΣ ΕΝΑ ΧΡΟΝΟΔΙ Α ΓΡΑΜΜΑ ΓΙΑ ΤΟ ΠΟΤΕ ΘΑ ΑΡΧ ΙΣΟΥΜΕ ΝΑ ΒΛ ΕΠΟΥΜΕ Α ΛΛΗ ΕΙΚΟΝΑ ΣΤΟΥΣ ΔΡΟΜΟΥΣ ΜΑΣ. Η εικόνα θα αρχίζει να αλλάζει από το 2025. Η ημερομηνία δεν είναι τυχαία. Από τον Σεπτέμβριο θα βγουν στην κυκλοφορία δύο νέα οχήματα -ένα σάρωθρο και ένα απορριμματοφόρο. Για να καταλάβετε τους χρόνους της γραφειοκρατίας, σκεφτείτε ότι η μελέτη για την χρηματοδότηση αυτών των δύο οχημάτων έγινε επί Αντιδημαρχίας Νίκου Ζερβού το 2021! Παράλληλα θα έρθει και η πρόσληψη των οκταμηνίτων που προαναφέραμε και θα προχωρήσουμε στις χρηματοδοτήσεις, ελπίζοντας ότι δεν θα χρειαστεί να περιμένουμε μέχρι το 2027! ΤΕΛΕΙΩΝΟΝΤΑΣ, ΥΠ Α ΡΧΕΙ Κ ΑΤΙ ΠΟΥ ΘΑ ΘΕ ΛΑΤΕ ΝΑ ΠΕΙΤΕ ΣΤΟΥΣ ΔΗΜΟΤΕΣ ΚΑΙ ΤΟΥΣ ΚΑΤΟΙΚΟΥΣ ΤΟΥ ΔΗΜΟΥ ΜΑΣ; Θα ήθελα να πω σε όλους τους κατοίκους ότι βρίσκομαι καθημερινά στα εργοτάξια και τους δρόμους. Εργάζομαι με κέφι, σχεδιασμό και προγραμματισμό. Ζητώ την κατανόηση, αλλά και την ευσυνειδησία τους μέχρι το τέλος του χρόνου που θα κυκλοφορήσει και ο νέος κανονισμός καθαριότητας που θα μας βοηθήσει όλους να κατανοήσουμε τα δικαιώματα και τις υποχρεώσεις μας. Σε συνεργασία με τις Υπηρεσίες μας, πιστεύω ότι θα τον έχουμε ολοκληρώσει μέχρι τα μέσα Σεπτεμβρίου. Η δουλειά που γίνεται σήμερα θα φανεί στον πολίτη πολύ σύντομα. Εργαζόμαστε καθημερινά για να πετύχουμε την αναβάθμιση των υπηρεσιών που παρέχουμε. HΑκαδημία Σκάκι Νέου Ψυχικού σε συνεργασία με τον Δήμο ΦιλοθέηςΨυχικού, διοργάνωσαν τον 14ο Αγώνα Σκάκι Σιμουλτανέ την Κυριακή 2 Ιουνίου. Ο αγώνας που πραγματοποιήθηκε στην Πλατεία Ελευθερίας στο Νέο Ψυχικό και ευτυχώς με ιδανικές καιρικές συνθήκες. Ο FIDE Master Κώστας Τσιάμης, προπονητής της Ακαδημίας Σκάκι Νέου Ψυχικού, έδωσε τον αγώνα
αντιμετωπίζο -
30
επίδειξης,
ντας
νεαρούς
της συστηματικής τους προετοιμασίας. Το σιμουλτανέ ξεκίνησε με την πρώτη κίνηση από τον Δήμαρχο ΦιλοθέηςΨυχικού, κ. Χαράλαμπο Μπονάτσο. Επίσης παρευρέθηκαν η Αντιδήμαρχος Παιδείας και Αθλητισμού κυρία Εβελίνα Παλτζόγλου, ο Αντιδήμαρχος Αστικού Περιβάλλοντος κ. Βύρων Σαμαρόπουλος, ο Αντιδήμαρχος Τεχνικών Υπηρεσιών κ. Άρης Νάκας και ο Δημοτικός Σύμβουλος κ. Ηλίας Αγγελόπουλος. Παρότι δεν απέσπασε κάποιο παιδί θετικό αποτέλεσμα, οι πέντε καλύτερες παρτίδες του σιμουλτανέ βραβεύτηκαν, με τους σκακιστές να λαμβάνουν κύπελλα και μετάλλια. Τις απονομές έκανε η Αντιδήμαρχος κυρία Παλτζόγλου. Συγκεκριμένα, τα παιδιά που βραβεύτηκαν ήταν κατά σειρά: Γιάννης Φιλιππάκος, Σοφία Γεωργάκη, Κωνσταντίνος Φοβάκης, Γρηγόρης Κασιμάτης, Χρήστος Αϊναλής Η διοργάνωση ολοκληρώθηκε με την απονομή αναμνηστικών διπλωμάτων σε όλους τους συμμετέχοντες, και την υπόσχεση για τη συνέχιση των σκακιστικών δραστηριοτήτων για την περαιτέρω πρόοδο των νέων ταλαντούχων σκακιστών του Δήμου Φιλοθέης - Ψυχικού. 8 Α΄ ΔΕΚΑΠΕΝΘΗΜΕΡΟ ΙΟΥΝΙΟΥ 2024 ΣΥΝΕΝΤΕΥΞΗ 
9 Α΄ ΔΕΚΑΠΕΝΘΗΜΕΡΟ ΙΟΥΝΙΟΥ 2024 ΖΩ + ΤΡΑΓΟΥΔΩ, ΔΕΝ ΕΞΑΡΤΩΜΑΙ! ΜΙΑ ΜΟΥΣΙΚΗ ΒΡΑΔΙΑ ΓΙΑ ΤΗΝ ΠΑΓΚΟΣΜΙΑ ΗΜΕΡΑ ΚΑΤΑ ΤΩΝ ΝΑΡΚΩΤΙΚΩΝ ΕΠΙ ΣΚΗΝΗΣ ΓΕΡΑΣΙΜΟΣ ΑΝΔΡΕΑΤΟΣ ΠΑΡΟΥΣΙΑΖΕΙ Η ΖΕΤΑ ΔΟΥΚΑ SPECIAL GUEST EVANGELIA VEΜILY + ΓΙΩΤΑ ΜΕΓΚΑ ΤΕΤΑΡΤΗ 26 ΙΟΥΝΙΟΥ 2024 ΩΡΑ 20:00 ΠΛ. ΑΓΙΑΣ ΣΟΦΙΑΣ, ΝΕΟ ΨΥΧΙΚΟ

δρόμο του Δήμου. Παρόμοια Σχέδια διαθέτουν πολλές πόλεις του εξωτερικού, επομένως ο Δήμος Φιλοθέης-Ψυχικού θα μπορούσε να πρωτοπορήσει, δημιουργώντας παράδειγμα για τη χώρα

μας.

Ο κύριος Νίκος Θυμάκης, κηποτέχνης γεωπόνος MScΒαλκανικός Κήπος Κρουσσίων (ΕΛΓΟ ΔΗΜΗΤΡΑ) αναφέρθηκε στη σημασία επιλογής του κατάλληλου δέντρου στην κατάλληλη θέση και σε παραδείγματα ανάδειξης

Με μεγάλη επιτυχία διοργανώθηκε στις 28 Μαΐου η ημερίδα με θέμα «Διαχείριση Αστικού Πρασίνου- Μητρώο Δέντρων» από το Δήμο Φιλοθέης Ψυχικού και το Σύλλογο Προστασίας Περιβάλλοντος Φιλοθέης, στην αίθουσα του Παλαιού Δημαρχείου Φιλοθέης. Στην ημερίδα απεύθυναν χαιρετισμό ο Δήμαρχος Φιλοθέης Ψυχικού Χαράλαμπος Μπονάτσος, ο Πρόεδρος του Συλλόγου κύριος Κωνσταντίνος Γιαβάσογλου, η τέως Δημάρχος Φιλοθέης, ιδρυτικό μέλος και Ταμίας του Συλλόγου κα Ελένη Παναγιωτοπούλου. Στη συνέχεια η συντονίστρια της ημερίδας κυρία Κυβέλη Ζαχαρίου Γραμματέας του Συλλόγου έδωσε τον λόγο στους εισηγητές της εκδήλωσης: Η Δρ. Τζούλια Τζώρτζη, Αναπληρώτρια Καθηγήτρια Αρχιτεκτονικής Τοπίου της Αρχιτεκτονικής Σχολής του Πολυτεχνείου του Μιλάνου μίλησε για τη σημασία των δέντρων στις πόλεις, τα οποία λειτουργούν ως ρυθμιστές του αστικού μικροκλίματος και των οικοσυστημάτων, σύμφωνα με επιστημονικές μελέτες. Αναφέρθηκε επίσης στην εμπειρία της κατάρτισης Μητρώου Δέντρων στην πόλη του Μιλάνου και στην πόλη της Αλεξανδρούπολης. Ο κύριος Μανώλης Γλύ
στο Υπουργείο Περιβάλλοντος, αναφέρθηκε στην ανάγκη κατάρτισης ενός
δίου Διαχείρισης για το Αστικό Πράσινο του Δήμου Φιλοθέης Ψυχικού»
ορίζει τους γενικούς κανόνες και μεθόδους για τη βελτίωση και
του πρασίνου και αφετέρου θα παρέχει
δικές κατευθύνσεις για
περιοχή
τσης, περιβαλλοντολόγος ΜSc, Επιθεωρητής Περιβάλλοντος
«Σχε-
το οποίο αφενός θα
συντήρηση
ει-
κάθε
και
του αστικού πρασίνου. Ιδιαίτερη μνεία έγινε για την υιοθέτηση της λογικής ενός ελληνικού κήπου σύμφωνα με το πικιωνικό παράδειγμα. Η συζήτηση που αναπτύχθηκε μετά το τέλος των παρουσιάσεων με τις τοποθετήσεις και παρεμβάσεις κράτησε το ενδιαφέρον των συμμετεχόντων, οι οποίοι έθεσαν θέματα για την προστασία των χώρων πρασίνου, τις προκλήσεις που επιφέρουν οι αλλαγές στους πολεοδομικούς κανονισμούς με εντατικοποίηση της δόμησης χωρίς σεβασμό στο υφιστάμενο πράσινο, στην καταστροφική υλοποίηση των εργολαβιών κλαδέματος, στην ανάγκη προστασίας και ανάδειξης του ρέματος της Φιλοθέης κλπ. Η εκδήλωση έκλεισε με την τοποθέτηση του Προέδρου του Συλλόγου κυρίου Κώστα Γιαβάσογλου, ο οποίος και επισήμανε ότι ο Σύλλογος θα συνεχίσει να προωθεί ενέργειες για την προστασία του οικιστικού και περιβαλλοντικού χαρακτήρα του Δήμου μας. Την εκδήλωση συντόνισε η Γραμματέας του Συλλόγου Κυβέλη Ζαχαρίου. ΣΎΛΛΌΓΌΣ ΠΡΌΣΤΑΣΙΑΣ ΠΕΡΙΒΑ ΛΛΌΝΤΌΣ ΦΙΛΌΘΕΗΣ ΗΜΕΡΙΔΑ ΓΙΑ ΤΌ ΑΣΤΙΚΌ ΠΡΑ ΣΙΝΌ Για δεύτερη χρονιά, μια μεγάλη συναυλία, με σκοπό την ενημέρωση και την ευαισθητοποίηση της κοινωνίας μας κατά των ναρκωτικών, διοργανώνεται από τον Μορφωτικό Εξωραϊστικό Όμιλο (ΜΕΟ) σε συνεργασία με το ΚΕΘΕΑ – ΣΤΡΟΦΗ. ΠΑΜΕ ΜΑΖΙ ενάντια στις εξαρτήσεις παραμένει το κεντρικό σύνθημα του ΚΕΘΕΑ που θα βρίσκεται με βαν στην πλατεία της Αγίας Σοφίας και μας καλεί να ενημερωθούμε, να προλάβουμε και να αντιμετωπίσουμε τον κίνδυνο των ναρκωτικών αλλά και άλλων εξαρτήσεων. «Ζω και τραγουδώ, δεν εξαρτώμαι» το μήνυμα που δίνει και φέτος ο ΜΕΟ σε όλες τις ηλικίες και για όλες τις εξαρτήσεις. Ζούμε, χαιρόμαστε, τραγουδάμε και αποφεύγουμε να εξαρτηθούμε. Η συναυλία φέτος θα πραγματοποιηθεί με αφορμή την Παγκόσμια Ημέρα Κατά των Ναρκωτικών, την Τετάρτη 26 Ιουνίου 2024 και ώρα 20:00, στην Πλατεία Αγίας Σοφίας στο Νέο Ψυχικό. Στην συναυλία θα συμμετέχουν: • Η νεανική μπάντα του ΚΕΘΕΑ – ΣΤΡΟΦΗ που θα συνοδεύσει την Γιώτα Νέγκα και τον Γεράσιμο Ανδρεάτο • Μουσικές μπάντες και χορωδίες των σχολείων του Δήμου Φιλοθέης - Ψυχικού • Η παιδική χορωδία του ΜΕΟ με την Καθηγήτρια μουσικής και πιάνου Βασιλική Τσιμπούκη • Special guest οι: η pop τραγουδίστρια Evangelia και η ροκ τραγουδίστρια Vemily Την παρουσίαση θα κάνει η γνωστή ηθοποιός Ζέτα Δούκα. Για την πραγματοποίησή της έχουν συμβάλει ο Δήμος Φιλοθέης – Ψυχικού και πολλές τοπικές επιχειρήσεις που αγκάλιασαν την ιδέα με διάφορες χορηγίες. Η μεγάλη αυτή συναυλία «πέφτει» ημερολογιακά με την Παγκόσμια Ημέρα κατά των Ναρκωτικών και έχει κεντρίσει το ενδιαφέρον πολλών μέσων επικοινωνίας συμπεριλαμβανομένων τηλεοπτικών και ραδιοφωνικών σταθμών. ΖΏ ΚΑΙ ΤΡΑΓΌΥΔΏ, ΔΕΝ ΕΞΑΡΤΏΜΑΙ ΣΥΝΑΥΛΊΑ ΓΊΑ ΤΗΝ ΠΑΓΚΌΣΜΊΑ ΗΜΈΡΑ ΚΑΤΑ ΤΩΝ ΝΑΡΚΩΤΊΚΩΝ 10 ΦΙΛΟΘΕΗ-ΨΥΧΙΚΟ Α΄ ΔΕΚΑΠΕΝΘΗΜΕΡΟ ΙΟΥΝΙΟΥ 2024
ΕΥΡΏΕΚΛΌΓΕΣ ΣΤΌΝ ΔΗΜΌ ΦΙΛΌΘΕΗΣ-ΨΥΧΙΚΌΥ › ΤΙ ΨΗΦΙΣΑΝ ΣΈΦΙΛΟΘΈΗ, ΝΈΟ ΨΥΧΙΚΟΚΑΙ ΨΥΧΙΚΟ Στις Ευρωεκλογές της 9ης Ιουνίου 2024 οι εγγεγραμμένοι πολίτες του Δήμου Φιλοθέης-Ψυχικού που είχαν το δικαίωμα του εκλέγειν ήταν 27.117. Από αυτούς ψήφισαν μόλις οι 13.729, δηλαδή το 50,63%, δηλαδή, περίπου οι μισοί! Όπως σε κάθε εκλογική αναμέτρηση, η συμμετοχή στον Δήμο μας είναι πολύ μεγαλύτερη από την Πανελλήνια. Το αποτέλεσμα είναι γαλάζιο. Πρώτο κόμμα και με πολύ μεγάλη διαφορά η Νέα Δημοκρατία με κομμένα όμως τα φτερά καθώς έχασαν 3.511 ψηφοφόρους από τις προηγούμενες ευρωεκλογές του Μαΐου 2019. Την μεγαλύτερη όμως πτώση έχει ο ΣΥΡΙΖΑ που έχασε τους μισούς περίπου ψηφοφόρους του, αφού το 2019 (ως Κυβέρνηση τότε) είχε πάρει 2.125 ψηφοδέλτια ενώ φέτος μόλις 1.184. Η Νέα Αριστερά φαίνεται να κερδίζει από αυτήν την απώλεια μόλις 538 ψήφους. Ανεβασμένο είναι το ΠΑΣΟΚ κατά 164 ψηφοδέλτια. Άνοδο επίσης παρουσιάζει και το ΚΚΕ με 218 ψηφοδέλτια. Ο μεγάλος νικητής όμως είναι ο Βελόπουλος (ΕΛΛΗΝΙΚΗ ΛΥΣΗ) που κατάφερε να διπλασιάσει τους ψηφοφόρους του ενώ η πρωτοεμφανιζόμενη κυρία Λατινοπούλου κερδίζει με το «χαίρεται» ψήφο εμπιστοσύνης από 277 συνδημότες μας. ΚΚΕ, ΣΥΡΙΖΑ, Νέα Αριστερά, ΠΑΣΟΚ και λοιπά κεντροαριστερά σχήματα παίρνουν και σε αυτές τις εκλογές το μεγαλύτερό τους ποσοστό στο Νέο Ψυχικό. Να θυμίσουμε ότι η μεγάλη αποχή ίσως να μην μπορεί να συγκριθεί με την αποχή του 2019 και του 2014 γιατί είχαν στηθεί διπλές κάλπες και οι Ευρωεκλογές διεξάγονταν παράλληλα με τις Αυτοδιοικητικές Εκλογές. Το ποσοστό που έφερε το Κυβερνών Κόμμα στις ευρωεκλογές στον Δήμο Φιλοθέης – Ψυχικού είναι το μεγαλύτερο πανελλαδικά. Η Νέα Δημοκρατία στον Δήμο Κηφισιάς (Κηφισιά, Εκάλη, Νέα Ερυθραία), που παραδοσιακά συναγωνίζονταν με τον δικό μας σε γαλάζια ποσοστά, έφερε 49.03% έναντι του δικού μας 52,49. Στους παρακάτω πίνακες παρουσιάζονται τα πρώτα 12 κόμματα μεταξύ των οποίων και το «ΚΟΣΜΟΣ» του Πέτρου Κόκκαλη που μεν δεν μπήκε στην Ευρωβουλή αλλά τον τίμησαν αρκετοί συνδημότες μας. 11 Α΄ ΔΕΚΑΠΕΝΘΗΜΕΡΟ ΙΟΥΝΙΟΥ 2024 ΕΥΡΏΕΚΛΟΓΕΣ ΑΝΑΛΥΤΙΚ Α ΤΑ ΑΠΟΤΕΛ Ε ΣΜΑΤΑ ΣΥΝΟΛΙΚ Α ΣΤΟΝ ΔΗΜΟ ΦΙΛΟΘΕΗΣ - ΨΥΧΙΚΟΥ ΚΟΙΝΟΤΗΤΑ ΨΥΧΙΚΟΥ ΚΟΙΝΟΤΗΤΑ ΦΙΛΟΘΕΗΣ ΚΟΙΝΟΤΗΤΑ ΝΕΟΥ ΨΥΧΙΚΟΥ ΈΓΓΈΓΡΑΜΜΈΝΌΊ: 27.117 | ΨΗΦΊΣΑΝ: 13.729 | ΈΓΚΥΡΑ: 13.454 | Α ΚΥΡΑ: 153 | Λ Έ ΥΚ Α : 122 ΝΈ Α ΔΗΜΌΚΡΑΤ Ί Α 52,49% 7.062 ΣΥΡ Ί ΖΑ 8,80% 1.184 ΠΑΣ ΌΚ - Κίνημα Αλλαγής 6,35% 855 ΚΚ Έ 5,13% 690 Νέα Αριστερά 4,00% 538 ΜέΡΑ25 3,26% 438 Έ ΛΛΗΝ ΚΗ ΛΥΣΗ-ΚΥΡ Ί ΑΚΌΣ ΒΈ Λ ΌΠΌΥΛ ΌΣ 3,20% 431 ΔΗΜΌΚΡΑΤ ΊΚΌ ΠΑΤΡ ΊΩΤ ΊΚΌ Κ ΝΗΜΑ «ΝΊΚΗ» 3,14% 422 ΔΗΜΌΚΡΑΤ Έ Σ ΑΝΔΡ Έ ΑΣ Λ ΌΒΈΡΔ ΌΣ 2,82% 380 ΚΌΣΜΌΣ 2,74% 368 ΠΛ Έ ΥΣΗ Έ Λ Έ ΥΘΈΡ Ί ΑΣ-ΖΩΗ ΚΩΝΣΤΑΝΤ ΌΠΌΥΛ ΌΥ 2,11% 284 ΦΩΝΗ Λ ΌΓ ΚΗΣ ΑΦΡ Ό Δ Ί ΤΗ ΛΑΤ ΝΌΠΌΥΛ ΌΥ 2,06% 277 ΝΈ Α ΔΗΜΌΚΡΑΤ Ί Α 58,36% 2.911 ΣΥΡ Ί ΖΑ 6,82% 340 ΠΑΣ ΌΚ - Κίνημα Αλλαγής 5,51% 275 ΚΚ Έ 4,15% 207 Νέα Αριστερά 3,29% 164 ΚΌΣΜΌΣ 3,29% 164 ΜέΡΑ25 3,05% 152 Έ ΛΛΗΝ ΚΗ ΛΥΣΗ-ΚΥΡ Ί ΑΚΌΣ ΒΈ Λ ΌΠΌΥΛ ΌΣ 2,91% 145 ΔΗΜΌΚΡΑΤ Έ Σ ΑΝΔΡ Έ ΑΣ Λ ΌΒΈΡΔ ΌΣ 2,69% 134 «ΝΊΚΗ» 2,67% 133 ΦΩΝΗ Λ ΌΓ ΚΗΣ ΑΦΡ Ό Δ Ί ΤΗ ΛΑΤ ΝΌΠΌΥΛ ΌΥ 1,88% 94 ΠΛ Έ ΥΣΗ Έ Λ Έ ΥΘΈΡ Ί ΑΣ-ΖΩΗ ΚΩΝΣΤΑΝΤ ΌΠΌΥΛ ΌΥ 1,64% 82 ΝΈ Α ΔΗΜΌΚΡΑΤ Ί Α 62,12% 2.294 ΣΥΡ ΖΑ 6,63% 245 ΠΑΣ ΌΚ - Κίνημα Αλλαγής 5,55% 205 Νέα Αριστερά 3,20% 118 ΚΚ Έ 3,03% 112 ΔΗΜΌΚΡΑΤ Έ Σ ΑΝΔΡ Έ ΑΣ Λ ΌΒΈΡΔ ΌΣ 2,84% 105 «ΝΊΚΗ» 2,79% 103 ΚΌΣΜΌΣ 2,60% 96 ΜέΡΑ25 2,41% 89 Έ ΛΛΗΝ ΚΗ ΛΥΣΗ-ΚΥΡ Ί ΑΚΌΣ ΒΈ Λ ΌΠΌΥΛ ΌΣ 1,92% 71 ΦΩΝΗ Λ ΌΓ ΊΚΗΣ ΑΦΡ Ό Δ Ί ΤΗ ΛΑΤ ΊΝΌΠΌΥΛ ΌΥ 1,84% 68 ΠΛ Έ ΥΣΗ Έ Λ Έ ΥΘΈΡ Ί ΑΣ-ΖΩΗ ΚΩΝΣΤΑΝΤ ΌΠΌΥΛ ΌΥ 1,52% 56 ΝΈ Α ΔΗΜΌΚΡΑΤ Ί Α 38,91% 1.857 ΣΥΡ ΖΑ 12,55% 599 ΠΑΣ ΌΚ - Κίνημα Αλλαγής 7,86% 375 ΚΚ Έ 7,77% 371 Νέα Αριστερά 5,36% 256 Έ ΛΛΗΝ ΚΗ ΛΥΣΗ-ΚΥΡ Ί ΑΚΌΣ ΒΈ Λ ΌΠΌΥΛ ΌΣ 4,50% 215 ΜέΡΑ25 4,13% 197 «ΝΊΚΗ» 3,90% 186 ΠΛ Έ ΥΣΗ Έ Λ Έ ΥΘΈΡ Ί ΑΣ-ΖΩΗ ΚΩΝΣΤΑΝΤ ΌΠΌΥΛ ΌΥ 3,06% 146 ΔΗΜΌΚΡΑΤ Έ Σ ΑΝΔΡ Έ ΑΣ Λ ΌΒΈΡΔ ΌΣ 2,95% 141 ΦΩΝΗ Λ ΌΓ ΊΚΗΣ ΑΦΡ Ό Δ Ί ΤΗ ΛΑΤ ΊΝΌΠΌΥΛ ΌΥ 2,41% 115 ΚΌΣΜΌΣ 2,26% 108

ΚΑΙ ΠΌΙΌΤΙΚΑ ΚΑΙ

τα ζωάκια, οπότε όπως καταλαβαίνετε δουλεύουμε με την ψυχή μας».

ΠΟΙΟΙ ΔΙΚΑΙΟΥ ΝΤΑΙ

Τρεισήμισι τόνοι ξηρά τροφή για γάτες δόθηκαν την προηγούμενη εβδομάδα από την Διεύθυνση Διαχείρισης Αδέσποτων Ζώων και Ζώων Συντροφιάς. Να αναφέρουμε ότι η δράση αυτή συγκαταλέγεται στις υποχρεώσεις που έχει ο κάθε Δήμος για την σίτιση των αδέσποτων. Φέτος και για πρώτη φορά ο αντιδήμαρχος Γιάννης Δελακουρίδης βάζει το δικό του στίγμα σ’ αυτόν τον τομέα. Επιλέγει για τις αδέσποτες γάτες μια τροφή premium, την ανώτερη ποιοτικά τροφή, επικαιροποιεί το μητρώο εθελοντών που ταΐζουν τις γάτες, η υπηρεσία του ελέγχει τον χρόνο και καταγράφει το βάρος της τροφής και φροντίζει το επόμενο ραντεβού κάθε περίπου τρεις μήνες για την επόμενη διάθεση.. Σε συνεργασία με την ΖΩΦΙΨΥ ελέγχουν τις γατοαποικίες αν είναι καθαρές και αν οι γάτες είναι σιτισμένες. «Συνεχίζουμε το έργο μας με προγραμματισμό και διαφάνεια. Στον τομέα της φιλοζωίας έχω την τύχη να συνεργάζομαι
σία
πολύ
στην Υπηρε-
μου με δύο εξαιρετικές υπαλλήλους που αγαπούν
ΔΩΡΕ Α Ν
Όσοι
να
βρίσκονται
όρια του Δήμου Φιλοθέης-Ψυχικού. Αν έχετε βρει αστείρωτες γάτες θα πρέπει πρώτα να απευθυνθείτε στην Υπηρεσία του Δήμου ώστε να στειρωθούν. Θα πρέπει να έχετε συγκεκριμένο σημείο σίτισης στο οποίο θα δίνετε μόνο ξηρά τροφή και μετά τη σίτιση έχετε την ευθύνη του καθαρισμού. Τέλος για να σας δοθεί τροφή θα πρέπει να κάνετε μία αίτηση στην Υπηρεσία που θα αναφέρετε τη διεύθυνσή σας και τον αριθμό των γατιών που θέλετε να ταΐζετε. Το τηλέφωνο της Υπηρεσίας είναι 2106753855. ΤΕΛΕΙΩΣΕ Ο ΑΡΧΙΤΕΚΤΟΝΙΚΟΣ ΔΙΑΓΩΝΙΣΜΟΣ ΓΙΑ ΤΟΥΣ ΣΤΑΘΜΟΥ Σ ΣΙΤΙΣΗΣ, ΦΙΛΟΞΕΝΙ ΑΣ ΚΑΙ ΔΡΟΣΙΣΜΟΥ ΤΩΝ ΖΩΩΝ ΚΑΙ ΤΩΝ ΣΥΓΚΡΟΤΗΜ ΑΤΩΝ ΚΑΤΟΙΚΙΩΝ ΓΙΑ ΑΔΕΣΠΟΤΕΣ ΓΑΤΕΣ Ο ανοικτός διαγωνισμός ξεκίνησε στις 26 Μαρτίου και πέντε σχέδια/προτάσεις υπεβλήθησαν μέχρι και τις 7 Απριλίου που ήταν η καταληκτική ημερομηνία. Η αρμόδια επιτροπή επέλεξε τα τρία μόνο σχέδια διότι τα άλλα δύο δεν πληρούσαν τις απαραίτητες προδιαγραφές. Η επιτροπή θα προχωρήσει την επόμενη εβδομάδα στην τελική της απόφαση ώστε να επιλεγεί η καλύτερη πρόταση, η οποία θα λάβει σαν βραβείο μια δωροεπιταγή. ΜΝΗΜΟΝΙΟ ΣΥΝΕΡΓΑΣΙΑΣ ΑΠΟΨ ΚΑΙ ΧΑΜΟΓΕΛΟ ΤΟΥ ΠΑΙΔΙΟΥ Το Σάββατο 8 Ιουνίου, η Διοίκηση του Αθλητικού Πολιτιστικού Ομίλου Ψυχικού (ΑΠΟΨ) υπέγραψε μνημόνιο συνεργασίας με το «Χαμόγελο του Παιδιού». Η σπουδαία και καινοτόμα συμφωνία περιλαμβάνει πολιτιστικές και κοινωνικές εθελοντικές δράσεις και την εκτύπωση του λογότυπου από «Το Χαμόγελου του Παιδιού» σε όλες τις εμφανίσεις του Ομίλου για την σεζόν 2024-2025. Σκοπός είναι να διαδοθεί το έργο του μεγαλύτερου εθελοντικού Οργανισμού που λειτουργεί σήμερα στην Χώρα μας και να σταθούν διοίκηση, αθλητές, γονείς και φίλαθλοι δίπλα του. Το Μνημόνιο υπέγραψαν εκ μέρους της Διοίκησης του ΑΠΟΨ ο κύριος Φραγκίσκος Ζαλώνης και για το «Χαμόγελο του Παιδιού» ο Πρόεδρος κύριος Κώστας Γιαννόπουλος. Πέρα από το μνημόνιο, αξίζει να αναφέρουμε ότι είθισται οι ομάδες να βρίσκουν χορηγούς που πληρώνουν τουλάχιστον τις εμφανίσεις. Σε αυτήν την περίπτωση ο ΑΠΟΨ γίνεται ο ίδιος χορηγός στο Χαμόγελο του Παιδιού. Ο ΑΠΟ Ψυχικού, όπως αναφέρεται στο Δελτίο Τύπου, είναι ο πρώτος σύλλογος στην Ελλάδα που επικυρώνει συμφωνία με «Το Χαμόγελο του Παιδιού» έχοντας ως βασικό γνώμονα την αγάπη για τα παιδιά.
ΤΗΝ
ΤΡΟΦΗ
έχουν αναλάβει
σιτίζουν αδέσποτες και στειρωμένες γατούλες που
στα
ΑΣ ΑΡΧΙΣΌΥΝ ΌΙ ΧΌΡΌΙ! › ΠΑΡΑΔΟΣΙΑΚΟΙΧΟΡΟΙΑΠΟΤΗΝ ΘΡΑ ΚΗ ΈΩΣ ΤΗΝ ΚΡΗΤΗ Μια παραδοσιακή μουσικοχορευτική εκδήλωση διοργανώνει ο Μορφωτικός Εξωραϊστικός Όμιλος Νέου Ψυχικού, την Τετάρτη 19 Ιουνίου 2024 στις 8 μ.μ. στην Πλατεία Ελευθερίας στο Νέο Ψυχικό. Στην εκδήλωση αυτή που διοργανώνεται για πρώτη φορά από τον ΜΕΟ στο Δήμο μας, συμμετέχουν τα τμήματα παραδοσιακών χορών του ΜΕΟ, εξαμελής ορχήστρα, η παιδική χορωδία του ΜΕΟ υπό τη διεύθυνση και την καλλιτεχνική επιμέλεια της Βασιλικής Τσιμπούκη. Τους κρητικούς χορούς θα χορέψει με συνοδεία λύρας το χορευτικό τμήμα του Συλλόγου Κρητών «Ο Μίνως». Οι χοροδιδάσκαλοι Τζίμης Ηλίας (ΜΕΟ) και Στάθης Καλογερόπουλος (ΜΙΝΩΣ) έχουν προετοιμάσει ένα καταπληκτικό πρόγραμμα με χορούς απ’ όλη την Ελλάδα και μαζί με τους μουσικούς: Νίκο Φιλιππίδη στο κλαρίνο, Κώστα Φιλιππίδη στο λαούτο, Νίκο Περδικάρη στην λύρα Κρήτης, Νεκτάριο Χατζηδάκη στο λαούτο, η Λευκοθέα Φιλιππίδη στο τραγούδι και η Μαρίνα Μπακανάκη Ηλία στην αφήγηση μας υπόσχονται μια εξαιρετική βραδιά! 12 ΦΙΛΟΘΕΗ-ΨΥΧΙΚΟ Α΄ ΔΕΚΑΠΕΝΘΗΜΕΡΟ ΙΟΥΝΙΟΥ 2024
ΝΌΙΚΌΚΥΡΕΜΕΝΑ!
13 Α΄ ΔΕΚΑΠΕΝΘΗΜΕΡΟ ΙΟΥΝΙΟΥ 2024 ΤΟΠΙΚΑ ΝΕΑ 1η περίοδος:25-28/6&1-5/7 4ηπερίοδος: 26-30/8 & 2-6/9 2η περίοδος: 8-12/7 & 15-19/7 3ηπερίοδος:22-26/7&29/7-2/8 βΕ δ οµ α διαίαΚαλοκαιρινήΑπασχό λ η σ η θα λειτουργήσει στο Δημοτικό Ψυχικού με δικό του πρόγραμμα κατάλληλα διαμορφωμένο για την προσχολική ηλικία Νέο τµήµα για παιδιά5 ετώ ν Περιορισμένος αριθμόςπαιδιών
ετών Πληροφορίες: Τηλ.: 2132014633, 2106834550 (08:30 με 14:30 Δευτέρα έως Παρασκευή) Email: athlopaixnidies@gmail.com ΔΗΜΟΤΙΚΟΦΙΛΟΘΕΗΣ 2οΔΗΜΟΤΙΚΟΝΕΟΥΨΥΧΙΚΟΥ & ΔΗΜΟΤΙΚΟ ΨΥΧΙΚΟΥ ΓΙΟΡΤΗ ΓΙΑ ΜΙΚΡΑ ΚΑΙ ΜΕΓΑΛΑ ΠΑΙΔΙΑ ΚΥΡΙΑΚΗ 16 ΙΟΥΝΙΟΥ 2024 / 10:00 π.μ. - 3:00 μ.μ. ΤΜΗΜΑ ΠΑΙΔΕΙΑΣ, ΠΟΛΙΤΙΣΜΟΥ ΚΑΙ ΑΘΛΗΤΙΣΜΟΥ | ΤΗΛ.: 210 6834550
ΟΙΚΟΛΟΓΙΚΟ ΠΑΡΚΟ ΝΕΟΥ ΨΥΧΙΚΟΥ (Στρ. Μακρυγιάννη) ΣTHN EKΔHΛΩΣH ΘA EXETE THN EYKAIPIA NA ΓNΩPIΣETE ΣKYΛAKIA ΠOY ZHTOYN OIKOΓENEIA! • ΜΑΣΚΟΤ, Ο ΠΕΡΙ, Ο ΗΡΩΑΣ ΤΟΥ ΠΕΡΙΒΑΛΛΟΝΤΟΣ • ΘΕΑΤΡΙΚΟ ΠΑΙΧΝΙΔΙ - ΚΟΥΚΛΟΘΕΑΤΡΙΚΗ ΠΑΡΑΣΤΑΣΗ • ΕΡΓΑΣΤΗΡΙ ΜΟΥΣΙΚΗΣ: ΜΕ ΟΡΓΑΝΑ ΑΠΟ ΑΝΑΚΥΚΛΩΣΙΜΑ ΥΛΙΚΑ • ΓΩΝΙΑ ΜΑΓΕΙΑΣ - ΑΝΑΚΥΚΛΩΝΟΥΜΕ ΤΑ ΚΑΛΑΜΑΚΙΑ ΚΑΙ ΣΩΖΟΥΜΕ ΤΟΝ ΠΛΑΝΗΤΗ • ΕΡΓΑΣΤΗΡΙ ΠΕΙΡΑΜΑΤΩΝ - ΠΕΙΡΑΜΑ ΜΕ ΘΕΜΑ ΤΗΝ ΕΝΕΡΓΕΙΑ (ΜΑΘΑΙΝΟΥΜΕ ΤΗΝ ΛΕΙΤΟΥΡΓΙΑ ΤΗΣ ΚΑΙ ΠΩΣ ΤΗΝ ΕΞΟΙΚΟΝΟΜΟΥΜΕ) • ΕΡΓΑΣΤΗΡΙ ΚΑΤΑΣΚΕΥΩΝ - ΚΑΤΑΣΚΕΥΕΣ ΜΕ ΑΝΑΚΥΚΛΩΣΙΜΑ ΥΛΙΚΑ ΚΑΙ ΚΟΛΑΖ ΜΕ ΦΥΣΙΚΑ ΥΛΙΚΑ • ΓΩΝΙΑ ΠΑΙΧΝΙΔΙΟΥ - ΠΑΙΧΝΙΔΙΑ ΜΕ ΘΕΜΑ ΤΟ ΝΕΡΟ • MINI ΜΠΟΥΦΕΣ ΣΕ ΑΤΟΜΙΚΕΣ ΣΥΣΚΕΥΑΣΙΕΣ • ΔΩΡΑ ΓΙΑ ΟΛΑ ΤΑ ΠΑΙΔΙΑ
5-12
ΗΜΕΡΑ

Barker.

σε αυτό είναι

πανανθρώπινα και διαχρονικά.

ΑΠΟ ΤΗΝ Σ ΥΛΛΗΨΗ ΣΤΗΝ ΥΛΟΠΟΙΗΣΗ Η σύλληψη της ιδέας ανήκει

στην Υποδιευθύντρια του 2ου

Γυμνασίου, την φιλόλογο Ρούλα

Αντωνίου, που από την πρώτη

στιγμή είχε δίπλα της την εκπαι-

δευτικό Μαρία Γραμμένου. Τα

βήματα όμως προς την υλοποί-

ηση ήταν πολλά: μουσική επέν-

δυση, χορογραφία, σκηνοθεσία

και ενδυματολογία.

Της Όλγας Μενεμενόγλου Το 2ο Γυμνάσιο Νέου Ψυχικού επιλέχτηκε από την αρμόδια Καλλιτεχνική Επιτροπή για να συμμετέχει στην 3η Πανελλήνια Νεανική Συνάντηση - Φεστιβάλ «ΝέΟΙ ΟΜΗΡίΔΕΣ, 2024». Πρόκειται για ένα Φεστιβάλ δημιουργικής έκφρασης βασισμένης στα Ομηρικά Έπη, που αποτελεί φυτώριο ενεργών πολιτών του μέλλοντος και πραγματοποιείται για τρίτη χρονιά. Αξίζει να αναφέρουμε ότι υπέβαλαν αίτηση 27 σχολεία και προκρίθηκαν μόλις (9) μεταξύ των οποίων και το 2ο Γυμνάσιο. Το Φεστιβάλ θα διεξαχθεί στην Χίο τον Σεπτέμβριο και το 2ο Γυμνάσιο συμμετέχει με την παράσταση "Μας ακούτε;" - δίνοντας φωνή στις γυναίκες -λάφυρα, στις γυναίκες-θύματα όλων των πολέμων Η θεατρική δημιουργία έχει κεντρικές ηρωίδες την Βρισηίδα και τη Χρυσηίδα, δύο γυναίκες που μεταφέρονται ως αντικείμενα –λάφυρα, με ελάχιστες αναφορές μέσα στο ποιητικό κείμενο για τα δικά τους συναισθήματα. Πυρήνα του σεναρίου αποτέλεσε η Α’ ραψωδία της Ιλιάδας, που εμπλουτίστηκε με αποσπάσματα από δημιουργήματα της σύγχρονης λογοτεχνίας και συγκεκριμένα, οι ποιητικές συλλογές της Ιωάννας Κόκλα: "Δαδοῦχος τῆς ἱστορίας τοῦ φωτός" και "Διαστολή στο σήμερα" και το μυθιστόρημα “Η σιωπή των κοριτσιών” του Pat
Σκοπός είναι να φωτιστεί η ψυχική κατάσταση των δύο ηρωίδων, αλλά και όσων βρίσκονταν στην ίδια θέση, ενώ παράλληλα επιχειρείται η σύνδεση με τη θέση της γυναίκας στο παρελθόν αλλά και στο παρόν. Η Ιλιάδα ειδικότερα είναι πρωτίστως ένα αντιπολεμικό κείμενο και είναι σημαντικό τα παιδιά να αντιληφθούν ότι τα θέματα που θίγονται
Όλα αυτά τα συνάντησε η κυρία Αντωνίου στο μάθημα ορθοφωνίας
παιδευτικούς,
Ιερό
Αγίου Γεωργίου, όπου γνωρίστηκε με την καθηγήτρια χορού Λιάνα Πιτικάρη. Η ιδέα την ενθουσίασε και οι τρεις τους έπεσαν με τα μούτρα στην δουλειά, βρίσκοντας τους μαθητές και τους υπόλοιπους συντελεστές, ενώ και ο Διευθυντής του 2ου Γυμνασίου Λάμπρος Γιώργας υποστήριξε θερμά την προσπάθεια, εμψυχώνοντας τα παιδιά και συμμετέχοντας ο ίδιος και στις πρόβες που γίνονταν το Σάββατο. Χρειάστηκαν τέσσερεις μήνες πρόβες, ράψιμο ρούχων με ίδια μέσα και διασκευή των κειμένων, ώστε να έρθει το επιθυμητό αποτέλεσμα των τριανταπέντε λεπτών, που τους έδωσε και την πρόκριση. Το video με το ενδεικτικό υλικό που υποβλήθηκε στην αρμόδια Καλλιτεχνική Επιτροπή για την επιλογή των σχολείων βρίσκεται στο λινκ https://youtu.be/ feROE0R8Mso ΟΙ ΣΥΝΤΕΛΕΣΤΕΣ ΤΟΥ ΕΡΓΟΥ Συμμετείχαν οι μαθητές / μαθήτριες (με αλφαβητική σειρά): Αθανασόπουλου Νεφέλη, Γεωργίου Χριστίνα, Γιαννοπούλου Κωνσταντίνα, Δάγλα Ίριδα, Δόικα Σοφία, Θανάση Βικτώρια, Ιατράκης Ανδρέας, Κακαρούντας Παναγιώτης, Καρακαξίδη Ανδριανή, Κοϊτσάνος Ιάσονας, Μίσσα Αθηνά, Ταμαζλικάρι Αλέξανδρος, Ταμαζλικάρι Αναστασία, Τσερένκοβ Αντρέας. Την πρωτότυπη μουσική συνέθεσε και εκτέλεσε με την κιθάρα του ο Νίκος Κωστόπουλος. Η λήψη του τελικού video και η φωτογράφηση έγινε από τον φωτογράφο Παναγιώτη Μαυρομμάτη. Το video με το ενδεικτικό υλικό που υποβλήθηκε στην αρμόδια Καλλιτεχνική Επιτροπή για την επιλογή των σχολείων βρίσκεται στο λινκ https://youtu.be/ feROE0R8Mso
ΤΡΌΦΙΜΑ ΓΈΜΊΖΌΥΜΈ ΤΑ ΡΑΦΊΑ ΤΌΥ ΚΌΊΝΩΝΊΚΌΥ ΠΑΝΤΌΠΩΛΈΊΌΥ ΠΑΡΑΣΚΈΥΗ 14 ΊΌΥΝΊΌΥ ΚΑΊ ΩΡΈΣ ΑΠΌ 10:00 ΜΈΧΡΊ 13:00 ΠΡΟΚΡΙΣΗ ΣΤΟ ΦΕΣΤΙΒΑ Λ «ΝέΟΙ ΟΜΗΡίΔΕΣ 2024» 2ο ΓΎΜΝΑΣΙΌ ΝΕΌΎ ΨΎΧΙΚΌΎ ΠΟΛΙΤΙΣΤΙΚΑ ΗΔιεύθυνση Κοινωνικής Προστασίας του Δήμου Φιλοθέης-Ψυχικού, διοργανώνει δράση συλλογής τροφίμων για την ενίσχυση του Κοινωνικού Παντοπωλείου του Δήμου. Ο σκοπός της δράσης είναι η στήριξη των οικονομικά και κοινωνικά ασθενέστερων και ευπαθών ομάδων. Η δράση υλοποιείται για δύο ημέρες, η πρώτη έγινε την Παρασκευή 7 Ιουνίου και η δεύτερη διοργανώνεται την Παρασκευή 14 Ιουνίου, από τις 10 το πρωί μέχρι τις 1 το μεσημέρι. Τα τρόφιμα που έχει ανάγκη το Κοινωνικό μας Παντοπωλείο να συγκεντρώσουμε είναι: ελαιόλαδο, ζυμαρικά, ρύζι, ντοματοπολτό, ζάχαρη, αλεύρι και γάλα εβαπορέ. Τα σημεία συλλογής τροφίμων είναι δύο: η έδρα του Κοινωνικού Παντοπωλείου, η είσοδος είναι από Παρίτση 101-103 ή από Ρήγα Φεραίου 40 (πίσω από το κτίριο Βαλλιάδη) στο Νέο Ψυχικό και η είσοδος του S/M Σκλαβενίτη, στην οδό 25η Μαρτίου 48, στο Νέο Ψυχικό. 14 Α΄ ΔΕΚΑΠΕΝΘΗΜΕΡΟ ΙΟΥΝΙΟΥ 2024
για εκ-
που γίνεται στον
Ναό
ΜΑΖΕΥΌΥΜΕ
ΤΟΠΙΚΑ ΝΕΑ 15 Α΄ ΔΕΚΑΠΕΝΘΗΜΕΡΟ ΙΟΥΝΙΟΥ 2024 ΔΙΕΥΘΥΝΣΗ ΚΟΙΝΩΝΙΚΗΣ ΠΡΟΣΤΑΣΙΑΣ ΕΘΕΛΟΝΤΙΚΗ ΑΙΜΟΔΟΣΙΑ Τετάρτη 3 Ιουλίου 2024 Ώρα 16.30 – 19.30 Α΄ Πλατεία Ψυχικού (πρώην Blue Bell) Δηλώσεις συμμετοχής: τηλ. 210 6744122 ΑΙΜΟΔ ΟΣΙΑ δίνοντας αίμα σώζεις μια ζωή ΔΙΕΥΘΥΝΣΗ ΚΟΙΝΩΝΙΚΗΣ ΠΡΟΣΤΑΣΙΑΣ ΘΕΡΙΝΗ ΠΕΡΙΟΔΟΣ 2024 ΑΠΟ ΤΡΙΤΗ 25 ΙΟΥΝΙΟΥ ΕΩΣ ΠΑΡΑΣΚΕΥΗ 6 ΣΕΠΤΕΜΒΡΙΟΥ ΘΑΛΑΣΣΙΑ ΜΠΑΝΙΑ ΠΛΗΡΟΦΟΡΙΕΣ: Δ/ΝΣΗ ΚΟΙΝΩΝΙΚΗΣ ΠΡΟΣΤΑΣΙΑΣ 213-2014625, 213-2014650, 213-2014600 ΚΡΑΤΗΣΕΙΣ ΘΕΣΕΩΝ ΓΙΝΟΝΤΑΙ ΤΗΝ ΠΡΟΗΓΟΥΜΕΝΗ ΕΡΓΑΣΙΜΗ ΗΜΕΡΑ ΓΙΑ ΤΗΝ ΕΠΟΜΕΝΗ: ΤΗΛΕΦΩΝΙΚΩΣ ΣΤΟ 210-6011564 (ΑΠΟΚΛΕΙΣΤΙΚΑ ΤΙΣ ΩΡΕΣ 16:00 – 19:00) Ώρες επιστροφής: αναχώρηση περίπου στις 12:00 από την πλαζ και άφιξη στις 13:00 Ώρες εκκίνησης: Οι φετινοί προορισμοί είναι οι ακόλουθοι: → Για τους κατοίκους Ψυχικού και Φιλοθέης, η Πλαζ Δήμου Μαρκόπουλου (Αυλάκι) → Για τους κατοίκους Νέου Ψυχικού, η παραλία Αγίου Σπυρίδωνα (Πόρτο Ράφτη) ΠΡΟΚΑΘΟΡΙΣΜΕΝΕΣ ΣΤΑΣΕΙΣ: ΨΥΧΙΚΟ: Βαρβάκειο, Κοντολέοντος, Α’ Πλατεία, Β’ Πλατεία, Γύζη, Πλατεία Σολωμού, Πινακοθήκη, Στεφ. Δέλτα. ΦΙΛΟΘΕΗ: Άνω Αγορά (Λουλουδάδικο), 25ης Μαρτίου (Κυπαρισσόμηλο), Πρώην Ταχυδρομείο (ΚΕΠ), Αγίας Φιλοθέης & Κονδυλάκη, Πέτρινο Περίπτερο, Σινεμά, Πλατεία Κορυζή. ΝΕΟ ΨΥΧΙΚΟ: 25ης Μαρτίου (Στ. Αστέρια), Πλατεία Αγίας Σοφίας / Περίπτερο (γωνία οδού Σεφέρη)
π.μ. Δευτέρα έως και Παρασκευή ΦΙΛΟΘΕΗ: 9:00 π.μ. Δευτέρα, Τετάρτη και Παρασκευή ΝΕΟ ΨΥΧΙΚΟ: 8:50 π.μ. Δευτέρα έως και Παρασκευή
ΨΥΧΙΚΟ: 8:45

συγκεκριμένα, που θα μπορούσες να τους κατατάξεις σε «καραμανλικούς» ή «σαμαρικούς» να δηλώνουν ευθαρσώς ότι θα ψήφιζαν

Φωνή Λογικής. Και φυσικά δεν

περάσει απαρατήρητο ότι κάποια πολιτικά πρόσωπα που

νέας Διοίκησης».

ΕΦΑΓΑΝ

ΤΑ ΜΌΎ ΣΤΑΚΙΑ ΤΌΎ Σ

17 Α΄ ΔΕΚΑΠΕΝΘΗΜΕΡΟ ΙΟΥΝΙΟΥ 2024 ΤΟΠΙΚΑ ΝΕΑ Ευφρονίου 65, Αθήνα, Τ.Κ. 16121 Τηλ.: 210 7. 215 215, 69.33.28.79.79 email:
Επαναπατρισμός Θρησκευτικές & Πολιτικές Κηδείες - Αποτεφρώσεις Μνημόσυνα Στέφανα - Στολισμοί ΕΞΥΠΗΡΕΤΗΣΗ ΣΕ ΟΛΗ ΤΗΝ ΕΛΛΑΔΑ 1971 ΑΠΟ ΤΟ Σχολιάζουν η Όλγα Μενεμενόγλου και η Λυδία Λέκκα τέρω) ήταν τα δικά τους ποσοστά και δεν είχαν την παραμικρή συμβολή στην φθορά του κυβερνώντος κόμματος.
νώς αναρωτιόμαστε, ο άνθρωπος έχει παραισθήσεις («ντελούλου», που λένε και τα μικρά), νομίζει ότι απευθύνεται σε ηλιθίους ή απλά, τόσο του κόβει; Σε κάθε περίπτωση, αυτό που σίγουρα αξίζει να επισημανθεί για τον ΣΥΡΙΖΑ είναι ότι τα κόμματα που προήλθαν από την διάσπασή του (Νέα Αριστερά και Κόσμος) του στέρησαν λίγους αναλογικά ψηφοφόρους. Μπορεί όμως αυτό να πιστωθεί στον κύριο Κασσελάκη; Ή μήπως τα πρόσωπα που απαρτίζουν τα αποσπασμένα αυτά τμήματα δεν πείθουν ή/και τα μηνύματα που κομίζουν αφορούν ένα πολύ περιορισμένο κοινό; ΦΩΝΗ ΛΌΓΙΚΗΣ Για εμάς αξιοσημείωτο ήταν το ποσοστό που κατάφερε να πιάσει η Αφροδίτη Λατινοπούλου. Είχαμε ακούσει αρκετούς ψηφοφόρους της ΝΔ, τους πιο
την
είχε
δραστηριοποιούνται εκτός κεντρικής πολιτικής σκηνής (π.χ. Δημοτικοί Σύμβουλοι άλλων Δήμων, όχι του δικού μας), έδιναν ατύπως «γραμμή» προς τα εκεί. Δεν της το ’χαμε όμως ότι θα τα κατάφερνε να μπει στην Ευρωβουλή και πρέπει να πούμε ότι η επιτυχία αυτή μας εξέπληξε. ΠΡΩΤΗ ΦΌΡΑ ΖΩΝΤΑΝΑ Πάμε τώρα να μιλήσουμε και για τα του οίκου μας, όχι σε ότι αφορά τις εκλογές (αυτά μπορείτε να τα διαβάσετε στην σελίδα 11), αλλά την λειτουργία του Δήμου. Η συνεδρίαση του Δημοτικού Συμβουλίου στις 3 Ιουνίου ήταν η πρώτη που μεταδόθηκε ζωντανά δημοσίως, μέσω του καναλιού του Δήμου στο Youtube, όπου και παραμένει αναρτημένη, για κάθε ενδιαφερόμενο. Μέχρι σήμερα έχει προβληθεί 425 φορές, αριθμός που θεωρείται ικανοποιητικός, δεδομένου ότι διανύουμε και μία μάλλον νεκρή περίοδο σε ό,τι αφορά τα αυτοδιοικητικά. Η ζωντανή αναμετάδοση θεωρήθηκε βέβαια από ορισμένους ευκαιρία δημιουργίας εντυπώσεων, μέσω άγονων επί της ουσίας αντιπαραθέσεων στις οποίες και επιδόθηκαν. ΝΙΑΌΎ ΒΡΕ ΓΑΤΌΎΛΑ Θέμα πρώτο και εκτός ημερησίας διατάξεως, η αποδοχή της προσφοράς 3.000 ευρώ από δημότη, προοριζόμενη για την στείρωση αδέσποτων γατιών. Ποιο ήταν το πρόβλημα; Ότι η δωρήτρια έχει κάποια σχέση με την εταιρεία «Κέκρωψ», τον ιστορικό αντίδικο του Δήμου μας. Η φιλόζωη κυρία ήθελε (για λόγους ίσως φορολογικούς;) η συγκεκριμένη δαπάνη να καλυφθεί μέσω της “Κέκρωψ”. Το θέμα είχε ήδη συζητηθεί στην Δημοτική Επιτροπή (που είναι ανοικτή
που είχε συνεδριάσει πριν το Δημοτικό Συμβούλιο και η δωρεά είχε εγκριθεί. Η επικεφαλής της ελάσσονος αντιπολίτευσης Φαίνη Χατζηαθανασιάδου, θεώρησε όμως απαραίτητο να το θέσει στο Δημοτικό Συμβούλιο, επιτιθέμενη μάλιστα στον Δήμαρχο και μιλώντας ακόμα και για διαύλους επικοινωνίας και πιθανά ανταλλάγματα, όπως είπε, που μπορεί να έχει ζητήσει η Εταιρεία. ΌΙ ΛΎ ΣΣΑΣΜΕΝΕΣ ΓΑΤΕΣ Με τον γνωστό της τόνο, εριστική και προσβλητική, η κυρία Χατζηαθανασιάδου εμμέσως πλην σαφώς κατηγόρησε τον Δήμαρχο ότι για τρία χιλιάρικα διαπλέκεται με μία αντίδικη εταιρεία και ξεπουλάει τα συμφέροντα του Ψυχικού. Ο Δήμαρχος, διατηρώντας την ψυχραιμία του, δεν κουράστηκε να εξηγεί ξανά και ξανά, ότι ο Δήμος δεν νοείται να απορρίπτει δωρεές, πολλώ δε μάλλον για το θέμα των αδεσπότων
η απελθούσα Διοίκηση
προβλέψει επαρκείς πόρους, ενώ βεβαίως η συγκεκριμένη πρωτοβουλία της κυρίας δεν επηρεάζει τους δικαστικούς αγώνες. Για την ιστορία να πούμε ότι στο ίδιο Δημοτικό Συμβούλιο εγκρίθηκε κατόπιν και η αμοιβή του δικηγόρου του Δήμου για νομικές ενέργειες εναντίον της Κέκρωψ. Το πινγκ πονγκ συνεχίστηκε με το μπαλάκι να παίρνουν εκ περιτροπής ο Δημήτρης Γαλάνης και η Ελένη Ζέππου. Και ο μεν πρώην Δήμαρχος ήταν αν μη τι άλλο ευγενής, η δε κυρία Ζέππου όμως ως συνήθως ξεπέρασε τα όρια, μιλώντας για «απαράδεκτες
ταστάσεις 5 μόλις μήνες μετά
ανάληψη
teletaipapavasileiou@gmail.com
Διότι εάν είχαν, κάτι θα είχαν καρπωθεί. Ειλικρι-
συντηρητικούς
στο κοινό, με δικαίωμα παρέμβασης κιόλας),
για το οποίο
δεν είχε
κα-
την
της
Οι προσβολές και οι κατηγορίες θύμωσαν και την Πρόεδρο του Δημοτικού Συμβουλίου Κατερίνα Αλεξοπούλου, η οποία έχει η ίδια εδώ και χρόνια αγωνιστεί εναντίον της «Κέκρωψ». Ορθά - κοφτά, η Πρόεδρος δήλωσε ότι οι δικαστικοί αγώνες θα συνεχιστούν με την ίδια ένταση, κάτι που άλλωστε δεν έχει να κάνει με την δωρεά και επανέλαβε ότι δεν υπάρχει προηγούμενο απόρριψης δωρεών. Με αυτά και με κείνα, ο Μπάμπης Μπονάτσος την πολλοστή φορά που επαναλάμβανε τα ίδια και τα ίδια, έχασε πλέον την υπομονή του και απευθυνόμενος στον Δημήτρη Γαλάνη, αναρωτήθηκε εάν υπάρχει «πρόβλημα αντίληψης». Πρόβλημα αντίληψης δεν υπάρχει σίγουρα. Ένα πιασάρικο καλό θέμα αντιπολίτευσης είναι. Παρ’ όλα αυτά οφείλουμε να πούμε ότι και η κουβέντα του Δημάρχου ήταν προσβλητική. Τόσο που μόλις το ακούσαμε μας ξέφυγε ένα επιφώνημα έκπληξης και προσδεθήκαμε, περιμένοντας την έκρηξη, που όμως και όλως περιέργως δεν ήρθε ποτέ. Τόσο προσηλωμένοι ήταν όλοι στο στόχο τους να κάνουν την τρίχα τριχιά, που είτε δεν άκουσαν, είτε δεν νοιάστηκαν. Σαράντα λεπτά από τα εβδομήντα πέντε που διήρκησε το Δημοτικό Συμβούλιο, τα περάσαμε με το συγκεκριμένο θέμα. Τα υπόλοιπα έξι, που ήταν και τα προγραμματισμένα, εγκρίθηκαν σχεδόν όλα ομόφωνα, σε χρόνο dt. Κλείνοντας, ένα έχουμε να σας πούμε: Νιάου!

Κατσιλίδης

εκπρόσωπος του Αρχηγού ΓΕΣ, ο Σμήναρχος (ΕΠ)

κ. Παναγής Ταξιάρχης ως εκπρόσωπος του Αρχηγού ΓΕΑ, ο Ταξίαρχος κ. Εμμανουήλ Παναγιώτου, ως εκπρόσωπος του Αρχηγού

της Ελληνικής Αστυνομίας, ο Πρόεδρος του Συνδέσμου Εφέδρων Αξιωματι-

κών Ανατολικής Αττικής

κ. Θεόδωρος Μπριάνης, η ερευνήτρια

17 Ιουνίου 2024 και ώρα 19:30.

Για το μυθιστόρημα θα μιλήσει η Δρ. Αικατερίνη Πολυμέρου - Καμηλάκη, ομότ. Ερευνήτρια, τ. Διευθύντρια του Κέντρου Λαογραφίας της Ακαδημίας Αθηνών και αποσπάσματα θα διαβάσει η ηθοποιός Κατερίνα Αποστόλου.

με τη συμμετοχή τους στον φιλανθρωπικό αγώνα No

Finish Line από τις 15 έως τις 19 Μαΐου 2024 στην Αγορά του ΟΑΚΑ.

Σε 100 ώρες αγώνα κατάφεραν

να τρέξουν, να περπατήσουν όλοι

μαζί, μια ομάδα ενωμένη, 165 μι-

κροί και μεγάλοι, μαθητές με τους

εκπαιδευτικούς τους, παιδιά με

τους γονείς τους 2.100 km και στο

τέλος να διακριθούν, κερδίζοντας

την τρίτη θέση σε σχολεία με

ΚΟΠΈΛΑ ΑΠ Ο ΦΟΙΤΟΣ DEREE Αγγλικής Λογοτεχνίας κάνει μεταφράσεις κειμένων από Αγγλικά-Γαλλικά-Ισπανικά σε Ελληνικά. Τηλέφωνο 6973510253. αγγελία ΑΠΌΒΑΣΗ ΣΤΗ ΝΌΡΜΑΝΔΙΑ (D – DAY) › 80 ΧΡΟΝΙΑ ΑΠΟΤΗΝ ΑΡΧ ΗΤΟΥ ΤΈΛΟΥΣ ΤΟΥ Β' ΠΑΓΚΟΣΜΙΟΥ ΠΟΛΈΜΟΥ «ΑΝΑΤΟΛΈΣ ΚΑΙ Δ ΈΙΛΙΝ Α » ΤΟ ΝΈΟ ΒΙΒΛ ΙΟ ΤΗΣ ΣΤΈΛΛΑΣ ΤΡΑΓΓΑΝΙ ΔΑ 3ο ΚΑΙ 4 ο ΔΗΜΟΤΙΚΟΣΧΟΛ ΈΙΟ: ΣΥΜΜΈ ΤΟΧ ΗΣ ΈΦΙΛΑΝΘΡΩΠΙΚΟΑΓΩΝΑ Με μεγάλη επιτυχία στέφθηκε η επετειακή
χρόνια
από την Απόβαση στη Νορμανδία (D –DAY), που συνδιοργάνωσε το Τμήμα
εκδήλωση, για τα 80
(1944 – 2024)
AHEPA HJ – 40
Μουσείου», το απόγευμα της Τρίτης 4 Ιουνίου
στη κατάμεστη αίθουσα
Φεραίος» του
Μουσείου. Για τα γεγονότα της Απόβασης αναφέρθηκε ο Διδάσκων του Τμήματος Τουρκικών Σπουδών του ΕΚΠΑ Δρας Μάρκος Τρούλης, ενώ ο Καθηγητής της Στρατιωτικής Σχολής Ευελπίδων κ. Κωνσταντίνος Γρίβας συνέδεσε τα ιστορικά στοιχεία της επιχείρησης με το σήμερα και τις γενικότερες εξελίξεις στην περιοχή μας. Τη συζήτηση συντόνισε ο Ταξίαρχος (Ι) ε.α. της Πολεμικής Αεροπορίας και Διδάκτωρ Διεθνούς Δικαίου κ. Γεώργιος Ανεψιού. Στην εκδήλωση παρέστησαν: ο Πρόεδρος του Πολεμικού Μουσείου Αντιπτέραρχος (Ι) ε.α. κ. Κωνσταντίνος Καραμεσίνης, ο Διοικητής του Ναυστάθμου Σαλαμίνας Αρχιπλοίαρχος (Μ) κ. Σπυρίδων Μαντής ως εκπρόσωπος των Αρχηγών ΓΕΕΘΑ & ΓΕΝ, ο
Ψυχικού & το Πολιτιστικό Σωματείο «Οι Φίλοι του Πολεμικού
2024,
«Ρήγας
Πολεμικού
Συνταγματάρχης (ΤΧ) κ. Παρασκευάς
ως
ρίας – συγγραφέας κ.
στυ
Ιωαννίδη, ως εκπρόσωπος του Ελληνικού Ινστιτούτου Ναυτικής Ιστορίας, ο γραμματέας της Π.ΟΜ.ΕΝ.Σ κ. Γεώργιος Κυριακάκης, ο γραμματέας των «Φίλων του Πολεμικού Μουσείου» κ. Ιωάννης Καρταπάνης, απόστρατοι αξιωματικοί και πολλοί άλλοι εκλεκτοί προσκεκλημένοι και φιλίστορες. Η εκδήλωση άνοιξε με τους χαιρετισμούς: του προέδρου των «Φίλων του Πολεμικού Μουσείου» κ. Αντώνιου Γκορτζή και του τέως Κυβερνήτη της AHEPA HELLAS κ. Κωνσταντίνου Βαρσάμη και έκλεισε με τις ευχαριστήριες αναφορές: του Προέδρου του Τμήματος AHEPA Ψυχικού κ. Παναγιώτη Ριζόπουλου και του Κυβερνήτη της AHEPA HELLAS κ. Χρήστου Καραπιπέρη. ΒΙΒΛΙΌΠΑΡΌΎ ΣΙΑΣΗ Το νέο βιβλίο της Στέλλας Πετρίκη – Τραγγανίδα «Ανατολές και Δειλινά» παρουσιάζεται στο Πολιτιστικό Κέντρο Μπενετάτου Ψυχικού,
ναυτικής ιστο -
Κρί-
Εμίλιο
τη Δευτέρα,
Το πέμπτο βιβλίο της κυρίας Τραγγανίδα είναι ένα μυθιστορηματικό αφήγημα μιας άλλης εποχής, μακρινής, αλλά και κοντινής συνάμα, αφού το παρελθόν είναι πάντα εδώ και καθορίζει κατοπινές ζωές. Μέσα από την ιστορία μιας οικογένειας, σκιαγραφείται ο βίος μιας γενιάς Ελλήνων, αλλά και οι περιπέτειες μιας χώρας σε μια δύσκολη περίοδο. Σε μια χώρα που προσπαθεί να συνέλθει από την τουρκική κυριαρχία, με σκλαβωμένα ακόμα κομμάτια της, οι άνθρωποι μετακινούνται αναζητώντας μια καλύτερη ζωή. Στο επίκεντρο, βρίσκονται οι γυναίκες, οι μάνες, γύρω από τις οποίες ξετυλίγεται το κουβάρι της υπόθεσης. Μια πολυτάραχη ιστορία, που εκτυλίσσεται στο τέλος του 19ου αιώνα για να αγγίξει το σήμερα. Ηχηρότατο μήνυμα αγάπης για το παιδί, τη συμπερίληψη και την κοινωνική προσφορά έδωσαν το 3ο και 4ο Δημοτικά Σχολεία Νέου Ψυχικού
δυναμική των 120 ατόμων και άνω. Μαθητές από την Α’ έως και τη Στ’ τάξη έδωσαν με περίσσια αγάπη και ανιδιοτέλεια των καλύτερό τους εαυτό στην κυκλική διαδρομή ενός χιλιομέτρου στο ΟΑΚΑ απολαμβάνοντας μουσική, παγωτά και άφθονους φυσικούς χυμούς. Οι διευθύντριες των σχολείων Αντωνία Μπαρμπαλιά και Γεωργία Καρέλα μέσω του φιλανθρωπικού αγώνα προώθησαν τις αξίες του αλτρουισμού και της αλληλεγγύης στους μαθητές με καθημερινό πολύωρο περπάτημα στον χώρο της δράσης. Τέλος, η εκπαιδευτικός Λένα Πουλημένου η οποία ανέλαβε την οργάνωση της δράσης στο σχολείο, βρήκε την ιδανική αφορμή, ώστε να εμφυσήσει τη φιλοσοφία ενός ξεχωριστού προπονητή στην Ελλάδα, του Δημήτρη Τζεφαλή που βασίζεται στην αρχή: «Να προχωράς ένα βήμα μπροστά κάθε φορά, μετά να στέκεσαι ώστε να δεις εάν τα πράγματα είναι καλώς καμωμένα, και έπειτα να συνεχίζεις την πορεία σου». Σε ευχαριστήριο μήνυμα που έστειλε η κ. Κέδε Σοφία, στις διευθύνσεις των Σχολείων, Πρόεδρος & Εκτελεστική Διευθύντρια του No Finish Line Athens, επισήμανε τα ακόλουθα: «Είναι σημαντικό να έχουμε στο πλευρό μας ομάδες όπως η δική σας, που πιστεύουν στον σκοπό και θέλουν να βοηθήσουν παιδιά που βρίσκονται σε ανάγκη. Χάρη και στη δική σας συμμετοχή καταφέραμε να ξεπεράσουμε τον φετινό στόχο, που ήταν τα 100.000 χιλιόμετρα και να στηρίξουμε για 8η χρονιά το Μαζί για το Παιδί. Η χαρά μας είναι ακόμη μεγαλύτερη όταν πρόκειται για σχολεία που διδάσκουν στα παιδιά αξίες, όπως η προσφορά, η αγάπη, η βοήθεια στον συνάνθρωπο. Καλή μας αντάμωση στο 9ο No Finish Line Athens». 18 Α΄ ΔΕΚΑΠΕΝΘΗΜΕΡΟ ΙΟΥΝΙΟΥ 2024 ΠΟΛΙΤΙΣΤΙΚΑ
19 ΦΙΛΟΘΕΗ-ΨΥΧΙΚΟ Α΄ ΔΕΚΑΠΕΝΘΗΜΕΡΟ ΙΟΥΝΙΟΥ 2024
ΓΥΜΝΑΣΤΙΚΗΓΙΑΟΛΟΥΣ ΤΜΗΜΑΠΑΙΔΕΙΑΣ, ΠΟΛΙΤΙΣΜΟΎΚΑΙΑΘΛΗΤΙΣΜΟΎ 2024 15 ΙΟΥΝ Ι ΟΥ 19:30 ΣΑΒΒΑΤΟ Αθλητικό Κέντρο Νέου Ψυχικού Ρήγα Φεραίου & Μπουμπουλίνας
ΑΘΛΗΤΙΚΑ ΔΡΩΜΕΝΑ

Turn static files into dynamic content formats.

Create a flipbook
Τοπικά Νέα (Νο 822) by Ολγα Μενεμενόγλου - Issuu