

P _ RT FOLI









.01 NEURO MENTAL HEALTH CENTER
Thepurposeofthisprojectistocreateaspacethatmergesresearchandmentalhealthtoassessatangibleresultofimprovementinthepatient’smental health.Thefunctionofthisprojectevolvesaroundtechnologythatwillrecorduserresponsetostimuli,collectingbigdataandinteriordesigninnovationthat willimproveuserwell-being.Recognizingthatneurosciencehasvastpotentialinthetreatmentofmentalhealth,neuro-architecturecanbecomethefuture ofmentalhealthcenterdesign.




ZONING&CONCEPT






















TheconceptforthisprojectstemsfromtheculturalaspectofVastu-whichusestheorientationofthebuildingto createdaylighting,andventilationsolutionsthathelpwiththeuser’swellbeing.Althoughthisisprimarilyusedin residentialspaces,itcanbeappliedinahealthcaresetting-notjustasatraditionalmethod,butasapractical applicationofhealingthebodyandthemindthroughtheenergyfromthesurroundings.























MULTIPURPOSESEMINARROOM

ACTIVITYAREA



EXAMROOM

DAYAREA







.02 SUKH SPICES

HOSPITALITYPROJECT
AfusionofThaiandIndiancultureembodiesthisrestaurantdesign.Grainrepresents‘phumkhaobin’-atraditionalpatternofThailandandtoalsopromote Thaicraftmanshipwhile‘celebrate’givesanatmosphereofcelebrationforbothtargetusers.‘Axis’representstwoculturesthatblendinthemiddle.Vibrant colorsandpatternsactasanostalgicandfamiliarfeelingwhileThaicuisineisintroducedinthecontextofIndia.








EXPLODEELEMENTS

3DSECTION









ThelightingdesignforthisrestaurantisinspiredbytheloveforfestivitiesbyIndianandThaipeople.Throughtheuseofthetwotheories(by RichardKelly)-playofbrilliantsandambientluminescence,thespiritofcelebrationisrepresentedinthisrestaurantdesign.

LIGHTINGPLANRENDER
SECTIONRENDER




LIGHTCONTRASTRATIOBETWEENZONES







OBSERVATION:Averageof150-200lxindanceanddiningareasanddimmeronthesidesoftherestaurantformoreintimate socialization








.03 DENTSU OFFICE
Thisofficerepresentsdentsu-anadvertisingcompanyandbrand.Thisprojecttakesontheconceptofcollaborativecultureinanoffice setting.Usingthekeywords‘divergent,emergentandperceptive’-thisdesignportraystheindividualskillofeachemployeethatcomes togethertocreatesomethinggreaterthanwhatoneindividualcanaccomplishandperceptiveillustratesafunworkinatmospherethat drivesthecompanytoitscorporategoal.
BANGKOK,THAILAND

EMERGENT
DIVERGENT

PERCEPTIVE














1.Hosu2seaterloungeseat
2.SDCStairseat
3.Tanyarinterracottaplaster
4.Leatherwallpaper
5.Turnstonecampfirelounge modularseating
6.SteelcaseJacktaskchair
1.Milanbluewallpaper
2.Dimmablelinearpendantlight
3.EstelKiteacousticlighting
4.WatsonSevenWorkbenchwith modestypanel
5.Herringboneparquetengineered woodflooring
6.Cratemodularbookshelf




1.Ginkgopresidentialconference chairbyDavisfurniture
2.Goldceilingmetalcladding
3.Estelkiteacousticlighting
4.Romanblinds
5.SofaCelinebyLivDecora
6.Genevadarkbluewalltowall carpet
7.Beigecarpet
8.Artopexloungechair
9.BoringvisitorchairbyLensvelt
10.A-tablemediumbrownwalnut finish
11.3-settracklight
1.Lensveltpresidentialconference chair
2.Romanblindsdimout
3.Estelkiteacousticlighting
4.HUDscissorsconferencetable (darkwalnutfinish)
5.Bluecarpettile
6.BurntorangecarpetbyVorwek

.04 RASTA DEPARTMENT STORE


ThisprojecttargetstheRastafariancommunityandaimstobeamusicschoolthatillustratesJamaicanRastalifestyle.Theconceptisinspiredby“smoke”derivedfromthebeliefthatsmokingweedhelpsthemreachahigherlevelofspiritualityandcanbemorecreative.Forthisdepartmentstore,theaimisto designspacesthatwillselltheitemsthattheRastafaricommunitytypicallywouldbuywhichincludesaccessoriesandthefashionofclothingthattheywear. Additionally,thefoodtobesoldistypicallyorganic-basedwhichinfluencesthekindofsupermarketdesignedfortheproject.
STUDYOFSMOKEMOVEMENT



FAÇADEAPPLICATION


ORGANICANDFREE








COSMETICDEPARTMENT


.05 VERSACE FLAGSHIP STORE
TheconceptofthisflagshipstoreisbasedonthebrandhistoryandtheoriginsofVersace.Forthedesign,motifstakenfromtheideaofMedusaandbeauty that“youcan’tlookawayfrom”istheinspirationforthisproject.ThemystifyingappealofMedusaisamagicshownthroughmaterialapplication.Theproject alsoreflectstheseidealsthroughstrikingformsandpatternsthat“weave”likeherhairtofinallycapturethecustomertostayandbeenticedbytheproducts.

HYPNOTIZE




FIRSTFLOOR

SECONDFLOOR









.06 COMET HOTEL

HOSPITALITYPROJECT
Thishotelisinspiredbytheanimemovie“KimiNoNaWa.”Ittargetscoupleswhowanttocomeandenjoythemagicofthemoviethroughthisspace.The ideabehindthecolorscheme,formandthelightingfocusesonthemagicinthescenewherethetwocharactersmeeteachotheronthemountainandalso whenthey’rebothlookingatthesamecometarriving.Thenight-timetodaytimescenesinthespatialdesignarebothJapanese-inspiredbutwiththe magicalessenceofthelightsfromthecomet’sfire.













.07 WELLNESS CENTER
Theconceptofthiswellnesscenteris“serenity”-inspiredbythefeelingofcalmnesswhensittingunderatree.Thedesignmakesuseofundulatingcurvesin layerswhichillustratetheleaflayerswhilethedifferenthuesofgreenrepresentlight-playofsunlightcolorsontheleaves.













.08 HAPILAN ARTS ACADEMY
The youth in the Philippines that roam the unsafe streets of Tondo, Manila. For them, their future jobs are impossible to think about due to the lack of education.Duetothis,theyareusedtoworkinfactoriesinsteadofbeinginschoolswhereatmosphereistoxicforthehealth.Thisacademywillprovideasafe havenandopportunityforthemtopracticetraditionalweavingcraftswhichisbeyondahobby.Itisrememberingcultureandameansofeducationthat giveshopeforafutureinsteadofbeingonthestreets.













































PLAYZONE

CRAFTINGZONE

VERNACULAR SOLUTIONS



MODERN MODULAR


PROGRAMMING THROUGH WALLS COMFORT WALL
TOGETHERNESS







SIT TOGETHER PLAY TOGETHER LEARN





HOUSEHOLDITEMS



PARTITON
.09 COMMUNITY PARK
CONCEPTUAL-URBAN
Howcandesigningaculturalparkeducate,promoteandreducesegregatedlifestylecausedbyracism? ThisconceptualprojectaimstopromoteunityinaneighborhoodinDetroitwhereawallwasoncebuilttosegregatetwoclassesandgroupsofpeople.With programmingandinnovativetechnology,thecommunitycanbeencouragedtointeractandsocialise. Detroit,USA


EDUCATE ABOUT SYSTEMIC RACISM & DISARM FEAR FOR BLACK PEOPLE THROUGH ART


ENCOURAGE INTERACTION AND SOCIAL GATHERINGS IN PUBLICSPACES

MATERIAL USE FOR SUSTAINABLE ART INSTALLATION, & CONTAINED LIGHT POLLUTION USING SMART TECHNOLOGY FOR ENGAGING ART


.10 LIGHTING INTERNSHIP
SKV15RESIDENCE

LOCATION:BANGKOK,THAILAND

PROPERTYOF PROPERTYOF



PROPERTYOF PROPERTYOF PROPERTYOF

.11 FILIPINO MYTHOLOGY MUSEUM

CULTURALPROJECT
ThismuseumtakesinspirationfromFilipinomythologythatchildrengrewuptobelieve-astheyweretoldasstoriesbygrandparentsandpassedon.The mysticalambientaimstoevokeemotionfromtheuserastheyexperienceeachsceneasiftheyarethe“victims”ofthecreatures-whichcaneitherscare themormakethemwonder.Thestoriesareverymuchrealforthelivesofthoseinthelocalcommunitybuttoothers-aninterestinglearningexperience.





MAINHALL-ENTRANCE&DIRECTORY








SEACREATURES&COASTALCOMMUNITY UNDERWORLD,AFTERLIFE








MYTHOLOGYLIBRARY


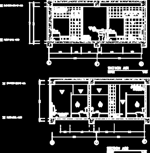
.12 FAMILY BATHROOM
Theconceptofthisbathroomdesignistocreateafeelingoftogethernessthroughamemory.Thebeachissomethingthatisexperiencedwithafamilyand yourlovedones.Thefeelingoffreshnessthroughtheoceanwatersrecreatethismemorythatrelaxesandaccommodatestoall. SANITARY/FORAMERICAN


DRAWINGS








1.WalnutfinishVeneerflooring
2.Bluegreentiles
3.Bluewavebathroomrug
4.BrownCeramictilecountertop
5.Grayceramicwall
6.Cherryoakveneer








.13 PAPPLE SIDE TABLE X MODERNFORM
Theconceptforthissidetableisinspiredfrompineapples.Sincethetargetuserareteenagers,thissidetablewillencouragetheusertodoactivitiessuchas craftingordoingtheirhomeworkinfrontoftheTVafterschoolwhileprovidingstorageforsmallitemssuchasremote.
IDEATIONTOFINALPRODUCTION



CONCEPTSKETCHES














NOTE: PROJECTSDURINGMY PROFESSIONALPRACTICE
ARECONFIDENTIALAND

Email: toniangela0914@gmail.com
Linkedin: Angela Peji
Behance: Toni Angela Peji
Instagram: @angela.portfo