Selected Works 2022- Feb2025

Page 1


The

Exchange Culinary School

“In Process”

Above is a device designed to reveal my selected “works.” It is is an Allegory for my process, portraying my finished output but also the thought and formation behind it. Continuously constructing itself, it mirrors my growth as a designer.

Framing Device

Fragmented Landscape

Location: Atlanta Botanical Gardens, Ga

Housing conservatories for endangered plant species; the new entrance to the Atlanta Botanical garden is presented as a fragmented ecosystem. Glass containers house the endangered plants, fragmented through the constructed landscape.

Arch Year 4
Conceptual Model Vignette Series

Dynamic lines were used to draw people from the beltline into the garden. The architecture creates folds and facets, constructing the fragmented landscape

Axon
Floorplan
Exploded Axon

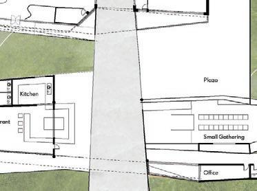
The Exchange Culinary School

The Exchange Culinary School

The Exchange culinary school is about exchanges between West Midtown’s growing community and culinary worlds converging on site 950 West Marietta St. exchanges with an architectural language that responds to the physical and non-physical residual industrial identity in a deep and constructive method. These dynamic forces are allowed to enter the architecture and erode the established volume of the space creating complex interactions between different spaces and inside-outside relationships.

Location - West Midtown Atlanta, Ga

The Exchange occurs between West Midtown’s growing community and culinary needs, converging on West Marietta St. Constructing itself from the residue of the region’s industrial identity, the community and culinary academy Exchange their knowledge and specialty through market, demonstration, and cultivation. The interior and exterior of the space are thus eroded by this interchange, creating a complex spatial field, map, exchange.

Outdoor Market Visualization
Conceptual Model

Industrial Li

Typical warehouse li s are re-contextualized for use in the culinary school. They allow for quick and e cient movement of culinary tools between kitchens.

Flexible Restaurant

The flexible restaurant can transform between a dining area and a community activity space. Much like the dilapidated warehouses of West Midtown, the exchange between the interior and exterior causes a new space to be created.

Demonstration Kitchen

The demonstration kitchen provides cooking demonstration

provides

The demonstration kitchen provides cooking classes and exhibitions with the community. It allows twoway collaboration and learning between the culinary school and the community.

Dual Amphitheatre

The dual amphitheater allows for the interchange of cultural, technical, and intangible knowledge between community and culinary expressions.

Wetland Promenade

Location - Lake Shkoder, Albania

The Wetland Promenade is a large scale urban development project intersecting the edge of the city, rural, and surrounding wetland. The project addresses the loss of the city’s historic Bazaar and promenade as well as the recent increase in flooding. It proposes a rebuilt promenade, situating a Bazaar, Open Market, and Retail-Housing corridor to reinvigorate the city and establish a difinitive edge with the protected wetlands.

Conceptual Model Happenings

Open Market

The city’s rich commercial history is preserved through the market conditions existing at the intersection of the boardwalk, retail, and housing corridor. The market has enclosed shops as well as a temporary market.

Open Market View
Open Market Axon
Open Market Section

Market-Housing Corridor

The retail and housing connect the boardwalk to the pedestrian path, connecting the old and new cities. They are elevated in height, providing a network of resistance to flooding.

Market-Housing Axon
Market-Housing Corridor View

Bazaar on the Boardwalk

The cities historical Bazaar is recreated as a network of commercial and social spaces on the elevated promenade. The open frames vary in size and use, housng commercial and sociocultural exchange,

Boardwalk During a Flood
Boardwalk Visualization
Boardwalk Visualization
Lookout
The boardwalk allows for places to rest and edge

Lookout Retreat

Location - Je erson Washington

National Forest, SC

Lookout Retreat is Located within the national radio quiet zone. Limiting the use of cellular signals, the zone attracts large satellites that thrive in silence. Congress has historically established national zones and parks to make accessible the selfevident beauty of the American natural landscape. Lookout Retreat illuminates the same sublime—the sublime found in the interactions between digital, manmade, and natural terrain.

Introduction of structural datum. Spaces are seperated based on static and dynamic interations with nature

Walls dictate internal and external circulation, reaching out and directing guests to and from the surrounding forest.

The entity reaches up to illuminate the view of the natural and digital terrain. Static areas are lowered.

The wall brings growth from the forest into the space. Static areas follow the natural terrain

East Elevation
Section B West

Woven Twist: A Playscape for All

Location - West Midtown Atlanta, Ga

Woven twist is a design-build project created for the nonprofit street-activation organization, Atlanta Streets Alive. The project consists of a system of modular woven seating. In Atlanta, where public spaces o en feel inaccessible, this installation empowers people by reclaiming the streets for moments of joy, play, relaxation, and connection.

Model

WHAT IS WOVEN TWIST?

Conceptual

CONFIGURING SPACE CNC FABRICATION

SIMPLIFYING WEAVING COMFORT AND COLOR

Turn static files into dynamic content formats.

Create a flipbook
Issuu converts static files into: digital portfolios, online yearbooks, online catalogs, digital photo albums and more. Sign up and create your flipbook.
Selected Works 2022- Feb2025 by Tim Anderson - Issuu