

181 MURRAY PLACE SOUTHAMPTON


181 MURRAY PLACE
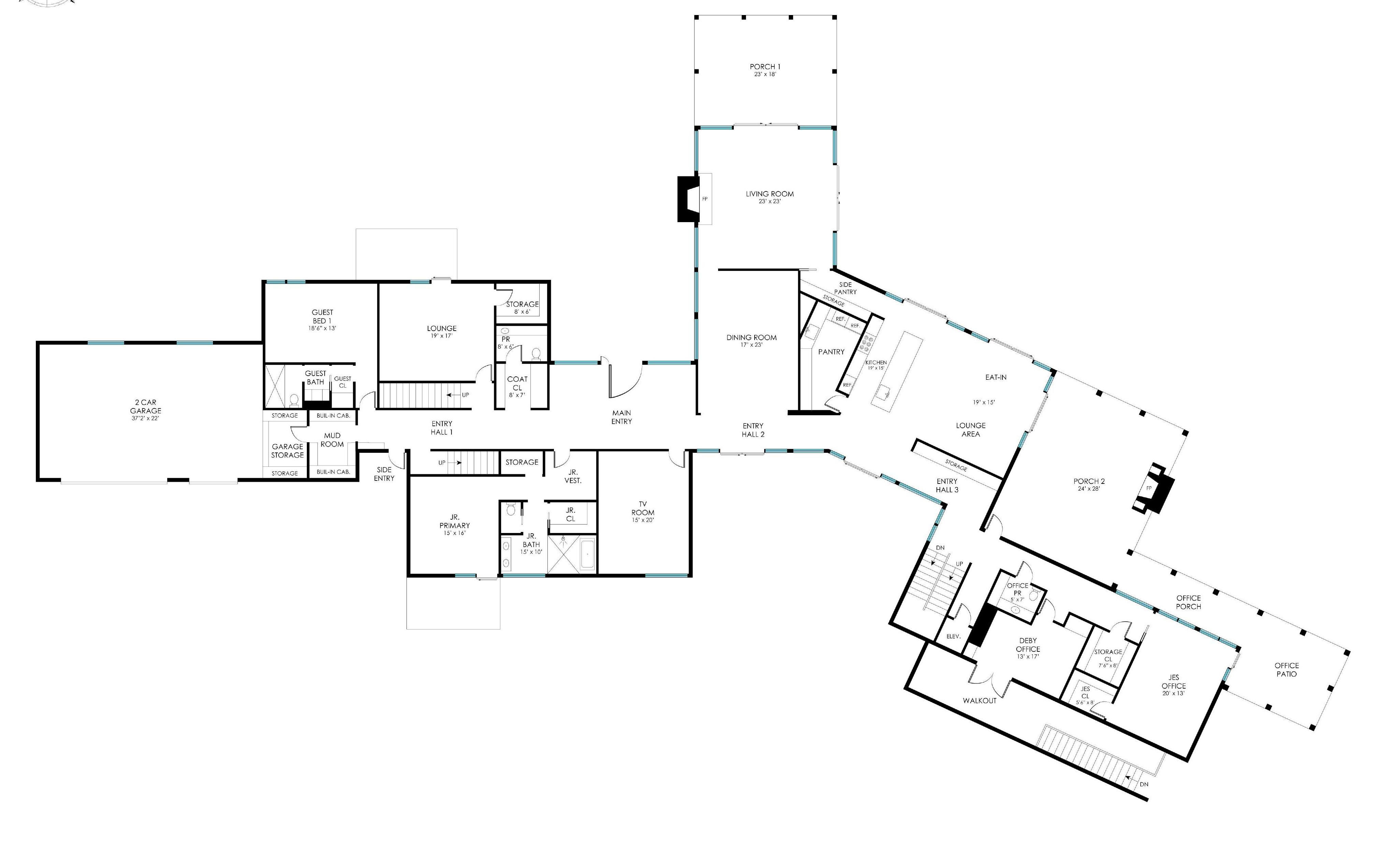
Deep within a private enclave, this newly constructed estate—designed by the highly regarded architect Adam Jordan—unfolds as a striking composition of barn-inspired forms wrapped in walls of glass. The architecture seamlessly connects expansive living areas with private bedroom wings, dedicated home offices, a gym and wellness retreat, and extraordinary covered outdoor spaces that blur the line between indoors and out.
Covering an impressive 12,650 square feet over three levels, this residence features 9 to 10 bedrooms and 12 bathrooms, complemented by elegantly designed common areas.Highlights include a dramatic living room with vaulted ceilings, a formal dining room, an open-concept family kitchen complemented by a separate chef’s kitchen, as well as a media room and library.
An exceptional opportunity awaits to step in and bring your own vision to completion—adding personal touches to an already remarkable foundation. Please call for further details and to fully appreciate this rare offering.
SOUTHAMPTON VILLAGE’S FABLED MURRAY COMPOUND

























