De Streep 46, Assendelft

Page 1

HuizenThijssen van

Streep 46 , 1566 GS Assendelft
onderhouden
het water Beschoeiing 2020 vernieuwd
op het zuiden 20220
De
Kunststofkozijnen Goed
Aan
Tuin

De in deze brochure getoonde informatie wordt door Thijssen makelaardij met zorg samengesteld, doch voor de juistheid en volledigheid daarvan kan niet worden ingestaan en kunnen hieraan geen rechten worden ontleend. Spel- en typefouten voorbehouden. De plattegronden zijn geproduceerd voor promotionele doeleinden en ter indicatie. Er kunnen geen rechten aan worden ontleend. Maten zijn niet eigenhandig opgemeten. Indien er twijfel bestaat over de accuratie van de gegevens aangaande deze brochure, is de geïnteresseerde zelf verantwoordelijk voor het nameten van deze gegevens. Voor meer informatie wordt u doorverwezen naar www.thijssenmakelaardij.nl

Kenmerken eengezinswoning tussenwoning 5 105 m² 145 m² 267 m³ 1983 achtertuin, voortuin geen garage c.v.-ketel volledig geïsoleerd A Soort Type Kamers Woonoppervlakte Perceeloppervlakte Inhoud Bouwjaar Tuin Garage Verwarming Isolatie Energielabel Verkoper vertelt Leuke eengezinswoning met zonnige tuin op het zuiden. Zaandam: Westzijde 131, T 075 616 86 69
Te koop bij

Zee van licht

nette afwerking

hoe richt jij het in?

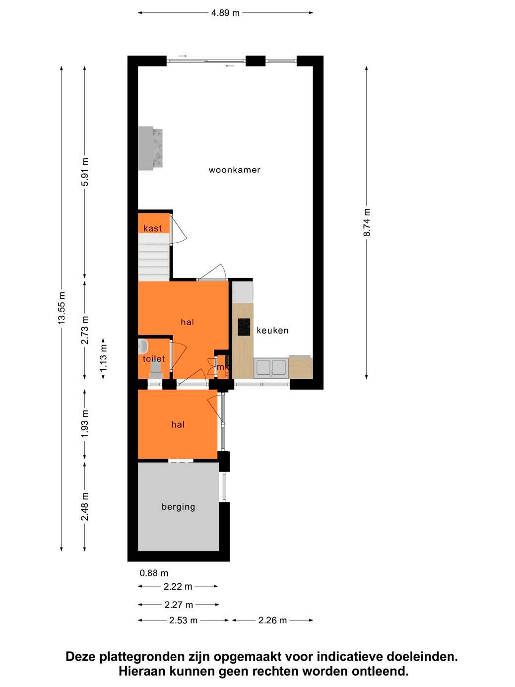
Via de entree aan de voorzijde stap je de woning binnen. Hier vind je de toegang tot de aangebouwde berging en de hal. In deze hal bevinden zich de meterkast, het toilet en de trapopgang naar de eerste verdieping.

Vanuit de hal loop je door naar de tuingerichte woonkamer. De woonkamer is aangenaam licht dankzij het grote raam en de schuifpui aan de achterzijde. Deze schuifpui zorgt er tevens voor dat je op warme dagen gemakkelijk een heerlijk fris zomerbriesje de kamer binnen kan laten komen. Het geheel is netjes afgewerkt en er is voldoende ruimte voor een comfortabele zithoek bij de sfeervolle haard en een gezellige eethoek.

huizen van thijssen

Open keuken

goed ingedeeld

handige berging

Deze eethoek sluit vervolgens aan op de open keuken aan de voorzijde. Hier vind je een keuken in een praktische hoekopstelling, waarbij je voldoende kast- en werkruimte tot je beschikking hebt.

huizen van thijssen

keurige badkamer

fijne lichtinval

Vanaf de overloop op de eerste verdieping heb je toegang tot twee slaapkamers, een kamer die ingericht is als wasruimte en de badkamer. De slaapkamers zijn beide van een goed formaat, hebben een fijne lichtinval en zijn netjes afgewerkt.

De badkamer is geheel betegeld en deze heeft een verzorgde uitstraling. In de badkamer ben je voorzien van een tweede toilet, dubbel wastafelmeubel en een inloopdouche.

Via een vaste trap is de tweede verdieping toegankelijk. Hier vind je een royale slaapkamer met dakkapel en een kast met daarin de CV opstelling.

3 slaapkamers

huizen van thijssen

Goed onderhouden

op het zuiden

aan het water

De achtertuin is zeer fraai aangelegd en altijd goed onderhouden. De tuin is gelegen op het zonnige zuiden en deze is ingericht met bestrating en borders met diverse vaste beplanting.

Verder is de tuin gelegen aan het water en is er een leuk tuinhuisje aanwezig, waarin je de gebruikelijke spullen netjes op kunt bergen.

huizen van thijssen
De Streep 46 1566 GS Assendelft B egane gron d
De Streep 46 1566 GS Assendelft e erste verd ieping
De Streep 46 1566 GS Assendelft Z older

heerlijk wonen in Assendelft

Assendelft heeft een lang dorpslint. Hier profiteren de bewoners van de nabijheid van winkels aan zowel de Dorpsstraat, als het winkelcentrum in Saendelft én de gezelligste winkelstraat van Krommenie, de Zuiderhoofdstraat. Allemaal nog geen vijf minuten fietsen. Datzelfde geldt voor scholen, zowel basis- als voortgezet onderwijs worden in de onmiddellijke nabijheid geboden, bereikbaar via het veilige fietspad. Kinderopvang, maar ook sportvelden en speelgelegenheden binnen en buiten zijn in deze hoek van de Zaanstreek volop voorhanden.

Bereikbaarheid: De ontsluiting via de snelweg en het spoor is natuurlijk perfect. De ligging tussen de A8 en A9 betekent een vlotte verbinding met zowel Amsterdam (A8) als Haarlem (A9).

Ontspannen kost in dit deel van de Zaanstreek geen enkele moeite. Op het grensvlak van randstad en platteland vind je voldoende mogelijkheden. Fietsroutes door het veenweidegebied leiden ook naar de bossen, duinen en het strand.

Assendelft
noorden kadastrale kaart

Lokaal makelaarschap

Wij geloven sterk in lokaal makelaarschap. Kennis van de buurt, de omgeving en de daarbij behorende ontwikkeling van de huizenprijzen zijn onmisbaar om voor jou het maximale resultaat te boeken.

Met Thijssen Makelaardij kies je voor:

• makelaars die al jarenlang verbonden zijn met de regio

• kennis van de lokale woningmarkt

• een verkoopplan afgestemd op jouw woning

• maximale exposure van je huis

• bezichtigingen ook in het weekend

• netwerk met honderden woningzoekers

Verkoop je je huis met Thijssen makelaardij dan ben je met de eigen app 24/7 op de hoogte van het verkoopproces. Bezichtigingsverzoeken bereiken je direct en beantwoord je snel en discreet op het moment dat het jou uitkomt.

Ook je huis verkopen? Onze makelaars komen graag en vrijblijvend bij je langs. We maken dan direct een gratis waardebepaling. Thijssen Makelaardij werkt op basis van no cure no pay. En betalen doe je pas bij verkoop.

Westzijde 131

075 616 86 69 zaandam@thijssenmakelaardij.nl www.thijssenmakelaardij.nl

TILBURG REESHOF BREDA ‘S-HERTOGENBOSCH TILBURG WEERT ROERMOND NIJMEGEN ARNHEM APELDOORN BUSSUM MEPPEL ALMERE AMSTELVEEN AMSTERDAM A’DAM NOORD MONNICKENDAM PURMEREND ZAANDAM ALKMAAR LANDSMEER HOORN HEERHUGOWAARD A’DAM WEST HOOFDDORP HAARLEM (2x) (2x) AMERSFOORT LEIDEN HILVERSUM EINDHOVEN (2x) (2x) ZWOLLE NIEUWEGEIN WIJK BIJ DUURSTEDE VLEUTEN DE MEERN UTRECHT MAARSSEN onze makelaarskantoren huizen van thijssen

ALLES IN HUIS VOOR

JOUW IDEALE THUIS

IEDERE DAG STAAT ‘HET VERSCHIL MAKEN’ CENTRAAL.

WIJ VAN THIJSSEN MAKELAARDIJ ZETTEN ONS

ALTIJD 100% IN ALS MAKELAAR. WIJ HEBBEN

KENNIS VAN DE LOKALE WONINGMARKT EN

WETEN ZO EEN VERKOOPPLAN OP TE STELLEN

DAT HET BESTE PAST BIJ JOUW WONING. JIJ ALS

VERKOPER OF KOPER STAAT ALTIJD VOOROP. WIJ

ONTZORGEN JOU VAN A TOT Z, OOK OP HET GEBIED

VAN HYPOTHEKEN EN VERZEKERINGEN. MET ALLE

EXPERTISES ONDER ÉÉN DAK, KUNNEN WE ALTIJD SUPERSNEL SCHAKELEN.

OOK VERKOPEN?

Thijssen Makelaardij is onderdeel van Vivantus, de grootste NVM-makelaar van Nederland. Hierdoor ben je verzekerd van de modernste marketingtools, innovatieve technieken en heb jij de voordelen van een groot landelijk netwerk met kantoren door het hele land.

Ben jij op zoek naar jouw droomhuis of wil je juist verkopen? Neem contact met ons op, wij helpen je graag verder!

BEL 075 616 86 69 OF MAIL NAAR ZAANDAM@THIJSSENMAKELAARDIJ.NL

THIJSSENMAKELAARDIJ.NL
WETEN WAT JOUW HUIS WAARD IS? Scan en plan een waardebepaling in, direct in de agenda van de makelaar! >>>

Turn static files into dynamic content formats.

Create a flipbook
Issuu converts static files into: digital portfolios, online yearbooks, online catalogs, digital photo albums and more. Sign up and create your flipbook.
De Streep 46, Assendelft by Thijssen makelaardij - Issuu