BANCI - Homes on Parade - 2023

Page 1

SEPTEMBER 22-23-24, 2023 Presents www.buildnci.com Tickets $500 Available at select Martin’s locations and www.buildnci.com Veterans, Active Duty Military and Children under 12 are Free Premier Sponsor Gold Sponsors Friday 4:00 PM - 8:00 PM, Saturday 12:00 PM-8:00 PM, Sunday 12:00 PM-6:00 PM Parade home cover photo captured is courtesy of Project Milieu Photography
574.773.4308 | www.reliancedbr.net • Custom Built Homes • Additions • Interior Renovations • Custom Kitchens • Baths • Garages Uniquely Crafted To Fit Your Lifestyle 2 | Builders Association of North Central Indiana 2023 www.buildnci.com
Advertisers Index ABC Supply Co. .................................................................................. 14 AirTite Insulation 27 Big C Lumber 18 Bin There Dump That Michiana ................................................... 50 Bob Buescher Homes 18 Brouwer’s Carpet & Furniture 31 Builders Mart ....................................................................................... 37 Camden Foundation Technologies 22 Cottage Watchman Security Systems 42 Crossroads Bank 42 The DeHayes Group 42 Deb Paton Showley Group- Coldwell Banker Real Estate Group 11 Dental Solutions 23 Everwise Credit Union 40 Fidelity National Title 26 First Federal Savings Bank Back Cover Fouce Landscaping 14 Glen’s Diamond Tile, LLC 45 Harter Custom Construction 39 Horizon Landscapes 22 Interra Credit Union 19 J & N Stone 26 J Lane Flooring & Design ............................................................... 44 Jess Concrete 36 J Miller Cabinet Co. Inc. 22 Kendall Lighting Center .................................................................. 32 Kosciusko Connect 19 Kosciusko REMC 15 Leatherman Supply ........................................... Inside Back Cover Lake City Bank 23 LT Siding Window Door 31 Michiana House & Home 39 M & D Electrical Solutions 23 Mid-City Supply 18 Mike’s Garage Door 14 Milestone Construction 40 Millennium Sounds 27 Miller Brothers Builders 15 Miller Door & Trim 31 Miller’s Building Supply 36 Momper Insulation 39 Ozinga ................................................................................................... 38 Premier Roofing & Construction 43 Pro IT Solutions 10 Project Milieu Photography ........................................................... 36 Quality Window & Door 27 Rabb Water Systems 44 Reliance Construction ..................................... Inside Front Cover The Sally Bailey Team - Coldwell Banker Real Estate Group 38 Signature Building & Design 40 Slabaugh’s Water Conditioning 42 Superior Garage Door Service 23 Timber Rock Construction, LLC 26 TL Jackson Construction, Inc. ....................................................... 41 Warsaw Custom Cabinets 26 Warsaw Masonry Supply 38 To be eligible for the grill drawing, visit all seven Homes on Parade entries, have your ticket marked at each home and then fill out your name, phone number and email address on the ticket and drop the ticket off at the last home you visit. Louisiana Grills 800 Elite Pellet Grill Win this Worth $1,000 Sponsored by: www.buildnci.com Builders Association of North Central Indiana 2023 | 3

Welcome

to the Builders Association of

North Central Indiana’s 36th Homes on Parade!

Welcome to 2023 Parade of Homes for the Builders Association of North Central Indiana on our 45th anniversary year! There are seven awesome new homes on display this year for everyone to enjoy.

We would like to thank all the builders for their hard work in building spectacular homes. A big thank you also goes out to the homeowners who have allowed the builders to display their homes, to the parade committee and our executive officer Kim for the time and hard work they have put into this parade, and to our 2023 sponsors (First Federal Savings Bank, Kosciusko Connect, and Fouce Landscaping).

This year, the Builders Association of North Central Indiana is celebrating it’s 45th anniversary as an association. This means 45 years of BANCI members

serving, advancing, and protecting the welfare of the building industry through customer quality assurance, education, and contributions to the community. On behalf of the board of directors, I would like to say a big THANK YOU to all the members and past leadership that have worked and continue to work hard to keep this organization growing for 45 years.

Thank you for coming out, and we hope you enjoy all of the fantastic homes this year. Don’t forget to cast your vote for your favorite after visiting them all!

Thanks!

Sincerely,

Welcome to the 2023 Builders Association North Central Indiana Annual “Homes on Parade”.

We are excited as this is our 45th Anniversary of the Builders Association. The Association was chartered September 17, 1978.

We have seven beautiful new construction entries this year built and developed by our amazing builder members: Renewal Construction - winner of the 2022 People’s Choice Award!!!!! JayH Construction, R.W. Kidd Construction, Synergy Partnerships, Bridgeport Homes, Milestone Construction, and Coplen Construction.

To vote for the 2023 People’s Choice Award, you must visit all 7 parade homes to get each home’s unique stamp to vote, as well as to be eligible for this year’s door prize of a Louisiana Smoker Pellet Grill.

New for 2023, you are now able to purchase your parade entry tickets online at www.buildnci.com or you can purchase your ticket at the first home you visit along your parade route. Tickets are also available at the Warsaw Martins Supermarket location.

Builders Association of North Central Indiana continues to support our local community and the building industry with our “Build Your Future” building trades programs. The Builders Association has a scholarship program that is offered to our local schools for students who are going into the building trades programs.

I’d like to thank all our builders, associates, homeowners, sponsors and committee members for their continued support and dedication to ensure the 36th Annual Homes on Parade event happens.

If you are looking to build a new home or looking for remodeling project ideas, this is a great opportunity to come out and see all seven of these beautifully crafted and designed homes. We have a complete listing of our members on the Builders Association of North Central Indiana website located at www.buildnci.com All of your homeowner needs can be located on our site.

Thank you for spending your weekend touring our amazing Homes on Parade.

Kim McKibbin - Executive Officer Builders Association of North Central Indiana Serving Kosciusko, Fulton and Marshall Counties
4 | Builders Association of North Central Indiana 2023 www.buildnci.com
Tyler Miller Timber Rock Construction LLC
Kim Tyler Miller

Builders Association of North Central Indiana 2023

BOARD OF DIRECTORS

Your leadership, dedication, guidance, time and support in leading the Association are greatly appreciated. Thank You for serving as a member of the Board of Directors!

Friday, September 22, 4-8 pm

Saturday, September 23, Noon-8 pm

Tickets on sale now at service counters of:

Martin’s: Warsaw and Plymouth

• Tickets also available at each home.

• Presale and At the Door Tickets are $5.00 –provides entrance into all parade homes.

Sunday, September 24, Noon-6 pm Visit www.buildnci.com for a Google™ Map and Driving Directions to each home.

Adam Clemens Rabb Water Systems Ben Champoux Classic Builders Treasurer Byron Kauffman Wetzel Insurance Agency President Tyler Miller Timber Rock Construction LLC 2022 Past President Thomas Burnworth Milestone Construction Wendell Miller CGB, CGR, CGP Renewal Homes LLC John Montgomery Kuert Concrete Vice President Brett Harter CGP Harter Custom Construction Julia Moore First Federal Savings Bank of Rochester Kirtis Murray Lake City Bank Daniel Schlatter CGB, CGP, MCGP Inglenook LLC Frank Rhoades CGP Cottage Watchman Security Systems Mark Glova Robinson Construction David Johnson Signature Building & Design, LLC
www.buildnci.com Builders Association of North Central Indiana 2023 | 5
Secretary Matt Podlesak Colorbilt Paint
BREMEN BOURBON ETNA GREEN PALESTINE MENTONE OLD US 30 OLDUS30 ATWOOD ARGOS OLD US 31 PLYMOUTH MICHIGAN RD. MICHIGAN RD. NAPPANEE PALESTINE LAKE HOFFMAN LAKE 900 N 1350 N 800 W 9B RD. INWOOD WARSAW 1 2 GOLD SPONSORS: TICKET SPONSORS: PREMIER SPONSOR: JAY H CONSTRUCTION 10828 Nutmeg Meadows Dr., Plymouth MICHIGANRD. NUTMEG RD. 11TH RD. NUTMEG MEADOWS DR. MUCKSHAW RD. JIM NELSON DR. OAKHILL AVE. NUTMEG RIDGE DR NUTMEG TR OAKHILLCEMETERY YELLOW RIVER 1 Take US 30 W in Plain Township from Detroit St. Follow US 30 W to US 31 S to 11th Rd in Center Township. Continue on 11th Rd. Take 11B Rd and Nutmeg Rd. to Nutmeg Meadows Dr. RENEWAL HOMES 10985 W 250 N, Etna Green W 250 N N 1050 W W 300 N E 14TH RD. 14B RD. E. HIGH ST. ETNA GREEN OLDUS30 S BEECH RD. 2 Located at old quarries, directly south of Etna Green right off of SR 19. SR 19 South 1/2 mile of Etna Green, then West on CR 250 N. 1/4 mile home will be located on south side of CR 250 N. R. W. KIDD CONSTRUCTION 31 & 33 Cherry CHERRY ST. SHELDEN ST. SHELDEN POPLAR ST. DOWNY DR. SAND HILL LN. BLUE HERON CT. BEECHNUTST. 3 Take SR 15 North. Turn west at Teachers turn right onto 6 | Builders Association of North Central Indiana 2023 www.buildnci.com

SYNERGY PARTNERSHIPS

14 Trailside Dr., Winona Lake

Take Winona Ave./Pierceton Rd. east to S. Packerton Rd. Turn right to Southtown Estates Dr., right on William Dr., left on Roy St., right on Trailside Dr.

COPLEN CONSTRUCTION

8213 Rosella St., Syracuse

Take SR 13 north to E. Pickwick Dr. (at Dairy Queen). Turn right and follow the road as it turns into N. Eastshore Dr. At the stop sign turn right onto E. Cornelius Rd. At the next stop sign turn right onto N. Warner Rd. and then curve left onto E. Eli Lilly Rd. Follow until you come to the next stop sign and turn right onto Seth Ward Rd. which then curves left and turns into N. Ogden Point Rd. Take N. Ogden Point Rd. to the last curve, enter the road that states DEAD-END. Go straight on Rosella St. The home is at the end of the road. PLEASE DO NOT BLOCK DRIVEWAYS. PARK AT YOUR OWN RISK.

CONSTRUCTION

11628 N. Ogden Point Rd., Syracuse

Take SR 13 north to E. Pickwick Dr. (at Dairy Queen). Turn right and follow the road as it turns into N. Eastshore Dr. At the stop sign turn right onto E. Cornelius Rd. At the next stop sign turn right onto N. Warner Rd. and then curve left onto E. Eli Lilly Rd. Follow until you come to the next stop sign and turn right onto Seth Ward Rd. which then curves left and turns into N. Ogden Point Rd. Follow the signs and the house will be on the left.

BRIDGEPORT HOMES

2870 E. Lake Tahoe Tr., Warsaw

Take E. Center St. and E. Old Rd 30 to N. Superior Ave. Turn right onto E. Ontario Ln, then left onto Victoria Ln. to Lake Tahoe Trail.

SYRACUSE NORTH WEBSTER OLD US 30 PIERCETON SYRACUSE LAKE LAKE WAWASEE WEBSTER LAKE TIPPECANOELAKE WAUBEE LAKE DEWART LAKE BIG CHAPMAN LAKE WINONA LAKE BIG BARBEE LAKE KUHN LAKE SECHRIST LAKE IRISH LAKE RIDINGER LAKE PIKE LAKE CENTER LAKE 300 E LEESBURG 500N OLD SR 15 MILFORD WARSAW 4 5 3 6 7
Credit
Cherry Street S. PACKERTON RD. WINONA LAKE E.PIERCETONRD. T R A ILSIDE RD FAUNNST. ROY ST. WILLIAM DR. SOUTHTOWN ESTATES DR. ROY ST.
CONSTRUCTION Cherry St., Warsaw SHELDENST. Teachers
Union/Sheldon St.,
4
E. OLD U.S. 30 N 300 E N 225 E S 250 E E. ONTARIO LN. N S U P E R I O R A V E VICTORIA LN. LAKE TAHOE TR.
5
POINTRD. N. OGDEN ROSELLA ST. LAKE WAWASEE MILESTONE
WAWASEE WETLANDS CONSERVATION AREA 6
POINTRD. N. OGDEN ROSELLA ST. LAKE WAWASEE
WAWASEE WETLANDS CONSERVATION AREA
7
www.buildnci.com Builders Association of North Central Indiana 2023 | 7

jayh75.am@gmail.com www.jayhconstruction.com

10828 Nutmeg Meadows Drive, Plymouth, IN 46563

JayH Construction, LLC invites you to tour this beautiful home that will inspire you to relax and enjoy.

The main level features 2368 sq. ft. of living space with flush floors, no steps from garage or front door/sidewalks or back patio and pool area. The master suite features tray ceilings. The large open great room and eat in kitchen has a see through gas fireplace, the eat in kitchen features custom cabinets with granite counter tops. The main level also includes 2 bedrooms, office space and two full baths.

The finished 1970 sq. ft. basement features a 2nd kitchen and bar area, two bedrooms and one full bathroom, and a large open family area with daylight wall for natural lighting.

Large 3 car attached garage with extra bay for your mowers and toys also includes a half bath.

The exterior offers a large parking area, cabana, and concrete patio for pool area. All with no steps to the main level of home.

1
JayH Construction 7717 N. 800 W. Etna Green, IN 46524 (574) 453-7938
8 | Builders Association of North Central Indiana 2023 www.buildnci.com
Rendering by Scott Holladay

JayH Construction, LLC is a full service Residential General contractor. We can handle your building project from start to finish, including room additions, remodels, decks, siding, and interior trim work.

JayH Construction, LLC has been in business since 2009. We pride ourselves in working with our customers, providing them with what they need/want by making adjustments throughout the project, giving them our best recommendations and helping them achieve their goals and dreams.

Quality workmanship at a reasonable price is our motto. JayH Construction, LLC uses quality materials and subcontractors for peace of mind for our customers.

JayH Construction, LLC is proud to employ 15 full-time and 4 part-time employees who have experience in all types of residential work.

The owners are Aaron Miller and Elmer Miller and we welcome you to come see us at the 2023 Homes on Parade. Aaron is the estimator/office manager and Elmer is the project manager.

MECH DINING GREAT ROOM KITCHEN OFFICE STORAGE 3 CAR GARAGE BEDROOM 2 OWNERS BEDROOM PANTRY DN CABANA PORCH LAUNDRY ENTRY
TYPE Ranch TOTAL FINISHED SQ. FT. 4,338 BEDROOMS 4 BATHROOMS 3.5 GARAGE 4 Car HOME DESIGNED BY Living Acres HOME DECORATED BY Home Owner LANDSCAPING BY Home Owner Main Level Lower Level www.buildnci.com Builders Association of North Central Indiana 2023 | 9
Audio Solutions Video Solutions Home Automation Residential & Business IT Door Access Alarm Systems Surveillance IT Managed Services OUR SERVICES Call US Now At: 574-862-0021 Email us at: info@pro-it-solutions.com Visit our Website: pro-it-solutions.com SHOWROOM: 105 S. Elkhart St. Wakarusa IN OFFICE: 111 W. Waterford St. Wakarusa, IN 46573 Follow Pro-IT-Solutions on: We strive to steward lifelong relationships by serving our community with EXCELLENCE! 10 | Builders Association of North Central Indiana 2023 www.buildnci.com
We are Grateful to our Talented Builders Who Choose Our Team To Serve Them and Their Clients #BuildingDreams 574-527-6022 DebJustSoldIt.com www.buildnci.com Builders Association of North Central Indiana 2023 | 11

2

10985 W. 250 N., Etna Green, IN 46524

Renewal Homes welcomes you to “Golden Pond” an expansive living area designed to give ample space for family and friends, while enjoying the scenic view of the beautiful lakefront property. The open 6,133 sq. ft. floor plan includes a spacious front and rear porch & deck area, bonus living area above the garage, an open cathedral ceiling

great room with large windows maximizing the blend of the outside nature and inside living. The home is accented with solid surface tops, custom cabinetry, large fireplace, wet room in master bath.

Find peace and tranquility in this custom personalized home by Renewal Homes, LLC.

Homes, LLC
Rendering by Scott Holladay
Renewal
501 Argonne Road Warsaw, IN 46580 (574) 527-2233
12 | Builders Association of North Central Indiana 2023 www.buildnci.com
renewalhomes@comcast.net www.renewalhomesllc.com

TYPE Walk-out Ranch w/bonus room

above the garage

TOTAL FINISHED SQ. FT.

6,133

BEDROOMS 3

BATHROOMS 4.5

GARAGE 4 Car

Renewal Homes LLC is a design/build company, meaning that they can handle the building process from design through the completion of the project. Wendell wants to hear your hopes and expectations of your future home so he can help you think through options and make sure your home is not simply custom, but personalized.

Our goal is to create homes that are inspiring, beautiful, efficient, and functional; homes that reflect your values, providing a place of safety, love, and unity.

We strive to do this within the context of exceptional quality, financial integrity, and environmental stewardship. When we accomplish all of this, we believe that your future is improved...that life is renewed.

Bonus Room

Main Level

HOME DESIGNED BY Renewal Homes, LLC

Mike & Dara Long & AccuCAD

Drafting Services, Inc.

HOME DECORATED BY Nest Furniture & DesignHeather Marshall

FURNITURE & ACCESSORIES

PROVIDED BY Nest Furniture & Design

Weaver Furniture & Home Owner

Lower Level

Wendell Miller
www.buildnci.com Builders Association of North Central Indiana 2023 | 13
2022 People’s Choice Winner
MIKESGARAGEDOORINDIANA.COM WHY CHOOSE MIKE’S GARAGE DOOR? 400 S. Main St. • LEESBURG, IN 574-453-4368 Integrity, knowledge and excellent service – these aren’t just words, they represent how Mike’s Garage Door does business. Whatever your needs, you can trust us to offer high quality products and service — AND WE ARE RIGHT IN YOUR BACKYARD!! 574-527-4684 | sales@foucescapes.biz | FOUCELANDSCAPING.COM • Landscaping • Water Features • Retaining Walls • Outdoor Fireplaces • Pavers • Design Services BUILDING A REPUTATION by Design Competitive pricing, hassle-free returns Conveniently place an order, go about your day and pick up your materials on your schedule with Express Pickup Make ordering and tracking materials a breeze with myABCsupply 2440 Supreme Ct • Goshen, IN • 574-642-3196 14 | Builders Association of North Central Indiana 2023 www.buildnci.com
TO
www.kremc.com www.buildnci.com Builders Association of North Central Indiana 2023 | 15
THE POWER
BUILD

R. W. Kidd Construction 44 Poplar

www.rwkiddconstruction.com

3

31 & 33 Cherry Street, Warsaw, IN 46582

NorthWest TownHomes is a new 42-unit rental community in Warsaw, IN. Conveniently located on Sheldon St, giving residents easy access to SR-15 and US-30. Each home brings modern style and amenities: spacious open floor plans, workfrom-home spaces, deck and/or patios, en suite

16 | Builders Association of North Central Indiana 2023 www.buildnci.com

bathrooms, quartz countertops, full sized appliances, modern fixtures, and high-speed internet. Upscale feel at competitive rates – with three floor plans to choose from. Units are currently under construction and leasing will begin 2023. Street
Warsaw, IN 46582
(574) 529-0520
aekidd@aol.com
Rendering by Scott Holladay

R.W. Kidd Construction – General Contractor: John Kidd has 30+ years of experience in business, real estate development, and construction management. John began his career working for his family’s food business in sales and product development. John obtained construction management experience by overseeing the business’ facility and office expansion projects. In 2000, John obtained his General Contractor license in Las Vegas, NV and established RW Kidd Construction, gaining experience in all phases of construction, including business development, sales, project management, field and subcontractor supervision, budget and finance. He is a certified Green Professional and Certified Graduate Builder. In 2005, John relocated to Warsaw, IN where he continues to develop real estate, his latest project is NorthWest TownHomes.

Harter Custom Construction – Construction Superintendent: Brett Harter has 30+ years of experience in the building industry in and around Kosciusko County. Brett has extensive experience in residential remodeling and new home construction. Brett is community-minded and looks for ways to give back. In 2020 he was elected as President of the Indiana Builders Association. He currently provides services to NorthWest TownHomes and FaB Labs.

31 Cherry Street

TYPE Townhome - 2 Story

TOTAL FINISHED SQ. FT.

1,250

BEDROOMS 2

BATHROOMS 2.5

GARAGE 1 Car

HOME DESIGNED BY Design Collaborative

HOME DECORATED BY Becky Levinson

FURNITURE & ACCESSORIES

PROVIDED BY TBD

LANDSCAPING BY Horizon Landscapes

33 Cherry Street

TYPE Townhome - 3 Story

TOTAL FINISHED SQ. FT. 2,300

BEDROOMS 3

BATHROOMS 2.5

GARAGE 1 Car

HOME DESIGNED BY Design Collaborative

HOME DECORATED BY Becky Levinson

FURNITURE & ACCESSORIES

PROVIDED BY TBD

LANDSCAPING BY Horizon Landscapes

John Kidd Brett Harter
www.buildnci.com Builders Association of North Central Indiana 2023 | 17
Fort Wayne: 260.490.3355 Angola: 260.668.7667 bobbuescherhomes.com SOUTH BEND, IN (574) 272-4400 ELKHART, IN (574) 294-5551 PLYMOUTH, IN (574) 936-4400 WARSAW, IN (574) 267-3693 MICHIGAN CITY, IN (219) 879-4491 COLDWATER, MI (517) 278-4538 JENISON, MI (616) 669-0448 MID-CITY.COM Inspired Design. Flawless Finish. Call to schedule a showroom appointment to learn about our quality bath & kitchen fixtures from the brands you love. • Serving Homeowners, Professional Builders, Remodelers • Complete selection of Lumber & Building Materials to complete any project • We operate our own Custom Millwork & Cabinet Facility, and Truss & Panel Facility — providing you with truly custom products! • FREE Delivery (all materials except drywall)
We are a local, family-owned company — celebrating over 100 years serving you! 16 LOCATIONS IN INDIANA • MICHIGAN • OHIO 576 N. Jefferson St. Cromwell 260-856-2152 BigCLumber.com 18 | Builders Association of North Central Indiana 2023 www.buildnci.com
www.kosciuskoconnect.com Reliable, fast fiber internet We’ll unpack the paperwork. So you can unpack… everything else. Get moving at interracu.com/mortgage. NMLS# 623379 www.buildnci.com Builders Association of North Central Indiana 2023 | 19

Synergy Partnerships

3790 Lake City Highway, Suite A

Warsaw, IN 46580

(574) 527-1152

sam@warsawsynergy.com

www.warsawsynergy.com

Facebook: SynergyPartnerships

4

14 Trailside Drive, Winona Lake, IN 46590

The Roley home features Georgian design; classic finishes and exquisite details abound. Pristine white siding exudes timeless elegance, while the hardwood floors throughout lend an air of sophistication. As you enter, the sweeping foyer beckons you into a world of refined beauty, immediately showing off the herringbone pattern in the dining room. A masonry fireplace graces the great room, offering warmth and a sense of grandeur.

The master bedroom enjoys a second fireplace, providing a luxurious retreat. Brick porches invite you to relax and enjoy the surroundings, while gas lanterns cast a warm glow, adding to the home’s enchanting ambiance.

20 | Builders Association of North Central Indiana 2023 www.buildnci.com
Rendering by Scott Holladay

Main Level

Synergy Partnerships is a custom design-build and renovation company, serving homeowners in North Central Indiana. With over 30 team members, we are a full-service company, able to handle every detail from design to service. Synergy offers service packages for ongoing maintenance. Our team of designers, electricians, plumbers, HVAC technicians, drywallers, trim carpenters, and painters lets us ensure quality and service long after the project is completed.

Upper Level

TYPE 2 Story

TOTAL FINISHED SQ. FT.

5,397

BEDROOMS 4

BATHROOMS 4 Full, 2 Half

GARAGE

3 Car

HOME DESIGNED BY Gary Hochstedler

HOME DECORATED BY Synergy Partnerships

FURN ITURE & ACCESSORIES PROVIDED BY Synergy Partnerships

LANDSCAPING BY Synergy Partnerships

Sam Yeiter Michael Trier
www.buildnci.com Builders Association of North Central Indiana 2023 | 21
260-691-2032 | jmillercabinetry@yahoo.com Showroom: East End of Round Lake 5874 N. 350 East • Columbia City, IN Specializing In • Kitchens • Baths • Entertainment Centers • Hutches Quality Cabinets Since 1949 Custom Cabinetry At Affordable Prices • Sinking Foundation? • Cracked Walls? • Leaning Chimney? • Bowed Walls? Magnum Piering System A Permanent Solution! “The Piling Specialists” Wood • Steel Shell • Helix • Sheeting Free Estimates 574-594-2497 www.camdenfoundations.com Division of: John T. Camden Construction Co. 22 | Builders Association of North Central Indiana 2023 www.buildnci.com
DENTAL SOLUTIONS SMI LE DESIGN AND ORAL H EALTH TEETH WHITENING FOR LIFE SEDATION DENTISTRY FOR YOUR COMFORT DENTAL IMPLANTS REPLACE TEETH 574.269.1199 DentalSolutions.net Dr. Bill Stofer | Dr. Brock Spangle New Patients Always Welcome Visit the Coplen Construction Parade Home and See our Garage Doors! Family Owned and Operated mysuperiorgarage.com Loans subject to credit approval. Institution NMLS #431669. Looking to make a move? Inquire today about a Lake City Bank mortgage loan. Call Todd Pequignot (NMLS #532099) at (574) 376-7009 or scan below to connect with a Mortgage Loan Originator near you. Full Service Electrical and Generator Business with 20+ Years’ Experience Your Trusted Local Dealer 574-551-5412 Peace of Mind www.buildnci.com Builders Association of North Central Indiana 2023 | 23

Bridgeport Homes, LLC

1422 Glenwood Drive

Columbia City, IN 46725

(260) 213-9223

bridgeporthomesllc@gmail.com

www.bridgeporthomesllc.net

5

2870 E. Lake Tahoe Trail, Warsaw, IN 46582

Ranch style home on a slab has many details inside and outside. Nice sized columns on the covered front concrete porch. The front door is wood stained with two side lights and a transom window above. Stepping into the beautiful space the Foyer will lead to the right for dining area and straight into the great room with white regressed coffered ceiling outlining the space and large built-in cabinets on each side of the fireplace. From the great room there is a beautiful opening into the kitchen with large custom cabinets, oversized cabinets and large counter space, the pantry is immediate access from the kitchen with an attractive door

to mark the spot. In that same space is an open sunroom from both the kitchen and great room along with access to the concrete patio. Special accent points are the master suite 2-tiered lighted ceiling, into the master bath having a tile walk-in shower and free-standing tub. Organized master closet space off the master bath. Nice powder room off the garage entry into mud room and laundry with folding area. There are two guest bedrooms and a shared bath on the right of the home. Nice exterior space to the service door of the garage for barbeque area and seating. 3 car garage offers space for all needs.

Rendering by Scott Holladay
24 | Builders Association of North Central Indiana 2023 www.buildnci.com

TYPE Ranch

TOTAL FINISHED SQ. FT.

2,547

BEDROOMS 3

BATHROOMS 2 + Powder Room

GARAGE 3 Car

The owners of Bridgeport Homes, Tony & Cathy Johnson grew up in construction and understood the importance of hard work. Tony, the son of a railway man and Cathy, the daughter of a homebuilder, developed a devoted work ethic and an eye for detail.

Together, husband and wife have created beautiful homes in Warsaw, IN and the surrounding area for many families, now whom they call friends.

HOME DESIGNED BY Bridgeport Homes, LLC

HOME DECORATED BY Bridgeport Homes, LLC

FURNITURE & ACCESSORIES PROVIDED BY Bridgeport Homes, LLC

LANDSCAPING BY Bridgeport Homes, LLC

www.buildnci.com Builders Association of North Central Indiana 2023 | 25
Tony & Cathy Johnson
WarsawCustomCabinets.com 1697 West 350 South | Warsaw, IN Email: info@warsawcustomcabinets.com Call 574-267-5794 or visit our showroom to set up a FREE in-home quote! HAND-CRAFTED, AFFORDABLE QUALITY Northern Indiana Home Builder & Commercial Contractor 574.527.7219 We’ll build you a home you’ll love to be in! Visit One Of Our Convenient Locations Today 108 W. Main Street Warsaw, IN 46580 Phone: 574-268-0065 101 E. Main St, Suite B106, Syracuse, IN 46567 Phone: 574-457-4845 905 E Waterford St PO Box 442 Wakarusa, IN 46573 Tel: 574-862-4251 Fax: 574-862-2944 Email: info@jnstone.com Manufacturers of Stone Veneer since 1973 26 | Builders Association of North Central Indiana 2023 www.buildnci.com
New and Existing Homes | Barns | Commercial Your full-service insulation provider 574-825-5271 | airtite-insulation.com | Goshen Certified installer of Nu-Wool Premium Cellulose Insulation. Nu-Wool Cellulose | Closed Cell Foam Open Cell Foam | CFI Foam | CMS Board 574 674-0867 Toll Free 1-888-674-0867 27888 CR 32 W. • Elkhart www.qwdbarn.com SHOWROOMS INDIANAPOLIS 317.845.9484 FT. WAYNE 260.436.0003 • Home Automation • Security • Blinds and Shades • Custom Window Treatments • Lighting Control • Residential and Commercial 6819 LIMA RD. • FT. WAYNE • 260.436.0003 WWW.MILLENNIUMSOUNDS.COM Custom Audio & Video www.buildnci.com Builders Association of North Central Indiana 2023 | 27

(574) 457-0255

info@milestoneconstruction.us www.milestoneconstruction.us

6

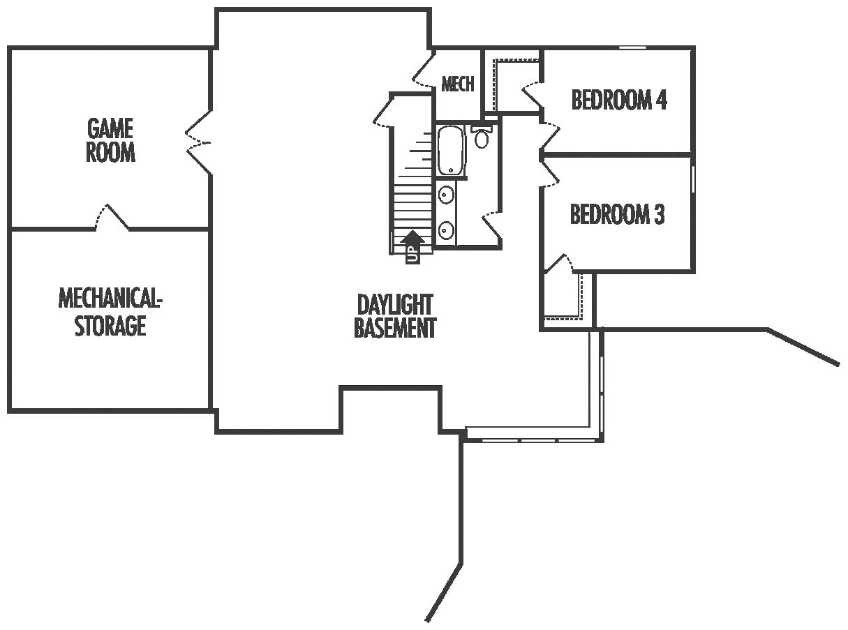
11628 N. Ogden Point Road, Syracuse, IN 46567

The Guest House at Pier 66 is a 7 bedroom with 7.5 bath home built for extended family and other guest accommodations at the lake. It incorporates details from the main house that was constructed across the street in 2014. The rooms are set up as bedroom suites with private full bathrooms. A welcoming entry porch opens

into an open plan kitchen and living area on the main level with views of Johnson’s Bay. The back doors open up to a lovely screen porch for relaxing and access to an outdoor patio, then the lake. Upstairs there are 5 bedroom suites and a fun game room is off a landing above the garage.

Construction, Inc.
Rendering by Scott Holladay
Milestone
211 E. Palm Drive Syracuse, IN 46567
28 | Builders Association of North Central Indiana 2023 www.buildnci.com

Milestone Construction brings 34 years of experience in building high quality, unique custom homes, churches, educational facilities, offices and other commercial buildings. The team of carpenters, superintendents and project managers at Milestone take great pride in each project and work to develop lasting relationships.

Milestone is a locally owned company, specializing in technical projects and building a professional team to bring them to completion. The company strives to meet the varying needs of each of its unique client partners and to maintain the highest standards of customer satisfaction. While Milestone specializes in lake properties, the company enjoys working on projects big and small across northern Indiana. Furthermore, Milestone strives to use its construction expertise to better local community infrastructure throughout the greater lake’s region.

Main Level

TYPE 2 Story

TOTAL FINISHED SQ. FT. 3,466

BEDROOMS 7

BATHROOMS 7.5

GARAGE 2 Car

HOME DESIGNED BY Sam Leman Architect

HOME DECORATED BY Frank Souder Designs

FURNITURE & ACCESSORIES

PROVIDED BY Home Owner

LANDSCAPING BY Home Owner

Upper Level

Thomas Burnworth & John Gradle Eric Hawkins
www.buildnci.com Builders Association of North Central Indiana 2023 | 29
Mat Pritchard

HOMES ON PARADE HISTORY

Year Parade Site # Homes People’s Choice Winners 1986 – Country Club Highlands 7 No People’s Choice Award – 1st year 1987 – Walnut Creek 11 1st: Coplen Construction, Inc. 1988 – Timber Ridge 10 1st: Ideal Construction 1989 – Stonehenge 7 1st tie: T.L. Jackson Construction & Legacy Homes 1990 – The Dells 10 1st: Coplen Construction 1991 – Patterson Place 8 1st: T. L. Jackson Construction 1992 – The Dells 7 1st: T. L. Jackson Construction 1993 – Brookshire Village 11 1st: Ideal Construction Company 1994 – The Meadows 6 1st: T. L. Jackson Construction 1995 – Woodfield Manor 7 1st: Legacy Homes 1996 – Woodfield Manor 12 1st: T. L. Jackson Construction 1997 – Deeds Creek 7 1st: Swartz Brothers Construction, Inc. 1998 – Heritage Lake Park 8 1st: T. L. Jackson Construction 1999 – Hunter’s Ridge 9 1st: Terry Shepherd Construction 2000 – Deeds Creek Manor 9 1st: Miller Brothers Builders 2001 – Heritage Lake Park 10 1st: Coplen Construction, Inc. 2002 – Pheasant Ridge 9 1st: Skyline Builders 2003 – Shadow Lake 8 1st: Terry Shepherd Construction 2004 – Pheasant Ridge 8 1st: Lewis Construction 2005 – Barrington Hills 6 1st: Renewal Homes LLC 2006 – Cherry Creek Manor Phase II 6 1st: Inglenook LLC 2007 – Barrington Hills 8 1st: Signature Building & Design LLC 2008 – Shadow Lakes Phase III 6 1st: Mission Contracting (Mangun) 2010 – Multi-Site Locations 5 1st: Inglenook LLC 2011 – Spring Multi-Site Parade 6 No People’s Choice Award - Spring event 2012 – Multi-Site Locations 13 1st: Coplen Construction, Inc. 2013 – Multi-Site Locations 8 1st: Renewal Homes LLC 2014 – Multi-Site Locations 8 1st: Renewal Homes LLC 2015 – Multi-Site Locations 6 1st: Renewal Homes LLC 2016 – Multi-Site Locations 5 1st: Mission Contracting By: Bruce Jackson 2017 – Multi-Site Locations 9 1st: Renewal Homes LLC 2018 – Multi-Site Locations 4 1st: Renewal Homes LLC 2019 – Multi-Site Locations 6 1st: Coplen Construction, Inc. 2021 - Multi-Site Locations 8 1st: Milestone Construction - New Construction 1st: Coplen Construction, Inc. - Remodel 1st: Renewal Homes, LLC - Homes Under Construction 2022 - Multi-Site Locations 6 1st: Renewal Homes, LLC - New Construction 30 | Builders Association of North Central Indiana 2023 www.buildnci.com
3333 East Center St. Warsaw CARPET: 267-8054 FURNITURE: 269-4070 Brouwer’s Carpet Furnitureand FURNITURE: (574) 269-4070 CARPET: (574) 267-8054 - millerdoorandtrim.comwww.buildnci.com Builders Association of North Central Indiana 2023 | 31
Kendall Lighting Center 3910 Corridor Drive Warsaw, IN 46582 574-269-3838 See Yourself in a Better Light™ 32 | Builders Association of North Central Indiana 2023 www.buildnci.com
www.buildnci.com Builders Association of North Central Indiana 2023 | 33

7

Coplen Construction Inc.

475 Anchorage Road, Suite 13

Warsaw, IN 46580

(574) 269-1673

dharvey@coplenconstruction.com www.coplenconstruction.com

Rendering by Scott Holladay

8213 Rosella Street, Syracuse, IN 46567

Welcome to our 2023 Parade Home that was designed around the Reynolds Family. This year our home is on the shoreline of Lake Wawasee. We have repurposed an existing boat house and added future living space with wonderful outdoor covered deck space.

Our main residence is designed for a full lake living experience with lots of room for family and friends. The main level has several features you do not want to miss. Working from home, we have you covered, with a main level office area just inside the entry door. Beautiful custom kitchen with a great view of Lake Wawasee. A two-story large family room, dining, and room for the piano, that overlooks both water sides of this spacious area.

You can cozy up with a book next to our fireplace for the days with a chill. The owner’s suite is located on the main level with a private entrance to the laundry area. The owner’s suite comes with a zero-barrier, large walk-in shower, custom cabinets, and plenty of storage.

Our second level is all about the beautiful, crafted stairway, as it looks over the family room below. The upper level has 4 bedrooms, a shared bath and a large recreation room for those rainy days of fun.

Come see us on the Lake!!!

34 | Builders Association of North Central Indiana 2023 www.buildnci.com

Coplen Construction, Inc. has been a leader in construction in the North Central Indiana area for more than 45 years. Our mission is to offer the most knowledgeable and professional services in the construction industry to our customers, which will provide your building projects with the best quality, craftsmanship and value completed on time and in budget.

Our office provides a full range of construction services to make the building process an enjoyable experience. The President of our company and the Project Manager hold National Home Builders designations such as GMB (Grand Master Builder) and CGB (Certified Graduate Builder). These National and State designations recognize our company as leaders in the industry. Along with this knowledge and experience we offer a design staff, interior decorating consultant, licensed plumbers, onsite construction managers and laborers.

Our company specializes in Custom Homes, Light Commercial Construction and Remodeling.

Come in and meet our professional staff and let us design/build your next project.

Main Level

TYPE 2 Story

TOTAL FINISHED SQ. FT. 3,328

BEDROOMS 5

BATHROOMS 2.5

GARAGE 2 Car

HOME DESIGNED BY Coplen Construction, Inc.

HOME DECORATED BY Lori Reynolds

FURNITURE & ACCESSORIES PROVIDED BY Lori Reynolds

LANDSCAPING BY Dan Reynolds

Boat House

Doug Harvey, Lisa Harvey, Larry Coplen & Scott Langohr
www.buildnci.com Builders Association of North Central Indiana 2023 | 35
PROJECT MILIEU MEDIA REAL ESTATE SMALL BUSINESS COMMERCIAL "INVEST IN THE BIGGER PICTURE" 220 S BUFFALO ST, WARSAW IN CALL OR TEXT US: 574-377-8180 Miller’s Building Supply , Inc . Specializing in Stamped Concrete & Epoxy Floor Coatings ONCRETE JESS C Myron Jess, Owner | jessconcrete2006@gmail.com EST. 2006 574-312-9591 • Stamped Concrete • Epoxy Floor Coatings • Retaining Walls • Flatwork 36 | Builders Association of North Central Indiana 2023 www.buildnci.com
BUILDERS MART IS PROUD TO HAVE WORKED WITH THE BUILDERS AND HOMEOWNERS IN THIS YEAR’S PARADE! LOCATED AT 2240 NORTH DETROIT STREET 267-8836 • WARSAW • 267-7187 H FRAMING LUMBER & PLYWOODS H TREATED LUMBER & AZEK DECK ACCESSORIES H ROOFING PRODUCTS H ANDERSEN WINDOWS & DOORS H MASONITE FIBERGLASS ENTRANCE DOORS H CERTAINTEED RESTORATION VINYL SIDING H ARMSTRONG CEILING TILE H KITCHEN CABINETS & BATHROOM VANITIES FROM KRAFTMAID AND MERILLAT H INTERIOR DOORS & TRIM H FIBERGLASS TUBS & SHOWERS H NICKEL GAP & BARNWOOD SIDING H STEEL CULVERT & PLASTIC FIELD TILE H FIBERGLASS INSULATION H PLUS SEVERAL LINES OF NAME BRAND HARDWARE Columbia City Huntington Warsaw Wabash Goshen www.buildnci.com Builders Association of North Central Indiana 2023 | 37
1403 N Detroit St., Warsaw, IN 574-267-2825 www.warsawmasonry.com Congratulations to all Homes on Parade Builders and Homeowners! Sally: 574-527-1425 Angie: 574-377-3336 Karla: 574-527-7602 COMMITTED TO SERVING YOU WITH A POSITIVE BUYING AND SELLING EXPERIENCE 38 | Builders Association of North Central Indiana 2023 www.buildnci.com
For 20 years, the source for your next home idea! A free monthly magazine dedicated to all things House and Home! Now with Expanded Home Delivery in addition to Pick up locations throughout the Michiana area! Contact Karen Johnson to use Michiana House and Home to reach your target market! Complimentary August 2023 www.michianahouseandhome.com Building A Deck Styles of Homes Outdoor and Indoor Playhouses www.michianahouseandhome.com 574-596-0169 kjohnson@the-papers.com Brett Harter | (574) 265-6637 | Leesburg, IN We will guide you through the building process for a truly enjoyable experience! • Remodeling • Additions • Custom Homes Exceptional Quality, Exceptional Results! www.buildnci.com Builders Association of North Central Indiana 2023 | 39
Equal Housing Opportunity. NMLS# 686706. Dreams belong to everyone. Everwise Mortgage Solutions everwisecu.com/Mortgage Teachers Credit Union is now DESIGN / BUILD MILESTONECONSTRUCTION.US 40 | Builders Association of North Central Indiana 2023 www.buildnci.com
www.buildnci.com Builders Association of North Central Indiana 2023 | 41
SLABAUGH’S WATER CONDITIONING “The World Revolves Around Water” Dan Slabaugh Owner, Installer, Service Tech slabaughswaterconditioning@gmail.com www.slabaughswaterconditioningllc.com 1.574.210.8785 20603 US Hwy 6 New Paris, IN 42 | Builders Association of North Central Indiana 2023 www.buildnci.com
PremierRoofingIndiana.com | (574) 354-1533 Nappanee, IN 46550 Premier Roofing & Construction LLC Specializing in High Quality Steel Roofing www.buildnci.com Builders Association of North Central Indiana 2023 | 43
The Authority on Clean Water! *Kinetico Models: S650 XP, S650 OD XP, Q850 XP, Q850 OD XP Kinetico® Non-Electric Water Technology is Rated World Class! Kinetico Water Systems work solely on the flow of water, not electricity! This allows the system to only work when it needs to, which is why the Kinetico system has been awarded the world’s most efficient softener! Call today for details! 303 Argonne Rd., Warsaw 574-267-3853 | RabbWater.com Kinetico® water systems are Holmes-approved Mike Holmes *Kinetico Models: S650 XP, S650 OD XP, Q850 XP, Q850 OD XP odels: S650 Q850 O WATER SOFTENERS * A A813 OLD W ORL D HE RRIN G BO NE | 190 0 9 H A N O V E R ET • RUGS • H AR DWOO D • a nd e rson t u f t ex c o m 3668 E US HWY 30 Warsaw, in ( 574 ) 269 - 6230 jlane ooring.com Your style. Your life. Your perfect fit. 44 | Builders Association of North Central Indiana 2023 www.buildnci.com

2023 BANCI

The Builders Association of North Central Indiana (BANCI) is a trade organization representing Indiana home building, remodeling and light commercial construction industry. The BANCI Scholarship program has been developed to assist students studying construction technology or a related construction field.

Scholarships of $1000.00 each were awarded to:

Cory Hill

Triton Jr/Sr. High School

Parents: Jason & Sara Hill

Attending: Trine University

Major: Civil Engineering

Dylan Barkey

Warsaw Community High School

Parents: Ben and Dani Barkey

Attending: Ball State University

Major: Architecture

Trace Stookey

Warsaw Community High School

Parents: JC & Mindy Stookey

Attending: Trine University

Major: Civil Engineering

Where Quality Matters Most 2530 E Market Street, Nappanee 574-354-8903 | glensdiamondtilellc.com Specializing in custom tile work Flooring Custom Walk-In Showers Backsplashes Fireplaces Tile & Grout Cleaning Heated Floors GLEN’S DIAMOND TILE MARCH 22-23-24 The ZONE Sports Complex of N. Indiana 2923 VanVactor Drive PLYMOUTH MARCH 8-9-10 TRAC at Warsaw Comm. High School 1 Tiger Lane WARSAW
more information or to reserve your booth space, contact the Builders Association of North Central Indiana at 574-267-6125 or info@buildnci.com 2024
For
www.buildnci.com Builders Association of North Central Indiana 2023 | 45

QUALITY ASSURANCE BUILDER STANDARDS

Builders Association of Kosciusko - Fulton Counties is proud that EVERY BUILDER MEMBER of our Association has adopted and committed to the Quality Assurance Builder Standards. The Indiana Quality Assurance Builder Standards manual will be provided to every customer by their Builder at the time the contract is signed for each new residential home construction and/or sizeable residential home remodeling project ($5,000 or more) undertaken by the Builder. Hire a Builder Member dedicated to following the Quality Assurance Builder Standards: We proudly present our Quality Assurance Builder Members:

Blueprint Construction

Bob Buescher Homes, Inc.

Bridgeport Homes, LLC

Buhrt Builders, Inc.

Caliber Designs, LLC

Classic Builders

Coplen Construction, Inc.

D & J Roofing and Construction

Granite Ridge Builders, Inc.

Harter Custom Construction

Ideal Builders

Ideal Construction Company

Inglenook LLC

JayH Construction, LLC

Milestone Construction, Inc.

Miller Brothers Builders, Inc.

Millwood Roofing & Construction

R W Kidd Construction

Reliance Construction, Inc.

Renewal Homes LLC

Robinson Construction, Inc.

Rochester Homes, Inc.

Shrock Construction

Signature Building & Design, LLC

Skyline Builders

Synergy Partnerships, LLC

T.L. Jackson Construction, Inc.

Timber Rock Construction, LLC

White Oaks Construction, Inc.

WHAT DOES IT MEAN TO HIRE A…

Certified Aging-in-Place Specialist (CAPS)

If you’re like the majority of Americans over the age of 45, you want to continue living in a familiar environment throughout your maturing years. Or maybe you’re considering moving a parent into your home. According to the AARP, older home owners overwhelmingly prefer to age in place, which means living in your home safely, independently and comfortably, regardless of age or ability level. To age-in-place, you will probably need to modify your house as you mature to increase access and safety. Modifications may range from the installation of bathroom grab bars and adjusting countertop height to the creation of first floor bedrooms and the installation of private elevators. CAPS professionals have been taught the strategies and techniques for designing and building aesthetically pleasing, barrier-free living environments. CAPS graduates pledge to uphold a code of ethics and are required to maintain their designation by attending continuing education programs and participating in community service.

Certified Graduate Builder (CGB)

The Certified Graduate Builder (CGB) has sharpened his business management skills to better understand today’s home building industry. The CGB is focused on effective management in the office and on the job site, examining all stages of new home construction and is trained in scheduling, estimating, job cost procedures, accounting principles and basic contract law. The CGB is dedicated to his craft and to growing his business – and that is evident by their commitment to continuing education.

Graduate Master Builder (GMB)

The ultimate symbol of the building professional, the Graduate Master Builder (GMB) designation is for experienced builders only. Builders must have the CGB designation or the CGR designation with five years of building experience, or 10 years of building experience and successful completion of three CGB/CGR courses before beginning GMB training. GMB undergo in-depth instruction geared for experienced building professionals, which provide a more complete knowledge of all facets of the home building industry; providing clients with the best of home building, customer service and advanced construction techniques.

Graduate Master Remodeler (GMR)

The GMR allows CGRs to attain further recognition for educational excellence and longevity in the remodeling industry. This program is designed to be the master level of the current CGR designation. Qualifications include 15 years remodeling experience, completion of 5 required courses, and having an active CGR for 5 years or active CR (Certified Remodeler) from NARI (National Association Remodeling Industry) for 10 years. Homeowners seek GMRs because they know that these are remodelers who know how to run a successful business, keep up with current design and style trends and listen well to their clients.

Certified Graduate Remodeler (CGR) CGR is the mark of professionalism for remodeling contractors. Remodelers with at least five years of experience in the industry can apply for the Certified Graduate Remodeler (CGR) designation. Courses in the CGR curriculum are designed to emphasize business and project management skills as the key to a successful remodeling operation by teaching builders job cost procedures, accounting principles and basic contract law. When you hire a CGR, you know you’re hiring a trained professional.

Certified Green Professional (CGP)

The CGP designation recognizes builders, remodelers and other industry professionals who are formally trained to incorporate green and sustainable building principles into homes without driving up the cost of construction. Builders with the CGP designation are educated in green building practices that focus on energy conservation, lowered water consumption, and responsible use of materials that enable homeowners to reduce operating costs, qualify for tax incentives, meet government regulations and increase their property’s marketability. Going Green just makes sense!

Master Certified Green Professional (Master CGP)

The Master Certified Green Professional (Master CGP) designation comprises an even more in-depth study of green building science and methods. Builders with this designation are more deeply trained in building science techniques for the high-performance home. The Master CGP builds on the Certified Green Professional (CGP) designation; expanding into the mechanics of green building.

46 | Builders Association of North Central Indiana 2023 www.buildnci.com

BUI LDER MEMBERS

BBS Homes, LLC

Joshua Siebert

Rochester (574) 526-2583

Blake Harris Construction

Blake & Apryl Harris

North Webster (574) 551-0260

Blueprint Construction

Michael Haitt

Rochester (574) 224-2583

Bob Buescher Homes, Inc.

Logan Buescher

Fort Wayne (260) 490-3355

Bridgeport Homes, LLC

Cathy Johnson

Columbia City (260) 564-0136

Buhrt Builders, Inc.

Matt Buhrt

Syracuse (574) 457-3431

Caliber Designs, LLC

Karen White/Justin Meck

North Webster (574) 376-0457

Classic Builders

Ben Champoux

Syracuse (574) 457-5401

Construction Management & Design, Inc.

Dan Hopkins Plymouth (574) 935-6666

Coplen Construction, Inc.

Douglas Harvey Warsaw (574) 269-1673

D & J Roofing and Construction

Delbert Troyer

Nappanee (574) 773-0494

Granite Ridge Builders, Inc.

Luke Hoffman

Fort Wayne (260) 490-1417

Harter Custom Construction

Brett Harter

Leesburg (574) 265-6637

Ideal Builders

Kim Davis

Decatur (260) 724-9131

Ideal Construction Company

Andy Hostetler

Warsaw (574) 267-4721

Inglenook, LLC

Daniel Schlatter

Warsaw (574) 265-1327

JayH Construction, LLC

Aaron Miller

Etna Green (574) 453-7938

Milestone Construction, Inc.

Thomas Burnworth

Syracuse (574) 457-0255

Miller Brothers Builders

Bradley Plett Goshen (574) 533-8602

Millwood Roofing & Construction

Marlin Miller

Milford (574) 269-3099

Northfield Enterprises, Inc.

Larry Coplen Warsaw (574) 269-1673

Reliance Construction, Inc.

Sam Beachy

Nappanee (574) 773-4308

Renewal Homes, LLC

Wendell Miller Warsaw (574) 527-2233

Robinson Construction, Inc.

Mark Glova Warsaw (574) 267-8814

Thank You Thank You

Rochester Homes, Inc.

Alex Berlin

Rochester (574) 224-7320

RW Kidd Construction

John Kidd

Warsaw (574) 529-0520

Shrock Construction, Inc.

Gable Shrock

Ligonier (574) 457-6037

Signature Building & Design, LLC

David Johnson

Winona Lake (574) 268-2400

Skyline Builders

Tim Merchant Warsaw (574) 268-2444

Slothour Builders, LLC

Quentin Slothour Claypool (260) 306-5552

Synergy Partnerships, LLC

Sam Yeiter Warsaw (574) 440-7591

T.L. Jackson Construction

Bruce Jackson Syracuse (574) 457-5417

Timber Rock Construction, LLC

Tyler Miller Warsaw (574) 527-7219

White Oaks Construction, Inc. Chris Bornman Cromwell (260) 856-4950

All members of the BANCI are also members of the State and National Associations.

Supporting the SpectraPrint www.buildnci.com Builders Association of North Central Indiana 2023 | 47
For

ASSOCIATE MEMBERS

1st Source Bank-Warsaw

Rob Spencer

Warsaw (574) 549-6167

A and S Property Maintenance, LLC

Shane Stoppenhagen

Churubusco (260) 609-8989

ABC Supply

Richard Neff

Goshen (574) 642-3196

Advanced Solar

John Moorman

Warsaw (574) 227-2801

AirTite Insulation, LLC

Reed Martin

Shipshewana (574) 825-5271

Artizan Flooring

Rick Hensley

Plymouth (574) 540-2184

Ayr Custom Cabinetry

Troy Glaser

Nappanee (574) 773-7973

Big C Lumber

Rob Springer

Cromwell (260) 856-2152

Bin There Dump That Michiana

Ronald Lee

Argos (574) 892-5554

Blue River Digital

Nick Prentice

Warsaw (574) 404-9576

Brian Peterson Real Estate Group, LLC

Brian Peterson

Warsaw (574) 268-1899

Brouwers Carpet & Furniture

Jennifer Brouwer

Warsaw (574) 267-8054

Builders Mart

Tom Ness

Warsaw (574) 267-8836

Cable Bullet

Julia Gonzalez

Warsaw (574) 742-2737

Calvin Bolt Inspections & Testing, LLC

Calvin Bolt

Warsaw (574) 551-6680

Camden Foundation Technologies

Bernadene Boggs

Pierceton (574) 594-2497

Carey Excavation & Construction, Inc.

Jeff Carey

Warsaw (574) 269-2245

Carter Lumber-Plymouth

Matt Lombard

Plymouth (574) 936-9636

Century Chemical Corporation

Denyse Pontius

Elkhart (574) 293-9521

Clevenger Insurance Agency

Joe Clevenger

Warsaw (574) 267-2181

Coldwell Banker Real Estate Group

Joni Hire

Warsaw (574) 268-3400

Colliers Commercial Services

Christopher Gaby

Warsaw (574) 269-3393

Colorbilt Painting, LLC

Matt Podlesak

Plymouth (574) 780-8056

Copper River Cabinet Co.

Lisa Turnpaugh

Warsaw (574) 268-1263

Cottage Watchman DIV. EF Rhoades & Sons

Frank Rhoades

Pierceton (574) 594-2685

Crossroads Bank

John Warren

Warsaw (574) 306-4497

Culligan Water Conditioning of Warsaw

Kevin Montel

Warsaw (574) 267-7471

Epic Insurance Agency

Scot Wolf

Goshen (574) 533-0573

Everwise Credit Union (formerly TCU)

Ricardo Scarlett

Warsaw (574) 269-4487

Fidelity National Title

Shelly Avery

Warsaw (574) 268-0065

First Federal Savings Bank-Huntington

Matthew Bochard

Warsaw (574) 376-2575

First Federal Savings Bank-Plymouth

Gina Howell

Plymouth (574) 224-6403

First Federal Savings Bank-Rochester

Julia Moore

Leesburg (574) 453-1096

FlowTech Plumbing and Heating

Michelle Mohler

Columbia City (260) 248-2021

Fouce Landscaping, LLC

Don Fouce

Claypool (574) 527-4684

G & R Siding, Roofing & Windows

Gary Richard

Warsaw (574) 527-5551

Glen’s Diamond Tile, LLC

Glen Farmwald

Nappanee (574) 354-8903

GM Custom Painting, LLC

Gary Miller

Goshen (574) 534-8301

Gutter Guys

Travis McVicker

Plymouth (574) 780-2311

Habitat for Humanity of Kosciusko County

Ben Logan

Warsaw (574) 269-4104

Heritage Cabinetry

Floyd Eash

Ligonier (260) 856-2727

Horizon Landscapes, LLC

Matt Tracy

Pierceton (574) 551-0962

Innovative Communities

Tim Saylor

Nappanee (574) 536-4048

Innovative Spaces/ Innovative Concrete Coatings

Trish Stopczynski

Granger (574) 247-1999

Interra Credit Union

Todd Potter

Goshen (574) 534-2506

J & N Stone, Inc.

Jack Lengacher Jr.

Wakarusa (574) 862-4251

J Lane Flooring & Design

Jamie Lane Thompson

Warsaw (574) 269-6230

J Miller Cabinet Co. Inc.

Justin Norris

Columbia City (260) 691-2032

Jess Concrete

Myron Jess

Topeka (574) 312-9591

KC Recycling Depot

Thomas Ganser

Warsaw (574) 372-3087

Kendall Lighting Center

Jenny Kreft

Warsaw (574) 269-3838

Keough & Sons Electric, LLC

Tom Keough

Warsaw (574) 551-5702

Knepp Sand & Stone

Blake Shortill

New Paris (574) 831-4949

Kosciusko Chamber of Commerce

Rob Parker

Warsaw (574) 267-6311x6

Kosciusko Connect, LLC

Curt Barkey

Warsaw (574) 267-6331

Kosciusko REMC

Tara Haack

Warsaw (574) 269-4237

Kountry Cabinets & Home Furnishings

Denny Miller

Nappanee (574) 773-9277

48 | Builders Association of North Central Indiana 2023 www.buildnci.com

ASSOCIATE MEMBERS

Kozon Plumbing & Heating

Brandy Kozon-Hatfield

Cromwell (260) 856-2225

Kuert Concrete, Inc.

John Montgomery

South Bend (574) 232-9911

Lake City Bank

Kirtus Murray

Warsaw (574) 267-6144

Lake City Rental

Aaron Kosins

Warsaw (574) 267-5445

Leatherman Supply

John H. McCarty III

Goshen (574) 533-0597

Legacy Wood Creations, LLC

Andrew Miller

Syracuse (574) 354-7613

Levan Media & Marketing

Brian Levan

Granger (574) 360-6506

Live Oak Electric, LLC

Steve Ulery

Culver (574) 842-4776

Lowery Sewing & Vacuum Center

Adam Harman

Warsaw (574) 267-8631

Lowe’s, Inc.-Plymouth

Jorge Arauz

Plymouth (574) 935-6500

Lowe’s, Inc.-Warsaw

Scott Hawk

Warsaw (574) 268-3139

Lowrys Fire, Water & Mold

Matt Lowry

Plymouth (574) 935-4144

LT Siding Window & Door

Dee Lowe

Warsaw (574) 527-1738

M & D Electrical Solutions, LLC

Dana Day

Pierceton (574) 551-5412

Marshall County REMC

Noami Podlesak

Plymouth (574) 936-3161

Maven Electric, LLC

Nathan Gephart

North Manchester (574) 551-6808

Michiana House & Home

Bill Hays

Milford (800) 733-4111 x2362

Mid-City Supply

Joyce Watkins

Warsaw (574) 267-3693

Mike’s Garage Door

Cassie Harren

Leesburg (574) 453-4368

Millennium Sounds

John Doxsee

Fort Wayne (260) 436-0003

Miller Door & Trim

Dean Howard

Goshen (574) 533-8141

Miller’s Building Supply

Doug Stuckey Goshen (574) 534-3973

Momper Insulation, Inc.

Gary Furniss

Fort Wayne (260) 432-7543

Monteith Best One

Angie Hostetler

Elkhart (574) 355-3281

More Farm Store

Shane Logan

Warsaw (574) 269-3037

Movement Mortgage

Shelley Dobbins

Warsaw (574) 377-0540

Mullet’s Seamless Guttering & Construction

Lamar Mullet

Leesburg (574) 453-3838

Northwest Bank

Jessica Denton

Warsaw (574) 267-8186

NTH Productions, LLC

Noah Hutton Warsaw (574) 551-1952

Nu-Wood by Jasper Plastics

Randy Miller Syracuse (574) 457-2062

O’Dell Lumber & Supply Inc.

Ben Murphy

Rochester (574) 223-2151

O’Neils Glass

Kim Sheehan

Fort Wayne (260) 426-0755

Ozinga Ready Mix Concrete, Inc.

Paul Winkle

Plymouth (574) 936-2136

Pella Windows & Doors of Northern Indiana

Seth Freed

Elkhart (260) 234-1965

Phend & Brown

Dan Brown

Milford (574) 658-4166

Pro IT Solutions

Alex Cook

Wakarusa (574) 862-0021

Professional Roofing Solutions & Construction, LLC

Rich Syndram Warsaw (574) 551-7464

Quality Window & Door

Tavis Amundson

Elkhart (574) 862-1613

Rabb/Kinetico Water Systems

Adam Clemens

Warsaw (574) 267-3853

RAMCO Supply

Marvin Ramer

Rochester (574) 223-7802

Ransbottom Excavating and Trucking Inc.

Deric Ransbottom

Claypool (574) 566-2403

ReMax Results

Steve Savage

Warsaw (574) 269-6911

Ruoff Mortgage

Teresa Shultz-Miller

Warsaw (574) 268-9033

Rural 1st

Breanne Bennett

Kokomo (765) 868-9207

Safe-Way Garage Doors, LLC

Warsaw (574) 267-4861

Schrock Masonry

Marlon Schrock

Nappanee (574) 773-5405

Slabaughs Water Conditioning, LLC

Daniel Schlaugh

New Paris (574) 210-8785

Superior Garage Door Service, LLC

Kevin Hall

Leesburg (574) 551-7835

The DeHayes Group

Greg Gerbers

Fort Wayne (260) 969-1317

The R Group Real Estate, KW Thrive

Angie Racolta

Warsaw (574) 268-0001

Touloukian Supply, Inc.

Bruce Touloukian

Warsaw (574) 268-0680

Warsaw Custom Cabinets

Tim Mundinger

Warsaw (574) 267-5794

Warsaw Masonry

Brian Stichter

Warsaw (574) 267-2825

Wetzel Insurance Agency, Inc.

Byron Kauffman

Warsaw (574) 267-6183

WRSW 107.3

Jim Brennan

Warsaw (574) 372-3064

Zeeland Lumber Supply

Brian Antonides

Mishawaka (574) 522-6453

www.buildnci.com Builders Association of North Central Indiana 2023 | 49
50 | Builders Association of North Central Indiana 2023 www.buildnci.com
www.buildnci.com Builders Association of North Central Indiana 2023 | 51

Turn static files into dynamic content formats.

Create a flipbook
Issuu converts static files into: digital portfolios, online yearbooks, online catalogs, digital photo albums and more. Sign up and create your flipbook.