







![]()








JACOB POLITTE MANAGING EDITOR
The first phase of ‘STLCC Transformed’ is nearing completion, with the new Center for Emerging Technology and the Financial Services and Enrollment Center scheduled for completion by next summer.
Skye Lufsey, the District Coordinator of Marketing and Communications, passed along the following updates for what’s been happening at Meramec:
• Windows are in progress on both new buildings—there are more than 1100 pieces of glass between the two.
• Interior framing is underway for the room layouts.
• Exterior brickwork started last week on the Financial Services Education Center, and has since also started on the Center for Emerging Technology.
• Mechanical, electrical and plumbing work continue throughout both buildings.
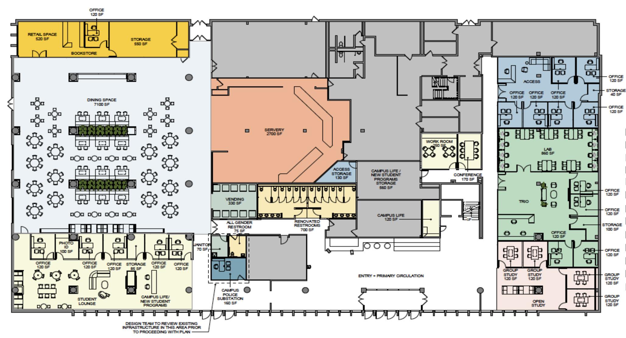
These are not the only changes coming to campus. As reported in May, the Student Center will see some extensive renovations in the coming years, with many departments in the building shifting around and some new departments moving in.
The tentative plans, revealed at an all-staff meeting in August, show that the second floor looks to receive a major overhaul with heavy renovations, and that The Montage itself will be the only current entity to remain on the floor,

albeit in a smaller space (currently occupied by New Student Programs).
Campus Life and TRIO look to move down to the first floor. Campus Life will take over the space that is currently occupied by Academic Success and Tutoring, while TRIO will take over the old bookstore space that is currently occupied by the Library. TRIO will share that renovated space with the Access Office and new Open Study rooms. The Campus Store will move into the space that currently occupies classrooms and the Veterans Services Department in the Cafeteria Atrium.
In addition to those changes, it appears that Campus Police will also find a new home within the Student Center, with a new substation on the first floor and what appears to be new offices in the old TRIO space on the Second Floor. The Veterans Services Department and Counseling Offices also appear to have new offices on the second floor, and the walls that currently separate The Montage and Campus Life rooms will be knocked down to make new facilities for the Student Advocacy & Resource Center (SARC). Continuing Education, currently housed in a structure on Couch Avenue, will move into the space that is now Room 201 on the second floor.
The Montage was unable to confirm a timeline for the Student Center projects before we went to press. For more photos from our staffers and updates regarding construction at other campuses from Lufsey, please visit meramecmontage.com.






‘STLCC Transformed’ projects prove to be too large to fit the ballot box on campus, but two adjacent polling places are nearby
JACOB
POLITTE MANAGING EDITOR
Campus Marketing and Communications Coordinator Wes Buchek has confirmed that the Meramec campus will not serve as a polling place for St. Louis County residents during an important Presidential Election year. Instead, the South County campus will serve as a voting location.
Room 105 of the now demolished Business Administration building had previously served as a polling location, most recently in the 2022 midterm elections. Buchek said that there’s not enough space on campus this year for a polling location, but that this is the only year that potential voters would be inconvenienced.
“It’s strictly a space issue here at Meramec,” he said. “We’re already very, very tight with how much space we have on this campus. So it just isn’t feasible this year. But the campus does plan on being a polling location again in the future when space opens back up.”
Despite the fact that Meramec will not serve as a convenient polling place for applicable students and faculty, there are two polling places within the immediate Meramec vicinity. Robinson Elementary, directly across the street from the Continuing Education building, is one. In addition, the Geyer Road Baptist Church slightly up the road from campus (located at the corner of Geyer and Woodbine) will also serve as a polling location.
In addition, Meramec will still host events and

organizations that help students and the community register to vote. For example, the League of Women Voters will visit campus twice in the coming weeks. They’ll be set up in the Student Center Portico on Monday, Sept. 16 and Thursday, Oct. 3. On both days, they’ll be present from 10:30am to 2:00pm.
Buchek also says that the campus can help with completing the mail-in ballot process.
“I believe we have several notaries publicly
available with the college/campus for those who need to get their mail-in ballot notarized,” he said.
In addition to the Presidential Election, Senate and House of Representatives seats are up for grabs at both the state and national level. Certain ballot initiatives, including abortion access and sportsbetting, will also be decided by voters in November. The deadline to register to vote in Missouri is Wednesday, Oct. 9.
Months after controversial incidents involving a protester and two officers, STLCC has not forgotten the issue
JACOB
POLITTE MANAGING EDITOR
It’s been a calmer Meramec campus in nearly five months after an April incident in the Student Center Quad left students and faculty upset with anti-semitic rhetoric and led to an investigation into the conduct of two Meramec police officers.
Previously, Dr. DeAndre Braddix said that the college would not publicly disclose the results of said investigation.
Instead, William Raack, speaking on behalf of the college as its Communications Manager, said that the investigation into the officers is now complete. He also gave The Montage the following statement: “Unfortunately, because our investigation into the incident involves our personnel, we will not be able to share the results,” Raack said. “However, we can say that STLCC has taken several steps to address what prompted the incident: the presence of an individual expressing ideas with signs and shouting.”
He continued, “First and foremost, we have updated our Freedom of Expression guidelines.”
Elaborating further, he continued, “We have also created a public-facing web page to share the Campus Free Expression guidelines with the internal and external community. We have hosted a two-hour tabletop exercise for College leaders to learn more about campus free expression, including what constitutes unprotected speech. We
are moving forward with launching our Free Expression Action Team (FEAT). When expressive activity is observed on campus, Action Team members will respond.
Elaborating further on FEAT, Raack continued, “Their role is to educate, support and refer. FEAT volunteers will participate in a training session to learn relevant policies, procedures and laws, and become empowered with skills and tools to support students and each other.”

While visiting the Campus Expo last week, Nicholson said that both students and faculty can volunteer for FEAT.
“Lastly,” he concluded, “STLCC’s Diversity, Equity & Inclusion (DEI) Office is working with Campus Police to provide comprehensive training to our officers on implicit bias. This training is being designed to meet [the] Peace Officer Standards and Training Program (POST), which is a regulatory program that approves law enforcement training curricula.”
Those looking to join FEAT can contact Keith Robinder, PhD, vice president for student support programs, or Shannon Nicholson, director for community standards & Title IX coordinator.
“We are training folks first to respond,” said Nicholson, “And [we] are welcoming students to be trained.”
The protester, who livestreams under the YouTube account Kingdom Reconcilers, has not reappeared on the Meramec campus since his April 15 visit.
Instead, he appears to be traveling in other states, including protesting at the US Olympic Headquarters in Colorado and various locations in Illinois.
He also has recently filmed himself “preaching” outside the Deja Vu Strip Club in Springfield as well as the Republican National Convention in Milwaukee in July.
5, 2024

Shannon Philpott-Sanders Faculty Adviser

Facebook.com/ meramecmontage/



To place an advertisement, contact the advertising manager for rates, sample issues, etc., at 314-984-7857.
Editorial views expressed or content contained in this publication are not necessarily the views of St. Louis Community College, the Board of Trustees or the administration.
The Montage is a student publication produced seven times per semester at St. Louis Community College - Meramec, 11333 Big Bend Blvd., Kirkwood, Mo., 63122.
One copy of The Montage is free of charge. Up to 10 additional copies available, $1 each, at the office of The Montage, SC 220. Bulk purchases may be arranged with circulation manager.
Editorial policy: All letters should be no longer than 500 words and must include identification as a student or faculty member, phone number and address for verification purposes. Phone numbers and addresses will not be published. All letters are subject to editing for content and length. All letters submitted will be published in print and online.
Proud member of www.MeramecMontage.com
RYAN WINZEN News Editor
At the start of the 2024 fall semester, the St Louis Community College implemented the brand new Pathways program as a part of its reorganization of its Academic Affairs department that went into full effect on July 1.
Pathways is made up of six areas/ schools of study. These areas are designed to help students take classes that pertain to their interests and ideal major.
The divided schools contain general classes pertaining to their Meta Major, as a way for students who are unsure what career they want to pursue to begin taking classes for something they may be interested in.
The different schools include:
• Health Professions
• Advanced Manufacturing, Industrial Occupations, and Transportation
• STEM
• Communication, Design, and Creative Arts
• Business, Culinary Arts, and Hospitality
• Education, Public Service, and Social Sciences
Vice Chancellor of Academic Affairs Andrew Langrehr talked about why St Louis Community College decided to implement the Pathway model.
“It’s a national movement. It’s shown success in many other colleges who adopted it before us. It’s a way to improve student success at the basic level,” said Langrehr.
Langehr went into detail on how the different schools were decided.
“Programs in those buckets have similar classes. The idea is if we package those things together, they are similar in the beginning. If you look at students, they might not know what they want to study, but they know which lane,” said Langrehr.
The programs offered in the different schools have the same prerequisite classes. If students decide to take a different career path in a school, then they do not have to worry

about redoing any of the required courses.
“If you want to be a nurse, but then later decide to be a different health science, you already have those basic classes down,” said Langrehr.
The implementation of Pathways has been successful so far, STLCC still plans to make changes and adjustments to the program.
“We’re adding more specialized academic support that will be aligned with these meta majors. We’re going to have advisors, who work in student affairs, be aligned with these different schools, to better help students,” said Langrehr.
Pathways was not an overnight addition, but rather a multiyear process.
“We’ve had a lot of feedback. This implementation has been a multiyear process. We had town hall meetings to give feedback, as well as sessions during staff development,” said Langrehr.
Campus President, Feleccia MooreDavis, mentioned why the college adopted the Pathways framework.
“Pathways To Success is an institution-wide framework that facilitates student success and completion and aligns with the students career or transfer goals,” said Moore-Davis. “We want them to transfer successfully. That means they aren’t taking excess credits, taking the
right credits, their credits will transfer, or making sure they are prepared to enter the workforce.”
Moore-Davis explained how the divided schools are to help students from taking classes they may not necessarily need for their major or career.
“All the programs in the arts have similar courses. If a student wanted to be a graphic artist vs fine art, the student could take some of those courses and not gain excess courses,” said Moore-Davis.
Moore-Davis talked about how Meramec plans to address student questions and concerns surrounding Pathways.
“Some of the comments are ‘what is this [and] why this is here,” said Moore-Davis. “What we are attempting to do is facilitate more communication around the Pathways model. We seek to improve the student and faculty experience.”
Meramec will be hosting “Pizza and Pathways” on Monday, October 7th for students to learn more about Pathways. The program is here to stay, as the STLCC district plans to continue and adjust the program over the years.
“I think changing to a Pathway model is a long process. In the last couple years, we’ve made great strides. It's a big change. We organized everything into a Pathway model; it's gone pretty well,” said Langrehr.
Archers Athletics Unveils New Logo
The College recently unveiled an updated Archers Athletics logo as well as adding a fierce Archie the Fox logo designed specifically for STLCC athletic teams (that logo can be seen on the front page). A recent Marketing email remarked, “As part of our commitment to modernizing our brand, the marketing and communications department collaborated with the athletics department to create a fresh look that best represents the Archer spirit.”
STLCC says it will continue to use the primary Archie logo for most applications.
Deborah Bush-Munson Case Headed To Trial
Former STLCC Professor Deborah Bush Munson’s discrimination case against the college is set to head to trial in late October after being delayed, according to recent Missouri CaseNet filings.
The case, DEBORAH BUSHMUNSON V THE JUNIOR COLLEGE DISTRICT, was previously profiled extensively in the March 2024 issue. Bush-Munson, a former professor at the Forest Park campus, is suing the college for damages over what she claims is racial discrimination. She claims that as a result of the college’s conduct and actions over a multiyear period, (specifically noting the
actions of Health and Sciences Dean Bill Hubble) she has suffered lost wages and benefits of employment and will continue to suffer lost wages and benefits in the future. She also says that she has suffered emotional distress and mental anguish. Her suit formally claims that her race and her complaints and charges of discrimination were deciding factors in the college’s decision to effectively terminate her employment.
Earlier this summer, the college was seeking a dismissal of the case; the court denied their request in a June filing. The jury trial will begin on Oct. 28 and the case will be heard by Judge Elizabeth Byrne Hogan.
JACOB POLITTE MANAGING EDITOR
ABEATRICE JOHNSON STAFF WRITER
s The Montage celebrates its 60th anniversary this fall, it’s notable that archived digital copies that can be viewed by readers on The Montage’s “Issuu” page only date back to 2010. The rest are not lost to time, however. Print copies, both loose and binded, still exist. They date all the way back to the very first issue in 1964 and can be accessed in the Library. As we approach the next volume of issues, The Montage would like to take you back in time to some of those issues throughout the coming school year. This month, we’re taking a look back at one of the earliest issues currently availible to view in The Montage newsroom, and specifically looking at a hand-drawn map from staff member Mary Kremer. The Sept. 22, 1965 issue of The Montage opened the second volume of the publication, and it was published at a time when the campus looked very different (and had a different name) than it does now. In the midst of ongoing construction that will change the face of the campus for generations to come, it may be prudent to look back at the very beginnings of the campus, before any of the current buildings were even built. Staffer Mary Kremer drew a map by hand of the campus as it stood at that time. On the front page, an artists rendering of what would become the old library quad almost exactly matches what the area would look like for decades to come until the fall of 2023. Kremer’s map and the issue as a whole serves as an interesting look at the origins of Meramec itself.




Sept. 5, 2024
RYAN WINZEN NEWS EDITOR
Kavahn Mansouri is an alumni of STLCC Meramec, as well as former staff editor for The Montage student newspaper.
It was the true beginning of a career that has proven to be quite the success story.
“Many editors I’ve worked with refer to me as a jack of all trades, because I had so many skills I learned from this position,” said Mansouri.
Getting his start on the beat Mansouri began his journey with journalistic writing during his time in high school, writing for the Rockwood Summit paper, The Talon.
“I started writing when I was about 14 or 15 at my high school paper at Rockwood Summit. I had joined a class for newspaper and radio stations, and it led to me joining the newspaper.”
After high school, Mansouri decided to continue his education at STLCC Meramec.
“I really did like to write, and I was unsure what I wanted to do next. I didn’t want to go to a 4 year university without a plan,” he said.
Before classes started in the fall, Mansouri had already joined The Montage staff.
“I had a friend who worked on The Montage who said I should come write for the paper. I joined as soon as I got there,” he said.
Mansouri explained why he holds The Montage in such high regard.
“It’s a really standout paper compared to other college papers and it was a place where I could get involved.
It was like a family, on top of being a good newsroom.
I stayed three years at Meramec; I wouldn’t have done that if not for The Montage.”
Throughout his time at The Montage, Mansouri developed a number of different skills that he continues to use in his career.
“On a mechanical level I learned to lay out a newspaper and learned how to write any type of story,” said Mansouri. “I think the number one thing [that I learned] is how to be a leader and to be an empathic journalist.”
Mansouri went into detail about one of the most impactful stories that he covered while on the Montage, recounting his reporting within the multipart piece “The Domino Effect” in the May 2, 2013 issue.

“I think the most impactful story we covered was when a student was assaulted in a bathroom on campus and the fallout after that,” he said. “The [campus] president resigned after that. That was very impactful because of all the things that came after. There was a shift at the school.”
This series of stories is what led to Mansouri’s interest in writing news pieces.
“We heard from the faculty to keep reporting the story, and we were running around the campus trying to get information,” said Mansouri.
After Meramec, Mansouri transferred to Webster University and joined their paper. He graduated from Webster with a degree in journalism.
Mansouri’s first gig after graduation was at the Washington Missourian, a family-run newspaper based in Washington, Missouri.
“I stayed there for three years and learned the daily grind of working on stories. It was a good gig for that.”
Following his job at the Washington Missourian, Mansouri went to the Belleville News Democrat.
“That’s where I started covering the government more, looking at how taxes are spent,” he said. “It was a fun job.”
Currently, Mansouri works for
beatrice johnson staff writer
Anyone who has completed the 2024-25 FAFSA and is a part-time student may be eligible for part-time employment through the Federal Work-Study Program. While there is no GPA requirement for incoming freshmen, returning students require a 2.0 GPA or above to apply for employment through the Federal Work-Study program. The Federal Work-Study program offers part-time positions for students with financial needs.
These positions allow students to earn extra money while remaining responsible for their education, says Ashley Kozar, the District Coordinator of the Federal Work-Study program at STLCC.
“Being a student myself, I think a benefit of work-study is that you’re dealing with a supervisor who understands you can’t work while in class and recognizes the importance of your education,” says Kozar.
While there aren’t any positions
currently open, Kozar says that a waitlist is still open for students interested in applying. “Once the academic year begins on July 1, we start hiring, so we are on a waitlist right now,” she continued “however I still encourage students to put in their application, since there may be a point we may be able to hire additionally with the beginning of the semester, or into the upcoming semester.”
on their needs and the available hours in the department.

There are a variety of positions that can be filled with varying time commitments. While some students may be working up to 20 hours with the program, Kozar says that many students will work less than that based
While the advising department assists in the application and hiring process for this program, students will work with a separate supervisor on a departmentbydepartment basis, and as such, there are different ways to be prepared for each position.
Kozar does advise, no matter the position, to have a copy of your schedule handy to better inform your potential employer of your availability.
Students can come to enrollment services if they need assistance with completing the application for the program, or they can complete the
NPR’s Midwest Newsroom, an investigative news outlet that covers Iowa, Kansas, Missouri, and Nebraska. Mansouri talked about the main topics he covers at NPR.
“A lot of my work is about housing and homeliness, police, [and] gun legislation. We want to uncover wrongdoings in these flyover areas,” he said.
Mansouri explained the impact he wants his reporting to have on the readers.
“I really try to focus on doing journalism that reveals something to people. And if it’s wrongdoing or injustice, then that’s great. I want people reading my work to feel a little more informed,” he said.
application online using the QR code found in the article. Some departments that frequently recruit new employees include the horticulture department, the campus life office, and the Student Advocacy and Resource Office.
Kozar does warn that though WorkStudy positions may take place at your place of education, it is still a job and has similar rules and expectations. Expect a possible change in requirements for things like dress code, and be sure to call in if you are going to be late and/ or miss a shift, as unlike some classes, reliable attendance is expected for most, if not all positions.
Those interested are invited to complete the application on the STLCC website or through the QR code below.



Meetings every Tuesday at 2 PM via Zoom or in Student Center, Room 220A

Fall Publication Dates: Sept. 5, Oct. 3, Nov. 7, Dec. 5
Contact Faculty Adviser Shannon Philpott-Sanders at ssanders147@stlcc.edu.



Now hiring editors, writers, photographers and graphic designers. To apply, contact Faculty Adviser Shannon Philpott-Sanders at ssanders147@stlcc.edu.

Honors offers qualified students a variety of opportunities in and outside the classroom, including honors classes, special projects, workshops, and mentoring. New students can qualify through high school GPA, ACT score, or Accuplacer. Returning students qualify through their college GPA. Once admitted, honors students are never obligated to pursue a minimum amount of honors work each term.
Curious about the Honors Program and what it might mean for you?
To be eligible to join Phi Theta Kappa - Xi Lambda, Meramec’s local chapter, students must have a GPA of at least 3.5, have taken 12 or more credit hours, and must be enrolled in at least one course currently at Meramec.
If you are interested, contact Chapter Advisor Jerry Meyers at gmyers34@stlcc.edu or 314-984-7638.
If you are interested, contact Chapter Advisor Jerry Myers at gmyers34@stlcc.edu or 314-984-7638
If you are interested, contact Chapter Advisor Professor Rich Peraud in CN 217 or go to PTK.org for more information.

Learn more about the Meramec Honors Program and apply online at http://www.stlcc.edu/mchonors mchonors@stlcc.edu 314-984-7147 Humanities East 101
Sept. 5. 2024
Is James Patterson truly considered an author?
IAN SCHRAUTH STAFF WRITER
If you are engaged in the literary world, either by publishing short stories in a magazine, self-publishing your titles with Amazon KDP, or you simply just like to indulge in a good Freedia McFadden thriller, you probably know about someone named James Patterson. Patterson, who was born in New York and resides in Florida, is probably one of the only authors that publishes more than 10 books a year, alongside other co-authors like Maxine Paetro, Brian Sitts, Candice Fox, and James O. Born. Patterson, who is published by Hachette Book Group/Little Brown & Company, has been proclaimed as the “#1 Thriller Writer in the world” because of the number of titles he publishes a year.
But does he write all of the titles with a bunch of co-authors? The answer is no.
Patterson’s books are generally not written by himself. He writes the outline for any book he does not want to write for himself and hands the work off to his team of co-authors, where they will do all of the work for him. Based on the research I concluded over the past 6 years, I can say that Patterson’s unethical co-authoring program is not standard. This method is not a regular co-author situation, like with The Zodiac Academy series by Bestselling Authors Caroline Peckham
and Susanne Valenti. At least with that series, they both write the book equally and publish it each with 50% ownership. With Patterson and his many co-authors, Patterson tasks his co-authors to write 100% of the book’s content, and he snatches 100% of the book’s rights, while paying them for their work out of his own pocket.
And a lot of the time, they don’t even work with Patterson directly.
According to an article at The New York Times titled “James Patterson Inc.”, Patterson only works directly with the co-author on the adult side. If he is wanting a Young Adult Project, the co-author works with Patterson’s Young Adult editor, who then passes them along to Patterson.
While I enjoy reading the Women’s Murder Club Series, I also do believe Patterson cannot be considered an author, since the majority of his books are not even written by him. One of the reasons why I believe this is because of something only someone like myself knows.
As someone that has written over 10 books, writing a book from start to finish makes it feel like you’re raising a child. The book is something that you pour your heart and soul into, and you are proud of the end result. The book is essentially your “baby”, so to speak (which is why most authors call their books, specifically their first book, their “Book Baby”). Since Patterson only writes his Alex Cross Series himself (with the exception of one Alex Cross

book), he only experiences this special feeling every once in a while when he publishes a new Alex Cross Novel. Patterson is also is known for launching more imprints with his publisher as business ventures. One example was with his BookShots imprint, which published romantic and thriller novellas that didn’t exceed 150 pages. This imprint was opened in 2016 and abandoned in 2018. As of 2024, the imprints website, bookshots. com, is offline and no new projects have come up since it was abandoned.
Another imprint he launched was his Jimmy Patterson imprint. He originally published other authors, specifically BIPOC Young Adult Authors alongside his other Young Adult books. In 2020, it was announced that the imprint was going to be revamped and only publish Young Adult books he writes. Overall, James Patterson is not an author, but instead a literary business owner. Yes, he writes one of the many series he has by himself, and he can be considered an author for that series, but for the other books, not so much.
New X-Files book requires knowledge of 11 seasons of television and two feature films
JACOB POLITTE MANAGING EDITOR
“The X-Files: Perihelion” is not for those who are not familiar with the entire series mythology that lasted, in total, from the fall of 1993 to the spring of 2018. In particular, Claudia Gray’s novel, which hit stands earlier this summer, focuses a not insignificant amount of time untangling and retconning the convoluted and controversial mythology arc that was previously explained on screen in Season 11, during the show’s “revival” years.
But while newer readers may be overwhelmed, longtime fans of the franchise may truly love the amount of care and nostalgia that can be found in “Perihelion.” It’s a love letter to die-hard fans, even if there are some minor issues. It’s a different way of presenting an “X-Files” story, and the ending, while being a far more hopeful one than the series originally ended on (twice), is open to the point where even more stories can be told by Gray. Admittedly, there are a not insignificant amount of passages that fall into that “telling, not showing” trope that some stories fall into. But on the flip side of that coin, that trope
benefits the narrative in a major way that other X-Files properties have failed to capitalize on: it allows Fox Mulder and Dana Scully to talk things out in a way we have never seen, which carries its own kind of weight. Mulder and Scully ARE the brand at this point more than any other monster of the week or recurring villain, and “Perihelion” leans into the domesticity and affection between the two in a way that the franchise has never allowed before.
Fans may really enjoy seeing those discussions play out, and they’ll likely appreciate Gray’s retcons of some Season 11 plot points that greatly upset the fanbase (especially one particularly gross plotline in particular). These retcons, teases of other appearances and other plot lines left in limbo, set the stage for more adventures down the line if Gray continues to write them. We may not ever see Gillian Anderson suit up as Scully again, but it’s easy to imagine her voice in Gray’s writing. The same goes for David Duchovny’s Mulder. It’s a great continuation with (hopefully) more fun and proper closure to come.

lucas segall staff writer
Every sport that St. Louis Community College has to offer will be seeing either changes in venue and/or upgrades coming within the next season. In the near future, the Meramec and Forest Park campuses will get major renovations to their sports facilities. Students on the Meramec campus can expect to see changes to exterior fields, with a new soccer field for men’s and women’s soccer and new turf fields for softball and baseball.
At the Forest Park campus, plans for the basketball courts to get new air conditioning units and new flooring are in the works. If plans for the gym follow through, then volleyball will be transferred from Meramec to Forest Park.
Athletic Director Sharon Marquardt said, “The goal is for the teams not to not be able to play on campus, so we want the field to be completed before their next seasons.” So what is the time timeline for these projects? Marquardt said that they are looking to start construction on the soccer fields sometime in spring, with softball tentatively and baseball following (in the) summer and fall.”
“These facilities are going to be a huge boost in the recruiting opportunities of
our coaches,” she said.
Marquardt said she is hopeful that these renovations will help coaches draw in more and better student-athletes to the college’s campuses.
When comparing STLCC to other community colleges in the state like Metropolitan in Kansas City, Marquardt thinks that these improvements will “bump up that road and we will be sought after more by student athletes.”
Students worried about getting to class on time and how this construction will affect campus walkability should not expect much of a difference; the renovations to the softball and baseball fields are likely to only affect Parking Lots R or Q. Soccer field renovations could affect parking lot E.

College that’s well rounded and getting them a quality education on top of it,” Marquardt said.
With the moving of sports teams to different campuses, college officials want to make sure that every college has some sort of sports representation, while also being diverse and fun for students.
“It’s all about giving students the opportunity to have an athletic experience at St Louis Community
As a part of the changes, both men’s and women’s soccer will be moving from the Florissant Valley campus back to Meramec, with cross-country and track and field will likely heading to Florissant Valley. Marquardt also said that there is talk of a new golf team, swim team, or clay shooting team to be hosted at either Florissant Valley or Forest Park.
On top of that, the college’s new eSports facilities will be having a ribbon-cutting event on Tuesday, Sept. 24 at their home base in the South County campus off Meramec Bottom Road. That event takes place as part of an Open House event on the campus that lasts from 3pm to 6pm.
As a reminder, all STLCC sports teams are open to join for students no matter what campus they attend classes.
JACOB POLITTE MANAGING EDITOR
Continuing what has become an STLCC tradition, STLCC Archers Baseball will return to play a fall season game at Busch Stadium later this month. The game this year takes place on Sunday, Sept. 22, and the Archers will be taking on will once again compete on the hollowed diamond against East Central College at a time to be determined as of press time. Entry to this game is free, and no ticket is required to enter the stadium.
Last year’s game at Busch Stadium was also played against East Central. As it was considered a scrimmage game, an official score was not recorded by the NJCAA. As a bonus, the Athletics Department
is also selling tickets to a Cardinals game that same day at 1:15pm against the Cleveland Guardians; the STLCC-East Central game takes place following the Cardinals game. Those tickets cost $30, are within the Infield Terrace section (level 4) and come with a free jumbo hot dog and soda. The first 25,000 fans to enter the stadium will also receive a free winter hat.
Tickets for the Cardinals game can be bought before Sept. 17 by scanning the QR code to the right.
For any questions regarding these events, contact STLCC Athletic Director Sharon Marquardt via email at smarquardt@stlcc.edu.



STLCC’s Fitness Center hours have recently been slightly adjusted for the fall semester. Meramec’s Fitness Center will now be open on Monday, Wednesday and Friday from 8 a.m.-4 p.m, but will have extended hours on Tuesdays and Thursdays, being available for use by students, staff and faculty from 8 a.m.-6 p.m.
As a reminder, before using the equipment, participants need to register for and undergo a few brief training modules that go over the Fitness Center’s policies, as well as general fitness and workout information. This can be done online or in person at the Fitness Center.