A Quarterly Journal from McLennan Design. Rediscovering our relationship to the natural world. Volume 6 Issue 2


A Quarterly Journal from McLennan Design. Rediscovering our relationship to the natural world. Volume 6 Issue 2
The spring always means time in the garden – and this year I have been busy preparing for the upcoming summer bounty by getting lettuce, corn, squash, beans, potatoes and a whole lot more in the ground. The lettuce – liking the PNW cool spring climate – is already flourishing and provide many delightful salads alongside eggs from my chickens.
But this spring has also been about beginning to harvest efforts from previous years, as both the asparagus I planted three years ago and my small orchard from the same time-frame are showing signs of their first bounty. With some crops, patience over a few seasons is required.
Such as it is with many things in life. The same can be true for architecture and our work with Regenerative Design. We are busy and thriving at the start of the year – working on many amazing net zero and living building projects all around the country that we will be sharing with our community soon. Yet in this issue, it is the seeds sown in prior years that have focus – showing how all the hard work of our team on Bainbridge Island is now bearing fruit.
In this issue of Love + Regeneration we share some work from previous seasons – including new photography from our historic retrofit office on Bainbridge and a repurposing of an old article I wrote many years ago that seems even more relevant today. Lessons on how we use daylight in our architecture with examples from our HMTX project completed a year ago is also included, written by a promising young member of our studio. We also are dedicating this issue to fellow green warrior, Lynne Barker who passed away earlier this season.
Please enjoy,
McLennan Design respectfully acknowledges the Suquamish and Duwamish peoples, who, throughout the generations have stewarded and thrived on the land where we live and work.
spring 2024
EDITOR-IN-CHIEF
MARKETING MANAGER
GRAPHIC DESIGN CONTRIBUTORS
SOCIAL MEDIA
Spring 2024, Volume 6, Issue 2
Jason F. McLennan
Jay Torrell
Susan Roth
Josh Fisher, Galen Carlson, Kishore Kandasamy, Aayushi Mody, Reza Takallouie
LOVE + REGENERATION is a quarterly publication of McLennan Design, LLC.
© 2024 by McLennan Design / Perkins&Will
ALL RIGHTS RESERVED. Content may not be reproduced in whole or in part without written permission and is intended for informational purposes only.
Cover: Dan Banko | Mohawk Industries, Inc.
BAINBRIDGE ISLAND STUDIO 1580 Fort Ward Hill Road Bainbridge Island, Washington 98110 mclennan-design.com perkinswill.com/studio/bainbridge-island admin@mclennan-design.com
KANSAS CITY STUDIO 1475 Walnut Street Kansas City, MO 64106 perkinswill.com/studio/kansas-city
2014 - 2024
JASON F. MCLENNAN
I originally wrote this piece in the summer of 2014 – a decade ago now, to tackle head-on the discussion around overpopulation in the world. While overconsumption is the real sticky issue –it is a combined equation: consumption x population = impact
Its a simple equation putting our future in peril.
It is true that population rates are falling and it appears that we will now hit peak global numbers earlier and lower than predicted a a decade ago- now likely in the 2080’s around 10.4 Billion. But that still means 2 Billion more people on the planet, which is hard to fathom.
The big headlines these days tend to be concern over “underpopulation” with so many leading economies seeing birthrates below replacement rate, and with an ageing population that needs to be taken care of, straining first world economics. Some have called this a greater threat than over-population, but those tend to be the wealthy who are concerned foremost with their own economic stability. I disagree, as it is precisely first world economics that need to change and it is also likely that a combination of technological innovation and acceptance of the need for immigration, will help us address underpopulation in strong economies, to provide a stable landing.
But simply put – there are too many people – and we consume way too much – and both parts of the equation need to be addressed simultaneously. Both are huge, nearly insurmountable challenges. As I explain in this article, the first requires cultural change in the middle east and developing economies to expand rights and opportunities for women and girls (which is fundamental to population reduction) – and the second requires cultural change on the wealthiest countries to vastly alter our consumer patterns and degree of resource consumption.
Tall orders for the future we will be forced to confront.
“ If the world is to save any part of its resources for the future, it must reduce not only consumption but the number of consumers.”
-B.F.
you about ten minutes to read this article, the global population will have increased by approximately 1500 people¹ between now and when you reach the final paragraph. The same number of humans will join the roster of earthly occupants in the ten minutes that follow. And so, the pattern will continue, in the minutes, hours and days ahead, until the carrying capacity of the planet is simply overwhelmed or our population is checked in some way.
Environmentalists and scientists have always understood that we have a crisis in both overconsumption and overpopulation, yet recently it has become nearly taboo to even discuss the latter, even as we remain completely ineffective in dealing with the former.
Population control is a tricky issue. Political leaders are afraid to tackle it because it is so culturally, religiously, and politically charged. The very nature of the population discussion can be extremely polarizing. Look to those who have broached the topic in the past — Malthus, Ehrlich, and others — only to be vilified and heavily criticized not just by their contemporaries but by subsequent generations as well.
Just as with issues of race, gender, and other social touchstones, we typically avoid serious exploration of overpopulation because of the minefield that must be navigated to get anywhere near the topic. Meanwhile, that net-growth population clock is ticking. (Since you started reading this piece, more than 100 people have been added to the global figures.) We can’t afford to wait any longer to ask and answer these fundamental questions:
• How many people can the planet sustain and at what acceptable quality of life?
• What do we do about a rising global population in an ever-constrained world when increases in population are unevenly distributed? How does rising population change as the realities of climate change and habitat disruption become more evident?
• Does one species have the right to expropriate a disproportionate amount of the planet’s resources? How much of the biosphere can we claim before the system itself collapses?
• How does humanity fit within the larger web of life? What is our responsibility and our role as stewards?
In October 1999, global population reached the six billion mark. By October 2011, only 12 years later, population had increased by a further one billion. Currently, we are nearing 7,237,700,000 people. Demographers estimate that we are on track to be eight billion strong by the spring of 2024 and that the ten-billionth human being will be born in 2062. 2
It is impossible for us to continue this rate of growth safely and sustain-ably. If this is not patently obvious, then we are delusional. The planet just can’t handle it; at the current rate of consumption, we are already using more than one planet’s worth of renewable sustaining resources. Like locusts, we are literally eating the world and eating our future. When Malthus made his dire predictions about population in the 18th century, the world was a very different place. He did not have the benefit of an interconnected network of scientific research to guide his predictions. Population was also growing rapidly in a context of a healthy, still largely undisturbed, and therefore resilient planet. The same could even be said about the state of affairs when Ehrlich published his first warnings in the 1960s, although conditions were unquestionably beginning to tip at that point. Since then, however, our species has wreaked havoc on the entire climate and on virtually every ecosystem. Because of the damage we have caused, the planet is neither healthy nor resilient. Climate change makes things increasingly unstable as droughts, shifting rain patterns, rising temperatures and ocean acidification create significant new challenges. And all the while, we continue to grow in numbers as more of the world emulates the consumption patterns of the United States and other industrialized countries.
1. www.worldpopulationbalance.org/faq (140 per minute) www.census.gov/population/international/files/wp02/wp-02003.pdf (141 per minute) www.medindia.net/patients/calculatora/worldpopulation.asp (150 per minute)
2 www.worldometers.info/world-population
Source 1981/2013: Facundo Alvaredo, Anthony B. Atkinson, Thomas Piketty and Emmanuel Saez, The World Top Incomes Database, Jan 2014
Source 2021: Facundo Alvaredo, Anthony B. Atkinson, Thomas Piketty and Emmanuel Saez, The World Top Incomes Database, Jan 2014
Source: Facundo Alvaredo, Anthony B. Atkinson, Thomas Piketty and Emmanuel Saez, The
Source:
“ We must rapidly bring the world population under control, reducing the growth rate to zero or making it negative. Conscious regulation of human numbers must be achieved.
Simultaneously we must, at least temporarily, greatly increase our food production.”
As a global community, it is paramount that we engage in real dialogue and push the issue that there are simply too many of us. Population and consumption both should be a matter of political discussion at the national and international levels, yet our political discourse is more focused on stemming immigration, a shortsighted viewpoint that further demonstrates the need for thoughtful and compassionate leadership. By truly understanding the earth’s carrying capacity, based on a humane quality of living for every citizen of the planet, we can then explore rational and healthy strategies that will allow us to return to sustainable population levels elegantly, peacefully and cooperatively.
It is my belief that one of the most critical and urgent of humanity’s goals should be to reach a truly sustainable population target as quickly as possible, while ensuring a humane quality of life for all. With the help of science, we can determine approximately how many people can be supported given Earth’s new resource and climate reality. We already know that this means many decades of below replacement rates for most countries. In each region, for each climate and within each local economy, what is realistic? What is equitable? What is livable? What is required to preserve the beautiful web of life that sustains us all?
One can’t discuss global population without putting the topic in the con text of the planet’s ecological carrying capacity. It is universally under-stood that there are limits to what any environment can do to sustain the species that rely on it. A potted plant, for instance, can only draw nutrients from the finite amount of soil in that one pot. The same is true of all global species — including humans — that draw from what their natural environments can provide. We are not exempt from these fundamental laws, and yet we act as if we are.
Those who insist that Malthus was wrong — that he was nothing more than a pessimistic alarmist — tend to use his failed predictions as proof that humans can always find technological solutions to manage whatever challenges come our way. But we can’t keep assuming that we can invent our way out of the problems we face. There is only so much a finite
- Paul R. Ehrlich, The Population Bomb (1969)
system can do to sustain us, especially one in which we’ve used up the majority of its failsafe reserves. Period. No present or future technological innovation will be able to protect us if we keep multiplying and keep increasing our rate of consumption.
Not even better cities and greater urban density — a topic that is currently in fashion and one about which I have also written — can save us. 3 It is only very recently that the majority of humanity is located in cities rather than in rural locations, and this is an experiment that has yet to be adequately tested.
As is true with discussions surrounding climate change, we cannot allow ourselves to get sidetracked by petty arguments that pit sides — and nations — against each other. While we bicker about what is fair, just and holistically accurate, the planet continues to warm, and the future of our species becomes more tenuous. Overpopulation is a global concern, and responsibility must be shared by both developed and developing countries. A shared approach must be immediate and not tied to one group or country having to act before the other does. Rich and poor countries may need to handle their approaches differently, and certainly the economics and incentives will differ, but all parties must still be engaged. Population concerns exist regardless of geopolitical contexts.
When it comes to consumption, without a doubt the industrialized countries are by far the most serious offenders — with the United States typically leading the way on most indicators. It is estimated that the wealthiest 20 percent of the global population is responsible for 76.6 percent of total private consumption, while the poorest one-fifth among us account for only 1.5 percent of consumption.4 Birthrates in most developed countries are declining, which is an undeniably positive trend — and interestingly enough, birth rates in many developing nations are dropping as well.5 If developing nations continue
3 Too many people are falling into the trap that ‘cities will save us,’ putting unrealistic hopes on the urbanization of the planet as a proxy for responsible resource use. While urbanization can address some issues, it creates other problems that we don’t yet fully grasp.
4 www.globalissues.org/issue/235/consumption-and-consumerism
5 www.washingtonpost.com/blogs/wonkblog/wp/2013/05/13/why-are-birthrates-falling-around-the world-in-a-word-television/
Who is ever to say that any specific children should not be born, or that people shouldn’t want to build a family and play a role in the great and wonderful thread of life?
to follow the same trend, this will begin to tip the population side of the equation in the right direction in a short amount of time. The key is to reduce both consumption and birthrates in all segments of the global community at the same time.
It’s a zero-sum game if population drops only to see per capita consumption grow as a result. It is unfair to suggest that developing countries bear the burden of addressing both population and consumption without help — especially since most industrialized nations owe significant portions of their prosperity to the exploitation of people in developing countries, environments, and economies. Indeed, it is my belief that a global framework around population is required and should be largely financed by developed nations as a way of elevating the immediate plight of the poor while also helping them to leapfrog over the worst stages of industrialization, which all too often is polluting, wasteful and consumer oriented.
The cell phone revolution has shown that it is possible for countries to skip over conventional technological deployment and get benefits from an industry without as much ecological and industrial impact. As poor communities develop, if they can skip immediately to renewables without stopping along the way to build natural gas, coal, and nuclear infrastructure — we all benefit. If poor communities that face sanitation challenges around water and waste can skip over our obsession with indoor plumbing and flush toilets and build safe, elegant, and affordable composting-based systems — again all of us benefit. Our work with Living Buildings around the world has shown that it is possible to create the physical infrastructure that we need for all human activity without being tied to out-scaled resource-intensive systems that are socially and environmentally degrading.
The Challenge provides a framework not just for water, waste, and energy in the built environment, but for resiliency and self-sufficiency that can help sustain people and communities alike. More importantly, it provides a guide for corrective action so that developing countries do not have to repeat the mistakes of developed countries. By offering aspirational tools such as Living Buildings and Living Communities, we can show developing countries the folly of our old ways and
help them avoid some of the most brutal side effects of what we now recognize as outdated approaches. It is arrogant to suggest to developing countries that they not aspire to the level of comfort and safety that developed societies currently enjoy — Living Buildings, by being more beautiful, healthy and successful, show that leapfrogging is not a down-grade but the best idea forward.
Populations grow one newborn baby at a time, so tackling the topic must be explored on both the macro (global) and the micro (household) levels. Where, then, do children and families fit into the larger discussion of population? This is where things can get pretty interesting.
Let’s begin by recognizing that the cultural and social impact children have on our society — indeed, on our humanity — is priceless. I believe that children are foundational to the emotional and physical health of our communities, and it’s my belief that we continue to let down our most important assets through the design of our communities. Our children keep us youthful and hopeful, while giving us a tangible reason to improve the world around us.
Still, as a global family, we need to commit to having fewer children in all nations, rich and poor.
I must acknowledge that I myself have a large family, at least by zero-population growth standards. My wife and I have four children in our blended family, the oldest of whom I had the great privilege of meeting as a four-year-old when I met Tracy, and the youngest of whom came as a bit of a joyful surprise. Given the size of my household, some may say I am contributing to the population growth problem, especially since as Americans/ Canadians we statistically consume more than anyone per capita. Perhaps I am. But I don’t regret my personal decisions for a minute — my children continue to be the strongest motivator I have for the work I do in the environmental and social justice realms, and they have made my life immeasurably more enjoyable and meaningful. Who is ever to say that any specific children should not be born, or that people shouldn’t want to build a family and play a role in the great and wonderful thread of life?
Some worry that a lower national birthrate could adversely affect a country’s gross national product. But Japan, for one, is proving that theory wrong.9 In spite of a shrinking population with a proportionately large senior demographic, Japan’s GDP per capita is getting stronger. In the modern era that allows “workers” to stay productive well into their later years (thanks to a shift from agrarian to technology-oriented economic models), combined with advances in medical science that support healthy aging, there is less of a correlation between older demographics and GDP. Japan is teaching us that new paradigms reflecting current realities are possible. Many other of the leading GDPs in the world are countries where population rates are below replacement level.
Who is ever to say that any specific children should not be born, or that people shouldn’t want to build a family and play a role in the great and wonderful thread of life?
This isn’t a case of simply saying “Do as I say, not as I do”; the fact of the matter is that everyone needs to be part of the population discussion without judgment, guilt and shame — a lot of people are turned off exactly because they are positioned as part of the problem, and they automatically can’t live up to some “holier than thou” standard. Too easily, topics of population lead some to propose solutions based on judgment and discrimination that bring out the worst in humanity. In the same way that past societies stigmatized people without children, population solutions are also misguided if they stigmatize people who do have children or who want more of them. Seems like a conundrum — yet I believe actually it’s not.
Addressing population head-on, while respecting our innate and beautiful drive to procreate and bear wonderful, amazing children is not contradictory — it is in fact part of the magic of life.
Life is filled with issues that are not black and white, and this is one of them. My belief is that it is pressures unrelated to the biological drive to reproduce that have caused the most harmful population spikes around the world. In the majority of cases over the last century (really the only time where humans have overpopulated the earth except in small pockets), population increases in unhealthy ways due to man-made social, religious and economic inequities and injustices 6 — especially attitudes to-ward women and their place in society, and attitudes toward all people in situations where the few control the destiny of the many.7 Without these larger, negative societal influences, I believe we would do fairly well as a whole at regulating our population within carrying capacity.
Some worry that a lower national birthrate could adversely affect a country’s gross national product. But Japan, for one, is proving that theory wrong.9 In spite of a shrinking population with a proportionately large senior demographic, Japan’s GDP per capita is getting stronger. In the modern era that allows “workers” to stay productive well into their later years (thanks
to a shift from agrarian to technology-oriented economic models), combined with advances in medical science that support healthy aging, there is less of a correlation between older demographics and GDP. Japan is teaching us that new paradigms reflecting current realities are possible. Many other of the leading GDPs in the world are countries where population rates are below replacement level.
Creating and enforcing hard and fast rules about how many children are allowed by law — legislative, religious, economic or otherwise — for any particular family is not the answer. Draconian solutions that place all the blame for overpopulation on certain segments of the population are also not the answer. China’s one-child policy is a perfect example. Several decades ago, there was an understandable reaction to what the Chinese government saw as a convergence of coming social, economic and environmental crises driven largely by overpopulation. They enacted an unprecedented national policy to immediately address the situation. On a mathematical level, the one-child initiative has been a success — China’s growth rate has been greatly reduced even as the country, for a few more decades at least, continues to grow. 8 But the policy has also created some horrible side effects: gender, disability and ethnic biases; an imbalanced malefemale ratio; and a potentially top-heavy demographic with too few people available to care for a disproportionately large elderly population. In recent months, the policy has been relaxed, and more exceptions have been granted for replacement rate family size. Still, this institutionalized attempt to attack the problem provides a good case study of what does and doesn’t work, especially when compared to countries, such as many in Europe, that did not take such actions yet have achieved similarly significant population growth rate reductions and growth rates below the replacement level of 2.1 (refer to graphic on page 16).
6
7
8
9 globalpublicsquare.blogs.cnn.com/2014/01/20/is-japans-aging-population-a-good-thing
“ I brought you into a fertile land to eat its fruit and rich produce. But you came and defiled my land and made my inheritance detestable.”- Jeremiah 2:7
Getting serious about global population means first focusing on the plight of women and girls around the world. The places where women do not have control over their own bodies and are treated as secondary citizens to men are almost always the places where unhealthy population pressures exist. In places where women have full access to education, leadership and healthcare, birthrates have declined below the replacement rate in almost every case. In other words, the population problem is one of the most serious symptoms of a patriarchal society.
Too often, patriarchy-based religious beliefs push women to have more children than they want or can safely take care of. When they are educated and empowered,10 women as a whole make the smartest demographic and family planning decisions possible.11
Women, who carry the largest burden of bearing and raising children, are best equipped to make the majority of decisions in this area — and men, after centuries of abysmal decision making in this area, should cede leadership.
So, ironically, the best solution for population control is not to impose restrictions on birth — but to eliminate restrictions on women’s rights and reproductive health.
There are those who say that humans and the planet are adaptable; that we could never starve the environment to the point of starving our-selves; that we will find new food sources if things get so crowded here on Earth that we run out of the things we’ve always relied on. Bugs are full of protein; we can eat them, they say. All is well.
But all is not well. New food sources do not justify a human population that continues to swell beyond the bounds of
sustainability. Nothing does. It’s a zero-sum game. No matter how much energy and resources we conserve per capita, we are sunk if the “capita” keep growing.
Overpopulation is neither a developed or developing world problem. It’s a human problem. A messy, enormous, complicated human problem. Children are a beautiful, essential part of why it’s worth being human, and any solutions put forward must honor and support their well-being. Perhaps more tragic than the lack of attention paid to overpopulation is the lack of attention to the health and security of the children that are born each year in this world. We must take care of what we have, while we take care of how many we have.
I brought you into a fertile land to eat its fruit and rich produce. But you came and defiled my land and made my inheritance detestable. Jeremiah 2:7
Yet clearly there are simply too many of us, and every nation in the world must find its path to below replacement levels as soon as possible. Too many of any one species in any environment creates an imbalance within the web of life. We are no different. Nature, in its wisdom, always works to correct systems that are out of balance. My hope is that we, in our wisdom, can see the need to address population with ideas and policies of leadership before brutal corrections happen regardless of our intentions.
10 www.earth-policy.org/data_highlights/2011/highlights13 11 www.un.org/News/Press/docs/2011/pop994.doc.htm
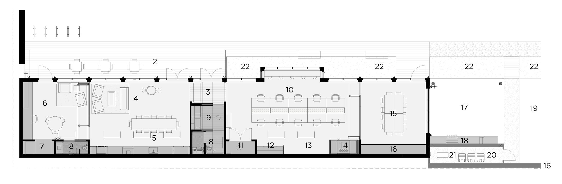
Revitalizing a Community Asset While Honoring an Historic Structure
McLennan Design Studio, Fort Ward, Bainbridge Island, WA
The Fort Ward campus had remained vacant and dilapidated for decades, suffering exposure to the weather and years of vandalism. The vision for the multi-phase project was to stop the degradation and revitalize these important historic structures. Reactivating the campus provides a vibrant community asset that can be enjoyed by an otherwise exclusively residential neighborhood.
The Barracks building was converted to a dormitory that housed the very first female cohort in the Navy, known as WAVESWomen Accepted for Voluntary Emergency Service. The smaller building facing it - now our new office - served as a garage and storage facility for the Barracks.
Fort Ward was established in 1890 and originally served as a US Army Coastal Artillery Corps installation. Up until it’s official deactivation in 1958, the site served both the Army and Navy. Rhombic antennas were installed on the Parade Ground during WWII, and the old post exchange/gymnasium building was converted into a top secret listening post code-named “Station S”. Inside “Station S”, men and women worked 24 hours a day, listening in on Japanese naval communications, which were transmitted in the Japanese Morse Code.
...for the project was to preserve and revitalize the historic integrity of the existing buildings and site from 1906 and 1911, which are on both the national historic registry and local historic registry.
The site consists of the Barracks building, the Stables building, and the courtyard space between the two. Phase 1 of the project saw the renovation of the Stables building into a flexible office and classroom space for McLennan Design. The renovation preserves much of the existing structure and
Design Studio
roof trusses, while upgrading the space into a fully equipped workplace and design studio. A generous kitchen and living room provides ample space for employees to relax and share meals together, while the open working area offers flexible work stations and a collaborative team environment.
Ample windows and skylights bring in natural daylight and offer views to the outdoors. The building exhibits a variety of sustainable features, including solar panels that generate more energy than the building produces, a 1,550-gallon cistern that captures rainwater from the roof to supply all of the project’s irrigation needs, in-floor radiant heating, a heatrecovery ventilator and efficient hydronic mechanical systems, and a continuous vegetated bioswale that filters stormwater naturally. With Phase 1 completed, efforts are underway for Phase 2, which involves the renovation of the larger Barracks building, expansion of the courtyard, and the restoration of the surrounding landscape.
A flexible, light-filled conference room provides a comfortable space for our team to meet and ideate together.
Red-List-Free
Expansive bi-fold doors that allow indooroutdoor connectivity.
All of the 58 original wood roof trusses were preserved .
LIGHT FIXTURES
Sustainably-crafted lights inspired by natural forms are featured throughout the space.
RAINWATER CISTERN
Landscape irrigation is provided by rainwater captured from the roof.
BIOPHILIC CARPET Mohawk carpets designed by MD are featured throughout the space, including these tiles inspired by Snowy Owl plumage.Adorned with awards, his wife Tracy’s artwork, Tin Tin memorabilia, scale models, drawings and artifacts from around the world, Jason has created his perfect work environment for design inspiration.
Peppered with modern classics, the office furniture was selected to provide a variety of comfortable and flexible spaces for working and conversing.
Holiday potluck feasts offer an opportunity to celebrate the wide array of cultures and cuisines represented by our team!
We love to gather as a team and there’s no better place to do it than our amazing kitchen. The nearest lunch location is at least 10 minutes away, so every day the team brings their leftovers or well-crafted sandwich to the table.
Electric sit-stand desks offer flexible workstations for maximum working comfort.
LOOK WHERE WE STARTED!
HUDSON BAY TRADING COMPANY INSPIRED CANOE
Old-growth Douglas fir salvaged from the Barracks floor joists serve as perfect shelves!
Bespoke rolling dividers offer privacy, storage space, and host interior plants for a biophilic touch.
Open, full of light from tall windows and skylights, the office provides the ideal collaborative working space for McLennan team members.
MOHAWK CARPET Award-winning, Red-List-Free carpet lines from Mohawk - designed in collaboration with McLennan Design - perfectly compliment the studio aesthetic.Water is captured in our cistern and all food waste is placed in our composter.
Another amazing place to gather, either for lunch or a meeting or a quiet place to take a phone call amongst lush trees and chirping birds.
Native plants were carefully selected to ensure weather durability and sustainability. Ferns, lavender, snowberry, and other groundcover are among the dozens of native species selected for the Phase 1 landscaping.
Every year Perkins&Will holds an internal firmwide design competition aimed to stimulate fresh approaches to big ideas and identify rising stars at the company. This year’s submission from our Bainbridge Island studio team was honored with a Merit Award for their regenerative approach to the design prompt!
Libraries remain keystones of community, Where minds converge in unity and foster opportunity. In this age of relentless digital pace, They stand as havens, where wisdom finds space.
eConnect through technology, accessible to all, Empowering minds and breaking down walls. With digital resources at hand here Access to knowledge is no longer austere.
disConnect from screens, embrace biophilia's call, Find solace in nature's green, amidst the urban sprawl. In lush retreats where tranquility thrives, Away from the clamor, let the soul revive.
reConnect with community, engage in civic discourse, Cultivate unity, where ideas find their source. A space for minds to freely explore, And wisdom to flourish, like never before.
Preserve the building's essence, its history, its grace, Retrofit for the future, ensuring it finds its place. An architectural marvel, with stories to spare, Adapting to change, create a place for ALL to share.
This year’s prompt was to imagine the Library of The Future. Responding to the ever-changing needs of our increasingly digital lives, competitors were invited to explore how the San Francisco Main Library could reinvent itself by 2049 to stay relevant, promote community and innovation, and solidify the library’s role as an essential place in the communities of the future.
Libraries serve as indispensable spaces where individuals of all backgrounds can empower themselves, reshape their narratives through education, and forge connections through shared resources. Despite the rapid integration of technology, libraries have maintained their relevance, exhibiting agility and resilience in response to cultural, civic, and environmental shifts.
Our thesis contends that in the forthcoming decades, libraries will emerge as even more essential social destinations, catering to multifaceted needs such as education, recreation, personal enrichment, and cultural engagement.
Rather than opting for demolition, we advocate for the adaptive reuse of newer buildings, thereby extending their lifespan and setting a precedent for sustainable practices in library design. This approach not only preserves architectural assets but also reinforces the vital role of libraries as inclusive community spaces for present and future generations.
Transparent interior program blocks allow visibility and daylight deep into space, and provide clearer wayfinding
The envisioned San Francisco Library of 2049 serves as a vibrant center for community engagement and education. With a focus on accessibility, visibility, and transparency, the design integrates daylighting throughout the floors. Enhanced biodiversity is achieved through pollinator xeriscape gardens and water treatment planters, ensuring 100% on-site water treatment. Moreover, the project revitalizes pedestrian areas by repurposing existing roadways into seamless public parks and recreational spaces.
“I
In 2049 the streetscape around the library is tranformed into an ecologically abundant learning landscape that also provides natural water treatment, pollinator habitat, gardens, and recreational space.
Embodied Carbon
64% by reusing the existing library structure
Operational Energy
81%
Design case (excluding PV) net pEUI = 19.6kBtu/ft2/yr
Base case = 104kBtu/ft2/yr
LEVEL 5
EXCELLENT PRACTICE according to Perkins&Will EUI guidance document
Onsite Renewable Energy
583.4kW
sized DC system roof top PV results in total of 87% reduced pEUI including PV
Replicability
1500+
Carnegie libraries across the USA that can be similarly retrofit for 2049 needs
Heating dominant climate with Dry Bulb
Temperature between 35.6˚ F to 91˚ F
Mean temp. projected to rise by 2.7˚ to 3.6˚ F
Prevailing wind direction is from West across the year
Unusual precipitation rate with drought patches to be continued in future Mean annual precipitation 212 inch
With up to 5ft sea level rise by year 2100, the site and surrounding area stays above the sea level and is safely habitable. Source: Sea Level Rise Viewer, NOAA
Tight envelope with very low air leakage rate. Highly-insulated envelope to reduce heat exchange
Window to Wall Ratio
Increased WWR to 50% on south facade to increase passive solar heat gain with small shades to protect in summer
Space volumes design to increase natural light penetration and provision of skylights to reducartificial lighting load
Red-list free materials with low Volatile Organic Compounds and low Embodied Carbon Materials
and Appliances
Highly efficient LED lighting fixtures and Energy Star rated appliances
Rain water harvesting for irrigation Low water use plumbing fixture Grey water reuse
Bioswale Water
System
High-efficiency Air Source Heat Pump with COP > 3.7 Dedicated Outside Air System with 86% Heat Recovery Ventilation
Conversational nooks and spaces for connecting with friends
A library provides multi-use meeting facilities in high-tech
The library in 2049 becomes a robust community center that resiliently responds to new technology, cultural trends, norms of living, workplace shifts, and societal needs and relies on it’s librarians, staff, and community to engage and adaptively transform itself to serve the city.
“The librarians and consultants are so helpful!”
“Wow...I want to learn more about marine biology now!”
“I’m making a prototype product for my online store!”
The library hosts a variety of programs for the public!
The library in 2049 embraces life andfar more than just a building that stores books - becomes in-and-of-itself a pedagological immersive teaching and learning environment for all ages!
“I want to go see the giant trees and help steward them too!!!”
A library that leverages latest tech and tools to enhance educational experiences!
In 2049 the library atrium is transformed from the existing space into an abundant life-filled biophlic indoor environment!
“Yeah! I come here weekly to get work done, it’s the best!”
“I love the programming and community here!”
A library that remains vital and integral to the surrounding community for decades to come!
Spaces for startup shops, family business, and pop-up retail activates the ground floor!
A library that never neglects people but prioritizes the humanto-human connection ever so vital to creating a world in which we all have shared lives and can learn, encourage, comfort, and inspire each other!
Balconies, rooftop plaza, sun rooms, and nooks allow people to have solitude in space surrounded by biophilia in the middle of the city!
Each floor provides versatile space for learning, connecting, and community needs.
Atriums are transformed into indoor oases that clean air, treat water, and add biophilia!
“This is the best library to work at and help people!”
Stairs and circulation are celebrated, providing opportunity for activity throughout the library!
“This building has the cleanest air quality in San Francisco!”
“Mom! These plants clean 100% of the building’s water!!!”
A indoor living machine helps the building achieve LBC Petal Certification!
“My favorite part of this library is this botanical garden!”
The significance of natural light goes beyond mere aesthetics; it is often essential to occupants’ lifestyles and overall well-being. As highlighted in Christopher Alexander’s influential work, A Pattern Language, “occupants tend to gravitate towards rooms illuminated by natural light on two sides”. As the author asserts, the arrangement of daylight within a room is fundamental, often dictating its success or failure in meeting occupants’ needs and aspirations.
by Reza TakallouieArchitects often grapple with the challenge of integrating daylight into buildings, seeking to cultivate healthy and engaging environments while mitigating reliance on artificial lighting and its associated energy demands and reducing unwanted heat gain and glare. This practice, known as daylighting, extends beyond mere orientation towards the sun and the installation of windows. It is a meticulous and scientific pursuit, necessitating comprehension of solar geometry, local climate conditions, ideal materials, and site characteristics to harness the sun’s energy optimally as well as a detailed assessment of user needs within each space.
Multiple quantitative studies have analyzed the advantages of integrating natural daylight into office settings, assessing its effects on both human health and energy efficiency. Comparative studies of welldaylit offices have shown performance improvements ranging from 10% to 25% 1 , reductions in Circadian and sleep disorders by 5% to 10% 2 , and in some cases energy savings of over 15%3 .
The HMTX World HQ (otherwise known as the ‘House Up On The Hill’) incorporates a diverse range of sustainability measures to fulfill its ambitious standards, proving that a modern design inspired by Bauhaus design principles where form is derived by function, can coincide within a deeply biophilic and deep green philosophical framework. The project has been recognized as the Greenest Building in the State of Connecticut for its sustainability endeavors and was honored with a Metropolis Planet Positive Award in 2023. Daylighting strategies are one of the key sustainability elements of HMTX, contributing both to the overall energy efficiency of the building and to the dynamic experience of moving through it. Let’s examine these aspects more closely.
1 • Heschong, L. (2002). Daylighting and Human Performance. Living Daylights. https:// www.livingdaylights.nl/wp-content/uploads/2016/12/Heschong-2002.-Daylighting-andHuman-performance..pdf
2 • Thayer, B.M. (2007). Daylighting and productivity at Lockheed. Solar Today, 9.
3• Pilechiha, P., Mahdavinejad, M., Pour Rahimian, F., Carnemolla, P., & Seyedzadeh, S. (2020). Multi-objective optimisation framework for designing office windows: quality of view, daylight and energy efficiency. Applied Energy, 261, 114356-. https://doi.org/10.1016/j. apenergy.2019.114356
The project massing is oriented in a long bar running north-south, so optimizing E-W exposure required careful consideration in order to control glare and reduce unwanted heat gain. In order to block the glare, noise, and unsightly views of the adjacent highway, the building’s western facades were kept primarily opaque, and the majority of the project’s windows focus northward or southward.
While the western façade was mostly left opaque, the glazed east facades and stair volumes are protected by vertical shading elements to minimize glare and heat gain in the early hours of the day while still allowing some “plays of brilliance” in the form of sun reflecting off of shading fins – and in the winter, allowing for early morning “warm up” of the facility.
Taking advantage of ideal solar exposure, each of the generous south-facing windows are shaded by solar canopies above. These canopies harness solar energy to produce electricity and provide shade and shelter to optimize solar radiation exposure inside the building. Also, the two “stair towers” undergo partial conditioning and experience a broader range of temperature fluctuations. Nevertheless, prioritizing effective sun control measures remained imperative in our considerations.
Thoughtful architectural design that integrates daylighting can significantly enhance the quality of indoor spaces while also promoting energy efficiency and sustainability. Following these good daylighting principles, nearly every interior space receives daylight from at least two sides, with the majority offering views and daylight on three or more sides. This maximizes the quality of each space and provides a pleasant experience for the office staff, improving their health and the building’s energy efficiency. It also serves to develop a deep-rooted connection to the landscape beyond, allowing building occupants to feel nestled amongst the tree canopy and be constantly connected to nature and views outdoors.
The Archive space is flooded with natural light thanks to windows on all sides, and even from skylight monitors in the roof.
In the HMTX project, roof monitors illuminate and ventilate the interior, creating a comfortable and inviting atmosphere. With motorized openings, these south-facing skylights ensure a balanced spread of daylight, enhancing sustainability and occupant comfort. They exemplify HMTX’s holistic approach to sustainable design and maximizing the benefits of natural daylight.
Motorized south-facing skylights not only contribute to improving daylight but also help natural ventilation within interiors.
Skylights bring more daylight deeper into space to provide
HMTX is a great example of featuring biophilic finish materials throughout the project to improve the project’s connection to nature. One of the outstanding interior features is a 12-foot-tall living wall and thoughtful daylight integration found in the third-floor workspace, which boosts the quality of space for occupants and increases workplace productivity. Lit from above by a concealed skylight, the naturally daylit green wall washes the whole space in winter with direct light centering the plants.
In the pursuit of sustainable and human-centered architecture, daylight analysis emerges as an indispensable tool, as exemplified by the innovative strategies employed in the HMTX HQ. By meticulously orchestrating the interplay of natural light with architectural elements, from building orientation to shading systems and interior design, HMTX demonstrates the profound impact of daylighting on both building performance and occupant well-being. Beyond mere aesthetics, daylighting fosters a symbiotic relationship between indoor spaces and the surrounding environment, promoting energy efficiency, enhancing productivity, and nurturing a deeper connection to nature. As we continue to navigate the challenges of urbanization and climate change, integrating daylight analysis into architectural practice becomes not only a marker of excellence but a moral imperative, heralding a future where buildings not only sustain life but enrich it, embodying the harmonious fusion of form, function, and human experience.
Our Bainbridge Island team is thrilled to be partnering with the PW Minneapolis studio on an exciting new higher education facility for Winona State University! The Center for Interdisciplinary Collaboration, Engagement, and Learning (affectionately known as CICEL) will be a brand-new building hosting four different university programs and providing state-of-the-art classroom, lab, and administrative spaces.
In addition to engendering a robust, collaborative, cross-discipline mixing of the various university programs, the project is setting ambitious sustainability goals – targeting NetZero Energy status and setting a stretch goal of becoming the first Living Building project in the state of Minnesota!
Located on the historic 1,200-acre Wilton Farm in Henrico County, Virginia, the Center for Environmental Science and Sustainability (CESS) seeks to provide an immersive nature-based learning environment for public school children throughout the surrounding county. Targeting Living Building Challenge certification, the project is hoping to set a new benchmark for regenerative design in the region, pursuing ambitious energy and water efficiency goals and offering a world-class learning experience for all students and visitors alike. With access to hundreds of acres of healthy forest, creeks, and the iconic Whale Lake, the project will be nestled in the landscape to fully engage with the natural environment and provide abundant outdoor learning opportunities. This project will be a collaboative partnership between Bainbridge Island and North Carolina studios.
It might not be hard to believe that the McLennan Design team members are passionate world travelers, gaining inspiration from all parts of the globe and enhancing their approach to design.
ATACAMA DESERT | Northern Chile (Stephen Gibson)
The Atacama Desert in northern Chile is the driest non-polar desert on earth. It receives less precipitation than polar deserts, yet it is far from lifeless. Over 500 species of plants have evolved to survive in the Atacama, ranging from herbs and flowers to cacti. High-altitude salt lakes attract many types of birds, including three types of flamingos. Animal life ranges from small rodents and reptiles to guanacos and vicuñas, the wild relatives of llamas. The landscape and life of the Atacama combine to make a place that is stunningly beautiful.
CEZKY KRUMLOV | Czechia (Jay Torrell)
Cezky Krumlov in Czechia, south of Prague near the Austrian border is the stuff of Disney fairy tales. A stunning castle surrounded by matching European orange rooftops, a curling river with bridges, waterfalls, cold beers in outdoor cafes on cobblestone streets and endless walking paths.
ADDIS ABABA & WELKITE | Central Ethiopia (Johanna Collins)
My trip to Ethiopia has been life changing. I love the people, culture, food and of course the coffee ceremony, always paired with popcorn!! Should you find yourself in Addis Ababa, make sure to stop for a cup of coffee at Black Lion Coffee! Working closely with the children and their parents in Welkite, has made me want to make an impact, do good and make a difference, as an Architect.
LONDON | England (Joanna Jenkins)
The top left photo shows the ornate cornice and Corinthian column caps at one of the buildings at the Old Royal Naval College in Greenwich, London England. This is a UNESCO World Heritage site that has played a role throughout 600 years of British history. Designed by architect, Sir Christopher Wren, the multiple buildings on this campus in London once serves as the Royal Hospital and a Royal Naval College.
PARO | Bhutan (Kishore)
Paro in Bhutan, a beautiful valley town covered in fog, sits amidst contrasting deep green mountains. It is also home to several sacred sites and Buddhist monasteries. Paro Taktsang (Tiger’s Nest), a monastery hanging off a cliff at 10,000ft above ground, is one of the most beautiful pilgrimages one can take.
CINQUE TERRE | Italy (John Nelson)
Winding pedestrian-scale streets and colorful buildings, all leading to the sea with endless places to stop for a cold one or great food.
MURANO & VENICE | Italy (Phaedra Svec)
I had a mid-life adventure training with glass masters in Murano and Venice. It was not a pilgrimage, nor a tourist visit, but rather a chance to blend into life on the island. I could drink the drinks and eat the food and be with local people. Every day I could wave at the children riding home from school on their scooters. I made new friends from around the world united by a love of glass arts.
REDWOODS | California (Aayushi Mody)
I visited the Redwoods with my family in 2024. Prior to our visit, I read all possible things on the Internet about Redwoods, but nothing does justice to the beauty and magnificence of these trees! Mentally visualizing these beautiful trees was nothing in compared to visiting them and experiencing them! Being in the presence of redwood trees evokes a deep sense of connection to the natural world. Their immense size and ancient presence reminded me of my very tiny existence in this larger ecosystem and the interconnectedness of all living beings. It made me feel humble, grateful and well connected.
BRUGES | Belgium (Galen Carlson)
Every bit as charming as you may have heard, Bruges is a gorgeous little Belgian gem, filled with colorful townhouse rows along misty canals, historic castles and cathedrals, and the best beer selection you may ever find! I loved rising early and sketching the canals in the morning fog.
This historic Persian garden in the heart of Iran’s central desert features a striking windcatcher tower and a tranquil reflecting pool. The UNESCO World Heritage site showcases the ingenuity of traditional Persian architecture in using passive strategies to cool and ventilate the building, offering visitors a glimpse into Iran’s rich cultural heritage.
Mexico City is one of the most colorful, vibrant, and interesting cities I’ve ever visited. The street food, the outdoor cafés, and the markets are bustling with activity and flavors. The culture is rich with museums, art galleries, and indoor and outdoor flea markets. Everyone seemed to be happy and singing, from the boy selling tamales on his bicycle, to the garbage men, loved CDMX!
his issue of Love and Regeneration is being dedicated to my friend and fellow green warrior, Lynne Barker, who passed away this year. I recently attended a moving celebration of life filled with friends, colleagues and family who remembered her so fondly.
Lynne played an important role in the early days of the green building movement in the Pacific Northwest – including helping to found the Cascadia Green Building Council, which later became the Living Future Institute. Lynne worked for many years within the City of Seattle’s green building program – a pioneer in the industry of municipal sustainability leadership, and went on to similar roles including with the City of Reno, NV, as well as supporting Ecodistricts for a couple years. Lynne also served on the Board of Directors of the US Green Building Council and for many years was one of the most vocal and active champions for changes in how design and construction happened in the PNW and nationally, helping to advocate for the adoption of LEED in its early years in the market.
While I had originally met Lynne through the US Green Building Council in the early 2000s, I first really got to know Lynne when I was hired to lead Cascadia in 2006. For the next few years we found several occasions to collaborate. Lynne was a force of nature and a fierce and vocal proponent for positive change that I admired greatly. She and her colleagues within the City of Seattle – almost all women - led the charge nationally for how local governments can incite change. It was an inspiring time and one that sorely misses her energy and fortitude. When I launched Living Future she was supportive and encouraging, which I always was thankful for, as Lynne was a powerful person to have in your corner.
I very much appreciated her friendship and leadership and this spring it was sad to learn of her passing. Lynne – we will keep up the fight in your honor!
My dear friend – you will be missed.
- Jason F. McLennan“Lynne was a relentless champion for the green building movement, she always ensured we upheld our values and mission and always committed to a philosophy of “work hard , play hard, give back “, she left an impression on everyone she touched.
I think its fair to say that she truly did change my life… I miss her.”
- Kevin Hydes, Former Chair of the USGBC, World GBC IntrobaIf ever there were a spring day so perfect, so uplifted by a warm intermittent breeze that it made you want to throw open all the windows in the house and unlatch the door to the canary’s cage, indeed, rip the little door from its jamb, a day when the cool brick paths and the garden bursting with peonies seemed so etched in sunlight that you felt like taking a hammer to the glass paperweight on the living room end table, releasing the inhabitants from their snow-covered cottage so they could walk out, holding hands and squinting into this larger dome of blue and white, well, today is just that kind of day.
Mural at Condon Hall, Comotion Labs University of Washington, Seattle, WA Cory Bennett Anderson & Josh Fisher
Founded in 2013 by global sustainability leader and green design pioneer Jason F. McLennan and joined by partner Dale Duncan, the firm dedicates its practice to the creation of living buildings, net-zero, and regenerative projects all over the world. As the founder and creator of many of the building industry’s leading programs including the Living Building Challenge and its related programs, McLennan and his design team bring substantial knowledge and unmatched expertise to the A/E industry. The firm’s diverse and interdisciplinary set of services makes for a culture of holistic solutions and big picture thinking.
In July 2022, McLennan Design merged with global architecture and design firm Perkins&Will to accelerate and scale up decarbonization. One of the world’s leading multi-disciplinary regenerative design practices, McLennan Design focuses on deep green outcomes in the fields of architecture, planning, consulting, and product design. The firm uses an ecological perspective to drive design creativity and innovation, reimagining and redesigning for positive environmental and social impact.
Jason F. McLennan is considered one of the world’s most influential individuals in the field of architecture and green building movement today, Jason is a highly sought out designer, consultant and thought leader. The recipient of the prestigious Buckminster Fuller Prize, the planet’s top prize for socially responsible design, he has been called the Steve Jobs of the green building industry, and a World Changer by GreenBiz magazine. In 2016, Jason was selected as the National Award of Excellence winner for Engineering News Record - one of the only individuals in the architecture profession to have won the award in its 58-year history.
McLennan is the creator of the Living Building Challenge – the most stringent and progressive green building program in existence, as well as a primary author of the WELL Building Standard. He is the author of seven books on Sustainability and Design used by thousands of practitioners each year, including The Philosophy of Sustainable Design. McLennan is both an Ashoka Fellow and Senior Fellow of the Design Future’s Council. Jason serves as the Chief Sustainability Officer at Perkins&Will and is the Managing Principal at McLennan Design.
1580 Fort Ward Hill Road
Bainbridge Island, Washington 98110
perkinswill.com/studio/bainbridge-island
1475 Walnut Street Kansas City, MO 64106
perkinswill.com/studio/kansas-city