
10 minute read
Pop Whalen Ice and Arts
from TheLaker_April_22
by The Laker
Pop Whalen Ice and Arts Center

Advertisement
By Rosalie Triolo
Remember when The Pop Whalen Ice and Arts Center located on Pine Hill Road next to the Abenaki Ski Area was an outdoor ice-skating rink? Whether actively skating, or watching from the sidelines, the bitter cold air and blustery winds were, at times, a test of one’s level of endurance. In 1987 the outdoor rink was built using steel framing enclosed with un-insulated metal walls. The metal roof was insulated. The building provided skaters and spectators shelter from the outdoor elements and icy temperatures. Three years later the addition of a heated front lobby was constructed to include high school locker rooms, restrooms, a snack shack, and a warm area for hockey fans to watch games.
Today, for those fans wanting a closer look at the game, there are two choices in the unheated area: sitting on one of three sets of 3-tiered bleacher benches or standing directly behind the protective dasher boards and plexiglass barriers. Whether sitting or standing, the nearer one gets to the ice the colder the temperatures.
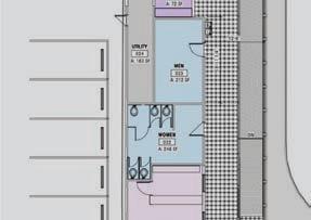
Who was Paul (Pop) Whalen and why was an ice center named for him? A positive infl uence on many youths’ lives, “Pop” was a coach, mentor, father fi gure, friend, and loved the game of hockey. During his high school years at Medford High School in Massachusetts, Pop played varsity hockey. After graduating in 1945, he served in the Floor Plan for the updated Pop Whalen Ice and Arts Center. Photo Courtesy Friend of Pop Whalen










US Navy. Four years later he entered Boston University, a 22-year-old freshman. During his four years at Boston University Pop was named an all-star center and MVP for BU’s win over Eastern College Title. After graduation he played with the Berlin Maroons and the Laconia Lakers of the Granite State Hockey League.
Arriving in Wolfeboro in 1954, with his wife by his side and diploma in hand, he taught for the next 17 years at Brewster Academy. He was instrumental in the revival of Brewster Academy’s hockey program winning the Lakes Region Title 11 of his 16 years as coach.
After leaving Brewster Academy he moved to Maine and Berwick Academy where he was a member of the faculty and coach of Berwick Academy’s hockey team. Throughout his years with Berwick Academy, the hockey teams became renowned for winning four Lakes Region League titles, two New England titles and a 1974 NE Junior A title with a #4 national ranking. After a brilliant thirty-six-year career as educator and coach of winning hockey teams, Paul (Pop) Whalen retired in 1990. He died on October 10, 2008.
In 2019, realizing the need for expansion and renovation, a volunteer 501(c)(3) non-profi t organization, Friends of Pop Whalen was established. Their goal “to enhance and preserve” the Pop Whalen Ice and Arts Center, thereby creating a year-round (four-season) venue. Instead of opening from mid-October and closing the
• Pop Whalen
continued on page 4

COZY CABIN RUSTICS COZY CABIN RUSTICS

—FURNITURE & MATTRESSES— —FURNITURE & MATTRESSES—



FREE Local Delivery & Setup
Cozy Cabin Rustics

-Furniture & Mattresses-
PLYMOUTH
599 Tenney Mtn. Hwy. 603-238-3250
Mon-Sat 9-5 / Sun 10-5
MEREDITH
312 Daniel Webster Hwy. 603-279-1333
Mon-Fri 9-5:30 Sat 9-6 / Sun 10-5 OPEN DAILY • COZYCABINRUSTICS.COM
Smiley Publishing Group, LLC dba Panoramic Publishing Group/The Laker
P.O. Box 119, Wolfeboro Falls, NH 03896 603-569-5257 in NH 1-800-339-5257 FAX 603-569-5258
pressreleases@thelaker.com • lkr@thelaker.com • www.thelaker.com
This newspaper assumes no fi nancial responsibility for typographical errors but will reprint that part of an advertisement in which the typographical error affects the value of same. Advertisers will please notify the management immediately of any errors which may occur.
All rights reserved. No reproduction in part or whole without expressed written consent. PUBLISHER
Dan Smiley

ADVERTISING Phil Ouellette Maureen Padula
EDITOR Bob Hartnett
PROD. MANAGER/GRAPHIC DESIGN Gina Lessard
603.279.7921
Make A Splash!
WE ARE THE EXCLUSIVE LAKES REGION DEALER FOR...




CUSTOMER 5 STAR RATED!



SALES • RENTALS • SERVICE • VALET • STORAGE • BROKERAGE
Since its inception, the Great Waters Scholarship Program has contributed fi nancial assistance to music students in the Lakes Region, helping them on their journey to connect their talents with the needs of the music world. In the summer of 2021, the program was re-named the Barbara and David Lobdell Scholarship Fund in honor of a couple who have served the organization in a variety of roles over the past twenty-fi ve years. The scholarship program is funded in part through the generosity of donors including the Nancy P. Marriott Foundation.
Applications are now being accepted from New Hampshire residents enrolled in high schools located in Wolfeboro, Alton, Gilford, Meredith and Moultonborough who have an interest in pursuing a career in the support of the performing arts or music education. Students from those same towns already enrolled as college undergraduates or graduate students may also apply. The 2022 application can be found on the Great Waters website https://greatwaters.org/community/. Scholarship recipients are announced in May and will be honored at one of the Great Waters concerts this summer.
Great Waters is a non-profi t organization that has been bringing music to the Lakes Region since 1995. Great Waters celebrates the performing arts with programs that satisfy every palate. From Broadway to Comedy, to Rock and Roll, Classical and Folk, Great Waters brings something for everyone to enjoy. Its Concerts in the Clouds series is held on the grounds at the Castle in the Clouds in Moultonborough, and this coming season the Concerts in Town series located in Wolfeboro will be announced shortly. More information about Great Waters can be found at www.greatwaters.org or by contacting Executive Director Doug Kiley at 603-569-7710.
• Pop Whalen
continued from page 3
end of March, the Friends of Pop Whalen envision the Ice and Arts Center as a “self-sustaining year-round, multiuse facility.”
By adding accessibility and comfort, “Every fan and family member will have a comfortable spot with a view to cheer on their favorite team and player.”
For greater effi ciency and greater venue, “Reducing the cost to operate the building only makes sense as we envision a year-round schedule with more activities and events for families and guests in our community.”
Whether you visit the building in person or take a YouTube “Wolfeboro Parks and Recreation 2022 Pop Whalen Tour” guided by Christine Collins, Director of Wolfeboro Parks and Recreation, the glaring need for renovation, expansion, and a dehumidifi cation system are quite evident.
A leaky roof and condensation cause building deterioration, mold, and create skating safety issues. Buckets are placed on the ice rink to catch roof leaks resulting from dripping rainwater and snow-melts. When outdoor temperatures climb to 40 or 50°F, there is a build-up of condensation on the plexiglass barrier surrounding the rink. The ice softens creating a safety issue for skaters. Noticeable ceiling patches cover the missing roof insulation due to roof leaks. Holes in the insulation are evidence of puck damage.
Not only do the existing 3-tiered metal bleachers not provide suffi cient seating, but they do also not meet the current codes for ADA accessibility. Guardrails are not provided.
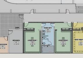
Currently the home teams of Kingswood High School and Brewster Academy each have their own heated locker rooms with showers and bathrooms. The four small heated changing rooms, two of which are used by visiting teams, are sparsely equipped only having benches on three walls of the room and one row of hooks on a wall above a bench for jackets. There are no lockers, no showers and no bathrooms.
The Pop Whalen Ice and Arts Center is also home to The Lakes Region Curling League. More space is needed for their equipment.
Every inch of available space in the building is utilized to capacity.
In addition, the “Pop” hosts the She Wolves Women’s Hockey, Sr. Men’s League (for 40 and over), and the Lakes Region Curling League. Public skating hours are offered for (Lap Skating, Stick Practice and Public Skate). Since the Public Skating times may change, it is advisable to check the daily schedule.
According to the Project Summary and Business Plan prepared by The Friends of Pop Whalen in Conjunction with the Town of Wolfeboro: Regarding Lockers – “Two new varsity locker rooms for Kingswood High School plus two for Brewster Academy would be added. These locker rooms would be slightly larger to accommodate the larger team sizes and would have private showers. Both Kingswood and Brewster would pay any additional fi tup necessary to customize the locker rooms and would also operate under the Memorandum of Understanding with the Town of Wolfeboro regarding operation and ongoing maintenance. There would be four locker rooms added for use by Back Bay Hockey, adult leagues and visiting teams.”
“The Electrical system had been modifi ed many times over the years and needs upgrade to bring it into compliance with the applicable safety codes. Lighting upgrades and other energy effi ciency items were not considered at the time of the original pricing.”
As written in the Wolfeboro 2019 Master Plan, “The arena roof is in need of considerable repair and insulation. Interior air circulation is inadequate causing high summer humidity along with mold growth and extra labor spent in scraping the concrete fl oor surface. Potential for year-round operation of the arena (ice sports in winter, antiques & craft shows and other events in inclement weather) is possible and should be planned for.” “The Pop Whalen Ice Arena has the potential for becoming an important element in the Town’s drive towards a four-season economy.”
Taking all the renovations and expansions into consideration, a Deliberative Session was held on February 8, 2022 at the Kingswood Arts Center to discuss Warrant Article #11. Pop Whalen Ice and Arts Center Renovation and Expansion Project (Bond). It had been recommended by the Board of Selectmen with a vote of 4–0, and by the Budget Committee with a vote of 8-0. On March 8th, Wolfeboro voters went to the polls and voted YES passing the Renovation and Expansion Project by a majority of 68%.
For more information call the Department of Parks & Recreation at (603) 569-5639.
Pick Up Your Copy of
Dining Out in the Lakes Region Available Now at Hundreds of Locations around the Lakes Region!
www.diningoutnh.com WINTER 2021-2022
1 COMPLIMENTARY
Dining Out in the Lakes Region

Spring Hours:

Tuesday through Saturday 9:30 to 5 Closed: Sunday, March 20 through Monday, April 4. Reopen Tuesday, April 5. Serving the Lakes Region since 1975 with fi ne art and custom picture framing. 9 North Main Street Wolfeboro, NH 603 569-6159 www.theartplace.biz








