Rouse Hill Precinct Plan

Page 1


Precinct Plan

Rouse Hill Strategic Centre

A Plan to position Rouse Hill as a competitive mixed use centre that offers a range of residential, employment and lifestyle opportunities for the rapidly growing North West Region.

November 2023

The Rouse Hill Precinct Plan was adopted by Council on 28 November 2023, Minute No. 531.

Disclaimer

Every reasonable effort has been made to ensure that this document is correct at the time of printing. The Hills Shire Council disclaims all liability in respect of the consequences of anything done or omitted.

The indicative outcomes and planning controls identified within this Precinct Plan are for information purposes only to provide context. In some instances, they simply portray the types of outcomes that are currently being sought by landowners and developers through the relevant application process. In other instances, imagery has been used to assist in communicating the potential outcomes that may occur in the future, in accordance with the vision articulated within this Plan.

The images contained within this Precinct Plan have been included as a part of the analysis for this Plan, which is a study and review of development within the Precinct. These images are publicly available in the respective applications and have been referenced accordingly in this Plan.

Images within this document should not be taken to be final products or outcomes that have been endorsed or approved on any site (either formally or implicitly by way of their inclusion within this document). All future development will be subject to the relevant approval processes set out under the Environmental Planning and Assessment Act 1979 (including planning proposals and/or development applications) and detailed consideration and determination by the relevant planning or consent authority.

Copyright Notice

This document represents the collaboration of information from a number of sources, including Government plans and policies, and plans and policies of The Hills Shire Council in addition to on-site investigations. This document may be reproduced for personal, in-house or non-commercial use. Reproduction of this document for any other purpose shall only be permitted with the written permission of The Hills Shire Council.

How To Read This Document

1. Executive Summary

Introduces the Rouse Hill Strategic Centre and summarises the key vision and outcomes of the Precinct Plan.

2. Precinct Analysis

Provides an overview of the Rouse Hill Strategic Centre, introduces the Study Area, strategic planning context and relationship to other work. It also considers demographic and economic trends along with analysis of the built and natural environment.

3. Vision

Sets the guiding principles and vision that will inform future development within the Rouse Hill Strategic Centre.

4. Focus Areas and Structure Plan

Examines specific focus areas and provides a structure plan, growth projections, actions and phasing to guide future outcomes.

5. Infrastructure

Investigates current infrastructure, expected demand and additional requirements to respond to growth within the Rouse Hill Strategic Centre.

6. Implementation Plan

Sets out an approach to implementation, identifying actions and responsibilities.

Appendix A

The Precinct Plan is supported by acronym and glossary lists, along with an overview of assumptions, provided as Appendix A.

Front Cover Image:
Rouse Hill Town Centre
Artist’s Impression of Rouse Hill Streetscape (Source: Cox Architecture)

1.1 Vision for the Rouse Hill Strategic Centre

This Precinct Plan sets the framework for Rouse Hill to grow into a thriving regional destination and mixed use Strategic Centre, with employment opportunities to match the needs of local highly skilled residents. The vision for the Centre builds on previous strategic work by Council and the NSW Government as well as technical investigations focused on the Shire’s centres that provide insight into their unique features, role and function in the region. It advances the planning into finer grain, site specific detail to inform potential changes to planning controls and the infrastructure framework, which can occur as the market demands, with the support of appropriate infrastructure.

By 2041, Rouse Hill Strategic Centre will be a prime destination for knowledge intensive businesses focused on health, education, science, technology, finance and advanced manufacturing. Business will enjoy the proximity and ease of access to complementary services and facilities at the nearby Castle Hill and Norwest Strategic Centres and the economic competitiveness offered by enhanced connections to Sydney CBD, Greater Parramatta and the Western Sydney Airport. Rouse Hill will be a key part of a linked network of Strategic Centres and prominent office markets that spans across the Sydney Region and will offer a range of employment opportunities suited to the highly skilled workforce that lives in The Hills Shire and rapidly developing North West Growth Area.

Over the next 20 years the Rouse Hill Strategic Centre will grow into a location valued by workers, residents and visitors for its vibrancy and amenity. Capitalising on the opportunity to master plan large undeveloped parcels of land near the Metro Station and T-way Interchange, Rouse Hill will become a walkable centre with high quality well designed buildings at its core. In addition to hosting a new public hospital and health hub, the Strategic Centre will provide appealing and safe places to shop, dine, socialise, live and enjoy cultural and leisure experiences, all within the walking catchment of high frequency mass public transport.

Lifestyle will be enhanced by well-planned, convenient walking and cycling tracks. These will connect employment areas and the Metro Station, and provide convenient access to the Caddies Creek Corridor, new urban plazas and open space in the heart of the Precinct. Rouse Hill will have a distinct local character and sense of place founded on the rich local history and Garden Shire identity and strengthened by enhancing and protecting areas of the public domain and building on the successful design principles and character already evident within the Centre.

With its unique lifestyle offer, access to skilled workforce, capacity to grow and increased accessibility resulting from existing and planned public transport investment, the Local Government Area (LGA) has the right ingredients to become a magnet for employment growth and business activity.”

Artist’s Impression of The Fiddler and Surrounds (Source: Tome Visuals)

Purpose

This Precinct Plan serves as a tool to:

Address the principles and actions identified for Strategic Centres within the Greater Sydney Region Plan and Central City District Plan and strengthen each of the Strategic Centres.

Engage and discuss with the community and stakeholders about how the Strategic Centre will grow and evolve into the future.

Establish a clear vision and parameters to guide short, medium and longer term growth for key strategic locations.

Create a structure for urban development that is place based, resolves competing issues and gives certainty and confidence to Council, the local community, developers and businesses.

Inform changes to planning controls to facilitate future implementation of planned outcomes.

Identify the need for any new or additional infrastructure to support the anticipated growth and inform associated discussions and advocacy work with the NSW Government.

Growth Forecast

3,700 4,300 10,100 12,500

1.2 Structure Plan and Key Desired Outcomes

• Capacity for a total of around 12,500 jobs (approximately 8,800 additional jobs) by 2041, with further capacity beyond this development horizon subject to market take-up

Employment

Retail

Residential

Urban Services

• Capitalise on the planned Rouse Hill Hospital as a key catalyst for growth in health industries and knowledge-intensive jobs, to help meet job targets and achieve the ‘30 minute city’ vision for the rapidly growing residential population in the North West

• Designated areas for higher density employment and health services along Rouse Hill Drive, Commercial Road, Windsor Road and the Tempus Street Sleeve Sites

• Additional capacity for retail floor space to respond to market demand

• Extend the existing Rouse Hill Town Centre across Rouse Hill Drive to the north, with a new retail and restaurant Precinct

• Capacity for around 4,400 dwellings (approximately 2,730 additional dwellings) by 2041 that can be serviced by local and regional infrastructure

• Diverse housing choice of varying sizes and typologies, to cater for the unique demographic and demand profile within The Hills

• Transit oriented neighbourhoods with convenient access to the Metro Station, T-way, shops, jobs, cafes and recreation

• Maintain existing medium density controls in the broader area to encourage older building stock to turnover into diverse housing typologies, such as terrace and townhouse development, at the appropriate time in the lifecycle of these dwellings

• Retain the existing detached low density residential housing supply to the north and east of the Strategic Centre

• Retain and protect the light industrial and urban services area on Mile End Road and Resolution Place

• Enhance connectivity between urban services land and central areas within the Precinct Mixed Use

• Rouse Hill Town Centre will be the mixed use heart of the Precinct, with a mix of retail, business, office, leisure, entertainment and community uses and some higher density housing

• The mixed use area and shopping centre will continue to service the region with diverse retail, leisure, recreation and dining opportunities

• The distinguishable local character in the Rouse Hill Town Centre, known for its ‘street-feel’, will be protected and enhanced as new development occurs

• Enhanced connectivity through a new local road network in the north of the Precinct

• New pedestrian links and pedestrian bridges over Rouse Hill Drive and Commercial Road to improve walkability

Connectivity and Sustainability

Open Space and Community

• Upgrade Commercial Road to ensure road infrastructure can support the new hospital and development within the Strategic Centre

• Extension of Green Hills Drive through to Commercial Road as part of adjacent mixed-use development

• Upgrade key intersections to support new road connections and improve vehicular connectivity

• Enhanced network of footpaths, forecourts, bridges and boardwalks to create an attractive environment for pedestrians and cyclists

• Active street level uses to provide attractive, vibrant and safe streets

• Provide a central open space and plaza area on the Northern Frame (part of the Town Centre located between Rouse Hill Drive and Commercial Road)

• A range of public spaces that meet the needs of the growing community and local workforce, including public parks, playgrounds and enhanced public domain areas

• Height allowed as a mechanism to achieve better built form and public domain outcomes (increased landscaping, setbacks and separation at the ground plane to minimise perceived bulk from the pedestrian realm and public domain)

• Transit oriented development - tallest buildings (up to 20 storeys) located in the heart of the Precinct near the Metro Station, seamlessly transitioning into lower density areas

Built Form

• Protect existing and future open space and public domain areas from significant overshadowing

• Protect the operation and future expansion of the future Rouse Hill Hospital

• Low density residential areas (of approximately 2-3 storeys) retained at the periphery of the Strategic Centre

Metro Station

Metro Line (Above Ground)

Rouse Hill Strategic Centre

Proposed Road

Low Density Residential

Medium Density Residential

High Density Residential

Local Centre

Mixed Use

High Density Employment and Health Services

Urban Support Services

Open Space

Drainage Land

Special Use

Potential School*

Signalised Intersection

Pedestrian Bridge

Left-in-left-out Intersection

Urban Plaza

Roundabout

Pedestrian Link

Rouse Hill to Box Hill Public Transport Corridor Options

*Note: Subject to future investigations by School Infrastructure NSW.

Figure 1. Structure Plan - Rouse Hill Strategic Centre

1.3 Key Changes and Refinements

Strategic Work Completed

While the Plan relates to the entire Strategic Centre, it is anticipated that many areas will either remain unchanged or will continue to develop under the current planning controls which apply. These include:

• Low and medium density housing areas that are not contemplated for change or uplift due to their recent age, high quality of housing stock and distance from the Rouse Hill Metro Station.

• Areas recently developed as these areas are new and the outcome that exists is considered to be contextually appropriate and should remain for the foreseeable future.

• Land that is able to develop under the existing planning controls and where the outcome that can be achieved under the current controls is considered to be contextually appropriate.

This Precinct Plan does not anticipate any additional uplift in these areas, beyond that already envisaged and available under the existing controls.

Note: A full list of implementation actions is provided in Section 6 of this Precinct Plan.

Metro Station

Metro Line (Above Ground)

Rouse Hill Strategic Centre

Strategic Work Completed

Figure 2. Areas Where Planning Work is Already Complete

Landowner-Initiated and Market Driven Change

A number of sites have been identified for future market driven change. These sites are generally large consolidated sites in single ownership. It is considered that the market is best placed to determine the appropriate timing for amendments to the planning controls in these instances (having regard to development demand, life-cycle of existing assets and feasibility) and put forward development outcomes and infrastructure solutions consistent with the strategic framework and Council’s vision articulated within the Plan. The term ‘Market Driven Change’ refers to the market being best placed to determine the timing and delivery of development, rather than the land use outcomes, which will be guided by this plan and the applicable environmental planning instruments.

Prematurely increasing development potential on these sites before feasible redevelopment can occur would artificially increase land values without actually unlocking any viable redevelopment opportunities. Changes to the planning framework would be driven by landowner-initiated planning proposals, along with associated amendments to the Development Control Plan, Public Domain Plan and appropriate infrastructure contribution mechanisms. It is not anticipated that each of these areas will be subject to redevelopment in the short term or at the same time. They have been grouped into two categories, being ‘short to medium term’ and ‘longer term’ market driven change.

• Short to Medium Term: It is expected that planning proposals for short to medium term sites would eventuate over the next 5 to 10 years, as market-driven solutions and redevelopment opportunities for these sites are likely to be logical, orderly and feasible within this period.

• Longer Term: Market driven solutions and planning proposals for longer term sites are unlikely to eventuate within this same period and are expected to occur beyond a 10-year horizon. These sites are either substantially more complex, require amalgamation of fragmented areas or are unlikely to be feasible at an appropriate density and scale outcome within this initial 10-year horizon.

The categorisation of sites has been based on consideration of a range of factors, including the input from respective landowners, and may change over time. It is not intended to prevent a landowner from progressing with development at a time they deem appropriate.

Note: A full list of implementation actions is provided in Section 6 of this Precinct Plan.

Metro Station

Metro Line (Above Ground)

Rouse Hill Strategic Centre

Market Driven Short to Medium Term Change

Market Driven Longer Term Change

Strategic Work Completed

Figure 3. Areas Flagged for Landowner-Initiated and Market Driven Change

1.4 Implementation and Phasing

This Plan sets a holistic vision and ‘blueprint’ for the Rouse Hill Strategic Centre. It includes a list of actions that will be subject to future processes and decisions of Council. It will be necessary to work through these actions over time, to establish the planning framework that facilitates the vision and outcomes articulated in the Plan.

This Plan identifies areas where strategic work has been completed and where development is expected to either remain unchanged or continue to roll-out under the current planning framework. It then groups actions into three distinct phases, having regard to potential timing and responsibility for each action.

*Note: There are actions identified within Phase 2, however they are holistic to the Strategic Centre, not specific to individual sites and are therefore not shown on the map above.

Metro Station

Metro Line (Above Ground)

Rouse Hill Strategic Centre

Strategic Work Completed

Phase 1 - Housekeeping Amendments

Phase 2 - Council-Led Change

Phase 3 - Market Driven Change

Strategic Work Completed

Areas where strategic planning work has already been completed and where no further change to the planning controls is anticipated. The Rouse Hill Regional Centre Master Plan framework (as originally established in 2004 and reviewed and updated since this time) continues to guide appropriate outcomes for much of the Centre. Development is expected to either remain unchanged or continue to roll-out under the current planning framework (including development applications and/or construction).

Phase 1: Housekeeping Amendments

Areas where Council-Led housekeeping amendments are recommended to facilitate improved and/or orderly development outcomes. It is noted that no housekeeping amendments are identified at this time, however Council may undertake housekeeping amendments in the future if the need arises.

Phase 2: Council-Led Change*

Short to medium term actions that could be led by Council. For example, the preparation of a holistic Public Domain Plan and/or Development Control Plans to guide future development throughout the Centre to achieve the vision and outcomes articulated in this Plan.

Phase 3: Market Driven Change

The timing for commencement of these actions will be market driven. These generally relate to large consolidated sites in single ownership. It is considered that the market is best placed to determine the appropriate timing for amendments to the planning controls in these instances (having regard to development demand, life cycle of existing assets and feasibility) and put forward development outcomes and infrastructure solutions consistent with the strategic framework and Council’s vision articulated within the Plan. Whilst some market driven solutions may be achievable in the short to medium term, feasible redevelopment in other market driven areas is unlikely to occur until beyond the short to medium term horizon.

Changes to the planning framework would be driven by landowner-initiated planning proposals, along with associated amendments to the Development Control Plan, Public Domain Plan and appropriate infrastructure contribution mechanisms.

In terms of timing, it is expected that planning proposals for short to medium term sites would eventuate over the next 5 to 10 years (some landowners have expressed their intention to lodge planning proposals shortly following precinct planning). Market driven solutions and planning proposals for longer term sites are unlikely to eventuate within this same period and are expected to occur beyond a 10-year horizon, as these sites are either substantially more complex, require amalgamation of fragmented areas or are unlikely to be feasible at an appropriate density and scale outcome within this initial 10-year horizon.

Figure 4. Phasing Approach*
Artist’s Impression of Rouse Hill Town Centre (Source: GPT)
Aberdoon House

Precinct Analysis 02

2.1 Study Area

Regional Context

The Rouse Hill Strategic Centre is one of the three Strategic Centres located within The Hills Shire, alongside the Castle Hill and Norwest Strategic Centres. These are expected to be flexible, diverse places that provide quality access to a range of goods, services and jobs for the catchments they service. The Strategic Centres will accommodate the bulk of the jobs within The Hills Shire, providing jobs close to home for residents.

Rouse Hill is positioned to evolve into a multifunctional regional destination that services the needs of the rapidly growing North West Region, including the Growth Areas within The Hills, Blacktown and Hawkesbury Local Government Areas. At full development (expected to occur over a 20 year horizon), these areas are expected to accommodate around 90,000 dwellings and a residential population in excess of 250,000 people (Source: North West Priority Growth Area Land Use and Infrastructure Implementation Plan, May 2017).

While Rouse Hill will continue to service the increased retail needs of the incoming population, the evolution of Rouse Hill to include significant employment opportunities aligned with the skills of these residents, will be pivotal in achieving the ‘30-minute’ city vision. The centre will serve an increasingly important function in accommodating medical services and facilities for the surrounding population as a result of investment in new public health infrastructure.

The Precinct adjoins the Windsor Road arterial road corridor, which divides The Hills and Blacktown Local Government Areas and connects to Box Hill and the Hawkesbury Region to the north and the M2/M7 motorways and Parramatta to the south. It is positioned along the Sydney Metro North West Corridor with access to a Metro Station, which connects Rouse Hill to the Sydney CBD and Chatswood and provides access to the Precinct as a retail and commercial destination for the broader catchment area. It also connects to Tallawong Metro Station.

Rouse Hill is centrally located between future transport connections to the Western Sydney Aerotropolis, Parramatta Central Business District and the rural areas of North Western Sydney. Future transport connections will be pivotal in realising the vision for Rouse Hill, particularly the future connection from Tallawong Station to St Marys Station (and Western Sydney Aerotropolis), the mass transit corridor from Norwest to Parramatta, the potential Outer Sydney Orbital and the final stages of the Sydney Metro connection to the city and beyond.

Figure 5. Regional Context (Source: Nearmap Aerial Imagery, copyright Nearmap)
Rouse Hill
Riverstone
Schofields
Quakers Hill Marayong
To Richmond
North-West T-way to Parramatta
Norwest
Castle Hill
Future extension to Western Sydney Aerotropolis
Future Mass Transit Link to Parramatta (via Baulkham Hills)
To Chatswood and Sydney CBD

Local Context

The Rouse Hill Strategic Centre, as defined by this Precinct Plan, is generally bound by Windsor Road to the west, Bardsley Circuit, Mackay Way and Mailey Circuit to the north, Sanctuary Drive to the south and Withers Road and Bridgewood Drive to the east. The Centre is around 267 hectares in size and was home to approximately 5,170 residents (in approximately 1,660 dwellings) in 2016.

The boundaries have regard to the area identified within Council’s Local Strategic Planning Statement, as well as the NSW Government’s Corridor Strategy (2013) and Rouse Hill Station Structure Plan, which was typically based on land within an 800 metre radius from Rouse Hill Metro Station, with adjustments in consideration of key points of interest, existing character, predominant land uses and natural features or roads which form logical boundaries to the Precinct.

Rouse Hill Town Centre is located at the heart of the Strategic Centre, which contains the Rouse Hill Metro Station and offers a variety of shopping, dining, entertainment and leisure opportunities, with some residential uses above.

The Rouse Hill Village Centre (located north of Mile End Road) is another key destination within the Strategic Centre that serves the daily needs of local residents and workers and significantly contributes to Rouse Hill’s local character.

The existing Caddies Creek Riparian Corridor runs through the south-eastern part of the Centre and provides passive recreation opportunities and connectivity within and beyond the area.

Metro Line (Above Ground)

Rouse Hill Strategic Centre

800m Walkability Catchment (current / existing connections)

Figure 6. Aerial View of Locality Plan (Source: Nearmap Aerial Imagery, copyright Nearmap)
Metro Station
Figure 7. Study Area - Rouse Hill Strategic Centre
Rouse Hill Public School and Community Centre
Hills Centenary Reserve
Bruce Purser Reserve
Rouse Hill High School
Ironbark Ridge Primary School
Caddies Creek Corridor
Mungerie House
Castlebrook Cemetery
Future Hospital Site Urban Services Uses
“The Fiddler”
Rouse Hill Village Centre
Rouse Hill Town Centre
Annangrove Road Industrial Area
Rouse Hill Regional Park
Connie Lowe Reserve

2.2 Strategic Context

2004 2013 2015 2018 2019

Rouse Hill Regional Centre Master Plan

In 2004, Council approved a Master Plan for the Rouse Hill Regional Centre, which enables a combined total of 200,000m² of retail and commercial floor space, 1,800 dwellings comprising a mix of housing types, educational facilities including schools in the north-east corner and an open space network including regional open space along Caddies Creek. It was intended to guide the urbanisation of the Town Centre and immediate surrounds including supporting residential Sub Precincts.

It establishes a development concept that articulates and informs long-term planning for land use, density, open space provision, ecological management, transport and social infrastructure. It has been periodically reviewed and amended since 2004.

North West Rail Link Corridor Strategy

The North West Rail Link (NWRL) Corridor Strategy was released by the State Government in 2013 to guide development along the NWRL Corridor over a 20-25 year period.

It includes a structure plan for each of the Station Precincts, including Rouse Hill. The structure plan identifies areas with potential for growth and articulates the desired development outcomes for these key growth areas.

It articulates that Rouse Hill has the potential to transform into a Major Centre and transport hub and gateway, enabling significant commercial and residential uptake in the surrounding areas. Rouse Hill is envisaged to provide opportunities for increased employment and housing capacities within walking distance of the Rouse Hill Metro Station, whilst simultaneously ensuring the protection of the local heritage, open space network and natural environment.

The Hills Corridor Strategy

The Hills Corridor Strategy was adopted by Council in November 2015, to articulate Council’s vision for future growth in each of the seven (7) Station Precincts within The Hills Shire.

It demonstrates how the Rouse Hill Strategic Centre can accommodate a mix of retail, commercial and residential uses. It emphasises the importance of enabling a mix of uses to occur, whilst also protecting and maintaining some well-located areas of dedicated employment lands within Strategic Centres. The Strategy also recognises the importance of aligning infrastructure with growth.

Greater Sydney Region Plan and Central City District Plan

The Greater Sydney Region Plan – A Metropolis of Three Cities was released in 2018 by the Greater Cities Commission (formerly, the Greater Sydney Commission). It provides a vision for the Greater Sydney Region that will encourage productivity, sustainability and liveability. It is supported by the Central City District Plan, which translates the objectives articulated within the Region Plan to a more localised context for each District.

In comparison to earlier strategic work, the District and Region Plans identify the elevated role that Rouse Hill must play in providing new jobs as an employment destination for the growing North West Region.

Rouse Hill is identified as a Strategic Centre, along with Castle Hill and Norwest. These are expected to be places that feature:

• High levels of private sector investment

• Flexibility, so that the private sector can choose where and when to invest

• Co-location of a wide mix of land uses, including residential

• High levels of amenity and walkability and being cycle friendly

• Areas identified for commercial uses, and where appropriate, commercial cores

These strategies are now being reviewed by the State Government to establish a new strategic framework for the ‘Six Cities’.

Hills Future 2036 is Council’s Local Strategic Planning Statement (LSPS). It was formally made on 6 March 2020 and sets a vision for growth in The Hills Shire over the next 20 years. It is supported by a suite of strategies including Housing, Productivity & Centres, Recreation, Integrated Transport & Land Use, Environment and Rural Lands.

The LSPS anticipates that the future Rouse Hill Hospital will influence the growth of Rouse Hill Strategic Centre into a new health Precinct and accommodate knowledge-intensive jobs. Council’s Productivity and Centres Strategy articulates the importance of building Strategic Centres through a structure planning and phasing approach that encourages the right mix of employment-related land uses and enhances the design and amenity of our Strategic Centres.

It states that Rouse Hill will continue to provide a mix of shopping, dining, recreation and community services. Complementing the future Rouse Hill Hospital, the Centre will offer enhanced retail and new commercial capacity. The availability of larger landholdings is an opportunity to reimagine the employment offerings within the Centre and facilitate a high amenity mixed-use development containing flexible premises for smaller businesses and complementary residential dwellings.

Hills Future 2036
Rouse Hill Metro Station

2.3 Status of Planning Processes

Planning work led by Government, Council and landowners has already been undertaken and completed with respect to extensive areas of the Rouse Hill Strategic Centre. Most notably, the Rouse Hill Regional Centre Master Plan (2004) and associated Precinct-level Development Applications. Large areas of the Centre have recently developed under these settings and are unlikely to change for the foreseeable future.

Rouse Hill is the most recently developed of the Strategic Centres within The Hills Shire, with recently developed areas expected to have a significant life ahead before redevelopment will be feasible.

This Plan recognises and builds on this significant body of work and planning processes which have already occurred. Whilst it holistically considers outcomes for the broader Precinct, it is appropriate for many areas to either remain unchanged or to continue to develop under the current framework applied as an outcome of these planning processes.

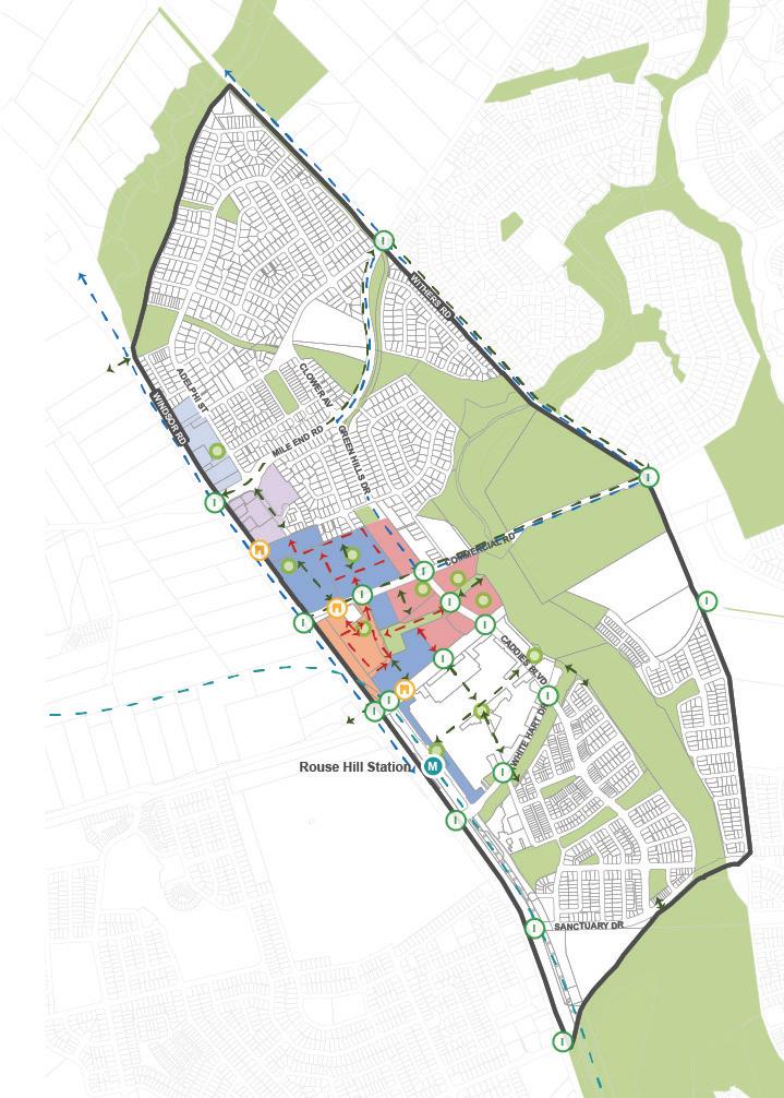
• Redevelopment of a number of ‘sleeve sites’ will complete the Rouse Hill Town Centre Core (bound by Windsor Road, White Hart Drive, Caddies Boulevard and Rouse Hill Drive), some of which are already subject to development approvals or under construction.

• Low and medium density housing areas (identified in grey in Figure 8) are not contemplated for change or uplift due to their recent age, high quality of housing stock and distance from the Rouse Hill Metro Station.

• Existing areas to remain unchanged (identified in light purple in Figure 8) have been able to develop under the current planning controls. The outcome that exists is contextually appropriate and should remain for the foreseeable future.

• Existing development opportunities (identified in yellow in Figure 8) are able to feasibly develop under the existing planning controls. The outcome that can be achieved under the current controls is contextually appropriate without needing additional local environmental plan amendments and no change to the planning controls is contemplated.

• In 2021, the NSW Government announced the relocation of the new Rouse Hill Hospital (identified in orange in Figure 8) to within the Northern Frame of Rouse Hill (rather than on the opposite side of Windsor Road within the Blacktown LGA). The Concept Plan for the Rouse Hill Hospital was lodged with the State Government in 2022. The Precinct Plan does not seek to change planning controls for the Rouse Hill Hospital site, however it does seek to provide an appropriate planning response to ensure that the Hospital and surrounding development are compatible and mutually beneficial to each other in terms of orderly development outcomes and future development potential. It also earmarks an area for potential expansion as identified by Health Infrastructure NSW.

• Areas for potential change (identified in blue in Figure 8) are identified as key Focus Areas where changes to the planning controls and subsequent development opportunities will be instrumental to the achievement of the strategic vision for Rouse Hill Strategic Centre.

Metro Station

Metro Line (Above Ground)

Rouse Hill Strategic Centre

Future Hospital Site and Potential Expansion

Low and Medium Density Housing Area

Strategic Work Completed (Expected to Remain Unchanged)

Strategic Work Completed (Existing Development Opportunities)

Focus Area for Change

Open Space / Drainage

Figure 8. Status of Planning Processes
Rouse Hill Town Centre

2.4 Existing Land Uses

Rouse Hill is the newest of the Shire’s three Strategic Centres and is still in its infancy in terms of achieving its intended scale and function as a Strategic Centre. It currently contains a varied mix of business, commercial, retail, urban services, residential, recreational and infrastructure uses, all within close proximity to the Rouse Hill Metro Station.

Rouse Hill Regional Centre

The Rouse Hill Regional Centre, first established in the mid-2000s, includes approximately 120 hectares of land bordered by Commercial Road (north), Withers Road (east), Sanctuary Drive (south) and Windsor Road (west). The approved master plan divides the centre into a number of distinct Sub-Precincts. Collectively these Sub-Precincts encompass 14% of the developable land within the broader Centre and are zoned a combination of MU1 Mixed Use and R1 General Residential (or 20% of all land within the Centre).

There are two commercial Sub-Precincts, known as the Town Centre Core and Northern Frame, which generally adjoin Windsor Road and surround the Metro Station. The Town Centre Core provides a variety of dining, shopping and entertainment opportunities. It also contains the Vinegar Hill Memorial Library and Vinegar Hill Memorial Community Centre. Its street-feel and alfresco design create a strong and distinguishable sense of character. Residential apartments are scattered throughout the Core, generally above the commercial / retail levels and within ‘sleeve sites’ at the edges of the centre.

The Northern Frame is a large undeveloped landholding bound by Rouse Hill Drive, Windsor Road, Commercial Road and Caddies Boulevard. It is earmarked to accommodate substantial commercial growth within the Rouse Hill Regional Centre and the future Rouse Hill Hospital.

The commercial areas are surrounded by a series of residential SubPrecincts which contain some apartment buildings (close to the core areas), transitioning to medium and low density dwellings towards the edges of the centre. These areas are now largely developed.

The Town Centre also adjoins the Caddies Creek Riparian Corridor, which is predominantly under the ownership of Sydney Water and serves a drainage function in addition to some passive recreation. Various cycleways and pedestrian paths weave throughout the Precinct for the enjoyment of the local community.

Specialised Retail and Urban Services

Approximately 5% of land within the Centre is zoned E3 Productivity Support for specialised retail (bulky goods) and urban support services. These areas are located north of Commercial Road, clustered at the western edge adjacent to Windsor Road. The cluster to the north of Commercial Road contains a number of recent developments including specialised retail and urban support services such as Amart Furniture, Rebel Sports, Centrelink, PETStock and Supercheap Auto.

A variety of urban services are located further north on Resolution Place such as Tyrepower, Reece Plumbing and NRMA Car Servicing. Land located at the southern junction of Windsor Road and Mile End Road includes a range of food chains such as Red Rooster, McDonalds, Hungry Jack’s, Lone Star Steakhouse and Meat and Fire BBQ. This land also includes an Aldi supermarket. Generous at-grade car parking is provided in this location to service the operation of businesses.

The oldest uses on the employment land are the heritage listed Fiddler Hotel at the junction of Windsor Road and Commercial Road and the Rouse Hill Village in the northernmost part of the centre. However, it is noted The Fiddler site does include some newer uses including a fast food restaurant and a new Mecure Hotel.

Rouse Hill Village Centre

The Village Centre provides a small cluster of goods and services that are regularly accessed by local residents and workers for their daily needs. It comprises a variety of uses including an IGA supermarket, dining and takeaway, newsagency, medical and beauty services and travel agents. The Village Centre has a built form of up to 3 storeys and a nearby shop top housing development on Aberdour Road up to 4 storeys. This low scale development of the Village Centre is framed by low density residential development in its surrounds, with lot sizes ranging from 450m² to 750m².

Figure 9. Breakdown of Existing Land Use Zones

Residential Uses

Residential land uses are permitted on approximately 90% of all developable land within a 1.2km walking catchment of the Metro Station (or approximately 74% of all land within the Strategic Centre). Outside of the Town Centre, residential areas mainly comprise of low and medium density forms, with some larger sites zoned to accommodate apartments along Commercial Road (land zoned R1 General Residential).

In 2016, there were approximately 1,660 dwellings within the Rouse Hill Strategic Centre, with significant capacity under the current controls for a further 2,100 additional dwellings within the walkable catchment of Rouse Hill Metro Station (around 420 of these dwellings were delivered between 2016 and 2021).

Council’s strong focus on planning for residential growth over the past 10-20 years means Council is on track to meet (and exceed) the residential targets established in the relevant strategic planning policies. The vibrancy and activity created by residential yields within the centre will continue to grow, as the market delivers on the opportunities already available under the current controls and as approved developments already in the pipeline come to fruition.

Infrastructure

Approximately 60 hectares of land within the Strategic Centre is zoned for infrastructure and public uses. Some residential land also accommodates community uses, such as the Rouse Hill Community Centre and various schools.

A substantial open space and drainage corridor runs north-south through the Strategic Centre, along Caddies Creek and its tributaries, providing natural and recreation space and a major pedestrian/cycleway link.

The population is supported by a number of local parks distributed throughout the centre, as well as The Hills Centenary Park and Bruce Purser Reserve which provide active recreation facilities including athletics, cricket, baseball and AFL fields and associated amenities.

There are a number of existing public schools within the Centre including Rouse Hill Public School on Clower Avenue as well as Ironbark Ridge Public School and Rouse Hill High School on Withers Road.

A community facility is located next to Rouse Hill Public School on Clower Avenue, which is an item of local environmental heritage known as “Aberdoon House”. Vinegar Hill Library and Community Centre is located in the heart of the Town Centre Core.

Figure 11. Remaining Residential Capacity within Strategic Centre Under Current Controls (as at 2016)

2.5 Existing Character and Public Domain

Existing Residential Areas

The Rouse Hill Town Centre Core is located at the heart of the Precinct and provides a variety of dining, shopping and entertainment opportunities, supported by some commercial businesses. Its street feel and alfresco design creates a strong and distinguishable sense of character.

Undeveloped Landholdings

Whilst a large proportion of the Rouse Hill Town Centre has already been established, it is framed by large undeveloped landholdings to the north, posing a unique opportunity to shape holistic development outcomes.

Other defining features include the Rouse Hill Metro Station, the T-way Interchange and the Vinegar Hill Memorial Library and Vinegar Hill Memorial Community Centre.

Land directly to the south of the Rouse Hill Town Centre Core features a mixture of residential housing opportunities on lot sizes typically varying between areas of 220m² and 450m2. The local area is defined by its two storey built form, local footpaths, street trees and various pocket parks. This area is unlikely to undergo further redevelopment in the near future.

Caddies Creek Corridor

The Town Centre adjoins The Hills Centenary Park, Bruce Purser Reserve and Caddies Creek Riparian Corridor. Various cycleways and pedestrian paths weave throughout the Town Centre for the enjoyment of the local community and visitors.

Existing Residential Areas
Rouse Hill Metro Station
Rouse Hill Metro Station and Surrounds
Caddies Creek Corridor
Lot 901 Windsor Road
Town Centre Core
Town Centre Core
Rouse Hill Town Centre

Undeveloped Land at Lot 5 Commercial Road

Whilst it is currently vacant, a built form of up to 12 storeys has been permitted at Lot 5 Commercial Road. It is expected to accommodate a new road, extending Green Hills Drive through to Commercial Road, which will provide a vehicular connection and public transport corridor through to Box Hill and beyond.

This area accommodates a variety of businesses with larger floorplates such as Rebel Sports, Amart Furniture, Centrelink and Supercheap Auto. It also provides a generous amount of at-grade car parking to support the operation of these businesses.

The Fiddler

The parcel of land on the corner of Commercial Road and Windsor Road contains a State heritage item, “The Fiddler”, and various other uses including KFC, Raine and Horne Real Estate and the Mercure Hotel.

The Fiddler is an intact colonial inn of historic significance to the State. The heritage item was refurbished in 2019 and is now an iconic destination for casual dining and entertainment in The Hills.

Low Density Residential Area

Land further to the north of Commercial Road also contains a wellestablished low-density residential area. These dwellings range from 1-2 storeys in height and feature generous landscaped setbacks.

Home Hub Rouse Hill
The Fiddler Residential Dwellings
Home Hub Rouse Hill
Undeveloped Land at Lot 5 Commercial Road
North of Commercial Road

Rouse Hill Village Centre

The Rouse Hill Village Centre is located north of Mile End Road and has a unique local character and charm. The Rouse Hill Village Centre offers local dining options and small-scale retail businesses (including a medical centre, butcher, newsagency, supermarket and post office) that cater to the everyday needs of the Rouse Hill community. The Rouse Hill Village Centre has a built form of up to three storeys, providing an appropriate transition into the adjoining low and medium density residential areas.

Existing Residential Area

The Rouse Hill Village Centre is framed by low to medium density residential areas to the north and east, generally comprising detached dwellings and townhouses on lots varying between approximately 450m² and 750m². Dwellings in this area were generally constructed more than 10 years ago, however are well-established and maintained.

Resolution Place and Surrounds

Land south of Mile End Road and fronting Windsor Road provides a diverse range of local food chains and smaller eateries such as Red Rooster, McDonalds, Hungry Jack’s, Meat and Fire BBQ, Shahi Dining and Siam Corner. It also contains an Aldi Supermarket and smaller indoor recreational facilities. A variety of light industrial uses are located on Resolution Place, including Tyrepower, Reece Plumbing and NRMA Car Servicing.

Rouse Hill Village Centre
Resolution Place and Surrounds
Existing Residential Area
Rouse Hill Village Centre

2.6 Strategic Planning Investigations

2.6.1 Technical Studies

In late-2020, Council engaged various consultants to establish a robust evidence base to assist with Precinct planning:

• Shire Economic Health Check

(Prepared by .ID Consulting, December 2020)

• Shire Economic Profile

(Prepared by .ID Consulting, December 2020)

• COVID-19 Business Implications

(Prepared by McCrindle, December 2020)

• Investment Attraction Study

(Prepared by McCrindle, December 2020)

• Strategic Centres Discussion Paper

(Prepared by Mecone, January 2021)

• Retail Floorspace Analysis

(Prepared by SGS Economics and Planning, February 2021)

• Commercial Floorspace Demand

(Prepared by SGS Economics and Planning, October 2021)

• Transit Centres Parking Requirements Report

(Prepared by PeopleTrans, January 2021)

• Housing Market Report

(Prepared by Bis Oxford Economics, December 2020)

• Public Domain Audit and Analysis

(Prepared by Aspect Studios, January 2021)

• Big Data Analytics

(Prepared by Place Intelligence, April 2021)

These studies confirm that currently, Rouse Hill is predominately a population serving retail centre, with a limited diversity of employment activity. Rouse Hill represents the smallest local economy of the Shire’s three Strategic Centres, bringing in approximately $449 million worth of Value Added* in 2019 (in comparison to $5.05 billion for Norwest and $1.11 billion for Castle Hill). This contribution reflects the centre’s smaller size, early stages of development and status as an emerging centre for which the surrounding residential catchment has not yet fully developed.

The open space orientated design of the Town Centre Core and the high level of urban and retail amenity has been key to its success. However, the demand for commercial premises is expected to grow, alongside residential development in the surrounding catchment area. While there is generally consistent demand for residential outcomes, balancing the demand for residential growth whilst safeguarding capacity for employment growth beyond the immediate and short term horizon is key to growing economic competitiveness moving forward. The potential development of the Rouse Hill Hospital is a significant economic opportunity to leverage a health and commercial Precinct. This, together with the growing population catchment, integration with the older retail area of Rouse Hill, existing open space amenities surrounding Caddies Creek and infrastructure connections such as the Sydney Metro Northwest and planned connection to Western Sydney Airport, provides the right ingredients for Rouse Hill to emerge as a truly competitive mixed use centre.

*Note Value Added is defined by Mecone as

production process.

Rouse Hill Town Centre

2.6.2 Economic Analysis

The key economic findings from the investigations and evidence base relevant to Rouse Hill are summarised below.

A Population Serving Centre

The wider area of Rouse Hill (from Annangrove Road to Samantha Riley Drive) accommodated almost 3,700 jobs in 2016. Retail trade and accommodation and food services accounted for most of the population serving employment (70%), underscoring the dominance of the Rouse Hill Town Centre as a retail and leisure destination. The health and education sectors were the other main sources of employment (16%) with more limited employment in knowledge intensive (12%) and industrial categories (1%) (as shown in Table 2).

The Centre has continued to grow post 2016, with further development activity such as bulky goods retail development occurring along Commercial Road, which has supported growth in population serving jobs. Whilst such development solidifies Rouse Hill as a major retail hub within the North West region, it is critical for the centre to diversify its employment base if it is to be economically sustainable over the long term.

The baseline scenario for jobs growth anticipates that over the next 10 years the Rouse Hill Town Centre will grow by an additional 750 jobs and by 2041 an additional 900 jobs (SGS, 2021).

These projections are well below the targets set in the Central City District Plan of a total of 10,000-11,000 jobs to 2036 and would not deliver on key employment objectives to maintain the current ratio of jobs to the growing Shire workforce.

They do however provide an understanding of the key industries that currently provide employment to be targeted. A ‘business as usual’ trend would see that in 2041, the key industries would continue to be Retail Trade, Health Care and Social Assistance, Accommodation and Food Services Education and Training (as shown in Figure 13).

Enabling Rouse Hill to Emerge as a True Mixed Use Centre

The investment in the Sydney Metro Northwest has strengthened the Shire’s links to the Eastern City, and it is now well placed to capitalise on ‘city shaping’ projects such as the Western Sydney Airport, Sydney Metro West and Parramatta to Norwest mass transit connection.

Future job growth for both the Shire and Rouse Hill, above ‘business-as-usual’ trends, will rely upon targeting key knowledge industry sectors of Professional, Scientific and Technical Services, Hospitals, Tertiary Education and Advanced Manufacturing (medical and surgical equipment). Maximising the economic potential of the future Rouse Hill Hospital will be critical to achieving this. This investment creates an opportunity for an emerging health Precinct and an innovation cluster at Rouse Hill, with consequential opportunities for professional, research and advisory services.

It is important to balance longer term demand for commercial floorspace, which will continue to increase as the Centre evolves and as the surrounding residential catchment develops, against desire for short term residential development.

This Precinct Plan identifies the expected capacity for employment growth, and together with Council’s Economic Growth Plan, will uphold a pivotal role in the evolution of Rouse Hill as a more diversified centre.

Table 2. Employment and Value Added Across Big Industry Categories within the Rouse Hill Strategic Centre (Source: Adapted from Strategic Centres Discussion Paper Mecone, 2021)
Figure 13. Forecast Employment Growth by Industry Sector for Rouse Hill Strategic Centre (Source: SGS 2021)

Retail Floor Space Demand

The estimated current retail floor space is 71,000m² with future floor space supply of approximately 13,200m² (SGS, 2021). The Rouse Hill Strategic Centre is projected to have a retail floorspace surplus of around 12,000m² to 2036, primarily due to the potential of new local centres that will emerge in growth areas drawing away market share. These findings account for anticipated future supply across existing and planned centres.

Combined with small retail gaps identified in the Rouse Hill Village Centre (referred to distinctly from the Rouse Hill Strategic Centre in the SGS Report as the Mile End Road Village Centre), the projected surplus for the Rouse Hill Strategic Centre (as defined by this Plan) reduces to around 11,000m², mainly comprising the three commodities most affected by the growing presence of online retail (4,150m² clothing, 3,700m² other retail and 3,000m² department store), as shown in Figure 15.

However, a potential gap of around 950m² supermarket floor space is identified across the Rouse Hill Strategic Centre. Noting the analysis identifies retail gaps for the town centres of Box Hill and Gables, SGS (2021) suggests that Rouse Hill could ‘fill the gap’ and support additional supermarket floor space of 2,000m² in the longer term. This would assist in Rouse Hill maintaining its primacy in the Region.

By 2036, the trade area of Rouse Hill is expected to diminish noticeably as shown in Figure 14, due to some commodity groups heading online and new retail centres opening within the Growth Areas to the north and east.

Whilst being cognisant of the impacts of additional centres, the status of Rouse Hill at the top of the hierarchy and the future growth expected post 2036 may alleviate oversupply with additional demand. Flexibility will be needed to ensure the centre can respond to changing consumer tastes and be strengthened by expansion of lifestyle and entertainment offerings. This will also be complemented by the proposed Rouse Hill Hospital in the future.

Table 3. Estimated Retail Floor Space Supply - Rouse Hill Centres (Source: Adapted from Retail
SGS, 2021)
Figure 14. Projected Trade Area Changes 2016-2036 (Source: Retail Floor Space Analysis SGS, 2021)

Industrial and Urban Services

Council’s Productivity and Centres Strategy (2019) identifies that the need for urban support services where people build, fix and repair things is not going to change and rather, will increase with more people moving into the area. Protecting and managing urban services land is therefore a priority, noting the scarce supply of such lands within the Strategic Centre and limited access to areas on Mile End Road and Resolution Place.

Proximity to local residential catchments and co-location with similar services are the key location determinants for urban services. Rouse Hill is highly accessible by both private vehicle and public transport and has strong exposure to the arterial road network via Windsor Road. It is served by a large and growing resident population with a high proportion of affluent households.

Protecting the pockets of industrial and successful urban services contained in the Precinct and improving accessibility gives people the opportunity to live and work close to these services.

Figure 15. Projected Retail Gaps and Surplus by commodity (m2) to 2036 – Rouse Hill Strategic Centre (Source: Adapted from Retail Floor Space Analysis SGS, 2021)

2.6.3

Market Attractiveness

What Businesses Want

The Rouse Hill Strategic Centre has the potential to be part of a linear city that spans across the Greater Sydney Region, connecting the Region’s major employment Precincts, universities, hospitals and community services (Mecone, 2021). However, to achieve this and attract knowledge-intensive industries, it is critical that consideration be given to what businesses want and need to be successful.

The Discussion Paper prepared by Mecone in 2021 identified that office-based businesses are most sensitive to location and amenity with knowledge intensive business actively seeking to attract and retain skilled labour through their property decisions. Apart from the cost and suitability of premises for operational requirements, key selection criteria include:

• Employee Amenity: High levels of employee amenity are crucial in attracting and retaining businesses, as well as talent. This includes access to high quality hospitality, recreational facilities and other key services. Rouse Hill currently has a significant amenity offering with the existing Rouse Hill Town Centre and The Fiddler Hotel Precinct. High quality urban design and public domain areas would be highly desired by knowledge workers.

• Public Transport and Accessibility: Growing traffic congestion and work-life balance makes high quality public transport a key requirement for knowledge workers. The Rouse Hill Strategic Centre benefits from strong public transport accessibility, given its proximity to the Rouse Hill Metro Station and a variety of local and regional bus routes. Low traffic congestion and availability of parking were key attractors for industries when looking to relocate to The Hills.

• Skilled Workforce: Businesses that depend on skilled labour will select locations accordingly. The Shire has a large and growing skilled labour pool with a greater proportion of managers and professionals compared to the Greater Sydney average.

• Market Catchment: Businesses will gravitate to locations that are close to key customer and supplier pools. The perception of distance from Sydney CBD and knowledge intensive sectors in eastern and north shore suburbs is a challenge.

• Critical Mass: Critical mass of occupiers is needed for facilities that support worker amenity to be viable - cafes, restaurants, gym and fitness centres. Rouse Hill currently has only a small amount of commercial offices with inadequate critical mass. However, this is expected to change over the long-term with future uplift in the Strategic Centre.

• Suitability for Office Types: There is currently minimal office stock within Rouse Hill. Therefore, it is currently only suited to small, serviceoriented uses.

• Exposure and Surrounding Retailers: Rouse Hill benefits from strong exposure along Windsor Road, however the size and offering within the existing Town Centre make it more of a destination retail location. It is one of the largest retail Precincts in Western Sydney.

• Population Size and Demographics: Rouse Hill services a large and growing resident population with a high proportion of affluent households. The size of the Rouse Hill Town Centre and proximity to the North West Growth Areas and urban fringe means it services a significant trade catchment beyond the immediately surrounding suburbs.

Figure 16. Site Selection Criteria for Business (Source: Adapted from Mecone, 2021)
Table 4. Top attractors for industries to relocate or add an additional location in The Hills (Source: Adapted from McCrindle ‘Investment Attraction Study’, 2020)

2.7 Demographic Analysis

To better understand the characteristics of the local catchment, a demographic analysis has been undertaken using the 2021 ABS Census Data for The Hills Shire.

As of 2021, the Shire was home to a resident workforce of around 101,770 people – that is, people who live in the Shire and are employed – and around 84,157 local jobs. However, of the jobs in the Shire, only 30,075 (or 31%) are filled by residents. Approximately 96% of residents engaged in the labour force are employed. Unemployment in The Hills has historically remained much lower than that of Greater Sydney, though fluctuations in the unemployment rate have followed similar trends.

In terms of jobs in the Shire, the top industries are retail trade, health care and social assistance, construction and professional and technical services. While retail is still one of The Hills biggest employers, as a percentage of overall employment, retail has been decreasing, as has professional and technical services. Health care and social assistance is the fastest growing industry in The Hills. Construction is experiencing a sharp increase related to steady construction of new homes in the North West Growth Area, which is expected to continue in the short term owing to development around Station Precincts and within growth areas.

In terms of the resident workforce, the highest proportions of Hills residents are employed in technical and highly skilled industries including professional and technical services, finance, health care and education. This reflects the comparatively high levels of education attained by Hills residents. Health care and social assistance is the fastest growing industry both for the resident workforce and for local jobs.

The Hills has a predominantly highly educated, highly skilled and highly paid resident workforce. In 2021, The Hills had a larger proportion of high income earners than Greater Sydney, with over 47% of households earning over $3,000 per week. Hills residents also benefit from high levels of education, with over 60% of residents having undertaken some form of higher education and 40.5% of residents having attained a Bachelor degree or higher (compared with 33.4% in Greater Sydney).

It is evident that the jobs currently available within The Hills Shire do not sufficiently align with the knowledge intensive and technical skills of working residents, forcing most working residents to travel outside of The Hills for work.

Figure 17. Comparison of Local Jobs vs. Skills of Resident Workers (Source: ABS 2021)
Figure 18. Higher Education Attainment (% all people over 15) (Source: ABS 2021)

Aligning Jobs Growth with Demand

There are over 8 jobs within the Shire for every 10 working residents, meaning there is theoretical opportunity for more than 80% of working residents to work within The Hills Shire.

Despite this, the job containment rate is currently just over 30% within The Hills Shire - which means that only 31.2% of the resident workforce works in The Hills Shire. Approximately 65.3% of working residents travel outside of the Shire for work (14.6% travel to Sydney and 10.1% travel to Parramatta). This reflects that the jobs currently available within the Shire are not well-enough aligned with the skills of working residents and means that we are exporting a large proportion of our highly skilled and educated workforce to other Local Government Areas where they participate in knowledge intensive and technical jobs.

From a simple numerical perspective, if Council is to retain this same ratio and quantum of employment opportunities as we experience the projected population growth, then there will be a need for just over 50,000 additional jobs within the Shire by 2036. This quantum and objective are identified within Council’s Local Strategic Planning Statement and link back to the goals and benefits of the ‘30 minute city’, providing good access to jobs for residents within easy travel from their home.

Taking into account the potential within Strategic Centres, as well as other medium and longer term locations, such as Annangrove Road and Box Hill, there is theoretical capacity more broadly across the Shire to accommodate this growth in employment opportunities, however the key challenges will be to stimulate the take-up of opportunities and delivery of jobs by the market in the short and medium term, and to encourage the delivery of jobs that better align with the skills and education of our residents, particularly a greater proportion of knowledge intensive jobs.

As reflected in the job targets set by the State Government, it is the three Strategic Centres that are critical to achieving these goals and overcoming these challenges, as these are the areas where Council can expect short term economic interest and investment on the back of the Sydney Metro Northwest and delivery of jobs in locations that are well serviced and accessible for residents of the Shire.

These are also the locations which are the most conducive to the delivery and co-location of knowledge intensive jobs, technical jobs and health and education facilities. As a result, both the State and Local strategic planning frameworks establish and reinforce the importance of the Strategic Centres doing the heavy lifting in terms of short to medium term provision of jobs.

When more residents can work locally, commute times and congestion will lessen, helping to meet the vision of Greater Sydney as a 30-minute city. This will encourage a better work-life balance, increased local spending and stronger local communities.”

- Council’s Local Strategic Planning Statement, Hills Future 2036

Figure 19. Job Containment by Occupation in The Hills Shire 2016 (Source: Adapted from Council’s Productivity and Centres Strategy)
Table
Rouse Hill Metro Station

2.8 Key Strategic Influences

Challenges

• Facilitating employment opportunities that complement rather than compete with the Norwest and Castle Hill Strategic Centres.

• Lack of clear Rouse Hill Brand – creates difficulty in attracting business investment and talent.

• Continued pressure for shorter term ‘highest and best use’ residential or mixed use outcomes.

• Rouse Hill has solidified its role as a major retail destination, rather than diversifying the employment offering.

Opportunities

• Leverage the Rouse Hill hospital to be a catalyst for growth and investment, including the formation of a health hub.

• Enable the Precinct to evolve into a thriving regional destination with employment opportunities that match the skills of residents.

• Improved mass transit links to Parramatta and the Western Sydney International Airport.

Economy

Access & Movement

• Ongoing threat of e-commerce and online shopping to retail trade as the uptake of online shopping continues to grow across Australia.

• Market uptake inhibited by various factors (e.g. land cost, speculation and traffic issues etc.).

• Ensuring planning policy is flexible enough to allow shopping centres to respond to changing consumer needs.

• Congestion from regional and local traffic.

• Roads and sprawling Precinct inhibits pedestrian and cycle movements.

• Limited vehicular connectivity that forces traffic onto a handful of key roads.

• Absence of detailed traffic modelling.

• Major road barriers such as Windsor Road and Rouse Hill Drive.

• Large undeveloped landholdings hinder permeability.

• Enhance pedestrian and cycling connections throughout the Precinct.

• New vehicular connections to divert traffic away from roads already at capacity.

• Proximity to existing and emerging residential communities in the rapidly growing North West Sydney Region.

• Potential for enhanced connections to and from surrounding growth areas.

• Achieving a cohesive vision and approach to development throughout the Precinct.

• Creating synergies with Blacktown Local Government Area across Windsor Road.

• Ensuring future development adjacent to the new Rouse Hill Hospital has due regard to the potential impacts on privacy, amenity, solar access and patient wellbeing in the future hospital development.

Amenity & Place

Infrastructure

• School capacity to cater for increased population.

• Capacity of open space network and limited land available to facilitate new active open space areas.

• Potential for Rouse Hill to transform into an attractive employment location with increased vibrancy servicing the northwest with jobs, shopping, dining, recreation and community services.

• Build on the positive foundation and success of the existing Town Centre to establish a distinct and identifiable local character and sense of place.

• A blank canvas - large undeveloped parcels of land in single ownership can lead to higher quality master planned outcomes.

• Set clear parameters for the assessment of the strategic and site specific merit of any future development applications or planning proposals.

• Encouraging a stronger night-time economy to attract and retain workers and visitors.

• Investment in new public health infrastructure and associated medical services and facilities.

• Delivery of new open spaces and plazas in the heart of commercial areas.

• Various new road connections and upgrades.

Table 6. Key Strategic Influences that will Guide and Shape Future Development within Rouse Hill Strategic Centre
Artist’s Impression of Future Development (Source: Cox Architecture)

2.9 Existing Travel Behaviour and Trends

In 2016, there were approximately 2.04 cars per household on average in Rouse Hill (slightly higher than the average for The Hills Shire, being 2 cars per household). It is estimated that if current car ownership trends within The Hills Shire continue, by 2036, there will be an additional 70,000 vehicles on our roads. If this is the case, the roads and infrastructure will not be able to cope, as they are already nearing capacity in many locations throughout the Rouse Hill Strategic Centre.

This is largely reflective of our unique family dominated demographic and the slow rate of modal shift following the opening of the Metro. Many families will need a car for private use on weekends for travel to sport and other activities that are not easily accessible via the Metro or other forms of public transport.

Whilst car share, increased public transport usage and reduced parking rates may be part of the solution to solving our traffic issues, ultimately many families will continue to require access to a private vehicle and associated parking. Whilst this does not necessarily mean that residents will utilise their vehicles to drive to work (as further explained below), this needs to be thoughtfully considered to ensure that the narrative correctly reflects the transit behaviours of our residents outside of work hours and on weekends and that new residential developments continue to accommodate space for private vehicles and lifestyle choices.This approach focuses on the modal shift for trips to and from the Rouse Hill Strategic Centre during peak periods, not necessarily preventing residents from being able to own a car and store it at their place of residence.

Whilst Rouse Hill has traditionally been a car dependent destination, the arrival of the Sydney Metro Northwest poses an opportunity to re-imagine the travel behaviours of our local residents and workers. It provides a convenient rail connection from The Hills Shire to Chatswood, Macquarie Park and the Sydney CBD. When the project is extended, it will provide a direct connection to the Sydney CBD and through to Bankstown. There are also plans to expand the network to ultimately connect The Hills Shire with the new Western Sydney Airport.

A Parking Analysis undertaken by PeopleTrans in late 2020 revealed that between 2011 and 2016 there was a significant increase in public transport use by residents of Rouse Hill Strategic Centre (+3.3% to 13.1%) and a subsequent reduction in trips via car (-1.8% to 70%). An analysis of demand within more established comparable transit centres across Sydney shows that approximately 37% of workers travel to work by car, indicating potential for even greater mode shift to public transport to occur in The Hills, particularly for trips to and from the inner walkable catchment of Metro Stations. It could be reasonably assumed that this mode shift towards public transportation will continue, especially given the Metro did not open until after the 2016 Census and the 2021 Census was conducted at a time when travel behaviours were heavily influenced by the COVID-19 pandemic.

• Fare Costs

• Vehicle Operating Costs

• Parking Costs

• Road Use Costs

• Distance to and Availability of Public Transport

• Routes and Travel Times

• Accessibility

• Comfort of Personal Vehicle

• Reliability of Service

• Availability of Parking at Origin and Destination

• ‘Freedom’ of Car Use

• Personal Safety Concerns

• Social Status Linked to Car Ownership

• Life Stage Based Difficulties (e.g. Travelling with Small Children)

Figure 20. Factors Influencing Mode Choice
Table 7. Summary of Key Travel Behaviour (Source: Adapted from PeopleTrans – Transit Centres Car Parking Report, 2020)
Demographic Details Castle Hill Norwest Rouse Hill The Hills Shire

2.10 Public and Active Transport

Public Transport

Metro Station

Metro Line (Above Ground) Rouse Hill Strategic Centre Bus Route (Current)

Metro Station

Metro Line (Above Ground) Rouse Hill Strategic Centre Up to 5 Minute Walk (400m)*

5 to 10 Minute Walk (800m)*

10 to 15 Minute Walk (1200m)*

*Note: Walking catchments based on current connections.

• The arrival of the Sydney Metro Northwest in May 2019 has begun to transform travel behaviour within The Hills Shire, by providing a rapid transit service that stretches from Tallawong Station through to Chatswood Station. The next phase, stretching from Chatswood to Sydenham, is currently under construction and once complete, the indicative travel time from Rouse Hill to Martin Place will be approximately 40-45 minutes. It is set to open in 2024.

• The Strategic Centre is well-serviced by the ‘Hillsbus Network’. This service primarily runs along key roads within the Rouse Hill Strategic Centre including Windsor Road, Commercial Road, White Hart Drive and Caddies Boulevard, providing direct connectivity to other key centres such as Norwest, Castle Hill, Westmead, Parramatta, Macquarie Park, North Sydney and the Sydney CBD. Locally, the Hillsbus Network also connects to other nearby areas that are not serviced by the Sydney Metro Northwest, including Annangrove, Box Hill, North Kellyville, Beaumont Hills, Stanhope Gardens and Parklea.

Active Transport

• Walkability across the Strategic Centre varies due to topography, existing lot patterns and physical barriers to movement such as major roads and creek corridors.

• Rouse Hill benefits from a wide range of recreational cycling and pedestrian routes. There are several connections across Caddies Creek into nearby existing residential neighbourhoods.

• Retail areas and residential areas to the south of the Rouse Hill Strategic Centre are relatively walkable, falling within the 15 minute walking catchment from the Metro Station. Residential areas in the north of the Precinct (north of Commercial Road and along Mile End Road) are not as wellconnected to the Station currently, falling outside of the 15 minute walking catchment.

• The western side of the Strategic Centre is bound by Windsor Road, serving as a major impediment to pedestrian walkability and cycling connection from Rouse Hill Metro Station to areas west of the Precinct in the Blacktown Local Government Area.

Figure 22. Existing Walkability
Figure 21. Public Transport

2.11 Road and Freight Network

Road Network

Metro Station

Metro Line (Above Ground)

Rouse Hill Strategic Centre

Primary Arterial Road

Sub-Arterial Road

Signalised Intersection

Roundabout T

Freight Network

• The Precinct is serviced by an extensive network of roads which are utilised by pedestrians, bicycles, buses, freight and general traffic. State roads (arterial roads) are managed and funded by Transport for NSW and sub-arterial and local roads are managed and funded by Council.

• The area is serviced by Windsor Road which is a key north-south arterial road as well as several sub-arterial roads including Annangrove Road, Mile End Road, Withers Road, Commercial Road and Schofields Road (in the Blacktown LGA).

• The arterial road network provides connections between Rouse Hill and neighbouring centres, as well as beyond to the City, outer Western Sydney, rural areas to the north and the future Western Sydney Airport.

• Congestion is currently significant along Windsor Road during peak periods, particularly around the Rouse Hill Town Centre. Upgrades to this road to support growth would be the responsibility of State Government.

• Sub-arterial and collector roads provide links between key land use and activity areas, as well as the arterial road network and local roads. With travel demand expected to significantly increase as a result of uplift within the Centre and neighbouring release areas (particularly Box Hill and Gables), upgrades will be needed to ease pressure on the existing road network and new links will be required to improve connectivity.

Metro Station

Metro Line (Above Ground)

Rouse Hill Strategic Centre Freight Network

• Efficient freight links facilitate effective movement of goods, allowing supply chains to function smoothly and influence new markets. Planning for freight and servicing of residential and commercial development is crucial to how the Shire works and connects to adjoining areas, Greater Sydney and beyond. It is a shared responsibility between the NSW Government and Councils.

• Generally, within The Hills Shire, the freight network is confined to the road network in the absence of heavy rail infrastructure. As such, congestion on the local and regional road network presents a challenge for freight movements and for residents living within and around The Hills.

• There are two tertiary freight routes around the perimeter of the Strategic Centre, being Windsor Road and Withers Road. These freight routes connect to other routes beyond the Strategic Centre, being Annangrove Road and Schofields Road.

• Tertiary freight routes provide connections from the local road network, serving numerous major businesses and freight origins and destinations. These roads carry lower volumes of heavy vehicles (<2,000 heavy vehicle annual average daily traffic) than primary routes such as the M7 and M2 Motorways which typically carry volumes of more than 4,000 heavy vehicle annual average daily traffic.

Figure 23. Road Network
Figure 24. Freight Network

2.12 Natural Environment and Special Uses

Topography

• The highest geographic points within the Precinct are located along Mile End Road, Windsor Road (north of Rouse Hill Drive) and just north of Sanctuary Drive at the junction of Commercial Road and Withers Road (shown in yellow in Figure 25 above).

• The north-south spine of Caddies Creek is the lowest point (shown in blue in Figure 25 above).

• There is reasonable variability in topography across the Centre. However, the terrain is relatively level in key areas such as the Town Centre, which is conducive to the creation of active and walkable neighbourhoods, especially in a north-south direction, which aligns with the elongated orientation of the Centre.

Open Space and Vegetation

Metro Station

Metro Line (Above Ground)

Rouse Hill Strategic Centre

Passive Open Space

Active Open Space

Vegetation

Creek

• The Precinct is generally void of endangered ecological communities, which reflects its substantial development to date. The main presence of critically endangered vegetation occurs within the Caddies Creek Corridor and within locally managed open space areas.

• The Hills Centenary Park and Bruce Purser Reserve provide active recreation facilities including athletics, cricket, baseball and AFL fields and associated amenities. Caddies Creek Sports Complex is located to the south of the Strategic Centre.

• The Centre includes several pocket parks and passive open space areas along Caddies Creek, typically providing opportunities for play, social gatherings, informal games and sports activities, exercise and aesthetically pleasing space.

Figure 25. Topography
Figure 26. Open Space and Vegetation

Hydrology

Metro Station

Metro Line (Above Ground)

Rouse Hill Strategic Centre

Catchment Area

Overland Flowpath / Creek

100 Year Flood Extent

• The Precinct currently features a number of hydrological considerations, including flood prone land, creeks and overland flow paths. These factors have been considerations in developing this Strategic Centre to date and will continue to influence future development outcomes.

• The northern portion of the Centre currently drains into Second Ponds Creek Catchment. The southern portion drains into Caddies Creek Catchment.

• The Caddies Creek Corridor is under Sydney Water ownership and is zoned SP2 Infrastructure, reflective of its drainage function.

• There are a number of overland flow paths throughout the Strategic Centre. Whilst these are predominately located on existing roads and dedicated drainage lines, some are on private land and will require careful siting of development, roads and through site links to maintain and improve the capacity of the stormwater network.

*Note: The information presented in this map on flood extent is subject to disclaimer and copyright notice. Refer to Appendix A for details.

Special Uses

Metro Station

Metro Line (Above Ground)

Rouse Hill Strategic Centre

Easement for Transmission Line

Electricity Substation

Heritage Item

Open Space

Hospital and Potential Future Expansion

Existing Schools

• The Rouse Hill Strategic Centre and its surrounds has a rich local history and includes various local and state heritage items such as The Fiddler, Aberdoon House, Mungerie House, Castlebrook Lawn Cemetery and the Rouse Hill Estate.

• Land at the corner of Commercial Road and Windsor Road has been identified for future Rouse Hill Public Hospital, with the existing bus interchange also identified by Health Infrastructure NSW as a potential area for longer term expansion.

• There are a number of existing public and private schools in and around the Strategic Centre.

• Other special uses include an electricity substation along Commercial Road (within the Northern Frame, directly adjoining the planned Rouse Hill Hospital).

• An electricity easement also passes through the northernmost tip of the Strategic Centre.

Figure 27. Hydrology*
Figure 28. Special Uses

2.13 Key Constraints and Challenges

Age of Building Stock and Development Potential

There are various pockets of well-established residential areas which are unlikely to turn over in the foreseeable future predominately due to the recent age and high quality of the building stock and fragmented ownership of land. These areas also contribute to the housing diversity and character of the area.

Connectivity

There is currently limited connectivity within and surrounding the Rouse Hill Strategic Centre. It is bound and bisected by various major roads and vehicular barriers, including Windsor Road, Commercial Road, Withers Road, Mile End Road and Rouse Hill Drive. This poses a challenge in terms of walkability and pedestrian permeability. Large undeveloped lots in some areas also restrict permeability throughout the Precinct.

Environmental Constraints

Whilst mostly free from environmental constraints, there are some minor affectations present, such as threatened species, flood prone land and tributaries.

Limited Public Open Space

There are some open space facilities within the Strategic Centre, however these facilities primarily service the needs of existing residents and some of the growth potential available under current controls. Active open space within and surrounding the Precinct is currently close to capacity, with minimal opportunities for new land areas to be set aside for this purpose to cater for further residential growth beyond existing opportunities.

Land Tenure and Rail Corridor

Existing Strata and community title arrangements will impact on the uptake of redevelopment. Redevelopment of some sites will need to manage any impacts on the Metro line, which runs along the western side of the Strategic Centre. Emergency access requirements for the future hospital may impact on outcomes (for example, building heights) on adjoining land, subject to further advice from Health Infrastructure NSW.

Heritage

There are various items of local and state environmental heritage within the Strategic Centre and its surrounds.

School Infrastructure

There is currently a lack of school infrastructure to cater for additional residential yields beyond existing opportunities under current controls, notwithstanding the fact there are already three schools within the Centre. This will need to be resolved by the NSW Government and Schools Infrastructure NSW to appropriately service the needs of the future population.

Metro Station

Metro Line (Above Ground)

Rouse Hill Strategic Centre

Major Roads and Barriers

Urban Overland Flowpaths / Creeks

Strata Development

Easement for Transmission Line

Electricity Substation

Heritage Item

Open Space chools

2.14 Key Opportunities

Employment Growth

There is opportunity to continue to grow employment, leveraging off the rapid residential growth in the nearby North West Growth Areas and the planned Rouse Hill Hospital. Urban services in key locations will also be retained and managed as important population-serving components of the Centre.

Diverse Housing Opportunities

Various areas have been earmarked within the Centre to provide varied housing opportunities to meet the unique needs of residents.

Maximising Underdeveloped Sites

There is potential to capitalise on underdeveloped and minimally constrained sites for new high density employment and health services development surrounding the planned Rouse Hill Hospital.

Public Transport Corridor

Ongoing advocacy for regional transport upgrades will be critical in achieving a 30-minute city, attracting highly skilled and knowledge intensive workers to the Precinct and reducing pressures on the road network. Three options for a future public transport corridor connecting Box Hill to Rouse Hill are identified for further investigation in consultation with TfNSW.

New Vehicular Links

The provision of new vehicular links will be key to Rouse Hill achieving its full potential as a Strategic Centre, by easing congestion on existing entry and exit points (near the Northern Frame and land immediately north of Commercial Road).

Local Pocket Parks

There is scope to deliver additional local pocket parks, informal open space areas that can be enjoyed by local workers and residents.

Enhanced Pedestrian and Cycling Links

There is potential to improve pedestrian and cycling links, including new pedestrian bridges to improve permeability, especially across Rouse Hill Drive, Windsor Road and Commercial Road.

Public Domain Improvements

There is potential for a variety of public domain improvements throughout the Precinct, particularly to build upon the success of the existing Rouse Hill Town Centre, to establish a clear identity and create places that residents and workers will enjoy using. Development of key sites north of Rouse Hill Drive provide the opportunity for new north-south pedestrian links through currently impermeable land.

Heritage

There is an opportunity to showcase existing heritage items, such as The Fiddler, as part of future developments.

Figure 30. Opportunities

Metro Station

Metro Line (Above Ground)

Rouse Hill Strategic Centre

Proposed Pedestrian Bridge

Intersection Improvement

Pedestrian Link

Vehicular Link

Public Transport Corridor Options

Diverse Housing Opportunities

Local Centre

High Density Employment and Health Services

Urban Services

Hospital and Potential Future Expansion

Open Space

Urban Plazas

Artist’s Impression of Residential Development with Active Ground Floor Uses (Source: Group GSA)

3.1 Vision for the Rouse Hill Strategic Centre

This Precinct Plan sets the framework for Rouse Hill to grow into a thriving regional destination and mixed use Strategic Centre, with employment opportunities to match the needs of local highly skilled residents. The vision for the Centre builds on previous strategic work by Council and the NSW Government as well as technical investigations focused on the Shire’s centres that provide insight into their unique features, role and function in the region. It advances the planning into finer grain, site specific detail to inform potential changes to planning controls and the infrastructure framework, which can occur as the market demands, with the support of appropriate infrastructure.

By 2041, Rouse Hill Strategic Centre will be a prime destination for knowledge intensive businesses focused on health, education, science, technology, finance and advanced manufacturing. Business will enjoy the proximity and ease of access to complementary services and facilities at the nearby Castle Hill and Norwest Strategic Centres and the economic competitiveness offered by enhanced connections to Sydney CBD, Greater Parramatta and the Western Sydney Airport. Rouse Hill will be a key part of a linked network of Strategic Centres and prominent office markets that spans across the Sydney Region and will offer a range of employment opportunities suited to the highly skilled workforce that lives in The Hills Shire and rapidly developing North West Growth Area.

Over the next 20 years the Rouse Hill Strategic Centre will grow into a location valued by workers, residents and visitors for its vibrancy and amenity. Capitalising on the opportunity to master plan large undeveloped parcels of land near the Metro Station and T-way Interchange, Rouse Hill will become a walkable centre with high quality well designed buildings at its core. In addition to hosting a new public hospital and health hub, the Strategic Centre will provide appealing and safe places to shop, dine, socialise, live and enjoy cultural and leisure experiences, all within the walking catchment of high frequency mass public transport.

Lifestyle will be enhanced by well-planned, convenient walking and cycling tracks. These will connect employment areas and the Metro Station, and provide convenient access to the Caddies Creek Corridor, new urban plazas and provide open space in the heart of the Precinct. Rouse Hill will have a distinct local character and sense of place founded on the rich local history and Garden Shire identity and strengthened by enhancing and protecting areas of the public domain and building on the successful design principles and character already evident within the Centre.

“The Strategic Centres of Castle Hill, Norwest and Rouse Hill will be part of a linear city that spans across the Metropolis of 3 Cities, connecting the region’s major employment Precincts, universities, hospitals and community services.”

Artist’s Impression of the Fiddler and Surrounds (Source: Tome Visuals)

Metro Station

Metro Line (Above Ground)

Rouse Hill Strategic Centre

Proposed Road

Low Density Residential

Medium Density Residential

High Density Residential

Local Centre

Mixed Use

High Density Employment and Health Services

Urban Support Services

Open Space

Drainage Land

Special Use

Potential School*

Signalised Intersection

Pedestrian Bridge

Left-in-left-out Intersection

Urban Plaza

Roundabout

Pedestrian Link

Public Transport Corridor Options

*Note: Subject to future investigations by School Infrastructure NSW.

3.2 Rouse Hill - A Mixed Use and Transit Oriented Centre

This Precinct Plan will apply the principles of transit-oriented development to future growth in Rouse Hill Strategic Centre and promote a compact and walkable Precinct, which accommodates a mix of uses, all centred around the well-established Town Centre and Rouse Hill Metro Station.

Transit Oriented Development is the concept of maximising the density of development (be it housing, employment, retail, services and leisure) within walking distance of public transport and creating walkable and high-amenity Precincts. The concept of Transit Oriented Development is more relevant in the context of how the broader catchment areas around transport nodes are planned and work together as an agglomeration of land, as opposed to referring to a specific outcome on an individual site in isolation.

Generally, the catchment for Transit Oriented Development is measured based on walkable distance from a transport node, with a focus on land that is within 800 metres (or sometimes 1.2km) from a transport node. This specific distance can vary, often depending on how walkable an area is having regard to factors such as slope and the quality pedestrian connections. However, it generally correlates with how far the average person could walk in 10 - 15 minutes and how far someone will be willing to walk between their origin or destination and a transport node. In short, it is the threshold under which we observe behavioural changes and in particular, a shift to rely on public transport versus private vehicle usage.

Some of the key benefits of Transit Oriented Development are that it:

Reduces car dependence and traffic congestion and encourages the use of public and active transport over private vehicle trips.

Allows for the creation of pedestrian friendly areas with greater emphasis on place-making, amenity and active transport, in comparison to more traditional vehicle dominated areas.

Maximises the efficient use of public transport infrastructure, such as the Sydney Metro Northwest.

Reduces the relative cost of servicing new development with infrastructure able to be provided more efficiently to service growth in a consolidated and compact area, as opposed to a sprawling greenfield area.

Creates active and vibrant areas where local economic activity and investment can be focused with confidence.

Achievement of the long-term vision and objectives for Rouse Hill to continue its evolution into a thriving mixed use Strategic Centre will require a planning framework which allows for a broad mix of retail, employment, health, residential and leisure uses to occur in close proximity to each other and within the walkable catchments around the Metro Station. This will help to create engaging and vibrant areas where a diversity of activities and functions can occur and where a viable day, night and weekend economy can exist.

In the context of a mixed use and transit-oriented Precinct, it remains important that certain areas can be designated for specific outcomes. A clear land use framework delivers the right mix of uses that create a vibrant place and also provides certainty, confidence and viability for the market and landowners to make informed investment and development decisions with the clear knowledge of highest and best use. This will facilitate the achievement of short and long term strategic planning objectives for the Centre and avoid potential land use conflicts and amenity issues. It will also reduce the risks associated with investment decisions spurred by speculation around the permissibility of higher value uses, which can artificially drive up land values to the point where development outcomes are no longer viable. In recent times, it has generally been the case that speculation around the potential for residential outcomes to become permitted on land can artificially inflate land values such that the feasibility of strategically identified urban services, employment or health outcomes becomes less viable.

The concept of a mixed use Strategic Centre is not incompatible with also designating specific areas within the centre where residential development will not be permitted, such that these areas can be retained for viable urban services, employment and health development. This philosophy is supported within the strategic planning framework, including the Greater Sydney Region Plan, Central City District Plan and Council’s Local Strategic Planning Statement which envisage Rouse Hill as a mixed use Strategic Centre, containing a designated health precinct and areas for medium and high density residential development.

Currently, residential development outcomes are permitted on approximately 90% of all land within 1.2km walking distance of the Rouse Hill Metro Station (although some of this is in areas where residential outcomes are complementary to retail outcomes). As the existing zoned capacity for new dwellings in these areas is realised by the market over the next 10-20 years, a significant residential population will reside within 1.2km of the Metro Stations, bringing with it the activity, vibrancy and viability that is the goal for mixed use Precincts. This Plan also identifies further residential growth potential, beyond these currently anticipated outcomes.

In contrast to residential outcomes, which are permitted on most land within the Strategic Centre, only 10% of land within 1.2km walking distance of the Metro Station is designated specifically for employment and urban services outcomes. In the context of significant incoming residential development both within the Centre and the broader region and acknowledging the underlying economic goal of employment growth within the Strategic Centre, it remains important that these scarce areas continue to be retained, and potentially expanded, for employment development outcomes, even if the pace at which the market capitalises on these opportunities is more moderate than has been the experience for residential outcomes over recent decades. With relatively flexible land use permissibility within employment zones, these areas still have ability to accommodate a range of other uses that attract people to an area and create vibrancy, albeit not being residential development.

As the demand for health services and knowledge intensive jobs grows, particularly surrounding the future Rouse Hill Hospital, it is important that designated areas of non-residential land remain available for this purpose and to ensure Rouse Hill does not become a “dormitory” centre.

This Plan will set the framework for Rouse Hill’s continued evolution into a thriving mixed use Strategic Centre, building on the recent planning work completed by State Government and Council and the emerging mix and distribution of uses throughout the Centre. It will ensure that the Centre contains adequate and appropriately defined areas of land to facilitate the varied range of urban uses which are expected to be accommodated within the Centre, interspersed throughout the Centre and within close and walkable proximity to each other and the Metro Station. This will deliver a truly mixed use and transit oriented Strategic Centre.

3.3 Guiding Principles

The Precinct Plans for all three of Council’s Strategic Centres are underpinned by 12 guiding principles, which provide a framework for them to reach their full potential as highly diverse, liveable and desirable places to work, live and play for existing and future workers, residents and visitors. These guiding principles have been derived from the guidance and objectives provided within the relevant strategic planning policies, along with the strategic planning investigations commissioned by Council in late 2020. They also reflect Council’s aspirations for the Strategic Centres as articulated within the Local Strategic Planning Statement and the objectives identified within Council’s Community Strategic Plan.

Growing Employment

Delivering quality jobs so that our residents can have a genuine choice to work locally in fields that suit their individual needs and skill sets, whilst simultaneously reaping the lifestyle benefits that our Strategic Centres have to offer. In addition to matching the skill sets of local workers, the attraction of investment in knowledge intensive and innovative industries, as well as an allied health services cluster around the future Rouse Hill Hospital will bring a higher value and resilience to the local economy enabling our centres to grow into competitive, productive and thriving employment hubs.

Delivering Transit-Oriented Development (TOD)

This principle is central to urban renewal and focuses on locating the highest density of development in closest proximity to transport hubs, enhancing walking and cycling connections and carefully managing parking locations and delivering compact, walkable and liveable centres which contain a mix of uses. Building height will be used in moderation, to allow for appropriate densities in the context of each individual site and prioritise the experience of the urban environment for pedestrians at the ground plane through generous landscaping, plazas, setbacks and building separation.

Improving Regional Connectivity

Quality connectivity to the wider Greater Sydney Region will be pivotal in enhancing the desirability of the Strategic Centres as places to live, work and visit. In addition to capitalising on the existing public transport system and connections to the Sydney Central Business District, the realisation of mass transit connections to Parramatta and the Western Sydney Airport provides opportunity to transform how the Shire’s Strategic Centres are perceived and thereby leverage investment and economic growth.

Achieving a 30-Minute City

Ensuring that people live within 30 minutes of their nearest Strategic Centre, when accessed by public transport, will enable more residents to work close to home, decrease commute times, reduce traffic congestion and improve the lifestyles of our residents. Whilst the Strategic Centres collectively benefit from proximity to Metro Stations, improving active transport connections and place-making are key considerations in Precinct planning to encourage a shift from reliance on private car use to more sustainable transport modes.

Infrastructure to Meet Needs

Our residents and workers require and deserve adequate local and regional infrastructure to enable them to go about their everyday lives. The provision of regional facilities including schools, emergency services, public transport and traffic upgrades will require meaningful collaboration with State agencies informed by anticipated growth projections. The provision of local infrastructure facilities including playing fields, parks, traffic and transport works, libraries, community facilities and stormwater works will require appropriate infrastructure contribution mechanisms to be put in place in line with any changes to planning controls.

Supporting Business and Residents with Urban Services

The term ‘urban services’ covers a range of industries and activities that are fundamental to how the Shire functions and are critical to supporting population and jobs growth. The need for services close to homes and workplaces such as motor vehicle services, repairers, printers, waste management and food preparation, is only going to increase with expected growth. As the Shire undergoes transition and urban renewal, protecting industrial and urban services land will ensure capacity is maintained for a range of essential activities to co-exist with new development.

Commercial Development
Rouse Hill Metro Station and Surrounds
Rouse Hill T-Way
Rouse Hill Metro Station
Bruce Purser Reserve
Urban Support Services

Diversity of Housing

Providing a choice of housing opportunities is essential in meeting the needs of a range of budgets and lifestyles. With the Shire’s demographic expected to continue to feature family groups, there is a need to plan for an adequate amount of apartments to cater to these groups. Future residential development will be guided by transit oriented development principles and focused upon walkability, activation and vibrancy. With sufficient land zoned within the Shire to meet and exceed housing targets to 2036 and beyond, the provision of additional housing must not be at the expense of ensuring that key employment lands are protected and identified, providing certainty to the market and facilitating the necessary commercial investment to achieve the Shire’s job targets.

Creating Places for People

The COVID-19 Pandemic has highlighted the importance of having access to everyday necessities and feeling connected within a ‘5-minute neighbourhood’, especially with people now valuing their local communities more than ever before. A focus on quality urban design outcomes and public domain improvements together with access to a range of everyday necessities will draw people to the Precincts and enable the Strategic Centres to evolve to great places for residents and workers.

Enhancing the Public Domain

Providing a desirable, accessible, safe and functional public domain that is usable by all people will be pivotal to the success of the Rouse Hill Strategic Centre. The Precinct Plans will continue to protect, enhance and showcase the successful elements that already exist, such as the Caddies Creek Corridor, as these are assets valued and regularly utilised by the local community. With people now becoming more active and looking to alternative modes of transportation, active movement opportunities will be prioritised through additional walking and cycling routes. This will be supported by a variety of rest and gathering opportunities along local streets. A unified palette of materials and finishes, along with public art and informative wayfinding, will also assist in creating a clear ‘brand’ for our centres.

Maintaining and Showcasing Local Character

The Shire has a rich local culture and heritage and extensive open space network which can draw people to the Precincts. A focus on the key landmarks throughout the Precincts such as The Fiddler, Rouse Hill Main Street, Aberdoon House and Caddies Creek Corridor will help to deliver spaces that the community are proud of and want to visit. Fostering a unique and distinguishable local character will be a key ingredient in building local connections and encouraging a strong sense of place.

Integrating ‘Smart’ Technology

Technological advancements are also creating exciting opportunities for future developments, as technology is increasingly integrated as part of development and within the public domain - unlocking the potential for the emergence of ‘Smart Places’. To ensure our Strategic Centres keep pace with technological advancements, the Precinct Plans will seek to integrate technology as they continue to evolve into competitive employment destinations in a bid to better support residents, workers and visitors.

Encouraging Sustainability

Sustainability will be a key driving factor in planning for future growth within Rouse Hill over the next 20 years. Sustainable practices will be increased and prioritised within future developments, such as green walls and roofs, solar panels, lighter colour palettes, active movement corridors, stormwater management or utilising sustainable materials in the public domain. Green infrastructure will be expanded where possible. Natural environments, such as Caddies Creek Corridor, will also be protected and maintained. These areas will also be enhanced where possible, so they can be enjoyed by residents, workers and visitors, providing places where they can socialise and relax.

Public Domain
Apartment Building along Caddies Creek Corridor
Public Domain (Source: Aspect Studio)
The Fiddler
Smart City
Natural Environment

3.4 Environment and Sustainability

The Rouse Hill Strategic Centre currently offers a diverse array of environmental assets and features that are regularly used by the community. These include existing green links (the Greenway Link and Caddies Creek Trail), public domain areas, parks and local creeks and tributaries. The existing Rouse Hill Town Centre also incorporates an array of sustainability initiatives seeking to reduce energy and water usage and enhance the performance of the built environment for Rouse Hill.

As Rouse Hill continues to grow and evolve, further consideration must be given to sustainability and the environment. Sustainable practices must be embedded within any new developments, upgrades and improvements to the public domain. Examples of this may include stormwater management, active movement corridors, reducing urban heat and utilising sustainable materials.

Given Rouse Hill has historically been quite a car-dependent area, encouraging a shift towards public transportation will be a major way to improve sustainability. This could be through increasing the proportion of trips by public transport (capitalising on the arrival of the Metro), providing additional walking and cycling links and reduced parking rates. Not only will this improve traffic flow on the road network, but this will also have substantial benefits for the environment by reducing emissions and improving air quality. Implementing a high quality and well-connected public domain that focuses on active transport opportunities will be pivotal to achieving this.

Green links will be enhanced throughout the Rouse Hill Strategic Centre, particularly north-south connections, providing high quality pedestrian and cycling connectivity within and surrounding the Centre. Road upgrades to Commercial Road and Withers Road will improve pedestrian and cyclist connectivity into and out of the commercial areas from the residential surrounds. New pedestrian bridges will also be provided to prioritise the pedestrian experience.

Increasing the urban tree canopy cover within the Rouse Hill Strategic Centre will be key to managing and mitigating urban heat. The urban tree canopy is a form of green infrastructure providing shade, which reduces ambient temperatures and mitigates urban heat. The urban heat island effect is where large amounts of hard and dark-coloured surfaces like roads and roofs cause localised warming.

This Precinct Plan envisages more trees along streets, in parks and other public spaces, as well as on privately owned land. Large areas of individual sites will be expected to accommodate soft landscaping and deep soil zones capable of supporting mature trees. It also anticipates that more efficient glazing, shading, water capture and storage and passive solar heating design will be incorporated into future developments to reduce use of electricity and water.

Public domain areas will be enhanced throughout the Strategic Centre and it is envisaged that high quality urban plazas will be incorporated into future developments, particularly within the Northern Frame. Future developments will also be sympathetically designed to be compatible with the natural surroundings.

The Hills Development Control Plan will be the key mechanism to achieve this vision, along with the Public Domain Plan. While development controls and objectives relating to sustainable design are already being rolled out in Station Precincts and in association with site-specific planning proposals, this Plan recommends that these policy settings be applied more broadly across the Centre, in a consistent and streamlined manner.

Future DCP amendments will seek to achieve this by incorporating controls relating to the following:

• Green Star Ratings.

• NABERS energy and water ratings.

• Cool roofs, green walls and green roofs.

• Tree plantings in street verges.

• Photovoltaic facades and shading devices.

• Maximisation of natural light and cross ventilation.

• Reduced reliance on mechanical heating and cooling (through the use of eaves, awnings, good insulation and landscaping).

• Energy efficient light fittings and water fittings.

This is further discussed in Section 4.5 of this Precinct Plan.

3.5 Evolution into a ‘Smart Rouse Hill’

To ensure that Rouse Hill keeps pace with technological advancements and strategies being employed in other major employment destinations, this Precinct Plan aims to facilitate discussion and feedback on the types of infrastructure Council, or the private sector, may wish to pursue over the coming years as Rouse Hill grows and evolves.

Achieving a Smart Rouse Hill will assist in cementing the Rouse Hill Strategic Centre as a thriving retail, employment and entertainment destination. The delivery and use of evolving technologies can also improve operational efficiency, better meet the needs of our community, boost economic investment and improve sustainability measures.

What are Smart Places?

Evolving technology is quickly becoming part of everyday life. As it gets cheaper and easier to produce, its appeal and accessibility increases. Council and its officers will increasingly be required to consider, discuss and make decisions with respect to digital infrastructure, technology and ‘smart’ initiatives as these become increasingly important elements of the urban environment and an expectation of residents, businesses and all customers of the organisation.

“Smart Places” are areas where technology, data and innovation are relied on to increase the efficiency of everyday processes, overcome complex challenges and improve quality of life for residents, workers and visitors, both now and into the future. They include the combination of publicly owned land, private areas and publicly accessible private land.

The evolution of The Hills into a Smart Place is already well underway, with high quality digital infrastructure present across much of the Shire and many examples of initiatives already being implemented that use evolving technologies and systems. However, work is progressing on a framework that is intended to supplement Council’s Strategic Centre Precinct Plans and guide decision-making with respect to the delivery and use of evolving technologies in the urban environment that provide better connected and informed communities.

Such a framework could assist in establishing and communicating a strategic direction for the continued transformation of the Shire and facilitate further discussion, collaboration, investigation, decision-making and action by stakeholders.

Early planning and consideration of how to integrate these technologies during master planning will make it easier and more cost effective for the private sector to deliver these technologies as they become more widespread. Ensuring the right digital infrastructure is in place early in the process will be critical in digitally futureproofing Rouse Hill, to ensure opportunities to integrate smart technologies within developments remains achievable and viable for Developers and other key stakeholders moving forward.

This is further discussed in Section 4.5 of this Precinct Plan.

Existing Initiatives Already Underway

• Online booking systems for Council facilities, such as some tennis courts and community facilities, which allows users to book Council facilities online and then access them (and control lighting) remotely without the need for keys or assistance, creating an efficient and seamless experience for customers.

• Council has smart poles installed along Main Street in Castle Hill and is currently working in partnership with developers for the installation of 20 smart light poles around Norwest Lake in the Norwest Strategic Centre.

• Metro stations have been fitted with CCTV to increase safety of the public domain, as well as public address systems to provide important information to people walking by.

Council will prepare and endorse a policy to guide the delivery and use of evolving technologies in the urban environment.

- LSPS Action 22.1

• Electric vehicle charging stations are available at Council’s Administration Building and the newly constructed WAVES Fitness and Aquatic Centre.

• Online library app – Libby – that enables people to enjoy eBooks and audiobooks. This is designed to make borrowing books easier, more convenient and more accessible.

Libby App

Governance

Collaboration across government, industry and business.

• Continue the roll out of online forms and increase usage of online tools and digital media to encourage more engagement with important content.

• Explore opportunities to implement new initiatives and technology through Government grant programs, developer contributions and asset renewal programs, as well as opportunities to generate new revenue streams from smart initiatives.

• Explore opportunities to better prepare our residents for natural disasters and build resilience within the community, potentially through the introduction of online monitoring systems and publicly accessible dashboards.

• Increase the roll-out of pedestrian counters to obtain and analyse realtime data and better understand pedestrian desire-lines and how people use the streets and road network.

Living

Connects people and uses technology-enabled infrastructure.

• Expand the installation of smart light poles in key areas of public domain and highly trafficked walkable catchment areas surrounding Metro Stations.

• Wayfinding information pylons and/or digital touch screens in highly trafficked walkable catchment areas surrounding Metro Stations, to help people find their way around and keep updated with local events.

• Explore ways to use inclusive smart assistive technology in the public domain to improve equitable access to all areas within The Hills Shire, with a specific focus on making the public domain more accessible for those with a disability.

• Encourage the introduction of free, publicly accessible and reliable Wi-Fi in public spaces to provide equitable access to the internet and enable people to work while enjoying public spaces.

Economy

Digital infrastructure to support business growth, investment and sustainability.

• Advocate for improved digital infrastructure, wireless connectivity and increased internet speeds across the Shire and for public and private investment in technology solutions for business and employment areas.

• Explore potential for digital infrastructure and technology in the public domain within Strategic Centres to better support local workers and boost productivity, such as outdoor ‘work hubs’ that allow office workers or students to work outdoors, charge their laptops and connect to free high-speed Wi-Fi.

• Continue to engage with local business and start-ups to understand their needs, challenges and opportunities.

People

A strong and connected community using technology that enables everyone to participate.

• Investigate ways to encourage a more convenient and efficient parking experience in the context of paid parking areas by enabling people to book, pay, start, stop or extend their parking with their phone.

• Investigate opportunities for technology such as smart lighting, CCTV and night-time wayfinding systems to be installed and/or enhanced in targeted areas to facilitate safer pedestrian movement for all user groups.

• Consider pilot opportunities for sensor-based interactive lighting or water play features in local parks or urban plazas, to create a more dynamic, interactive and exciting public domain.

Environment

Technology and innovation to improve the environment.

• Continue to review the planning framework to ensure sufficient off-street electric vehicle charging infrastructure and future capacity for upscaling is incorporated within new commercial and residential developments.

• Explore potential opportunities to expand the network of solar panels on Council-owned venues and facilities.

• Installation of air quality, temperature and other environmental sensors in selected public spaces that link to a public dashboard to alert people of environmental and atmospheric conditions.

• Explore opportunities to introduce online monitoring systems and publicly accessible dashboards to prepare our residents for natural disasters such as floods.

Note: This page builds on the principles identified in Council’s LSPS and presents a list of potential indicative options that stakeholders may wish to consider moving forward. It does not commit Council or other stakeholders to delivering the above mentioned items, it just presents potential options to facilitate discussions moving forward.

Artist’s Impression of Mixed Use Development (Source: Cox Architecture)

Focus Areas and Structure Plan 04

4.1 Focus Areas

A number of “Focus Areas” have been identified for the Precinct. These build on the planning work completed to date and guide the achievement of the vision for the Precinct. These outcomes are reflected in the vision and structure plan in Section 3 of this Precinct Plan.

Metro Station

Metro Line (Above Ground)

Rouse Hill Strategic Centre

Rouse Hill Hospital

Northern Frame

*Note: This Focus Area is intended to apply to the Precinct as a whole, rather than being specific to individual sites. Therefore, it has not been visually shown on the map like the other Focus Areas. 1

Tempus Street Sleeve Sites

Bus Interchange

Town Centre Core

Home Hub (4-6 Commercial Road)

The Fiddler (2 Commercial Road)

Lot 901 DP1029336 Windsor Road

Protecting and Encouraging Urban Services

Rouse Hill Village Centre

Enhancing the Public Domain*

Figure 32. Focus Areas
Artist’s Impression of Town Centre (Source: GPT)

4.1.1 Focus Area 1 – Rouse Hill Hospital

In 2021, the NSW Government announced the re-location of the new Rouse Hill Hospital to within the Northern Frame of Rouse Hill (rather than on the opposite side of Windsor Road in Blacktown Local Government Area).

The repositioning of the hospital to within the Northern Frame provides significant opportunity for growth and investment in the health services industry. It is understood that the Rouse Hill Hospital is intended to be an innovative and research driven hospital for the rapidly growing North West Region, with the NSW Government committing $700 million to develop the hospital. It is understood that the new Rouse Hill Hospital will include an emergency department, maternity services, ambulatory and outpatient care and medical imaging services.

The hospital will be located on land at the corner of Commercial Road and Windsor Road (as shown in Figure 33), wrapping around the existing Endeavour Energy sub-station. It is approximately 2.4 hectares in size and adjoins a large consolidated vacant parcel known as the “Northern Frame” (refer to Focus Area 2) and is within walking distance to the Metro Station. It is understood that the site was chosen for its strategic position near the existing Rouse Hill Town Centre and Rouse Hill Metro Station.

At the time of preparing this Precinct Plan, a State Significant Development Application had been lodged with the Department of Planning and Environment for the hospital, seeking concept approval for the Rouse Hill Hospital and Stage 1 preliminary works (including earthworks, infrastructure and construction parking). Notably, the proposal includes a hospital building, multi storey car park, areas of open space and indicative road layouts, in a built form that varies up to 8 storeys.

It is understood that the Clinical Services Plan (CSP) for the hospital is still being finalised by Western Sydney Health District. Accordingly, the full suite of services offered by the hospital are yet to be confirmed. However, Health Infrastructure have advised of their intent to future proof long term expansion opportunities for the Hospital in acknowledgment of the growth occurring in the North West. This may include expansion onto the Bus Interchange adjacent to Windsor Road, which is currently in Government ownership (refer to Focus Area 4).

It is critical that development within the Rouse Hill Strategic Centre, particularly on the Northern Frame (Focus Area 2), has consideration for the planned future Rouse Hill Hospital, which poses an opportunity to be a key catalyst for growth in the health and education sector.

The State Significant Development Application (SSDA) material recognises that the Rouse Hill Metro Station and Rouse Hill Hospital will be catalysts for future commercial developments and a greater proportion of knowledgeintensive jobs within the Rouse Hill Strategic Centre. It also articulates that a new health service for Rouse Hill will grow the health and education sector and associated services.

The Greater Sydney Region Plan articulates that universities, hospitals, medical research institutions and tertiary education facilities are significant contributors to the economy within the Greater Sydney Region. The Region Plan estimates that by 2036, 21% of all jobs in Greater Sydney will be in the health and education sectors. It establishes clear expectations and guidance in terms of what is expected within health and education Precincts. It is also noted that the job targets in the District Plan for the Rouse Hill Strategic Centre were established prior to any commitment to deliver a hospital in this location.

This Precinct Plan aims to set a framework that will:

• Create the conditions for the continued co-location of health and education facilities and services to support the growth of the Precinct.

• Have high levels of accessibility.

• Attract associated businesses, industries and research.

• Facilitate housing opportunities for students and workers within 30 minutes of the Strategic Centre.

To realise this vision, this Precinct Plan flags the hospital site as special use, supported by a designated employment and health services area and surrounding residential areas. Future development surrounding the hospital must have regard for its unique requirements (including access, supporting uses and infrastructure), which will be a key consideration as development applications and/or planning proposals are assessed in the future.

Council will continue to work with the State Government (including Health Infrastructure NSW) and adjoining landowners as the project continues to progress throughout the design and approval stages. It is understood the hospital will be developed in stages with potential for expansion over a longer-term horizon within this Focus Area and the adjoining Bus Interchange (Focus Area 4).

Figure 33. Aerial View of Focus Area 4.1.1 (Source: Nearmap Aerial Imagery, copyright Nearmap)

Metro Line (Above Ground)

Focus Area

Proposed Road

High Density Residential

High Density Employment and Health Services

Mixed Use

Special Use

Open Space

Signalised Intersection

Pedestrian Bridge

Urban Plaza

Pedestrian Connection

Vehicular Connection

Public Transport Corridor Options

Figure 35. Indicative Layout Plan
Figure 36. Artist’s Impression of Rouse Hill Hospital (Source: Health Infrastructure NSW)

4.1.2 Focus Area 2 – Northern Frame

The Northern Frame is a large, consolidated site located in the heart of the Rouse Hill Strategic Centre. It has a site area of approximately 7 hectares and is generally undeveloped, except for an informal staff parking area to support the existing retail hub.

The site is bound by Commercial Road to the north, Caddies Boulevard to the east, Rouse Hill Drive to the south and the hospital site and a bus layover area on State Government-owned land to the west. The Northern Frame adjoins the planned future Rouse Hill Hospital (refer to Focus Area 1) and is between 250m and 900m walking distance from the Rouse Hill Metro Station.

This Focus Area does not encompass all land previously identified as the “Northern Frame” within the 2004 Rouse Hill Regional Centre Masterplan. Specifically, it excludes the site of the future Rouse Hill Hospital (refer Focus Area 1), the electricity substation, the bus-layover area along Windsor Road (refer Focus Area 4) and a development site on the corner of Rouse Hill Drive and Caddies Boulevard, where a residential flat building development has been approved and is currently under construction.

The Northern Frame is the single largest undeveloped landholding within the Rouse Hill Strategic Centre, located near key infrastructure such as the Rouse Hill Metro Station, the planned Rouse Hill Hospital and the wellestablished Rouse Hill Town Centre. Whilst it is not expected to facilitate all required job growth identified for the Rouse Hill Strategic Centre, given its location, it has been earmarked as a key area for employment growth and the establishment of a designated employment and health services area (refer to Section 4.3 - Character Statements).

It is imperative that future development within the Northern Frame Focus Area capitalises on its proximity to the planned Rouse Hill Hospital, which will be a catalyst for change within Rouse Hill and an opportunity for Rouse Hill to emerge as a health and innovation Precinct with significant job capacity. This Precinct Plan identifies a designated employment and health services area surrounding the hospital, to assist in meeting job targets, particularly a variety of health and education and knowledge-intensive jobs that will attract businesses that employ the highly skilled workforce in The Hills.

A new retail and restaurant Precinct will emerge as an extension of the Rouse Hill Town Centre, which directly adjoins the designated employment and health services areas. This area is expected to build upon the success of the existing Rouse Hill Town Centre, providing a range of dining, entertainment and retail opportunities that meet the daily needs of residents and workers.

The prioritisation of employment and health services outcomes for the Northern Frame is paramount and logical to capitalise on the opportunity presented by the planned Rouse Hill Hospital. However, potential for residential development with active ground floor uses is also appropriate in some parts of the Focus Area, the extent of which would be limited by the capacity of the local and regional infrastructure network.

The delivery of residential development (in addition to the principal employment and health services outcomes) is heavily contingent the following:

• Fully capitalising on the employment opportunities provided by the planned Rouse Hill Hospital (which was not known at the time of setting the District Plan job targets for the Strategic Centre).

• Ensuring the employment and health services areas within the Northern Frame have capacity for no less than 4,400 jobs (noting that not all of this capacity will necessarily be taken up in the short term or even by 2041).

• Demonstrating that residential yield can be adequately serviced by infrastructure (including new active recreation facilities).

• Demonstrating that residential development can be accommodated in an appropriate built form, having regard to the current and future character of the locality, including the sensitive interface with the Hospital where reduced heights and increased building separation may be required.

• Provision of pedestrian infrastructure to prioritise pedestrian movements between the Metro Station and the Northern Frame.

Whilst guidance is provided in this Precinct Plan, it is anticipated that future uplift will be facilitated by a landowner-initiated planning proposal for the subject site. This is intended to further explore key urban design considerations such as the height of building controls, maximum floor space ratio controls and facilitation of future road connections and infrastructure.

Built form immediately adjoining the Hospital will need to be carefully designed and sited to ensure that solar access and view impacts are not compromised for the Hospital. These objectives are crucial when designing development in proximity to new health infrastructure to prioritise patient and visitor wellbeing.

Careful consideration will be needed throughout the master planning process for this site, to determine how it will work in tandem with the planned Rouse Hill Hospital, leveraging off this key piece of infrastructure, as the Government provides greater clarity with respect to the scale and scope of services to be located within the Hospital.

Figure 37. Aerial View of Focus Area 4.1.2 (Source: Nearmap Aerial Imagery, copyright Nearmap)

The need for capacity of no less than 4,400 jobs has been identified within the Northern Frame. However, it is recognised that not all of this development capacity will necessarily be fully realised by 2036 or 2041. This is reflective of the infancy of the Rouse Hill Strategic Centre and the growing regional catchment that it will continue to serve, being the North West Growth Areas. It also recognises that as planning for the Rouse Hill Hospital is in its infancy, the planning framework for the surrounding land should ensure sufficient potential to respond to both early stages of the hospital and the opportunities resulting from potential expansion of the hospital in the longer term.

There is already an abundance of opportunities to meet and exceed residential dwelling targets for Rouse Hill (and The Hills more broadly). Furthermore, there is limited capacity for the infrastructure network to accommodate more residential yield beyond the growth opportunities identified within this Plan.

Enabling the right amount of residential development to occur whilst also identifying and protecting sufficient land and capacity for short, medium and longer term employment objectives will ensure the Strategic Centre can continue to serve its intended role and function beyond the 2041 development horizon.

It is important that future development opportunities in the designated employment and health services area remain flexible to accommodate the range of uses that are expected around the future hospital (such as other health services, research, education or medical facilities) and recognises that these land uses will be characterised by a range of different job density outcomes, that are not as easily quantifiable in terms of floor space requirements as standard commercial office development. Importantly, initial phases of employment development may not achieve the maximum built form capacity of sites and medium to long term redevelopment will enable further employment capacity as and when demand for further employment floor space arises.

A planning proposal should secure new pedestrian connections (including a new pedestrian bridge across Rouse Hill Drive) and critical future vehicular connections, providing direct links to and from Commercial Road, Rouse Hill Drive and Caddies Boulevard. It is expected that these road links will be transferred to Council as part of future redevelopment, in association with the landowner-initiated planning proposal. A new 5,000m² public park will be provided within the site. An additional linear park will be centrally located on the land, providing east-west connectivity between the public park and the Caddies Creek Corridor to the east.

A new pedestrian bridge will be provided over Rouse Hill Drive to enhance and prioritise the pedestrian experience and link the mixed use and commercial areas to the Metro Station.

An associated site specific Development Control Plan would be required to establish a suite of controls to guide redevelopment, along with appropriate infrastructure solutions and mechanisms.

Metro Line (Above Ground)

Focus Area

Proposed Road

Medium Density Residential

High Density Residential

High Density Employment and Health Services

Mixed Use

Special Use

Open Space

Signalised Intersection

Pedestrian Bridge

Left-in-left-out Intersection

Urban Plazas

Pedestrian Connection

Vehicular Connection

Public Transport Corridor Options

Figure 38. Indicative Layout Plan

Various design principles have been developed to guide future outcomes for the Northern Frame:

Land Uses

• Employment growth will be the key underlying goal for the Northern Frame, with a designated employment and health services area to be identified generally in accordance with Figure 38 and the Structure Plan in Section 4.2 of this Precinct Plan.

• The planning framework for this Focus Area should have capacity for no less than 4,400 jobs (it is recognised that not all of this capacity will necessarily be fully realised in the short term or even by 2041).

• Complementary land uses are to be provided that support and leverage off the adjoining hospital development.

• Land uses are to be strategically clustered together to create functional and desirable working and living environments.

• A new entertainment and restaurant Precinct is to be provided as a northern extension of the Rouse Hill Town Centre.

• Some residential outcomes may be appropriate. However, this should not be at the expense of employment opportunities, which will be the key focus for the Northern Frame. It must also have regard to infrastructure capacity within the locality and appropriate built form outcomes.

• Any residential development should feature diverse housing typologies of differing sizes, consistent with Council’s Housing Diversity Provision (Clause 7.11 of LEP 2019).

• Active uses will be incorporated into the ground floor level to create a desirable and vibrant streetscape.

• To avoid land use conflicts, residential development should not be provided adjacent to the hospital site.

Built Form

• Building heights are envisaged to vary between 12 and 20 storeys.

• Buildings will be tall and slender and will display a high standard of architectural design.

• Tower elements are to be strategically positioned to maximise solar access, natural ventilation and views (both into and through the site and from key vantage points in the public domain).

• Shorter buildings and terrace elements are to be provided adjacent to public spaces to sympathetically frame these areas and reduce visual impacts.

• Building articulation is to be provided to soften the visual impact of the towers and develop a pedestrian and human scale built form.

• Reduced building heights and increased building separation distances may be required to mitigate solar access and view impacts on the Hospital. Adjoining buildings should not compromise the ability for the future Rouse Hill Hospital to be designed in a manner that prioritises patient and visitor wellbeing.

• Building heights should also have consideration for access requirements (e.g., via helicopter) to the hospital, subject to consultation with Health Infrastructure NSW.

• Taller buildings are to be located towards key entry points, such as Rouse Hill Drive (up to 20 storeys) and Caddies Boulevard (up to 14 storeys).

Public Domain and Open Space

• Build on the success of the Rouse Hill Town Centre, by integrating high quality public domain and plaza areas within and beyond the site, supported by quality pedestrian connections.

• Incorporate public art and informative wayfinding signage to strengthen Rouse Hill’s identity.

• Maximise active movement opportunities by providing cycling routes, pedestrian through site links and re-thinking the street structure.

• Buildings will be sited to encourage passive surveillance of the public domain.

• Create a pedestrian dominated environment that is accessible to residents and workers.

• Given the size of the site, open space areas will be interspersed throughout and be of varying sizes, landscapes and uses. These will be connected to the broader open space network through enhanced connectivity and high quality wayfinding measures.

• A local park of 5,000m² will be located in the centre of the Northern Frame providing a space for residents, workers and visitors (including those visiting the adjacent hospital) to enjoy.

• Local parks will be functional spaces that feature practical elements (such as seating, shade structures, playgrounds, BBQ and picnic facilities and landscaped elements etc.), in accordance with the open space hierarchy within Council’s Recreation Strategy.

• Accessible bicycle parking should be provided.

Connectivity

• Future development will be transit oriented by encouraging walking and cycling to and from the nearby Rouse Hill Metro Station.

• Active movement opportunities will be encouraged by providing a strong, functional and accessible cycling and pedestrian network.

• Reduced parking provisions for non-residential components to encourage a shift towards public transportation and reduce car dependency.

• East west green links should be provided through the site to link future development with the Caddies Creek Corridor.

• Any new roads will feature a shared pedestrian and cycling environment, whereby safety and pedestrian movements are prioritised over vehicles.

• A pedestrian bridge will be provided over Rouse Hill Drive.

• The local road network will be reconfigured to provide enhanced permeability through the Strategic Centre, including new road connections to and from Commercial Road, Rouse Hill Drive and Caddies Boulevard.

Infrastructure

• Tangible infrastructure solutions (including traffic management, pedestrian connectivity, open space, recreation and water management) and an appropriate funding and delivery mechanism will be required to ensure that the uplift can be appropriately serviced.

• A key limitation to the amount of residential development is the capacity of the existing and planned active recreation facilities.

• Integrate evolving technologies, including digital infrastructure provisions, within future developments to provide better connected and informed communities.

• Any future planning proposal will also need to be accompanied by appropriate cumulative traffic and transport assessments.

Rouse Hill Town Centre
Artist’s Impression of Retail Development (Source: GPT)

4.1.3 Focus Area 3 - Tempus Street Sleeve Sites

Vacant land located between Tempus Street and the existing Town Centre Core is identified for future commercial development. There are two key sites that will sleeve the existing town centre development. These are prime locations for commercial office development. These irregularly shaped “sleeve sites” are bound by the Rouse Hill Metro Station to the west and the Rouse Hill Town Centre to the east. They are also separated by an established urban plaza, known as Market Square, which forms part of the Rouse Hill Town Centre.

Commercial development offers a unique opportunity to provide gateway buildings which connect the retail area to the Metro Station and capitalise on workers using the Metro. The increase in employment opportunities near the Metro Station will deliver on the objective of a mixed use Precinct and reduce car dependency.

These commercial developments are intended to integrate into the Town Centre Core by replicating the public domain elements and active retail streets, to transform the blank wall facades on its periphery and respond to the evolving nature of Rouse Hill. Market Square will be retained for civic space, open space and events.

While the envisaged land use outcomes are already permitted, achieving the scale and density anticipated on this site would be contingent on amendments to the existing Rouse Hill Regional Centre Master Plan. They are highly visible and prominent sites at the main public transport threshold to the Rouse Hill Town Centre. They will be the first buildings seen by pedestrians as they arrive via the Metro and as such play an important role in creating a sense of arrival at Rouse Hill Town Centre. These buildings therefore need to perform an additional civic role that should be inherent in their design and architecture. In doing so, they should provide an appropriate sense of spatial definition to the square, shelter and wayfinding, a site specific distinctive character and a tangible expression of welcome and human scale.

Whilst development opportunities are already available under the existing policy settings, various design principles have been developed to guide future outcomes for the Tempus Street Sleeve Sites. It is not anticipated that a planning proposal application is required to achieve the redevelopment potential of the site. However, amendments to the Rouse Hill Regional Centre Master Plan may be necessary.

Land Uses

• Employment growth will be the key underlying goal for this Focus Area and reflects the use identified for this site under the existing approvals for the site.

• Active ground floor uses will be encouraged to create vibrant streets and interfaces.

• Residential uplift is not appropriate for this site as it would not align with the economic and employment goals for the Precinct and would be beyond the residential population that can be serviced by the necessary infrastructure.

Built Form

• Building heights of up to 8 storeys are envisaged for the Tempus Street Sleeve Sites. However, additional height may be justifiable in this prominent location to facilitate an exceptionally designed building.

• Development will be sited, angled and designed to provide high levels of solar access to surrounding developments and the Market Square.

• Layouts should be flexible and adaptable to suit the diverse needs of potential tenants.

• Any parking is to be provided underground.

• Accessible bicycle parking should also be provided.

• Having regard to the narrow site areas, buildings must be designed to feature airy and light filled spaces.

Figure 39. Aerial View of Focus Area 4.1.3 (Source: Nearmap Aerial Imagery, copyright Nearmap)

Public Domain and Open Space

• The existing Market Square is to be retained between the two sleeve sites for civic space, open space and events.

• Functional outdoor spaces will be provided for the enjoyment of workers, including green roof terrace areas.

• Incorporate public art and informative wayfinding signage to strengthen Rouse Hill’s identity.

• Buildings will be sited to encourage passive surveillance of the public domain.

• Continuous awnings are to be provided along the street frontage on Tempus Street.

• Development should capitalise on the site’s immediate proximity to the Metro Station and seamlessly integrate with the existing Town Centre Core.

Connectivity

• Future development will be transit oriented by reducing car dependency and encouraging walking and cycling to and from the nearby Rouse Hill Metro Station.

• Reduced parking provisions to encourage a shift towards public transportation.

Infrastructure

• Tangible infrastructure solutions (including traffic and open space) and an appropriate funding and delivery mechanism will be required to ensure that the uplift can be appropriately serviced.

• Integrate evolving technologies, including digital infrastructur provisions, within future developments to provide better connected and informed communities.

Metro Station

Metro Line (Above Ground)

Focus Area

High Density Employment and Health Services

Open Space

Signalised Intersection

Pedestrian Bridge

Urban Plazas

Pedestrian Connection

Public Transport Corridor Options

Left-in Left-out Intersection

4.1.4 Focus Area 4 – Bus Interchange

This Focus Area relates to the existing bus interchange area along Windsor Road, that is owned and managed by the State Government. It includes a turning circle, bus parking spaces and bus only slip lanes that connect to the surrounding road network and T-way. The land is approximately 2.3 hectares in size and is centrally located near the Rouse Hill Metro Station, the future Rouse Hill Hospital, the T-Way along Windsor Road and the designated employment area of the Strategic Centre.

Given the site’s strategic location and size, it has significant potential for increased employment opportunities. This land could be incorporated into a logical future expansion of the planned Rouse Hill Hospital or supporting health services in the longer term once the cumulative growth of the extensive North West Growth Centre has occurred and the broader demand for such services is realised.

Given the land will continue to be required by Transport for NSW for its current purpose as a bus interchange for the foreseeable future, any potential redevelopment on this land is unlikely to occur until well beyond 2041. The redevelopment of this site would be a matter for the State Government to consider in its future asset planning. However, it is anticipated that the State Government would recognise the critical role of this land in contributing to Rouse Hill’s increased commercial and health opportunities, beyond the current targets that are required to be achieved by 2036. For this reason, it is identified as a future opportunity for special use (Government) that can contribute to the long term vision for the Strategic Centre. No changes to the currently applicable planning controls are envisaged at this time, however this would be a matter for further collaboration between Council and Government in the future.

Figure 41. Aerial View of Focus Area 4.1.4 (Source: Nearmap Aerial Imagery, copyright Nearmap)
Figure 42. Indicative Layout Plan

4.1.5 Focus Area 5 - Town Centre Core

This Focus Area applies to the existing Rouse Hill Town Centre Core, bound by Tempus Street, Rouse Hill Drive, Caddies Boulevard and White Hart Drive. The Town Centre is an open-air style retail, entertainment and dining destination with some higher density residential development interspersed throughout. The site is approximately 14 hectares in size and is generally divided into 4 quadrants by an internal road network of Civic Way and Main Street.

The Town Centre is located immediately adjacent to the Rouse Hill Metro Station. It plays an essential role in defining the character of Rouse Hill Strategic Centre, particularly with respect to the urban design structure of the Town Centre and its local street feel. In that respect, it is highly regarded for its design principles and public domain.

A majority of the Town Centre has been developed relatively recently. It is not anticipated that there will be changes to the current planning controls or the existing development outcomes in the foreseeable future. This Plan acknowledges that there is potential for some further intensification within the Town Centre Core.

However, given the recent age of the Town Centre Core and the availability of larger vacant landholdings for short to medium term take-up, it is likely that intensification and redevelopment in this Focus Area will not occur until beyond 2041, subject to future market-driven demand.

It is expected that any future redevelopment at this time would continue to primarily consist of uses that build on the existing retail, entertainment and dining facilities, supplemented by opportunities for high density commercial development, with some complementary residential outcomes. Any redevelopment should have a particular focus on further increasing the employment capacity of the Strategic Centre, once the 2036 and 2041 job targets have been achieved.

While large-scale redevelopment of the Core is unlikely, particular opportunities may exist in areas of the Core currently occupied by “big box” retail footprints towards the corners of the Focus Area.

Further consideration of appropriate outcomes for the next phase of development of the Town Centre Core Focus Area will occur in the future, having regard to relevant external factors which can be observed over the next 10-20 years, such as changes in retail trends, potential future expansions of the planned Rouse Hill Hospital, rate and capacity of residential development within the surrounding residential catchment and the broader evolution of the Rouse Hill Strategic Centre over this period as a regionally significant destination for the North West.

No changes to the currently applicable planning controls are envisaged at this time, however this would be a matter for further collaboration between Council and landowners in the future.

Figure 43. Aerial View of Focus Area 4.1.5 (Source: Nearmap Aerial Imagery, copyright Nearmap)
Rouse Hill Town Centre

Metro Station

Metro Line (Above Ground)

Focus Area

Proposed Road

High Density Employment and Health Services

Mixed Use

Medium Density Residential

High Density Residential

Open Space

Drainage Land

Signalised Intersection

Pedestrian Bridge

Urban Plazas

Pedestrian Connection

Vehicular Connection

Public Transport Corridor Options

Figure 44. Indicative Layout Plan

4.1.6 Focus Area 6 – Home Hub (4-6 Commercial Road)

Home Hub, at 4-6 Commercial Road, is a large underdeveloped site located on the northern side of Commercial Road. It has a site area of approximately 3.6 hectares and is under single ownership, which increases its capacity to redevelop and generate employment and economic benefits in an exemplary built form.

The site currently accommodates a variety of businesses with larger floorplates such as Rebel Sports, Amart Furniture, Centrelink and Supercheap Auto. It also provides a generous amount of at-grade car parking to support the operation of these businesses.

Future uplift and redevelopment on this site will have an employment and health services focus, complemented by active uses on ground floor levels. It will feature buildings heights of up to 8-10 storeys, carefully sited to create visual interest and minimise potential adverse impacts on surrounding sites (including the hospital). Given its generous size, it is envisaged that an urban plaza will be incorporated into a centralised area as part of the future redevelopment of the site, providing an area for workers to socialise and relax.

Whilst guidance is provided in this Precinct Plan, it is anticipated that future uplift will be facilitated by a landowner-initiated planning proposal for the subject site. This is intended to further explore key urban design considerations such as the height of building controls, maximum floor space ratio controls and delivery of the future road connection. The existing uses on parts of the site are likely to continue for the foreseeable future, with the potential for staged redevelopment over time.

A planning proposal should secure new pedestrian connections and critical future vehicular connections, providing direct links from Commercial Road to Resolution Place and Prestwick Avenue. It is expected that these road links will be transferred to Council as part of future redevelopment, in association with the landowner-initiated planning proposal.

An associated site specific Development Control Plan would be required to establish a suite of controls to guide redevelopment, along with appropriate infrastructure solutions and mechanisms.

Focus Area

Proposed Road

Medium Density Residential

High Density Residential

High Density Employment and Health Services

Open Space

Special Use

Signalised Intersection

Pedestrian Bridge

Urban Plazas

Roundabout

Pedestrian Connection

Vehicular Connection

Heritage Item

Public Transport Corridor Options

Figure 46. Aerial View of Focus Area 4.1.6 (Source: Nearmap Aerial Imagery, copyright Nearmap)
Figure 45. Indicative Layout Plan
PINEHURSTAV

Various design principles have been developed to guide future outcomes for the Focus Area:

Land Uses

• Employment and health services outcomes will be the key underlying goal for this Focus Area.

• Complementary land uses are to be provided that support the nearby hospital.

• Active ground floor uses will be encouraged to facilitate vibrant streets and interfaces.

• Residential uplift is not appropriate for this site as it would not align with the economic and employment goals for the Precinct and would be beyond the residential population that can be serviced by the necessary infrastructure. Allowing residential uses in this area would also reduce the long-term viability of employment and health services outcomes.

Built Form

• Building heights of up to 8-10 storeys are envisaged for this Focus Area.

• Taller buildings are to be located towards Commercial Road.

• Deliver a high quality built form outcome that seamlessly transitions from the employment and health services developments, through to the existing lower density residential area north of the site.

• Building heights will minimise potential overshadowing impacts on surrounding properties.

• Buildings must be sympathetically designed to minimise adverse amenity impacts on existing low density residential areas to the north.

• Development will be sited, angled and designed to provide high levels of solar access.

• Layouts should be flexible and adaptable to suit the diverse needs of potential tenants.

• Parking to be provided underground to prevent excessive building bulk from aboveground parking levels.

Public Domain and Open Space

• The public domain will be attractive, safe, functional and accessible.

• Public domain will comprise well defined and comfortable public places for people to gather, including informal seating.

• A unified hierarchy of materials and furniture elements will be used to create a sense of place and clear brand for Rouse Hill, that builds upon the success of the existing Town Centre. High quality treatments are to be provided including generous paving, integrated seating, landscaping, water features and public art.

• Significant landscaping and urban plaza spaces will be provided to create a sense of place.

• Reinforce the brand of Rouse Hill with high quality and robust materials and finishes.

• Generous deep soil landscaping and trees will be provided to enhance the public domain and provide shade for workers.

Connectivity

• Future development will be transit oriented by reducing car dependency and encouraging walking and cycling to and from the nearby Rouse Hill Metro Station.

• Reduced parking provisions to encourage a shift towards public transportation and reduce car dependency.

• Future development shall provide new local roads to increase vehicular access to future development sites and increase vehicular connectivity, at no cost to Council.

• Future redevelopment must ensure that vehicular movement within and surrounding the site is safe and efficient.

Infrastructure

• Tangible infrastructure solutions (including traffic, open space, recreation and water management) and an appropriate funding and delivery mechanism will be required to ensure that the uplift can be appropriately serviced.

• Integrate evolving technologies, including digital infrastructure provisions, within future developments to provide better connected and informed communities.

• Any future planning proposal will also need to be accompanied by appropriate cumulative traffic and transport assessments.

4.1.7 Focus Area 7 – The Fiddler (2 Commercial Road, Rouse Hill)

The Fiddler, at 2 Commercial Road, is an underdeveloped site, well-positioned opposite the planned Rouse Hill Hospital. It has a site area of approximately 2.8 hectares and is located approximately 700 metres walking distance from the Metro Station. The site is currently dominated by an atgrade car park with associated landscaping, which supports the existing Fiddler Hotel, Mercure Apartments and KFC Takeaway Store.

Figure 47. Aerial View of Focus Area 4.1.7 (Source: Nearmap Aerial Imagery, copyright Nearmap)
The Fiddler

This site is envisaged to have a strong employment focus – adding to an employment and health services spine along Windsor Road and Commercial Road that will support the planned future hospital and contribute to job growth within the Rouse Hill Strategic Centre. It will have a focus on health related uses, to assist in solidifying Rouse Hill as a thriving health and innovation Precinct that serves the rapidly growing North West Region.

Future planning controls must strike an appropriate balance in terms of encouraging employment growth and business investment, whilst simultaneously delivering appropriate built form outcomes that transition away from the Metro Station to other surrounding employment and residential areas.

Future development will taper down to well-established low density areas to the north east and sensitive uses including the existing heritage item, The Fiddler.

The Focus Area contains an intact colonial inn, The Fiddler, of historic State significance. The heritage item was refurbished in 2019 and is now an iconic destination for casual dining and entertainment in The Hills. It must be retained and integrated with any redevelopment of the site. It should also be showcased as a key asset to further enhance local character and establish a strong sense of place.

As noted above, future redevelopment must capitalise on the success of The Fiddler as a dining, leisure and entertainment destination. Therefore, whilst economic growth is the key underlying goal for the subject site, it is envisaged that any potential future redevelopment will also expand and improve the existing pub to support the anticipated employment growth and improve the local night time economy.

Whilst guidance is provided in this Precinct Plan, it is anticipated that future uplift will be facilitated by a landowner-initiated planning proposal for the subject site. This is intended to further explore key urban design considerations such as the height of building controls, maximum floor space ratio controls and delivery of the future road and pedestrian connections.

An associated site specific Development Control Plan would also be required to establish a suite of controls to guide redevelopment, along with appropriate infrastructure solutions and mechanisms. A planning proposal should secure new pedestrian connections and critical future vehicular connections, providing direct links from Commercial Road to Resolution Place and Prestwick Avenue. It is expected that these road links will be transferred to Council as part of future redevelopment, in association with the landownerinitiated planning proposal. A new pedestrian bridge will also be provided over Commercial Road to enhance and prioritise the pedestrian experience and link employment areas with the Rouse Hill Metro Station and existing Town Centre Core.

GREEN HILLS DR

Focus Area

Proposed Road

Medium Density Residential

Urban Services

High Density Employment and Health Services

Open Space

Special Use

Signalised Intersection

Pedestrian Bridge

Urban Plazas

Roundabout

Pedestrian Connection

Vehicular Connection

Public Transport Corridor Options

Heritage Item

Archaeological Item

Various design principles have been developed to guide future outcomes for this Focus Area:

Land Uses

• While employment growth will be the key underlying goal for this Focus Area, the existing use of The Fiddler will be retained.

• Complementary land uses that support the nearby hospital development are encouraged.

• Active ground floor uses will be encouraged to facilitate vibrant streets and interfaces.

• Retain and expand existing dining and entertainment opportunities where people can socialise outside of working hours, contributing to a night-time economy within the designated commercial area.

• Residential uplift is not appropriate for this site as it would not align with the economic and employment goals for the Precinct and would be beyond the residential population that can be serviced by the necessary infrastructure. Allowing residential uses would also reduce the long-term viability of the employment area.

Heritage

• Future development will showcase the State heritage item, The Fiddler.

• New buildings and structures will not obscure the street elevation view of the existing building and must be setback further from Windsor Road than the existing building to improve sightlines to the heritage item along Windsor Road.

• New buildings will be sited to retain significant site features.

• Any alterations to the heritage building will be undertaken in a sympathetic manner that ensures the retention of the existing fabric and character of the building and its visual relationship with Windsor Road.

• Any future planning proposal will also be accompanied by heritage investigations to enable a greater understanding of the heritage value of the site and what components of the place are significant, including identification of a curtilage and view corridors where appropriate.

Built Form

• Building heights of up to 8-10 storeys are envisaged for this Focus Area.

• Taller buildings are to be located towards Commercial Road, providing a seamless transition down from the Northern Frame.

• Building heights must be sympathetic to the heritage item (The Fiddler) on the site and its curtilage.

• Development will be sited, angled and designed to provide high levels of solar access.

• Layouts should be flexible and adaptable to suit the diverse needs of potential tenants.

• Parking to be provided underground to prevent excessive building bulk from aboveground parking levels.

Public Domain and Open Space

• The public domain will be attractive, safe, functional and accessible.

• Public domain will comprise well defined and comfortable public places for people to gather, including informal seating.

• A unified hierarchy of materials and furniture elements will be used to create a sense of place and clear brand for Rouse Hill, that builds upon the success of the existing Town Centre and the palette of The Fiddler. High quality treatments are to be provided including generous paving, integrated seating, landscaping, water features and public art.

• Significant landscaping and urban plaza spaces will be provided to create a sense of place.

• Given the size of the site, public domain and open space areas will be interspersed throughout and be of varying sizes, landscapes and uses. These will be connected to the broader open space network through enhanced connectivity and high quality wayfinding measures.

• Generous deep soil zones with landscaping and trees will be provided to enhance the public domain and provide shade for workers.

Connectivity

• New vehicle and pedestrian connections are to be provided from Commercial Road through to Resolution Place as shown in Figure 48. A coordinated approach to these links with neighbouring developments must be demonstrated.

• Future development will consider ways to improve connectivity across major road barriers such as Windsor Road and Commercial Road, with provision of a new pedestrian bridge over Commercial Road.

• Future development will be transit oriented and encourage walking and cycling to and from the nearby Rouse Hill Metro Station.

• Reduced parking provisions to encourage a shift towards public transportation and reduce car dependency.

• Future development shall provide new local roads to increase vehicular access to future development sites and increase vehicular connectivity, at no cost to Council.

• Future redevelopment must ensure that vehicular movement within and surrounding the site is safe and efficient.

Infrastructure

• Tangible infrastructure solutions (including traffic, open space, recreation and water management) and an appropriate funding and delivery mechanism will be required to ensure that the uplift can be appropriately serviced.

• Integrate evolving technologies, including digital infrastructure provisions, within future developments to provide better connected and informed communities.

• Any future planning proposal will also need to be accompanied by appropriate cumulative traffic and transport assessments.

Artist’s Impression of The Fiddler and Surrounds (Source: Tome Visuals)

4.1.8 Focus Area 8 – Lot 901 DP 1029336 Windsor Road, Rouse Hill

The site is known as Lot 901 DP 1029336 Windsor Road, Rouse Hill and has a site area of approximately 1.2 hectares. It is located approximately 850 metres walking distance from the Rouse Hill Metro Station. The site is largely undeveloped containing a single dwelling with grass and scattered trees. The site slopes from west to east, with a fall of approximately 9 metres.

an Aldi supermarket and fast-food restaurants to the north, detached dwelling houses to the east and The Fiddler to the south.

It is envisaged that the site will have a strong employment focus, albeit of a lower scale (of up to 8-10 storeys fronting Windsor Road) compared to sites located further south (towards the Metro Station, established Town Centre and planned hospital). It will contribute to an employment and health services spine along Windsor Road. The employment uses will have a health related focus to support the nearby hospital. Land uses must also be compatible with the well-established urban services area to the north of the site and not detract from the economic viability of that area. The building heights and uses to the north and east will need to transition to the adjoining low density residential area.

Whilst guidance is provided in this Precinct Plan, it is anticipated that future uplift will be facilitated by a landowner-initiated planning proposal for the subject site. This is intended to further explore key urban design considerations such as the height of building controls, maximum floor space ratio controls and delivery of the future road and pedestrian connections. An associated site specific Development Control Plan would also be required to establish a suite of controls to guide redevelopment, along with appropriate infrastructure solutions and mechanisms.

A planning proposal should secure new pedestrian connections and critical future vehicular connections, providing direct links to and from Commercial Road and Resolution Place. It is expected that these road links will be transferred to Council as part of future redevelopment, in association with the landowner-initiated planning proposal. A new pedestrian bridge will also be considered over Windsor Road to enhance and prioritise the pedestrian experience and link commercial areas with nearby residential areas.

Various design principles have been developed to guide future outcomes for this Focus Area:

Land Uses

• Employment and health services outcomes will be the key underlying goal for this Focus Area.

• Complementary land uses that support the nearby hospital are encouraged.

• Active ground floor uses will be encouraged to facilitate vibrant streets and interfaces.

• Land uses must also be compatible with the well-established urban services area to the north of the site and not detract from the economic viability of that area.

• Residential uplift is not appropriate for this site as it would not align with the economic and employment goals for the Precinct and would be beyond the residential population that can be serviced by the necessary infrastructure. Allowing residential uses would also reduce the long-term viability of the employment and health services area.

Built Form

• Building heights of up to 8-10 storeys are envisaged for the Focus Area.

• Taller buildings are to be located towards the southern and western ends of the site, providing a seamless transition down towards the lower density areas to the north and east.

• Building heights must be sympathetic to the heritage item (The Fiddler) on the neighbouring site, as well as the well-established residential area to the east of the site.

• Development will be sited, angled and designed to provide high levels of solar access.

• Layouts should be flexible and adaptable to suit the diverse needs of potential tenants.

• Parking to be provided underground to prevent excessive building bulk from aboveground parking levels.

Public Domain and Open Space

• The public domain will be attractive, safe, functional and accessible.

• Public domain will comprise well defined and comfortable public places for people to gather, including informal seating.

• A unified hierarchy of materials and furniture elements will be used to create a sense of place and clear brand for Rouse Hill, that builds upon the success of the existing Town Centre. High quality treatments are to be provided including generous paving, integrated seating, landscaping, water features and public art.

• Significant landscaping will be provided to create a sense of place.

• Generous deep soil zones with landscaping and trees will be provided to enhance the public domain and provide shade for workers.

Figure 49. Aerial View of Focus Area 4.1.8 (Source: Nearmap Aerial Imagery, copyright Nearmap)
The site adjoins

Connectivity

• A new vehicle and pedestrian connection is to be provided connecting through to Resolution Place, as shown in Figure 50. A coordinated approach to these links with neighbouring developments must be demonstrated.

• Future development will be transit oriented by reducing car dependency and encouraging walking and cycling to and from the nearby Rouse Hill Metro Station.

• Reduced parking provisions to encourage a shift towards public transportation.

• A pedestrian bridge will be considered over Windsor Road.

• Future development shall provide new local roads to increase vehicular access to future development sites and increase vehicular connectivity, at no cost to Council.

• Future redevelopment must ensure that vehicular movement within and surrounding the site is safe and efficient.

Infrastructure

• Tangible infrastructure solutions (including traffic, open space and water management) and an appropriate funding and delivery mechanism will be required to ensure that the uplift can be appropriately serviced.

• Integrate evolving technologies, including digital infrastructure provisions, within future developments to provide better connected and informed communities.

• Any future planning proposal will also need to be accompanied by appropriate cumulative traffic and transport assessments.

Figure 50. Indicative Layout Plan
GLEN ABBEY
Artist’s Impression of Commercial Development (Source: Tome Visuals)

4.1.9 Focus Area 9 - Protecting and Encouraging Urban Services

The term ‘urban services’ covers a range of industries and activities that are fundamental to how The Hills Shire functions and are critical to supporting population and jobs growth.

Industrial and urban services land contains a range of land uses including panel beaters, mechanics, lawn-mower repairers, small-scale manufacturing companies, children’s play facilities, food preparation and catering facilities and gyms.

The demand for these services will continue to increase as the population in the surrounding area grows. Therefore, protecting and encouraging urban services is a key priority. With the increasing pressure placed on industrial Precincts in the face of rising land values and land use conflicts, there is finite land available for urban services to keep pace with population growth.

Ensuring that pockets of industrial and urban services land are strategically distributed throughout The Hills Shire will provide people the opportunity to live and work close to these services contributing to the Greater Cities Commission’s objective of a 30-Minute City. For this reason, key urban services land will be retained and protected.

Under the State Government’s Employment Zone Reforms, there is a widened range of permitted uses for land zoned E3 Productivity Support, noting that it is a consolidation of the previous B5 Business Development and B6 Enterprise Corridor zones. Given the increased flexibility, Council will continue to monitor the uptake of urban services opportunities following the implementation of the State Government’s Employment Reforms. This may prompt the need for Council to initiate various consequential amendments to The Hills Development Control Plan (DCP) 2012 to provide further guidance and certainty on intended urban support outcomes for this locality.

Council may be open to landowner-initiated planning proposals to enable small amounts of uplift in this area to ensure that increased provision of urban services is viable for landowners and developers. However, this is only for urban services, rather than other employment uses. Any additional uplift would also need to be of an appropriate height and scale, providing a seamless transition down from nearby high density commercial areas. Urban services have historically been a very car-dependent land use. There is opportunity for improved vehicular connectivity with new local roads to the south extending Resolution Place to provide a connection through to Commercial Road and the Town Centre (refer Focus Areas 6-8).

It is anticipated that any redevelopment or uplift in the urban services area will still require higher levels of parking to meet travel behaviours and consumer needs. Any parking will need to be provided underground or at grade, to avoid excessive bulk and scale arising from above ground parking within building envelopes. Any future development near Queens Arms Inn Archaeological Site should also have regard to the significance of these relics and the works free zones established through approved development applications.

There is currently an Aldi Supermarket Site located within the existing E3 Productivity Support zoned area along Resolution Place. It is currently a prohibited use in the E3 Productivity Support zone, which is a permissibility related matter that pre-dated the State Government’s recent Employment Zone Reforms. No changes to permissibility are considered warranted at this time, noting that existing approved uses can continue to operate on land under existing rights provisions.

Given the expected ongoing demand for urban support services as the population of the surrounding area grows, should there be longer term change or redevelopment anticipated for this site, expansion of urban support services is encouraged rather than additional retail floorspace. This approach is cognisant of both the need to retain and manage valuable urban services land as articulated in Council’s Local Strategic Planning Statement and also the potential for any expansion of retail floor space to impact the ability of the existing retail centres at Rouse Hill Town Centre and the Mile End Road Village Centre to achieve their objectives and fulfil their role in the centres hierarchy.

Focus Area

Proposed Road

Medium Density Residential

High Density Employment and Health Services

Local Centre

Urban Services

Signalised Intersection

Pedestrian Bridge

Urban Plaza

Roundabout

Pedestrian Connection

Vehicular Connection

Public Transport Corridor Options

Archaeological Item

Heritage Item

Figure 51. Aerial View of Focus Area 4.1.9 (Source: Nearmap Aerial Imagery, copyright Nearmap)
Figure 52. Indicative Layout Plan

4.1.10 Focus Area 10 – Rouse Hill Village Centre

The Rouse Hill Village Centre is located north of Mile End Road and has a unique local character and charm. Various landholdings within the Rouse Hill Village Centre have been identified as future long-term opportunity sites. While this is a well-established area that is regularly utilised by the local community, it is currently not reaching its full potential as a local centre.

Future revitalisation has the potential to strengthen the existing quaint local character and enable it to be woven throughout Rouse Hill, transforming the strip between the Rouse Hill Village Centre and the Rouse Hill Town Centre into a distinguishable area.

Given the Rouse Hill Strategic Centre is expected to transform into a regional destination that serves the rapidly growing population, there is merit in revisiting the everyday functioning of the Rouse Hill Village Centre, to ensure it continues to meet the needs of residents and workers, especially once north-south connectivity throughout the Strategic Centre is improved.

Future development within the Village Centre is not intended to alter the types of services already on offer, nor is it intended to mirror the services within the Town Centre. Rather, it could revitalise and activate the area, whilst ensuring it continues to provide an appropriate quantum and mix of services to meet the daily needs of the community.

Whilst no change to planning controls for the Rouse Hill Village is identified as part of this Precinct Plan, it may be appropriate for landowners to revisit the quantum of retail floorspace available in the Rouse Hill Village Centre (once commercial development on the surrounding land progresses) by way of a landowner-initiated planning proposal.

Any future planning proposal should have regard to the findings of the SGS Retail Floorspace Analysis which weighed centre quality, floor space and accessibility against the available expenditure to estimate the ‘pull’ of various centres within The Shire. It must be accompanied by a detailed Economic Impact Assessment (EIA), which addresses criteria such as:

• Justification for the proposed retail type, scale and quantum within the proposed centre as opposed to an alternative centre.

• Quantification of the level of unmet demand in the locality for the retail type proposed.

• Description of how the proposal would support the social, economic and environmental viability of the centre and the potential impact on other centres.

• Demonstration that there is sufficient demand for the proposed retailer to operate within the centre without compromising the ability of alternative centres in the hierarchy to achieve their objectives and fulfil their role in the centres hierarchy.

Figure 53. Aerial View of Focus Area 4.1.10 (Source: Nearmap Aerial Imagery, copyright Nearmap)
Figure 54. Indicative Layout Plan
Rouse Hill Village Centre

Various design principles have been developed to guide future outcomes for this Focus Area:

Land Uses

• The Village Centre will be a vibrant and active central focus for the northern end of the Strategic Centre.

• Land uses must continue to provide for the daily needs of residents and workers. It will provide a range of shops, cafes, restaurants and local services and quality public spaces.

• Any planning proposals for the Rouse Hill Village Centre must be cognisant of the fact that projected dwelling numbers for the Shire exceed targets in the District Plan and infrastructure within the locality is nearing capacity. Council has no intention to accelerate or rezone additional land for residential uses unless exemplary development and community outcomes can be achieved.

Built Form

• Any proposal must demonstrate a cohesive master planned outcome considering the whole of the centre (rather than individual landholdings) and neighbouring sites (if warranted) to facilitate and improve access arrangements.

• Built form will remain low and modest, having regard for the quaint village feel and well-established surrounding low density residential areas.

• Development will be sited, angled and designed to provide high levels of solar access.

• Upper levels will be setback to enhance amenity and provide visual interest to buildings.

• Layouts should be flexible and adaptable to suit the diverse needs of potential tenants.

• Consideration must be given to how future development will respond to sensitive interfaces such as the existing service station and nearby residential areas.

Heritage

• New buildings and structures will not obscure the street elevation view of the existing heritage item (“Christchurch”) and must be setback further from the street than the existing building.

• New buildings will be sited to retain significant features of the heritage item.

• Any alterations to the heritage building will be undertaken in a sympathetic manner that ensures the retention of the existing fabric and character of the building.

Connectivity

• Any redevelopment of the site must facilitate a more pedestrian friendly environment, that shifts away from the traditional cardependent model (noting that appropriate parking provisions will still be required in some circumstances for specific uses).

• New pedestrian and cycling links are to be incorporated to improve permeability within and surrounding the Village Centre.

Public Domain and Open Space

• Future development must protect and strengthen the quaint village feel that the Village Centre is known for.

• The public domain will be attractive, safe, functional and accessible.

• Public domain will comprise well defined and comfortable public places for people to gather, including informal seating.

• A unified hierarchy of materials and furniture elements will be used to create a sense of place. High quality treatments are to be provided including generous paving, integrated seating, landscaping, water features and public art.

• A main village plaza will be provided. Shops, cafes and restaurants will open onto this plaza area with outdoor seating areas.

• Quality mature landscaped areas around the plaza edges will offer pleasant shaded green space year round.

Infrastructure

• Tangible infrastructure solutions (including traffic, open space, recreation and water management) and an appropriate funding and delivery mechanism will be required to ensure that the uplift can be appropriately serviced.

• Integrate evolving technologies, including digital infrastructure provisions, within future developments to provide better connected and informed communities.

4.1.11 Focus Area 11 – Public Domain*

The identity and brand of Rouse Hill is closely associated with the Town Centre Core and in particular its open air design and village character feel. This is attributed to the high quality, landscaped and natural themed public domain.

Established trees have been successfully integrated with the urban fabric, creating a strong urban identity. The development creates sightlines to, and physical access with, Caddies Creek, diversifying the recreational opportunities for residents and visitors. The Town Centre Core includes extensive footpaths to accommodate significant numbers of pedestrians and contains public furniture and outdoor dining opportunities. Materials in the Precinct provide definition to the spaces and emphasise the dominance of pedestrians over vehicles. The Town Centre Core presents human scale spaces to the street that feel safe and convenient to traverse.

These public domain attributes are a key asset of the Town Centre Core and a new public domain plan for the Rouse Hill Strategic Centre will expand the delivery of this public domain infrastructure and palette in new developments. Establishing a well-connected, high quality, functional and flexible public domain will be a key focus when master planning large undeveloped and underdeveloped sites within the Rouse Hill Strategic Centre.

The integration of future development within the natural setting, through emphasis on the sites proximity to Caddies Creek, will bring the natural environment into the centre. New roads through the Precinct will be tree lined and function like the public main street through the Town Centre Core, prioritising the pedestrian experience and connectivity over vehicles. It will be supported by a functional, legible and safe pedestrian and cycle network that will be designed to provide quality connectivity within and surrounding the Strategic Centre.

East-west links will be encouraged to enhance connectivity between future developments and the Caddies Creek Corridor. North-south links will be pivotal in providing quality pedestrian connectivity between the existing Town Centre Core and the Rouse Hill Village Centre (as well as the hospital and designated employment areas identified in between).

Urban plazas and open space areas will be interspersed throughout the Strategic Centre, providing conveniently located places where residents and workers can relax and enjoy. This will assist in meeting recreational needs and contribute to the overall amenity and lifestyles available within the Centre. A centralised local park has been flagged within the heart of the Northern Frame. This will form part of a broader open space network that is well-connected, user friendly and designed with a distinctively ‘Rouse Hill’ look and feel.

There is a great opportunity to break down the monotony of streets and establish different levels of space activation and social interaction throughout the Strategic Centre. The key strategies for achieving this involve:

Explore options to slow vehicle traffic down locally and ensure the safe use of the streets.

Provide more rest opportunities along shared paths and footpaths to support active movement in the peripheral areas.

Provide more trees along footpaths and shared paths to create comfort through cooling of the street.

Identify areas where night life and targeted placemaking can occur.

Develop a wayfinding signage suite to support navigation throughout the movement network.

Incorporate technology where more useful to assist with navigation and the use of new public spaces.

Council will prepare a Public Domain Plan for the Rouse Hill Strategic Centre to facilitate some of the outcomes envisaged under this Precinct Plan.

* Note : This Focus Area is intended to apply to the Centre as a whole, rather than being specific to individual sites. Therefore, it has not been visually shown on a map in a similar way to the other Focus Areas within this Plan.

Existing Caddies Creek Corridor
Aerial View of Caddies Creek Corridor

4.2 Structure Plan

Connectivity

• Regional Connections: Council will continue to lobby the NSW Government for the funding, early planning and delivery of regional transport connections, as they are critical to the success of the Rouse Hill Strategic Centre moving forward. Primarily, this will include the planned connection from Tallawong Station to St Marys Station, along with the public transport corridor from Rouse Hill through to Box Hill. Council will explore and advocate for potential future public transport corridor options between Rouse Hill and Box Hill including Commercial Road and Withers Road, directly along Windsor Road or through Green Hills Drive and Withers Road.

• Enhanced Connectivity: New local roads, along with various other traffic related works, are identified to improve the flow of traffic within the Rouse Hill Strategic Centre. This will assist in breaking up large sites and improve pedestrian permeability. Enhanced pedestrian and cycle paths are identified to encourage alternative modes of transport and reduce reliance on private vehicles as the main mode of transportation. Pedestrian bridges across major roads, such as Windsor Road, Commercial Road and Rouse Hill Drive will also be critical in improving pedestrian permeability.

• The design principles for redevelopment of sites in Rouse Hill will encourage an urban structure where pedestrian movements are safe and convenient.

Metro Station

Metro Line (Above Ground)

Rouse Hill Strategic Centre

Signalised Intersection

Pedestrian Bridge

Left-in-left-out Intersection

Roundabout

New Road

Pedestrian Link

Existing Cycleway

Proposed Cycleway

Public Transport Corridor Options

Land Use

• Mixed Use Area: Rouse Hill Town Centre and its planned extension across Rouse Hill Drive will be the heart of the Precinct, offering a mix of retail, business, office, health, leisure, entertainment, community uses and some higher density housing.

• Designated Employment and Health Services Area (surrounding the hospital): A designated employment and health services area is identified to safeguard key employment land, enabling Rouse Hill to transform into a highly competitive employment destination and health services hub. This area will be pivotal in enabling job targets to be met and in attracting a variety of knowledge intensive jobs that meet the needs of the highly skilled population. This is important for both the short and medium term, as well as the longer term planning horizon beyond 2036 and 2041.

• Retail: A new entertainment and restaurant Precinct is envisaged as an extension to the north of the Rouse Hill Town Centre and Rouse Hill Drive, to meet the needs of the rapidly growing residential catchment and workers.

• Hospital: A new hospital will be delivered on prime undeveloped land fronting Commercial Road. It will be a key catalyst for employment growth, particularly in establishing a health and innovation hub.

• New Open Space Areas: A new open space area is earmarked through the central part of the Northern Frame, which will also serve a dual drainage function. A number of new urban plazas will be incorporated within future developments.

• Village Centre: The existing Village Centre will continue to meet the dayto-day needs of residents and workers.

• Diverse Housing: The Rouse Hill Strategic Centre will contain a diverse range of housing opportunities, spanning from well-established low to medium density residential areas through to emerging high density apartment buildings.

• Urban Services: The urban services area on Resolution Place will be retained. This will continue to provide urban support services for the incoming population.

Metro Station

Metro Line (Above Ground)

Rouse Hill Strategic Centre

Proposed Road

Low Density Residential

Medium Density Residential

High Density Residential

Local Centre

High Density Employment and Health Services

Urban Support Services

Open Space

Drainage Land

Mixed Use

Special Use

Potential School*

Urban Plaza

*Note: Subject to future investigations by School Infrastructure NSW.

Density

• The floor space ratios will be the primary control that dictates density.

• Highest densities (up to 5:1) will be located near the Rouse Hill Town Centre and Metro Station, as well as the planned Rouse Hill Hospital. Densities within the Precinct are expected to decrease down to 1:1, depending on proximity from the Metro Station and having regard to sensitive interfaces (such as well-established residential areas, creek corridors, public domain and open space areas).

• Indicative floor space ratio outcomes reflect the maximum density envisaged for the land (inclusive of any density bonuses available within the planning framework) and should not be viewed as an entitlement. While higher densities have been identified in locations close to the Metro Station, analysis of the configuration and constraints of each individual site is also necessary. Floor space ratio controls will be subject to detailed built form modelling and urban design analysis throughout the subsequent planning processes to ensure they are appropriate, functional and viable.

• Areas on the periphery of the Rouse Hill Strategic Centre will remain unchanged. These are well-established low and medium density areas that greatly contribute to the diversity of development outcomes within the Rouse Hill Strategic Centre. These are generally areas where strategic planning work has already been completed.

• Some areas are not earmarked for any change to the existing controls, being areas where the existing character and outcomes are to remain, or areas where appropriate redevelopment potential already exists under the current planning controls.

Figure 57. Density

• There will need to be a transition of building heights to facilitate a varied and interesting skyline, which also has regard to key view corridors through the Precinct. Development surrounding the planned hospital will have opportunities for tall and varied buildings heights that are the key landmarks for the Strategic Centre.

• Building heights will also be sympathetic to the surrounding established low density residential areas. There will be opportunity for taller buildings of varying heights (up to 14-20 storeys in Gateway locations in the Northern Frame and up to 10 storeys for employment areas north of Commercial Road).

• Higher built form controls beyond that required to achieve indicative floor space ratio outcomes are proposed to encourage higher quality and elegant development (rather than short and box-like developments), with improved ground plane outcomes through quality landscaping and public domain improvements, urban plazas and generous building separation. Building height controls will be subject to detailed built form modelling and urban design analysis throughout the subsequent planning processes to ensure they are appropriate, functional and viable.

• Larger amalgamated Focus Areas such as the Northern Frame and underdeveloped land north of Commercial Road may be suitable for taller built form outcomes in a master planned setting. However, sensitive interfaces (such as the hospital and heritage items) will need to be considered and these planning controls will be subject to future investigations and a separate landowner-initiated planning proposal process.

• No changes are proposed to low-medium density areas (2-3 storeys in height) around the periphery of the Rouse Hill Strategic Centre, where the existing character and outcomes are to remain. No changes are proposed to areas where separate planning work has already been complete (e.g. site-specific planning proposals, sites where development applications have been recently approved or well-established residential areas).

4.3 Character Areas

The employment and health services area will reinforce the role of the Rouse Hill Strategic Centre and enable it to emerge as a thriving employment destination. Businesses will be attracted by the amenities of the Precinct and landscape, alfresco feel of the locality. Buildings will frame the streets with 4 storey podiums, containing lively and active frontages at the ground floor. Streets will contain wide footpaths, landscaping features, trees and street furniture to provide an attractive, safe and pleasant place. Taller building elements will be set back from the street to enable appropriate solar access and sky view to the ground plane. The employment and health services area will be compact and highly walkable, with pedestrian movements taking priority.

Use Area

Rouse Hill Town Centre and surrounds will be the key landmark for the Precinct, providing a diverse range of uses that are compatible with the local surroundings. The Town Centre is the first impression of the Centre for commuters and visitors arriving to the centre using the Rouse Hill Metro Station. It will continue to be a hub for shopping, working and socialising. The area brings together a mix of lush green space, retail destinations and apartment living. It features a mix of activated retail and commercial ground floor uses, set in wide footpaths and lined with trees which creates a sense of vibrancy and draws people to the area. The provision of aesthetic and memorable pocket parks and urban plazas instil a sense of ownership, pride and sense of place for residents and visitors.

C Employment and Health Services Area

High Density Residential

The high density residential area will be green and walkable, providing a lifestyle alternative to the traditional suburban home. Buildings will frame the streets and create an appealing sense of openness, providing generous street setbacks to facilitate significant tree planting and landscaping. Buildings will be diverse in structure and form, utilising a variety of materials and colours and green elements. Activated ground floor uses are also encouraged to create vibrant streets, visual interest for pedestrians and frame public spaces.

Low and Medium Density Housing

Low and medium density housing areas will be retained to maintain the wellestablished character of this area, being predominantly single and double storey dwellings in landscaped settings. These areas will continue to be developed under the existing controls. Generous setbacks to maintain the landscape character of the locality will also be encouraged, along with significant street tree planting, public domain elements and high quality open spaces. High levels of permeability will be provided through quality pedestrian and cycling links.

The local centre will retain its quaint village feel and scale, providing a diverse range of services that meet the day-to-day need of residents and workers within Rouse Hill. Quality public domain and landscaping is encouraged to draw the landscape character of the locality into the centre. Wide footpaths will connect the centres to the street network, avoiding dead ends and providing wayfinding signage. Setbacks will provide opportunities for high quality landscaping and an attractive streetscape. At-grade parking will continue to be provided.

The Caddies Creek Corridor is a key defining feature of Rouse Hill that will continue to be showcased through future development within the Precinct. Development adjacent to the creek will facilitate restoration of the creek corridor and benefit from the natural setting, scenic qualities, open space and amenity provided by the area. It will continue to be a much-loved space for people in the community to walk, cycle and play among the trees, adjacent to the naturalised water course.

Urban Support Services

The urban support services area in the Precinct will generally be retained to provide key services for the incoming population. Building heights will be low scale and will benefit from large landscaped setbacks. Buildings should be sited to provide an adequate buffer between nearby residential developments. The façade of these buildings is to utilise elements that are visible to passing motorists and articulate the key components of the building (such as entries and showrooms).

Figure 59. Character Areas
Local Centre
Caddies Creek Corridor
Artist’s Impression of Residential Development with Active Ground Floor Uses (Source: Cox Architecture and GPT)

4.4 Yields and Projections

• In 2016, there were approximately 1,660 dwellings within the Rouse Hill Strategic Centre accommodating an existing population of approximately 5,170 people. Under this Plan, it is anticipated that there is growth potential for approximately 4,390 dwellings by 2041 (with approximately 2,350 additional dwellings by 2036 and approximately 2,730 additional dwellings by 2041). Residential yields are based upon an uptake rate of 100% by 2041.

• In 2016, there were approximately 3,730 jobs within the Rouse Hill Strategic Centre. Under this Plan, the Rouse Hill Strategic Centre is expected to accommodate approximately 12,320 jobs by 2041 (with approximately 6,540 additional jobs by 2036 and approximately 8,600 additional jobs by 2041) (depending on market factors). These assumptions are based upon uptake rates varying between 0%-100% by 2036 and 0%-100% by 2041.

• Not all properties will be subject to redevelopment (or full development) at the same time. The uptake rates which have been applied are estimated having regard to a range of factors, including the input from respective landowners and the opportunities and constraints affecting each individual area. These uptake rates have been applied for the purpose of projecting the long term development pattern for the Strategic Centre and may change over time. They are not intended to prevent a landowner from progressing with development at a time they deem appropriate. Longer term Focus Areas have also been given lower uptake rates given they are unlikely to be feasible in the short to medium term and may be contingent on the market solving certain issues or delivering certain outcomes.

Table 8. Residential Yield Analysis
Table 9. Employment Yield Analysis

4.5 Actions and Phasing

This Plan sets a holistic vision and ‘blueprint’ for the Rouse Hill Strategic Centre. It includes a list of actions that will be subject to future processes and decisions of Council. It will be necessary to work through these actions over time, to establish the planning framework that facilitates the vision and outcomes articulated in the Plan.

The Plan identifies areas where strategic work has been completed and where development is expected to either remain unchanged or continue to roll-out under the current planning framework. It then groups actions into three distinct phases, having regard to potential timing and responsibility for each action.

*Note: There are additional actions identified within Phase 2, however they are holistic to the Precinct, not specific to individual sites and are therefore not shown on the map above.

Metro Station

Metro Line (Above Ground)

Rouse Hill Strategic Centre

Strategic Work Completed

Phase 1 - Housekeeping Amendments

Phase 2 - Council-Led Change

Phase 3 - Market Driven Change

Strategic Work Completed

Areas where strategic planning work has already been completed and where no further change to the planning controls is anticipated. The Rouse Hill Regional Centre Master Plan framework (as originally established in 2004 and reviewed and updated since this time) continues to guide appropriate outcomes for much of the Centre. Development is expected to either remain unchanged or continue to roll-out under the current planning framework (including development applications and/or construction).

Phase 1: Housekeeping Amendments

Areas where Council-Led housekeeping amendments are recommended to facilitate improved and/or orderly development outcomes. It is noted that no housekeeping amendments are identified at this time, however Council may undertake housekeeping amendments in the future if the need arises.

Phase 2: Council-Led Change

Short to medium term actions that could be led by Council. For example, the preparation of a holistic Public Domain Plan and/or Development Control Plans to guide future development throughout the Centre to achieve the vision and outcomes articulated in this Plan.

Phase 3: Market Driven Change

The timing for commencement of these actions will be market driven. These generally relate to large consolidated sites in single ownership. It is considered that the market is best placed to determine the appropriate timing for amendments to the planning controls in these instances (having regard to development demand, life cycle of existing assets and feasibility) and put forward development outcomes and infrastructure solutions consistent with the strategic framework and Council’s vision articulated within the Plan. Whilst some market driven solutions may be achievable in the short to medium term, feasible redevelopment in other market driven areas is unlikely to occur until beyond the short to medium term horizon.

Changes to the planning framework would be driven by landowner-initiated planning proposals, along with associated amendments to the Development Control Plan, Public Domain Plan and appropriate infrastructure contribution mechanisms.

In terms of timing, it is expected that planning proposals for short to medium term sites would eventuate over the next 5 to 10 years (some landowners have expressed their intention to lodge planning proposals shortly following precinct planning). Market driven solutions and planning proposals for longer term sites are unlikely to eventuate within this same period and are expected to occur beyond a 10-year horizon, as these sites are either substantially more complex, require amalgamation of fragmented areas or are unlikey to be feasible at an appropriate density and scale outcome within this initial 10-year horizon.

Housekeeping Amendments (Phase 1)

Council-Led Change (Phase 2)

Action A1 - Public Domain Plan: Council will prepare a Public Domain Plan for the Rouse Hill Strategic Centre to facilitate some of the outcomes envisaged under this Precinct Plan, including character outcomes set out in Section 4.3 of this Plan.

Action A2 - Development Control Plan Amendments: Council will prepare Development Control Plan amendments for the Rouse Hill Strategic Centre to facilitate some of the outcomes envisaged under this Precinct Plan, including the environment and smart places outcomes set out in Sections 3.4 and 3.5 of this Plan.

Market Driven Change (Phase 3)

Action A3 - Rouse Hill Hospital: The Rouse Hill Hospital will continue to progress through the design, planning approval and construction processes. Council will continue its role as a key stakeholder throughout these processes.

Action A4 - Northern Frame: Future uplift will be facilitated through a landowner-initiated planning proposal for the Northern Frame, having regard to the outcomes and design principles set out in Section 4.1 of this Plan (Focus Area 2). Site-specific DCP amendments will also be required to guide future development outcomes, as well as appropriate infrastructure solutions and mechanisms.

Action A5 - Tempus Street Sleeve Sites: Future redevelopment will have regard to the outcomes and design principles set out in Section 4.1 of this Plan (Focus Area 3). Amendments to the Rouse Hill Regional Centre Master Plan will likely be required to guide future development outcomes, as well as appropriate infrastructure solutions and mechanisms.

Action A6 – Bus Interchange: Future redevelopment of this site will be subject to further detailed design testing and relevant State Government asset management processes, as set out within Section 4.1 of this Plan (Focus Area 4). Site-specific DCP amendments will also be required to guide future development outcomes, as well as appropriate infrastructure solutions and mechanisms.

Action A7 – Town Centre Core: Future opportunities for redevelopment will be monitored having regard to relevant external factors as set out in Section 4.1 of this Plan (Focus Area 5).

Action A8 - Home Hub (4-6 Commercial Road): Future uplift will be facilitated through a landowner-initiated planning proposal, having regard to the outcomes and design principles set out in Section 4.1 of this Plan (Focus Area 6). Site-specific DCP amendments will also be required to guide future development outcomes, as well as appropriate infrastructure solutions and mechanisms.

Action A9 - The Fiddler (2 Commercial Road): Future uplift will be facilitated through a landowner-initiated planning proposal, having regard to the outcomes and design principles set out in Section 4.1 of this Plan (Focus Area 7). Site-specific DCP amendments will also be required to guide future development outcomes, as well as appropriate infrastructure solutions and mechanisms.

Action A10 - Lot 901 Windsor Road: Future uplift will be facilitated through a landowner-initiated planning proposal, having regard to the outcomes and design principles set out in Section 4.1 of this Plan (Focus Area 8). Site-specific DCP amendments will also be required to guide future development outcomes, as well as appropriate infrastructure solutions and mechanisms.

Action A11 - Rouse Hill Village: It may be appropriate for landowners to revisit the quantum of retail floorspace available in the Rouse Hill Village Centre (once development on the surrounding land occurs) by way of a landowner-initiated planning proposal, having regard to the design principles set out in Section 4.1 of this Plan (Focus Area 10). Any future planning proposal must be accompanied by a detailed Economic Impact Assessment (EIA), which shows that there is sufficient demand for increased retail capacity without compromising the ability of other existing or proposed centres to fulfil their roles in the centres hierarchy.

/

Table 10. Overview of Phasing and Implementation
Bara Way Reserve

5.1 Infrastructure Analysis

The level of growth expected within the Rouse Hill Strategic Centre will place increased pressure on existing local and regional infrastructure. One of the guiding principles for this Precinct Plan is that existing and future growth will be appropriately catered for with local infrastructure, as these facilities are integral to the daily lifestyles of residents and workers. This includes local infrastructure such as playing fields, parks, traffic and transport works, community facilities and stormwater works.

This section mainly focuses on the infrastructure required to service the uplift and development within Rouse Hill that is not yet catered for by the planned and existing local infrastructure framework.

Areas which have been subject to previous investigations to identify the required local infrastructure, and where this Precinct Plan is not proposing any significant change, do not form part of the analysis. However, infrastructure upgrades that are already planned and identified for funding are acknowledged to provide a holistic analysis.

Local infrastructure can be delivered by Developers or Council through a combination of Contributions Plans and Planning Agreements.

Contributions Plans include a schedule of infrastructure and costs and establish contribution rates. As development occurs, Developers pay contributions and these contributions are allocated toward the rollout of infrastructure listed within the Plan. Alternatively, Developers can enter into a Planning Agreement with Council. These Agreements can include land, capital works or monetary contributions for local infrastructure. Planning Agreements are voluntary and are typically entered into as part of site-specific proposals to increase density, where the infrastructure that is required to support the growth is not included within an applicable Contributions Plan. These Agreements can also be effective where the land being redeveloped is controlled by a single owner.

Figure 62 identifies the existing local contribution framework (both Contributions Plans and current Planning Agreements) that apply across the Strategic Centre.

Metro Station

Metro Line (Above Ground)

Rouse Hill Strategic Centre

Voluntary Planning Agreement

Contributions Plan No. 8Kellyville/Rouse Hill

Contributions Plan No. 11Annangrove Road Employment Area

Contributions Plan No. 13North Kellyville Precinct

Contributions Plan No. 15 -

Box Hill Precinct

*Note: Council’s Section 7.12 Contribution Plan also applies to the Rouse Hill Strategic Centre.

Figure 62. Existing Contribution Plan and VPA Framework*
Aerial View of Caddies Creek Corridor

5.1.1 Active Open Space

Active open spaces are areas for physical activity and organised sport. This Precinct Plan assesses the expected active open space needs of future residents and recommends solutions to address demand.

Existing Situation

There are currently 2 existing active open space facilities within the Study Area. These include:

• Bruce Purser Reserve (1 AFL field).

• Hills Centenary Reserve (3 playing fields and 1 softball field).

There are 3 additional active open space facilities the vicinity of the Study Area, including:

• Kellyville Netball Complex (38 Netball Courts).

• Russell Reserve (2 playing fields).

• Caddies Creek Sports Complex (3 playing fields and 1 baseball field). The Caddies Creek Sports Complex will be expanded to include 4 additional playing fields and new multi-purpose courts in response to demand arising for development within the Bella Vista and Kellyville Station Precincts.

The existing active recreation facilities are nearing capacity. A key limiting factor for additional residential growth beyond that permitted under the current planning framework is the difficulty in identifying and acquiring new areas for additional active open space and playing fields within the locality.

Proposed Demand

Council’s Recreation Strategy indicates that dwellings should be located within 1-2km of a local active open space facility, where possible. The benchmark for active open space provision is 1 playing field per 2,000 people for low-density areas and 1 playing field per 4,000 people (2,000 dwellings) for high-density residential areas.

Based on these benchmarks and the existing and planned active open space network, there is only capacity to cater for an additional 500-1,000 dwellings within the Strategic Centre (beyond the growth already anticipated under the current controls) subject to further embellishments to increase capacity.

Any proposal to increase residential yields must ensure an appropriate infrastructure solution is established and contributions mechanism put in place as part of any changes to planning controls. Further residential growth beyond that identified in this Plan would not be serviced by any existing or planned active open space and as a result, would reduce levels of service for existing and future residents in the locality. It would be necessary to establish an alternative solution to address the resultant demand.

5.1.2 Passive Open Space

Passive open spaces are areas primarily for play and quiet relaxation, providing an opportunity to connect with the community and outdoor environment and includes local parks, urban parks or plazas, and green corridors containing a footpath and cycleway. This Precinct Plan assesses the expected passive open space needs of both residents and workers and recommends solutions to address demand.

Existing Situation

Currently the Rouse Hill Precinct accommodates approximately 14 local and neighbourhood parks, with a further nine parks within the broader locality (three located in Blacktown LGA).

The Caddies Creek tributary traverses the Rouse Hill Strategic Centre. This Greenway Link is under the ownership of Sydney Water and serves both a drainage and open space function. The tributary diverges into Strangers Creek and Caddies Creek which continue into Beaumont Hills in the south and North Kellyville in the north. These corridors form part of the Shire’s broader Green Grid.

Proposed Demand

Council’s Recreation Strategy indicates that dwellings should generally be located within 400m of passive open spaces. Where possible, existing parks will be enhanced to a higher quality.

It is also acknowledged that local parks do not only service residents but are also important for workers. They play an essential role in attracting and retaining employees as they provide places for workers to have breaks. They assist in achieving good urban design outcomes, enhancing the image of the Rouse Hill Strategic Centre and provide amenity for residents, workers and visitors.

Proposed Solutions

Figure 64 shows all existing and planned passive open space areas within the Strategic Centre, with a 400m walkable catchment around each open space. The map also includes privately owned, but publicly accessible, greenway/drainage links which form an integral part of the open space network within the Strategic Centre.

The Precinct is well serviced in terms of passive open space. However additional residents, workers and visitors will create demand for new open spaces, especially within the heart of the Strategic Centre. The new central local park identified within the structure plan for the Northern Frame will increase the quantum of open space within the core of the Town Centre and will greatly improve accessibility to open space. As this Precinct is further master planned, opportunities for new parks and plazas will need to be investigated within individual sites, especially as part of future development outcomes in Focus Areas identified in Section 4.1 of this Precinct Plan.

Figure 64. Passive Open Space Network Upgrades

5.1.3 Traffic and Transport

The Study Area comprises an extensive local and regional road network, which provides links between key areas and to surrounding centres. Windsor Road is a regionally significant arterial road, providing a northsouth connection along the western boundary of the Study Area and separates The Hills and Blacktown Local Government Areas. It provides regional connections to Windsor and the Hawkesbury Region to the north and throughout The Hills (Norwest and Baulkham Hills), through to Parramatta and the M2 and M7 Motorways.

White Hart Drive, Caddies Boulevard and Commercial Road frame the Town Centre and provide connections through to surrounding residential areas and Windsor Road. Commercial Road, Withers Road and Mile End Road provide local connections beyond the Precinct to areas such as Beaumont Hills, North Kellyville, the Annangrove Road Employment Area and Box Hill.

The roads are congested during morning and evening peak periods, causing delays for road users. Future growth will substantially increase traffic volumes within the Strategic Centre, particularly along Windsor Road, Commercial Road, Withers Road and local feeder roads. While it is expected that road users will likely experience some worsening traffic congestion, even with planned road upgrades, it will be the focus of traffic and transport planning to ensure that the future road network operates at an acceptable level of service. This will occur in consultation with Transport for NSW and Developers/landowners as redevelopment occurs.

Ensuring that the road network continues to operate at an acceptable level of service will require the implementation of a combination of measures. These include:

• Reduced parking rates that recognise the accessibility of high frequency public transport services to and from the Centre.

• Modal shift toward increased public transport usage to access the Strategic Centre (assisted through reduced parking rates, improved access to the Metro Station, the delivery of future regional transport connections and connectivity and public domain improvements).

• Upgrades and expansion of certain roads and intersections to ensure the road network functions to an acceptable standard.

• Design of new development to be pedestrian oriented. These matters are discussed further within this Section.

Metro Station

Metro Line (Above Ground)

Rouse Hill Strategic Centre

Primary Arterial

Sub Arterial

Major Collector Minor Collector

Figure 65. Existing Road Network

Regional Road Network

Various upgrades have been identified to assist in increasing the capacity of the regional road network, as shown in Table 11 below. The responsibility for funding and completion of these roads is shared between Council and the State Government.

Upgrade of Commercial Road between McCombe Avenue and Withers Road

Signalisation upgrade at Commercial Road and Withers Road intersection

Upgrade of Withers Road from Mile End Road to Commercial Road

Signalisation upgrade at Withers Road and Mile End Road intersection

Upgrade of Withers Road from Annangrove Road to Mile End Road

/ Council

Government / Council

Government / Council

Government / Council

Government / Council

Metro Station

Metro Line (Above Ground)

Rouse Hill Strategic Centre

Primary Arterial Road

Sub-Arterial Road

Public Transport Corridor Options

Item

Table 11. Regional Road Network Upgrades
Figure 66. Regional Road Upgrades

Local Road Network

In addition to the regional road upgrades, several local road improvements are identified within the Rouse Hill Strategic Centre (including new road connections, intersection upgrades, new signalised intersections, roundabouts and left-in-left-out upgrades). These are principally feeder roads onto the regional road network and provide local vehicular access to existing and future development sites. These improvements will result in the following benefits:

• Ease traffic congestion.

• Improve vehicular connectivity.

• Facilitate active transport links.

• Facilitate improved amenity for residents and workers.

The suite of local road improvements will work in tandem with reduced parking rates, improved public transport services and connectivity and public domain improvements. Typically, local road improvements will either be funded through local Contributions Plans or will be delivered by Developers (at no cost to Council) as redevelopment occurs. Some of the upgrades listed in Table 12 are already identified for delivery and funding through Contributions Plans and/or Voluntary Planning Agreements (VPA). The strategically identified items have not yet been finalised and do not have a current funding source. Where needed, Council can consider including the capital and land acquisition costs associated with upgrades within an applicable Contributions Plan. Where appropriate, land required for road widening will be zoned for acquisition within The Hills Local Environmental Plan.

New signalised intersection at the junction of Commercial Road and the new local road adjoining the future Rouse Hill Hospital Health Infrastructure / Developer (Strategically Identified)

New local road connecting the future Rouse Hill Hospital and Caddies Boulevard

New left-in/left-out intersection at the junction of Caddies Boulevard and the new road connecting the future Rouse Hill Hospital

New signalised intersection at the junction of Green Hills Drive, Commercial Road and Caddies Boulevard

(Strategically Identified)

(Strategically Identified)

(Strategically Identified)

local road

New local roads throughout Focus Areas above Commercial Road

New local roads throughout the Hospital Site

(Strategically Identified)

/

(Strategically Identified)

Extension of Green Hills Drive from Carnoustie Street to Commercial Road
Developer (VPA)
New roundabout at the junction of Carnoustie Street and Green Hills Drive
Developer (VPA)
New
connecting to Rouse Hill Drive
(Strategically Identified)
Figure 67. Local Road Upgrades
Table 12. Local Road Network Upgrades*

Car Parking

The Hills Shire currently has high private car ownership rates and usage patterns, with nearly 80% of trips made by private vehicles. With the population set to increase over the next 20 years, this will in turn drastically increase the number of cars on the road network (estimated to be an additional 72,000 cars across The Hills Shire based on existing car ownership levels), subsequently placing increased pressure on the road network.

While Rouse Hill has not benefited from any regional traffic modelling undertaken by Transport for NSW as was the case in other Strategic Centres of The Hills (being Castle Hill and Norwest), a detailed Transit Centres Parking Requirements Report was prepared by PeopleTrans in late-2020.

The application of reduced parking rates that recognise the accessibility of the Strategic Centre with high frequency public transport services will substantially reduce traffic generation. The reduced traffic generation coupled with road upgrades will assist in minimising the impact of growth on the level of service of the road network.

Reduced parking rates also have many other benefits, including encouraging a modal shift towards public transportation and prioritising transit oriented development principles. It will also assist in enhancing local amenity and creating great places that attract residents, workers and investments.

They also improve commercial feasibility, with many Developers challenged by the high cost of parking within a construction project, combined with high minimum parking rates and the need for public domain improvements. It is estimated that basement parking spaces cost on average between $50,000 - $60,000 per space. Therefore, introducing more constrained parking rates will make redevelopment more economically attractive, enable Developers to develop at a high design standard and provide a greater contribution towards the embellishment of the public domain.

Council already has a reduced residential parking rate of 1 space per dwelling within the Station Precincts. For non-residential development, it is recommended that the proposed reduced parking rates, based on walkable catchments (as shown in Figure 68), be rolled out within the Strategic Centre. This would occur through an amendment to The Hills Development Control Plan 2012, in line with the recommendations contained within the Transit Centres Parking Requirements Report prepared by PeopleTrans.

Figure 68. Parking Catchments
Table 13. Proposed Parking Rates Based on Gross Floor Area (GFA)

Active Transport Network

The delivery of a safe and well-connected pedestrian and bicycle network is essential to improving the amenity of the Rouse Hill Strategic Centre and achieving a transit oriented centre. The existing impediments to cycle and pedestrian movement within the Rouse Hill Strategic Centre are:

• Regional Roads (barriers): Areas of the Strategic Centre are bisected by busy roads such as Windsor Road, Commercial Road and Withers Road. Access points across these roads are currently limited.

• Large impermeable lots: Large lots with no pedestrian through-site links reduces permeability and increases the time and distance for pedestrians to walk between different points within the Strategic Centre. The existing Town Centre core has good permeability however improved connections will be required as part of any redevelopment within the Northern Frame and sites to the north of Commercial Road.

• Incomplete network: There are already existing pathways and cycleways, which assist in facilitating active transport. However, the paths in certain parts of the Rouse Hill Strategic Centre are not complete.

The above issues can be mitigated through the following:

• Provide shared paths in association with road upgrades.

• Identify through site links to improve pedestrian movement.

• Complete missing portions of the cycle network.

• Require footpaths adjoining development sites.

• Identify pedestrian bridges across roads with high traffic volumes.

The updated walkability catchment taking into account the existing and planned pedestrian and cycle connections identified within this Plan is shown in Figure 69.

This Plan aims to improve the active transport facilities by integrating active transport methods with other forms of available transport modes in the Rouse Hill Strategic Centre to increase public transport use and promote healthier lifestyles. For example, dual-mode travel can be encouraged by providing an integrated network of active routes ensuring good local connections between residential areas and attractors, such as educational institutions, shopping centres, major bus interchanges and secure bicycle parking facilities.

Metro Station

Metro Line (Above Ground)

Rouse Hill Strategic Centre

Up to 5 minute walk (400m)*

5 to 10 minute walk (800m)*

10 to 15 minute walk (1,200m)*

Pedestrian Bridge

Proposed Road

Pedestrian Link

Existing Cycleway

Planned Cycleway

*Note: accounting for new connections proposed in this Plan.

Figure 69. Active Transport Network Upgrades

5.1.4 Regional Public Transport

It is imperative that the centre is accessible and has frequent and efficient public transport connections to surrounding regions and economic centres. This will make Rouse Hill a viable and attractive option for future residents, businesses and workers.

The Sydney Metro Northwest addresses the critical east-west connection along the Macquarie Park / Chatswood and City economic corridor. The extension of the Sydney Metro Northwest from Tallawong Station to St Marys Station will also greatly improve public transport to the Western Sydney Employment Area and future Western Sydney Airport. The investigation of this corridor is identified in the Region Plan as a 0-10 year priority. Rouse Hill is located to benefit from this important linkage.

The T-way provides an accelerated bus service to Parramatta and largely follows the alignment of Windsor Road and Old Windsor Road into the CBD opposite Parramatta Train Station. This service is well utilised.

Currently connections between Parramatta and the Hills Shire are principally via arterial roads (Windsor Road and Old Windsor Road). These roads are extremely congested during peak periods and even with the completion of local and regional road upgrades this congestion will only worsen as the population grows.

The NSW Government’s Greater Sydney Region Plan and Future Transport Strategy nominate a city-shaping link between Norwest and Parramatta as a 10-20 year visionary project with no firm commitment to planning at this stage. The Rouse Hill Strategic Centre would benefit from this link as, when combined with the Sydney Metro Northwest, it would provide an additional public transport option to the Parramatta CBD. To safeguard this connection earmarked by the NSW Government, it is pivotal that the NSW Government progressively conduct feasibility studies to preserve the transport corridor and transport hubs to protect the future city-shaping mass transit link identified in the Future Transport Strategy.

Council will continue to lobby the NSW Government for the funding, early planning and delivery of these regional transport connections, as they are critical to the success of Rouse Hill moving forward. A mass transit link between The Hills Shire and Parramatta will secure the long-term viability of the Shire’s Strategic Centres and support the growth of the Greater Parramatta and Olympic Peninsula (GPOP) economic corridor, cementing Parramatta’s role as the Central River City Central Business District.

To better connect people to both rail and T-way services, a link is required between Box Hill and Rouse Hill. This Plan identifies three public transport corridor options to be investigated in partnership with Transport for NSW. These options follow the alignment of either Green Hills Drive, Mile End Road and Withers Road (Option 1), Commercial Road and Withers Road (Option 2) and Windsor Road (Option 3). Investigations are required to identify the best continuation of the corridor to maximise opportunities for residents in the North West Growth Area to access fast, reliable public transport.

This link is critical to facilitating an integrated public transport network for residents of the broader Rouse Hill locality and the precincts of Box Hill and Gables, many of which are currently unable to access a Metro Station without reliance on private vehicles.The following key actions will be required as part of the long term planning for improved public transport services to and from Rouse Hill:

• Collaborate with State Government in the preparation of a business case for the mass transit link between Norwest and Parramatta. This will include the type of service required and identify options for a corridor.

• Collaborate with State Agencies as part of the planning and delivery of the extension of the Sydney Metro Northwest from Tallawong Station to St Marys Station.

• Collaborate with State Agencies as part of the planning and delivery of a public transport corridor from Rouse Hill to Box Hill.

Figure 70. Potential Mass Transit Link between Parramatta and Norwest (Source: Transport for NSW – Future Transport Strategy)
Figure 71. Potential Box Hill to Rouse Hill Public Transport Corridor (Source: Council’s Integrated Transport and Land Use Strategy) Rouse Hill
Box Hill
Rouse Hill Metro Station

5.1.5 Community

Facilities

Existing Situation

The Rouse Hill Strategic Centre contains one of the library facilities within The Hills Shire, the Vinegar Hill Memorial Library and Community Centre, which is located in the heart of the Rouse Hill Town Centre. The library has a total floor area of 1,300m² and primarily services Rouse Hill, Box Hill, Gables, North Kellyville and Beaumont Hills. It contains a children’s area and three meeting rooms and office space. Whilst primarily servicing the identified catchment, a significant portion of borrowers also come from Kellyville, Bella Vista and other areas within The Hills Shire.

There are currently two community facilities within the Rouse Hill Strategic Centre, including the Vinegar Hill Memorial Community Centre and the Rouse Hill Community Centre. These facilities have a total floor area of 870m² and capacity for 768 people.

Population growth within the Strategic Centre and surrounding suburbs will warrant the provision of new library and community facilities. Whilst there is currently a lack of such facilities within the North West Region, this is largely since Council is unable to fund the capital cost for these types of facilities under local Contributions Plans (as they are not on the Independent Pricing and Regulatory Tribunal’s (IPART) Essential Works List).

Council’s Contributions Plans for the Balmoral Road Release Area and North Kellyville Precinct collect contributions for a land / stratum cost for further provision of areas of community floor space potentially located within the Rouse Hill Town Centre. However, it is noted that these Plans did not expect or cater for the level of growth anticipated under this Precinct Plan.

Projected Demand

The delivery of new community floorspace within the Strategic Centre will service the needs of new residents and will also relieve pressure on other nearby libraries by drawing users from existing facilities. This is also critical given the Rouse Hill Strategic Centre services the rapidly growing Balmoral Road, North Kellyville, Box Hill and Gables Release Areas.

Proposed Solution

Opportunities will be explored to provide new community floor space within the Northern Frame of the Rouse Hill Strategic Centre. Opportunities for new library floorspace (potentially in the form of concierge libraries) will also be investigated within the vicinity of the Rouse Hill Strategic Centre.

Vinegar Hill Memorial Library and Community Centre

5.1.6 Education Facilities

The delivery of primary and secondary schools is an integral part of ensuring liveable neighbourhoods and servicing the needs of our family dominated demographic. Identification and delivery of schools is ultimately a matter for State Government (School Infrastructure NSW) and consultation will be required.

The projected growth will generate demand for new school infrastructure, for both primary and secondary schools. Some of the demand may be met through additional private schools and/or expansion of capacity within some existing schools. The remaining demand will need to be catered for through new NSW Government schools and will be a matter for further consultation with the NSW Government.

Notwithstanding the above, this Plan identifies a parcel of NSW Government-owned land north west of Caddies Creek Reserve that could be used for State infrastructure such as a new school. This landholding will be subject to future investigations by Schools Infrastructure NSW and is identified on the Structure Plan within Section 4.2 of this Precinct Plan.

Metro Station

Metro Line (Above Ground)

Rouse Hill Strategic Centre

Rouse Hill High School Catchment

Kellyvillle High School Catchment

The Ponds High School Catchment

Riverstone High School Catchment

Potential New School*

*Note: subject to future investigations by School Infrastructure NSW

Station

Metro Line (Above Ground)

Rouse Hill Strategic Centre

Rouse Hill High School Catchment

Kellyville Ridge Primary School Catchment

North Kellyville Primary School Catchment

Ironbark Ridge Primary School Catchment

Beaumont Hills Primary School Catchment

John Palmer Primary School Catchment

Figure 72. High School Catchment Area
Metro
Figure 73. Primary School Catchment Area

5.1.7 Water Management

Stormwater Network

Applications for future development and proposals to facilitate uplift of development opportunities on land in the Precinct will need to be supported by a Stormwater Assessment to identify the capacity of the existing stormwater network and its hydrological level of service. The assessment will also need to identify what upgrades will be required to facilitate safe and sustainable development.

Overland Flowpaths

There are numerous overland flowpaths throughout the Rouse Hill Strategic Centre, predominately located on existing roads and dedicated drainage lines. However, it is noted that some of the flowpaths are located on private land.

Overland flowpaths convey stormwater during storm events. Underground stormwater pipes have a limited capacity. When these pipes are blocked, or when the volume of stormwater exceeds the capacity of the pipes, the stormwater will spill over and flow over land until it reaches a creek or basin. These flowpaths are to be reserved from development and must be kept clear.

Where an overland flowpath is located on private land, future development must be designed to avoid the flowpath. Where possible through site links and future roads will be strategically located to align with these flow paths so that the stormwater pipes can be located within the road reserve.

The following key actions will be required as part of the long term planning for improved stormwater management:

• Future landowner initiated proposals will need to identify and deliver upgrades to the stormwater network.

• Reinforce the need for development to avoid overland flowpaths through development controls. Where possible locate through site links and new roads along these flowpaths.

Metro Station

Metro Line (Above Ground)

Rouse Hill Strategic Centre

Creek / Overland Flowpath

Catchment Area

100 Year Flood Extent

*Note: The information presented in this map on flood extent is subject to disclaimer and copyright notice. Please refer to Appendix A for details.

Figure 74. Hydrology*

5.2 Actions

The delivery of regional infrastructure will be the responsibility of State Government (regional traffic upgrades, mass transit and public transport corridors, schools and hospitals). Whereas Council will be responsible for the delivery of local infrastructure (land and physical works) including playing fields, parks, traffic and transport upgrades, community facilities and stormwater works. However, it is anticipated that some of this can be delivered by Developers as future development occurs.

As previously discussed in Section 5.1 of this Precinct Plan, the Strategic Centre is currently covered by Contributions Plan No. 8 – Kellyville/ Rouse Hill (a residential contributions plan) and The Hills Section 7.12 Contributions Plan (applicable to non-residential development). Neither Plan accounts for the scale of growth proposed through this Precinct Plan.

Future growth is expected to occur through the redevelopment of large master planned development sites, with any necessary changes to the planning framework to occur through market driven planning proposals. Any planning proposal must consider and identify the appropriate infrastructure solutions and establish the necessary mechanisms for development contributions and/or delivery of works-in-kind.

Caddies Creek Corridor

Council-Led Change (Phase 2)

Action B1 – Collaboration with School Infrastructure NSW: Council to work with School Infrastructure NSW to investigate opportunities for potential new schools to service the existing and proposed population.

Action B2 – Collaboration with State Government: Collaborate with State Government in the preparation of a business case for the mass transit link between Norwest and Parramatta. This will include identification of the type of service required and potential options for a corridor.

Action B3 – Collaboration with State Government: Collaborate with State Agencies as part of the planning and delivery of the extension of the Sydney Metro Northwest from Tallawong Station to St Marys Station.

Action B4 – Collaboration with State Government: Collaborate with State Agencies as part of the planning and delivery of the public transport corridor from Rouse Hill to Box Hill.

Action B5 – Development Control Plan Amendments: Council will amend The Hills Development Control Plan 2012 to implement reduced nonresidential parking rates and reflect the planned pedestrian and cycle links for the Rouse Hill Strategic Centre.

Council / Landowners / Developers
Artist’s Impression of Residential Development with Active Ground Floor Uses (Source: Cox Architecture and GPT)
Artist’s Impression of Future Development (Source: Group GSA)

This Plan sets a holistic vision and ‘blueprint’ for the Rouse Hill Strategic Centre. It includes a list of actions that will be subject to future processes and decisions of Council. It will be necessary to work through these actions over time, to establish the planning framework that facilitates the vision and outcomes articulated in the Plan.

The Plan identifies areas where strategic work has been completed and where development is expected to either remain unchanged or continue to roll-out under the current planning framework. It then groups actions into three distinct phases, having regard to potential timing and responsibility for each action. While the market driven changes are mapped, the tables on the following pages also include Precinct-wide Council-Led changes. No housekeeping amendments are proposed as part of this Plan.

*Note: There are additional actions identified within Phase 2, however they are holistic to the Precinct, not specific to individual sites and are therefore not shown on the map above.

Metro Station

Metro Line (Above Ground)

Rouse Hill Strategic Centre

Strategic Work Completed

Phase 1 - Housekeeping Amendments

Phase 2 - Council-Led Change

Phase 3 - Market Driven Change

Strategic Work Completed

Areas where strategic planning work has already been completed and where no further change to the planning controls is anticipated. The Rouse Hill Regional Centre Master Plan framework (as originally established in 2004 and reviewed and updated since this time) continues to guide appropriate outcomes for much of the Centre. Development is expected to either remain unchanged or continue to rollout under the current planning framework (including development applications and/ or construction).

Phase 1: Housekeeping Amendments

Areas where Council-Led housekeeping amendments are recommended to facilitate improved and/or orderly development outcomes. It is noted that no housekeeping amendments are identified at this time, however Council may undertake housekeeping amendments in the future if the need arises.

Phase 2: Council-Led Change

Short to medium term actions that could be led by Council. For example, the preparation of a holistic Public Domain Plan and/or Development Control Plans to guide future development throughout the Centre achieve the vision and outcomes articulated in this Plan.

Phase 3: Market Driven Change*

The timing for commencement of these actions will be market driven. These generally relate to large consolidated sites in single ownership. It is considered that the market is best placed to determine the appropriate timing for amendments to the planning controls in these instances (having regard to development demand, life cycle of existing assets and feasibility) and put forward development outcomes and infrastructure solutions consistent with the strategic framework and Council’s vision articulated within the Plan. Whilst some market driven solutions may be achievable in the short to medium term, feasible redevelopment in other market driven areas is unlikely to occur until beyond the short to medium term horizon.

Changes to the planning framework would be driven by landowner-initiated planning proposals, along with associated amendments to the Development Control Plan, Public Domain Plan and appropriate infrastructure contribution mechanisms.

In terms of timing, it is expected that planning proposals for short to medium term sites would eventuate over the next 5 to 10 years (some landowners have expressed their intention to lodge planning proposals shortly following precinct planning). Market driven solutions and planning proposals for longer term sites are unlikely to eventuate within this same period and are expected to occur beyond a 10-year horizon, as these sites are either substantially more complex, require amalgamation of fragmented areas or are unlikely to be feasible at an appropriate density and scale outcome within this initial 10-year horizon.

*Note: Refer to Section 1.3 of this Precinct Plan for location of sites that have been flagged for short to medium term change and longer term change (Figure 3).

Figure 75. Phasing Approach
Rouse Hill Metro Station and Surrounds

Housekeeping Amendments (Phase 1) N/A

Council-Led Change (Phase 2)

Action A1 - Public Domain Plan: Council will prepare a Public Domain Plan for the Rouse Hill Strategic Centre to facilitate some of the outcomes envisaged under this Precinct Plan, including character outcomes set out in Section 4.3 of this Plan.

Action A2 - Development Control Plan Amendments: Council will prepare Development Control Plan amendments for the Rouse Hill Strategic Centre to facilitate some of the outcomes envisaged under this Precinct Plan, including the environment and smart places outcomes set out in Sections 3.4 and 3.5 of this Plan.

Market Driven Change (Phase 3)

Action A3 - Rouse Hill Hospital: The Rouse Hill Hospital will continue to progress through the design, planning approval and construction processes. Council will continue its role as a key stakeholder throughout these processes.

Action A4 - Northern Frame: Future uplift will be facilitated through a landowner-initiated planning proposal for the Northern Frame, having regard to the outcomes and design principles set out in Section 4.1 of this Plan (Focus Area 2). Site-specific DCP amendments will also be required to guide future development outcomes, as well as appropriate infrastructure solutions and mechanisms.

Action A5 - Tempus Street Sleeve Sites: Future redevelopment will have regard to the outcomes and design principles set out in Section 4.1 of this Plan (Focus Area 3). Amendments to the Rouse Hill Regional Centre Master Plan will likely be required to guide future development outcomes, as well as appropriate infrastructure solutions and mechanisms.

Action A6 – Bus Interchange: Future redevelopment of this site will be subject to further detailed design testing and relevant State Government asset management processes, as set out within Section 4.1 of this Plan (Focus Area 4). Site-specific DCP amendments will also be required to guide future development outcomes, as well as appropriate infrastructure solutions and mechanisms.

Action A7 – Town Centre Core: Future opportunities for redevelopment will be monitored having regard to relevant external factors as set out in Section 4.1 of this Plan (Focus Area 5).

Action A8 - Home Hub (4-6 Commercial Road): Future uplift will be facilitated through a landowner-initiated planning proposal, having regard to the outcomes and design principles set out in Section 4.1 of this Plan (Focus Area 6). Site-specific DCP amendments will also be required to guide future development outcomes, as well as appropriate infrastructure solutions and mechanisms.

Action A9 - The Fiddler (2 Commercial Road): Future uplift will be facilitated through a landowner-initiated planning proposal, having regard to the outcomes and design principles set out in Section 4.1 of this Plan (Focus Area 7). Site-specific DCP amendments will also be required to guide future development outcomes, as well as appropriate infrastructure solutions and mechanisms.

Action A10 - Lot 901 Windsor Road: Future uplift will be facilitated through a landowner-initiated planning proposal, having regard to the outcomes and design principles set out in Section 4.1 of this Plan (Focus Area 8). Site-specific DCP amendments will also be required to guide future development outcomes, as well as appropriate infrastructure solutions and mechanisms.

Action A11 - Rouse Hill Village: It may be appropriate for landowners to revisit the quantum of retail floorspace available in the Rouse Hill Village Centre (once commercial development on the surrounding land occurs) by way of a landowner-initiated planning proposal, having regard to the design principles set out in Section 4.1 of this Plan (Focus Area 10). Any future planning proposal must be accompanied by a detailed Economic Impact Assessment (EIA), which shows that there is sufficient demand for increased retail capacity without compromising the ability of other existing or proposed centres to fulfil their roles in the centre’s hierarchy.

Table 15. Overview of Implementation and Actions - General

/

Housekeeping Amendments (Phase 1) N/A

Council-Led Change (Phase 2)

Action B1 – Collaboration with School Infrastructure NSW: Council to work with School Infrastructure NSW to investigate opportunities for potential new schools to service the existing and proposed population.

Action B2 – Collaboration with State Government: Collaborate with State Government in the preparation of a business case for the mass transit link between Norwest and Parramatta. This will include identification of the type of service required and potential options for a corridor.

Action B3 – Collaboration with State Government: Collaborate with State Agencies as part of the planning and delivery of the extension of the Sydney Metro Northwest from Tallawong Station to St Marys Station.

Action B4 – Collaboration with State Government: Collaborate with State Agencies as part of the planning and delivery of the public transport corridor from Rouse Hill to Box Hill.

Action B5 – Development Control Plan Amendments: Council will amend The Hills Development Control Plan 2012 to implement reduced nonresidential parking rates and reflect the planned pedestrian and cycle links for the Rouse Hill Strategic Centre.

Market Driven (Phase 3)

Action B6 – Market Driven Sites: Council will work with landowners to ensure the delivery of infrastructure in association with site-specific planning proposals or establishment of appropriate infrastructure contributions mechanisms.

Table 16. Overview of Implementation and Actions - Infrastructure
/ Landowners / Developers
Artist’s Impression Retail Development (Source: GPT)

Acronyms

Acronym Meaning

ABS Australian Bureau of Statistics

CBD Central Business District

CP Contributions Plan

CSP Clinical Services Planning

DA Development Application

DCP Development Control Plan

DPE NSW Department of Planning and Environment

DRP Design Review Panel

EIA Economic Impact Assessment

EP&A Act Environmental Planning and Assessment Act 1979

FSR Floor Space Ratio

GCC Greater Cities Commission

GFA Gross Floor Area

GPOP Greater Parramatta and Olympic Peninsula

GSC Greater Sydney Commission

HoB Height of Building

IPART Independent Pricing and Regulatory Tribunal

LEP Local Environmental Plan

LGA Local Government Area

Acronym Meaning

LoS Level of Service

LSPS Local Strategic Planning Statement

N/A Not Applicable

NABERS National Australian Built Enviroment Rating System

NSW New South Wales

NWRL North West Rail Link

PDP Public Domain Plan

PoM Plan of Management

RDA Restricted Development Area

RL Reduced Level

SEPP State Environmental Planning Policy

SME Small-Medium Enterprise

SSDA State Significant Development Application

TBD To Be Determined

TfNSW Transport for New South Wales

THSC The Hills Shire Council

TOD Transit Oriented Development

VPA Voluntary Planning Agreement

Assumptions

Employment Density

It is recognised that in this current climate, employment density ratios remain uncertain given the transition towards remote working. This may result in businesses wanting to reduce their long-term floorspace requirements due to the increased acceptance of working from home. It may also result in increased demand for new office formats within The Hills Shire, including small office suites and co-working spaces.

Higher floorspace per worker ratios may be required to accommodate social distancing for workers who remain in the office. There is also uncertainty around the nature of hybrid working and proportion of days each week workers will spend remote rather than in the office.

In addition, there is a wide variety of land uses that deliver employment outcomes and these will have a range of employment densities. For example, high density commercial offices would typically accommodate more workers relative to the amount of gross floor area, whereas other uses such as retail, health services and bulky goods would typically accommodate less workers relative to the amount of gross floor area. The full spectrum of these land uses is envisaged and permitted within the Rouse Hill Strategic Centre, therefore the employment ratio has been expressed as a range in this Plan.

Having regard to the above, this Plan expresses employment targets in terms of the number of jobs, rather than prescriptive minimum floor space requirements for each individual site. Based on the varying job densities that different employment uses might achieve, there is sufficient flexibility and capacity within the densities and heights identified in Section 4.2 to accommodate these jobs.

Residential Density

The majority of the land identified for residential development is already rezoned or the subject of site specific planning proposal applications. Future residential yield within the Rouse Hill Strategic Centre has been determined based on the following:

• For vacant land, where available, the projected number of dwellings has been determined based on development application, planning proposal data or prevailing development standards. Otherwise, it has been calculated by applying the density assumptions outlined in this Precinct Plan together with a dwellings per hectare rate (identified within Table 17).

• For developed land, the same approach specified above has been utilised, however an analysis of the existing number of dwellings was undertaken first to determine the net additional residential yield.

• This Precinct Plan also assumes an occupancy rate of 2 people per household for future development based on 2021 ABS Census data.

Uptake Rate

It is not envisaged that all properties will be subject to redevelopment (or full development) at the same time. The uptake rates which have been applied are estimated having regard to a range of factors, including the input from respective landowners and the opportunities and constraints affecting each individual area. These uptake rates have been applied for the purpose of projecting the long term development pattern for the strategic centre and may change over time. They are not intended to prevent a landowner from progressing with development at a time they deem appropriate. The uptake rates are included within the yield table in Section 4 of this Precinct Plan.

*Note: The employment ratio encompasses the broad range of uses that are permitted and envisaged within this Plan, such as high density commercial offices, retail, health services and bulky goods premises.

Table 17. Density Assumptions

Glossary

Active Frontage: Street frontages where there is an active visual engagement between those in the street and those on the ground floors of buildings.

Active Transport: Modes of transit that include walking, cycling, skateboarding, and scootering that promote increased sustainability, personal wellbeing and healthy, active lifestyles.

Contributions Plan: A Plan prepared by councils to levy new development to fund additional or improved local, public infrastructure needed by the development and used by the whole community.

Community Strategic Plan: A document that identifies the aspirations of The Hills Shire community. It identifies a vision for the next 10 years, details how the vision will be achieved and outlines how the effectiveness of the outcomes will be measured.

Density: A measure that indicates the size and scale of a development (often dictated by a Floor Space Ratio control).

Development Contribution: A contribution made by a developer towards the infrastructure needed to support the development.

Development Control Plan: A detailed guideline that stipulates the controls that apply to a particular type of development or in a particular area.

Floor Space Ratio: The primary measure of the density of development on an individual site.

Housekeeping Amendments: Minor amendments intended to correct insignificant or immaterial errors.

Land Use Zoning: A categorisation that dictates what land uses can take place and guides the local character within a specific area.

Liveability: How suitable a place is to live in; where the built environment supports and responds to the way in which people live, promoting safety, comfort, enjoyment, environmental quality, and access to services. Where a place contributes to the overall quality of life experienced by its residents and the broader community.

Local Environmental Plan: A statutory instrument prepared for a specific area that defines what purpose land may be used for. It consists of a written instrument and maps and includes legal definitions of development that is permissible in each zone. It also contains key development standards and special provisions to address land constraint issues, such as land acquisition, biodiversity and flood prone land.

Local Government Area: This refers to the land that encompasses The Hills Shire.

Local Strategic Planning Statement: A local policy that supports future planning decisions as well as drive future land use planning and informs how Council will manage population, housing and economic growth in The Hills. It draws on an understanding of economic, social and environmental needs over the next 20 years and sets planning priorities and corresponding actions that will provide more housing, jobs, parks and services.

Mass Transit: A large-scale public transport system provided in a specific area which supports ease of use and improved connectivity. It usually comprises buses and trains/metro services.

Mode Share: The share of people using a particular mode of transport (including cycling and walking) within the overall transport usage of an area.

Permeability: Refers to the ability to move freely and efficiently throughout an area.

Place-based planning: Place-based planning examines locations in their entirety – land use, function, look and feel, design of buildings and environment – and plans and manages them as places for people rather than simply locations. It considers an area’s existing character as well as its desired future character, which is largely informed by its community.

Planning Agreements: Voluntary agreements entered into by Council and a person, usually a Developer, to deliver public benefits. Public benefits may include the dedication of land to Council, monetary contributions, public infrastructure, community facilities, affordable housing, any other material public benefit or any combination of these.

Planning Proposal: A document that explains the intended effect of a proposed local environmental plan (LEP) and sets out the justification for making that plan. A planning proposal is submitted when a change is proposed to an existing LEP.

Public Domain: Public spaces used with little or no restriction on a daily basis by the community, including parks, urban plazas, streets and public infrastructure

Precinct Planning: A Plan for an area which involves investigations into appropriate land use and built form options, physical environment constraints, infrastructure requirements, community values and expectations.

Rezoning: When the zoning of land is change in a planning instrument. For land to be rezoned, a planning proposal is required to be submitted and go through the Gateway process and be made with the Minister’s (or a delegate’s) approval.

Smart Technology: The delivery of information to enhance the quality of services, such as energy, transportation and infrastructure, to improve the liveability and sustainability of a city or region.

Smart Places: Places that integrate technologies into the built environment to capture and convey data and insights.

Specialised Retail Premises (Bulky Goods): A building or place that is used for the sale, hire, or display of goods that are of a size, weight or quantity, that requires a large area for handling, display or storage.

State Environmental Planning Policy: State policies prepared by the NSW Government that deal with land use and urban and regional development in a state-wide context.

Strategic Centre: Flexible, diverse places targeted to attract high levels of private sector investment that will co-locate a range of activities. Within The Hills Shire, they include Norwest, Castle Hill and Rouse Hill.

Streetscape: Refers to the view from the public domain, usually the street (and possibly a laneway or public reserve).

Structure Plan: A plan that indicates where we will focus jobs and housing in Strategic Centres over the next 20 years. For the purposes of this Precinct Plan, it focuses on desired land uses, built form, density and connectivity.

Sustainable: Relates to the endurance of systems, buildings, spaces, and processes – their ability to be maintained at a certain rate or level, which contributes positively to environmental, economic and social outcomes.

Through-site Links: Pedestrian and bike links that improve permeability and assist in breaking up large lots and increase the potential for direct and clear connections between buildings.

Transit Oriented Development: The concept of maximising the density of development (be it housing, employment, retail, services and leisure) within walking distance of public transport and creating walkable and high-amenity Precincts.

Value Added: The value of output after deducting the cost of goods and services inputs on the production process.

Walkability: The ability to safely walk to amenities within a reasonable distance, usually defined as a walk of 15 minutes or less.

30-Minute City: Where people can access jobs and services in their nearest metropolitan or strategic centre within 30 minutes by public transport, seven days a week.

Disclaimer and Copyright Notice on Flooding and GIS Data

Disclaimer

The information presented on the flood map is assembled from multiple sources and is the best information currently held by The Hills Shire Council (THSC) in relation to the Precinct. In using this flood map, the user acknowledges the following:

• The flood map is for information purposes only.

• THSC does not warrant that the flood map does not contain errors and that THSC shall be in no way liable for any loss, damage, or injury suffered by a legal user or any other person or corporation consequent upon the existence of errors in the flood map.

• The flood map or part of it will not be copied, lent, resold, altered, decompiled, disassembled, or otherwise disposed of without the consent of THSC. The user shall use all reasonable efforts to protect the flood map from unauthorised use, reproduction, distribution, or publication and to ensure that the information, which is confidential to the data custodian, and to which the user may have obtained access by way of this document, is not made available to any other party or used for any other purposes.

• THSC may, at any time, revise the flood map without notice.

Copyright Information

• Flood maps and other flood related data copyright remains with THSC and Sydney Water.

• Base cadastre copyright remains with Land and Property Information NSW (LPI).

• Cadastre updates (including Council generated data) copyright remains with THSC.

• Contour information copyright remains with THSC and the Department of Climate Change, Energy, the Environment and Water (formerly known as The Department of Environment and Climate Change).

• Topographic survey data remains the property of THSC.

Turn static files into dynamic content formats.

Create a flipbook
Issuu converts static files into: digital portfolios, online yearbooks, online catalogs, digital photo albums and more. Sign up and create your flipbook.