Shalbourne, Marlborough

Page 1

If using a phone or tablet, please rotate screen Rivar Road, Shalbourne, Marlborough, SN8 3RL 5 1 ° 3 5 ' 5 0 . 7 " N 1 ° 5 4 ' 3 3 . 3 " W what3words///nitrate furniture smoker Wheatlands
the

ABOUT THIS HOUSE

heatlands is a beautifully presented property of over 3000 sq. ft. set on the edge of the highly popular village of Shalbourne. The property has been renovated over the years and is now a

W compelling mix of fresh, light and modern spaces, yet the house retains a clear relationship to the agricultural history of the area. The accommodation throughout is generous and the numerous reception rooms allow a real flexibility as to how they could be used There is a wonderful open plan kitchen which has the most incredible views of the surrounding downland. There is also a separate sitting room which is ideal for more formal entertaining, as well as a separate dining room and study.

thecountryhousedepartment com 5

HIGHLIGHTS

There are a living at this ones are:

The property is present features an open plan leading onto the terrace

The property is set in t with incredible views o rolling Downs.

However, Wheatlands is heart of the highly desir

There is secondary acc two bedroom, one recep

The pool enjoys the m gardens are beautiful, interspersed with a vari planting of an orchar flower beds which are summer months.

STUDIO

In addition to this is a n Manage.

A driveway provides pa an area to tuck away a h

To the rear of the hou perfect for those who en

In addition to this is a n including a hot wash d good size tack room. lockable barn for all equ

the

thecountryhousedepartment com 9
the
ABOUT THIS HOUSE thecountryhousedepartment com 13 4/6 2/3 1 4/5 6 SERVICES Mains water, electricity and drainage Oil Aga and heating EPC E COUNCIL TAX Band G LOCAL AUTHORITY Wiltshire Council CO ORDINATES WHAT3WORDS 5 1 ° 3 5 ' 5 0 7 " N 1 ° 5 4 ' 3 3 3 " W ///limit.lasts.grapevine Annexe
thecountryhousedepartment com 17

ABOUT THIS AREA

Marlborough is situated 9 miles away in the picturesque north east of Wiltshire Much of its great beauty is environmentally protected and it offers the discerning visitor a discerning blend of facilities. Its famously wide High Street hosts a market twice weekly The town displays the confidence of wealth from times past, yet today remains vibrant and progressive with its own chic café culture and many independent shops.

Andover lies 12 miles away, situated on the River Anton which is a major source of the Test. It has excellent communications with a main line station to Waterloo as well as road access via the A303 and M3. It also has a good range of shopping facilities.

A little further away is the bustling cathedral city of Winchester, set on the edge of the beautiful South Downs National Park. Winchester has a number of good restaurants, shops and iconic landmarks whilst the South Downs has some incredible paths ideal for walking, riding or cycling.

TOWNS & TRAIN STATIONS

Great Bedwyn 3.5 miles Hungerford 4 miles

Marlborough 9 miles Andover 12 miles Newbury 14 miles London Paddington from 49 mins (Hungerford)

London Waterloo from 1hr 7 mins

LOCAL

The Plough, Shalbourne

The Crown & Anchor, Ham The Swan, Wilton

thecountryhousedepartment com 13

T he main bedro impressive, ag views across t bathroom.

the 5 1 ° 3 5 ' 5 0 . 7 "
thecountryhousedepartment com 21
the
thecountryhousedepartment com 25

The area is wel having some and countrysi most fantastic area has to of

the 5 1 ° 3 5 ' 5 0 . 7 "
thecountryhousedepartment com 29
the
thecountryhousedepartment com 33

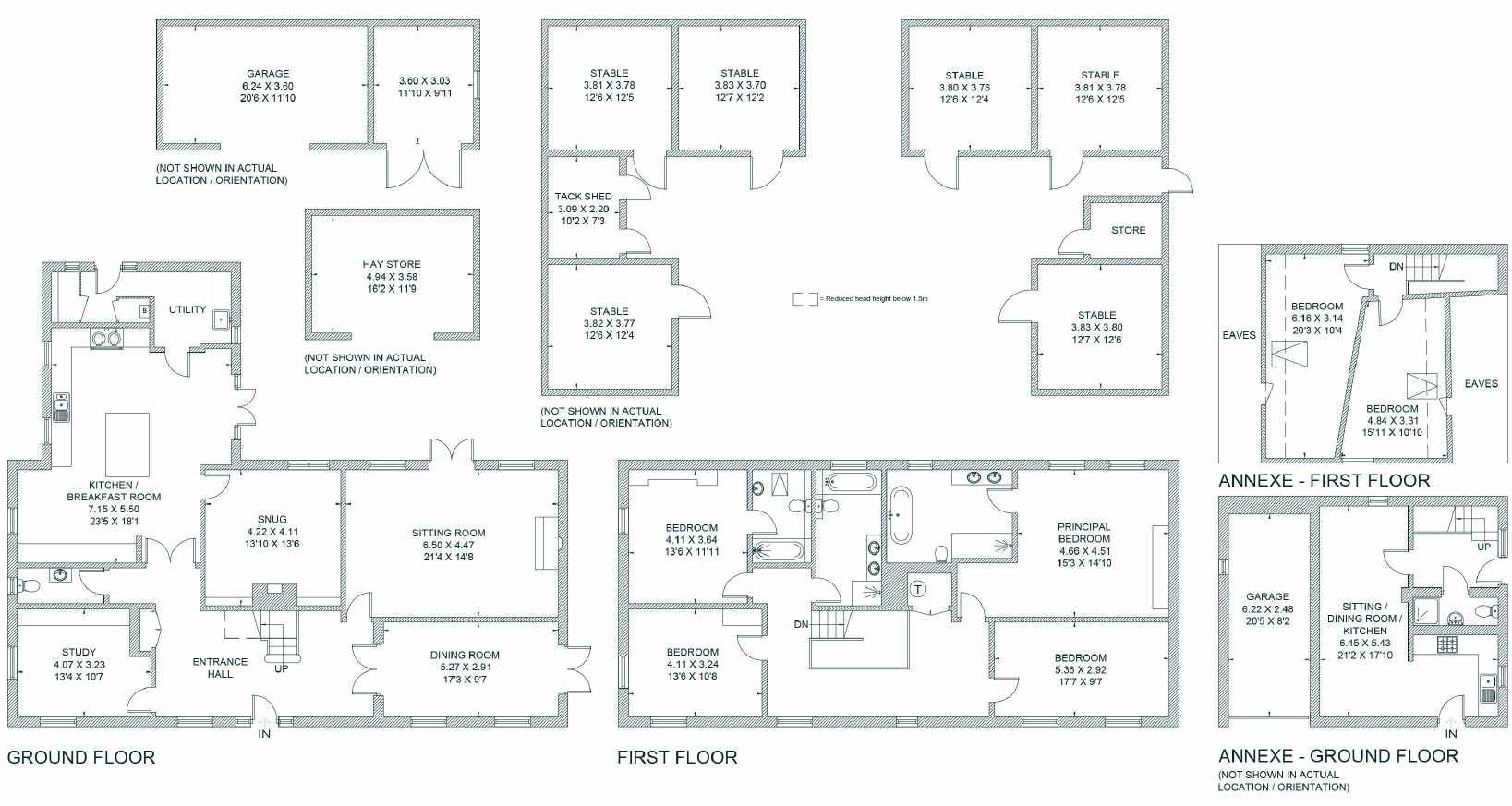
FLOORPLA

Click to view Virtual Tour

Total

IMPORTANT NOTICE: The Country House Dep necessarily to scale Any prospective purchaser m planning/buildingregulations),norcanitenterin allwayleaves,covenants,easementsandrightsofw

the

25.9 sq m / 1,355 sq ft mited Use Area (10.1 sq m / 109 sq ft)

nd should not be relied upon as statements or representations of fact All measurements are approximate and not ority to give any representations or warranties whatsoever in relation to this property (including but not limited to ngpropertieswhichhavebeensold,letorwithdrawn 5 Thepropertywillbesoldsubjecttoandwiththebenefitof

thecountryhousedepartment com

37

Wiltshir

Wiltshire is a s medieval city of Longleat, famou Lacock Abbey, w standing stones a

have a magnetism that h Renowned for its iconic wh of Wiltshire is designated numerous ways to enjoy ou

WALKING

The Ridgewa Described as the chalk ridg Berkshire Do a total distanc

EATING OUT

The Swan in Tucked away of Salisbury P country pub w WOMAD

An internatio the world's m which takes p Charlton Park

OUT

Stourhead Ho With hills, wa by a fabulous Stourhead wa when first op

F
the AREA GUI
5 1 ° 2 4 ' 4 6 . 2 "
EVENT DAY

Bowood House and Gardens

S W I N D O N
Stonehenge
thecountryhousedepartment com 39
M A R L B O R O U G H
N H A M
S A L I S B U R Y
P E W S E Y
U R Y
The Country House Department Limited John Eccles House Robert Robinson Avenue Oxford, OX4 4GP 01865 338 300 info@thecountryhousedepartment.com thecountryhousedepartment com ABOUT US 5 1 ° 4 2 ' 5 8 9 " N 1 ° 1 2 ' 5 4 6 " W

Turn static files into dynamic content formats.

Create a flipbook
Issuu converts static files into: digital portfolios, online yearbooks, online catalogs, digital photo albums and more. Sign up and create your flipbook.
Shalbourne, Marlborough by thecountryhousedepartment - Issuu