Портфоліо Тодорова

Page 1


4 - 7 «Broken-line square»

CV

Тодорова Анастасія 13.01.2003

+ 380 68 031 30 45 anastasiatodorova13@gmail.сom telegram: a_tdrv instagram: tdrva_

2020 - 2024

Освіта

ННІ «Придніпровська державна академія

будівництва та архітектури»

Кафедра основ архітектури

Кафедра архітектури і містобудування

Бакалавр

Досвід праці

«Укрдіпромез», Український державний інститут по проєктуванню металургійних

заводів

Проєктна практика Derbin Architects

Технічні навички

Revit, ArchiCAD, AutoCAD, Lumion, Enscape, Adobe Photoshop, Adobe InDesign.

Іноземні мови

Українська - Advanced (C1)

Англійська - Intermediate (B1)

Консультантки:

square»

1.

3.

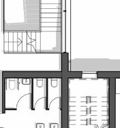
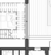
«Community center / Громадський

Проєкт виконувався на ІV курсі, 2024 рік Revit, Lumion, PhotoShop.

Консультантка: Швець І.А.

МІСЦЕЗНАХОДЖЕННЯ :

Перетин вулиць Святослава Хороброго та Андрія Фабра;

КОНЦЕПЦІЯ:

Створення багатофункціонального центру з

просвітницькими, культурними та рекреаційними функціями.

ТЕП:

Поверховість: 6;

Ступінь вогнестійкості будівлі: II;

Площа ділянки: 0,24 Га; Площа забудови по першому поверху: 771,341 м² ;

Місткість: 700 осіб

Загальна площа: 4950 м² ; Корисна площа: 4660 м² ; Будівельний об’єм будинку: 31255.917 м³ ;

Кількість створених робочих місць: 35-50; Кількість паркомісць: 13.

ПЛАН ЗАБУДОВИ ТЕРИТОРІЇ

3

«Звук у формі»

АРХІТЕКТУРНА КОМПОЗИЦІЯ

курс, 2022 рік;.

Консультантки: Стоянова Г.О; Сандркіна О.Л.

ЗАВДАННЯ:

Між студентами було розподілино різні треки закордонних виконавців, суть завдання полягала в тому, щоб відтворити цю пісню у формі, яка б якнайбільше відобразила настрій, тональність та слова.

INTERPOL - REST MY CHEMISTRY

АРХІТЕКТУРНА КОМПОЗИЦІЯ

2021рік;.

Консультантки: Стоянова Г.О; Сандркіна О.Л.

ЗАВДАННЯ:

Основною метою завдання було створення глибинної композиції з особливим сценарієм руху людини.

Створено багатоярусну форму, виділивши рух сірим тоном. Також, було використано три геометричні форми у вигляді трикутників для створення контрасту форм, та висот.

АРХІТЕКТУРНА КОМПОЗИЦІЯ ІІ курс, 2021рік;.

Консультантки: Стоянова Г.О; Сандркіна О.Л.

ЗАВДАННЯ:

Завдання полягало у тому, щоб навчитися підкреслювати об’ємну форму, моя фігура - піраміда.

Моєю ідеєю було залишити форму піраміди, і не переосмислювати її, підкреслити геометрічність та додати деякої пластики за рахунок прорізів фасаду і обраного матеріалу.

gmail: anastasiatodorova13@gmail.сom

telegram: a_tdrv

instagram: tdrva_

Turn static files into dynamic content formats.

Create a flipbook
Issuu converts static files into: digital portfolios, online yearbooks, online catalogs, digital photo albums and more. Sign up and create your flipbook.