Portfolio (Short Version) | Tarlan Poursoti

Page 1


Tarlan PoursoTi of selecTed works
Portfolio

Golden Tiger Campus Connector

Gensler Internship, Summer 2022

JPEFCU - Corporate Headquarters

Professional project, Summer 2024

Let’s Carnival

Academic project, Spring 2023

The Beehive

Academic project, Fall 2021

Jiroft Village School

Academic project, Winter 2016

Elgoli Residential Complex

Academic project, Fall 2015

Persian Miniature Center

Academic project (Design thesis), Summer 2018

Re-live the History

Architectural competition, Summer 2019

Additional Work

Academic project

Golden TiGer Campus ConneCTor

Tuskegee, Alabama Summer 2022

Gensler 2022 Summer Fellowship exposed participants to Gensler’s research initiatives around their mission to re-define the future of cities. As summer fellows, we dived into the efforts on project work related to Gensler’s Measurable Impact work and measurement of Key Performance Indicators (KPI) to identify what works and what does not about building designs. Our team was charged with designing the future of education-ecosystem buildings and creating resilient spaces with the end goal of student success. We used a collection of perspectives to create an educational place that considers the views of different users. We drew emphasis on user experience to design the Golden Tiger Campus Connector (GTCC) in Tuskegee University. The design inspiration for this connector is the fusion of multiple activities, creating a vivid live and learn community. Located amidst the core activity zones on campus, GTCC is a one stop destination for almost everything you need in campus for all typology of uses. Paving the way for a healthy well-being responding to physical, environmental, and social dimensions, the spaces are developed based on the five core KPIs, being outdoor livability, community inclusivity, connectivity, sustainability, and learning variations.

Key performanCe indiCaTors:

Outdoor Livability

• Outdoor walkability

• 24-hour cycle

• Lighting

• Climate control

• Optimal use for academic months of the year

Community Inclusivity

• Social interaction

• Urban/Rural environments

• Crowd, Activity

Internship (Gensler Summer Fellowship) Team: Tarlan Poursoti, Alex Q. Jones, Uthman Olowa, Christina Jeyaseelan

Responsibility: Researcher, Design team member, Preparing preseantation documents

Connectivity

• Travel distance to student physical and social needs

• Decrease in vehicular reliance

Sustainability

• Building life cycle

• Building program adaptability

• Decrease in building demolition, Increase in building electrification

Learning variations

• Physical, Virtual, Hybrid

• Auditory, Visual, Kinesthetic, Reading, Writing

• Increase in average GPA

The various activities experienced by different users are outlined in this series of analysis. This makes us understand the user experience better and design accordingly. The amalgamation of every user’s activity showcases the future of education ecosystems and the way all kind of users interact in the environment, creating a dynamic habitat.

Connection

Outdoor livability

Sustainability

Learning variations

Community inclusivity

This diagram indicates the proposed KPIs for higher education and how much the proposed building is going to expand them.

Educators’ experience

Supporters’ experience

Visitors’ experience

Students’ experience

The multi-use campus connector consists of series of different spaces that encompass reading-residential zones, academic zones, a wellness center, community centers, and interconnecting bridges. The community zones in each block are designed with flexible adaptability for the changing activities. The central community square is the focal point that stitches all the surrounding buildings together within and also with the existing adjacent open space, striking a good balance between public and private spaces. All of these areas are developed based on the measurable impacts with our 5 core KPIs.

Tompkins
Existing KPi valuEs
PotEntial KPi valuEs

We have explored specific spaces on the site through the lens of different persons and have came up with the design solution for each experience.

PErsPEctivEs of a studEnt:

“What I admire about the new building is the flexibility in types of classrooms and that it doesn’t follow the old logic of classroom design. Some prefer studying in a group and the main study lounge is the best spot for them. However, some prefer to study in a quiet zone, and for them we have the individual focus rooms.”

focus rooms

PErsPEctivEs of an Educator

PErsPEctivEs of an Educator:

“As a faculty, I feel inspired when I enter the building. The building motivates the faculty to impart their inspiration onto the students. In fact, the space promotes formal and informal moments of connection between faculty and students.”

With a faculty to student ratio of 1:10, the spaces in the building support small gatherings. These spaces are superior alternatives to lecture halls and traditional classrooms, supporting a more diverse learning style.

Over 80% of educators polled in Gensler’s Educator Roundtable Survey affirmed that flexible spaces and breakout rooms lead to an improved learning environment.

KPis on targEt
flExiblE tEaching

PErsPEctivEs of a visitor:

“I am a workshop coordinator, and as an outsider, I can easily understand the cultural and historic legacy of the campus through artworks and murals displayed in the community spaces. I believe it helps the students to have an understanding on the origin of their campus too. I also enjoy the amenities accessible around these building, such as the market space with food store and also within university tours. The connectivity of the building is great as I did not have any issues in navigating through the campus without any confusion. The spaces are safe and secure with enough accessibility to the visitors integrated with innovative tech protocols.”

of a suPPortEr

Sustainability

PErsPEctivEs of a suPPortEr:

“I am a senior member and a native of Tuskegee, with additional family members employed/enrolled at the university. As a supporter, I enjoy engaging in the campus kitchen and garden. I grow and utilize different vegetables and products that are grown in the campus and I utilize them in cooking and preparing food. This helps me in interacting with students in the community kitchen or canteen environment.”

VIEW FRAMING
VISUAL MASONRY PEDESTAL
camPus gardEn
camPus KitchEn
family closEts
ExtErior rEndErs
KPis on targEt: Connection

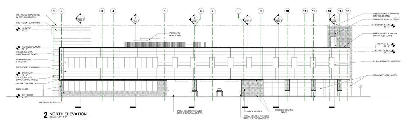
JpefCu-CorporaTe HeadquarTers

Metairie, Louisiana Summer 2024

Professional Project (Holden Architects) Team:

Cody Pate, Jakob Mier, Dakota Boesch Responsibility: 3D modeling, Preparing DD and CD sets, Preparing architectural drawings and architectural Specifications

Located at the corner of Elmwood Park Blvd and Powell St. in Metairie, LA, this 15,552 SF new construction project involved the design and construction of a two-story corporate headquarters and credit union branch for Jefferson Parish Employees Federal Credit Union (JPEFCU). The facility integrates a modern and functional design tailored to meet the operational needs of both the credit union’s branch services and corporate administration. Emphasizing a seamless blend of functionality, aesthetic appeal, and operational efficiency, the project provides JPEFCU with a state-of-the-art facility to better serve its members and employees.

Tarlan Poursoti,

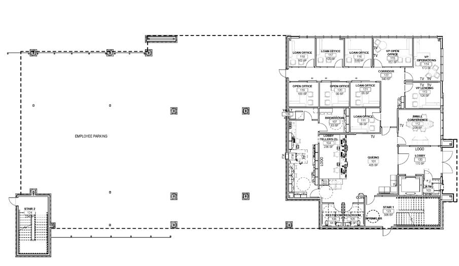
The ground level serves as the public-facing credit union branch, offering a welcoming environment for members. It features spacious teller areas, private offices, and a fully equipped drive-thru for convenient banking services. A dedicated employee parking area ensures easy accessibility and security.

The upper level houses the corporate headquarters for JPEFCU. Designed for collaboration and efficiency, this space includes executive offices, meeting rooms, and shared workspaces for administrative functions.

The design includes roof access for maintenance and potential future installations, aligning with sustainable and forward-thinking architectural practices.

EmPloyEE ParKing

north ElEvation scalE: n.t.s

south ElEvation scalE: n t s

viEw of thE EntrancE viEw of thE quiEing arEa
viEw of thE corridor
viEw of thE main confErEncE room
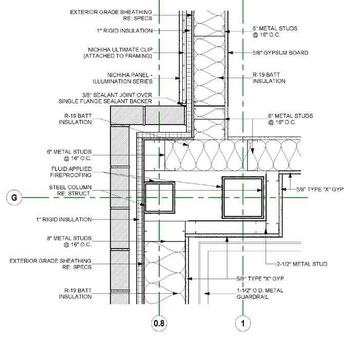
Plan dEtail scalE: n.t.s
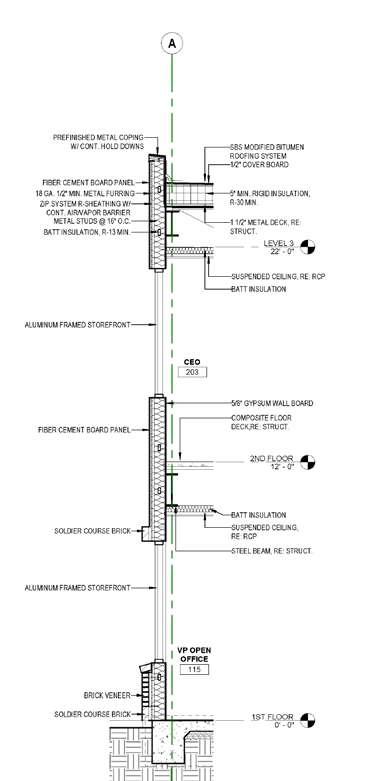
wall sEction scalE: n.t.s
wall sEction scalE: n t s

leT’s Carnival

New Orleans, Louisiana Spring 2023

Throughout the process of designing the Carnival School for the Treme neighborhood, our foremost aim was to prioritize community engagement. Recognizing the historical significance of the area, the goal was to create a space that honor its cultural heritage. We also aimed to encourage people to participate in the festivities of Mardi Gras; thus, we carefully considered how to integrate this aspect into our design. We drew inspiration from Caribbean carnivals, incorporating different levels where people could watch the carnival events and participate in social activities. Considering the existing historical building in the site, we extended its grid to seamlessly connect with the neighborhood, balancing preservation and future development. Two plazas, linked by the Carnival School, were designed on opposite edges of the site to ensure visibility and community connectivity. We carefully designed the masses and created a stage on the second floor that overlooked one of the plazas. To shield visitors from the elements, we covered outdoor areas with a canopy. Envisioned as a vibrant community center, the space is crafted for people to gather, celebrate, and actively engage in the rich culture of the Treme neighborhood.

Academic Project (Graduate Design Studio)

Architectural Competition (2023 Steel Design Student Competition)

Instructor: Annicia Streete

Team: Tarlan Poursoti, Maryam Moghaddasi

Responsibility: Researcher, Design team member, Concept designer, 3D modeling, Technical drawing, Rendering, Post production

Extending the existing grid

Further developing the grid

Placing stage on the 2nd floor for visual connection between plazas.

Crafting diverse elevations for varied carnival experiences.

Incorporating space pockets within the grid and creating corridors

Extending the existing greenery into the site with green facade system

Considering dual plazas at main entrances.

Designing a canopy for shelter from rain and sun.

viEw of thE stagE that ovErlooKs thE main Plaza

PErsPEctivE of thE fabrication arEa

Steel plate, slope 1/4” per foot to downspout

Manufactured metal panel canopy 6”x6” metal gutter system Steel purlin

Canopy steel joist as scheduled Metal silver downspout

sEction dEtail - d2

Interior wood panel

Interior finished as scheduled

Gypsum sheating 2”x6” Steel studs @ 20” O.C.

H shaped steel column Anodized alum. storefront & glazing syst.

8mm Reinforcement bar

Steel connection

mm steel angle 1” Gypsum sheating Plan dEtail - d3

1/2” Gypsum sheating

Masonry ties @ 20” O.C. horizontally & vertically Steel I beam 3” Air space

2”x6” Steel stud @ 20” O.C.

Support system Plant

Waterproof backing board Rear drainage layer Batt insulation

Growing medium

Aluminium rails and dripline

sEction

occuPancy classification:

A Assembly Group

E Assembly Group

B Assembly Group

F Assembly Group

S Assembly Group

codE circulation lEgEnd: Exit travel distance (T)

Accessible means of egress Access (A) LEVEL

codE Plan - sEcond floor scalE: n.t.s

04

THe BeeHive

Visalia, California Fall 2021

The competition challenged entrants to develop affordable housing for Hispanic farmworkers in Visalia, CA, one of the world’s most productive farming regions. The concept of this project is driven from the fact that Hispanic communities have a strong bond with each other and social interaction is important for them. With that in mind, the structure of beehive has become the main source of inspiration for the design of this affordable housing, representing the Hispanic community.

Since equity, resilience, and environmental protection are the main challenges, various strategies have been selected to address these issues. In this project, a great effort has been made to incorporate as much natural greenery to the building site as possible. Since the residents are mostly farmers, the notion of adding community gardens seems logical and welcoming. Thus, community gardens have been designed on the rooftops so that the residents can enjoy the combination of green space with living areas. This approach also promotes community interaction between the residents, which is considered as an equitable design approach, too. Since the site is located in an area where drought and wildfire are threat, drought tolerant vegetation could be the perfect choice for plant type selection.

Academic Project (Graduate Design Studio)

Architectural Competition (Architecture at Zero 2021)

Instructor: Soo Jeong Jo, Individual design

The buildings’ orientation lets the majority of windows to face North and South so that the electrical grid demand and household costs associated with cooling is reduced.

community gardEns on rooftoPs
viEw of thE community gardEns on rooftoPs

form dEvEloPmEnt

The differentation in elevation allows for a more playful form and the placement of community gardens on roof tops. Not only does this approach adds to the greenary in the project, but it also increases community interaction. As a result, equity is integrated into the design of this residential complex.

dEsign oPtimization ProcEss

Compared to square, hexagon allows more light to enter the interior area since its shape has more sides than a square.

first floor Plan
sEcond floor Plan

The project design achieve an EUI of 9.91 kBtu/ft²/year, meeting the Architecture 2030 Challenge.

ENERGY SAVING STRATEGIES:

1. Cross ventilation through the windows that maximize natural light, a priority for residents.

2. Water collection on Roof with a slope of 5-8 degrees.

3. PV panels tilted at 15° maximize sunlight, providing year-round energy for heating, cooling, and lighting, with surplus energy stored for emergencies..

4. Trees create moisture and direct airflow, allowing cool air to enter through windows as warm air rises and exits, cooling the units.

5. Balconies acting as overhangs for sun shading of windows.

6. Geothermal heat pump system with radiant heating/cooling in summer and winter.

7. Recycled greywater from shower used for toilet flush, irrigation, and car wash.

8. Permeable walking paths to support water conservation.

12.25-inch SIP walls are selected for high performance, energy efficiency, and cost-effectiveness. PV panels offer 20.4% efficiency and 75–90% surface coverage.

bEnchmarK comParison (Kbtu/ft2/yr)

COMMERCIAL-MIXED USE

A. Pedestrian entrance

B. Car entrance

C. Community center

D. Community gardens with drought tolerant vegetation on roof tops

E. Playground

F. Barbeque space

G. Basketball court

H. Parking area

I. Parking shades with PV panels on top

J. Electric vehicle charging station

K. PV panels on roofs

E GLENDALE AVE

Comfort indoors:

100% comfortable

0% not comfortable

Comfort indoors:

100% comfortable

0% not comfortable

DEC - MAR:

1. Comfort (92 hrs)

2. Sun shading of windows (86 hrs)

3. High thermal mass (16 hrs)

4. High thermal mass night flushing (16 hrs)

7. Natural ventilation cooling (16 hrs)

8. Fan-forced ventilation cooling (16 hrs)

9. Internal heat gain (715 hrs)

12. Wind protection of outdoor spaces (0 hrs)

16. Heating, add humidification if needed (2081 hrs)

JUN - AUG:

1. Comfort (1042 hrs)

2. Sun shading of windows (1835 hrs)

3. High thermal mass (1037 hrs)

4. High thermal mass night flushing (1727 hrs)

7. Natural ventilation cooling (752 hrs)

8. Fan-forced ventilation cooling (635 hrs)

9. Internal heat gain (2489 hrs)

10. Passive solar direct gain low mass (939 hrs)

12. Wind protection of outdoor spaces (0 hrs)

15. Cooling, add dehumidification if needed (356 hrs)

16. Heating, add humidification if needed (2820 hrs)

Climate consultant suggests that sun shading of windows, high thermal mass, natural and fan forced ventilation cooling, internal heat gain, wind protection of outdoor spaces, and heating, add humidification should be considered for more comfort in Visalia, CA.

viEw of thE sEmi-PrivatE courtyard
summEr (JunE - aug)
wintEr (dEc - march)
viEw of thE Playground

JirofT villaGe sCHool

Dehno,

Iran Winter 2016

Academic Project (Design Studio II)

Instructors: Morteza Mirgholami, Leyla Medghalchi Individual design

This project called for an elementary school with 6 classes in the village of Dehno located near the city of Jiroft. The objective was to change the repetitive school building patterns and design a sustainable environment for youngsters.

In designing this school, I have considered the climatic features of Jiroft and its vernacular architecture. Jiroft has long hot summers and short mild winters. In summer, the intensity of heat creates extreme hot weather (+48 ° C). Having taken this climatic condition into account, the approach is to optimize energy consumption in buildings and use solar energy to reduce cooling and heating costs. The school is located on a lower level from the ground to take advantage of soil thermal capacity. The buildings are built on the east-west axis with views to the north and south so that they are not exposed to solar radiation. Also, they are associated with an awning that controls the sunlight. The classrooms are arranged around a central courtyard and native trees are planted to refresh the air in summer and save internal heat in winter. While the ceilings are thin and light, the walls are considered to be thick with indigenous materials that have high thermal capacity so that they trap the heat and prevent it from entering the internal spaces.

Primary entrance

Secondary entrance

Classroom

Library

Computer room

Lab

Studio

Administrative office

Principals room

Teachers’ room

Teachers’ lounge

Teachers’ accommodation

Health room

Consultation room

Conference room

Students’ lunch club

Staffs’ lunch club

Teachers’ WC

Students’ WC

Storage

Central courtyard

Backyard

The office spaces are located in the middle of the site so that the school officials can monitor the classrooms.

ExPandablE and rE-dEPloyablE classEs:

Utilizing wind catchers to cool the classrooms and ventilate the air. The trees create moisture and direct the air. The air enters the classes through the wind catchers. The warm air accumulates in higher altitude and exits while the cooler air chills the classes.

There is a resting room between every two classes for the children to relax and interact with each other.

viEw of thE main EntrancE
flExiblE furniturE dEsignEd for thE studEnts in thE bacKyards
PossiblE arrangEmEnts for classrooms

elGoli residenTial Complex

Academic Project (Design Studio V) Instructors: Minou Gharehbaglou, Hamed Beyti Team: Tarlan Poursoti, Haniyeh Shafiee, Pariya Ziraksima, Shaghayegh Honarvar

Responsibility: Concept development, 3D modeling, Designing the units, Interior designing, Rendering

The Elgoli residential complex is located in one of the most crowded areas of Tabriz city. The site analysis indicated the absence of social interaction between the residents of this area. Consequently, our main focus was to enhance social interaction between the neighborhoods and fill the existing gap between them. To do so, we came up with the idea of creating semiprivate green yards in every story of the complex so that the neighborhoods gain the opportunity to socialize with each other, practicing farming activity and feeling the nature in their houses. We also connected the buildings by designing a bridge between them to visualize our concept.

modEl ProcEss
sEmi-PrivatE grEEn yards
maquEttE

viEw of thE connEcting bridgE bEtwEEn two aPartmEnts

ExtErior rEndEr

ExtErior rEndEr

8 sample plans of the residential complex ranging from affordable to luxury:

arEa:158 m2

arEa:183 m2

arEa: 55 m2
arEa: 113 m2
arEa: 113 m2
arEa: 220 m2
arEa:119 m2
arEa:115 m2

bathroom layouts

persian miniaTure CenTer

Tabriz, Iran

Summer 2018

APersian miniature is a richly detailed miniature painting that depicts mythological themes from the region of the Middle East, now known as Iran. These paintings are visually stunning, with a high level of detail. Since Tabriz is a well-known city in the realm of Persian miniature, I was interested in designing a center where people can gain knowledge about this kind of art and learn to create such artworks. The main concept of the project is developing the possibility of revelation and discovering the truth. Therefore, the spaces are not comprehensible in the first place. Although the directions are clear, one does not know what will happen after passing along one place to another. The project’s plan is designed in an asymmetrical complex way. The goal is that the individuals do not easily reach the main spaces such as galleries and exhibitions so that they get encouraged to pass along various places to discover new ones.

Academic Project (Design Thesis)

Supervisor: Ahad Nejad Ebrahimi

Individual design

north ElEvation

The

the

In facade designing, I focused primarily on the difference between the Persian miniature and abstract style. To indicate this contradiction, I incorporated Piet Mondrian’s well-known painting “composition with red, blue, and yellow” into the design of the windows.

10 0 5 20m sitE arEa: 14160 m2
site of the project is located near the tomb of Kamaleddin Behzad who is
most famous of Persian miniature painters.
maquEttE
maquEttE

A perforated facade design allows for interior illumination to create more playful spaces.

v Ew of thE courtyard
viEw of thE corridor
viEw of thE courtyard

re-live THe HisTory

Kakadu national park, Australia

Summer 2019

TArchitectural Competition (We Australia) People’s Choice Award Team: Tarlan Poursoti, Hadi Seyednouri, Bahareh Torabi, Saeedeh Garachourlou

Responsibility: Researcher, Concept designer, Design team member, 3D modeling, Rendering, Post production

he brief was to build a tourist village that helps visitors to learn about the history of human evolution, which not only sensitizes, but spreads awareness about the changing relationship between nature, natives, and the country of Australia.

To efficiently narrate the history of Australia to the tourists, we have got two strategies in our project:

1. To narrate using all of the senses

2. To narrate visually

To achieve these goals, we have divided the site into respectively four zones: the Pre-human and Humanization era zone, the Aboriginal Australia zone, the Colonial Australia zone, and the Global Australia zone. Inside any of these zones, there are functions related to that period of history. Also, geometry, nature, and materials are following that period. Tourists are expected to feel those periods in the related zones by various senses. In other words, they are expected to live those periods of history.

For the second goal, we have designed a corridor (time path) narrating the history visually. It changes in accordance with any period.

The geometry of the site changes in accordance with the characteristics of any zone. It is vividly changing from organic to modern geometry.

As you can see, the flag of Australia effects the Global Australia zone.

The congestion of the trees changes in the site. It is inspired by the fact that nature has been damaged gradually with human evolution.

Chronological history of Australia

Bora ring

Booths 15. Narrative corridor (time path) 16. Bird watching tower 17. Flora zone 18. Fauna zone

We have divided the site into 4 zones to make the people understand the historical periods chronologically. Any zone is dedicated to one important era in Australia’s history.

In this historical era, we did not have that many humans so we assumed here as an exhibition for observing nature and animals.

aBoriGinal ausTralia:

Bora ring was the name of a place where the indigenous used to hold ceremonies like playing music or dancing. We have a camping zone inside this section for the people preferring open spaces.

The materials used in the pre-human zone and this zone are natural while we have glass and steel in the next zones.

GloBal ausTralia:

A community center is designed in this zone to serve as a cafe, restaurant, and simultaneously a place for linking the tourists from different cultures.

Colonial ausTralia:

We have a collapsed wall in the first part of this zone as a memory of invasion, which caused a great change in the history of Australia.

In this period, the invasion has occurred, and the British are living in Australia. Agriculture has been developed, and everything is getting more modern. Thus, we have designed cooperative gardens to let the tourists enjoy the nature.

Wooden huts designed in the Colonial Australia zone to let the tourists have a comfortable trip.

Time paTH:

We have designed a path through all of the zones. This path serves as an exhibition narrating the history visually by some images and descriptions. Material and form of this path change in accordance with the zone changes.

The material of the time path varies from raw wood to metal to demonstrate the chronology of the changes all through history.

aboriginal australia
colonial australia
global australia

This page is intentionally left blank.

daTa visualizaTion

Baton Rouge, Louisiana Spring 2022

Hurricane Frequency in the Gulf States

Since 1900, hurricanes striking the United States bordering the Gulf of Mexico have killed more than 9,000 people and caused tremendous damage. The shores around the Gulf of Mexico have been in the crosshairs for an increasing number of hurricanes and tropical storms, including Charley and Wilma in southwestern Florida and Ivan, Dennis, Katrina, Rita, Gustav, and Ike along the northern Gulf coast from Panama City to near Galveston. This set of visualizatons indicate the 82 hurricanes that have accurred in the Atlantic ocean in the last 20 years and have affected the states of Texas, Louisiana, Mississippi, Alabama, and Florida, also known as the Gulf States.

The Timeline depicts the hurricanes of the Last 20 years and their intensity.

Academic Project (ARCH 5004 - Data Visualization)

Instructor: Fabio Capra Ribeiro, Individual project

TS: Tropical Storm

LP: Low Pressure

H: Hurricane

afrofuTurism

Baton

The brief was to design a poster that reflects the design principles of Afrofuturism and Black Cultural Design. To achieve this, I showcased two different periods - the present and the future - and an African American figure using the “Afrofuturistic design lens” to envision a better future for their community. Emphasizing one of the 10 principles of Black Cultural Design (intense use of color and texture), I incorporated vibrant colors and African patterns to bridge the present and future. In fact, this pattern acts as a joint between these two time slots. The poster also includes LSU’s Memorial Tower, chosen as the ideal location for display due to its symbolic connection to time, aligning with the poster’s theme of time travel. Notably, the poster has been selected by one of LSU’s deans to be displayed in her new office.

Academic Project (ARCH 4221- Afrofuturism in Architecture)

Instructor: Annicia Streete, Individual project (Poster design)

Turn static files into dynamic content formats.

Create a flipbook
Issuu converts static files into: digital portfolios, online yearbooks, online catalogs, digital photo albums and more. Sign up and create your flipbook.
Portfolio (Short Version) | Tarlan Poursoti by Tarlan Poursoti - Issuu