PORTFÓLIO
TALITA BARBOSA BIANCHI

![]()

Arquiteta e Urbanista
Graduação - 12/2024
UNESP - Universidade Estadual Paulista Bauru-SP
Idiomas
Inglês (intermediário); Francês (básico); Espanhol (intermediário).
Atribuições: pesquisa acerca de "Cidades Inteligentes e Sustentáveis".
Habilidades desenvolvidas: pesquisa, autonomia, foco, organização e escrita formal.
Análise de projetos arquitetônicos. Acompanhamento Acompanhamento de obras: orçamentos, cronograma
Habilidades desenvolvidas: aprendizado interdisciplinar, de construções, técnicas construtivas diversas,
Fiscalização de obras, visando o cumprimento do regulamento e legislações de condomínio residencial. Além da elaboração de projetos de arquitetura.
Habilidades desenvolvidas: comunicação, organização do canteiro de obras, execução e acompanhamento de diversas obras.
Disposição para aprender softwares, novas tecnologias e idiomas;
Adaptabilidade à mudanças;
Bom relacionamento interpessoal em atividades e trabalhos em grupo;
Boa comunicação verbal e escrita;
Foco e determinação em todas as atividades;
Otimismo, resiliência e organização.
Acompanhamento na execução cronograma e organização. interdisciplinar, planejamento diversas, Pacote Office.

<Sou apaixonada por Arquitetura, Urbanismo e Paisagismo. Busco o aprendizado através das experiências e interações entre os diferentes profissionais da área.=
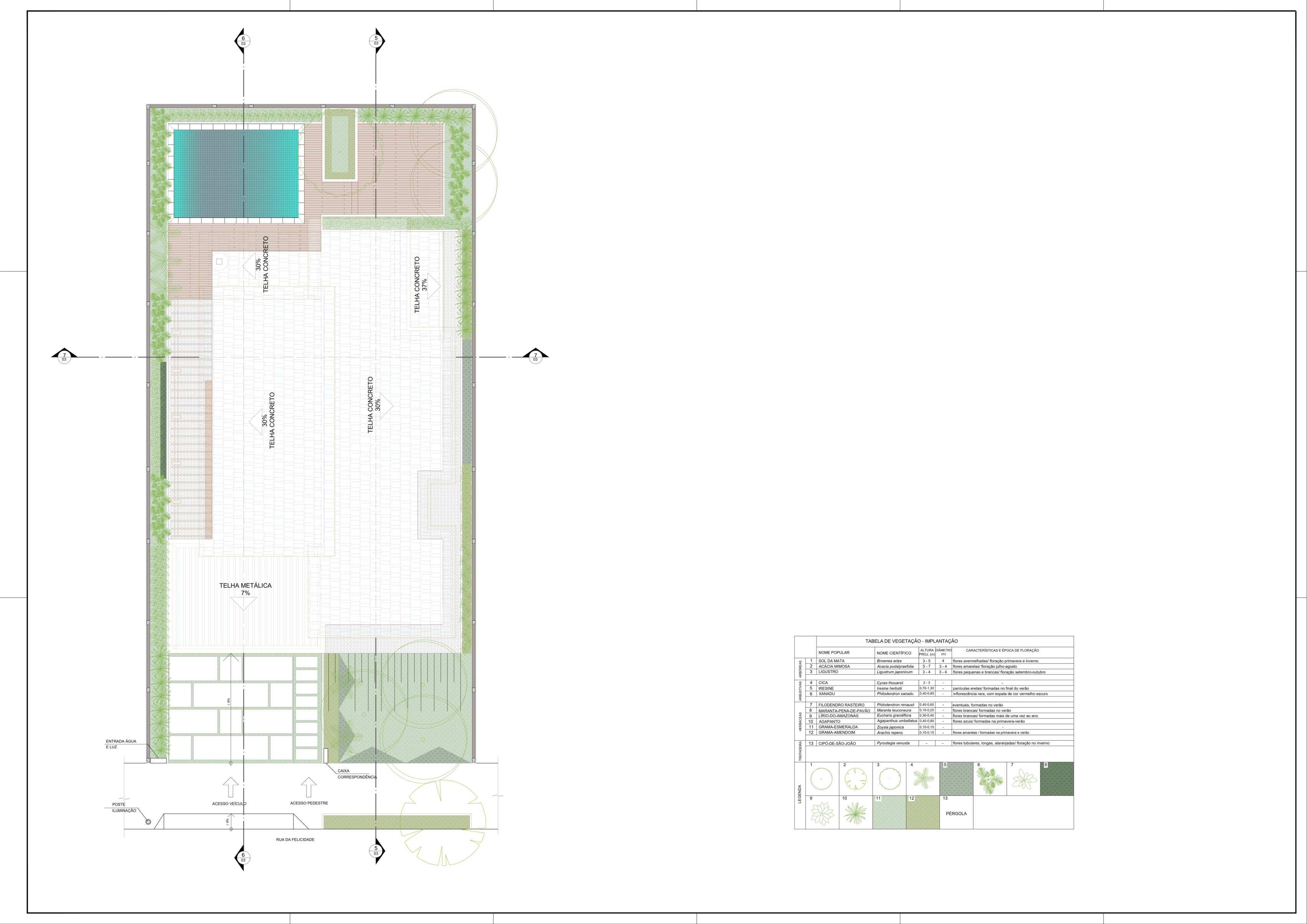
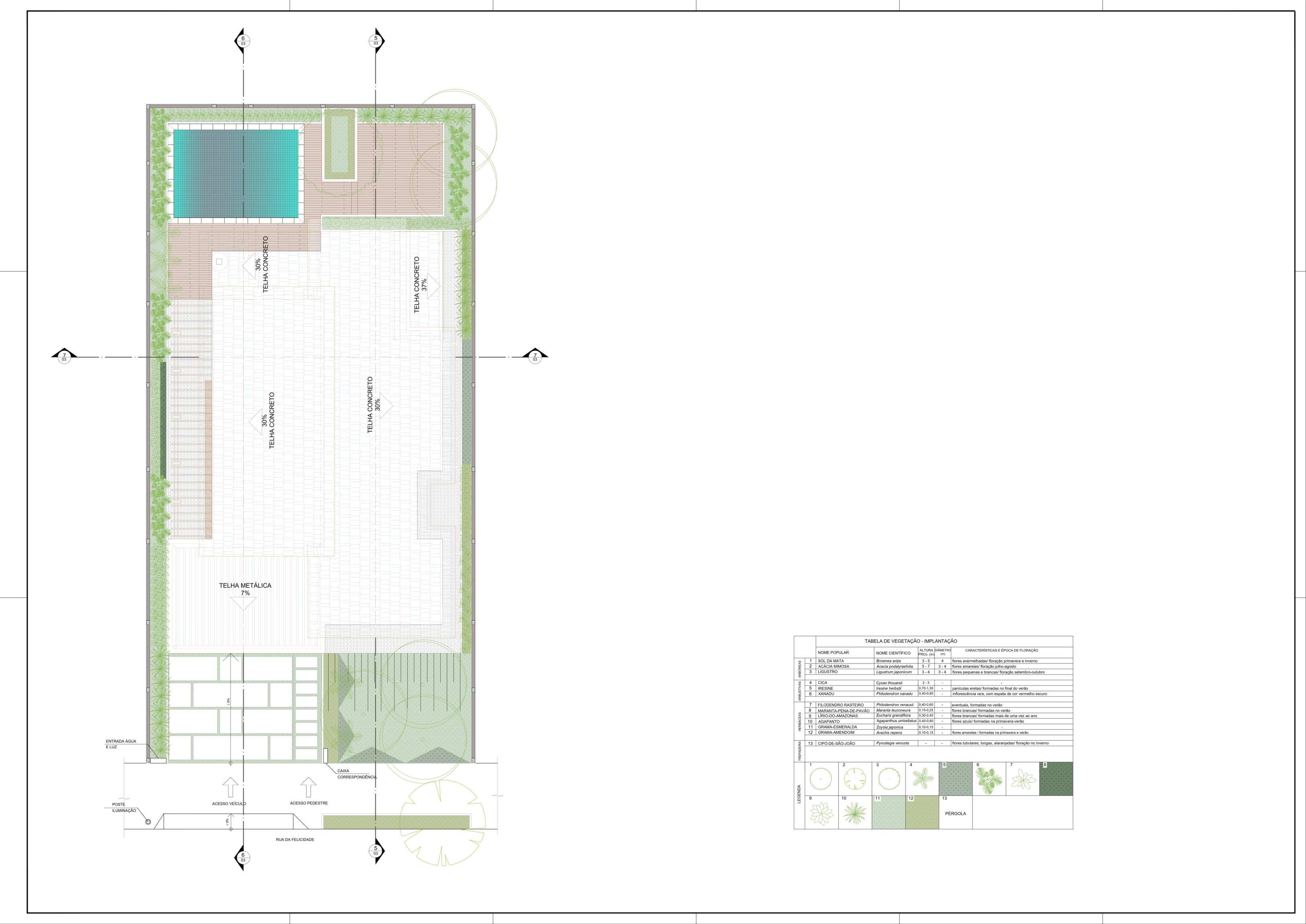
PROJETO EXECUTIVO - PLANTA DE PAISAGISMO RESIDENCIAL
FUNÇÕES ATRIBUÍDAS A MIM: ESCOLHA DE ESPÉCIES, PLANTA E TABELA DE PAISAGISMO, MODELAGEM 3D PAISAGISMO.
SOFTWARES: SKETCHUP, AUTOCAD E ENSCAPE











ATRIBUÍDAS A MIM: REMANEJAMENTO, IMPLANTAÇÃO NO AUTOCAD, CORTES.
































SUÍTE 3 - DETALHAMENTO CONEXÕES
ESCALA 1:20


SUÍTE 3 - COTAS
ESCALA 1:20


C90-22MM CURVA DE 90° CPVC - SOLDÁVEL
C90-25MM CURVA DE 90° PVC - MARROM SOLDÁVEL
TÊ AZUL 90° PVC SOLDÁVEL
CURVA
3/4"
DE GAVETA COM 2 ADAPTADORES SOLDÁVEIS
DE PRESSÃO MONOCOMANDO COM ENTRADAS E SAÍDAS SOLDÁVEIS
SOFTWARES:







FISCALIZAÇÃO DE OBRAS: ACOMPANHAMENTO DO PROJETO, VERIFICAÇÃO DA LIMPEZA NO CANTEIRO
DE OBRAS E ENTORNO. VISTORIA FINAL EM OBRAS
FINALIZADAS NO CONDOMÍNIO: ELABORAÇÃO DO LAUDO E VISTORIA IN LOCO.






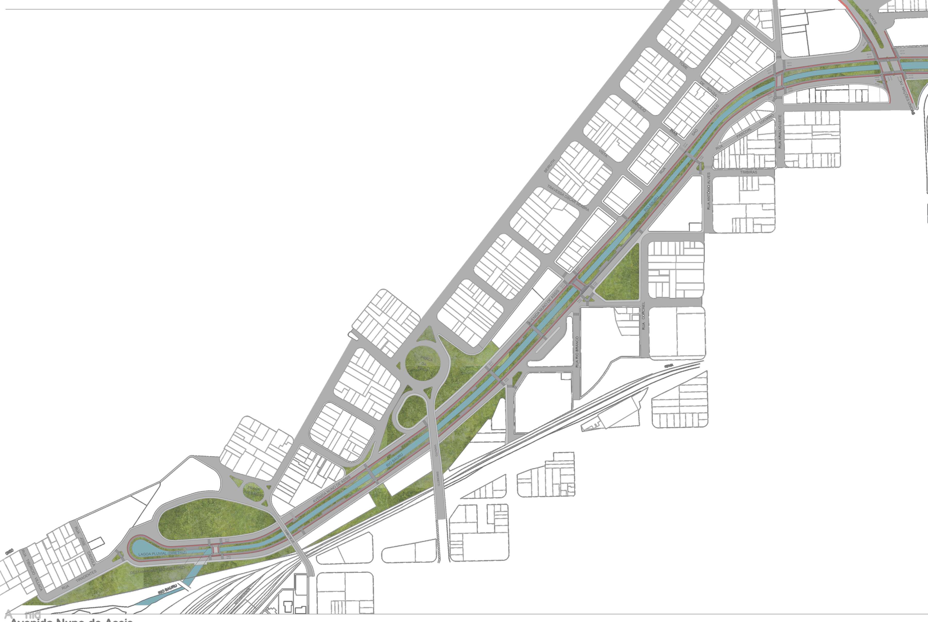
REQUALIFICAÇÃO URBANA DA ÁREA CENTRAL DE BAURU-SP
A PROPOSTA CONSISTE NA REFORMULAÇÃO DE ALGUNS
ESPAÇOS PÚBLICOS E EIXOS VIÁRIOS DA REGIÃO CENTRAL DO MUNICÍPIO DE BAURU-SP.
MEDIDAS FORAM PROPOSTAS PARA GERAR UMA
NOVA CONFIGURAÇÃO FÍSICA E DE USOS, DA
ESCALA MACRO ATÉ A ESCALA DO PEDESTRE.
SOFTWARES UTILIZADOS: PHOTOSHOP, SKETCHUP, ENSCAPE E CANVA
MERCADO MUNICIPAL (DIRETRIZ)
CRIAÇÃO DE CALÇADA E TRAVESSIAS SEGURAS
PLUVIAL (DIRETRIZ)
PARQUE LINEAR E TRANSPORTE PELOS TRILHOS





































QUADRA (EXISTENTE)
MIRANTES: RIO BAURU (DIRETRIZ)
QUADRAS ESPORTIVAS (DIRETRIZ)

















EXTENSÃO E CRIAÇÃO DE FAIXA DE AMORTECIMENTO À CICLOFAIXA
JARDINS DE CHUVA: EM TODOS OS CANTEIROS DE AMORTECIMENTO ÀS TRAVESSIAS (DIRETRIZ)







QUADRA(EXISTENTE)
ESCOLA (EXISTENTE)























































Isométrica projeto para Avenida Nuno de Assis.
Quadra poliesportiva pública (diretriz)
Quadra de futebol e vôlei existente: Arena Central (particular)
Acesso ao Parque Linear
Parque Linear: complexo cultural ferroviário (diretriz)



Mirantes com bancos, recarga, wi-fi, mesas, bebedouro e lixeiras.
bancos, pontos de bicicletário, lixeiras.
Mercado Municipal (diretriz)
Pontes para pedestres: contemplação e acesso
Jardins de chuva em calçadas a partir de 3m de largura.

Calçadas: piso intertravado
Faixa elevada e semáforos com temporizador











PerspectivacomaaplicaçãodoprojetonaAvenidaRodriguesAlves.








PerspectivaprojetoparaaPraçaMachadodeMello,vistaparaaantigaEstaçãodaNOB.







PerspectivaprojetoparaaRuaPrimeirodeAgosto-calçadacommesasefloreiras.





IsométricacomrecorteprojetualparaaaplicaçãodasdiretrizespraçadaRuaPrimeirodeAgosto.
Canteiros de proteção direcionamento das Iluminação da rua Iluminação da calçada (à nível do pedestre) Tóten interativo
Rua de uso misto

Museu Ferroviário








ta.bianchi.tbb@gmail.com
www.linkedin.com/in/talita-barbosa-bianchi-963353243