Architekturführer Milano 2025

Page 1


MIL ANO

EXKURSION SOSE 25 I TH NÜRNBERG

NADJA LETZEL I RICHARD WODITSCH

MILANO

Mailand ist die Hauptstadt der Region Lombardei und mit 1,3 Millionen Einwohnern die zweitgrößte Stadt Italiens. Es bildet mit Turin und Genua das Wirtschaftszentrum triangolo industriale im Norden des Landes. Innerhalb des nationalen Städtesystems nimmt Mailand eine Sonderstellung ein. Diese norditalienische Metropole zeichnet sich in den letzten Jahrzehnten durch den Wandel von der Industriestadt zum Dienstleistungszentrum aus. Mailand ist das unbestrittene Finanz- und Wirtschaftszentrum des Landes. Mehr als die Hälfte der wichtigsten 200 italienischen Unternehmen haben ihren Sitz in Mailand. Aber auch als Kultur-. Mode- und Designzentrum ist Mailand führend und hat sich von einer noch in den 1960er Jahren vor allem durch Industrieunternehmen geprägten Stadt im altindustriellen Kernraum Italiens zu einem der wichtigsten europäischen Dienstleistungszentren gewadelt. Damit bekam auch eine neue Generation italienischer Architekten und Designer die Chance mit großen internationalen DesignUnternehmen in den Wettbewerb zu treten.

Die heutige Metropolregion Mailand hat ca. 3.8 Mio. Einwohner und ist als Gebietseinheit aus der Provinz Mailand hervorgegangen. Sie besteht aus der Kernstadt Mailand und weiteren 188 kleinen Kommunen. Die Stadt Mailand durchläuft seit Mitte der 1990er Jahre eine dynamische Siedlungsentwicklung. Bereits seit Mitte der 1970er Jahre vollzog sich ein erheblicher Strukturwandel, aber erst mit der Umsetzung von Konversionsprojekten auf zehn großen Industrieflächen schlug sich dieser in

der Stadtentwicklungspolitik nieder. Städtebauliche Großprojekte an integrierten aufgelassenen Standorten - wie die Neubebauung des ehemaligen Messegeländes von Porta Nuova mit 290.000 qm Fläche - sind die jüngsten Beispiele für eine städtische Transformation, die in großem Stil stattfindet.Anlässlich der Expo 2015 in Mailand wurde diese Industriebrache im Herzen Mailands, eingebettet in eine großzügige Parklandschaft, in einen neuen Stadtteil verwandelt, der vor allem von Durchlässigkeit und Nachhaltigkeit geprägt ist. Der Autoverkehr ist dort weitgehend vermieden oder unter die Erde verlegt worden.

Einem aktuellen Bericht des unabhängigen Forschungsinstituts Scenari Immobiliari zufolge gibt es ca. 6 Mio. qm Industriefläche in Mailand; ca. 150 Stadtumbauprojekte sind in Planung oder im Bau.

Inmitten des historischen Zentrums liegt das Stadtviertel de Brera, das bis in die fünfziger Jahre als Treffpunkt für Künstler, Poeten und Literaten bekannt war. Durch seine zentrale Lage und auf Grund der in der Nachkriegszeit einsetzenden Bauspekulationen und dem damit verbundenen schnellen Ansteigen der Mietund Grundstückspreise, ist das Viertel heute als nobler Stadtteil bekannt. Charakteristisch sind vor Allem die engen Gassen, die zum Schlendern einladen Das Navigli-Viertel am Darsena Hafenbecken gilt als angesagter Treffpunkt für das Nachtleben und den in Mailand typischen Aperitivo, bei dem im Preis eines Feierabend Drinks ein kleines Buffet von verschiedenen Speisen inbegriffen ist.

QUELLE: Hegemann T. (2016): IRGEAKTIV Exkursion Mailand (S. 13)

QUELLE: https://de.m.wikivoyage.org/wiki/Datei:Milano_-_mappa_servizio_ferroviario_suburbano_e_metropolitana_%28schematica%29.svg

RESTAURANTS

1 Taverna del Borgo Antico

Via Madonnina 27

2 Nàpiz‘ Milano

Viale Vittorio Veneto 30

3 Panigacci

Via Bezzecca 2

4 PORTOBELLO

Via Plinio 29

5 STREETFOOD

China Town

6 Panzerotti Luini

Via Santa Radegonda 16

7 Piz

Via Torino 34

8 Pizzeria di Porta Garibaldi

Corso Como 6

9 Zazà Ramen, sake bar & restaurant

Via Solferino 48

10 Osteria Del Binari

Via Tortona 1

11 Ci Sta - Sempione

Via Giulio Cesare Procaccini 60

CAFÉS

1 PAN

Via Leopoldo Cicognara 19

2 Loste Café

Via Francesco Guicciardini 3

3 Orsonero Coffee

Via Giuseppe Broggi 15

4 Aroma Napoletano

Via Traù 2

5 SISU.

Via Gaudenzio Ferrari 1

6 Princi

Via Speronari 6

RESTAURANTKETTEN

1 Fradiavolo – PIZZERIA

2 Gino Sorbillo

3 Pizzeria Spontini

GESCHÄFTE

1 Rinascente Milano Piazza Duomo P.za del Duomo

2 Eataly Milano Smeraldo P.za XXV Aprile, 10

BARS

Bar Basso Via Plinio 39

SONSTIGES

1 Colonne di San Lorenzo (Studentenspot) Corso di Porta Ticinese 39

2 Base (hybrid cultural center) Via Bergognone 34

ROUTEN

Secondo Palazzo Mentecatini * Largo Doegani 1

Palazzo per uffici Montecatini I * Via della Moscova 3

Ca‘ Brutta Via della Moscova, 14, 20121 Milano MI, Italien Casa Bonaiti. Casa Malugani Piazza della Repubblica 5

Fondazione Feltrinelli * Viale Pasubio, 5

Casa Comolli Rustici * Via Cola da Montana 1

Casa Toninello Via Perasto 3

Casa Ghiringhelli Piazzale Lagosta 2

Casa della Memoria * Via Federico Confalonieri 14 Bosco Verticale * Via Gaetano de Castillia 11

Bibilioteca degli Alberi Park * Via Gaetano de Castillia 28

Torre Pirelli * Via Pirelli 32

TREFFPUNKT 14.00

Duomo di Milano * Piazza del Duomo

Museo del Novecento * Piazza del Duomo 8

Edificio per Uffici e vips residence Piazza Velasca 7 - 9

Torre Velasca * Piazza Velasca 3/5

Uffici e abitazioni im Corso Italia * Corso Italia 13, 17

Uffici, abitazioni e negozi Corso Italia 22 - 24

Casa della Meridiana Corso Italia 22 - 24

Nuova sede Universita Luigi Bocconi * Via Roentgen 1

Nuovo campus

Universitario Bocconi * Via Gian Carlo Castelbarco 27

Simplonpark

Triennale - Palazzo dell Arte * viale Emilio Alemagna, 6

Condominio in Via Massena * Via Andrea Massena 18

Condominio in Via Nievo * Via Ippolito Nieveo 28

City Life * neben innerstädtischen Messe

Generali Tower * Piazza Tre Torri 1

Gino Valle Square Piazza Gino Valle

Simplonpark

Triennale - Palazzo dell Arte * viale Emilio Alemagna, 6

Condominio in Via Massena * Via Andrea Massena 18

Condominio in Via Nievo * Via Ippolito Nieveo 28

City Life * neben innerstädtischen Messe

Generali Tower * Piazza Tre Torri 1

Gino Valle Square Piazza Gino Valle

Uffici e showroom Dolce e Gabbana * Via Giuseppe Broggi, 20-22

Centro Svizzero Piazza Cavour 4

Monumento a Sandro Pertini Via Croce Rossa

Casa a ville sovrapposte * Via dell‘ Annunciata 23

Casa del Cedro Via Fatebenefratelli 3

Condominio Via Cernaia 9, Via Goito 11

Condominio Piazza Carlo Mirabello

Edificio polifunzionale * Piazza San Marco 1

Casa Tognella * Via Paleocapa 5

IULM_Milan * (Führung) Via Carlo Bo 1

TREFFPUNKT 09.00

Convento di S Angelo * (Führung) Corso di Porta Nuova 2

Casa Albergo Via Corridoni 22

Palazzo di Giustizia Corsa di Porta Vittoria 20

Excelsior * Galleria del Corso 4

Palazzo della Societa reale mutua di Assicurazioni Piazza del Liberty

Gallerie d Italia Piazza della Scala 6

Fondazione Prada * L.go Isarco 2

Viktor - EmanuelPassage *

Condominio XXI Aprile Via Lanzone 4

Casa Caccia Dominioni Piazza Sant Ambrogio 16

Edificio al Gallaratese Via Enrico Falck 53

Condominio Piazza Sant Ambrogio 14

Secondo Palazzo Mentecatini * Largo Doegani 1

Palazzo per uffici

Montecatini I * Via della Moscova 3

Ca‘ Brutta Via della Moscova, 14, 20121 Milano MI, Italien

Casa Bonaiti. Casa Malugani Piazza della Repubblica 5

Fondazione Feltrinelli * Viale Pasubio, 5

Uffici e showroom Dolce e Gabbana * Via Giuseppe Broggi, 20-22

Centro Svizzero Piazza Cavour 4

Monumento a Sandro Pertini Via Croce Rossa

Casa a ville sovrapposte * Via dell‘ Annunciata 23

Casa Comolli Rustici * Via Cola da Montana 1

Casa Toninello Via Perasto 3

B

Casa Ghiringhelli Piazzale Lagosta 2

Casa della Memoria * Via Federico Confalonieri 14

Bosco Verticale * Via Gaetano de Castillia 11

Bibilioteca degli Alberi Park * Via Gaetano de Castillia 28

Torre Pirelli * Via Pirelli 32

Casa del Cedro Via Fatebenefratelli 3

Condominio Via Cernaia 9, Via Goito 11

Condominio Piazza Carlo Mirabello Edificio polifunzionale * Piazza San Marco 1

MONTAG

1 Duomo di Milano *

2 Museo del Novecento *

3 Edificio per Uffici e vips residence

4 Torre Velasca *

5 Uffici e abitazioni im Corso Italia *

6 Uffici, abitazioni e negozi

A7 Casa della Meridiana

8 Nuova sede Universita Bocconi *

9 Nuovo campus Universitario Bocconi *

START

UHRZEIT

ENDE

UHRZEIT

Duomo di Milano * Piazza del Duomo 14.00

Nuovo campus Universitario Bocconi *

Via Gian Carlo Castelbarco 27

ca 18.00

KURZBESCHREIBUNG

Der Mailänder Dom (Duomo di Milano) ist eine der bekanntesten Kathedralen der Welt und das Wahrzeichen Mailands. Er befindet sich an der Piazza del Duomo und ist die größte Kirche Italiens. Der Bau begann 1386 unter Gian Galeazzo Visconti und zog sich über mehrere Jahrhunderte hin, bis er 1965 offiziell abgeschlossen wurde. Die Architektur des Doms ist hauptsächlich gotisch, mit Einflüssen aus der Renaissance und dem Barock. Zahlreiche Architekten wirkten an der Gestaltung mit, darunter Simone da Orsenigo, Nicolas de Bonaventure und Pellegrino Tibaldi. Besonders beeindruckend sind die filigranen Marmorfassaden und die über 3.000 Statuen, die den Dom schmücken. Die Fassade wurde im 19. Jahrhundert unter Napoleon Bonaparte vollendet. Ein Highlight ist die Dachterrasse, von der aus Besucher eine atemberaubende Aussicht auf Mailand genießen können. Die berühmteste Statue ist die „Madonnina“, eine vergoldete Marienfigur auf der höchsten Spitze. Der Mailänder Dom ist nicht nur ein architektonisches Meisterwerk, sondern auch ein bedeutendes religiöses und kulturelles Zentrum. Jährlich zieht er Millionen von Besuchern aus aller Welt an.

* DUOMO DI MILANO

U. A. SIMONE DA ORSENIGO 1386 - 1965

Kathedrale

TEXTQUELLEN

Text erstellt mit ChatGPT

BILDQUELLEN

(1) https://www.offentlicheverkehrsmittelmailand.de/2019/09/12/dommai-land-mailand-kathedrale/ (2) https://www.md-mag.com/projekte/oeffentliche-bauten/fassadenbeleuchtung/ (3) (4) (5) https://www.zvab.com/kunst-grafik-poster/Dom-Mailand-Gesamt-ansicht-Frontal--Seitenansicht-Quer-/20960103062/bd

Piazza del Duomo

Grundriss

Innenraum
Schnitt
Ansicht

Palazzo dell‘Arengario

* MUSEO DEL NOVECENTO

E.A GRIFFINI,P.G. MAGISTRETTI, G. MUZIO,P. PORTALUPPI

1939 - 1942

KURZBESCHREIBUNG

Das Museo del Novecento wurde im Dezember 2010 im ehemaligen Palazzo dell’Arengario am Domplatz eröffnet. Das Gebäude wurde 1937 von den Architekten Piero Portaluppi, Giovanni Muzio, Enrico Agostino Griffini und Pier Giulio Magistretti entworfen und diente zunächst als Bürogebäude. Ab 2007 wurde es nach Plänen von Italo Rota und Fabio Fornasari umfassend umgestaltet, um die Kunstsammlung der Stadt Mailand aufzunehmen, die sich besonders auf den Futurismus konzentriert.

Besucher gelangen über eine spiralförmige Rampe von der Metrostation Piazza Duomo ins Museum oder betreten es direkt vom Domplatz aus. Ein Highlight ist die hundert Meter lange Neonskulptur von Lucio Fontana aus den 1950er Jahren. Zu den wichtigsten Werken zählen „Bagni Misteriosi“ von Giorgio de Chirico und „Il quarto stato“ von Pellizza da Volpedo. Neben der Dauerausstellung gibt es regelmäßig Sonderausstellungen, darunter „Fuori! Art and Urban Space 1968-1976“ sowie eine Auswahl an Zeichnungen aus der Kollektion Boschi di Stefano.

TEXTQUELLEN

https://www.stylepark.com/de/news/museo-del-novecento

BILDQUELLEN

(1) (2) (3) (4) (5) https://ordinearchitetti.mi.it/it/cultura/itinerari-di-architettura/37-milano-e-lunita-ditalia/opere/306-arengario-e-museo-del-novecento/galleria

Museum

Grundriss

Innenraum
Schnitt
besonderes Merkmal

KURZBESCHREIBUNG

Die Intervention von Luigi Caccia Dominioni im Auftrag der Papierfabrik Ambrogio Binda umfasst mehrere markante städtebauliche Projekte an der Piazza Velasca. Der südlichste Teil betrifft die Neugestaltung des Palazzo Mellerio, einer 18. Jahrhundert Adelsresidenz, die mit einer elliptischen Treppe und einem kreisförmigen Aufzug ausgestattet wurde. Der Bürobereich, der für Binda vorgesehen war, stellt ein modernes Architekturbüro dar, das mit einem innovativen System von Klimaanlagenkanälen und einer horizontal gegliederten Fassade aufwartet. Diese Büroflächen sind um einen zentralen Korridor organisiert, der durch Treppenhäuser und kreisförmige Aufzüge zugänglich ist.

Der Bereich zwischen der Piazza Velasca und der Via Pantano beherbergt die Vip’s Residence, ein „Doppel“-Körper, dessen Fassade geschickt mit der Umgebung harmoniert. Das Design zeigt eine besondere städtebauliche Sensibilität, indem es moderne Elemente mit den historischen Gebäuden im Süden kombiniert. Das Binda-Projekt zeigt Caccia Dominionis Fähigkeit, verschiedene architektonische Stile zu vereinen und mit fortschrittlichen Materialien eine moderne Lösung zu schaffen.

EDIFICIO PER UFFICI E VIP‘S RESIDENCE

LUIGI CACCIA DOMINIONI 1963 - 1967

Bürogebäude

TEXTQUELLEN

https://www.lombardiabeniculturali.it/architetture900/schede/RL56000018/ Itinerari di architettura | Ordine Architetti Milano

BILDQUELLEN

(1) (2) (3) Itinerari di architettura | Ordine Architetti Milano (4) (5) https://ordinearchitetti.mi.it/it/cultura/itinerari-di-architettura/45luigi-caccia-dominioni/opere/524-edificio-per-uffici-e-vips-residence/ galleria

Piazza Velasca 7 - 9

Außenanischt

Grundriss

Ansicht

Lageplan

*

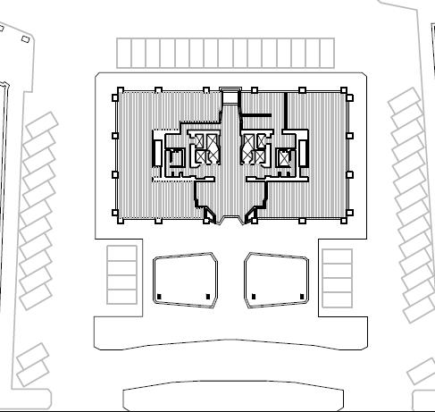
TORRE VELASCA

ERNESTO NATHAN ROGERS UND ENRICO PERESUTTI

(B.B.P.R) 1955 - 57

KURZBESCHREIBUNG

Der Velasca-Turm wurde zwischen 1950 und 1951 vom Studio BBPR für das Unternehmen Rice entworfen und zählt heute aufgrund seines historischen und architektonischen Werts zum geschützten Kulturerbe. Ursprünglich als klassischer Wolkenkratzer geplant, wurde das Design überarbeitet, um die markante „Pilz“-Form zu erhalten. Dies wurde durch einen breiteren oberen Gebäudeteil ermöglicht, der auf auskragenden Betonpfeilern ruht. Diese Konstruktion maximiert die Raumnutzung und sorgt für eine flexible Raumaufteilung.

Die Fassade ist in zwei Strukturebenen gegliedert: eine tragende Hauptstruktur und kleinere Verstärkungspfeiler, die Fenster und Fassadenverkleidung stützen. Der Turm umfasst 28 Stockwerke, darunter Gewerbeflächen, Büros und Wohnungen. Die oberen Etagen sind luxuriöse Wohnungen mit großzügigerem Grundriss, was dem Gebäude die scherzhaften Spitznamen „Wolkenkratzer mit Hosenträgern“ oder „Hochhaus der Ligen“ einbrachte.

Der Entwurf ist inspiriert vom Torre del Filarete der Sforza-Burg und bietet eine moderne Lösung für den begrenzten Bauplatz, indem er sich vertikal erstreckt.

Wohn- und Bürogebäude

Längsschnitt

Grundriss Wohnplan

Lageplan
Detail Fassade

KURZBESCHREIBUNG

Der Komplex am Corso Italia, entwickelt von Luigi Moretti, ist ein multifunktionales Projekt im historischen Zentrum von Mailand. Es besteht aus vier unterschiedlich hohen und ausgerichteten Gebäuden, die sich in ihrer Nutzung und Form unterscheiden. Das erste Gebäude an der Via Rugabella hat drei Etagen und wird für Geschäfte und Büros genutzt. Darüber ragt ein achtstöckiges Gebäude mit einer sich verjüngenden Form, das ursprünglich als Wohngebäude gedacht war, aber während des Baus als Bürogebäude verwendet wurde. Ein weiteres größeres Gebäude im Inneren des Komplexes erstreckt sich über 12 Etagen und bildet den Abschluss des Projekts. Das letzte Gebäude besteht aus sechs Etagen und wird komplett als Büro genutzt.

Das markanteste Gebäude des Komplexes ist dasjenige, das in Richtung Corso Italia hinausragt. Es wurde so entworfen, dass es die Südausrichtung für den Wohnbereich bietet. Das Projekt nutzt moderne Materialien und bietet flexible Innenräume, was zu einer hohen architektonischen Qualität beiträgt. Die Gestaltung des dreieckigen Grundstücks beeinflusste maßgeblich die typologischen Entscheidungen von Moretti.

LUIGI MORETTI 1949 - 1955

Wohnungen, Bürogebäude

TEXTQUELLEN

https://archidiap.com/opera/complesso-per-abitazioni-e-uffici-in-corsoitalia/

BILDQUELLEN

(1) (2) (3) (4) (5) https://archidiap.com/opera/complesso-per-abitazionie-uffici-in-corso-italia/

Axonometrie

Lageplan

Grundriss Gebäude 2

Schnitt

Corso Italia 22 - 24

KURZBESCHREIBUNG

Der von Caccia Dominioni entworfene multifunktionale Gebäudekomplex befindet sich vor der Kirche Santa Eufemia und richtet sich städtebaulich auf diese aus. Das Projekt umfasst einen dreigeschossigen Brückenkörper entlang des Corso Italia, der an den Seiten von zwei sechs Stockwerke hohen Türmen flankiert wird. Diese Türme sind mit dunklen roten Keramikfliesen verkleidet. Der zentrale Gebäudeteil weist eine durchgehende Vorhangfassade auf, die auf einem gewölbten Portikus ruht, wodurch eine Offenheit zum städtischen Kontext entsteht. Der Portikus dient als Haupteingang zu einem weitläufigen Innengarten, der in direkter Verbindung zum Atrium steht. Dieses wird durch einen Marmorterrazzoboden von Francesco Somaini veredelt.

Das zusätzliche Bauvolumen wurde in der Tiefe des Grundstücks durch einen zehnstöckigen, an die Grundstücksgrenze gelehnten fünfeckigen Turm genutzt, der an eine blinde Fassade eines bestehenden Gebäudes anschließt. Ein weiterer Gebäudeteil mit sechs Stockwerken, primär für Wohnzwecke gedacht, weist eine unregelmäßige Form auf und neigt sich zum Innenhof hin.

Caccia Dominioni legte großen Wert auf die harmonische Integration des Projekts in die Umgebung. Die Ausrichtung aller Gebäudeteile ermöglicht stets den Blick auf die Kirche Santa Eufemia. Die architektonische Gestaltung nimmt Bezug auf die vorindustrielle Bauweise der Umgebung und setzt sich bewusst von spekulativen Eingriffen ab, die das Stadtbild zuvor verändert hatten.

UFFICI, ABITAZIONI E NEGOZI

CACCIA DOMINIONI LUIGI 1957 - 1964

TEXTQUELLEN

https://ordinearchitetti.mi.it/it/cultura/itinerari-di-architettura/45-luigi-caccia-dominioni/opere/518-edificio-per-abitazioni-uffici-e-negozi/ galleria

Complesso in corso Italia 22 - Milano (MI) | Architettura in Lombardia dal 1945 ad oggi

BILDQUELLEN

(1) (2) (3) (4) (5) https://ordinearchitetti.mi.it/it/cultura/itinerari-di-architettura/45-luigi-caccia-dominioni/opere/518-edificio-per-abitazioni-ufficie-negozi/galleria

Wohn- und Bürogebäude

Außenraum

Grundriss

Ansicht

Lageplan

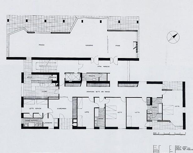
KURZBESCHREIBUNG

Die Casa della Meridiana in Mailand, entworfen von Giuseppe de Finetti, wurde zwischen 1924 und 1925 erbaut. Das Wohngebäude befindet sich in der Via Marchiondi 3 und gilt als eines der bedeutendsten Werke des Architekten. Der Name „Meridiana“ (Sonnenuhr) stammt von der markanten Sonnenuhr an der Fassade, die ein charakteristisches Element des Gebäudes darstellt. De Finetti, ein Schüler von Adolf Loos, orientierte sich an einem schlichten, funktionalistischen Stil, der sich durch klare Linien und reduzierte Dekorationen auszeichnet.

Die Fassade kombiniert klassische und moderne Elemente, mit symmetrischen Fenstern und einer klaren vertikalen Gliederung. Die Verwendung hochwertiger Materialien unterstreicht die elegante Gestaltung. Das Gebäude ist für luxuriöse Wohnungen konzipiert und spiegelt den Wandel der Mailänder Architektur in den 1920er Jahren wider.

Die Casa della Meridiana ist ein Beispiel für de Finettis Ansatz, traditionelle Gestaltung mit neuen architektonischen Prinzipien zu verbinden. Heute gilt sie als ein wichtiges Zeugnis der frühen modernen Architektur in Mailand.

CASA DELLA MERIDIANA

GIUSEPPE DE FINETTI 1924 - 1925

Wohngebäude

TEXTQUELLEN

https://mehtapty.tumblr.com/post/97482517340/giuseppe-de-finetti-casa-della-meridiana

Text wurde erstellt mit ChatGPT

BILDQUELLEN

(1) (2) (3) (4) (5) https://mehtapty.tumblr.com/post/97482517340/giuseppe-de-finetti-casa-della-meridiana

Via Marchiondi 3
Grundrisse
Innenraum
Innenraum Schnitt

* NUOVA SEDE UNIVERSITÀ LUIGI BOCCONI

GRAFTON ARCHITECTS, SANAA 2002 - 2008

KURZBESCHREIBUNG

Das Gebäude der Luigi-Bocconi-Universität wurde als städtischer Raum konzipiert, inspiriert von einer Markthalle, die den Austausch fördert. Die Aula Magna dient als Übergang zwischen Stadt und Universität.

Die Fassade zur Viale Bligny bildet ein „Fenster“ nach Mailand, das die enge Verbindung der Universität mit der Stadt betont. Der öffentliche Raum vor dem Gebäude (18 x 90 m), inspiriert vom Hospital Maggiore, lädt Besucher ins Innere ein und verbindet sich mit der urbanen Umgebung.

Die oberen Forschungsbüros schweben wie ein lichtdurchlässiges Dach und verbinden visuell das Leben der Universität mit der Stadt. Die unterirdische Struktur, massiv und gemeißelt, schafft eine Kontinuität zwischen dem Stadtraum und dem Bauwerk.

Die Außenwand der Aula Magna reicht über die gesamte Gebäudehöhe, während die Büros auf der obersten Ebene das Dach bewohnen. Dieser „eingebettete Felsbrocken“ am Straßenrand verankert das Gebäude und symbolisiert seinen festen Platz in der Stadtlandschaft.

TEXTQUELLEN

https://www.graftonarchitects.ie/Universita-Luigi-Bocconi-Milan

BILDQUELLEN

(1) (2) (3) (4) (5) https://www.graftonarchitects.ie/Universita-Luigi-Bocconi-Milan

Universitätscampus
Außenansicht
Grundriss
Schnitt
Innenansicht

* NOUVO CAMPUS UNIVERSITARIO BOCCONI

KURZBESCHREIBUNG

Der New Campus der Bocconi-Universität in Mailand wurde von dem japanischen Architekturbüro SANAA entworfen und 2021 fertiggestellt. Er erstreckt sich über ein 350.000 Quadratmeter großes Gelände, das zuvor eine Milchverarbeitungsfabrik beherbergte. Der Campus umfasst Lehr- und Verwaltungsgebäude, Studentenwohnheime und ein Sportzentrum und ist in einen öffentlichen Park eingebettet.

Die Architektur zeichnet sich durch organische, geschwungene Formen und transparente Strukturen aus. Die Gebäude bestehen größtenteils aus Glas und sind mit einem Metallgitter mit rautenförmigen Perforationen umhüllt, das die Sonneneinstrahlung reduziert und einen leuchtenden Effekt bei Nacht erzeugt. Jedes Gebäude hat einen Innenhof, der an die traditionelle Mailänder Architektur erinnert. Überdachte Laubengänge bieten geschützte Wege und Ruhezonen.

Das zentrale Pod-Gebäude dient als Haupteingang zur Bocconi School of Management und beherbergt eine Lobby, ein Café, ein Restaurant und einen Buchladen. Die Unterrichts-räume sind in den Boden eingelassen, um eine Verbindungzur Parklandschaft zu schaffen. Die Architektur betont eine fließende, offene Gestaltung, die den Campus mit der Umgebung verschmelzen lässt. SANAA kombiniert Funktionalität mit Ästhetik und schafft eine innovative Lernumgebung, die den städtischen Raum bereichert.

Bildungsgebäude

TEXTQUELLEN

https://www.baumeister.de/bocconi-campus-mailand-sanaa/

BILDQUELLEN

(1) (2) (3) (4) (5) https://www.baumeister.de/bocconi-campus-mailandsanaa/

Außenansicht

Grundriss

Lageplan

GRUPPE L GRUPPE W

GRUPPE L

GRUPPE W

START UHRZEIT

Secondo Palazzo Mentecatini *

Largo Doegani 1 09.30

START UHRZEIT

Simplonpark

Viale Federico Schiller

09.30

GRUPPE L

GRUPPE W

B b b B

ENDE UHRZEIT

ENDE

UHRZEIT

Gino Valle Square

Piazza Gino Valle ca 18.00

Torre Pirelli * Via Pirelli 32

ca 18.00

* SECONDO PALAZZO MONTECATINI

GIO PONTI 1947 - 1951

KURZBESCHREIBUNG

Fünfzehn Jahre nach dem ersten Palazzo Montecatini baute Gio Ponti ein zweites Gebäude für das Unternehmen auf einem angrenzenden Grundstück. Es wurde als moderner Verwaltungskomplex konzipiert und präsentierte das industrielle Potenzial Italiens durch Materialien wie Aluminium und Marmor.

Das Gebäude folgt der Hofblock-Logik und vereint verschiedene Volumen zu einem einheitlichen Entwurf. Der Hauptkörper mit 13 Stockwerken an der Piazza della Repubblica ist konkav geformt und öffnet sich zu einem öffentlichen Platz mit Eingangsgalerie zur Ausstellung von Montecatini-Produkten. Entlang der Via Turati und Via Principe Amedeo befinden sich zwei achtstöckige Büroblöcke mit Fassaden aus Nuvolato Apuano-Marmor und weißen Carrara-Mosaikfliesen. Ein vierter Gebäudeteil an der Via Montebello ist durch horizontale Bänder und leichte Überhänge gekennzeichnet.

1986 wurde das Gebäude renoviert, wobei die Fassaden erhalten blieben. Viele der von Ponti entworfenen Möbel wurden jedoch im Laufe der Jahre entfernt.

Bürogebäude

TEXTQUELLEN

https://censimentoarchitetturecontemporanee.cultura.gov.it/scheda-opera?id=2300

BILDQUELLEN

(1) (5) https://www.lombardiabeniculturali.it/architetture900/schede/ p4010-00184/ (2) (3) (4) https://ordinearchitetti.mi.it/en/cultura/itinerari-di-architettura/46-gio-ponti/opere/579-palazzi-montecatini/galleria

Ansicht

Grundriss

Fassadendetail

Lageplan

* PALAZZO PER UFFICI MONTECATINI I

GIO PONTI

1936 - 1938

KURZBESCHREIBUNG

Das Montecatini-Gebäude gilt als Meilenstein der Mailänder Architektur. 1935 beauftragte Guido Donegani, Präsident der Montecatini-Gesellschaft, Gio Ponti und Fornaroli mit der Planung eines modernen Bürokomplexes für 1.500 Mitarbeiter. Das trapezförmige Grundstück an einer zentralen Kreuzung wurde nicht monumental gestaltet, sondern mit einem offenen H-förmigen System zur Via Moscova hin.

Der zentrale Baukörper hebt sich durch seine Höhe von 13 Stockwerken gegenüber den 8-stöckigen Seitenflügeln ab. Die Gestaltung reflektiert die hierarchische Organisation des Unternehmens. Die Oberflächen bestehen aus grünem Cipollino-Marmor, Aluminiumfenstern und seriellen Öffnungen, die die interne Struktur widerspiegeln.

Das Gebäude verkörpert rationalistische Prinzipien und setzt die Organisation der Arbeit architektonisch um. Fortschrittliche Technologien wie Klimaanlage, Telefonnetz und Rohrpost machten es innovativ. 70 Jahre später bleibt es ein ikonisches Beispiel moderner Architektur. Sein ausbalanciertes Spiel aus Hohlräumen und festen Strukturen macht es zu einem zeitlosen, „klassisch modernen“ Bauwerk.

Bürogebäude

TEXTQUELLEN

https://ordinearchitetti.mi.it/it/cultura/itinerari-di-architettura/19-i-luoghidel-lavoro/opere/591-palazzo-montecatini

BILDQUELLEN

(1) https://www.juzaphoto.com/galleria.php?t=4908973&l=en (2) (3) (4) (5) https://giopontiarchives.com/archivio/primo-palazzo-montecatini-allangolo-tra-della-moscova-e-turati?utm_source=chatgpt.com

Grundriss

Lageplan

Grundriss

Schnitt

KURZBESCHREIBUNG

Das Apartmenthaus Ca‘ Brütta gilt als bedeutendes Manifest der Novecento-Architekturbewegung inItalien. Es wurde von Giovanni Muzio entworfen,der als treibende Kraft hinter dem Design gilt. Oftwird das Gebäude als seine erste große architekto-nische Errungenschaft betrachtet. Seit seiner Errichtung sorgte Ca‘ Brütta für Diskussionen, insbesondere weil sein Bau eine der wenigenprivaten Grünflächen Mailands verdrängte. Mit seiner kompakten Volumetrie und dem schwindenden Einfluss des Klassizismus stellt es eine wichtige städtebauliche Präsenz dar. Zwar blieben räumli-che Verteilung und Infrastruktur klassisch, doch die verzierten Fassadenflächen markierten den Stil des Novecento.

CA‘ BRUTTA

GOIVANNI MUZIO 1919 - 1922

Das Gebäude wurde bald vom Rationalismus herausgefordert, da seine aufwändige Gestaltung nicht mehr dem neuen funktionalistischen Ansatz entsprach. Der Name „Ca‘ Brütta“ (hässliches Haus) spiegelt den anfänglichen negativen Eindruck wider, der durch den Einsatz klassischer, aber extravaganter Elemente entstand. Es besteht aus zwei Baukörpern, getrennt durch eine Privatstraße, die die Fassadenfläche vergrößert und das massive Gebäude harmonisch in das städtische Umfeld integriert. Wohngebäude

TEXTQUELLEN

http://www.archipicture.eu/Architekten/Italien/Muzio%20Giovanni/Giovan-ni%20Muzio%20-%20Ca%20Brutta%20Milano%203.html

BILDQUELLEN

(1) (2) (3) (4) https://ordinearchitetti.mi.it/en/cultura/itinerari-di-architettu-ra/41-giovanni-muzio/opere/313-ca-brutta/galleria

Via della Moscova 12

Ansicht

Grundriss

Lageplan

Piazza della Repubblica 5 - 9

CASA BONAITI. CASA MALUGANI

GIOVANNI MUZIO 1935 - 1936

KURZBESCHREIBUNG

Mit dem Bau des Bonaiti- und Malugani-Komplexes setzte Giovanni Muzio seine Überlegungen zum seriellen Wohnen in modernen Großstadt-Eigentumswohnungen fort und reagierte auf die städtebaulichen Herausforderungen rund um die Piazza Fiume (heute Piazza della Repubblica). Der Komplex vereint die Parzellen des Bonaiti- und Malugani-Anwesens in einer einzigen monumentalen Architektur, die auf die große Dimension des Platzes antwortet. Ein massiver Steinsockel aus Granit und Musso-Marmor bildet die Grundlage für die drei Stockwerke hohen Büroeinheiten. Darauf erhebt sich ein imposantes Backsteingebäude, das an Sironis massiven Kubismus erinnert und Muzios Theorie von „Knochen und Haut“ widerspiegelt.

Die Wohnungen variieren in Größe und Schnitt und sind mit modernen Technologien ausgestattet, darunter eine automatisierte Heizungsanlage und ein zentrales Kühlsystem. Alle Wohnungen besitzen Loggien, und die oberen Etagen verfügen über Dachterrassen mit Gärten, Pergolen und Wassertanks. Die Bewohner genießen von hier einen Panoramablick auf die Alpen.

Wohngebäude

TEXTQUELLEN

https://ordinearchitetti.mi.it/it/cultura/itinerari-di-architettura/41-giovanni-muzio/opere/321-case-bonaiti-e-malugani

BILDQUELLEN

(1) https://milanarchives.wordpress.com/case-bonaiti-e-malugani/ (2) (3) (4) (5) https://ordinearchitetti.mi.it/en/cultura/itinerari-di-architettura/41-giovanni-muzio/opere/321-case-bonaiti-e-malugani/galleria

Außenansicht

Perspektive

Fassadendetail

Außenansicht

KURZBESCHREIBUNG

Die Fondazione Feltrinelli an der Viale Pasubio in Mailand ist eines der beeindruckendsten Gebäude der Stadtentwicklung in Porta Nuova. Entworfen von Herzog & de Meuron, wurde sie 2016 fertiggestellt und integriert sich harmonisch in den historischen Stadtgrundriss. Inspiriert von lombardi-schen Bauernhäusern, zeichnet sich das Gebäude durch eine schmale, langgestreckte Form, scharfe Kanten und transparente Fassaden aus.

Das Gebäude beherbergt die Giangiacomo FeltrinelliStiftung, eine renommierte Forschungsbibliothek mit 200.000 Bänden und historischen Archiven. Die unteren Stockwerke umfassen eine Buchhandlung, eine Cafeteria und einen Veranstaltungsraum, während in den oberen Etagen Büros und ein beeindruckender Lesesaal mit dreifacher Höhe untergebracht sind. Neben der Stiftung befindet sich der italienische Hauptsitz von Microsoft, der durch flexible Büroflächen, digitale Innovationsräume und ein modernes Arbeitsumfeld geprägt ist. Die nachhaltige Bauweise umfasst Wärmepumpensysteme, intelligente Fassadensteuerung und energieeffiziente Technologien. Die Architektur des Gebäudes symbolisiert Offenheit und Dialog mit der Stadt und setzt neue Maßstäbe für modernes Bauen in Mailand.

* FONDAZIONE FELTRINELLI

HERZOG & DE MEURON 2013 - 2016 Bildungsgebäude

TEXTQUELLEN

https://www.arketipomagazine.it/fondazione-feltrinelli-herzog-de-meuron-milan/

BILDQUELLEN

(1) (2) (3) (4) (5) https://www.arketipomagazine.it/fondazione-feltrinelliher-zog-de-meuron-milan/

Viale Pasubio 5

Innenraum

Lageplan

Grundriss

Schnitt

KURZBESCHREIBUNG

Das Casa Comolli Rustici wurde 1934 von den Architekten Lingeri und Terragni als letztes Gebäude der „fünf Mailänder Häuser“ entworfen. Es steht an der Ecke der Via Cola Montano und der Via Guglielmo Pepe, in einem Gebiet nahe dem Farini-Rangierbahnhof. Das Gebäude besitzt einen C-förmigen Grundriss, der einen Innenhof bildet. Die Architektur zeigt eine komplexe Komposition mit Volumen, die durch Höhenunterschiede und Fassadenverschiebungen strukturiert sind, um die vorherrschende „Vorhangfassaden“-Konstruktion zu vermeiden. Das Gebäude ist in zwei Blöcke unterteilt, die unabhängige Zugänge bieten.

Der hohe Block hebt sich durch seine Symmetrieachse und die markante Loggia hervor. Der Bau umfasst Büros, Handwerksbetriebe und Lagerhallen im Untergeschoss und Erdgeschoss, während die oberen Etagen Wohnungen aufweisen. Diese sind nach einem hochdichten Modell mit sieben Wohnungen pro Etage organisiert. Das Gebäude, ursprünglich als Einkommensinvestition in einem Arbeiterbezirk konzipiert, gilt als ein bedeutendes Beispiel der rationalistischen Architektur.

* CASA COMOLLI RUSTICI

TERRAGNI, GIUSEPPE 1939 - 1941

TEXTQUELLEN

https://chatgpt.com/c/67ded19f-926c-800c-ba7b-60d23f1b7301

BILDQUELLEN

(1) (5) https://atelierdehahn.com/giuseppe-terragni-casa-rustici/ (2) (3) (4) https://atelierdehahn.com/giuseppe-terragni-casa-rustici/

Wohngebäude

Grundriss

Innenraum
Schnitt
Außenansicht

KURZBESCHREIBUNG

Dieses Gebäude ist das kleinste von Giuseppe Terragni und Pietro Lingeri realisierte Wohnhaus in Mailand und das einzige, das zwischen bestehenden Gebäuden steht. Als Teil einer geschlossenen, aber heterogenen Straßenfront ist es nur zwölf Meter breit. Das lang gestreckte Grundstück führte die Architekten zur Gestaltung von zwei separaten Baukörpern: Ein fünfstöckiger Bau grenzt an die Straße, während ein vierstöckiger Bau im hinteren Teil des Hofes liegt. Dazwischen befinden sich Treppenhäuser und überdachte Erschließungsgänge für die Bewohner. Das Gebäude weist klare Parallelen zu den Rustici- und Ghiringhelli-Häusern auf: Das zurückversetzte Erdgeschoss ist mit schwarzem Serpentinstein verkleidet, und das oberste Staffelgeschoss beherbergt die Wohnung des Eigentümers. Charakteristische Elemente sind das zentrale Erkerfenster mit horizontalen Fensterbändern sowie das Gesims, das die seitlichen Wände verlängert und die architektonischen Elemente einrahmt.

CASA TONINELLO

TERRAGNI, GUISEPPE 1933 - 1935

TEXTQUELLEN

http://www.archipicture.eu/Architekten/Italien/Terragni%20Giuseppe/Giuseppe%20Terragni%20-%20Casa%20Toninello%201.html

BILDQUELLEN

(1) https://de.m.wikipedia.org/wiki/Datei:Milano_casa_Toninello_scorcio. JPG

(2) https://www.lombardiabeniculturali.it/architetture/schede/3m080-00004/

(3) https://www.lombardiabeniculturali.it/architetture/schede/3m080-00004/

(4) https://www.lombardiabeniculturali.it/architetture/schede/3m080-00004/

(5) https://www.lombardiabeniculturali.it/architetture/schede/3m080-00004/

Wohngebäude
Innenraum
Innenhof (1)
Fassade
Innenhof (2)

Piazzale Lagosta 2

KURZBESCHREIBUNG

Dieses Projekt wurde von den Brüdern Ghiringhelli bei den Architekten Giuseppe Terragni und Pietro Lingeri als Immobilieninvestition und Familienwohnsitz in Auftrag gegeben. Das Gebäude umfasst vier Gewerbeeinheiten im Erdgeschoss, 24 Mietwohnungen sowie ein großzügiges sieben-Zimmer-Apartment mit Atelier für den Eigentümer, den Maler Virginio Ghiringhelli. Diese Wohnung befindet sich im achten Stock und bildet den oberen Abschluss des Gebäudes. Die gebogene, zurückgesetzte Erdgeschosszone, verkleidet mit schwarzem Serpentinstein, markiert die Basis des Baus. Während die Seitenfassaden durch vorspringende Balkone geprägt sind, erscheint die straßenseitige Hauptfassade als dreidimensionales, nicht-figürliches Kunstwerk – eine Anspielung auf Ghiringhellis Verbindung zur abstrakten Kunst. Im Atrium befinden sich Fresken von Virginio Ghiringhelli sowie Skulpturen von Lucio Fontana. Durch das zurückgesetzte oberste Geschoss entstand eine Dachvilla mit Hängenden Gärten, Terrassen und Balkonen, ohne den Rhythmus der Fassade zu stören. Ghiringhelli galt als intelligenter Künstler, der mit Schlichtheit und Klarheit arbeitete – Eigenschaften, die sich in seinem Atelier widerspiegeln, das durch großflächige Verglasungen geprägt ist.

CASA GHIRINGHELLI

GUISEPPE TERRAGNI, PIETRO LINGERI 1933 - 1935

TEXTQUELLEN

http://www.archipicture.eu/Architekten/Italien/Terragni%20Giuseppe/Giuseppe%20Terragni%20-%20Casa%20Ghiringhelli%201.html

BILDQUELLEN

(1) https://www.loquis.com/de/loquis/577390/Haus+Ghiringhelli (2) https://www.archigraphie.eu/?p=1507 (3) https://www.lombardiabeniculturali.it/architetture/schede/3m080-00040/ (4) https://www.lombardiabeniculturali.it/archivi/unita/MIUD02F940//

Wohnen und Gewerbe

Grundrisse

Innenraum

Ansicht Innenhof

Ansicht

KURZBESCHREIBUNG

Das Haus der Erinnerung ist ein sehr einfaches Gebäude: Es handelt sich um eine Box mit einem rechteckigen Grundriss von 20 m × 35 m und einer Höhe von 17,5 m. Das Gebäude ist in drei Teile unterteilt, die durch ein vollständig offenes Erdgeschoss miteinander verbunden sind. Zwei schmale Bereiche an den kürzeren Seiten des Gebäudes beherbergen das Archiv (Süden), die Sanitäranlagen und technischen Installationen (Norden) sowie die vertikale Erschließung. Der offene Raum im Erdgeschoss ist durch zwei achteckige Säulen in drei Teile untergliedert. Ein Drittel dieses Bereichs erstreckt sich über die gesamte Gebäudehöhe und enthält eine Wendeltreppe. Der restliche Raum wird von Ausstellungsflächen und Büros aufdrei Ebenen eingenommen. Diese innere Organisation – mit der riesigen, gelben Treppe, die sich zwischen den drei Ebenen der Büros und Ausstellungsräume sowie den fünf Ebenen des Archivs befindet – verleiht dem Gebäude eine größere Dimension. Der Kontrast zwischen den engen Archivgeschossen und den monumentalen Dimensionen der Treppe sorgt dafür, dass die Büro- und Ausstellungsräume geräumiger wirken.

Die Fassaden des Hauses der Erinnerung bestehen vollständig aus Ziegeln und kombinieren hervortretende Pilaster mit zurückgesetzten Bildpaneelen in sechs Farbtönen. Diese zeigen Porträts (19 Quadrate) und historische Szenen (8 Rechtecke). Die speziell gefertigten Ziegel (5,5 × 5,5 × 12 cm, SanMarco SRL) basieren auf Archivfotografien, die pixelgenau in die Ziegelflächen übertragen wurden. Eine numerische Matrix (1–6 für die Farben) wurde in Originalgröße gedruckt und vor Ort als Verlegehilfe genutzt. Das „Haus der Erinnerung“ ist ein Archiv sowie ein Ausstellungs- und Konferenzraum in Mailand. Es ist der Sitz von fünf kulturellen Vereinigungen, deren Ziel es ist, die Erinnerung an die Eroberung von Freiheit und Demokratie in Italien zu bewahren.

* CASA DELLA MEMORIA

öffentliches Kulturgebäude

TEXTQUELLEN

https://www.baukuh.it/works/house-of-memory/ Gigon, Annette; Guyer, Mike: MILANO. CONTINUTÀ E AMBIENTE. Zürich, S.144

BILDQUELLEN

(1) https://www.baukuh.it/works/house-of-memory/ (2) https://www.baukuh.it/works/house-of-memory/ (3) https://www.baukuh.it/works/house-of-memory/ (4) https://www.baukuh.it/works/house-of-memory/ (5) https://www.baukuh.it/works/house-of-memory/

Wanddetail

Grundrisse

Innenraum

Längsschnitt

B10

KURZBESCHREIBUNG

Das Bosco Verticale in Mailand besteht aus zwei begrünten Wohntürmen, die 2014 fertiggestellt wurden. Die Türme, mit 80 Metern (19 Etagen) und 112 Metern (27 Etagen) Höhe, sind Teil einer umfangreichen Stadterneuerung im Norden Mailands. Das Projekt wurde von Stefano Boeri und seinem Architekturbüro Stefano Boeri Architetti entworfen. Die Türme sind mit rund 800 Bäumen, 15.000 Stauden und 5.000 Sträuchern bepflanzt, was eine Begrünungsfläche von etwa 30.000 Quadratmetern Wald entspricht. Diese Begrünung trägt zur Verbesserung des städtischen Mikroklimas bei, indem sie Sonnenstrahlen filtert, Feuchtigkeit reguliert und Luft reinigt. Die Pflanzen befinden sich auf Balkonen, die bis zu drei Meter auskragen und so Platz für größere Bäume bieten. Das Projekt setzt neue Maßstäbe in der Integration von Natur in urbanes Design und fördert eine nachhaltige städtische Entwicklung, indem es die Luftqualität verbessert und den Bewohnern ein angenehmes, isoliertes Klima bietet.

* BOSCO VERTICALE

BOERI STUDIO

2007 – 2014

Wohngebäude

TEXTQUELLEN

https://www.awmagazin.de/interior/bosco-verticale-in-mailand

BILDQUELLEN

(1) (2) (3) (5) https://www.awmagazin.de/interior/bosco-verticale-in-mailand (4) https://www.archdaily.com/777498/bosco-verticale-stefano-boeri-architetti

Baumübersicht

Grundriss

Fassadendetail
Innenraum

* BIBLIOTECA DEGLI ALBERI PARK

KURZBESCHREIBUNG

Der Park fungiert als städtisches Bindeglied, kultureller Campus und botanischer Garten. Wege führen aus verschiedenen Bereichen (Wohn-, Geschäfts- und Regierungsviertel) auf das Gelände und bilden ein Netz von Verbindungen, die sich überlagern und kreuzen. Diese Wege und die dazwischen entstehenden unregelmäßigen Felder gleichen Höhenunterschiede aus, überspannen Verkehrstunnel, dienen als Lärmschutzwände und überbrücken Straßen.

Die Bepflanzung der Felder besteht aus sorgfältig ausgewählten Pflanzenarten, wobei jedes Feld eine eigene Vegetation und Funktion bietet. Über das Gelände verstreute kreisförmige Baumgruppen wachsen zu dichten, farblich und strukturell unterschiedlichen Baumkronen heran, die über dem Park zu schweben scheinen. Entlang der Parkgrenzen und im Inneren befinden sich kulturelle, soziale, bildungsbezogene und kommerzielle Gebäude. Sie beleben das Gebiet wirtschaftlich und kulturell, sichern somit eine hochwertige Instandhaltung des Parks und ziehen Besucher an. 2010 – sechs Jahre nach Abschluss des Wettbewerbs –konnte das Projekt neu belebt, an veränderte Rahmenbedingungen angepasst und weiterentwickelt werden. Der Park, gelegen zwischen der Stazione di Porta Garibaldi und der Stazione Centrale, wird zum pulsierenden Zentrum zwischen Verwaltung, Geschäftsvierteln, Mode- und Kulturbauten, wichtigen Verkehrsknotenpunkten, belebten Straßen und ruhigen Wohngegenden wie dem Quartiere Isola.

Die zentrale Idee des Wettbewerbsentwurfs von 2003 war es, Mailands Stadtlandschaft um einen neuen Parktypus zu bereichern: die Biblioteca degli Alberi („Baumbibliothek“). Dieser Park präsentiert eine Sammlung verschiedener Baumarten und stellt eine moderne Version des Botanischen Gartens dar. Durch sein Netzwerk aus Wegen und sein vielfältiges kulturelles Programm wird er zu einem kulturellen Campus – ein Ort der Begegnung, des Genusses und des Lernens; ein Raum für Freizeit, Sport, Schönheit und Bildung. Der Park verbindet alle angrenzenden Stadtteile und Bewohner miteinander und ist selbst aus allen Richtungen und Ebenen zugänglich.

TEXTQUELLEN

https://www.insideoutside.nl/Biblioteca-degli-Alberi-Milan

BILDQUELLEN

(1) https://www.insideoutside.nl/Biblioteca-degli-Alberi-Mila (2) https://www.insideoutside.nl/Biblioteca-degli-Alberi-Mila (3) https://www.insideoutside.nl/Biblioteca-degli-Alberi-Mila (4) https://www.insideoutside.nl/Biblioteca-degli-Alberi-Mila (5) https://www.insideoutside.nl/Biblioteca-degli-Alberi-Mila

Park
Parklandschaft (1)
Parklandschaft (2)
Bauplan
Parklandschaft (3)

Via Fabio Filzi 18 - 24

KURZBESCHREIBUNG

In der Nähe des Hauptbahnhofs, auf dem Gelände, das teilweise das heutige Exekutivzentrum beherbergt, entstand in den späten 1950er-Jahren das Pirelli-Hochhaus. Entworfen mit dem Beitrag vieler Fachleute, ist es ein unverkennbares Symbol für Gio Pontis Architekturauffassung. Mit einer Höhe von 127 Metern war es die höchste Stahlbetonkonstruktion Europas seiner Zeit.

1956 schrieb Ponti in Domus: „Die Struktur identifiziert sich mit freistehender Architektur. Vier hohle Pfeiler an den Enden, vier zentrale tragende Pfeiler, die Windgeschwindigkeiten von bis zu 150 km/h standhalten, sowie der Aufzugsschacht, die vertikale Struktur der Büros und die hydraulischen Leitungen. Zwischen den vier zentralen Pfeilern entfaltet sich ein Körper über 24 Meter.“

Wie die Montecatini-Zentrale den Höhepunkt von Pontis früher Schaffensphase markiert, repräsentiert der Pirelli-Turm seine architektonische Reife. Beide Gebäude sind Bürokomplexe, in denen eindrucksvolle architektonische Gestaltung mit durchdachter Funktionalität kombiniert wird. Ponti verwirklichte hier sein Ideal eines völlig freistehenden Bauwerks, das sich von den monotonen, standardisierten Formen amerikanischer Wolkenkratzer abheben sollte.

Die besondere Form und das prägnante Erscheinungsbild machen das Gebäude zu einer einzigartigen Architektur –ähnlich wie die Velasca-Turm von Belgiojoso, Peressutti und Rogers, wenn auch mit anderen Ausdrucksmitteln. Sowohl der Velasca-Turm als auch der „Pirellone“, wie ihn die Mailänder liebevoll nennen, gehören zu den markantesten Wahrzeichen der Stadt. Insbesondere das Pirelli-Hochhaus verschaffte Ponti internationalen Ruhm und wurde zu einem Symbol Mailands über die Stadtgrenzen hinaus.

*

TORRE PIRELLI

Verwaltungsgebäude

TEXTQUELLEN

Gigon, Annette; Guyer, Mike: MILANO. CONTINUTÀ E AMBIENTE. Zürich, S.106

BILDQUELLEN

(1) https://www.archdaily.com/481062/ad-classics-pirelli-tower-gio-pontipier-luigi-nervi

(2) https://www.archdaily.com/481062/ad-classics-pirelli-tower-gio-pontipier-luigi-nervi

(3) https://www.archdaily.com/481062/ad-classics-pirelli-tower-gio-pontipier-luigi-nervi

(4) https://www.archdaily.com/481062/ad-classics-pirelli-tower-gio-pontipier-luigi-nervi

GIO PONTI 1956

Grundriss EG

Ansicht 1
Ansicht 2
Schnitt

SIMPLONPARK (PARCO SEMPIONE)

EMILIO ALEMAGNA 1893

KURZBESCHREIBUNG

Der Parco Sempione ist eine der bedeutendsten städtischen Grünanlagen im Herzen Mailands und erstreckt sich über eine Fläche von 386.000 m². Er befindet sich nordwestlich des Stadtzentrums und wurde 1893 auf einem ehemaligen Exerzierplatz eröffnet. Der Entwurf stammt von Emilio Alemagna, der den Park im romantischen Stil gestaltete. Benannt nach der Corso Sempione, die am nordwestlichen Ende des Parks beginnt, bietet die Anlage viel Raum für Erholung und Freizeit. Die unregelmäßige Gestaltung hebt ihn bewusst von der streng strukturierten Stadtumgebung ab und verleiht ihm eine naturnahe, idyllische Atmosphäre. Seine vielfältige Vegetation sowie malerische Wege und Wiesen machen ihn zu einem beliebten Treffpunkt für Einheimische und Besucher.

Der Park beherbergt zahlreiche Sehenswürdigkeiten, darunter der imposante Arco della Pace, die historische Burg Castello Sforzesco, das Amphitheater Arena Civica, der Aussichtsturm Torre Branca und das elegante Acquario Civico, ein Jugendstilgebäude, das als Aquarium dient. Als grüne Oase mitten in der Stadt verbindet der Parco Sempione Kultur, Natur und Erholung auf einzigartige Weise. Park

TEXTQUELLEN

https://de.wikipedia.org/wiki/Simplonpark?utm_source=chatgpt.com https://www.in-lombardia.it/de/was-unternehmen-in-der-lombardei/natur-urlaub/der-simplonpark

BILDQUELLEN

(1) https://www.smarttravelers.de/sehenswuerdigkeiten/italien/mailand/ simplonpark/ (2) https://www.expedia.de/Parco-Sempione-Milan-Centre.d507945.POI (3) https://www.expedia.de/Parco-Sempione-Milan-Centre.d507945.POI (4) https://de.wikipedia.org/wiki/Simplonpark (5) https://de.wikipedia.org/wiki/Simplonpark

Atmosphäre im Park
Reiterdenkmal von Napoleon III
Castello Sforzesco
Brücke der Meerjungfrauen

* TRIENNALE - PALAZZO DELL ARTE

MUZIO, GIOVANNI 1931 - 1933

KURZBESCHREIBUNG

Der Palazzo dell‘Arte im Sempione-Park verbindet bedeutende Mailänder Monumente wie das Sforza-Schloss und den Friedensbogen. Er wurde von Giovanni Muzio entworfen und zwischen 1931 und 1933 erbaut. Das rechteckige Gebäude mit einer markanten Kurve umfasst ein Theater und eine Galerie. Die rote Fliesenverkleidung kombiniert mit rosa Granit harmoniert mit der Umgebung. Fünf unabhängige Bauabschnitte garantieren Stabilität, während flexible Innenräume für Ausstellungen, Konferenzen und Aufführungen genutzt werden. Der Haupteingang an der Viale Alemagna führt in die Triennale-Galerie von Gae Aulenti. Architekt Michele de Lucchi modernisierte öffentliche Bereiche, darunter die neue Biblio-thek, ein Café und ein Restaurant. Seit 2005 beherbergt das Gebäude zudem eine Projektbibliothek mit Kunst- und Architekturdokumentationen. Ursprünglich entstand der Palazzo, um die Triennale von Monza nach Mailand zu verlegen. Die Bernocchi-Stiftung finanzierte das Projekt, das perfekt in den Park integriert wurde. Muzios Entwurf verband Rationalismus mit Monumentalität und löste sowohl Kritik als auch Anerkennung aus. Heute gilt der Palazzo als herausragendes Beispiel der Architektur seiner Zeit.

Kulturgebäude

TEXTQUELLEN

https://www.lombardiabeniculturali.it/architetture/schede/3m080-00051/

BILDQUELLEN

(1) (2) (3) (4) (5) https://www.lombardiabeniculturali.it/architetture/schede/3m080-00051/

Viale Emilio Alemagna 6

Außenansicht

Grundriss

Detail Innenraum

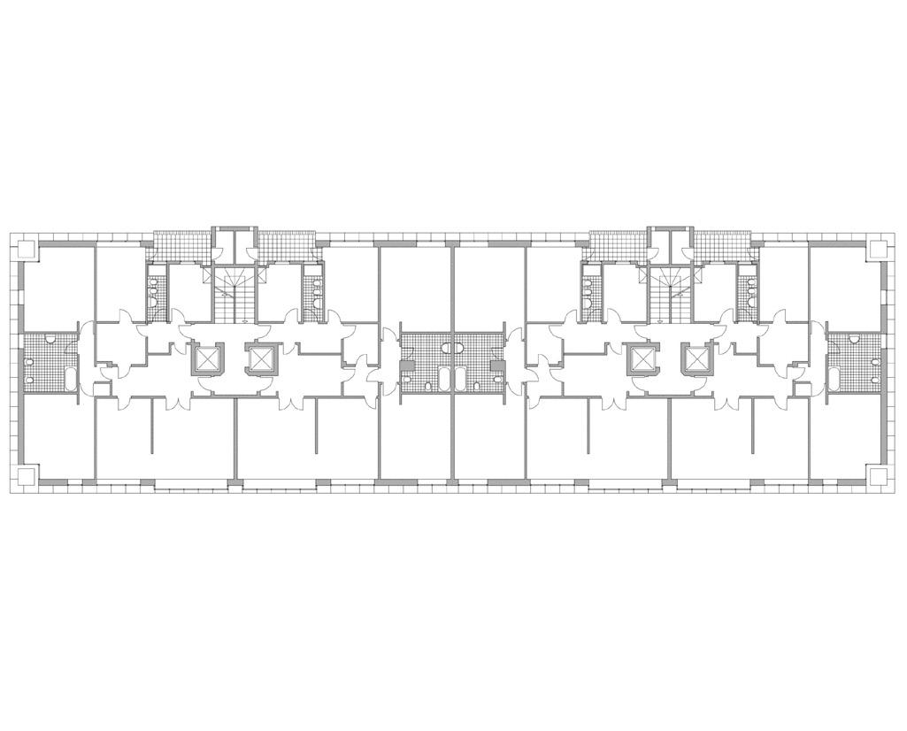
* CONDOMINIO IN VIA MASSENA

LUIGI CACCIA DOMINIONI 1959 - 1963

KURZBESCHREIBUNG

Das zehnstöckige Wohngebäude entstand in Nachbarschaft zum Garten Bompiani, was die Architekten dazu inspirierte, mit der natürlichen Umgebung zu arbeiten. Die Mittelachse teilt das Gebäude klar in zwei Teile: Die Wohnbereiche und ein Teil der Schlafzimmer sind nach Westen zum Park hin orientiert, während die Arbeitsbereiche auf der Ostseite liegen. Diese Teilung im Grundriss lässt sich auch an der Fassade ablesen.

Die zum Park orientierte Seite wurde in braunem Gips gestaltet und mit durchgehenden Brüstungen versehen. Raumhohe Fenster ermöglichen einen fließenden Übergang von innen nach außen. Die Ostfassade hingegen wurde mit braunen Klinkersteinen verkleidet, die im Bereich der Loggien eine Struktur ähnlich einer Bienenwabe aufweisen. Trotz dieser Zweiteilung entsteht durch die einheitliche Farbgebung eine homogene Wirkung. Die keramische Hülle des Wohnbaus geht bis zum Boden, sodass die Ausbildung einer Sockelzone unterbleibt.

Wohngebäude

TEXTQUELLEN

IRGEAKTIV: Exkursion Mailand. 2016, S.35 Gigon, Annette; Guyer, Mike: MILANO. CONTINUTÀ E AMBIENTE. Zürich, S.116

BILDQUELLEN

(1) https://hicarquitectura.com/2023/08/caccia-dominioni-via-massena-1958/

(2) https://hicarquitectura.com/2023/08/caccia-dominioni-via-massena-1958/

(3) https://hicarquitectura.com/2023/08/caccia-dominioni-via-massena-1958/

(4) https://hicarquitectura.com/2023/08/caccia-dominioni-via-massena-1958/

(5) https://revue.marseille.archi.fr/dun-meme-plan-deux-facades/

Ansicht

Außenwanddetail

Brüstungen an der Westseite

Grundriss

Via Ippolito Nievo 28

KURZBESCHREIBUNG

Das Gebäude Condominio in via Nievo ist ein neunstöckiger Zeilenbau, der für die obere Mittelschicht konzipiert wurde. Das Wohnhaus enstand in einem Gebiet nahe der Messe, das größtenteils von öffentlichen Grünflächen durchzogen ist. Eine Besonderheit stellt die extreme Vielfalt der Grundrisse dar, die sich in der Fassade widerspiegelt –es gibt keine rhythmische Wiederholung der Öffnungen. Die Klinkerfassade wird durch leicht vorspringende Glaskästen akzentuiert, wodurch eine interessante Tiefenwirkung entsteht.

Durch die Vielfalt der Grundrisse ist eine flexible Wohnraumgestaltung möglich. Jedes Stockwerk bietet die Möglichkeit, die Wohnungen individuell an die Bedürfnisse der Eigentümer anzupassen. Besondere Aufmerksamkeit galt der Gestaltung der Gemeinschaftsräume. Der Garten und das Atrium sind aufwendig gestaltet: Der Boden ist mit Mosaiken des Künstlers Francesco Somaini verziert, während die Wände mit venezianischem Stuck versehen wurden. Das Projekt ist Teil eines größeren Bebauungsplans für ein Gebiet in der Nähe der Fiera Campionaria in Mailand aus den Jahren 1955–1956.

* CONDOMINIO IN VIA NIEVO

LUIGI CACCIA

1955 - 1957

Wohnungsbau

TEXTQUELLEN

https://www.lombardiabeniculturali.it/architetture900/schede/p401000172/

BILDQUELLEN

(1) https://revue.marseille.archi.fr/dun-meme-plan-deux-facades/ (2) https://www.flickr.com/photos/jacqueline_poggi/albums/72177720299844932/

(3) https://revue.marseille.archi.fr/dun-meme-plan-deux-facades/ (4) https://revue.marseille.archi.fr/dun-meme-plan-deux-facades/ (5) https://www.flickr.com/photos/jacqueline_poggi/albums/72177720299844932/

DOMINIONI

Ansicht

Diagramm der Wohnungstrennwände

Beispielhafter Grundriss (5.OG)

Fassadendetail

City Life - ehemaliges Messegelände

KURZBESCHREIBUNG

Eines der größten Stadterneuerungsprojekte Europas in den letzten Jahren befindet sich in Mailand, nahe des historischen Zentrums. Das Areal kombiniert Wohnen, Arbeiten und Einkaufen mit einer harmonischen Integration von Grünflächen und öffentlichen Plätzen. Der 168.000 m² große Landschaftspark sowie eine unterirdische Straßenführung tragen zur urbanen Erneuerung bei und schaffen ein nachhaltiges und lebenswertes Umfeld. Im Zentrum des Areals erhebt sich die Piazza delle Tre Torri, um die drei markanten Türme gruppiert sind:

Isozaki Tower „Il Dritto“ (Der Gerade) – Entworfen von Arata Isozaki und Andrea Maffei, ist der Allianz Tower mit 50 Stockwerken und einer Höhe von 209 Metern eines der höchsten Hochhäuser Italiens.

Lo Storto (Der Gedrehte) – Der Generali Tower wächst vertikal mit einer dynamischen Verdrehung, die die Wahrnehmung und Aussicht auf die städtischen Achsen verbessert. Mit einer Höhe von 191,5 m ist er ein weiteres markantes Gebäude.

Il Curvo (Der Gebogene) – Der Libeskind Tower mit seiner einzigartigen gebogenen Architektur erreicht eine Höhe von 175 m und trägt zur charakteristischen Silhouette des Viertels bei.

Das Residenz-Design in CityLife fügt sich nahtlos in das urbane Konzept ein:

Residenz Hadid: Sie besteht aus sieben linearen Gebäuden unterschiedlicher Höhe, die um einen Innenhof arrangiert sind und eine offene Blockbebauung bilden. Die elegante Fassadengestaltung, die horizontal und vertikal mäandriert, schafft ein markantes architektonisches Gesamtbild. Residenz Libeskind: Im klassischen Hofkonzept gehalten, nutzt diese Residenz naturalistische Materialien, die dem Gebäude eine warme, einladende Atmosphäre verleihen. Dieses Projekt vereint moderne Architektur mit urbaner Lebensqualität und schafft ein neues Stadtzentrum für Mailand.

* CITY LIFE

2013 - 2020

TEXTQUELLEN

https://www.dbz.de/artikel/dbz_CityLife_Residenzen_Mailand_IT_ LEhttp_www.zaha-hadid.com_www.zaha-2724955.html https://www.archdaily.com/338830/in-progress-citylife-milano-zaha-hadid-architects

https://en.wikipedia.org/wiki/Allianz_Tower https://en.wikipedia.org/wiki/Generali_Tower https://projects.archiexpo.com/project-22303.html

BILDQUELLEN

(1) https://www.archdaily.com/338830/in-progress-citylife-milano-zahahadid-architects

(2) https://www.archdaily.com/338830/in-progress-citylife-milano-zahahadid-architects

(3) https://www.archdaily.com/338830/in-progress-citylife-milano-zahahadid-architects

(4) https://www.archdaily.com/338830/in-progress-citylife-milano-zahahadid-architects

(5) https://www.archdaily.com/338830/in-progress-citylife-milano-zahahadid-architects

urbanes Quartier

Lageplan

Die drei Türme
Innenraum Zaha Hadid Residenz
Pläne zu dem Generali-Tower

KURZBESCHREIBUNG

Der Generali Tower in Mailand, entworfen von der renommierten Architektin Zaha Hadid, ist ein eindrucksvolles Beispiel für ihre charakteristische Fluid-Architektur, die organische, fließende Formen mit futuristischer Technologie vereint. Der 44-stöckige Turm, auch bekannt als „Hadid Tower“, wurde 2015 fertiggestellt und ist das markanteste Gebäude im Porta Nuova-Viertel. Mit seiner geschwungenen, asymmetrischen Form, die sich in elegante, wellenartige Linien auflöst, steht der Turm als Symbol für die fortschrittliche Architektur des 21. Jahrhunderts. Die Fassade des Gebäudes besteht aus Glas und Stahl, wobei die innovative Struktur einen besonderen Eindruck hinterlässt. Die gekrümmten Linien wirken fast wie eine kinetische Skulptur, die in Bewegung zu sein scheint, was Hadids Philosophie der Architektur als dynamischer Raumverkörperung widerspiegelt. Der Tower ist nicht nur ein architektonisches Meisterwerk, sondern auch ein Symbol für die Weiterentwicklung der urbanen Landschaft von Mailand.

Die innovative Gestaltung des Generali Towers berücksichtigt nicht nur ästhetische Ansprüche, sondern auch Nachhaltigkeit und Funktionalität. Das Gebäude ist mit modernster Technologie ausgestattet, um Energieeffizienz zu maximieren und eine hohe Lebensqualität für die Nutzer zu gewährleisten. Der Turm bietet Büroflächen, die durch die außergewöhnliche Architektur und die flexiblen Raumlösungen einen einzigartigen Arbeitsplatzcharakter bieten.

Der Generali Tower ist mehr als nur ein Bauwerk – er ist ein Statement für das Zukunftsdenken in der Architektur und ein weiterer Meilenstein in Zaha Hadids beeindruckendem Werk.

* GENERALI TOWER

TEXTQUELLEN

https://de.wikipedia.org/wiki/Torre_Generali https://www.lindner-group.com/de/referenzen/generali-tower https://www.zaha-hadid.com/architecture/citylife-milano/ BILDQUELLEN

https://www.zaha-hadid.com/architecture/citylife-milano/ https://www.theplan.it/award-2019-Mixed-Use/generali-tower

Bürogebäude
Grundriss
Schnitt
Innenraum
Büroraum

KURZBESCHREIBUNG

Der Platz im Portello-Gebiet bildet einen Schwerpunkt des Stadtentwicklungsplans und wurde zeitgleich mit der Eröffnung der Expo 2015 für die Öffentlichkeit zugänglich gemacht. Er ist über einen Radweg erreichbar, der im City Life Park beginnt und durch alle Pavillons der ehemaligen Messe führt.

Mit einem Gefälle von 5 % integriert der Platz nicht nur eine begehbare Fläche, sondern eine vielseitig genutzte Struktur. Der Sockel gliedert sich in zwei unterirdische und eine oberirdische Ebene und umfasst Parkplätze, Dienstleistungen, Eingänge zu den Gebäuden, Geschäftsräume und ein Restaurant.

Auf diesem Sockel erheben sich drei Gebäude, die den Platz begrenzen und in Verbindung mit den umliegenden Bauwerken visuelle Überschneidungen erzeugen. Durch ihr ansteigendes oder abfallendes Profil verändern sich diese Perspektiven ständig. Wie von den Planern vorgesehen, entstehen so drei „städtische Berge“, die das Stadtbild des Portello prägen. Die Gebäude werden als Büro- und Gemeinschaftsräume genutzt und fügen sich in das moderne städtebauliche Konzept des Viertels ein.

GINO VALLE SQUARE

multifunktionaler Stadtplatz

TEXTQUELLEN

https://www.archdaily.com/644794/piazza-gino-valle-valle-architetti-associati

BILDQUELLEN

(1) https://www.archdaily.com/644794/piazza-gino-valle-valle-architettiassociati

(2) https://www.archdaily.com/644794/piazza-gino-valle-valle-architettiassociati

(3) https://www.archdaily.com/644794/piazza-gino-valle-valle-architettiassociati

(4) https://www.archdaily.com/644794/piazza-gino-valle-valle-architettiassociati

(5) https://www.archdaily.com/644794/piazza-gino-valle-valle-architettiassociati

Lageplan

Gebäude 3

drei „städtische“ Berge
Sockel
Schnitt

MITTWOCH

GRUPPE 1 GRUPPE 2

GRUPPE L

1 Uffici e showroom Dolce e Gabbana *

Uffici e showroom Dolce e Gabbana

2 Centro Svizzero

Centro Svizzero

3 Monumento a Sandro Pertini

Casa a ville sovrapposte

Converto di S Angelo

4 Casa a ville sovrapposte *

Casa del Cedro

5 Casa del Cedro

Condominio

Condominio

6 Condominio

Edificio polifunzionale

7 Condominio

Casa Tognella

8 Edificio polifunzionale *

Casa Albergo

9 Casa Tognella *

Palazzo di Giustizia

Excelsior

1 IULM_Milan *

Estensione del Palazzo della

Societa reale mutua di Assicurazioni

Gallerie d Italia

Viktor - Emanuel - Passage

1 IULM_Milan * (mit Führung)

2 Fondazione Prada *

3 Edificio al Gallaratese

1 Uffici e showroom Dolce e Gabbana *

2 Centro Svizzero

3 Monumento a Sandro Pertini

4 Casa a ville sovrapposte *

2 Fondazione Prada *

Condominio XXI Aprile

Casa in Piazza

Condominio

5 Casa del Cedro

6 Condominio

7 Condominio

8 Edificio polifunzionale *

9 Casa Tognella *

GRUPPE L

START UHRZEIT

START

GRUPPE W

GRUPPE L

GRUPPE W

Uffici e showroom Dolce e Gabbana * Via Broggi 23 09.30

IULM_Milan * (mit Führung)

Via Carlo Bo 1

UHRZEIT 10.00

ENDE

UHRZEIT

ENDE

UHRZEIT

Edificio al Gallaratese Via Enrico Falck 53 ca 18.00

Casa Tognella * Via Paleocapa 5 ca 18.00

KURZBESCHREIBUNG

Der Uffici e Showroom Dolce & Gabbana, entworfen von Dolce & Gabbana in Zusammenarbeit mit dem Architekturbüro Studio 7 in Mailand, ist ein herausragendes Beispiel für Luxus und die Verschmelzung von Mode mit Architektur. Die Entstehung dieses Gebäudes ist das Resultat des Wunsches, die Exklusivität und die künstlerische Vision von Dolce & Gabbana in einem architekt onischen Meisterwerk zu verewigen. Der Showroom und die Büros des Modehauses befinden sich in einem klassischen Mailänder Palast, der perfekt modernisiert wurde, um die einzigartigen Merkmale des Unternehmens widerzuspiegeln, während gleichzeitig die historische Architektur des Gebäudes bewahrt bleibt.

Die Architektur des Gebäudes spiegelt die italienische Handwerkskunst wider und ist geprägt von üppigen Materialien, die für das Luxusimage der Marke Dolce & Gabbana typisch sind. Marmor, Holz, Glas und vergoldete Details dominieren die Innenräume und schaffen eine opulente, aber gleichzeitig sehr funktionale Atmosphäre. Der Showroom präsentiert die Kollektionen in einer raffinierten Umgebung, die die Kunstfertigkeit und die Exklusivität der Mode von Dolce & Gabbana unterstreicht. Das Gebäude ist nicht nur ein Arbeitsplatz für die Designer und Mitarbeiter des Hauses, sondern auch ein Ort, an dem die Welt der Mode in ihrer schönsten und luxuriösesten Form präsentiert wird. Der Showroom ist eine Art Bühne, die die neuesten Kollektionen von Dolce & Gabbana für exklusive Kunden und Käufer inszeniert und ihnen eine einzigartige Erfahrung bietet. Die äußere Gestaltung des Gebäudes bleibt traditionell und fügt sich perfekt in das historische Stadtbild Mailands ein. Es ist jedoch die moderne Innenarchitektur, die dem Gebäude eine zeitgemäße, elegante und doch verspielte Ausstrahlung verleiht. Diese Balance zwischen traditionellem Stil und modernem Design macht das Gebäude zu einem herausragenden Beispiel für die architektonische Gestaltung von Modeunternehmen im 21. Jahrhundert.

* UFFICI E SHOWROOM DOLCE E GABBANA

TEXTQUELLEN

https://www.archdaily.com/2458/dolce-gabbana-headquarters-studiopiuarch

https://www.world-architects.com/en/piuarch-milano/project/dolceandgabbana-offices-and-showrooms

BILDQUELLEN

https://www.archdaily.com/2458/dolce-gabbana-headquarters-studiopiuarch

Grundriss
Schnitt
Innenhof
Innenraum

KURZBESCHREIBUNG

Das Centro Svizzero in Mailand ist ein bedeutendes Gebäude, das 1949–1951 erbaut wurde und als ein markantes Beispiel für die Architektur der Nachkriegszeit gilt. Es befindet sich in der Via Palestro 2/4, unweit des Piazza Cavour, und war lange Zeit das höchste Gebäude der Stadt, bis es 1954 von anderen Neubauten übertroffen wurde. Der Entwurf stammt von den Architekten Armin Meili und Giovanni Romano, die das Gebäude als Symbol für die moderne Schweiz in Mailand konzipierten.

Mit einer Höhe von 80 Metern und 20 Stockwerken spiegelte das Centro Svizzero die Ambitionen der Schweiz wider, ihre Präsenz in Mailand, einer der bedeutendsten Modemetropolen der Welt, zu verstärken. Die Architektur des Gebäudes zeichnet sich durch klare Linien und eine elegante Fassadengestaltung aus, die den zeitgenössischen Stil der 1950er Jahre verkörpert. Besonders hervorzuheben ist der Einsatz von Beton und Stahl, was dem Gebäude eine moderne und zugleich robuste Ausstrahlung verleiht.

Heute beherbergt das Centro Svizzero verschiedene wichtige Einrichtungen, darunter das Generalkonsulat der Schweiz in Mailand, das Schweizerische Kulturinstitut, die Schweizerische Handelskammer sowie Büros von Swiss Tourism und Swiss Radio and Television (SRF). Diese Institutionen machen das Gebäude zu einem Zentrum für kulturellen und wirtschaftlichen Austausch zwischen der Schweiz und Italien. Zudem ist das Centro Svizzero ein wichtiger Treffpunkt für Veranstaltungen, Konferenzen und kulturelle Programme, die die Beziehungen zwischen beiden Ländern stärken. Die Lage des Gebäudes ist ebenfalls vorteilhaft: Es liegt zentral und ist gut mit öffentlichen Verkehrsmitteln zu erreichen, insbesondere durch die nahegelegene U-Bahn-Station Turati, die eine schnelle Anbindung an andere Teile der Stadt bietet. Auch das historische Piazza Cavour, mit seinen eleganten Straßen und architektonischen Wahrzeichen, befindet sich nur wenige Schritte entfernt.

CENTRO SVIZZERO

PIAZZA CAVOUR 1949 – 1952

TEXTQUELLEN

https://en.wikipedia.org/wiki/Centro_Svizzero https://deu.archinform.net/projekte/11231.htm https://www.eda.admin.ch › swiss-business-hub-italy

BILDQUELLEN

https://www.tripadvisor.ch/Attraction_Review-g187849-d12429083-Reviews-Centro_Svizzero-Milan_Lombardy.html https://www.meetingecongressi.com/en/structure/milan/591/spazio_ eventi_-_centro_svizzero.htm

Kultureinrichtung

Kongressraum

Meetingraum

Modenshow Fassadendetail

MONUMENTO A SANDRO

PERTINI

ALDO ROSSI 1988 - 1990

KURZBESCHREIBUNG

Das Monumento a Sandro Pertini in Mailand, entworfen von Aldo Rossi, wurde am 1. Mai 1990 eingeweiht. Es besteht aus einem acht Meter hohen Kubus, der mit Candoglia-Marmor verkleidet ist – demselben Material wie der Mailänder Dom. Eine Treppe im Inneren führt zu einem Aussichtspunkt, während auf der Rückseite Wasser aus einer dreieckigen Bronzerahmenöffnung in ein Becken fließt. Das Denkmal, das sich zwischen Via Manzoni und Via dei Giardini befindet, wurde von der Stadt Mailand in Auftrag gegeben und von Metropolitana Milanese realisiert. Es ehrt Sandro Pertini, Italiens Präsident von 1978 bis 1985. Trotz anfänglicher Kontroversen wurde das Monument zu einem Treffpunkt und sozialen Ort. Seine kubische Form erinnert an ein nie realisiertes Denkmal des Widerstands von Rossi (1962 in Cuneo). Das Werk symbolisiert Rossis architektonische Bedeutung, die 1990 mit dem PritzkerPreis gewürdigt wurde. Heute ist es nicht nur ein Mahnmal, sondern auch ein lebendiger Ort des Austauschs in der Stadt.

https://www.mudec.it/2022/05/10/monumento-a-sandro-pertini/

Denkmal
Ansicht
Ansicht
Detail Schnitt

Via dell‘Annunciata 23/1

* CASA A VILLE SOVRAPPOSTE

LUIGI FIGINI UND GINO POLLINI 1932 – 1934

KURZBESCHREIBUNG

Die Casa a ville sovrapposte, entworfen von Luigi Figini und Gino Pollini in den Jahren 1933 bis 1934, ist ein herausragendes Beispiel moderner Architektur in Mailand. Das Gebäude befindet sich in der Via dell‘Annunciata 23/1, im historischen Zentrum der Stadt. Mit ihrer innovativen Struktur, bei der Wohneinheiten übereinander gestapelt sind, stellt die Casa a ville sovrapposte eine neue Herangehensweise an den städtischen Wohnbau dar. Das Konzept basiert auf der Idee, vertikale Ausdehnung zu nutzen, um mehrere Wohnungen auf begrenztem Raum zu integrieren, während gleichzeitig die Privatsphäre der Bewohner gewahrt bleibt. Ein bemerkenswertes Merkmal ist das Dachgeschoss, das eine großzügige Terrasse mit einem Becken und vielen Pflanzen umfasst. Diese grüne Oase bietet nicht nur einen Rückzugsort, sondern fördert auch die Integration von Natur in den urbanen Raum. Das Gebäude zeichnet sich durch klare Linien und funktionale Geometrie aus, typische Merkmale der modernen Architektur. Große Fenster und offene Räume schaffen ein angenehmes Wohnklima und verstärken die Verbindung zwischen Innen- und Außenbereich. Die Casa a ville sovrapposte ist ein ikonisches Beispiel für die Verschmelzung von funktionalem Wohnbau und ästhetischer Raffinesse. Mit ihrer durchdachten Gestaltung und den innovativen Ideen von Figini und Pollini war das Gebäude ein bedeutender Schritt in der Entwicklung des modernen Wohnens in Mailand und bleibt bis heute ein wichtiges architektonisches Erbe.

TEXTQUELLEN

https://www.lombardiabeniculturali.it/architetture/schede/3m080-00098/ https://www.proz.com/kudoz/italian-to-english/architecture/6102893-casa-a-ville-sovrapposte.html

BILDQUELLEN

https://www.astrattecomo.it/en/territory/casa-cattaneo-and-alchieri/ https://ordinearchitetti.mi.it/en/cultura/itinerari-di-architettura/42-figinie-pollini/opere/315-casa-a-ville-sovrapposte/galleria https://accademiasanluca.it/collezioni/opere/casa-a-ville-sovrapposte-invia-barnaba-oriani-roma

Wohngebäude

Eingangsbereich

Fassadendetail

Grundriss
Schnitt

Die Casa del Cedro, entworfen von Giulio Minoletti und erbaut zwischen 1952 und 1957, gilt als herausragendes Beispiel moderner Architektur in Mailand. Sie befindet sich an der Ecke der Via Fatebenefratelli und Via Cernaia, nahe der Kirche San Marco. Minoletti, ein bedeutender Vertreter der modernen Architektur Italiens, schuf ein Gebäude, das Wohn- und Arbeitsräume vereint, um die wachsenden Bedürfnisse urbaner Räume zu erfüllen. Das Gebäude besteht aus zwei Volumina, die durch einen zentralen Innenhof getrennt sind, was für ausgezeichnete Belichtung und Belüftung sorgt. Die Fassade des Wohntrakts ist mit Granitello di Montorfano verkleidet, der Bürotrakt mit Ceppo Gentile Grigio, was den modernen Charakter unterstreicht. Im Inneren findet man hochwertige Materialien wie Lasa-Marmor auf den Böden und satinierte Walnussverkleidung an den Wänden. Besonders hervorzuheben sind die von Antonia Tomasini gestalteten Decken mit abstrakten geometrischen Mustern. Die Casa del Cedro vereint fortschrittliche Architektur der 1950er Jahre, moderne Materialien und ein funktionales Design. Ihre gemischte Nutzung von Wohn- und Büroflächen war eine innovative Antwort auf die Bedürfnisse urbaner Räume. Minoletti schuf ein Gebäude, das nicht nur funktional, sondern auch ästhetisch ansprechend ist und einen wichtigen Beitrag zur Architekturgeschichte Mailands leistet.

CASE DEL CEDRO

GIULIO MINOLETTI 1951 – 1957

Wohn- und Bürogebäude

TEXTQUELLEN

https://ordinearchitetti.mi.it/en/cultura/itinerari-di-architettura/35-giuliominoletti-e-milano/opere/327-casa-del-cedro https://www.designhotels.com/culture/destinations/a-modernist-guideto-milan/ https://ordinearchitetti.mi.it/en/cultura/itinerari-di-architettura/35-giuliominoletti-e-milano/opere/327-casa-del-cedro

BILDQUELLEN

https://ordinearchitetti.mi.it/en/cultura/itinerari-di-architettura/35-giuliominoletti-e-milano/opere/327-casa-del-cedro/galleriahttps://de.pinterest. com/pin/553661347927020758/ https://divisare.com/projects/299872-cn10architetti-giulio-minoletti-casadel-cedro#lg=1&slide=5 https://ordinearchitetti.mi.it/en/cultura/itinerari-di-architettura/35-giuliominoletti-e-milano/opere/327-casa-del-cedro/galleria

Innenraum
Innenraum
Innenraum Fassadendetail

KURZBESCHREIBUNG

Im Herzen des Mailänder Brera-Viertels, an der Ecke der Via Cernaia 9 und der Via Goito 11, erhebt sich ein Wohngebäude, das durch seine markante architektonische Gestaltung besticht. Entworfen im Jahr 1951 von dem Architekten Gianni Petrini, präsentiert sich das Bauwerk als harmonisches Zusammenspiel von Massivität und Leichtigkeit. Eine hohe, monolithische Wand kontrastiert mit auskragenden Balkonen, die dem Gebäude eine skulpturale Qualität verleihen und den Wohnräumen Offenheit und Großzügigkeit bieten. Die Immobilie liegt in einer der begehrtesten Gegenden Mailands, nur wenige Schritte entfernt von kulturellen Institutionen, gehobenen Boutiquen und belebten Cafés. Die ausgezeichnete Anbindung an das öffentliche Verkehrsnetz – darunter die U-Bahn-Station Turati (Linie M3) – macht die Lage besonders attraktiv. Zudem befinden sich zahlreiche Dienstleistungen wie Schulen, Bibliotheken und Supermärkte in unmittelbarer Umgebung, was das Gebäude sowohl für Familien als auch für Berufstätige zu einer idealen Wohnadresse macht. In den Jahren 2018 und 2021 wurde das Gebäude umfassend renoviert, wobei besonderes Augenmerk auf eine moderne Neugestaltung der Innenräume gelegt wurde. Hochwertige Materialien, eine durchdachte Lichtführung und elegante Details prägen heute das Erscheinungsbild der Wohnbereiche. Trotz der Modernisierung blieb der ursprüngliche Charakter des Bauwerks erhalten, sodass sich historische Baukunst und zeitgenössisches Design zu einer stilvollen Einheit verbinden. Mit seiner spannungsreichen Fassadengestaltung, der privilegierten Lage und der gelungenen Mischung aus Tradition und Innovation stellt das Gebäude an der Via Cernaia 9 / Via Goito 11 ein eindrucksvolles Beispiel für Mailänder Wohnarchitektur der Nachkriegszeit dar.

CONDOMINIO

GIANNI PATRINI 1932 – 1934

Wohngebäude

TEXTQUELLEN

https://chatgpt.com/

BILDQUELLEN

https://it.pinterest.com/pin/594404850849933806/visual-search/?x=6&y=8&w=438&h=362&cropSource=9&surfaceType=flashlight&full_feed_title=Kunstwerke&rs=deep_linking https://blog.urbanfile.org/2014/07/18/zona-san-marco-via-cernaia-9-eleganza-anni-cinquanta/2014-04-05-cernaia-9-16/#main

Außenansicht Balkone

Außenansicht

Außenansicht Erdgeschoss

Straßenansicht

KURZBESCHREIBUNG

Das Wohngebäude an der Piazza Mirabello 1 in Mailand, entworfen und realisiert zwischen 1964 und 1968 von Jan Andrea Battistoni, verkörpert die architektonische Experimentierfreude der 1960er Jahre und ist ein herausragendes Beispiel für die moderne Mailänder Architektur. Das Gebäude fügt sich harmonisch in das urbane Umfeld ein, setzt jedoch durch seine klare Formensprache und innovativen gestalterischen Elemente einen markanten Akzent.

Die Architektur ist geprägt von einer stark horizontal betonten Fassade, die durch weit auskragende Gesimse gegliedert wird. Diese Gesimse verleihen dem Gebäude nicht nur eine dynamische Wirkung, sondern dienen auch als konstruktives Element des Sonnenschutzes. Besonders auffällig sind die großflächigen Holzfensterläden, die sich flexibel öffnen und schließen lassen. Sie schaffen eine variable Fassadengestaltung, die je nach Tageszeit und Nutzung der dahinterliegenden Räume verändert werden kann. Dieses Element spielt nicht nur eine ästhetische, sondern auch eine funktionale Rolle, indem es das Innenraumklima reguliert und den Bewohnern ein hohes Maß an Privatsphäre ermöglicht.

Das Materialkonzept folgt den Prinzipien der modernen Architektur dieser Zeit. Die Kombination aus Sichtbeton, Glas und Holz erzeugt einen spannungsvollen Kontrast zwischen industrieller Strenge und natürlicher Wärme. Die großzügigen Fensterflächen sorgen für eine starke Verbindung zwischen Innen- und Außenraum und lassen viel Tageslicht in die Wohnräume strömen. Dies unterstreicht das damalige architektonische Bestreben, eine offene und lichte Wohnatmosphäre zu schaffen.

Das Gebäude ist nicht nur ein ästhetisch überzeugendes Bauwerk, sondern auch ein Beispiel für funktionale Stadtarchitektur, die den Bedürfnissen des modernen Wohnens gerecht wird. Die durchdachte Erschließung, die optimierte Raumnutzung und die Integration von architektonischen Elementen zur Klimaregulierung zeigen, dass Battistoni großen Wert auf eine nachhaltige und nutzerorientierte Gestaltung legte.

CONDOMINIO

JAN ANDREA BATTISTONI 1964 – 1968

Wohngebäude

TEXTQUELLEN

https://www.lombardiabeniculturali.it/architetture900/schede/RL56000052/

BILDQUELLEN

https://partnership.ilgiornaledellarchitettura.com/2019/08/09/ledificio-dipiazza-mirabello-e-il-paradosso-di-milano/ https://www.wearch.eu/tuteliamo-ledificio-progettato-da-jan-andrea-battistoni-a-milano/

Piazza Carlo Mirabello 2

Grundriss

Seitenansicht

Fassadendetail
Fassadendetail

KURZBESCHREIBUNG

Das Edificio Polifunzionale an der Piazza San Marco in Mailand wurde zwischen 1969 und 1971 von dem Architekten Vico Magistretti entworfen. Dieses Gebäude ist ein typisches Beispiel für die multifunktionale Architektur der damaligen Zeit und spiegelt die modernen urbanistischen Konzepte wider. Es vereint verschiedene Nutzungen wie Wohnen, Büroflächen und Einzelhandel unter einem Dach und trägt somit zur Belebung des städtischen Raums bei. Die Architektur des Gebäudes zeichnet sich durch eine klare, funktionale Gestaltung aus, die die Bedürfnisse einer sich schnell entwickelnden Stadt widerspiegelt. Die Fassaden sind in einem rationalen, geometrischen Stil gehalten, der den Bau zu einem markanten Bestandteil des Mailänder Stadtbildes macht. Besonders auffällig sind die Fensterflächen, die großzügig verglast sind und für eine helle, luftige Atmosphäre in den Innenräumen sorgen. Die multifunktionale Nutzung des Edificio Polifunzionale ermöglicht es, die verschiedenen Bereiche des Gebäudes flexibel und effizient zu gestalten, was es zu einem nachhaltigen Teil des städtischen Gefüges macht. Die harmonische Integration von Wohn-, Büro- und Einzelhandelsräumen zeigt, wie moderne Architektur nicht nur ästhetische, sondern auch praktische Anforderungen erfüllen kann.

Insgesamt ist das Edificio Polifunzionale an der Piazza San Marco ein wichtiges Beispiel für die Architektur der späten 1960er und frühen 1970er Jahre in Mailand und steht für die fortschrittliche Haltung der Stadt gegenüber urbaner Entwicklung und multifunktionalem Bau.

* EDIFICIO POLIFUNZIONALE

TEXTQUELLEN

https://www.lombardiabeniculturali.it/architetture900/schede/RL56000052/ https://www.wearch.eu/tuteliamo-ledificio-progettato-da-jan-andrea-battistoni-a-milano/

BILDQUELLEN

https://ordinearchitetti.mi.it/it/cultura/itinerari-di-architettura/22-vico-magistretti/opere/533-edificio-polifunzionale-in-piazza-san-marco/ galleria

Piazza San Marco
VICO MAGISTRETTI 1969
Multifunktional

Grundriss

Seitenansicht

Fassadendetail
Fassadendetail

KURZBESCHREIBUNG

Die Casa Tognella in Mailand ist ein faszinierendes Beispiel für moderne Architektur, das sich durch seine schlichte Eleganz und seine durchdachte Raumaufteilung auszeichnet. Das Gebäude wurde von dem Architekten Piero Bottoni in den 1950er Jahren entworfen und steht als Meisterwerk des Rationalismus in Italien. Es wurde speziell für die Familie Tognella als private Residenz konzipiert und kombiniert funktionale Gestaltung mit ästhetischen Aspekten.

Die Architektur der Casa Tognella folgt den Prinzipien des Rationalismus, einer Strömung der Moderne, die sich durch klare Linien, geometrische Formen und eine zurückhaltende, aber präzise Gestaltung auszeichnet. Die Fassade des Gebäudes besteht aus einer Kombination von Beton und Glas, was eine helle und offene Atmosphäre im Inneren schafft. Große Fensterflächen sorgen für einen fließenden Übergang zwischen Innen- und Außenraum und maximieren das natürliche Licht.

Die Gestaltung der Casa Tognella legt großen Wert auf Flexibilität und Funktionalität. Die Räume sind so organisiert, dass sie einerseits private Rückzugsorte bieten, andererseits aber auch eine klare Verbindung zum urbanen Umfeld ermöglichen. Der offene Grundriss der Räume fördert eine fließende Bewegung innerhalb des Hauses, was den architektonischen Ansatz des Gebäudes unterstreicht.

Ein weiteres bemerkenswertes Merkmal der Casa Tognella ist die Verwendung innovativer Materialien und technischer Details, die typisch für die Zeit sind. So wurden nicht nur ästhetische Prinzipien umgesetzt, sondern auch funktionale Lösungen, die den Komfort und die Lebensqualität der Bewohner steigern. Das Gebäude spiegelt somit nicht nur die Ideale der Moderne wider, sondern auch den Wunsch nach einer besseren Lebensweise. Die Casa Tognella ist heute ein herausragendes Beispiel für den Rationalismus in der italienischen Architektur und steht als Symbol für die Bestrebungen der Nachkriegszeit, eine neue, funktionale und zugleich ästhetisch anspruchsvolle Architektur zu schaffen.

* CASA TOGNELLA

IGNAZIO GARDELLA 1947 – 1953

TEXTQUELLEN

https://www.lombardiabeniculturali.it/architetture900/schede/p401000508/ https://www.domusweb.it/en/from-the-archive/2011/01/18/casa-al-parcomilano-1947-54.html

BILDQUELLEN

https://aplust.net/blog/ignazio_gardella_casa_al_parco_casa_tognella_milan_/ https://costruttoridifuturo.com/wp-content/uploads/2014/06/p6170025. jpg

private Residenz
Grundriss
Innenhof
Fassadendetail Innenraum

IULM_MILAN

KURZBESCHREIBUNG

Die IULM (Libera Università di Lingue e Comunicazione) ist eine private Universität in Mailand, die sich auf Sprachund Kommunikationswissenschaften spezialisiert hat. Sie befindet sich in der Via Carlo Bo 1 und wurde 1968 gegründet. Die Universität bietet eine Vielzahl von Studiengängen in den Bereichen Kommunikation, Fremdsprachen, Kulturmanagement und Medien an. Besonders hervorzuheben ist die praxisorientierte Ausbildung, die enge Verbindungen zu Unternehmen und Institutionen im Bereich der Kommunikation und Medienpflege fördert.

IULM zeichnet sich durch eine moderne Ausstattung und ein innovatives Konzept aus, das interdisziplinäres Lernen und internationale Vernetzung unterstützt. Die Universität hat auch einen starken Fokus auf Forschung, insbesondere in den Bereichen Medienwissenschaften, Kultur und Unternehmenskommunikation. Der Campus bietet Studierenden eine angenehme und dynamische Lernumgebung mit modernen Laboren und umfangreichen Ressourcen für praktische Anwendungen. Zudem bietet die Universität Austauschprogramme mit vielen internationalen Partnerhochschulen an.

TEXTQUELLEN https://www.iulm.it/en/home

BILDQUELLEN

(1) (2) (3) (4) (5) https://www.archdaily.com/527312/iulm-milan5-1aa/53c38330c07a80aa890000c8-iulm_milan-5-1aa-section?next_project=no

ALFONSO FEMIA, GIANLUCA PELUFFO, ALESSANDRO SCHIESARO 2014
Universität

Fassade und Treppenführung

Grundriss

Innenraum

Schnitt

KURZBESCHREIBUNG

Die Fondazione Prada in Mailand ist ein bedeutendes Kulturzentrum, das sich der Präsentation zeitgenössischer Kunst und Architektur widmet. Sie befindet sich in der Largo Isarco 2 auf dem Gelände einer ehemaligen Spirituosendestillerie aus dem Jahr 1910. Auf einer Fläche von etwa 18.900 Quadratmetern wurde der Komplex von den Architekten Rem Koolhaas und Chris van Duijn vom Büro OMA umgestaltet. Das Projekt kombiniert historische Industriearchitektur mit modernen, innovativen Erweiterungen und schafft so einen einzigartigen Raum für Kunst und kulturelle Veranstaltungen. Die Eröffnung der Ausstellungsräume fand im April 2018 statt, und die Fondazione Prada bietet seitdem einen vielfältigen Programmschwerpunkt, der zeitgenössische Kunst, Architektur, Film und Performance umfasst. Die Fondazione Prada hat sich schnell zu einem internationalen Zentrum für Kunst und Kultur entwickelt und zieht sowohl Kunstliebhaber als auch Touristen an. Der Komplex ist ein Paradebeispiel für die gelungene Umnutzung von Industriegebäuden zu modernen, multifunktionalen Kunst- und Kulturzentren.

* FONDAZIONE PRADA

OMA & REM KOOLHAAS

2008 - 2018

TEXTQUELLEN

https://www.fondazioneprada.org/ https://www.architecturaldigest.com/story/fondazione-prada-milan

BILDQUELLEN

(1) (2) (3) (4) (5) https://www.archdaily.com/628472/fondazione-pradaoma

Kulturzentrum

Detail Decke Grundriss EG

Außenraum
Goldene Fassade

KURZBESCHREIBUNG

Das Edificio al Gallaratese ist ein markantes Beispiel moderner Architektur in Mailand. Der Gebäudekomplex wurde von den bekannten Architekten Aldo Rossi und Carlo Aymonino entworfen und ist Teil des größeren Monte Amiata-Wohnprojekts, das zwischen 1967 und 1972 realisiert wurde. Der Entwurf des Gebäudes reflektiert den Einfluss der rationalistischen Architektur und ist besonders für seine klaren, geometrischen Formen sowie die Verwendung von kräftigen, monochromen Farben bekannt. Die rote Fassadenverkleidung und die modularen Strukturen des Gebäudes stehen im Einklang mit der urbanen Umgebung und setzen ein starkes architektonisches Zeichen in diesem Mailänder Stadtteil.

Der Edificio al Gallaratese ist ein Paradebeispiel für die Architektur der späten 1960er und frühen 1970er Jahre, die sowohl funktionale als auch ästhetische Ansprüche vereinte und die urbane Landschaft Mailands nachhaltig prägte. Der Komplex bleibt bis heute eine bemerkenswerte Referenz für die städtische Architektur und Designphilosophiedieser Ära.

EDIFICIO AL GALLARATESE

1967 - 1972

Wohngebäude

TEXTQUELLEN

https://www.architecturaldigest.com/ https://architecture-tour.com/

BILDQUELLEN

(1) (2) (3) https://ordinearchitetti.mi.it/it/cultura/itinerari-di-architettura/48-aldo-rossi-e-milano/opere/1874-edificio-residenziale-al-quartieregallaratese/galleria#

(4) https://images.adsttc.com/media/images/58c7/738f/e58e/ cef6/0700/0115/large_jpg/20.jpg?1489466231

(5) https://i0.wp.com/archeyes.com/wp-content/uploads/2024/08/FloorPlan-2-Gallaratese-Housing-Complex-by-Aldo-Rossi-and-Carlo-Aymonino. jpg?ssl=1

ALDO ROSSI & CARLO AYMONINO

Innenhof des Gebäudekomplex

Innenansicht des Portikus

Grundriss Gebäudekomplex

Septa-Säulen

1 Convento di S Angelo (mit Führung)

Casa Albergo

Palazzo di Giustizia

Excelsior * 5 Palazzo della Societa reale mutua di Assicurazioni

DGallerie d Italia 7 Viktor - Emanuel - Passage * 8 Condominio XXI Aprile

Casa Caccia Dominioni

Condominio

Design Week - Installationen in der Stadt Fuorisalone jeder bewegt sich selbständig

START

UHRZEIT

ENDE

UHRZEIT

Convento di S Angelo (mit Führung)

Corso di Porta Nuova 2 09.00

1

Installationen in der Stadt Fuorisalone jeder bewegt sich selbstständig

ca 18.00

* CONVENTO DI SANT´ANGELO

GIOVANNI MUZIO 1939 – 1942

KURZBESCHREIBUNG

Das Convento di Sant‘Angelo in Mailand ist ein bemerkenswertes Beispiel lombardischer Barockarchitektur und ein bedeutendes religiöses Zentrum der Stadt. Es befindet sich an der Piazza Sant‘Angelo und besteht aus der Kirche Sant‘Angelo sowie dem von Giovanni Muzio im 20. Jahrhundert entworfenen Kloster. Geschichte und Architektur:Die Ursprünge der Kirche reichen bis ins 16. Jahrhundert zurück. Der Grundstein wurde am 21. Februar 1552 gelegt, und die Kirche wurde von Domenico Giunti im Auftrag des spanischen Generals Ferrante Gonzaga erbaut. Im Jahr 1607 wurde der kleine Glockenturm hinzugefügt, und die Fassade wurde 1630 im spätmanieristischen oder frühbarocken Stil vollendet. Die Kirche zeichnet sich durch ein einschiffiges Langhaus mit Seitenkapellen, einem Querhaus und einem tiefen Presbyterium aus. Zu den Kunstwerken gehören Werke von Gaudenzio Ferrari, Antonio Campi, Morazzone und anderen.

Im 20. Jahrhundert entwarf der Architekt Giovanni Muzio das angrenzende Kloster. Das Gebäude besteht vollständig aus Ziegelmauerwerk und präsentiert eine geschlossene Fassade mit einem strengen Ziegelformat. Muzio integrierte klassische Formen auf freie Weise, ähnlich wie bei seinem Entwurf der Ca‘ Brutta. Das Kloster bildet zusammen mit der Kirche einen harmonischen Komplex, der um einen Innenhof mit einem bestehenden Kreuzgang angeordnet ist. Nutzung und Bedeutung: Das Convento di Sant‘Angelo dient als Sitz der Franziskaner des Ordens der Minderen Brüder. Es ist ein aktives religiöses Zentrum und beherbergt neben der Kirche und dem Kloster auch ein kulturelles Zentrum. Die Anlage ist ein herausragendes Beispiel für die lombardische Barockarchitektur und spiegelt die religiöse und kulturelle Geschichte Mailands wider. Besucher können die Kirche und das Kloster besichtigen und die künstlerische Schönheit sowie die historische Bedeutung dieses Ortes erleben. Die harmonische Verbindung von Architektur und Kunst macht das Convento di Sant‘Angelo zu einem wichtigen Bestandteil des kulturellen Erbes Mailands.

TEXTQUELLEN

https://de.wikipedia.org/wiki/Kloster_Sant%E2%80%99Angelo_in_Frigido https://hvdha.com/en/santangelo/ https://www.flickr.com/photos/jschiemann/26202958597

BILDQUELLEN

https://www.chiesadimilano.it/news/chiesa-diocesi/santangelo-chiude-ilconvento-non-la-chiesa-2505113.html https://de.pinterest.com/pin/553661347927020758/ http://www.milanofotografo.it/germanSvagoCulturaDettagliBellezzeMilano.aspx?ID=36 https://hvdha.com/en/sant-angelo/

Piazza Sant‘Angelo 2
religiöses Zentrum
Grundriss
Schnitt
Innenraum Fassadendetail

KURZBESCHREIBUNG

Die Casa Albergo in der Via Filippo Corridoni 22 in Mailand wurde zwischen 1947 und 1950 von Luigi Moretti entworfen. Das 14-geschossige Gebäude war als Wohnhotel für alleinstehende Berufstätige konzipiert und kombinierte private Apartments mit gemeinschaftlichen Dienstleistungen wie Reinigung und Verpflegung – eine damals innovative Wohnform für die sich wandelnde Gesellschaft der Nachkriegszeit.

Architektonisch besticht das Gebäude durch eine klare, reduzierte Formensprache. Die Hauptfassaden sind durch gleichmäßige Fensterreihen gegliedert, während die Seitenfassaden glatt bleiben. Ein vertikaler Einschnitt an den Seiten markiert die zentrale Erschließung und bringt zusätzliches Licht in die Korridore. Moretti gelingt es, Funktionalität mit einer subtilen, aber wirkungsvollen Gestaltung zu verbinden.

Die Materialwahl ist schlicht und betont die formale Strenge: Glatter Putz, kontrastierende Fensterrahmen und eine präzise Detaillierung lassen das Gebäude elegant und zeitlos wirken. Der Entwurf zeigt Morettis Fähigkeit, mit Licht, Proportionen und Durchbrüchen zu arbeiten, um trotz einfacher Mittel eine besondere räumliche Qualität zu erzeugen.

Heute dient die Casa Albergo weiterhin als Wohnhaus und bleibt ein wichtiges Beispiel der modernen Architektur Mailands, das die Entwicklung neuer Wohnformen in der Nachkriegszeit widerspiegelt.

CASA ALBERGO

TEXTQUELLEN

https://architectuul.com/architecture/casa-albergo-di-via-corridoni https://www.lombardiabeniculturali.it/architetture900/schede/p401000183/

BILDQUELLEN

https://www.lombardiabeniculturali.it/architetture900/schede/p401000183/ https://architectuul.com/architecture/casa-albergo-di-via-corridoni/media/591b0425-d2bc-4c49-b35d-54a86d7b5e1b

Wohnhaus
Via Filippo Corridoni 22
LUIGI MORETTI 1947 - 1950

Außenansicht

Außenansicht

Außenansicht

Model Innenraum

KURZBESCHREIBUNG

Der Palazzo di Giustizia in Mailand, auch als Justizpalast bekannt, ist ein beeindruckendes Beispiel für die Architektur des Neoklassizismus in Italien. Er wurde zwischen 1911 und 1940 erbaut und befindet sich im Zentrum der Stadt, in der Nähe des Piazza San Babila. Der Bau des Palastes wurde von dem Architekten Piero Portaluppi geleitet, einem bedeutenden Vertreter der modernen italienischen Architektur.

Der Palazzo di Giustizia stellt eine Mischung aus neoklassischen und modernen Elementen dar. Die Fassade des Gebäudes ist durch eine monumentale Eingangszone geprägt, die von großen Säulen und Bogenöffnungen dominiert wird. Diese klassische Gestaltung soll den symbolischen Charakter der Justiz unterstreichen und vermittelt gleichzeitig Stabilität und Autorität. Der Hauptbaukörper ist mit geschwungenen Linien und großen Fensteröffnungen versehen, was den Raum im Inneren großzügig belichtet und für eine klare Struktur sorgt.

Die Innenräume des Palastes sind ebenso prächtig und funktional gestaltet. Der zentrale Raum, ein großer Innenhof, wird von mehreren Flügeln umgeben, in denen sich die verschiedenen Gerichtssäle und Büros befinden. Die Kuppel des Gebäudes ist ein weiteres architektonisches Highlight und sorgt für zusätzliche Lichtdurchflutung. Die Materialien, die für den Bau verwendet wurden, umfassen marmorierte Wände, Eichenholz und Mosaike, die dem Gebäude eine edle, aber dennoch funktionale Atmosphäre verleihen.

Der Palazzo di Giustizia ist nicht nur ein bedeutendes Wahrzeichen in Mailand, sondern auch ein symbolischer Ort für die italienische Justiz. Die Architektur wurde sorgfältig ausgewählt, um Recht und Ordnung darzustellen und das Vertrauen der Bevölkerung in das Rechtssystem zu stärken. Mit seiner imposanten Erscheinung und der zentralen Lage stellt der Palast einen wichtigen Bestandteil der Mailänder Stadtlandschaft dar.

PALAZZO DI GIOSTIZIA

MARCELLO PIACENTINI 1932 - 1940

TEXTQUELLEN

https://www.lombardiabeniculturali.it/architetture/schede/3m080-00054/ https://de.wikipedia.org/wiki/Justizpalast_Mailand#:~:text=Der%20Justizpalast%20Mailand%20(italienisch%20Palazzo,im%20historischen%20 Zentrum%20von%20Mailand.

BILDQUELLEN

https://www.lombardiabeniculturali.it/architetture/schede/3m080-00054/ https://www.arkitectureonweb.com/it/-/progetti/palazzo-di-giustizia-amilano-aluvetro

Via Freguglia 1

Grundriss

Außenansicht

Model Innenraum

Schnitt

KURZBESCHREIBUNG

Das Excelsior Hotel in Mailand, entworfen von dem renommierten Architekten Jean Nouvel, wurde 2011 fertiggestellt und gilt als ein herausragendes Beispiel für moderne Architektur, die historische Elemente auf innovative Weise in die Gegenwart übersetzt. Das Gebäude liegt im Herzen von Mailand und verbindet auf meisterhafte Weise künstlerische Exzellenz mit funktionaler Eleganz. Es bietet eine Mischung aus Luxuswohnungen, einem Fünf-Sterne-Hotel und exklusiven Einkaufsbereichen. Die Fassade des Excelsior Hotels ist durch eine besondere Verwendung von Glas und reflektierenden Oberflächen geprägt, was nicht nur eine markante visuelle Wirkung erzielt, sondern auch das umgebende Stadtbild mit einbezieht. Die schwarze Glasfassade verleiht dem Gebäude eine edle und zugleich futuristische Erscheinung, die im Kontrast zu den traditionellen Gebäuden in der Umgebung steht.

Im Inneren setzt sich Nouvels Vision von Transparenz und Licht fort. Die Räume sind weitläufig und bieten großzügige Ausblicke auf die Stadt, wobei die Verwendung von hochwertigen Materialien wie Marmor, Holz und Metall eine luxuriöse Atmosphäre schafft. Der Designansatz fördert eine intensive Verbindung von Innen- und Außenraum, wodurch das Hotel eine Art von Offenheit und Modernität ausstrahlt. Nouvel integrierte die Architektur in einen Kontext der Veränderung und Weiterentwicklung, indem er die Geschichte der Stadt respektierte und gleichzeitig einen Beitrag zur städtischen Erneuerung leistete. Mit seinem markanten Design und seiner vielseitigen Nutzung stellt das Excelsior Hotel ein bedeutendes Wahrzeichen der zeitgenössischen Architektur in Mailand dar und wurde für seine künstlerische und funktionale Perfektion mehrfach ausgezeichnet.

TEXTQUELLEN

https://www.wallpaper.com/architecture/the-excelsior-in-milan-by-jeannouvel

BILDQUELLEN

https://blog.urbanfile.org/2011/09/08/milano-zona-san-babila-coin-excelsior-firmato-da-jean-nouvel/2011-09-06-urbanfile-milano-san-babila-coin-excelsior-jean-nouvel-2/ # https://retaildesignblog.net/2011/09/15/excelsior-milano-concept-storeby-jean-nouvel-milan/

JEAN NOUVELL 2011 Hotel
Galleria del Corso, 3
Außenansicht
Außenansicht
Innennsicht
Innenansicht

PALAZZO DELLA SOCIETÀ REALE MUTUA DI ASSICURAZIONI

EUGENIO & ERMENEGILDO SONCINI 1943

KURZBESCHREIBUNG

Der Palazzo della Società Reale Mutua di Assicurazioni befindet sich an der Piazza del Liberty in Mailand. Er wurde Ende des 19. Jahrhunderts erbaut und ursprünglich von der Versicherungsgesellschaft Società Reale Mutua di Assicurazioni genutzt. Der architektonische Stil des Gebäudes ist vom neoklassizistischen Design geprägt und vereint Elemente von Eleganz und Funktionalität.

Im Inneren des Palazzos finden sich großzügige Hallen und Säle, die als Büros und Versammlungsräume für die Versicherungsgesellschaft dienten.

Die Fassade des Palazzos ist mit feinen Verzierungen und eleganten Details ausgestattet, die zu den herausragenden Merkmalen des Gebäudes zählen. Das Gebäude selbst ist ein typisches Beispiel für die Architektur des späten 19. Jahrhunderts und spiegelt den wirtschaftlichen Aufschwungder Zeit wider.

Im Laufe der Jahre hat der Palazzo verschiedene kommerzielle Funktionen übernommen, bleibt jedoch ein bedeutendes kulturelles und architektonisches Wahrzeichen in Mailand.

TEXTQUELLEN

https://mindtrip.ai/attraction/milan-lombardy/palazzo-della-societa-realemutua-di-assicurazioni/at-bVxk3v83 https://www.tripadvisor.com/Attraction_Review-g187849-d12183429-Reviews-Palazzo_della_Societa_Reale_Mutua_di_Assicurazioni-Milan_Lombardy.html

BILDQUELLEN

(1) https://upload.wikimedia.org/wikipedia/commons/0/04/Milano_-_edificio_piazza_del_Liberty_8.jpg

(2) (3) https://www.tripadvisor.com/Attraction_Review-g187849-d12183429-Reviews-Palazzo_della_Societa_Reale_Mutua_di_Assicurazioni-Milan_Lombardy.html

(4) https://it.wikipedia.org/wiki/Teatro_Trianon_(Milano)#/media/File:Palazzo_della_Societ%C3%A0_Reale_Mutua_di_Assicurazioni,_Piazza_del_ Liberty,_Milano_(30786599826).jpg

(5) https://milano.repubblica.it/images/2014/05/02/142938010477ec759-6171-4f91-9a93-0bdd2ea11092.jpg

Hybrides Bürogebäude
Fassade
Fassadendetail
Fassadendetail
Piazza del Liberty

GALLERIE D‘ ITALIA

MICHELE DE LUCCHI 2011

KURZBESCHREIBUNG

Die Gallerie d‘Italia an der Piazza della Scala 6 in Mailand ist ein renommiertes Kunstmuseum, das in drei historischen Palästen untergebracht ist: dem Palazzo Anguissola, dem Palazzo Brentani und der ehemaligen Zentrale der Banca Commerciale Italiana (Palazzo Beltrami).

Das Museum präsentiert eine umfangreiche Sammlung italienischer Kunst vom 19. bis zum 20. Jahrhundert, mit besonderem Fokus auf Werke lombardischer Künstler. Zu den ausgestellten Künstlern zählen unter anderem Antonio Canova und Umberto Boccioni.

Die Gallerie d‘Italia bietet neben Dauerausstellungen auch wechselnde Sonderausstellungen und kulturelle Veranstaltungen an. Ein besonderes Highlight ist der öffentlich zugängliche Garten von Alessandro Manzoni, der seit Oktober 2015 zwischen der Casa del Manzoni und dem Palazzo Anguissola geöffnet ist.

TEXTQUELLEN www.gallerieditalia.com

BILDQUELLEN

(1) (2) (4) (5) https://gallerieditalia.com/en/milan/museum/ (3) https://www.milanodavedere.it/wp-content/uploads/2018/03/palazzobrentani-1200x675.jpg

Piazza della Scala 6
Kunstmuseum
Palazzo Anguissola
Palazzo Brentani
Palazzo Beltrami
Der Garten von Alessandro Manzoni

* VIKTOR - EMANUEL - PASSAGE

GIUSEPPE MENGONI 1867 - 1878

KURZBESCHREIBUNG

Die Galleria Vittorio Emanuele II in Mailand ist die älteste aktive Einkaufspassage Italiens und ein bedeutendes architektonisches Wahrzeichen der Stadt. Benannt nach dem ersten König des vereinten Italiens, Victor Emanuel II., wurde sie zwischen 1867 und 1878 nach den Plänen des Architekten Giuseppe Mengoni errichtet.

Die Passage verbindet die Piazza del Duomo mit der Piazza della Scala und besteht aus zwei glasüberdachten Arkaden, die sich in einem achteckigen Zentralraum kreuzen. Das beeindruckende Glas- und Eisendach sowie die prächtigen Mosaikböden machen die Galleria zu einem Meisterwerk des 19. Jahrhunderts.

Heute beherbergt die Galleria zahlreiche Luxusgeschäfte, Restaurants und Cafés und wird oft als „Mailands Wohnzimmer“ bezeichnet, da sie sowohl bei Einheimischen als auch bei Touristen ein beliebter Treffpunkt ist.

TEXTQUELLEN

https://www.in-lombardia.it/en/tourism-in-lombardy/tourism-milan/monuments-milan/vittorio-emanuele-gallery

BILDQUELLEN

(1) https://upload.wikimedia.org/wikipedia/commons/d/d4/Galerie_Viktor_Emanuel_Mailand.jpg

(2) https://mailandtipps.de/galleria_vittorio_emanuele.html

(3) https://m.media-amazon.com/images/I/91i2XCVzk8L._AC_ UF894,1000_QL80_.jpg

(4) https://i.pinimg.com/736x/dd/f2/29/ddf22942f30734a0f32129666b5 6d01c.jpg

Piazza del Duomo
Einkaufspassage
Innenraum
Detail Glaskuppel Grundriss

KURZBESCHREIBUNG

Der Condominio XXI Aprile in Mailand, entworfen von Mario Asnago und Claudio Vender, wurde zwischen 1950 und 1953 erbaut.

Das Gebäude in der Via Lanzone 4 kombiniert Büro- und Wohnräume und zeichnet sich durch seine moderne Architektur aus. Die Fassade des unteren Trakts besteht aus weißen Perlino-Marmorplatten, während die oberen Wohnbereiche durch große Fensterbänder geprägt sind.

Besonders innovativ war die technische Ausstattung mit Schallschutz, individuell steuerbarer Klimatisierung und einer Tiefgarage mit eigener Tankstelle. Zudem verfügte das Gebäude über ein fortschrittliches Heiz- und Kühlsystem mit Strahlungsplatten sowie eine zentrale Neonbeleuchtung. Der Bau gilt als herausragendes Beispiel für die moderne Architektur der 1950er Jahre und setzt neue Maßstäbe im Wohnungsbau.

CONDOMINIO XXI APRILE

ASNAGO UND CLAUDIO VENDER 1950 – 1953

TEXTQUELLEN

https://atlantearchitetturacontemporanea.cultura.gov.it/en/1448-2/ https://www.lombardiabeniculturali.it/architetture900/schede/p401000188/

BILDQUELLEN

(1) https://oami.s3.eu-south-1.amazonaws.com/legacy/cache/arch_img_ big/media/resize/copy/202/20140117111939-Massimo-Baldini-IMG_86071. jpg

(2) https://www.lombardiabeniculturali.it/assets/allegati/AC310RL/SC/ FNT/AC/p4010/00/AC_p4010-00188_FNT-0000024430.jpg (3) (4) (5) https://atlantearchitetturacontemporanea.cultura.gov.it/14482/

MARIO
Wohn- und Bürogebäude

Eingangsbereich

aus Perlino-Marmor

Grundriss 1. OG
Innenraum mit Treppenhaus
Fassade

KURZBESCHREIBUNG

Die Casa Caccia Dominioni in Mailand wurde zwischen 1947 und 1949 von dem Architekten Luigi Caccia Dominioni entworfen und ist ein Beispiel für die Architektur der Moderne in Italien. Das Gebäude befindet sich an der Piazza Sant‘Ambrogio 16 und wurde auf dem Gelände eines im Zweiten Weltkrieg beschädigten Gebäudes errichtet.

Die Architektur zeichnet sich durch eine klare, minimalistische Gestaltung aus, die Elemente der modernen Bewegung mit traditionellen, lokalen Materialien kombiniert. Besonders markant ist die Fassade, die durch ihre symmetrische Anordnung und die Verwendung von Loggien eine ausgeprägte visuelle Wirkung erzielt. Caccia Dominioni legte großen Wert auf Funktionalität und Ästhetik, was sich in der praktischen Raumaufteilung und den eleganten Details widerspiegelt.

Das Gebäude wird als ein Meisterwerk der italienischen Nachkriegsmoderne angesehen und hat bedeutenden Einfluss auf die Architektur in Mailand und darüber hinaus. Die Casa Caccia Dominioni bleibt ein Paradebeispiel für den minimalistischen, rationalen Stil der Zeit.

CASA CACCIA DOMINIONI

LUIGI CACCIA DOMINIONI 1947 - 1949

TEXTQUELLEN

https://ordinearchitetti.mi.it/en/cultura/itinerari-di-architettura/45-luigicaccia-dominioni/opere/322-casa-caccia-dominioni/scheda# https://www.lombardiabeniculturali.it/architetture/schede/3m080-00050/

BILDQUELLEN

(1) (2) (3) (4) (5) https://ordinearchitetti.mi.it/en/cultura/itinerari-di-architettura/45-luigi-caccia-dominioni/opere/322-casa-caccia-dominioni/ galleria#

Piazza Sant Ambrogio 16
Wohnhaus

Ansicht Front

Grundriss EG

Fensterdetail

Sicht von der Piazza Sant Ambrogio

Piazza Sant Ambrogio 14

CONDOMINIO

KURZBESCHREIBUNG

Das Condominio wurde 1948 von den Architekten Mario Asnago und Claudio Vender als Rekonstruktion eines durch den Krieg zerstörten Gebäudes entworfen. Das Gebäude zeichnet sich durch eine klare und funktionale Architektur aus, die typisch für die Nachkriegszeit ist. Die Fassade zur Piazza Sant‘Ambrogio hin ist mit Travertinplatten verkleidet, die so zugeschnitten sind, dass die Fugen mit den Fenstermaßen übereinstimmen. Dieses Detail sorgt für eine rhythmische und harmonische Fassadengestaltung. Die Fenster sind mit Eichenholzrahmen ausgestattet, was sowohl ästhetisch ansprechend als auch funktional ist. Eine horizontale Fascia marcapiano zwischen dem ersten und zweiten Stockwerk unterstreicht die horizontale Gliederung des Gebäudes. Der Haupteingang wird durch ein leicht eingezogenes, bogenförmiges Portal hervorgehoben, das aus dem gleichen Travertinmaterial wie die Fassade besteht. Zusätzlich gibt es eine Garage, deren Zufahrt durch ein schlichtes, in einem dezenten Farbton gehaltenes Tor verborgen ist, das sich nahtlos in die Fassadengestaltung einfügt.

TEXTQUELLEN

https://www.lombardiabeniculturali.it/architetture900/schede/p401000207/ https://censimentoarchitetturecontemporanee.cultura.gov.it/scheda-opera?id=2306

BILDQUELLEN

(1) (2) (3) (4) (5) https://www.lombardiabeniculturali.it/architetture900/ schede/p4010-00207/

MARIO ASNAGO, CLAUDIO VENDER 1948
Wohnhaus

Schwarzplan

Eingangsbereich

Eingangsportal

Aufriss

DESIGN WEEK

Installallationen in der Stadt l Messe Fuorisalone I Salone del Mobile.Milano

Die Milan Design Week hat sich seit ihrer Gründung im Jahr 1961 zu einer der bedeutendsten Veranstaltungen für Design, Architektur und Kreativität entwickelt. Ursprünglich als Salone del Mobile ins Leben gerufen, diente sie dazu, die italienische Möbelindustrie international zu fördern. In den 1970er Jahren entstand parallel dazu der Fuorisalone, ein inoffizielles Event, das Designern und Marken die Möglichkeit bot, ihre Werke in Showrooms, Galerien und anderen städtischen Räumen zu präsentieren.

In den 1990er und 2000er Jahren wuchs die Milan Design Week rasant und wurde zu einem globalen Hotspot für Innovation und Inspiration. Neue Designviertel wie Zona Tortona und der Brera Design District entwickelten sich zu zentralen Schauplätzen für internationale Ausstellungen und Installationen. Die Veranstaltung zog nicht mehr nur Möbeldesigner an, sondern auch Technologieunternehmen, Automarken und Modehäuser, die Design als kreativen Ausdruck nutzten und neue Impulse setzten.

Mit dem Einzug digitaler Technologien in den 2010er Jahren wurden interaktive und immersive Erlebnisse zu einem festen Bestandteil der Design Week. Zudem rückte das Thema Nachhaltigkeit immer stärker in den Fokus. Im Jahr 2020 musste die Messe aufgrund der Pandemie erstmals ausgesetzt werden, kehrte jedoch 2021 mit einem hybriden Format, das sowohl physische als auch digitale Erlebnisse umfasste, zurück.

Heute ist die Milan Design Week eine der wichtigsten Plattformen für Innovation, Technologie und Nachhaltigkeit im Design. Jährlich zieht sie über 300.000 Besucher aus mehr als 165 Ländern an und setzt neue Trends für die gesamte Branche. Aktuelle Entwicklungen konzentrieren sich auf Themen wie künstliche Intelligenz, nachhaltige Materialien und die Verbindung zwischen Design und Wissenschaft, wodurch die Veranstaltung weiterhin als Impulsgeber für die Zukunft des Designs fungiert.

@milan.design.week

06.04. - 13.04.

designweekguide.com

QUELLEN

https://www.milanodurinidesign.it/ https://www.milanodurinidesign.it/ https://5vie.it/?lan=en

https://www.portaveneziadesigndistrict.com/ https://www.zonasarpi.com/ https://www.tortonadesignweek.com/en https://isola.design/home

https://designweekguide.com/milan-design-week-2025/?utm_source=chatgpt.com https://www.designsofthetime.be/updates/milan-design-week-2025/?utm_source=chatgpt.com https://www.fuorisalone.it/en/info/fuorisalone-theme-2025?utm_source=chatgpt.com

FREITAG

Design Week - Messe Salone del Mobile.Milano

START UHRZEIT

Messe Salone del Mobile.Milano

Viale Lombardia Sud

09.30

ENDE UHRZEIT

Messe Salone del Mobile.Milano

Viale Lombardia Sud

ca 16.00

GIOVANNI MUZIO

*1893 in Mailand †1982 ebendort

Architekurstudium am Politecnico in Mailand, Abschluss 1915. Bürogründung 1920, zusammen mit Mino Fiocchi, Emilio Lancia, Giuseppe de Finetti und Gió Ponti. Muzio stand als Wortführer im Mittelpunkt der Gruppe des Mailänder Novecento und schuf mit dem Entwurf für die Ca´Brütta (1919-22) - im lombardischen

Dialekt „das hässliche Haus“ - das Manifest der Bewegung. Seine Formensprache bewegte sich zwischen Tradition, klassizistischer Strenge und Rationalität. Beim Palazzo dell´ Arte (1932-33) trifft der Kulturbau auf den Industriebau, das Sichtziegelmauerwerk verstärkt die monolithische Wirkung. Die Verwendung von Ziegeln findet sich bei zahlreichen seiner Bauten, vom elfgeschossigen Wohnblock an der Piazza della Repubblica (1935-36) bis zur Vorstadtkirche (1956-58). Muzio lehrte am Politecnico in Mailand und am Politecnico in Turin.

QUELLEN

https://www.klatmagazine.com/en/architecture-en/giovanni-muzio/45599<28.03.2025>

PIERO PORTALUPPI

*1888 in Mailand †1967 ebendort

1910 schloss er sein Studium an der Fakultät für Architektur des Politecnico di Milan ab; ab 1936 arbeitete er ebendort als Professor für architektonische Komposition und wurde zwischen 1939 bis 1963 Dekan der Fakultät. Seine wichtigsten Werke im jungen Alter belaufen sich auf zahlreiche Kraftwerke entlang der Alpen, welche

er entwarf und baute. Der Großteil seines Schaffens ist jedoch mit Mailand verbunden, hier baute er während der Zwischenkriegszeit unter anderem das Planetarium Hoepli (1929-1930), den Palast der Italienischen Handelsbank in Largo Mattioli (1928-1932) und den Crespi-Palast in Corso Matteotti (1928-1932). Zu seinen wichtigsten Werken gehören der INA-Palast in Piazza Diaz (1932-1937), die Villa Necchi Campiglio (1932-1935), Casa Corbellini-Wassermann (19341936) und Case Brughera (19361938). Während 1934 bis 1938 arbeitete er an der Restauration der Kirche Santa Maria delle Grazie und führte diese Arbeit nach dem Krieg weiter.

PIETRO LINGERI

*1894 in Tremezzo †1968 ebendort

Pietro Lingeri war ein bedeutender italienischer Architekt des 20. Jahrhunderts, bekannt für seine Arbeiten im Bereich des modernen Architekturdesigns. Er wurde 1901 in Mailand geboren und erlangte in der Architekturwelt Anerkennung durch seine innovativen Entwürfe, die sich vor allem durch funktionale Klarheit und eine enge

Anlehnung an die Prinzipien der Moderne auszeichneten. Lingeri war stark von den Ideen der Internationalen Moderne und dem Rationalismus geprägt. In Mailand hinterließ er mehrere markante Werke. Eines seiner bekanntesten Projekte ist das Wohnhaus an der Via De Castillia, das er in den 1930er Jahren entwarf. Lingeri war nicht nur als Architekt tätig, sondern hatte auch einen Einfluss auf die theoretische und praktische Weiterentwicklung der modernen Architektur in Italien. Seine Werke in Mailand und darüber hinaus sind ein bedeutender Beitrag zur Architekturgeschichte des 20. Jahrhunderts und ein faszinierendes Beispiel für den Übergang von den traditionelleren Architekturstilen hin zur modernen Ästhetik.

QUELLEN

https://architectuul.com/architect/pietro-lingeri<27.03.2025>

GIUSEPPE TERRAGNI

*1904 in Meda †1943 in Como

Der italienische Architekt und Designer studierte in Como am Technischen Institut, wo er 1921 sein Architekturdiplom ablegte.

Am Politecnico di Milan setzte er sein Studium fort und promovierte 1926. Im selben Jahr gründete er zusammen mit Luigi Figini, Sebastiano Larco, Ubaldo Castagnoli, Guido Frette, Gino Pollini und

Carlo Enrico Rava die rationalistisch orientierte Architekturvereinigung “Gruppo 7”. 1927 eröffnete er gemeinsam mit seinem Bruder Attilio ein Studio in Como. Zu seinen ersten Arbeiten zählte der Entwurf eines Gaswerks, den er auf der Biennale in Monza präsentierte, sowie der Bau des Wohnkomplexes Novocomun in Como (1927-1928).

Weitere wichtige Bauten sind die Casa del Fascio (1932-36), das Künstlerhaus am See (1933), der Kindergarten Antonio Sant’Elia in Como (1936) und die Villa Bianca in Seveso (1936-1937). Als sein spätestes Werk gilt das Haus Frigerio in Como (1939-1940). Seit 1930 entwarf er zusammen mit seinem Kollegen Pietro Lingeri ebenfalls Möbelstücke, die vorwiegend aus Industriematerialien wie Stahl und Sperrholz bestanden.

QUELLEN

https://selig-wohndesign.de/116__zanotta-follia?showinfo=1&fromproduct=738 https://archxde.com/arquitectos/terragni-giuseppe/ <27.03.2025>

GIÓ PONTI

*1891 in Mailand †1979 ebendort

Architekturstudium am Politecnico in Mailand, Abschluss 1921. Ponti war in den zwanziger Jahren Teil der neoklassizistischen Bewegung des Novecentto Milanese um Giovanni Muzio. Zusammen mit Emilio Lancia realisierte er zahlreiche Bauten, wie das Wohnhaus an der Piazza Amenddola (1928-30), bis er sich

gegen Mitte der dreissiger Jahre dem Rationalismus annäherte. Es folgten Projekte wie die Torre Littoria (1932-33), die Literraturfakultät in Padua (1934-38) und ddas 1935 begonnene große Montecatini-Bürohaus in Mailand. Mit dem Pirelli-Hochhaus (1956-61) schuf Ponti eines der Wahrzeichen von Mailan und mit dem Superleggera-Stuhl von 1957 eine Ikone des italienischen Designs. Pontis Oeuvre umfasst Wohnquartiere ebenso wie extravagante Häuser, etwa die Villa Planchart in Venezuela (195455), aber auch Kirchen, Hotels und Schiffsausstattungen sowie Designentwürfe für Proukte, von Kaffeemaschinen und Lampen bis hin zu Keramikkacheln. Gió Ponti gründete und leitete die Zeitschriften Domus (1928-41 und 1948-79) und Stil (1941-47). 1936-61 lehrte er am Politecnico in Mailand.

QUELLEN https://www.smow.de/gio-ponti/<28.03.2025>

ASNAGO & VENDER

Beide Architekten studierten an der Accaemia di Brera sowie am Politecnico in Mailand; 19251971 führten sie das gemeinsame Büro. Das umfangreiche Werk von Asnago & Vender umfasst allein in Mailand mehr als 50 Gebäude, größtenteils Büro- und Wohnhäuser im Stadtzentrum. Gleich neben der Torre Velasca konnten sie 1947-56 mehrere Projekte hintereinander realisieren. Eine

weitere prominente Nachbaschaft hat auch das Wohnhaus an der Piazza Sant´Ambrogio (1948): es schliesst an das Haus und Büro von Caccia Dominioni (1947-1949) an. Besondere Sorgfalt richteten Asnago & Vender auf die Fassaden - bei vielen Projekten verwendten sie Steinverkleidungen ebenso wie Kombinationen aus Stein - und Sichtziegelmauerwerk und betrieben ein subtiles Spiel mit leichten Verschiebungen und unterschiedlichen Fensterformaten.

QUELLEN https://www.casatigallery.com/designers/mario-asnago-asnago-vender/ <28.03.2025>

LUIGI CACCIA DOMINIONI

*1913 in Mailand †2016 ebendort

Architekturstudium am Politecnico in Mailand, Abschluss 1936. In Zusammenarbeit mit Livio und Pier Giacomo Castiglioni entstanden mehrere Wettbewerbsprojekte, Einrichtungen, Bestecke und sogar Radios, bevor er 1945 sein eigenes Büro gründete. Es folgten 60 Jahre der intensivsten Arbeit an, wie Caccia Dominioni einmal

feststellte, „hunderten Projekten“. Die enge Beziehung zur Baustelle und die sorgfältige Umsetzung der Projekte waren ihm stets wichtiger als die Teilnahme an den Debatten der Zeit. Mit seinen eleganten Keramikfassaden begründete er eine „Schule“: das Bürohaus in der Via Savonna oder das Waisenhaus in der Via Calattafimi standen am Anfang einer facettenreichen Entwicklung. Caccia Dominioni betätigte sich auch als Designer, um für seine Häuser die geeigneten Möbel, Lampen und Türgriffe zur Verfügung zu haben. Zur serienmässigen Herstellung der eigenen Entwürfe gründete er 1947 mit Ignazio Gardella und Corrao Corradi Dell´Acqua die Firma Azucena.

QUELLEN

https://www.casatigallery.com/designers/luigi-caccia-dominioni/<28.03.2025>

GEBRÜDER SONCINI

*1906 in Mailand †1993 ebendort

Die Brüder Eugenio und Ermenegildo Soncini waren zentrale Figuren der Nachkriegsarchitektur in Mailand und prägten das Bild der Stadt maßgeblich. Nach einer frühen Zusammenarbeit mit Emilio Lancia und Gio Ponti gründeten sie 1947 ihr gemeinsames Büro. Ihre Entwürfe zeichnen sich durch eine klare Formsprache und einen

hohen funktionalen Anspruch aus. Besonders hervorzuheben ist der Torre Tirrena (1956/57) an der Piazza del Liberty. Mit seinen vertikalen Zwillingssäulen und der grünen Keramikfliese hebt sich der Turm durch seine geometrische Strenge und markante Präsenz von der umgebenden Architektur ab. Die Erweiterung des Palazzo della Società Reale Mutua di Assicurazioni (1905/43) ist ein weiteres bedeutendes Beispiel. Sie verkörpert die architektonische Nüchternheit und Eleganz, die den Rationalismus jener Zeit widerspiegelt. Die Werke der Soncini-Brüder kombinieren technologische Innovation mit einer zeitlosen Ästhetik und tragen so zur Modernisierung Mailands bei. Ihr Einfluss zeigt sich nicht nur in ihrer Architektur, sondern auch in der Art und Weise, wie sie die urbane Landschaft Mailands mitgestalteten.

QUELLEN

https://www.wikiwand.com/en/articles/Eugenio_Soncini https://deu.archinform.net/arch/2609.htm <28.03.2025>

BBPR

Das Architekturbüro Studio BBPR wurde 1932 in Mailand von vier Absolventen des Politecnico di Milano gegründet: Gian Luigi Banfi (1910–1945), Lodovico Barbiano di Belgiojoso (1909–2004), Enrico Peressutti (1908–1976) und Ernesto Nathan Rogers (1909–1969). Mit Bauten wie dem zehnstöckigen Wohn- und Geschäftshaus Feltrinelli in Mailand oder dem Sanatorium in Legano (1937-38)

zählten sie zu den wichtigsten Vertretern des Rationalismus. Nach dem Krieg (auch nach dem Tod Gian Luigi Banfis weiterhin als BBPR firmend) versuchten sie, mit einer Art moderatem Rationalismus eine Verbindung zu rationalen Bautraditionen herzustellen und den Kontext in die Architektursprache einzubeziehen. Das Schüsselwerk von BBPR bildet die Torre Velasca im Zentrum von Mailand. Das Projekt rief auch weit über Italien hinaus heftige Reaktionen hervor, insbesondere bei den Verfechtern der dogmatischen Moderne beim CIAM-Kongress in Otterlo von 1959, wo Ernesto N. Rogers das Projekt präsentierte. Rogers spielte darüber hinaus eine Sonderrolle, indem er neben seiner Tätigkeit als Architekt auch als einflussreicher Theoretiker herortrat un 1953-64 die Zeitschrift Casabella leitete. Ab 1962 lehret er am Politecnico in Mailand.

LUIGI MORETTI

*1907 in Rom †1973 in Capraia Isola

Architekturstudium in Rom, Bürogründung bereits während der Studienzeit, Diplom 1930. Ab 1933 erhielt Moretti zahlreiche öffentliche Aufträge, wie die Fechtakademie am MussoliniForum (1933-36) und die Häuser der faschistischen Jugend - Casa del Balilla - in Piacenza (1933-34), Rom (1933-37) und Trecate (1934-36). Nach dem

Krieg gründete er zusammen mit Adolfo Fossatoro die Baufinanzierungsgesellschaft Cofimprese und wurde damit selbst Auftraggeber für wichtige eigene Projekte wie das ikonische Wohngebäude II Girasole in Rom (1947-50) sowie das Büro und Wohnhaus am corso Italia in Mailand. Mitte der fünfziger Jahre vollzog Moretti einen neuerlichen Wandel in seiner Formensprache: vom anfänglichen Rationalismo über den Neoklassizismus und die ambivalente Moderne bei II Girasole in Richtung einer expressiven, neobarocken Moderne. Beispielhaft dafür sind das Ferienhaus La Saracena in Santa Marinella (1954-57), der Watergate-Komplex in Washington (1960-65) und auch die Thermenanlagen von Fiuggi (1964-72). Moretti war Gründer und Leiter der Architektur- und Kunstzeitschrift Spazio, die zwischen 1950 und 1953 insgesamt sieben Mal erschien.

QUELLEN

https://deu.archinform.net/entry.htm?ID=md0hq7ipdla51cvumsvqia6stn&loc=%2Farch%2F1011.htm<27.03.2025>

VICO MAGISTRETTI

*1920 in Mailand †2010 ebendort

Architekturstudium in Lausanne und Mailand, Abschluss 1945. Anfang der fünfziger Jahr arbeitete er zahlreiche soziale Wohnbauprojekte, darunter allein zehn Bauten für INA-Casa, aber auch die Kirche im Triennale Quartier QT8 (1953-55) und den Wohnturm beim Parco Sempione (1953-56). Ein wichtiger Einfluss kam von

seinem Lehrer Ernesto N. Rogers, der nach dem Krieg eine Verbindung von Rationalismus und lokaler Bautradition anstrebte. Als undogmatischer Rationalist hat auch Magistretti in seiner Architektursprache eine Balance von Modernität und Erinnerung verfolgt: Bei der Kirche in Ravello di Rescaldina (1957-59) kam er in die Nähe des Neorealismus, während er mit dem Bürohaus am corso Europa (1955-57) eine Spielart des International Style entwickelte - immer jedoch mit großer Professionalität und Originalität. Mit Beginn der sechziger Jahre wandte sich Magistretti vermehrt dem Möbeldesign zu und spielte eine wichtige Rolle in der Entwicklung des „italienischen Designs“.

QUELLEN

https://www.cassina.com/de/de/maestri/vico-magistretti.html <28.03.2025>

IGNAZIO GARDELLA

*1905 in Mailand †1999 in Oleggio

Ingenieurstudium am Politecnico in Mailand, Abschluss 1928, und Architekturstudium in Venedig, Abschluss 1949.Die ersten Projekte entstanden in Zusammenarbeit mit seinem Vater Arnalo Gardella und ab 1931 in seinem eigenen Büro in Mailand. Als „undogmaischer Rationalist“ schuf er mit der Tuberkuloseklinik in Alessandria

(1934-38) ins der Musterbeispiele des italienischen Rationalismus. Aber bereits hier kam ein traditionells Element - eine offene Ziegelwand, ähnlich wie sie bei anonymen Scheunen der Gegend zu finden ist - zum Einsatz. Ein weiterer Schritt weg von der Abstraktion erfolgte mit dem Wohnhaus in Alessandria (194852) und dem Haus in Arcadia Garten (1949-53). Neben dem äußerst umfangreichen gebauten Werk war Gardella auch als Designer tätig. Er gründete 1947 mit Luigi Caccia Dominioni und Corrado Corradi Dell´Acqua die Firma Azucena zur serienmäßigen Herstellung der eigenen Entwürfe. Als Vertreter Italiens nahm Gardella zusammen mit Magistretti, De Carlo und Rogers beim letzten CIAM Kongress in Otterlo im Jahr 1959 teil. 1962-75 lehrte er an der Universität Venedig.

QUELLEN

https://artemest.com/de-de/collections/ignazio-gardella-design-icon <28.03.2025>

GIULIO MINOLETTI

*1910 in Mailand †1981 ebendort

Giulio Minoletti war ein vielseitiger Architekt, der seine Arbeiten nicht nur auf die Architektur beschränkte, sondern auch auf Städtebau und Industriedesign erweiterte. Seine Entwürfe spiegeln eine tiefe Sensibilität für Raum, Material und die funktionalen Anforderungen des modernen Lebens wider. Ein herausragendes Beispiel für seine

Philosophie ist die Casa del Cedro (1959) in der Via Fatebenefratelli. Das Gebäude zeigt eine klare, elegante Fassadengestaltung, bei der die Materialwahl und die Raumaufteilung eine harmonische Einheit bilden. Minoletti war bekannt für seine Fähigkeit, mit neuen Bauweisen zu experimentieren, ohne die ästhetischen und funktionalen Aspekte zu vernachlässigen. Sein Verständnis für innovative Konstruktionsmethoden und sein Ansatz, Ästhetik und Funktionalität zu vereinen, sind in seinen Projekten deutlich spürbar. So war seine Arbeit im Bereich des Städtebaus und des Industriedesigns ebenso prägend wie seine Architektur. Minoletti verstand es, technische Innovationen in sein architektonisches Schaffen zu integrieren und so eine neue Richtung für die moderne Architektur zu eröffnen.

MARCO ZANUSO

*1916 in Mailand †2001 ebendort

Marco Zanuso war einer der bedeutendsten Architekten und Designer der italienischen Nachkriegsmoderne. Bekannt für seinen experimentellen Umgang mit Materialien und Technologien, hinterließ er eine Vielzahl von Projekten, die sowohl funktional als auch ästhetisch anspruchsvoll waren. Ein hervorragendes

Beispiel ist das Piccolo Teatro (1978) in Mailand, das als ein kultureller Treffpunkt der Stadt gilt. Zanuso verstand es, den Theaterbau nicht nur als funktionalen Raum zu begreifen, sondern als eine architektonische Herausforderung, die mit der Stadt und der kulturellen Szene interagieren musste. Die Gestaltung des Piccolo Teatro zeigt seine Fähigkeit, moderne Architektur mit den Bedürfnissen eines kulturellen Raums zu verbinden. Mit seiner klaren, geometrischen Formensprache und der geschickten Nutzung von Raum und Licht schuf Zanuso einen Ort, der sowohl für das Publikum als auch für die Aufführungen selbst einen einzigartigen Rahmen bietet. Sein Werk zeigt, wie moderne Architektur die sozialen und kulturellen Bedürfnisse einer Stadt widerspiegeln kann und dabei stets auf Innovation und Ästhetik setzt.

QUELLEN

https://www.designindex.org/designers/design/marco-zanuso.html https://www.pamono.ch/designers/marco-zanuso<28.03.2025>

STEFANO BOERI

*1956 in Mailand

Stefano Boeri absolvierte das Architekturstudium an der politechnischen Universität Mailand. Das Büro Boeri Studio wurde 1999 gegründet, bis schließlich 2011 das aktuelle Studio Stefano Boeri Architetti entstand. Neben seiner Tätigkeit als Professor für Stadtplanung wirkt er auch in Europa und Asien als Forscher für zukünftige

Visionen globaler Stadtplanung bezüglich Nachhaltigkeit. Eines seiner bedeutendsten Werke stellt das Bauprojekt Bosco Verticale dar, ein stadtbildprägendes Neubauprojekt in Mailand von zwei 112 bzw. 80 Meter hohen Wohntürmen, welche mit insgesamt 800 Bäumen auf 3000 m ² der Fassadenflächen verteilt sind. Typisch für die Architektur Boeris ist die Verbindung natürlicher Elemente in flexible, modulare Baukörper, um das urbane Klima durch grüne Architektur positiv zu beeinflussen. Stefano Boeri arbeitete des Weiteren ebenfalls als Chefredakteur für Architekturzeitschriften und wirkte als städtischer Baurat für Kultur und Design in Mailand. 2015 entwickelte Boeri gemeinsam mit Jaques Herzog und Richard Burdett den Masterplan für die Expo Milano.

QUELLEN

https://upload.wikimedia.org/wikipedia/commons/0/03/Stefano_Boeri. jpg

https://www.stefanoboeriarchitetti.net, https://www.detail.de/de_de/stefano-boeri <28.03.2025>

CINO ZUCCHI

*1955 in Mailand

Cino Zucchi schloss sein Architekturstudium am Massachusetts Institute of Technology und am Politechnikum Mailand ab, wo er derzeit als ordentlicher Professor für Architektur- und Stadtgestaltung tätig ist. Zucchi veröffentlichte bereits zahlreiche Artikel und Bücher zur Architekturtheorie und -geschichte und war Kurator

des Italienischen Pavillons auf der Biennale in Venedig 2014. Sein Büro Cino Zucchi Architetti realisierte unter anderem die Hauptverwaltung des Lavazza Campus in Turin (2010-2018), welches ein brachliegendes Industriegelände mit neuen Umbauten und einem großen Bürokomplex ergänzt, wobei eine Öffnung des Areals zum Stadtraum durch eine Umgestaltung ein zielweisendes Anliegen bildete. Zucchis Arbeiten zeichnen sich durch eine harmonische Verbindung von zeitgenössischem Design und städtischem Kontext aus, wobei er besonderen Wert auf die Schaffung offener und einladender Räume legt. Das Büro betont die Bedeutung von Forschung und kritischer Reflexion im architektonischen Entwurfsprozess und sieht Architektur als ein Mittel, um auf aktuelle gesellschaftliche und ökologische Herausforderungen zu reagieren.

QUELLEN

https://www.dndhandles.it/de/designer/cino-zucchi/, https://www.zucchiarchitetti.com, https://archello.com/de/project/lavazza-campus https://www.internimagazine.it/approfondimenti/interviste/<28.03.2025>

AMDL

Das Architekturbüro AMDL CIRCLE in Mailand, das 2019 von dem italienischen Architekten und Designer Michele De Lucchi (*1951) gegründet wurde, zählt zu den bedeutensten zeitgenössischen Büros der Stadt. Es ist bekannt für humanistische sowie innovative Ansätze in den Bereichen Architektur, Innenarchitektur und grafische Darstellung und die Verbindung dieser mit Handwerk und Strategie. Das Studio legt

großen Wert auf Nachhaltigkeit und strebt danach, Räume und Objekte zu schaffen, die den sozialen, ökologischen und wirtschaftlichen Anforderungen der heutigen Gesellschaft gerecht werden.

Ein bedeutendes aktuelles Projekt stellt das 2019 realisierte Z-LIFE dar, ein modernes Bürogebäude, das in ein ehemaliges Fabrikgebäude integriert wurde. Es verbindet historische Strukturen mit zeitgenössischem Design und soll darüber hinaus den Austausch von Ideen durch flexible Raumgestaltung und Nebeneinander verschiedener Materialien fördern. Ein weiteres Gebäude ist der Novartis Pavillion in Basel (20182022) , welches sich durch eine innovative, energieautarke Medienfassade auszeichnet, die wissenschaftliche Inhalte repräsentieren und die Verbindung zwischen Wissenschaft und Gesellschaft stärken soll.

QUELLEN

https://www.platformarchitecture.it/typo-la-nuova-collezione-mara-firmata-da-amdl-circle/ https://awards.archiproducts.com/team/amdl-circle/, https://archello. com/de/project/z-life, https://www.architektur-online.com/projekte <28.03.2025>

PIUARCH

Piuarch ist ein renommiertes Architekturbüro mit Sitz in Mailand, das 1996 von Francesco Fresa, Germán Fuenmayor, Gino Garbellini und Monica Tricario gegründet wurde. Das Büro beschäftigt rund 50 Mitarbeiter und ist auf zeitgenössische Architektur spezialisiert, eine nachhaltige Gestaltung und hochwertige urbane Raumgestaltung im Vordergrund stehen. Zu den bekanntesten Projekten

in Mailand zählt der Gucci Hub, ein 2016 fertiggestellter Komplex, der die historischen Gebäude der ehemaligen Aeroplani-CaproniFlugzeugfabrik in den neuen Hauptsitz von Gucci. Ein weiteres bemerkenswertes Projekt ist das „White Wave“-Gebäude im Stadtentwicklungsgebiet Porta Nuova, welches 2013 realisiert wurde und durch seine geschwungene, weiße Fassade einen Akzent im Stadtbild setzt. Außerdem gestaltete Piuarch 2017 den Hauptsitz des Modekonzerns Kering, ein Gebäude, das klare Linien und Funktionalität miteinander verbindet. Ebenso erwähnenswert ist der 2020 eröffnete Flagship-Store für die Schuhmarke P448, dessen Design die urbane Dynamik der Marke widerspiegelt.

QUELLEN

https://piuarch.it/ https://www.bing.com/images/search?view=detailV2&ccid=iE-content%252fuploads%252f2020%252f01%252fPiuarch_Filippo_Avan <27.03.2025>

PARK ASSOCIATI

Park Associati ist ein Architekturbüro, das im Jahr 2000 von Filippo Pagliani und Michele Rossi gegründet wurde. Das Büro beschäftigt sich mit Architektur, Städtebau, Innenraum- und Produktdesign und hat sich durch seine analytische, pragmatische und maßgeschneiderte Herangehensweise einen Namen gemacht. Ein herausragendes Projekt von Park Associati ist The

Cube, ein temporäres Restaurant, das zwischen 2011 und 2012 in verschiedenen europäischen Städten wie Brüssel, Mailand, London und Stockholm installiert wurde. Ein weiteres Projekt von Park Associati ist die 2022 fertiggestellte Luxottica Digital Factory in Mailand, bei der ein ehemaliges Industriegebäude in einen modernen, Raum verwandelt wurde, der Kreativität und Innovation fördert und historische mit zeitgenössischen Elementen verbindet. Ein aktuelleres Projekt ist das 2023 abgeschlossene Bürogebäude „Open 336“, ein nachhaltiges Gebäude, das den industriellen Charakter des umliegenden Viertels neu interpretiert und auf Komfort und Wohlbefinden der Nutzer ausgerichtet ist.

QUELLEN

https://parkassociati.com/ https://www.bing.com/images/search?view=detailV2&ccid=j10l9D1e&id= 3FB78C7271AE6849E093D87D58BB5131F742161F&thid=OIP.j10l9D1eqtYeV_balltokQHaF_&mediaurl=https%3A%2F%2Fwww.arketipomagazine. <27.03.2025>

BAUKUH

Architekturbüro Baukuh wurde von Paolo Carpi, Silvia Lupi, Vittorio Pizzigoni, Giacomo Summa, Pier Paolo Tamburelli und Andrea Zanderigo 2004 gegründet. Bekannt für seinen kollektiven und konzeptuellen Ansatz, konzentriert sich Baukuh auf Projekte, die historische Referenzen mit moderner Architetur verbinden und gesellschaftliche sowie städtische Herausforderungen berück

sichtigen. Ein besonders prägendes Projekt des Büros ist die „Casa della Memoria“ (Haus der Erinnerung), ein 2015 in Mailand fertiggestelltes Archivgebäude. Dieses Gebäude besticht durch seine markante Backsteinfassade. Ein weiteres Projekt, der 2019 fertiggestellte Eingangspavillon der Poretti-Brauerei in Induno Olona, hat eine ungewöhnliche kreisrunde Form. Darüber hinau beteiligte sich Baukuh am „Agenti Climatic Masterplan“ für Mailand, einem Konzept zur Umwandlung ehemaliger Güterbahnhöfe in ökologische Freiräume, die als grüne Lungen zur Verbesserung der Luftqualität der Stadt beitragen sollen. Diese Projekte verdeutlichen die Vielseitigkeit und den innovativen Geist des Büros.

QUELLEN

https://www.baukuh.it/about/ https://erich-mendelsohn-preis.com/de/architekten/baukuh

MARIO BOTTA

*1943 in Mendrisio

Mario Botta ist ein Schweizer Architekt, geboren am 1. April 1943 in Mendrisio. Bereits mit 16 Jahren begann er seine Karriere und hat seitdem eine Vielzahl von Bauwerken realisiert, darunter Sakralbauten, Privathäuser und Museen. Zu seinen bekanntesten Werken zählen das San Francisco Museum of Modern Art (SFMOMA) und die

Kirche San Giovanni Battista in Mogno, Schweiz. Botta ist bekannt für seine geometrisch klaren und imposanten Strukturen, die häufig durch horizontale Streifen in Schwarz-Weiß- oder Rot-WeißKombinationen gekennzeichnet sind. Ein aktuelleres Projekt ist die Residenza Cittadella in Lugano, Schweiz, ein Wohnkomplex, der auf den Fundamenten des ehemaligen Cinema Teatro Cittadella errichtet wurde. Botta betont die Bedeutung des Dialogs zwischen Architektur und ihrem Kontext und ist der Ansicht, dass Architektur sich durch ihre Aussagekraft in Bezug auf ihre Umgebung auszeichnet. Neben seiner praktischen Tätigkeit engagiert sich Botta auch in der Lehre und hält Vorträge, Seminare und Kurse an Architekturschulen in Europa, Asien sowie Nord- und Südamerika.

QUELLEN

https://www.archdaily.com/614986/spotlight-mario-botta https://www.baunetz.de/meldungen/Meldungen-Mario_Botta_ wird_80_8192878.html <27.03.2025>

HERZOG & DE MEURON

Herzog & de Meuron ist ein international anerkanntes Architekturbüro, das 1978 von den Schweizer Architekten Jacques Herzog und Pierre de Meuron in Basel gegründet wurde. Das Büro hat sich einen hervorragenden Ruf für seine innovative und kontext bezogene Architektur erarbeitet, die oft ein tiefes Verständnis für Materialien und deren Eigenschaften zeigt. In Mailand haben Herzog &

de Meuron mehrere bedeutende Projekte realisiert, die die städtische Landschaft und Architektur der Stadt nachhaltig geprägt haben. Eines ihrer bekanntesten Werke ist die „Fondazione Prada“, die 2015 eröffnet wurde. Dieses Kulturzentrum befindet sich in einer ehemaligen Destillerie und kombiniert geschickt historische Industriearchitektur mit modernen Erweiterungen. Die Gestaltung der Fondazione Prada spiegelt das Bestreben des Büros wider, einen Dialog zwischen Alt und Neu zu fördern und gleichzeitig einen inspirierenden Raum für Kunst und Kultur zu schaffen. Ein weiteres bemerkenswertes Projekt ist das „Torre Velasca“, ein ikonisches Hochhaus, das in den 1950er Jahren erbaut wurde.

QUELLEN https://arquitecturaviva.com/articles/herzog-de-meuron-3323<27.03.2025>

REM KOOLHAAS

*1944 in Rotterdam

Delft und setzte seine Ausbildung an der Harvard University fort, wo er 1972 seinen Abschluss machte.

1975 gründete er das Architekturbüro OMA (Office for Metropolitan Architecture), das schnell international anerkannt wurde.

Koolhaas ist bekannt für seine kritische Auseinandersetzung mit urbanen Phänomenen und seine Fähigkeit, komplexe gesellschaftliche und kulturelle Themen in seine Architektur zu integrieren. Zu seinen bekanntesten Werken zählen das CCTV-Hauptquartier in Peking, die Seattle Central Library und das Casa da Música in Porto. Seine Schriften, insbesondere „Delirious New York“, haben die Architekturtheorie maßgeblich beeinflusst.

Rem Koolhaas wurde am 17. November 1944 in Rotterdam, Niederlande, geboren. Er ist ein einflussreicher Architekt, Stadtplaner, Schriftsteller und Theoretiker, der für seine innovativen Ansätze zur Architektur und Stadtentwicklung bekannt ist. Koolhaas studierte Architektur an der Technischen Universität QUELLEN https://www.awmagazin.de/portraets/rem-koolhaas

SANAA

Das japanische Architekturbüro SANAA, gegründet von Kazuyo Sejima und Ryue Nishizawa, zählt zu den bedeutendsten Vertretern zeitgenössischer Architektur. Ihre Entwürfe zeichnen sich durch eine minimalistische Ästhetik, Transparenz und eine besondere Sensibilität für Licht aus. Das Büro versucht Architektur als einen fließenden, offenen Raum zu gestalten, der sich in seine Umgebung einfügt. Bekannte Werke wie das New

Museum in New York oder das Louvre-Lens in Frankreich demonstrieren diesen Ansatz eindrucksvoll. Ihre Gebäude bestehen oft aus dünnen, leichten Materialien, die ein Gefühl der Schwerelosigkeit erzeugen. Transparente Fassaden und offene Grundrisse lassen Innen- und Außenraum miteinander verschmelzen, wodurch eine besondere Atmosphäre der Offenheit entsteht. Die Architektur von SANAA schafft eine Balance zwischen Funktionalität und Poesie und hebt sich durch ihre subtile, fast fragile Eleganz von anderen Strömungen der Architektur ab. Ein weiteres ikonisches Projekt ist das Rolex Learning Center in Lausanne. Mit seinen sanft geschwungenen Formen und fließenden Übergängen zwischen verschiedenen Nutzungsbereichen zeigt es eindrucksvoll die Philosophie von SANAA.

QUELLEN

https://www.archdaily.com/office/sanaa <27.03.2025> https://www.schoener-wohnen.de/tipps-trends/32695-rtkl-vortrag-der-japanischen-architekten-sanaa-bei-vitra <27.03.2025>

GRAFTON ARCHITECTS

Das irische Büro Grafton Architects, geleitet von Yvonne Farrell und Shelley McNamara, verbindet monumentale Bauweisen mit einer tiefen Auseinandersetzung mit dem jeweiligen Ort und seiner Geschichte. Ihre Gebäude wirken oft massiv und skulptural, gleichzeitig sind sie durch eine geschickte Nutzung von Licht und Materialität sehr einladend und durchdacht. Ein herausragendes

Beispiel ist das Universitätsgebäude der Bocconi-Universität in Mailand. Es zeichnet sich durch seine massive Struktur aus Beton aus, die sich dennoch durch raffinierte Lichtöffnungen und eine durchdachte Raumaufteilung als äußerst lebendig erweist. Ebenso bemerkenswert ist das Town House der Kingston University in London, das durch seine offene Gestaltung mit Innenhöfen und Terrassen eine innovative Lernumgebung schafft. Farrell und McNamara legen großen Wert darauf, Architektur als ein Dialog zwischen Raum, Licht und Mensch zu gestalten, was sich in jedem ihrer Projekte widerspiegelt.

QUELLEN

https://www.pritzkerprize.com/laureates/2020 <27.03.2025>

https://www.graftonarchitects.ie/Profile-1 <27.03.2025>

ZAHA HADID

*1950 in Bagdad †2016 in Florida

Zaha Hadid gehört zu den einflussreichsten Architektinnen der Moderne. Ihre futuristischen, oft skulpturalen Gebäude brechen mit traditionellen geometrischen Strukturen und eröffnen völlig neue Perspektiven auf Raum und Form. Hadid, die als eine der Hauptvertreterinnen des Dekonstruktivismus gilt, setzte in ihrer

Arbeit auf fließende Linien und dynamische Kurven. Ein besonders ikonisches Werk ist das Heydar Aliyev Center in Baku. Ebenso beeindruckend ist das MAXXI Museum in Rom, das durch seine unkonventionelle Formensprache und den Einsatz innovativer Baumaterialien neue Maßstäbe setzte. Hadids Architektur ist geprägt von technologischer Innovation und experimentellen Ansätzen. Mithilfe digitaler Planungsmethoden gelang es ihr, Gebäude zu entwerfen, die zuvor kaum realisierbar erschienen. Ihr Stil war nicht nur eine ästhetische Revolution, sondern auch eine technische Herausforderung für die Bauindustrie. Ihr Vermächtnis bleibt in der Architekturwelt unvergessen, da ihre Bauten weiterhin als visionäre Kunstwerke gelten, die die Grenzen des Machbaren verschieben.

QUELLEN

https://www.britannica.com/biography/Zaha-Hadid<27.03.2025 https://atelieroz.com/portrait-dune-architecte-dexception-zaha-hadid <27.03.2025>

DANIEL LIBESKIND

*1946 in Łódź

Daniel Libeskind steht für eine expressive, symbolträchtige Architektur, die oft eine tiefe emotionale und historische Bedeutung trägt. Seine Entwürfe zeichnen sich durch scharfe Winkel, dramatische Linienführungen und fragmentierte Formen aus. Besonders bekannt wurde er durch das Jüdische Museum in

Berlin. Libeskinds Gebäude erzählen Geschichten. Sie sind oft von geschichtlicher Tragweite und einer intensiven Auseinandersetzung mit Erinnerung und Identität geprägt. So auch der Masterplan für das One World Trade Center in New York, mit dem er eine neue Vision für das Gelände des einstigen World Trade Centers entwarf. Seine Architektur ist nicht nur ästhetisch anspruchsvoll, sondern auch zutiefst bedeutungsvoll – sie reflektiert politische, gesellschaftliche und historische Zusammenhänge und setzt sie in ausdrucksstarke, raumgreifende Formen um. Neben seinen kulturellen und historischen Bauten hat sich Libeskind auch im Bereich kommerzieller Architektur einen Namen gemacht. Projekte wie das Einkaufszentrum Westside in Bern oder das MO Modern Art Museum in Vilnius zeigen, dass seine Handschrift auch in anderen Kontexten prägend ist.

QUELLEN

https://www.britannica.com/biography/Daniel-Libeskind <27.03.2025> https://www.wilde-spieth.com/de/news-stories/184/boaz-von-daniel-libeskind <27.03.2025>

ARATA ISOZAKI

*1931 in Ōita †2022 ebendort

Arata Isozaki zählt zu den renommiertesten Architekten des 20. Jahrhunderts. Sein Werk ist durch eine bemerkenswerte Vielseitigkeit geprägt, die von seinen frühen Entwürfen in Japan bis zu seinen späteren internationalen Projekten reicht. In Mailand hinterließ Isozaki einen bleibenden Eindruck mit dem Allianz Tower (2015), einem markanten Hochhaus, das als Teil

des CityLife-Projekts entstand. Der 207 Meter hohe Turm, der auch als „Il Dritto“ bekannt ist, besticht durch seine schlanke, vertikale Geometrie und die doppelte Glasfassade. Dieses Design reduziert nicht nur den Energieverbrauch, sondern fügt sich auch harmonisch in die Skyline Mailands ein. Isozaki kombinierte in seinem Werk eine tiefe Auseinandersetzung mit strukturellen Prinzipien und eine starke visuelle Präsenz, die seinem Werk eine unverwechselbare Identität verlieh. Das CityLife-Projekt, an dem auch Zaha Hadid und Daniel Libeskind mitwirkten, ist ein Paradebeispiel für die moderne Hochhausarchitektur und zeigt Isozakis Fähigkeit, die Bedürfnisse der urbanen Entwicklung mit einer klaren, zukunftsorientierten Gestaltung zu verbinden. Sein Beitrag zur Mailänder Skyline ist ein bleibendes Zeichen für Innovation und Modernität in der Architektur.

QUELLEN

https://www.bauwelt.de/rubriken/betrifft/Arata-Isozaki-Architekt-undHomme-de-Lettres-3904357.html

https://www.artnews.com/art-news/news/japanese-architect-pritzker-prize-winner-arata-isozaki-dies-age-91-1234650617/(28.03.25)<27.03.2025>

FOSTER & PARTNERS

Das weltweit bekannte Büro Foster + Partners mit Sitz in London wurde 1967 von Norman Foster gegründet. Das Büro zeichnet sich aus durch innovative, nachhaltige und technologisch fortschrittliche Designs, die oft eine futuristische Ästhetik mit funktionalen und ökologischen Aspekten verbinden. Zu den Markenzeichen des Büros gehört die Verwendung von Glas, Stahl und Hightech-Materialien,

um offene, lichtdurchflutete Räume zu schaffen. Zu den bekanntesten Projekten des Architekturbüros gehören das Hearst Tower in New York (2003-2006), die Reichstagskuppel in Berlin (19941999), the Gherkin in London (2001-2004) sowie der Apple Park in Cupertino. (2013-2017). Foster + Partners arbeitet interdisziplinär und integriert Architektur, Ingenieurwesen und Design, um maßgeschneiderte Lösungen für komplexe Bauvorhaben zu entwickeln. Nachhaltigkeit spielt eine zentrale Rolle in den Entwürfen, wobei Energieeffizienz, natürliche Belüftung und ressourcenschonende Materialien stets berücksichtigt werden. Großprojekte wie der Beijing Capital International Airport und der Hongkong International Airport sind beispeihaft für die Ausrichtung des Büros im Bereich großer Infrastrukturprojekte.

QUELLEN

https://www.walterknoll.de/designers/foster-partners, https://www.fosterandpartners.com/people/teams/project-management https://www.konsepti.com/en/designers/norman-foster/<27.03.2025>

CARLO AYMONINO

Geometrie zu - mit scharfkantigen Baukörpern, in die runde Stiegenhäuser eingeschnitten wurden, oder mit kreisförmigen Rücksprüngen wie beim Wohn- und Bürohaus mit integrierter Kirche in Savona (1963-66). Besonders deutlich treten geometrische Primärformen - Kreise, Quadrate und Dreicke - hingegen beim Campus in Pesaro (1970-84) in den Vordergrund. Aymonino lehrte in Rom, Palermo in Venedig. 1959-64 war er Mitherausgeber von Casabela. *1926 in Rom †2010 ebendort

Architekturstudium an er Universität Rom, Abschluss 1950. Im selben Jahr schloss er sich der Architektengruppe Ludovico Quaroni und Mario Ridolfi an, um an den Planungen für das Tiburtino Quartier - das gebaute Manifest des Neorealismus - mitzuwirken. In den sechziger Jahren wante er sich vermehrt einer einfachen

QUELLEN

https://www.architettiroma.it/50_anni_professione/aymonino-carlo/ <28.03.2025>

PIERO BOTTONI

*1903 in Mailand †1973 ebendort

Architekturstudium am Poltecnico in Mailand, Abschluss 1926. Bottoni beteiligte sich 1930 an der Gründung der MIAR, der Bewegung für Rationale Architektur, und nahm im selben Jahr am CIAM-Treffen in Brüssel teil; 1933 war er Mitverfasser der „Charta von Athen“ (CIAM 4). Mit der Villa Dello Strongolo in Liverno (1934-35) gelang ihm ein

frühes Hauptwerk und ein Musterbeispiel es Razinalismo. Neben zahlreichen Möbelentwürfen beschäftigte sich Bottoni mit urbanistischen Fragen, darunter dem Generalbebauungsplan für das Aostatal (1936-37), sowie mit der Konzeption von Satellitenstädten im Umland von Mailand. Ab 1945 leitete er die Planungen des neuen Mailänder Stadtteils QT8 - eines für die 8. Triennale (1947) angelegten, experimentellen Wohnquartiers. Der als Monte Stella bezeichnete künstliche Hügel im weitäufigen QTB-Gelände wurde ab 1953 ebenfalls von Bottoni gestaltet. Er besteht aus Trümmerschutt des Krieges und bietet einen Panoramablick auf Mailand. Mit besonderer Sensibilität renovierte und adaptierte Bottoni 1960-64 den Palazzo di Renata di Francia als neuen Sitz der Universität von Ferrara. 1954-65 lehrte Botoni an der Ingenieurfakultät in Triest und 1964-71 am Politecnico in Mailand.

GUIDO CANELLA

*1931 in Bukarest †2009 in Mailand

Architekturstudium am Politecnico in Mailand, Abschluss 1959. Er war Assistent bei Guiseppe Samona in Venedig und später bei Ernesto N. Rogers in Mailand, wo er ab 1970 einen eigenen Lehrstuhl leitete. Canella verfasste ab 1957 zahlreiche Artikel für die Zeitschrift Casabella und war Heraus

geber der Zeitschriften Hinterland (1978-85) und Zodiac (1989-99). Ein großer Teil der Bauten von Canella befindet sich an der Peripherie von Mailand. So war er in der Satellitenstadt Pieve Emanuele gleich für die Planung der meisten öffentlichen Bauten verantwortlich: Rathaus, zwei Schulen, Kindergarten, Sozialzentrum, Piazza, Kirche und Markt (1968-83). Canella bot sich dort ein weites Experimentierfeld, das er für stark artikulierte Formen und zeichenhafte Objekte nutzte.

QUELLEN

https://www.abitare.it/it/architettura/2012/01/19/guido-canella-un-xconvegno-a-milano-2/ <28.03.2025>

ANGELO MANGIAROTTI

*1921 in Mailand †2012 ebendort

Architekturstudium am Politecnico in Mailand an der 8. und 9. Triennale (1948, 1951). Bei seinem USA-Aufenthalt 1953-54 lehrte er als Gastprofessor am IIT in Chicago und kam in Kontakt mit Wright, Mies van der Rohe, Gropius und Wachsmann. Nach seiner Rückkehr gründete er mit Bruno Morassutti 1955 das gemeinsame Architekturbüro in Mailand. Es folgten fünf äußerst produktive

Jahre, in denen wichtige Bauten wie die Glaskirche in Baranzate oder das Wohnhaus in der Via Quadronno realisiert wurden, aber auch Möbelserien, Uhren und Nähmaschinen entstanden. 1961 wurde die Bürogemeinschaft mit Morassutti wieder aufgelöst. Mangiarotti beschäftigte sich zunehmend mit der Vorfabrikation - sowohl für Industriebauten wie das Firmengebäude in Ciniselllo Balsamo (1968) als auch für Wohnbauten wie das Haus in Monza, das aus Fertigteilwänden zusammengesetzt wurde. Parallel zu den unterschiedlichsten Bauaufgaben war Mangiarotti stets auch als Designer tätig und experimentierte mit vielen Materialien und Objekten: von Porzellanvasen, Glaslustern, extrudierten Kunststoffprofilen, Betonlampen bis zu seinen ikonischen Mamortischen. Mangiarotti lehrte als Gastprofessor an Universitäten weltweit.

QUELLEN

https://classicdesign.it/de/designer/angelo-mangiarotti.html?page=2 <27.03.2025>

BRUNO MORASSUTTI

*1920 in Padua †2008 in Belluno

Architekturstudium in Venedig, Abschluss 1947. Studienaufenthalt bei Frank Lloyd Wright in Taliesin 1949-50. Sein erstes Projekt nach der Rückkehr aus Amerika, das Doppelhaus in Jesolo 195054, stand ganz im Einfluss von Wright, ebenso das von Angelo Masieri 1952 begonnene und von Morassutti und Carlo Scarpa 1956

fertiggeestellte Haus Romanelli in Udine. 1955 eröffnete er mit Angelo Mangiarotti ein gemeinsames Architekturbüro in Mailand. Aus dieser Zusammenarbeit entstanden in wenigen Jahren viele wichtige Bauten - wie die Glaskirche in Baranzate, die Ferienhäuser in San Martino di Castrrozza (1956) oder das Wohnhaus in der Via Gavirate in Mailand - ebenso wie Ikonen des Industriedesigns. Anfang der sechziger Jahre gründeten beide Architekten ihre getrennten Büros. 1963-1966 errichtete Morassutti die Ferienwohnungen in San Martino di Castrozza, 1966 das großzügige Wohnhaus in Padua und ab 1970 das Ausbildungszentrum in Novedrate.

QUELLEN

https://www.trevisotoday.it/eventi/museo-bailo-mostra-bruno-morassutti-2020.html<28.03.2025>

PIER LUIGI NERVI

*1891 in Sünders †1979 in Rom

Bauingenieurstudium an der Universität Bologna, Abschluss 1913. Bürogründung 1923 in Rom. 193032 plante Nervi das Fußballstadion von Florenz und anschließend mehrere Flugzeughallen. Als schöpferischer Entwerfer und Konstrukteur entwickelte er unterschiedliche räumliche Gitterwerke und Leichtkonstruktionen mit

vorgefertigten Betonelementen. Bei der Ausstellungshalle in Turin (1947-48) beträgt die Spannweite des Gewölbes aus wellenförmigen, vorfabrizierten Elementen 95 Meter. In den späten vierziger Jahren experimentierte er mit extrem dünnen Betonschalen und erfand den „Ferrozement“. Nervi war Herausgeber einer umfassenden Buchreihe zur Weltgeschichte der Architektur und lehrte Konstruktion an der Architekturfakultät der Universität Rom.

QUELLEN

https://www.ribapix.com/pier-luigi-nervi_riba47152<27.03.2025>

ALDO ROSSI

*1931 in Mailand †1997 ebendort

Architekturstuium am Poliecnico in Mailand, Abschluss 1959. Während des Studiums arbeitete er bei Ignazio Gardella und Marco Zanuso und verfasste ab 1955 Artikel für Casabella. Bis 1964, als Ernesto Rogers die Leitung der Zeitschrift aufgab, war Rossi Redakteur bei Casabella. Ab 1963 lehrte er an ver

schiedenen Universitäten, bis über ihn 1971 infolge seiner politischkulturellen Tätigkeiten ein vierjähriges Lehrverbot in Italien verhängt wurde. Es folgten dann einflussreiche Jahre als Gastprofessor an der ETH Zürich, bevor er 1975 an die Universität Venedig berufen wurde. Stand Rossi beim ersten realisierten Projekt - dem Sommerhaus in Marina di Massa - noch unter dem Einfluss von Adolf Loos, so kristallisierte sich beim Partisanendenkmal in Segrate (1965) bereits seine charakteristische Formensprache heraus. 1966 erschien sein Manifest l´architecttura della citta (die deutsche Ausgabe folgte 1973 unter dem Titel Die Architektur der Stadt). Die archetypischen Elemente und Grundthemen seiner Entwürfe wurden von Rossi in unzähligen Zeichnungen und Collagen abgewandelt und verdichtet.

QUELLEN

https://www.casatigallery.com/designers/aldo-rossi/<27.03.2025>

VITTORIANO VIGANÓ

*1919 in Mailand †1996 ebendort

Architekturstudium am Pollitecnico in Mailland, Abschluss 1944. Danach war Viganó Assistent bei Gió Ponti und ab 1963 Professor am Politecnico. In seinem vielseitigen Oeuvre - von Möbelentwürfen, Lampen, Geschäften, Ausstellungen, Platzgestaltungen bis hin zu Fabrikanlagen - überstrahlen zwei Projekte alle anderen: das

Internat des Istituto Marchiondi in Mailand und das Sommerhaus von André Bloc in Portese. Die unglaubliche Rohheit und Kraft der beiden Werke beeindruckt noch heute, wenngleich sich das Internat in einem baufälligen Zustand befindet. Im Standardwerk zum Brutalismus bezeichnete Reyner Banham das Istituto Marchiondi als eine der größten Überraschungen der europäischen Architekttur der späten fünfziger Jahre.

QUELLEN

https://astep.design/designers/vittoriano-vigano/ https://astep.design/ designers/vittoriano-vigano/ <28.03.2025>

SEHENSWERT...

DOMUS CAROLA, DOMUS FAUSTA, DOMUS JULIA

GIO PONTI, EMILIO LANCIA

1931 - 1933

CHIESA DI SAN FRANCESCO

GIO PONTI, ANTONIO FORNAROLI, ALBERTO ROSELLI 1958 - 1964

PICCOLO TEATRO

MARCO ZANUSO 1977 - 1996

TEATRO ALLA SCALA

GIUSEPPE PIERMARINI - 1778

MARIO BOTTA - 2001/04

APPLE STORE

FOSTER & PARTNERS 2017/18

GUCCI HUB

PIUARCH 2016

FONDAZIONE LUIGI ROVATI

MARIO CUCINELLA ARCHITECTS 2022

PAN BAKERY MILANO

STUDIO WOK 2023

Via de Togni 21, 23, 25

D ASSISI AL FOPPONINO

Via Paolo Giovio 41

Largo Greppi 1

Piazza del Liberty

Via Mecenate 79

Corso Venezia 52

Via Leopoldo Cicognara 19

PALAZZO PER ABITAZIONI INA

PIERO BOTTONI 1953 - 1958

CONDOMINIO

JAN ANDREA BATTISTONI 1964 - 1965

EDIFICIO IN VIA SANTA AGNELLO

GIO PONTI

1963 - 1967

Corso Sempione 33

Piazza Carlo Mirabello 2

Via Agnello

Piazza della Scala

SEHENSWERT...

LA SERENISSIMA

PARK ASSOCIATI 2010 - 2012

PADIGLIONE SOGGIORNO

ICO PARISI, SILVIO LONGHI 1954

TORRE AL PARCO

VICO MAGISTRETTI 1953 - 1956

ONDA BIANCA

PIUARCH 2006 - 2013

CORTE VERDE

CINO ZUCCHI 2006 - 2013

COMPLESSO RESIDENZIALE NOVETREDICI

CINO ZUCCHI 2015

IBM PAVILION

MICHELE DE LUCCHI 2014 - 2015

COIMA HEADQUARTERS

MARIO CUCINELLA - MCA 2016 - 2018

PALAZZO LOMBARDIA

PEI COBB FREED & PARTNERS; CAPUTO PARTNERSHIP 2004 - 2011

TORRI SOLARIA E ARIA

ARQUITECTONICA

2011 - 2014

Via Turati 25-27

Parco Sempione

Via Revere 2

Via Fratelli Castiglioni

Via Vigano, Via Rosales

Via dei Chiostri

Piazza Gae Aulenti, Via Gioia

Piazza Gae Aulenti, Via Gioia

Via Gioia, Via Galvani

Piazza Alvar Aalto

Via Melchiorre Gioia

SEHENSWERT...

DIAMANTE E DIAMANTINI

KOHN PEDERSEN FOX ASSOCIATES 2010 - 2014

VILLE URBANE

M2P ARCHITETTI ASSOCIATI 2010 - 2014

AMAZON HEADQUARTERS

GBPA ARCHITECTS 2015 - 2017

RESIDENZE SALAINO 10

ANTONIO CITTERIO, PATRICIA VIEL 2011

FORCELLA 5

ANTONIO CITTERIO, PATRICIA VIEL 1986 - 1988

TEATRO ARMANI

TADAO ANDO 1999 - 2001

ARMANI SILOS

GIORGIO ARMANI 2015

BERGOGNONE 53

MARIO CUCINELLA MCA 2001 - 2004

SPAZIO ZEGNA

ANTONIO CITTERIO, PATRICIA VIEL, BERETTA ASSOCIATI 2004 - 2007

MUDEC

DAVID CHIPPERFIELD 1999 - 2015

TORTONA 37

Viale della Liberazione

Via Joe Colombo

Vile Motne Grappa 3

Via Salaino 10

Via Forcella 5

Via Bergognone 59

Via Bergognone 40

Via Bergognone 53

Via Savona 56/A

Via Tortona 56

MATTEO THUN 2003 - 2009 Via Tortona 37

SEHENSWERT...

EDIFICIO PER UFFICI E SHOWROOM

DORDONI ARCHITETTI

2008 - 2011

RESIDENZE HADID

ZAHA HADID

2009 - 2013

RESIDENZE LIBESKIND

DANIEL LIBESKIND

2009 - 2013

PORTELLO

GINO VALLE

2001 - 2014

RESIDENZE AL PORTELLO

CINO ZUCCHI - CZA

2002 - 2008

MAC 5, 6, 7

SAUERBRUCH HUTTON

2006 - 2010

ZURICH HEADQUARTERS

ALESSANDRO SCANDURRA

2006 - 2009

EDIFICIO U15

CINO ZUCCHI - CZA

2007 - 2011

EDIFICIO U27

PARK ASSOCIATi

2012 - 2014

MONDADORI HEADQUARTERS

OSCAR NIEMEYER

1968 - 1975

Via Savona 97, Via Tolstoj

Via Senofonte, Viale Cassiodoro

Via Spinola, Viale Berengario

Via Grosotto, Viale Traiano, Viale Serra, Viale e Gasperi

Via Traiano, Largo Zanuso

Via Imbonati 18

Via Crespi 23

Via del Mulino 4 - Assago

Via del Mulino 6 - Assago

Via Mondadori 1 - Segrate

Viale Monte Rosa 91

Turn static files into dynamic content formats.

Create a flipbook
Issuu converts static files into: digital portfolios, online yearbooks, online catalogs, digital photo albums and more. Sign up and create your flipbook.