design folio

Taylor Egan 04007270
DIA20003 Interior Digital Documentation
Semester 1, 2023
Taylor Egan 04007270
DIA20003 Interior Digital Documentation
Semester 1, 2023
pages 1-5
pages 6-12
pages 13-16
pages 16-23
pages4-28
Task 1
Traced Drawings of Community Centre
Task 2
Exploration of Abstract Forms
Task 2
Site Exploration
Task 2
Building Development
Task 2
Renders
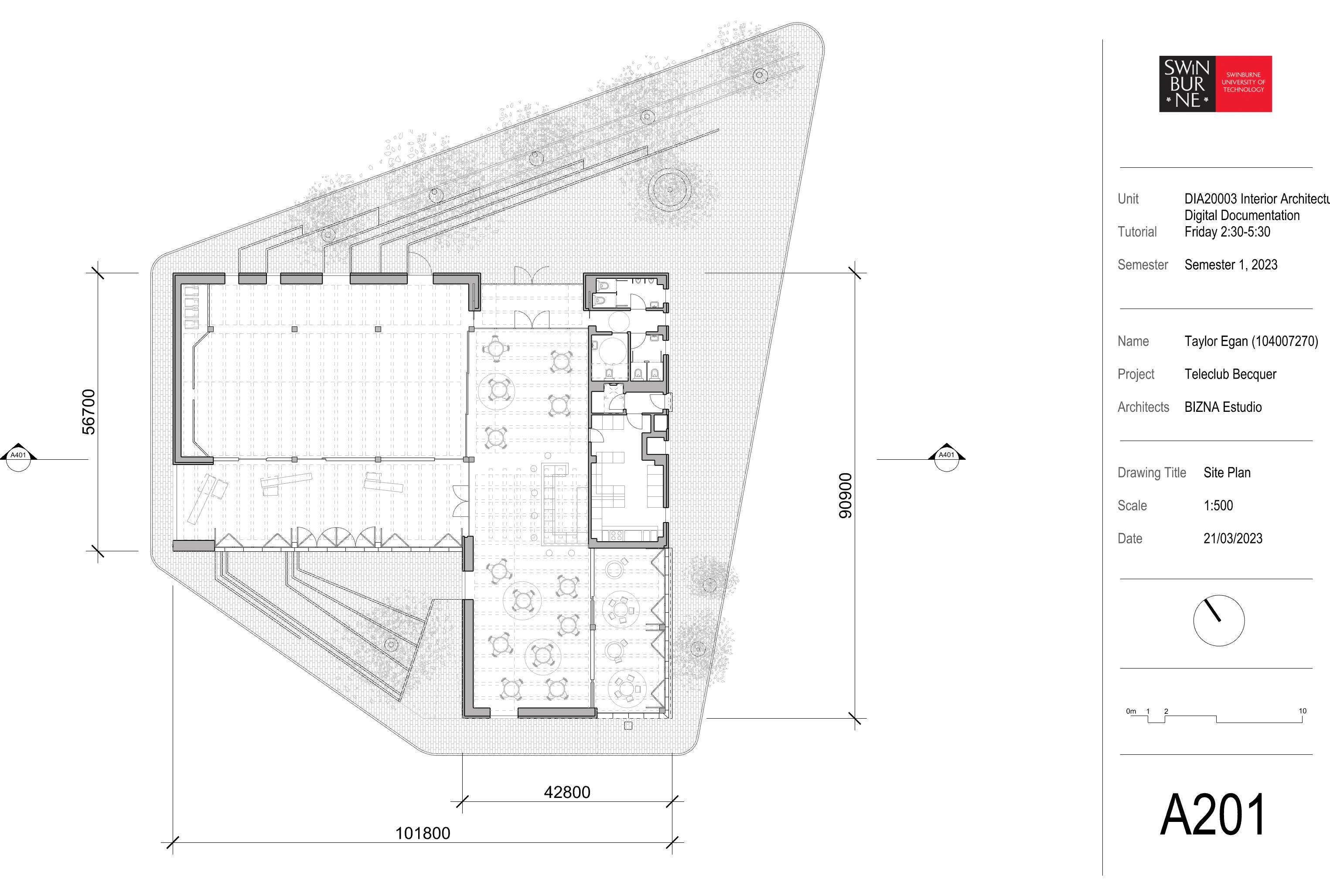
task 01 Precedent Study




task 02 Community Hall Design

create box set boundary construct organic curves & rails sweep 2/quadremesh/ tosubD
create curves loft surfaces

create pyramid trim sections






structure medium scale








The site my group and I chose for this task is located near coastline in the Great Otway National Park. The site consists largely of forrest and rocky coastlines, with some sandy beaches. There is minimal infrastructure but roads for vehicle access.
Coordinates:







My original building form. ‘Napkin’ shape will form the exterior walls.

Figure 3 shows an upclose detail of the mesh exterior, and figure 4 focuses on the gallery.
Kukje Gallery
Seoul, South Korea, 2012 by SO-IL
Constructed in 2012, Kukje Gallery is a building consisting of a fairly simple form draped in a mesh like material made from chain link.
I’ve decided to use a similar method for my building, however I would like the mesh to look more free flowing and organic.



The new structure has three levels ad seperates the napkin structure from the buildin, using it as a ‘fabric’ that is draped over the building form.
This design focuses on maximising the ocean views and mimicking the slope of the site with the staggered from.



Axonometric views of updated building design.

Re-design of the decking area: I’ve changed the rectangular shapes of the decking to overlap, creating a more natural, organic form.










The top floor features wall-to-ceiling windows to maximise ocean views and to make occupants feel as though they are in the landscape.

The perforated metal meshing creates an airy, transparent feel to the building.


The conference room on the second floor, with detail of the perforated metal meshing.

The decking where visitors can participate in yoga classes and enjoy the ocean views and fresh air.
task 03 Textured Drawings





