SUSANNA GREINER
Master of Architecture + Health candidate at Clemson University
![]()
Master of Architecture + Health candidate at Clemson University
a partner project - fall 2023Clemson University - studio critics David Allison and Dr. Lyndsey Deaton
a 98-bed hospital designed to address climate change with COTE 10 principles
a site-specific project - spring 2022
- Georgia Institute of Technologystudio critic Dr. Ryan Roark
a mixed-use development providing housing, child care, and medical care
an experimental project - fall 2021
- Georgia Institute of Technologystudio critic Logman Arja
a celebration of the history of Georgia with a unique community space
a site-specific project - fall 2022University of Sydney - studio critic Eddie Ma
a lively solution to the houselessness affecting older women in Sydney
a collaborative project - spring 2023
- Georgia Institute of Technologystudio critics Dr. John Peponis and Jim Budd
an exploration of architecture as an influence for underrepresented populations in clinical trials
a site-specific project - spring 2024 -
Clemson University - studio critic Dr. Lyndsey Deaton
a community center with housing and a primary school in Voznesens’k, Ukraine

a partner project - fall 2023 - Clemson University - studio critics David Allison and Dr. Lyndsey Deaton
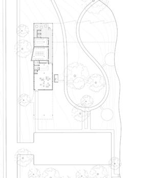
Hospitals have a significant impact on climate change - five percent of all greenhouse gas emissions worldwide are produced by healthcare systems. In addition, many people find healthcare buildings to be uncomfortable, institutional spaces only to be entered in the case of an emergency. Even healthcare providers find their working environments challenging, and there are record levels of provider burnout and turnover that result in high financial consequences and low patient satisfaction and safety.
‘Pooling’ is a 98-bed community hospital located in Indian Land, South Carolina that integrates water collection, filtration, and testing into the
health landscape to improve well-being for providers, staff, patients, community members, and the ecosystem. Stormwater passes through a biofiltration pond with native plants and animals that naturally filter the water and allow sedimentation to occur. Then, the water flows through the main hospital courtyard, providing therapeutic benefits and a cooling effect. Finally, the natural swimming pool serves as the main gathering area for both water and the community. The AIA COTE TOp Ten Principles for Design Excellence were used as a base for this project.
This was a partner project in a vertical studio. All work was completed in conjunction with Roshan Jose.


thousand gallons of water collected by the roof in a 1000 year storm as calculated using NOAA data thousand gallons of water collected by the roof in a 12-hour light rain, as calculated using NOAA data 2.68







a site-specific project - spring 2022 - Georgia Institute of Technology - studio critic Dr. Ryan Roark
As the price of housing in Atlanta, Georgia rises, many employees of the Atlanta Public School System struggle to find a place to live close to where they work. For this project, I designed a mixed-use development in the West End neighborhood geared towards Atlanta Public School employees and the surrounding community impacted by beltline construction and gentrification.
The development provides four different unit types to accommodate modern families as well as amenities like laundry, mail, and a rooftop terrace. There is also a variety of walking and running paths throughout
the site and gardens that can be used by residents and the surrounding neighborhood.
The other programs on the site are a daycare and urgent care. The urgent care was designed as a separate building to fulfill the needs for emergency medical services in the area – the next closest urgent care is over 15 minutes away by car. A daycare was also designed in response to interviews of the librarians in the next-door library – who explained how the space often became an impromptu child-care center offering classes and activities.
















an experimental project - fall 2021 - Georgia Institute of Technology - studio critic Logman Arja
Folk Pottery is synonymous with the state of Georgia. The state is widely known for its rich deposits of clay that have been historically used to create pottery. Due to the rural and agrarian lifestyle of early Georgia, farmers also needed durable jugs to store food and drink. As potters set their operations where they could find pure stoneware clay, small shops formed and grew around their pottery, creating small towns known as ‘jugtowns’. The site for this project is a previous jugtown near Helen, GA .
I designed a folk pottery museum and makerspace that celebrates the rich ceramic history of the region. The spaces are influenced by the steps in the folk pottery process and serve as a community center.
The primary material for the design is 3D printed mud. As a material that can be collected from the site and mixed with other aggregate to improve structural integrity, 3D printed mud is a sustainable material. Explorations of the properties of 3D printed clay were used to conduct research for the structure.

















a site-specific project - fall 2022 - University of Sydney - studio critic Eddie Ma
Older single women are the fastest-growing demographic at risk of homelessness in Australia. Unable to get early assistance to prevent housing insecurity, women are forced to live in cars or sleep rough.
Having enough affordable and safe housing is essential to building a society in which the equality of all its citizens is one of the fundamental principles. Designing adequate housing for this vulnerable group is one of the contributions that architects can do to tackle this problem. Projects whose architectural qualities make dwellers feel safe, inspired, and respected, develop a sense of belonging and help them to rebuild their lives and create bonds with their community.
The site is owned by the NSW Land and Housing Corporation and is located at 74-76 Salisbury Road, Stanmore, NSW, Australia. It is currently occupied by a single-story double-fronted house and a small group of three 1960s seniors bedsits.
I designed 8 new self-contained units for older women with strong relationships between public and private spaces. The dwellings, open spaces, gardens, and communal areas have an emphasis on equality, accessibility, and light. The design seeks to avoid the institutional feel of traditional housing for older adults with playful shapes and colors on the facades and interiors.


develop visual connections to increase feelings of spaciousness


locate private gardens to transition between public and individual spaces
maximize natural ventilation for resident comfort

create spaces of intersection for casual socialization
ensure access to light from a variety of directions design principles


provide all units with equal views of shared outdoor spaces












a collaborative project - spring 2023 - Georgia Institute of Technology - studio critics Dr. John Peponis and Jim Budd
The Family Care Center aims to tackle the challenge of diverse clinical trial recruitment by addressing the barriers of adequate healthcare for underserved populations. Through individual research and interviews of experts, it was determined that these communities are underrepresented because of their distance from medical facilities, unfamiliarity with health literacy, concerns about privacy, lack of confidence in institutional organizations, and inability to attract and retain medical providers. Other historical and systemic challenges call for a building that is more than a medical facility. The Family Care Center is a community-focused development with the goal of rebuilding connections with a rightfully distrustful population so that they can participate in and benefit from clinical trials in the future.
Within the Atlanta neighborhood of Pittsburgh, the Family Care Center is the only provider of pharmacy, daycare, and basic medical services,
bringing these essential programs closer to those who need them. The flex space on the first floor acts as a community ‘living room’, with areas to accommodate health literacy sessions and other educational or social events. Patient privacy is prioritized by incorporating an app to give individuals control over prescription pickup, as well as with the addition of pharmacy consultation rooms to provide a quiet place to ask any questions. Other innovations like informational games, graphics, and even a vending machine provide opportunities to learn more about clinical trails while reducing the institutionality of the design. Finally, providers are supported alongside the community they serve through a private lounge and outdoor terrace to prevent burnout and increase provider-community relationships.
This project was a group project with Susanna Greiner, Emily Mosbaugh, Emily Zhou, Clara McAuley, and Justin Binns.

























a site-specific project - spring 2024 - Clemson University - studio critic Dr. Lyndsey Deaton
Russia’s invasion of Ukraine has led to over 3.5 million internally displaced persons (IDPs) in Ukraine as of January 2024. Within this population, single parent families (37% of all IDPs) are particularly vulnerable and often can not find housing, jobs, or a place for their children to attend school. Members of single-parent families are likely to also face additional challenges like gender-based violence and disabilities. Providing housing and educational spaces for these families as they evacuate from the front lines is imperative as they are being disproportionately affected by the martial law, economic instability, and online education prompted by the wartime conditions.
Voznesens’k is one of the cities in Ukraine that has been welcoming IDPs fleeing from the war (3,194 as of January 2024). Identified by the UN as a pilot city for the Smart Sustainable Cities programme, Vosenesens’k is a medium-sized city located in the southern part of Ukraine that is currently in the in-between “catchment” zone.
Two Horizons connects a public transportation stop on the nearby main road through the site to a community pool and gym with a pedestrian pathway. Another pathway cuts the site diagonally to enable access to the nearby park. The primary school and community spaces are in a large building sunken underground with courtyards to bring light into the lower level. An occupiable green roof with edge berms on this building hides it from the view of those in the community gym and park and gives the illusion of an untouched site. Across the diagonal pedestrian pathway, a tower rises above the site with housing. Together, these forms represent the Ukrainian values of ‘protecting the vulnerable’ and ‘freedom as an essential part of harmony’ as shown in the traditional folk tale ‘The Bird’s Gift’.
public park preserve the viewshed from the rec center protect the vulnerable
(The Bird’s Gi )

freedom is essential for harmony
(The Bird’s Gi )
Approximate Area of Russian Occupation
3.5 MILLION
Internally Displaced Persons in Ukraine (UN Migration Tracking Matrix, Jan 2024)
“A particular group of vulnerability includes single-headed households, especially those headed by women” (UN Human Impact Assessment, Jan 2023)
36% of IDP households are single adults with dependents (UNHCR, Jan 2024)






























