









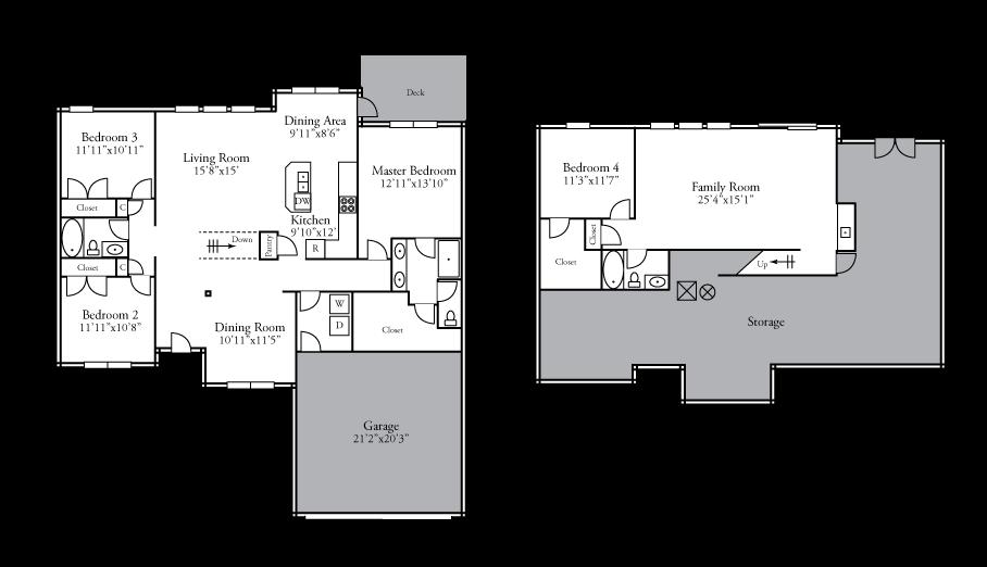
Discover your dream home in the sought-after Southeast subdivision of Forest Park! This stunning walkout ranch boasts 4 spacious bedrooms and 3 modern bathrooms The heart of the home is an open kitchen featuring a large island, granite countertops, and sleek stainless steel appliances Enjoy the elegance of wood, tile, and carpet flooring throughout The vaulted ceilings add a touch of grandeur to the main living spaces Downstairs, the expansive family room is perfect for entertaining, complete with a wet bar and direct access to the fenced backyard With ample storage throughout, this home offers both style and functionality Don't miss the opportunity to own this beautiful property in a prime location!

































