Training Portfolio CSBNE Kollam 2021

Page 1

1KF16AT031

A B U S H E R I E N R E S I D E N C E

T R A I N I N G P O R T F O L I O S U R A J K A R W A S R A

S L A B

E S I N T H E F I G U R E D D M E N S I O N A R E T O B E R E P O R T E D M M E D A T E L Y T O T H E A R C H T E C T R E F E R T O S T R U C T U R A L E N G N E E R N G D R A W N G F O R A L L S T R U C T U R A L S Z E S A N D D M E N S O N S A L L L E V E L S S H O W N O N F L O O R P L A N S A R E F N S H E D F L O O R L E V E L S A N D A L L D I M E N S O N S M E N T I O N E D A R E F N S H E D D I M E N S O N S U N L E S S O T H E R W I S E S P E C I F E D M A N U F A C T U R E R S S U P P L E R S S H A L L F U R N S H N S T A L L A N D C O M P L E T E A L L N S T A L L A T I O N S A N D S H A L L B E R E S P O N S B L E F O R T H E W A R R A N T Y C O N F O R M I T Y A N D P E R F O R M A N C E O F T H E P R O D U C T R E C E V E D B Y D A

C S B N E C E N T R E F O R S U S T A N A B L E B U L T A N D N A T U R A L E N V R O N M E N T © 2 0 1 6 C S B N E L L P R E S E R V E S A L L R G H T S T O T H E S E D R A W I N G S D E S G N S A N D O R A N Y O T H E R D A T A C O N T A N E D H E R E N N O P A R T O F T H E S A D D R A W N G S D E S G N S A N D O R O T H E R D A T A M A Y B E R E P R O D U C E D M O D F E D T R A N S M T T E D O R U S E D N A N Y F O R M O R B Y A N Y M E A N S F O R A N Y P U R P O S E W T H O U T T H E P R O R W R T T E N C O N S E N T O F C S B N E L L P O T H E R T H A N T
E S O L E P U R P O S E F O R W
E
D
W
U
E
C S B N E C O M P R E H E N S V E D E S G N S E R V C E S L L P V I / 1 6 1 , S R E E M A N G A
D
D
Y : R E V I S O N D A T E R E M A R K S C O N S U L T A N T S N O T E S P R O J E C T E X E C U T O N T E A M M U S T C H E C K A N D V E R I F Y A L L D I M E N S O N S O N S T E B E F O R E C O M M E N C E M E N T O F W O R K A N Y D S C R E P A N C
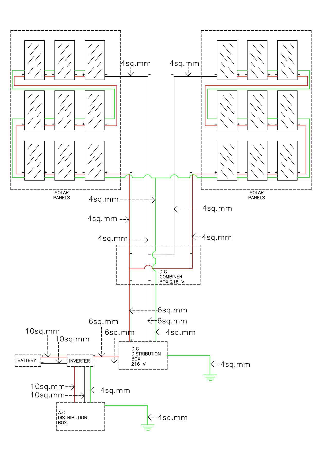
T E D R A W N B Y X X X X X D A T E : D D M M Y Y Y Y N C H E C K E D B Y : S H E R I E N R E S I D E N C E D R A W I N G N O : 0 1 A R A J A Y A B E Y C H E C K E D B Y : A R T A R A P A N D A L A A R A J A Y A B E Y S T A I R S A B U S H E R I E N S C A L E 1 : 2 0 V E R S I O N : V 1 1 D R A W N B Y S U R A J K A R W A S R A D A T E : 0 9 0 3 2 0 2 0 2 0 0 1 2 0 2 0 C H A N G E S N D M E N S O N S N U P 1 2 3 4 5 6 7 8 9 1 0 1 1 1 2 1 3 1 4 1 5 1 6 1 7 1 8 1 9 2 0 K E Y P L A N 3 5 2 0 5 4 5 2 4 4 1 2 2 2 4 3 6 0 9 1 0 5 1 3 9 8 8 1 3 8 1 2 5 2 7 4 3 9 0 2 1 6 5 0 4 5 1 2 0 3 3 0 2 2 1 2 5 1 6 1 0 . 0 2 4 2 0 6 9 0 5 0 2 0 0 2 6 1 2 0 0 2 7 0 2 7 0 2 6 7 2 7 3 2 7 0 2 6 9 2 7 1 2 6 7 2 7 0 4 7 4 4 7 5 2 7 0 2 7 0 2 7 0 2 7 0 2 7 0 2 7 0 2 7 0 2 7 0 2 7 0 1 2 2 2 7 3 . 0 5 0 6 5 2 2 1 9 0 2 0 7 9 0 5 0 2 4 2 0 5 0 5 0 5 0 5 0 P L A N S I D E E L E V A T I O N 2 5 0 2 5 0 G . I R E C T A N G U L A R S E C T I O N ( 1 0 C M X 5 C M ) 1 4 9 . 0 8 4 6 0 0 2 7 2 7 2 7 2 7 2 7 2 7 2 7 2 7 2 7 2 7 2 7 2 7 2 7 2 7 2 7 2 7 9 1 7 2 8 2 . 8 3 1 7 . 3 2 8 0 8 S T R U T ( 5 X 5 C M ) B A L U S T E R ( 2 5 X 3 6 ) 9 7 . 0 1 5 6 9 4 . 8 9 0 9 0 1 0 8 R A I L I N G D E T A I L
H
H I C H O T H
R
R A
N G S , D E S G N S A N D O R O T H E R D A T A A R E P R O V I D E D T O L C E N S E D
S
R S O N S U C H T E R M S A S C S B N E L L P M A Y P R E S C R B E
L A M M A T H L L P O N D A 6 9 1 6 0 1 W W W C S B N E O R G P R O J E C T : C L I E N T : P R O J E C T N O :
R A W I N G W O R K N G D R A W I N G T I T L E
R A W I N G N O : V E R S I O N : S C A L E C H E C K E D B Y : A P P R O V E D B

D R

T H E F I G U R E D D M E N S I O N A R E T O B E R E P O R T E D M M E D A T E L Y T O T H E A R C H T E C T R E F E R T O S T R U C T U R A L E N G N E E R N G D R A W N G F O R A L L S T R U C T U R A L S Z E S A N D D M E N S O N S A L L L E V E L S S H O W N O N F L O O R P L A N S A R E F N S H E D F L O O R L E V E L S A N D A L L D I M E N S O N S M E N T I O N E D A R E F N S H E D D I M E N S O N S U N L E S S O T H E R W I S E S P E C I F E D M A N U F A C T U R E R S S U P P L E R S S H A L L F U R N S H N S T A L L A N D C O M P L E T E A L L N S T A L L A T I O N S A N D S H A L L B E R E S P O N S B L E F O R T H E W A R R A N T Y C O N F O R M I T Y A N D P E R F O R M A N C E O F T H E P R O D U C T R E C E V E D B Y

C S B N E C E N T R E F O R S U S T A N A B L E B U L T A N D N A T U R A L E N V R O N M E N T © 2 0 1 6 C S B N E L L P R E S E R V E S A L L R G H T S T O T H E S E D R A W I N G S D E S G N S A N D O R A N Y O T H E R D A T A C O N T A N E D H E R E N N O P A R T O F T H E S A D D R A W N G S D E S G N S A N D O R O T H E R D A T A M A Y B E R E P R O D U C E D M O D F E D T R A N S M T T E D O R U S E D N A N Y F O R M O R B Y A N Y M E A N S F O R A N Y P U
R W
N D
R
T
E
U S E R S O N S U
E
P
P
C S B N E C O M P R E H E N S V E D E S G N S E R V C E S L L P V I / 1 6 1 , S R E E M A N G A L A M M A T H L L P O N D A 6 9 1 6 0 1 W W W C S B N E O R G P R O J E C T : C L I E N T : P R O J E C T N O : D R A W I N G W O R K N G D R A W I N G T I T L E D R A W I N G N O : V E R S I O N : S C A L E C H E C K E D B Y : A P P R O V E D B Y : R E V I S O N D A T E R E M A R K S C O N S U L T A N T S N O T E S P R O J E C T E X E C U T O N T E A M M U S T C H E C K A N D V E R I F Y A L L D I M E N S O N S O N S T E B E F O R E C O M M E N C E M E N T O F W O R K A N Y D S C R E P A N C E S I N
D A T E
R P O S E W T H O U T T H E P R O
R T T E N C O N S E N T O F C S B N E L L P O T H E R T H A N T H E S O L E P U R P O S E F O R W H I C H O T H E R D R A W N G S , D E S G N S A
O
O
H
R D A T A A R E P R O V I D E D T O L C E N S E D
C H T
R M S A S C S B N E L L
M A Y
R E S C R B E
A W N B Y X X X X X D A T E : D D M M Y Y Y Y N C H E C K E D B Y : S H E R I E N R E S I D E N C E D R A W I N G N O : 0 2 A R A J A Y A B E Y C H E C K E D B Y : A R T A R A P A N D A L A A R A J A Y A B E Y S T A I R S A B U S H E R I E N S C A L E 1 : 2 0 V E R S I O N : V 1 1 D R A W N B Y S U R A J K A R W A S R A D A T E : 0 9 0 3 2 0 2 0 2 0 0 1 2 0 2 0 C H A N G E S N D M E N S O N S N 3 1 8 0 1 2 0 1 6 5 F R O N T E L E V A T I O N 1 6 5 1 7 0 1 7 0 2 5 7 1 . 9 2 5 1 1 7 5 5 1 5 7 5 2 4 1 . 5 3 0 5 0 9 0 1 6 0 1 6 0 2 3 . 0 1 5 9 2 3 M M F L A T H A N D R A I L ( 2 4 X 3 6 M M ) R E C T A N G L E S E C T I O N L A N D I N G 9 0

T R U C T U R A L S Z E S A N D D M E N S O N S A L L L E V E L S S H O W N O N F L O O R P L A N S A R E F N S H E D F L O O R L E V E L S A N D A L L D I M E N S O N S M E N T I O N E D A R E F N S H E D D I M E N S O N S U N L E S S O T H E R W I S E S P E C I F E D M A N U F A C T U R E R S S U P P L E R S S H A L L F U R N S H N S T A L L A N D C O M P L E T E A L L N S T A L L A T I O N S A N D S H A L L B E R E S P O N S B L E F O R T H E W A R R A N T Y C O N F O R M I T Y A N D P E R F O R

T R E A D D E T A I L D E T A I L B A B D D E T A I L A D E T A I L D E X P L O D E D T R E A D D E T A I L P A T T E R N D E T A I L M . S . P L A T E A N C H O R E D T O F . F . L . M S P L A T E ( 3 M M T H K ) 5 0 0 G . I R E C T A N G U L A R S E C T I O N ( 1 0 C M X 5 C M ) M . S . P L A T E 1 0 C M X 1 0 C M S T R U T ( 5 C M X 5 C M ) M . S . P L A T E ( 3 M M T H K ) W I T H O U T D I A G O N A L S U P P O R T 4 7 . 4 1 4 7 . 5 0 G I C I R C U L A R S E C T I O N ( 3 M M D I A ) L S E C T I O N S U P P O R T G . I R E C T A N G U L A R S E C T I O N ( 1 0 C M X 5 C M ) G . I C I R C U L A R S E C T I O N ( 3 M M T H K ) M . S . P L A T E ( 3 M M T H K ) M S P L A T E ( 3 M M T H K ) M S P L A T E ( 3 M M T H K ) W O O D E N P L A N K ( 2 6 M M T H K ) 1 6 1 6 1 1 1 1 3 M M F L A T 1 8 0 . 0 5 4 . 0 C S B N E C E N T R E F O R S U S T A N A B L E B U L T A N D N A T U R A L E N V R O N M E N T © 2 0 1 6 C S B N E L L P R E S E R V E S A L L R G H T S T O T H E S E D R A W I N G S D E S G N S A N D O R A N Y O T H E R D A T A C O N T A N E D H E R E N N O P A R T O F T H E S A D D R A W N G S D E S G N S A N D O R O T H E R D A T A M A Y B E R E P R O D U C E D M O D F E D T R A N S M T T E D O R U S E D N A N Y F O R M O R B Y A N Y M E A N S F O R A N Y P U R P O S E W T H O U T T H E P R O R W R T T E N C O N S E N T O F C S B N E L L P O T H E R T H A N T H E S
U S E
E C S B N E C O M P R E H E N S V E D E S G N S E R V C E S L L P V I / 1 6 1 , S R E E M A N G A L A M M A T H L L P O N D A 6 9 1 6 0 1 W W W C S B N E O R G P R O J E C T : C L I E N T : P R O J E C T N O : D R A W I N G W O R K N G D R A W I N G T I T L E D R A W I N G N O : V E R S I O N : S C A L E C H E C K E D B Y : A P P R O V E D B Y : R E V I S O N D A T E R E M A R K S C O N S U L T A N T S N O T E S P R O J E C T E X E C U T O N T E A M M U S T C H E C K A N D V E R I F Y A L L D I M E N S O N S O N S T E B E F O R E C O M M E N C E M E N T
K A N Y D S C R E P
E S
D D M E N S I O
M M E D A T E L
S
S
M A N C E O F T H E P R O D U C T R E C E V E D B Y D A T E D R A W N B Y X X X X X D A T E : D D M M Y Y Y Y N C H E C K E D B Y : S H E R I E N R E S I D E N C E D R A W I N G N O : 0 3 A R A J A Y A B E Y C H E C K E D B Y : A R T A R A P A N D A L A A R A J A Y A B E Y S T A I R S A B U S H E R I E N S C A L E 1 : 1 0 V E R S I O N : V 1 1 D R A W N B Y S U R A J K A R W A S R A D A T E : 0 9 0 3 2 0 2 0 2 0 0 1 2 0 2 0 C H A N G E S N D M E N S O N S N 6 0 0 3 9 9 2 0 1 9 4 . 3 1 1 7 1 3 9 2 0 0 2 . 6 1 6 5 . 0 2 0 2 4 2 . 6 2 7 0 L S E C T I O N S U P P O R T W O O D E N L O G ( 2 6 M M T H K ) G . I C I R C U L A R S E C T I O N ( 3 M M T H K ) G I R E C T A N G U L A R S E C T I O N ( 1 0 C M X 5 C M ) W O O D E N P L A N K ( 2 6 M M T H K ) G . I C I R C U L A R S E C T I O N ( 3 M M T H K ) G . I R E C T A N G U L A R S E C T I O N ( 1 0 C M X 5 C M ) M S P L A T E ( 3 M M T H K ) 1 6 5 N O S I N G 9 0 0
O L E P U R P O S E F O R W H I C H O T H E R D R A W N G S , D E S G N S A N D O R O T H E R D A T A A R E P R O V I D E D T O L C E N S E D
R S O N S U C H T E R M S A S C S B N E L L P M A Y P R E S C R B
O F W O R
A N C
I N T H E F I G U R E
N A R E T O B E R E P O R T E D
Y T O T H E A R C H T E C T R E F E R T O
T R U C T U R A L E N G N E E R N G D R A W N G F O R A L L

D R

E V E L S S H O W N O N F L O O R P L A N S A R E F N S H E D F L O O R L E V E L S A N D A L L D I M E N S O N S M E N T I O N E D A R E F N S H E D D I M E N S O N S U N L E S S O T H E R W I S E S P E C I F E D M A N U F A C T U R E R S S U P P L E R S S H A L L F U R N S H N S T A L L A N D C O M P L E T E A L L N S T A L L A T I O N S A N D S H A L L B E R E S P O N S B L E F O R T H E W A R R A N T Y C O N F O R M I T Y A N D P E R F O R M A N C E O F T H E P R O D U C T R E C E V E D B Y

C S B N E C E N T R E F O R S U S T A N A B L E B U L T A N D N A T U R A L E N V R O N M E N T © 2 0 1 6 C S B N E L L P R E S E R V E S A L L R G H T S T O T H E S E D R A W I N G S D E S G N S A N D O R A N Y O T H E R D A T A C O N T A N E D H E R E N N O P A R T O F T H E S A D D R A W N G S D E S G N S A N D O R O T H E R D A T A M A Y B E R E P R O D U C E D M O D F E D T R A N S M T T E D O R U S E D N A N Y F O R M O R B Y A N Y M E A N S F O R A N Y P U R P O S E W T H O U T T H E P R O R W R T T E N C O N S E N T O F C S B N E L L P O T H E R T H A N T H E S O L E P U R P O S E F O R W H I C H O T H E R D R A W N G S , D E S G N S A N D O R O T H E R D A T A A R E P R O V I D E D T O L C E N S E D U S E R S O N S U C H T E R M S A S C S B N E L L P M A Y P R E S C R B E C S B N E C O M P R E H E N S V E D E S G N S E R V C E S L L P V I / 1 6 1 , S R E E M A N G A L A M M A T H L L P O N D A 6 9 1 6 0 1 W W W C S B N E O R G P R O J E C T : C L I E N T : P R O J E C T N O : D R A W I N G W O R K N G D R A W I N G T I T L E D R A W I N G N O : V E R S I O N : S C A L E C H E C K E D B Y : A P P R O V E D B Y : R E V I S O N D A T E R E M A R K S C O N S U L T A N T S N O T E S P R O J E C T E X E C U T O N T E A M M U S T C H E C K A N D V E R I F Y A L L D I M E N S O N S O N S T E B E F O R E C O M M E N C E M E N T O F W O R K A N Y D S C R E P A N C E S I N
D M
S
S
A
D
T H E F I G U R E D
E N S I O N A R E T O B E R E P O R T E D M M E D A T E L Y T O T H E A R C H T E C T R E F E R T O
T R U C T U R A L E N G N E E R N G D R A W N G F O R A L L
T R U C T U R A L S Z E S A N D D M E N S O N S
L L L
A T E
A W N B Y X X X X X D A T E : D D M M Y Y Y Y N C H E C K E D B Y : S H E R I E N R E S I D E N C E D R A W I N G N O : 0 4 A R A J A Y A B E Y C H E C K E D B Y : A R T A R A P A N D A L A A R A J A Y A B E Y S T A I R S A B U S H E R I E N S C A L E 1 : 1 0 V E R S I O N : V 1 1 D R A W N B Y S U R A J K A R W A S R A D A T E : 0 9 0 3 2 0 2 0 2 0 0 1 2 0 2 0 C H A N G E S N D M E N S O N S N 1 6 5 0 4 5 1 2 0 3 3 0 2 2 1 2 5 1 6 1 0 . 0 2 4 2 0 6 9 0 5 0 6 5 2 2 1 9 0 2 0 7 9 0 5 0 2 4 2 0 S I D E E L E V A T I O N 2 5 0 2 5 0 G . I R E C T A N G U L A R S E C T I O N ( 1 0 C M X 5 C M ) 1 4 9 . 0 8 4 6 0 0 9 1 7 2 8 2 . 8 3 1 7 . 3 2 8 0 8 S T R U T ( 5 X 5 C M ) B A L U S T E R ( 2 5 X 3 6 ) 1 5 6 9 4 . 8 9 0 9 0 1 0 8 T R E A D A N D R I S E R D E T A I L 1 1 7 1 3 9 2 0 0 2 6 1 6 5 0 2 0 2 4 2 6 2 7 . 0 L S E C T I O N S U P P O R T W O O D E N L O G ( 2 6 M M T H K ) G I C I R C U L A R S E C T I O N ( 3 M M T H K ) G . I R E C T A N G U L A R S E C T I O N ( 1 0 C M X 5 C M ) W O O D E N P L A N K ( 2 6 M M T H K ) G . I C I R C U L A R S E C T I O N ( 3 M M T H K ) G I R E C T A N G U L A R S E C T I O N ( 1 0 C M X 5 C M ) M . S . P L A T E ( 3 M M T H K ) 1 6 5 N O S I N G 9 0 0
C S B N E C E N T R E F O R S U S T A N A B L E B U L T A N D N A T U R A L E N V R O N M E N T © 2 0 1 6 C S B N E L L P R E S E R V E S A L L R G H T S T O T H E S E D R A W I N G S D E S G N S A N D O R A N Y O T H E R D A T A C O N T A N E D H E R E N N O P A R T O F T H E S A D D R A W N G S D E S G N S A N D O R O T H E R D A T A M A Y B E R E P R O D U C E D M O D F E D T R A N S M T T E D O R U S E D N A N Y F O R M O R B Y A N Y M E A N S F O R A N Y P U R P O S E W T H O U T T H E P R O R W R T T E N C O N S E N T O F C S B N E L L P O T H E R T H A N T H E S O L E P U R P O S E F O R W H I C H O T H E R D R A W N G S , D E S G N S A N D O R O T H E R D A T A A R E P R O V I D E D T O L C E N S E D U S E R S O N S U C H T E R M S A S C S B N E L L P M A Y P R E S C R B E C S B N E C O M P R E H E N S V E D E S G N S E R V C E S L L P V I / 1 6 1 , S R E E M A N G A L A M M A T H L L P O N D A 6 9 1 6 0 1 W W W C S B N E O R G P R O J E C T : C L I E N T : P R O J E C T N O : D R A W I N G W O R K N G D R A W I N G T I T L E D R A W I N G N O : 0 5 V E R S I O N : S C A L E 1 : 5 0 C H E C K E D B Y : A P P R O V E D B Y : R E V I S O N D A T E R E M A R K S C O N S U L T A N T S N O T E S P R O J E C T E X E C U T O N T E A M M U S T C H E C K A N D V E R I F Y A L L D I M E N S O N S O N S T E B E F O R E C O M M E N C E M E N T O F W O R K A N Y D S C R E P A N C E S I N T H E F I G U R E D D M E N S I O N A R E T O B E R E P O R T E D M M E D A T E L Y T O T H E A R C H T E C T R E F E R T O S T R U C T U R A L E N G N E E R N G D R A W N G F O R A L L S T R U C T U R A L S Z E S A N D D M E N S O N S A L
L E R S S H A L L F U R N S H N S T A L L A N D C O M P L E T E A L L N S T A L L A T I O N S A N D S H A L L B E R E S P O N S B L E F O R T H E W A R R A N T Y C O N F O R M I T Y A N D P E R F O R M A N C E O F T H E P R O D U C T R E C E V E D B Y D A T E D R A W N B Y S U R A J K A R W A S R A D A T E : 3 1 3 2 0 2 1 N C H E C K E D B Y : K E Y P L A N F E A T U R E D A R E A P L A N 3 5 1 . 9 2 9 3 0 2 9 3 0 5 0 1 3 5 0 7 1 5 0 0 2 3 3 7 7 5 2 3 3 7 7 0 F E A T U R E W A L L S E C T I O N A A ’ S E C T I O N B B ’ S E C T I O N C C ’ 5 0 0 5 0 0 5 0 0 5 0 0 5 0 0 5 0 0 4 5 0 1 2 9 2 3 2 1 5 0 2 2 5 3 1 2 5 2 0 0 1 0 1 5 1 0 8 7 2 2 9 5 3 7 6 5 2 3 . 0 1 5 0 7 2 4 3 7 6 1 4 5 0 2 2 5 0 2 0 0 2 4 2 9 3 5 1 9 1 3 7 8 3 3 4 . 0 1 7 5 8 3 6 3 2 1 1 5 1 5 0 9 5 6 1 3 8 0 4 9 8 1 7 5 0 3 7 . 9 1 4 1 . 7 C O U R T Y A R D P R A Y E R R O O M S I T T I N G A R E A W H E E L D E A T A I L D F E A T U R E W A L L 2 5 0 2 4 0 5 0 5 0 1 2 4 7 5 3 4 0 1 7 4 1 0 0 1 2 . 3 7 3 7 1 7 1 D E T A I L A T E D E T A I L A T D D E T A I L A T E B A M B O O M E S H C O P I N G 5 M M H A L F C U T B A M B O O A A ’ B B ’ C C ’ ( 1 : 5 ) ( 1 : 5 ) 1 1 4 1 1 5 M M T H K W A L L B R I C K C L A D D I N G 5 . 7 5 7 A B U S H E R I N E
L L E V E L S S H O W N O N F L O O R P L A N S A R E F N S H E D F L O O R L E V E L S A N D A L L D I M E N S O N S M E N T I O N E D A R E F N S H E D D I M E N S O N S U N L E S S O T H E R W I S E S P E C I F E D M A N U F A C T U R E R S S U P P
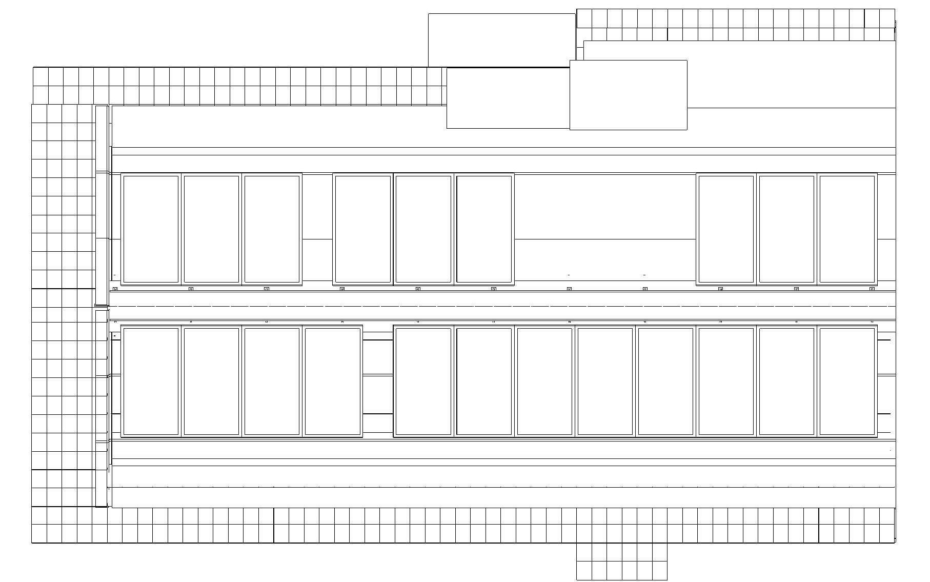
K E Y P L A N S K Y L I G H T 5 0 0 5 0 0 A A ’ S E C T I O N A A ’ P L A N D E T A I L O F S U P P O R T F O R E A V E G U T T E R 6 7 8 1 2 0 0 1 1 9 8 9 3 8 1 0 5 3 1 1 5 8 1 0 5 1 1 0 5 1 9 9 0 9 9 1 E A V E G U T T E R S U P P O R T 3 4 4 8 3 1 5 3 3 0 . 7 4 1 3 7 W A T E R G U T T E R 6 M M T H K F L A T S W I T H 2 5 M M D E P T H D E T A I L A T F 4 4 1 2 D E T A S A I L A T F S U P P O R T F O R E A V E G U T T E R S U P P O R T F O R E A V E G U T T E R O N P E R F O R A T E D S H E E T 6 M M T H K F L A T L A N G L E W I T H 2 5 M M E A C H F L A N G P E R F O R A T E D S H E E T W E L D E D W I T H 6 M M M E T A L S T R A P S 6 M N M T H K M E T A L S T R A P S O N C O P I N G C O P I N G C S B N E C E N T R E F O R S U S T A N A B L E B U L T A N D N A T U R A L E N V R O N M E N T © 2 0 1 6 C S B N E L L P R E S E R V E S A L L R G H T S T O T H E S E D R A W I N G S D E S G N S A N D O R A N Y O T H E R D A T A C O N T A N E D H E R E N N O P A R T O F T H E S A D D R A W N G S D E S G N S A N D O R O T H E R D A T A M A Y B E R E P R O D U C E D M O D F E D T R A N S M T T E D O R U S E D N A N Y F O R M O R B Y A N Y M E A N S F O R A N Y P U R P O S E W T H O U T T H E P R O R W R T T E N C O N S E N T O F C S B N E L L P O T H E R T H A N T H E S O L E P U R P O S E F O R W H I C H O T H E R D R A W N G S , D E S G N S A N D O R O T H E R D A T A A R E P R O V I D E D T O L C E N S E D U S E R S O N S U C H T E R M S A S C S B N E L L P M A Y P R E S C R B E C S B N E C O M P R E H E N S V E D E S G N S E R V C E S L L P V I / 1 6 1 , S R E E M A N G A L A M M A T H L L P O N D A 6 9 1 6 0 1 W W W C S B N E O R G P R O J E C T : C L I E N T : P R O J E C T N O : D R A W I N G W O R K N G D R A W I N G T I T L E D R A W I N G N O : 0 6 V E R S I O N : S C A L E 1 : 5 0 C H E C K E D B Y : A P P R O V E D B Y : R E V I S O N D A T E R E M A R K S C O N S U L T A N T S N O T E S P R O J E C T E X E C U T O N T E A M M U S T C H E C K A N D V E R I F Y A L L D I M E N S O N S O N S T E B E F O R E C O M M E N C E M E N T O F W O R K A N Y D S C R E P A N C E S I N T H E F I G U R E D D M E N S I O N A R E T O B E R E P O R T E D M M E D A T E L Y T O T H E A R C H T E C T R E F E R T O S T R U C T U R A L E N G N E E R N G D R A W N G F O R A L L S T R U C T U R A L S Z E S A N D D M E N S O N S A L L L E V E L S S H O W N O N F L O O R P L A N S A R E F N S H E D F L O O R L E V E L S A N D A L L D I M E N S O N S M E N T I O N E D A R E F N S H E D D I M E N S O N S U N L E S S O T H E R W I S E S P E C I F E D M A N U F A C T U R E R S S U P P L E R S S H A L L F U R N S H N S T A L L A N D C O M P L E T E A L L N S T A L L A T I O N S A N D S H A L L B E R E S P O N S B L E F O R T H E W A R R A N T Y C O N F O R M I T Y A N D P E R F O R M A N C E O F T H E P R O D U C T R E C E V E D B Y D A T E D R A W N B Y S U R A J K A R W A S R A D A T E : 3 1 3 2 0 2 1 N C H E C K E D B Y : S K Y L I G H T & G U T T E R D E T A L S 4 4 2 5 4 B O X S E C T I O N W E L D E D T O R A F T E R G I S H E E T S U P P O R T F O R E A V E G U T T E R 6 M M T H K F L A T S 5 1 1 8 7 0 3 3 3 5 2 1 . 9 3 M M T H K M E T A L S T R A P S 6 M M T H K F L A T L A N G L E W I T H 2 5 M M E A C H F L A N G 6 M M T H K F L A T A B U S H E R I N E P E R F O R A T E D S H E E T O N T H E S K Y L I G H T C O V E R P E R F O R A T E D S H E E T O N T H E S K Y L I G H T C O V E R C O P I N G S O L D I E R C O U R S E P E R F O R A T E D S H E E T 6 M M T H K F L A T W I N D O W E X P O S E D B R I C K S O L D I E R C O U R S E W H E E L L I N T E L B E A M E X P O S E D B R I C K 6 M M T H K F L A T L A N G L E W I T H 2 5 M M E A C H F L A N G S O L D I E R C O U R S E T I L E S
C S B N E C E N T R E F O R S U S T A N A B L E B U L T A N D N A T U R A L E N V R O N M E N T © 2 0 1 6 C S B N E L L P R E S E R V E S A L L R G H T S T O T H E S E D R A W I N G S D E S G N S A N D O R A N Y O T H E R D A T A C O N T A N E D H E R E N N O P A R T O F T H E S A D D R A W N G S D E S G N S A N D O R O T H E R D A T A M A Y B E R E P R O D U C E D M O D F E D T R A N S M T T E D O R U S E D N A N Y F O R M O R B Y A N Y M E A N S F O R A N Y P U R P O S E W T H O U T T H E P R O R W R T T E N C O N S E N T O F C S B N E L L P O T H E R T H A N T H E S O L E P U R P O S E F O R W H I C H O T H E R D R A W N G S , D E S G N S A N D O R O T H E R D A T A A R E P R O V I D E D T O L C E N S E D U S E R S O N S U C H T E R M S A S C S B N E L L P M A Y P R E S C R B E C S B N E C O M P R E H E N S V E D E S G N S E R V C E S L L P V I / 1 6 1 , S R E E M A N G A L A M M A T H L L P O N D A 6 9 1 6 0 1 W W W C S B N E O R G P R O J E C T : C L I E N T : P R O J E C T N O : D R A W I N G W O R K N G D R A W I N G T I T L E D R A W I N G N O : 0 7 V E R S I O N : S C A L E C H E C K E D B Y : A P P R O V E D B Y : R E V I S O N D A T E R E M A R K S C O N S U L T A N T S N O T E S P R O J E C T E X E C U T O N T E A M M U S T C H E C K A N D V E R I F Y A L L D I M E N S O N S O N S T E B E F O R E C O M M E N C E M E N T O F W O R K A N Y D S C R E P A N C E S I N T H E F I G U R E D D M E N S I O N A R E T O B E R E P O R T E D M M E D A T E L Y T O T H E A R C H T E C T R E F E R T O S T R U C T U R A L E N G N E E R N G D R A W N G F O R A L L S T R U C T U R A L S Z E S A N D D M E N S O N S A L L L E V E L S S H O W N O N F L O O R P L A N S A R E F N S H E D F L O O R L E V E L S A N D A L L D I M E N S O N S M E N T I O N E D A R E F N S H E D D I M E N S O N S U N L E S S O T H E R W I S E S P E C I F E D M A N U F A C T U R E R S S U P P L E R S S H A L L F U R N S H N S T A L L A N D C O M P L E T E A L L N S T A L L A T I O N S A N D S H A L L B E R E S P O N S B L E F O R T H E W A R R A N T Y C O N F O R M I T Y A N D P E R F O R M A N C E O F T H E P R O D U C T R E C E V E D B Y D A T E D R A W N B Y S U R A J K A R W A S R A D A T E : 3 1 3 2 0 2 1 C H E C K E D B Y : F E A T U R E W A L L & S K Y L G H T V I E W A B U S H E R I N E C O P I N G W I N D O W P E R F O R A T E D S H E E T O V E R 6 M M T H K F L A T S 6 M M T H K F L A T S G U T T E R 3 0 C M W I D E S O L D I E R C O U R S E E X P O S E D B R I C K ( E N G L I S H B O N D ) B A L C O N Y 2 0 C M W I D E L I N T E L S O L D I E R C O U R S E W H E E L 1 5 0 C M D I A E X P O S E D B R I C K ( E N G L I S H B O N D ) P L I N T H

H E F I G U R E D D M E N S I O N A R E T O B E R E P O R T E D M M E D A T E L Y T O T H E A R C H T E C T R E F E R T O S T R U C T U R A L E N G N E E R N G D R A W N G F O R A L L S T R U C T U R A L S Z E S A N D D M E N S O N S A L L L E V E L S S H O W N O N F L O O R P L A N S A R E F N S H E D F L O O R L E V E L S A N D A L L D I M E N S O N S M E N T I O N E D A R E F N S H E D D I M E N S O N S U N L E S S O T H E R W I S E S P E C I F E D M A N U F A C T U R E R S S U P P L E R S S H A L L F U R N S H

C S B N E C E N T R E F O R S U S T A N A B L E B U L T A N D N A T U R A L E N V R O N M E N T © 2 0 1 6 C S B N E L L P R E S E R V E S A L L R G H T S T O T H E S E D R A W I N G S D E S G N S A N D O R A N Y O T H E R D A T A C O N T A N E D H E R E N N O P A R T O F T H E S A D D R A W N G S D E S G N S A N D O R O T H E R D A T A M A Y B E R E P R O D U C E D M O D F E D T R A N S M T T E D O R U S E
N
F O R M O R B Y A
C S B N E C O M P R E H E N S V E D E S G N S E R V C E S L L P V
6 1
S R E E M A N G A L
R
C O
S
N O T E S P R O J E C T E X E C U T O N T E
D V E R
Y A
E C
A
N S T
A N D S
A L L
N S B L E F
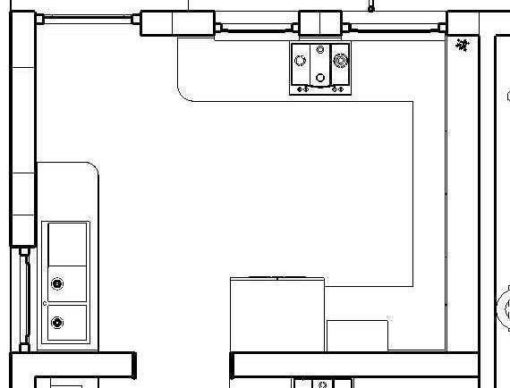
W A R R A N T Y C O N F O R M I T Y A N D P E R F O R M A N C E O F T H E P R O D U C T R E C E V E D B Y D A T E D R A W N B Y : D A T E : K I T C H E N L A Y O U T 0 8 1 : 2 0 2 2 0 4 2 0 2 1 S U R A J K O R L E P A R A , S U R A J K A R W A S R A T A R A P A N D A L A K E Y P L A N A B U S H E R I N S H E R N R E S I D E N C E 4 2 0 2 0 3 5 2 1 0 0 5 1 9 3 9 4 2 3 3 9 5 8 5 6 0 1 8 0 + L V L 0 A B C D + L V L 0 4 5 + L V L 1 . 5 0 N 5 5 1 5 7 1 6 2 W O O D E N S E A T E R A T W O O D E N S H E L F A T W O O D E N S H E L F W O O D E N S H E L F D I S H W A S H E R W O O D E N S H E L F 4 B U R N E R H O B S H O W K I T C H E N P L A N B R E A K F A S T C O U N T E R K I T C H E N 4 2 0 X 2 0 3 P E R S P E C T I V E V I E W T A L L U N I T S S S I N K
D N A
Y
N Y M E A N S F O R A N Y P U R P O S E W T H O U T T H E P R O R W R T T E N C O N S E N T O F C S B N E L L P O T H E R T H A N T H E S O L E P U R P O S E F O R W H I C H O T H E R D R A W N G S , D E S G N S A N D O R O T H E R D A T A A R E P R O V I D E D T O L C E N S E D U S E R S O N S U C H T E R M S A S C S B N E L L P M A Y P R E S C R B E
I / 1
,
A M M A T H L L P O N D A 6 9 1 6 0 1 W W W C S B N E O R G P R O J E C T : C L I E N T : P R O J E C T N O : D R A W I N G W O R K N G D R A W I N G T I T L E D R A W I N G N O : V E R S I O N : S C A L E C H E C K E D B Y : C H E C K E D B Y : A P P R O V E D B Y :
E M A R K S
N
U L T A N T S
A M M U S T C H E C K A N
I F
L L D I M E N S O N S O N S T E B E F O R
O M M E N C E M E N T O F W O R K
N Y D S C R E P A N C E S I N T
A L L A N D C O M P L E T E A L L N S T A L L A T I O N S
H
B E R E S P O
O R T H E

K E Y P L A N

W W W C S B N E O R G

P R O J E C T : C L I E N T :

P R O J E C T N O : D R A W I N G W O R K N G D R A W I N G

T I T L E

D R A W I N G N O : V E R S I O N :

S C A L E C H E C K E D B Y : C H E C K E D B Y : A P P R O V E D B Y : R E M A R K S C O N S U L T A N T S N O T E S P R O J E C T E X E C U T O N T E A M M U S T C H E C K A N D V E R I F Y A L L D I M E N S O N S O N S T E B E F O R E C O M M E N C E M E N T O F W O R K A N Y D S C R E P A N C E S I N T H E F I G U R E D D M E N S I O N A R E T O B E R E P O R T E D M M E D A T E L Y T O T H E A R C H T E C T R E F E R T O S T R U C T U R A L E N G N E E R N G D R A W N G F O R A L L S T R U C T U R A L S Z E S A N D D M E N S O N S A L L L E V E L S S H O W N O N F L O O R P L A N S A R E F N S H E D F L O O R L E V E L S A N D A L L D I M E N S O N S M E N T I O N E D A R E F N S H E D D I M E N S O N S U N L E S S O T H E R W I S E S P E C I F E D M A N U F A C T U R E R S S U P P L E R S S H A L L F U R N S H

C S B N E C E N T R E F O R S U S T A N A B L E B U L T A N D N A T U R A L E N V R O N M E N T © 2 0 1 6 C S B N E L L P R E S E R V E S A L L R G H T S T O T H E S E D R A W I N G S D E S G N S A N D O R A N Y O T H E R D A T A C O N T A N E D H E R E N N O P A R T O F T
E S A D D R A W N G S D
D
H
E S G N S A N D O R O T H E R D A T A M A Y B E R E P R O D U C E
M O D F E D T R A N S M T T E D O R U S E D N A N Y F O R M O R B Y A N Y M E A N S F O R A N Y P U R P O S E W T H O U T T H E P R O R W R T T E N C O N S E N T O F C S B N E L L P O T H E R T H A N T H E S O L E P U R P O S E F O R W H I C H O T H E R D R A W N G S , D E S G N S A N D O R O T H E R D A T A A R E P R O V I D E D T O L C E N S E D U S E R S O N S U C H T E R M S A S C S B N E L L P M A Y P R E S C R B E C S B N E C O M P R E H E N S V E D E S G N S E R V C E S L L P V I / 1 6 1 , S R E E M A N G A L A M M A T H L L P O N D A 6 9 1 6 0 1
O F T
E
D U C T R E C E V E D B Y D A T E D R A W N B Y : D A T E : K I T C H E N L A Y O U T 0 9 1 : 2 0 2 2 0 4 2 0 2 1 S U R A J K O R L E P A R A , S U R A J K A R W A S R A T A R A P A N D A L A A B U S H E R I N S H E R N R E S I D E N C E 2 0 3 3 1 3 7 0 6 4 6 7 1 0 9 0 6 0 3 0 6 0 6 1 3 8 1 6 7 9 1 5 D E T A I L A T Z 2 0 3 1 0 8 0 9 0 1 0 4 5 7 8 1 3 8 2 2 6 1 5 0 3 0 1 2 0 5 8 6 0 1 5 5 5 6 2 7 7 7 3 3 8 2 7 1 6 6 6 1 4 A B C D D E T A I L Z D E T A I L X N 1 8 m m O x i d e D a d o i n g W a l l H a n g i n g C u t l e r y S t a n d W o o d e n S h e l v e s L a b e l t e x t S . S . S i n k 1 8 m m G r a n i t e T o p D I S H W A S H E R D E T A I L A T X W o o d e n S h e l v e s W o o d e n S e a t e r L a b e l t e x t B r e a k f a s t C o u n t e r T a l l U n i t E L E V A T I O N A E L E V A T I O N C
N S T A L L A N D C O M P L E T E A L L N S T A L L A T I O N S A N D S H A L L B E R E S P O N S B L E F O R T H E W A R R A N T Y C O N F O R M I T Y A N D P E R F O R M A N C E
H
P R O

S . S . S i n k W a s t e B i n

K E Y P L A N

W W W C S B N E O R G

P R O J E C T : C L I E N T :

P R O J E C T N O : D R A W I N G W O R K N G D R A W I N G

T I T L E

D R A W I N G N O : V E R S I O N :

S C A L E C H E C K E D B Y : C H E C K E D B Y : A P P R O V E D B Y : R E M A R K S C O N S U L T A N T S

N O T E S P R O J E C T E X E C U T O N T E A M M U S T C H E C K A N D V E R I F Y A L L D I M E N S O N S O N S T E B E F O R E C O M M E N C E M E N T O F W O R K A N Y D S C R E P A N C E S I N T H E F I G U R E D D M E N S I O N A R E T O B E R E P O R T E D M M E D A T E L Y T O T H E A R C H T E C T R E F E R T O S T R U C T U R A L E N G N E E R N G D R A W N G F O R A L L S T R U C T U R A L S Z E S A N D D M E N S O N S A L L L E V E L S S H O W N O N F L O O R P L A N S A R E F N S H E D F L O O R L E V E L S A N D A L L D I M E N S O N S M E N T I O N E D A R E F N S H E D D I M E N S O N S U N L E S S O T H E R W I S E S P E C I F E D M A N U F A C T U R E R S S U P P L E R S S H A L L F U R N S H N S T A L L A N D C O M P L E T E A L L N S T A L L A T I O N S A N D S H A L L B E R E S P O N S B L E F O R T H E W A R R A N T Y C O N F O R M I T Y A N D P E R F O R M A N C E O F T H E P R O D U C T R E C E V E D B Y

C S B N E C E N T R E F O R S U S T A N A B L E B U L T A N D N A T U R A L E N V R O N M E N T
D
© 2 0 1 6 C S B N E L L P R E S E R V E S A L L R G H T S T O T H E S E
R A W I N G S D E S G N S A N D O R A N Y O T H E R D A T A C O N T A N E D H E R E N N O P A R T O F T H E S A D D R A W N G S D E S G N S A N D O R O T H E R D A T A M A Y B E R E P R O D U C E D M O D F E D T R A N S M T T E D O R U S E D N A N Y F O R M O R B Y A N Y M E A N S F O R A N Y P U R P O S E W T H O U T T H E P R O R W R T T E N C O N S E N T O F C S B N E L L P O T H E R T H A N T H E S O L E P U R P O S E F O R W H I C H O T H E R D R A W N G S , D E S G N S A N D O R O T H E R D A T A A R E P R O V I D E D T O L C E N S E D U S E R S O N S U C H T E R M S A S C S B N E L L P M A Y P R E S C R B E C S B N E C O M P R E H E N S V E D E S G N S E R V C E S L L P V I / 1 6 1 , S R E E M A N G A L A M M A T H L L P O N D A 6 9 1 6 0 1
D A T E
A B
S
N S H E R N R E S I D E N C E
D R A W N B Y : D A T E : K I T C H E N L A Y O U T 1 0 1 : 2 0 2 2 0 4 2 0 2 1 S U R A J K O R L E P A R A , S U R A J K A R W A S R A T A R A P A N D A L A
U
H E R I
A B C D
D E T A I L Y P a n B a s k e t C u t e r y B a s k e t 4 ” P l a i n B a s k e t 4 ” C u t l e r y B a s k e t 4 ” P a n B a s k e t 8 ” P l a i n B a s k e t 8 ” P l a i n B a s k e t 8 ” P l a i n B a s k e t 8 ” W o o d e n S h e l f 2 0 m m O x i d e D a d o o i n g 1 8 m m G r a n i t e T o p N 1 5 1 2 2 6 2 7 7 7 9 4 4 1 5 8 2 4 0 8 7 3 5 4 5 2 2 3 4 9 9 2 3 1 0 8 1 4 1 1 0 1 2 1 1 2 1 0 3 9 4 4 5 8 6 0 4 7 4 9 4 5 5 3 4 5 1 5 6 2 2 D E T A I L A T Y 4 2 0 3 1 3 9 0 1 0 1 0 9 6 0 3 5 9 0 2 2 5 1 0 5 7 6 0 3 0 4 5 3 3 1 0 3 3 4 1 3 3 2 5 2 0 7 8 3 3 2 5 2 0 7 8 6 0 6 0 1 2 2 E L E V A T I O N B

K E Y P L A N

W W W C S B N E O R G

P R O J E C T : C L I E N T :

P R O J E C T N O : D R A W I N G W O R K N G D R A W I N G

T I T L E

D R A W I N G N O : V E R S I O N :

S C A L E C H E C K E D B Y : C H E C K E D B Y : A P P R O V E D B Y :

E M A R K S C O N S U L T A N T S N O T E S

R O J E C T E X E C U T O N T E A M M U S T C H E C K A N D V E R I F Y A L L D I M E N S O N S O N S T E B E F O R E C O M M E N C E M E N T O F W O R K A N Y D S C R E P A N C E S I N T H E F I G U R E D D M E N S I O N A R E T O B E R E P O R T E D M M E D A T E L Y T O T H E A R C H T E C T R E F E R T O S T R U C T U R A L E N G N E E R N G D R A W N G F O R A L L S T R U C T U R A L S Z E S A N D D M E N S O N S A L L L E V E L S S H O W N O N F L O O R P L A N S A R E F N S H E D F L O O R L E V E L S A N D A L L D I M E N S O N S M E N T I O N E D A R E F N S H E D D I M E N S O N S U N L E S S O T H E R W I S E S P E C I F E D M A N U F A C T U R E R S S U P P L E R S S H A L L F U R N S H N S T A L L A N D C O M P L E T E A L L N S T A L L A T I O N S A N D S H A L L B E R E S P O N S B L E F O R T H E W A R R A N T Y C O N F O R M I T Y A N D P E R F O R M A N C E O F T H E P R O D U C T R E C E V E D B Y

C S B N E C E N T R E F O R S U S T A N A B L E B U L T A N D N A T U R A L E N V R O N M E N T © 2 0 1 6 C S B N E L L P R E S E R V E S A L L R G H T S T O T H E S E D R A W I N G S D E S G N S A N D O R A N Y O T H E R D A T A C O N T A N E D H E R E N N O P A R T O F T H E S A D D R A W N G S D E S G N S A N D O R O T
E R D A T A M A Y B E R E P R O D U C E D
H
M O D F E D T R A N S M T T E D O R U S E D N A N Y F O R M O R B Y A N Y M E A N S F O R A N Y P U R P O S E W T H O U T T H E P R O R W R T T E N C O N S E N T O F C S B N E L L P O T H E R T H A N T H E S O L E P U R P O S E F O R W H I C H O T H E R D R A W N G S , D E S G N S A N D O R O T H E R D A T A A R E P R O V I D E D T O L C E N S E D U S E R S O N S U C H T E R M S A S C S B N E L L P M A Y P R E S C R B E C S B N E C O M P R E H E N S V E D E S G N S E R V C E S L L P V I / 1 6 1 , S R E E M A N G A L A M M A T H L L P O N D A 6 9 1 6 0 1
D A T E D R A W N B Y : D A T E : K I T C H E N L A Y O U T 1 1 1 : 2 0 2 2 0 4 2 0 2 1 S U R A J K O R L E P A R A , S U R A J K A R W A S R A T A R A P A N D A L A A B U S H E R I N S H E R N R E S I D E N C E A B C D B r e a k f a s t C o u n t e r W o o d e n f r a m e o f D r a w e r S . S . H a n d l e F r a m e D o w e l D E T A I L O F W O O D E N P A N E L D E T A I L O F P U L L O U T D R A W E R S . S . F r a m e W o o d e n P a n e l W o o d e n S h e l f L a b e l t e x t N 1 8 1 7 9 W o o d e n S e a t e r 2 0 m m o x i d e D a d o o 3 1 4 4 2 0 2 2 6 1 2 0 1 0 9 0 6 0 1 0 2 2 7 4 5 1 5 0 1 8 0 6 0 E L E V A T I O N D
R
P

O F W O

C

C R

P A N C E S I N T H E F I G U R E D D M E N S I O N A R E T O B E R E P O R T E D M M E D A T E L Y T O T H E A R C H T E C T R E F E R T O S T R U C T U R A L E N G N E E R N G D R A W N G F O R A L L S T R U C T U R A L S Z E S A N D D M E N S O N S A L L L E V E L S S H O W N O N F L O O R P L A N S A R E F N S H E D F L O O R L E V E L S A N D A L L D I M E N S O N S M E N T I O N E D A R E F N S H E D D I M E N S O N S U N L E S S O T H E R W I S E S P E C I F E D M A N U F A C T U R E R S S U P P L E R S S H A L L F U R N S H

C S B N E C E N T R E F O R S U S T A N A B L E B U L T A N D N A T U R A L E N V R O N M E N T © 2 0 1 6 C S B N E L L P R E S E R V E S A L L R G H T S T O T H E S E D R A W I N G S D E S G N S A N D O R A N Y O T H E R D A T A C O N T A N E D H E R E N N O P A R T O F T H E S A D D R A W N G S D E S G N S A N D O R O T H E R D A T A M A Y B E R E P R O D U C E D M
D F E D T
S
S B
E
S V E
S
S
V C E S L L P
R
C
S P
V
A
W
C E O F T H E P R O D U C T R E C E V E D B Y D A T E D R A W N B Y : D A T E : K I T C H E N L A Y O U T 1 2 1 : 2 0 2 2 0 4 2 0 2 1 S U R A J K O R L E P A R A , S U R A J K A R W A S R A T A R A P A N D A L A A B U S H E R I N S H E R N R E S I D E N C E + L V L 0 P Q R S + L V L 0 9 0 + L V L 1 5 0 + L V L 0 9 0 9 0 6 0 8 6 1 8 0 N 4 B U R N E R H O B 4 2 0 1 0 0 6 9 8 0 4 0 1 0 0 3 0 3 0 0 2 0 0 1 0 0 9 5 9 0 2 3 5 P E R S P E C T I V E V I E W P L A N K I T C H E N 4 2 0 X 3 0 0 S S S I N K W O O D E N B O X F O R S T O R A G E R E F R I G E R A T O R K E Y P L A N S S S I N K
O
R A N
M T T E D O R U S E D N A N Y F O R M O R B Y A N Y M E A N S F O R A N Y P U R P O S E W T H O U T T H E P R O R W R T T E N C O N S E N T O F C S B N E L L P O T H E R T H A N T H E S O L E P U R P O S E F O R W H I C H O T H E R D R A W N G S , D E S G N S A N D O R O T H E R D A T A A R E P R O V I D E D T O L C E N S E D U S E R S O N S U C H T E R M S A S C S B N E L L P M A Y P R E S C R B E C
N E C O M P R
H E N
D E
G N
E R
V I / 1 6 1 , S R E E M A N G A L A M M A T H L L P O N D A 6 9 1 6 0 1 W W W C S B N E O R G P R O J E C T : C L I E N T : P R O J E C T N O : D R A W I N G W O R K N G D R A W I N G T I T L E D R A W I N G N O : V E R S I O N : S C A L E C H E C K E D B Y : C H E C K E D B Y : A P P R O V E D B Y :
E M A R K S
O N S U L T A N T S N O T E
R O J E C T E X E C U T O N T E A M M U S T C H E C K A N D
E R I F Y A L L D I M E N S O N S O N S T E B E F O R E C O M M E N
E M E N T
R K A N Y D S
E
N S T A L L A N D C O M P L E T E A L L N S T A L L A T I O N S
N D S H A L L B E R E S P O N S B L E F O R T H E
A R R A N T Y C O N F O R M I T Y A N D P E R F O R M A N

K E Y P L A N

W W W C S B N E O R G

P R O J E C T : C L I E N T :

P R O J E C T N O : D R A W I N G W O R K N G D R A W I N G

T I T L E D R A W I N G N O : V E R S I O N :

S C A L E C H E C K E D B Y : C H E C K E D B Y : A P P R O V E D B Y : R E M A R K S

C O N S U L T A N T S

N O T E S

P R O J E C T E X E C U T O N T E A M M U S T C H E C K A N D V E R I F Y A L L D I M E N S O N S O N S T E B E F O R E C O M M E N C E M E N T O F W O R K A N Y D S C R E P A N C E S I N T H E F I G U R E D D M E N S I O N A R E T O B E R E P O R T E D M M E D A T E L Y T O T H E A R C H T E C T R E F E R T O S T R U C T U R A L E N G N E E R N G D R A W N G F O R A L L S T R U C T U R A L S Z E S A N D D M E N S O N S A L L L E V E L S S H O W N O N F L O O R P L A N S A R E F N S H E D F L O O R L E V E L S A N D A L L D I M E N S O N S M E N T I O N E D A R E F N S H E D D I M E N S O N S U N L E S S O T H E R W I S E S P E C I F E D M A N U F A C T U R E R S S U P P L E R S S H A L L F U R N S H N S T A L L A N D C O M P L E T E A L L N S T A L L A T I O N S A N D S H A L L B E R E S P O N S B L E F O R T H E W A R R A N T Y C O N F O R M I T Y A N D P E R F O R M A N C E O F T H E P R O D U C T R E C E V E D B Y

C S B N E C E N T R E F O R S U S T A N A B L E B U L T A N D N A T U R A L E N V R O N M E N T
© 2 0 1 6 C S B N E L L P R E S E R V E S A L L R G H T S T O T H E S E D R A W I N G S D E S G N S A N D O R A N Y O T H E R D A T A C O N T A N E D H E R E N N O P A R T O F T H E S A D D R A W N G S D E S G N S A N D O R O T H E R D A T A M A Y B E R E P R O D U C E D M O D F E D T R A N S M T T E D O R U S E D N A N Y F O R M O R B Y A N Y M E A N S F O R A N Y P U R P O S E W T H O U T T H E P R O R W R T T E N C O N S E N T O F C S B N E L L P O T H E R T H A N T H E S O L E P U R P O S E F O R W H I C H O T H E R D R A W N G S , D E S G N S A N D O R O T H E R D A T A A R E P R O V I D E D T O L C E N S E D U S E R S O N S U C H T E R M S A S C S B N E L L P M A Y P R E S C R B E C S B N E C O M P R E H E N S V E D E S G N S E R V C E S L L P V I / 1 6 1 , S R E E M A N G A L A M M A T H L L P O N D A 6 9 1 6 0 1
D A T E D R A W N B Y : D A T E : K I T C H E N L A Y O U T 1 3 1 : 2 0 2 2 0 4 2 0 2 1 S U R A J K O R L E P A R A , S U R A J K A R W A S R A T A R A P A N D A L A A B U S H E R I N S H E R N R E S I D E N C E P Q R S D E T A I L W D E T A I L W S . S . S i n k 1 8 m m G r a n i t e T o p N 2 2 5 D a d o i n g C u p B o a r d s 3 1 3 3 0 0 1 0 9 0 8 0 4 5 4 5 3 9 3 9 6 0 3 0 1 9 3 1 3 1 3 2 1 0 0 8 0 5 8 8 0 6 0 5 6 4 1 E L E V A T I O N P

E T A I L G C u p B a s k e t

K E Y P L A N

W W W C S B N E O R G

P R O J E C T : C L I E N T :

P R O J E C T N O : D R A W I N G W O R K N G D R A W I N G

T I T L E

D R A W I N G N O : V E R S I O N :

S C A L E C H E C K E D B Y : C H E C K E D B Y : A P P R O V E D B Y : R E M A R K S C O N S U L T A N T S

N O T E S P R O J E C T E X E C U T O N T E A M M U S T C H E C K A N D V E R I F Y A L L D I M E N S O N S O N S T E B E F O R E C O M M E N C E M E N T O F W O R K A N Y D S C R E P A N C E S I N T H E F I G U R E D D M E N S I O N A R E T O B E R E P O R T E D M M E D A T E L Y T O T H E A R C H T E C T R E F E R T O S T R U C T U R A L E N G N E E R N G D R A W N G F O R A L L S T R U C T U R A L S Z E S A N D D M E N S O N S A L L L E V E L S S H O W N O N F L O O R P L A N S A R E F N S H E D F L O O R L E V E L S A N D A L L D I M E N S O N S M E N T I O N E D A R E F N S H E D D I M E N S O N S U N L E S S O T H E R W I S E S P E C I F E D M A N U F A C T U R E R S S U P P L E R S S H A L L F U R N S H N S T A L L A N D C O M P L E T E A L L N S T A L L A T I O N S A N D S H A L L B E R E S P O N S B L E F O R T H E W A R R A N T Y C O N F O R M I T Y A N D P E R F O R M A N C E O F T H E P R O D U C T R E C E V E D B Y

C S B N E C E N T R E F O R S U S T A N A B L E B U L T A N D N A T U R A L E N V R O N M E N T
D
© 2 0 1 6 C S B N E L L P R E S E R V E S A L L R G H T S T O T H E S E
R A W I N G S D E S G N S A N D O R A N Y O T H E R D A T A C O N T A N E D H E R E N N O P A R T O F T H E S A D D R A W N G S D E S G N S A N D O R O T H E R D A T A M A Y B E R E P R O D U C E D M O D F E D T R A N S M T T E D O R U S E D N A N Y F O R M O R B Y A N Y M E A N S F O R A N Y P U R P O S E W T H O U T T H E P R O R W R T T E N C O N S E N T O F C S B N E L L P O T H E R T H A N T H E S O L E P U R P O S E F O R W H I C H O T H E R D R A W N G S , D E S G N S A N D O R O T H E R D A T A A R E P R O V I D E D T O L C E N S E D U S E R S O N S U C H T E R M S A S C S B N E L L P M A Y P R E S C R B E C S B N E C O M P R E H E N S V E D E S G N S E R V C E S L L P V I / 1 6 1 , S R E E M A N G A L A M M A T H L L P O N D A 6 9 1 6 0 1
D
A B U S
E R I N S H E R N R E S I D E N C E P Q R S
C u t l e r y B a s k e t 4 ” D E T A I L G P l a i n B a s k e t 4 ” P l a i n B a s k e t 8 ” P l a i n B a s k e t 4 ” P l a i n B a s k e t 8 ” P l a i n B a s k e t 4 ” C u t l e r y B a s k e t 4 ” 1 8 m m G r a n i t e T o p D a d o o i n g S . S . S i n k W a l l C a b i n e t 1 8 m m G r a n i t e T o p N 3 1 3 4 2 0 6 0 1 0 1 0 9 0 3 0 1 0 0 4 0 8 0 1 7 0 6 0 1 0 9 0 7 6 1 4 6 0 3 0 6 0 6 0 1 0 8 0 3 0 4 8 3 0 2 8 2 0 3 0 4 8 3 0 6 0 5 8 4 5 3 2 1 1 6 6 4 5 6 6 0 8 5 4 2 E L E V A T I O N Q
A T E D R A W N B Y : D A T E : K I T C H E N L A Y O U T 1 4 1 : 2 0 2 2 0 4 2 0 2 1 S U R A J K O R L E P A R A , S U R A J K A R W A S R A T A R A P A N D A L A
H
D

K E Y P L A N

W W W C S B N E O R G

P R O J E C T : C L I E N T :

P R O J E C T N O : D R A W I N G W O R K N G D R A W I N G

T I T L E

D R A W I N G N O : V E R S I O N :

S C A L E C H E C K E D B Y : C H E C K E D B Y : A P P R O V E D B Y : R E M A R K S C O N S U L T A N T S N O T E S P R O J E C T E X E C U T O N T E A M M U S T C H E C K A N D V E R I F Y A L L D I M E N S O N S O N S T E B E F O R E C O M M E N C E M E N T O F W O R K A N Y D S C R E P A N C E S I N T H E F I G U R E D D M E N S I O N A R E T O B E R E P O R T E D M M E D A T E L Y T O T H E A R C H T E C T R E F E R T O S T R U C T U R A L E N G N E E R N G D R A W N G F O R A L L S T R U C T U R A L S Z E S A N D D M E N S O N S A L L L E V E L S S H O W N O N F L O O R P L A N S A R E F N S H E D F L O O R L E V E L S A N D A L L D I M E N S O N S M E N T I O N E D A R E F N S H E D D I M E N S O N S U N L E S S O T H E R W I S E S P E C I F E D M A N U F A C T U R E R S S U P P L E R S S H A L L F U R N S H N S T A L L A N D C O M P L E T E A L L N S T A L L A T I O N S A N D S H A L L B E R E S P O N S B L E F O R T H E W A R R A N T Y C O N F O R M I T Y A N D P E R F O R M A N C E O F T H E P R O D U C T R E C E V E D B Y

C S B N E C E N T R E F O R S U S T A N A B L E B U L T A N D N A T U R A L E N V R O N M E N T © 2 0 1 6 C S B N E L L P R E S E R V E S A L L R G H T S T O T H E S E D R A W I N G S D E S G N S A N D O R A N Y O T H E R D A T A C O N T A N E D H E R E N N O P A R T
S
D D R A W N G S D
O F T H E
A
E S G N S A N D O R O T H E R D A T A M A Y B E R E P R O D U C E D M O D F E D T R A N S M T T E D O R U S E D N A N Y F O R M O R B Y A N Y M E A N S F O R A N Y P U R P O S E W T H O U T T H E P R O R W R T T E N C O N S E N T O F C S B N E L L P O T H E R T H A N T H E S O L E P U R P O S E F O R W H I C H O T H E R D R A W N G S , D E S G N S A N D O R O T H E R D A T A A R E P R O V I D E D T O L C E N S E D U S E R S O N S U C H T E R M S A S C S B N E L L P M A Y P R E S C R B E C S B N E C O M P R E H E N S V E D E S G N S E R V C E S L L P V I / 1 6 1 , S R E E M A N G A L A M M A T H L L P O N D A 6 9 1 6 0 1
D A
D
K
S
T
A B U S H E R I N S H E R N R E S I D E N C E P Q R S
d e n f r a m e o f D r a w e r S . S . H a n d l e F r a m e D o w e l D E T A I L O F W O O D E N P A N E L D E T A I L O F P U L L O U T D R A W E R S . S . F r a m e W o o d e n P a n e l P l a i n B a s k e t 4 ” P l a i n B a s k e t 4 ” P l a i n B a s k e t 4 ” P l a i n B a s k e t 4 ” P l a i n B a s k e t 4 ” 1 8 m m G r a n i t e T o p D a d o o i n g W a l l C a b i n e t s R E F R I G E R A T O R N 2 2 5 3 1 3 3 0 0 6 0 3 0 1 0 1 0 9 0 3 0 6 0 6 0 7 8 7 8 7 8 2 0 5 8 2 7 6 0 6 0 6 0 4 5 4 5 4 5 E L E V A T I O N R
T E
R A W N B Y : D A T E :
I T C H E N L A Y O U T 1 5 1 : 2 0 2 2 0 4 2 0 2 1
U R A J K O R L E P A R A , S U R A J K A R W A S R A
A R A P A N D A L A
P l a n B a s k e t 4 ” W o o

K E Y P L A N

W W W C S B N E O R G

P R O J E C T : C L I E N T :

P R O J E C T N O : D R A W I N G W O R K N G D R A W I N G

T I T L E

D R A W I N G N O : V E R S I O N :

S C A L E C H E C K E D B Y : C H E C K E D B Y : A P P R O V E D B Y : R E M A R K S C O N S U L T A N T S N O T E S P R O J E C T E X E C U T O N T E A M M U S T C H E C K A N D V E R I F Y A L L D I M E N S O N S O N S T E B E F O R E C O M M E N C E M E N T O F W O R K A N Y D S C R E P A N C E S I N T H E F I G U R E D D M E N S I O N A R E T O B E R E P O R T E D M M E D A T E L Y T O T H E A R C H T E C T R E F E R T O S T R U C T U R A L E N G N E E R N G D R A W N G F O R A L L S T R U C T U R A L S Z E S A N D D M E N S O N S A L L L E V E L S S H O W N O N F L O O R P L A N S A R E F N S H E D F L O O R L E V E L S A N D A L L D I M E N S O N S M E N T I O N E D A R E F N S H E D D I M E N S O N S U N L E S S O T H E R W I S E S P E C I F E D M A N U F A C T U R E R S S U P P L E R S S H A L L F U R N S H N S T A L L A N D C O M P L E T E A L L N S T A L L A T I O N S A N D S H A L L B E R E S P O N S B L E F O R T H E W A R R A N T Y C O N F O R M I T Y A N D P E R F O R M A N C E

C S B N E C E N T R E F O R S U S T A N A B L E B U L T A N D N A T U R A L E N V R O N M E N T © 2 0 1 6 C S B N E L L P R E S E R V E S A L L R G H T S T O T H E S E D R A W I N G S D E S G N S A N D O R A N Y O T H E R D A T A C O N T A N E D H E R E N N O P A R T
F T
S
D D R A W N G S D
O
H E
A
E S G N S A N D O R O T H E R D A T A M A Y B E R E P R O D U C E D M O D F E D T R A N S M T T E D O R U S E D N A N Y F O R M O R B Y A N Y M E A N S F O R A N Y P U R P O S E W T H O U T T H E P R O R W R T T E N C O N S E N T O F C S B N E L L P O T H E R T H A N T H E S O L E P U R P O S E F O R W H I C H O T H E R D R A W N G S , D E S G N S A N D O R O T H E R D A T A A R E P R O V I D E D T O L C E N S E D U S E R S O N S U C H T E R M S A S C S B N E L L P M A Y P R E S C R B E C S B N E C O M P R E H E N S V E D E S G N S E R V C E S L L P V I / 1 6 1 , S R E E M A N G A L A M M A T H L L P O N D A 6 9 1 6 0 1
D A T E D R A W N B Y : D A T E : K I T C H E N L A Y O U T 1 6 1 : 2 0 2 2 0 4 2 0 2 1 S U R A J K O R L E P A R A , S U R A J K A R W A S R A T A R A P A N D A L A A B U S H E R I N S H E R N R E S I D E N C E P Q R S P l a n B a s k e t P l a n B a s k e t D E T A I L A T P D E T A I L P 1 0 1 0 9 0 5 8 4 5 6 0 6 0 2 6 3 0 4 8 9 0 5 8 2 2 5 9 2 3 1 3 4 2 0 1 0 8 0 3 0 6 0 8 8 6 8 6 3 8 5 5 6 0 D a d o o i n g 1 8 m m G r a n i t e T o p S . S . S i n k W a s t e B i n W o o d e n S h e l f 1 3 5 8 7 4 5 4 8 S . S . S i n k N W o o d e n C u p B o a r d f o r S t o r a g e E L E V A T I O N S
O F T H E P R O D U C T R E C E V E D B Y

A R U N R E S I D E N C E

T R A I N I N G P O R T F O L I O S U R A J K A R W A S R A

I / 1 6 1 , S R E E M A N G A L

W W W C S B N E O R G

T I T L E D R A W I N G N O : 1 V E R S I O N : 1 1 4

P R O J E C T : C L E N T : P R O J E C T N O : D R A W N G :

W O R K N G D R A W I N G

S C A L E C H E C K E D B Y : C H E C K E D B Y :

A P P R O V E D B Y : R E V I S O N D A T E R E M A R K S

C O N S U L T A N T S N O T E S

P R O J E C T E X E C U T O N T E A M M U S T C H E C K A N D V E R I F Y A L L D I M E N S O N S O N S T E B E F O R E C O M M E N C E M E N T O F W O R K A N Y D S C R E P A N C E S I N T H E F I G U R E D D M E N S I O N A R E T O B E R E P O R T E D M M E D A T E L Y T O T H E A R C H T E C T R E F E R T O S T R U C T U R A L E N G N E E R N G D R A W N G F O R A L L S T R U C T U R A L S Z E S A N D D M E N S O N S A L L L E V E L S S H O W N O N F L O O R P L A N S A R E F N S H E D F L O O R L E V E L S A N D A L L D I M E N S O N S M E N T I O N E D A R E F N S H E D D I M E N S O N S U N L E S S O T H E R W I S E S P E C I F E D M A N U F A C T U R E R S S U P P L E R S S H A L L F U R N S H N S T A L L A N D C O M P L E T E A L L N S T A L L A T I O N S A N D S H A L L B E R E S P O N S B L E F O R T H E W A R R A N T Y C O N F O R M I T Y A N D P E R F O R M A N C E O F T H E P R O D U C T R E

C S B N E
E N T R E F O R S U S T A N A B L E B U L T A N D N A T U R A L E N V R O N M E N T
C
© 2 0 1 6 C S B N E L L P R E S E R V E S A L L R G H T S T O T H E S E D R A W I N G S D E S G N S A N D O R A N Y O T H E R D A T A C O N T A N E D H E R E N N O P A R T O F T H E S A D D R A W N G S D E S G N S A N D O R O T H E R D A T A M A Y B E R E P R O D U C E D M O D F E D T R A N S M T T E D O R U S E D N A N Y F O R M O R B Y A N Y M E A N S F O R A N Y P U R P O S E W T H O U T T H E P R O R W R T T E N C O N S E N T O F C S B N E L L P O T H E R T H A N T H E S O L E P U R P O S E F O R W H I C H O T H E R D R A W N G S , D E S G N S A N D O R O T H E R D A T A A R E P R O V I D E D T O L C E N S E D U S E R S O N S U C H T E R M S A S C S B N E L L P M A Y P R E S C R B E C S B N E C O M P R E H E N S V E D E S G N S E R V C E S L L P V
A M M A T H L L P O N D A 6 9 1 6 0 1
Y D A T E N A R U N R E S D E N C E W O R K I N G D R A W I N G D R A W N B Y S U R A J K
R W A S R A D A T E : 1 4 0 4 2 0 2
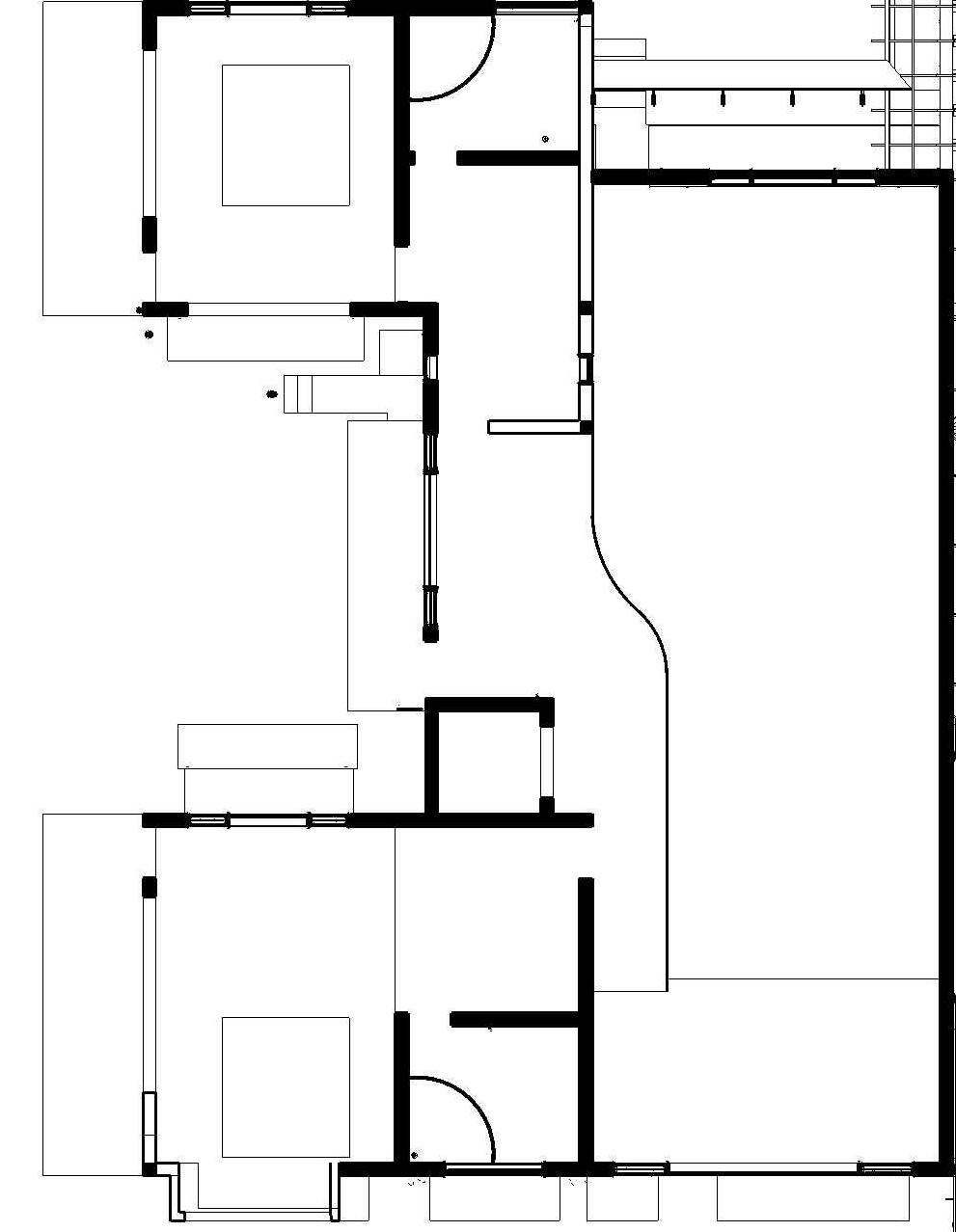
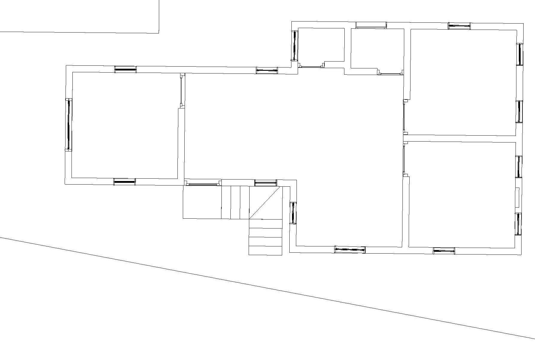
S T A I R S A R U N R E S D E N C E 7 5 c m 2 0 c m 8 7 c m 0 7 8 m 2 c m 3 0 c m 3 0 c m 3 0 c m 1 2 0 c m 3 6 0 m 3 9 0 c m 3 6 9 c m 3 1 9 c m 1 0 2 c m 0 7 7 m 3 2 c m K E Y P L A N P L A N A A ’ B B ’ 1 2 3 4 5 6 7 8 9 1 0 1 1 1 2 1 3 1 4 1 5 1 6 1 7 1 8 1 9 2 0 U P 0 2 0 m 2 6 c m 2 0 c m 3 0 c m 3 0 c m 3 0 c m 3 0 c m 3 0 c m 3 0 c m 3 0 c m 3 0 c m 3 0 c m 3 0 c m 3 0 c m 3 0 c m 3 0 c m 3 0 c m 1 8 0 c m 3 0 0 c m 3 0 c m 7 6 c m S L A B 4 c m
C E V E D B
A
1

I

1

W W W C S B N E O R G

T I T L E D R A W I N G N O : 2 V E R S I O N : 1 1 4

P R O J E C T : C L E N T : P R O J E C T N O : D R A W N G :

W O R K N G D R A W I N G

S C A L E C H E C K E D B Y : C H E C K E D B Y :

A P P R O V E D B Y : R E V I S O N D A T E R E M A R K S

C O N S U L T A N T S N O T E S

P R O J E C T E X E C U T O N T E A M M U S T C H E C K A N D V E R I F Y A L L D I M E N S O N S O N S T E B E F O R E C O M M E N C E M E N T O F W O R K A N Y D S C R E P A N C E S I N T H E F I G U R E D D M E N S I O N A R E T O B E R E P O R T E D M M E D A T E L Y T O T H E A R C H T E C T R E F E R T O S T R U C T U R A L E N G N E E R N G D R A W N G F O R A L L S T R U C T U R A L S Z E S A N D D M E N S O N S A L L L E V E L S S H O W N O N F L O O R P L A N S A R E F N S H E D F L O O R L E V E L S A N D A L L D I M E N S O N S M E N T I O N E D A R E F N S H E D D I M E N S O N S U N L E S S O T H E R W I S E S P E C I F E D M A N U F A C T U R E R S S U P P L E R S S H A L L F U R N S H N S T A L L A N D C O M P L E T E A L L N S T A L L A T I O N S A N D S H A L L B E R E S P O N S B L E F O R T H E W A R R A N T Y C O N F O R M I T Y A N D P E R F O R M A N C E O F T H E P R O D U C T R E

C S B N E C E N T R E F O R S U S T A N A B L E B U L T A N D N A T U R A L E N V R O N M E N T
© 2 0 1 6 C S B N E L L P R E S E R V E S A L L R G H T S T O T H E S E D R A W I N G S D E S G N S A N D O R A N Y O T H E R D A T A C O N T A N E D H E R E N N O P A R T O F T H E S A D D R A W N G S D E S G N S A N D O R O T H E R D A T A M A Y B E R E P R O D U C E D M O D F E D T R A N S M T T E D O R U S E D N A N Y F O R M O R B Y A N Y M E A N S F O R A N Y P U R P O S E W T H O U T T H E P R O R W R T T E N C O N S E N T O F C S B N E L L P O T H E R T H A N T H E S O L E P U R P O S E F O R W H I C H O T H E R D R A W N G S , D E S G N S A N D O R O T H E R D A T A A R E P R O V I D E D T O L C E N S E D U S E R S O N S U C H T E R M S A S C S B N E L L P M A Y P R E S C R B E C S B N E C O M P R E H E N S V E D E S G N S E R V C E S L L P V
/
6 1 , S R E E M A N G A L A M M A T H L L P O N D A 6 9 1 6 0 1
C E V E D B Y D A T E N A R U N R E S D E N C E W O R K I N G D R A W I N G D R A W N B Y S U R A J K A R W A S R A D A T E : 1 4 0 4 2 0 2 1 S T A I R S A R U N R E S D E N C E S E C T I O N A A ’ 0 1 5 m 3 0 c m 3 0 c m 3 0 0 c m 1 3 0 c m 8 6 c m 8 6 c m 0 1 0 m 1 0 1 c m 8 6 c m 3 9 c m 5 7 c m 1 8 c m 3 5 0 c m 0 . 8 0 m 1 6 c m 3 3 6 c m 1 0 5 c m 4 2 c m 1 0 c m G . I R E C T A N G U L A R S E C T I O N ( 1 0 C M X 5 C M ) S T R U T ( 5 X 5 C M ) B A L U S T E R ( 2 . 5 X 3 . 6 ) L A N D I N G L A N D I N G L A N D I N G

D S C R E P A N C E S I N T H E F I G U R E D

M E N S I O N A R E T O B E R E P O R T E D M M E D A T E L Y T O T H E A R C H T E C T R E F E R T O S T R U C T U R A L E N G N E E R N G D R A W N G F O R A L L S T R U C T U R A L S Z E S A N D D M E N S O N S A L L L E V E L S S H O W N O N F L O O R P L A N S A R E F N S H E D F L O O R L E V E L S A N D A L L D I M E N S O N S M E N T I O N E D A R E F N S H E D D I M E N S O N S U N L E S S O T H E R W I S E S P E C I F E D M A N U F A C T U R E R S S U P P L E R S S H A L L F U R N S H

C S B N E C E N T R E F O R S U S T A N A B L E B U L T A N D N A T U R A L E N V R O N M E N T © 2 0 1 6 C S B N E L L P R E S E R V E S A L L R G H T S T O T H E S E D R A W I N G S D E S G N S A N D O R A N Y O T H E R D A T A C O N T A N E D H E R E N N O P A R T O F T H E S A D D R A W N G S D E S G N S A N D O R O T H E R D A T A M A Y B E R E P R O D U C E D M O D F E D T R A N S M T T E D O R U S E D N A N Y F O R M O R B Y A N Y M E A N S F O R A N Y P U R P O S E W T H O U T T H E P R O R W R T T E N C O N S E N T O F C S B N E L L P O T H E R T H A N T H E S O L E P U R P O S E F O R W
G S
D E
S A N D O R O T H E R D
T A
E
U S E R S O N S U C
T E
S A S
S B
E
P
Y P
E S
B E C S B N E C O M P R E H E N S V E D E S G N S E R V C E S L L P V I / 1 6 1 , S R E E M A N G A L A M M A T H L L P O N D A 6 9 1 6 0 1 W W W C S B N E O R G P R O J E C T : C L E N T : P R O J E C T N O : D R A W N G : W O R K N G D R A W I N G T I T L E D R A W I N G N O : 3 V E R S I O N : 1 1 4 S C A L E C H E C K E D B Y : C H E C K E D B Y : A P P R O V E D B Y : R E V I S O N D A T E R E M A R K S C O N S U L T A N T S N O T E S P R O J E C T E X E C U T O N T E A M M U S T C H E C K A N D V E R I F Y A L L D I M E N S O N S O N S T E B E F O R E C O M M E N C E M E N T O F W O R K A N Y
N
A N D S
W A R R A N T Y C O N F O R M I T Y A N D P E R F O R M A N C E O F T H E P R O D U C T R E C E V E D B Y D A T E N A R U N R E S D E N C E W O R K I N G D R A W I N G D R A W N B Y S U R A J K A R W A S R A D A T E : 1 4 0 4 2 0 2 1 S T A I R S A R U N R E S D E N C E S E C T I O N B B ’ 1 3 5 c m 1 5 6 c m 6 0 c m 3 0 c m A D E T A I L A T A D E A T A I L O F T R E A D 7 5 c m 3 0 c m 5 c m 2 c m 3 c m P E R F O R A T E D S H E E T H A N D R A I L ( 2 4 X 3 6 M M ) R E C T A N G L E S E C T I O N W O O D E N P L A N K ( 2 6 M M T H K ) 3 0 c m P E R F O R A T E D S H E E T 1 3 2 c m
H I C H O T H E R D R A W N
,
S G N
A
A R
P R O V I D E D T O L C E N S E D
H
R M
C
N
L L
M A
R
C R
D
S T A L L A N D C O M P L E T E A L L N S T A L L A T I O N S
H A L L B E R E S P O N S B L E F O R T H E

D S C R E P A N C E S I N T H E F I G U R E D D M E N S I O N A R E T O B E R E P O R T E D M M E D A T E L Y T O T H E A R C H T E C T R E F E R T O S T R U C T U R A L E N G N E E R N G D R A W N G F O R A L L S T R U C T U R A L S Z E S A N D D M E N S O N S A L L L E V E L S S H O W N O N F L O O R P L A N S A R E F N S H E D F L O O R L E V E L S A N D A L L D I M E N S O N S M E N T I O N E D A R E F N S H E D D I M E N S O N S U N L E S S O T H E R W I S E S P E C I F E D M A N U F A C T U R

C S B N E C E N T R E F O R S U S T A N A B L E B U L T A N D N A T U R A L E N V R O N M E N T © 2 0 1 6 C S B N E L L P R E S E R V E S A L L R G H T S T O T H E S E D R A W I N G S D E S G N S A N D O R A N Y O T H E R D A T A C O N T A N E D H E R E N N O P A R T O F T H E S A D D R A W N G S D E S G N S A N D O R O T H E R D A T A M A Y B E R E P R O D U C E D M O D F E D T R A N S M T T E D O R U S E D N A N Y F O R M O R B Y A N Y M E A N S F O R A N Y P U R P O S E W T H O U T T H E P R O R W R T T E N C O N S E N T O F C S B N E L L P O T H E R T H A N T H E S O L E P U R P O S E F O R W H I C H O T H E R D R A W N G S , D E S G N S A N D O R O T H E R D A T A A R E P R O V I D E D T O L C E N S E D U S E R S O N S U C H T E R M S A S C S B N E L L P M A Y P R E S C R B E C S B N E C O M P R E H E N S V E D E S G N S E R V C E S L L P V I / 1 6 1 , S R E E M A N G A L A M M A T H L L P O N D A 6 9 1 6 0 1 W W W C S B N E O R G P R O J E C T : C L E N T : P R O J E C T N O : D R A W N G : W O R K N G D R A W I N G T I T L E D R A W I N G N O : 4 V E R S I O N : 1 1 4 S C A L E C H E C K E D B Y : C H E C K E D B Y : A P P R O V E D B Y : R E V I S O N D A T E R E M A R K S C O N S U L T A N T S N O T E S P R O J E C T E X E C U T O N T E A M M U S T C H E C K A N D V E R I F Y A L L D I M E N S O N S O N S T E B E F O R E C O M M E N C E M E N T O F W O R K A N Y
E R S S U P P L E R S S H A L L F U R N S H N S T A L L A N D C O M P L E T E A L L N S T A L L A T I O N S A N D S H A L L B E R E S P O N S B L E F O R T H E W A R R A N T Y C O N F O R M I T Y A N D P E R F O R M A N C E O F T H E P R O D U C T R E C E V E D B Y D A T E N A R U N R E S D E N C E W O R K I N G D R A W I N G D R A W N B Y S U R A J K A R W A S R A D A T E : 1 4 0 4 2 0 2 1 S T A I R S A R U N R E S D E N C E B C D E D E A T A I L A T B D E A T A I L A T C D E A T A I L A T D D E A T A I L A T E 3 0 c m 2 0 c m 0 . 1 0 m 0 . 0 5 m 2 0 c m 5 c m 2 6 c m 2 0 c m 1 0 c m 1 0 c m 1 0 c m 5 c m 3 5 c m 5 c m 2 0 c m 5 c m 5 c m M . S . P L A T E 1 0 C M X 1 0 C M G I R E C T A N G U L A R S E C T I O N ( 1 0 C M X 5 C M ) 1 0 c m 1 0 c m S T R U T ( 5 C M X 5 C M ) M . S . P L A T E 1 0 C M X 1 0 C M L S E C T I O N S U P P O R T M . S . P L A T E ( 3 M M T H K ) G I C I R C U L A R S E C T I O N ( 3 M M T H K ) 3 M M B A S E P L A T E R A I L I N G R A I L I N G P O S T 3 . 6 X 3 . 6 C M 2 0 c m 1 2 c m G I R E C T A N G U L A R S E C T I O N ( 1 0 C M X 5 C M ) S T R U T ( 5 C M X 5 C M ) 8 6 c m 8 6 c m 8 6 c m 3 3 5 c m 2 3 2 c m 4 2 c m

C O N S U L T A N T S

N O T E S R E C E I V E D B Y D A T E N C S B N E C E N T R E F O R S U S T A N A B L E B U L T A N D N A T U R A L E N V R O N M E N T © 2 0 1 6 C S B N E L L P R E S E R V E S A L L R G H T S T O T H E S E D R A W N G S D E S G N S A N D O R A N Y O T H E R D A T A C O N T A N E D H E R E I N N O P A R T O F T H E S A D D R A W N G S D E S G N S A N D O R O T H E R D A T A M A Y B E R E P R O D U C E D M O D F E D T R A N S M I T T E D O R U S E D N A N Y F O R M O R B Y A N Y M E A N S F O R A N Y P U R P O S E W T H O U T T H E P R O R W R I T T E N C O N S E N T O F C S B N E L L P O T H E R T H A N T H E S O L E P U R P O S E F O R W H C H O T H E R D R A W N G S D E S G N S A N D O R O T H E R D A T A A R E P R O V D E D T O L C E N S E D U S E R S O N S U C H T E R M S A S C S B N E L L P M A Y P R E S C R B E C S B N E C O M P R E H E N S I V E D E S I G N S E R V I C E S L L P V I 1 6 1 S R E E M A N G A L A M , M A T H L L P O I N D I A 6 9 1 6 0 1 W W W C S B N E O R G P R O J E C T : C L I E N T : P R O J E C T N O : D R A W I N G : A R U N R E S I D E N C E T I T L E D R A W I N G N O : 0 5 V E R S O N 1 2 S C A L E : A P P R O V E D B Y R E V I S O N D A T E R E M A R K S N O E N T S D S W O C O A O C O D T R P O X N C O L O U T O E P D B T H E A C H E C S P R O J E C T E X E C U T O N T E A M M U S T C H E C K A N D V E R F Y A L L D M E N S O N S O N S T E B E F O R E C O M M E N C E M E N T O F W O R K A N Y D S C R E P A N C E S N T H E F G U R E D D M E N S O N A R E T O B E R E P O R T E D M M E D A T E L Y T O T H E A R C H T E C T R E F E R T O S T R U C T U R A L E N G N E E R N G D R A W N G F O R A L S T R U C T U R A S Z E S A N D D M E N S O N S A L L L E V E S S H O W N O N F L O O R P L A N S A R E F N S H E D F O O R L E V E L S A N D A L L D M E N S O N S M E N T O N E D A R E F N S H E D D M E N S O N S U N E S S O T H E R W S E S P E C F E D M A N U F A C T U R E R S S U P P L E R S S H A L F U R N S H N S T A L A N D C O M P L E T E A L N S T A L L A T O N S A N D S H A L B E R E S P O N S B L E F O R T H E W A R R A N T Y C O N F O R M T Y A N D P E R F O R M A N C E O F T H E P R O D U C T W O R K I N G D R A W I N G D R A W N B Y : S U R A J K A R W A S R A D A T E : 0 5 0 4 2 0 2 1 W A T E R T A N K S U P P O R T A N D A C C E S S D E T A I L S 3 D V I E W O F D E S I G N E D S U P P O R T S T R U C T U R E 3 D V I E W O F W A T E R T A N K T H E P R O V I D E D S U P P O R T S T A N D W A T E R T A N K K E Y P L A N B O S S E C T I O N R I N G O F S I Z E 1 ” X 1 ” A N D D I A 2 9 ” ( 7 4 C M ) 1 ” D I A C I R C U L A R S T E E L S E C T I O N 3 I N N O S 1 ” D I A C I R C U L A R S T E E L S E C T I O N S 3 I N N O S . D E T A I L A 1 / 2 ” D I A C I R C U L A R S T E E L S E C T I O N 2 I N N O S A

C O N S U L T A N T S N O T E S

O N S A L L L E V E L S S H O W N O N F L O O R P L A N S A R E F N S H E D F L O O R L E V E L S A N D A L L D M E N S O N S M E N T O N E D A R E F N S H E D D M E N S O N S U N L E S S O T H E R W S E S P E C F I E D M A N U F A C T U R E R S S U P P L I E R S S H A L L F U R N S H

D A T E N C S B N E C E N T R E F O R S U S T A N A B L E B U L T A N D N A T U R A L E N V R O N M E N T © 2 0 1 6 C S B N E L L P R E S E R V E S A L L R G H T S T O T H E S E D R A W N G S D E S G N S A N D O R A N Y O T H E R D A T A C O N T A N E D H E R E I N N O P A R T O F T H E S A D D R A W N G S D E S G N S A N D
D
E S O L E P U R P O S E F O R W H C H O T H E R D R A W N G S D E S G N S A N D O R O T H E R D A T A A R E P R O V D E D T O L C E N S E D U S E R S O N S U C H T E R M S A S C S B N E L L P M A Y P R E S C R B E C S B N E C O M P R E H E N S I V E D E S I G N S E R V I C E S L L P V I 1 6 1 S R E E M A N G A L A M , M A T H L L P O I N D I A 6 9 1 6 0 1 W W W C S B N E O R G P R O J E C T : C L I E N T : P R O J E C T N O : D R A W I N G : A R U N R E S I D E N C E T I T L E D R A W I N G N O : 0 6 V E R S O N 1 2 S C A L E : A P P R O V E D B Y R E V I S O N D A T E R E M A R K S P R O J E C T E X E C U T I O N T E A M M U S T C H E C K A N D V E R F Y A L L D M E N S O N S O N S I T E B E F O R E C O M M E N C E M E N T O F W O R K A N Y D S C R E P A N C E S N T H E F G U R E D D I M E N S O N A R E T O B E R E P O R T E D M M E D I A T E L Y T O T H E A R C H T E C T R E F E R T O S T R U C T U R A L E N G N E E R N G D R A W I N G F O R A L L S T R U C T U R A L S Z E S A N D D M E N S
N
A N
W A R R A N T Y C
N F O R M T Y A N D P E R F O R M A N C E O F T H E P R O D U C T W O R K I N G D R A W I N G D R A W N B Y : S U R A J K A R W A S R A D A T E : 0 5 0 4 2 0 2 1 W A T E R T A N K S U P P O R T A N D A C C E S S D E T A I L S 3 D V I E W O F D E S I G N E D S U P P O R T S T R U C T U R E 9 . 0 4 ” ( 1 0 C M ) D I A C E N T R A L P I P E 3 . 1 4 ” ( 7 . 9 C M ) D I A P I P E B O L T E D I N S I D E C E N T R A L P I P E 1 1 C M T H I C K P L A T E W E L D E D T O C E N T R A L P I P E O N T H R E E S I D E . R A F T E R 1 ” ( 2 . 5 C M ) D I A C I R C U L A R S T E E L S E C T I O N S 2 I N N O S S U P P O R T I N G T H E C E N T R A L P I P E T O T H E S U P P O R T P L A T E . P L A T E A N C H O R B O L T E D W I T H B A S E P L A T E W E L D E D T O C E N T R A L P I P E . 1 C M T H I C K B A S E P L A T E W E L D E D T O P I P E . D O W E L S W E L D E D T O P P E 3 M M T H I C K 3 . 1 4 ” ( 7 . 9 C M ) D I A P I P E A T T A C H E D T O M A I N P I P E 3 7 . 0 2 4 . 7 1 2 3 1 0 3 1 1 . 3 1 2 . 3 2 0 0 3 M M T H I C K P L A T E S W E L D E D 4 ” P I P E T O 1 ” P I P E P L A N E L E V A T I O N 3 D V I E W O F T H E B A S E S U P P O R T D E T A I L B B C F L E G S O F T H E W A T E R T A N K S H O U L D R E S T O N T H E I N N E R S I D E O F T H E B O X S E C T I O N R I N G O F D I A 1 ” ( 2 . 5 C M ) . D I A O F T H E R I N G V A R I E S A C C O R D I N G T O T H E W A T E R T A N K C E N T R A L S T E E L P I P E O F 4 ” ( 1 0 C M ) D I A . L A D D E R R A F T E R . 3 ” ( 7 . 6 C M ) D I A C I R C U L A R S T E E L S E C T I O N O N W H I C H T H E L A D D E R I S S U P P O R T E D 1 2 4 6 9 0 . 1 1 0 2 6 P L A T F O R M P L A T F O R M 3 M M T H I C K P L A T E S W E L D E D T O 4 ” P I P E T O 1 ” P I P E 1 5 0 2 6 0 6 4 3 4 3 2 . 0 2 6 . 4 1 8 2 1 4 . 8 1 7 . 0 2 0 . 6 B R A F T E R R A F T E R 8 2 . 7 8 6 . 5 8 7 5 7 4 1 7 0 . 8 2 0 . 1 1 2 7 . 2 A L L D I M E N S I O N S A R E I N C M U N T I L L M E N T I O N E D O T H E R W I S E
R E C E I V E D B Y
O R O T H E R D A T A M A Y B E R E P R O D U C E
M O D F E D T R A N S M I T T E D O R U S E D N A N Y F O R M O R B Y A N Y M E A N S F O R A N Y P U R P O S E W T H O U T T H E P R O R W R I T T E N C O N S E N T O F C S B N E L L P O T H E R T H A N T H
S T A L L A N D C O M P L E T E A L L I N S T A L L A T O N S
D S H A L L B E R E S P O N S I B L E F O R T H E
O

F T E R .

R A F T E R W E L D E D I N T O T H E 3 ” ( 7 6 c m ) D I A C I R C U L A R S T E E L S E C T I O N

1 5 . 4

1 2 . 7 1 2 . 5 1 7 . 1 E

1 / 2 ” ( 1 3 C M ) D I A C I R C U L A R S T E E L S E C T I O N .

B O X S E C T I O N R I N G O F S I Z E 1 ” X 1 ” A N D D I A ( 7 4 C M )

1 ” D I A C I R C U L A R S T E E L S E C T I O N S 3 I N N O S W E L D E D T O T H E 4 ” C E N T R A L P I P E

1 ” D I A C I R C U L A R S T E E L S E C T I O N S 3 I N N O S W E L D E D T O T H E 4 ” C E N T R A L P I P E .

D V I E W W I T H D E T A I L S 1 1 9 5 8 6 9

1 ” ( 2 . 5 C M ) D I A C I R C U L A R S T E E L S E C T I O N T O S U P P O R T T H E H A N D L E . 1 ” D I A C I R C U L A R S T E E L S E C T I O N A S 2 N D P L A T F O R M

© 2 0 1 6 C S B N E L L P R E S E R V E S A L L R G H T S T O T H E S E D R A W N G S D E S G N S A N D O R A N Y O T H E R D A T A C O N T A N E D H E R E I N N O P A R T O F T H E S A D D R A W N G S D E S G N S A N D O R O T H E R D A T A M A Y B E R E P R O D U C E D M O D F E D T R A N S M I T T E D O R U S E D N A N Y F O R M O R B Y A N Y M E A N S F O R A N Y P U R P O S E W T H O U T T H E P R O R W R I T T E N C O N S E N T O F C S B N E L L P O T H E R T H A N T H E S O L E P U R P O S E F O R W H C H O T H E R D R A W N G S D E S G N S A N D O R O T H E R D A T A A R E P R O V D E D T O L C E N S E D U S E R S O N S U C H T E R M S A S C S B N E L L P M A Y P R E S C R B E

D E T A I L F 3 M M T H K P L A T E O F D I M E N S I O N 4 3 ” X 1 ” V I E W O F D E T A I L C G

C O N S U L T A N T S N O T E S R E C E I V E D B Y

C R E P A N C E S N T H E F G U R E D D I M E N S O N A R E T O B E R E P O R T E D M M E D I A T E L Y T O T H E A R C H T E C T R E F E R T O S T R U C T U R A L E N G N E E R N G D R A W I N G F O R A L L S T R U C T U R A L S Z E S A N D D M E N S O N S A L L L E V E L S S H O W N O N F L O O R P L A N S A R E F N S H E D F L O O R L E V E L S A N D A L L D M E N S O N S M E N T O N E D A R E F N S H E D D M E N S O N S U N L E S S O T H E R W S E S P E C F I E D M A N U F A C T U R E R S S U P P L I E R S S H A L L F U R N S H N S T A L L A N D C O M P L E T E A L L I N S T A L L A T O N S A N D S H A L L B E R E S P O N S I B L E F O R T H E W A R R A N T Y C O N F O R M T Y A N D P E R F O R M A

N C S B N E
R E F O R S U S T A N A B L E B U L T A N D N A T U R A L E N V R O N M E N T
7 V E R S O N
2 S C A L E : A P P R
V
Y R
D
P R O J E C T E X E C U T
T E A
S T
E
D V E R F Y
C
A
W O R K I N G D R A W I N G D R A W N B Y : S U R A J K A R W A S R A D A T E : 0 5 0 4 2 0 2 1 W A T E R T A N K S U P P O R T A N D A C C E S S D E T A I L S D E T A I L C D E
E D E T A I L D 3 D V
E W
L G M E S H M A D E O F 3 m m D I A C I R C U L A R S T E E L S E C T I O N S . D E C K F R A M E M A D E O F 1 ” ( 2 . 5 C M ) D I A C I R C U L A R S T E E L S E C T I O N S B O L T C O N N E C T I O N 2 C I R C U L A R S T E E L S E C T I O N S O F D I A 1 ” ( 2 5 C M ) C O N N E C T E D B Y B O L T C O N N E C T I O N T O T H E R A F T E R S U P P O R T I N G T H E L A D D E R . 5 2 . 0 L A D D E R D
L S Q U A R E 2 0 . 5 ” X 2 0 . 5 ” ( 5 2 C M X 5 2 C M ) D E C K 5 2 0 3 M M F I L L I N G P L A T E 2 m m T H I C K C L A
P W E L D E D T
G
.
A L L D I M E N S I O N S A R E I N C M U N T I L L M E N T I O N E D O T H E R W I S E
D A T E
C E N T
C S B N E C O M P R E H E N S I V E D E S I G N S E R V I C E S L L P V I 1 6 1 S R E E M A N G A L A M , M A T H L L P O I N D I A 6 9 1 6 0 1 W W W C S B N E O R G P R O J E C T : C L I E N T : P R O J E C T N O : D R A W I N G : A R U N R E S I D E N C E T I T L E D R A W I N G N O : 0
1
O
E D B
E V I S O N
A T E R E M A R K S
I O N
M M U
C H
C K A N
A L L D M E N S O N S O N S I T E B E F O R E
O M M E N C E M E N T O F W O R K
N Y D S
N C E O F T H E P R O D U C T
T A I L
I
O F D E T A I
E T A I
M
O F I L L I N
P L A T E
1 5 ” D I A C E N T R A L C I R C U L A R S T E E L S E C T I O N O F L A D D E R .
C I R C U L A R S E C T I O N O N W H I C H T H E L A D D E R R E S T S I S S U P P O R T E D T O T H E R A F T E R B Y M E A N S O F T W O C I R C U L A R S T E E L S E C T I O N S O F D I A 1 I N C H E A C H W H I C H A R E B O L T E D T O T H E R A
2 I N C H D I A S T E E L
1 ” ( 2 5 C M ) D I A C I R C U L A R S T E E L S E C T I O N . 1 7 8
1 ” ( 2 . 5 C M ) C I R C U L A R S T E E L S E C T I O N S S U P P O R T I N G D E C K T O T H E C E N T R A L P I P E H A N D L E S U P P O R T O F 1 ” ( 2 . 5 C M ) D I A C I R C U L A R S T E E L S E C T I O N S
4 ” ( 1 0 C M ) D I A C E N T R A L P I P E 3 M M T H K P L A T E S W E L D E D T O 1 ’ & 4 ” C I R C U L A R S E C T I O N

M A N I K U T T A N R E S I D E N C E

T R A I N I N G P O R T F O L I O S U R A J K A R W A S R A

D D M E N S O N S A L L L E V E L S S H O W N O N F L O O R P L A N S A R E F N S H E D F L O O R L E V E L S A N D A L L D I M E N S O N S M E N T I O N E D A R E F N S H E D D I M E N S O N S U N L E S S O T H E R W I S E S P E C I F E D M A N U F A

N C S B N E C E N T R E F O R S U S T A N A B L E B U L T A N D N A T U R A L E N V R O N M E N T © 2 0 1 6 C S B N E L L P R E S E R V E S A L L R G H T S T O T H E S E D R A W I N G S D E S G N S A N D O R A N Y O T H E R D A T A C O N T A N E D H E R E N N O P A R T O F T H E S A D D R A W N G S D E S G N S A N D O R O T H E R D A T A M A Y B E R E P R O D U C E D M O D F E D T R A N S M T T E D O R U S E D N A N Y F O R M O R B Y A N Y M E A N S F O R A N Y P U R P O S E W T H O U T T H E P R O R W R T T E N C O N S E N T O F C S B N E L L P O T H E R T H A N T H E S O L E P U R P O S E F O R W H I C H O T H E R D R A W N G S , D E S G N S A N D O R O T H E R D A T A A R E P R O V I D E D T O L C E N S E D U S E R S O N S U C H T E R M S A S C S B N E L L P M A Y P R E S C R B E C S B N E C O M P R E H E N S V E D E S G N S E R V C E S L L P V I / 1 6 1 , S R E E M A N G A L A M M A T H L L P O N D A 6 9 1 6 0 1 W W W C S B N E O R G P R O J E C T : C L I E N T : P R O J E C T N O : D R A W I N G M A N K U T T A N R E S D E N C E T I T L E : D R A W I N G N O : 1 V E R S I O N : S C A L E C H E C K E D B Y : C H E C K E D B Y : A P P R O V E D B Y : R E V I S O N D A T E R E M A R K S C O N S U L T A N T S N O T E S P R O J E C T E X E C U T O N T E A M M U S T C H E C K A N D V E R I F Y A L L D I M E N S O N S O N S T E B E F O R E C O M M E N C E M E N T O F W O R K A N Y D S C R E P A N C E S I N T H E F I G U R E D D M E N S I O N A R E T O B E R E P O R T E D M M E D A T E L Y T O T H E A R C H T E C T R E F E R T O S T R U C T U R A L E N G N E E R N G D R A W N G F O R A L L S T R U C T U R A L S Z E S A N
C T U R E R S S U P P L E R S S H A L L F U R N S H N S T A L L A N D C O M P L E T E A L L N S T A L L A T I O N S A N D S H A L L B E R E S P O N S B L E F O R T H E W A R R A N T Y C O N F O R M I T Y A N D P E R F O R M A N C E O F T H E P R O D U C T R E C E V E D B Y D A T E D R A W N B Y S U R A J K A R W A S R A D A T E : 0 8 0 2 2 0 2 1 P L U M B N G L A Y O U T T O L E T 1 M A N K U T T A N M L A V L A G R O U N D F L O O R B E D D R A W I N G K I T C H E N B E D L I V I N G O F F I C E P O O J A L V L 0 0 L V L 0 0 L V L 0 0 U T I L I T Y 1 D R O P L V L 0 0 L V L 0 0 L V L 0 0 L V L 0 0 1 D R O P L V L 0 0 1 D R O P C O U R T Y A R D L V L 4 5 1 2 3 4 5 1 2 3 4 5 M E Z Z A N I N E A B O V E L V L + 2 5 5 F R O M F F L L I F T L V L 1 5 0 V E R A N D A H N W A S H - 1 W A S H - 2 W A S H - 3 1 5 ” D I A C O L D W A T E R P I P E ( O U T L E T ) 2 ” D I A W A S T E W A T E R P I P E 4 ” D I A N I G H T S O I L W A T E R P I P E . T O W A R D F I R S T F L O O R T O W A R D F I R S T F L O O R 1 . 5 ” D I A C O L D W A T E R P I P E ( I N L E T ) W A T E R T A N K T O W E R 1 . 5 ” D I A C O L D W A T E R P I P E I N L E T & O U T L E T 1 5 ” D I A C O L D W A T E R P I P E ( O U T L E T ) W A T E R T A N K T O W E R 1 . 5 ” D I A C O L D W A T E R P I P E I N L E T & O U T L E T T O W A R D S W A S H 1 & 4 1 5 ” D
W A
O U
D S W A
,
,
N D K I T
E N 1 . 5 ” D I A C O L D W A T E R P I P E I N L E T 1 . 5 ” D I A C O L D W A T E R P I P E O U T L E T P I P E S G O I N G F R O M W A T E R T A N K T O W E R T O B E L O W P L I N T H L E V E L S C A L E - 1 : 1 0 0
I A C O L D
T E R P I P E
T L E T T O W A R
S H 2
3
5 A
C H

W W W C S B N E O R G

P R O J E C T : C L I E N T : P R O J E C T N O : D R A W I N G

M A N K U T T A N R E S D E N C E T I T L E :

D R A W I N G N O : 1 V E R S I O N : S C A L E C H E C K E D B Y : C H E C K E D B Y : A P P R O V E D B Y : R E V I S O N D A T E R E M A R K S C O N S U L T A N T S N O T E S P R O J E C T E X E C U T O N T E A M M U S T C H E C K A N D V E R I F Y A L L D I M E N S O N S O N S T E B E F O R E C O M M E N C E M E N T O F W O R K A N Y D S C R E P A N C E S I N T H E F I G U R E D D M E N S I O N A R E T O B E R E P O R T E D M M E D A T E L Y T O T H E A R C H T E C T R E F E R T O S T R U C T U R A L E N G N E E R N G D R A W N G F O R A L L S T R U C T U R A L S Z E S A N D D M E N S O N S A L L L E V E L S S H O W N O N F L O O R P L A N S A R E F N S H E D F L O O R L E V E L S A N D A L L D I M E N S O N S M E N T I O N E D A R E F N S H E D D I M E N S O N S U N L E S S O T H E R W I S E S P E C I F E D M A N U F A C T U R E R S S U P P L E R S S H A L L F U R N S H

N C S B N E C E N T R E F O R S U S T A N A B L E B U L T A N D N A T U R A L E N V R O N M E N T © 2 0 1 6 C S B N E L L P R E S E R V E S A L L R G H T S T O T H E S E D R A W I N G S D E S G N S A N D O R A N Y O T H E R D A T A C O N T A N E D H E R E N N O P A R T O F T H E S A D D R A W N G S D E S G N S A N D O R O T H E R D A T A M A Y B E R E P R O D U C E D M O D F E D T R A N S M T T E D O R U S E D N A N Y F O R M O R B Y A N Y M E A N S F O R A N Y P U R P O S E W T H O U T T H E P R O R W R T T E N C O N S E N T O F
S B N E L L
T
E S
E
C
P O T H E R T H A N
H
O L
P U R P O S E F O R W H I C H O T H E R D R A W N G S , D E S G N S A N D O R O T H E R D A T A A R E P R O V I D E D T O L C E N S E D U S E R S O N S U C H T E R M S A S C S B N E L L P M A Y P R E S C R B E C S B N E C O M P R E H E N S V E D E S G N S E R V C E S L L P V I / 1 6 1 , S R E E M A N G A L A M M A T H L L P O N D A 6 9 1 6 0 1
C T R E C E V E D B Y D A T E D R A W N B Y S U R A J K A R W A S R A D A T E : 0 8 0 2 2 0 2 1 P L U M B N G L A Y O U T T O L E T 1 M A N K U T T A N M L A V L A I R S T F L O O R N B E D L V L + 3 6 0 1 0 M M D R O P B E D M E Z A N I N E L I F T L I V I N G L V L + 3 6 0 L V L 1 5 0 1 0 M M D R O P L V L + 2 5 5 L V L + 0 0 L V L + 3 6 0 W A S H - 4 W A S H - 5 F R O M G R O U N D F L O O R F R O M G R O U N D F L O O R A B 1 5 ” D I A C O L D W A T E R P I P E ( O U T L E T ) 2 ” D I A W A S T E W A T E R P I P E 4 ” D I A N I G H T S O I L W A T E R P I P E . 1 . 5 ” D I A C O L D W A T E R P I P E ( I N L E T ) W A S H 5 W A S H 3 4 ” D I A N I G H T S O I L W A T E R P I P E . 2 ” D I A W A S T E W A T E R P I P E 1 . 5 ” D I A C O L D W A T E R P I P E ( O U T L E T ) W A S H 4 W A S H 1 1 . 5 ” D I A C O L D W A T E R P I P E ( O U T L E T ) 2 ” D I A W A S T E W A T E R P I P E 4 ” D I A N I G H T S O I L W A T E R P I P E . 1 5 ” D I A C O L D W A T E R P I P E ( I N L E T ) S C A L E - 1 : 1 0 0
N S T A L L A N D C O M P L E T E A L L N S T A L L A T I O N S A N D S H A L L B E R E S P O N S B L E F O R T H E W A R R A N T Y C O N F O R M I T Y A N D P E R F O R M A N C E O F T H E P R O D U

S C R E P A N C E S I N T H E F I G U R E D

E N S I O N A R E T O B E R E P O R T E D

M E D A T E L Y T O T H E A R C H T E C T R E F E R T O

T R U C T U R A L E N G N E E R N G D R A W N G F O R A L L

T R U C T U R A L S Z E S A N D D M E N S O N S A L L L E V E L S S H O W N O N F L O O R P L A N S A R E F N S H E D F L O O R L E V E L S A N D A L L D I M E N S O N S M E N T I O N E D A R E F N S H E D D I M E N S O N S U N L E S S O T H E R W I S E S P E C I F E D M A N U F A

N C S B N E C E N T R E F O R S U S T A N A B L E B U L T A N D N A T U R A L E N V R O N M E N T © 2 0 1 6 C S B N E L L P R E S E R V E S A L L R G H T S T O T H E S E D R A W I N G S D E S G N S A N D O R A N Y O T H E R D A T A C O N T A N E D H E R E N N O P A R T O F T H E S A D D R A W N G S D E S G N S A N D O R O T H E R D A T A M A Y B E R E P R O D U C E D M O D F E D T R A N S M T T E D O R U S E D N A N Y F O R M O R B Y A N Y M E A N S F O R A N Y P U R P O S E W T H O U T T H E P R O R W R T T E N C O N S E N T O F C S B N E L L P O T H E R T H A N T H E S O L E P U R P O S E F O R W H I C H O T H E R D R A W N G S , D E S G N S A N D O R O T H E R D A T A A R E P R O V I D E D T O L C E N S E D U S E R S O N S U C H T E R M S A S C S B N E L L P M A Y P R E S C R B E C S B N E C O M P R E H E N S V E D E S G N S E R V C E S L L P V I / 1 6 1 , S R E E M A N G A L A M M A T H L L P O N D A 6 9 1 6 0 1 W W W C S B N E O R G P R O J E C T : C L I E N T : P R O J E C T N O : D R A W I N G M A N K U T T A N R E S D E N C E T I T L E : D R A W I N G N O : 1 V E R S I O N : S C A L E C H E C K E D B Y : C H E C K E D B Y : A P P R O V E D B Y : R E V I S O N D A T E R E M A R K S C O N S U L T A N T S N O T E S P R O J E C T E X E C U T O N T E A M M U S T C H E C K A N D V E R I F Y A L L D I M E N S O N S O N S T E B E F O R E C O M M E N C E M E N T O F W O R
A
C T U R E R S S U P P L E R S S
N S T A L L A N D C O M P L E T E A L L N S T A L L
S A N D S H A L L B E R E S P O N S B L E F O R T H E W A R R A N T Y C O N F O R M I T Y A N D P E R F O R M A N C E O F T H E P R O D U C T R E C E V E D B Y D A T E D R A W N B Y S U R A J K A R W A S R A D A T E : 0 8 0 2 2 0 2 1 P L U M B N G L A Y O U T T O L E T 1 M A N K U T T A N M L A V L A 3 4 5 3 5 5 6 2 3 7 1 0 6 1 9 5 4 4 W A T E R F A U S E T W A T E R C L O S E T S H O W E R W A T E R T R A P S I N G L E L E V E R D I V E R T E R T A P W A T E R T R A P O N E T I L E D R O P 8 0 5 0 4 6 5 8 8 0 2 1 1 4 5 8 4 6 0 5 8 T O W A R D F I R S T F L O O R T O W A R D F I R S T F L O O R T O W A R D F I R S T F L O O R 1 2 1 1 0 5 U R I N A L 3 M M T H K G L A S S N 1 5 ” D I A C O L D W A T E R P I P E 2 ” D I A W A S T E W A T E R P I P E 4 ” D I A N I G H T S O I L W A T E R P I P E . 1 5 0 1 2 0 0 4 5 0 T I L E S ( 3 0 X 5 0 c m ) L E D G E W A L L C O N C E A L E D F L U S H S Y S T E M S c h e m a t i c D i a g r a m o f C o n c e a l e d W . C . D E T A I L A 1 0 0 0 1 0 0 0 S E C T I O N A L O N G A A ' P L A N S E C T I O N A L O N G D D ’ S E C T I O N A L O N G C C ’ W A T E R T R A P K E Y P L A N S C A L E - 1 : 3 0 L V L 0 0 1 8 C ’ D ' D C A A '
K
N Y D
D M
M
S
S
H A L L F U R N S H
A T I O N

O T H E A R C H T E C T R E F E R T O

E N G N E E R N G D R A W N G F O R A L

R A

R U C T U R A L S Z E S A N D D M E N S O N S A L L L E V E L S S H O W N O N F L O O R P L A N S A R E F N S H E D F L O O R L E V E L S A N D A L L D I M E N S O N S M E N T I O N E D A R E F N S H E D D I M E N S O N S U N L E S S O T H E R W I S E S P E C I F E D M A N U F A

N C S B N E C E N T R E F O R S U S T A N A B L E B U L T A N D N A T U R A L E N V R O N M E N T © 2 0 1 6 C S B N E L L P R E S E R V E S A L L R G H T S T O T H E S E D R A W I N G S D E S G N S A N D O R A N Y O T H E R D A T A C O N T A N E D H E R E N N O P A R T O F T H E S A D D R A W N G S D E S G N S A N D O R O T H E R D A T A M A Y B E R E P R O D U C E D M O D F E D T R A N S M T T E D O R U S E D N A N Y F O R M O R B Y A N Y M E A N S F O R A N Y P U R P O S E W T H O U T T H E P R O R W R T T E N C O N S E N T O F C S B N E L L P O T H E R T H A N T H E S O L E P U R P O S E F O R W H I C H O T H E R D R A W N G S , D E S G N S A N D O R O T H E R D A T A A R E P R O V I D E D T O L C E N S E D U S E R S O N S U C H T E R M S A S C S B N E L L P M A Y P R E S C R B E C S B N E C O M P R E H E N S V E D E S G N S E R V C E S L L P V I / 1 6 1 , S R E E M A N G A L A M M A T H L L P O N D A 6 9 1 6 0 1 W W W C S B N E O R G P R O J E C T : C L I E N T : P R O J E C T N O : D R A W I N G M A N K U T T A N R E S D E N C E T I T L E : D R A W I N G N O : 1 V E R S I O N : S C A L E C H E C K E D B Y : C H E C K E D B Y : A P P R O V E D B Y : R E V I S O N D A T E R E M A R K S C O N S U L T A N T S N O T E S P R O J E C T E X E C U T O N T E A M M U S T C H E C K A N D V E R I F Y A L L D I M E N S O N S O N S T E B E F O R E C O M M E N C E M E N T O F W O R
A
D
M
C T U R E R S S U P P L E R S S H A L L F U R N S H N S T A L L A N D C O M P L E T E A L L N S T A L L A T I O N S A N D S H A L L B E R E S P O N S B L E F O R T H E W A R R A N T Y C O N F O R M I T Y A N D P E R F O R M A N C E O F T H E P R O D U C T R E C E V E D B Y D A T E D R A W N B Y S U R A J K A R W A S R A D A T E : 0 8 0 2 2 0 2 1 P L U M B N G L A Y O U T T O L E T 1 M A N K U T T A N M L A V L A 4 5 1 5 3 2 1 2 0 8 8 3 8 6 8 2 4 9 1 8 0 W A T E R F A U S E T W A T E R C L O S E T S I N K 5 0 7 1 4 5 5 0 7 1 8 5 W A T E R T R A P 5 9 N 1 5 ” D I A C O L D W A T E R P I P E 2 ” D I A W A S T E W A T E R P I P E 4 ” D I A N I G H T S O I L W A T E R P I P E . 1 5 0 1 2 0 0 4 5 0 T I L E S ( 3 0 X 5 0 c m ) L E D G E W A L L C O N C E A L E D F L U S H S Y S T E M S c h e m a t i c D i a g r a m o f C o n c e a l e d W . C . D E T A I L A S E C T I O N A L O N G A A ' S E C T I O N A L O N G C C ’ S E C T I O N A L O N G D D ’ P L A N K E Y P L A N 1 0 0 0 1 0 0 0 W A T E R T R A P S C A L E - 1 : 3 0 A ’ A C C ' D D '
K
N Y D S C R E P A N C E S I N T H E F I G U R E D
M E N S I O N A R E T O B E R E P O R T E D
M E D A T E L Y T
S T R U C T U
L
L S T

K

N Y D S C R E P A N C E S I N T H E F I G U R E D

M E N S I O N A R E T O B E R E P O R T E D

M E D A T E L Y T O T H E A R C H T E C T R E F E R T O

T R U C T U R A L E N G N E E R N G D R A W N G F O R A L L

T R U C T U R A L S Z E S A N D D M E N S O N S A L L L E V E L S S H O W N O N F L O O R P L A N S A R E F N S H E D F L O O R L E V E L S A N D A L L D I M E N S O N S M E N T I O N E D A R E F N S H E D D I M E N S O N S U N L E S S O T H E R W I S E S P E C I F E D M A N U F A

N C S B N E C E N T R E F O R S U S T A N A B L E B U L T A N D N A T U R A L E N V R O N M E N T © 2 0 1 6 C S B N E L L P R E S E R V E S A L L R G H T S T O T H E S E D R A W I N G S D E S G N S A N D O R A N Y O T H E R D A T A C O N T A N E D H E R E N N O P A R T O F T H E S A D D R A W N G S D E S G N S A N D O R O T H E R D A T A M A Y B E R E P R O D U C E D M O D F E D T R A N S M T T E D O R U S E D N A N Y F O R M O R B Y A N Y M E A N S F O R A N Y P U R P O S E W T H O U T T H E P R O R W R T T E N C O N S E N T O F C S B N E L L P O T H E R T H A N T H E S O L E P U R P O S E F O R W H I C H O T H E R D R A W N G S , D E S G N S A N D O R O T H E R D A T A A R E P R O V I D E D T O L C E N S E D U S E R S O N S U C H T E R M S A S C S B N E L L P M A Y P R E S C R B E C S B N E C O M P R E H E N S V E D E S G N S E R V C E S L L P V I / 1 6 1 , S R E E M A N G A L A M M A T H L L P O N D A 6 9 1 6 0 1 W W W C S B N E O R G P R O J E C T : C L I E N T : P R O J E C T N O : D R A W I N G M A N K U T T A N R E S D E N C E T I T L E : D R A W I N G N O : 1 V E R S I O N : S C A L E C H E C K E D B Y : C H E C K E D B Y : A P P R O V E D B Y : R E V I S O N D A T E R E M A R K S C O N S U L T A N T S N O T E S P R O J E C T E X E C U T O N T E A M M U S T C H E C K A N D V E R I F Y A L L D I M E N S O N S O N S T E B E F O R E C O M M E N C E M E N T O F W O R
U
N S
A N D S H A L L B E
E S
N S
E W A R R A N T Y C O N F O R M I T Y A N D P E R F O R M A N C E O F T H E P R O D U C T R E C E V E D B Y D A T E D R A W N B Y S U R A J K A R W A S R A D A T E : 0 8 0 2 2 0 2 1 P L U M B N G L A Y O U T T O L E T 1 M A N K U T T A N M L A V L A 5 N 1 5 ” D I A C O L D W A T E R P I P E 2 ” D I A W A S T E W A T E R P I P E 4 ” D I A N I G H T S O I L W A T E R P I P E . 1 5 0 1 2 0 0 4 5 0 T I L E S ( 3 0 X 5 0 c m ) L E D G E W A L L C O N C E A L E D F L U S H S Y S T E M S c h e m a t i c D i a g r a m o f C o n c e a l e d W . C . D E T A I L A 1 0 0 0 1 0 0 0 W A T E R T R A P K E Y P L A N P L A N 6 1 4 7 6 8 3 6 3 2 5 1 1 0 0 7 0 3 0 0 1 9 0 6 5 S E C T I O N A L O N G A A ' 2 0 9 7 5 4 5 2 8 1 2 3 8 0 6 0 O N E T I L E D R O P W A T E R T R A P W A T E R T R A P S I N G L E L E V E R D I V E R T E R S H O W E R W A T E R C L O S E T W A T E R F A U S E T 8 0 8 0 3 M M T H K G L A S S S E C T I O N A L O N G C C ’ S E C T I O N A L O N G B B ’ T O W A R D F I R S T F L O O R T O W A R D F I R S T F L O O R S C A L E - 1 : 3 0 B ' B A A ' C C '
A
D
M
S
S
C T
R E R S S U P P L E R S S H A L L F U R N S H
T A L L A N D C O M P L E T E A L L N S T A L L A T I O N S
R
P O
B L E F O R T H

D D M E N S O N S A L L L E V E L S S H O W N O N F L O O R P L A N S A R E F N S H E D F L O O R L E V E L S A N D A L L D I M E N S O N S M E N T I O N E D A R E F N S H E D D I M E N S O N S U N L E S S O T H E R W I S E S P E C I F E D M A N U F A

N C S B N E C E N T R E F O R S U S T A N A B L E B U L T A N D N A T U R A L E N V R O N M E N T © 2 0 1 6 C S B N E L L P R E S E R V E S A L L R G H T S T O T H E S E D R A W I N G S D E S G N S A N D O R A N Y O T H E R D A T A C O N T A N E D H E R E N N O P A R T O F T H E S A D D R A W N G S D E S G N S A N D O R O T H E R D A T A M A Y B E R E P R O D U C E D M O D F E D T R A N S M T T E D O R U S E D N A N Y F O R M O R B Y A N Y M E A N S F O R A N Y P U R P O S E W T H O U T T H E P R O R W R T T E N C O N S E N T O F C S B N E L L P O T H E R T H A N T H E S O L E P U R P O S E F O R W H I C H O T H E R D R A W N G S , D E S G N S A N D O R O T H E R D A T A A R E P R O V I D E D T O L C E N S E D U S E R S O N S U C H T E R M S A S C S B N E L L P M A Y P R E S C R B E C S B N E C O M P R E H E N S V E D E S G N S E R V C E S L L P V I / 1 6 1 , S R E E M A N G A L A M M A T H L L P O N D A 6 9 1 6 0 1 W W W C S B N E O R G P R O J E C T : C L I E N T : P R O J E C T N O : D R A W I N G M A N K U T T A N R E S D E N C E T I T L E : D R A W I N G N O : 1 V E R S I O N : S C A L E C H E C K E D B Y : C H E C K E D B Y : A P P R O V E D B Y : R E V I S O N D A T E R E M A R K S C O N S U L T A N T S N O T E S P R O J E C T E X E C U T O N T E A M M U S T C H E C K A N D V E R I F Y A L L D I M E N S O N S O N S T E B E F O R E C O M M E N C E M E N T O F W O R K A N Y D S C R E P A N C E S I N T H E F I G U R E D D M E N S I O N A R E T O B E R E P O R T E D M M E D A T E L Y T O T H E A R C H T E C T R E F E R T O S T R U C T U R A L E N G N E E R N G D R A W N G F O R A L L S T R U C T U R A L S Z E S A N
C T U R E R S S U P P L E R S S H A L L F U R N S H N S T A L L A N D C O M P L E T E A L L N S T A L L A T I O N S A N D S H A L L B E R E S P O N S B L E F O R T H E W A R R A N T Y C O N F O R M I T Y A N D P E R F O R M A N C E O F T H E P R O D U C T R E C E V E D B Y D A T E D R A W N B Y S U R A J K A R W A S R A D A T E : 0 8 0 2 2 0 2 1 P L U M B N G L A Y O U T T O L E T 1 M A N K U T T A N M L A V L A 6 7 1 1 0 6 3 5 9 1 7 6 2 9 9 2 4 0 1 4 9 1 4 9 1 5 5 6 8 2 3 W A T E R F A U S E T W A T E R C L O S E T S H O W E R W A T E R T R A P S I N G L E L E V E R D I V E R T E R T A P O N E T I L E D R O P 3 3 4 5 6 9 8 0 5 6 7 9 2 1 0 G L A S S C U B I C A L 6 1 8 0 N 1 5 ” D I A C O L D W A T E R P I P E 2 ” D I A W A S T E W A T E R P I P E 4 ” D I A N I G H T S O I L W A T E R P I P E . 1 5 0 1 2 0 0 4 5 0 T I L E S ( 3 0 X 5 0 c m ) L E D G E W A L L C O N C E A L E D F L U S H S Y S T E M S c h e m a t i c D i a g r a m o f C o n c e a l e d W . C . D E T A I L A S E C T I O N A L O N G A A ' S E C T I O N A L O N G B B ’ S E C T I O N A L O N G C C ’ P L A N 1 0 0 0 1 0 0 0 W A T E R T R A P K E Y P L A N S C A L E - 1 : 3 0 B B ' A A ' C C '

E

Y T O T H E A R C H T E C T R E F E R T O

R A L E N G N E E R N G D R A W N G F O R A L L

R U C T U R A L S Z E S A N D D M E N S O N S A L L L E V E L S S H O W N O N F L O O R P L A N S A R E F N S H E D F L O O R L E V E L S A N D A L L D I M E N S O N S M E N T I O N E D A R E F N S H E D D I M E N S O N S U N L E S S O T H E R W I S E S P E C I F E D M A N U F A

N C S B N E C E N T R E F O R S U S T A N A B L E B U L T A N D N A T U R A L E N V R O N M E N T © 2 0 1 6 C S B N E L L P R E S E R V E S A L L R G H T S T O T H E S E D R A W I N G S D E S G N S A N D O R A N Y O T H E R D A T A C O N T A N E D H E R E N N O P A R T O F T H E S A D D R A W N G S D E S G N S A N D O R O T H E R D A T A M A Y B E R E P R O D U C E D M O D F E D T R A N S M T T E D O R U S E D N A N Y F O R M O R B Y A N Y M E A N S F O R A N Y P U R P O S E W T H O U T T H E P R O R W R T T E N C O N S E N T O F C S B N E L L P O T H E R T H A N T H E S O L E P U R P O S E F O R W H I C H O T H E R D R A W N G S , D E S G N S A N D O R O T H E R D A T A A R E P R O V I D E D T O L C E N S E D U S E R S O N S U C H T E R M S A S C S B N E L L P M A Y P R E S C R B E C S B N E C O M P R E H E N S V E D E S G N S E R V C E S L L P V I / 1 6 1 , S R E E M A N G A L A M M A T H L L P O N D A 6 9 1 6 0 1 W W W C S B N E O R G P R O J E C T : C L I E N T : P R O J E C T N O : D R A W I N G M A N K U T T A N R E S D E N C E T I T L E : D R A W I N G N O : 1 V E R S I O N : S C A L E C H E C K E D B Y : C H E C K E D B Y : A P P R O V E D B Y : R E V I S O N D A T E R E M A R K S C O N S U L T A N T S N O T E S P R O J E C T E X E C U T O N T E A M M U S T C H E C K A N D V E R I F Y A L L D I M E N S O N S O N S T E B E F O R E C O M M E N C E M E N T O F W O R
A
D
M
C T U R E R S S U P P L E R S S H A L L F U R N S H N S T A L L A N D C O M P L E T E A L L N S T A L L A T I O N S A N D S H A L L B E R E S P O N S B L E F O R T H E W A R R A N T Y C O N F O R M I T Y A N D P E R F O R M A N C E O F T H E P R O D U C T R E C E V E D B Y D A T E D R A W N B Y S U R A J K A R W A S R A D A T E : 0 8 0 2 2 0 2 1 P L U M B N G L A Y O U T T O L E T 1 M A N K U T T A N M L A V L A 4 5 1 0 3 5 2 4 7 0 1 4 8 1 4 9 1 5 7 2 4 0 2 9 9 5 2 7 7 2 1 1 4 5 3 5 8 0 W A T E R F A U S E T W A T E R C L O S E T S H O W E R W A T E R T R A P S I N G L E L E V E R D I V E R T E R T R A P O N E T I L E D R O P G L A S S C U B I C A L 5 9 6 9 8 0 N 1 5 ” D I A C O L D W A T E R P I P E 2 ” D I A W A S T E W A T E R P I P E 4 ” D I A N I G H T S O I L W A T E R P I P E . 1 5 0 1 2 0 0 4 5 0 T I L E S ( 3 0 X 5 0 c m ) L E D G E W A L L C O N C E A L E D F L U S H S Y S T E M S c h e m a t i c D i a g r a m o f C o n c e a l e d W . C . D E T A I L A 1 0 0 0 1 0 0 0 W A T E R T R A P P L A N S E C T I O N A L O N G A A ' S E C T I O N A L O N G B B ’ S E C T I O N A L O N G C C ’ K E Y P L A N S C A L E - 1 : 3 0 B B ' A A ' C C '
K
N Y D S C R E P A N C E S I N T H E F I G U R E D
M E N S I O N A R E T O B E R E P O R T E D
M E D A T
L
S T R U C T U
S T

S U S H I L A R E S I D E N C E

T R A I N I N G P O R T F O L I O S U R A J K A R W A S R A
L o w C o s t H o u s i n g

P R O J E C T : C L I E N T :

P R O J E C T N O : D R A W I N G W O R K N G D R A W I N G T I T L E D R A W I N G N O : V E R S I O N : S C A L E C H E C K E D B Y : C H E C K E D B Y :

D A T E :

D R A W N B Y d L V L + 0

R R

D
E
A P P R O V E D B Y : R E V I S O N D A T E R E M A R K S C O N S U L T A N T S N O T E S R E C E V E D B Y N O R T H N O T E : A L L D I M E N S I O N A R E I N C M
A T K O L L A M E L A M B A L L O
S I T E P L A N 0 1 1 : 7 5 1 2 0 3 2 0 2 1 S U R A J K O R L E P A R A

P R O J E C T : C L I E N T :

P R O J E C T N O : D R A W I N G W O R K N G D R A W I N G T I T L E D R A W I N G N O : V E R S I O N : S C A L E C H E C K E D B Y : C H E C K E D B Y :

D A T E :

S I T E P L A N 0 1 1 : 7 5 1 2 0 3 2 0 2 1 S U R A J K O R L E P A R A

A T E N O R T H N O T E : A L L D I M E N S I O N A R E I N C M

D
A P P R O V E D B Y : R E V I S O N D A T E R E M A R K S C O N S U L T A N T S N O T E S R E C E V E D B Y
D R A W N B Y

P R O J E C T : C L I E N T :

P R O J E C T N O : D R A W I N G W O R K N G D R A W I N G T I T L E D R A W I N G N O : V E R S I O N : S C A L E C H E C K E D B Y : C H E C K E D B Y :

D A T E :

S I T E P L A N 0 1 1 : 7 5 1 2 0 3 2 0 2 1 S U R A J K O R L E P A R A

A T E N O R T H N O T E : A L L D I M E N S I O N A R E I N C M

D
A P P R O V E D B Y : R E V I S O N D A T E R E M A R K S C O N S U L T A N T S N O T E S R E C E V E D B Y
D R A W N B Y
D
D
C
R
D A T E D
D
S
T E
S
N O R T H 1 8 1 5 4 3 4 9 0 4 0 7 1 0 1 1 4 2 0 R O A D L E V E L + / - 0 T O W A R D S T H E V A L L Y T O W A R D S M A T H I L I L 7 M W I D E R O A D S I T E P L A N S C A L E 1 : 7 5 7 5 E X I S T I N G B U I L D I N G R E S I D E N C E 5 1 0 5 1 0 7 5 7 5 R E S I D E N C E L V L 6 0 0 L V L 5 0 0 4 1 9 3 2 1 1 9 0 5 2 6 1 5 0 R O O F 3 6 6 N O T E : A L L D I M E N S I O N A R E I N C M
P R O J E C T : C L I E N T : P R O J E C T N O :
R A W I N G W O R K N G D R A W I N G T I T L E
R A W I N G N O : V E R S I O N : S C A L E C H E C K E D B Y : C H E C K E D B Y : A P P R O V E D B Y : R E V I S O N D A T E R E M A R K S
O N S U L T A N T S N O T E S
E C E V E D B Y
R A W N B Y
A T E :
I
P L A N 0 1 1 : 7 5 1 2 0 3 2 0 2 1
U R A J K O R L E P A R A

P R O J E C T : C L I E N T :

P R O J E C T N O : D R A W I N G W O R K N G D R A W I N G T I T L E D R A W I N G N O : V E R S I O N : S C A L E C H E C K E D B Y :

A P P R O V E D B Y : R E V I S O N D A T E R E M A R K S

C O N S U L T A N T S N O T E S P R O J E C T E X E C U T O N T E A M M U S T C H E C K A N D V E R I F Y A L L D I M E N S O N S O N S T E B E F O R E C O M M E N C E M E N T O F W O R K A N Y D S C R E P A N C E S I N T H E F I G U R E D D M E N S I O N A R E T O B E R E P O R T E D M M E D A T E L Y T O T H E A R C H T E C T R E F E R T O S T R U C T U R A L E N G N E E R N G D R A W N G F O R A L L S T R U C T U R A L S Z E S A N D D M E N S O N S A L L L E V E L S S H O W N O N F L O O R P L A N S A R E F N S H E D F L O O R L E V E L S A N D A L L D I M E N S O N S M E N T I O N E D A R E F N S H E D D I M E N S O N S U N L E S S O T H E R W I S E S P E C I F E D M A N U F A C T U R E R S S U P P L E R S S H A L L F U R N S H N S T A L L A N D C O M P L E T E A L L N S T A L L A T I O N S A N D S H A L L B E R E S P O N S B L E F O R T H

C E O F T H E P R O D U C T R E C E V E D B Y D A T E D R A W N B Y H A A R I S K H A N D A T E : D D M M Y Y Y Y C H E C K E D B Y : W 1 W 2 L 1 L 2 P 3 P 1 P 2 L 5 L 4 W 4 W 5 L 3 W 3 N a m e A r c L e n g t h H o r z o n t a l L e n g t h L 1 L 2 3 2 7 9 3 3 3 3 L 3 L 4 3 2 7 9 3 3 1 5 L 5 P 1 3 2 7 9 8 5 9 N a m e A r c L e n g h H o r i z o n t a L e n g h W 1 W 2 3 2 6 2 3 3 3 3 3 2 5 3 3 3 2 4 W 3 W 4 3 2 7 9 3 3 1 5 3 2 7 3 3 0 6 W 5 3 2 7 9 3 2 7 2 3 0 0 2 4 0 0 2 3 5 0 2 3 0 0 2 3 0 0 0 5 7 5 6 0 0 2 3 5 0 0 2 3 0 0 0 2 3 2 5 0 2 3 2 5 0 7 0 0 0 3 2 5 3 3 3 2 4 3 2 7 3 3 0 6 1 4 2 5 1 2 7 5 G R O U N D F L O O R P L I N T H S L A B ( S C A L E 1 : 4 0 ) 1 9 m m G I P I P E 1 9 . 0 7 m m G I P I P E B E A M S E C T I O N A A ’ S C A L E 1 : 2 5 1 m m t h i c k ( m i n ) 1 0 m m x 1 0 m m M . S . m e s h 2 5 m m M 2 0 C O N C R E T E 3 0 m m T H I C K F L O O R F I N I S H 2 m m t h i c k ( m i n ) 1 0 0 m m x 1 0 0 m m M . S . m e s h 1 0 m m L R O D S @ 2 5 c m C / C B R I C K B A T D E T A I L B 0 3 0 0 . 2 0 1 5 2 2 5 2 7 F I N I S H L E V E L O F B E A M C O N C R E T E D E T A I L A 1 0 0 D E T A I L A 1 9 0 7 m m G I P I P E B E A M T Y P E B 1 G I P I P E S M E T A L P L A T E 2 5 m m M 2 0 C O N C R E T E B R I C K B A T 2 m m t h i c k ( m i n ) 1 0 0 m m x 1 0 0 m m M S m e s h 1 m m t h i c k ( m i n . ) 1 0 m m x 1 0 m m M S m e s h 3 0 m m T H I C K F L O O R F I N I S H 6 m m M E T A L F L A T 1 0 m m L R O D S @ 2 5 c m C / C F E R R O C E M E N T D E T A I L D E T A I L B L 1 W 1 L 2 W 2 L 3 W 3 8 5 9 1 2 7 5 P 2 P 3 1 2 8 1 1 2 7 5 L 4 N O T E : A L L D I M E N S I O N A R E I N C M N O R T H
E W A R R A N T Y C O N F O R M I T Y A N D P E R F O R M A N
D A T E D
M
Y D
G
N O R T H 2 7 0 5 1 0 5 1 0 1 5 0 5 2 5 1 0 5 5 2 5 M A S O N R Y D R A W I N G L E G E N D 1 5 C M A A C B R I C K W A L L W 1 L L 2 1 0 S L 5 0 D 1 L L 2 1 0 D 1 L L 2 1 0 W 1 L L 2 1 0 S L 5 0 D 2 L L 2 1 0 D 2 L L 1 9 5 D 1 L L 2 1 0 V L L 2 1 0 S L 1 5 0 V L L 2 1 0 S L 1 5 0 W 1 L L 2 1 0 S L 5 0 D 1 L L 2 1 0 W 3 L L 2 1 0 S L 8 5 W 1 L L 1 9 5 S L 7 5 W 4 L L 2 1 0 S L 1 2 0 W 1 L L 2 1 0 S L 5 0 W 2 L L 2 1 0 S L 1 2 0 L V L 5 6 0 9 5 9 5 5 0 9 5 W 1 L L 2 1 0 S L 5 0 4
5 3
W
L
S
W
L
S
W
S
W
S
1 0 7
4
1
1
8
1
5
8
5
5
5
2
B
2
L
G 2 4 0 X 2 4 0 D I N I N G 2 4 0 X 2 4 0 K I T C H E N 2 4 0 X 1 5 0 B A T H 1 0 5 X 7 5 T O I L E T 1 2 0 X 9 0 B E D 2 4 0 X 2 4 0 B E D 2 4 0 X 2 4 0 6 0 1 2 0 1 5 5 0 9 5 1 6 3 8 0 1 5 1 6 0 5 0 1 0 4 7 5 4 5 7 0 6 0 9 0 6 0 6 0 1 6 5 1 5 8 0 1 6 0 4 0 1 4 7 0 6 0 1 5 7 5 7 0 8 6 5 0 4 5 ~ 5 0 7 5 8 0 2 5 5 4 9 5 3 9 0 2 4 0 L V L 1 5 0 L V L 0 2 4 0 L V L 0 N O T E : A L L D I M E N S I O N A R E I N C M 1 5 5 2 5 A A ’
P R O J E C T : C L I E N T : P R O J E C T N O : D R A W I N G W O R K N G D R A W I N G T I T L E D R A W I N G N O : V E R S I O N : S C A L E C H E C K E D B Y : C H E C K E D B Y : A P P R O V E D B Y : R E V I S O N D A T E R E M A R K S C O N S U L T A N T S N O T E S R E C E V E D B Y
R A W N B Y D A T E :
A S O N R
R A W I N
0 1 1 : 4 0 1 2 0 3 2 0 2 1 S U R A J K O R L E P A R A
5
0
1
L 2 1 0
L 5 0
1
L 2 1 0
L 5 0
1 L L 2 1 0
L 5 0
1 L L 2 1 0
L 5 0
0
0
2 0
5
5 5 0 1 0 5
5 3 0
0
0
0 3 0 3 0 5 0 8 0 5 0 3 0 2 4 0
5 5 0 1 3 5
6 8 0
4 0 5 0 5 0
E D
4 0 X 2 4 0
I V I N

W W W C S B N E O R G

P R O J E C T : C L I E N T :

P R O J E C T N O : D R A W I N G W O R K N G D R A W I N G

T I T L E D R A W I N G N O : 2 V E R S I O N : S C A L E 1 : 2 0 C H E C K E D B Y :

A P P R O V E D B Y : R E V I S O N D A T E R E M A R K S

C O N S U L T A N T S

N O T E S P R O J E C T E X E C U T O N T E A M M U S T C H E C K A N D V E R I F Y A L L D I M E N S O N S O N S T E B E F O R E C O M M E N C E M E N T O F W O R K A N Y D S C R E P A N C E S I N T H E F I G U R E D D M E N S I O N A R E T O B E R E P O R T E D M M E D A T E L Y T O T H E A R C H T E C T R E F E R T O S T R U C T U R A L E N G N E E R N G D R A W N G F O R A L L S T R U C T U R A L S Z E S A N D D M E N S O N S A L L L E V E L S S H O W N O N F L O O R P L A N S A R E F N S H E D F L O O R L E V E L S A N D A L L D I M E N S O N S M E N T I O N E D A R E F N S H E D D I M E N S O N S U N L E S S O T H E R W I S E S P E C I F E D M A N U F A C T U R E R S S U P P L E R S S H A L L F U R N S H N S T A L L A N D C O M P L E T E A L L N S T A L L A T I O N S A N D S H A L L B E R E S P O N S B L E F O R T H E W A R R A N T Y C O N F O R M I T Y A N D P E R F O R M A N C E O F T H E P R O D U C T R E C

C S B N E
E N T R E F O R S U S T A N A B L E B U L T A N D N A T U R A L E N V R O N M E N T
C
© 2 0 1 6 C S B N E L L P R E S E R V E S A L L R G H T S T O T H E S E D R A W I N G S D E S G N S A N D O R A N Y O T H E R D A T A C O N T A N E D H E R E N N O P A R T O F T H E S A D D R A W N G S D E S G N S A N D O R O T H E R D A T A M A Y B E R E P R O D U C E D M O D F E D T R A N S M T T E D O R U S E D N A N Y F O R M O R B Y A N Y M E A N S F O R A N Y P U R P O S E W T H O U T T H E P R O R W R T T E N C O N S E N T O F C S B N E L L P O T H E R T H A N T H E S O L E P U R P O S E F O R W H I C H O T H E R D R A W N G S , D E S G N S A N D O R O T H E R D A T A A R E P R O V I D E D T O L C E N S E D U S E R S O N S U C H T E R M S A S C S B N E L L P M A Y P R E S C R B E C S B N E C O M P R E H E N S V E D E S G N S E R V C E S L L P V I / 1 6 1 , S R E E M A N G A L A M M A T H L L P O N D A 6 9 1 6 0 1
E D B Y D A T E D R A W N B Y S U R A J K A R W A S R A D A T E : 0 3 4 2 0 2 1 N C H E C K E D B Y : T O I L E T D E T A L S S U S H I L A R E S I D E N C E K E Y P L A N B A T H R O O M & T O I L E T P L A N 1 2 0 1 5 1 0 5 8 0 9 0 5 0 5 0 3 0 3 0 W A S H B A S I N G R A N I T E F L O O R I N G W C H E A L T H F A U C E T S H O W E R F L O O R T R A P W A S H B A S I N L V L + 0 0 L V L 0 0 1 8 A A ’ 4 0 4 0 S E C T I O N A A ’ D A D O S H O W E R W A S H B A S I N D I V E R T E R W C 7 3 4 0 6 3 1 7 5 1 3 5 B C B ’ C ’ 4 5 4 5 4 7 0 3 6 3 0 3 0 7 0 6 0
E V

W W W C S B N E O R G

P R O J E C T : C L I E N T :

P R O J E C T N O : D R A W I N G W O R K N G D R A W I N G

T I T L E D R A W I N G N O : 3 V E R S I O N : S C A L E 1 : 2 0 C H E C K E D B Y :

A P P R O V E D B Y : R E V I S O N D A T E R E M A R K S

C O N S U L T A N T S

N O T E S P R O J E C T E X E C U T O N T E A M M U S T C H E C K A N D V E R I F Y A L L D I M E N S O N S O N S T E B E F O R E C O M M E N C E M E N T O F W O R K A N Y D S C R E P A N C E S I N T H E F I G U R E D D M E N S I O N A R E T O B E R E P O R T E D M M E D A T E L Y T O T H E A R C H T E C T R E F E R T O S T R U C T U R A L E N G N E E R N G D R A W N G F O R A L L S T R U C T U R A L S Z E S A N D D M E N S O N S A L L L E V E L S S H O W N O N F L O O R P L A N S A R E F N S H E D F L O O R L E V E L S A N D A L L D I M E N S O N S M E N T I O N E D A R E F N S H E D D I M E N S O N S U N L E S S O T H E R W I S E S P E C I F E D M A N U F A C T U R E R S S U P P L E R S S H A L L F U R N S H N S T A L L A N D C O M P L E T E A L L N S T A L L A T I O N S A N D S H A L L B E R E S P O N S B L E F O R T H E W A R R A N T Y C O N F O R M I T Y A N D P E R F O R M A N C E O F T H E P R O D U C T

C S B N E
E N T R E F O R S U S T A N A B L E B U L T A N D N A T U R A L E N V R O N M E N T
C
© 2 0 1 6 C S B N E L L P R E S E R V E S A L L R G H T S T O T H E S E D R A W I N G S D E S G N S A N D O R A N Y O T H E R D A T A C O N T A N E D H E R E N N O P A R T O F T H E S A D D R A W N G S D E S G N S A N D O R O T H E R D A T A M A Y B E R E P R O D U C E D M O D F E D T R A N S M T T E D O R U S E D N A N Y F O R M O R B Y A N Y M E A N S F O R A N Y P U R P O S E W T H O U T T H E P R O R W R T T E N C O N S E N T O F C S B N E L L P O T H E R T H A N T H E S O L E P U R P O S E F O R W H I C H O T H E R D R A W N G S , D E S G N S A N D O R O T H E R D A T A A R E P R O V I D E D T O L C E N S E D U S E R S O N S U C H T E R M S A S C S B N E L L P M A Y P R E S C R B E C S B N E C O M P R E H E N S V E D E S G N S E R V C E S L L P V I / 1 6 1 , S R E E M A N G A L A M M A T H L L P O N D A 6 9 1 6 0 1
Y D A T E D R A W N B Y S U R A J K A R W A S R A D A T E : 0 3 4 2 0 2 1 N C H E C K E D B Y : P L U M B I N G D E T A L S S U S H I L A R E S I D E N C E P L A N 9 0 L V L + 0 0 L V L 0 0 1 8 A A ’ S E C T I O N A A ’ B C B ’ C ’ S E C T I O N B B ’ S E C T I O N C C ’ K E Y P L A N B A T H R O O M & T O I L E T W A T E R P I P E D I S T R I B U T I O N P L A N 1 5 7 3 5 0 5 0 W A T E R T A N K W A T E R P I P E ( 1 ” ) G R E Y W A T E R P I P E ( 2 ” ) B L A C K W A T E R P I P E ( 4 ” )
R E C E V E D B

L E V E L S S H O W N O N F L O O R P L A N S A R E F N S H E D F L O O R L E V E L S A N D A L L D I M E N S O N S M E N T I O N E D A R E F N S H E D D I M E N S O N S U N L E S S O T H E R W I S E S P E C I F E D M A N U F A C T U R E R S S U P P L

C S B N E C E N T R E F O R S U S T A N A B L E B U L T A N D N A T U R A L E N V R O N M E N T © 2 0 1 6 C S B N E L L P R E S E R V E S A L L R G H T S T O T H E S E D R A W I N G S D E S G N S A N D O R A N Y O T H E R D A T A C O N T A N E D H E R E N N O P A R T O F T H E S A D D R A W N G S D E S G N S A N D O R O T H E R D A T A M A Y B E R E P R O D U C E D M O D F E D T R A N S M T T E D O R U S E D N A N Y F O R M O R B Y A N Y M E A N S F O R A N Y P U R P O S E W T H O U T T H E P R O R W R T T E N C O N S E N T O F C S B N E L L P O T H E R T H A N T H E S O L E P U R P O S E F O R W H I C H O T H E R D R A W N G S , D E S G N S A N D O R O T H E R D A T A A R E P R O V I D E D T O L C E N S E D U S E R S O N S U C H T E R M S A S C S B N E L L P M A Y P R E S C R B E C S B N E C O M P R E H E N S V E D E S G N S E R V C E S L L P V I / 1 6 1 , S R E E M A N G A L A M M A T H L L P O N D A 6 9 1 6 0 1 W W W C S B N E O R G P R O J E C T : C L I E N T : P R O J E C T N O : D R A W I N G W O R K N G D R A W I N G T I T L E D R A W I N G N O : 1 V E R S I O N : S C A L E 1 : 2 0 C H E C K E D B Y : A P P R O V E D B Y : R E V I S O N D A T E R E M A R K S C O N S U L T A N T S N O T E S P R O J E C T E X E C U T O N T E A M M U S T C H E C K A N D V E R I F Y A L L D I M E N S O N S O N S T E B E F O R E C O M M E N C E M E N T O F W O R K A N Y D S C R E P A N C E S I N T H E F I G U R E D D M E N S I O N A R E T O B E R E P O R T E D M M E D A T E L Y T O T H E A R C H T E C T R E F E R T O S T R U C T U R A L E N G N E E R N G D R A W N G F O R A L L S T R U C T U R A L S Z E S A N D D M E N S O N S A L L
E R S S H A L L F U R N S H N S T A L L A N D C O M P L E T E A L L N S T A L L A T I O N S A N D S H A L L B E R E S P O N S B L E F O R T H E W A R R A N T Y C O N F O R M I T Y A N D P E R F O R M A N C E O F T H E P R O D U C T R E C E V E D B Y D A T E D R A W N B Y S U R A J K A R W A S R A A N D A S F A N W A R D A T E : 0 3 4 2 0 2 1 N C H E C K E D B Y : P L U M B I N G D E T A L S S U S H I L A R E S I D E N C E P L U M B I N G D I S T R I B U T I O N L A Y O U T B A D D E T A I L A T D C D E T A I L A T C D E T A I L A T B O V E R H E A D L O F T T A N K D E T A I L D E T A I L A T A 2 8 1 1 1 0 4 7 9 1 5 3 4 0 0 1 1 9 6 6 W E L L P I P E N A M E C O L O U R T H I C K N E S S L E N G T H B L A C K W A T E R P I P E B R O W N 4 ” 3 . 3 6 M G R E Y W A T E R P I P E Y E L L O W 2 ” 9 8 M O U T L E T W A T E R P I P E D A R K B L U E 1 ” 2 1 . 1 0 M I N L E T W A T E R P I P E L I G H T B L U E 1 ” 7 . 5 M L O F T T A N K 2 0 0 L R E S T I N G O N T W A L L 9 2 7 4 3 3 S U P P O R T P I P E O U T L E T W A T E R P I P E 1 ” I N L E T W A T E R P I P E 1 ” C O R N E R W A S H B A S I N W A T E R T R A P F O R B A S I N F I T T I N G S U N D E R F L O O R L E V E L D I V E R T E R T A P F L U S H W A T E R T A N K O U T L E T W A T E R P I P E ( 1 ” ) G R E Y W A T E R P I P E ( 2 ” ) B L A C K W A T E R P I P E ( 4 ” ) I N L E T W A T E R P I P E ( 1 ” )

C

N T O F W O R K

N

F

S C R E P A N C E S I N T H E F I G U R E D D M E N S I O N A R E T O B E R E P O R T E D M M E D A T E L Y T O T H E A R C H T E C T R E F E R T O S T R U C T U R A L E N G N E E R N G D R A W N G F O R A L L S T R U C T U R A L S Z E S A N D D M E N S O N S A L L L E V E L S S H O W N O N F L O O R P L A N S A R E F N S H E D F L O O R L E V E L S A N D A L L D I M E N S O N S M E N T I O N E D A R E F N S H E D D I M E N S O N S U N L E S S O T H E R W I S E S P E C I F E D M A N U F A C T U R E R S S U P P L E R S S H A L L F U R N S H

C S B N E C E N T R E F O R S U S T A N A B L E B U L T A N D N A T U R A L E N V R O N M E N T © 2 0 1 6 C S B N E L L P R E S E R V E S A L L R G H T S T O T H E S E D R A W I N G S D E S G N S A N D O R A N Y O T H E R D A T A C O N T A N E D H E R E N N O P A R T O F T H E S A D D R A W N G S D E S G N S A N D O R O T H E R D A T A M A Y B E R E P R O D U C E D M O D F E D T R A N S M T T E D O R U S E D N A N Y F O R M O R B Y A N Y M E A N S F O R A N Y P U R P O S E W T
U T
E P R O R W R T T E
N S E N T
B
E L L
E S
C S B N E C O M P R E H E N S V E D E S G N S E R V C E S L L P V I / 1 6 1 , S R E E M A N G A L
H O
T H
N C O
O F C S
N
P O T H E R T H A N T H
O L E P U R P O S E F O R W H I C H O T H E R D R A W N G S , D E S G N S A N D O R O T H E R D A T A A R E P R O V I D E D T O L C E N S E D U S E R S O N S U C H T E R M S A S C S B N E L L P M A Y P R E S C R B E
A M M A T H L L P O N D A 6 9 1 6 0 1 W W W C S B N E O R G P R O J E C T : C L I E N T : P R O J E C T N O : D R A W I N G W O R K N G D R A W I N G T I T L E D R A W I N G N O : 1 V E R S I O N : S C A L E 1 : 2 0 C H E C K E D B Y :
:
P R O
E
T
V
N
A
W
A N C E O F T H E P R O D U C T R E C E V E D B Y D A T E D R A W N B Y S U R A J K A R W A S R A D A T E : 0 3 4 2 0 2 1 N C H E C K E D B Y : K I T C H E N D E T A I L S S U S H I L A R E S I D E N C E K E Y P L A N K I T C H E N P L A N S E C T I O N A A ’ S E C T I O N B B ’ 4 5 4 5 5 0 4 5 3 3 6 3 5 4 2 5 4 2 8 0 6 9 8 5 2 4 0 1 5 2 1 2 7 4 4 4 0 1 5 3 5 3 0 1 1 8 5 7 6 7 3 C U P B O A R D S T O V E C A B I N E T S K I R T I N G S I N K S T O V E D A D O I N G C U P B O A R D S K I R T I N G C A B I N E T R E F R I G E R A T O R C O U N T E R C O U N T E R B B ’ A A ’ 6 0 9 0 5 5 6 0 2 0 5 1 0 1 0 7 0 1 3 3 0 3 0 1 4 S I N K
A P P R O V E D B Y
R E V I S O N D A T E R E M A R K S C O N S U L T A N T S N O T E S
J
C
E X E C U T O N T E A M M U S T C H E C K A N D
E R I F Y A L L D I M E N S O N S O N S T E B E
O R E C O M M E N
E M E
A
Y D
S T A L L A N D C O M P L E T E A L L N S T A L L A T I O N S
N D S H A L L B E R E S P O N S B L E F O R T H E
A R R A N T Y C O N F O R M I T Y A N D P E R F O R M

K O C H I O F F I C E C . S . B . N . E

T R A I N I N G P O R T F O L I O S U R A J K A R W A S R A

B A S E M E N T P L A N

D B I

A

T W O W A Y S W I T C H

R C O N D I T I O N I N G

O U T L E T F O R C E I L I N G F A N

C E I L I N G F A N

E X H A U S T F A N

P E N D A N T L I G H T

D I S T R I B U T I O N B O A R D

S O C K E T O U T L E F T F O R C A B L E T V

S O C K E T O U T L E T F O R T E L E P H O N E

S O C K E T F O R 1 5 A M P W I T H S W I T C H

S O C K E T F O R 5 A M P W I T H S W I T C H

S O C K E T O U T L E T F O R A C

S W I T C H F O R A C B E D L A M P

W A S H B A S I N L A M P M O U N T E D O N W A L L

L A M P M O U N T E D O N W A L L

C H A N D E L I E R

L A M P C O N C E A L E D I N C E I L I N G L A M P

S W I T C H

M B M E A T E R B O X C C T V C A M E R A

S E N S O R L I G H T S B E L L L E G E N D

F A N M O U N T E D O N W A L L

I / 1 6 1 , S R E E M A N G A L A M M A T H L L P O N D A 6 9 1 6 0 1

© 2 0 1 6 C S B N E L L P R E S E R V E S A L L R G H T S T O T H E S E D R A W I N G S D E S G N S A N D O R A N Y O T H E R D A T A C O N T A N E D H E R E N N O P A R T O F T H E S A D D R A W N G S D E S G N S A N D O R O T H E R D A T A M A Y B E R E P R O D U C E D M O D F E D T R A N S M T T E D O R U S E D N A N Y F O R M O R B Y A N Y M E A N S F O R A N Y P U R P O S E W T H O U T T H E P R O R W R T T E N C O N S E N T O F C S B N E L L P O T H E R T H A N T H E S O L E P U R P O S E F O R W H I C H O T H E R D R A W N G S , D E S G N S A N D O R O T H E R D A T A A R E P R O V I D E D T O L C E N S E D U S E R S O N S U C H T E R M S A S C S B N E L L P M A Y P R E S C R B E

W W W C S B N E O R G

P R O J E C T : C L I E N T :

O F F I C E E U G E N E N A Z A R E T H P R O J E C T N O : D R A W I N G W O R K N G D R A W I N G

D A T E : 0 4 0 2 2 0 2 1

1 1 1 1

S B 1 5 1 1 2 0 / 4 0 1 1

1 2

2 1 1 1 1

2 1 1

2 2 4 2 2

1 2 1 1 2

2 2 2 4 1 3

2 1 1 1 1 1

1

1 2 0 1 2 0 1 2 0 1 2 0 1 2 0 4 0 1 2 0 1 2 0 4 0 4 0 4 0 4 0 4 0 4 0

1 2 0

D R A W N B Y : S U R A J K A R W A S R A

1 2 0 1 2 0 / 4 0 1 2 0 2 4 0 2 4 0 2 4 0 2 1 0 2 4 0 2 4 0 2 1 0 2 4 0

T I T L E D R A W I N G N O : 0 V E R S I O N : S C A L E C H E C K E D B Y : C H E C K E D B Y :

A P P R O V E D B Y : R E V I S O N D A T E R E M A R K S

2 2 0 1 2 0

S Y M B O L S B 0 1 S B 0 2 S B 0 3 S B 0 4 S B 0 5 S B 0 6 S B 0 7 S B 0 8 S B 0 9 S B 1 0 S B 1 1 S B 1 2 S B 1 3 S B 1 4 H E I G H T D B M B H E I G H T

C O N S U L T A N T S N O T E S

P R O J E C T E X E C U T O N T E A M M U S T C H E C K A N D V E R I F Y A L L D I M E N S O N S O N S T E B E F O R E C O M M E N C E M E N T O F W O R K A N Y D S C R E P A N C E S I N T H E F I G U R E D D M E N S I O N A R E T O B E R E P O R T E D M M E D A T E L Y T O T H E A R C H T E C T R E F E R T O S T R U C T U R A L E N G N E E R N G D R A W N G F O R A L L S T R U C T U R A L S Z E S A N D D M E N S O N S A L L L E V E L S S H O W N O N F L O O R P L A N S A R E F N S H E D F L O O R L E V E L S A N D A L L D I M E N S O N S M E N T I O N E D A R E F N S H E D D I M E N S O N S U N L E S S O T H E R W I S E S P E C I F E D M A N U F A C T U R E R S S U P P L E R S S H A L L F U R N S H N S T A L L A N D C O M P L E T E A L L N S T A L L A T I O N S A N D S H A L L B E R E S P O N S B L E F O R T H E W A R R A N T Y C O N F O R M I T Y A N D P E R F O R M A N C E O F T H E P R O D U C T R E C E V E D B Y

C S B N E
T
E F O R S U S T A N A B L E B U L T A N D N A T U R A L E N V R O N M E N T
C E N
R
C S B N E C O M P R E H E N S V E D E S G N S E R V C E S L L P V
D
A T E
N
E
S B 1 5
E X T E R I O R L I G H T I N G
G E Y S E R T V

G

D B

A I R C O N D I T I O N I N G

E X T E R I O R L I G H T I N G

O U T L E T F O R C E I L I N G F A N

C E I L I N G F A N

E X H A U S T F A N

P E N D A N T L I G H T

D I S T R I B U T I O N B O A R D

S O C K E T O U T L E F T F O R C A B L E T V

S W I T C H M B M E A T E R B O X D B M B

T W O W A Y S W I T C H S O C K E T O U T L E T F O R A C S W I T C H F O R A C B E D L A M P W A S H B A S I N L A M P M O U N T E D O N W A L L L A M P M O U N T E D O N W A L L C H A N D E L I E R L A M P C O N C E A L E D I N C E I L I N G L A M P S O C K E T F O R 5 A M P W I T H S W I T C H R O U N D F L O O R

C

I / 1 6 1 , S R E E M A N G A L A M M A T H L L P O N D A 6 9 1 6 0 1

© 2 0 1 6 C S B N E L L P R E S E R V E S A L L R G H T S T O T H E S E D R A W I N G S D E S G N S A N D O R A N Y O T H E R D A T A C O N T A N E D H E R E N N O P A R T O F T H E S A D D R A W N G S D E S G N S A N D O R O T H E R D A T A M A Y B E R E P R O D U C E D M O D F E D T R A N S M T T E D O R U S E D N A N Y F O R M O R B Y A N Y M E A N S F O R A N Y P U R P O S E W T H O U T T H E P R O R W R T T E N C O N S E N T O F C S B N E L L P O T H E R T H A N T H E S O L E P U R P O S E F O R W H I C H O T H E R D R A W N G S , D E S G N S A N D O R O T H E R D A T A A R E P R O V I D E D T O L C E N S E D U S E R S O N S U C H T E R M S A S C S B N E L L P M A Y P R E S C R B E

W W W C S B N E O R G

S O C K E T O U T L E T F O R T E L E P H O N E

P R O J E C T : C L I E N T :

O F F I C E E U G E N E N A Z A R E T H P R O J E C T N O : D R A W I N G W O R K N G D R A W I N G

E L E C T R I C A L L A Y O U T .

D A T E : 0 4 0 2 2 0 2 1

D R A W N B Y : S U R A J K A R W A S R A

T I T L E D R A W I N G N O : 2 V E R S I O N : S C A L E C H E C K E D B Y : C H E C K E D B Y :

A P P R O V E D B Y : R E V I S O N D A T E R E M A R K S

C O N S U L T A N T S N O T E S

P R O J E C T E X E C U T O N T E A M M U S T C H E C K A N D V E R I F Y A L L D I M E N S O N S O N S T E B E F O R E C O M M E N C E M E N T O F W O R K A N Y D S C R E P A N C E S I N T H E F I G U R E D D M E N S I O N A R E T O B E R E P O R T E D M M E D A T E L Y T O T H E A R C H T E C T R E F E R T O S T R U C T U R A L E N G N E E R N G D R A W N G F O R A L L S T R U C T U R A L S Z E S A N D D M E N S O N S A L L L E V E L S S H O W N O N F L O O R P L A N S A R E F N S H E D F L O O R L E V E L S A N D A L L D I M E N S O N S M E N T I O N E D A R E F N S H E D D I M E N S O N S U N L E S S O T H E R W I S E S P E C I F E D M A N U F A C T U R E R S S U P P L E R S S H A L L F U R N S H N S T A L L A N D C O M P L E T E A L L N S T A L L A T I O N S A N D S H A L L B E R E S P O N S B L E F O R T H E W A R R A N T Y C O N F O R M I T Y A N D P E R F O R M A N C E O F T H E P R O D U C T R E C E V E D B Y

C S B N E
T R E F O R S U S T A N A B L E B U L T A N D N A T U R A L E N V R O N M E N T
C E N
S B N E C O M P R E H E N S V E D E S G N S E R V C E S L L P V
D
A T E
N
S O C K E T F O R 1 5 A M P W I T H S W I T C H
P L A N 1 3 7 1 2 2 1 2 2 1 2 2 1 2 2 1 3 7
B 0 5 S B 0 6 S B 0 7 S B 0 8 ~ 2 0 2 0 F
L L S
S
L
G
S S B 0 3 3 0 S
L S B
S B 0 2 S B
S
S
S
S
H E I G H
6 2 S B 1 4
L E G E N D
1
7
C C T V C A M E R A 2 0 1 2 1 1 3 7 3 0 2 0 2 0 1 0 ~ 1 0 7 0 0 1 2 1 S B 0 1 S B 0 2 S B 0 4 S
A N M O U N T E D O N W A
E N
O R
I
H T
Y M B O
0 1
0 3
B 0 4
B 0 5
B 0 6
B 0 7 S B 0 8 S B 0 9 S B 1 0 S B 1 1 S B 1 2 S B 1 3 S B 1 4 H E I G H T D B M B
T 6 5
B E L L G E Y S E R T V
1 2 1 1 1 1 2 1 1 1 1 1 2 1 1 2 2 4 2 2 1 2 1 1 2 2 2 2 4 1 3 2 1 1 1 1 1 1 2 0 1 2 0 1 2 0 1 2 0 1 2 0 4 0 1 2 0 1 2 0 4 0 4 0 4 0 4 0 4 0 4 0 1 2 0 1 2 0 / 4 0 1 2 0 2 4 0 2 4 0 2 4 0 2 1 0 2 4 0 2 4 0 2 1 0 2 4 0 2 2 0 1 2 0 1 2 0
3
S B 1 5 1 1 2 0 / 4 0 1 1 S E N S O R L I G H T

H E I G

P E N D A N T L I G H T D I S T R I B U T I O N B O A R D

S O C K E T O U T L E F T F O R C A B L E T V

S O C K E T O U T L E T F O R T E L E P H O N E

S O C K E T F O R 1 5 A M P W I T H S W I T C H

S O C K E T F O R 5 A M P W I T H S W I T C H

G E Y S E R T V

T W O W A Y S W I T C H

S O C K E T O U T L E T F O R A C

S W I T C H F O R A C B E D L A M P

W A S H B A S I N L A M P M O U N T E D O N W A L L L A M P M O U N T E D O N W A L L

C H A N D E L I E R

L A M P C O N C E A L E D I N C E I L I N G L A M P

S W I T C H

M B M E A T E R B O X C C T V C A M E R A F A N M O U N T E D O N W A L L

I / 1 6 1 , S R E E M A N G A L A M M A T H L L P O N D A 6 9 1 6 0 1

© 2 0 1 6 C S B N E L L P R E S E R V E S A L L R G H T S T O T H E S E D R A W I N G S D E S G N S A N D O R A N Y O T H E R D A T A C O N T A N E D H E R E N N O P A R T O F T H E S A D D R A W N G S D E S G N S A N D O R O T H E R D A T A M A Y B E R E P R O D U C E D M O D F E D T R A N S M T T E D O R U S E D N A N Y F O R M O R B Y A N Y M E A N S F O R A N Y P U R P O S E W T H O U T T H E P R O R W R T T E N C O N S E N T O F C S B N E L L P O T H E R T H A N T H E S O L E P U R P O S E F O R W H I C H O T H E R D R A W N G S , D E S G N S A N D O R O T H E R D A T A A R E P R O V I D E D T O L C E N S E D U S E R S O N S U C H T E R M S A S C S B N E L L P M A Y P R E S C R B E

W W W C S B N E O R G

H T

1 1 1 1

S B 1 5 1 1 2 0 / 4 0 1 1

2 1 1 1 1

2 1 1

2 2 4 2 2

1 2 1 1 2

2 2 2 4 1 3

2 1 1 1 1 1

1

1 2 0 1 2 0 1 2 0 1 2 0 1 2 0 4 0 1 2 0 1 2 0 4 0 4 0 4 0 4 0 4 0 4 0

1 2 0

P R O J E C T : C L I E N T :

O F F I C E E U G E N E N A Z A R E T H P R O J E C T N O : D R A W I N G W O R K N G D R A W I N G

T I T L E D R A W I N G N O : 3 V E R S I O N : S C A L E C H E C K E D B Y : C H E C K E D B Y :

A P P R O V E D B Y : R E V I S O N D A T E R E M A R K S

2 2 0 1 2 0

1 2 0 1 2 0 / 4 0 1 2 0 2 4 0 2 4 0 2 4 0 2 1 0 2 4 0 2 4 0 2 1 0 2 4 0

C O N S U L T A N T S N O T E S

P R O J E C T E X E C U T O N T E A M M U S T C H E C K A N D V E R I F Y A L L D I M E N S O N S O N S T E B E F O R E C O M M E N C E M E N T O F W O R K A N Y D S C R E P A N C E S I N T H E F I G U R E D D M E N S I O N A R E T O B E R E P O R T E D M M E D A T E L Y T O T H E A R C H T E C T R E F E R T O S T R U C T U R A L E N G N E E R N G D R A W N G F O R A L L S T R U C T U R A L S Z E S A N D D M E N S O N S A L L L E V E L S S H O W N O N F L O O R P L A N S A R E F N S H E D F L O O R L E V E L S A N D A L L D I M E N S O N S M E N T I O N E D A R E F N S H E D D I M E N S O N S U N L E S S O T H E R W I S E S P E C I F E D M A N U F A C T U R E R S S U P P L E R S S H A L L F U R N S H N S T A L L A N D C O M P L E T E A L L N S T A L L A T I O N S A N D S H A L L B E R E S P O N S B L E F O R T H E W A R R A N T Y C O N F O R M I T Y A N D P E R F O R M A N C E O F T H E P R O D U C T R E C E V E D B Y

C S B N E
T
E F O R S U S T A N A B L E B U L T A N D N A T U R A L E N V R O N M E N T
C E N
R
C S B N E C O M P R E H E N S V E D E S G N S E R V C E S L L P V
D
N F I R S T F L O O R P L A N 1 2 0 1 1 7 2 2 1 2 1 1 2 9 1 3 0 1 2 9 S B 0 9 S B 1 0 S B 1 1 S B 1 2 S B 1 3 1 2 9 1 2 2 ~ 1 0 1 0 1 0 1 0 S
0 2 1 0 6 0
A I
A T E D R A W N B Y : S U R A J K A R W A S R A D A T E : 0 4 0 2 2 0 2 1 E L E C T R I C A L L A Y O U T .
B
D B
R C O N D I T I O N I N G E X T E R I O R L I G H T I N G O U T L E T F O R C E I L I N G F A N C E I L I N G F A N E X H A U S T F A N
S E N S O R L I G H T S B E L L L E G E N D
S Y M B O L S B 0 1 S B 0 2 S B 0 3 S B 0 4 S B 0 5 S B 0 6 S B 0 7 S B 0 8 S B 0 9 S B 1 0 S B 1 1 S B 1 2 S B 1 3 S B 1 4 H E I G H T D B M B
1 2

A I R C O N D I T I O N I N G

E X T E R I O R L I G H T I N G

O U T L E T F O R C E I L I N G F A N

C E I L I N G F A N

E X H A U S T F A N

P E N D A N T L I G H T

D I S T R I B U T I O N B O A R D

S O C K E T O U T L E F T F O R C A B L E T V

S O C K E T O U T L E T F O R T E L E P H O N E

S O C K E T F O R 1 5 A M P W I T H S W I T C H

S O C K E T F O R 5 A M P W I T H S W I T C H

G E Y S E R T V

T W O W A Y S W I T C H

S O C K E T O U T L E T F O R A C

S W I T C H F O R A C B E D L A M P

W A S H B A S I N L A M P M O U N T E D O N W A L L

L A M P M O U N T E D O N W A L L

C H A N D E L I E R

L A M P C O N C E A L E D I N C E I L I N G L A M P

S W I T C H

M B M E A T E R B O X C C T V C A M E R A

F A N M O U N T E D O N W A L L

S E N S O R L I G H T S

B E L L

I / 1 6 1 , S R E E M A N G A L A M M A T H L L P O N D A 6 9 1 6 0 1

C L I E N T : P R O J E C T N O : D R A W I N G

D A T E : 0 4 0 2 2 0 2 1

1 1 1 1

S B 1 5 1 1 2 0 / 4 0 1 1

1 2

2 1 1 1 1

2 1 1

2 2 4 2 2

1 2 1 1 2

2 2 2 4 1 3

1

2 1 1 1 1 1 1 2 0 1 2 0 1 2 0 1 2 0 1 2 0 4 0 1 2 0 1 2 0 4 0 4 0 4 0 4 0 4 0 4 0

M B O L S B 0 1 S B 0 2 S B 0 3 S B 0 4 S B 0 5 S B 0 6 S B 0 7 S B 0 8 S B 0 9 S B 1 0 S B 1 1 S B 1 2 S B 1 3 S B 1 4 H E I G H T D B M B

D R A W N B Y : S U R A J K A R W A S R A

1 2 0

D R A W I N G N O : 4 V E R S I O N : S C A L E C H E C K E D B Y : C H E C K E D B Y :

A P P R O V E D B Y : D A T E

2 2 0 1 2 0

1 2 0 1 2 0 / 4 0 1 2 0 2 4 0 2 4 0 2 4 0 2 1 0 2 4 0 2 4 0 2 1 0 2 4 0

C O N S U L T A N T S N O T E S

P R O J E C T E X E C U T O N T E A M M U S T C H E C K A N D V E R I F Y A L L D I M E N S O N S O N S T E B E F O R E C O M M E N C E M E N T O F W O R K A N Y D S C R E P A N C E S I N T H E F I G U R E D D M E N S I O N A R E T O B E R E P O R T E D M M E D A T E L Y T O T H E A R C H T E C T R E F E R T O S T R U C T U R A L E N G N E E R N G D R A W N G F O R A L L S T R U C T U R A L S Z E S A N D D M E N S O N S A L L L E V E L S S H O W N O N F L O O R P L A N S A R E F N S H E D F L O O R L E V E L S A N D A L L D I M E N S O N S M E N T I O N E D A R E F N S H E D D I M E N S O N S U N L E S S O T H E R W I S E S P E C I F E D M A N U F A C T U R E R S S U P P L E R S S H A L L F U R N S H N S T A L L A N D C O M P L E T E A L L N S T A L L A T I O N S A N D S H A L L B E R E S P O N S B L E F O R T H E W A R R A N T Y C O N F O R M I T Y A N D P E R F O R M A N C E O F T H E P R O D U C T R E C E V E D B Y

C S B N E C E N T R E F O R S U S T A N A B L E B U L T A N D N A T U R A L E N V R O N M E N T
© 2 0 1 6 C S B N E L L P R E S E R V E S A L L R G H T S T O T H E S E D R A W I N G S D E S G N S A N D O R A N Y O T H E R D A T A C O N T A N E D H E R E N N O P A R T O F T H E S A D D R A W N G S D E S G N S A N D O R O T H E R D A T A M A Y B E R E P R O D U C E D M O D F E D T R A N S M T T E D O R U S E D N A N Y F O R M O R B Y A N Y M E A N S F O R A N Y P U R P O S E W T H O U T T H E P R O R W R T T E N C O N S E N T O F C S B N E L L P O T H E R T H A N T H E S O L E P U R P O S E F O R W H I C H O T H E R D R A W N G S , D E S G N S A N D O R O T H E R D A T A A R E P R O V I D E D T O L C E N S E D U S E R S O N S U C H T E R M S A S C S B N E L L P M A Y P R E S C R B E C S B N E C O M P R E H E N S V E D E S G N S E R V C E S L L P V
D
A T E
H E I G H
T
L E G E N D

H E I G H T

A I R C O N D I T I O N I N G

E X T E R I O R L I G H T I N G

O U T L E T F O R C E I L I N G F A N

C E I L I N G F A N

E X H A U S T F A N

P E N D A N T L I G H T

D I S T R I B U T I O N B O A R D

S O C K E T O U T L E F T F O R C A B L E T V

S O C K E T O U T L E T F O R T E L E P H O N E

S O C K E T F O R 1 5 A M P W I T H S W I T C H

S O C K E T F O R 5 A M P W I T H S W I T C H

G E Y S E R T V

T W O W A Y S W I T C H

S O C K E T O U T L E T F O R A C

S W I T C H F O R A C

B E D L A M P

W A S H B A S I N L A M P M O U N T E D O N W A L L

L A M P M O U N T E D O N W A L L

C H A N D E L I E R

L A M P C O N C E A L E D I N C E I L I N G L A M P

S W I T C H

M B M E A T E R B O X

C C T V C A M E R A

F A N M O U N T E D O N W A L L

C

B

C O M P R E H E N S V E D E S G N S E R V C E S L L P V I / 1 6 1 , S R E E M A N G A L A M M A T H L L P O N D A 6 9 1 6 0 1

© 2 0 1 6 C S B N E L L P R E S E R V E S A L L R G H T S T O T H E S E D R A W I N G S D E S G N S A N D O R A N Y O T H E R D A T A C O N T A N E D H E R E N N O P A R T O F T H E S A D D R A W N G S D E S G N S A N D O R O T H E R D A T A M A Y B E R E P R O D U C E D M O D F E D T R A N S M T T E D O R U S E D N A N Y F O R M O R B Y A N Y M E A N S F O R A N Y P U R P O S E W T H O U T T H E P R O R W R T T E N C O N S E N T O F C S B N E L L P O T H E R T H A N T H E S O L E P U R P O S E F O R W H I C H O T H E R D R A W N G S , D E S G N S A N D O R O T H E R D A T A A R E P R O V I D E D T O L C E N S E D U S E R S O N S U C H T E R M S A S C S B N E L L P M A Y P R E S C R B E

W W W C S B N E O R G

P R O J E C T : C L I E N T :

O F F I C E E U G E N E N A Z A R E T H P R O J E C T N O : D R A W I N G W O R K N G D R A W I N G

E L E C T R I C A L L A Y O U T .

1 2

1 1 1 1

S B 1 5 1 1 2 0 / 4 0 1 1

2 1 1 1 1

2 1 1

2 2 4 2 2

1 2 1 1 2

2 2 2 4 1 3

2 1 1 1 1 1

1

1 2 0 1 2 0 1 2 0 1 2 0 1 2 0 4 0 1 2 0 1 2 0 4 0 4 0 4 0 4 0 4 0 4 0

1 2 0

D A T E : 0 4 0 2 2 0 2 1

D R A W N B Y : S U R A J K A R W A S R A

1 2 0 1 2 0 / 4 0 1 2 0 2 4 0 2 4 0 2 4 0 2 1 0 2 4 0 2 4 0 2 1 0 2 4 0

T I T L E D R A W I N G N O : 5 V E R S I O N : S C A L E C H E C K E D B Y : C H E C K E D B Y :

A P P R O V E D B Y : R E V I S O N D A T E R E M A R K S

2 2 0 1 2 0

C O N S U L T A N T S N O T E S

P R O J E C T E X E C U T O N T E A M M U S T C H E C K A N D V E R I F Y A L L D I M E N S O N S O N S T E B E F O R E C O M M E N C E M E N T O F W O R K A N Y D S C R E P A N C E S I N T H E F I G U R E D D M E N S I O N A R E T O B E R E P O R T E D M M E D A T E L Y T O T H E A R C H T E C T R E F E R T O S T R U C T U R A L E N G N E E R N G D R A W N G F O R A L L S T R U C T U R A L S Z E S A N D D M E N S O N S A L L L E V E L S S H O W N O N F L O O R P L A N S A R E F N S H E D F L O O R L E V E L S A N D A L L D I M E N S O N S M E N T I O N E D A R E F N S H E D D I M E N S O N S U N L E S S O T H E R W I S E S P E C I F E D M A N U F A C T U R E R S S U P P L E R S S H A L L F U R N S H N S T A L L A N D C O M P L E T E A L L N S T A L L A T I O N S A N D S H A L L B E R E S P O N S B L E F O R T H E W A R R A N T Y C O N F O R M I T Y A N D P E R F O R M A N C E O F T H E P R O D U C T R E C E V E D B Y

C S B N E
T R E F O R S U S T A N A B L E B U L T A N D N A T U R A L E N V R O N M E N T
C E N
S
N E
D
A T E
N
S E N S O R L I G H T S B E L L L E G E N D
S Y M B O L S B 0 1 S B 0 2 S B 0 3 S B 0 4 S B 0 5 S B 0 6 S B 0 7 S B 0 8 S B 0 9 S B 1 0 S B 1 1 S B 1 2 S B 1 3 S B 1 4 H E I G H T D B M B

C . S . B . N . E O F F I C E

T R A I N I N G P O R T F O L I O S U R A J K A R W A S R A

C S B N E C O M P R E H E N S V E D E S G N S E R V C E S L L P V I / 1 6 1 , S R E E M A N G A L A M M A T H L L P O N D A 6 9 1 6 0 1

© 2 0 1 6 C S B N E L L P R E S E R V E S A L L R G H T S T O T H E S E D R A W I N G S D E S G N S A N D O R A N Y O T H E R D A T A C O N T A N E D H E R E N N O P A R T O F T H E S A D D R A W N G S D E S G N S A N D O R O T H E R D A T A M A Y B E R E P R O D U C E D M O D F E D T R A N S M T T E D O R U S E D N A N Y F O R M O R B Y A N Y M E A N S F O R A N Y P U R P O S E W T H O U T T H E P R O R W R T T E N C O N S E N T O F C S B N E L L P O T H E R T H A N T H E S O L E P U R P O S E F O R W H I C H O T H E R D R A W N G S , D E S G N S A N D O R O T H E R D A T A A R E P R O V I D E D T O L C E N S E D U S E R S O N S U C H T E R M S A S C S B N E L L P M A Y P R E S C R B E

W W W C S B N E O R G

P R O J E C T : C L I E N T :

N

P R O J E C T N O : D R A W I N G W O R K N G D R A W I N G

T I T L E D R A W I N G N O : 1 V E R S I O N : S C A L E 1 : 5 0 C H E C K E D B Y :

D A T E : 0 6 0 4 2 0 2 1

C H E C K E D B Y :

A P P R O V E D B Y : R E V I S O N D A T E R E M A R K S

C O N S U L T A N T S

N O T E S

T E

C S B N E
E
T R E F O R S U S T A N A B L E B U L T A N D N A T U R A L E N V R O N M E N T
C
N
D A
N
S O L A R P A N E L S C S B
E O f f
P R O J E C T E X E C U T O N T E A M M U S T C H E C K A N D V E R I F Y A L L D I M E N S O N S O N S T E B E F O R E C O M M E N C E M E N T O F W O R K A N Y D S C R E P A N C E S I N T H E F I G U R E D D M E N S I O N A R E T O B E R E P O R T E D M M E D A T E L Y T O T H E A R C H T E C T R E F E R T O S T R U C T U R A L E N G N E E R N G D R A W N G F O R A L L S T R U C T U R A L S Z E S A N D D M E N S O N S A L L L E V E L S S H O W N O N F L O O R P L A N S A R E F N S H E D F L O O R L E V E L S A N D A L L D I M E N S O N S M E N T I O N E D A R E F N S H E D D I M E N S O N S U N L E S S O T H E R W I S E S P E C I F E D M A N U F A C T U R E R S S U P P L E R S S H A L L F U R N S H N S T A L L A N D C O M P L E T E A L L N S T A L L A T I O N S A N D S H A L L B E R E S P O N S B L E F O R T H E W A R R A N T Y C O N F O R M I T Y A N D P E R F O R M A N C E O F T H E P R O D U C T R E C E V E D B Y c e
D R A W N B Y S U R A J K A R W A S R A
i

M E A N S F O R A N Y P U R P O S E W T H O U T T H E P R O R W R T T E N C O N S E N T O F C S B N E L L P O T H E R T H A N T H E S O L E P U R P O S E F O R W H I C H O T H E R D R A W N G S , D E S G N S A N D O R O T H E R D A T A A R E P R O V I D E D T O L C E N S E D U S E R S O N S U C H T E R M S A S C S B N E L L P M A Y P R E S C R B E

V I / 1 6 1 , S R E E M A N G A L A M M A T H L L P O N D A 6 9 1 6 0 1 W W W C S B N E O R G

P R O J E C T : C L I E N T : P R O J E C T N O :

D R A W I N G W O R K N G D R A W I N G

T I T L E D R A W I N G N O : 2 V E R S I O N : S C A L E 1 : 5 0 C H E C K E D B Y :

A P P R O V E D B Y : R E V I S O N D A T E R E M A R K S

C O N S U L T A N T S N O T E S

P R O J E C T E X E C U T O N T E A M M U S T C H E C K A N D V E R I F Y A L L D I M E N S O N S O N S T E B E F O R E C O M M E N C E M E N T O F W O R K A N Y D S C R E P A N C E S I N T H E F I G U R E D D M E N S I O N A R E T O B E R E P O R T E D M M E D A T E L Y T O T H E A R C H T E C T R E F E R T O S T R U C T U R A L E N G N E E R N G D R A W N G F O R A L L S T R U C T U R A L S Z E S A N D D M E N S O N S A L L L E V E L S S H O W N O N F L O O R P L A N S A R E F N S H E D F L O O R L E V E L S A N D A L L D I M E N S O N S M E N T I O N E D A R E F N S H E D D I M E N S O N S U N L E S S O T H E R W I S E S P E C I F E D M A N U F A C T U R E R S S U P P L E R S S H A L L F U R N S H N S T A L L A N D C O M P L E T E A L L N S T A L L A T I O N S A N D S H A L L B E R E S P O N S B L E F O R T H E W A R R A N T Y C O N F O R M I T Y A N D P E R F O R M A N C E

+
+
+ - + - ++ - + - + - + - ++ - + - ++ - + - +A 1 A 2 A 3 A 4 A 5 A 6 A 7 A 8 A 9 B 1 B 2 B 3 B 4 B 5 B 6 B 7 B 8 B 9 B 1 0 B 1 1 B 1 2 C S B N E C E N T R E F O R S U S T A N A B L E B U L T A N D N A T U R A L E N V R O N M E N T © 2 0 1 6 C S B N E L L P R E S E R V E S A L L R G H T S T O T H E S E D R A W I N G S D E S G N S A N D O R A N Y O T H E R D A T A C O N T A N E D H E R E N N O P A R T O F T H E S A D D R A W N G S D E S G N S A N D O R O T H E R D A T A M A Y B E R E P R O D U C E D M O D F E D T R A N S M T T E D O R
P
O . H . T P L A T F O R M + -
-
+ - + - + -
U S E D N A N Y F O R M O R B Y A N Y
C S B N E C O M P R E H E N S V E D E S G N S E R V C E S L L
E
E V E D
Y D A T E D R A W N B Y S U R A J
A S R A D A T
0 6 0 4 2 0 2 1 N C H E C K E D B Y : S O L A R P A N E L S C S B N E O f f i c e G R O U P 1 G R O U P 2 G R O U P 3 W I R E N A M E W I R E C O L O U R W I R E A R E A G R O U P 1 G R O U P 2 G R O U P 3 T O T A L L E N G T H R E D W I R E 4 s q . m m 2 3 . 4 6 M 2 1 . 9 0 M 1 5 . 8 8 M 6 1 . 2 4 M B L A C K W I R E 4 s q . m m 1 6 . 1 0 M 1 0 . 6 8 M 1 0 . 8 7 M 3 7 . 6 5 G R E E N W I R E 4 s q . m m 3 4 . 7 8 M
O F T H E P R O D U C T R
C
B
K A R W
E :

C S B N E C O M P R E H E N S V E D E S G N S E R V C E S L L P V I / 1 6 1 , S R E E M A N G A L A M M A T H L L P O N D A 6 9 1 6 0 1

B E

W W W C S B N E O R G

P R O J E C T : C L I E N T : P R O J E C T N O : D R A W I N G W O R K N G D R A W I N G

T I T L E D R A W I N G N O : 3 V E R S I O N : S C A L E 1 : 5 0 C H E C K E D B Y :

A P P R O V E D B Y : R E V I S O N D A T E R E M A R K S

C O N S U L T A N T S N O T E S

P R O J E C T E X E C U T O N T E A M M U S T C H E C K A N D V E R I F Y A L L D I M E N S O N S O N S T E B E F O R E C O M M E N C E M E N T O F W O R K A N Y D S C R E P A N C E S I N T H E F I G U R E D D M E N S I O N A R E T O B E R E P O R T E D M M E D A T E L Y T O T H E A R C H T E C T R E F E R T O S T R U C T U R A L E N G N E E R N G D R A W N G F O R A L L S T R U C T U R A L S Z E S A N D D M E N S O N S A L L L E V E L S S H O W N O N F L O O R P L A N S A R E F N S H E D F L O O R L E V E L S A N D A L L D I M E N S O N S M E N T I O N E D A R E F N S H E D D I M E N S O N S U N L E S S O T H E R W I S E S P E C I F E D M A N U F A C T U R E R S S U P P L E R S S H A L L F U R N S H N S T A L L A N D C O M P L E T E A L L N S T A L L A T I O N S A N D S H A L L B E R E S P O N S B L E F O R T H E W A R R A N T Y C O N F O R M I T Y A

W I R E C O L O U R W I R E N A M E G R O U P - 1 G R O U P - 2 G R O U P - 3 G R O U P - 4 T O T A L L E N G H R E D W I R E 1 5 8 7 M 2 4 1 6 M 2 1 1 2 M 1 6 0 0 M 7 7 1 5 M B L A C K W I R E 1 5 7 0 M 1 6 8 2 M 1 2 2 9 M 1 1 8 6 M 5 6 6 7 M G R E E N W I R E 1 6 . 6 7 M 2 2 . 6 0 M 2 0 . 1 3 M 1 5 . 7 7 M 7 5 . 1 7 M C S B N E C E N T R E F O R S U S T A N A B L E B U L T A N D N A T U R A L E N V R O N M E N T © 2 0 1 6 C S B N E L L P R E S E R V E S A L L R G H T S T O T H E S E D R A W I N G S D E S G N S A N D O R A N Y O T H E R D A T A C O N T A N E D H E R E N N O P A R T O F T H E S A D D R A W N G S D E S G N S A N D
O R O T H E R D A T A M A Y B E R E P R O D U C E D M O D F E D T R A N S M T T E D O R U S E D N A N Y F O R M O R B Y A N Y M E A N S F O R A N Y P U R P O S E W T H O U T T H E P R O R W R T T E N C O N S E N T O F C S B N E L L P O T H E R T H A N T H E S O L E P U R P O S E F O R W H I C H O T H E R D R A W N G S , D E S G N S A N D O R O T H E R D A T A A R E P R O V I D E D T O L C E N S E D U S E R S O N S U C H T E R M S A S C S B N E L L P M A Y P R E S C R
M
N C E O F T H E P R O D U C T R E C E V E D B Y D A T E D R A W N B Y S U R A J K A R W A S R A D A T E : 0 6 0
2 0 2 1 N C H E C K E D B Y : S O L A R P A N E L S C S B N E O f f i c e O . H . T P L A T F O R M 2 1 + + + + + + --+ - + - ++ - + + + - + - ++ + - ++ +A 1 A 2 A 3 A 4 A 5 A 6 A 7 A 8 A 9 B 1 B 2 B 3 B 4 B 5 B 6 B 9 B 1 0 A 1 1 B 7 B 8 G R O U P 1 G R O U P 2 G R O U P 3 G R O U P 4 N O T E : - W I R E S A R E 4 s q . m m
N D P E R F O R
A
4

C S B N E C O M P R E H E N S V E D E S G N S E R V C E S L L P V I / 1 6 1 , S R E E M A N G A L A M M A T H L L P O N D A 6 9 1 6 0 1

© 2 0 1 6 C S B N E L L P R E S E R V E S A L L R G H T S T O T H E S E D R A W I N G S D E S G N S A N D O R A N Y O T H E R D A T A C O N T A N E D H E R E N N O P A R T O F T H E S A D D R A W N G S D E S G N S A N D O R O T H E R D A T A M A Y B E R E P R O D U C E D M O D F E D T R A N S M T T E D O R U S E D N A N Y F O R M O R B Y A N Y M E A N S F O R A N Y P U R P O S E W T H O U T T H E P R O R W R T T E N C O N S E N T O F C S B N E L L P O T H E R T H A N T H E S O L E P U R P O S E F O R W H I C H O T H E R D R A W N G S , D E S G N S A N D O R O T H E R D A T A A R E P R O V I D E D T O L C E N S E D U S E R S O N S U C H T E R M S A S C S B N E L L P M A Y P R E S C R B E

W W W C S B N E O R G

P R O J E C T : C L I E N T :

P R O J E C T N O : D R A W I N G W O R K N G D R A W I N G

T I T L E D R A W I N G N O : 4 V E R S I O N : S C A L E 1 : 5 0 C H E C K E D B Y :

A P P R O V E D B Y : R E V I S O N D A T E R E M A R K S

C O N S U L T A N T S

N O T E S

P R O J E C T E X E C U T O N T E A M M U S T C H E C K A N D V E R I F Y A L L D I M E N S O N S O N S T E B E F O R E C O M M E N C E M E N T O F W O R K A N Y D S C R E P A N C E S I N T H E F I G U R E D D M E N S I O N A R E T O B E R E P O R T E D M M E D A T E L Y T O T H E A R C H T E C T R E F E R T O S T R U C T U R A L E N G N E E R N G D R A W N G F O R A L L S T R U C T U R A L S Z E S A N D D M E N S O N S A L L L E V E L S S H O W N O N F L O O R P L A N S A R E F N S H E D F L O O R L E V E L S A N D A L L D I M E N S O N S M E N T I O N E D A R E F N S H E D D I M E N S O N S U N L E S S O T H E R W I S E S P E C I F E D M A N U F A C T U R E R S S U P P L E R S S H A L L F U R N S H N S T A L L A N D C O M P L E T E A L L N S T A L L A T I O N S A N D S H A L L B E R E S P O N S B L E F O R T H E W A R R A N T Y C O N F O R M I T Y A N D P E R F O R M A N C E O F T H E P R O D U C T R E C E V E D B Y

C S B N E
E N T R E F O R S U S T A N A B L E B U L T A N D N A T U R A L E N V R O N M E N T
C
A T E D
N
S
L
C S B
2 6 0 0 c m 2 8 6 3 c m 7 6 3 2 c m W E
E A S T E L E V A T I O N 2 5 9 4 c m 5 9 0 2 c m 3 6 1 4 c m 9 3 1 . 0 c m 5 4 5 . 0 c m 1 5 1 . 2 c m R E D W I R E ( + ) B L A C K W I R E ( ) G R E E N W I R E ( E A R T H I N G W I R E )
D
R A W N B Y S U R A J K A R W A S R A D A T E : 0 6 0 4 2 0 2 1
C H E C K E D B Y :
O
A R P A N E L S
N E O f f i c e
S T E L E V A T I O N
6 1 0 6 4 0 3 2 9 2 9 9 4 4 0 4 1 5 4 1 5 5 1 0 6 7 7 7 1 1 7 6 0 4 7 1 3 2 3 6 5 7 7 5 5 2 5 4 8 4 O . H . T 5 1 0 4 1 5 3 5 0 3 5 0 4 1 5 4 1 6 4 2 0 3 5 0 4 5 4 5 4 5 1 5 2 4 5 2 5 0 1 6 0 P L A T F O R M N O R T H T O P V I E W O F R O O F R O O F E X T E R N A L D I M E N S I O N S ( S O U T H ) R O O F E X T E R N A L D I M E N S I O N S ( N O R T H ) G . I S H E E T S A R E A = 1 1 6 9 S Q . F T / 1 0 8 . 6 4 S Q . M N O . O F 3 ’ X 4 4 ’ S H E E T S = 3 N O O F 4 ’ X 4 4 ’ S H E E T S = 4 N O . O F 4 ’ X 1 7 ’ 3 ” S H E E T S = 1
G . I S H E E T A D D E D O V E R T H E R O O F T I L E S W A L L P L A T E B R I C K W A L L E A V E B O A R D E X S I S I T I N G G I S H E E T R O O F T I L E S S O L A R P A N E L 2 . 5 C M F L A T F O R W E L D I N G P U R L I N S S O L A R P A N E L G . I S H E E T O V E R T H E R O O F T I L E S D E T A I L A A L U M I N U M S H E E T B O L T E D T O F L A T 2 ” I N C H D I A P I P E F O R S P R I N L K E R 7 4 1 1 6 7 5 1 1 6 D E T A I L B 4 5 3 0 3 0 2 5 C M S Q U A R E H O L L O W S E C T I O N 2 C M D I A C I R C U L A R S E C T I O N 6 8 2 . 5 X 5 C M B O X S E C T I O N S A L U M I N I U M S H E E T S L A D D E R 2 . 5 X 5 C M B O X S E C T I O N S R O O F S E C T I O N D E T A I L - A ( S C A L E 1 : 2 0 ) P E R S P E C T I V E V I E W D E T A I L - B L A D D E R D E T A I L S
S
Y R I A N C H U R C H , C H E P P A D D O C U M E N T A T I O N

S T . G E R O G E O R T H O D O X S Y R I A N C H U R C H

D

D

C U M E N T E D B Y :

P R O F . E U G E N E P A N D A L A

A r c h i t e c t , U r b a n D e s i g n e r , H e r i t a g e C o n s e r v a t o r , C o C o n v e n e r I N T A C H K e r a l a S t a t e C h a p t e r .

h t t p s : / / e n w k i p e d a o r g / w k / E u g e n e P a n d a a h t t p s : / / e u g e n e p a n d a a c o m /

N O T E S

T H E H S T O R C A L D A T A G I V E N I N T H E D O C U M E N T A T I O N S N O T V E R I F E D B Y T H E O F F C E

O C U M E N T A T I O N
T E A M
A S I F A N W A R J M I 2 0 2 1 H A A R I S K H A N J M I 2 0 2 1 S U R A J K A R W A S R A V T U 2 0 2 1 S U R A J K O R L E P A R A G I T A M 2 0 2 1
D A T E O F D O C U M E N T A T I O N 2 8 T H F E B R U A R Y , 2 0 2 1
O

S t . G e o r g e O r t h o d o x C h u r c h , C h e p p a d , A l a p u z h a i n K e r a l a s t a t e o f I n d i a , i s p o p u l a r l y k n o w n a s C h e p p a d V a l i y a P a l l y a n d i s a p i l g r i m c e n t e r o f M a l a n k a r a O r t h o d o x C h u r c h . T h e c h u r c h i s a l s o t h e r e s t i n g p l a c e o f C h e p p a d P h i l i p o s e M a r D i o n y s i u s , M a l a n k a r a M e t r o p o l i t a n o f t h e M a l a n k a r a O r t h o d o x S y r i a n C h u r c h w h o l i v e d i n t h e m i d 1 9 t h c e n t u r y . T h e 8 0 0 y e a r o l d m u r a l s i n t h e C h u r c h e x h i b i t C h r i s t i a n t r a d i t i o n a l p a i n t i n g s .

H I S T O R Y

I t i s b e l i e v e d t h a t t h e c h u r c h m a y h a v e b e e n f o u n d e d i n 1 1 7 5 . T h e m a i n a t t r a c t i o n o f C h e p p a d i s t h e M a l a n k a r a O r t h o d o x C h u r c h p o p u l a r l y k n o w n a s C h e p p a d C h u r c h . T h e C h r i s t i a n c o m m u n i t y i s t h e s e c o n d l a r g e s t r e l i g i o u s c o m m u n i t y a t C h e p p a d a n d m a n y d e n o m i n a t i o n s o f t h e C h r i s t i a n f a i t h l i v e t h e r e . T h e c h u r c h i s o n e o f t h e o l d e s t c h u r c h e s o f t h e M a l a n k a r a O r t h o d o x C h u r c h , w h i c h i s a n a p o s t o l i c c h u r c h e s t a b l i s h e d b y S t . T h o m a s , o n e o f t h e t w e l v e a p o s t l e s o f J e s u s C h r i s t . T h e r e i s e v i d e n c e t h a t o n e o f t h e c h u r c h e s v i s i t e d b y A r c h b i s h o p M e n a s i s , i n 1 5 9 9 w a s C h e p p a d ' s S t G e o r g e M a l a n k a r a O r t h o d o x C h u r c h ( V a l i y a p a l l y ) . T h i s c h u r c h w a s t h e h e a d q u a r t e r s o f t h e M a l a n k a r a O r t h o d o x C h u r c h d u r i n g t h e t e n u r e o f C h e p p a d P h i l i p o s e M a r D i o n y s i u s , M a l a n k a r a M e t r o p o l i t a n o f t h e M a l a n k a r a O r t h o d o x C h u r c h d u r i n g 1 8 2 5 1 8 5 5 I n 1 9 5 6 , t h e E t h i o p i a n E m p e r o r , H i s I m p e r i a l M a j e s t y H a i l e S e l a s s i e v i s i t e d t h i s c h u r c h . I t i s b e l i e v e d t h a t t h e E t h i o p i a n K i n g s h e l d a b l o o d l i n e t o K i n g S o l o m o n . H a i l e S e l a s s i e g i f t e d t h e c h u r c h a c o u p l e o f g o l d a r t i f a c t s , w h i c h w e r e r e c e n t l y s t o l e n f r o m t h e c h u r c h a n d h a v e n o t b e e n r e c o v e r e d . T h e s e i n c l u d e d a g o l d c r u c i f i x f r o m E t h i o p i a a n d a B i b l e w i t h g o l d e n g r a v i n g i n A m h a r i c ( a S e m i t i c l a n g u a g e s p o k e n i n N o r t h C e n t r a l E t h i o p i a b y t h e A m h a r a ) .

T h e 8 0 0 - y e a r - o l d m u r a l p a i n t i n g s i n C h e p p a d S t . G e o r g e O r t h o d o x C h u r c h e x h i b i t C h r i s t i a n t r a d i t i o n a l p a i n t i n g s . T h e p a i n t i n g s a r e o n t h e w a l l s o f t h e M a d b a h a ( a l t a r ) o f t h e C h u r c h , a n d s h o w t h e e v e n t s i n t h e l i f e o f J e s u s C h r i s t f r o m b i r t h t o a s c e n s i o n . I t a l s o i l l u s t r a t e s s o m e e v e n t s f r o m t h e O l d T e s t a m e n t e r a . T h e 4 7 m u r a l s a r e a r r a n g e d i n t h r e e l i n e s a l o n g t h r e e w a l l s . T h e a r c h a e o l o g i c a l d e p a r t m e n t o f K e r a l a s a y s t h a t t h e m u r a l s a r e a p p r o x i m a t e l y 6 0 0 y e a r s o l d a n d w e r e d r a w n w i t h t h e e x t r a c t s o f l e a v e s a n d f r u i t .

E v e n t h o u g h t h e o l d c h u r c h w a s r e b u i l t i n 1 9 5 2 , t h e a l t a r w a s k e p t i n t a c t b e c a u s e o f t h e M u r a l s . T h e r a r e a n d a t t r a c t i v e p a i n t i n g s o f S t . P a u l w i t h a s w o r d , A n g e l s , J e s u s b e a r i n g t h e C r o s s , J e s u s b e i n g b e a t e n b y s o l d i e r s , S t T h o m a s w i t h a m i n t , A d a m a n d E v e e a t i n g t h e p r o h i b i t e d f r u i t , N o a h ’ s A r k e t c . s h o w s t h e m i x i n g o f m i d d l e e a s t e r n C h r i s t i a n p a i n t i n g a n d K e r a l a ’ s m u r a l a r t w o r k .

M U R A L P A I N T I N G S
I N T R O D U C T I O N S T . G E R O G E O R T H O D O X S Y R I A N C H U R C H , C H E P P A D P R
F . E U G
N
P
N D A L
p t e r . D A T E O F D O C U M E N T A T I O N 2 8 T H F E B R U A R Y , 2 0 2 1 3 I N T R O D U C T I O N h t t p s : / / e u g e n e p a n d a a c o m / T E A M : A S I F A N W A R J M I 2 0 2 1 H A A R I S K H A N J M I 2 0 2 1 S U R A J K A R W A S R A V T U 2 0 2 1 S U R A J K O R L E P A R A G I T A M 2 0 2 1 h t t p s : / / e n w k i p e d a o r g / w k / E u g e n e P a n d a l a
O
E
E
A
A A r c h i t e c t , U r b a n D e s i g n e r , H e r i t a g e C o n s e r v a t o r , C o C o n v e n e r I N T A C H K e r a l a S t a t e C h a

V

P R O P Y L A E U M
E R A N D A H E N T R Y L V L + 0 0 L V L + 0 0
Y
S Y R I A N O R T H O D O X C H U R C H M A I N R O A D B I S H O P H O U S E C H U R C H F L A G S I T E E N T R Y S T . G E R O G E O R T H O D O X S Y R I A N C H U R C H , C H E P P A D N
I N M E T E R S P R O F . E U G E N E P A N D A L A A r c
i t e
t
U r b a n D e s i g n e r , H e r
t a g
n s e r v a t
r , C
n v e n e r I N T A C H K e r a l a S
t
r . D A T E O F D O C U M E N T A T I O N 2 8 T H F E B R U A R Y , 2 0 2 1 4 P L A N O F C H U R C H h t t p s : / / e u g e n e p a n d a a c o m / T E A M : A S I F A N W A R J M I 2 0 2 1 H A A R I S K H A N J M I 2 0 2 1 S U R A J K A R W A S R A V T U 2 0 2 1 S U R A J K O R L E P A R A G I T A M 2 0 2 1 0 M
( C
N
S
V
O R
H
N
K
C
6 E
A F T E R 2 0 0 6
E X T E N D E D
R
U R C H F A C A D E C O N S T R C U T E D B Y E U T H O P I A E M P E R O R H A I L I E S E L L A S E I N 2 0 0 5 P O R C H C O N S T R U C T E D I N 2 0 0 5 h t t p s : / / e n w k i p e d a o r g / w k / E u g e n e P a n d a l a
L V L + 0 3 0 L V L + 0 3 0 L V L 0 3 0 L V L 0 3 0 E N T R
L V L 0 3 0 L V L + 0 1 5 L V L 0 0
0 2 6 4
h
c
,
i
e C o
o
o C o
t a t e C h a p
e
A D B A H A
H A N C E L )
A V E S I D E A L T A R
A N C T U A R Y
E R A N D A H P
C H S I D E A L T A R
Y K A L A
A R T H E X
A B A R M U R I
H U R C H C O N S T R U C T E D P O S T 2 0 0
X T E N D E D C O N S T R U C T I O N
6 0 0 y e a r o l d m u r a l s i n t h e C h u r c h e x h i b i t C h r i s t i a n t r a d i t i o n a l p a i n t i n g s
P O
T I O N O F T H E C H
S E C
T A A ' K E Y P L A N A B B ' A ' 2 0 1 4 2 I N M E T E R S S E C T I O N S L V L + 3 0 L V L + 5 L V L + 7 6 L V L + 1 3 7 L V L + 2 . 5 5 L V L + . 9 5 L V L +
2 5
Y K A L A R O O F A L T A R R O O F L V L + 3 0 L V L + 6 3
V L + 3 6 3 L V L +
. 4 5
V
V
S E C T I O N A T B B ' B
A M A R C H O P E N I N G R
S C
M S T . G E R O G E O R T H O D O X S Y R I A N C H U R C H , C H E P P A D P R O F . E U G E N E P A N D A L A A r c
i t e c t ,
r
n D
r ,
. D A T E O F D O C U M E N T A T I O N 2 8 T H F E B R U A R Y , 2 0 2 1 5
g e
c o m / T E A M : A S I F A N W A R J M I 2 0 2 1 H A A R I S K H A N J M I 2 0 2 1 S U R A J K A R W A S R A V T U 2 0 2 1 S U R A J K O R L E P A R A G I T A M 2 0 2 1
S
C T I O N
0 0
V L + 0 0
T I O N A
1
H
L
4
L
L + 7 . 1 5 L
L + 7 . 6
E
A F T E R
O L L A R B E A M T I E B E A
h
U
b a
e s i g n e
H e r i t a g e C o n s e r v a t o r , C o C o n v e n e r I N T A C H K e r a l a S t a t e C h a p t e r
h t t p s : / / e u
n e p a n d a a
h t t p s : / / e n w k i p e d a o r g / w k / E u g e n e P a n d a l a
E
L V L +
L
E L E V A T I O N A T S O U T H S I D E K E Y P L A N S O U T H S I D E E A S T S I D E 0 1 4 2 N M E T E R S 0 S T . G E R O G E O R T H O D O X S Y R I A N C H U R C H , C H E P P A D P R O F . E U G E N E P A N D A L A A r c
t e
t , U r
D
r , H
r
C
N T A C
S
C
t e r . D A T E O F D O C U M E N T A T I O N 2 8 T H F E B R U A R Y , 2 0 2 1 6 h
e u g e n
o m / T E A M : A S I F A N W A R J M I 2 0 2 1 H A A R I S K H A N J M
2 0 2 1 S U R A
K A R W A S R A V
2 1 S U R A
K
R L E P A R A
2 1
e P a n d a l a E L E V A T I O N
h i
c
b a n
e s i g n e
e r i t a g e C o n s e r v a t o
,
o C o n v e n e r I
H K e r a l a
t a t e
h a p
t t p s : / /
e p a n d a a c
I
J
T U 2 0
J
O
G I T A M 2 0
h t t p s : / / e n w k i p e d a o r g / w k / E u g e n

T h e o l d c h u r c h w a s r e b u i l t i n 1 9 5 2 , t h e a l t a r w a s k e p t i n t a c t b e c a u s e o f t h e M u r a l s . T h e m a i n p o r t i c o a n d s u b s i d i a r y p o r c h e s a r e b u i l t a f t e r t h e t r a d i t i o n a l p a t t e r n o f t h e p o r c h e s o f H i n d u t e m p l e . T h e w o o d c a r v i n g s i n t h e p o r c h e s a n d t h e m u r a l p a i n t i n g s w h i c h d e p i c t s t h e g r e a t s c e n e s o f e p i c o f J e s u s C h r i s t a r e u n i q u e a n d r a r e s p e c i m e n s .

M A D B A H A
H
S I D E A L T A R S T . G E R O G E O R T H O D O X S Y R I A N C H U R C H , C H E P P A D
v
r I N T A C H K
r a
a S t a t e C
t e r . D A T E O F D O C U M E N T A T I O N 2 8 T H F E B R U A R Y , 2 0 2 1 7 h t t p s : / / e u g e n e p a n d a a c o m / T E A M : A S I F A N W A R J M I 2 0 2 1 H A A R I S K H A N J M I 2 0 2 1 S U R A J K A R W A S R A V T U 2 0 2 1 S U R A J K O R L E P A R A G I T A M 2 0 2 1
e n w k
e d
r g /
S E C T I O N A L V I E W
N A V E
Y K A L A N A
X P O R C H K A B A R M U R I V E R A N D A H S H R I N E
P R O F . E U G E N E P A N D A L A A r c h i t e c t , U r b a n D e s i g n e r , H e r i t a g e C o n s e r v a t o r , C o C o n
e n e
e
l
h a p
h t t p s : / /
i p
a o
w k / E u g e n e P a n d a l a

T h e o l d c h u r c h w a s r e b u i l t i n 1 9 5 2 , t h e a l t a r w a s k e p t i n t a c t b e c a u s e o f t h e M u r a l s . T h e m a i n p o r t i c o a n d s u b s i d i a r y p o r c h e s a r e b u i l t a f t e r t h e t r a d i t i o n a l p a t t e r n o f t h e p o r c h e s o f H i n d u t e m p l e . T h e w o o d c a r v i n g s i n t h e p o r c h e s a n d t h e m u r a l p a i n t i n g s w h i c h d e p i c t s t h e g r e a t s c e n e s o f e p i c o f J e s u s C h r i s t a r e u n i q u e a n d r a r e s p e c i m e n s .

K E Y P L A N

P R O F . E U G E N E P A N D A L A A r c h i t e c t , U r b a n D e s i g n e r , H e r i t a g e C o n s e r v a t o r , C o C o n v e n e r I

M A D B A H A R O O F H
Y K A L A R O O F
S T . G E R O G E O R T
D O X S Y R
C
C H
C H E P P A D
N T A C H K e r a l a S t a t e C h a p t e r . D A T E O F D O C U M E N T A T I O N 2 8 T H F E B R U A R Y , 2 0 2 1 8 h t t p s : / / e u g e n e p a n d a a c o m / T E A M : A S I F A N W A R J M I 2 0 2 1 H A A R I S K H A N J M I 2 0 2 1 S U R A J K A R W A S R A V T U 2 0 2 1 S U R A J K O R L E P A R A G I T A M 2 0 2 1
n
d a o r g / w
S
S E C T I O N A L V I E W
W A L L M U R A L S I D E A L T A R V E R A N D A H
H O
I A N
H U R
,
h t t p s : / / e
w k i p e
k / E u g e n e P a n d a l a
E C T I O N T H R O U G H M A D B A H A
K E Y P L A N R A F T E R B E A M V E R A N D A H P U R L I N N A V E V E R A N D A H M A D B A H A H Y K A L A R O O F S I D E E N T R A N C E C O L L A R B E A M T I E B E A M S T . G E R O G E O R T H O D O X S Y R I A N C H U R C H , C H E P P A D P R O F . E U G E N E P A N D A L A A r c h i t e c t , U r b a n D e s i g n e r , H e r i t a g e C o n s e r v a t o r , C o C o n v e n e r I N T A C H K e r a l a S t a t e C h a p t e r . D A T E O F D O C U M E N T A T I O N 2 8 T H F E B R U A R Y , 2 0 2 1 9 h t t p s : / / e u g e n e p a n d a a c o m / T E A M : A S I F A N W A R J M I 2 0 2 1 H A A R I S K H A N J M I 2 0 2 1 S U R A J K A R W A S R A V T U 2 0 2 1 S U R A J K O R L E P A R A G I T A M 2 0 2 1 h t t p s : / / e n w k i p e d a o r g / w k / E u g e n e P a n d a l a S E C T I O N T H R O U G H N A V E S E C T I O N A L V I E W
M A D B A H A R O O F R A F T E R S T I E B E A M A T T I C M U R A L S M A D B A H A M U R A L S S T . G E R O G E O R T H O D O X S Y R I A N C H U R C H , C H E P P A D P R O F . E U G E N E P A N D A L A A r c h i t e c t , U r b a n D e s i g n e r , H e r i t a g e C o n s e r v a t o r , C o C o n v e n e r I N T A C H K e r a l a S t a t e C h a p t e r . D A T E O F D O C U M E N T A T I O N 2 8 T H F E B R U A R Y , 2 0 2 1 1 0 h t t p s : / / e u g e n e p a n d a a c o m / T E A M : A S I F A N W A R J M I 2 0 2 1 H A A R I S K H A N J M I 2 0 2 1 S U R A J K A R W A S R A V T U 2 0 2 1 S U R A J K O R L E P A R A G I T A M 2 0 2 1 h t t p s : / / e n w k i p e d a o r g / w k / E u g e n e P a n d a l a S E C T I O N A L V I E W T H R O U G H M A D B A H A S E C T I O N A L V I E W T H R O U G H M A D B A H A S E C T I O N A L V I E W S
T E R R A C O T T A T I L E S R I D G E A T T I C L E V E L R O O F S I T E G R O U N D F L O O R L E V E L A T T I C L E V E L A L T A R R O O F F L O O R L E V E L C H U R C H A R E A E N T R A N C E P O R C H H Y K A L A , M A D H A B A A N D A L T E R S H R I N E S T . G E R O G E O R T H O D O X S Y R I A N C H U R C H , C H E P P A D P R O F . E U G E N E P A N D A L A A r c h i t e c t , U r b a n D e s i g n e r , H e r i t a g e C o n s e r v a t o r , C o C o n v e n e r I N T A C H K e r a l a S t a t e C h a p t e r . D A T E O F D O C U M E N T A T I O N 2 8 T H F E B R U A R Y , 2 0 2 1 1 h t t p s : / / e u g e n e p a n d a a c o m / T E A M : A S I F A N W A R J M I 2 0 2 1 H A A R I S K H A N J M I 2 0 2 1 S U R A J K A R W A S R A V T U 2 0 2 1 S U R A J K O R L E P A R A G I T A M 2 0 2 1 h t t p s : / / e n w k i p e d a o r g / w k / E u g e n e P a n d a l a E X P L O D E D V I E W
K E Y P L A N A L T E R R O O F H A L L R O O F 1 6 4 8 9 9 4 5 5 5 5 5 . 4 4 7 4 7 0 8 0 8 7 5 6 2 7 4 0 7 0 3 8 . 5 N 0 1 4 2 I N M E T E R S S T . G E R O G E O R T H O D O X S Y R I A N C H U R C H , C H E P P A D P R O F . E U G E N E P A N D A L A A r c h i t e c t , U r b a n D e s i g n e r , H e r i t a g e C o n s e r v a t o r , C o C o n v e n e r I N T A C H K e r a l a S t a t e C h a p t e r . D A T E O F D O C U M E N T A T I O N 2 8 T H F E B R U A R Y , 2 0 2 1 1 2 h t t p s : / / e u g e n e p a n d a a c o m / T E A M : A S I F A N W A R J M I 2 0 2 1 H A A R I S K H A N J M I 2 0 2 1 S U R A J K A R W A S R A V T U 2 0 2 1 S U R A J K O R L E P A R A G I T A M 2 0 2 1 h t t p s : / / e n w k i p e d a o r g / w k / E u g e n e P a n d a l a R O O F D E T A I L
K E Y P L A N R A F T E R S P U R L I N S B - R O O F V I E W O F A L T A I R R A F T E R S P U R L I N S B E A M V A L A R I D G E A - R O O F V I E W O F H A L L R I D G E S T . G E R O G E O R T H O D O X S Y R I A N C H U R C H , C H E P P A D P R O F . E U G E N E P A N D A L A A r c h i t e c t , U r b a n D e s i g n e r , H e r i t a g e C o n s e r v a t o r , C o C o n v e n e r I N T A C H K e r a l a S t a t e C h a p D A T E O F D O C U M E N T A T I O N 2 8 T H F E B R U A R Y , 2 0 2 1 h t t p s : / / e u g e n e p a n d a a c o m / T E A M : A S I F A N W A R J M I 2 0 2 1 H A A R I S K H A N J M I 2 0 2 1 S U R A J K A R W A S R A V T U 2 0 2 1 S U R A J K O R L E P A R A G I T A M 2 0 2 1 h t t p s : / / e n w k i p e d a o r g / w k / E u g e n e 0 0 5 2 1 ( 5 X 5 C M ) ( 2 X 5 C M ) 3 5 C M C / C ( 4 X 5 C M ) 5 0 C M C / C R O O F V I E W S 4 X 2 5 C M 5 0 C M C / C ( 2 X 5 C M 3 5 C M C / C ) ( 5 X 5 8 5 C M C / C ) ( 5 X 5 C M ) 2 5 X 3 5 3 7 C / C A B

T h e o l d c h u r c h w a s r e b u i l t i n 1 9 5 2 , t h e a l t a r w a s k e p t i n t a c t b e c a u s e o f t h e M u r a l s . T h e m a i n p o r t i c o a n d s u b s i d i a r y p o r c h e s a r e b u i l t a f t e r t h e t r a d i t i o n a l p a t t e r n o f t h e p o r c h e s o f H i n d u t e m p l e . T h e w o o d c a r v i n g s i n t h e p o r c h e s a n d t h e m u r a l p a i n t i n g s w h i c h d e p i c t s t h e g r e a t s c e n e s o f e p i c o f J e s u s C h r i s t a r e u n i q u e a n d r a r e s p e c i m e n s .

I D E A L T A

S T . G E R O G E O R T H O D O X S Y R I A N C H U R C H , C H E P P A D
A
D A T E O F D
O N 2 8
F E B R
A
, 2 0 2 1
/ T E A M : A S I F A N W A R J M I 2 0 2 1 H A A R I S K H A N J M
2 0 2 1 S U R A J K A R W A S R A V
2 1 S U R A
K O R L E P A R A
2 1
S H R I N E N A V E
P R O F . E U G E N E P A N D A L
A r c h i t e c t , U r b a n D e s i g n e r , H e r i t a g e C o n s e r v a t o r , C o C o n v e n e r I N T A C H K e r a l a S t a t e C h a p
O C U M E N T A T I
T H
U
R Y
h t t p s : / / e u g e n e p a n d a a c o m
I
T U 2 0
J
G I T A M 2 0
h t t p s : / / e n w k i p e d a o r g / w k / E u g e n e
H Y K A L A M A
D
S
R 6 0 0 y e a r - o l d m u r a l s i n t h e
C h u r c h e x h i b i t C h r i s t i a n t r a d i t i o n a l p a i n t i n g s
P R O P Y L A E U M N A R T H E X
F A C A D E C O N S T R U C T E D I N 1 9 5
6
S E C T I O N A L V I E W
K E Y P L A N S T . G E R O G E O R T H O D O X S Y R I A N C H U R C H , C H E P P A D D A T E O F D O C U M E N T A T I O N 2 8 T H F E B R U A R Y , 2 0 2 1 R O O F D E T A I L S T E A M : A S I F A N W A R J M I 2 0 2 1 H A A R I S K H A N J M I 2 0 2 1 S U R A J K A R W A S R A V T U 2 0 2 1 S U R A J K O R L E P A R A G I T A M 2 0 2 1 S E C T I O N A T A A ' S E C T I O N A T B B ' R O O F S E C T I O N 4 9 4 9 8 6 2 . 8
V I E W A T A A S T . G E R O G E O R T H O D O X S Y R I A N C H U R C H , C H E P P A D P R O F . E U G E N E P A N D A L A A r c h i t e c t , U r b a n D e s i g n e r , H e r i t a g e C o n s e r v a t o r , C o C o n v e n e r I N T A C H K e r a l a S t a t e C h a D A T E O F D O C U M E N T A T I O N 2 8 T H F E B R U A R Y , 2 0 2 1 V I E W S h t t p s : / / e u g e n e p a n d a a c o m / T E A M : A S I F A N W A R J M I 2 0 2 1 H A A R I S K H A N J M I 2 0 2 1 S U R A J K A R W A S R A V T U 2 0 2 1 S U R A J K O R L E P A R A G I T A M 2 0 2 1 h t t p s : / / e n w k i p e d a o r g / w k / E u g e K E Y P L A N
V I E W A T B B S T . G E R O G E O R T H O D O X S Y R I A N C H U R C H , C H E P P A D P R O F . E U G E N E P A N D A L A A r c h i t e c t , U r b a n D e s i g n e r , H e r i t a g e C o n s e r v a t o r , C o C o n v e n e r I N T A C H K e r a l a S t a t e C h a D A T E O F D O C U M E N T A T I O N 2 8 T H F E B R U A R Y , 2 0 2 1 V I E W S h t t p s : / / e u g e n e p a n d a a c o m / T E A M : A S I F A N W A R J M I 2 0 2 1 H A A R I S K H A N J M I 2 0 2 1 S U R A J K A R W A S R A V T U 2 0 2 1 S U R A J K O R L E P A R A G I T A M 2 0 2 1 h t t p s : / / e n w k i p e d a o r g / w k / E u g e K E Y P L A N
S T . G E R O G E O R T H O D O X S Y R I A N C H U R C H , C H E P P A D P R O F . E U G E N E P A N D A L A A r c h i t e c t , U r b a n D e s i g n e r , H e r i t a g e C o n s e r v a t o r , C o C o n v e n e r I N T A C H K e r a l a S t a t e C h a D A T E O F D O C U M E N T A T I O N 2 8 T H F E B R U A R Y , 2 0 2 1 P E R S P E C T I V E V I E W h t t p s : / / e u g e n e p a n d a a c o m / T E A M : A S I F A N W A R J M I 2 0 2 1 H A A R I S K H A N J M I 2 0 2 1 S U R A J K A R W A S R A V T U 2 0 2 1 S U R A J K O R L E P A R A G I T A M 2 0 2 1 h t t p s : / / e n w k i p e d a o r g / w k / E u g e T W O S I D E D R O O F F O R M A D H A B A
S T . G E R O G E O R T H O D O X S Y R I A N C H U R C H , C H E P P A D P R O F . E U G E N E P A N D A L A A r c h i t e c t , U r b a n D e s i g n e r , H e r i t a g e C o n s e r v a t o r , C o C o n v e n e r I N T A C H K e r a l a S t a t e C h a D A T E O F D O C U M E N T A T I O N 2 8 T H F E B R U A R Y , 2 0 2 1 V I E W S h t t p s : / / e u g e n e p a n d a a c o m / T E A M : A S I F A N W A R J M I 2 0 2 1 H A A R I S K H A N J M I 2 0 2 1 S U R A J K A R W A S R A V T U 2 0 2 1 S U R A J K O R L E P A R A G I T A M 2 0 2 1 h t t p s : / / e n w k i p e d a o r g / w k / E u g e
S T . G E R O G E O R T H O D O X S Y R I A N C H U R C H , C H E E P A D P R O F . E U G E N E P A N D A L A A r c h i t e c t , U r b a n D e s i g n e r , H e r i t a g e C o n s e r v a t o r , C o C o n v e n e r I N T A C H K e r a l a S t a t e C h a D A T E O F D O C U M E N T A T I O N 2 8 T H F E B R U A R Y , 2 0 2 1 W A L L M U R A L S h t t p s : / / e u g e n e p a n d a a c o m / T E A M : A S I F A N W A R J M I 2 0 2 1 H A A R I S K H A N J M I 2 0 2 1 S U R A J K A R W A S R A V T U 2 0 2 1 S U R A J K O R L E P A R A G I T A M 2 0 2 1
S T . G E R O G E O R T H O D O X S Y R I A N C H U R C H , C H E P P A D P R O F . E U G E N E P A N D A L A A r c h i t e c t , U r b a n D e s i g n e r , H e r i t a g e C o n s e r v a t o r , C o C o n v e n e r I N T A C H K e r a l a S t a t e C h a D A T E O F D O C U M E N T A T I O N 2 8 T H F E B R U A R Y , 2 0 2 1 h t t p s : / / e u g e n e p a n d a a c o m / T E A M : A S I F A N W A R J M I 2 0 2 1 H A A R I S K H A N J M I 2 0 2 1 S U R A J K A R W A S R A V T U 2 0 2 1 S U R A J K O R L E P A R A G I T A M 2 0 2 1 h t t p s : / / e n w k i p e d a o r g / w k / E u g e W A L L M U R A L S S O U T H W A L L M U R A L
S T . G E R O G E O R T H O D O X S Y R I A N C H U R C H , C H E P P A D P R O F . E U G E N E P A N D A L A A r c h i t e c t , U r b a n D e s i g n e r , H e r i t a g e C o n s e r v a t o r , C o C o n v e n e r I N T A C H K e r a l a S t a t e C h a D A T E O F D O C U M E N T A T I O N 2 8 T H F E B R U A R Y , 2 0 2 1 h t t p s : / / e u g e n e p a n d a a c o m / T E A M : A S I F A N W A R J M I 2 0 2 1 H A A R I S K H A N J M I 2 0 2 1 S U R A J K A R W A S R A V T U 2 0 2 1 S U R A J K O R L E P A R A G I T A M 2 0 2 1 h t t p s : / / e n w k i p e d a o r g / w k / E u g e W A L L M U R A L S N O R T H W A L L M U R A L
S T . G E R O G E O R T H O D O X S Y R I A N C H U R C H , C H E P P A D P R O F . E U G E N E P A N D A L A A r c h i t e c t , U r b a n D e s i g n e r , H e r i t a g e C o n s e r v a t o r , C o C o n v e n e r I N T A C H K e r a l a S t a t e C h a D A T E O F D O C U M E N T A T I O N 2 8 T H F E B R U A R Y , 2 0 2 1 M U R A L W A L L S h t t p s : / / e u g e n e p a n d a a c o m / T E A M : A S I F A N W A R J M I 2 0 2 1 H A A R I S K H A N J M I 2 0 2 1 S U R A J K A R W A S R A V T U 2 0 2 1 S U R A J K O R L E P A R A G I T A M 2 0 2 1 h t t p s : / / e n w k i p e d a o r g / w k / E u g e E A S T W A L L M U R A L
M U R A L E A S T W A L L S T . G E R O G E O R T H O D O X S Y R I A N C H U R C H , C H E P P A D P R O F . E U G E N E P A N D A L A A r c h i t e c t , U r b a n D e s i g n e r , H e r i t a g e C o n s e r v a t o r , C o C o n v e n e r I N T A C H K e r a l a S t a t e C h a D A T E O F D O C U M E N T A T I O N 2 8 T H F E B R U A R Y , 2 0 2 1 h t t p s : / / e u g e n e p a n d a a c o m / T E A M : A S I F A N W A R J M I 2 0 2 1 H A A R I S K H A N J M I 2 0 2 1 S U R A J K A R W A S R A V T U 2 0 2 1 S U R A J K O R L E P A R A G I T A M 2 0 2 1 h t t p s : / / e n w k i p e d a o r g / w k / E u g e E A S T W A L L M U R A L M U R A L W A L L S
S T . G E R O G E O R T H O D O X S Y R I A N C H U R C H , C H E P P A D P R O F . E U G E N E P A N D A L A A r c h i t e c t , U r b a n D e s i g n e r , H e r i t a g e C o n s e r v a t o r , C o C o n v e n e r I N T A C H K e r a l a S t a t e C h a D A T E O F D O C U M E N T A T I O N 2 8 T H F E B R U A R Y , 2 0 2 1 h t t p s : / / e u g e n e p a n d a a c o m / T E A M : A S I F A N W A R J M I 2 0 2 1 H A A R I S K H A N J M I 2 0 2 1 S U R A J K A R W A S R A V T U 2 0 2 1 S U R A J K O R L E P A R A G I T A M 2 0 2 1 h t t p s : / / e n w k i p e d a o r g / w k / E u g e M U R A L W A L L S S O U T H W A L L M U R A L
S T . G E R O G E O R T H O D O X S Y R I A N C H U R C H , C H E P P A D P R O F . E U G E N E P A N D A L A A r c h i t e c t , U r b a n D e s i g n e r , H e r i t a g e C o n s e r v a t o r , C o C o n v e n e r I N T A C H K e r a l a S t a t e C h a D A T E O F D O C U M E N T A T I O N 2 8 T H F E B R U A R Y , 2 0 2 1 V I E W S h t t p s : / / e u g e n e p a n d a a c o m / T E A M : A S I F A N W A R J M I 2 0 2 1 H A A R I S K H A N J M I 2 0 2 1 S U R A J K A R W A S R A V T U 2 0 2 1 S U R A J K O R L E P A R A G I T A M 2 0 2 1 h t t p s : / / e n w k i p e d a o r g / w k / E u g e V I E W F R O M W E S T W A L L
S T . G E R O G E O R T H O D O X S Y R I A N C H U R C H , C H E P P A D P R O F . E U G E N E P A N D A L A A r c h i t e c t , U r b a n D e s i g n e r , H e r i t a g e C o n s e r v a t o r , C o C o n v e n e r I N T A C H K e r a l a S t a t e C h a D A T E O F D O C U M E N T A T I O N 2 8 T H F E B R U A R Y , 2 0 2 1 V I E W S h t t p s : / / e u g e n e p a n d a a c o m / T E A M : A S I F A N W A R J M I 2 0 2 1 H A A R I S K H A N J M I 2 0 2 1 S U R A J K A R W A S R A V T U 2 0 2 1 S U R A J K O R L E P A R A G I T A M 2 0 2 1 h t t p s : / / e n w k i p e d a o r g / w k / E u g e
S T . G E R O G E O R T H O D O X S Y R I A N C H U R C H , C H E P P A D P R O F . E U G E N E P A N D A L A A r c h i t e c t , U r b a n D e s i g n e r , H e r i t a g e C o n s e r v a t o r , C o C o n v e n e r I N T A C H K e r a l a S t a t e C h a D A T E O F D O C U M E N T A T I O N 2 8 T H F E B R U A R Y , 2 0 2 1 h t t p s : / / e u g e n e p a n d a a c o m / T E A M : A S I F A N W A R J M I 2 0 2 1 H A A R I S K H A N J M I 2 0 2 1 S U R A J K A R W A S R A V T U 2 0 2 1 S U R A J K O R L E P A R A G I T A M 2 0 2 1 h t t p s : / / e n w k i p e d a o r g / w k / E u g e V I E W S
S T . G E R O G E O R T H O D O X S Y R I A N C H U R C H , C H E P P A D P R O F . E U G E N E P A N D A L A A r c h i t e c t , U r b a n D e s i g n e r , H e r i t a g e C o n s e r v a t o r , C o C o n v e n e r I N T A C H K e r a l a S t a t e C D A T E O F D O C U M E N T A T I O N 2 8 T H F E B R U A R Y , 2 0 2 1 h t t p s : / / e u g e n e p a n d a a c o m / T E A M : A S I F A N W A R J M I 2 0 2 1 H A A R I S K H A N J M I 2 0 2 1 S U R A J K A R W A S R A V T U 2 0 2 1 S U R A J K O R L E P A R A G I T A M 2 0 2 1 h t t p s : / / e n w k i p e d a o r g / w k / E V I E W O F T H E S H R I N E
V I E W F R O M N A V E S T . G E R O G E O R T H O D O X S Y R I A N C H U R C H , C H E P P A D P R O F . E U G E N E P A N D A L A A r c h i t e c t , U r b a n D e s i g n e r , H e r i t a g e C o n s e r v a t o r , C o C o n v e n e r I N T A C H K e r a l a S t a t e C h a p t e r . D A T E O F D O C U M E N T A T I O N 2 8 T H F E B R U A R Y , 2 0 2 1 4 P L A N O F C H U R C H h t t p s : / / e u g e n e p a n d a a c o m / T E A M : A S I F A N W A R J M I 2 0 2 1 H A A R I S K H A N J M I 2 0 2 1 S U R A J K A R W A S R A V T U 2 0 2 1 S U R A J K O R L E P A R A G I T A M 2 0 2 1 h t t p s : / / e n w k i p e d a o r g / w k / E u g e n e P a n d a l a
S T . G E R O G E O R T H O D O X S Y R I A N C H U R C H , C H E P P A D P R O F . E U G E N E P A N D A L A A r c h i t e c t , U r b a n D e s i g n e r , H e r i t a g e C o n s e r v a t o r , C o C o n v e n e r I N T A C H K e r a l a S t a t e C D A T E O F D O C U M E N T A T I O N 2 8 T H F E B R U A R Y , 2 0 2 1 R O O F V I E W h t t p s : / / e u g e n e p a n d a a c o m / T E A M : A S I F A N W A R J M I 2 0 2 1 H A A R I S K H A N J M I 2 0 2 1 S U R A J K A R W A S R A V T U 2 0 2 1 S U R A J K O R L E P A R A G I T A M 2 0 2 1 h t t p s : / / e n w k i p e d a o r g / w k / E
S T . G E R O G E O R T H O D O X S Y R I A N C H U R C H , C H E P P A D P R O F . E U G E N E P A N D A L A A r c h i t e c t , U r b a n D e s i g n e r , H e r i t a g e C o n s e r v a t o r , C o C o n v e n e r I N T A C H K e r a l a S t a t e C D A T E O F D O C U M E N T A T I O N 2 8 T H F E B R U A R Y , 2 0 2 1 h t t p s : / / e u g e n e p a n d a a c o m / T E A M : A S I F A N W A R J M I 2 0 2 1 H A A R I S K H A N J M I 2 0 2 1 S U R A J K A R W A S R A V T U 2 0 2 1 S U R A J K O R L E P A R A G I T A M 2 0 2 1 h t t p s : / / e n w k i p e d a o r g / w k / E V I E W O F C H U R C H E N T R A N C E
V I E W F R O M M A D H A B A S T . G E R O G E O R T H O D O X S Y R I A N C H U R C H , C H E P P A D P R O F . E U G E N E P A N D A L A A r c h i t e c t , U r b a n D e s i g n e r , H e r i t a g e C o n s e r v a t o r , C o C o n v e n e r I N T A C H K e r a l a S t a t e C D A T E O F D O C U M E N T A T I O N 2 8 T H F E B R U A R Y , 2 0 2 1 V I E W S h t t p s : / / e u g e n e p a n d a a c o m / T E A M : A S I F A N W A R J M I 2 0 2 1 H A A R I S K H A N J M I 2 0 2 1 S U R A J K A R W A S R A V T U 2 0 2 1 S U R A J K O R L E P A R A G I T A M 2 0 2 1 h t t p s : / / e n w k i p e d a o r g / w k / E
P E R S P E C T I V E V I E W O F T H E C H U R C H S T . G E R O G E O R T H O D O X S Y R I A N C H U R C H , C H E P P A D P R O F . E U G E N E P A N D A L A A r c h i t e c t , U r b a n D e s i g n e r , H e r i t a g e C o n s e r v a t o r , C o C o n v e n e r I N T A C H K e r a l a S t a t e C D A T E O F D O C U M E N T A T I O N 2 8 T H F E B R U A R Y , 2 0 2 1 V I E W S h t t p s : / / e u g e n e p a n d a a c o m / T E A M : A S I F A N W A R J M I 2 0 2 1 H A A R I S K H A N J M I 2 0 2 1 S U R A J K A R W A S R A V T U 2 0 2 1 S U R A J K O R L E P A R A G I T A M 2 0 2 1 h t t p s : / / e n w k i p e d a o r g / w k / E

PRODUCED BY AN AUTODESK STUDENT VERSION

DOORS NO. D1 120 X 210 1 D2 100 X 210 1 D3 75 X 210 1 D4 80 X 210 1 D5 90 X 210 1 D6 60 X 210 1 D7 237 X 210 1 D8 100 X 210 1 D9 376.2 X 210 1 D10 75 X 210 1 D11 100 X 210 1

WINDOWS NO. W1 110 X 160 1 W2 140 X 160 1 W3 110 X 90 1 W4 140 X 120 1 W5 140 X 160 1

OPENING NO. O1 95 X 210 1 O2 95 X 210 1

SURVEY NO. 270/PT. THIRNELLI, MANATHAVADY, WAYANAD.

SHEET TITLE: SANCTION DRAWING LAND DETAILS DISTRICT: TALUK: VILLAGE: SY NO: BLOCK: TP NO: PLOT AREA: FSI COVERAGE AREA DETAILS BUILT UP AREA IN M2 GROUND FLOOR CAR PORCH TOTAL AREA OF NEW BUILDING (A) EXISTING BUILDING (B) TOTAL (A+B) DISTANCE BETWEEN SEPTIC TANK AND RWH SYSTEM

WAYANAD MANATHAVADY THRNELLI 270/Pt. TP NO: 1.22 Acres

ALL DIMENSIONS ARE IN CM. UNLESS SPECIFIED SCALE: MENTIONED HEIGHT OF BUILDING: 7.84M

APPLICANT

WILDLIFE TRUST OF INDIA ON SURVEY NO. 270/PT. THIRNELLI, MANATHAVADY, WAYANAD.

SIGNATURE CERTIFICATE

CERTIFIED THAT THE BUILDING PLANS ARE PREPARED IN ACCORDANCE WITH THE PROVISIONS IN KERALA PANCHAYATH BUILDING RULES 2019, KERALA PANCHAYATH RAJ ACT 1994 ,AND PROVISIONS CONTAINED IN THE SANCTIONED TOWN PLANING SCHEMES IF ANY CERTIFIED THAT THE BUILDING PLAN IS PREPARED IN AFTER VERIFICATION OF OWNERSHIP DOCUMENT,SITE AND THE MEASUREMENTS ARE FOUND TO BE CORRECT AR AJAY ABEY HEREBY UNDERTAKE THAT THE BUILDING CONSTRUCTION WILL BE CARRIED AS PER THE APPROVED PLAN AND PERMIT INACCORDANCE WITH THE RULES IN FORCE.

BRIEF

N
ROAD ROAD PRODUCED BY AN AUTODESK STUDENT VERSION
ROAD
GROUND LEVEL PLINTH LEVEL ROAD ROAD ROAD PRODUCED BY AN AUTODESK STUDENT VERSION PRODUCED BY AN AUTODESK STUDENT VERSION PRODUCED BY AN AUTODESK STUDENT VERSION PRODUCED BY AN AUTODESK STUDENT VERSION 9.24 m 9.13 m 10.81 m 26.55 m 29.51 m 30.23 m 27.52 m 7.93 m 44.81 m 68.16 m 65.14 m 66.84 m 12.35 m 49.60 m 45.05 m MAXIMUM HEIGHT GROUND LEVEL PLINTH LEVEL 0.6 0.6 5.2 MAXIMUM HEIGHT 0.6 5.2 PROPOSED BUILDING AREA FOR WILDLIFE TRUST OF INDIA ON SURVEY NO. 270/PT. THIRNELLI, MANATHAVADY, WAYANAD. Description Hectre Acre Total Site Area 0.4939 1.22 ELECTRIC POLE ELECTRIC POLE W1 70.8 17.4 23.9 18.7 7.6 21.3 PROPOSED RESIDENCE FOR:
OF
ON
WILDLIFE TRUST
INDIA
DISCERIPTION: LOAD BEARING STRUCTURE FOUNDATION IN RANDOM RUBBLE DOORS WINDOWS, VENTILATORS IN TEAK WOOD SUPERSTRUCTURE WITH LATERITE MUD AND CEMENT SIGNATURE AND STAMP OF THE ARCHIUTECT/ENGINEER/SUPERVISOR GL GL PLASTIC WASTE LOBBY PLASTIC WASTE A A’ SECTION BB’ PLAN WATER PIPE C COVER COVER 2.1 M DIA RECHARGE WALL SUMP TANK MEDIA COARSE SECTION BB’ PLAN B’ B FILTER UNIT SUMP TANK VAVE CHAMBER VALVE CHAMBER RCC SLAB 1:3:4 INSPECTION CHAMBER OUTLET BRICK CC FLOORING BRICK BATS SECTION CC’ PLAN C’ C NOT TO THE SCALE WASTE DISPOSAL SEGREGATION AND COLLECTION TANK RAINWATER HARVESTING SEPTIC TANK SOAK PIT SITE PLAN SCALE 1:300 SECTION AA’ SCALE 1:100 WEST EVEVATION SCALE 1:100 GROUND FLOOR PLAN SCALE 1:100 LOCATION PLAN NOT TO THE SCALE BED 1 17.1 SQM WASH 1 8.5 SQM BED 2 19.1SQM STORE KITCHEN 23.1 SQM DINING 22 SQM LIVING 50 SQM ENTRANCE VERANDAH WASH 2 8 SQM MASTER BED 17.5 SQM STUDY 22 SQM SITOUT 7.2 SQM SITOUT 52.3 SQM 17.2 16.7 19.3 15.6 1.6 3.0 1.0 1.0 1.2 1.1 0.7 W5 W4 W3 W2 D2 D3 O1 D4 D5 D6 O2 D7 D8 D9 D10 D11 D1 OPENING SCHEDULE OPENING SCHEDULE OPENING SCHEDULE A’ A AREA DETAIL: 246.8 246.8 N/A N/A 246.8 .06 6.09% NO WELL IN 7.5 RADIUS OF SEPTIC TANK 15.653 13.560 14.233 4.7 4.7 3.9 4.0 5.6 3.8 6.3 7.1 4.1 8.1 5.4 4.2 5.6 1.5 MANATHAVADY

R A V

S H O

h

e r a

a

I '
U S E , c h a t
a n n o r , K
l
T
R A I N I N G P O R T F O L I O S U R A J K A R W A S R A
A n e c o f r i e n d l y e n c h a n t m e n t
T H E O R G A N I C F R E E F L I O W I N G N A T U R E O F T H E H O U S E C A N B E S E E N T H E W A L L S W I T H O U T S H A R P C O R N E R S A N D I N F O R M A L S I T T I N G A R E A O U T S I D E T H E H O U S E .
L
I
.
H E M A I N P R I N C I P A L O F T H E A R C H I
C
U
E
O L L O W E D B Y
E A R C
I
I N G L O C A L M A T E R I A L , N A T U R A L C O L O U R A
D
U
B U I L T I N L I G H T H O L D E R S P O N D W I T H I N C O U R T Y A R D
R
B U
L D
N G C A N B E S E E N C L E A R L Y I N T H E P I C T U R E . H O U S E I S M A D E M O S Q U I T O A N D I N S E C T F R E E W I T H O U T C O M P R O M I S I N G T H E V E N T I L A T I O N A N D L I G
I N
B U
L D I N G .
F O R A B E T T E R L I G H T I N G A N D V E N T I L A T I O N
A R G E O P E N I N G S W I T H G R I L L C A N B E S E E N
N C O U R T Y A R D W I T H M O R E T R A N S P E R A N C Y I N T H E H O U S E
T
T E
T E C T
R
F
T H
H
T E C T O F U S
N
T E X T
R E A N D O R G A N I C F R E E F L O W I N G F O R M A R E C L E A R L Y O B S E R V E D E V E N F R O M D I S T A N C E W H E N O N E I S L O O K I N G A T T H E H O U S E
T
A N S P E R A N C Y I N T H E
I
I
H T
T O T H E
I

E v e r y E u g e n e P a n d a l a s t r u c t u r e h a s c u r v a c e o u s l i n e s , l i k e t h i s w a l l w h i c h h i d e s a c o u r t y a r d b e y o n d . T h e p e r f o r a t i o n s o n t h e w a l l s , b e s i d e s a d d i n g w h i m s y , a l s o b r i n g m o r e l i g h t a n d a i r i n t o t h e h o u s e .

T h e t h r e e c o u r t y a r d s a r e t h e c r o w n i n g g l o r y o f t h i s p r o j e c t . T h e o n e n e x t t o t h e s e a t i n g a l c o v e h a s , a s i t s h i g h l i g h t , a p e r f o r a t e d w a l l t o p p e d b y a t i a r a o f b o u g a i n v i l l e a

T h e r i b - a n d - s k i n r o o f o f t h e h o u s e i s c l e a r l y v i s i b l e a t t h e e n t r a n c e .

• T h i s h o u s e a t C h a t h a n o o r h a s f o u r b e d r o o m s , t h r e e c o u r t y a r d s , a k i t c h e n , d i n i n g a n d a l i v i n g s p a c e , a l l a r r a n g e d i n s u c h a m a n n e r t h a t i t s e e m s t o b e p a r t o f n a t u r e .

• T h e i n s i d e - o u t s i d e c o n n e c t i v i t y i s w e l l - b a l a n c e d a n d e f f e c t e d t h r o u g h o p e n a r c h e s ( w i t h s a f e t y g r i l l s i n m i l d s t e e l ) f l a n k e d b y m u d c o l u m n s a n d l a r g e t e a k w o o d - c l a d w i n d o w s .

• S p a t i a l d i s t r i b u t i o n h a s a l s o b e e n c l e v e r l y e x e c u t e d : p u b l i c a r e a s l i k e t h e l i v i n g a r e a a n d t h e l o w - l y i n g v e r a n d a , a n d o n e b e d r o o m a f f o r d v i e w s o f t h e w a t e r l i l y p o n d .

A m a n - m a d e p o n d c r u s t e d w i t h w a t e r l i l i e s .

A n i n f o r m a l s e a t i n g a l c o v e , w h i c h d r a w s i n s p i r a t i o n f r o m t h e t r a d i t i o n a l f o y e r o f a K e r a l a h o m e , i s p l a c e d r i g h t n e x t t o t h e e n t r a n c e . I t a f f o r d s a v i e w o f o n e o f t h e s o u t h e r n c o u r t y a r d s .

P a n d a l a d i d n o t i n t e r v e n e i n t h e i n t e r i o r d e s i g n o f t h e h o u s e . T h e o w n e r s t h e m s e l v e s h a v e i n t r o d u c e d b a r e n e c e s s i t i e s l i k e a s o f a , c h a i r s a n d a c o f f e e t a b l e .

• S i t u a t e d o n t h e n o r t h e r n s i d e , t h e w a t e r p o n d a l o n g w i t h t h e p e r f o r a t i o n s o n t h e e x t e r i o r w a l l s , k e e p s t h e s e p u b l i c a r e a s c o o l e r .

• T o t h e s o u t h l i e t w o c o u r t y a r d s , o n e e x c l u s i v e l y f o r t h e m a s t e r b e d r o o m a n d o n e s h a r e d b e t w e e n t h e r e m a i n i n g t w o b e d r o o m s .

• P a s s i v e c o o l i n g a n d t h e a m p l e a m o u n t o f s u n l i g h t t h a t e n t e r s t h i s h o u s e n e g a t e t h e n e e d f o r a i r c o n d i t i o n e r s a n d a r t i f i c i a l l i g h t i n g , t h u s b r i n g i n g e l e c t r i c i t y b i l l s d o w n .

t h e o p e n n a t u r e o f t h e p r o j e c t w h e r e e v e r y a r e a o f t h e h o u s e i s e x p o s e d t o n a t u r e ’ s b o u n t y . h e u n d u l a t i o n s o f t h i s m u d h o u s e p a i n s t a k i n g l y s h a p e d b y h a n d .

• H i s p a r t i c u l a r h o u s e h a s b e e n b u i l t f r o m m u d d u g o u t f r o m t h e s i t e i t s e l f , w h i c h t a k e s i t a n o t c h h i g h e r o n t h e e c o - f r i e n d l y s c a l e . T h e r e s u l t i n g p i t h a s b e e n c o n v e r t e d i n t o a w a t e r h a r v e s t i n g z o n e .

• T h e r o o f i s s o w e l l t h o u g h t o u t t h a t n o n e o f t h e w a l l s a r e e x p o s e d m u c h t o r a i n w a t e r d u r i n g m o n s o o n s .

• T h e r e a r e s e v e r a l d e s i g n d e t a i l s t h a t a r e e s p e c i a l l y e n d e a r i n g , s u c h a s t h e s n a k e h o o d - s h a p e d w a l l e x h i b i t c r a f t e d o u t o f m u d , a n d t h e l e d g e s t h a t s p r o u t f r o m t h e w a l l s t o s e r v e a s b e n c h e s o r h a n d y p l a c e s t o s t a c k p r o v i s i o n s .

M A T E R

S

I A L
T U D Y ‑ M U D C O N S T R U C T I O N T R A I N I N G P O R T F O L I O S U R A J K A R W A S R A

M u d r e q u i r e d f o r b u i l d i n g c a n b e t a k e n f r o m t h e p l o t i t s e l f . T h e s o i l i s c o l l e c t e d a f t e r d e p t h o f 6 0 c m s o n l y . A s t h e t o p l a y e r i s f u l l o f o r g a n i c m a t t e r , i t i s n ’ t u s e d . B e l o w i t i s s a n d a n d c l a y w h i c h a r e d u g o u t i n h e a p s . D o n o t u s e h a r d r o c k .

- S o i l t o b e u s e d s h o u l d b e d e v o i d o f o r g a n i c m a t t e r .

- T o p s h o u l d b e r e p l a c e d a f t e r e x c a v a t i n g .

S O I L U S A B I L I T Y -

1 . G r a v e l : a l o n e i s o f n o u s e f o r m u d w a l l b u i l d i n g t h e t i n y l u m p s o f s t o n e h a v e n o t h i n g t o b i n d t h e m t o g e t h e r . 2 . S a n d : s i m i l a r t o g r a v e l , i t i s o f n o u s e f o r w a l l m a k i n g b y i t s e l f b u t i f m i x e d w i t h c l a y , i t i s t h e i d e a l m u d w a l l b u i l d i n g s o i l . 3 . S i l t : b y i t s e l f i s a l s o n o g o o d f o r b u i l d i n g w a l l s . I t w i l l h o l d t o g e t h e r b u t i s n o t s t r o n g . F u r t h e r m o r e , i t w i l l n o t c o m p a c t s o i t i s a l s o o f n o u s e f o r p r e s s e d b l o c k s o r r a m m e d e a r t h w o r k . 4 . C l a y : c a n b e r a m m e d o r c o m p r e s s e d b u t i n d r y i n g o u t t h e y o f t e n s h r i n k . D u r i n g t h e m o n s o o n t h e y g e t d a m p a n d e x p a n d a g a i n a n d c r a c k f o r m . O r g a n i c S o i l s : a r e m a i n l y u s e l e s s f o r w a l l b u i l d i n g

S O I L T Y P E -

1 . G r a v e l : S m a l l p i e c e s o f s t o n e v a r y i n g f r o m t h e s i z e o f a p e a t o t h a t o f a n e g g . 2 . S a n d : S i m i l a r s m a l l p i e c e s o f s t o n e ( u s u a l l y q u a r t z ) , w h i c h a r e s m a l l b u t e a c h g r a i n , i s v i s i b l e t o t h e e y e .

3 . S i l t : T h e s a m e a s s a n d e x c e p t t h a t i t i s s o f i n e t h a t y o u c a n n o t s e e i n d i v i d u a l g r a i n s . 4 . C l a y : S o i l s t h a t s t i c k w h e n w e t b u t v e r y h a r d w h e n c o m p l e t e l y d r y . 5 . O r g a n i c S o i l : S o i l m a i n l y c o m p o s e d o f r o t t i n g , d e c o m p o s i n g o r g a n i c m a t t e r s s u c h a s l e a v e s , p l a n t s a n d v e g e t a b l e m a t t e r . I t i s s p o n g y w h e n w e t , u s u a l l y s m e l l s o f d e c a y i n g m a t t e r , i s d a r k i n c o l o r a n d u s u a l l y d a m p .

T E S T S -

T h e r e a r e t w o k i n d s o f t e s t s : F i e l d t e s t s C o l o u r t e s t s T o u c h a n d s m e l l t e s t B i s c u i t t e s t H a n d w a s h t e s t C i g a r t e s t A d h e s i o n t e s t L a b t e s t s S i e v e t e s t S e d i m e n t a t i o n t e s t

C O B

W i t h o n l y a l i t t l e w a t e r t o f o r m a v e r y s t i f f m u d , a l a r g e l u m p i s r o u g h l y m o u l d e d i n t o t h e s h a p e o f a h u g e e l o n g a t e d e g g .

T h e u s u a l s i z e i s a n y t h i n g b e t w e e n 1 2 t o 1 8 i n c h e s , ( 3 0 t o 4 0 c m ) l o n g a n d a b o u t 6 i n c h e s ( 1 5 c m ) i n d i a m e t e r .

C o b P i s e o r R a m m e d e a r t h A d o b e P r e s s e d b r i c k s W a t t l e a n d d a u b m e t h o d

A r o w o f t h e s e c o b s o f m u d a r e l a i d n e a t l y s i d e b y s i d e p r e f e r a b l y s o m e w h a t p r e s s e d t o g e t h e r . T h e n a n o t h e r r o w o f c o b s i s l a i d o n t o p . W h e n t h r e e o r f o u r c o u r s e s h a v e b e e n l a i d , o n e a b o v e t h e o t h e r , t h e s i d e s a r e s m o o t h e d o v e r s o t h a t t h e h o l e s a n d c r a c k s d i s a p p e a r .

O p e n i n g s f o r d o o r s , a n d w i n d o w s a r e a p r o b l e m , w h i c h c a n b e s o l v e d b y u s i n g t e m p o r a r y v e r t i c a l p l a n k s o r s h u t t e r i n g .

A n o t h e r v e r y s i m p l e s h u t t e r i n g f o r o p e n i n g s i s t o u s e e m p t y k e r o s e n e t i n s .

S O I L S O U R C E -
E A
R T H T E C H N I Q U E S

t e n i t i s f e a s i b l e t o b u i l d t h e w a l l s o f a h o m e o n m u d , b u t s o m e m o r e s o l i d m a t e r i a l i s n e e d e d f o r t h e f o u n d a t i o n a n d b a s e m e n t . I f s t o n e i s l o c a l l y a v a i l a b l e i t c a n b e u s e d . T h e r e a r e t i m e s w h e n t h e t o p s o i l m a y b e s o f t a n d u s e l e s s b u t t h e r e m a y b e r e a s o n a b l e h a r d e r s u b s o i l c a p a b l e o f c a r r y i n g t h e w e i g h t o f a s i n g l e s t o r e y m u d h o u s e . I n t h i s s i t u a t i o n r e m o v e t h e s o i l f r o m t h e t r e n c h y o u w o u l d n o r m a l l y d i g f o r a s t o n e o r b r i c k f o u n d a t i o n . S l i g h t l y d a m p e n t h e e x c a v a t e d s o i l a n d t h e n r e p l a c e a p a r t o f i t t o f i l l t h e t r e n c h a b o u t 6 t o 9 i n c h e s . R a m t h i s v e r y h a r d t h e n r e p e a t u n t i l t h e t r e n c h i s f u l l . I f t h e r e i s b a m b o o i s a v a i l a b l e , i t c a n b e u s e d t o m a k e n a r r o w r a f t s o f s p l i t b a m b o o . H a v i n g d o n e t h e f i r s t 6 - i n c h e s i n f i l l i n g a n d r a m m i n g , a r a f t o f b a m b o o s t r i p s i s l a i d a l l a r o u n d .

O

M O R T A R

S U I T A B L E M O R T A R F O R M A S O N R Y

S t a b i l i s e d E a r t h M o r t a r i s b e s t s u i t e d f o r m a s o n r y u s i n g m u d b l o c k s . M u d m o r t a r s h a l l b e s t a b i l i s e d 1 . 5 t i m e s m o r e t h a n t h e m u d b l o c k s .

A d d c o u r s e s a n d ( 0 . 2 t o 2 m m ) t o r e d u c e s h r i n k a g e .

P r e p a r e p l a s t i c m i x r a t h e r t h a n d r y m i x .

I d e a l m i x = s o i l s u i t a b l e f o r m u d b l o c k + 4 0 % t o 5 0 % o f s a n d b y w e i g h t + 7 . 5 % c e m e n t . T e s t t h e m o r t a r b e f o r e u s e

P r o c e d u r e

S t a r t w i t h a m i x o f 1 v o l . C e m e n t + 6 v o l . S o i l + 6 v o l . S a n d .

A p p l y a l a y e r o f 1 c m m o r t a r o n a b l o c k s o a k e d i n w a t e r a n d l e t i t d r a y i n s h a d e .

O b s e r v e t h e m o r t a r f o r c r a c k s .

I n t e r p r e t a t i o n

I f c r a c k s a p p e a r , r e d u c e t h e s o i l a n d i n c r e a s e t h e s a n d p r o p o r t i o n .

1 c e m e n t + 5 s o i l + 7 s a n d .

I f m o r t a r i s t o o c r u m b l y , i n c r e a s e t h e s o i l a n d r e d u c e t h e s a n d p r o p o r t i o n .

1 c e m e n t + 7 s o i l + 5 s a n d

W A T E R

W a t e r a n d d a m p n e s s a r e o n e o f t h e m a j o r p r o b l e m s f o r m u d a s c o n s t r u c t i o n m a t e r i a l .

T h e b e s t w a y o f p r o t e c t i n g a n y w a l l f r o m e i t h e r r a i n o r s u n i s t o h a v e a g o o d b i g o v e r h a n g t o y o u r r o o f .

T h e s l o p i n g , o r p i t c h e d r o o f i s b e t t e r b e c a u s e t h e w a l l s n e e d n o t b e s o h i g h a s f o r a f l a t r o o f e d h o u s e .

P r o v i d e t r e n c h e s r o u n d t h e h o u s e t o r e c e i v e d r i p p i n g w a t e r a n d d r a i n i t a w a y .

F O U N D A T I O N
D E
1 0 M M D I A S T E E L B A R 8 M M D I A S T E E L S T I R R U P S @ 2 0 M M C / C B A S E M E N T D P C M I X M 2 0 M U D W A L L R A N D O M R U B B L E F O U N D A T I O N I N M U D M O R T A R A G R O U N D L V L P L I N T H L V L . 0 0 0 M 0 . 6 M E A R T H F I L L I N G F L O O R F I N I S H S C A L E 1 : 2 0 5 7 9 4 4 7 0 6 M U D W A L L D P C M I X M 2 0 R A N D O M R U B B L E B A S E M E N T I N S T A B I L I S E D M U D M O R T A R M U D R A N D O M R U B B L E F O U N D A T I O N I N M U D M O R T A R D W A L L C / L C / L C R O S S S E C T I O N O F F O U N D A T I O N A N D M U D W A L L C R O S S S E C T I O N O F F O U N D A T I O N A N D T R A P E R E D M U D W A L L 6 0 0 0 4 5 0 0 1 2 0 0 2 6 0 0 0 4 2 . 9 4 4 7 . 0 6 2 0 . 0 0 3 5 . 0 0 1 5 0 0 3 0 0 0 4 5 . 0 0 3 0 . 0 0 1 5 . 0 0 6 0 0 0 4 5 0 0 1 2 . 0 0 2 6 0 0 0 5 2 . 5 0 5 2 . 5 0 3 7 5 0 3 7 5 0 2 0 0 0 2 0 0 0 1 5 . 0 0 3 0 . 0 0 C E N T R E O F G R A V I T Y 3 0
T A I L A T A
f

B U I L D I N G S T U D Y T R I P S

T R A I N I N G P O R T F O L I O S U R A J K A R W A S R A
R a v i C h a t h a n o o r - E a r t h h o m e o f n u t u r i s t
H a r i k r i s h n a n - E a r t h / m u d h o u s e
B o d h i - E a r t h / m u d h o u s e - 1 9 9 6
R
a v i z A s h t a m u d y - B i o d i v e r s i t y i n c l u s i v e R e s o r t

Turn static files into dynamic content formats.

Create a flipbook
Issuu converts static files into: digital portfolios, online yearbooks, online catalogs, digital photo albums and more. Sign up and create your flipbook.